Sfeervol dubbel benedenhuis van 112 m², efficiënt ingedeeld en gelegen op eigen grond in één van de mooiste straten van Oud-West. Dit huis is in 2018 compleet gerenoveerd en beschikt over een tuin van circa 28 m² en een terras op de eerste etage van 12 m². De woning strekt zich uit over twee woonlagen: op de begane grond bevinden zich de living en de riante woonkeuken die grenst aan de tuin. Op de eerste etage zijn drie slaapkamers, een ruime badkamer en een terras aan de achterzijde te vinden.

Rondleiding
Bij binnenkomst via de eigen entree op de begane grond valt direct de hoge plafondhoogte van 2,96 meter op in de woonkamer, wat zorgt voor veel lichtinval en een gevoel van ruimte. Aan de achterzijde bevindt zich een ruime, open woonkeuken, uitgerust met diverse inbouwapparatuur, waaronder een grote oven, een 6-pits gasfornuis, Quooker Flex kraan, vaatwasser en koel-vriescombinatie. De benedenetage is voorzien van vloerverwarming en een houten vloer, en via openslaande deuren heeft men toegang tot de tuin.
Op de eerste verdieping bevinden zich drie ruime slaapkamers en een centraal gelegen badkamer. De hoofdslaapkamer aan de voorzijde heeft een Frans balkon en een ingebouwde kastenwand. De badkamer is uitgerust met een ligbad, inloop-regendouche, dubbel wastafelmeubel en toilet. De tweede en derde slaapkamer liggen aan de achterzijde en hebben toegang tot het terras.
De achtertuin, gelegen op het noordwesten, is 28 m² groot en heeft een bar, met voldoende ruimte voor een eettafel en een lounge-set. Het terras op de eerste etage biedt plaats voor een zitje of bankje, en hier bevindt zich ook een kast voor de cv-ketel.

Wat de bewoners gaan missen
"In de winter genieten we graag bij de haard van een aperitief na een frisse wandeling. De moderne keuken, uitgerust met een royale oven, een Quooker Flex en voldoende kastruimte, wordt verlicht door een lichtstraat op de uitbouw, wat de leefkeuken een lichte, open sfeer geeft."

Buurtgids 
Bootcampen. Picknicken. Pootjebaden. In het Vondelpark kan het allemaal. Dit is het groene hart van de stad waar iedereen samenkomt en verschillen in status of afkomst verdwijnen. Het zonovergoten terras van het renaissancistische Vondelparkpaviljoen, nu Parkzuid, blijft een prachtige plek voor een borrel of diner. Dit is de wijk voor iedereen die houdt van goed gebouwde, ruime woningen dichtbij de stad; met de Overtoom als verkeersader en de Helmersbuurt voor alle voorzieningen.

Bijzonderheden
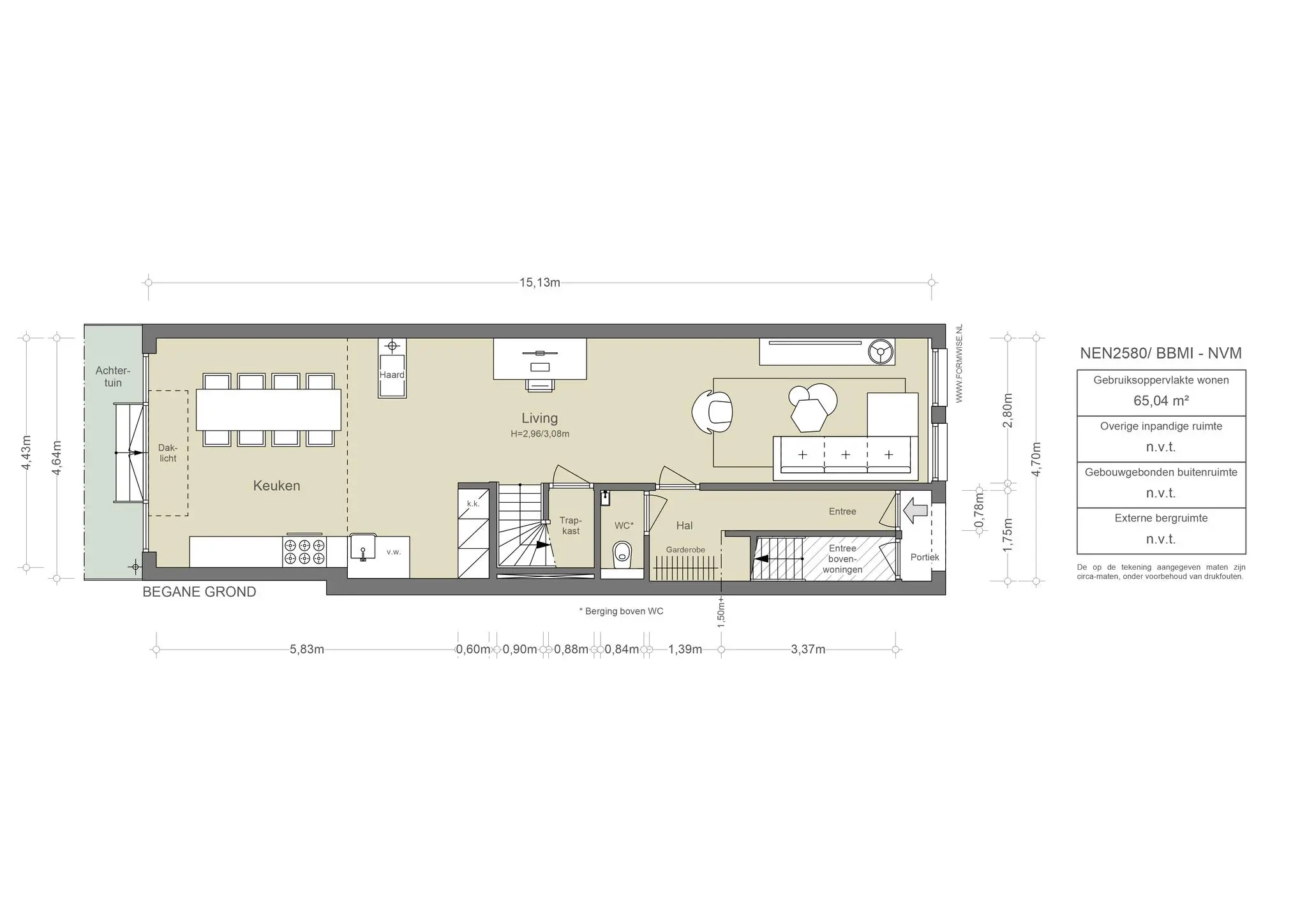
•    Gebruiksoppervlakte wonen circa 112 m²
•    Dubbel benedenhuis
•    Tuin gelegen op het noordwesten circa 28 m² en terras op de eerste etage van circa 12 m²
•    Gelegen op eigen grond
•    Energielabel B
•    Drie slaapkamers
•    Riante woonkeuken met veel opbergruimte en gashaard
•    Vloerverwarming begane grond
•    Servicekosten VvE € 172,- per maand
•    Gerenoveerd in 2018 (ook alle elektra vernieuwd)
•    Uitbouw begane grond gerealiseerd in 2018

AM105726-1924082-Wilhelminastraat-162H,-Amsterdam-197684103

Wilhelmina’s Huis
Onze opdrachtgevers wonen sinds 2008 in deze woning en hebben in 2018 het huis gerenoveerd. Ze hebben van twee losse appartementen één huis gemaakt en het uitgebouwd. Het resultaat is een prachtige dubbele benedenwoning met een praktische indeling, gelegen in één van de mooiste en gezelligste straten van Amsterdam Oud-West. Nu hun kinderen wat groter worden en het Brabantse hart van beiden harder is gaan kloppen voor een woning in het Brabantse land, is het tijd om deze charmante tuinwoning te verkopen.
Toen wij elkaar voor het eerst ontmoetten, vertelden ze mij aan de keukentafel dat ze altijd heel prettig hebben gewoond in de Wilhelminastraat. Ze kennen iedereen in de buurt, helpen elkaar als dat nodig is, en organiseren minimaal één keer per jaar een buurt-BBQ, wat zorgt voor een heel geborgen gevoel. Het is dan ook een grote stap voor hen om de stad te verlaten.
Hun woning is zeer geschikt voor zowel stellen als gezinnen. Ze zijn hier zelf als stel komen wonen en hoefden gelukkig niet te verhuizen toen de kinderen kwamen. Het huis biedt veel ruimte, en prettig is dat het slaapgedeelte op de eerste etage ligt en het woongedeelte beneden, aangrenzend aan de tuin.


Daniël de Bont | Makelaar Broersma Wonen
AM105726-1924082-Wilhelminastraat-162H,-Amsterdam-197684261
Architectuur

Architectuur
De Wilhelminastraat in Amsterdam kenmerkt zich door een gevarieerde architectuur die een rijk historisch en cultureel erfgoed weerspiegelt. De straat herbergt verschillende architectuurstijlen. Er zijn veel gebouwen langs de Wilhelminastraat afkomstig uit de late 19e eeuw, een periode van snelle stedelijke expansie in Amsterdam. Deze panden zijn vaak versierd met decoratieve gevels, sierlijke geveltoppen en rijk versierde entrees.
De straat herbergt een mix van ruime herenhuizen en meer bescheiden appartementen, waarbij veel aandacht is besteed aan leefbaarheid en sociale samenhang. Gemeenschappelijke tuinen of binnenplaatsen dragen bij aan de aangename woonomgeving.

AM105726-1924082-Wilhelminastraat-162H,-Amsterdam-197684267
AM105726-1924082-Wilhelminastraat-162H,-Amsterdam-197684165
AM105726-1924082-Wilhelminastraat-162H,-Amsterdam-197684155
AM105726-1924082-Wilhelminastraat-162H,-Amsterdam-197684107
Wonen en koken

Wonen en koken
Bij binnenkomst via de eigen entree op de begane grond en de lange, brede hal vallen direct de hoge plafonds van 2,96 meter in de woonkamer op, die aan de straatkant ligt. Dit zorgt voor een fijne lichtinval. Aan de achterzijde bevindt zich de riante, robuuste open woonkeuken, voorzien van diverse inbouwapparatuur zoals een grote oven, een 6-pits gaskookstel, een Quooker Flex kraan, vaatwasser en een koel-vriescombinatie. De lichtstraat op de uitbouw zorgt voor extra lichtinval, waardoor er vooral veel ruimte is om te kokkerellen en te dineren. De gashaard in de keuken biedt een sfeervolle ambiance en is vooral fijn om bij op te warmen tijdens de koudere winterdagen. De gehele etage is voorzien van een houten vloer met vloerverwarming. Via de openslaande deuren kan men bij mooi weer genieten van de avondzon in de tuin. Het woongedeelte op de begane grond, gecombineerd met de keuken aan de tuinzijde, geeft extra cachet aan het woongenot. Er is daarbij voldoende bergruimte aanwezig, zoals onder de trap en boven het toilet.

AM105726-1924082-Wilhelminastraat-162H,-Amsterdam-197684145
AM105726-1924082-Wilhelminastraat-162H,-Amsterdam-197684159
AM105726-1924082-Wilhelminastraat-162H,-Amsterdam-197684171
AM105726-1924082-Wilhelminastraat-162H,-Amsterdam-197684191
AM105726-1924082-Wilhelminastraat-162H,-Amsterdam-197684111
AM105726-1924082-Wilhelminastraat-162H,-Amsterdam-197684189
Slapen en baden

Slapen en baden
Via de trap naar boven bevinden zich drie ruime slaapkamers en een badkamer. De hoofdslaapkamer ligt aan de voorzijde en beschikt over een Frans balkon. De ramen in de hoofdslaapkamer zijn draai-/kiepramen, en één van de openslaande deuren bij het Frans balkon heeft ook een winterstand, waardoor het raam zelfs in de winter open kan voor frisse lucht. Deze kamer biedt veel opbergruimte dankzij een ingebouwde kastenwand.
De centraal gelegen, moderne badkamer is uitgerust met een ligbad, dubbele inloop-regendouche, dubbel wastafelmeubel en toilet. Daarnaast is de badkamer voorzien van apart te bedienen vloerverwarming. De tweede en derde slaapkamers bevinden zich aan de achterzijde van het appartement. De kleinere slaapkamer is ideaal voor gebruik als werkkamer, kinderkamer of logeerkamer. Beide slaapkamers grenzen aan het terras op het noordwesten.

AM105726-1924082-Wilhelminastraat-162H,-Amsterdam-197684203
AM105726-1924082-Wilhelminastraat-162H,-Amsterdam-197684257
AM105726-1924082-Wilhelminastraat-162H,-Amsterdam-197684237
AM105726-1924082-Wilhelminastraat-162H,-Amsterdam-197684247
AM105726-1924082-Wilhelminastraat-162H,-Amsterdam-197684179
AM105726-1924082-Wilhelminastraat-162H,-Amsterdam-197684177
AM105726-1924082-Wilhelminastraat-162H,-Amsterdam-197684217

Tuin en terras
De ruime achtertuin, gelegen op het noordwesten, biedt een oase van rust. Er is voldoende ruimte voor een grote eettafel en een loungeset. Het terras op de eerste etage aan de achterzijde heeft plek voor een zitje of bank en vangt de avondzon. Een leuk detail van de tuin is het barretje dat is gemaakt op het schot van de overkapping. Op het balkon is tevens een kast geplaatst waarin de cv-ketel is ondergebracht.

AM105726-1924082-Wilhelminastraat-162H,-Amsterdam-197684115
AM105453-1902065-Wilhelminastraat-216-1,-Amsterdam-194757013
AM105453-1902065-Wilhelminastraat-216-1,-Amsterdam-194757005
AM105726-1924082-Wilhelminastraat-162H,-Amsterdam-197684277
Bereikbaarheid

Buurtgids
Van industriegebied met molens tot stadwijk met rijke architectuur: de Vondelbuurt zoals wij deze nu kennen heeft sinds de 19e eeuw een enorme transitie doorstaan. De wijk is vernoemd naar de dichter Joost van den Vondel. Kenmerkend zijn de vele bouwstijlen, zoals het neoclassistische gebouw van de Hollandsche Manege en de Zevenlandenhuizen in zeven verschillende bouwstijlen die refereren naar de specifieke landen. De allure van de Vondelstraat en Roemer Visscherstraat aan het park. Bootcampen. Picknicken. Pootjebaden. In het Vondelpark kan het allemaal. Dit is het groene hart van de stad waar iedereen samenkomt en verschillen in status of afkomst verdwijnen. Het zonovergoten terras van het renaissancistische Vondelparkpaviljoen, nu Vondelpark 3, blijft een prachtige plek voor een borrel of diner. Dit is de wijk voor iedereen die houdt van goed gebouwde, ruime woningen dichtbij de stad; met de Overtoom als verkeersader en de Helmersbuurt voor alle voorzieningen.

Bereikbaarheid
Het appartement is zowel met de fiets, auto als openbaar vervoer zeer goed bereikbaar. De Ring A10 is al binnen 5 autominuten te bereiken via afslag S106 (Oud-Zuid). Vanaf zowel de Rhijnvis Feithstraat, Kinkerstraat, Jan Pieter Heijestraat als het Surinameplein vertrekken meerdere tram- en buslijnen, zoals tramlijn 1, 7 en17 naar onder andere Centraal Station, Azartplein en Osdorp en bussen naar respectievelijk Station Sloterdijk en Station Zuid. Vanaf het Haarlemmermeerstation vertrekt daarnaast het streekvervoer met onder andere een directe verbinding naar Luchthaven Schiphol. Met de fiets is Station Lelylaan binnen 5 minuten aan te rijden.

Parkeergelegenheid
Parkeren is mogelijk via een vergunningenstelsel op de openbare weg (vergunningsgebied West-11.3). Met een parkeervergunning voor West-11.3 mag u parkeren in West-11. Een parkeervergunning voor bewoners kost 186,29 per 6 maanden. Momenteel is er voor dit vergunningsgebied een wachttijd van 2 maanden. Een tweede parkeervergunning is in dit gebied niet mogelijk. Naast de openbare weg is het ook mogelijk om met een parkeervergunning kosteloos te parkeren in garage Kwintijn I, Kwintijn II of Furore. (Bron: Gemeente Amsterdam, augustus 2024).

AM103520-1890545-Van-Eeghenlaan-28,-Amsterdam-188584593

Wat de bewoners gaan missen
De Wilhelminastraat in Amsterdam is een begrip en wij vinden dat terecht. Iedereen kent de straat van de mooie bomen en de ligging vlak bij het Vondelpark.
Wij maken veel gebruik van faciliteiten die binnen enkele minuten te bereiken zijn zoals winkelstraten De Kinkerstraat en Jan Pieter Heijestraat, verschillende restaurants, koffietentjes, kroegjes, de speeltuin op het Cremerplein, Ten Kate markt, Het Vondelpark, musea en de binnenstad. De Kinkerstraat heeft alle nodige winkels en op de Ten Kate markt hallen we alles voor een lekkere borrel plank. De foodhallen met de bibliotheek en bioscoop zijn heerlijk om rond te hangen met slecht weer.
Ook hebben wij goed contact met al onze buren en helpen we elkaar met bv een teentje knoflook of het bewaren van een reservesleutel. Er is minimaal eens per jaar een buurt BBQ waar iedereen welkom is. Regelmatig ontstaan er spontaan momenten op straat waarop we elkaar ontmoeten.
In 2008 waren wij die geluksvogels die in, de toen al favoriete buurt, Oud-West mochten gaan wonen. Van buiten lijken het smalle en misschien wel kleine huizen maar binnen is er veel ruimte voor alle tijden van de dag. In 2018 hebben we van twee losse appartementen één huis gemaakt en uitgebouwd. Het huis is met veel liefde verduurzaamd en gemoderniseerd waardoor het comfort optimaal is. Bij de verbouwing hebben we extra aandacht besteed aan een goede balans tussen een praktische indeling met voldoende opbergruimte en leefcomfort.

De bovenverdieping is efficiënt ingedeeld met drie ruime slaapkamers, waarbij elke vierkante meter optimaal is benut. De wasmachine en droger zijn netjes weggewerkt in een kast, met een platje ertegenover voor het wasrek, zodat de was nooit in de weg staat. Extra opbergruimte bevindt zich onder de trap en boven het toilet beneden, terwijl de brede garderobe in de gang ideaal is voor het opbergen van een kinderwagen of racefiets. De brede deur naar de woonkamer maakt het gemakkelijk om met een kinderwagen binnen te komen, en de sfeervolle gashaard tussen de leefkeuken en woonkamer voegt een vleugje luxe toe. In de winter genieten we graag bij de haard van een aperitief na een frisse wandeling. De moderne keuken, uitgerust met een royale oven, een Quooker Flex en voldoende kastruimte, wordt verlicht door een lichtstraat op de uitbouw, wat de leefkeuken een lichte, open sfeer geeft. We hebben hier vaak uitgebreid getafeld met familie en vrienden. In de zomer zetten we de deuren naar de tuin wijd open om een binnen-buitengevoel te creëren, luisterend naar het vrolijke gezang van vogels. De omsloten binnentuin biedt een oase van rust, waar je soms getrakteerd wordt op het prachtige pianospel van een buurman, terwijl de avondzon je verwelkomt op het balkon op de eerste verdieping.
Voor ons is het moment aangebroken om terug te gaan naar onze roots in Brabant, waar we de kinderen nog meer buitenruimte kunnen geven. We hopen dat de nieuwe eigenaren net zo van deze plek gaan genieten als wij hebben gedaan.

 

AM105726-1924082-Wilhelminastraat-162H,-Amsterdam-197684103
AM105726-1924082-Wilhelminastraat-162H,-Amsterdam-197684137
Kenmerken
Wilhelminastraat 162H, Amsterdam
Vraagprijs
  • € 1.240.000 k.k.
Beschikbaarheid
  • In overleg
Vertrekken
  • 4 kamers
  • 3 slaapkamers
  • 1 badkamer
Onderhoud
  • Intern: Goed
  • Extern: Goed
Oppervlakten & Inhoud
  • Woonoppervlakte: 112 m²
  • Gebouwgebonden buitenruimte: 12 m²
  • Tuinoppervlakte: 28 m²
Bouwjaar
  • 1906
Installaties
  • Frans balkon
  • Mechanische ventilatie
  • TV kabel
Ligging
  • Aan rustige weg
  • In woonwijk
Parkeren
  • Betaald parkeren
  • Parkeervergunningen
Type verwarming
  • CV Ketel
  • Vloerverwarming gedeeltelijk
Type warmwater
  • CV Ketel
Bestemming
  • Woonruimte
Eigendomssoort
  • Volle eigendom
Buitenruimte
  • Achtertuin
  • Dakterras
Kadastraal
  • Gemeente: Amsterdam
  • Sectie: T
  • Nummer: 5759
Duurzaamheid
  • Volledig geisoleerd
  • Energielabel B
Soort
  • Appartement
  • Benedenwoning
Overige kenmerken

OZB ('24) € 414,41 per jaar
Rioolrecht ('24) € 166,85 per jaar
Servicekosten VvE € 172,-- per maand

Plattegrond
Wilhelminastraat 162H, Amsterdam
AM105726-1924082-Wilhelminastraat-162H,-Amsterdam-197684283
AM105726-1924082-Wilhelminastraat-162H,-Amsterdam-197684287
AM105726-1924082-Wilhelminastraat-162H,-Amsterdam-197684299
Documenten
Wilhelminastraat 162H, Amsterdam
Locatie
Wilhelminastraat 162H, Amsterdam
Eten & drinken
01
Adres
Rhijnvis Feithstraat,
1054 TT Amsterdam

De Figurantenbar

Een buurtkroeg zoals die hoort te zijn; fijne bediening, leuke mensen, lekkere wijntjes en veel gezelligheid. Met de buurtbewoners voetbal kijken, aan een popquiz meedoen of naar livemuziek luisteren. Het aanbod is divers en gezellig.

8-Neapolitan-Pizza-Bar
02
Adres
Wilhelminastraat 153HS,
1054 WC Amsterdam

Pizza Project

Het begon met een pizzaoven in hun achtertuin. Elke vrijdag stond er een rij voor hun woning met vrienden en familie die een pizza kwamen halen. Inmiddels hebben Idske en Bas twee vestigingen en een foodtruck. Het geheim? Het deeg 48 uur laten rijzen waardoor de bodem luchtig wordt en de pizza minder zwaar op de maag ligt. In het weekend worden er ook broodjes voor de lunch geserveerd.

downloadgram.org_505199169_17968221128916987_8853914751551748836_n
03
Adres
J.J. Cremerplein 34H,
1054 TL Amsterdam

Taal Coffee

Taal Coffee is een koffiezaak in Amsterdam-West, opgericht door Aleksandra Fedorova, die na jaren ervaring in de koffiewereld haar eigen plek wilde creëren rond ontmoeting en aandacht. De naam verwijst naar de manier waarop smaak en gesprek mensen verbinden, en dat idee vormt het hart van de zaak. Hier draait het om zorgvuldig bereide espresso’s en filterkoffie, met bonen van kleine branders en seizoensgebonden dranken. Naast koffie worden er ambachtelijke zoetigheden geserveerd, in een ruimte waar buurtbewoners graag blijven zitten om te werken of bij te praten.

Schermafbeelding 2022-06-20 om 12.06.45
04
Adres
Wilhelminastraat 109,
1054 WB Amsterdam

Barrica

Bij Barrica kan je terecht voor wijn en eten. Je begeeft je hier in Mediterrane sferen met een Italiaanse en Spaanse wijn- en menukaart én het warme, gezellige interieur. Je kan kiezen voor shared dining met een soort mix tussen tapas en antipasti. Zo kan je van alles wat proeven, van burrata en lasagne tot kabeljauw in tomatensaus. Een sfeervol restaurant met goede wijnen en heerlijk eten.

downloadgram.org_599174450_17869878831481062_7625921310109593583_n
downloadgram.org_584414906_17867642610481062_6913260930332692383_n
05
Adres
Staringplein 22,
1054 VL Amsterdam

Gorgo Lunchroom

Gorgo is opgezet door Rifat Ergor en Berkutay Gunel, die negen jaar geleden samen Istanboel verlieten en in Amsterdam hun droom van een eigen zaak realiseerden. Ergor is architect, Gunel creative director, en die creatieve blik voel je in alles: van het licht in de ruimte tot de manier waarop de keuken wordt benaderd. Hun lunchroom is geïnspireerd op Anatolië en omschrijven ze zelf als 'neither East nor West', een plek waar Turkse, Arabische, Perzische, Armeense en Griekse invloeden samenkomen. Op de kaart staan eigenzinnige gerechten zoals tosti’s met kavurma, tahini en honing, sesamkoekjes vol verschillende sesamvarianten en drankjes als sumac-limonade en hoşaf-kombucha.

243487692_916456538963690_7976686809274757497_n
06
Adres
Overtoom 445,
1054 KG Amsterdam

Focacceria

De Italiaanse Valeria Lucente vindt de Italiaanse restaurants in Amsterdam verrassend goed, maar ze heeft wel heimwee naar de smaken van thuis. Vooral de focaccia uit haar streek. Dit delicate platbrood, ongeveer twee centimeter dik, is luchtig, vettig en zo zacht als een wolk. In tegenstelling tot focaccia uit andere Italiaanse regio's heeft de genovese-variant geen knapperige, maar een zachte bovenkant. Dit komt door voor het bakken het deeg te bestrijken met olijfolie, water en zout. Vooral in Genua wordt focaccia genoten bij elk eetmoment en dat kan nu dus ook in Amsterdam.

downloadgram.org_612064080_18088618793472192_8522096381989837072_n
downloadgram.org_503799539_18064983656472192_5322203112114680114_n
07
Adres
Jacob Van Lennepkade 334D,
1053 NJ Amsterdam

Bon Burger

Bon Burger is de nieuwe zaak van Freek Kattenberg, bekend van Bottleshop in Oost, die met dit concept zijn liefde voor burgers en natuurwijn samenbrengt. Na jaren van succesvolle burgerpop-ups in Bottleshop besloot hij dat het tijd was voor een vaste plek in West, op de geliefde vlonder aan de Jacob van Lennepkade. Kattenberg gelooft dat juist iets simpels als een hamburger goed uitvoeren een vak is, en dat zie je terug in zijn focus op grilltechniek en kwaliteit. Het vlees komt van Nederlandse dubbeldoelkoeien, die eerst als melkkoe hebben geleefd en daardoor duurzamer en smaakvoller zijn. Bon Burger voelt als een ontspannen buurtplek waar kenners en nieuwsgierige voorbijgangers samenkomen voor burgers, wijn en lange avonden aan het water.

Gitane-NinaSlagmolen-10juli2023-188-1365×2048
329963219_8769040973168667_1375211572719675553_n
08
Adres
Jan Pieter Heijestraat 146,
1054 MK Amsterdam

Gitane

Angelo Kremmydas, zowel chef als eigenaar, kookt enkel met de meest verse en seizoensgebonden ingrediënten. Het menu weerspiegelt zijn visie en biedt een bescheiden en verfijnde selectie eigentijdse à la carte-gerechten. Hier geen ingewikkelde setmenu's; in plaats daarvan heb je de vrijheid om precies te bestellen waar je op dat moment naar verlangt. Angelo's mediterrane achtergrond schittert in elk gerecht. Naast het smaakvolle menu is er een uitgebreide wijnkaart.

271553756_4698050586938795_6728215580262896284_n
61044194_2189624581114754_5141080698035109888_n
09
Adres
Jan Pieter Heijestraat 121,
1054 ME Amsterdam

Flo's Appetizing

Bij Flo's Appetizing ben je aan het juiste adres voor handgemaakte Amerikaanse bagels. Eigenaresse Heather Eddy maakt elke dag met passie de meest verse bagels met gevarieerde toppings voor je klaar. Favoriet is de pastrami of gegrilde kaas en ei.

300884117_172675551991923_5973370947242380801_n
10
Adres
Eerste Helmersstraat 174H,
1054 EK Amsterdam

Mr. Gyoza

Het restaurant biedt naast de traditionele varkensvlees gyoza ook vegetarische en veganistische opties, waaronder roze bietengyoza. Daarnaast staan er verschillende bijgerechten en desserts op de kaart, zoals gefrituurde kip, ramen noedels en groene thee ijs. Het interieur van Mr. Gyoza is modern en gezellig, met een open keuken waar je de koks aan het werk kunt zien.

 

 

280279707_690276598712258_782257989926286225_n
11
Adres
Lootsstraat 5,
1053 NT Amsterdam

Eetcafé Meo’s Colosseum

Bij het Surinaams-en Caribische Eetcafé Meo’s Colosseum kan je elke dag vanaf 04.00 uur 's ochtends tot 10.30 uur 's avonds terecht en op zaterdag tot 05.00 uur (en soms nog langer). Ze staan altijd voor je klaar wanneer andere eetgelegenheden gesloten zijn met lekkernijen als nasi, bami, pom, of moksi alesi. Op vrijdag en zaterdag zijn er ook barbecue gerechten en huisgemaakte friet. Krijg je er nog geen genoeg van? Binnenkort zijn ze 24 uur geopend.

downloadgram.org_587941642_17861923047540463_7528525127815259624_n
downloadgram.org_580577890_17860377204540463_347230483383533533_n
12
Adres
Jan Pieter Heijestraat 94A,
1053 GS Amsterdam

Café Vitalente

Café Vita Lente werd geopend door Simon Witmaar, voormalig eigenaar van het sterrenrestaurant Coulisse, dat hij samen met Tim van der Molen runde. Met Vita Lente koos hij bewust voor iets totaal anders: geen fine dining, maar een café waar spontaniteit en vrijheid centraal staan. In de keuken staat Bas Holthuizen, die meeging vanuit Coulisse en hier kookt in een losser format met warme en koude gerechten die je de hele dag door kunt bestellen. Het concept draait om het Italiaanse idee van 'vita lenta', langzaam leven, waarbij je op elk moment vanaf 11.30 kunt binnenlopen en zo lang blijft als je wilt.

26-lvffood-com-5129-57-20230127
13
Adres
Postjesweg 1,
1057 DT Amsterdam

Daalder (*)

Zijn Indonesische roots en Aziatische invloeden kruiden de inventiviteit van chef Huwaë. Hij schuwt allerminst de contrasterende smaken. Het talent van deze chef ligt in de harmonie die hij bereikt met dergelijke associaties. Soms is hij iets klassieker, zoals met een perfect gegaarde langoustine waarbij een botersaus komt die is verrijkt met champagne, appelsien en Grand Marnier. Subtiel, intens, explosief. Helemaal Dennis Huwaë. Daalder heeft 1 Michelin ster.

1500-x-1000-pxl5-1024×683
14
Adres
Overtoom 515,
1054 LN Amsterdam

Adam

Alle gerechten zien er fraai uit, zonder overdreven gedoe. Ook de smaken doen zich gelden: eerlijk, spannend en in balans. Al snel in ons menu komen we een topper tegen: perfect gegaarde griet met een fris-ziltige oestervinaigrette, komkommerlinten, amandelcrème, een bite van gefrituurde vishuid en een saus van nori. Even tongstrelend: een perfect stukje lam van de Big Green Egg, bereid met chorizo en geserveerd met twee heerlijke sauzen.’

350797001_546119614400873_859829144022127459_n
15
Adres
Jan Pieter Heijestraat 76,
1053 GS Amsterdam

Wakuli

Wakuli ontleent aan het Swahili-woord 'wakulima', wat boer betekent. Hier vind je kwaliteitskoffie die op duurzame wijze is verkregen tegen betaalbare prijzen.  Ze halen hun bonen bij kleinschalige boeren die groene productie produceren en roosteren ze op de beste manier mogelijk voor maximale smaak. Je kunt hier alle gebruikelijke koffiesoorten krijgen, evenals heerlijke ijskoffie en nitro cold brew. Last but not least, hebben ze een aantal zoete en hartige lekkernijen beschikbaar, van empanadas tot broodjes en croissants.

1515753586-meneer-de-wit_bar4589
1547131084-meneer-de-witjcb8132
16
Adres
Witte de Withstraat 10,
1057 XV Amsterdam

Meneer de Wit heeft Honger

In 2015 opende Meneer de Wit heeft Honger; een restaurant met een huiselijke sfeer en heerlijk eten. Chef Simo Bouabgha leerde koken van zijn oma in het zuiden van Marokko en houdt van het eten dat de moeders rondom de Middellandse zee met alle liefde, geduld koken. Het menu bestaat uit seizoensgebonden gerechten met deze verfijnde en warme smaken, vaak gebaseerd op groente maar er is ook duurzaam vlees, gevogelte en vis.

17
Adres
Overtoom 255H,
1054 HW Amsterdam

Tamari Ya

Tamari Ya is opgezet door Imoto Yoshihisa en Yazawa Yuji, twee Japanse ondernemers die in hun dorp bij Hiroshima een farm-stay retreat begonnen en daar in 2023 hun eerste donutshop openden om hun gemeenschap nieuw leven in te blazen. Vanuit hun liefde voor rijst ontwikkelden ze de komeko-donut, gemaakt van rijstmeel uit eigen regio en daardoor van nature glutenvrij. In Amsterdam worden de donuts dagelijks met de hand gemaakt en gefrituurd in rijstolie, zonder conserveermiddelen of kleurstoffen. De textuur is anders dan je gewend bent: minder fluffy, meer chewy, met varianten als old fashioned of yeast-raised in smaken als matcha, zwarte sesam en pistache. De rustige, houtgedomineerde winkel op de Overtoom voelt als een stukje Japans platteland in de stad, waar aandacht voor eten en omgeving centraal staat.

244941393_392674422556390_5974260137434439690_n
361937251_1006343037055178_1266157854329145058_n
18
Adres
Postjesweg 98,
1057 EG Amsterdam

Mundi

Bij Mundi in Amsterdam-West komt alles samen: goede koffie, wijnen voor in de avond en een gezellige plek om te werken of te kletsen. Gelegen aan de Kinkerstraat, biedt Mundi een diversiteit aan bezoekers, van freelancers met laptops tot mensen die voor een sterke bak koffie komen. De koffie van Five Ways is krachtig en pittig, ook beschikbaar voor thuis. De roze bank met speelhoek maakt het kindvriendelijk, terwijl dagelijks lekkers van Ulmus en een selectie natuurwijnen de ervaring compleet maken. Mundi is elke dag open van 08:00 tot 16/17 uur.

Boodschappen
Schermafbeelding 2022-06-20 om 12.19.42
19
Adres
Overtoom 444,
1054 JW Amsterdam

Chabrol

Al meer dan dertig jaar is Chabrol een gevestigde wijnwinkel in Amsterdam en omstreken. Chabrol is gegroeid van een kleine wijnwinkel in de buurt naar een importeur van unieke, organische wijnen. De wijnen worden met een passie voor wijn en het verhaal achter de wijn geselecteerd. Dat kan je bijvoorbeeld lezen in de nieuwsbrief waar ze over iedere wijn een verhaal schrijven zodat de echte wijnliefhebber alles te weten komt. Je kan bij Chabrol voor een hele brede variatie aan wijnen terecht, zowel voor een wijntje voor doordeweeks als een wijn voor speciale momenten.

Schermafbeelding 2022-06-20 om 12.29.03
2_levain-et-le-vin
20
Adres
Jan Pieter Heijestraat 168,
1054 ML Amsterdam

Levain et le vin

In deze hippe bakkerij in Oud-West proef je het meest heerlijke zuurdesem brood, en zijn ze gespecialiseerd in natuurwijn. In de bakkerij wordt elke dag op natuurlijke wijze zuurdesem gemaakt en kan je er heerlijke koffies drinken gemaakt door barista's die weten wat ze doen. Ze hebben overheerlijke focaccias en een echte aanrader is de kaneelbrioche. Als je een avond lekker gaat borrelen is Levain et Levin de plek waar je naartoe moet. Het personeel dat er werkt weet wat ze verkopen, dus tips vragen is een aanrader!

holyactiefoto-s-183.960×0
holyactiefoto-s-164.960×0
21
Adres
Jan Pieter Heijestraat 88,
1053 GS Amsterdam

Holy Ravioli

Holy Ravioli is een pastawinkel in Amsterdam-West. Er zijn maar liefst 15 verschillende soorten ravioli en bij iedere ravioli hoort een passende pesto, boter, chutney, saus of kaas. Alle producten zijn seizoengebonden en vers en dat zorgt voor de allerlekkerste pasta. Daarnaast zijn er ook soepen, lasagnes, salades en toetjes. Je kan lekker buiten zitten in de zomer op de picknickbanken of pasta mee naar huis nemen en zelf klaarmaken als je een keer geen tijd hebt om te komen. De perfecte plek voor pastafanaten.

22
Adres
Overtoom 239,
1054 HV Amsterdam

Olivity

Olivity staat bekend om olijfolie en delicatessen, maar er is veel meer dan alleen dat! Olivity verkoopt niet alleen heerlijke Griekse producten van producenten uit heel Griekenland, maar gebruikt de keuken ook om workshops te houden. Gezellig met vrienden of collega’s biedt dit een unieke kans om kennis te maken met de geheimen van de Griekse keuken en alle authentieke Griekse bites. Mocht je liever een event houden? Dat kan ook, voor zowel kleine en grote groepen van brunch tot diner.

Interieur
358014390_18301446502098195_6874054696510138290_n
23
Adres
Baarsjesweg 276 H,
1058 AD Amsterdam

Cocoon house Amsterdam

Cocoon house Amsterdam is de plek waar je 20e-eeuwse antiek, designstukken en kunst ontdekt. De focus ligt op unieke en goed ontworpen stukken die gebruikt kunnen worden om stijlvolle en individuele interieurs te creëren. De verzamelaar, Sander van Eyck, is interieur- en productontwerper. Hij heeft zijn eigen collectie meubels en verlichting onder de naam: 'Made by Sander'.

studio3000-vintage-objects
24
Adres
Derde Kostverlorenkade 35,
1054 TS Amsterdam

Studio 3000

Studio 3000 is een multifunctionele creatieve ruimte. De studio is opgericht in 2020 door Nurcan Tuzkapan en is gevestigd lang de Derde Kostverlorenkade. In de studio worden design meubels getoond, verkocht en verhuurd. Naast vintage designmeubels vind je hier ook een fotografiestudio. Op haar instagramkanaal houdt Nurcan haar volgers op de hoogte van haar nieuwste vondsten en geplande event. Als je geïnteresseerd bent in creatieve projecten en design, is het zeker aan te raden om het platform van Nurcan in de gaten te houden.

104196247_2609875105928789_2143325823481766499_n
25
Adres
Baarsjesweg 208,
1057 HT Amsterdam

The BirdTsang

The BirdTsang is een jonge keramiek studio gevestigd aan de Baarsjesweg die unieke en handgemaakte ontwerpen maakt. The Bird Tsang wordt gerund door kunstenaars Robin de Vogel & Johannes Tsang, die zich focussen op de samenwerking met innovatieve chef-koks om unieke en op maat gemaakte ontwerpen te creëren die een eetervaring complimenteren en verhogen met onderscheidend en duurzaam keramisch servies.

Al veertig jaar is Toscanini een begrip in Amsterdam. Maud Moody, een van de oprichters, vertelt hoe het allemaal begon.

Al veertig jaar is Toscanini een begrip in Amsterdam. Maud Moody, een van de oprichters, vertelt hoe het allemaal begon.

De Mannequin

De Mannequin

Kunst & cultuur agenda maart 2026

Kunst & cultuur agenda maart 2026

Onlangs bekeken
Bekijk het overzicht

Deze site maakt gebruik van cookies.

Voor welke cookies geef je akkoord?