In een rustige straat in Amsterdam-Zuid ligt dit appartement, gelegen op eigen grond, van circa 52 m², waar een doordachte indeling en eigentijds wooncomfort samenkomen. Met twee slaapkamers, een ruimtelijke opzet en verfijnde afwerking biedt de woning een prettige woonomgeving voor wie op zoek is naar rust binnen de dynamiek van de stad.

Rondleiding
Bij binnenkomst valt de lichte woonkamer direct op – een open ruimte met een prettige maatvoering. Aan de voorzijde biedt een Frans balkon zicht op de straat en zorgt voor extra daglicht. De achterzijde van het appartement grenst aan een royaal balkon, rustig gelegen en geschikt als verlengstuk van de woonruimte en slaapkamer. De keuken is praktisch geplaatst naast het woon- en eetgedeelte en voorzien van diverse inbouwapparaten. De opstelling is functioneel en sluit logisch aan op het geheel. De slaapkamer aan de voorzijde beschikt over toegang tot het Franse balkon en biedt voldoende ruimte voor een tweepersoonsbed en opbergmogelijkheden. De slaapkamer aan de achterzijde grenst aan het balkon met uitzicht op de stadstuinen. De badkamer is uitgevoerd in een moderne stijl en voorzien van een inloopdouche, wastafelmeubel en toilet. Met twee buitenruimtes – aan zowel voor- als achterzijde – beschikt het appartement over prettige plekken voor frisse lucht en buitenruimte, afgestemd op verschillende momenten van de dag.

Buurtgids
De Sluisstraat is gelegen in Zuid, nabij het Hoofddorpplein, het Haarlemmermeerstation en gunstig gelegen ten opzichte van de Schinkeleilanden, sport-as, Amsterdamse Bos en Vondelpark. De omgeving biedt een uitgebreide diversiteit aan delicatessen winkels, ambachtelijke slagerij, visboer, supermarkten. Ook biedt de omgeving een groot aantal leuke coffee bars en horeca gelegenheden zoals Bar Bonnie, Ron Gastrobar, Caffe Combo, en Wakuli. 

Bijzonderheden
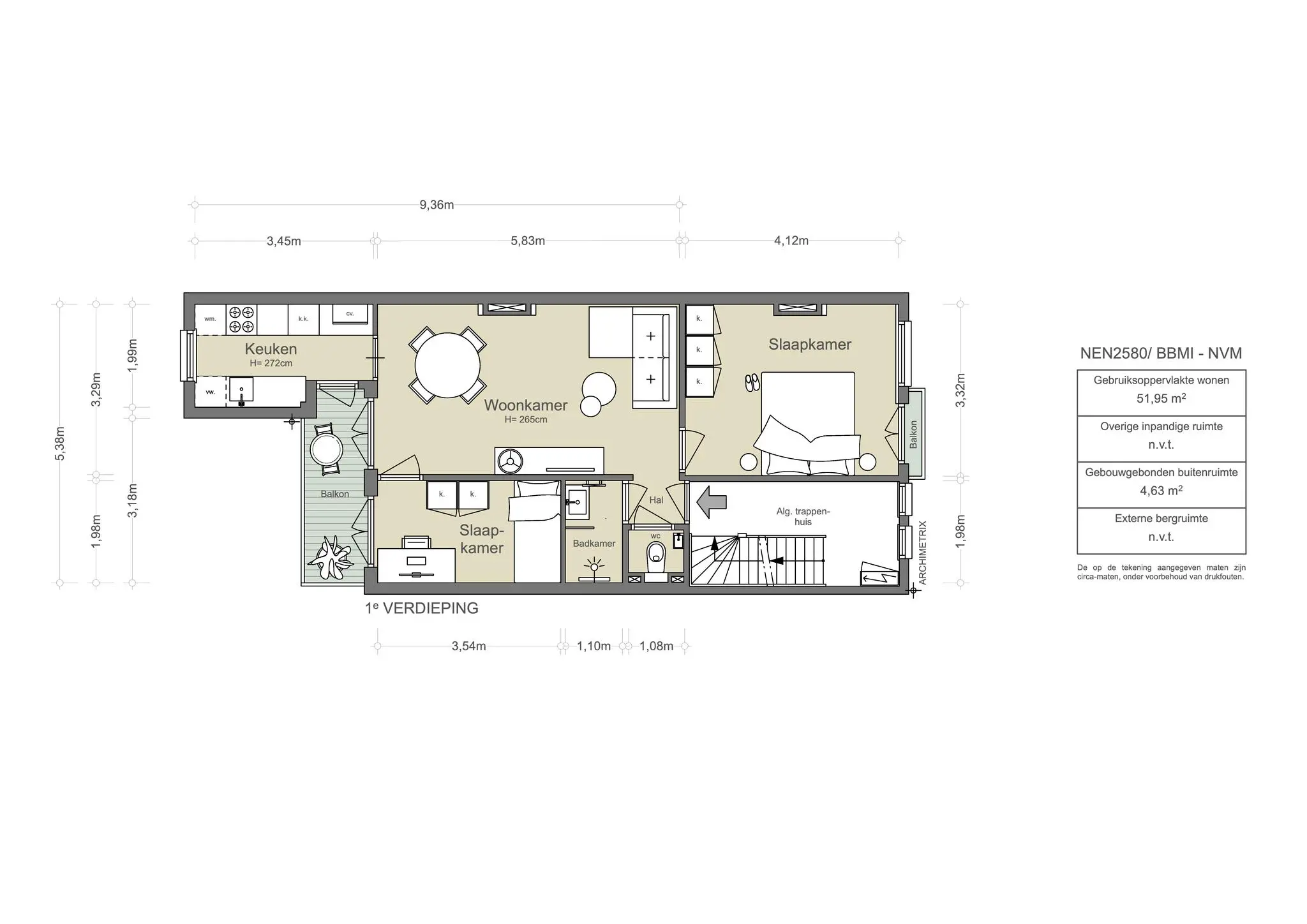
•    Gebruiksoppervlakte wonen circa 52 m²
•    Twee balkons gelegen op het noorden en zuiden van circa 5 m²
•    Gelegen op eigen grond
•    Energielabel B
•    Servicekosten VvE € 143,- per maand

AM106192-2020789-Sluisstraat-30-1,-Amsterdam-233285370

Maison de l’Écluse
In een rustige straat in Amsterdam-Zuid ontvouwt zich een smaakvol appartement van circa 52 m². De opzet is helder en doordacht, met een natuurlijke balans tussen openheid en geborgenheid. De gekozen materialen en afwerking weerspiegelen aandacht voor detail. Een woonruimte die stedelijke dynamiek combineert met rust en comfort binnenshuis.


Jelle Mundt | Makelaar Broersma Wonen
AM106192-2020789-Sluisstraat-30-1,-Amsterdam-233284958
Architectuur

Sluisstraat 30-1 bevindt zich in een karakteristiek gebouw uit het begin van de vorige eeuw, rond 1912. De gevel is opgebouwd uit genuanceerde baksteen, voorzien van hoge raampartijen die het interieur voorzien van rijk daglicht. De architectuur weerspiegelt de stedelijke idealen van die tijd, met een samenspel van eenvoud en elegantie. Binnen geven hoge plafonds en een klassieke plattegrond het appartement een open en waardige uitstraling. De locatie in de Schinkelbuurt – geliefd om haar intimiteit en architectonische authenticiteit – versterkt de beleving van het appartement.

AM106192-2020789-Sluisstraat-30-1,-Amsterdam-233284902
AM106192-2020789-Sluisstraat-30-1,-Amsterdam-233285328
AM106192-2020789-Sluisstraat-30-1,-Amsterdam-233285134
AM106192-2020789-Sluisstraat-30-1,-Amsterdam-233285384
Wonen en koken

De living aan de achterzijde van het appartement is licht en uitnodigend. Dankzij het balkon wordt de binnenruimte visueel verbonden met de buitenruimte en ontstaat een subtiel contact met het buitenleven. Het balkon is ruim en biedt een plek om tot rust te komen. De keuken is logisch gepositioneerd naast het woon- en eetgedeelte. Uitgerust met diverse inbouwapparaten en visueel discreet aanwezig, vormt deze een vanzelfsprekende aanvulling op het geheel.

AM106192-2020789-Sluisstraat-30-1,-Amsterdam-233285160
AM106192-2020789-Sluisstraat-30-1,-Amsterdam-233285240
AM106192-2020789-Sluisstraat-30-1,-Amsterdam-233285204
AM106192-2020789-Sluisstraat-30-1,-Amsterdam-233285230
AM106192-2020789-Sluisstraat-30-1,-Amsterdam-233285396
AM106192-2020789-Sluisstraat-30-1,-Amsterdam-233285438
AM106192-2020789-Sluisstraat-30-1,-Amsterdam-233285450
Slapen en baden

De hoofdslaapkamer bevindt zich aan de straatzijde en beschikt over openslaande deuren naar het Franse balkon. Deze ruimte biedt plaats aan een tweepersoonsopstelling en beschikt over praktische inbouwmogelijkheden. De tweede slaapkamer bevindt zich aan de achterzijde en grenst aan het balkon. De badkamer is verfijnd uitgevoerd en voorzien van een inloopdouche, wastafelmeubel en toilet – strak vormgegeven, met comfort als leidraad.

AM106192-2020789-Sluisstraat-30-1,-Amsterdam-233285410
AM106192-2020789-Sluisstraat-30-1,-Amsterdam-233285422
AM106192-2020789-Sluisstraat-30-1,-Amsterdam-233285344
AM106192-2020789-Sluisstraat-30-1,-Amsterdam-233285356
AM106192-2020789-Sluisstraat-30-1,-Amsterdam-233285188
AM106192-2020789-Sluisstraat-30-1,-Amsterdam-233285304
AM106192-2020789-Sluisstraat-30-1,-Amsterdam-233285316
De balkons

Twee buitenruimtes met ieder een eigen sfeer en functie. Aan de voorzijde een klassiek Frans balkon met zicht op de straat, een subtiele verbinding met het stadsleven. De achterzijde biedt een royaal en rustig gelegen balkon – een verlengstuk van de binnenruimte dat uitnodigt tot ontspannen buitenverblijf.

AM106192-2020789-Sluisstraat-30-1,-Amsterdam-233285102
AM106192-2020789-Sluisstraat-30-1,-Amsterdam-233285432
AM106192-2020789-Sluisstraat-30-1,-Amsterdam-233285046
AM106192-2020789-Sluisstraat-30-1,-Amsterdam-233285026
AM106192-2020789-Sluisstraat-30-1,-Amsterdam-233285010
Buurtgids

De Sluisstraat is gelegen in Zuid, nabij het Hoofddorpplein, het Haarlemmermeerstation en gunstig gelegen ten opzichte van de Schinkeleilanden, sport-as, Amsterdamse Bos en Vondelpark. De omgeving biedt een uitgebreide diversiteit aan delicatessen winkels, ambachtelijke slagerij, visboer, supermarkten. Ook biedt de omgeving een groot aantal leuke coffee bars en horeca gelegenheden zoals Bar Bonnie, Ron Gastrobar, Caffe Combo, en Wakuli.

Bereikbaarheid
Het appartement is zowel met de fiets, auto als openbaar vervoer uitstekend bereikbaar. De Ring A10 is binnen 5-10 autominuten te bereiken via afslag S107 (Slotervaart/Schinkel) of S108 (Oud-Zuid). Vanaf het nabijgelegen Haarlemmermeerstation vertrekken diverse tram- en buslijnen, zoals tram 2 naar Centraal Station en Nieuw Sloten, en bus 15 naar Station Zuid en Station Sloterdijk. Ook vertrekken hier bussen richting Luchthaven Schiphol. Met de fiets is Station Zuid binnen 10 minuten te bereiken, wat zorgt voor een uitstekende verbinding met de rest van de stad.

Parkeergelegenheid
Parkeren is mogelijk via een vergunningenstelsel op de openbare weg (vergunningsgebied Zuid 2.3). Met een parkeervergunning voor Zuid 2.3 mag u parkeren in Zuid-1, Zuid-2 en Zuid-8. Een parkeervergunning voor bewoners kost € 192,81 per 6 maanden. Momenteel is er voor dit vergunningsgebied een wachttijd van 5 maanden. Een tweede parkeervergunning is in dit gebied niet mogelijk. (Bron: Gemeente Amsterdam, juni 2025).

AM106192-2020789-Sluisstraat-30-1,-Amsterdam-233285072
AM106014-1966549-Sluisstraat-26-1,-Amsterdam-214676387
AM106192-2020789-Sluisstraat-30-1,-Amsterdam-233284932
AM106192-2020789-Sluisstraat-30-1,-Amsterdam-233284984
Kenmerken
Sluisstraat 30-1, Amsterdam
Vraagprijs
  • € 500.000 k.k.
Beschikbaarheid
  • In overleg
Vertrekken
  • 3 kamers
  • 2 slaapkamers
  • 1 badkamer
Onderhoud
  • Intern: Goed
  • Extern: Goed
Oppervlakten & Inhoud
  • Woonoppervlakte: 52 m²
  • Gebouwgebonden buitenruimte: 5 m²
Bouwjaar
  • 1911
Installaties
  • Natuurlijke ventilatie
  • TV kabel
Ligging
  • Aan rustige weg
  • In woonwijk
Parkeren
  • Betaald parkeren
  • Parkeervergunningen
Type verwarming
  • CV Ketel
Type warmwater
  • CV Ketel
Bestemming
  • Woonruimte
Eigendomssoort
  • Volle eigendom
Buitenruimte
  • Geen tuin
  • Balkon
Kadastraal
  • Gemeente: Amsterdam
  • Sectie: U
  • Nummer: 8985
Duurzaamheid
  • Hr glas
  • Energielabel B
Soort
  • Appartement
  • Tussenverdieping
Overige kenmerken
  • OZB ('25): € 264,84 per jaar
  • Rioolrecht ('25): € 185,20 per jaar
  • Servicekosten VvE € 143,- per maand
Plattegrond
Sluisstraat 30-1, Amsterdam
AM106192-2020789-Sluisstraat-30-1,-Amsterdam-233270494
Documenten
Sluisstraat 30-1, Amsterdam
Locatie
Sluisstraat 30-1, Amsterdam
Eten & drinken
202010SOTTO82-1400×934
01
Adres
Amstelveenseweg 89,
1075 VW Amsterdam

Sotto Pizza

Sotto Pizza is één van de top 10 Italiaanse restaurants in Amsterdam. Het restaurant opende haar deuren in 2021, maar is sindsdien een begrip onder de pizza-liefhebbers. De diverse keuze is een weergave van de kundigheid van de koks, maar hun klassieke Margherita is onverslaanbaar. Het interieur heeft iets weg van een moderne Spaanse tapasbar, met een fijne sfeer. Je kan bij Sotto uitgebreid tafelen of snel een pizza eten aan de bar. Het personeel is behulpzaam en vriendelijk.

000049
02
Adres
Amstelveenseweg 158-160,
1075 XN Amsterdam

Restaurant Blauw

Aan de Amstelveenseweg ligt het Indonesische restaurant Blauw. In tegenstelling wat de naam doet verwachten, is het hele interieur rood. De rijsttafels bij restaurant Blauw zijn bij beide locaties identiek (Amsterdam en Utrecht), maar de rest van het menu is per vestiging uniek. De chefs stellen zelf hun ultieme authentieke Indonesische belevingen samen op basis van hun eigen inspiratie en invloeden.

vierkantjes-website-4
278159011_532942278401509_462089035820605652_n
03
Adres
Sophialaan 55,
1075 BP Amsterdam

Ron Gastrobar (*)

Bij Ron Blaauw's eerste gastrobar in Amsterdam gaat een laagdrempelige sfeer hand in hand met een Michelinster. Stijl en gezelligheid komen samen voor een smakelijke ervaring. Van details tot amuses, cocktails, broodjes op tafel, nieuwe gerechtjes, heerlijke wijnen en attente service. Alles draait om het credo: "uit eten gaan moet een feestje zijn''.Voor BBQ-liefhebbers is er zelfs een apart gedeelte op de menukaart. Uiteraard ontbreken de klassiekers, zoals de spareribs "The Original," niet; een gerecht dat altijd zal blijven.

321951658_745210986479092_3482688388092291829_n
264585813_916339462605248_793857125163270911_n
04
Adres
Amstelveenseweg 226h,
1075 XT Amsterdam

Bonnie

Bonnie, een charmante bistro gelegen in Amsterdam-Zuid. Bij Bonnie draait alles om genieten; van lekkere maaltijden tot zorgvuldig geselecteerde wijnen die perfect aansluiten. Vooral de Bonnie's double cheeseburger is een aanrader. De ambiance zorgt ervoor dat je je al snel op je gemak voelt. Een lunch hier kan gemakkelijk overgaan in een gezellige borrel, waardoor je het gevoel krijgt dat je eigenlijk helemaal niet meer weg wil.

featured-gallery-0
05
Adres
Koninginneweg 212,
1075 EL Amsterdam

Simply Fish

Simply Fish is gelegen in Oud-Zuid aan de Koninginneweg. Zoals de naam al doet vermoeden is het restaurant gespecialiseerd in het bereiden van vis. Echtpaar Jan en Francis Rijk bezaten voorheen eenzelfde soort restaurant in Zeeland, een welbekende provincie voor overheerlijke vis en zeevruchten. Op het menu kan je onder andere fruit de mer, garnalenkroketjes, oesters en hun beroemde kreeftenbisque vinden.

06
Adres
Hoofddorpplein 6H,
1058 PD Amsterdam

Buno Coffee

360349188_243934825182799_7735494007192255831_n
07
Adres
Hoofddorpplein 1,
1059 CV Amsterdam

Café Maurits

Café Maurits, gelegen op het Hoofddorpplein in Amsterdam-Zuid, biedt een veelzijdige ervaring als bar, café en restaurant. Hier worden eigentijdse gerechten geserveerd, zowel à la carte als in een chefsmenu, zonder fratsen zoals schuimpjes of gelletjes, maar met de ambiance van een modern café. Het hoekpand beschikt over een aangenaam terras en een lichte, uitnodigende sfeer.  Het interieur is smaakvol ingericht met veel houtaccenten en spiegels die de ruimte vergroten en verlichten. De verfijnde menukaart, samengesteld door chef Boy van Rijn, biedt diners een uitstekende culinaire ervaring, compleet met bijpassende wijnen.

08
Adres
Hoofddorpplein 29 h,
1059 CW Amsterdam

Nana coffee house

Aan het Hoofddorpplein ligt Nana Coffee House. De deuren gaan open zodra je zin hebt in iets lekkers: een all-day ontbijt, broodjes, flatbreads of huisgemaakte zoetigheden. De naam verwijst naar Nana, de grootmoeder van de eigenaresse, met wie gastvrijheid altijd centraal stond. Je voelt het meteen: een plek met karakter, waar je komt voor kwaliteit én eenvoudig comfort. Geopend doordeweeks van 08:00 tot 16:00 (behalve dinsdag), in het weekend vanaf 09:00. Een spot waar de buurt elkaar vindt in rust, smaak en stijl.

09
Adres
Hendrik Jacobszstraat 18,
1075 PD Amsterdam

LOT61 Coffee Roasters

Geboren in Sydney, grootgebracht in Brooklyn en nu stevig geworteld in Amsterdam: LOT61 is allesbehalve een doorsnee koffiezaak. Als onafhankelijke koffiebrander combineert het merk internationale flair met lokaal vakmanschap. Slow coffee die met precisie en aandacht is gezet. De esthetiek is rauw maar verfijnd, de sfeer informeel en creatief – een plek waar buurt en barista samenkomen. Met hun B Corp-certificering laat LOT61 bovendien zien dat smaak en duurzaamheid hand in hand kunnen gaan.

306001211_969230534472634_2320247204275062774_n
10
Adres
Warmondstraat 120,
1058 KZ Amsterdam

Caffènation

De bekendste koffiebranderij van Antwerpen heeft nu ook zijn deuren geopend in de Schinkelbuurt van Amsterdam. De kenmerkende Belgische stijl van Caffenation is duidelijk te herkennen in de inrichting van de koffiebar, die uit twee verdiepingen bestaat en ruime zitgelegenheid biedt. Opvallende decorstukken zijn overal te vinden, maar de absolute blikvanger bij binnenkomst is de indrukwekkende espressomachine van Kees van der Westen. De koffie, bereid met de Synesso MVP Hydra-espressomachine is van goede kwaliteit  en de sfeer is ontspannen. Bovendien biedt Caffenation wekelijks twee verschillende soorten verse bonen aan.

201855152_536108230745975_4263326479573486700_n
11
Adres
Rietwijkerstraat 35,
1059 VW Amsterdam

Pipes & Beans

Bij Pipes & Beans in Amsterdam-Zuid vind je een gezellige eettafel, een comfortabele bank en twee leunstoelen. Een vrolijke hond genaamd Curly snuffelt nieuwsgierig om je heen, waardoor het voelt alsof je te gast bent in de woonkeuken van Maikel van Rooij (41). Dit was precies het sfeertje dat de eigenaar voor ogen had. Hier draait alles om het goede leven met koffie. De rest van het interieur is een charmante mix van tweedehandsvondsten van de lokale kringloopwinkel. Een kopje koffie kost €2,50 en voor €4 krijg je er zelfgemaakte taart of een tosti bij.

12
Adres
Heemstedestraat 68,
1058 NP Amsterdam

In een rustige straat in Amsterdam-Zuid vind je Lokaal van de Stad. Een plek waar buurtbewoners elkaar treffen voor koffie en een goed gesprek. Alles wordt hier met zorg bereid: van huisgemaakte taarten tot verse lunches. De sfeer is ongedwongen, alsof je aanschuift in een grote huiskamer. Een lokaal adres dat laat zien hoe de stad op haar best samenkomt.

366416263_660727485939210_4584064804028118782_n
13
Adres
Valeriusplein 4A,
1075 BG Amsterdam

Juliette

In Amsterdam Zuid  kun je bij Juliette genieten van ontbijt en lunch in de zon. Het menu is gebaseerd op verse ingrediënten van lokale leveranciers en wordt dagelijks samengesteld op basis van wat er op de markt beschikbaar is. Denk aan gerechten zoals de Porco Rosso: mortadella, stracciatellakaas, Spaanse guindillapepers en rode pesto. Voor het diner of een borrel kan je terecht bij buurman Bar Jules. De focus ligt op Zuid-Europese gerechten zoals pizzetta's, pata negra en geroosterde octopus.

1500-x-1000-pxl5-1024×683
14
Adres
Overtoom 515,
1054 LN Amsterdam

Adam

Alle gerechten zien er fraai uit, zonder overdreven gedoe. Ook de smaken doen zich gelden: eerlijk, spannend en in balans. Al snel in ons menu komen we een topper tegen: perfect gegaarde griet met een fris-ziltige oestervinaigrette, komkommerlinten, amandelcrème, een bite van gefrituurde vishuid en een saus van nori. Even tongstrelend: een perfect stukje lam van de Big Green Egg, bereid met chorizo en geserveerd met twee heerlijke sauzen.’

15
Adres
Aalsmeerweg 91,
1059 AE Amsterdam

Warung Barokah

Warung Barokah is al meer dan 10 jaar een begrip in de Indonesische community. De gerechten staan bekend om de vele verse kruiden die gebruikt worden. Kok en eigenaar Sri Kurniati heeft haar kookkunsten geleerd op diverse plekken in Indonesië. Probeer haar specialiteiten Bakso en Soto soep en je zal zeker niet teleurgesteld zijn.

 

BHF9707-scaled
16
Adres
Heemstedestraat 80,
1058 NP Amsterdam

Cedars

Cedars is een Libanees restaurant gevestigd in hartje Amsterdam. Het restaurant is vernoemd naar de cederboom, die staat voor kracht, kwaliteit, schoonheid en waardigheid. Deze waarden zijn ook uitgangspunten in de bedrijfsvoering van Cedar; waar kwaliteit van producten en schoonheid van de gerechten centraal staat. Cedars serveert een uitgebreid menu met talloze hapjes en drankjes. Probeer bijvoorbeeld eens de gemarineerde dorade of de overheerlijke fatayer sabanekh. Ook de locatie van Cedars is prachtig; het strakke pand aan het water van de Elandsgracht ademt frisse luxe schoonheid.

Boodschappen
103079443_3573633532650074_4867610338365611728_n
17
Adres
Amstelveenseweg 75,
1075 CE Amsterdam

Patisserie Linnick

Patisserie Linnick wordt bestierd door het  Amstelveense koppel Linda en Nick. Zij leerden elkaar kennen in Patisserie Holtkamp en werden verliefd. In 2014 werd hun droom werkelijkheid: een eigen patisserie waar zij hun kunstwerkjes aan het publiek kunnen tonen. Met passie en ambacht werken zij elke dag aan de prachtige gebakjes en chocolade die zij vervolgens in de vitrines etaleren. Patisserie Linnick werkt met hoogwaarde ingrediënten zoals de Valrhona chocolade uit Tain-l’Hermitage in Hermitage. De heerlijke zoete traktaties van Patisserie Linnick zul je niet snel vergeten.

40696884_263976027789595_4869878192174792704_n
18
Adres
Koninginneweg 255,
1075 CV Amsterdam

Wijnhuis Amsterdam

Hoewel ze bij Wijnhuis Amsterdam al meer dan 25 jaar professioneel wijn proeven en selecteren, is het wijnhuis in Amsterdam een vrij recente toevoeging aan hun verhaal.  Na talloze proefsessies waren ze zo enthousiast over de Duitse wijnen dat ze maar al te graag de wijnen een platform wilden geven binnen Nederland. Zo openden ze in mei 2018 Wijnhuis.Amsterdam, met in eerste instantie slechts drie eigen importen uit Duitsland. Inmiddels vertegenwoordigen ze een indrukwekkend assortiment van twintig Duitse wijnmakers, drie uit Oostenrijk en één uit Luxemburg. Bij het selecteren van de wijnen is elegantie, de drinkbaarheid, lage alcoholpercentages en een minimale interventie in het productieproces belangrijk.

19
Adres
Hoofddorpweg 27,
1059 CT Amsterdam

Cow Project

Met het motto ‘bewust bourgondisch’ onderscheidt slagerij Cow Project zich van andere slagerijen. Het draait hier om lekker eten op een bewuste manier. De herkomst van het vlees is bekend en de slager draagt grote zorg voor een goed leven voor de dieren. Zo zijn de lammeren van Texel, de kip van de Blije Ilper en de varkens behoren tot de Porc au Grain varkens. Naast slagerij is het ook een delicatessenzaak met allerlei lekkere dingen zoals tapas.

287573586_5731115153584452_4578419007889655966_n
20
Adres
Hoofddorpplein 23,
1059 CW Amsterdam

Nuts & Delights

& Cheese zou er eigenlijk nog in de titel moeten staan want dat is wat ze hier allemaal hebben. Niet alleen de vers gebrande noten zijn waanzinnig, ook het gigantische assortiment kaas is heerlijk en voor elke gelegenheid hebben ze wel een kaasje. Ook leuk: ze bezorgen via fietskoerier Peddler, wel zo duurzaam!

Interieur
790bff16-5b71-4696-a026-427311b3e8b2
21
Adres
Koninginneweg 271,
1075 CW Amsterdam

Teunis Veenema

Teunis Veenema is een pareltje in het hart van Amsterdam-Zuid. Aan de Koninginneweg kun je sinds 2009 terecht voor de mooiste boeketten en planten. Teunis Veenema is geen doorsnee bloemenwinkel maar een winkel waar met je mee wordt gedacht om het mooiste resultaat te behalen zowel particulier of zakelijk. Daarbij biedt hun website de mogelijkheid om geheel gepersonaliseerde boeketten te bestellen voor uzelf of voor anderen.

dis-studio-Boffi-family-home-18.jpg
DB_111013_13402.png
22
Adres
Amstelveenseweg 2,
1075 XH Amsterdam

DIS Studio

DIS Studio is een designbureau, interieurwinkel en showroom in één. DIS Studio is opgezet door Daniela Germone en Dis Abhelakh. Zij werkten beide voor het Italiaanse interieurmerk Boffi en zijn sinds 2004 samen eigenaar van een eigen studio in Amsterdam. Je kunt bij DIS Studio terecht voor interieusdesign voor je hele huis; van keukens tot stoelen tot tafellampen. Hoewel Daniele en Dis graag werken met strakke Italiaanse designs en natuursteen worden kleine imperfecties niet vermeden. Volgens hen zorgen juist die kleine imperfecties voor een warme en huiselijke sfeer. In de showroom van DIS Studio worden uitsluitend producten getoond van Italiaanse merken. Het is ook de enige plek in Nederland die producten van het merk Boffi verkoopt.

Schermafbeelding-2018-06-26-om-15.18.30-e1530019385389
23
Adres
Amstelveenseweg 39,
1054 MC Amsterdam

Eginstill

Eginstill is een bijzonder collectief, gespecialiseerd in interieurdesign. Het grote team aan leden, van ambachtsmannen tot aan de creatief leider Frans Pahlplatz, voorziet enthousiastelingen van workshops waarin alle interieur wensen waar kunnen worden gemaakt. Deze processen worden zo duurzaam mogelijk gemaakt, door het gebruik van recyclebare materialen zoals staal en hout van een familiebedrijf in Finland. Eginstill wil het liefste alle projecten zo uniek maken als hun klanten en dit doen ze met passie. Ook voor de lekkere bak koffie kan je hier goed terecht en er is genoeg om tijdens het nuttigen naar te kijken!

Annindriya-Perfume-_Lounge-Local-Minded-005_lichter_Lowres_480x480
perfumelounge 2
24
Adres
Cornelis Krusemanstraat 25,
1075 NC Amsterdam

Perfume Lounge

Bij de ‘Perfume lounge’ richten ze zich op het maken en adviseren van geuren voor bedrijven en organisaties en wat reuk kan toevoegen aan een merk of organisatie. Daarnaast hebben zij een winkel met een assortiment van de meest bijzondere parfums van de wereld, waar zij ook persoonlijk geuradvies geven. Advies voor op de huid of in huis. Volgens de experts voegt geur iets toe wat niet zichtbaar en tastbaar is. Je kunt geur op verschillende manieren inzetten in een ruimte. Het begint natuurlijk eerst dat het er niet negatief mag ruiken. Er zijn best wel veel ruimtes waar je het riool of sanitair ruikt, waar veel gerookt is of waar de afzuiging niet goed is en het naar eten ruikt. De meeste simpele manier van geur in huis is dat het schoon ruikt. Veel mensen associëren schoonmaak of wasmiddel met een schoon, opgeruimd en verzorgd huis. Daarnaast kun je de ambiance aanzetten. Net zoals met licht en muziek kun je de sfeer verzachten of versterken. Je kunt het heel huiselijk laten ruiken of juist heel modern. Landelijk of artistiek. Of juist heel minimalistisch of intiem.

studio3000-vintage-objects
25
Adres
Derde Kostverlorenkade 35,
1054 TS Amsterdam

Studio 3000

Studio 3000 is een multifunctionele creatieve ruimte. De studio is opgericht in 2020 door Nurcan Tuzkapan en is gevestigd lang de Derde Kostverlorenkade. In de studio worden design meubels getoond, verkocht en verhuurd. Naast vintage designmeubels vind je hier ook een fotografiestudio. Op haar instagramkanaal houdt Nurcan haar volgers op de hoogte van haar nieuwste vondsten en geplande event. Als je geïnteresseerd bent in creatieve projecten en design, is het zeker aan te raden om het platform van Nurcan in de gaten te houden.

Een appartement met internationale allure

Een appartement met internationale allure

The Edit | Broersma Werken & Wonen

Het Atelierhuis

Licht is nooit zomaar licht. Voor Dimitri Saddi, oprichter van PSLab, is het een taal waarmee je verhalen vertelt.

Licht is nooit zomaar licht. Voor Dimitri Saddi, oprichter van PSLab, is het een taal waarmee je verhalen vertelt.

Onlangs bekeken
Bekijk het overzicht

Deze site maakt gebruik van cookies.

Voor welke cookies geef je akkoord?