Recent gerenoveerd en duurzaam familiehuis van circa 174 m², gelegen in een geliefde wijk in Amsterdam-West. Dit stijlvolle huis beschikt over een lichte woonkamer, een riante woonkeuken, vijf slaapkamers, drie luxe badkamers, twee balkons en een zonnige tuin op het westen. In 2021 is de woning volledig gerenoveerd met oog voor detail en een hoog afwerkingsniveau. Bij de renovatie is de garage omgebouwd tot een zelfstandig afsluitbare begane grondverdieping met eigen voorzieningen, wat extra flexibiliteit biedt. Gelegen op eeuwigdurend afgekochte erfpachtgrond. 

Rondleiding
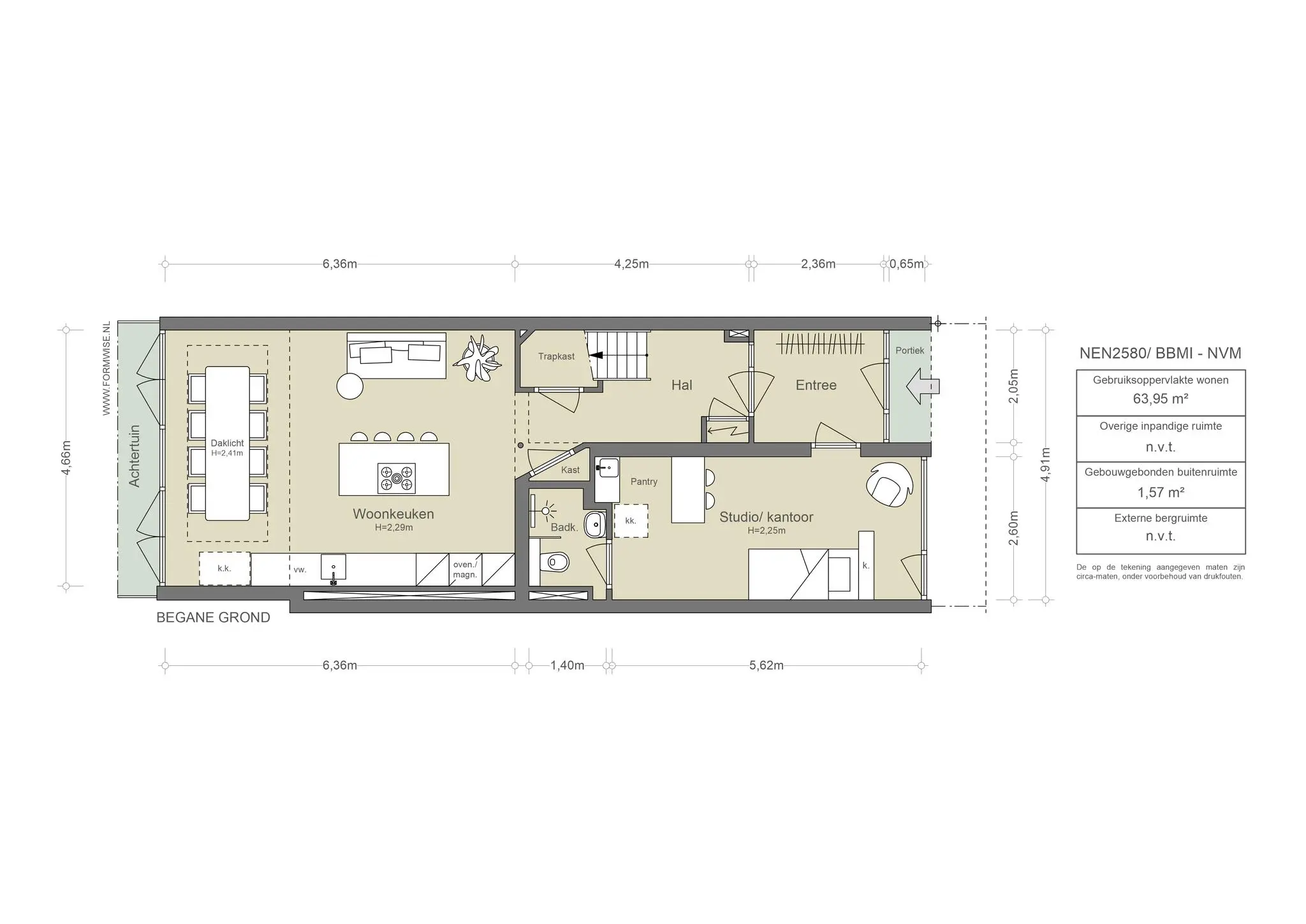
De entree bevindt zich in een hal die doet denken aan de charmante stijl van een oude school. 
De woning beschikt over een ruime woonkeuken met lichtstraat, groot kookeiland en moderne apparatuur, zoals een Quooker en een Bora-inductiekookplaat. De uitbouw creëert extra ruimte voor een zithoek, terwijl een glazen pui zorgt voor veel lichtinval en een verbinding met de zonnige tuin op het zuidwesten.
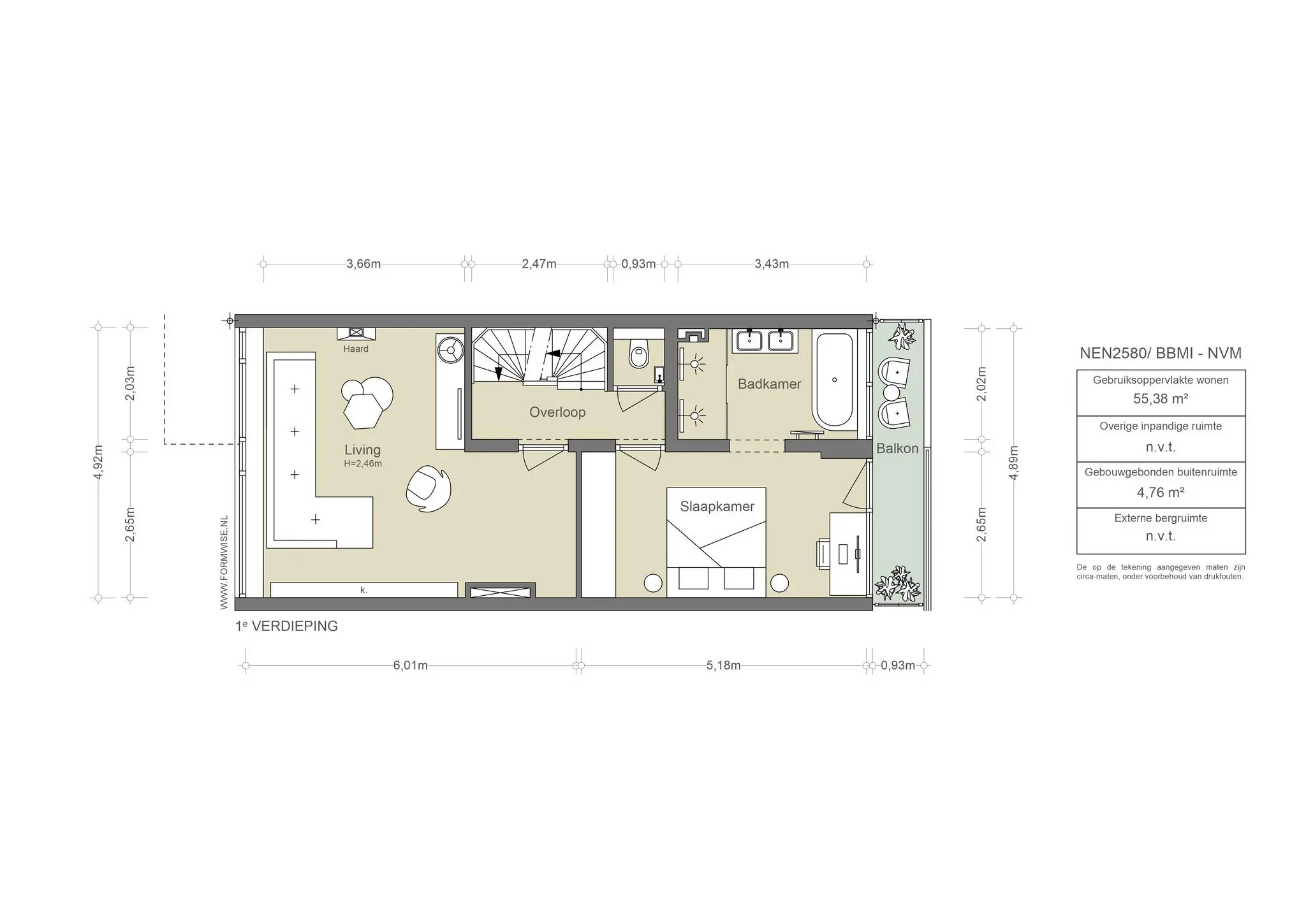
De woonkamer op de eerste verdieping is bijna vijf meter breed, heeft grote ramen, en een sfeervolle open haard.
Er zijn in totaal vijf slaapkamers: de hoofdslaapkamer met een luxe en suite badkamer en balkon op het oosten bevindt zich op de eerste verdieping. Op de tweede verdieping zijn drie slaapkamers en een badkamer met praktische voorzieningen. De vijfde slaapkamer op de begane grond functioneert als zelfstandige studio met kitchenette en eigen badkamer. Dit geeft diverse extra gebruiksmogelijkheden, ideaal voor logees of bijvoorbeeld oudere kinderen.
Daarnaast biedt de woning een fraai aangelegde tuin, twee balkons en veel licht en ruimte, zowel binnen als buiten.

 Wat de bewoners gaan missen 
“Het kloppende hart van ons huis is de keuken met daaraan de superlichte uitbouw en lichtstraat. "In de zomer en winter is dit veruit de mooiste plek om van een goede koffie te genieten, gezellig te eten en vrienden uit te nodigen.”

Buurtgids 
Gelegen in stadsdeel Nieuw-West, nabij de Sloterplas en Meer en Vaart, biedt deze buurt een breed scala aan horecagelegenheden, zoals het Bootshuis, Bar Restaurant LELY en Café Restaurant Buiten. Diverse winkelcentra, zoals het Osdorpplein, Belgiëplein en Sierplein, bevinden zich op loopafstand, evenals scholen en speeltuinen, wat ideaal is voor gezinnen.
De woning is uitstekend bereikbaar met fiets, auto en openbaar vervoer. De Ring A10 is binnen vijf minuten bereikbaar, en trams en bussen bieden directe verbindingen naar onder meer Osdorp, Centraal Station, Sloterdijk en Schiphol. Station Lelylaan ligt op slechts 10 minuten fietsen.
Parkeren is mogelijk via een vergunningstelsel (gebied Nieuw-West 9e), met lage kosten, voldoende parkeergelegenheid en momenteel geen wachttijd. Een tweede vergunning is eveneens beschikbaar tegen een gereduceerd tarief.

Bijzonderheden

  • Gebruiksoppervlakte wonen circa 174 m²
  • Recent aangelegde tuin met achterom gelegen op het zuidwesten van circa 40 m²
  • 5 ruime slaapkamers, 
  • Gelegen op erfpachtgrond van de gemeente Amsterdam. De erfpachtcanon is eeuwigdurend afgekocht
  • Energielabel A
  • Recent totaal gerenoveerd
  • De zolder biedt de mogelijkheid om eenvoudig te worden omgebouwd tot een extra verdieping van circa 37 m². Een vaste trap is reeds aanwezig, en er ligt een offerte van circa € 30.000,-- voor de realisatie van deze uitbreiding
  • Voorzien van elektrische zonwering aan de voorzijde van de eerste verdieping en aan de achterzijde
  • De tweede verdieping aan de voorzijde is uitgerust met zonne-energie rolluiken
  • De kunststof kozijnen aan de voorzijde van de begane grond zijn in 2021 volledig vernieuwd, achterzijde in 2016 (!)
  • September 2024 zijn alle balkons en voorgevel op de begane grond geverfd
  • De zelfstandige studio met kitchenette en badkamer leent zich uitstekend voor logees, oudere kinderen, au pair of (hospita-)verhuur
AM105267-1955603-J.-de-Koostraat-8,-Amsterdam-210675797

Modern Sustainability
Een heerlijk gezinshuis met een zonnige tuin op het westen, gelegen in een rustige en kindvriendelijke straat nabij de Sloterplas. Precies de elementen die de huidige bewoners in 2021 aanspraken. Het woonhuis is destijds opgeknapt, voorzien van een lichte serre en aangepast aan de eisen van de moderne bewoner. Nu komt dit fijne familiehuis op de markt, omdat de bewoners een buitenkans vonden in het historische centrum en dichter bij familie wilden wonen.
Een extra pluspunt is de mogelijkheid om de woonruimte verder uit te breiden. De huidige zolder biedt ruimte om nog twee extra kamers te realiseren, waardoor dit familiehuis uit kan groeien tot een woning van indrukwekkend formaat van boven 200 m².


Otte van Apeldoorn | Makelaar Broersma Wonen
AM105267-1955603-J.-de-Koostraat-8,-Amsterdam-219954037
Het gebouw

In 2021 is deze (voormalige) drive-in woning volledig gerenoveerd, waarbij zowel de elektrische installaties als de cv-installatie, inclusief nieuwe radiatoren, volledig zijn vernieuwd. Asbest is professioneel verwijderd, en alle wanden en plafonds zijn strak gestuct en zorgvuldig geschilderd, wat de woning een moderne en frisse uitstraling geeft.
De renovatie omvatte tevens een gefundeerde uitbouw op de begane grond, waardoor de leefruimte aanzienlijk is vergroot. De vloeren zijn met oog voor detail afgewerkt in een hoogwaardige combinatie van laminaat, vloerbedekking en tegels, wat bijdraagt aan een elegante en comfortabele woonomgeving.

AM105267-1955603-J.-de-Koostraat-8,-Amsterdam-219954015
AM105267-1955603-J.-de-Koostraat-8,-Amsterdam-210675863
AM105267-1955603-J.-de-Koostraat-8,-Amsterdam-210675847
AM105267-1955603-J.-de-Koostraat-8,-Amsterdam-210675867
Wonen en koken

De entree bevindt zich in een hal die doet denken aan de charmante stijl van een oude school. Aan de achterzijde van het woonhuis ligt de riante woonkeuken, een sfeervolle en praktische ruimte met een lichtstraat die zorgt voor een overvloed aan daglicht. De keuken is voorzien van een extra groot kookeiland en moderne apparatuur, waaronder een Quooker, een Amerikaanse koelkast van Samsung en een inductiekookplaat van Bora met geïntegreerde afzuiging. Dankzij de uitbouw biedt de keuken extra ruimte voor een royale eettafel, waarbij de glazen pui zorgt voor een prachtige lichtinval. De gunstige ligging op het zuidwesten laat deze ruimte baden in zonlicht, wat bijdraagt aan een warme en uitnodigende sfeer.
De woonkamer, gelegen op de eerste verdieping, heeft een indrukwekkende breedte van bijna vijf meter. De grote en openslaande ramen zorgen voor een overvloed aan natuurlijk licht. Een sfeervolle open haard maakt deze ruimte ideaal voor ontspannen momenten en gezellig samenzijn.

AM105267-1955603-J.-de-Koostraat-8,-Amsterdam-210675803
AM105267-1955603-J.-de-Koostraat-8,-Amsterdam-210675821
AM105267-1955603-J.-de-Koostraat-8,-Amsterdam-210675815
AM105267-1955603-J.-de-Koostraat-8,-Amsterdam-210675849
AM105267-1955603-J.-de-Koostraat-8,-Amsterdam-210675837
AM105267-1955603-J.-de-Koostraat-8,-Amsterdam-210675971
AM105267-1955603-J.-de-Koostraat-8,-Amsterdam-210675879
Slapen en baden

Het woonhuis beschikt over vijf slaapkamers in totaal. De hoofdslaapkamer, gelegen op de eerste verdieping, heeft een luxe ensuite badkamer uitgevoerd in een elegante emperador marmerlook. Deze badkamer is voorzien van een ruime badkuip, een dubbele regendouche en profiteert van veel daglicht. Vanuit de slaapkamer is er directe toegang tot een balkon op het oosten, perfect om te genieten van de ochtendzon.
Op de tweede verdieping bevinden zich drie goed ingerichte slaapkamers en een centrale badkamer. Deze badkamer is uitgerust met een inloopdouche, een dubbele wastafel en een aansluiting voor een wasmachine, wat zorgt voor extra praktisch gemak.
De vijfde slaapkamer bevindt zich op de begane grond en fungeert als zelfstandige studio met een eigen toegang. Deze ruimte is voorzien van een kitchenette en een eigen badkamer, waardoor het ideaal is als gastenverblijf, voor een au pair of voor hospitaverhuur.

AM105267-1955603-J.-de-Koostraat-8,-Amsterdam-210675823
AM105267-1955603-J.-de-Koostraat-8,-Amsterdam-210675825
AM105267-1955603-J.-de-Koostraat-8,-Amsterdam-210676001
AM105267-1955603-J.-de-Koostraat-8,-Amsterdam-210675993
AM105267-1955603-J.-de-Koostraat-8,-Amsterdam-210675989
AM105267-1955603-J.-de-Koostraat-8,-Amsterdam-219954061
AM105267-1955603-J.-de-Koostraat-8,-Amsterdam-219954051
AM105267-1955603-J.-de-Koostraat-8,-Amsterdam-210675841
Tuin en balkons

De zonnige, fraai aangelegde tuin ligt op het zuidwesten en beschikt over een praktische achterom. Daarnaast biedt het woonhuis twee balkons: één aan de voorzijde op de eerste verdieping en één aan de achterzijde op de tweede verdieping, beide met een unieke charme en mogelijkheden om van de buitenruimte te genieten.

AM105267-1955603-J.-de-Koostraat-8,-Amsterdam-219954041
AM105267-1955603-J.-de-Koostraat-8,-Amsterdam-210676147
AM105267-1955603-J.-de-Koostraat-8,-Amsterdam-210676131

Gelegen in stadsdeel Nieuw-West, in de nabijheid van de Sloterplas en Meer en Vaart. De buurt biedt een breed scala aan horecagelegenheden, waaronder het trendy Bootshuis, Bar Restaurant LELY, Kaap West, Ness en Café Restaurant Buiten.
Het woonhuis ligt op loopafstand van diverse winkelcentra, centraal gepositioneerd tussen het Osdorpplein, Belgiëplein en Sierplein. Daarnaast bevinden basis- en middelbare scholen, evenals speeltuinen, zich op korte afstand, wat het wooncomfort voor gezinnen aanzienlijk vergroot.

Bereikbaarheid
Het woonhuis is zowel met de fiets, auto als openbaar vervoer zeer goed bereikbaar. De Ring A10 is al binnen 5 autominuten te bereiken en de A9 en A5 binnen respectievelijk 5 tot 8 minuten. Vanaf zowel de Louis Davidsstraat als halte Meer en Vaart vertrekken meerdere tram- en buslijnen, zoals tram 1, 17 en 27 naar Osdorp, Centraal Station en Surinameplein en bussen naar respectievelijk Station Lelylaan, Station Sloterdijk en Luchthaven Schiphol. Met de fiets is Station Lelylaan binnen 10 minuten aan te rijden.

Parkeergelegenheid
Goede parkeermogelijkheden voor de deur. Parkeren is mogelijk via een vergunningenstelsel op de openbare weg (vergunningsgebied Nieuw-West 9e). Met een parkeervergunning voor Nieuw-West 9e mag u parkeren in Nieuw-west 9. Een parkeervergunning voor bewoners kost € 38,60 per 6 maanden. Momenteel is er voor dit vergunningsgebied geen wachttijd. Een tweede parkeervergunning kost € 96,49 per 6 maanden. (Bron: Gemeente Amsterdam, januari 2025).

AM105267-1955603-J.-de-Koostraat-8,-Amsterdam-210676143
AM105267-1955603-J.-de-Koostraat-8,-Amsterdam-219954025
Wat de eigenaren gaan missen

Het huis aan de J. de Koostraat combineert een aantal bijzondere elementen. Het is gelegen in een rustig stukje van Osdorp waar de mensen elkaar echt nog kennen en elkaar helpen, maar tegelijkertijd ligt het op een kwartiertje fietsen van de grote stad. Het is heel erg ruim en er is plek genoeg voor iedereen. Het is een echt familiehuis en zo voelt het dagelijks.
Het kloppende hart van ons huis is de keuken met daaraan de superlichte uitbouw en lichtstraat. In de zomer en winter is dit veruit de mooiste plek om van een goede koffie te genieten, gezellig te eten en vrienden uit te nodigen. Onze vrienden genieten graag van de zomer in de prachtige tuin.
In de buurt zijn veel leuke en exotische restaurants. Of je nou een pizza met biertje en een dj avond wil bij het Bootshuis, traditioneel Indonesisch bij Toko Bandung of luxe uit eten bij Kaap West of Restaurant Lely, het kan allemaal en we zullen er ook graag blijven komen.
Het meeste gaan we het prachtige licht en de vele ruimte missen. We hopen dat de volgende bewoners zich hier net zo thuis zullen voelen als wij

AM105267-1955603-J.-de-Koostraat-8,-Amsterdam-210675871
AM105267-1955603-J.-de-Koostraat-8,-Amsterdam-210675875
Kenmerken
J. de Koostraat 8, Amsterdam
Vraagprijs
  • € 820.000 k.k.
Beschikbaarheid
  • In overleg
Vertrekken
  • 8 kamers
  • 5 slaapkamers
  • 3 badkamers
Onderhoud
  • Intern: Uitstekend
  • Extern: Goed
Oppervlakten & Inhoud
  • Woonoppervlakte: 174 m²
  • Overige inpandige ruimte: 14 m²
  • Gebouwgebonden buitenruimte: 9 m²
  • Tuinoppervlakte: 40 m²
  • Perceeloppervlakte: 113 m²
Bouwjaar
  • 1965
Installaties
  • Buitenzonwering
  • Mechanische ventilatie
  • Rookkanaal
Ligging
  • Aan rustige weg
Parkeren
  • Betaald parkeren
  • Parkeervergunningen
Type verwarming
  • CV Ketel
Type warmwater
  • CV Ketel
Bestemming
  • Woonruimte
Eigendomssoort
  • Eigendom belast met erfpacht
Buitenruimte
  • Achtertuin
  • Voortuin
  • Balkon
Kadastraal
  • Gemeente: Sloter n-h
  • Sectie: D
  • Nummer: 6047
Duurzaamheid
  • Volledig geisoleerd
  • Energielabel A
Soort
  • Eengezinswoning
  • Tussenwoning
  • Woonhuis
Overige kenmerken
  • OZB ('25) € 355,43 per jaar
  • Rioolrecht ('25) € 185,20 per jaar
  • Erfpachtcanon is eeuwigdurend afgekocht
Plattegrond
J. de Koostraat 8, Amsterdam
AM105267-1955603-J.-de-Koostraat-8,-Amsterdam-210679457
AM105267-1955603-J.-de-Koostraat-8,-Amsterdam-210679467
AM105267-1955603-J.-de-Koostraat-8,-Amsterdam-210679479
AM105267-1955603-J.-de-Koostraat-8,-Amsterdam-210679487
AM105267-1955603-J.-de-Koostraat-8,-Amsterdam-210679517
Documenten
J. de Koostraat 8, Amsterdam
Locatie
J. de Koostraat 8, Amsterdam
Eten & drinken
01
Adres
Osdorpplein 693-694,
1068 TC Amsterdam

Eethuis Rose

Bij eethuis Rose kan je genieten van heerlijk Surinaams-Hindoestaans eten. Ontdek diverse roti-variaties, maar ook unieke opties zoals kwie kwie en moksi alesi. Bij Eethuis Rose staat de geliefde Surinaams-Hindoestaanse kwie kwie in de schijnwerpers, geserveerd met rijst, kouseband, zuurgoed en fijngesneden madame jeanette. Op zaterdag schittert het menu met Surinaamse krak masala. Sluit af met huisgemaakte dawet en vergeet niet wat sambal of chutney mee te nemen voor thuis.

Kaddour
02
Adres
Tussen Meer 59A,
1068 EZ Amsterdam

Slagerij Kaddour

Bij Kaddour hebben ze een breed scala aan ambachtelijk vers vlees en vleeswaren. Het assortiment biedt puur en eerlijk kwaliteitsvlees, zowel lokaal als wereldwijd, waaronder Hollands vlees, exclusief Halal Wagyu, verfijnd John Dee rundvlees uit Australië en smaakvol Maimoa lamsvlees uit Nieuw-Zeeland. Al ruim 35 jaar staat Slagerij Kaddour bekend om uitmuntende kwaliteit, met recepten die generaties lang worden doorgegeven. Ontdek de gezonde, diervriendelijke aanpak en geniet van handgeknoopte rollades, gourmet- en barbecuepakketten, ambachtelijke vleeswaren en het welbekende broodje kip grilworst.

03
Adres
Tussen Meer 58-A,
1068 GC Amsterdam

Artisani

Voor de burger liefhebber behoort Artisani tot de absolute top. Er is keuze uit zes huisgemaakte burgers van halal vlees en een vegetarische optie. Daarnaast kan je er ook terecht voor de signature Artisani hotdogs en frietjes met allerlei soorten saus.

BHF9707-scaled
04
Adres
Heemstedestraat 80,
1058 NP Amsterdam

Cedars

Cedars is een Libanees restaurant gevestigd in hartje Amsterdam. Het restaurant is vernoemd naar de cederboom, die staat voor kracht, kwaliteit, schoonheid en waardigheid. Deze waarden zijn ook uitgangspunten in de bedrijfsvoering van Cedar; waar kwaliteit van producten en schoonheid van de gerechten centraal staat. Cedars serveert een uitgebreid menu met talloze hapjes en drankjes. Probeer bijvoorbeeld eens de gemarineerde dorade of de overheerlijke fatayer sabanekh. Ook de locatie van Cedars is prachtig; het strakke pand aan het water van de Elandsgracht ademt frisse luxe schoonheid.

05
Adres
Heemstedestraat 68,
1058 NP Amsterdam

In een rustige straat in Amsterdam-Zuid vind je Lokaal van de Stad. Een plek waar buurtbewoners elkaar treffen voor koffie en een goed gesprek. Alles wordt hier met zorg bereid: van huisgemaakte taarten tot verse lunches. De sfeer is ongedwongen, alsof je aanschuift in een grote huiskamer. Een lokaal adres dat laat zien hoe de stad op haar best samenkomt.

06
Adres
Aalsmeerweg 91,
1059 AE Amsterdam

Warung Barokah

Warung Barokah is al meer dan 10 jaar een begrip in de Indonesische community. De gerechten staan bekend om de vele verse kruiden die gebruikt worden. Kok en eigenaar Sri Kurniati heeft haar kookkunsten geleerd op diverse plekken in Indonesië. Probeer haar specialiteiten Bakso en Soto soep en je zal zeker niet teleurgesteld zijn.

 

306001211_969230534472634_2320247204275062774_n
07
Adres
Warmondstraat 120,
1058 KZ Amsterdam

Caffènation

De bekendste koffiebranderij van Antwerpen heeft nu ook zijn deuren geopend in de Schinkelbuurt van Amsterdam. De kenmerkende Belgische stijl van Caffenation is duidelijk te herkennen in de inrichting van de koffiebar, die uit twee verdiepingen bestaat en ruime zitgelegenheid biedt. Opvallende decorstukken zijn overal te vinden, maar de absolute blikvanger bij binnenkomst is de indrukwekkende espressomachine van Kees van der Westen. De koffie, bereid met de Synesso MVP Hydra-espressomachine is van goede kwaliteit  en de sfeer is ontspannen. Bovendien biedt Caffenation wekelijks twee verschillende soorten verse bonen aan.

08
Adres
Hoofddorpplein 29 h,
1059 CW Amsterdam

Nana coffee house

Aan het Hoofddorpplein ligt Nana Coffee House. De deuren gaan open zodra je zin hebt in iets lekkers: een all-day ontbijt, broodjes, flatbreads of huisgemaakte zoetigheden. De naam verwijst naar Nana, de grootmoeder van de eigenaresse, met wie gastvrijheid altijd centraal stond. Je voelt het meteen: een plek met karakter, waar je komt voor kwaliteit én eenvoudig comfort. Geopend doordeweeks van 08:00 tot 16:00 (behalve dinsdag), in het weekend vanaf 09:00. Een spot waar de buurt elkaar vindt in rust, smaak en stijl.

201855152_536108230745975_4263326479573486700_n
09
Adres
Rietwijkerstraat 35,
1059 VW Amsterdam

Pipes & Beans

Bij Pipes & Beans in Amsterdam-Zuid vind je een gezellige eettafel, een comfortabele bank en twee leunstoelen. Een vrolijke hond genaamd Curly snuffelt nieuwsgierig om je heen, waardoor het voelt alsof je te gast bent in de woonkeuken van Maikel van Rooij (41). Dit was precies het sfeertje dat de eigenaar voor ogen had. Hier draait alles om het goede leven met koffie. De rest van het interieur is een charmante mix van tweedehandsvondsten van de lokale kringloopwinkel. Een kopje koffie kost €2,50 en voor €4 krijg je er zelfgemaakte taart of een tosti bij.

445441731_2688787647965028_8614714014115595773_n
447170653_1502100734060685_6417980266275953490_n
10
Adres
Helicopterstraat 28,
1059 CG Amsterdam

Bennies

Chef Rick Swinkels (voorheen Sjefietsche, Le Coeur, Bar du Champagne) en partner Isodoor van Esch openenden na een aantal succesvolle popups hun eigen restaurant in de Schinkelbuurt. In een inspirerende omgeving serveren ze zowel lunch als diner. De kaart is creatief en actueel. Als barsnacks bijvoorbeeld deviled eggs met jalapeno, fried chicken gado gado of pommes anna met appel compote. In de avond bijvoorbeeld schelpjes met biermayonaise, een ceviche van zeebaars met granaatappel leche de tigre of Iberico varken van de bbq.

360349188_243934825182799_7735494007192255831_n
11
Adres
Hoofddorpplein 1,
1059 CV Amsterdam

Café Maurits

Café Maurits, gelegen op het Hoofddorpplein in Amsterdam-Zuid, biedt een veelzijdige ervaring als bar, café en restaurant. Hier worden eigentijdse gerechten geserveerd, zowel à la carte als in een chefsmenu, zonder fratsen zoals schuimpjes of gelletjes, maar met de ambiance van een modern café. Het hoekpand beschikt over een aangenaam terras en een lichte, uitnodigende sfeer.  Het interieur is smaakvol ingericht met veel houtaccenten en spiegels die de ruimte vergroten en verlichten. De verfijnde menukaart, samengesteld door chef Boy van Rijn, biedt diners een uitstekende culinaire ervaring, compleet met bijpassende wijnen.

12
Adres
Hoofddorpplein 6H,
1058 PD Amsterdam

Buno Coffee

000049
13
Adres
Amstelveenseweg 158-160,
1075 XN Amsterdam

Restaurant Blauw

Aan de Amstelveenseweg ligt het Indonesische restaurant Blauw. In tegenstelling wat de naam doet verwachten, is het hele interieur rood. De rijsttafels bij restaurant Blauw zijn bij beide locaties identiek (Amsterdam en Utrecht), maar de rest van het menu is per vestiging uniek. De chefs stellen zelf hun ultieme authentieke Indonesische belevingen samen op basis van hun eigen inspiratie en invloeden.

14
Adres
Slotermeerlaan 115,
1063 JN Amsterdam

Antep Kebap

Antep Kebap is een onderdeel van de zaak Serifoglu, die ook een patisserie en café heeft. Met de opening van Antep Kebap wilde Serifoglu een plek creëren waar men lekkere vleesgerechten uit de Ottomaanse keuken kan proberen. Op deze locatie aan de Slotermeerlaan maken ze onder meer de beste Adana Kebap, Tavuk Sis en Kuzu Sis. De overheerlijke gerechten worden op ambachtelijke wijze bereid op een houtskool grill waardoor het vlees een zalige rokerige smaak krijgt.

Boodschappen
15
Adres
Johan Huizingalaan 179,
1065 JA Amsterdam

Little India

In deze supermarkt tref je een overvloed aan specerijen, peulvruchten, groente, fruit en rijst aan. Bovendien vind je er een scala aan Indiase snacks, zoals mithai, samosa's en de producten van Haldirams. Daarnaast bieden ze diverse soorten ghee, geschaafde gemer en keukengerei om authentieke gerechten thuis te kunnen bereiden. Voor het gemak hebben ze ook een webshop waar je kunt bestellen.

16
Adres
Osdorper Ban 52,
1068 MJ Amsterdam

Giel Imming

Giel Imming heeft al twintig jaar loyale fans die zijn brood kopen. De bakkerij staat bekend om het smakelijke volkorenbrood met zonnebloempitten en lijnzaad en om de hartelijke mensen die in de winkel staan. Het 'Amsterdamse brood' is ook populair en heeft doldwaze namen zoals De Jordanees (een donker meergranenbrood met karamelsuiker, noten en rozijnen), De Damrakker (roodbruin met extra pompoen- en zonnebloempitten) en Rooie Sien (een extra donker meergranenbrood).

17
Adres
Tussen Meer 319,
1069 DR Amsterdam

Tanger markt

Bij Tanger Mark bieden ze een unieke diversiteit met producten uit meer dan 100 landen. Of het nu gaat om ingrediënten voor een Hollandse stamppot of Marokkaanse harira soep, Tanger Markt heeft alles. Naast het brede scala aan land-specifieke producten, staat Tanger Markt bekend om de ongeëvenaarde versheid, variërend van sappig fruit tot mediterrane olijven en mals lamsvlees. Voor liefhebbers van vers is Tanger Markt dé bestemming.

18
Adres
Bakhuizen van Den Brinkhof 14,
1065 AZ Amsterdam

Ulmus Bakkerij

Bij Ulmus Bakkerij bakken ze er wel wat van; van de heerlijkste zuurdesembroden tot gedetailleerde gebakjes. Wekelijks wordt er online een nieuwe bestellijst gepubliceerd waarop te zien is wat er gaat worden gebakken. Je kan vervolgens je bestelling plaatsen en deze ophalen bij de Espressofabriek. Het bakkersduo Yoeri en Elin proberen de beste lokaal geteelde, biologische ingrediënten te vinden die ze kunnen krijgen voor hun baksels.

287573586_5731115153584452_4578419007889655966_n
19
Adres
Hoofddorpplein 23,
1059 CW Amsterdam

Nuts & Delights

& Cheese zou er eigenlijk nog in de titel moeten staan want dat is wat ze hier allemaal hebben. Niet alleen de vers gebrande noten zijn waanzinnig, ook het gigantische assortiment kaas is heerlijk en voor elke gelegenheid hebben ze wel een kaasje. Ook leuk: ze bezorgen via fietskoerier Peddler, wel zo duurzaam!

20
Adres
Hoofddorpweg 27,
1059 CT Amsterdam

Cow Project

Met het motto ‘bewust bourgondisch’ onderscheidt slagerij Cow Project zich van andere slagerijen. Het draait hier om lekker eten op een bewuste manier. De herkomst van het vlees is bekend en de slager draagt grote zorg voor een goed leven voor de dieren. Zo zijn de lammeren van Texel, de kip van de Blije Ilper en de varkens behoren tot de Porc au Grain varkens. Naast slagerij is het ook een delicatessenzaak met allerlei lekkere dingen zoals tapas.

21
Adres
Slotermeerlaan 115,
1063 JN Amsterdam

Serifoglu café & patisserie

Serigolfu is een Turkse patisserie waar de mooiste gebakjes en koekjes worden gemaakt. Het avontuur van Serifolgu begon in 1989 toen zij de Turkse baklava meer bekendheid wilde geven. Uiteindelijk zijn zij in Amsterdam beland waar zij vandaag de dag meerdere vestigingen hebben en nog steeds ambachtelijke lekkernijen bereiden. Het geheim van Serigolfu zit in de excellente ingrediënten en de verfijnde technieken die zij gebruiken om hun gebakjes te maken. Serigolfu is een patisserie met klasse!

103079443_3573633532650074_4867610338365611728_n
22
Adres
Amstelveenseweg 75,
1075 CE Amsterdam

Patisserie Linnick

Patisserie Linnick wordt bestierd door het  Amstelveense koppel Linda en Nick. Zij leerden elkaar kennen in Patisserie Holtkamp en werden verliefd. In 2014 werd hun droom werkelijkheid: een eigen patisserie waar zij hun kunstwerkjes aan het publiek kunnen tonen. Met passie en ambacht werken zij elke dag aan de prachtige gebakjes en chocolade die zij vervolgens in de vitrines etaleren. Patisserie Linnick werkt met hoogwaarde ingrediënten zoals de Valrhona chocolade uit Tain-l’Hermitage in Hermitage. De heerlijke zoete traktaties van Patisserie Linnick zul je niet snel vergeten.

Kunst & cultuur
VAN_EESTEREN_PAVILJOEN
23
Adres
Noordzijde 31,
1064 GV Amsterdam

Van Eesteren Museum

Het Van Eesteren Museum is een echt buurtmuseum dat wordt gerund door vrijwilligers uit de buurt. De focus van dit museum ligt op de naoorlogse architectuur en kunst van Amsterdam. Het museum is vernoemd naar stedenbouwkundige Cornelis van Eesteren, wiens cultuurhistorische erfenis van de naoorlogse stedenbouw terug te vinden is in het museum. In het Van Eesteren Paviljoen zijn vaste tentoonstellingen in combinatie met tijdelijke opstellingen te zien, en in het openluchtmuseum kom je door wandelingen meer te weten over de kernprincipes van Van Eesteren; licht, lucht en ruimte.

Interieur
dis-studio-Boffi-family-home-18.jpg
DB_111013_13402.png
24
Adres
Amstelveenseweg 2,
1075 XH Amsterdam

DIS Studio

DIS Studio is een designbureau, interieurwinkel en showroom in één. DIS Studio is opgezet door Daniela Germone en Dis Abhelakh. Zij werkten beide voor het Italiaanse interieurmerk Boffi en zijn sinds 2004 samen eigenaar van een eigen studio in Amsterdam. Je kunt bij DIS Studio terecht voor interieusdesign voor je hele huis; van keukens tot stoelen tot tafellampen. Hoewel Daniele en Dis graag werken met strakke Italiaanse designs en natuursteen worden kleine imperfecties niet vermeden. Volgens hen zorgen juist die kleine imperfecties voor een warme en huiselijke sfeer. In de showroom van DIS Studio worden uitsluitend producten getoond van Italiaanse merken. Het is ook de enige plek in Nederland die producten van het merk Boffi verkoopt.

Schermafbeelding-2018-06-26-om-15.18.30-e1530019385389
25
Adres
Amstelveenseweg 39,
1054 MC Amsterdam

Eginstill

Eginstill is een bijzonder collectief, gespecialiseerd in interieurdesign. Het grote team aan leden, van ambachtsmannen tot aan de creatief leider Frans Pahlplatz, voorziet enthousiastelingen van workshops waarin alle interieur wensen waar kunnen worden gemaakt. Deze processen worden zo duurzaam mogelijk gemaakt, door het gebruik van recyclebare materialen zoals staal en hout van een familiebedrijf in Finland. Eginstill wil het liefste alle projecten zo uniek maken als hun klanten en dit doen ze met passie. Ook voor de lekkere bak koffie kan je hier goed terecht en er is genoeg om tijdens het nuttigen naar te kijken!

Kunst & cultuur agenda januari 2026

Kunst & cultuur agenda januari 2026

Uitgelicht; De Stad Minden, grandeur op de Keizersgracht 81H

Uitgelicht; De Stad Minden, grandeur op de Keizersgracht 81H

De jurist die kunst gebruikt om anders te denken. Aernoud Bourdrez over kunst, conflicten en de ruimte tussen die twee.

De jurist die kunst gebruikt om anders te denken. Aernoud Bourdrez over kunst, conflicten en de ruimte tussen die twee.

Onlangs bekeken
Bekijk het overzicht

Deze site maakt gebruik van cookies.

Voor welke cookies geef je akkoord?