Aan de rustige en charmante zijde van de Amstel, tussen de Halvemaansbrug en de Blauwbrug, bevindt zich dit stijlvol gerenoveerde bovenhuis van circa 68 m², verdeeld over twee woonlagen. De woning is gelegen in een fraai 18e-eeuws rijksmonument en ademt karakter, met onder andere originele balkenplafonds, een visgraat parketvloer en een klassieke gevel met hijsbalk. De tweede woonlaag biedt een lichte woonkamer aan de voorzijde met panoramisch uitzicht over de Amstel, een open keuken met eetkamer aan de achterzijde en een fijn ruimtelijk gevoel door de plafondhoogte en lichtinval. De derde woonlaag beschikt over twee slaapkamers, een verzorgde badkamer en diverse authentieke details. Een uniek appartement op een iconische locatie in de Amsterdamse binnenstad, met alle denkbare voorzieningen en culturele highlights op loopafstand – ideaal voor wie op zoek is naar een combinatie van historie, comfort en sfeer.

Rondleiding
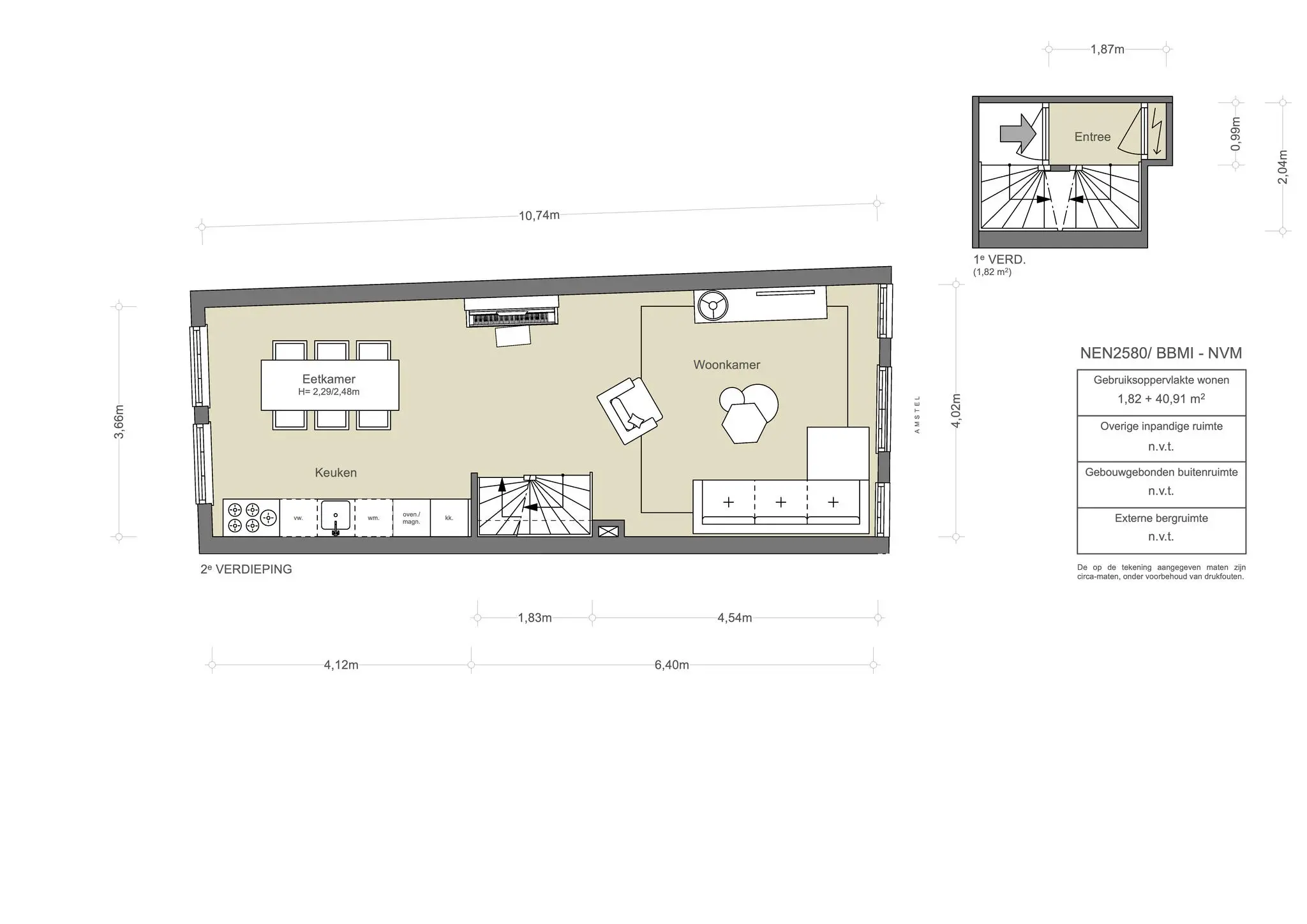
Amstel 106 C is een charmant en goed ingedeeld bovenhuis van circa 68 m², gelegen in een 17e-eeuws rijksmonument op een van de meest karakteristieke locaties van Amsterdam. De woning beslaat twee woonlagen en biedt een smaakvolle combinatie van originele elementen en moderne afwerking, met een prachtig uitzicht over de Amstel. Via het verzorgde gemeenschappelijke trappenhuis bereikt men de entree van de woning op de tweede woonlaag. Aan de voorzijde bevindt zich een lichte woonkamer met drie ramen op de Amstel, waardoor het uitzicht over het water en het stadse leven continu in beweging is – een levend schilderij. De sfeervolle visgraatvloer, het balkenplafond en de rustige, natuurlijke kleurstelling dragen bij aan de elegante uitstraling. Aan de achterzijde ligt de eetkamer met moderne open keuken, voorzien van diverse inbouwapparatuur waaronder een oven, gaskookplaat, vaatwasser en koelkast. Grote ramen zorgen ook hier voor veel lichtinval en een prettige woonbeleving. De ruimte is uitnodigend voor zowel dagelijks gebruik als ontvangst van gasten. De interne trap leidt naar de slaapverdieping, waar het originele houten balkenwerk direct in het oog springt. Hier bevinden zich twee slaapkamers, elk met een eigen sfeer en uitzicht op de karakteristieke daken van de binnenstad. De badkamer is voorzien van een inloopdouche, wastafelmeubel en dakraam; het toilet is separaat. De indeling is efficiënt en maakt optimaal gebruik van de ruimte onder de kap. De woning is gelegen op eigen grond en maakt deel uit van een kleinschalige VvE. De combinatie van locatie, historie, lichtinval en afwerking maakt dit bovenhuis tot een uniek aanbod op de Amsterdamse woningmarkt. Een plek waar wonen en genieten samenkomen – midden in het centrum, maar met een rustige, bijna verstilde sfeer aan de gracht.

Buurtgids
De gezelligheid van het centrum is vlakbij. Op slechts een paar minuten lopen liggen het kindvriendelijke Amstelveld, de Utrechtsestraat met talloze winkels, gezellige cafés, bars en goede restaurants (waaronder twee restaurants met een Michelin ster) en de bruisende wijk de Pijp. Cultuur en vermaak zoals de Stopera, Carré, de Kleine Komedie, Paradiso, Hermitage, het Rijksmuseum, het Tropenmuseum, Artis en diverse parken (waaronder het Vondelpark) liggen ook op een steenworp afstand. Diverse goede basisscholen zoals ASVO en De Kleine Reus, middelbare scholen, Hbo-opleidingen en Universiteiten zijn gelegen in de nabije omgeving.

Bijzonderheden
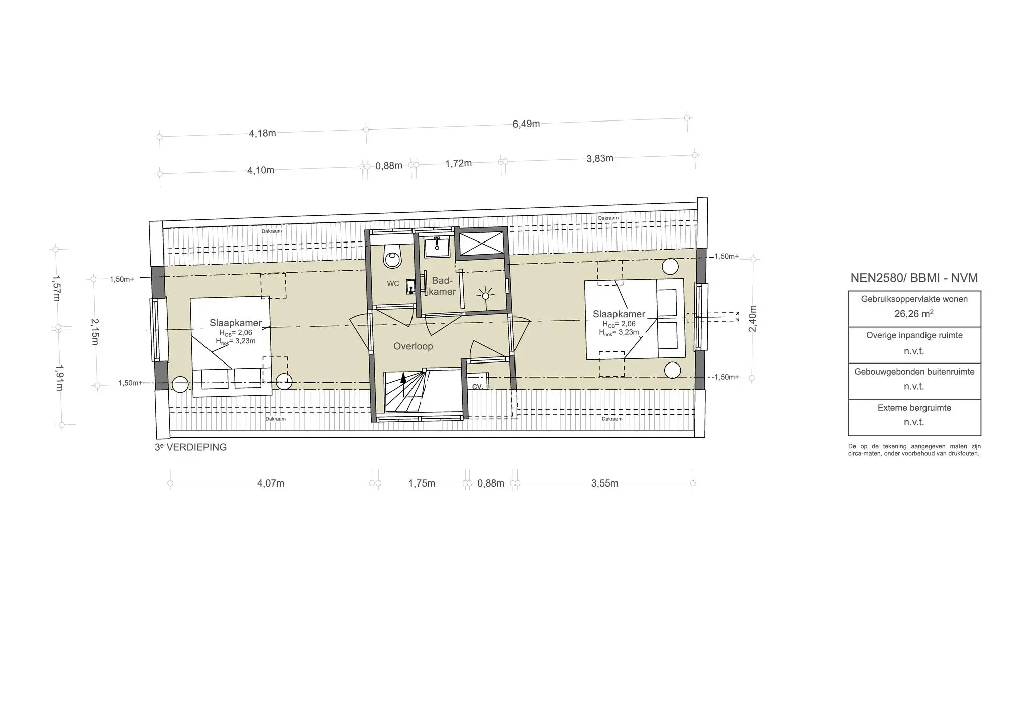
•    Gebruiksoppervlakte wonen circa 68 m²
•    Gelegen op eigen grond (geen erfpacht)
•    Twee woonlagen, met een functionele indeling
•    Twee slaapkamers en een moderne badkamer
•    Open keuken met inbouwapparatuur
•    Fenomenaal uitzicht op de Amstel
•    Actieve en kleinschalige VvE
•    Ligging in het hart van Amsterdam, nabij o.a. Carré, Hermitage, Stopera en Utrechtsestraat
•    Servicekosten VvE € 128,00 per maand
•    Rijksmonument uit de 17e eeuw
•    Rijksbeschermd stadsgezicht
•    Onderdeel UNESCO Werelderfgoed

AM106109-1989679-Amstel-106C,-Amsterdam-224600522

’t Dansende Huisje
Sommige plekken in Amsterdam vertellen hun verhaal in stilte. Zo ook dit bijzondere appartement aan de Amstel, op een locatie die even levendig als verstild aanvoelt. Met genoegen presenteren wij dit karakteristieke bovenhuis aan de Amstel 106 C. De woning is gelegen in een rijksmonument op een bijzonder fraai en historisch deel van de stad, tussen de Halvemaansbrug en de Blauwbrug. Oude verzakte huizen zijn niks nieuws in Amsterdam, maar het rijtje eeuwenoude panden van Amstel 100 tot en met 112 staat er wel heel opmerkelijk bij. De panden staan bekend als de ‘dansende huizen’. Waarom ze zo worden genoemd is vooral vanaf het water goed te zien. De dansende huizen zijn dan ook al jarenlang een geliefde attractie bij rondvaarten. Anno nu staan de huizen schever dan ooit, maar de oude fundamenten zijn vervangen en voorgevels gerenoveerd. Al eeuwenlang doorstaan de huizen de tand des tijds, en ondanks hun wankele voorkomen, zullen zij dit nog lang blijven doen. Dit elegante bovenhuis strekt zich uit over twee verdiepingen en is met grote zorg en gevoel voor detail gerenoveerd. Authentieke elementen zijn behouden gebleven en vormen een harmonieus geheel met een comfortabele, moderne afwerking. Een uniek object met uitzicht over de Amstel, op een locatie waar de stad haar meest klassieke en charmante karakter toont.


Ronald van de Bijl | Makelaar Broersma Wonen
Otte van Apeldoorn | Makelaar Broersma Wonen
AM106109-1989679-Amstel-106C,-Amsterdam-224600492
Designvisie

Aan een van de mooiste delen van de Amsterdamse grachtengordel, tussen de Halvemaansbrug en de Blauwbrug, bevindt zich dit karaktervolle bovenhuis van circa 68 m², verdeeld over twee woonlagen. Het appartement maakt deel uit van een rijksmonument uit de 17e eeuw, met een rijke geschiedenis. De gevel draagt het opschrift “Anno 1659” en beschikt over de originele klokgevel en hijsbalk. De locatie is spectaculair: midden in de stad, met uitzicht op de Amstel en het levendige stadsleven aan je voeten. Dit monumentale pand biedt een adembenemend decor, omringd door statige panden, monumentale bruggen en culturele voorzieningen op loopafstand, zoals Carré, de Hermitage, de Stopera, Artis en de Utrechtsestraat met een levendige mix van winkels, cafés en restaurants. Het is wonen in de luwte van de binnenstad: centraal, maar rustig, met enkel het klaterende water, het geklink van fietsers en het geruis van de stad als achtergrond.

AM106109-1989679-Amstel-106C,-Amsterdam-224600488
AM106109-1989679-Amstel-106C,-Amsterdam-224600578
AM106109-1989679-Amstel-106C,-Amsterdam-224600512
AM106109-1989679-Amstel-106C,-Amsterdam-224600524
Wonen en koken

Via het verzorgde en monumentale trappenhuis bereikt men de entree van de woning op de tweede woonlaag. Hier betreedt men direct de woonkamer aan de voorzijde, waar drie ramen een fenomenaal zicht bieden op de Amstel. De sfeer is licht en warm, met een originele balkenplafond, klassieke houten visgraatvloer en ingetogen kleurgebruik dat rust en ruimte uitstraalt. De open leefruimte loopt over in een eetkamer met moderne keuken aan de achterzijde. Deze ruimte is ideaal gepositioneerd voor lange diners en sociale avonden. De keuken is strak vormgegeven en voorzien van diverse inbouwapparatuur, waaronder een oven, gaskookplaat, vaatwasser en koel-/vriescombinatie. De ramen aan de achterzijde zorgen ook hier voor een prettige lichtinval en zicht op de binnentuinen en daken van de stad.

AM106109-1989679-Amstel-106C,-Amsterdam-224600514
AM106109-1989679-Amstel-106C,-Amsterdam-224600516
AM106109-1989679-Amstel-106C,-Amsterdam-224600526
AM106109-1989679-Amstel-106C,-Amsterdam-224600562
AM106109-1989679-Amstel-106C,-Amsterdam-224600534
AM106109-1989679-Amstel-106C,-Amsterdam-224600530
Slapen en baden

Een interne houten trap leidt naar de derde woonlaag, waar zich twee slaapkamers bevinden onder het zichtbare dakbeschot. De originele houten balken geven beide kamers een warme en authentieke uitstraling. De hoofdslaapkamer beschikt over een dakkapel met uitzicht op de stille stad. De tweede slaapkamer is ideaal als logeer- of werkkamer. De badkamer is modern en efficiënt ingericht, met een ruime inloopdouche, wastafelmeubel en dakraam. Het toilet bevindt zich separaat op dezelfde woonlaag, wat bijdraagt aan het comfort van de bewoners.
Amstel 106 C is een thuis voor wie het stadse leven zoekt, maar zich ook wil omringen met historie, schoonheid en rust. Hier voel je de ziel van Amsterdam – in de gevels, in het uitzicht, in elk detail van het appartement.

AM106109-1989679-Amstel-106C,-Amsterdam-224600542
AM106109-1989679-Amstel-106C,-Amsterdam-224600566
AM106109-1989679-Amstel-106C,-Amsterdam-224600556
AM106109-1989679-Amstel-106C,-Amsterdam-224600548
AM106109-1989679-Amstel-106C,-Amsterdam-224600482
AM106109-1989679-Amstel-106C,-Amsterdam-221689995
AM106109-1989679-Amstel-106C,-Amsterdam-221689997
Buurtgids

De gezelligheid van het centrum is vlakbij. Op slechts een paar minuten lopen liggen het kindvriendelijke Amstelveld, de Utrechtsestraat met talloze winkels, gezellige cafés, bars en goede restaurants (waaronder twee restaurants met een Michelin ster) en de bruisende wijk de Pijp. Cultuur en vermaak zoals de Stopera, Carré, de Kleine Komedie, Paradiso, Hermitage, het Rijksmuseum, het Tropenmuseum, Artis en diverse parken (waaronder het Vondelpark) liggen ook op een steenworp afstand. Diverse goede basisscholen zoals ASVO en De Kleine Reus, middelbare scholen, Hbo-opleidingen en Universiteiten zijn gelegen in de nabije omgeving.

Bereikbaarheid
Het openbaar vervoer bevindt zich op loopafstand. Via metrostation Waterloopplein en diverse trams zijn het Centraal Station, Station Zuid, het Amstel Station en luchthaven Schiphol snel te bereiken. Ook de bereikbaarheid met de auto is goed, je bent binnen 10 minuten op de Ringweg om Amsterdam.

Parkeergelegenheid
Parkeren is mogelijk via een vergunningenstelsel op de openbare weg (vergunningsgebied Centrum-2g). Met een parkeervergunning voor Centrum-2g mag u parkeren in Centrum-2. Een parkeervergunning voor bewoners kost € 326,65 per 6 maanden. Momenteel is er voor dit vergunningsgebied een wachttijd van 8 maanden. Een tweede parkeervergunning is in dit gebied niet mogelijk. Naast de openbare weg is het ook mogelijk om met een parkeervergunning kosteloos te parkeren in garage Markenhoven en garage Muziektheater. (Bron: Gemeente Amsterdam, maart 2026).

AM106109-1989679-Amstel-106C,-Amsterdam-224600454
AM106109-1989679-Amstel-106C,-Amsterdam-224600474
AM106109-1989679-Amstel-106C,-Amsterdam-224600458
Kenmerken
Amstel 106C, Amsterdam
Vraagprijs
  • € 645.000 k.k.
Beschikbaarheid
  • In overleg
Vertrekken
  • 3 kamers
  • 2 slaapkamers
  • 1 badkamer
Onderhoud
  • Intern: Goed
  • Extern: Goed
Oppervlakten & Inhoud
  • Woonoppervlakte: 69 m²
Bouwjaar
  • 1659
Installaties
  • Mechanische ventilatie
  • Natuurlijke ventilatie
  • TV kabel
Ligging
  • Aan water
  • In centrum
  • Vrij uitzicht
Parkeren
  • Betaald parkeren
  • Parkeervergunningen
Type verwarming
  • CV Ketel
Type warmwater
  • CV Ketel
Bestemming
  • Woonruimte
Eigendomssoort
  • Volle eigendom
Buitenruimte
  • Geen tuin
Kadastraal
  • Gemeente: Amsterdam
  • Sectie: I
  • Nummer: 11921
Soort
  • Appartement
  • Bovenwoning
  • Dubbel-bovenhuis
Welke woonlaag
  • 2e
Bijzonderheden
  • Beschermd stads of dorpsgezicht
  • Monument
  • Monumentaal pand
Overige kenmerken
  • OZB ('26) € 395,78 per jaar
  • Rioolrecht ('26) € 192,04 per jaar
  • Servicekosten VvE € 128,- per maand
  • Gelegen op eigen grond (geen erfpacht)
Plattegrond
Amstel 106C, Amsterdam
AM106109-1989679-Amstel-106C,-Amsterdam-223274301
AM106109-1989679-Amstel-106C,-Amsterdam-223274309
Documenten
Amstel 106C, Amsterdam
Locatie
Amstel 106C, Amsterdam
Eten & drinken
369719256_18387798799002727_3915098169732230990_n
01
Adres
Amstelstraat 5,
1017 DA Amsterdam

Screaming Beans

Screaming Beans is een Amsterdams merk dat lokaal en internationaal bekend staat om zijn hoogwaardige koffie. De ruime locatie aan Amstelstraat is de ideale plek om vrienden en collega's te ontmoeten onder het genot van een smakelijke kop koffie, een stuk heerlijke taart of een verwarmende thee. Het is populair onder kantoormedewerkers en buurtbewoners, vooral in de ochtend op weg naar het werk.

305748202_511320170994427_4478601608384911263_n
02
Adres
Rembrandtplein 1,
1017 CT Amsterdam

Café Los

Tot in de jaren '80 was Café Los een politiebureau. Waar vroeger het cellencomplex stond, bevinden nu de toiletten van het café.  Degene die het pand ombouwde besteedde daaraan al zijn geld en was na de verbouwing dus 'los'. Vandaar de naam. Tegenwoordig is het een gezellig bruin café en open tot diep in de nacht.

275042291_979211133006208_959133114569991851_n
03
Adres
Regulierssteeg 4,
1017 CP Amsterdam

Pho King

In een steegje bij het Rembrandtplein bevindt zich een kleine Vietnamese zaak. De originele smaak van Pho varieert door het hele land, waarbij het in het midden van Vietnam vaak wat pittiger is en in het noorden zouter. Er zijn slechts een paar zitplekken binnen, maar buiten kun je plaatsnemen op houten krukjes. De soep is gevuld met malse reepjes rundvlees, gehaktballetjes en een flinke dosis koriander, taugé en fijngesneden reepjes rode ui, lente-ui en limoen.

downloadgram.org_542337336_17874512580410253_7795320341317476262_n
downloadgram.org_580667533_17882663931410253_9117724728895086368_n
04
Adres
Utrechtsestraat 6hs,
1017 VN Amsterdam

char.d

Bij restaurant char.d staan de chefs Dean Baker en Slava Nazaryan aan het roer. De restaurantnaam verwijst naar de kooktechniek charring: langzaam grillen op houtskool of hout en koken op hoge temperaturen om rijke barbecuesmaken te ontwikkelen. Bij char.d vormen dit soort moderne barbecuetechnieken in combinatie met hoogwaardige ingrediënten de rode draad. Bij char.d kunnen gasten genieten van gerechten die variëren van yellowtail in olijfolie tot maïskip met miso en beurre noissette en een klassieker zoals de New York strip. De twee chefs vullen elkaar perfect aan: Dean is gespecialiseerd in vlees terwijl Slava zich richt op vis. Samen met maître Job Guikema geven de chefs vorm aan een restaurant dat barbecue op een andere manier benadert: verfijnd en internationaal. Het kloppend hart van de zaak is de Sloveense Kopa-houtskoolgrill in de open keuken, door de Britse Baker liefkozend “Bobby” genoemd.

Schermafbeelding 2022-07-01 om 12.24.29
05
Adres
Korte Reguliersdwarsstraat 5-7-9,
1017 BH Amsterdam

Eetsalon Van Dobben

Eetsalon Van Dobben is een begrip in de wereld van kroketten. Midden in het centrum van de stad kan je altijd terecht voor een broodje kroket en een glaasje melk. Op 28 juni 1945 opende Aat van Dobben zijn eerste broodjeszaak in hartje Amsterdam en sindsdien is de plek een pleisterplaats voor artiesten, voetballers en vele andere Amsterdammers. Als je niet van kroketten houdt, is er gelukkig nog een waslijst met andere oer-Hollandse broodjes en gerechten die je kan bestellen, zowel erwtensoep als een boterham met hagelslag.

10
06
Adres
Reguliersdwarsstraat 131,
1017 BL Amsterdam

Tomo sushi

Tomo sushi ligt middenin het centrum van Amsterdam. Het is een modern ingericht Japans sushi en grill restaurant. Tomo Sushi biedt traditionele (a la carte) gerechten die met de fijnste en verste ingrediënten worden bereid. Je kunt plaatsnemen aan de sushibar, waar je kunt genieten van de chefs die de uitstekende sushi en sashimi bereiden.

 

Schermafbeelding 2022-06-20 om 14.36.53
07
Adres
Nieuwe Doelenstraat 12-14,
1012 CP Amsterdam

Trattoria Graziella

Trattoria Graziella viert de pure Italiaanse keuken in al zijn glorie, met huisgemaakte pasta’s, antipasti’s en uitgebreide hoofdgerechten. Denk aan pappardella met lamsstoof en artisjok of Corvina bereid met tomaat en inktvis. Chef Luigi di Benedetto en zijn team streven naar uitgesproken maar gebalanceerde smaken met aandacht voor detail. Buon appetito!

355451958_3094913100804303_7512211906125210481_n
342046445_949688526364499_2198747169614493523_n
08
Adres
Nieuwe Doelenstraat 2-14,
1012 AC Amsterdam

Marie Amsterdam

Brasserie Marie is verbonden aan het luxueuze Hotel De L'Europe en heeft een mooie ligging aan het water. Het restaurant brengt de smaken van de Côte d'Azur naar het centrum van Amsterdam. Ontdek de Franse keuken met het heerlijke menu vol met de beste gerechten. Chef Jop heeft de kunst van het combineren van moderniteit met de klassieke Franse keuken onder de knie. Geniet van de selectie wijnen, sterke dranken en cocktails die perfect passen bij je maaltijd en geserveerd worden met gastvrijheid van hoog niveau.

09
Adres
Nieuwe Doelenstraat 2-14,
1012 CP Amsterdam

Restaurant Flore (**)

‘Chef Bas Van Kranen heeft zuivelproducten uit zijn repertoire gebannen en een primaire plaats gegeven in al zijn gerechten. In deze voornamelijk plantaardige aanpak is er nog wel plaats voor wild, gevogelte en vis. Zo hebben we een mooie herinnering aan een kwartel die in zijn geheel op karkas gegaard werd en aan tafel gepresenteerd werd. En daarna mooi ontbeend met fijne wortelbereiding, duindoornbes en jus van de beentjes op het bord verscheen. Vooraf proefden we onder meer van een aparte combinatie rond witte bonen, hazelnoten en peer met daarna zacht gegaarde zeekat afgewerkt met dauwbraam en dulse wier.’

10
Adres
Amstel 2,
1017 AA Amsterdam

Incanto

Mooi opgemaakte borden, verfijnde smaken en een centrale locatie aan de Amstel. Met uitzondering op de zondag kan je bij Encanto iedere avond terecht voor stijlvol Italiaans eten. De seizoenskeuken wisselt vier keer per jaar van menu. Denk aan Octopus met crème van gegrilde tomaten, paprika en pompelmoes en Fettucine met ragout van wild zwijn. Van primi tot dulci een absolute kwaliteitskaart.

scp2.elfsightcdn
scp2.elfsightcdn-1
11
Adres
Amstel 212,
1017 AH Amsterdam

Restaurant 212 (**)

Na een brand in Maart 2022 hebben Richard van Oostenbrugge en Thomas Groot hun restaurant in November 22 heropend. Prachtig gelegen aan de Amstel biedt het restaurant plaats aan 16 personen. Het tasting menu en de a l carte gerechten zijn van een hoog niveau.

the-beauty-the-bee-afternoon-tea-2022-29-
12
Adres
Herengracht 542-556,
1017 CG Amsterdam

Peacock Alley

Tussen de high tea en de cocktails kan je bij Peacock Alley terrecht voor een perfect bereide burger. Sappig en goed gekruid, belegd met Gouda kaas, zuur, tomaat en uienringen. Peacock Alley is gevestigd in het chique Waldorf Astoria hotel in Amsterdam en is iedere dag geopend van 10:00 tot 22:00 uur.

Schermafbeelding 2022-07-01 om 12.04.10
13
Adres
Herengracht 542-556,
1017 CG Amsterdam

Spectrum (**)

Gevestigd op de mooie Herengracht, in het chique Waldorf Astoria hotel opent Spectrum van woensdag tot zaterdag zijn deuren. . Met liefde voor Nederlandse kooktraditie, steekt chef-kok Sidney Schutte de oude kennis in een nieuwe jasje. Laat je verrassen door de rijke internationale keuken, zomaar bij jou om de hoek. De wijnlijst, samengesteld door Cas Kratz (restaurant manager en sommelier) bevat zeer bijzondere wijnen.

14
Adres
Utrechtsestraat 30A,
1017 VN Amsterdam

Cue Amsterdam (*)

Restaurant CUE Amsterdam biedt een unieke beleving waar gastronomie (restaurant) en muziek (Listening bar) perfect samensmelten.  De culinaire aanpak van CUE is verfijnd en innovatief en laat subtiele Noord Europese en Japanse invloeden zien. Dit is te danken aan chef-kok George Kataras en sommelier Mohamed Aous, die eerder samenwerkten in het met een Michelinster bekroonde restaurant Vanderveen en in 2025 ook hier een ster hebben ontvangen.

396d30_5a39bb8f65ae440b9bfc8457b6de9f64_mv2
396d30_bf2aeadae3e04cb3907935c5ab9dc64e_mv2
15
Adres
Utrechtsestraat 51,
1017 VJ Amsterdam

De Juwelier (*)

Restaurant De Juwelier is het nieuwe à la carte restaurant van de chefs van het met twee Michelin-sterren bekroonde Restaurant 212. Richard van Oostenbrugge en Thomas Groot openden samen De Juwelier aan de Utrechtsestraat. Zowel klassiekers uit de Franse en Nederlandse keuken staan op de menukaart. Deze chique bistro heeft, verfrissend genoeg, geen concept, maar draait gewoon om lekker bourgondisch eten en genieten. Kortom: een juweeltje.

396d30_2adb332fb9f3414f9c3ae1737f378bed_mv2
396d30_f2cd173c7f3747cb9bcb5c5625584a55_mv2
16
Adres
Utrechtsestraat 57,
1017 VJ Amsterdam

Bistro de la Mer (*)

Na de succesvolle openingen van 212 en restaurant de Juwelier, opent het chef duo Richard van Oostenbrugge en Thomas Groot wederom een succesvol restauramt. Bistro de la Mer bevindt zich maar een paar deuren verder op de Utrechtsestraat. Het is een Frans georiënteerde visbistro met klassieke smaken. Het concept en de prijzen zijn te vergelijken met restaurant de Juwelier, maar dan met een a la carte menu. Ook deze zaak van het succesvolle duo heeft sinds April 2023 een Michel ster.

 

Hapjeshoek
17
Adres
Waterlooplein 6,
1011 MS Amsterdam

De Hapjeshoek

De Hapjeshoek is een bruisend Surinaams eethuis. Het is gevestigd in het historische metrostation Waterlooplein en verwelkomt gasten al sinds 1995. Het is opgericht door drie broers en het is uitgegroeid tot een levendige locatie vol heerlijk eten en vriendelijk personeel. Geniet van een gevarieerd menu met verse Surinaamse broodjes, hapjes en maaltijden voor lunch en diner. Allemaal samengesteld om kwaliteit te bieden tegen betaalbare prijzen.

206984316_4227322370657525_3184468636768311086_n
18
Adres
Keizersgracht 711HS,
1017 DX Amsterdam

Café Van Leeuwen

Café Van Leeuwen is een op en top Amsterdams café, beroemd om zijn ouderwets gezellige borrels. Veel verschillende mensen komen hier te gast van buurtbewoners tot vaste klanten en toevallige voorbijgangers weten dit café al ruim 20 jaar weten te vinden. Een goede ontbijt- en lunchkaart, lekkere borrelhapjes een simpel maar goed cafe diner, ook lekkere wijnen en uitgebreid bier assortiment.

Boodschappen
sterk-staaltje-winkel
19
Adres
Staalstraat 12,
1011 JL Amsterdam

Sterk Staaltje

Sterk Staaltje is al meer dan twintig jaar een begrip in de binnenstad van Amsterdam. Deze unieke eetwinkel heeft een grote variatie aan eten met een nadruk op vers. Zo is iedere maaltijd, broodje, salade of soep net een beetje anders. Met bezoekers uit alle lagen van de bevolking; van omwonenden en kantoorpersoneel tot studenten en toeristen die hier een broodje komen eten. Je kan hier kortom terecht voor een sterk staaltje eten.

Interieur
TW-Reality-Check-3-2800px-600×600
Droog_Gallery
cafe-droog
20
Adres
Staalstraat 7B,
1011 JJ Amsterdam

Droog

Droog is een designlabel gevestigd in Amsterdam en staat bekend om hun conceptuele en contextuele benadering van design. De naam Droog staat voor de droge humor van de designs in hun collectie. Een verwijzing naar de Nederlandse nuchterheid. Naast een galerie is er ook een winkel, een restaurant en verschillende ruimtes die gehuurd kunnen worden. Alle ruimtes hebben hun eigen unieke karakter en zijn ingericht met kunst en design stukken uit de Droog collectie.

Kunst & cultuur
PatheTuschinski_Zaal1i
21
Adres
Reguliersbreestraat 26-34,
1017 CN Amsterdam

Theater Tuschinski

Het Koninklijk Theater Tuschinski is gebouwd in verschillende bouwstijlen, waaronder de Amsterdamse School stijl, Jugendstil en art deco. Het is een ontwerp van Hijman Louis de Jong en werd geopend in 1921. De buitenkant van het gebouw wekt al de aandacht door de velen decoraties en sculpturen en wanneer je de foyer binnenkomt waan je je meteen in een ander tijdperk. Prachtige decoraties, tapijten vloeren en muurschilderingen brengen je terug naar de jaren 20. In de grote zaal kan je blijven kijken naar alle details, de ornamenten en het plafond wat de architect heeft ingebouwd. Naast de grote zaal zijn er ook meerdere kleine zalen waar vroeger cabaretvoorstellingen werden gehouden, dit zijn vandaag de dag ook bioscoopzalen. Er worden veel premières gehouden in Tuschinski en de bioscoop is in bezit van de bioscoopketen Pathé.

eetkamer-web
22
Adres
Herengracht 605,
1017 CE Amsterdam

Huis Willet-Holthuysen

Het indrukwekkende Willet-Holthuysenhuis bevindt zich in het hart van Amsterdam. Dit dubbele herenhuis aan de Herengracht herbergt talloze stijlkamers. De naam van het huis is afgeleid van het echtpaar dat hier aan het einde van de 19e eeuw woonde: Abraham Willet en Louisa Holthuysen. Zij verzamelden een schat aan kunst en objecten en lieten het interieur naar hun persoonlijke smaak vormgeven. Zelfs destijds werd dit prachtige huis beschouwd als een eerbetoon aan een romantisch verleden. Het interieur diende als het middel waarmee het echtpaar hun smaak en welvaart met anderen deelde. De schitterende salons zijn in de stijl van Lodewijk XVI ingericht en de tuin is symmetrisch aangelegd als een formele Franse tuin. In deze romantische stijlkamers organiseert het Amsterdam Museum tentoonstellingen met werk van hedendaagse kunstenaars en verzamelaars.

0351475001574868608
23
Adres
Kloveniersburgwal 95,
1011 KB Amsterdam

Upstream Gallery

In het 17e -eeuwse monumentale pand het ‘Poppenhuis’ aan de Kloveniersburgwal zit kunstgalerie Upstream Gallery. Deze hedendaagse kunstgalerie heeft binnen korte tijd een internationale reputatie opgebouwd onder verzamelaars, kunstinstituties, kunstcritici en natuurlijk kunstliefhebbers. De focus van de galerie ligt op radicaal, geëngageerde, conceptuele en post-internet kunst en representeert zowel Nederlandse als internationale kunstenaars.

img_9450-2
24
Adres
Utrechtsestraat 44 BG,
1017 VP Amsterdam

Enari Gallery

Enari gallery ligt in het hart van Amsterdam. Het is opgericht door Paul van Gemen en Christina Voulgari medio november 2022. De galerie legt de nadruk op het cureren van opvallende tentoonstellingen met een sterke internationale oriëntatie, waarbij zowel opkomende als gevestigde kunstenaars worden gepresenteerd. Hun missie is om de culturele loopbaan van de kunstenaars die ze vertegenwoordigen verder te bevorderen door middel van vooraanstaande exposities. Hierdoor biedt de galerie een platform voor artistiek talent om in contact te komen met vooraanstaande figuren uit de kunstwereld.

mokum-
25
Adres
Oudezijds Voorburgwal 334,
1012 GM Amsterdam

Galerie Mokum

Galerie Mokum was de eerste galerie in Amsterdam die realistische kunst tentoonstelde. De Galerie is opgericht in 1962 door Dieuwke Bakker in een pand aan de Oudezijds Voorburgwal. De galerie heeft in de voorbijgaande jaren vele verschillende kunstenaars vertegenwoordigd die zich rekenen tot de stroming van het realisme; een reactie op de abstracte en de pop-art kunst van de 20ste eeuw. Bij de figuratieve realistische kunst draait het juist om het afbeelden van herkenbare figuren, objecten en landschappen. Voorbeelden van Nederlandse kunstenaars van het Realisme zijn Henk Helmantel en Gerard Huysman. In Galerie Mokum kun je de werken van Helmantal, Huysman en nog vele andere realistische kunstenaars bewonderen.

Video: wonen in een oude Telefooncentrale in Amsterdam West

Video: wonen in een oude Telefooncentrale in Amsterdam West

Een selectie van lekkere en betaalbare broodjes in Amsterdam

Een selectie van lekkere en betaalbare broodjes in Amsterdam

Een bron van inspiratie in Bergen Noord Holland

Een bron van inspiratie in Bergen Noord Holland

Onlangs bekeken
Bekijk het overzicht

Deze site maakt gebruik van cookies.

Voor welke cookies geef je akkoord?