Het appartement van circa 44 m² op de Alexanderstraat is een comfortabel en recent geheel gerenoveerde woning op een heerlijke locatie. De straat is rustig (autovrij) en vanaf het Franse balkon aan de voorzijde kijk je zo het water van de Alexanderkade en het prachtige Tropenmuseum op. Het Oosterpark ligt op steenworp afstand.
De smaakvolle woning gelegen op de eerste verdieping voldoet aan vele wensen, zo is het recent gerenoveerd – moderne keuken, luxe badkamer e.d.- , gelegen op eigen grond en is gelegen in een fijne buurt. 

Rondleiding
De zeer lichte woonkamer is doorzon waardoor er veel leefruimte is gecreëerd. Aan de voorzijde met een sfeervol frans balkon aan de rustige straat, hier kan men in de middag genieten van de zon. Op het balkon aan de achterzijde komt in de ochtend heerlijk de zon. De lichtinval en zicht over groen geven het geheel een zeer prettige uitstraling.
De nieuwe en moderne keuken is voorzien van hoogwaardige inbouwapparatuur (AEG) zoals inductiekookplaat, Quooker, vaatwasser, oven en ijskast met vriezer en biedt een ideale kookomgeving. De ruime woon- en eetkamer sluiten perfect aan op beide balkons, waardoor je zowel binnen als buiten kunt genieten van de ruimte en het licht. De slaapkamer aan de stille voorzijde beschikt over een ingebouwd bed, er is een royale inloopkast gecreëerd bij de woonkamer. De nieuwe en eigentijdse badkamer is ruim opgezet en biedt alle comfort met een inloopdouche, wastafelmeubel en toilet.
Het appartement is met oog voor detail afgewerkt door onder andere de fraaie eikenhouten vloer, hoge deuren, veel bergruimte. Oftewel: heerlijk thuiskomen. 

Buurtgids
De Alexanderstraat is gelegen aan een rustige en  autoluwe straat nabij onder andere Artis, de Plantage, het Oosterpark, Botanical Gardens en het Tropenmuseum.
In de omgeving zijn veel gezellige horecagelegenheden, zoals buurtcafé De Groene Olifant, café Louie Louie en restaurant Plantage. Voor de dagelijkse boodschappen kan men terecht op o.a. de Czaar Peterstraat met een rijk aanbod verfijnde delicatessenzaken en uiteraard ook de grotere supermarkten. 
De Alexanderstraat ligt op de grens van de Plantagebuurt en Oost.

Bijzonderheden
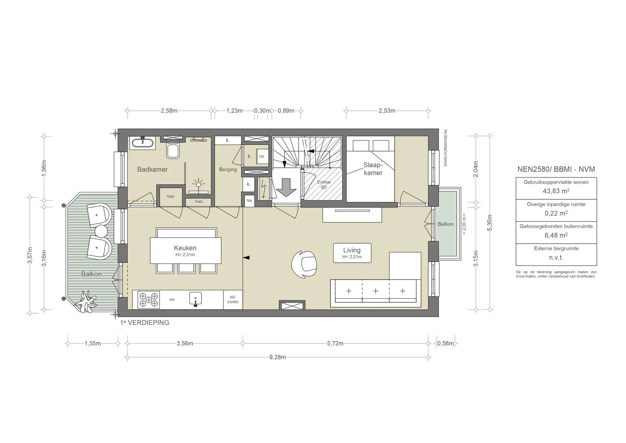
•    Gebruiksoppervlakte wonen circa 44 m²
•    Balkon achterzijde op het noordwesten
•    Frans balkon voorzijde op zuidoosten
•    Gelegen op eigen grond
•    Energielabel C
•    Recent gerenoveerd – ready to move in
•    Fundering hersteld in 1998
•    Servicekosten VvE € 85,88 per maand
•    Dubbel glas – voor & achterzijde
•    Actieve VvE – 3 leden
•    Rijksbeschermd stadsgezicht

AM105056-1867246-Alexanderstraat-8C,-Amsterdam-181564573

Prins Alexander
Het appartement op de Alexanderstraat is een comfortabel, modern en is een optimaal ingedeelde woning op een top locatie. Gelegen op steenworp afstand van het Oosterpark. De straat is rustig (autovrij met veel groen) en vanaf het Franse balkon aan de voorzijde kijk je zo het water van de Alexanderkade op en het prachtige Tropenmuseum. De smaakvolle woning gelegen op de eerste etage voldoet aan vele wensen. Zo is het gelegen op eigen grond, recent intern gerenoveerd – nieuwe moderne keuken, luxe badkamer e.d., fundering hersteld, een actieve VvE en gelegen in een super fijne buurt.
Voor degene die op zoek is naar eigentijds wonen op een super leuke plek!


Judith de Jong | Makelaar Broersma Wonen
Alexander Gimbrère | Makelaar Broersma Wonen
AM105056-1867246-Alexanderstraat-8C,-Amsterdam-181564595

Het gebouw
De 19e eeuw wordt er in Amsterdams een reeks van bouwstijlen uit het verleden opnieuw geïnterpreteerd. De populairste bouwstijl in de tweede helft van de 19e eeuw is de Neorenaissance, een stijlperiode waarbij de Hollandse Renaissance uit de 16e eeuw opnieuw werd geïnterpreteerd. Kenmerkend voor de Neorenaissance zijn de horizontale, natuurstenen lagen tussen het metselwerk en de trapgevels, die bijna niet zijn te onderscheiden van die uit de tijd van de Renaissance. Het historische sentiment werd nu alleen kracht bijgezet door nog uitbundiger om te springen met de decoraties. Datzelfde gold voor winkels, die wilden opvallen om publiek te trekken. Het gebouw aan de Alexanderstraat is zeer goed onderhouden, afgelopen jaar zijn de vloeren van de balkons vervangen, bij de dorpels achter is het hout vervangen door natuursteen. Tevens is het zinkwerk voor- en achter vernieuwd. Ook is het schilderwerk gedaan evenals de buitenkant van het pand geverfd (na een grondige reiniging). In 2024 is dit appartement met zeer veel zorg gerenoveerd, zo is er een nieuwe badkamer en keuken geplaatst ook is de vloer opnieuw geschuurd en geolied.

AM105056-1867246-Alexanderstraat-8C,-Amsterdam-181564615
AM105056-1867246-Alexanderstraat-8C,-Amsterdam-181564677
AM105056-1867246-Alexanderstraat-8C,-Amsterdam-181564727
AM105056-1867246-Alexanderstraat-8C,-Amsterdam-181564777

Wonen en koken
De zeer lichte woonkamer is doorzon waardoor er veel leefruimte is gecreëerd. Aan de voorzijde met een sfeervol frans balkon aan de rustige straat, hier kan men in de middag genieten van de zon. Op het balkon aan de achterzijde komt in de ochtend heerlijk de zon. De lichtinval en zicht over groen geven het geheel een zeer prettige uitstraling. De nieuwe en moderne keuken is voorzien van hoogwaardige inbouwapparatuur (AEG) zoals inductiekookplaat, Quooker, vaatwasser, oven en ijskast met vriezer en biedt een ideale kookomgeving. De ruime woon- en eetkamer sluiten perfect aan op beide balkons, waardoor je zowel binnen als buiten kunt genieten van de ruimte en het licht.

AM105056-1867246-Alexanderstraat-8C,-Amsterdam-181564657
AM105056-1867246-Alexanderstraat-8C,-Amsterdam-181564665
AM105056-1867246-Alexanderstraat-8C,-Amsterdam-181564785
AM105056-1867246-Alexanderstraat-8C,-Amsterdam-181564791
AM105056-1867246-Alexanderstraat-8C,-Amsterdam-181564761

Slapen en baden
De slaapkamer aan de voorzijde beschikt over een ingebouwd bed, bij de woonkamer is de riante inloopkast te vinden. De nieuwe badkamer, gelegen aan de achterzijde, is modern en biedt alle comfort met een inloopdouche, wastafelmeubel en toilet. De badkamer geeft een luxe hotelgevoel door de materiaalkeuze en het fijne licht dat naar binnen komt.

 

AM105056-1867246-Alexanderstraat-8C,-Amsterdam-181564795
Alexanderstraat 8C-20
Alexanderstraat 8C-15
Alexanderstraat 8C-42

Let’s go outside
Geniet van de middagzon op het charmante Franse balkon aan de zuidoostzijde en van de ochtendzon op het ruime balkon aan de noordwestzijde, dat direct grenst aan de keuken. Het ruime balkon gelegen aan de achterzijde grenst aan de rustige binnentuinen. De buitenruimtes bieden de perfecte plekken om te ontspannen en te genieten van de zon.

 

 

 

Alexanderstraat 8C-11
Alexanderstraat 8C-4
AM105056-1867246-Alexanderstraat-8C,-Amsterdam-181564639
AM105056-1867246-Alexanderstraat-8C,-Amsterdam-181564637
Alexanderstraat 8C-34

De Alexanderstraat is gelegen aan een rustige en autovrij straat nabij onder andere Artis, de Plantage, het Oosterpark, Botanical Gardens en het Tropenmuseum. In de omgeving zijn veel gezellige horecagelegenheden, zoals buurtcafé De Groene Olifant, café Louie Louie en restaurant Plantage. Voor de dagelijkse boodschappen kan men terecht op o.a. de Czaar Peterstraat met een rijk aanbod verfijnde delicatessenzaken en uiteraard ook de grotere supermarkten. e Alexanderstraat ligt op de grens van de Plantagebuurt en Oost.

Bereikbaarheid 
Goed bereikbaar met het openbaar vervoer via Amsterdam Muiderpoort en Metrostation Weesperplein. Vanaf Metrostation vertrekken drie metrolijnen naar verschillende uithoeken van de stad. Voor openbaar vervoer binnen de stad ligt de bus- en tramhalte op loopafstand voor tram 7 (Slotermeer – Azartplein), 14 (Centraal Station – Flevopark) en 19 (Station Sloterdijk – Diemen) en de nachtbus tussen Centraal Station en Station Bijlmer Arena.
Gunstig gelegen ten opzichte van de uitvalswegen A1 en A2 via de Wibautstraat en S112.

Parkeergelegenheid
Parkeren is mogelijk via een vergunningenstelsel op de openbare weg (vergunningsgebied Centrum 3). Met een parkeervergunning voor Centrum 3 mag u parkeren in Centrum-1 en Centrum 3.
Een parkeervergunning voor bewoners kost 315,60 per 6 maanden. Momenteel is er voor dit vergunningsgebied een wachttijd van 9 maanden. Een tweede parkeervergunning is in dit gebied niet mogelijk. (Bron: Gemeente Amsterdam, mei 2024).

AM105056-1867246-Alexanderstraat-8C,-Amsterdam-181564773
1018 HD Spinozastraat 3-58
1018 CL Alexanderstraat 16E – 26
1018 TT Plantage Muidergracht 155 A-76
Kenmerken
Alexanderstraat 8C, Amsterdam
Vraagprijs
  • € 450.000,- k.k.
Beschikbaarheid
  • In overleg
Vertrekken
  • 2 kamers
  • 1 slaapkamer
  • 1 badkamer
Onderhoud
  • Intern: Uitstekend
  • Extern: Goed tot uitstekend
Oppervlakten & Inhoud
  • Woonoppervlakte: 44 m²
Bouwjaar
  • 1879
Installaties
  • Frans balkon
  • Mechanische ventilatie
  • TV kabel
Ligging
  • Aan rustige weg
  • In centrum
Parkeren
  • Betaald parkeren
  • Parkeervergunningen
Type verwarming
  • CV Ketel
Type warmwater
  • CV Ketel
Bestemming
  • Woonruimte
Eigendomssoort
  • Volle eigendom
Buitenruimte
  • Geen tuin
  • Balkon
Kadastraal
  • Gemeente: Amsterdam
  • Sectie: O
  • Nummer: 4713
Duurzaamheid
  • Dubbel glas
  • Vloerisolatie
  • Energielabel C
Soort
  • Appartement
  • Bovenwoning
Welke woonlaag
  • 2e
Bijzonderheden
  • Beschermd stads of dorpsgezicht
Overige kenmerken

OZB ('24) € 178,43 per jaar 
Rioolrecht ('24) € 166,85 per jaar 
Servicekosten VvE € 85,88 per maand 

Plattegrond
Alexanderstraat 8C, Amsterdam
AM105056-1867246-Alexanderstraat-8C,-Amsterdam-181812979
Documenten
Alexanderstraat 8C, Amsterdam
Locatie
Alexanderstraat 8C, Amsterdam
Kunst & cultuur
Lichthal Tropenmuseum
01
Adres
Linnaeusstraat 2,
1092 CK Amsterdam

Tropenmuseum

Het Tropenmuseum is een museum over wereldculturen en vertelt de verhalen over de koloniale geschiedenis van Nederland. Het museum is gevestigd in een monumentaal pand uit 1926 aan de rand van het Oosterpark. Binnen heeft dit museum een grote vaste collectie maar het biedt ook regelmatig nieuwe en actuele exposities aan. Het menselijk verhaal staat in dit museum centraal; ondanks de enorme diversiteit aan wereldse culturen kan de bezoeker meeleven met de elk van de verhalen die zijn getoond in dit museum. Het Tropenmuseum is ook een echte aanrader voor een museumbezoek met kinderen. Het leren over de inspirerende verhalen en exotische voorwerpen is voor bezoekers van iedere leeftijd een intrigerende ervaring.

artis_hoofdentree_ingang_adelaars_r_1920x1080.jpg__1920x0_q85_subject_location-1023,731_subsampling-2
02
Adres
Plantage Kerklaan 38-40,
1018 CZ Amsterdam

Artis

Artis is de oudste dierentuin van Nederland, het werd in 1838 opgericht met het doel om de natuur dichter bij de mensen te brengen. Het begon klein als een tuin met vijver en een wintertuin en in de loop der jaren kwamen er steeds meer gebouwen dieren en bomen bij. Vandaag de dag zijn er meer dan 900 verschillende diersoorten te bewonderen waaronder ook enkele bijzondere diersoorten zoals de algazellen, de witstaartgnoes en de margay. Je kan een hele dag zoet zijn in Artis. Waan je bijvoorbeeld in een tropisch klimaat, bewonder bijzondere vissensoorten en lach om de aapjes op de apenrots.

2020 galeriefoto
03
Adres
Nieuwevaart 200,
1018 ZN Amsterdam

Galerie Franzis Engels

Op een steenworp afstand van het Centraal Station kun je Galerie Franzis Engels vinden. Een galerie voor hedendaagse kunst met wel vier verdiepingen. Op de bovenste verdieping worden zowel solo- als thematische tentoonstellingen gehouden. De drie benedenverdiepingen en de tuin tonen frisse en verrassende werken uit het galeriearchief van nationale en internationale kunstenaars.

Eten & drinken
332894119_921385202326600_5373420399738393924_n
04
Adres
Mauritskade 61,
1092 AD Amsterdam

Spring Cafe Brasserie

In het vijfsterrenhotel Pillows Grand Boutique Hotel Maurits At The Park bevindt zich Spring Café Brasserie met uitzicht op het Oosterpark en een heerlijk terras voor de zomer. Binnen heerst een echte brasseriesfeer met een gevarieerd menu, waaronder klassiekers zoals steak tartaar en prei met sauce gribiche.

372585365_816792220071200_4096314404636617150_n
321610369_531908492008084_6257815916651647779_n
05
Adres
Mauritskade 61,
1092 AD Amsterdam

VanOost

Na enige vertraging en een herbenoeming is het eindelijk zover: chef Floris van Straalen, voorheen werkzaam bij Felix, opent zijn restaurant in het nieuwe Pillows Hotel Maurits aan het Oosterpark. Bij VanOost kun je een internationale keuken verwachten, gepresenteerd in de vorm van een chefsmenu. Elk seizoen staat een nieuw hoofdingrediënt centraal, waarvan de chef drie verschillende bereidingen serveert. De amuses worden geserveerd in de aparte bar, waar ook de huischampagne wordt geschonken, met uitzicht op de Mauritskade.

Schermafbeelding 2022-05-18 om 16.27.07
Schermafbeelding 2022-05-18 om 16.24.25
06
Adres
Linnaeusstraat 11A,
1093 EC Amsterdam

Louie Louie

Bar Louie Louie is de perfecte spot om een biertje te drinken na een bezoek aan het Tropenmuseum. Ongeacht welk wispelturig Nederlandse weer het is - het overdekte terras met heaters creëert gelegenheid om lang te blijven hangen en te genieten van de Zuid-Amerikaanse keuken.

07
Adres
Eerste Van Swindenstraat 4,
1093 GC Amsterdam

Roopram Roti

Roopram Roti komt oorspronkelijk uit Suriname en werd geëxporteerd naar Nederland vanwege de grote vraag naar roti op de Nederlandse markt, onder andere door vakantiegangers uit Paramaribo. Om aan deze vraag te voldoen, besloot J. Roopram diepvries roti naar Nederland te exporteren. Helaas werd dit op het laatste moment tegengehouden vanwege de beperkingen op de uitvoer van kip en kipdelen uit Suriname. In plaats daarvan opende J. Roopram in juli 2002 zijn eerste restaurant aan het Mathenesserplein 89 te Rotterdam. Dit werd gevolgd door het tweede filiaal in Amsterdam, genaamd Roopram Roti Eetcafé. Sindsdien zijn er twee extra filialen geopend, namelijk in Den Haag en aan de Van Woustraat 37 te Amsterdam.

151547326_2761937994066349_5799390836558443898_n
08
Adres
Dapperstraat 12HS,
1093 BV Amsterdam

Boi Boi

Boi Boi is een gezellige plek dicht bij de bruisende Dapper Market. Strijk neer in in de hippe tent, geniet van de met graffiti bespoten decoraties en neem de tijd voor de smaakvolle gerechten. De Thaise keuken is niet alleen smaakvol en bijzonder door de Laotiaanse twist, maar ook nog eens vers en gezond.

09
Adres
Dapperstraat 4,
1093 BT Amsterdam

Best döner

Hasan Karaca staat sinds 1990 met zijn kraam op de Dappermarkt in Amsterdam-Oost. Eerst verkocht hij allerlei verschillen producten totdat hij in 2003 besloot te beginnen met een kebabkraam. Dat was een goede beslissing want zijn heerlijke broodjes en wraps sloegen aan bij de bezoekers van de markt. Inmiddels heeft Hasan een grote groep vaste klanten die wekelijks een hapje bij hem komen halenHet geheim voor zijn ultieme kebab schuilt in de hoge kwaliteit van de ingrediënten. Hasan kookt alleen maar met 100% lamsvlees en voegt hier zijn ook een speciaal kruidenmengsel aan toe.

Naskip-Amsterdam
10
Adres
Dapperstraat 147,
1093 BS Amsterdam

Naskip

In 1962 begon de grootmoeder van de huidige eigenaren in Nederland haar heerlijke gemarineerde kip te verkopen. Met al meer dan 50 jaar succes in Suriname, staat Naskip bekend om kwaliteit, smaak, service en redelijke prijzen. De naam komt van de familieachternaam Nassy en het Amsterdamse 'nassen'.  De producten zijn volledig afgestemd op de Surinaamse smaak, bereid met verse ingrediënten en 100% plantaardige vetten. Populaire gerechten als fried chicken, french fries en gekookte maiskolven zijn hier te vinden.

424596480_18280834828163733_2921239417396427875_n
424881953_18280834837163733_8258135845662124209_n
11
Adres
Dapperstraat 1,
1093 BK Amsterdam

Café Wu

Café Wu is een moderne bistro, geïnspireerd door de Chinese keuken en cultuur. Timo de Beurs (voorheen slagerij de beurs) serveert spannende gerechten van klassiek Chinees tot een vrije interpretatie hiervan met Europese technieken en producten. Op de wijnkaart van Chi Ling Wu (voorheen o.a. Scheepskameel) staan Europese wijnen met nadruk op Frankrijk, Duitsland en Italië.Café Wu hanteert zowel een vijf-gangenmenu als een beknopt á la carte-menu. Naast goed eten en fijne wijn is er ook bijzondere aandacht voor muziek, met een belangrijke rol voor elegant vinyl en tape.

369563027_18230648920239181_4099421685668908615_n
369536029_18230648980239181_3347084069038983889_n
12
Adres
Wagenaarstraat 70H,
1093 CV Amsterdam

Wakuli

Wakuli ontleent aan het Swahili-woord 'wakulima', wat boer betekent. Hier vind je kwaliteitskoffie die op duurzame wijze is verkregen tegen betaalbare prijzen.  Ze halen hun bonen bij kleinschalige boeren die groene productie produceren en roosteren ze op de beste manier mogelijk voor maximale smaak. Je kunt hier alle gebruikelijke koffiesoorten krijgen, evenals heerlijke ijskoffie en nitro cold brew. Last but not least, hebben ze een aantal zoete en hartige lekkernijen beschikbaar, van empanadas tot broodjes en croissants.

27578607_578172719204037_6017695974258900992_n
13
Adres
Zeeburgerstraat 4,
1018 AG Amsterdam

Burritos Anonymous

Bij Burritos Anonymous geloven ze dat geluk door de maag gaat.De onweerstaanbare creaties combineren verse groenten, smakelijke rijst, knapperige bonen, gesmolten kaas en een zachte bloemtortilla. Maar dat is niet alles! Een complete burrito-maaltijd omvat ook tortillachips met zure room en hete saus, altijd inbegrepen. Kies uit kip, rund, gehakt, pulled pork of een vegetarische variant. Bezoek de winkel voor deze smaakexplosie en ontdek ook de heerlijke hete sauzen en zelfgemaakte guacamole.

465556684_569213952170014_7462375669783959967_n
14
Adres
Reinwardtstraat 1,
1093 GT Amsterdam

Turbo Amsterdam

Volgens de eigenaren (ook van het er tegenover gelegen buurtcafe de Tros) is de naam gekozen omdat de plek snel en vernieuwend moet zijn. De kwaliteit hoog, de toegang laagdrempelig. Koffie met cinnamonbuns in de ochtend, sandwiches of een huisgemaakt kroket in de middag en diner met (natuur)wijn in de avond. Een restaurant noemen ze zichzelf niet, eerder een plek voor culinaire snacks.

15
Adres
Linnaeusstraat 63H,
1093 Amsterdam

Buurtcafé de Tros

De eigenaars van dit (anders dan de naam zou vermoeden) restaurant zijn door de wol geverfd.  Het leuk hier is dat je aan de bar snacks kunt eten, maar ook aan tafel uitgebreid kunt dineren. Denk aan gerechten als dun gesneden rib-eye met balsamico mayonaise, pecorino en kappertjes of verschillende soorten kool met een hollandaise saus.

Brouwerij ’t IJ
16
Adres
Funenkade 7,
1018 AL Amsterdam

Brouwerij 't IJ

Brouwerij 't IJ is een bier brouwerij gevestigd in een oud badhuis en is goed te herkennen, omdat deze naast de molen De Gooyer ligt. Ze maken speciaalbieren en deze zijn gewoon gemaakt van Amsterdams leidingwater. Het begon ooit als een kleinschalige ambachtelijke bierbrouwerij met twee soorten bier, maar inmiddels heeft het merk ook bekendheid gekregen buiten Amsterdam en heeft het assortiment zich flink uitgebreid. Proef bijvoorbeeld de bekende 'natte', 'zatte' en IJwit of probeer één van de seizoenbieren; zoals 'PaasIJ' of 'IJndejaars'. De brouwerij heeft ook een proeflokaal en een groot zonnig terras met een aanlegsteiger.

Schermafbeelding 2023-01-25 om 14.57.20
17
Adres
Eerste Van Swindenstraat 423,
1093 GB Amsterdam

Toko Bersama

Bij Toko Bersama kan je terecht voor authentieke Indonesische gerechten. Van heerlijke roti tot rames en van soepen tot snacks, er is voor ieder wat wils. Van de rijsttafel zijn er verschillende varianten beschikbaar, van klein (voor één persoon) tot extra compleet. Deze kan (desgewenst) volledig vegetarisch worden geserveerd. Bij de normale rijsttafel ( van €36), voor twee personen, kies je zelf twee basis-, drie vlees- en drie groente- of sojagerechten. Standaard komen daar kroepoek, seroendeng, tempé en sambal bij. De rijsttafel biedt de mogelijkheid om de verschillende Indonesische gerechten te proberen.

image
18
Adres
Eerste Van Swindenstraat 581,
1093 LC Amsterdam

Bar Botanique

Gezellig wat drinken in de groene oase van Bar Botanique. Een hippe bar waar je terecht kan voor alle soorten drankjes, lunch, pizza's, burgers en een driegangenmenu. Neem bijvoorbeeld de 'pulpo' als voorgerecht (anijs-doperwtencrème, pomme paille, chorizopoeder) een langoustine bisque als hoofdgerecht (gebakken zeeduivel, gamba's, la ratte aardappelen, seizoensgroenten) en de chocolade bavaroise (honeycomb, koekjes bodem, saus van dulce de leche met zeezout) als dessert.

de+Plantage-Buiten+Herfst-129+copy
19
Adres
Plantage Kerklaan 36,
1018 CZ Amsterdam

De Plantage

Bij De Plantage kom je voor de klassieke, statige Amsterdamse grandeur. Bij de bijzondere plek naast/in Artis kan je terecht voor alles en meer: een prima kop koffie met een ontbijtje, een snelle of langzame lunch of een uitgebreid diner. De plek voelt groot aan bij binnenkomst, maar de inrichting is intiem. Laat je verrassen door de Plats de Plantage van de chefs, of kies uit de vele à la carte opties. Laat zeker de Hemelse Modder als dessert niet aan je voorbij gaan.

blog-1
20
Adres
Plantage Middenlaan 30A,
1018 DG Amsterdam

Box Sociaal

Box Sociaal is in de eerste plaats een ontbijt- en brunchrestaurant, maar biedt ook diner- en drankopties aan. Het menu is geïnspireerd op Australië. De gerechten worden bereid met duurzame en lokale producten. Voor vegetariërs en veganisten is er goed nieuws: alle vleesburgers kunnen worden vervangen door de 'Beyond Meat Burger'. Geniet van een kwalitatieve brunch, lokaal gebrande koffie, zorgvuldig geselecteerde natuurwijnen, op maat gemaakte cocktails en heerlijke speciaalbieren.

buko-by-night-1200x800_1
21
Adres
Oosterpark 10,
1092 AE Amsterdam

Bar Bukowski

Bar Bukowski zit tegenover de ingang van het OLVG-Oost en het Oosterpark. Je kan hier terecht voor ontbijt, lunch of om wat te drinken. Bukowski is een hip stadscafé, tevens cocktailbar, met een groot terras. De kaart is divers: hamburgers, salades, broodjes en heerlijke flamkuchen. Het interieur is toegankelijk en gezellig, met een vintage-look. Het personeel is jong en hartelijk. Bukowski is een aanraden voor lange zomeravonden of tussen het werk door.

Schermafbeelding 2022-07-01 om 16.02.08
22
Adres
Oosterpark 10,
1092 AE Amsterdam

Henry's bar

Henry's Bar is het zusje van Bar Bukowski. In dit pand gelegen naast de vestiging van Bar Bukoski aan het Oosterpark worden op donderdag-, vrijdag- en zaterdagavond de lekkerste cocktails bereid; geïnspireerd door citaten van Bukowski. Geniet van een drankje met de naam "Writer's Block"of "Lady B." of laat je verrassen door "The Bartender's Choice". Als je toch liever een fris, biertje of een glas wijn drinkt kan dat natuurlijk ook!

Boodschappen
23
Adres
Eerste Van Swindenstraat 16,
1093 GD Amsterdam

Authentic India

In het hart van stadsdeel Oost in Amsterdam vind je Authentic India, haal je heerlijke Indiase samosa's. Deze knapperige, driehoekige flapjes van filodeeg zijn gevuld met allerlei lekkernijen, zoals aardappelen, erwten en kruiden. Naast de traditionele samosa's biedt Authentic India ook verschillende andere Indiase gerechten, waaronder tandoori kip en curry's. De naam zegt het al, maar als je op zoek bent naar authentiek Indiaas eten in Oost, dan is Authentic India zeker een bezoek waard.

63190709_2245453812169463_1319492671491801088_n
24
Adres
Wittenburgergracht 303,
1018 ZL Amsterdam

Frank's Smokehouse

Al meer dan twintig jaar bevindt Frank’s rokerij zich in Amsterdam, nog op dezelfde plek waar de eerste echte winkel werd geopend op de Wittenburgergracht. Al in 1984 leerde Frank forel roken in Zweden en zo werd hij gegrepen door de simpele oervorm van conserveren. Toen hij hier in Amsterdam mee verderging in zijn achtertuin werden eerst vrienden zijn klant en groeide zo uit tot een gevestigde rokerij. Als je erlangs loopt kan je de geur van de ambachtelijke gerookte vis en vlees al buiten ruiken.

51528013_2317403371850340_7532180912608378880_n
25
Adres
Roetersstraat 21,
1018 WE Amsterdam

De Bakkerszonen

Bij De Bakkerszonen kun je dagelijks terecht voor de lekkerste broden, taarten, en croissants. Deze zaak heeft meerdere vestigingen in Amsterdam, waaronder een vestiging in Noord en een vestiging bij Roeterseiland. De Bakkerszonen is opgericht door twee bakkerszonen die het werk van hun vader nieuw leven wilden inblazen. Deze bakkerij ademt vakmanschap en hard werk. De kwaliteit van het brood is uitmuntend en niet vergelijkbaar met brood uit de supermarkt. Een bezoekje aan deze bakker doet je weer beseffen hoe lekker brood kan smaken.

Uitgelicht; Notting Hill in Amsterdam

Uitgelicht; Notting Hill in Amsterdam

Einstein

Einstein

Aziatisch eten in Amsterdam, de keuze is reuze

Aziatisch eten in Amsterdam, de keuze is reuze

Recent bekeken
Overzicht alle woningen

Deze site maakt gebruik van cookies.

Voor welke cookies geef je akkoord?