Licht appartement van 64 m² met balkon, gelegen op eigen grond op een van de leukste locatie in West. Het appartement beschikt over een woonkamer met 3 grote ramen, open keuken, twee slaapkamers en badkamer met onder andere een ligbad. De woonkamer kijkt uit over de gracht van de Jacob van Lennepkade.

Rondleiding
De gemeenschappelijke entree geeft toegang tot de woning op de eerste verdieping. Er is een ruim trappenhuis. De woonkamer aan de voorzijde heeft drie ramen en benadrukken de breedte van het huis. Tevens is er zicht naar de gracht aan de Jacob van Lennepkade. Aan de voorzijde ligt de woonkamer, breed en licht, met uitzicht op de rustige straat en de gracht. De keuken is centraal gesitueerd en logisch verbonden met het zit- en eetgedeelte. Door de open indeling ontstaat een leefruimte waarin koken, wonen en tafelen samenkomen. De houten vloer loopt drempelloos door, wat het geheel rustig en ruimtelijk maakt. Aan de achterzijde bevinden zich twee slaapkamers, gescheiden van het leefgedeelte. Beide slaapkamers bieden toegang tot het balkon. De hoofdslaapkamer biedt ruimte voor een bed. grote kast en zitplek. De tweede kamer is compact, maar functioneel. De badkamer is slim geplaatst in het hart van de woning en is voorzien van zowel een ligbad als een inloopdouche. Naast de badkamer bevinden zich het separate toilet en de wasruimte. Het balkon ligt op het zuiden en is bereikbaar via openslaande deuren. De ligging in de luwte van het bouwblok zorgt voor privacy, terwijl er volop zonlicht is gedurende de dag. De locatie is ideaal: rustig, maar centraal. Alles ligt binnen handbereik — van buurtwinkels tot het Vondelpark en van koffiebars tot cultuur. Een plek die uitnodigt tot blijven.

Buurtgids 
De woningen zijn gelegen op één van de mooiere locaties van Amsterdam West. Dichtbij de grachtengordel en op loopafstand van de Bosboom Toussaintstraat en het Vondelpark.
Een omgeving met een uitgebreide diversiteit aan horeca gelegenheden en cultuur ( De Hallen). Daarnaast is er bijvoorbeeld de Ten Kate markt, foodhallen de gezellige Elandsgracht om de hoek.

Bijzonderheden
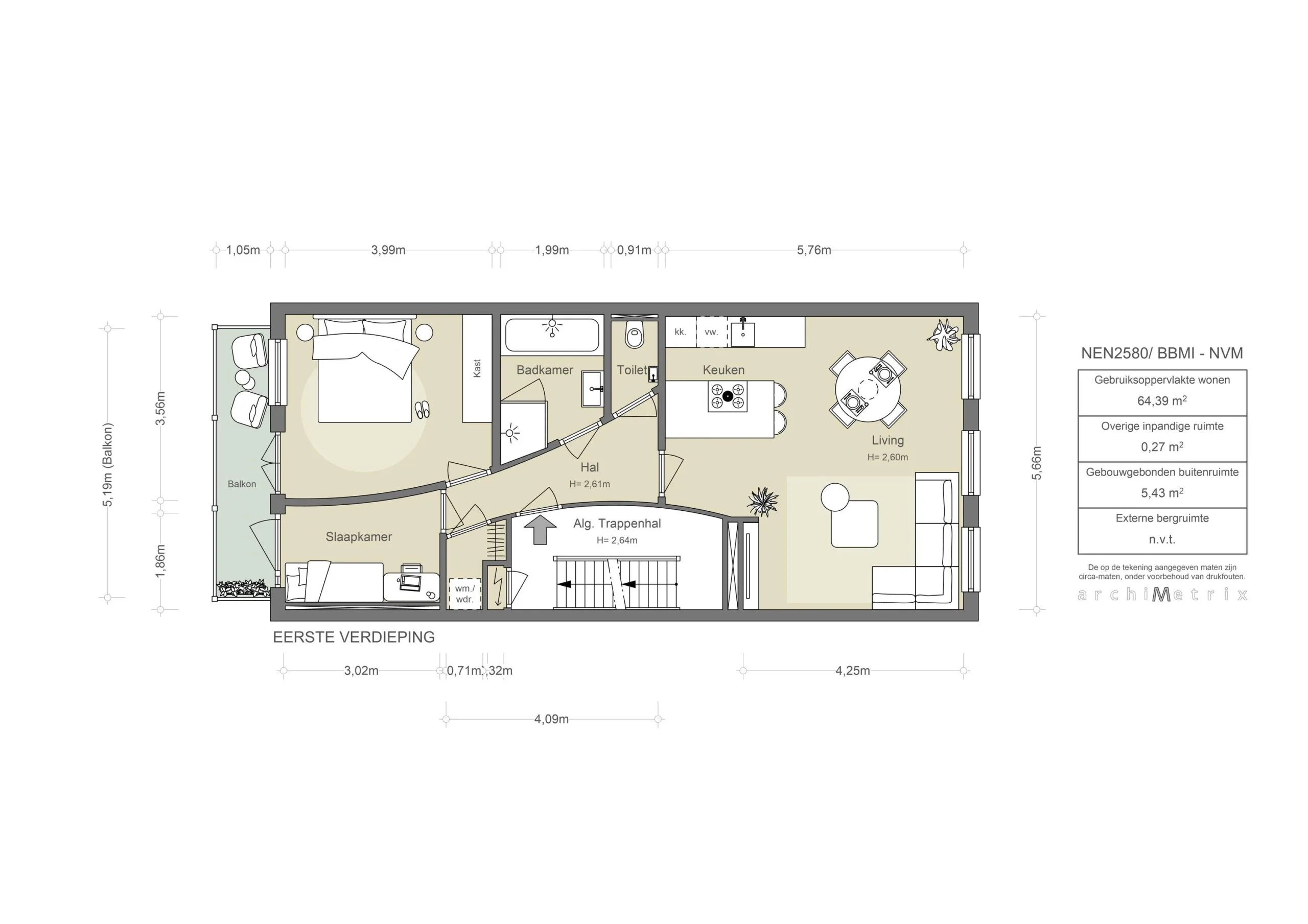
•    Gebruiksoppervlakte wonen 64,26 m²
•    Balkon op het zuiden 
•    Plafondhoogte van 2.58 meter
•    Zicht naar de gracht aan de Jacob van Lennepkade 
•    Gelegen op eigen grond
•    Perfecte locatie tussen het mooiste gedeelte van Oud-West op loopafstand van de Bosboom Toussaintstraat, het Centrum nabij de negen straatjes en de Elandsgracht
•    Gerenoveerd in 2024

Deze informatie is door ons met de nodige zorgvuldigheid samengesteld. Onzerzijds wordt echter geen enkele aansprakelijkheid aanvaard voor enige onvolledigheid, onjuistheid of anderszins, dan wel de gevolgen daarvan. Alle opgegeven maten en oppervlakten zijn slechts indicatief
De Meetinstructie is gebaseerd op de NEN2580. De Meetinstructie is bedoeld om een meer eenduidige manier van meten toe te passen voor het geven van een indicatie van de gebruiksoppervlakte. De Meetinstructie sluit verschillen in meetuitkomsten niet volledig uit, door bijvoorbeeld interpretatieverschillen, afrondingen of beperkingen bij het uitvoeren van de meting

AM106684-2073777-Jacob-van-Lennepstraat-37-1,-Amsterdam-247692678

JACOB 37
Licht en efficiënt ingedeeld appartement op een toplocatie in Oud-West.
Op een geliefde locatie in Amsterdam Oud-West bieden wij dit lichte en prettig ingedeelde appartement aan. De woning is gelegen op de eerste verdieping van een goed onderhouden pand uit begin 1900 en is met zorg en smaak bewoond. Vanuit de woonkamer is er fraai zicht op de rustige Jacob van Lennepkade. Dankzij de centrale ligging bevindt u zich op korte afstand van het Vondelpark, De Hallen, het Centrum en diverse horecagelegenheden in de buurt van de Bosboom Toussaintstraat. Een uitstekende plek voor wie comfortabel wil wonen in een levendige, doch rustige omgeving.


Jelle Mundt | Makelaar Broersma Wonen
Merel Schrijver | Makelaar Broersma Wonen
AM106684-2073777-Jacob-van-Lennepstraat-37-1,-Amsterdam-247692676
Designvisie

De woning aan de Jacob van Lennepstraat maakt onderdeel uit van een bouwblok dat ontstaan is omstreeks 1900. In deze periode vergrootte Amsterdam zijn leefbaarheid en wooncapaciteit. De eerste ring van de stadsuitbreiding was aan de zuidwest kant van de grachtengordel. De kenmerkende bouwperiode is vooral zichtbaar aan de verdeling van de drie ramen en de gevels. Deze woning op de eerste verdieping is doordacht van opzet en verrassend ruim in beleving. De plattegrond laat een heldere tweedeling zien: wonen aan de straatzijde, slapen aan de rustige achterzijde. De woonkamer beslaat de volle breedte van het appartement en heeft zicht op de kade. Grote ramen zorgen voor veel daglicht, terwijl de plafondhoogte het gevoel van ruimte versterkt. De keuken is centraal gepositioneerd en vormt een logisch en verbindend element tussen de functies. Aan de achterzijde bieden de slaapkamers rust en privacy, met directe toegang tot het balkon. De badkamer is centraal geplaatst en praktisch van formaat. Alles in deze woning is efficiënt ingericht en smaakvol afgewerkt.

AM106684-2073777-Jacob-van-Lennepstraat-37-1,-Amsterdam-247692674
AM106684-2073777-Jacob-van-Lennepstraat-37-1,-Amsterdam-247692682
AM106684-2073777-Jacob-van-Lennepstraat-37-1,-Amsterdam-247692680
AM106684-2073777-Jacob-van-Lennepstraat-37-1,-Amsterdam-247692690
Wonen en koken

De woonkamer ligt aan de voorzijde en profiteert van drie grote ramen met uitzicht op de straat en de kade. De brede maatvoering en de open indeling zorgen voor een efficiënte, goed bruikbare ruimte met daglicht over de hele breedte. De afwerking is recent gemoderniseerd en uitgevoerd in rustige, neutrale tinten. De houten vloer in visgraat legt een consistente basis door het hele appartement. Centraal in de ruimte bevindt zich de keuken, die door het eiland logisch wordt verbonden met de eet- en zithoek. De keuken is greep loos afgewerkt, voorzien van moderne inbouwapparatuur en uitgevoerd met een licht werkblad in natuursteen. De barfunctie aan het eiland creëert extra zitplaatsen en maakt informeel gebruik van de ruimte mogelijk. Door de open plattegrond en het gebruik van één doorlopende vloer ontstaat een praktische leefruimte, geschikt voor dagelijks gebruik en eenvoudig in te richten.

Jacob van Lennepstraat 37-1-5
AM106684-2073777-Jacob-van-Lennepstraat-37-1,-Amsterdam-247692694
Jacob van Lennepstraat 37-1-12
Jacob van Lennepstraat 37-1-13
AM106684-2073777-Jacob-van-Lennepstraat-37-1,-Amsterdam-247692696
AM106684-2073777-Jacob-van-Lennepstraat-37-1,-Amsterdam-247692706
AM106684-2073777-Jacob-van-Lennepstraat-37-1,-Amsterdam-247892116
Jacob van Lennepstraat 37-1-26
Slapen en baden

Aan de achterzijde van de woning bevinden zich twee courante slaapkamers. De hoofdslaapkamer biedt voldoende ruimte voor een tweepersoonsbed, een grote kledingkast en een zitplek. Dankzij de ligging op het zuiden en de dubbele ramen met openslaande deuren is er sprake van veel natuurlijk lichtinval. Via deze kamer is het balkon direct toegankelijk. De tweede kamer is functioneel van formaat en geschikt als logeerkamer, kinderkamer of werkkamer en geeft ook toegang tot het balkon. De badkamer ligt centraal in de woning en is smaakvol afgewerkt. Er is gekozen voor een tijdloze combinatie van witte wandtegels, een natuurstenen wastafelblad en een houten wastafelmeubel met opbergruimte. De ruimte is voorzien van een ligbad, een inloopdouche en een handdoekradiator. De indeling is efficiënt en het formaat praktisch in gebruik.

Jacob van Lennepstraat 37-1-24
AM106684-2073777-Jacob-van-Lennepstraat-37-1,-Amsterdam-247692710
Jacob van Lennepstraat 37-1-188
AM106684-2073777-Jacob-van-Lennepstraat-37-1,-Amsterdam-247692716
Jacob van Lennepstraat 37-1-21
Het balkon

Aan de achterzijde van het appartement bevindt zich een balkon van circa 5 m². Het balkon is gelegen op het zuiden en biedt daardoor nagenoeg de hele dag zon. Tegelijk is de ligging beschut, dankzij de omliggende bebouwing. Dit maakt het tot een praktische buitenruimte die zowel voor ontspanning als dagelijks gebruik geschikt is. Het balkon is toegankelijk vanuit beide slaapkamers en biedt ruimte voor een zitje of enkele plantenbakken. De vloer is afgewerkt met houten vlonders en de ruimte is goed bruikbaar binnen het bestaande profiel van de gevel.

Jacob van Lennepstraat 37-1-31
Jacob van Lennepstraat 37-1-32
Jacob van Lennepstraat 37-1-31
Jacob van Lennepstraat 37-1-34
Buurtgids

De Jacob van Lennepstraat is gelegen in het rustige, groene deel van Oud-West, nabij de Bosboom Toussaintstraat en de Jacob van Lennepkade. De directe omgeving biedt een mix van karakteristieke bouw uit begin 1900, veel groen en een breed aanbod aan winkels en horecagelegenheden. De ligging is centraal en goed bereikbaar: het Vondelpark, De Hallen en het Centrum zijn op loop- of fietsafstand. Diverse tram- en buslijnen stoppen op korte afstand en ook met de auto is de woning goed aan te rijden. Parkeren geschiedt via vergunning.

Bereikbaarheid
De woning is gelegen in de luwte van de Nassaukade, een van de belangrijkrijke toegangswegen. Tevens is er een goede bereikbaarheid middels de Overtoom via de afrit S106 via de Ringweg A10. Openbaar vervoer stopt op de Bilderdijkstraat. ( ca 2 minuten lopen)

Parkeergelegenheid
Parkeren is mogelijk via een vergunningenstelsel op de openbare weg (vergunningsgebied West-11.3.).
Met een parkeervergunning voor West-11.3 mag u parkeren in West-11. Een parkeervergunning voor bewoners kost € 177,08 per 6 maanden. Momenteel is er voor dit vergunningsgebied een wachttijd van 3 maanden. Een tweede parkeervergunning is in dit gebied niet mogelijk. (Bron: Gemeente Amsterdam, oktober 2025).

AM106684-2073777-Jacob-van-Lennepstraat-37-1,-Amsterdam-247692696
Jacob van Lennepstraat 37-1-4
AM106684-2073777-Jacob-van-Lennepstraat-37-1,-Amsterdam-247692688
Kenmerken
Jacob van Lennepstraat 37-1, Amsterdam
Vraagprijs
  • € 645.000 k.k.
Beschikbaarheid
  • In overleg
Vertrekken
  • 3 kamers
  • 2 slaapkamers
  • 1 badkamer
Onderhoud
  • Intern: Goed
  • Extern: Goed
Oppervlakten & Inhoud
  • Woonoppervlakte: 64 m²
  • Gebouwgebonden buitenruimte: 6 m²
Bouwjaar
  • 1882
Installaties
  • Natuurlijke ventilatie
  • TV kabel
Ligging
  • In woonwijk
Parkeren
  • Betaald parkeren
  • Parkeervergunningen
Type verwarming
  • CV Ketel
Type warmwater
  • CV Ketel
Bestemming
  • Woonruimte
Eigendomssoort
  • Volle eigendom
Buitenruimte
  • Geen tuin
  • Balkon
Kadastraal
  • Gemeente: Amsterdam
  • Sectie: Q
  • Nummer: 8196
Duurzaamheid
  • Dubbel glas
  • Vloerisolatie
  • Energielabel B
Soort
  • Appartement
  • Bovenwoning
Welke woonlaag
  • 2e
Overige kenmerken

OZB ('25) € 301,77 per jaar
Rioolrecht ('25) € 185,20 per jaar
Servicekosten VvE € 80,- per maand

Plattegrond
Jacob van Lennepstraat 37-1, Amsterdam
AM106684-2073777-Jacob-van-Lennepstraat-37-1,-Amsterdam-248016738
Documenten
Jacob van Lennepstraat 37-1, Amsterdam
Locatie
Jacob van Lennepstraat 37-1, Amsterdam
Eten & drinken
Schermafbeelding 2022-06-20 om 19.00.24
01
Adres
Bilderdijkstraat 203,
1053 KS Amsterdam

De Japanner

De Japanner is inmiddels een fenomeen geworden in zowel de Pijp als in Oud-West. Het concept is simpel en straight-forward: heerlijk Japans fingerfood wat gepaard gaat met ofwel een cocktail, Japans biertje, saké of een non-alcoholisch alternatief natuurlijk. Het komt dan ook niet als een verassing dat de reviews over de Japanner lovend zijn, waarbij vooral het vriendelijke personeel als de lekkere hapjes worden uitgelicht.

272906180_4754289304606196_2316678134679603007_n
02
Adres
Bosboom Toussaintstraat 26,
1054 AS Amsterdam

Café Toussaint

Café Toussaint is een gezellig buurtcafé waar je terecht kunt voor het ontbijt tot het diner en voor snacks en cocktails. De gerechten worden geserveerd in een klein eetgedeelte met uitzicht op de open keuken of op het heerlijke grote buitenterras. Verveling bestaat niet in Toussaint. Ze hebben er kasten vol spelletjes, een jeu de boules baan en afhankelijk van het seizoen hebben ze er mosselfestijnen, barbecue-events of wijnproeverijen.

275843270_493096732309075_1709426496827556956_n
244372554_393432455608837_1440249416982792851_n
03
Adres
Bosboom Toussaintstraat 28-H,
1054 AS Amsterdam

Gertrude

Gertrude is een bar en restaurant waar je terecht kan voor een steengoede maaltijd. Er wordt hier met de seizoenen meegekookt en de nadruk ligt vooral op seizoensgroenten en verantwoorde vis- en vleessoorten. Denk aan gepekelde sardientjes met rucola-olie, pappardelle met ragù of afsluiten met perencrumble met zure room en kazen van Kef. Het interieur bestaat uit mooie antieke stukken wat zorgt voor een chique maar ook huiselijke sfeer. Doordeweeks kan je hier dineren en in het weekend kan je hier ook lunchen.

04
Adres
Bilderdijkstraat 208H,
1053 LG Amsterdam

Soenes roti

Het is een feit dat de roti van Soenessardien een groot succes is, maar daarnaast serveert hij ook andere populaire keuzes zoals de bara, een gefrituurd gekruid deeg met bijvoorbeeld garnalen of lam. Bij de nasi en bami worden groenten en salade geserveerd en de grillgerechten  hebben een heerlijke Surinaamse twist. Er komen voornamelijk buurtbewoners, maar ook steeds meer toeristen hebben deze plek ontdekt. Je kan ook via de website het eten thuis laten bezorgen.

 

312331621_1088836571776973_4262642838619724150_n
294589445_714591559836108_6334057245334888778_n
05
Adres
Nassaukade 330 H,
1053 LT Amsterdam

Cafecito

Cafecito is een onderdeel van de Cafecito-franchise, een Amsterdamse koffiebranderij die besloot koffiezaken te openen om hun eigen afzet te stimuleren toen de verkoop aan horecagelegenheden tijdens de pandemie stagneerde. Cafecito heeft al drie vestigingen in Amsterdam en één in Rotterdam. De Nassaukade-locatie is de nieuwste toevoeging, geleid door onderneemster Chow, die eerder twee bubble tea-winkels bezat. Ze heeft nu haar eigen Cafecito, waar ze professionele barista's in dienst heeft voor het bereiden van koffie, inclusief de trots van de zaak: cold brew. Naast diverse koffiesoorten bieden ze kleine cakejes en hun eigen koffieblend voor thuisgebruik aan.

275335010_978007842873510_9036372361978497498_n
294431600_369850948563647_4204512199247441432_n
06
Adres
Bilderdijkstraat 164 H,
1053 LC Amsterdam

Brioche.

Deze gloednieuwe bakkerij is gespecialiseerd in (zoals je waarschijnlijk verwacht) Franse brioche. Ze bieden een selectie van zoete broodjes met klassieke smaken zoals kardemom en kaneel, en nog wat anderen zoals bessen en praline. Ze hebben ook hartige specialiteiten zoals een brioche met zalm en roomkaas.  Ze zijn geopend op woensdag tot en met vrijdag van  8.00 to 17.30 en zaterdag en zondag van 9.00 tot 17.00

©rachelecclestone_PEPS-INTERIORS__September-09-2025_DSC07510
07
Adres
Bilderdijkstraat 158H,
1053 LC Amsterdam

Peps

Peps is een Spaanse wijn- en eetbar in Oud-West met een keuken onder leiding van chef Raymond van Welzenis, die eerder bij BAUT werkte en hier een creatieve draai geeft aan tapas en pinchos met finesse en smaak. De kaart telt meer dan zestig kleine gerechten, van klassiekers zoals pimientos de padrón en pulpo tot oesters op ijs, ideaal om te delen met vrienden of bij de borrel. Het menu combineert Spaanse traditie met een moderne, informele setting waarin brunch, diner en cocktails moeiteloos in elkaar overlopen.

downloadgram.org_609930707_18074677673366171_2740458049347652876_n
downloadgram.org_610631877_18074677631366171_1146120732393511510_n
08
Adres
Bilderdijkstraat 140,
1053 LA Amsterdam

SILK

SILK is het buurtrestaurant van Limau Chen, bekend van nNea Pizzeria en de Salvo Patisseries, die hier bewust teruggrijpt op haar eigen roots na jaren in de Italiaanse horeca te hebben gewerkt. In de keuken staat chef Paolo Manzo, die samen met Chen een keuken neerzet die geen fusion wil zijn, maar een culturele dialoog tussen Oost en West. Hun gerechten volgen grofweg de lijn van de Zijderoute, met invloeden uit Azië en Zuid-Europa die elkaar ontmoeten in uitgesproken, seizoensgebonden borden. Denk aan gefrituurde hele zeebaars op Aziatische wijze, naast pasta-achtige structuren, frisse zuren en diepe umami-tonen.

1519ee_6ac76a1674b441f1abb675ca34e30f4d_mv2
09
Adres
Eerste Constantijn Huygensstraat 41H,
1054 BR Amsterdam

The Bab

Het Koreaanse restaurant The Bab heeft de authentieke smaak die je zou verwachten van een Koreaans restaurant, maar dan zonder al te fancy te zijn. Eigenaren Junghun Pyo en zijn vrouw Haksun (Sunny) Kim willen namelijk dat mensen zich op hun gemak voelen bij hen en casual Korean food kunnen proeven. Het eerste waar je aan moet denken als je denkt aan Koreaans eten zijn de gerechten bibimbap en gefrituurde kip. De bibimbap bevat rijst, groenten en een rauw ei. De gefrituurde kip is bereid met een speciale Koreaanse kruidenmix. Een ander populair gerecht dat je bij The Bab kunt bestellen zijn de kimchipannenkoeken. Deze pannenkoekjes zijn gevuld met ui en kimchi, een gefermenteerde kool die steeds populairder wordt in het westen.

263151911_4984840728206347_6656739176783290457_n
10
Adres
Kinkerstraat 112,
1053 ED Amsterdam

LOT61 Coffee Roasters

Op de hoek in de Kinkerstraat zit koffiebranderij LOT61. Je kan hier naast verse bonen – heerlijk ruiken - terecht voor een sterke, goeie bak koffie, ontbijt en bakkerijproducten. De gemoedelijke ruimte, ingericht met hout en metrotegels zorgt ervoor dat je hier uren zou willen zitten. Hun missie is om de meest circulaire koffiespecialiteitsmerk ooit te zijn. Probeer ook de chocolate chip cookies, ook wel ‘crack cookies’ genoemd, maar pas op want ze zijn verslavend.

180661497_109525414592089_5524060405684313540_n
199541340_112181734417905_7498033300373632292_n
11
Adres
Looiersgracht 144,
1016 VT Amsterdam

Café de Jonge Wees

Café De Jonge Wees, gelegen aan de Looiersgracht 144, is een typische bruine buurtkroeg die de basis legt voor de welbekende Amsterdamse gezelligheid met een uitgebreide selectie bieren, jenevers en borrelhappen. Hier is altijd Ajax te zien en dankzij het zonnige terras kun je zowel binnen als buiten van de sfeer genieten. Bovendien is Café De Jonge Wees het zusje van Proeflokaal A. Van Wees, wat betekent dat alle jenevers die in de Jordaan worden geschonken afkomstig zijn van A. Van Wees Distilleerderij de Ooievaar in Amsterdam.

277274092_570465227271282_2863090128467155428_n
321728804_132502672992041_1979043488818020825_n
12
Adres
Kinkerstraat 122,
1053 ED Amsterdam

Paindemie

Tijdens de lockdown ontstond Paindemie als een creatieve uitlaatklep voor chefs die hun culinaire passie wilden delen. Geïnitieerd door Guillaume de Beer van The Breda Group, biedt Paindemie een unieke ervaring met royale burgers, tosti's en sandwiches in een ruimte geïnspireerd op een Japans metrostation. De burgers worden bereid met ethisch Nederlands geitenbokkenvlees, terwijl vegetariërs kunnen genieten van huisgemaakte smashburgers van Redefine Meat. Het hoogtepunt? The BIG Mie, een ode aan de Big Mac. Bovendien pronkt de wijnkaart met zorgvuldig geselecteerde natuurwijnen, sake's en cocktails, allemaal geserveerd in de charmante art deco-bar.

downloadgram.org_582764027_17859423015564300_3438836274206826094_n
13
Adres
Kinkerstraat 122,
1053 ED Amsterdam

MOYŌ

Chef en eigenaar Guillaume de Beer (eerder van Bar Gui) startte MOYŌ als een intiem restaurantconcept waarin luxe en focus centraal staan. In true Paindemie-stijl serveert hij een chef’s choice tasting menu van vijf of acht gangen, opgebouwd rond twee van de meest verfijnde Japanse ingrediënten: toro en wagyu. Deze producten vormen het hart van de keuken en bepalen het karakter van de hele ervaring. De stijl is uitgesproken en precies, met gerechten die draaien om rijkdom, textuur en pure smaakbeleving. De ambiance is exclusief en warm, een verborgen plek voor gasten die bewust kiezen voor een bijzondere avond uit.

325749984_906537340772511_1825606846932047451_n
14
Adres
Bilderdijkstraat 116,
1053 KZ Amsterdam

Toko Bersama

Bij Toko Bersama kan je terecht voor authentieke Indonesische gerechten. Van heerlijke roti tot rames en van soepen tot snacks, er is voor ieder wat wils. Van de rijsttafel zijn er verschillende varianten beschikbaar, van klein (voor één persoon) tot extra compleet. Deze kan (desgewenst) volledig vegetarisch worden geserveerd. Bij de normale rijsttafel ( van €36), voor twee personen, kies je zelf twee basis-, drie vlees- en drie groente- of sojagerechten. Standaard komen daar kroepoek, seroendeng, tempé en sambal bij. De rijsttafel biedt de mogelijkheid om de verschillende Indonesische gerechten te proberen.

360140550_18370084879023426_5307795712086357556_n
15
Adres
Bilderdijkstraat 113,
1053 KN Amsterdam

Skina

Skina heeft een minimalistische maar toch funky uitstraling en serveert uitstekende koffie. De bonen worden gebrand door Rush Rush coffee. Ze serveren ook andere warme en verfrissende koude dranken zoals citroenlimonade. Daar kan je gebak bij krijgen zoals een plak marmercake, kaneelcroissant of brioche met sinaasappelen. Of ze bieden sandwiches aan, zowel plantaardige-als vleesopties geserveerd op heerlijk focaccia brood.

187513275_541642613509567_7586706852571280627_n
16
Adres
Eerste Constantijn Huygensstraat 63H,
1054 BT Amsterdam

Uncommon

In de levendige Eerste Constantijn Huijgenstraat biedt Uncommon een unieke koffie- en eetervaring. De oprichters, Clay en Josh, gaan verder dan de bekende koffiebronnen.  Ze halen ook bonen uit ongewone plantages in Myanmar en Indonesië, die ze vervolgens zelf branden. Bij elke geserveerde kop koffie voelen ze de verplichting om een eerbetoon te brengen aan de koffieproducent. Deze toewijding aan bijzondere koffie strekt zich ook uit naar het menu, waar vegetarische of vegan gerechten altijd een ongebruikelijk ingrediënt bevatten. Ondanks de drukte van de straat biedt het minimalistisch stijlvolle interieur van Uncommon een zen-achtige sfeer.

17
Adres
Eerste Constantijn Huygensstraat 82,
1054 BX Amsterdam

Koffiesalon

De allerlekkerste Italiaanse koffie gemaakt door goede barista’s. De service is heel erg goed en je proeft dat de koffie gemaakt is door experts. Je kan hier ook terecht voor simpele en lekkere ontbijthapjes. Ze hebben hier take-away maar even binnenzitten is ook mogelijk. De koffiesalon heeft meerdere vestigingen in de stad.

IMG_0015
18
Adres
Bilderdijkkade 27,
1053 VH Amsterdam

Berry

Berry Amsterdam is een hotspot voor sapjes, smoothies, koffie en meer. Dit koffie/lunchtentje kun je vinden op de Bilderdijkkade. Het gezellige en warme interieur doet door de vele planten en boeken denken aan een huiskamer. Daarnaast hebben ze een heerlijk terras waar je van de zon kan genieten. De meeste producten zijn biologisch en hier geen gelaptop – Berry Amsterdam is zoals ze zelf zeggen: een wifi-vrije zone!

19
Adres
Elandsgracht 140h,
1016 VC Amsterdam

Dutch Dabbawala

Dutch Dabbawala, een Indiaas restaurant aan de Elandsgracht, is zo vaak getipt dat men er móét bestellen. De butterchicken momo’s zijn een absolute must-try en werden meteen een favoriet. Het restaurant heeft een moderne twist aan klassieke Indiase gerechten gegeven en biedt ook een groot aantal vegetarische opties. Naast de momo's staan er op het menu ook andere lekkernijen zoals samosa's en verschillende curry's. Bestellen kan zowel voor afhaal als bezorging.

362281468_17877326531919863_8876445204828833093_n
20
Adres
Kinkerstraat 142 C-H,
1053 EG Amsterdam

Hawawshi

Boodschappen
downloadgram.org_496874981_17848936944460251_3669236045324019553_n
21
Adres
Bosboom Toussaintstraat 70,
1054 AV Amsterdam

Zicami Market

Zicami Market is een tweemaandelijkse Italiaanse markt, opgezet door Camilla, bekend van het patisseriemerk La Torta di Camilla. Vanuit haar liefde voor haar roots brengt ze in Amsterdam een zorgvuldig geselecteerde groep Italiaanse foodmakers samen. Bezoekers wandelen langs kraampjes met cannoli, handgemaakte pasta, ambachtelijke sauzen, charcuterie, kazen, olijfolie en dolci, alsof je even door een Siciliaans dorp loopt. De kracht van Zicami zit niet alleen in het eten, maar in de sfeer: espresso aan kleine tafels, Italiaanse muziek en het gevoel van een buurtmarkt waar iedereen elkaar ontmoet. Je vindt de markt elke eerste en derde zaterdag van de maand aan de Bosboom Toussaintstraat 70.

 

324881858_834540850983260_7922799188280236168_n
22
Adres
Elandsgracht 113,
1016 TT Amsterdam

Vindict wine

Vindict wine is te vinden aan de rand van de Jordaan op de Elandsgracht. Omdat ze niet alleen van wijn houden maar ook van ontwerpen en bouwen, hebben ze deze prachtplek een eigen en duurzaam design gegeven. Elk onderdeel van de winkel heeft een vorig leven gekend. Zo is de vloer gemaakt van steenschotten uit oude steenfabrieken en worden de wijnen gepresenteerd in schoenen kasten uit de Puma-fabriek van het voormalige Tsjecho-Slowakije.  Er wordt hier elk soort wijn aangeboden: van vijf euro tot een fles Dom Pérignon Champagne. Alle witte, rosé en bubbels zijn gekoeld verkrijgbaar.

288460093_5757378127616106_4944675648070804179_n
23
Adres
Eerste Helmersstraat 63 hs,
1054 DC Amsterdam

Vleck wijnen

Vleck wijnen is een van de eerste wijnimporteurs van natuurwijnen in Nederland. De wijnen worden direct van de boer uit Frankrijk gekocht; van wijngaard naar winkel. Vleck heeft als filosofie om zo min mogelijk in te grijpen bij de natuurlijke processen van het wijn maken, op de wijngaarden wordt niet gewerkt met insecticiden en kunstmest. Kortom; als je houdt van natuurwijn is dit dé plek.

Interieur
Winkel-blauwe-muur2
Wildernis-HR-10-e1505960790573
24
Adres
Bilderdijkstraat 165F,
1053 KP Amsterdam

Wildernis

Bij Wildernis aan de Bilderdijkstraat kun je terecht voor planten, potten, boeken, accessoires en andere groene cadeaus, maar je drinkt er ook de lekkerste kop koffie. Alle producten in de winkel zijn gemaakt met liefde en zorg, en zijn zo duurzaam mogelijk. Kom een kijkje nemen in deze groene oase van rust!

Kunst & cultuur
Sweet-Spills_WEBRES_JDEWAART_10.5.22_43-1920×1080
25
Adres
Bilderdijkstraat 165 C,
1053 KP Amsterdam

Gerhard Hofland

In de loop der jaren is Gerhard Hofland uitgegroeid tot een van de grootste galerieën in Amsterdam, die een grote verscheidenheid aan kunst en kunstenaars vertegenwoordigt. Die zowel werken vanuit abstractie als uit de meer figuratieve kunst. Daarnaast werkt de galerie voortdurend aan het introduceren van internationale kunstenaars bij het Nederlandse publiek, en gaat zij projecten aan met jonge en getalenteerde kunstenaars om hen te ondersteunen bij hun eerste stappen in de professionele kunstwereld.

The Amsterdam Loft

The Amsterdam Loft

Al veertig jaar is Toscanini een begrip in Amsterdam. Maud Moody, een van de oprichters, vertelt hoe het allemaal begon.

Al veertig jaar is Toscanini een begrip in Amsterdam. Maud Moody, een van de oprichters, vertelt hoe het allemaal begon.

Uitgelicht; De Plantage 22

Uitgelicht; De Plantage 22

Onlangs bekeken
Bekijk het overzicht

Deze site maakt gebruik van cookies.

Voor welke cookies geef je akkoord?