Wonen aan het vondelpark.

Gelegen op één van de mooiste plekken van Amsterdam; de Vossiusstraat, met uitzicht op het Vondelpark.

Uniek penthouse door de locatie, eigen parkeerplek, lift, uitzicht en een waanzinnig dakterras met vrij zicht.

Daniël de Bont | Makelaar Broersma Wonen

AM103687-100750-Vossiusstraat-74,-Amsterdam-130352527
AM103687-100750-Vossiusstraat-74,-Amsterdam-130352529
AM103687-100750-Vossiusstraat-74,-Amsterdam-130352523

Een samenvatting
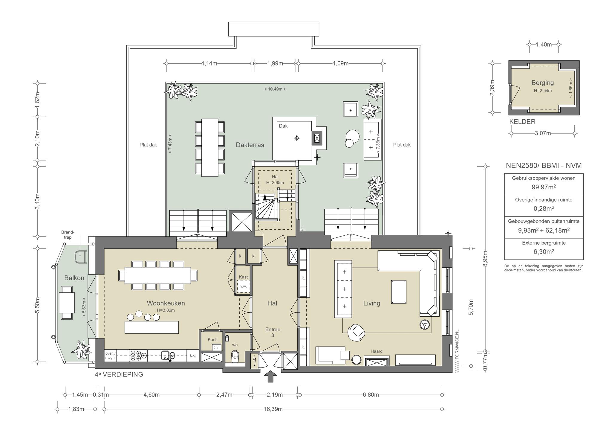
Licht penthouse van 230 m² gelegen aan het stille en doodlopende deel de Vossiusstraat in het prestigieuze complex Parkzicht.

Het penthouse is gelegen op de derde en vierde verdieping van een (ver-)nieuwbouw complex uit 1996, de oorspronkelijke bouw dateert uit 1885. Het gebouw is gelegen op het meest rustige deel van de straat en voorzien van een lift. De woning heeft een doordachte plattegrond met onder andere een ruime woonkeuken, woonkamer met vrij zicht op het park, vier slaapkamers en drie badkamers. Uniek is het zonnige dakterras met vrij zicht over het park. De woning heeft ruim 80 m² buitenruimte

Gelegen op eigen grond. In de onderbouw zijn een privé parkeerplek en twee bergingen.

AM103687-100750-Vossiusstraat-74,-Amsterdam-130352525
AM103687-100750-Vossiusstraat-74,-Amsterdam-130352587
AM103687-100750-Vossiusstraat-74,-Amsterdam-130352524

Een rondleiding
Gemeenschappelijk entree met lift en trappenhuis. Entree op vierde verdieping in ruime hal met gastentoilet en garderobe. Aan de parkzijde is de ruime living met uitzicht over het Vondelpark. De ruimte is prettig licht door de hoge plafonds (meer dan 3 meter) en heeft via de dubbele deuren uitloop naar het terras. Het woonvetrek heeft veel ingebouwde kasten, een gas openhaard en vanuit de vensterbanken is fraai zicht op het park. Aan de achterzijde is de woonkeuken met aansluitend een balkon op het zuiden en het dakterras. De woonkeuken biedt plek aan een grote eettafel en een ruime keuken.

Het dakterras is geheel vrij aan het het park gelegen en heeft vrij zicht over het groen en de vijvers. Door de vrije ligging is er volop privacy en zon.

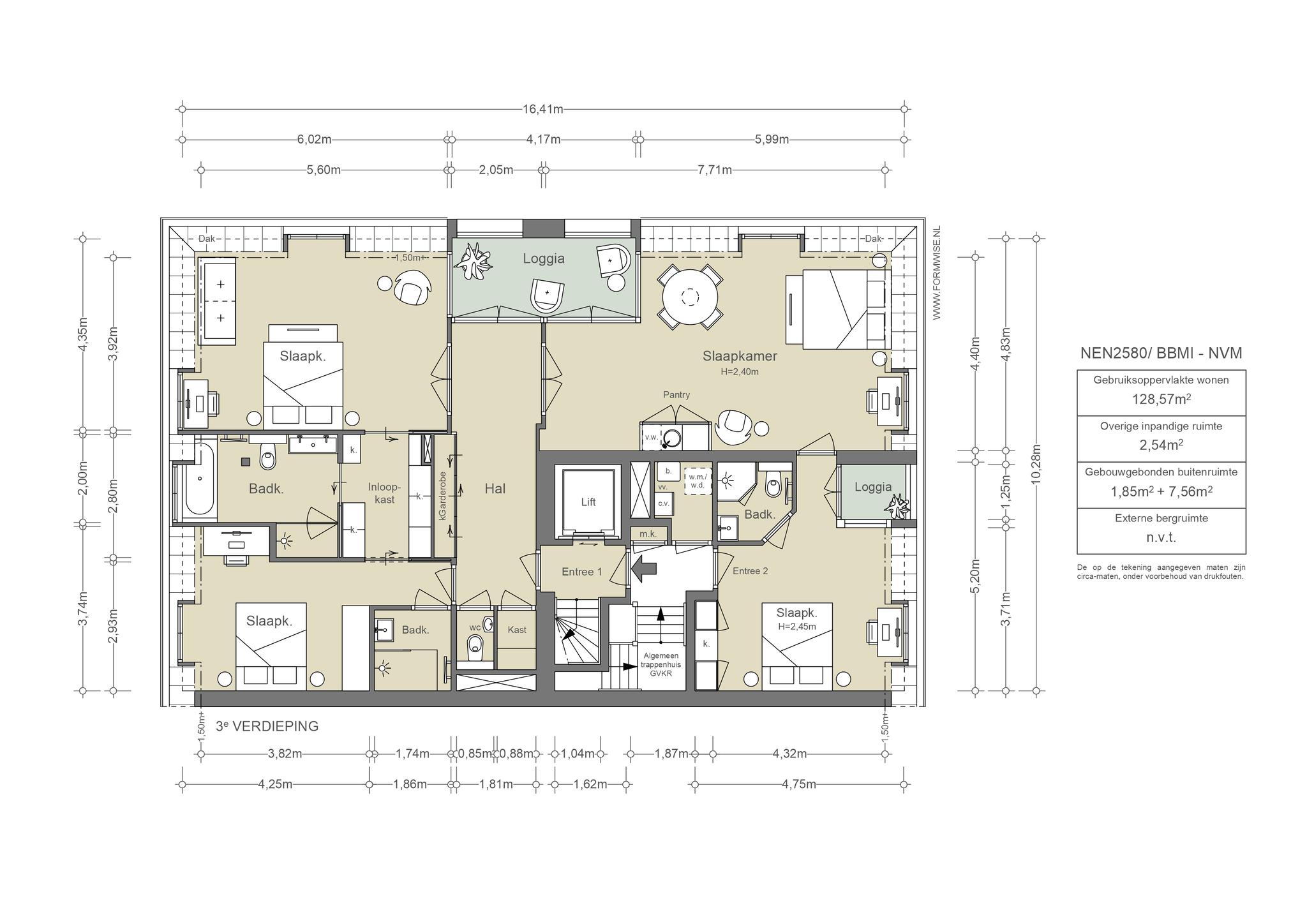
De derde verdieping
Op de derde verdieping zijn in totaal vier (slaap-) kamers. De hoofdslaapkamer heeft en suite een inloopkast en ruime badkamer met ligbad, douche, toilet en dubbele wastafel. De tweede en derde slaapkamer hebben elke een eigen badkamer. De vierde (slaap)kamer is zeer royaal en is te gebruiken als tweede woonkamer, werkkamer, slaapkamer of gastenvertrek door haar kitchenette en toegang tot de naastgelegen slaapkamer. Het vertrek heeft een eigen loggia van circa 8 m² met zicht op het park De derde verdieping heeft een eigen entree en is hierdoor deels apart te gebruik als kantoor aan huis of gasten-appartement.
Voorts zijn er een technische ruimte met wasmachine-aansluiting, vaste kasten, een gastentoilet en twee loggia’s.

AM103687-100750-Vossiusstraat-74,-Amsterdam-130352562
AM103687-100750-Vossiusstraat-74,-Amsterdam-130352569
AM103687-100750-Vossiusstraat-74,-Amsterdam-130352560
AM103687-100750-Vossiusstraat-74,-Amsterdam-130352572
AM103687-100750-Vossiusstraat-74,-Amsterdam-130352554

De buitenruimte
Het meest unieke van dit appartement is het prachtige dakterras met vrij uitzicht over het Vondelpark. Het dakterras is zeer riant met een oppervlakte van 62 m². De woonverdieping is daarnaast ook voorzien van een balkon, grenzend aan de woonkeuken.

AM103687-100750-Vossiusstraat-74,-Amsterdam-130499552
AM103687-100750-Vossiusstraat-74,-Amsterdam-130352540
AM103687-100750-Vossiusstraat-74,-Amsterdam-130352543
AM103687-100750-Vossiusstraat-74,-Amsterdam-130352592

Het gebouw
Het gebouw is in 1885 gebouwd voor het “Instituut voor onderwijs van Blinden”, naar ontwerp van vader en zoon Salm. Andere ontwerpen van Gerlof Salm zijn allerlei gebouwen voor Artis, de directeurswoning aan de Plantage Middenlaan, Paradiso, de Keizersgrachtkerk en de Wintertuin van Krasnapolsky. Zijn zoor Abraham werd alom geprezen voor het ontwerp van het grachtenhuis van de tabaksplanter Nienhuys aan de Herengracht 380-382.
In 1933 werd het Paedologisch Instituut gevestigd in het pand aan de Vossiusstraat: in het doodlopende stukje van de straat bij het Vondelpark, waar nu de brug van de Van Baerlestraat naar de Constantijn Huygensstraat ligt. Het pand onderging na de oorlog een ingrijpende verbouwing, die in 1961 klaar was.
Het gebouw staat nu bekend als project Parkzicht en is destijds ontworpen in Eclectische stijl. Deze stijl is ontstaan voor het gebruik van oude stijlen in een samenhangend nieuw ontwerp.
In 1996-1997 is het pand onder leiding van architect Dik Smeding gerenoveerd en is er aan de rechterzijde een del nieuwbouw toegevoegd. In dit gedeelte zijn de slaapvertrekken gelegen.

AM103687-100750-Vossiusstraat-74,-Amsterdam-130499555
AM103687-100750-Vossiusstraat-74,-Amsterdam-130499548
AM103687-100750-Vossiusstraat-74,-Amsterdam-130352593

De omgeving
Gelegen in het prestigieuze project Parkzicht. Een gebouw dat zich kenmerkt door de ruime appartementen, de ligging aan het Vondelpark en de inpandige parkeermogelijkheden.
Het complex is gelegen aan de stille en doodlopende deel van de Vossiusstraat en om de hoek van de P.C. Hooftstraat, het Museumplein en de grachtengordel. Diverse voorzieningen, zoals boetieks, traiteurs, restaurants, musea en diverse terrassen zijn makkelijk lopend of met de fiets te bereiken.

De parkeergelegenheid
Het appartement wordt aangeboden inclusief parkeerplaats in de ondergelegen parkeergarage.

Bereikbaarheid
Gunstig gelegen ten opzichte van de uitvalswegen A2 en A4 via de Ring A10 via de afritten 108 en 109. Omgeven door meerdere tramhalten op de Van Baerlestraat en de Paulus Potterstraat, onder andere tramlijnen: 2, 3, 5 en 12. Tevens dichtbij de bushaltes naar onder andere Schiphol en Amstelveen.
Schiphol is op slechts 20 autominuten verwijderd.

AM103687-100750-Vossiusstraat-74,-Amsterdam-130352597
Museumkwartier

De bijzonderheden
• Gebruiksoppervlakte wonen van circa 229 m²
• Twee bergingen in de kelder
• Dakterras van circa 62 m²
• Balkon van circa 10 m²
• Twee loggia’s van respectievelijk 8 m² en 2 m²
• Gas haard
• Eigen grond
• Privé parkeerplek
• Vanuit de parkeergarage is er via de lift direct toegang tot het appartement.
• Servicekosten VvE € 724,- per maand voor het appartement
• Servicekosten VvE € 140,- per maand voor de garage
• Energielabel B
• Gemeentelijke monument
• Optioneel is ook het bovengelegen appartement te koop van circa 85 m²
• De woning is voor het laatst gerenoveerd in 1996, koper dient rekening te houden dat de woning een update nodig heeft.
• In de koopakte zal een ouderdomsclausule en niet bewoningsclausule worden opgenomen

Kenmerken
Vossiusstraat 74, Amsterdam
Vraagprijs
  • € 3.250.000 k.k.
Beschikbaarheid
  • In overleg
Vertrekken
  • 6 kamers
  • 4 slaapkamers
  • 3 badkamers
Onderhoud
  • Intern: Redelijk tot goed
  • Extern: Goed
Oppervlakten & Inhoud
  • Woonoppervlakte: 229 m²
  • Tuinoppervlakte: 62 m²
Bouwjaar
  • 1885
Installaties
  • Dakraam
  • Lift
  • Natuurlijke ventilatie
  • TV kabel
Ligging
  • Aan park
  • Aan rustige weg
  • In woonwijk
  • Vrij uitzicht
Parkeren
  • Parkeergarage
  • Parkeervergunningen
  • Parkeerkelder
  • Parkeerplaats
Type verwarming
  • CV Ketel
  • Vloerverwarming gedeeltelijk
Type warmwater
  • CV Ketel
Bestemming
  • Woonruimte
Eigendomssoort
  • Volle eigendom
Buitenruimte
  • Zonneterras
  • Balkon
  • Dakterras
  • Loggia
Kadastraal
  • Gemeente: Amsterdam
  • Sectie: R
  • Nummer: 6586
Duurzaamheid
  • Dubbel glas
  • Energielabel B
Soort
  • Appartement
  • Bovenwoning
  • Dubbel-bovenhuis
Welke woonlaag
  • 4e
Bijzonderheden
  • Monument
  • Monumentaal pand
Overige kenmerken
  • OZB ('22) € 844,20 per jaar
  • Rioolrecht ('22) € 152,50 per jaar
  • Servicekosten VvE € 724,- per maand voor het appartement
  • Servicekosten VvE € 140,- per maand voor de garage
Plattegrond
Vossiusstraat 74, Amsterdam
AM103687-100750-Vossiusstraat-74,-Amsterdam-130352830
AM103687-100750-Vossiusstraat-74,-Amsterdam-130352832
Documenten
Vossiusstraat 74, Amsterdam
Locatie
Vossiusstraat 74, Amsterdam
Interieur
Scherm­afbeelding 2023-11-14 om 12.46.19
Scherm­afbeelding 2023-11-14 om 12.46.32
01
Adres
Van Baerlestraat 10,
1071 AL Amsterdam

Carl Hansen & Søn

Carl Hansen & Søn, een Deens familiebedrijf onder leiding van de derde generatie, belichaamt meer dan honderd jaar vakmanschap in modern design.  Bij Carl Hansen & Søn geloven ze dat iconisch design voortkomt uit eenvoud, esthetiek en functionaliteit, met aandacht voor vakmanschap en hoogwaardige materialen. De focus op het behoud van Deense ontwerpklassiekers gaat volgens hun hand in hand met het verwelkomen van nieuwe invloedrijke ontwerpers om een diverse collectie van de beste moderne meubelklassiekers te creëren.

603d01f817e4616df2d8f5c2_5-contempera-showroom-20_3QRCgyXU-poster-00001
60391343e07110d1dfd078e2_grid1
02
Adres
Overtoom 135,
1054 HG Amsterdam

Contempera

In een voormalige bioscoop aan de Overtoom vind je Contempera. Een interieurwinkel, ontwerpstudio en high-end art galerie in een. Internationale allure gaat hier hand in hand met de Nederlandse nuchterheid. De stijl van Contempera wordt gekenmerkt door strakke lijnen en subtiele verfijning, eenvoud en elegantie met een eigenzinnige touch.

120215712_3464581680287775_8524877858352079533_n
03
Adres
Eerste Helmersstraat 84-C,
1054 DL Amsterdam

Arjan

Het herkenbare “Arjan boeket” zie je bij menig fietser op de schouder langskomen. De boeketten zijn te vinden bij Arjan Bloemen aan de Eerste Helmersstraat in Amsterdam. De eigenaar, Arjan Konincks, is al vanaf jongs af aan in de weer met bloemen. Samen met zijn team staat hij dagelijks klaar om u te helpen met het creëren van de mooiste boeketten.

Eten & drinken
Post-1080×1920-2-1
Post-1080×1920-5
04
Adres
Vondelpark 3,
1071 AA Amsterdam

Café Vertigo

Café Vertigo is onderdeel van een groep Amsterdamse horeca-ondernemers, bekend van onder andere Cannibale Royale, Hannekes Boom, Nieuw Amsterdam en De Vergulden Eenhoorn. Samen met partners Thomas Anderiesen, Pim Evers en Teun Vermaas en chef Casper Moolhuizen gaven zij het historische Vondelparkpaviljoen een nieuw leven. Hun gezamenlijke visie was om van Vertigo een eigentijds grand café te maken met een duidelijke stedelijke en culturele signatuur. Het ruime terras aan het park vormt een vanzelfsprekend verlengstuk van het café, waar stad en natuur elkaar ontmoeten.

photo_1500x
05
Adres
Willemsparkweg 8h,
1071 HD Amsterdam

Coffee District

Eigenaren Adil Loukane en Rosa Loukane begonnen met een hole-in-the-wall coffeeshop in een modewinkel in Zuid. Toen de winkel de deuren sloot, grepen Adil en Rosa hun kans en besloten om hun eigen koffiebar te openen. Inmiddels hebben ze meerdere locaties. De koffie wordt gemaakt met een eigen melange gebrand door Lot Sixty One. Daarnaast worden er zoetigheden aangeboden zoals de inmiddelsal bekende kaneelbroodjes en bananenbrood.

75224712_2485719571643176_1503888755814039552_n
13227437_1766619810219826_8909053433635960844_o
06
Adres
Paulus Potterstraat 50,
1071 DB Amsterdam

Taiko

Taiko bevindt zich in het vijfsterren Conservatorium Hotel in Amsterdam. In de keuken staat chef Schilo van Coevorden. Als chef is hij klassiek Frans geschoold, maar raakte al snel niet uitgepraat over de exotische smaken uit Azië. Samen met zijn team heeft hij een menu samengebracht met onder andere sushi, dimsum, curry's en vlees en vis gerechten. Uiteraard zijn er ook vegetarische opties.

Schermafbeelding 2022-07-01 om 16.24.48
07
Adres
Pieter Cornelisz Hooftstraat 87A,
1071 BP Amsterdam

Café Georgette

Café Georgette is het kleine zusje van Café George. Het is een mooie plek met een Franse, elegante en charmante sfeer. De vroege vogels kunnen hier terecht voor een espresso en de avondmensen voor een cocktail. Gelegen aan de chique P.C. Hooftstraat is deze plek de droom voor iedere fijnproever. Het menu staat vol lunchklassiekers zoals avocadotoast en croque-monsieur, maar ook tijdloze Franse klassiekers zoals oesters en steak tartare.

Schermafbeelding 2022-05-18 om 16.11.48
Schermafbeelding 2022-05-18 om 16.12.05
08
Adres
Willemsparkweg 74,
1071 HK Amsterdam

George W.P.A

George W.P.A is de ideale plek om neer te strijken voor een goed glas wijn en lekker eten met een chique touch. De brasserie in Zuid is naar eigen zeggen een combinatie van klassieke Franse gerechten, verpakt in New-Yorkse stijl en staat bekend om signature dishes zoals gegrilde kreeft en Blackened Tuna. Treed binnen (op reservering) in het "Upper South" van Amsterdam en see for yourself!

491415080_17861354841388437_2472288904698911980_n
09
Adres
Museumplein 10,
1071 DJ Amsterdam

Sandberg

Café Restaurant Sandberg is genoemd naar Willem Sandberg, de vernieuwende oud-directeur van het Stedelijk Museum, een naam die meteen iets zegt over de ambities achter dit restaurant. Het is opgezet door dezelfde jonge Amsterdamse horecaondernemers die ook achter Entrepot en Metro zitten. Overdag werkt de bakkerij samen met de keuken voor zoet bij de koffie, broodjes om mee te nemen of juist een uitgebreide lunch.  Voor het diner sluiten de gordijnen en serveert het jonge team creatieve, maar herkenbare en klassieke gerechten.

10
Adres
Overtoom 125,
1054 HE Amsterdam

Testamatta Ristorante Enoteca

Testamatta is het Italiaanse woord voor ‘gek in het hoofd’ én de naam van een gerenommeerd wijnhuis uit Toscane. Net zoals de kwalitatieve wijnkaart wordt er in de keuken met goede ingrediënten gekookt. Verwacht hier niet de standaard gerechten, maar bijvoorbeeld (de kaart wisselt regelmatig, afhankelijk van het seizoen) een lasagna rollata; huisgemaakte pasta met een ragu van rundvlees, een miso citroensaus en 24 maanden oude parmigiano kaas.

downloadgram.org_575292204_17860139958539237_3845020802038171024_n
downloadgram.org_581821679_17860140000539237_4947837432897632977_n
11
Adres
Eerste Helmersstraat 83,
1054 CR Amsterdam

Wilhelmina Café

Wilhelmina Café werd geopend door team Binnenvisser als een buurtcafé pur sang in de Helmersbuurt, een plek van woensdag tot en met zondag van 08:30 tot middernacht leeft. De keuken staat onder leiding van Rafael Lamoth, ex-Café Binnenvisser en nu mede-eigenaar, die zijn herkenbare stijl van no-nonsense bistroklassiekers hier moeiteloos doorzet. Op de kaart staan gerechten als half kippetje met gezouten citroenjus, mosselen met gerookte beurre blanc en salades als panzanella en Caesar. Onder het genot van natuurwijnen, negroni’s en een goed glas pastis voelt elke maaltijd hier ontspannen en vanzelfsprekend.

187513275_541642613509567_7586706852571280627_n
12
Adres
Eerste Constantijn Huygensstraat 63H,
1054 BT Amsterdam

Uncommon

In de levendige Eerste Constantijn Huijgenstraat biedt Uncommon een unieke koffie- en eetervaring. De oprichters, Clay en Josh, gaan verder dan de bekende koffiebronnen.  Ze halen ook bonen uit ongewone plantages in Myanmar en Indonesië, die ze vervolgens zelf branden. Bij elke geserveerde kop koffie voelen ze de verplichting om een eerbetoon te brengen aan de koffieproducent. Deze toewijding aan bijzondere koffie strekt zich ook uit naar het menu, waar vegetarische of vegan gerechten altijd een ongebruikelijk ingrediënt bevatten. Ondanks de drukte van de straat biedt het minimalistisch stijlvolle interieur van Uncommon een zen-achtige sfeer.

13
Adres
Eerste Constantijn Huygensstraat 82,
1054 BX Amsterdam

Koffiesalon

De allerlekkerste Italiaanse koffie gemaakt door goede barista’s. De service is heel erg goed en je proeft dat de koffie gemaakt is door experts. Je kan hier ook terecht voor simpele en lekkere ontbijthapjes. Ze hebben hier take-away maar even binnenzitten is ook mogelijk. De koffiesalon heeft meerdere vestigingen in de stad.

welling
14
Adres
Jan Willem Brouwersstraat 32,
1071 LK Amsterdam

Café Welling

Café Welling is een knus buurtcafé aan de J.W. Brouwersstraat; vlakbij het Museumplein. Hier kun je genieten van een lekker biertje aan de bar of op het terras als het zonnetje schijnt. Dit buurtcafé kent een lange geschiedenis. Het café bestaat al langer dan 70 jaar maar draagt pas sinds 1963 de naam Café Welling. Deze historie verklaart misschien wel de oude vertrouwde sfeer die in dit café altijd te vinden blijkt. Interessant voor muziekliefhebbers: bij Café Welling worden regelmatig Jazz-avonden georganiseerd.

Schermafbeelding 2022-05-11 om 16.25.41
15
Adres
Johannes Verhulststraat 32,
1071 NE Amsterdam

Pizzeria Le 4 Stagioni

Voor bezoekers van het Concertgebouw zijn de Romaanse pizza's met dunne bodem geen vreemde. Sinds 1978 voorziet de pizzeria in Oud-Zuid menige groep en (grote) families van authentiek Italiaans eten. Het interieur heeft een Mediteraans tintje en het menu biedt voor ieder wat wils, van verse pasta's en mals vlees, tot onmisbare antipasti en vegetarische alternatieven.

Kunst & cultuur
315727004_139279408874516_3171046503847699668_n
16
Adres
Willemsparkweg 64H,
1071 HK Amsterdam

Hama Gallery

Bij Hama Gallery geloven ze dat een galerie een grenzeloze ontmoetingsplaats is waar kunst en mensen samenkomen. Het doel is om kunst toegankelijker te maken door een unieke ervaring te bieden die breekt met traditie. De galerie verwelkomt bezoekers met open armen, of je nu binnenloopt voor een spontaan bezoek, een intieme privébezichtiging wilt, of samen met anderen kunst wilt vieren tijdens onze feestelijke openingen en tuinevenementen.

1-sma-jannes-linders
17
Adres
Museumplein 10,
1071 DJ Amsterdam

Stedelijk Museum

Het Stedelijk Museum is dé plek waar iedereen moderne en hedendaagse kunst en vormgeving kan ontdekken en beleven. 365 dagen per jaar geopend. In het gebouw van het Stedelijk Museum Amsterdam versmelten oude en moderne architectuur tot een geheel. Architect Mels Crouwel gebruikte in de verbouwing van 2012 het wit van ouddirecteur Willem Sandberg als uitgangspunt voor 'de badkuip'. Het Stedelijk Museum Amsterdam neemt sinds 2008 jaarlijks 15 nieuwe Blikopeners aan. Blikopeners zijn open-minded Amsterdamse jongeren, die een jaar lang in het museum werken om de blik van het publiek en personeel te openen.

DSC03870edit4x5
18
Adres
Honthorststraat 20,
1071 DE Amsterdam

Moco

Het Moco museum (Modern Contemporary museum) is één van de nieuwste musea aan het Museumplein. Dit museum is opgericht in 2016 en heeft ook een vestiging in Barcelona. Het Moco museum is een onafhankelijk museum dat stukken toont van onder andere Banksy en Yayoi Kusama. Het Moco museum richt zich op hedendaagse kunst, zoals (post)moderne beeldende kunst en straatkunst. In Amsterdam is het Moco museum gevestigd in Villa Alsberg. Het pand uit 1904 is ontworpen door Edward Cuypers, de neef van de architect van het Rijksmuseum en was een van de eerste particuliere villa's op het museumplein.

c153afe5-3697-4974-a057-290d46de1ffb
19
Adres
Museumplein 6,
1071 DJ Amsterdam

Van Goghmuseum

In het Van Goghmuseum aan het museumplein vind je de mooiste werken van bekend Nederlands schilder Vincent van Gogh. Het museum heeft een vaste collectie met de meesterwerken van Van Gogh en een wisselende expositie waar werken worden getoond van zowel tijdsgenoten als hedendaagse kunstenaars. In het museum zijn tentoonstellingen geweest van onder andere David Hockney en Maurice Denis. Naast het tonen van kunst voert het Van Goghmuseum ook onderzoek uit over Vincent van Gogh en zijn tijd. Op de website van het museum kun je veel informatie vinden over de uitgevoerde onderzoeksprojecten en restauraties. Het museum is erg populair, met name onder de internationale toeristen, om teleurstelling en lange rijen te voorkomen is het handig om van te voren online al tickets te bestellen.

Exterieur-Concertgebouw-Kerst-Winter-crop-1
grotezaal-eduarduslee
20
Adres
Concertgebouwplein 10,
1071 LN Amsterdam

Het Concertgebouw

Het Concertgebouw is één van de monumentale panden aan het Amsterdamse Museumplein. Het gebouw stamt uit 1888 en is voltooid volgens de stijl van het Weens classicisme; als heeft het ook kenmerken uit de neorenaissance. Het gebouw is ontworpen voor klassieke concerten maar heeft in de jaren 60 en 70 ook een tijd dienst gedaan als poppodium. Bekende sterren die hier hebben opgetreden zijn onder andere Led Zappelin en Aretha Franklin. Tegenwoordig vinden er jaarlijks bijna duizend concerten en andere culturele activiteiten in het Concertgebouw plaats. Voor degenen met een kleiner budget zijn er ook gratis lunchconcerten. Voor een bezoek aan een lunchconcert kun je het beste eerst even op de website kijken. Vaak kun je daar van de voren gratis kaartjes reserveren.

241801382_194597056100298_7531339944812475387_n
21
Adres
Willemsparkweg 134,
1071 HR Amsterdam

Galerie Bildhalle

Bildhalle is oorspronkelijk opgericht als een Zwitserse galerie gespecialiseerd in klassieke en hedendaagse fotografie. De galerie heeft inmiddels vestigingen in Zürich en Amsterdam. Sinds de oprichting door Mirjam Cavegn in 2013, heeft de galerie zich ontwikkeld tot een van de meest gerespecteerde fotogaleries in Zwitserland. In oktober 2021 zette Bildhalle haar groei voort met de opening van een tweede galerie aan de Willemsparkweg in Amsterdam. Hier presenteert de galerie een zorgvuldig geselecteerde collectie van Nederlandse en internationale kunstenaars, variërend van opkomend talent tot gevestigde fotografen.

Boodschappen
Scherm­afbeelding 2024-04-22 om 12.13.49
22
Adres
Overtoom 179,
1054 HG Amsterdam

Olives & More

De eigenaren proefden heerlijke olijven in allerlei landen maar terug in Amsterdam, konden ze ze nauwelijks vinden. Daarom importeren ze nu zelf direct van de boer. Het begon met een paar houten vaten vol olijven in een bakkersbakfiets op een boerenmarkt in Amsterdam. Inmiddels importeert Olives & More  tientallen soorten olijven en olijfolie uit Italië, Frankrijk, Spanje, Griekenland en Portugal.

288460093_5757378127616106_4944675648070804179_n
23
Adres
Eerste Helmersstraat 63 hs,
1054 DC Amsterdam

Vleck wijnen

Vleck wijnen is een van de eerste wijnimporteurs van natuurwijnen in Nederland. De wijnen worden direct van de boer uit Frankrijk gekocht; van wijngaard naar winkel. Vleck heeft als filosofie om zo min mogelijk in te grijpen bij de natuurlijke processen van het wijn maken, op de wijngaarden wordt niet gewerkt met insecticiden en kunstmest. Kortom; als je houdt van natuurwijn is dit dé plek.

Schermafbeelding 2022-05-18 om 19.26.29
24
Adres
Van Breestraat 107A,
1071 ZJ Amsterdam

De Wijnkaart

In het Museumkwartier in Amsterdam-Zuid zit De Wijnkaart. Hier worden allerlei soorten wijnen uit de vergeten Oost-Europese wijnlanden geserveerd. Alhoewel de geschiedenis van het wijn maken hier is begonnen, zijn deze landen vaak vergeten in de wijnwereld. Als je benieuwd bent geworden naar alle soorten wijnen kan je een wijnproeverij doen in de wijnbar, waarbij je zelf mag uitkiezen welke je wil proeven. Naast de borrelplanken die wekelijks veranderen, staan er ook hoofdgerechten op het menu.

69495482_2355482024538342_8370925297519820800_n
25
Adres
1071 MR Amsterdam

ZuiderMRKT

De zuiderMRKT is een kleine, gezellige, wekelijkse buurtmarkt. Uniek door haar coöperatieve karakter. De coöperatie bestaat uit leden - enthousiaste buurtbewoners - die de markt een warm toedragen en meehelpen op de markt en in de groentekraam. De leden bepalen samen het aanbod van alle kramen. Zij kopen groente en fruit rechtstreeks in bij de boer, om ze voor eerlijke prijzen op het zuiderMRKT-plein te verkopen.

Aziatisch eten in Amsterdam, de keuze is reuze

Aziatisch eten in Amsterdam, de keuze is reuze

Huize Loma, architect Warners liet zich inspireren door de appartementen in Parijs en Wenen en paste zijn visie toe in Amsterdam.

Huize Loma, architect Warners liet zich inspireren door de appartementen in Parijs en Wenen en paste zijn visie toe in Amsterdam.

Licht is nooit zomaar licht. Voor Dimitri Saddi, oprichter van PSLab, is het een taal waarmee je verhalen vertelt.

Licht is nooit zomaar licht. Voor Dimitri Saddi, oprichter van PSLab, is het een taal waarmee je verhalen vertelt.

Onlangs bekeken
Bekijk het overzicht

Deze site maakt gebruik van cookies.

Voor welke cookies geef je akkoord?