Dubbel benedenhuis met balkon en terras aan het Vondelpark. Aan de geliefde Vondelstraat, vrijwel direct aan het Vondelpark, ligt dit stijlvol afgewerkte dubbele benedenhuis van circa 141 m². De woning is verdeeld over twee volwaardige etages, met drie slaapkamers op de bel-etage en een royale woonverdieping op de eerste etage.

Rondleiding
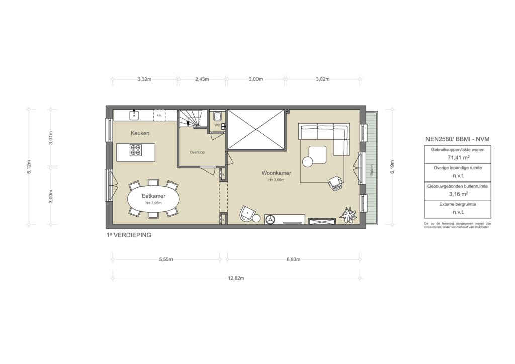
De indeling is onderscheidend: beneden bevinden zich drie slaapkamers, een complete badkamer en toegang tot een ruim terras aan de binnentuin. Boven ligt de lichte woonkamer met drie hoge ramen en openslaande deuren naar een balkon op het zuiden, met zicht op het park.

De eetkamer sluit aan op een open keuken met kookeiland en moderne apparatuur. Op deze verdieping is tevens een tweede toilet aanwezig.
Originele stijlkenmerken zoals hoge plafonds met ornamenten, een kamer-en-suite en paneeldeuren zijn behouden gebleven. De ligging combineert rust met bereikbaarheid: het Concertgebouw, Museumplein en de grachtengordel liggen op loopafstand. Uitvalswegen en openbaar vervoer zijn dichtbij.
Eigenzinnig Vondel biedt ruimte, karakter en een unieke ligging aan het groen in het hart van de stad.

Quote
"We vielen ooit bij toeval voor dit stukje Vondelstraat – een verborgen oase in de stad. Het huis, het licht, het park voor de deur en de charme van de straat: alles klopte. Onze kinderen groeiden hier op met het park als achtertuin en fijne buren om ons heen. We gaan niet ver, maar dit huis gaan we iedere dag missen."

Buurtgids
Van industriegebied met molens tot stadwijk met rijke architectuur: de Vondelbuurt zoals wij deze nu kennen heeft sinds de 19e eeuw een enorme transitie doorstaan. De wijk is vernoemd naar de dichter Joost van den Vondel. Kenmerkend zijn de vele bouwstijlen, zoals het neoclassistische gebouw van de Hollandsche Manege en de Zevenlandenhuizen in zeven verschillende bouwstijlen die refereren naar de specifieke landen. De allure van de Vondelstraat en Romer Visscherstraat aan het park.
Bootcampen. Picknicken. Pootjebaden. In het Vondelpark kan het allemaal. Dit is het groene hart van de stad waar iedereen samenkomt en verschillen in status of afkomst verdwijnen. Het zonovergoten terras van het renaissancistische Vondelparkpaviljoen, nu Parkzuid, blijft een prachtige plek voor een borrel of diner. Dit is de wijk voor iedereen die houdt van goed gebouwde, ruime woningen dichtbij de stad; met de Overtoom als verkeersader en de Helmersbuurt voor alle voorzieningen.

Bijzonderheden
• Gebruiksoppervlakte wonen circa 141 m²
• Balkon gelegen op het, zuiden van circa 3 m²
• Terras gelegen op het, noorden van circa 11 m²
• Gelegen op eigen grond
• Energielabel C
• Servicekosten VvE € 180,00 per maand
• Gemeentelijk beschermd stadsgezicht
 

AM106231-2002453-Vondelstraat-180-hs,-Amsterdam-227339430

Eigenzinnig Vondel
Aan de Vondelstraat, met het park letterlijk voor de deur, ligt dit dubbele benedenhuis met karakter. Verdeeld over twee etages, met de woonverdieping boven en de slaapverdieping eronder, wijkt de indeling af van het gangbare — en juist dat maakt het bijzonder.
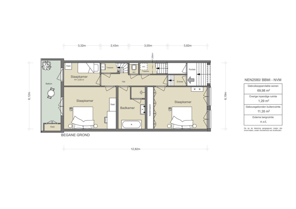
Op de bel-etage bevinden zich drie slaapkamers en een ruime badkamer. Boven, op de eerste verdieping, liggen de woonkamer en de woonkeuken. Het balkon aan de voorzijde kijkt uit op het groen, het terras aan de achterzijde grenst aan de binnentuinen. Binnen zorgen originele elementen als plafondornamenten, hoge paneeldeuren en een kamer-en-suite voor een tijdloze basis. De afwerking is rustig en doordacht. De inrichting — met karaktervolle kunst en uitgesproken keuzes — laat zien hoe goed deze woning werkt in het dagelijks leven.
De Vondelstraat 180 huis is stijlvol, eigenzinnig en sterk. Een huis met karakter, op een locatie die alles in zich heeft.


Jelle Mundt | Makelaar Broersma Wonen
Judith de Jong | Makelaar Broersma Wonen
AM106231-2002453-Vondelstraat-180-hs,-Amsterdam-227339394
Designvisie

Deze woning aan de Vondelstraat maakt deel uit van een bouwblok uit circa 1880, gerealiseerd tijdens de eerste grote stadsuitbreidingen van Amsterdam. In deze periode ontstond een nieuwe woonstandaard: ruime huizen met een duidelijke indeling, veel vaste kasten en een kamer-en-suiteopzet die wonen en ontvangen op een vanzelfsprekende manier scheidde.
De bel-etage geeft direct een gevoel van ruimte en licht. De hoge plafonds, de originele ornamenten en de grote ramen bepalen hier het karakter. De afwerking is rustig en zorgvuldig: witte wanden, een houten vloer, ingetogen kleuren. Klassieke elementen, zoals de schouw en het stucwerk, zijn behouden gebleven en bepalen de sfeer zonder te overheersen.
De woning is goed in balans. Het oorspronkelijke ontwerp blijft voelbaar in de structuur en zichtlijnen, maar sluit moeiteloos aan bij een hedendaagse manier van wonen. Vanuit de woonkamer is er uitzicht op de bomenrijke straat en de karakteristieke gevels van het blok, die samen een sterk gevoel van context en samenhang geven.
Een huis met duidelijke lijnen, klassieke basis en ingetogen uitstraling.

AM106231-2002453-Vondelstraat-180-hs,-Amsterdam-227339392
AM106231-2002453-Vondelstraat-180-hs,-Amsterdam-226999300
AM106231-2002453-Vondelstraat-180-hs,-Amsterdam-226999276
AM106231-2002453-Vondelstraat-180-hs,-Amsterdam-226999222
Wonen en koken

De woonverdieping ligt op de eerste etage en kijkt aan de voorzijde uit over het Vondelpark. Grote ramen met openslaande deuren zorgen voor veel licht en geven toegang tot het balkon op het zuiden. Dit zorgt voor een heerlijke lichtinval gedurende de dag.
De woonkamer is ingedeeld met een zitgedeelte aan de voorzijde en een eetgedeelte aan de achterzijde. De ruimtes zijn visueel verbonden, maar door de opstelling ook goed van elkaar te onderscheiden. Aan de voorzijde is plaats voor een zithoek rond de schouw, met uitzicht op het groen. Aan de achterzijde sluit het eetgedeelte aan op de keuken.
De keuken is uitgevoerd in rustige, lichte kleuren en voorzien van moderne inbouwapparatuur. Een kookeiland vormt het middelpunt. De indeling is praktisch en efficiënt, met voldoende werkruimte en opbergruimte. Dankzij de ramen aan de achterzijde komt er ook hier veel daglicht binnen.
De houten vloer loopt door over de hele verdieping, wat zorgt voor samenhang tussen de verschillende ruimten. De afwerking is rustig en verzorgd.

AM106231-2002453-Vondelstraat-180-hs,-Amsterdam-226999290
AM106231-2002453-Vondelstraat-180-hs,-Amsterdam-226999310
AM106231-2002453-Vondelstraat-180-hs,-Amsterdam-226999244
AM106231-2002453-Vondelstraat-180-hs,-Amsterdam-226999434
AM106231-2002453-Vondelstraat-180-hs,-Amsterdam-226999402
AM106231-2002453-Vondelstraat-180-hs,-Amsterdam-226999364
Slapen en baden

De slaapverdieping is functioneel en overzichtelijk ingedeeld. De hoofdslaapkamer ligt aan de rustige achterzijde en heeft openslaande deuren naar een terras met zicht op de binnentuinen. De kamer is ruim opgezet en biedt plaats aan een groot bed, met daarnaast ruimte voor een kast of werkplek.
De badkamer ligt centraal op de verdieping en is voorzien van een inloopdouche, een ligbad en een dubbele wastafel. De afwerking is strak en modern, met vierkante wandtegels, zwarte kranen en een wandmeubel met veel bergruimte.
Aan de achterzijde bevindt zich een derde slaapkamer, ideaal als kinderkamer, logeerkamer of werkkamer. Aan de voorzijde ligt een tweede, grotere slaapkamer met ramen over de volle breedte. Deze kamer is licht, ruim en heeft uitzicht op de straatzijde met het groen van het Vondelpark in de verte.
Alle kamers zijn voorzien van houten vloeren en neutrale kleuren, wat zorgt voor rust en samenhang

AM106231-2002453-Vondelstraat-180-hs,-Amsterdam-226999460
AM106231-2002453-Vondelstraat-180-hs,-Amsterdam-226999386
AM106231-2002453-Vondelstraat-180-hs,-Amsterdam-226999356
AM106231-2002453-Vondelstraat-180-hs,-Amsterdam-226999444
Vondelstraat_180-H-portrait
AM106231-2002453-Vondelstraat-180-hs,-Amsterdam-227339414
AM106231-2002453-Vondelstraat-180-hs,-Amsterdam-227339412
Het terras en balkon

Aan de voorzijde van de woonverdieping ligt een breed balkon op het zuiden. Vanuit hier is er vrij zicht op het Vondelpark en de omliggende stadsvilla’s. Dankzij de ligging op de eerste etage biedt het balkon een open, ruimtelijk gevoel zonder in te leveren op privacy. De openslaande deuren zorgen voor een directe verbinding tussen binnen en buiten.
Aan de achterzijde is een tweede buitenruimte, bereikbaar vanuit de slaapkamers. Dit terras grenst aan de binnentuinen en ligt uit de wind, met uitzicht op groen. Een rustige plek, goed bruikbaar voor een ochtendkoffie of een moment van ontspanning aan het einde van de dag.
Beide buitenruimtes zijn direct verbonden met de belangrijkste leefruimtes, wat het gebruik ervan makkelijk en vanzelfsprekend maakt.

AM106231-2002453-Vondelstraat-180-hs,-Amsterdam-227339408
AM106231-2002453-Vondelstraat-180-hs,-Amsterdam-227339418
AM106231-2002453-Vondelstraat-180-hs,-Amsterdam-227339420
Vondelstraat 94-6
Buurtgids

Van industriegebied met molens tot stadwijk met rijke architectuur: de Vondelbuurt zoals wij deze nu kennen heeft sinds de 19e eeuw een enorme transitie doorstaan. De wijk is vernoemd naar de dichter Joost van den Vondel. Kenmerkend zijn de vele bouwstijlen, zoals het neoclassistische gebouw van de Hollandsche Manege en de Zevenlandenhuizen in zeven verschillende bouwstijlen die refereren naar de specifieke landen. De allure van de Vondelstraat en Romer Visscherstraat aan het park.
Bootcampen. Picknicken. Pootjebaden. In het Vondelpark kan het allemaal. Dit is het groene hart van de stad waar iedereen samenkomt en verschillen in status of afkomst verdwijnen. Het zonovergoten terras van het renaissancistische Vondelparkpaviljoen, nu Parkzuid, blijft een prachtige plek voor een borrel of diner. Dit is de wijk voor iedereen die houdt van goed gebouwde, ruime woningen dichtbij de stad; met de Overtoom als verkeersader en de Helmersbuurt voor alle voorzieningen.

Bereikbaarheid
De woning ligt aan de Vondelstraat, direct bij het Vondelpark. Een plek waar de stad vertraagt en het groen ruimte geeft. Via het park fiets je in enkele minuten naar Amsterdam-Zuid of de grachtengordel — een route die dagelijks bewijst hoe goed bereikbaar én ontspannen wonen op deze plek samen kunnen gaan.
Voor wie met de auto reist, zijn de uitvalswegen goed bereikbaar via de Overtoom en de S106 richting de Ring A10. Ook openbaar vervoer is dichtbij, net als culturele voorzieningen: het Museumplein, het Concertgebouw en de binnenstad liggen op loopafstand.
Een locatie met rust én bereikbaarheid binnen handbereik.

Parkeergelegenheid
Parkeren is mogelijk via een vergunningenstelsel op de openbare weg (vergunningsgebied West-11.3).
Met een parkeervergunning voor West-11.3 mag u parkeren in West-11
Een parkeervergunning voor bewoners kost € 192,81 per 6 maanden.
Momenteel is er voor dit vergunningsgebied een wachttijd van 8 maanden. Een tweede parkeervergunning is in dit gebied niet mogelijk.
Naast de openbare weg is het ook mogelijk om met een parkeervergunning kosteloos te parkeren in garage Kwintijn I, Kwintijn II en Furore. (Bron: Gemeente Amsterdam, mei 2025).

AM106231-2002453-Vondelstraat-180-hs,-Amsterdam-226999324
AM106231-2002453-Vondelstraat-180-hs,-Amsterdam-227339428
AM106231-2002453-Vondelstraat-180-hs,-Amsterdam-226999264
Kenmerken
Vondelstraat 180H, Amsterdam
Vraagprijs
  • € 1.620.000 k.k.
Beschikbaarheid
  • In overleg
Vertrekken
  • 4 kamers
  • 3 slaapkamers
  • 1 badkamer
Onderhoud
  • Intern: Goed
  • Extern: Goed
Oppervlakten & Inhoud
  • Woonoppervlakte: 141 m²
  • Overige inpandige ruimte: 1 m²
  • Gebouwgebonden buitenruimte: 15 m²
Installaties
  • Natuurlijke ventilatie
  • TV kabel
Ligging
  • Aan park
  • Aan rustige weg
Parkeren
  • Betaald parkeren
  • Parkeervergunningen
Type verwarming
  • CV Ketel
Type warmwater
  • CV Ketel
Bestemming
  • Woonruimte
Eigendomssoort
  • Volle eigendom
Buitenruimte
  • Geen tuin
  • Balkon
Kadastraal
  • Gemeente: Amsterdam
  • Sectie: U
  • Nummer: 10303
Duurzaamheid
  • Energielabel C
Soort
  • Appartement
  • Beneden-plus-bovenwoning
Overige kenmerken
  • OZB ('25) € 842,42 per jaar
  • Rioolrecht ('25) € 185,20 per jaar
  • Servicekosten VvE € 180,00 per maand
  • Gelegen op eigen grond
Plattegrond
Vondelstraat 180H, Amsterdam
AM106231-2002453-Vondelstraat-180H,-Amsterdam-227518002
AM106231-2002453-Vondelstraat-180H,-Amsterdam-227518010
AM106231-2002453-Vondelstraat-180H,-Amsterdam-227518016
AM106231-2002453-Vondelstraat-180H,-Amsterdam-227518022
Documenten
Vondelstraat 180H, Amsterdam
Locatie
Vondelstraat 180H, Amsterdam
Boodschappen
01
Adres
Overtoom 239,
1054 HV Amsterdam

Olivity

Olivity staat bekend om olijfolie en delicatessen, maar er is veel meer dan alleen dat! Olivity verkoopt niet alleen heerlijke Griekse producten van producenten uit heel Griekenland, maar gebruikt de keuken ook om workshops te houden. Gezellig met vrienden of collega’s biedt dit een unieke kans om kennis te maken met de geheimen van de Griekse keuken en alle authentieke Griekse bites. Mocht je liever een event houden? Dat kan ook, voor zowel kleine en grote groepen van brunch tot diner.

Scherm­afbeelding 2024-04-22 om 12.13.49
02
Adres
Overtoom 179,
1054 HG Amsterdam

Olives & More

De eigenaren proefden heerlijke olijven in allerlei landen maar terug in Amsterdam, konden ze ze nauwelijks vinden. Daarom importeren ze nu zelf direct van de boer. Het begon met een paar houten vaten vol olijven in een bakkersbakfiets op een boerenmarkt in Amsterdam. Inmiddels importeert Olives & More  tientallen soorten olijven en olijfolie uit Italië, Frankrijk, Spanje, Griekenland en Portugal.

Schermafbeelding 2022-06-20 om 12.29.03
2_levain-et-le-vin
03
Adres
Jan Pieter Heijestraat 168,
1054 ML Amsterdam

Levain et le vin

In deze hippe bakkerij in Oud-West proef je het meest heerlijke zuurdesem brood, en zijn ze gespecialiseerd in natuurwijn. In de bakkerij wordt elke dag op natuurlijke wijze zuurdesem gemaakt en kan je er heerlijke koffies drinken gemaakt door barista's die weten wat ze doen. Ze hebben overheerlijke focaccias en een echte aanrader is de kaneelbrioche. Als je een avond lekker gaat borrelen is Levain et Levin de plek waar je naartoe moet. Het personeel dat er werkt weet wat ze verkopen, dus tips vragen is een aanrader!

288460093_5757378127616106_4944675648070804179_n
04
Adres
Eerste Helmersstraat 63 hs,
1054 DC Amsterdam

Vleck wijnen

Vleck wijnen is een van de eerste wijnimporteurs van natuurwijnen in Nederland. De wijnen worden direct van de boer uit Frankrijk gekocht; van wijngaard naar winkel. Vleck heeft als filosofie om zo min mogelijk in te grijpen bij de natuurlijke processen van het wijn maken, op de wijngaarden wordt niet gewerkt met insecticiden en kunstmest. Kortom; als je houdt van natuurwijn is dit dé plek.

Schermafbeelding 2022-06-20 om 12.19.42
05
Adres
Overtoom 444,
1054 JW Amsterdam

Chabrol

Al meer dan dertig jaar is Chabrol een gevestigde wijnwinkel in Amsterdam en omstreken. Chabrol is gegroeid van een kleine wijnwinkel in de buurt naar een importeur van unieke, organische wijnen. De wijnen worden met een passie voor wijn en het verhaal achter de wijn geselecteerd. Dat kan je bijvoorbeeld lezen in de nieuwsbrief waar ze over iedere wijn een verhaal schrijven zodat de echte wijnliefhebber alles te weten komt. Je kan bij Chabrol voor een hele brede variatie aan wijnen terecht, zowel voor een wijntje voor doordeweeks als een wijn voor speciale momenten.

Eten & drinken
06
Adres
Overtoom 255H,
1054 HW Amsterdam

Tamari Ya

Tamari Ya is opgezet door Imoto Yoshihisa en Yazawa Yuji, twee Japanse ondernemers die in hun dorp bij Hiroshima een farm-stay retreat begonnen en daar in 2023 hun eerste donutshop openden om hun gemeenschap nieuw leven in te blazen. Vanuit hun liefde voor rijst ontwikkelden ze de komeko-donut, gemaakt van rijstmeel uit eigen regio en daardoor van nature glutenvrij. In Amsterdam worden de donuts dagelijks met de hand gemaakt en gefrituurd in rijstolie, zonder conserveermiddelen of kleurstoffen. De textuur is anders dan je gewend bent: minder fluffy, meer chewy, met varianten als old fashioned of yeast-raised in smaken als matcha, zwarte sesam en pistache. De rustige, houtgedomineerde winkel op de Overtoom voelt als een stukje Japans platteland in de stad, waar aandacht voor eten en omgeving centraal staat.

07
Adres
Overtoom 125,
1054 HE Amsterdam

Testamatta Ristorante Enoteca

Testamatta is het Italiaanse woord voor ‘gek in het hoofd’ én de naam van een gerenommeerd wijnhuis uit Toscane. Net zoals de kwalitatieve wijnkaart wordt er in de keuken met goede ingrediënten gekookt. Verwacht hier niet de standaard gerechten, maar bijvoorbeeld (de kaart wisselt regelmatig, afhankelijk van het seizoen) een lasagna rollata; huisgemaakte pasta met een ragu van rundvlees, een miso citroensaus en 24 maanden oude parmigiano kaas.

Post-1080×1920-2-1
Post-1080×1920-5
08
Adres
Vondelpark 3,
1071 AA Amsterdam

Café Vertigo

Café Vertigo is onderdeel van een groep Amsterdamse horeca-ondernemers, bekend van onder andere Cannibale Royale, Hannekes Boom, Nieuw Amsterdam en De Vergulden Eenhoorn. Samen met partners Thomas Anderiesen, Pim Evers en Teun Vermaas en chef Casper Moolhuizen gaven zij het historische Vondelparkpaviljoen een nieuw leven. Hun gezamenlijke visie was om van Vertigo een eigentijds grand café te maken met een duidelijke stedelijke en culturele signatuur. Het ruime terras aan het park vormt een vanzelfsprekend verlengstuk van het café, waar stad en natuur elkaar ontmoeten.

downloadgram.org_575292204_17860139958539237_3845020802038171024_n
downloadgram.org_581821679_17860140000539237_4947837432897632977_n
09
Adres
Eerste Helmersstraat 83,
1054 CR Amsterdam

Wilhelmina Café

Wilhelmina Café werd geopend door team Binnenvisser als een buurtcafé pur sang in de Helmersbuurt, een plek van woensdag tot en met zondag van 08:30 tot middernacht leeft. De keuken staat onder leiding van Rafael Lamoth, ex-Café Binnenvisser en nu mede-eigenaar, die zijn herkenbare stijl van no-nonsense bistroklassiekers hier moeiteloos doorzet. Op de kaart staan gerechten als half kippetje met gezouten citroenjus, mosselen met gerookte beurre blanc en salades als panzanella en Caesar. Onder het genot van natuurwijnen, negroni’s en een goed glas pastis voelt elke maaltijd hier ontspannen en vanzelfsprekend.

300884117_172675551991923_5973370947242380801_n
10
Adres
Eerste Helmersstraat 174H,
1054 EK Amsterdam

Mr. Gyoza

Het restaurant biedt naast de traditionele varkensvlees gyoza ook vegetarische en veganistische opties, waaronder roze bietengyoza. Daarnaast staan er verschillende bijgerechten en desserts op de kaart, zoals gefrituurde kip, ramen noedels en groene thee ijs. Het interieur van Mr. Gyoza is modern en gezellig, met een open keuken waar je de koks aan het werk kunt zien.

 

 

11
Adres
Eerste Constantijn Huygensstraat 82,
1054 BX Amsterdam

Koffiesalon

De allerlekkerste Italiaanse koffie gemaakt door goede barista’s. De service is heel erg goed en je proeft dat de koffie gemaakt is door experts. Je kan hier ook terecht voor simpele en lekkere ontbijthapjes. Ze hebben hier take-away maar even binnenzitten is ook mogelijk. De koffiesalon heeft meerdere vestigingen in de stad.

Gitane-NinaSlagmolen-10juli2023-188-1365×2048
329963219_8769040973168667_1375211572719675553_n
12
Adres
Jan Pieter Heijestraat 146,
1054 MK Amsterdam

Gitane

Angelo Kremmydas, zowel chef als eigenaar, kookt enkel met de meest verse en seizoensgebonden ingrediënten. Het menu weerspiegelt zijn visie en biedt een bescheiden en verfijnde selectie eigentijdse à la carte-gerechten. Hier geen ingewikkelde setmenu's; in plaats daarvan heb je de vrijheid om precies te bestellen waar je op dat moment naar verlangt. Angelo's mediterrane achtergrond schittert in elk gerecht. Naast het smaakvolle menu is er een uitgebreide wijnkaart.

271553756_4698050586938795_6728215580262896284_n
61044194_2189624581114754_5141080698035109888_n
13
Adres
Jan Pieter Heijestraat 121,
1054 ME Amsterdam

Flo's Appetizing

Bij Flo's Appetizing ben je aan het juiste adres voor handgemaakte Amerikaanse bagels. Eigenaresse Heather Eddy maakt elke dag met passie de meest verse bagels met gevarieerde toppings voor je klaar. Favoriet is de pastrami of gegrilde kaas en ei.

187513275_541642613509567_7586706852571280627_n
14
Adres
Eerste Constantijn Huygensstraat 63H,
1054 BT Amsterdam

Uncommon

In de levendige Eerste Constantijn Huijgenstraat biedt Uncommon een unieke koffie- en eetervaring. De oprichters, Clay en Josh, gaan verder dan de bekende koffiebronnen.  Ze halen ook bonen uit ongewone plantages in Myanmar en Indonesië, die ze vervolgens zelf branden. Bij elke geserveerde kop koffie voelen ze de verplichting om een eerbetoon te brengen aan de koffieproducent. Deze toewijding aan bijzondere koffie strekt zich ook uit naar het menu, waar vegetarische of vegan gerechten altijd een ongebruikelijk ingrediënt bevatten. Ondanks de drukte van de straat biedt het minimalistisch stijlvolle interieur van Uncommon een zen-achtige sfeer.

Schermafbeelding 2022-05-18 om 16.11.48
Schermafbeelding 2022-05-18 om 16.12.05
15
Adres
Willemsparkweg 74,
1071 HK Amsterdam

George W.P.A

George W.P.A is de ideale plek om neer te strijken voor een goed glas wijn en lekker eten met een chique touch. De brasserie in Zuid is naar eigen zeggen een combinatie van klassieke Franse gerechten, verpakt in New-Yorkse stijl en staat bekend om signature dishes zoals gegrilde kreeft en Blackened Tuna. Treed binnen (op reservering) in het "Upper South" van Amsterdam en see for yourself!

downloadgram.org_599174450_17869878831481062_7625921310109593583_n
downloadgram.org_584414906_17867642610481062_6913260930332692383_n
16
Adres
Staringplein 22,
1054 VL Amsterdam

Gorgo Lunchroom

Gorgo is opgezet door Rifat Ergor en Berkutay Gunel, die negen jaar geleden samen Istanboel verlieten en in Amsterdam hun droom van een eigen zaak realiseerden. Ergor is architect, Gunel creative director, en die creatieve blik voel je in alles: van het licht in de ruimte tot de manier waarop de keuken wordt benaderd. Hun lunchroom is geïnspireerd op Anatolië en omschrijven ze zelf als 'neither East nor West', een plek waar Turkse, Arabische, Perzische, Armeense en Griekse invloeden samenkomen. Op de kaart staan eigenzinnige gerechten zoals tosti’s met kavurma, tahini en honing, sesamkoekjes vol verschillende sesamvarianten en drankjes als sumac-limonade en hoşaf-kombucha.

1519ee_6ac76a1674b441f1abb675ca34e30f4d_mv2
17
Adres
Eerste Constantijn Huygensstraat 41H,
1054 BR Amsterdam

The Bab

Het Koreaanse restaurant The Bab heeft de authentieke smaak die je zou verwachten van een Koreaans restaurant, maar dan zonder al te fancy te zijn. Eigenaren Junghun Pyo en zijn vrouw Haksun (Sunny) Kim willen namelijk dat mensen zich op hun gemak voelen bij hen en casual Korean food kunnen proeven. Het eerste waar je aan moet denken als je denkt aan Koreaans eten zijn de gerechten bibimbap en gefrituurde kip. De bibimbap bevat rijst, groenten en een rauw ei. De gefrituurde kip is bereid met een speciale Koreaanse kruidenmix. Een ander populair gerecht dat je bij The Bab kunt bestellen zijn de kimchipannenkoeken. Deze pannenkoekjes zijn gevuld met ui en kimchi, een gefermenteerde kool die steeds populairder wordt in het westen.

brasserie-de-joffers-buiten02-1600px-1024×615
Brasserie_De_Joffers_Lunch-7-1600px-1024×683
18
Adres
Willemsparkweg 163,
1071 GZ Amsterdam

Brasserie de Joffers

Met een groot terras in de zomer én winter is brasserie Joffers al 15 jaar een bekende hotspot op steenworp afstand van het Vondelpark en het Museumkwartier. Mocht de zon niet schijnen, dan is er binnen genoeg plek - een met kunst en spiegelwanden ingerichte ruimte, wat voor een huiselijke sfeer zorgt. De ontmoetingsplek voor de buurt is ideaal voor ontbijt, lunch en diner of simpelweg voor een lekkere kop koffie.

273565404_2463417327127039_151412226997513128_n
19
Adres
Willemsparkweg 177,
1071 GZ Amsterdam

Batoni Khinkali

In Nederland is de Georgische keuken helaas ondervertegenwoordigd, ondanks haar rijke en boeiende culinaire erfgoed. Gelukkig biedt Batoni Khinkali een introductie tot deze smaakvolle keuken. Dit restaurant, opgericht door de Georgische klarinettist Levan Tskhadadze, combineert zijn liefde voor muziek met zijn passie voor koken. Hier kunnen gasten genieten van Georgische klassiekers zoals khinkali, katsjapuri en lobio, evenals een veganistisch en vleesmenu, allemaal geserveerd met de kenmerkende Georgische gastvrijheid.

Interieur
603d01f817e4616df2d8f5c2_5-contempera-showroom-20_3QRCgyXU-poster-00001
60391343e07110d1dfd078e2_grid1
20
Adres
Overtoom 135,
1054 HG Amsterdam

Contempera

In een voormalige bioscoop aan de Overtoom vind je Contempera. Een interieurwinkel, ontwerpstudio en high-end art galerie in een. Internationale allure gaat hier hand in hand met de Nederlandse nuchterheid. De stijl van Contempera wordt gekenmerkt door strakke lijnen en subtiele verfijning, eenvoud en elegantie met een eigenzinnige touch.

120215712_3464581680287775_8524877858352079533_n
21
Adres
Eerste Helmersstraat 84-C,
1054 DL Amsterdam

Arjan

Het herkenbare “Arjan boeket” zie je bij menig fietser op de schouder langskomen. De boeketten zijn te vinden bij Arjan Bloemen aan de Eerste Helmersstraat in Amsterdam. De eigenaar, Arjan Konincks, is al vanaf jongs af aan in de weer met bloemen. Samen met zijn team staat hij dagelijks klaar om u te helpen met het creëren van de mooiste boeketten.

Scherm­afbeelding 2023-11-14 om 12.46.19
Scherm­afbeelding 2023-11-14 om 12.46.32
22
Adres
Van Baerlestraat 10,
1071 AL Amsterdam

Carl Hansen & Søn

Carl Hansen & Søn, een Deens familiebedrijf onder leiding van de derde generatie, belichaamt meer dan honderd jaar vakmanschap in modern design.  Bij Carl Hansen & Søn geloven ze dat iconisch design voortkomt uit eenvoud, esthetiek en functionaliteit, met aandacht voor vakmanschap en hoogwaardige materialen. De focus op het behoud van Deense ontwerpklassiekers gaat volgens hun hand in hand met het verwelkomen van nieuwe invloedrijke ontwerpers om een diverse collectie van de beste moderne meubelklassiekers te creëren.

Menno+Kroon+-+Maikel+Thijssen+Photography+-+www.maikelthijssen.com-3
23
Adres
Cornelis Schuytstraat 11,
1071 JC Amsterdam

Menno Kroon

De uitbundige en sfeervolle etalage van Menno Kroon toont zulke betoverende en bijzondere bloemen dat je wel even binnen moet kijken. Prille liefde, verrukking, het onvermijdelijke afscheid. Elk boeket van Menno Kroon geeft betekenis aan een bijzonder moment. Niks is ze te gek bij Menno Kroon en u kunt er terecht voor de meest speciale en uiteenlopende boeketten.

Kunst & cultuur
241801382_194597056100298_7531339944812475387_n
24
Adres
Willemsparkweg 134,
1071 HR Amsterdam

Galerie Bildhalle

Bildhalle is oorspronkelijk opgericht als een Zwitserse galerie gespecialiseerd in klassieke en hedendaagse fotografie. De galerie heeft inmiddels vestigingen in Zürich en Amsterdam. Sinds de oprichting door Mirjam Cavegn in 2013, heeft de galerie zich ontwikkeld tot een van de meest gerespecteerde fotogaleries in Zwitserland. In oktober 2021 zette Bildhalle haar groei voort met de opening van een tweede galerie aan de Willemsparkweg in Amsterdam. Hier presenteert de galerie een zorgvuldig geselecteerde collectie van Nederlandse en internationale kunstenaars, variërend van opkomend talent tot gevestigde fotografen.

315727004_139279408874516_3171046503847699668_n
25
Adres
Willemsparkweg 64H,
1071 HK Amsterdam

Hama Gallery

Bij Hama Gallery geloven ze dat een galerie een grenzeloze ontmoetingsplaats is waar kunst en mensen samenkomen. Het doel is om kunst toegankelijker te maken door een unieke ervaring te bieden die breekt met traditie. De galerie verwelkomt bezoekers met open armen, of je nu binnenloopt voor een spontaan bezoek, een intieme privébezichtiging wilt, of samen met anderen kunst wilt vieren tijdens onze feestelijke openingen en tuinevenementen.

Groen stadsappartement in voormalig fietsenstalling

Groen stadsappartement in voormalig fietsenstalling

Kunstagenda Januari 2025

Kunstagenda Januari 2025

De Franse keuken in Amsterdam; een selectie van restaurants, epiceries, patisseries en brasseries

De Franse keuken in Amsterdam; een selectie van restaurants, epiceries, patisseries en brasseries

Onlangs bekeken
Bekijk het overzicht

Deze site maakt gebruik van cookies.

Voor welke cookies geef je akkoord?