Benedenhuis van bijna 230 m², verdeeld over drie woonlagen. Het benedenhuis is in 2021 geheel onder begeleiding van Büro Kif Design Studio gerenoveerd in ingericht. Daarnaast heeft de woning geschitterd in een editie van Stijlvol Wonen.
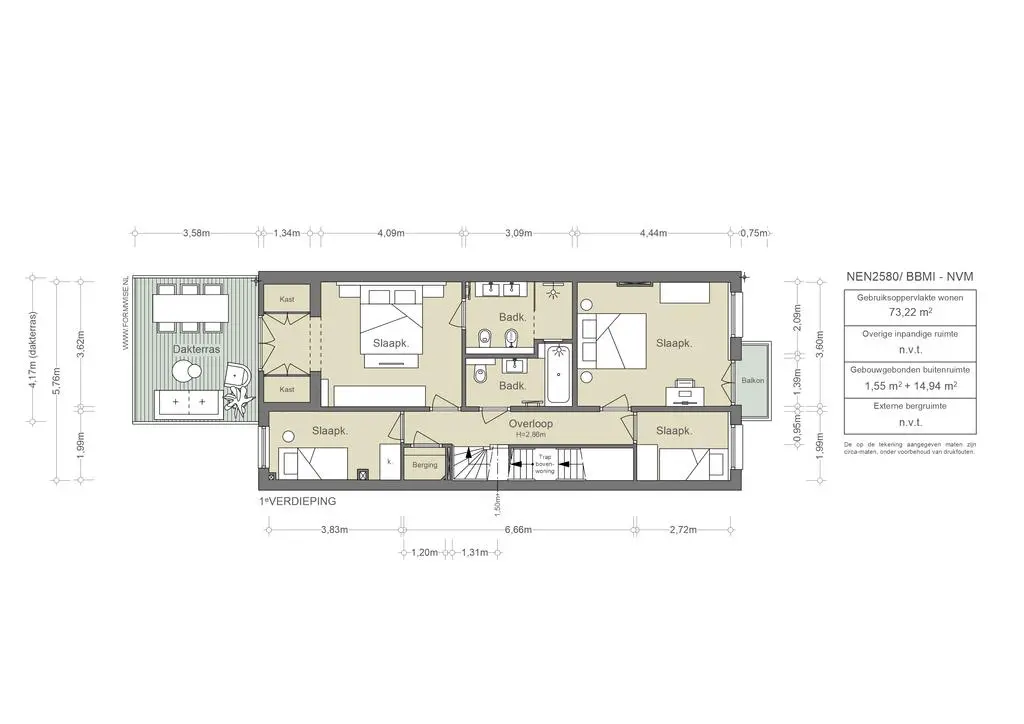
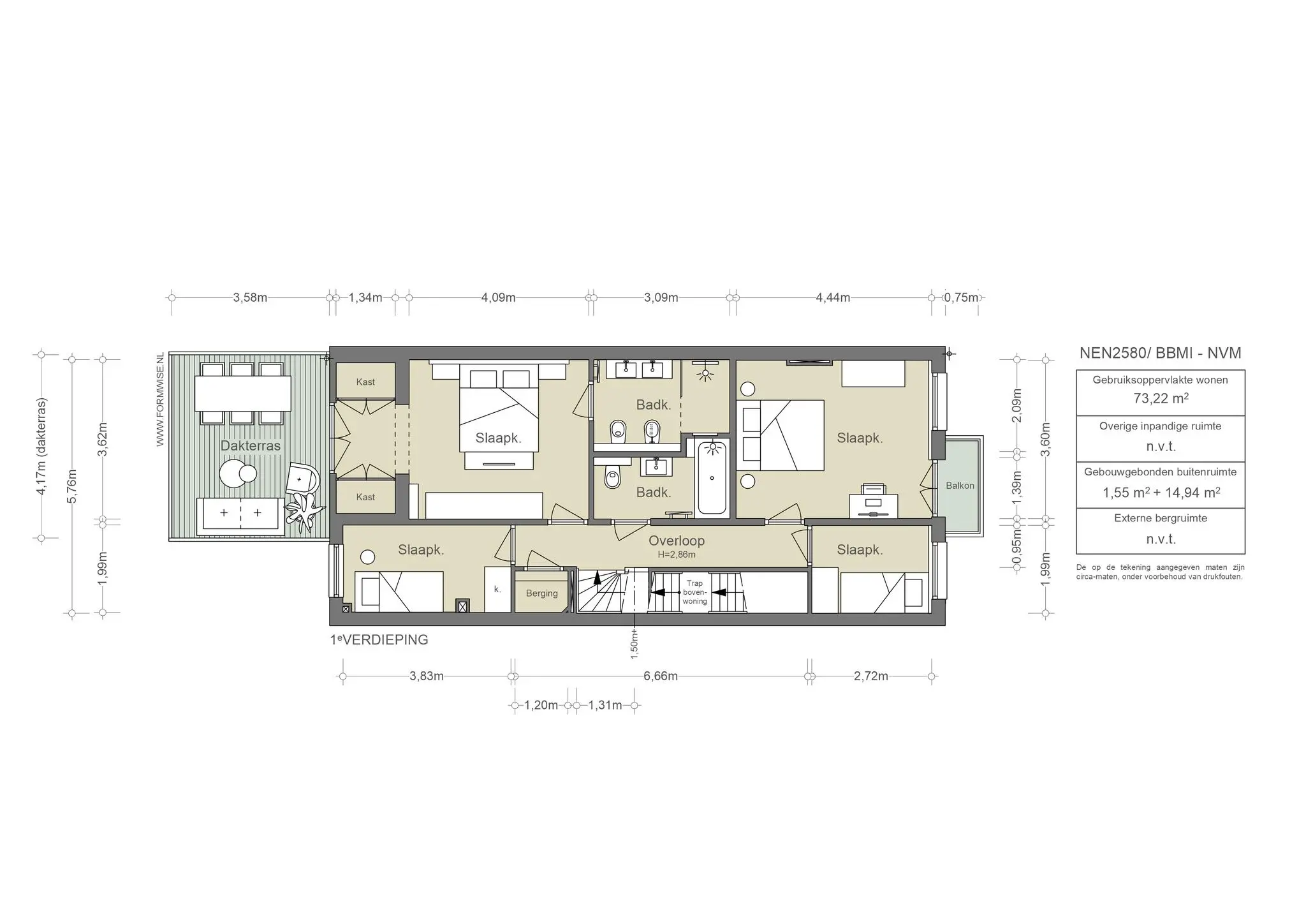
De woning beschikt over een kamer en suite met een keuken aan de achterzijde. De slaapverdieping heeft maar liefst 4 slaapkamers en twee badkamers, waarvan één van de slaapkamers aan de achterzijde toegang heeft tot een dakterras.
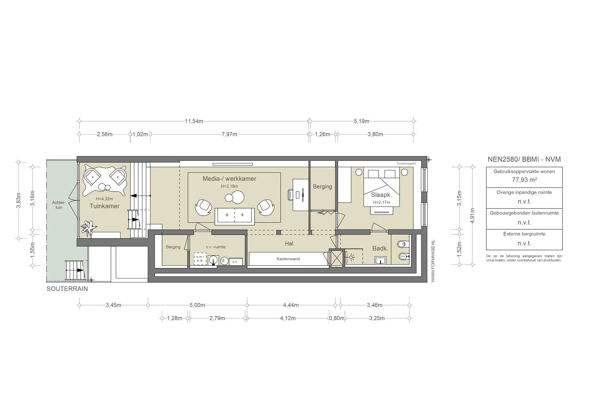
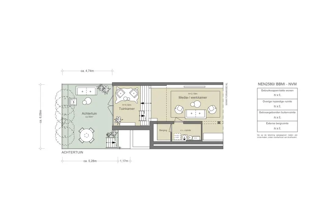
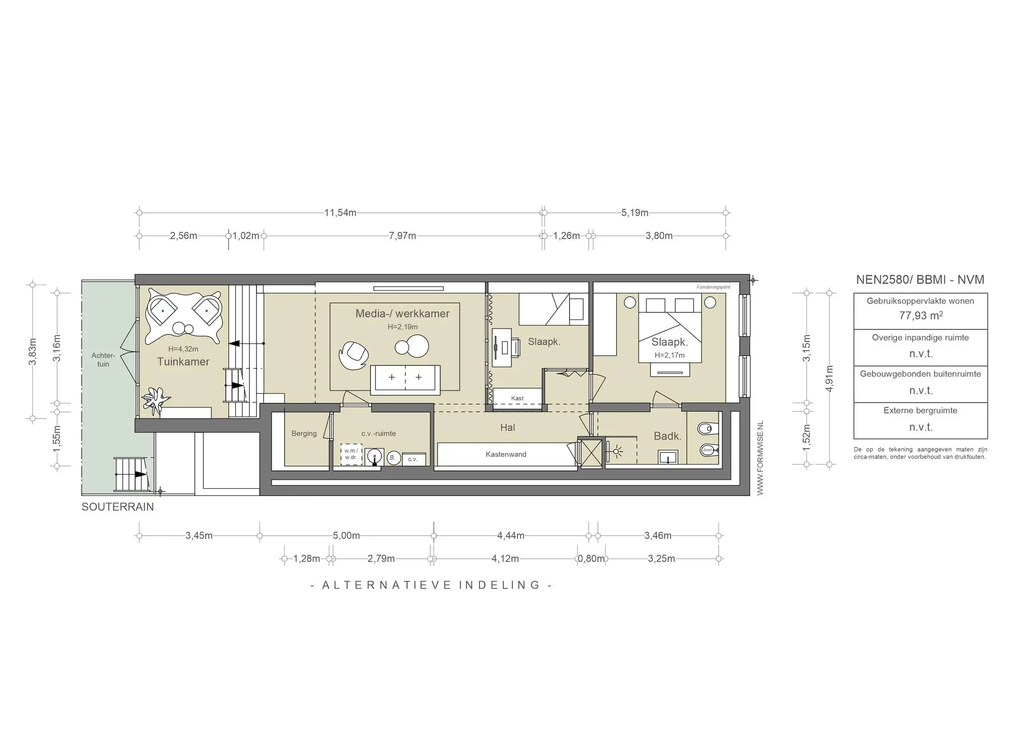
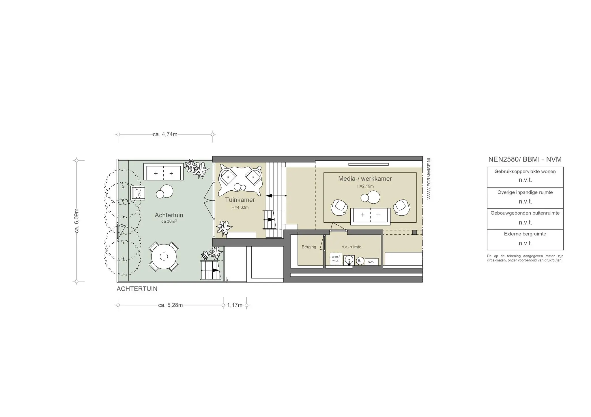
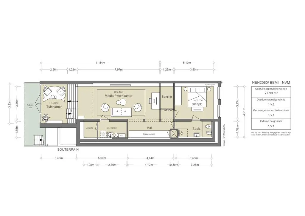
In het souterrain is een aparte slaapkamer met eigen badkamer, voorzien van douche, wastafel, toilet en bidet. Verder is er op deze verdieping een media-/werkkamer met toegang naar de tuin van 30 m².
Rondleiding
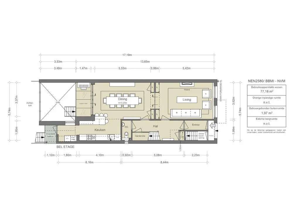
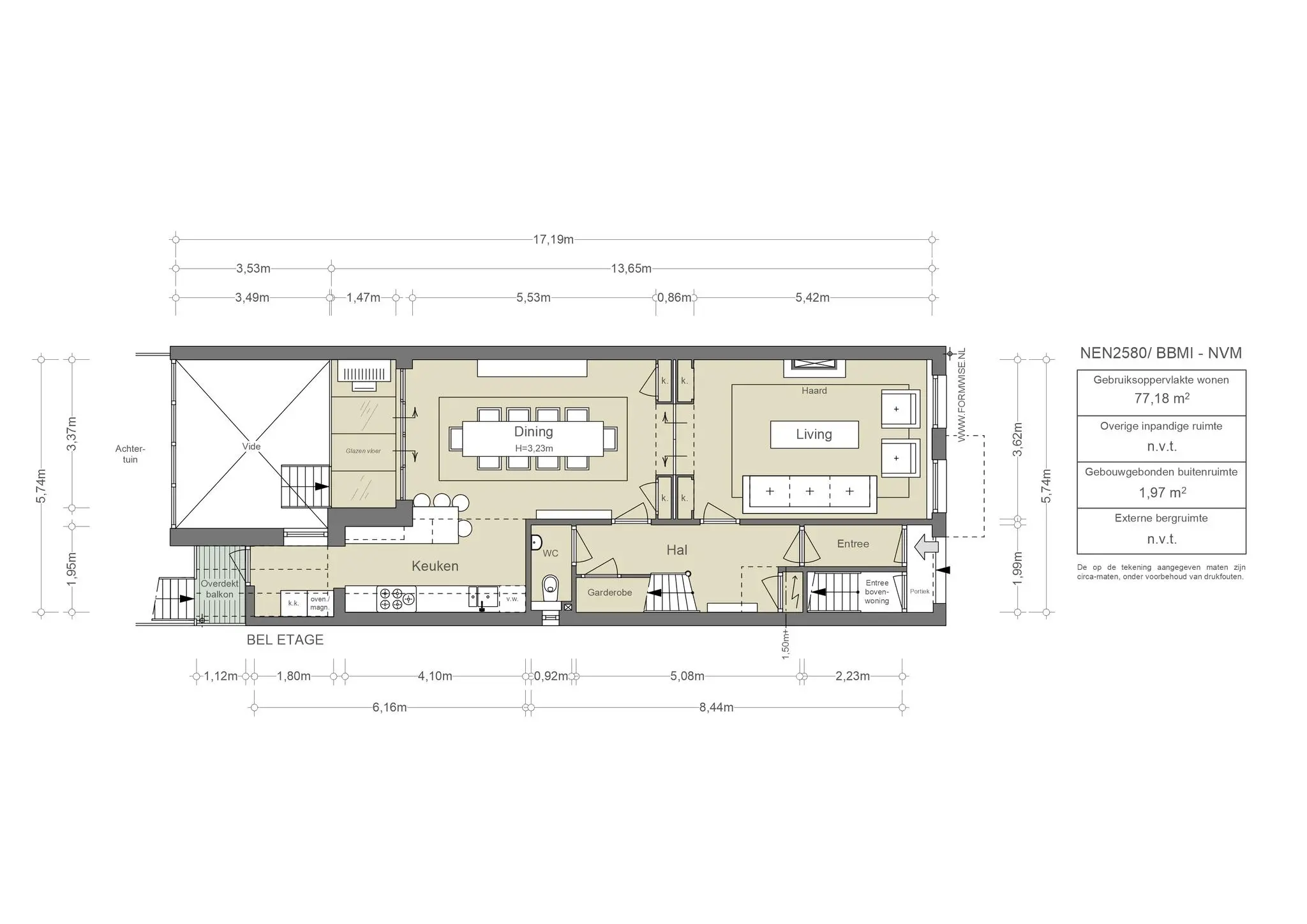
Dit benedenhuis heeft een eigen opgang met een sfeervol tochtportaal en een antieke glazen deur met een versiering met lelies. De hal is voorzien van een ruim toilet met fonteintje en een garderobe onder de trap. De woonkamer en-suite heeft een zitgedeelte, originele plafonds en een schouw met open haard. Via fraaie glazen schuifdeuren kom je in de eetkamer met het originele plafond, die in directe verbinding staat met de luxe open keuken voorzien van hoogwaardige inbouwapparatuur. De tuinkamer is bereikbaar via schuifdeuren en een stalen trap en is gerealiseerd tijdens het funderingsherstel. Het souterrain biedt een open kamer, momenteel als speelplek, een logeerkamer met eigen badkamer en een technische ruimte met cv-installatie en aansluitingen voor wasmachine en droger. De eerste etage beschikt over een hoofdslaapkamer met toegang tot een ruim terras, een grote slaapkamers met voorbalkon en twee zijkamers, momenteel werkkamers. Er is een centraal toegankelijke badkamer en de hoofdslaapkamer heeft een privé badkamer. De tuin is bereikbaar via openslaande deuren vanuit de tuinkamer of de tuintrap vanuit de keuken, en heeft een betegeld oppervlak met groene borders.
Buurtgids
Op de plek waar nu het Museumplein ligt stonden 200 jaar geleden nog boerderijen. Om meer woonruimte te creëren, begon hier begin vorige eeuw de bouw van het Museumkwartier. Herkenbaar is de hand van architect Cuypers, die naast de eerste woningen ook het Rijksmuseum in neogotische stijl ontwierp. Deze periode is prachtig verwoord in Publieke Werken van Thomas Rosenboom. Samen met het Concertgebouw in de neorenaissance stijl bepaalt dit gebouw het karakter van de wijk.
Met de komst van het Van Goghmuseum kwam ook de hedendaagse bouwkunst van Gerrit Rietveld naar het Museumplein. Het aanbod van restaurants, cafés en winkels is even eclectisch als de bouwstijlen en past uitstekend bij de internationale allure van de wijk. Haute couture kenners en kopers kunnen terecht in de P.C. Hooftstraat bij modehuizen als Burberry, Ba&sh en Isabel Marant Étoile. Het prettige van deze buurt is dat het Centrum, De Pijp en Amsterdam Zuid – met het Vondelpark – allemaal op loopafstand zijn.
Bijzonderheden
• Gebruiksoppervlakte wonen circa 228 m²
• Tuin gelegen op het noorden van circa 30 m²
• Gelegen op eigen grond
• Energielabel B
• In 2021 gerenoveerd in ingericht door Büro Kif Design Studio
• Fundering is vernieuwd in 2003
• Rijksbeschermd stadsgezicht
Van Bree No. 150
Een woning met karakter en historie, die door de huidige eigenaar volledig is getransformeerd naar de hedendaagse tijd, met behoud van de typische kenmerken die horen bij een pand aan de Van Breestraat. Nadat wij hen hebben begeleid bij de aankoop van dit benedenhuis, zijn we opnieuw gevraagd om dit prachtige benedenhuis voor hen te verkopen. Na de aankoop hebben ze veel zorg besteed aan de afwerking en details van alle ruimtes. Zo zijn onder andere de badkamers vernieuwd en is er een nieuwe keuken geïnstalleerd. Daarnaast is er veel aandacht besteed aan kleurgebruik en wandafwerking. Dit alles onder begeleiding van Büro Kif Design Studio. Het resultaat hiervan is ook gepubliceerd in het magazine Stijlvol Wonen, mei 2022.
Kortom, dit benedenhuis is bijzonder smaakvol en zal tijdens een bezichtiging tot de verbeelding spreken.
Ronald van de Bijl | Makelaar Broersma Wonen
In het hart van het gewilde Amsterdam Zuid, bevindt zich op het adres Van Breestraat 150 een tijdloze woning. Deze schitterende residentie, gehuld in de charmante neorenaissance-stijl, ademt een onmiskenbaar gevoel van elegantie en raffinement uit.
De Neorenaissance was de populairste bouwstijl in de 19e eeuw, een stijlperiode waarbij de Hollandse Renaissance uit de 16e eeuw opnieuw werd geïnterpreteerd. Kenmerkend voor de Neorenaissance zijn de horizontale, natuurstenen lagen tussen het metselwerk en de trapgevels, die bijna niet zijn te onderscheiden van die uit de tijd van de Renaissance.
Via de eigen opgang kom je via het tochtportaal met de antieke glazen deur met een voorstelling van lelies in de hal. De hal heeft een ruim toilet met fonteintje en een garderobe onder de trap. De woonkamer en-suite is verdeeld in een voorkamer met zitgedeelte en heeft nog de originele plafonds en schouw met open haard. De en-suite is voorzien van fraaie glazen schuifdeuren die toegang geven tot de eetkamer aan de achterzijde. Deze eetkamer is eveneens voorzien van het originele plafond. De luxe open keuken staat in directe verbinding met de eetkamer en is voorzien van diverse luxe inbouwapparatuur zoals een stoomoven en Quooker. Vanuit de eetkamer is middels schuifdeuren en een stalen trap de tuinkamer toegankelijk. Deze kamer is gerealiseerd in de uitbouw welke gelijk met het funderingsherstel en uitdiepen van de kelder is gerealiseerd. Door deze trap is er een open verbinding met het ondergelegen souterrain.
Dit souterrain heeft grenzend aan de tuinkamer een open kamer welke nu dient als speelplek voor de kinderen, maar ook kan dienen als thuiskantoor. Verder zit er aan de voorzijde een logeerkamer met een eigen badkamer voorzien van een douche, toilet, bidet en wastafel. Voorts is er nog een technische ruimte met opstelling van cv-installatie, boiler en aansluiting voor wasmachine en droger. Aangrenzend is er een berging.
Tuin
De tuin is toegankelijk via openslaande deuren vanuit de tuinkamer of via de tuintrap vanuit de keuken. Er is een mooie houten schutting met ranke planken en ingebouwde verlichting. Verder is deze tuin volledig betegeld en zijn de borders voorzien van diverse groene bomen en struiken. Ondanks de noord ligging is er op bepaalde delen van de dag in de zomer toch zon.
Deze verdieping heeft vier slaapkamers, waarvan de hoofdslaapkamer aan de achterzijde is gelegen met toegang tot een ruim terras op de uitbouw. Hier kun je in de zomer genieten van de laatste avondzon. Verder is er aan weerszijden van het voormalige balkon vaste kastruimte gecreëerd. Vanuit de slaapkamer is de privébadkamer bereikbaar met een ruime inloopdouche, toilet, bidet en dubbele wastafel. De tweede grote slaapkamer is aan de voorzijde met toegang tot een klein voorbalkon. De twee zijkamers zijn bijna 2 meter breed en nu ingericht als werkkamers, maar ook geschikt als kinderkamers. Voor deze drie kamers is er een centraal toegankelijke badkamer voorzien van een ligbad, wastafel en toilet.