Turn key & eigentijds appartement van circa 143 m² met waanzinnig dakterras gelegen op eigen grond. Het gehele woonhuis gerenoveerd, denk hierbij aan funderingsherstel, nieuw dak, reinigen van de gevel, nieuw leidingwerk, electra, ramen/dubbel glas HR+++, badkamers, keuken e.d.  Dit heeft geresulteerd in een prachtig luxe gerenoveerd dubbel bovenhuis van ca. 143 m² met haar eigen entree vanaf de straatzijde en dakterras van bijna 30 m².  Het licht, ruimtelijk gevoel en de keuze van materialen en kleuren komen hier uitzonderlijk goed samen. De klassieke indeling is grotendeels behouden door onder andere de ensuite deuren, maar op een eigentijdse wijze ingevuld. Het comfort is onder andere aanwezig door de vloerverwarming, airconditioning, domotica en de zonnepanelen.
Het comfortabele appartement ligt in de Valeriusstraat een heerlijke plek in zuid, om de hoek van een rijk aanbod aan kwalitatieve winkels en restaurants zoals Bar Barolo, Carter, Jules/Juliette, LOT61 of Castell.  

Rondleiding
Het appartement heeft haar eigen entree vanaf de straatzijde, op het tussenstuk van de trap is er ruimte voor o.a. een jas en de trap is stijlvol afgewerkt met sisal tapijt. In de hal is het gastentoilet, uitgevoerd met travertin. De hal en de living wordt gescheiden door de houten taatsdeur met glas voor een rustige en open uitstraling.
De woonverdieping is gelegen op de tweede etage, de hoge plafonds van 3,27 m en de erker versterken de inval en maakt meteen nieuwsgierig. 
De living heeft de prachtige originele ensuite, deze is in ere hersteld. Er is gekozen om aan de voorzijde de eetkeuken te plaatsen. De eigentijdse keuken is met zorg geselecteerd, een pronkstuk in deze ruimte. De donkere houten fronten contrasteren met een rijk marmeren blad. Ingebouwd zijn de beste apparaten en uiteraard compleet: onder andere Bora inductie koken met downdraft ventilatie, Quooker  en een Liebherr wijnkoelkast. Elk element is gekozen met oog voor luxe en dagelijks gebruik. Een gashaard vormt een elegant middelpunt en brengt extra sfeer in het eetgedeelte. 
Aan de achterzijde is de sfeervolle zitkamer, hier stroomt het licht naar binnen en gericht op het zuiden. De ensuite geeft een geborgen sfeer en ook praktische bergruimte. Grenzend aan het zitgedeelte is de werkkamer, hier is een opmaat gemaakt bureau geplaatst. Een heerlijke werk- of studeerkamer. 
Het appartement heeft een eikenhouten vloeren met vloerverwarming, onzichtbaar maar overal aanwezig, garandeert comfort. Ingebouwde airco’s zijn subtiel weggewerkt in de plafonds, zodat techniek nooit de esthetiek verstoort. Het geïntegreerde domoticasysteem biedt comfort en gemak door verlichting, de gordijnen en klimaat op prettige wijze te regelen. 
De sfeer en stijl is ook op deze etage met zorg doorgevoerd. Rustige en comfortabele slaapkamers. De hoofdslaapkamer met haar walk-in closet (reeds voorzien van kasten en lades) aan de achterzijde beschikt over een eigen balkon en een ensuite badkamer die de verfijning van een luxe hotelsuite evenaart. Zachte tinten beton ciré vormen de basis, gecombineerd met een wastafel van travertin, spiegelverwarming, het vrijstaande ligbad en een royale inloopdouche. Uiteraard ook hier vloerverwarming  voor een constant comfort.
Aan de voorzijde bevinden zich twee volwaardige slaapkamers, ruim en licht, tevens voorzien van zorgvuldig herstelde kozijnen en ramen met karaktervolle detaillering. Een tweede luxe badkamer, eveneens uitgevoerd met hoogwaardige materialen, met een ruime inloopdouche en wastafelmeubel. Perfect voor logés of kinderen. Praktische functies, zoals een apart toilet, opbergruimte en een discrete wasruimte, zijn elegant geïntegreerd. Overal heerst dezelfde sfeer: ingetogen luxe, subtiele technologie en verfijnde afwerking.

Buitenruimte
De buitenruimtes vormen een vanzelfsprekend verlengstuk van het interieur, ontworpen met hetzelfde oog voor detail en comfort. Aan de achterzijde liggen twee balkons op het zuiden. Het balkon op de woonverdieping sluit direct aan op de zitkamer en is vernieuwd in hout. Aan de voorzijde biedt een Frans balkon een charmante verlenging van de keuken. Een van de hoogtepunten is het dakterras. Via een vaste trap, afgesloten door een elektronisch luik, wordt een royaal houten dek bereikt met panoramisch uitzicht over de stad. Een buitenruimte die plaats biedt aan een uitnodigende zithoek en een eettafel voor lange avonden in de open lucht. 

Buurtgids 
De Willemsparkbuurt in Amsterdam Zuid staat bekend om haar prachtige historische gebouwen, brede lanen en groene parken. Het is een van de meest gewilde buurten van Amsterdam door haar luxe uitstraling en centrale ligging.  Er is een levendige sfeer en een ruim aanbod met diverse speciaalzaken voor de dagelijkse boodschappen en er zijn restaurants, bars en cafés, denk hier aan Bar Barolo, Carter of Le Petit George.  Het Vondelpark ligt om de hoek en voor cultuur is er Het Concertgebouw en het Museumplein.

Bijzonderheden
•    Gebruiksoppervlakte wonen circa 143 m²
•    Dakterras van circa 29 m²
•    Balkon van circa 4 m²
•    Gelegen op eigen grond
•    Energielabel A+
•    4 PV zonnepanelen
•    Turn key – luxe 
•    Badmeubels en travertin bladen/wasbakken zijn maatwerk
•    Alle kranen zijn van Hotbath
•    Fundering is hersteld in 2025 
•    Vloerverwarming
•    Airconditioning 
•    Domotica besturing door middel van 2 ipads
•    VvE met 2 leden 
•    Gemeentelijk beschermd stadsgezicht
•    Verkoop onder voorbehoud van splitsing
•    Projectnotaris Buma Algera 

AM105492-2046674-Valeriusstraat-103-2,-Amsterdam-243328038

Quiet Luxury
De allereerste keer dat ik het appartement inliep was het nog geheel in oude staat, voorgaande eigenaren hadden hier jaren gewoond en was toe aan een renovatie. De potentie, het licht en uiteraard de sfeer was meteen zichtbaar. De huidige eigenaren hebben het gehele woonhuis hoogwaardig gerenoveerd, denk hierbij aan funderingsherstel, nieuw dak, reinigen van de gevel, nieuw leidingwerk, electra, badkamers, keuken e.d. Dit heeft geresulteerd in een prachtig gerenoveerd dubbel bovenhuis van ca. 143 m² met eigen entree vanaf de straatzijde en dakterras van bijna 30 m². Het licht, ruimtelijk gevoel en de keuze van materialen en kleuren komen hier uitzonderlijk goed samen. De klassieke indeling is grotendeels behouden door onder andere de ensuite deuren, maar op een eigentijdse wijze ingevuld. En juist dat maakt dit huis bijzonder: met respect voor het verleden en klaar voor de toekomst (energielabel A*). Het comfort is aanwezig door de vloerverwarming, airconditioning, domotica en de zonnepanelen. Het comfortabele appartement ligt in de Valeriusstraat een heerlijke plek in zuid, om de hoek van een rijk aanbod aan kwalitatieve winkels en restaurants zoals Bar Barolo, Carter, Jules/Juliette, LOT61 of Castell.


Judith de Jong | Makelaar Broersma Wonen

AM105492-2046674-Valeriusstraat-103-2,-Amsterdam-243327842
Designvisie

De Valeriusstraat is een toonbeeld van Amsterdamse woonarchitectuur uit het begin van de twintigste eeuw. Een straat met een herkenbare gevels, waarin detail, materiaalgebruik en ornamentiek elkaar afwisselen. In dit straatbeeld is nummer 103 op vanzelfsprekende wijze ingebed. De gevel voegt zich naar het collectieve profiel van de straat, maar onderscheidt zich subtiel in verticale lijnen en verfijnde ornamenten. De woning heeft de typologie van het klassieke herenhuis: een dubbele bovenwoning en een dakterras als bekroning. Binnen is gekozen voor een eigentijdse en luxe invulling van het oorspronkelijke casco. De plattegronden zijn geoptimaliseerd en gekeken naar hedendaags comfort en luxe. Originele details, waaronder de kozijnen, het lijstwerk en de en suite deuren, zijn met zorg behouden en gerestaureerd, terwijl moderne voorzieningen op hoogwaardige wijze zijn toegevoegd met het historische karakter van het pand De uitvoering van deze grondige renovatie is gedaan door Noble Bouw b.v. in samenwerking met interieur studio Moscandi. Haar filosofie is gebaseerd op het samenbrengen van minimalisme, functionaliteit en natuurlijke elementen. Elk project wordt benaderd met een uniek perspectief. Deze filosofie gaat verder dan het creëren van ruimtes die er mooi uitzien—het gaat om het ontwerpen van omgevingen die authentiek, doelgericht en duurzaam aanvoelen. Oog voor detail staat centraal in elk project. Van de keuze van materialen tot de balans tussen licht en vorm.

AM105492-2046674-Valeriusstraat-103-2,-Amsterdam-243853772
AM105492-2046674-Valeriusstraat-103-2,-Amsterdam-243328062
AM105492-2046674-Valeriusstraat-103-2,-Amsterdam-243328046
AM105492-2046674-Valeriusstraat-103-2,-Amsterdam-243327850
Wonen en koken

Het appartement heeft haar eigen entree vanaf de straatzijde, op het tussenstuk van de trap is er ruimte voor o.a. een jas en de trap is stijlvol afgewerkt met sisal tapijt. In de hal is het gastentoilet, stijlvol uitgevoerd met travertin. De hal en de living wordt gescheiden door de houten taatsdeur met glas voor een rustige en open uitstraling. De woonverdieping is gelegen op de tweede etage, de hoge plafonds van 3,27 m en de erker versterken het lichtinval en maakt meteen nieuwsgierig. De living heeft de prachtige originele ensuite, deze is in ere hersteld. Er is gekozen om aan de voorzijde de eetkeuken te plaatsen. De eigentijdse keuken is met zorg geselecteerd, een pronkstuk in deze ruimte. De donkere houten fronten contrasteren met een rijk Kwartsiet Taj Mahal blad. Ingebouwd zijn de beste apparaten en uiteraard compleet: onder andere Bora inductie koken met downdraft ventilatie, Quooker  en een Liebherr wijnkoelkast. Elk element is gekozen met oog voor luxe en dagelijks gebruik. Een gashaard vormt een elegant middelpunt en brengt extra sfeer in het eetgedeelte. Aan de achterzijde is de sfeervolle zitkamer, hier stroomt het licht naar binnen en gericht op het zuiden. De ensuite geeft een geborgen sfeer en ook praktische bergruimte. Grenzend aan het zitgedeelte is de werkkamer, hier is een opmaat gemaakt bureau geplaatst. Een heerlijke werk- of studeerkamer. Het appartement heeft een eikenhouten vloeren met vloerverwarming, onzichtbaar maar overal aanwezig, garandeert comfort. Ingebouwde airco’s zijn subtiel weggewerkt in de plafonds, zodat techniek nooit de esthetiek verstoort. Het geïntegreerde domoticasysteem biedt comfort en gemak door verlichting, de gashaard en klimaat op prettige wijze te regelen.

AM105492-2046674-Valeriusstraat-103-2,-Amsterdam-243328220
AM105492-2046674-Valeriusstraat-103-2,-Amsterdam-243327970
AM105492-2046674-Valeriusstraat-103-2,-Amsterdam-243327888
AM105492-2046674-Valeriusstraat-103-2,-Amsterdam-243327946
AM105492-2046674-Valeriusstraat-103-2,-Amsterdam-243328316
AM105492-2046674-Valeriusstraat-103-2,-Amsterdam-243328284
AM105492-2046674-Valeriusstraat-103-2,-Amsterdam-243328322
Slapen en baden

De sfeer en stijl is ook op deze etage met zorg doorgevoerd. Rustige en comfortabele slaapkamers. De hoofdslaapkamer met haar walk-in closet (reeds voorzien van kasten en lades) aan de achterzijde beschikt over een eigen balkon en een ensuite badkamer die de verfijning van een luxe hotelsuite evenaart. Zachte tinten beton ciré vormen de basis, gecombineerd met een wastafel van travertin, spiegelverwarming, het vrijstaande ligbad en een royale inloopdouche. Uiteraard ook hier vloerverwarming  voor een constant comfort. Aan de voorzijde bevinden zich twee volwaardige slaapkamers, ruim en licht, tevens voorzien van zorgvuldig herstelde kozijnen en ramen met karaktervolle detaillering. Een tweede luxe badkamer, eveneens uitgevoerd met hoogwaardige materialen, met een ruime inloopdouche en wastafelmeubel. Perfect voor logés of kinderen. Praktische functies, zoals een apart toilet, opbergruimte en een discrete wasruimte, zijn elegant geïntegreerd. Overal heerst dezelfde sfeer: ingetogen luxe, subtiele technologie en verfijnde afwerking.

AM105492-2046674-Valeriusstraat-103-2,-Amsterdam-243328278
AM105492-2046674-Valeriusstraat-103-2,-Amsterdam-243328312
AM105492-2046674-Valeriusstraat-103-2,-Amsterdam-243328300
AM105492-2046674-Valeriusstraat-103-2,-Amsterdam-243328368
AM105492-2046674-Valeriusstraat-103-2,-Amsterdam-243328430
AM105492-2046674-Valeriusstraat-103-2,-Amsterdam-243328344
AM105492-2046674-Valeriusstraat-103-2,-Amsterdam-243328550
AM105492-2046674-Valeriusstraat-103-2,-Amsterdam-243327916
Het dakterras en de balkons

De buitenruimtes vormen een vanzelfsprekend verlengstuk van het interieur, ontworpen met hetzelfde oog voor detail en comfort. Aan de achterzijde liggen twee balkons op het zuiden. Het balkon op de woonverdieping sluit direct aan op de zitkamer en is vernieuwd in hout. Aan de voorzijde biedt een Frans balkon een charmante verlenging van de keuken. Een van de hoogtepunten is het dakterras. Via een vaste trap, afgesloten door een elektronisch luik, wordt een royaal houten dek bereikt met panoramisch uitzicht over de stad. Een buitenruimte die plaats biedt aan een uitnodigende zithoek en een eettafel voor lange avonden in de open lucht.

AM105492-2046674-Valeriusstraat-103-2,-Amsterdam-244306168
AM105492-2046674-Valeriusstraat-103-2,-Amsterdam-244306096
Valeriusstraat 103 2-811
AM105492-2046674-Valeriusstraat-103-2,-Amsterdam-243328580
AM105492-2046674-Valeriusstraat-103-2,-Amsterdam-243328608
Buurtgids

De Willemsparkbuurt in Amsterdam Zuid staat bekend om haar prachtige historische gebouwen, brede lanen en groene parken. Het is een van de meest gewilde buurten van Amsterdam door haar luxe uitstraling en centrale ligging.  Er is een levendige sfeer en een ruim aanbod met diverse speciaalzaken voor de dagelijkse boodschappen en er zijn restaurants, bars en cafés, denk hier aan Bar Barolo, Carter of Le Petit George.  Het Vondelpark ligt om de hoek en voor cultuur is er Het Concertgebouw en het Museumplein.

Bereikbaarheid
De Valeriusstraat bevindt zich in het hart van Amsterdam-Zuid, waar rust en bereikbaarheid elkaar moeiteloos vinden. Vanuit huis wandel je in enkele minuten naar het Vondelpark, het Valeriusplein of de Cornelis Schuytstraat, met haar geliefde speciaalzaken, terrassen en traiteurs. Ook de culturele as van het Museumplein ligt op korte afstand. De woning is uitstekend ontsloten, zowel met de fiets als met het openbaar vervoer. Tramlijnen richting het centrum, station Zuid of de Zuidas bevinden zich op loopafstand. Voor automobilisten zijn de uitvalswegen naar de Ring A10 eenvoudig te bereiken via de Amstelveenseweg of de Stadionweg.

Parkeren
Parkeren is mogelijk via een vergunningenstelsel op de openbare weg (vergunningsgebied Zuid 8.1). Met een parkeervergunning voor Zuid 8.1 mag u parkeren in Zuid-1, Zuid-2 en Zuid-8. Een parkeervergunning voor bewoners kost € 192,81 per 6 maanden. Momenteel is er voor dit vergunningsgebied een wachttijd van 8 maanden. Een tweede parkeervergunning is in dit gebied niet mogelijk. (Bron: Gemeente Amsterdam, januari 2025).

AM105492-2046674-Valeriusstraat-103-2,-Amsterdam-243328230
AM105492-2046674-Valeriusstraat-103-2,-Amsterdam-243328016
AM105492-2046674-Valeriusstraat-103-2,-Amsterdam-243328038
AM105492-2046674-Valeriusstraat-103-2,-Amsterdam-243327850
Kenmerken
Valeriusstraat 103-2, Amsterdam
Vraagprijs
  • € 2.080.000 k.k.
Beschikbaarheid
  • In overleg
Vertrekken
  • 6 kamers
  • 3 slaapkamers
  • 2 badkamers
Onderhoud
  • Intern: Uitstekend
  • Extern: Uitstekend
Oppervlakten & Inhoud
  • Woonoppervlakte: 143 m²
  • Gebouwgebonden buitenruimte: 38 m²
Bouwjaar
  • 1911
Installaties
  • Airconditioning
  • Domotica
  • Frans balkon
  • Mechanische ventilatie
  • Rookkanaal
  • TV kabel
  • Zonnepanelen
Ligging
  • Aan rustige weg
  • Beschutte ligging
  • In woonwijk
Parkeren
  • Betaald parkeren
  • Parkeervergunningen
Type verwarming
  • CV Ketel
  • Gashaard
  • Vloerverwarming geheel
Type warmwater
  • CV Ketel
Bestemming
  • Woonruimte
Eigendomssoort
  • Volle eigendom
Buitenruimte
  • Geen tuin
  • Balkon
  • Dakterras
Kadastraal
  • Gemeente: Amsterdam
  • Sectie: U
  • Nummer: 9999
Duurzaamheid
  • Dakisolatie
  • Dubbel glas
  • Hr glas
  • Vloerisolatie
  • Energielabel A+
Soort
  • Appartement
  • Bovenwoning
Welke woonlaag
  • 3e
Bijzonderheden
  • Beschermd stads of dorpsgezicht
Overige kenmerken

Rioolrecht ('25) € 185,20 per jaar
Servicekosten VvE € 225,- per maand
 

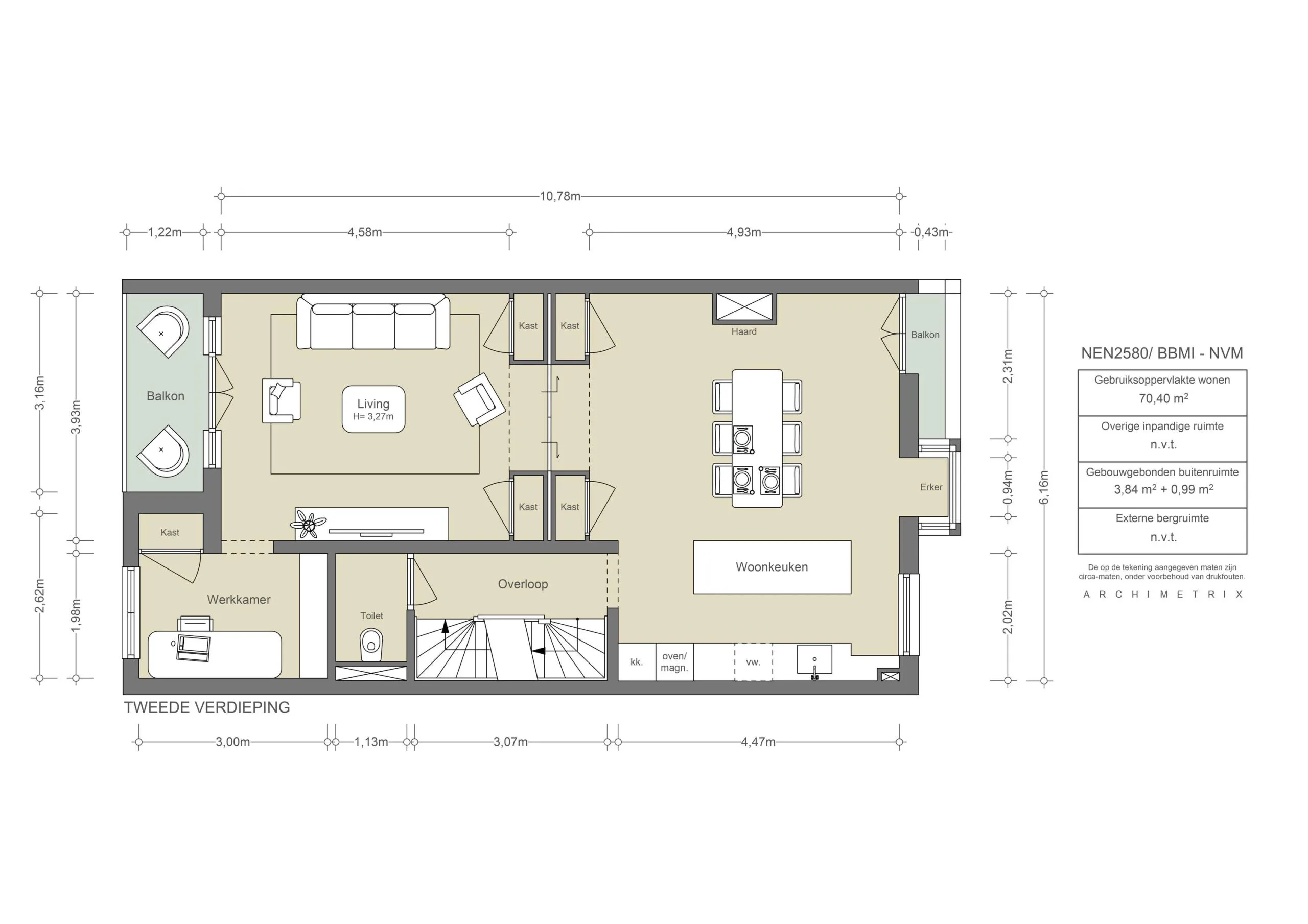
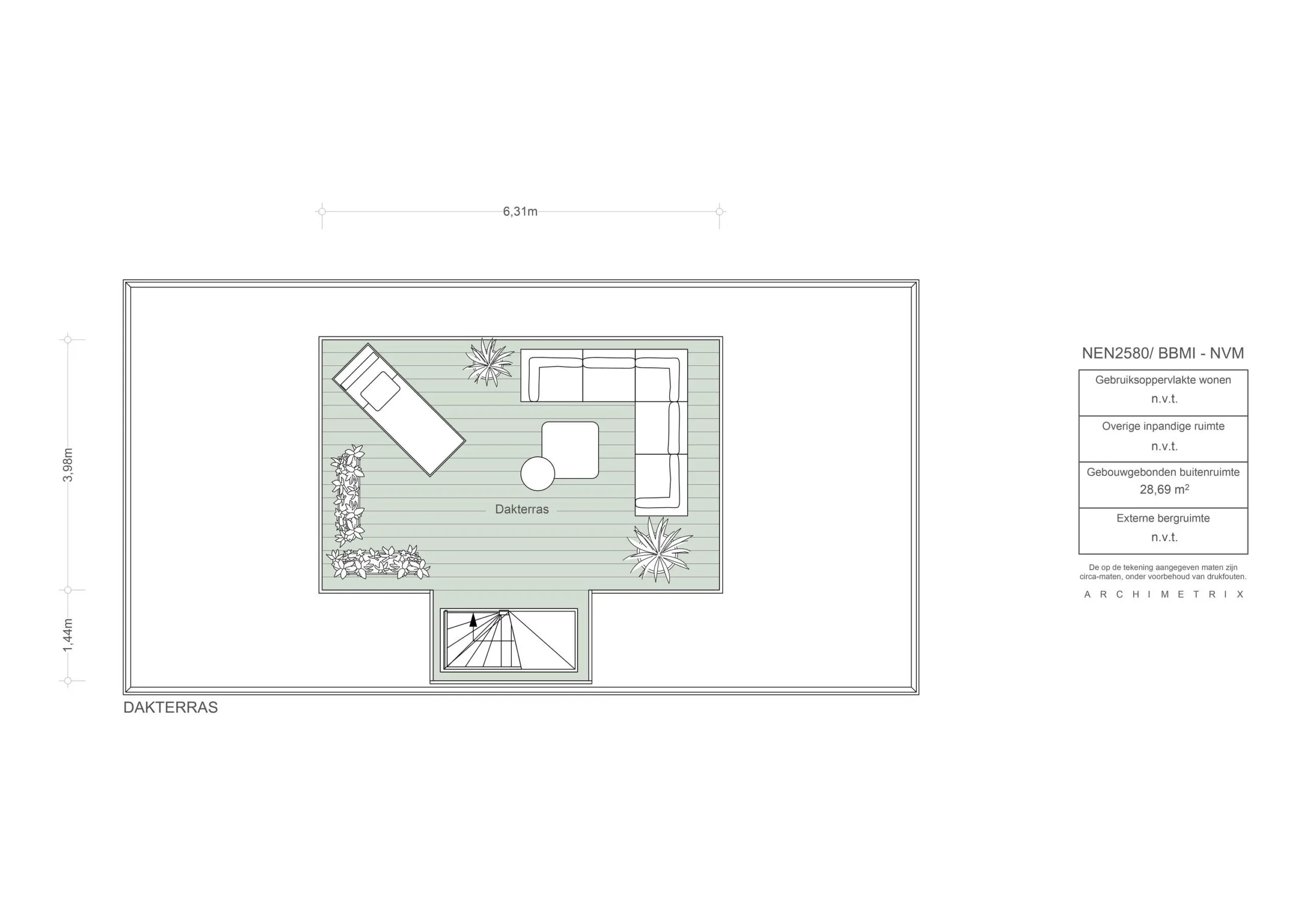
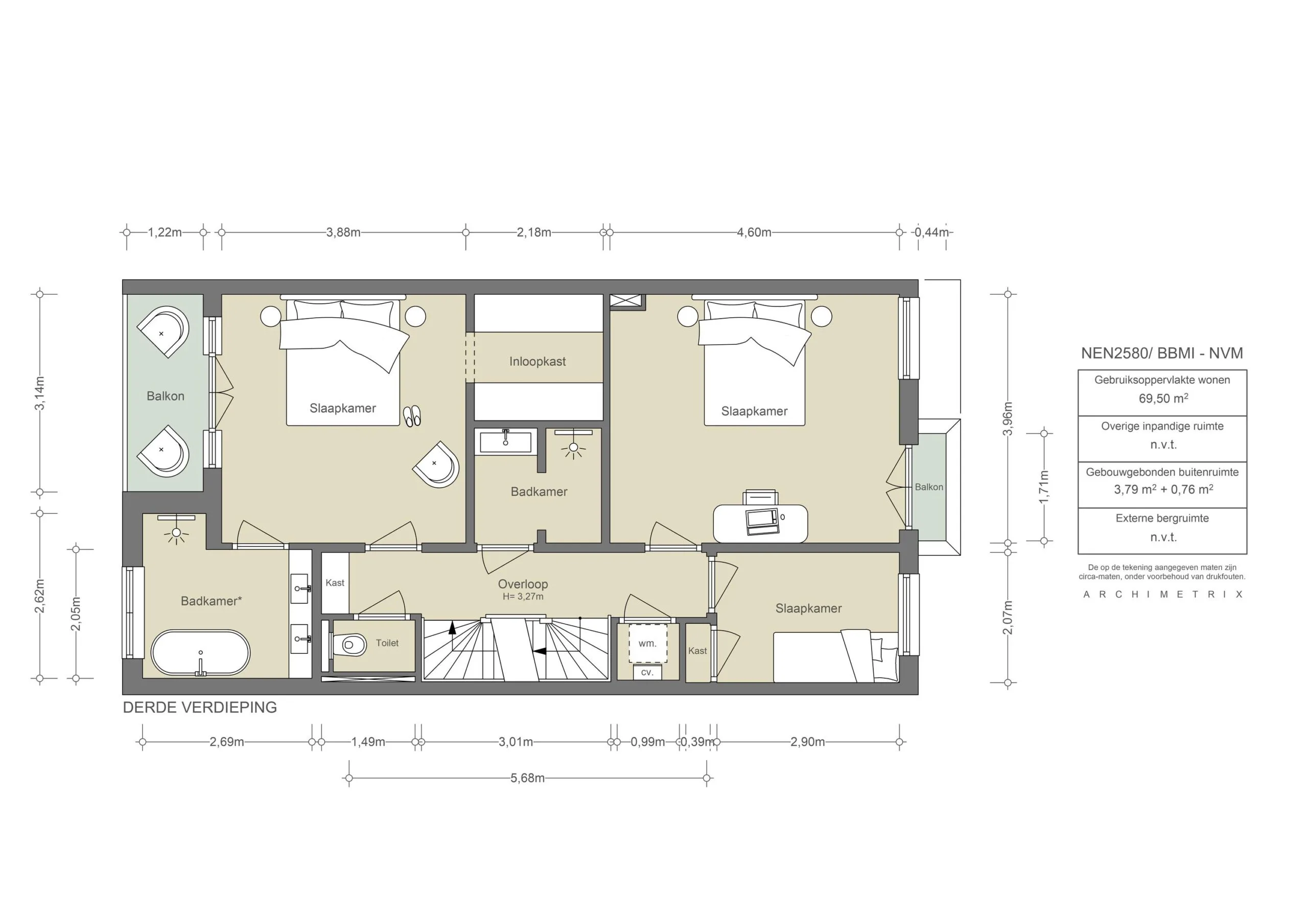
Plattegrond
Valeriusstraat 103-2, Amsterdam
AM105492-2046674-Valeriusstraat-103-2,-Amsterdam-243329200
AM105492-2046674-Valeriusstraat-103-2,-Amsterdam-243329068
AM105492-2046674-Valeriusstraat-103-2,-Amsterdam-243329072
AM105492-2046674-Valeriusstraat-103-2,-Amsterdam-243329076
Documenten
Valeriusstraat 103-2, Amsterdam
Locatie
Valeriusstraat 103-2, Amsterdam
Eten & drinken
01
Adres
Valeriusstraat 128B,
1075 GD Amsterdam

Castell Zuid

Castell Zuid is de stijlvolle nieuwe vestiging van het iconische Amsterdamse grillrestaurant Castell, gevestigd aan de Valeriusstraat in Oud-Zuid. Waar het origineel in het centrum bekendstaat om zijn no-nonsense steaks en late diners, brengt deze locatie dezelfde smaken in een verfijnde setting. “Same taste, same vibe, different look” luidt het motto – en dat klopt: herkenbaar en toch helemaal nieuw.

312175149_2011502502368624_2613652535986311070_n
02
Adres
Koninginneweg 34,
1075 CZ Amsterdam

Tozi

TOZI betekent in Venetiaans dialect ‘een groep vrienden’, en dat voel je direct als je binnenkomt. Het is net alsof je terecht komt in één grote familie. De kaart toont een selectie van kleine Venetiaans geïnspireerde gerechten om te delen, bekend als cicchetti. Met een Italiaanse wijnkaart en een cocktailbar met Italiaanse gins en negroni's.

 

03
Adres
Valeriusstraat 90,
1075 GH Amsterdam

Barolo

Bar Barolo brengt de sfeer van Noord-Italië naar de Valeriusstraat, midden in het elegante Amsterdam-Zuid. De wijnkaart is royaal en zorgvuldig samengesteld, met Barolo als vanzelfsprekend middelpunt. Op het menu: huisgemaakte pasta, klassieke antipasti en seizoensgerechten zonder opsmuk. Het interieur is warm en ingetogen, net als de gastvrijheid – hier wordt met aandacht gewerkt.

04
Adres
Valeriusstraat 85,
1071 MG Amsterdam

Carter

Carter is een moderne brasserie in Amsterdam-Zuid waar internationale klassiekers worden geserveerd met flair en finesse. Aan de Valeriusstraat voelt deze plek als een elegant buurtcafé – informeel, verfijnd en altijd gastvrij. Op de kaart staan tijdloze gerechten als steak tartare, burrata en kreeftenpasta, met een solide wijnselectie ernaast.

362085173_18198336283252516_5120199989074488114_n
05
Adres
Willemsparkweg 220hs,
1071 HX Amsterdam

Restaurant Visque

Op het prachtige hoekje van Amsterdam Zuid bevindt zich Restaurant Visque, waar vis de hoofdrol speelt. Onze menukaart is flexibel en afhankelijk van de dagelijkse keuze voor de meest verse en smaakvolle producten. Chef Menno geeft een eigen twist aan eenvoudige Franse gerechten, zoals coquilles, Hollandse garnalen, sliptong en onze bekende Tuna Wellington.

366416263_660727485939210_4584064804028118782_n
06
Adres
Valeriusplein 4A,
1075 BG Amsterdam

Juliette

In Amsterdam Zuid  kun je bij Juliette genieten van ontbijt en lunch in de zon. Het menu is gebaseerd op verse ingrediënten van lokale leveranciers en wordt dagelijks samengesteld op basis van wat er op de markt beschikbaar is. Denk aan gerechten zoals de Porco Rosso: mortadella, stracciatellakaas, Spaanse guindillapepers en rode pesto. Voor het diner of een borrel kan je terecht bij buurman Bar Jules. De focus ligt op Zuid-Europese gerechten zoals pizzetta's, pata negra en geroosterde octopus.

273565404_2463417327127039_151412226997513128_n
07
Adres
Willemsparkweg 177,
1071 GZ Amsterdam

Batoni Khinkali

In Nederland is de Georgische keuken helaas ondervertegenwoordigd, ondanks haar rijke en boeiende culinaire erfgoed. Gelukkig biedt Batoni Khinkali een introductie tot deze smaakvolle keuken. Dit restaurant, opgericht door de Georgische klarinettist Levan Tskhadadze, combineert zijn liefde voor muziek met zijn passie voor koken. Hier kunnen gasten genieten van Georgische klassiekers zoals khinkali, katsjapuri en lobio, evenals een veganistisch en vleesmenu, allemaal geserveerd met de kenmerkende Georgische gastvrijheid.

08
Adres
Cornelis Schuytstraat 8-10,
1071 JH Amsterdam

Brasserie van Dam

Brasserie van Dam staat bekend om een simpele maar effectieve receptuur: een niet te uitgebreide kaart met kwalitatief goede producten, acceptabele prijzen, goede koffie, een fijne sfeer en vriendelijk personeel.

brasserie-de-joffers-buiten02-1600px-1024×615
Brasserie_De_Joffers_Lunch-7-1600px-1024×683
09
Adres
Willemsparkweg 163,
1071 GZ Amsterdam

Brasserie de Joffers

Met een groot terras in de zomer én winter is brasserie Joffers al 15 jaar een bekende hotspot op steenworp afstand van het Vondelpark en het Museumkwartier. Mocht de zon niet schijnen, dan is er binnen genoeg plek - een met kunst en spiegelwanden ingerichte ruimte, wat voor een huiselijke sfeer zorgt. De ontmoetingsplek voor de buurt is ideaal voor ontbijt, lunch en diner of simpelweg voor een lekkere kop koffie.

84942268_1529941500492597_3844385910518972416_n
10
Adres
Apollolaan 138,
1077 BG Amsterdam

Roberto's Restaurant Amsterdam

In de top tien Italiaanse restaurants van Amsterdam mag Roberto’s niet ontbreken. Het restaurant is gelegen in het Hilton hotel, waar de iconische Italiaanse keuken sinds 25 jaar de borden vult. Het restaurant draait om pure en simpele smaken met gerechten als dungesneden aubergine, groene farfalle pasta met kreeftensaus en Lava cake.

downloadgram.org_612368537_18441156778097723_3706005334160954595_n
11
Adres
Johannes Verhulststraat 64-H,
1071 NH Amsterdam

Franzen

Chef en eigenaar Jesse Franzen groeide op in een horecafamilie in Haarlem. Zijn vader stond in de keuken, zijn moeder werkte in de bediening. Zijn eigen professionele reis begon in de keuken van het tweesterrenrestaurant Chapeau, waarna hij ervaring opdeed bij onder andere Aan de Poel, Ron Gastrobar en Lars Amsterdam. Met Franzen creëert Jesse een plek die voelt als een moderne huiskamer voor de stad. Toegankelijk en warm, maar altijd met een hoge standaard. Het menu is klassiek en herkenbaar, met hier en daar een verrassende twist.

12
Adres
Hendrik Jacobszstraat 18,
1075 PD Amsterdam

LOT61 Coffee Roasters

Geboren in Sydney, grootgebracht in Brooklyn en nu stevig geworteld in Amsterdam: LOT61 is allesbehalve een doorsnee koffiezaak. Als onafhankelijke koffiebrander combineert het merk internationale flair met lokaal vakmanschap. Slow coffee die met precisie en aandacht is gezet. De esthetiek is rauw maar verfijnd, de sfeer informeel en creatief – een plek waar buurt en barista samenkomen. Met hun B Corp-certificering laat LOT61 bovendien zien dat smaak en duurzaamheid hand in hand kunnen gaan.

Schermafbeelding 2022-05-11 om 16.25.41
13
Adres
Johannes Verhulststraat 32,
1071 NE Amsterdam

Pizzeria Le 4 Stagioni

Voor bezoekers van het Concertgebouw zijn de Romaanse pizza's met dunne bodem geen vreemde. Sinds 1978 voorziet de pizzeria in Oud-Zuid menige groep en (grote) families van authentiek Italiaans eten. Het interieur heeft een Mediteraans tintje en het menu biedt voor ieder wat wils, van verse pasta's en mals vlees, tot onmisbare antipasti en vegetarische alternatieven.

Schermafbeelding 2022-05-18 om 16.11.48
Schermafbeelding 2022-05-18 om 16.12.05
14
Adres
Willemsparkweg 74,
1071 HK Amsterdam

George W.P.A

George W.P.A is de ideale plek om neer te strijken voor een goed glas wijn en lekker eten met een chique touch. De brasserie in Zuid is naar eigen zeggen een combinatie van klassieke Franse gerechten, verpakt in New-Yorkse stijl en staat bekend om signature dishes zoals gegrilde kreeft en Blackened Tuna. Treed binnen (op reservering) in het "Upper South" van Amsterdam en see for yourself!

tip_10694-edible-treasures-large
15
Adres
Jacob Obrechtstraat 75,
1071 KK Amsterdam

Edible Treasures

In een voormalige slagerij in Amsterdam Zuid huist de concept store Edibe Treasures. Naast de 'edibles en drinkables' in de koffieshop vind je hier een prachtige selectie van alles voor op de tafel zoals zilverwerk, keramiek, tafellinnen, maar ook kookboeken en accessoires. Er worden ook regelmatig pop ups en workshops georganiseerd.

featured-gallery-0
16
Adres
Koninginneweg 212,
1075 EL Amsterdam

Simply Fish

Simply Fish is gelegen in Oud-Zuid aan de Koninginneweg. Zoals de naam al doet vermoeden is het restaurant gespecialiseerd in het bereiden van vis. Echtpaar Jan en Francis Rijk bezaten voorheen eenzelfde soort restaurant in Zeeland, een welbekende provincie voor overheerlijke vis en zeevruchten. Op het menu kan je onder andere fruit de mer, garnalenkroketjes, oesters en hun beroemde kreeftenbisque vinden.

Boodschappen
1593079817
17
Adres
Johannes Verhulststraat,
1066 VH Amsterdam

Slagerij De Schuyt

Slagerij De Schuyt, vernoemd naar hun locatie in de Cornelis Schuytstraat, heeft als symbool de parkiet. Net als de parkiet heeft deze kenmerkende slagerij zijn oorsprong in de jaren zeventig en hebben beiden hun plek veroverd in Amsterdam. Geïnspireerd door de parkiet begon eigenaar Evert Blauwendraat zijn slagerij met het idee om daar een karakteristiek, persoonlijk en bijzonder embleem aan te geven dat voor iedereen herkenbaar is. Bij dit familiebedrijf met een rijke historie kan je terecht voor vlees en delicatessen.

groentenier-winkel-voor-buiten
18
Adres
Cornelis Schuytstraat 35,
1071 NL Amsterdam

Groenteboer Tom Ensink

Groenteboer Tom Ensink zorgt ervoor dat klanten kunnen kiezen uit een exclusief assortiment aan eerlijke producten. Naast groenten worden er kazen, fruit, noten, oliën, wijnen én maaltijden verkocht - zorgvuldig geselecteerd voor de échte fijnproevers in Zuid. Specifieke wensen kunnen worden vervuld wat betreft het bestellen van producten, maar ook voor de verse maaltijden.

Schermafbeelding 2022-05-18 om 19.26.29
19
Adres
Van Breestraat 107A,
1071 ZJ Amsterdam

De Wijnkaart

In het Museumkwartier in Amsterdam-Zuid zit De Wijnkaart. Hier worden allerlei soorten wijnen uit de vergeten Oost-Europese wijnlanden geserveerd. Alhoewel de geschiedenis van het wijn maken hier is begonnen, zijn deze landen vaak vergeten in de wijnwereld. Als je benieuwd bent geworden naar alle soorten wijnen kan je een wijnproeverij doen in de wijnbar, waarbij je zelf mag uitkiezen welke je wil proeven. Naast de borrelplanken die wekelijks veranderen, staan er ook hoofdgerechten op het menu.

69495482_2355482024538342_8370925297519820800_n
20
Adres
1071 MR Amsterdam

ZuiderMRKT

De zuiderMRKT is een kleine, gezellige, wekelijkse buurtmarkt. Uniek door haar coöperatieve karakter. De coöperatie bestaat uit leden - enthousiaste buurtbewoners - die de markt een warm toedragen en meehelpen op de markt en in de groentekraam. De leden bepalen samen het aanbod van alle kramen. Zij kopen groente en fruit rechtstreeks in bij de boer, om ze voor eerlijke prijzen op het zuiderMRKT-plein te verkopen.

40696884_263976027789595_4869878192174792704_n
21
Adres
Koninginneweg 255,
1075 CV Amsterdam

Wijnhuis Amsterdam

Hoewel ze bij Wijnhuis Amsterdam al meer dan 25 jaar professioneel wijn proeven en selecteren, is het wijnhuis in Amsterdam een vrij recente toevoeging aan hun verhaal.  Na talloze proefsessies waren ze zo enthousiast over de Duitse wijnen dat ze maar al te graag de wijnen een platform wilden geven binnen Nederland. Zo openden ze in mei 2018 Wijnhuis.Amsterdam, met in eerste instantie slechts drie eigen importen uit Duitsland. Inmiddels vertegenwoordigen ze een indrukwekkend assortiment van twintig Duitse wijnmakers, drie uit Oostenrijk en één uit Luxemburg. Bij het selecteren van de wijnen is elegantie, de drinkbaarheid, lage alcoholpercentages en een minimale interventie in het productieproces belangrijk.

Interieur
Menno+Kroon+-+Maikel+Thijssen+Photography+-+www.maikelthijssen.com-3
22
Adres
Cornelis Schuytstraat 11,
1071 JC Amsterdam

Menno Kroon

De uitbundige en sfeervolle etalage van Menno Kroon toont zulke betoverende en bijzondere bloemen dat je wel even binnen moet kijken. Prille liefde, verrukking, het onvermijdelijke afscheid. Elk boeket van Menno Kroon geeft betekenis aan een bijzonder moment. Niks is ze te gek bij Menno Kroon en u kunt er terecht voor de meest speciale en uiteenlopende boeketten.

Annindriya-Perfume-_Lounge-Local-Minded-005_lichter_Lowres_480x480
perfumelounge 2
23
Adres
Cornelis Krusemanstraat 25,
1075 NC Amsterdam

Perfume Lounge

Bij de ‘Perfume lounge’ richten ze zich op het maken en adviseren van geuren voor bedrijven en organisaties en wat reuk kan toevoegen aan een merk of organisatie. Daarnaast hebben zij een winkel met een assortiment van de meest bijzondere parfums van de wereld, waar zij ook persoonlijk geuradvies geven. Advies voor op de huid of in huis. Volgens de experts voegt geur iets toe wat niet zichtbaar en tastbaar is. Je kunt geur op verschillende manieren inzetten in een ruimte. Het begint natuurlijk eerst dat het er niet negatief mag ruiken. Er zijn best wel veel ruimtes waar je het riool of sanitair ruikt, waar veel gerookt is of waar de afzuiging niet goed is en het naar eten ruikt. De meeste simpele manier van geur in huis is dat het schoon ruikt. Veel mensen associëren schoonmaak of wasmiddel met een schoon, opgeruimd en verzorgd huis. Daarnaast kun je de ambiance aanzetten. Net zoals met licht en muziek kun je de sfeer verzachten of versterken. Je kunt het heel huiselijk laten ruiken of juist heel modern. Landelijk of artistiek. Of juist heel minimalistisch of intiem.

Kunst & cultuur
241801382_194597056100298_7531339944812475387_n
24
Adres
Willemsparkweg 134,
1071 HR Amsterdam

Galerie Bildhalle

Bildhalle is oorspronkelijk opgericht als een Zwitserse galerie gespecialiseerd in klassieke en hedendaagse fotografie. De galerie heeft inmiddels vestigingen in Zürich en Amsterdam. Sinds de oprichting door Mirjam Cavegn in 2013, heeft de galerie zich ontwikkeld tot een van de meest gerespecteerde fotogaleries in Zwitserland. In oktober 2021 zette Bildhalle haar groei voort met de opening van een tweede galerie aan de Willemsparkweg in Amsterdam. Hier presenteert de galerie een zorgvuldig geselecteerde collectie van Nederlandse en internationale kunstenaars, variërend van opkomend talent tot gevestigde fotografen.

315727004_139279408874516_3171046503847699668_n
25
Adres
Willemsparkweg 64H,
1071 HK Amsterdam

Hama Gallery

Bij Hama Gallery geloven ze dat een galerie een grenzeloze ontmoetingsplaats is waar kunst en mensen samenkomen. Het doel is om kunst toegankelijker te maken door een unieke ervaring te bieden die breekt met traditie. De galerie verwelkomt bezoekers met open armen, of je nu binnenloopt voor een spontaan bezoek, een intieme privébezichtiging wilt, of samen met anderen kunst wilt vieren tijdens onze feestelijke openingen en tuinevenementen.

‘De Valckenier’

‘De Valckenier’

Een selectie van lekkere en betaalbare broodjes in Amsterdam

Een selectie van lekkere en betaalbare broodjes in Amsterdam

Buurtgids: Oud-West, een selectie van fijne plekken

Buurtgids: Oud-West, een selectie van fijne plekken

Onlangs bekeken
Bekijk het overzicht

Deze site maakt gebruik van cookies.

Voor welke cookies geef je akkoord?