Een elegant familiehuis van ca. 137 m² in de geliefde Plantagebuurt biedt een smaakvolle, gebalanceerde en hoogwaardige woonbeleving.

Deze perfect onderhouden dubbele benedenwoning, gelegen aan een rustige straat waar de auto slechts een gast is, werd enkele jaren geleden verfijnd gerenoveerd (inclusief funderingsherstel) en getransformeerd tot een heerlijk gezinshuis. Met een gezellige keuken, ruime en praktische slaapkamers, twee badkamers, volop bergruimte en een fijne tuin, biedt deze woning alles wat je zoekt. De huidige eigenaren hebben in samenwerking met een designteam veel aandacht besteed aan ruimte, functionaliteit, comfort en lichtinval, wat resulteert in een sublieme woonbeleving in één van de meest geliefde buurten van de stad – en dat op eigen grond.
De woning beschikt over een stijlvolle woonkamer met een zit- en eetgedeelte, gescheiden door een verhoging en voorzien van maatwerkkasten. De op maat gemaakte keuken combineert design en functionaliteit en is uitgerust met moderne apparatuur en een stoer werk-/spoeleiland. De slaapverdieping is ruim en functioneel, met een hoofdslaapkamer en ensuite badkamer, extra slaapkamers aan de achterzijde en een tweede badkamer. Vloerverwarming is aanwezig op beide verdiepingen. Buiten vind je een ruim terras met een trap naar de zorgvuldig aangelegde tuin, die een recent gebouwd, geïsoleerd tuinhuis bevat, ideaal als werkplek of studio.

Buurtgids 
De Spinozastraat is gelegen achter de Sarphatistraat, bij het Weesperplein, en ligt aan de Singelgracht, tegenover de Mauritskade. In de directe omgeving is een ruim aanbod van winkels voor de dagelijkse boodschappen. Zo is het Bakhuys een favoriete bakker in de omgeving.  Het huis ligt zeer centraal waardoor de plantagebuurt, de Utrechtsestraat of Oost allemaal op loopafstand zijn te bereiken.

Bijzonderheden
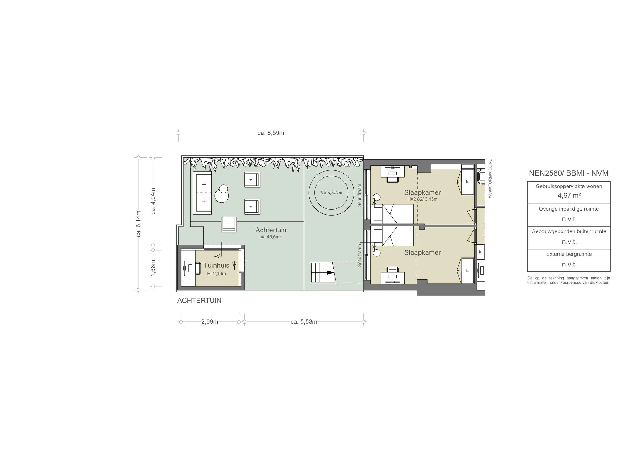
•    Gebruiksoppervlakte wonen circa 137 m² 
•    Tuin van circa 46 m²
•    Gelegen op eigen grond
•    Renovatie in samenwerking met Designwolf 
•    Fundering hersteld in 2020 
•    Geheel gerenoveerd in 2020
•    Energielabel A
•    Vloerverwarming in het gehele huis
•    Servicekosten VvE € 165,- per maand
•    In zeer goede staat 
•    Domotica voor het gehele huis ingericht, van licht tot rookmelders
•    Vele op maat gemaakte kasten 
•    Rijksbeschermd stadsgezicht

Deze informatie is door ons met de nodige zorgvuldigheid samengesteld. Onzerzijds wordt echter geen enkele aansprakelijkheid aanvaard voor enige onvolledigheid, onjuistheid of anderszins, dan wel de gevolgen daarvan. Alle opgegeven maten en oppervlakten zijn slechts indicatief
De Meetinstructie is gebaseerd op de NEN2580. De Meetinstructie is bedoeld om een meer eenduidige manier van meten toe te passen voor het geven van een indicatie van de gebruiksoppervlakte. De Meetinstructie sluit verschillen in meetuitkomsten niet volledig uit, door bijvoorbeeld interpretatieverschillen, afrondingen of beperkingen bij het uitvoeren van de meting.
 

AM104772-1901077-Spinozastraat-15C,-Amsterdam-192782703

The ultimate family home
Smaakvol, gebalanceerd en hoogwaardig: dat zijn enkele kenmerken van dit unieke familiehuis in de geliefde Plantagebuurt. De huidige eigenaren wonen al jaren met veel plezier in deze fijne buurt.
Deze perfect onderhouden dubbele benedenwoning ligt aan een rustige straat waar de auto slechts een zeldzame gast is. Enkele jaren geleden is de woning verfijnd gerenoveerd en getransformeerd tot een heerlijk gezinshuis met een sfeervolle keuken, ruime en praktische slaapkamers, twee badkamers, volop bergruimte en een prachtige tuin. Daarbij biedt de woning een vrije uitkijk over de aanliggende gracht.
De huidige eigenaren hebben in samenwerking met een designteam met veel aandacht gekeken naar de ruimte, functionaliteit, comfort en lichtinval. Dit huis zal voor velen een sublieme woonbeleving bieden in een van de meest geliefde buurten van de stad. Een buitengewoon familiehuis in de Plantagebuurt, gelegen op eigen grond.


Judith de Jong | Makelaar Broersma Wonen
Otte van Apeldoorn | Makelaar Broersma Wonen
AM104772-1901077-Spinozastraat-15C,-Amsterdam-192782709

Designvisie
De architect van het gebouw aan de Spinozastraat 15 was IJme Gerardus Bijvoets (Gzn), een Nederlandse architect die diverse gebouwen in Amsterdam en Westbeemster ontwierp, evenals de Tivoli Wintertuin in Rotterdam. Deze bijzondere benedenwoning is in 2020 volledig en grondig gerenoveerd, inclusief funderingsherstel, vernieuwd leidingwerk, elektra, badkamers, keuken en meer.
De renovatie werd uitgevoerd in samenwerking met ontwerpbureau Designwolf, bekend om hun motto: “de wereld een klein beetje mooier maken.” Dit project is daar een prachtig voorbeeld van. Designwolf streeft naar op maat gemaakte oplossingen voor hun klanten en creëert ruimtes, plekken en details die het leven in huis verrijken. Ze ontwerpen functionele elementen die aansluiten op verschillende situaties gedurende de dag, waarbij strategisch geplaatste doorkijkjes, vides en ramen zorgen voor een gevoel van extra verbondenheid in het interieur.

AM104772-1901077-Spinozastraat-15C,-Amsterdam-192782697
Spinozastraat 15 C-16
AM104772-1901077-Spinozastraat-15C,-Amsterdam-192782831
AM104772-1901077-Spinozastraat-15C,-Amsterdam-192782823

Wonen en koken
De woonkamer is elegant ingedeeld in een zit- en eetgedeelte, gescheiden door een subtiele verhoging. Deze verhoging fungeert als een stijlvolle afscheiding en biedt ruimte voor prachtige maatwerkkasten of een extra speelplek voor de kinderen. Het zitgedeelte bevindt zich aan de voorzijde van de woning, waar de middagzon prachtig naar binnen valt. Vanaf de bank is er zicht op de rustige straat en het water.
De op maat gemaakte keuken combineert design en functionaliteit op een prachtige manier. Het stoere werk-/spoeleiland met een gezellig bargedeelte vormt het hart van de keuken. De keuken is uitgerust met moderne apparatuur zoals een inbouwoven, combi-oven, fornuis, vaatwasser, Quooker en een koel-/vriescombinatie. De keuze voor diverse natuurlijke materialen geeft de keuken een tijdloze uitstraling. De eettafel, gelegen nabij de keuken, is de plek waar het gezin samenkomt om van een maaltijd te genieten.
Bij de keuken is gekozen voor een gevlinderde betonvloer, terwijl de woonkamer is voorzien van een warme eikenhouten vloer in visgraatpatroon. Overal is vloerverwarming aanwezig.
Naast de keuken bevindt zich de trap naar de slaapverdieping, een verfijnde trap met een hoogwaardige afwerking die perfect aansluit bij de rest van het interieur.

AM104772-1901077-Spinozastraat-15C,-Amsterdam-192782761
AM104772-1901077-Spinozastraat-15C,-Amsterdam-192782835
Spinozastraat 15 C-28
AM104772-1901077-Spinozastraat-15C,-Amsterdam-192782877
AM104772-1901077-Spinozastraat-15C,-Amsterdam-192782909
AM104772-1901077-Spinozastraat-15C,-Amsterdam-192782899

Slapen en baden
De slaapverdieping is ruim opgezet en zorgvuldig ontworpen met oog voor functionaliteit. Tijdens de renovatie is het souterrain verdiept, wat resulteert in een indrukwekkende plafondhoogte van gemiddeld 2,80 meter. De stalen trap, centraal geplaatst, verbindt de living met deze verdieping. Dankzij deze strategische plaatsing zijn alle kamers direct toegankelijk en wordt de overloop optimaal benut als kantoor- en opslagruimte. Op maat gemaakte kasten langs verschillende wanden bieden extra opbergruimte voor onder andere kleding en koffers. De kleuren en materialen sluiten naadloos op elkaar aan, wat zorgt voor een harmonieus geheel.
De hoofdslaapkamer bevindt zich aan de voorzijde en beschikt over een ensuite badkamer. Deze elegante badkamer is voorzien van een inloopdouche, ligbad en een dubbel wastafelmeubel. Rustige kleuren en designkranen creëren een serene en luxe sfeer. Aangrenzend aan de badkamer bevindt zich de inloopkast, momenteel in gebruik als vierde slaapkamer.
De twee overige slaapkamers zijn gesitueerd aan de achterzijde en bieden uitzicht op de tuin. Beide kamers zijn functioneel ingericht, met een breedte van 2,70 meter.
Daarnaast is er een tweede badkamer, uitgevoerd in dezelfde stijl als de ensuite. Deze badkamer is voorzien van een douche en wastafel, en er is een separaat toilet. Ook is er een wasruimte aanwezig.
Voor optimaal comfort is deze gehele verdieping voorzien van vloerverwarming.

AM104772-1901077-Spinozastraat-15C,-Amsterdam-192782859
AM104772-1901077-Spinozastraat-15C,-Amsterdam-192782891
AM104772-1901077-Spinozastraat-15C,-Amsterdam-192782887
AM104772-1901077-Spinozastraat-15C,-Amsterdam-192782929
AM104772-1901077-Spinozastraat-15C,-Amsterdam-192782979
AM104772-1901077-Spinozastraat-15C,-Amsterdam-192782955
AM104772-1901077-Spinozastraat-15C,-Amsterdam-192782961

De buitenruimtes
Grenzend aan de woonkamer ligt het diepe terras, een verlengstuk van de keuken voor mooie zomerdagen. De tuintafel nodigt uit voor gezellige etentjes, terwijl de zon vanaf ongeveer vijf uur ’s middags het terras in een privé-oase verandert. Met een oppervlakte van circa 15 m² en een vaste trap naar de tuin, vormt het terras de ideale verbinding tussen binnen en buiten.
De tuin van circa 46 m², met veel zorg aangelegd, ontvangt ’s ochtends zonlicht en vanaf 14.30 uur opnieuw. Deze achtertuin biedt een rustige plek waar je geen last hebt van geluiden van de straat, een perfecte plek om tot rust te komen. Achterin de tuin is in 2022 een tuinhuis van circa 5 m² gerealiseerd (met vergunning), een perfecte werkplek of (muziek)studio. Dit geïsoleerde tuinhuis is uitgerust met elektra en elektrische vloerverwarming.

AM104772-1901077-Spinozastraat-15C,-Amsterdam-192783001
AM104772-1901077-Spinozastraat-15C,-Amsterdam-192782721
AM104772-1901077-Spinozastraat-15C,-Amsterdam-192782723
1018 HD Spinozastraat 3-58

Buurtgids
De Spinozastraat is gelegen achter de Sarphatistraat, bij het Weesperplein, en ligt aan de Singelgracht, tegenover de Mauritskade. In de directe omgeving is een ruim aanbod van winkels voor de dagelijkse boodschappen. Zo is het Bakhuys de meest favoriete bakker in de buurt en staat bekend om haar brood en amandelcroissants en heeft ook heerlijke koffie.
Een drankje in de buurt of heerlijk uit eten, veel favorieten zijn allemaal binnen vijf minuten fietsen zoals Fitz’s bar in het Pillow Hotel, restaurant Zoldering, Oocker of De plantage.
Ook zijn er in de buurt uitstekende lagere scholen als De kleine reus of ASVO. Het familiehuis ligt zeer centraal waardoor de Plantagebuurt, de Utrechtsestraat of Oost allemaal op loopafstand zijn te bereiken.

Bereikbaarheid
De woning geniet van een uitstekende bereikbaarheid met de auto door middel van onder andere uitvalswegen S100, S114 en S116 naar de ring A10. Diverse openbaar vervoer voorzieningen zijn in de nabije omgeving te vinden. Zo zijn Metrostation Waterlooplein of Weesperplein slechts binnen 3 fietsminuten te bereiken en biedt een directe verbinding naar Amsterdam Centraal of Amstelstation. Tram 14 op de Plantage Middenlaan en tramlijnen 1, 7 en 19 op de Sarphatistraat zijn op loopafstand.

Parkeergelegenheid
Parkeren is mogelijk via een vergunningenstelsel op de openbare weg (vergunningsgebied Centrum 3). Met een parkeervergunning voor Centrum 3 mag u parkeren in Centrum-1 en Centrum 3. Een parkeervergunning voor bewoners kost 315,60 per 6 maanden.
Momenteel is er voor dit vergunningsgebied een wachttijd van 8 maanden. Een tweede parkeervergunning is in dit gebied niet mogelijk. (Bron: Gemeente Amsterdam, augustus 2024).

1017 JH Prinsengracht 1099A-85
AM104772-1901077-Spinozastraat-15C,-Amsterdam-192782745
AM104772-1901077-Spinozastraat-15C,-Amsterdam-192782803
AM104772-1901077-Spinozastraat-15C,-Amsterdam-192782935
Kenmerken
Spinozastraat 15C, Amsterdam
Vraagprijs
  • € 1.695.000 k.k.
Beschikbaarheid
  • In overleg
Vertrekken
  • 5 kamers
  • 4 slaapkamers
  • 2 badkamers
Onderhoud
  • Intern: Uitstekend
  • Extern: Goed tot uitstekend
Oppervlakten & Inhoud
  • Woonoppervlakte: 137 m²
  • Gebouwgebonden buitenruimte: 15 m²
  • Tuinoppervlakte: 53 m²
Bouwjaar
  • 1912
Installaties
  • Domotica
  • Mechanische ventilatie
  • TV kabel
Ligging
  • Aan rustige weg
  • Aan water
  • In centrum
  • In woonwijk
  • Vrij uitzicht
Parkeren
  • Betaald parkeren
  • Parkeervergunningen
Schuur/Berging Voorzieningen
  • Voorzien van elektra
  • Voorzien van verwarming
Type verwarming
  • CV Ketel
  • Vloerverwarming geheel
Type warmwater
  • CV Ketel
Bestemming
  • Woonruimte
Eigendomssoort
  • Volle eigendom
Buitenruimte
  • Achtertuin
  • Balkon
Kadastraal
  • Gemeente: Amsterdam
  • Sectie: O
  • Nummer: 4546
Duurzaamheid
  • Dubbel glas
  • Vloerisolatie
  • Energielabel A
Soort
  • Appartement
  • Dubbel-benedenhuis
Plattegrond
Spinozastraat 15C, Amsterdam
AM104772-1901077-Spinozastraat-15C,-Amsterdam-191410209
AM104772-1901077-Spinozastraat-15C,-Amsterdam-191410211
AM104772-1901077-Spinozastraat-15C,-Amsterdam-191410213
Documenten
Spinozastraat 15C, Amsterdam
Locatie
Spinozastraat 15C, Amsterdam
Eten & drinken
210216-StudioHENK-March-Campaign_-940_c6762d4f-0fa1-48be-b1bc-fe6926edfc3e_1280x
4F1CBAC2-EB37-4655-914A-D166C6FD0447_96ac6b3e-5d29-4e5a-8292-1601c74d4167_1540x
01
Adres
Andreas Bonnstraat 2,
1091 AX Amsterdam

Yusu

Bij Yusu verkopen en serveren ze verschillende soorten koffie. De bonen worden geïmporteerd, geselecteerd en gebrand in samenwerking met Back to Black Coffee. De importeurs stimuleren boeren op diverse manieren om duurzamer te werken. Naast het serveren van goede koffie worden alle lekkernijen in eigen huis bereid. Mede-oprichter Nicole heeft een enorme passie voor bakken en heeft de recepten voor de taarten samen met Kick ontwikkeld. Probeer de traditionele Surinaamse gebakjes of de Braziliaanse kaasbal.

Schermafbeelding 2022-07-01 om 16.10.46
Schermafbeelding 2022-07-01 om 16.10.08
02
Adres
Wibautstraat 150,
1091 GR Amsterdam

Het Volkshotel

Het Volkshotel is een hotel en cultureel centrum gevestigd in het oude Volkskrantgebouw aan de Wibautstraat. De naam zegt het eigenlijk al; Het Volkshotel is een hotel voor iedereen. Het Volkshotel is meer dan alleen maar een hotel. Naast dat je hier heerlijk kunt overnachten en eten en drinken, kun je hier ook genieten van de vetste muziek-events in soundbar Doka en heb je het mooiste uitzicht vanaf dakterras restaurant Canvas. Het Volkshotel is ook een geliefde plek om te werken en te studeren. Er zijn meerdere vergaderruimtes beschikbaar die je van te voren kunt reserveren en de barista's zetten de lekkerste koffie.

332194684_1210683406229899_1266038755429113890_n
320556713_1299962830790670_8095264289252116921_n
03
Adres
Boerhaaveplein 3,
1091 DH Amsterdam

Five Ways Coffee Roasters

Five Ways Coffee Roasters begon als een bescheiden koffiebranderij in Amsterdam bij Spot On Coffeeroaster. Enkele jaren geleden vestigde de eigenaar zich in Nederland en heeft sindsdien zijn tweede succesvolle specialty koffiebar in Amsterdam geopend. In Oost is de koffiebar meer gericht op koffie met eten. Zo heeft eigenaar Benny een eigen chef die constant bezig is met het verbeteren van zijn recepten en het gebruik maken van seizoensproducten.

281880305_508154391047644_2028401497570239133_n
285721110_518276833368733_8528353151648555893_n
04
Adres
Andreas Bonnstraat 36,
1091 BA Amsterdam

Sushi Fanatics

Toen Ho en haar vriend naar Nederland kwamen, viel de sushi hen tegen. De sushi bij Hotel Okura was wel lekker, maar ook erg duur. Daarom openden ze takeaway Sushi Fanatics. Die viel goed in de smaak. Het liep zelfs zo goed dat ze nu hun eigen restaurant hebben in Amsterdam-Oost. Specialiteiten zijn de Hokkaido sint-jakobsschelp, inktvis en Unagi Deluxe.

334420143_1682273368910187_7322496611730177761_n
05
Adres
Andreas Bonnstraat 36,
1091 BA Amsterdam

Shigure

Amsterdam heeft een nieuwe omakasezaak bij namelijk Shigure; 'the unpredictable monsoon of the Netherlands,’ zoals ze het zelf noemen. Het restaurant bevindt zich achterin bij Sushi Fanatics. De counter met acht zitplekken is twee dagen (vrijdag en zaterdag) per week geopend met een ronde om 17:30 en een om 20:15. Chef Ryusaku Hiruma bezorgt je een echte omakase experience waarin hij zijn verfijnde en originele sushi vaardigheden weergeeft.

1519ee_a5c462bd4fa847949becbf9cb6c357a9_mv2_d_6016_4016_s_4_2
06
Adres
Camperstraat 36,
1091 AG Amsterdam

The Bab

Het Koreaanse restaurant The Bab heeft de authentieke smaak die je zou verwachten van een Koreaans restaurant, maar dan zonder al te fancy te zijn. Eigenaren Junghun Pyo en zijn vrouw Haksun (Sunny) Kim willen namelijk dat mensen zich op hun gemak voelen bij hen en casual Korean food kunnen proeven. Het eerste waar je aan moet denken als je denkt aan Koreaans eten zijn de gerechten bibimbap en gefrituurde kip. De bibimbap bevat rijst, groenten en een rauw ei. De gefrituurde kip is bereid met een speciale Koreaanse kruidenmix. Een ander populair gerecht dat je bij The Bab kunt bestellen zijn de kimchipannenkoeken. Deze pannenkoekjes zijn gevuld met ui en kimchi, een gefermenteerde kool die steeds populairder wordt in het westen.

Schermafbeelding 2022-07-01 om 16.04.41
07
Adres
Camperstraat 48-50,
1091 AH Amsterdam

4850

Overdag een uitstekende koffiebar met zelfgemaakte pastries en broodjes. In de avond een wijnbar annex restaurant. De keuken omschrijft zichzelf als Nordic met pan europese smaken. De gerechtjes (to share) zijn bijzonder. Zuurdesem brood met geslagen comté boter gecombineerd met naar keuze kippenlevermousse of ansjovis in houtskoololie. Een aardapplemousse met cantherellen en eidooier.  De kaart is compact maar gevarieerd. Ze hebben een enorm (natuur en klassiek) wijn assortiment. De lijst, samengesteld door eigenaar Daniel Schein, staat in de Star Wine list. The huidige chef Ciaran Naughter heeft een voorliefde voor het koken op vuur.

281839615_1107865493110246_5418967694543907480_n
08
Adres
Weesperzijde 23,
1091 EC Amsterdam

De Ysbreeker

Levendig en gastvrij, de Ysbreeker is dé ontmoetingsplek voor heel Amsterdam. Deze locatie nodigt uit om de hele dag te vertoeven, met haar kenmerkende troeven zoals de verse keuken, het sfeervolle terras aan de Amstel en de indrukwekkende monumentale ruimte doordrenkt met een veelbewogen geschiedenis sinds 1702. Benoemd naar de historische ijsbreker die voor de deur lag, heeft deze plek een rijke herberg- en tapperijgeschiedenis. Chef-kok Goran Lukovic en zijn toegewijde team brengen een milieubewuste benadering naar de verfijnde landkeuken, met gerechten zoals Schots Balmoral hert en gerookte Noorse zalm gemarineerd in Red Bull.  De Ysbreeker kiest met zorg voor verantwoorde, eerlijke en dagverse producten. En dat merk je aan alles.

338212934_232099025975928_3095569794647745098_n
333127935_667698065046121_5547373681443039532_n
09
Adres
Wibautstraat 105HS,
1091 GL Amsterdam

Alba

Geopend tijdens corona en toen direct gesloten. Nu gelukkig geopend, van dinsdag tot en met zaterdag voor diner. Naast vis en vlees word er ook een goed vegetarisch aabod verzorgt zoals o.a. een zonnige wortelschotel: regenboogwortelen, peterseliehummus, gember-wortelsaus, peterselieolie, gepofte gierst en mosterd-worteldressing. Chef  James Usdin werkte eerder voor sterren restaurants in Londen, maar ook in het Rijks (*). Alba serveert een 3 gangen diner voor 38,50, maar heeft ook een al la carte menu. Ook leuk, er is een gigantisch terras (130 m2) en een fijne snackkaart. De wijnkaart bestaat uit een groot assortiment natuurwijnen.

blog-1
10
Adres
Plantage Middenlaan 30A,
1018 DG Amsterdam

Box Sociaal

Box Sociaal is in de eerste plaats een ontbijt- en brunchrestaurant, maar biedt ook diner- en drankopties aan. Het menu is geïnspireerd op Australië. De gerechten worden bereid met duurzame en lokale producten. Voor vegetariërs en veganisten is er goed nieuws: alle vleesburgers kunnen worden vervangen door de 'Beyond Meat Burger'. Geniet van een kwalitatieve brunch, lokaal gebrande koffie, zorgvuldig geselecteerde natuurwijnen, op maat gemaakte cocktails en heerlijke speciaalbieren.

Voorkant-new-draver-1200×630-1
11
Adres
Tweede Oosterparkstraat 2-4,
1091 JC Amsterdam

New Draver

Oso Nyan! betekent in Suriname genieten van maaltijden die herinneren aan moeders kookkunsten. Al ruim 30 jaar is New Draver een icoon in Amsterdam, gespecialiseerd in de exotische en smaakvolle Surinaams-Creoolse keuken. Gevestigd in Amsterdam Oost wordt je verwelkomt met gerechten zoals Bami, Nasi, Heri Heri en Bruine Bonen met Rijst. Probeer de goudbruine kip met bami en zuurgoed.

Low-Res-voor-internet-Eik-en-Linden-2021-Livestream-Copyright-Janus-van-den-Eijnden-2-768×512
12
Adres
Plantage Middenlaan 22A,
1018 DE Amsterdam

Café Eik en Linde

Café Eik en Linde is een echte Amsterdamse bruine kroeg met een lange geschiedenis. Tegenwoordig komt hier een gemêleerd publiek samen dat reikt van stamgasten en biljarters tot studenten en toeristen. Het zorgt voor een aangename sfeer waardoor het café een begrip is geworden, ook buiten Amsterdam. Het café is onder meer bekend om de radio-uitzendingen die in de bovenzaal werden opgenomen, met als beroemdste uitzending ‘Een dik uur met Ischa’ van Ischa Meijer. Het is kortom een plek waar politiek, literatuur en kunst samenkomen met een biertje.

Schermafbeelding 2022-10-10 om 10.58.56
13
Adres
Frederiksplein 29h,
1017 XL Amsterdam

Oocker

Oocker is een nieuwe restobar (restaurant-bar) in Amsterdam. Het is opgezet door de mannen Meyer Viol, Niels van der Werf (voorheen bij The Lobby, Gebr. Hartering en Shiraz) en Stefano Orofino (voorheen bij Domenica). Bij Oocker is het eten net zo belangrijk als de wijn. Aan de voorzijde kan je de wijnbar vinden en achterin is het restaurant gedeelte, waar wordt gekookt in een open keuken. Chef Stefano kook voornamelijk veel met groentes.  Het is open van donderdag tot en met dinsdag vanaf 15:00. Ze nemen geen reserveringen aan dus loop vooral gezellig naar binnen.

 

buko-by-night-1200x800_1
14
Adres
Oosterpark 10,
1092 AE Amsterdam

Bar Bukowski

Bar Bukowski zit tegenover de ingang van het OLVG-Oost en het Oosterpark. Je kan hier terecht voor ontbijt, lunch of om wat te drinken. Bukowski is een hip stadscafé, tevens cocktailbar, met een groot terras. De kaart is divers: hamburgers, salades, broodjes en heerlijke flamkuchen. Het interieur is toegankelijk en gezellig, met een vintage-look. Het personeel is jong en hartelijk. Bukowski is een aanraden voor lange zomeravonden of tussen het werk door.

Schermafbeelding 2022-07-01 om 16.02.08
15
Adres
Oosterpark 10,
1092 AE Amsterdam

Henry's bar

Henry's Bar is het zusje van Bar Bukowski. In dit pand gelegen naast de vestiging van Bar Bukoski aan het Oosterpark worden op donderdag-, vrijdag- en zaterdagavond de lekkerste cocktails bereid; geïnspireerd door citaten van Bukowski. Geniet van een drankje met de naam "Writer's Block"of "Lady B." of laat je verrassen door "The Bartender's Choice". Als je toch liever een fris, biertje of een glas wijn drinkt kan dat natuurlijk ook!

16
Adres
Hemonystraat 18,
1074 BP Amsterdam

L'Angoletto

Bij L’Angoletto lijkt het alsof de tijd heeft stil gestaan. Het restaurant heeft geen website, reserveren kan niet en pinnen ook niet maar het eten is verrukkelijk! De chef staat erom bekend dat hij trots is op zijn eten en hij hecht veel waarde aan tradities, dus waag het niet om te vragen om kaas bij je pasta met vis. Dit is het allemaal waard want het beste Italiaans eten in de Pijp eet je hier.

de+Plantage-Buiten+Herfst-129+copy
17
Adres
Plantage Kerklaan 36,
1018 CZ Amsterdam

De Plantage

Bij De Plantage kom je voor de klassieke, statige Amsterdamse grandeur. Bij de bijzondere plek naast/in Artis kan je terecht voor alles en meer: een prima kop koffie met een ontbijtje, een snelle of langzame lunch of een uitgebreid diner. De plek voelt groot aan bij binnenkomst, maar de inrichting is intiem. Laat je verrassen door de Plats de Plantage van de chefs, of kies uit de vele à la carte opties. Laat zeker de Hemelse Modder als dessert niet aan je voorbij gaan.

TinaB-190604-6965
IMG_5027-1500×1000
18
Adres
Utrechtsedwarsstraat 85A,
1017 WD Amsterdam

Fiaschetteria Pistoia

Pistoia is een plek om authentieke geïmporteerde Italiaanse wijnen te proeven terwijl je geniet van de traditionele Toscaanse keuken. De wijnkaart is vol smaakvolle geïmporteerde wijnen, de ingrediënten worden geïmporteerd uit Italië en de recepten komen uit een lange familietraditie onder leiding van "nonna".

Kunst & cultuur
Schermafbeelding-2015-03-02-om-15.11.36
KriterionHall1
19
Adres
Roetersstraat 170,
1018 WE Amsterdam

Filmtheater Kriterion

Filmtheater Kriterion is een van de eerste projecten van Stichting Kriterion en wordt sinds 1945 volledig gerund door studenten. Je vind het filmtheater naast het Roetserseiland campus complex van de Universiteit van Amsterdam. Het wekelijks programma van Kriterion bestaat uit een breed scala van films; Kriterion kun je bezoeken voor arthouse films, documentaires en internationale screenings. In het café van Kriterion kun je voorafgaand aan of na afloop van de film samen nog gezellig een drankje drinken. Een aanrader is de Sneak Preview die Kriterion als eerste in Nederland heeft geïntroduceerd. Elke dinsdag om kwart voor 8 kun je je door Kriterion laten verrassen met de nieuwste films. Een ticket voor de Sneakpreview kost slechts 5 euro.

20
Adres
Plantage Middenlaan 2a,
1018 DD Amsterdam

Hortus Botanicus

De Hortus Botanicus Amsterdam is een van de oudste botanische tuinen ter wereld. Ook de Oranjerie, het bijbehorende grand café, is een eeuwenoud monument waar je – zelfs midden in de winter – heerlijk tot rust komt. Ze hebben een uitgebreide lunchkaart, en je eet terwijl je middenin de prachtige tropische tuinen zit. In de zomer is het terras natuurlijk ook open. Het is een van de best bewaarde geheimpjes van Amsterdam, zeker de moeite waard om heen te gaan en de rust van het groen zelf te ervaren.

Boodschappen
bakhuys-7-scaled
21
Adres
Sarphatistraat 61,
1018 EX Amsterdam

Bakhuys

Bakhuys valt zeker onder de top tien bakkers van Amsterdam, met authentiek houtoven gebakken broden. Het familiebedrijf houdt een traditie van vijf generaties in stand sinds 1926. Bakhuys staat bekend om het lekkerste biologische dezembrood, allerlei Franse specialiteiten en niet te vergeten de dezem pizza. Stuk voor stuk met aandacht bereid. Daarbij eet je hier lekkere taartjes (van bakkerij Jongejans), homemade pizza en fantastische belegde broodjes, zoals de geïmporteerde Italiaanse salami en venkelmayonaise.

downloadgram.org_587808323_17920950975199409_2006557532097734563_n
22
Adres
Eerste Oosterparkstraat 7H,
1091 GT Amsterdam

Dough Studio

Dough Studio is het project van Bas en Idske, die in 2019 begonnen met pizza’s bakken in hun achtertuin in Amsterdam-Oost en daar hun liefde voor goed deeg ontdekten. Na het openen van twee Pizza Projects in Oud-West en Zuid ontstond de behoefte aan een plek om hun vak verder te verdiepen. In Dough Studio draait alles om fermentatie en tijd, met deeg dat de ruimte krijgt om zich volledig te ontwikkelen. Ze breiden hun ambacht hier uit voorbij pizza, met schiacciata-sandwiches, seizoensgebonden baksels en koffie van een lokale brander.

51528013_2317403371850340_7532180912608378880_n
23
Adres
Beukenplein 8,
1091 KG Amsterdam

De Bakkerszonen

Bij De Bakkerszonen kun je dagelijks terecht voor de lekkerste broden, taarten, en croissants. Deze zaak heeft meerdere vestigingen in Amsterdam, waaronder een vestiging in Noord en een vestiging bij Roeterseiland. De Bakkerszonen is opgericht door twee bakkerszonen die het werk van hun vader nieuw leven wilden inblazen. Deze bakkerij ademt vakmanschap en hard werk. De kwaliteit van het brood is uitmuntend en niet vergelijkbaar met brood uit de supermarkt. Een bezoekje aan deze bakker doet je weer beseffen hoe lekker brood kan smaken.

Interieur
BEDROOM-EDIT-_12_1500
24
Adres
Stadhouderskade 160,
1074 BC Amsterdam

Nicemakers

Interieurontwerpers Joyce en Dax Roll zijn partners in het leven en in design, samen staan zij bekend als ‘Nicemakers’. Persoonlijk, levendig, functioneel, rijk, inspirerend, elegant, gedegen en decoratief; het 'Nice' in 'Nicemakers' is even licht en natuurlijk alsook indrukwekkend en allesomvattend. Het interieur voor de saladebar SLA was het eerste project dat hen op de kaart zette, waarna vele indrukwekkende projecten volgden waaronder een waanzinnig penthouse in Maastricht, waarmee ze een rol kregen in het Netflix-programma 'Amazing Interiors'.

136669367_4115463968497865_5730894598275978897_n
25
Adres
Eerste Oosterparkstraat 236,
1091 HM Amsterdam

De Lokatie eerste Oosterparkstraat

In 2020 verkocht De Lokatie maar liefst 858.000 kilo aan spullen vanuit haar drie Amsterdamse kringloopwinkels op Buikslotermeerplein, Distelweg en de Eerste Oosterparkstraat. Alles tweedehands, dus ontzettend duurzaam. De Lokatie op de Distelweg is maar liefst 2.000 vierkante meter en daarmee een van de grootste van Amsterdam.

Groen stadsappartement in voormalig fietsenstalling

Groen stadsappartement in voormalig fietsenstalling

Test

‘Ruimte is het mooiste meubel’ Ton de Gier (1925 – 1980)

Een voormalig stoffenmagazijn

Een voormalig stoffenmagazijn

Onlangs bekeken
Bekijk het overzicht

Deze site maakt gebruik van cookies.

Voor welke cookies geef je akkoord?