Appartement van circa 247 m² op Steigereiland, met een lichte ruime woonkamer en een ruime keuken voorzien van een kookeiland. De woning beschikt over een royale slaapkamer en een ruime badkamer met een dubbele douche. Er is gemakkelijk een tweede slaapkamer te realiseren op de tweede verdieping.
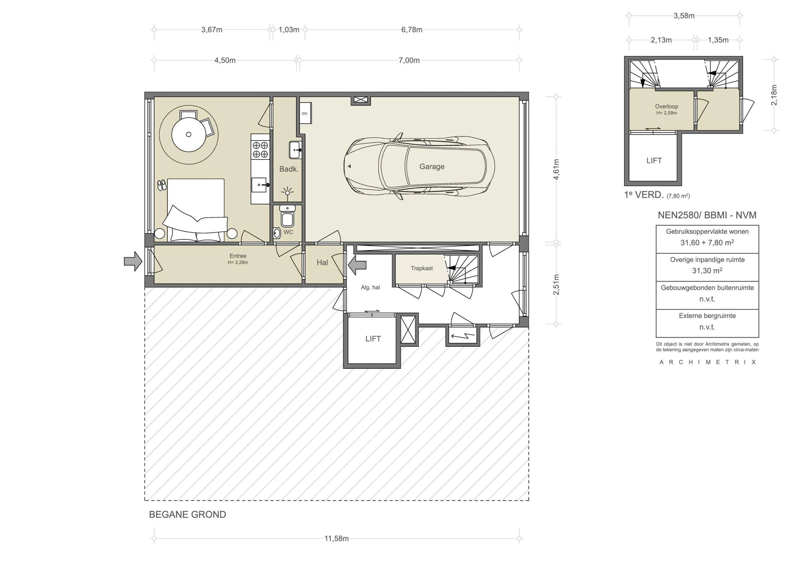
Daarnaast heeft het appartement een ruime garage met plek voor één auto en een extra ruimte die momenteel als studio wordt gebruikt, maar ook uitstekend geschikt is als gastenverblijf, werkruimte of zorgunit, met een eigen entree aan de kadezijde

Rondleiding
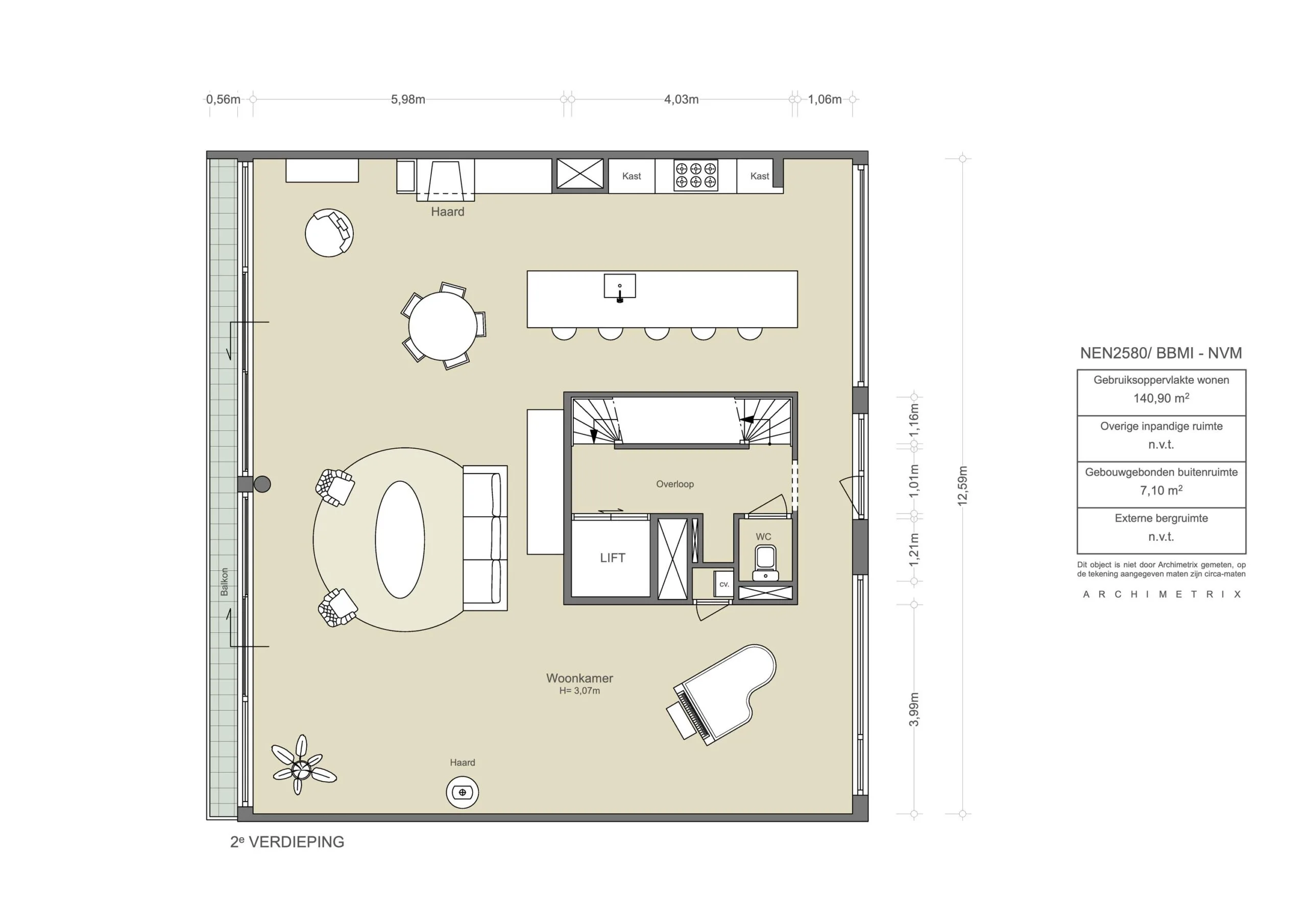
We beginnen aan de straatzijde, waar de donkere gevel en brede garagedeur direct opvallen. Via de eigen voordeur stap je binnen in de entreehal: strak afgewerkt, met directe toegang tot de inpandige garage aan de ene zijde en de zelfstandige studio aan de andere. De studio heeft een eigen entree aan de kadezijde en beschikt over een woon-/slaapgedeelte, keuken en badkamer, ideaal als gastenverblijf, werkruimte of pied-à-terre. Terug in de hal brengt de interne trap of lift je naar de tweede verdieping: de woonverdieping. Hier ontvouwt zich een open leefruimte over de volle breedte van het huis. Aan de achterzijde een zithoek met uitzicht richting het water, aan de voorzijde een eetgedeelte met aansluitend de keuken. Deze is uitgevoerd in donker hout en natuursteen, met een centraal eiland en barfunctie. Grote schuifpuien verbinden de leefruimte met het balkon, waardoor binnen en buiten moeiteloos in elkaar overlopen. Op deze verdieping is gemakkelijk een tweede slaapkamer te realiseren.
Op de derde verdieping bevindt zich de slaapverdieping, ingericht als een open en lichte suite. De hoofdslaapkamer grenst aan een royaal dakterras met zicht op het IJmeer en Durgerdam. Naast de slaapkamer is er ruimte voor een lounge of werkplek, een royale kastenwand en een luxe badkamer met inloopdouche en donkere marmerafwerking. Een tweede terras aan de voorzijde maakt deze verdieping compleet en zorgt voor licht en lucht aan beide zijden. De woning is volledig ontsloten door een eigen lift, van de garage tot aan het dakterras. Elk onderdeel van het huis is met zorg ontworpen en afgestemd op gebruik, comfort en toekomstbestendigheid.

Buurtgids
Smalschipstraat 31 ligt op Steigereiland-Noord, een van de best bewaarde geheimen van Amsterdam. Deze rustige en ruim opgezette woonwijk maakt deel uit van het eerste eiland van IJburg en is geliefd om zijn architectonische diversiteit, de directe ligging aan het water en het dorpsgevoel binnen de stad.
De straat zelf is autovrij en grenst aan een kade met brede stoepen, groenvoorziening en zicht op het IJmeer. Hier ervaar je de ruimte van een buitenwijk, met de nabijheid van de stad binnen handbereik. De sfeer is ontspannen, kindvriendelijk en gericht op de toekomst. In de directe omgeving vind je meerdere scholen, kinderopvang en het IJburg College, evenals een verscheidenheid aan sportfaciliteiten, parken en horeca.
Op loopafstand ligt winkelcentrum IJburg, met een gevarieerd aanbod aan supermarkten, speciaalzaken en eetgelegenheden. Wie nog meer zoekt, is met de tram in minder dan 20 minuten op Amsterdam Centraal. Ook met de auto is de locatie ideaal: de ring A10 ligt op enkele minuten rijden.
Wat deze buurt bijzonder maakt, is de balans: ruimte en rust zonder afgezonderd te zijn. De dynamiek van de stad is dichtbij, maar je woont hier in een wijk die ontworpen is voor het leven van vandaag én morgen.

Bij de presentatie van deze woning op onze website, hebben we de leukste hotspots in de buurt verzameld.

Bijzonderheden
• Gebruiksoppervlakte wonen circa 247 m²
• Terras en balkon van in totaal circa 59 m²
• Gelegen op erfpachtgrond van Gemeente Amsterdam. Erfpacht is eeuwigdurend afgekocht
• Energielabel A++
• CPO-project
• Lift aanwezig
• Garage met parkeerplaats
• VvE moet nog opgestart worden
• Een slaapkamer op de woonverdieping is gemakkelijk te realiseren
• Mogelijkheid om Smalschipstraat 31 en 33 gezamenlijk aan te kopen en tot één geheel huis te realiseren

AM106514-2093200-Smalschipstraat-31,-Amsterdam-251176006

Horizon View 31
Smalschipstraat 31, of zoals wij het noemen: Horizon View 31, is een eigentijds woonhuis met een doordachte indeling en een rustige ligging op Steigereiland. De woning is net geen hoekpand, maar profiteert wel van extra licht en ruimte aan beide zijden. Aan de kadezijde ligt een zelfstandige studio, ideaal als gastenverblijf of werkruimte. Aan de straatzijde is er een ruime garage met plek voor een auto en extra opslag.
De hoofdwoning begint op de tweede verdieping en biedt een comfortabel en helder woonprogramma, met een prettige indeling en goede maatvoering. Grote raampartijen zorgen voor veel licht en zicht, en het geheel is verzorgd afgewerkt met een moderne uitstraling.
Een woning met meerdere gebruiksmogelijkheden, verdeeld over drie niveaus en met een eigen entree en lift. Praktisch, verzorgd en klaar voor een nieuwe bewoner.


Ronald van de Bijl | Makelaar Broersma Wonen
Babette Meijers | Makelaar Broersma Wonen
AM106514-2093200-Smalschipstraat-31,-Amsterdam-251175756
Designvisie

Smalschipstraat 31 maakt deel uit van een zorgvuldig ontworpen CPO-project op IJburg, waar moderne stadsarchitectuur en individueel eigendom samenkomen. Het gebouw is onderdeel van een strak vormgegeven woonblok met een ritmische geleding in metselwerk en gevelopeningen. De warme baksteen is verwerkt in een opvallend verticaal verband en vormt een krachtig geheel met de diepe neggen en slanke, zwarte kozijnen.
De woning ligt één positie van de hoek en volgt het heldere ritme van de straat. Achter de gevel ontvouwt zich een volledige stadsvilla van vier bouwlagen, voorzien van een eigen lift die elke verdieping ontsluit. Op de begane grond bevindt zich aan de ene zijde een zelfstandige studio met eigen entree, geschikt als werkruimte, gastenverblijf of mantelzorg. Aan de andere zijde ligt een privégarage met ruimte voor een auto en opslag.
De woonverdieping begint op de tweede verdieping en is open van karakter, met royale gevelpuien en zichtlijnen over de volle diepte van het huis. De slaapverdieping ligt daarboven, met meerdere kamers en directe toegang tot het dakterras aan weerszijden. De zorgvuldig gekozen indeling biedt vrijheid in gebruik en is voorbereid op de toekomst.
Een eigentijdse woning met een duidelijke structuur, hoogwaardige afwerking en een vanzelfsprekende plek in de stedelijke omgeving van IJburg.

AM106514-2093200-Smalschipstraat-31,-Amsterdam-251176254
AM106514-2093200-Smalschipstraat-31,-Amsterdam-251175922
AM106514-2093200-Smalschipstraat-31,-Amsterdam-251175800
AM106514-2093200-Smalschipstraat-31,-Amsterdam-251378640
Wonen en koken

De tweede verdieping vormt het hart van de woning en biedt een ruimtelijke leefomgeving met directe oriëntatie op het water. Deze woonlaag is ontworpen als open plan, waarbij koken, eten en ontspannen naadloos in elkaar overlopen. Grote schuifpuien aan beide zijden zorgen voor een sterke binnen-buitenrelatie en brengen daglicht diep de ruimte in.
De keuken is uitgevoerd in donker houtfineer en natuursteen met een uitgesproken tekening. Het centrale kookeiland vormt een visueel anker in de ruimte en is voorzien van hoogwaardige apparatuur, geïntegreerde bergruimte en een ruim blad met zitplaatsen, geschikt voor zowel dagelijks gebruik als informele bijeenkomsten. De nis wand met barfunctie is sfeervol uitgelicht en biedt plaats aan apparatuur en flessenopslag.
De woonruimte is opgesplitst in meerdere zones: een zitgedeelte met zicht op het water, een eethoek bij de haard en een meer besloten lounge aan de achterzijde. De vloer is uitgevoerd in lichtgrijze betonciré, wat zorgt voor een rustige basis. Materialen, kleuren en meubels zijn zorgvuldig op elkaar afgestemd, wat resulteert in een gebalanceerd geheel dat comfort en stijl combineert.
Deze verdieping biedt een hoogwaardige leef kwaliteit en laat zien hoe functionaliteit en esthetiek elkaar versterken in een doordacht ontwerp.

Smalschipstraat 31 & 33-66
Smalschipstraat 31 & 33-64
Smalschipstraat 31 & 33-68
AM106514-2093200-Smalschipstraat-31,-Amsterdam-251176016
AM106514-2093200-Smalschipstraat-31,-Amsterdam-251175840
AM106514-2093200-Smalschipstraat-31,-Amsterdam-251176006
AM106514-2093200-Smalschipstraat-31,-Amsterdam-251175990
AM106514-2093200-Smalschipstraat-31,-Amsterdam-251378630
AM106514-2093200-Smalschipstraat-31,-Amsterdam-251176148
AM106514-2093200-Smalschipstraat-31,-Amsterdam-251176036
AM106514-2093200-Smalschipstraat-31,-Amsterdam-251176108
Slapen en baden

De derde verdieping is ingericht als een royale en rustige privéverdieping met panoramisch uitzicht over het IJmeer. Deze etage combineert slapen, ontspannen en verzorgen in één open, luxueus vormgegeven ruimte. De lift komt direct uit op de verdieping, wat zorgt voor optimaal comfort en privacy.
De slaapkamer bevindt zich aan de westzijde en is georiënteerd op het water. Een volledig glazen schuifpui van wand tot wand biedt toegang tot het aangrenzende dakterras en laat het natuurlijke licht ongefilterd binnenstromen. De vloer in betonciré loopt visueel door naar buiten, waardoor binnen en buiten naadloos in elkaar overvloeien. Een vrijstaande houtkachel biedt sfeer en warmte, ook tijdens koudere maanden.
Aansluitend aan de slaapzone is een royale zithoek ingericht, met ruimte voor een bibliotheek, werkplek of lounge. De kastenwand met industriële uitstraling en glazen deuren biedt praktische opbergruimte zonder afbreuk te doen aan het open karakter van de ruimte.
De en suite badkamer is afgewerkt met hoogglans natuursteen in een donkere marmerstructuur, wat een uitgesproken luxe en hotelachtige sfeer oproept. De ruime inloopdouche is voorzien van een plafondhoge glazen deur en een regendouche.
Tot slot bevindt zich op deze verdieping nog een tweede dakterras aan de straatzijde, waardoor de verdieping profiteert van licht en buitenruimte aan beide zijden van het huis.

AM106514-2093200-Smalschipstraat-31,-Amsterdam-251176142
Smalschipstraat 31 & 33-70
Smalschipstraat 31 & 33-71
Smalschipstraat 31 & 33-69
AM106514-2093200-Smalschipstraat-31,-Amsterdam-251176176
De buitenruimte

De buitenruimte van Horizon View 31 strekt zich uit over de volledige breedte van de derde verdieping en vormt een vanzelfsprekend verlengstuk van het interieur. Direct bereikbaar vanuit de master bedroom en zithoek, ligt een royaal dakterras op het zuiden en westen, met panoramisch zicht over het IJmeer, Durgerdam en de skyline van Amsterdam in de verte.
De vloer in donker composiet sluit naadloos aan op de betonciré binnenvloer, waardoor binnen en buiten in elkaars verlengde liggen. De brede schuifpuien kunnen volledig worden geopend, wat zorgt voor een ongefilterde overgang tussen de woonruimte en het terras.
Aan de waterzijde is voldoende ruimte voor een eettafel of loungeopstelling, met weids zicht over het open water. Aan de straatzijde, omgeven door het bladerdak van de bomenrij, ontstaat een meer besloten hoek, ideaal voor een ochtendkoffie in de zon of een informele werkplek in de buitenlucht.
De ligging op hoogte biedt rust en privacy, terwijl de oriëntatie op het westen zorgt voor avondzon en adembenemende zonsondergangen. Dit is buitenruimte zoals je die zelden ziet in de stad: royaal, beschut en direct verbonden met de woonbeleving.

AM106514-2093200-Smalschipstraat-31,-Amsterdam-251176276
Smalschipstraat 33-53
AM106514-2093200-Smalschipstraat-31,-Amsterdam-251176288
AM106514-2093200-Smalschipstraat-31,-Amsterdam-251176292
AM106514-2093200-Smalschipstraat-31,-Amsterdam-252849438
Buurtgids

Steigereiland is een rustige en overzichtelijke woonomgeving met een uitgesproken groen en waterrijk karakter. De directe omgeving voorziet in diverse voorzieningen: basisscholen, kinderopvang en sportvelden liggen op loopafstand, evenals het Diemerpark, de muziekschool en een groot speelveld met voetbalvoorziening. In de buurt bevindt zich een kleinschalig winkelcentrum met onder meer supermarkten, een biologische speciaalzaak, een boekwinkel, bakker en slager. De zaterdagmarkt zorgt voor een levendig moment in de week. Rond de haven en aan het water liggen verschillende horecagelegenheden, waaronder Vrijburcht met een kleinschalig theater. Het nabijgelegen strand Blijburg biedt recreatiemogelijkheden op zomerse dagen. Aan het einde van de straat ligt een buurttuin van Moestuinvereniging Proefeiland, direct aan het water met een openbare zwemsteiger. Een geliefde plek voor bewoners om te ontspannen of af te koelen aan het einde van de dag. De opzet van het eiland is kleinschalig, autoluw en zonder doorgaand verkeer. De gemeenschappelijke steigers en de nabijheid van het IJmeer maken het tot een ideale locatie voor waterliefhebbers. Een woonomgeving die rust, ruimte en bereikbaarheid combineert met het comfort van stedelijk wonen.

Bereikbaarheid
Horizon View 31 ligt op Steigereiland-Noord, het eerste eiland van IJburg zodra je de Enneüs Heermabrug oversteekt. Deze locatie combineert de nabijheid van de stad met het open karakter van het IJmeergebied. Vanuit hier ben je binnen enkele minuten in Amsterdam-Oost of op de ring A10. De tramhalte Steigereiland ligt op loopafstand. Met lijn 26 sta je in nog geen kwartier op Amsterdam Centraal — rechtstreeks, snel en frequent. Ook per fiets is de route naar de stad logisch en comfortabel, via de fietsbrug naar Zeeburgereiland en verder richting Indische Buurt of Oost. De locatie is bovendien uitstekend ontsloten voor automobilisten. Via de IJburglaan en de Piet Heintunnel bereik je de binnenstad of de snelwegen A1, A9 en A10 in korte tijd. Parkeren doe je in je eigen, inpandige garage: comfortabel, veilig en direct aan huis. Met het water aan meerdere zijden, zicht op groen én een snelle verbinding met de stad, is Steigereiland een stedelijk woongebied met een buiten stedelijke rust.

Parkeergelegenheid
Parkeren kan in de eigen parkeergarage onder de woning.
Op dit adres kunt u geen parkeervergunning aanvragen.

AM106514-2093200-Smalschipstraat-31,-Amsterdam-252849456
AM106514-2093200-Smalschipstraat-31,-Amsterdam-251176240
AM106514-2093200-Smalschipstraat-31,-Amsterdam-251176226
AM106514-2093200-Smalschipstraat-31,-Amsterdam-251176212
Kenmerken
Smalschipstraat 31, Amsterdam
Vraagprijs
  • € 2.550.000 k.k.
Beschikbaarheid
  • In overleg
Vertrekken
  • 4 kamers
  • 3 slaapkamers
  • 2 badkamers
Onderhoud
  • Intern: Goed
  • Extern: Goed
Oppervlakten & Inhoud
  • Woonoppervlakte: 247 m²
  • Overige inpandige ruimte: 31 m²
  • Gebouwgebonden buitenruimte: 59 m²
Bouwjaar
  • 2020
Installaties
  • Alarminstallatie
  • Balansventilatie
  • Buitenzonwering
  • Lift
  • TV kabel
  • Zonnepanelen
Ligging
  • Aan rustige weg
  • Aan water
Parkeren
  • Betaald parkeren
  • Op eigen terrein
  • Openbaar parkeren
  • Parkeervergunningen
  • Inpandig
Type verwarming
  • Gaskachels
  • Houtkachel
  • Stadsverwarming
  • Vloerverwarming geheel
  • Warmte terugwininstallatie
Type warmwater
  • Stadsverwarming
Bestemming
  • Woonruimte
Eigendomssoort
  • Eigendom belast met erfpacht
Buitenruimte
  • Geen tuin
  • Dakterras
Kadastraal
  • Gemeente: Amsterdam
  • Sectie: Au
  • Nummer: 3742
Duurzaamheid
  • Volledig geisoleerd
  • Energielabel A++
Soort
  • Appartement
  • Bovenwoning
  • Dubbel-bovenhuis
  • Tussenverdieping
Overige kenmerken
  • OZB ('25) € 931,85 per jaar
  • Rioolrecht ('25) € 185,20 per jaar
  • VvE moet nog opgericht worden
  • Erfpacht is eeuwigdurend afgekocht
  • Energielabel A++
  • CPO-project
  • Lift aanwezig
  • Garage met parkeerplaats
  • VvE moet nog opgestart worden
  • Een slaapkamer op de woonverdieping is gemakkelijk te realiseren
  • Mogelijkheid om Smalschipstraat 31 en 33 gezamenlijk aan te kopen en tot één geheel huis te realiseren
Plattegrond
Smalschipstraat 31, Amsterdam
AM106514-2093200-Smalschipstraat-31,-Amsterdam-251178304
AM106514-2093200-Smalschipstraat-31,-Amsterdam-251178308
AM106514-2093200-Smalschipstraat-31,-Amsterdam-251178312
AM106514-2093200-Smalschipstraat-31,-Amsterdam-255467972
Documenten
Smalschipstraat 31, Amsterdam
Locatie
Smalschipstraat 31, Amsterdam
Interieur
286463721_1350282202151603_2114217501944506381_n
01
Adres
Bert Haanstrakade 100,
1087 DN Amsterdam

Joink

Sinds 2011 kopen en verkoopt Joink voornamelijk vintage designmeubels, met de nadruk op de ontwerpen van Charles en Ray Eames. Bijna alle items worden gevonden in de EU en de Verenigde Staten; gekocht van particulieren, nalatenschappen, veilingen en vintage dealers. Sinds 2016 biedt Joink een breder scala aan geweldige designklassiekers, van bekende tot onbekende tijdloze ontwerpen.

02
Adres
Pedro de Medinalaan 89-91,
1086 XP Amsterdam

Design020

Op de westelijke punt van het Steigereiland vind je Design020; een groot woonwarenhuis met allerlei designmeubels van aanbieders zoals woonwinkel Kasstoor & Wonen 2000 en andere showrooms. Het is de perfectie plek om lekker rond te dwalen en inspiratie op te doen voor interieur en design. De ruimte is prachtig, met veel daglicht, zwevende trappen en een industrieel karakter. In de showrooms kun je naast designermeubelen ook bouwmaterialen bekijken zoals deurklinken en gietvloeren. Daarnaast is Design020 ook een meetingpunt voor architecten en designers.

162849785_190219572906159_4250034024078259020_n
03
Adres
Pedro de Medinalaan 91,
1086 XK Amsterdam

Kasstoor

De Kasstoor biedt sophisticated Amsterdam living. Deze zaak is al langer dan 100 jaar toonaangevend op het gebied van top design meubelen. Kasstoor is expert in het samenbrengen van klassieke en moderne ideeën. Een team van professionals reist de hele wereld af om de mooiste items te verzamelen. In de showroom gevestigd aan de prachtige Amerstamdse IJ kun je deze prachtige designer meubelen bekijken. Van banken tot stoelen tot tafels; hier vind je het allemaal en van de beste kwaliteit.

119183029_748370379060570_3524924206402000634_n
04
Adres
Ertskade 272,
1019 BB Amsterdam

Frankly Amsterdam

Het jonge Nederlandse bedrijf Frankly Amsterdam – met oprichter Femke Derks aan het roer – ontwerpt, produceert en verkoopt kleden, bedlinnen, plaids en sjaals. Producten in zachte naturel tinten die warme, comfort en rust toevoegen aan ieder interieur. Bij Frankly Amsterdam doen ze dingen anders, hun producten hebben een eerlijke oorsprong waarbij werknemers in een goede omgeving met zuivere, onschadelijke materialen werken en een eerlijk loon ontvangen.

119235730_640071679979829_2528260860777625963_n
05
Adres
Javaplein 31HS,
1095 CJ Amsterdam

Found in Sweden

Found in Sweden, gelegen op het Javaplein in Amsterdam Oost, is een vintage winkel die trouw is aan zijn naam. Alles in de winkel is zorgvuldig geselecteerd uit Zweden, variërend van mid-century dressoirs tot lampen en tafelkleden. De collectie verandert voortdurend, met wekelijks nieuwe vondsten uit Zweden of liefdevol gerestaureerde stukken. Hoewel sommige items designklassiekers zijn, biedt de winkel ook betaalbare vintage schatten. De eigenaar, een gepassioneerde vintage-jager, deelt haar liefde voor unieke stukken. Found in Sweden is een plek waar de wereld van vintage tot leven komt, met verrassingen op elk bezoek.

Boodschappen
06
Adres
Joris Ivensplein,
1087 BP Amsterdam

De REURING markt

De REURING markt strijkt elke zaterdag neer van 09:00 tot 16:00 en is een kleine maar fijne markt op IJburg. De gezellige sfeer van IJburg en de goede kwaliteit van producten staan hier voorop. Het ligt naast het Winkelcentrum van IJburg en bevindt zich naast een mooie speeltuin. Je vindt er diversen kramen met onder andere Alfons koffiebonen uit Italië, een jam speciaal zaak met bijzondere chutneys, buikspek van de BBQ in een foodtruck, een Mexicaanse specialist en nog veel meer. Ga erheen om het zelf mee te maken.

Kaddour
07
Adres
Pampuslaan 22,
1087 LA Amsterdam

Slagerij Kaddour

Bij Kaddour hebben ze een breed scala aan ambachtelijk vers vlees en vleeswaren. Het assortiment biedt puur en eerlijk kwaliteitsvlees, zowel lokaal als wereldwijd, waaronder Hollands vlees, exclusief Halal Wagyu, verfijnd John Dee rundvlees uit Australië en smaakvol Maimoa lamsvlees uit Nieuw-Zeeland. Al ruim 35 jaar staat Slagerij Kaddour bekend om uitmuntende kwaliteit, met recepten die generaties lang worden doorgegeven. Ontdek de gezonde, diervriendelijke aanpak en geniet van handgeknoopte rollades, gourmet- en barbecuepakketten, ambachtelijke vleeswaren en het welbekende broodje kip grilworst.

LANDMARKT_TOTAAL-WEB-2048×1363
08
Adres
Schellingwouderdijk 339,
1023 NK Amsterdam

Landmarkt Schellingwoude

Landmarkt Schellingwoude is een grote overdekte supermarkt met producten voornamelijk van lokale ondernemers en kleine telers. De Landmarkt staat bekend om zijn ambachtelijke leveranciers uit de buurt en heeft dan ook een heel breed assortiment aan goede producten. Je kan hier ook vers bereide maaltijden afhalen, of op eten in het restaurant naast de supermarkt. Daar eet je wat de kok schaft, en is het dus elke dag anders. Je kan er ook een koffietje drinken en uitkijken over de mooie Schellingwouderdijk.

millie
327448751_105529872451533_2683322311542512579_n
09
Adres
Bottelarijstraat 1,
1019 VC Amsterdam

Millie Vanillie

Bij Millie Vanillie wordt van s’morgens vroeg tot ‘s avonds laat gebakken. Het assortiment bestaat onder andere uit verse zuurdesembroden en patisserie zoals kardemom buns en custard buns.
Daarnaast wordt er bij Millie Vanillie ook heerlijke koffie geserveerd. De bonen komen ook van  Sprout.

1465889_221896457986867_1027729947_o
10
Adres
C. van Eesterenlaan,
Amsterdam

Thull's deli

Thulls deli is een echte goede traiteur. Ze maken heerlijke dagvers-maaltijden met mediterrane invloeden om mee te nemen. Je kan er naast maaltijden ook heerlijke royaal belegde broodjes afhalen die vers gemaakt worden door de vriendelijke verkopers. Alles is vers en huisgemaakt. De deli heeft een uitgebreide en met zorg uitgekozen selectie Europese wijn en cider, zuurdesembrood van Restaurant As, chocolade, charcuterie, kazen, olijfolie, azijnen, blikvis en meer.  Thulls is echter echt bekend geworden doordat ze zelf pickles en gefermenteerde groente zoals zuurkool en kimchi maken. Daarnaast zijn ze brouwer van waterkefir en kombucha!

Eten & drinken
mchi_20130210
11
Adres
IJburglaan 1295,
1087 JJ Amsterdam

Restaurant Mchi

Bij restaurant Mchi draait het om proeven, eten en delen. In dit Aziatische restaurant werken ze volgens een shared-dining concept en kun je samen genieten van allerlei verse gerechtjes van hoge kwaliteit. Ze serveren hier heerlijke Aziatische gerechten - van dim sum tot sushi tot gefrituurde tofu. Het restaurant heeft een rustige ambiance en het personeel is zeer gastvrij en behulpzaam.

467683_483607991655776_1494931399_o
12
Adres
Krijn Taconiskade 124,
1087 HV Amsterdam

NAP Amsterdam

NAP Amsterdam is prachtig gelegen aan de haven in IJburg. Ze hebben een heerlijk buitenterras aan het water en prachtig interieur. Op de menukaart staan allerlei verschillende gerechten; van tagliatelle tot hamburgers. Bij NAP Amsterdan kunt hier terecht voor lunch, diner en voor een frisse borrel. Ook hebben ze hebben leuke arrangementen voor het vieren van een verjaardag, jubilieum of promotie. NAP Amsterdam is een heerlijke plek om neer te strijken tijdens een fietstochtje langs het water of om samen met vrienden een drankje te drinken in de zon.

106477833_3230819603637267_5055141329423735816_n
13
Adres
IJburglaan 1489,
1087 KM Amsterdam

Espressofabriek

De Espressofabriek heeft meerdere vestigingen in Amsterdam; bij de Westergas, IJburg en bij Zeeburgereiland. Bij de Espressofabriek kun je de lekkerste koffie, cappuchino, en natuurlijk espresso halen. De uitstraling is hip en industrieel en je kunt zowel binnen als buiten heerlijk zitten. Wat extra leuk is aan deze zaak is dat zij ook een eigen koffiebranderij hebben. In de winkels verkopen zij ook hun eigen producten zodat je ook thuis van een kopje verse koffie kan genieten.

Schermafbeelding 2022-07-01 om 12.42.58
14
Adres
Durgerdammerdijk 53,
1026 CA Amsterdam

Theetante Durgerdam

In het dijkhuis aan het IJsselmeer ligt Theetante Durgerdam. Hier worden de heerlijkste huisgemaakte taarten met een warme kop koffie of thee geserveerd. Op het pittoreske terras met uitzicht over de authentieke huisjes van Durgerdam kan je lekker zitten, maar binnen aan de stamtafel is het ook heel gezellig. De taarten verschillen elke week dus je kan iedere week een nieuw stuk taart proeven. De ideale plek om bij te komen van een lange fietstocht.

home-1800x1000_4
eat-drink-1800x1100_1
15
Adres
Durgerdammerdijk 73,
1026 CB Amsterdam

Restaurant de Mark

Laat je omringen door de gastvrije sociale sfeer van het restaurant De Mark aan het meer. Of dat nu bij de open haard in de eetkamer is, in de wijnkamer of op het terras aan het water. De Mark is een bescheiden maar absoluut een culinaire hotspot, samengesteld door Michelin-sterrenchefs. Chef-kok Koen Marees werkt samen met de gourmet helden Richard van Oostenbrugge en Thomas Groot van de Michelin-sterrenrestaurants 212 en De Juwelier in Amsterdam. Lokale, verse en seizoensgebonden ingrediënten vormen de basis van het menu. Waarbij vertrouwde klassiekers gedurfd en ongecompliceerd zijn en eenvoudige ingrediënten gerechten creëren die gewoon goed smaken. Combineer dit met een fles uit de wijnkelder om je avond compleet te maken.

4409833c90ff3131539a50f0e860c079
Vuurtoreneiland_Winter_Annelore_W
16
Adres
Amsterdam

Vuurtoreneiland

Echt iets speciaals plannen? Dan ben je bij Vuurtoren eiland aan het juiste adres. Een uitstapje voor de echte foodie en wijnliefhebber. Stap op de boot bij het Lloyd hotel en laat je meevoeren naar een klein eiland over ‘t Ij. Een hidden gem waar zomers wordt ontvangen in de kas en s’winters dineert in het fort. Verwacht een compleet 5-gangen diner met regionale producten bereid op open vuur. Je kunt er nu ook blijven slapen! Onlangs zijn er 5 slaapkamers gecreëerd.

Baggerbeest
17
Adres
Rudi van Dantzigstraat 1,
1095 PK Amsterdam

Bar Baggerbeest

Een plek om wat te drinken, een hapje te eten, nieuwe mensen te ontmoeten en te verbinden. Stil je honger met overheerlijke steenoven pizza's. Lust je dorst met een van de  (biologische) wijnen, eerlijke koffie of (Amsterdams) bier. Bar Baggerbeest is onderdeel van Broedplaats Baggerbeest hét culturele ankerpunt van de stadswijk-in-wording: de Sluisbuurt. Club: Op vrijdag, zaterdag en zondag na 21.00 uur is er ruimte voor een culturele programmering.

joki
18
Adres
Cruquiusweg 89F,
1019 AG Amsterdam

Jōki

De naam ‘JōKi’ (wat Stoom betekent in het Japans) verwijst naar het ‘Gemaal de Cruquius’, de grootste stoommachine ter wereld.
De koffie wordt hier gemaakt met de bonen van Stooker, dat zit dus wel goed.

19
Adres
Cruquiusweg 83D,
1019 AT Amsterdam

Krux brouwwerf

Vroeger was Cruquiuseiland één grote werf. Nu is er alleen nog een brouwwerf over. Eentje waar bier wordt gebrouwen en waar je ook kan komen drinken. Volgens zeggen de kleinste brouwerij van Amsterdam. Dit heeft twee voordelen; door de kleine batches kunnen ze makkelijk experimenteren met de recepten én is het bier altijd super vers!

272793218_3188322951397443_5440626548767686297_n
20
Adres
Flevopark 13a,
1095 KE Amsterdam

Distilleerderij ’t nieuwe diep

Distilleerderij ’t nieuwe diep bevindt zich op een mooie rustige plek in het Flevopark. Bij mooi weer kan je hier heerlijk op het terras bij de vijver zitten en hoor je de geluiden van eenden en andere dieren om je heen. Ze maken een 100-tal producten waaronder verschillende jenevers, likeuren en bitters, zoveel mogelijk gemaakt van biologische grondstoffen. Neem bijvoorbeeld’ ‘het groene juffertje in de plas’ of een citroenjenever. Naast sterke dranken serveren ze ook andere dranken en verschillende borrelhapjes.

 

191686408_2310828075718601_276839848729415013_n
21
Adres
Overdiemerweg 37,
1111 PP Diemen

Paviljoen Puur

Paviljoen puur is een spectaculaire locatie midden in het Diemerpark. Het paviljoen kan afgehuurd worden voor trouwfeesten en zakelijke evenementen, maar je kunt hier ook informeel een hapje komen eten. Het gebouw is speciaal door de ronde vormen geïnspireerd op het nabijgelegen gerestaureerde fort Diemerdam. Door het omliggende groen heerst er een in de omgeving ban het paviljoen een heerlijke kalme sfeer. Leuk is dat ze zowel een binnen- als een buitenkeuken hebben dus als het lekker weer is kan er ook buiten in de zon gekookt worden.

Schermafbeelding 2022-07-01 om 12.46.22
22
Adres
Javaplein 23,
1095 CJ Amsterdam

Restaurant Wilde Zwijnen

Bij restaurant Wilde Zwijnen wordt gekookt volgens de moderne Nederlandse keuken. Zelf zeggen ze daar over; 'Een Modern Nederlandse keuken betekent voor ons: ingrediënten van Nederlandse bodem, hoe meer de ingrediënten uit de buurt, hoe beter. We koken seizoensgebonden, ook vegetarisch en gebruiken zoveel als mogelijk duurzame producten.' Wilde Zwijnen serveert een vast menu bestaande uit drie, vier of vijf gangen. Op maandag en dinsdag kan er a la carte gegeten worden.

image
23
Adres
Javaplein 25,
1095 HR Amsterdam

Bar bachrach

Bar Bachrach is zowel een bar als een restaurant. Je vindt hier modern midden-Oosters eten, denk bijvoorbeeld aan halloumi met biet of een Jeruzalem bagel. Chefkok Yaniv stelt met zorg de gerechten samen met verschillende verse seizoensgebonden producten. Je kunt hier genieten van een goed glas wijn en kleine gerechtjes of lekker lang tafelen met een diner volgens het vooraf samengestelde chef's menu. Binnen hangt een heerlijke warme sfeer door houten interieur en de mix van vintage kunt en moderne elementen.

24
Adres
Javastraat 149,
1094 HE Amsterdam

De Jonge Admiraal

Aan het einde van de Javastraat, tegen het Javaplein aan vind je De Jonge Admiraal. Ze serveren hier heerlijke koffies, goede broodjes en heerlijke taart van Majesteit Taart, een taartenwinkel verderop in de Javastraat. De Jonge Admiraal is gezellig en Laptopfree, iedereen die er zit is gezellig aan het kletsen of spelletjes aan het spelen en dat zorgt voor een goede sfeer. ’s Avonds kan je er ook lekkere biertjes uit de buurt drinken en er zijn vaak leuke evenementen als pubquizzes, Ajax-wedstrijden of live optredens.

image-e1568147216648-2048×1310
25
Adres
Levantplein 84,
1019 MB Amsterdam

Paon Bali

Paon Bali Amsterdam ( voorheen Catering Enak Sekali ) is gespecialiseerd in de authentieke Balinese keuken.Bali heeft een eigen, uitgebreide keuken. In vergelijking met andere keukens uit Indonesië is het pittiger en minder zoet. Daarnaast wordt varkensvlees ook vaker gebruikt. Volgens een bekende chef en auteur van boeken over Indonesisch eten vind je hier de beste sate (geroosterd op houtskool) van de stad!

Een appartement met het comfort van een hotelsuite. Een ontwerp van Anne Claus

Een appartement met het comfort van een hotelsuite. Een ontwerp van Anne Claus

Een Rijksmonument uit 1896 gebouwd in een Art Nouveau stijl naar ontwerp van Gerrit van Arkel.

Een Rijksmonument uit 1896 gebouwd in een Art Nouveau stijl naar ontwerp van Gerrit van Arkel.

Buurtgids: de Jordaan rondom de Westerstraat

Buurtgids: de Jordaan rondom de Westerstraat

Onlangs bekeken
Bekijk het overzicht

Deze site maakt gebruik van cookies.

Voor welke cookies geef je akkoord?