Wonen in De Drie Koningen, een karakteristiek rijksmonument aan het Singel, waar historie en hedendaags comfort samenkomen. Het appartement van circa 77 m² bevindt zich op de vierde en vijfde verdieping van een luxueus appartementencomplex met lift, en biedt bijzondere gemeenschappelijke voorzieningen zoals een zwembad en een sauna in het souterrain – exclusief toegankelijk voor bewoners.

Rondleiding
Licht en elegant appartement van circa 77 m² op de vierde en vijfde verdieping van De Drie Koningen, met als absolute troef een zonnige daktuin van bijna 40 m² op het zuiden. De woning biedt een sfeervolle living, een luxe keuken en een ruime slaapkamer met aangrenzende badkamer. De verhoogde ruimte in de living is multifunctioneel inzetbaar. Het complex beschikt over een gemeenschappelijke wellnessruimte met zwembad en sauna — een zeldzaam comfort in het hart van Amsterdam.

Buitenruimte
De daktuin vormt het hart van deze woning. Een zonnig terras op het zuiden met uitzicht over de monumentale daken van de binnenstad. De sfeer doet denken aan een Provençaalse binnenplaats – een oase van rust midden in Amsterdam.

Buurtgids
Singel 208 C ligt in een van de meest karaktervolle delen van de Amsterdamse binnenstad. Deze historische en charmante buurt biedt een unieke combinatie van cultuur, architectuur en levendige stedelijkheid, wat het tot een ideale plek maakt om te wonen. De omgeving van het Singel staat bekend om zijn monumentale grachtenpanden, authentieke straatbeelden en rijke geschiedenis. Vanuit Singel 208 C loopt u zo naar de iconische Jordaan, de Negen Straatjes en de Haarlemmerdijk, met een divers aanbod aan boetieks, speciaalzaken en galeries. Ook op cultureel vlak heeft de buurt veel te bieden. Op korte loopafstand bevinden zich onder meer het Anne Frank Huis, het Amsterdam Museum en diverse kleinere galerieën die het historische karakter van de stad combineren met eigentijdse kunst en design. De buurt kent bovendien een veelzijdige culinaire scène. Van sfeervolle cafés tot verfijnde restaurants en internationale keukens – in de directe omgeving van Singel 208 C vindt u voor elke gelegenheid een passende plek. Singel 208 C biedt daarmee de ideale balans tussen de dynamiek van de stad en de rust en elegantie van een historisch grachtenpand.

Bijzonderheden
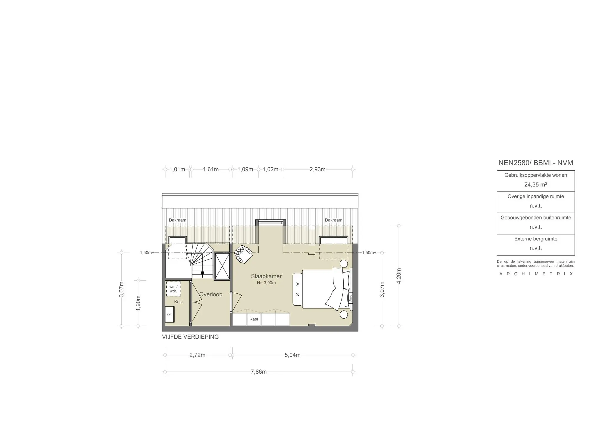
•    Gebruiksoppervlakte wonen circa 77 m²
•    Daktuin van circa 37 m²
•    Berging van circa 2 m2
•    Lift
•    Gelegen op eigen grond
•    Rijksmonument
•    Professioneel beheerde VvE, door vve beheer Amsterdam
•    Servicekosten VvE € 522,88 per maand
•    MJOP

AM105775-2013415-Singel-208C,-Amsterdam-230340648

De Drie Koningen
Een karakteristiek gebouw aan het Singel, waar historie en hedendaags comfort samenkomen. Gelegen in een luxueus appartementencomplex met lift, voorzien van bijzondere gemeenschappelijke voorzieningen zoals een zwembad en sauna in het souterrain – exclusief toegankelijk voor bewoners.
Een absolute troef is de riante daktuin van bijna 40 m²: een unieke buitenruimte in het hart van de stad. Het appartement zelf beslaat circa 77 m² en bevindt zich op de vierde en vijfde verdieping.
De binnenkomst ademt de sfeer van Zuid-Frankrijk: royale raampartijen, overvloedig daglicht en een naadloze overgang naar het zonovergoten terras.


Daniël de Bont | Makelaar Broersma Wonen
Jelle Mundt | Makelaar Broersma Wonen
AM105775-2013415-Singel-208C,-Amsterdam-230340450
Architectuur

Op de hoek van het Singel en de Driekoningenstraat verrijst een karakteristiek rijksmonument in verstrakte Amsterdamse School-stijl, ontworpen door architect A.D.N. van Gendt in opdracht van effectenfirma Praetorius & Zoon. In de vroege twintigste eeuw bood het onderkomen aan verschillende vooraanstaande financiële instellingen, waaronder bankiers De Kock & Uyt den Bogaarden en het verzekeringsbedrijf van O.W.J. Schlencker. De naam ‘Drie Koningen’, subtiel aangebracht op de gevel, verwijst naar de aangrenzende straat.
Het gebouw kenmerkt zich door een vijflaags opbouw met zolderverdieping, een natuurstenen plint en een bakstenen gevel met zorgvuldig metselwerk. De plint toont expressieve ornamenten en beeldhouwwerk, waaronder een gevelbeeld van de drie koningen onder de ster van Bethlehem. Andere symboliek is verwerkt in vier natuurstenen reliëfs met een esculaap, salamander, pelikanen en zeepaardjes – verwijzingen naar handel, zorg en maritieme rijkdom. De gevel is afgewerkt met getand metselwerk en subtiele detaillering. Op de hoek prijkt hoog boven de straat een sierlijke vlaggenmasthouder – nu zonder mast – als stille herinnering aan het oorspronkelijke silhouet.
In 1996–1997 onderging het pand een zorgvuldige herontwikkeling tot een residentieel ensemble met negenentwintig luxe appartementen. Onder leiding van architectenbureau Dik Smeding werd het gebouw aangepast aan een nieuwe bestemming, met behoud van de architectonische essentie. De kelder werd deels uitgehold voor de realisatie van een inpandige parkeergarage, waarbij een stalen constructie de oorspronkelijke kolommen verving. De entree naar deze garage is subtiel geïntegreerd naast het gevelbeeld van de drie koningen.

AM105775-2013415-Singel-208C,-Amsterdam-230340446
AM105775-2013415-Singel-208C,-Amsterdam-230340462
AM105775-2013415-Singel-208C,-Amsterdam-230340548
AM105775-2013415-Singel-208C,-Amsterdam-230340544
Wonen en koken

Toegang via een stijlvol trappenhuis of per lift. De entree opent naar een licht woonvertrek met zitgedeelte en een verhoogd deel, perfect geschikt als werkruimte of logeerplek. Vanuit de living geven openslaande deuren direct toegang tot het dakterras.
De keuken is uitgevoerd in mat wit, met een aanrechtblad van natuursteen en hoogwaardige inbouwapparatuur van onder andere Quooker en BORA. De opstelling biedt voldoende ruimte voor een eettafel, waardoor koken en tafelen een natuurlijke eenheid vormen.
Door de gehele woning ligt een smaakvolle parketvloer in Hongaarse punt, die de ruimtelijke beleving verfijnt en verbindt.

AM105775-2013415-Singel-208C,-Amsterdam-230340656
AM105775-2013415-Singel-208C,-Amsterdam-230340480
AM105775-2013415-Singel-208C,-Amsterdam-230340596
AM105775-2013415-Singel-208C,-Amsterdam-230340612
AM105775-2013415-Singel-208C,-Amsterdam-230340580
AM105775-2013415-Singel-208C,-Amsterdam-230340606
Slapen en baden

De slaapkamer is ruim opgezet, voorzien van charmante dakramen en comfortabele airconditioning. De badkamer is luxueus vormgegeven met een inloopdouche, vrijstaand bad, wastafel en toilet.
De verhoogde ruimte in het woonvertrek is multifunctioneel en kan dienstdoen als logeerplek of atelier.

AM105775-2013415-Singel-208C,-Amsterdam-230340602
AM105775-2013415-Singel-208C,-Amsterdam-230340540
AM105775-2013415-Singel-208C,-Amsterdam-230340588
AM105775-2013415-Singel-208C,-Amsterdam-230340564
AM105775-2013415-Singel-208C,-Amsterdam-230340570
AM105775-2013415-Singel-208C,-Amsterdam-230340558
De buitenruimte

De daktuin vormt het hart van deze woning. Een zonnig terras op het zuiden met uitzicht over de monumentale daken van de binnenstad. De sfeer doet denken aan een Provençaalse binnenplaats – een oase van rust midden in Amsterdam.

Wellness in huis
In het souterrain bevindt zich een gemeenschappelijke wellnessruimte met zwembad en sauna. Een zeldzame voorziening die bijdraagt aan het bijzondere wooncomfort van De Drie Koningen.

AM105775-2013415-Singel-208C,-Amsterdam-230340458
AM105775-2013415-Singel-208C,-Amsterdam-230340456
AM105775-2013415-Singel-208C,-Amsterdam-230340460
Buurtgids

Singel 208 C ligt in een van de meest karaktervolle delen van de Amsterdamse binnenstad. Deze historische en charmante buurt biedt een unieke combinatie van cultuur, architectuur en levendige stedelijkheid, wat het tot een ideale plek maakt om te wonen. De omgeving van het Singel staat bekend om zijn monumentale grachtenpanden, authentieke straatbeelden en rijke geschiedenis. Vanuit Singel 208 C loopt u zo naar de iconische Jordaan, de Negen Straatjes en de Haarlemmerdijk, met een divers aanbod aan boetieks, speciaalzaken en galeries. Ook op cultureel vlak heeft de buurt veel te bieden. Op korte loopafstand bevinden zich onder meer het Anne Frank Huis, het Amsterdam Museum en diverse kleinere galerieën die het historische karakter van de stad combineren met eigentijdse kunst en design. De buurt kent bovendien een veelzijdige culinaire scène. Van sfeervolle cafés tot verfijnde restaurants en internationale keukens – in de directe omgeving van Singel 208 C vindt u voor elke gelegenheid een passende plek. Singel 208 C biedt daarmee de ideale balans tussen de dynamiek van de stad en de rust en elegantie van een historisch grachtenpand.

Bereikbaarheid
Het appartement aan de Singel 146D is uitstekend bereikbaar, zowel per fiets, auto als met het openbaar vervoer. Gelegen in het hart van de grachtengordel, bevindt Amsterdam Centraal Station zich op slechts enkele minuten fietsen of een korte tramrit, met aansluitingen op nationale en internationale treinverbindingen. Diverse tram- en buslijnen stoppen op loopafstand en bieden directe verbindingen naar andere delen van de stad. Met de auto is de Ring A10 bereikbaar via de IJtunnel of de S100/S101.

Parkeergelegenheid
Parkeren is mogelijk via een vergunningenstelsel op de openbare weg (vergunningsgebied Centrum-2c). Met een parkeervergunning voor Centrum-2c mag u parkeren in Centrum-2. Een parkeervergunning voor bewoners kost € 326,65 per 6 maanden. Momenteel is er voor dit vergunningsgebied een wachttijd van 27 maanden. Een tweede parkeervergunning is in dit gebied niet mogelijk. Daarnaast zijn er in de nabije omgeving verschillende parkeergarages en P+R-locaties voor extra parkeermogelijkheden.  (Bron: Gemeente Amsterdam, juni 2025).

B103484-1960109-Singel-272-1,-Amsterdam-212279333
AM105775-2013415-Singel-208C,-Amsterdam-230340624
AM105775-2013415-Singel-208C,-Amsterdam-230340616
Kenmerken
Singel 208C, Amsterdam
Vraagprijs
  • € 980.000 k.k.
Beschikbaarheid
  • In overleg
Vertrekken
  • 3 kamers
  • 1 slaapkamer
  • 1 badkamer
Onderhoud
  • Intern: Goed tot uitstekend
  • Extern: Goed
Oppervlakten & Inhoud
  • Woonoppervlakte: 77 m²
  • Gebouwgebonden buitenruimte: 37 m²
  • Externe bergruimte: 2 m²
Bouwjaar
  • 1924
Installaties
  • Airconditioning
  • Domotica
  • Lift
  • Mechanische ventilatie
  • Sauna
  • TV kabel
  • Zwembad
Ligging
  • Aan water
  • In centrum
Parkeren
  • Betaald parkeren
  • Parkeervergunningen
Type verwarming
  • CV Ketel
  • Vloerverwarming geheel
Type warmwater
  • CV Ketel
Bestemming
  • Woonruimte
Buitenruimte
  • Geen tuin
  • Dakterras
Kadastraal
  • Gemeente: Amsterdam
  • Sectie: E
  • Nummer: 10120
Duurzaamheid
  • Gedeeltelijk dubbel glas
Soort
  • Appartement
  • Bovenwoning
Bijzonderheden
  • Monumentaal pand
Overige kenmerken
  • OZB ('25) € 431,59 per jaar
  • Rioolrecht ('25) € 185,20 per jaar
  • Servicekosten VvE € 522,88 per maand
  • Professioneel beheerde VvE, door vve beheer Amsterdam
  • Gelegen op eigen grond
Plattegrond
Singel 208C, Amsterdam
AM105775-2013415-Singel-208C,-Amsterdam-231997154
AM105775-2013415-Singel-208C,-Amsterdam-231997156
Documenten
Singel 208C, Amsterdam
Locatie
Singel 208C, Amsterdam
Eten & drinken
1
4
01
Adres
Herengracht 169,
1015 BJ Amsterdam

Heertje Friet

In een authentiek Amsterdams pand, in het oude centrum van Amsterdam, vind je: Heertje Friet. De frieten bij Heertje Friet worden elke dag vers gesneden.  Daarbij hebben ze een groot aanbod aan verschillende soorten sauzen met onder andere vegan opties. Naast de overheerlijke friet hebben ze ook kroketten met garnaal, kip of kaas.

THE-DUCHESS-Amsterdam
02
Adres
Spuistraat 172,
1012 VT Amsterdam

The Duchess

Een echte high-tea room. Ze bieden hier een enorm scala aan bijzondere theesoorten, vers gebakken cakes en nog veel meer aan. Huisgemaakte macarons, warme scones maar ook een geweldig assortiment aan champagne is hier te vinden. De echte aristocraat komt hier niks te kort.

03
Adres
Spuistraat 102,
1012 VA Amsterdam

Caldi E Freddi

Amsterdam maakte kennis met de kern van de Italiaanse keuken. Volgens eigenaar Mazziotta draait het om de schoonheid van eenvoud: weinig ingrediënten, maar van hoge kwaliteit. Bij Caldi e Freddi is de essentie hetzelfde: eenvoudig en betaalbaar. Geen ingewikkelde gerechten, maar toegankelijkheid en lage prijzen. Ze halen uit de Italiaanse keuken wat makkelijk en betaalbaar is, zoals kip inplaats van lamsvlees. Geniet van heerlijke broodjes (ook vegetarische opties) en andere authentieke Italiaanse gerechten en desserts, allemaal om mee te nemen.

298405398_567499908402653_184766060029558006_n
04
Adres
Singel 278,
1016 AC Amsterdam

Café ‘t Molentje

Café ‘t Molentje bevindt zich middenin hartje Amsterdam. Het café bestaat al sinds 1892 en inmiddels is de derde generatie aan het roer. Het café heeft een gezellige huiskamersfeer met een openbare platenspeler. Vele antieke elementen van het interieur hebben stand gehouden en de sfeer is nog als van ouds.

162653683_183194140274614_3689818971079216628_n
05
Adres
Keizersgracht 157,
1015 CL Amsterdam

Café Brandon

Café Brandon is een café in Amsterdam gelegen aan de rand van de Jordaan. Met als openingsjaar 1626 is het een van de oudste, nog bestaande, cafés van Amsterdam.

cecc_nl
06
Adres
Spuistraat 210,
1012 VT Amsterdam

Cecconi’s

Cecconi’s zit gevestigd in het Soho House; een hotelketen en ledenclub in het Bungehuis op de Singel. Een voormalige kantine van de Universiteit van Amsterdam. De keuken van Cecconi’s is gericht op Noord Italiaanse invloeden, met specialiteiten als verse pasta en visgerechten. Denk aan Spaghetti met kreeft, Burrata en de klassieke Tiramisu.

KK_Landingspage_Header
07
Adres
Sint Nicolaasstraat 43,
1012 NJ Amsterdam

Kaagman en Kortekaas

Nadat de culinaire wegen van Giel (kaagman) en Bram (Kortekaas) zich bij Bordewijk kruisen openen ze in 2015 hun eigen restaurant. Het menu is seizoensgebonden en wisselt regelmatig. Gerechten worden opgebouwd rond wat op dat moment vers beschikbaar is. De wijn speelt een even grote rol als het eten: de wijnkaart wordt met zorg samengesteld, vaak met karaktervolle wijnen van wijnboeren die met respect voor natuur en traditie werken.

LOTTIS_HOXTON_AMS_MG_8876
08
Adres
Herengracht 255,
1016 BJ Amsterdam

Lotti’s

Restaurant Lotti’s bevindt zich in het Hoxton hotel. Het hotel is een bruisende plek waar in het weekend live Jazz wordt gespeeld tijdens de lunch. Het is een fijne ontmoetingsplek en werkplek in hartje centrum. Voor een snelle bite zijn de truffelfrietjes in trek en daarnaast is de Hox Cheeseburger een must try. Neem een kijkje en ervaar het zelf.

09
Adres
Westermarkt 11,
1016 DH Amsterdam

Wil Graanstra Friteshuis

Je fiets er misschien wel regelmatig langs, want de frietkraam van Wil Graanstra staat al sinds 1956 op het plein naast de Westerkerk. Het familiebedrijf serveert het ouderwetse frietje mayonaise, oorlog, curry saus en piccalilly. Neem wat cash mee voor deze overheerlijke frituur in puntzak.

10
Adres
Herenstraat 14,
1015 CA Amsterdam

Max restaurant

Max, geboren in Jakarta, leerde de basis van zijn moeder die kok was. Verwacht geen Indonesische nostalgie, maar een eigen, lichtvoetige interpretatie van de Indische keuken. Het interieur is huiselijk maar niet tuttig.  MAX voelt als een eerbetoon aan de familiegeschiedenis van de chef, maar ook als een restaurant dat volledig in het hier en nu staat.

11
Adres
Reestraat 8,
1016 DN Amsterdam

Restaurant Jansz

De 17e eeuwse ambachtsman Volkert Jansz: man met verfijnde smaak, goede stijl en een passie voor levendige conversaties. Hij geloofde er sterk in dat decadentie en luxe pas echt tot hun recht komen wanneer je het deelt en dat is precies hoe het ook voelt bij Jansz. Moderne-Nederlandse keuken met liefde bereid. Je kan er ook terecht voor lunch en koffie als je door de 9 straatjes aan het struinen bent.

Schermafbeelding 2022-05-18 om 17.31.24
12
Adres
Herenstraat 22,
1015 CB Amsterdam

Linguini

Essentieel in de Italiaanse keuken is simpliciteit: zolang de ingrediënten goed zijn heb je niet veel nodig. “Less is more”. Dat hebben ze bij Linguini in de Herenstraat goed begrepen. Het interieur ademt het Italiaanse dolce vita-gevoel: sfeervolle oude tegels en een mooie lange bank als eyecatcher: Linguini is een knusse en warme trattoria, met oog voor detail. De kaart is klein en bestaat voornamelijk uit pasta. Deze bestel je of in een kleine portie (voor één persoon), of op z’n Italiaans in een grote pan voor de ‘famiglia’. Pasta, pasta, pasta dus. Allemaal bereid met liefde en passie door de Italiaanse ‘pasta maestro’ genaamd Lorenzo Isidoro.

Schermafbeelding 2022-06-20 om 14.22.03
Schermafbeelding 2022-06-20 om 14.22.22
13
Adres
Dam 27,
1012 JS Amsterdam

Restaurant Bougainville

Een diner voor twee of een zakelijke bespreking? Restaurant Bougainville kan je terecht voor een onvergetelijke fine dining ervaring. Met gerechten van wereldklasse hoeft er geen einde aan deze avond te komen. Het restaurant bevindt zich namelijk in het luxueuze Hotel TwentySeven. Combineer de avond met een cocktail experience of overnachten in eigen stad. Aan mogelijkheden geen tekort.

14
Adres
Dam 27,
1012 JS Amsterdam

Bougainville (*)

Gevestigd in het exclusieve Hotel TwentySeven, is Bougainville toegankelijk voor zowel hotelgasten als externe bezoekers. Hier wordt innovatie in de keuken gecombineerd met traditie, wat resulteert in een culinaire reis die alle zintuigen prikkelt. nder leiding van Executive Chef Tim Golsteijn worden westers en oosters geïnspireerde smaken op een creatieve en verfijnde manier gecombineerd. Het menu varieert van een 5- tot 7-gangendiner tot à-la-cartegerechten, bereid met seizoensgebonden ingrediënten en een focus op smaak, textuur en presentatie.

297767912_6146458885371416_6793109712388351450_n
307169963_6271220542895249_5569543096678758645_n
15
Adres
Spuistraat 247,
1012 VP Amsterdam

Lucius Visrestaurant

Bij Lucius kan je hoge kwaliteit verwachten met een gezellige informele sfeer. De gastvrijheid staat hier voorop, en dat merk je meteen als je binnenkomt. Midden in het drukke Amsterdamse centrum, vind je deze kwalitatief hoge plek. Van dagverse vis tot plateaus fruits de mer, oesters of gebakken Noordzeetong, de visliefhebber komt hier niks te kort.

308625621_500084445461429_6138057629704289413_n
273840719_3056563714661746_2507089483278792366_n
16
Adres
Rokin 26,
1012 KS Amsterdam

Fulu Mandarijn

Bij Fulu Mandarijn vind je als een van de weinige Chinese zaken in Amsterdam een authentieke Sichuan-keuken. Het lijkt bijna onmogelijk om een keuze te maken van de uitgebreide menukaart. Daarbij hebben ze ook een breed scala aan cocktailmogelijkheden. Je kan er midden in het centrum terecht voor lunch of een diner. Als je langsgaat probeer dan de gekookte zeebaars in hete chilisaus, met enokitake champignon en tofu. Het wordt geserveerd in een hete stenen pot en staat nog sissend op tafel.

11053527_694797250630787_7848248797792553972_o
17
Adres
Rokin 17,
1012 KK Amsterdam

Van Stapele koekmakerij

Ze verkopen maar één soort koekje, maken geen reclame, en de winkel zit verstopt in de Heisteeg. Toch is deze klassieke koekmakerij niet te missen door de lange rij die er dag in dag uit staat. En het is het zeker waard om aan te sluiten in deze rij: het koekje van chocoladedeeg met de rijke cacao is knapperig van de buitenkant en heeft een zachte vulling van boterzachte gesmolten witte chocolade, wat wil je nog meer? De winkel is bijna niet te missen doordat de geur van de koekjes je tegemoetkomt als je over het drukke Spui plein loopt. Voor de chocolade liefhebber een must try!

Schermafbeelding 2022-09-26 om 18.13.07
18
Adres
Prinsengracht 114,
1015 EA Amsterdam

De Twee Zwaantjes

Café De twee Zwaantjes is een gezellige bruine kroeg gelegen in hartje Amsterdam. Elke week komt een vaste groep van zes muzikanten in wisselde samenstelling spelen, maar ook de gasten kunnen hun favoriete liedjes zingen.

DSC08095
Scherm­afbeelding 2024-01-10 om 15.28.36
19
Adres
Reestraat 28-32,
1016 DN Amsterdam

Bussia

Een modern Italiaans restaurant én ambachtelijke bakkerij in het hart van Amsterdam. De bakkerij voorziet in knapperig zuurdesembrood, verse barista koffie en de lekkerste Italiaanse patisserie. 's Avonds vormt de bakkerij de ingang van het restaurant. De keuken van Bussia heeft een verfijnde Italiaanse kookstijl, waar ambacht en moderniteit samenkomen. Alleen de allerbeste authentieke ingrediënten vormen de basis van de keuken. Het brood, de gebak en de pasta's zijn handgemaakt. Proef de authenticiteit. Precies zoals de Italiaanse keuken bedoeld is. Geen shortcuts, alleen precisie, geduld en liefde.

122150534_1672849526208532_3165418229905077788_n
20
Adres
Prinsengracht 341,
1016 DN Amsterdam

Koffiehuis de Hoek

Op het hoekje van de Runstraat en de Prinsengracht vind je dit klassieke Amsterdamse koffiehuis. Sinds 1954 weten veel verschillende mensen deze bijzondere plek te vinden. Op het zonnige terras kan je genieten van de drukte op de Amsterdamse grachten en binnen kan je genieten van het mooie interieur. Goede huisgemaakte taarten, pannenkoeken, omeletten en andere lekkere broodjes en uiteraard: koffie.

Interieur
Patrik_met_zijn_snor
21
Adres
Leliegracht 22-H,
1015 DG Amsterdam

Architectura & Natura

Al meer dan 75 jaar zit Architectura & Natura gehuisvest in een historisch gebouw aan de Leliegracht. Deze winkel behoort inmiddels tot de meest bekende boekenwinkels van Amsterdam, met leesvoer over architectuur, stedenbouw, tuinarchitectuur en natuurhistorie. De boeken komen van over de hele wereld en zijn in het Engels verkrijgbaar.

Kunst & cultuur
21-of-the-most-beautiful-drawings-schoonhoven-peeters-install-kaldenbach-9
22
Adres
Herengracht 254A,
1016 BV Amsterdam

The Merchant House

The Merchant House werd opgericht door Marsha Plotnitsky en is gevestigd in een zeventiende-eeuws grachtenpand. Het is een kunstruimte en galerie die hedendaagse kunst presenteert om te ontdekken, te verkennen en te verzamelen. De galerie belichaamt een eigentijdse benadering van de tradities die de stad en de kunst met elkaar verbinden. Sinds de lancering van het programma in 2013 heeft Plotnitsky meer dan dertig thematische projecten samengesteld, waarbij ze samenwerkt met kunstenaars om plaatsgebonden installaties, opdrachtwerk en nieuw werk te creëren dat aansluit bij het karakteristieke grachtenpand en andere ruimtes.

charles-avery-the-taile-of-the-one-armed-snake-2020_installation-view-7
claudia-martinez-garay-i-will-outlive-you-install-2018
23
Adres
Keizersgracht 241,
1016 EA Amsterdam

GRIMM

GRIMM werd in 2005 in Amsterdam opgericht. Sinds de oprichting heeft de galerie voor hedendaagse kunst zich toegelegd op het promoten en ondersteunen van opkomende en mid-career kunstenaars die werken in een divers scala aan media. Ze vertegenwoordigen meer dan dertig internationale kunstenaars en hebben naast hun galerie in Amsterdam ook een galerie in New York.

Stephen Wilks_10
24
Adres
Leliegracht 47,
1016 GT Amsterdam

Andriesse Eyck Galerie

De eigenaren, Zsa-Zsa Eyck en Paul Andriesse, van de Andriesse Eyck Galerie hebben ruim 30 jaar ervaring op het gebied van internationale, hedendaagse kunst. De galerie vertegenwoordigt opkomende en mid-career kunstenaars. Het is de ultieme ruimte voor verzamelaars, academici en kunstprofessionals om in een intieme setting van kunst te kunnen genieten en ook (nieuwe) kunst te kunnen ontdekken.

Boodschappen
25
Adres
Nieuwendijk 183,
1012 MG Amsterdam

Banketbakkerij van der Linde

Er staat altijd een enorme rij bij Banketbakkerij van der Linde, maar laat dit je niet afschrikken! De rij loopt enorm vlot door, en het wachten wordt ontzettend beloond. Ze verkopen hier één soort ijsje met hun gouden recept, een zacht roomijsje die overheerlijk proeft. Geserveerd in een oublie-hoorn of een grotere variant daarvan is dit waar deze banketbakkerij sinds 1937 bekend om is. Naast overheerlijk slagroomijs verkopen ze er ook andere heerlijkheden, zoals chocolade truffels, taarten en nog veel meer.

Samengesteld; een collectie woningen met luxe badkamers

Samengesteld; een collectie woningen met luxe badkamers

Vondel View

Vondel View

Een houten rijksmonument uit 1880

Een houten rijksmonument uit 1880

Onlangs bekeken
Bekijk het overzicht

Deze site maakt gebruik van cookies.

Voor welke cookies geef je akkoord?