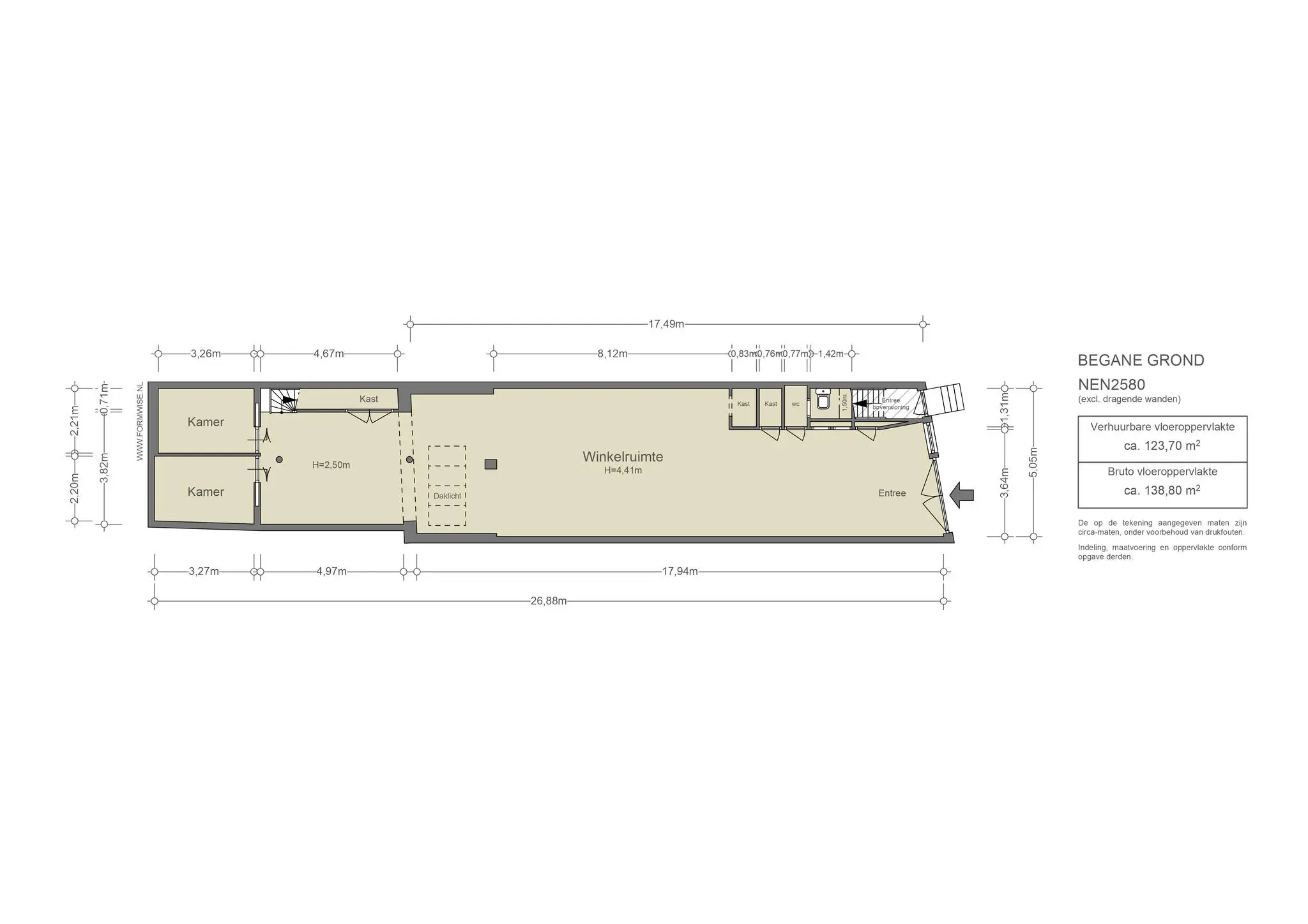
DE ROO OLY MOLEN | De ruimte is gelegen in het centrum van Amsterdam aan het Singel 188H met uitzicht over de Torensluis. Het monumentale pand ‘De Roo Oly Molen’ kenmerkt zich door een karakteristieke voorgevel met authentieke details en historische gevelsteen. De winkel-/kantoorruimte is gelegen op de begane grond en de eerste verdieping van het achterhuis. De goede plafondhoogte en fraaie pui geven het geheel een industrieel karakter en eigentijdse sfeer. De royale plafondhoogte bied tevens een mogelijkheid om een tussenverdieping aan te leggen. Het woonoppervlak kan vergroot worden naar 188 m².
Het betreft een appartementsrecht onderdeel uitmakende van een VVE bestaande uit in totaal 4 appartementsrechten gelegen op eigen grond. Naast gebruik als woning is de bestemming winkel-/kantoorruimte, tevens toegestaan.
De gevelsteen "De Roo Oly Molen" verwijst naar een historische oliemolen die vermoedelijk in 1737 werd gebouwd en in 1874 werd afgebroken. Op de locatie van de voormalige molen bevindt zich nu de Museumbrug. De gevelsteen is zorgvuldig bewaard gebleven en is vandaag de dag ingemetseld in de gevel van Singel 188, als een blijvende herinnering aan het industriële verleden van de stad.

Rondleiding
Er is een ruimte entree met originele (industriële) deuren en een voorportaal. De open ruimte biedt de gelegenheid aan de voorzijde een grote keuken te plaatsen met een mooie "brick-wall" en een zitgedeelte met openslaande deuren naar de patio. Aan de achterzijde van de ruimte is een mogelijkheid om een ruime slaapkamer te maken met deuren naar de patio, eigen master suite met kleedruimte en eigen badkamer.
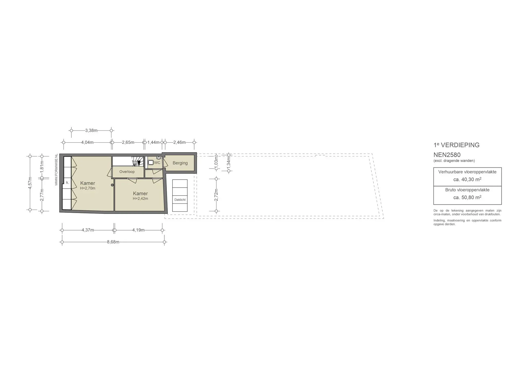
De originele monumentale balken biedt de nieuwe eigenaar de gelegenheid extra oppervlakte toe te voegen aan de woonruimte en deze ruime vrij in te delen als slaapvertrek, study, lounge of bibliotheek.
Op deze verdieping van 72 m² is de ruimte vrij in te delen. In het ontwerp zijn momenteel twee slaapvertrekken te creëren en ruimte badkamer.

Buurtgids
Het Singel 188 H is gelegen in het centrum van Amsterdam, aan de Grachtengordel, tegenover de Torensluis. De buurt is dynamisch en rijk aan historie, met een grote diversiteit aan winkels, restaurants en culturele voorzieningen. Op korte loopafstand bevinden zich de Dam, Westerkerk, de 9 Straatjes en de Kalverstraat, één van de bekendste winkelstraten van de stad. Tevens zijn er enkele gerenommeerde musea op loopafstand te bereiken, zoals het Anne Frank Huis.

Bereikbaarheid
De winkelruimte is uitstekend bereikbaar met openbaar vervoer. De tramlijnen 13 en 17 met een halte op de Rozengracht en de metrolijn M52 bij Rokin is op loopafstand, evenals het Centraal Station van Amsterdam. Voor de automobilisten zijn er verschillende parkeermogelijkheden; zowel op straat als in parkeergarages zoals Parkeergarage Rokin.

Parkeergelegenheid
Parkeren is mogelijk op de openbare weg middels betaling of een vergunningensysteem. Informatie over voorwaarden en mogelijkheden voor verkrijging van een (bedrijfs-) vergunning en eventuele wachttijd is op te vragen via de gemeente Amsterdam.
Tevens is betaald parkeren mogelijk bij bijvoorbeeld parkeergarage Rokin en de Q-park de Bijenkorf.

Bijzonderheden
• Fraaie voorgevel
• Royale plafondhoogte
• Plaatsen van tussenverdieping mogelijk
• Eigen grond
• Woon- & werkbestemming

AM105728-1930249-Singel-188H,-Amsterdam-197726377

De Roo Oly Molen
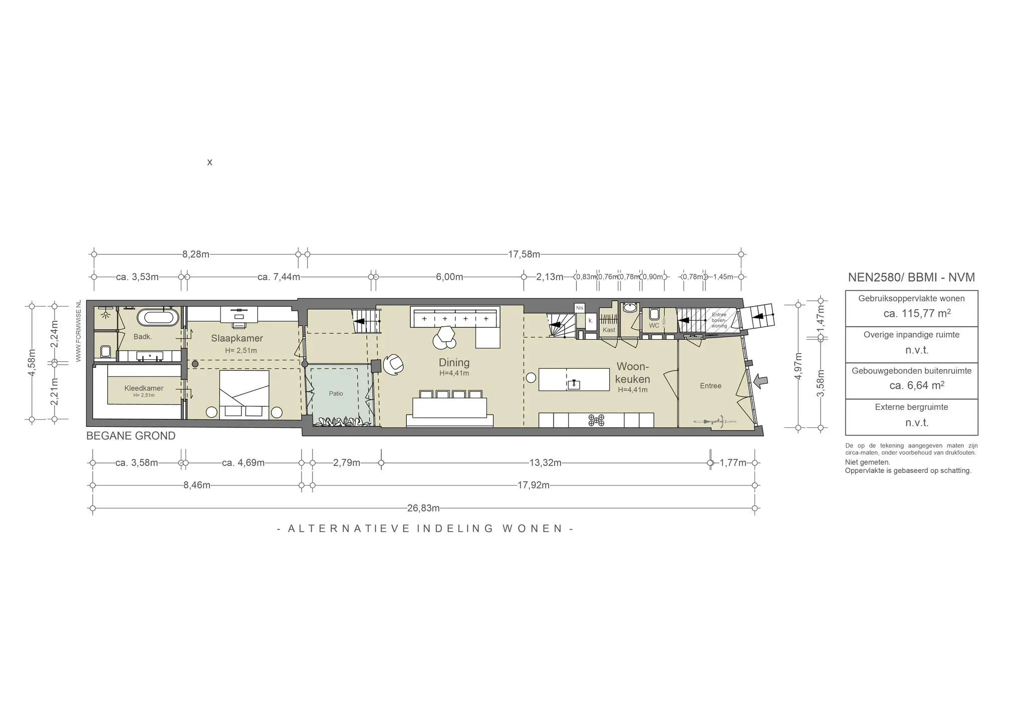
De ruimte aan het Singel is prachtig gelegen aan de historische grachtengordel, dicht bij het gezellige Multatuliplein. Onlangs maakten we kennis met de ruimte, die momenteel als winkel/kantoorruimte in gebruik is, maar zich ook perfect leent als woonruimte. De hoogte van de plafonds en de karakteristieke balken bieden volop mogelijkheden om de ruimte optimaal in te delen. We hebben een alternatieve plattegrond laten maken met onder andere een lichte patio, een extra verdiepingsvloer en drie ruime slaapkamers. Om een goede inschatting te geven van de mogelijkheden zijn er realistische artist impressions gemaakt die vrijwel overeenkomen met een toekomstige feitelijke situatie. Uiteraard staat het een nieuwe eigenaar geheel vrij om hier een eigen ontwerp en design toe te passen.


Jelle Mundt | Makelaar Broersma Wonen
Tom Huber | Makelaar Broersma Wonen
Singel 188 (109) kopie
Designvisie

Designvisie
De ruimte is gelegen in het centrum van Amsterdam aan het Singel 188H, met uitzicht over de Torensluis. Het monumentale pand ‘De Roo Oly Molen’ kenmerkt zich door een karakteristieke voorgevel met authentieke details en een historische gevelsteen. De winkel-/kantoorruimte bevindt zich op de begane grond en de eerste verdieping van het achterhuis. De goede plafondhoogte en fraaie pui geven het geheel een industrieel karakter en eigentijdse sfeer. De royale plafondhoogte biedt tevens de mogelijkheid om een tussenverdieping aan te leggen, waardoor het woonoppervlak kan worden vergroot tot 188 m².
Het betreft een appartementsrecht, onderdeel van een VvE bestaande uit in totaal vier appartementsrechten, gelegen op eigen grond. Naast gebruik als woning is de bestemming als winkel-/kantoorruimte eveneens toegestaan.

Gebouw
Het grachtenpand is gebouwd in 1737 in de bouwstijl Lodewijk XIV. In de 18e eeuw werd Amsterdam gedomineerd door de Franse architectuur, met name de Lodewijkstijlen die zijn vernoemd naar de Franse koningen. De Lodewijk XIV-stijl, die in Amsterdam tussen 1700 en 1740 werd toegepast, kenmerkt zich door een zware en classicistische uitstraling. Anders dan in Frankrijk, waar de Lodewijkstijlen voornamelijk in het interieur werden gebruikt en de gevels classicistisch bleven, werd in Amsterdam het kenmerkende ornamentwerk ook aan de gevels zichtbaar. Deze stijl is herkenbaar aan de barokke vormentaal, met weelderige en zware symmetrische krullen, waarin vaak acanthusbladeren zijn verwerkt.

Singel 188 (100)
Singel 188 (28)
AM105728-1930249-Singel-188H,-Amsterdam-197726255
AM105728-1930249-Singel-188H,-Amsterdam-197726279

Wonen en koken
Er is een ruime entree met originele (industriële) deuren en een voorportaal. De open ruimte biedt de mogelijkheid om aan de voorzijde een grote keuken te plaatsen, met een mooie “brick wall” en een zitgedeelte met openslaande deuren naar de patio.
Aan de achterzijde van de ruimte is er de mogelijkheid om een ruime slaapkamer te creëren met deuren naar de patio, een eigen master suite met kleedruimte en een eigen badkamer.

singel188_Wonen naar buiten2
singel188_naar binnen 2
Slapen en baden

Slapen en baden
De originele monumentale balken bieden de nieuwe eigenaar de mogelijkheid om extra oppervlakte toe te voegen aan de woonruimte en deze vrij in te delen als slaapvertrek, study, lounge of bibliotheek.

Eerste etage
Deze verdieping van 72 m² is vrij in te delen. In het huidige ontwerp kunnen twee slaapvertrekken en een ruime badkamer worden gerealiseerd.

singel188_Slaapkamer2
1016 EA keizersgracht 237 B – 3
1016 EX Keizersgracht 306 (4)
1016 AW Herengracht 323A-4
Bereikbaarheid

Buurtgids
Het Singel 188 H is gelegen in het centrum van Amsterdam, aan de Grachtengordel, tegenover de Torensluis. De buurt is dynamisch en rijk aan historie, met een grote diversiteit aan winkels, restaurants en culturele voorzieningen. Op korte loopafstand bevinden zich de Dam, Westerkerk, de 9 Straatjes en de Kalverstraat, één van de bekendste winkelstraten van de stad. Tevens zijn er enkele gerenommeerde musea op loopafstand te bereiken, zoals het Anne Frank Huis.

Bereikbaarheid
De winkelruimte is uitstekend bereikbaar met openbaar vervoer. De tramlijnen 13 en 17 met een halte op de Rozengracht en de metrolijn M52 bij Rokin is op loopafstand, evenals het Centraal Station van Amsterdam. Voor de automobilisten zijn er verschillende parkeermogelijkheden; zowel op straat als in parkeergarages zoals Parkeergarage Rokin.

Parkeergelegenheid
Parkeren is mogelijk op de openbare weg middels betaling of een vergunningensysteem. Informatie over voorwaarden en mogelijkheden voor verkrijging van een (bedrijfs-) vergunning en eventuele wachttijd is op te vragen via de gemeente Amsterdam. Tevens is betaald parkeren mogelijk bij bijvoorbeeld parkeergarage Rokin en de Q-park de Bijenkorf.

1016 KG Bloemgracht 71F-91
Kenmerken
Singel 188H, Amsterdam
Vraagprijs
  • € 1.180.000 k.k.
Beschikbaarheid
  • In overleg
Vertrekken
  • 5 kamers
  • 3 slaapkamers
Onderhoud
  • Intern: Goed
  • Extern: Goed
Oppervlakten & Inhoud
  • Woonoppervlakte: 188 m²
  • Gebouwgebonden buitenruimte: 7 m²
Bouwjaar
  • 1737
Ligging
  • In centrum
Parkeren
  • Betaald parkeren
  • Parkeervergunningen
Type verwarming
  • CV Ketel
Type warmwater
  • CV Ketel
Bestemming
  • Woonruimte
Eigendomssoort
  • Volle eigendom
Buitenruimte
  • Patio atrium
Kadastraal
  • Gemeente: Amsterdam
  • Sectie: E
  • Nummer: 9624
Soort
  • Appartement
  • Benedenwoning
Bijzonderheden
  • Beschermd stads of dorpsgezicht
  • Erfgoed
  • Monument
  • Monumentaal pand
Plattegrond
Singel 188H, Amsterdam
AM105728-1930249-Singel-188H,-Amsterdam-200058783
AM105728-1930249-Singel-188H,-Amsterdam-200058787
AM105728-1930249-Singel-188H,-Amsterdam-197729919
AM105728-1930249-Singel-188H,-Amsterdam-197729927
Documenten
Singel 188H, Amsterdam
Locatie
Singel 188H, Amsterdam
Eten & drinken
1
4
01
Adres
Herengracht 169,
1015 BJ Amsterdam

Heertje Friet

In een authentiek Amsterdams pand, in het oude centrum van Amsterdam, vind je: Heertje Friet. De frieten bij Heertje Friet worden elke dag vers gesneden.  Daarbij hebben ze een groot aanbod aan verschillende soorten sauzen met onder andere vegan opties. Naast de overheerlijke friet hebben ze ook kroketten met garnaal, kip of kaas.

02
Adres
Spuistraat 102,
1012 VA Amsterdam

Caldi E Freddi

Amsterdam maakte kennis met de kern van de Italiaanse keuken. Volgens eigenaar Mazziotta draait het om de schoonheid van eenvoud: weinig ingrediënten, maar van hoge kwaliteit. Bij Caldi e Freddi is de essentie hetzelfde: eenvoudig en betaalbaar. Geen ingewikkelde gerechten, maar toegankelijkheid en lage prijzen. Ze halen uit de Italiaanse keuken wat makkelijk en betaalbaar is, zoals kip inplaats van lamsvlees. Geniet van heerlijke broodjes (ook vegetarische opties) en andere authentieke Italiaanse gerechten en desserts, allemaal om mee te nemen.

162653683_183194140274614_3689818971079216628_n
03
Adres
Keizersgracht 157,
1015 CL Amsterdam

Café Brandon

Café Brandon is een café in Amsterdam gelegen aan de rand van de Jordaan. Met als openingsjaar 1626 is het een van de oudste, nog bestaande, cafés van Amsterdam.

THE-DUCHESS-Amsterdam
04
Adres
Spuistraat 172,
1012 VT Amsterdam

The Duchess

Een echte high-tea room. Ze bieden hier een enorm scala aan bijzondere theesoorten, vers gebakken cakes en nog veel meer aan. Huisgemaakte macarons, warme scones maar ook een geweldig assortiment aan champagne is hier te vinden. De echte aristocraat komt hier niks te kort.

298405398_567499908402653_184766060029558006_n
05
Adres
Singel 278,
1016 AC Amsterdam

Café ‘t Molentje

Café ‘t Molentje bevindt zich middenin hartje Amsterdam. Het café bestaat al sinds 1892 en inmiddels is de derde generatie aan het roer. Het café heeft een gezellige huiskamersfeer met een openbare platenspeler. Vele antieke elementen van het interieur hebben stand gehouden en de sfeer is nog als van ouds.

KK_Landingspage_Header
06
Adres
Sint Nicolaasstraat 43,
1012 NJ Amsterdam

Kaagman en Kortekaas

Nadat de culinaire wegen van Giel (kaagman) en Bram (Kortekaas) zich bij Bordewijk kruisen openen ze in 2015 hun eigen restaurant. Het menu is seizoensgebonden en wisselt regelmatig. Gerechten worden opgebouwd rond wat op dat moment vers beschikbaar is. De wijn speelt een even grote rol als het eten: de wijnkaart wordt met zorg samengesteld, vaak met karaktervolle wijnen van wijnboeren die met respect voor natuur en traditie werken.

cecc_nl
07
Adres
Spuistraat 210,
1012 VT Amsterdam

Cecconi’s

Cecconi’s zit gevestigd in het Soho House; een hotelketen en ledenclub in het Bungehuis op de Singel. Een voormalige kantine van de Universiteit van Amsterdam. De keuken van Cecconi’s is gericht op Noord Italiaanse invloeden, met specialiteiten als verse pasta en visgerechten. Denk aan Spaghetti met kreeft, Burrata en de klassieke Tiramisu.

08
Adres
Herenstraat 14,
1015 CA Amsterdam

Max restaurant

Max, geboren in Jakarta, leerde de basis van zijn moeder die kok was. Verwacht geen Indonesische nostalgie, maar een eigen, lichtvoetige interpretatie van de Indische keuken. Het interieur is huiselijk maar niet tuttig.  MAX voelt als een eerbetoon aan de familiegeschiedenis van de chef, maar ook als een restaurant dat volledig in het hier en nu staat.

09
Adres
Westermarkt 11,
1016 DH Amsterdam

Wil Graanstra Friteshuis

Je fiets er misschien wel regelmatig langs, want de frietkraam van Wil Graanstra staat al sinds 1956 op het plein naast de Westerkerk. Het familiebedrijf serveert het ouderwetse frietje mayonaise, oorlog, curry saus en piccalilly. Neem wat cash mee voor deze overheerlijke frituur in puntzak.

LOTTIS_HOXTON_AMS_MG_8876
10
Adres
Herengracht 255,
1016 BJ Amsterdam

Lotti’s

Restaurant Lotti’s bevindt zich in het Hoxton hotel. Het hotel is een bruisende plek waar in het weekend live Jazz wordt gespeeld tijdens de lunch. Het is een fijne ontmoetingsplek en werkplek in hartje centrum. Voor een snelle bite zijn de truffelfrietjes in trek en daarnaast is de Hox Cheeseburger een must try. Neem een kijkje en ervaar het zelf.

Schermafbeelding 2022-05-18 om 17.31.24
11
Adres
Herenstraat 22,
1015 CB Amsterdam

Linguini

Essentieel in de Italiaanse keuken is simpliciteit: zolang de ingrediënten goed zijn heb je niet veel nodig. “Less is more”. Dat hebben ze bij Linguini in de Herenstraat goed begrepen. Het interieur ademt het Italiaanse dolce vita-gevoel: sfeervolle oude tegels en een mooie lange bank als eyecatcher: Linguini is een knusse en warme trattoria, met oog voor detail. De kaart is klein en bestaat voornamelijk uit pasta. Deze bestel je of in een kleine portie (voor één persoon), of op z’n Italiaans in een grote pan voor de ‘famiglia’. Pasta, pasta, pasta dus. Allemaal bereid met liefde en passie door de Italiaanse ‘pasta maestro’ genaamd Lorenzo Isidoro.

Schermafbeelding 2022-09-26 om 18.13.07
12
Adres
Prinsengracht 114,
1015 EA Amsterdam

De Twee Zwaantjes

Café De twee Zwaantjes is een gezellige bruine kroeg gelegen in hartje Amsterdam. Elke week komt een vaste groep van zes muzikanten in wisselde samenstelling spelen, maar ook de gasten kunnen hun favoriete liedjes zingen.

13
Adres
Reestraat 8,
1016 DN Amsterdam

Restaurant Jansz

De 17e eeuwse ambachtsman Volkert Jansz: man met verfijnde smaak, goede stijl en een passie voor levendige conversaties. Hij geloofde er sterk in dat decadentie en luxe pas echt tot hun recht komen wanneer je het deelt en dat is precies hoe het ook voelt bij Jansz. Moderne-Nederlandse keuken met liefde bereid. Je kan er ook terecht voor lunch en koffie als je door de 9 straatjes aan het struinen bent.

398866851_2084725278550009_2045391366418278164_n
416522940_603820108545118_3960406295925336014_n
14
Adres
Prinsenstraat 16h,
1015 DC Amsterdam

OSLO

Bij OSLO Amsterdam omarmen ze met toewijding de Scandinavische filosofie. Het gebak wordt met zorg vervaardigd, strevend naar het perfecte balans tussen zoet en verfijning, bevredigend zonder enige overdaad. Het resultaat is een  combinatie van complexiteit, maar toch toegankelijk voor iedereen. Bij OSLO maken ze gebruik van uitsluitend organische en biodynamische ingrediënten in hun bakproces, waarmee ze niet alleen heerlijke gebakjes creëren, maar ook de aarde een beetje beter achterlaten.

Schermafbeelding 2022-06-20 om 14.22.03
Schermafbeelding 2022-06-20 om 14.22.22
15
Adres
Dam 27,
1012 JS Amsterdam

Restaurant Bougainville

Een diner voor twee of een zakelijke bespreking? Restaurant Bougainville kan je terecht voor een onvergetelijke fine dining ervaring. Met gerechten van wereldklasse hoeft er geen einde aan deze avond te komen. Het restaurant bevindt zich namelijk in het luxueuze Hotel TwentySeven. Combineer de avond met een cocktail experience of overnachten in eigen stad. Aan mogelijkheden geen tekort.

16
Adres
Dam 27,
1012 JS Amsterdam

Bougainville (*)

Gevestigd in het exclusieve Hotel TwentySeven, is Bougainville toegankelijk voor zowel hotelgasten als externe bezoekers. Hier wordt innovatie in de keuken gecombineerd met traditie, wat resulteert in een culinaire reis die alle zintuigen prikkelt. nder leiding van Executive Chef Tim Golsteijn worden westers en oosters geïnspireerde smaken op een creatieve en verfijnde manier gecombineerd. Het menu varieert van een 5- tot 7-gangendiner tot à-la-cartegerechten, bereid met seizoensgebonden ingrediënten en een focus op smaak, textuur en presentatie.

17
Adres
Prinsenstraat 20,
1015 DD Amsterdam

Christiaan Smit

Christiaan Smit is een intiem restaurant in de Jordaan, gevestigd aan de Prinsenstraat 20 in Amsterdam. Het biedt een 4- of 5-gangendiner, met de mogelijkheid om à la carte te bestellen. Onder leiding van chef-kok Simon van Lith ligt de focus op seizoensgebonden gerechten met vlees, vis en lokale producten, zoals langoustines en dry-aged vis. Sommelier Abel van Schoonhoven verzorgt bijpassende wijnen. Het interieur, geïnspireerd op Engelse pubs, straalt comfort en gezelligheid uit. Met ruimte voor 30 gasten en een binnentuin biedt het restaurant een warme sfeer. De naam is een eerbetoon aan Christiaan Smit, een historische kargadoor uit Amsterdam, bekend als "Kikkie van de Prinsensluis". Het restaurant combineert hoogwaardige gerechten met een vleugje Amsterdamse geschiedenis, ideaal voor een culinaire avond in een bijzondere setting.

Schermafbeelding 2022-05-18 om 17.11.04
18
Adres
Prinsenstraat 22,
1015 DD Amsterdam

Café De Klepel

In 2013 veranderde eigenaar Maureen Café de Klepel van een klassieke bruine kroeg in een wijncafé waar Franse wijn centraal staat. Chefs Ewout Lindenhovius en Rudolf Brand serveren dagelijks een wisselend menu van 3 of 4 gangen. De wijnkaart is volledig Frans en wordt begeleid door een sterk team van sommeliers dat de kaart tot in detail kent. Er staan meer dan 300 verschillende flessen op de kaart en elke avond schenken ze zo’n 25, steeds wisselende, wijnen per glas.

19
Adres
Prinsenstraat 27,
1015 DB Amsterdam

Café de Twee Prinsen

Café de Twee Prinsen is de derde zaak van de mannen achter Binnenvisser en de Corner Store. Hier kan je 's ochtends al voor de koffie binnenploffen, lunchen met een baguette of aan de bar hangen voor wat bites en de uitgebreide selectie natuurwijnen. Oftewel  het café voor ontbijt tot late borrel.

308625621_500084445461429_6138057629704289413_n
273840719_3056563714661746_2507089483278792366_n
20
Adres
Rokin 26,
1012 KS Amsterdam

Fulu Mandarijn

Bij Fulu Mandarijn vind je als een van de weinige Chinese zaken in Amsterdam een authentieke Sichuan-keuken. Het lijkt bijna onmogelijk om een keuze te maken van de uitgebreide menukaart. Daarbij hebben ze ook een breed scala aan cocktailmogelijkheden. Je kan er midden in het centrum terecht voor lunch of een diner. Als je langsgaat probeer dan de gekookte zeebaars in hete chilisaus, met enokitake champignon en tofu. Het wordt geserveerd in een hete stenen pot en staat nog sissend op tafel.

Interieur
Patrik_met_zijn_snor
21
Adres
Leliegracht 22-H,
1015 DG Amsterdam

Architectura & Natura

Al meer dan 75 jaar zit Architectura & Natura gehuisvest in een historisch gebouw aan de Leliegracht. Deze winkel behoort inmiddels tot de meest bekende boekenwinkels van Amsterdam, met leesvoer over architectuur, stedenbouw, tuinarchitectuur en natuurhistorie. De boeken komen van over de hele wereld en zijn in het Engels verkrijgbaar.

Kunst & cultuur
Stephen Wilks_10
22
Adres
Leliegracht 47,
1016 GT Amsterdam

Andriesse Eyck Galerie

De eigenaren, Zsa-Zsa Eyck en Paul Andriesse, van de Andriesse Eyck Galerie hebben ruim 30 jaar ervaring op het gebied van internationale, hedendaagse kunst. De galerie vertegenwoordigt opkomende en mid-career kunstenaars. Het is de ultieme ruimte voor verzamelaars, academici en kunstprofessionals om in een intieme setting van kunst te kunnen genieten en ook (nieuwe) kunst te kunnen ontdekken.

21-of-the-most-beautiful-drawings-schoonhoven-peeters-install-kaldenbach-9
23
Adres
Herengracht 254A,
1016 BV Amsterdam

The Merchant House

The Merchant House werd opgericht door Marsha Plotnitsky en is gevestigd in een zeventiende-eeuws grachtenpand. Het is een kunstruimte en galerie die hedendaagse kunst presenteert om te ontdekken, te verkennen en te verzamelen. De galerie belichaamt een eigentijdse benadering van de tradities die de stad en de kunst met elkaar verbinden. Sinds de lancering van het programma in 2013 heeft Plotnitsky meer dan dertig thematische projecten samengesteld, waarbij ze samenwerkt met kunstenaars om plaatsgebonden installaties, opdrachtwerk en nieuw werk te creëren dat aansluit bij het karakteristieke grachtenpand en andere ruimtes.

charles-avery-the-taile-of-the-one-armed-snake-2020_installation-view-7
claudia-martinez-garay-i-will-outlive-you-install-2018
24
Adres
Keizersgracht 241,
1016 EA Amsterdam

GRIMM

GRIMM werd in 2005 in Amsterdam opgericht. Sinds de oprichting heeft de galerie voor hedendaagse kunst zich toegelegd op het promoten en ondersteunen van opkomende en mid-career kunstenaars die werken in een divers scala aan media. Ze vertegenwoordigen meer dan dertig internationale kunstenaars en hebben naast hun galerie in Amsterdam ook een galerie in New York.

Boodschappen
25
Adres
Nieuwendijk 183,
1012 MG Amsterdam

Banketbakkerij van der Linde

Er staat altijd een enorme rij bij Banketbakkerij van der Linde, maar laat dit je niet afschrikken! De rij loopt enorm vlot door, en het wachten wordt ontzettend beloond. Ze verkopen hier één soort ijsje met hun gouden recept, een zacht roomijsje die overheerlijk proeft. Geserveerd in een oublie-hoorn of een grotere variant daarvan is dit waar deze banketbakkerij sinds 1937 bekend om is. Naast overheerlijk slagroomijs verkopen ze er ook andere heerlijkheden, zoals chocolade truffels, taarten en nog veel meer.

Anja Henneman, voormalig topmodel, ontwierp dit interieur op de 19e verdieping van het Pontsteiger gebouw

Anja Henneman, voormalig topmodel, ontwierp dit interieur op de 19e verdieping van het Pontsteiger gebouw

Uitgelicht; Een voormalige drukkerij in de Pijp

Uitgelicht; Een voormalige drukkerij in de Pijp

Uitgelicht Keizers Continental

Uitgelicht Keizers Continental

Onlangs bekeken
Bekijk het overzicht

Deze site maakt gebruik van cookies.

Voor welke cookies geef je akkoord?