Deze vrijstaande woning van 96 m² ligt op Sporenburg en beschikt over twee volwaardige buitenruimtes: een patio van 32 m² en een dakterras van 33 m². De erfpacht is eeuwigdurend afgekocht, de woning heeft een woon-werkbestemming en is verdeeld over drie verdiepingen. 

Rondleiding
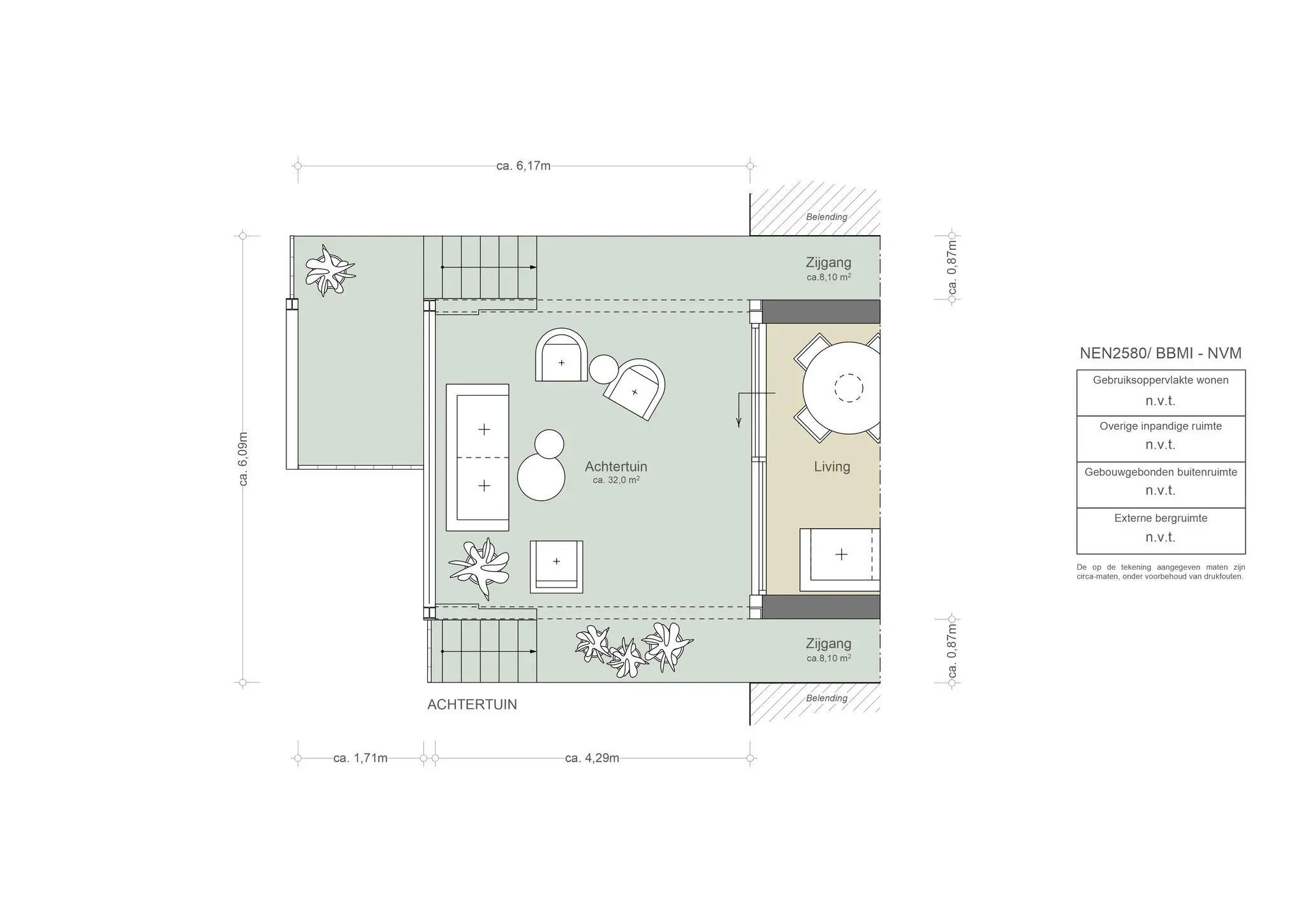
Bij binnenkomst valt de zichtlijn richting de omsloten patio direct op. Deze buitenruimte grenst aan de woonkamer en functioneert als verlengde van het interieur. De begane grond is praktisch ingedeeld met een zitgedeelte aan de tuinzijde, een centrale eethoek en een keuken aan de straatzijde. Op de eerste verdieping ligt de hoofdslaapkamer met zicht op de patio. De aangrenzende badkamer is neutraal afgewerkt en voorzien van een inloopdouche, toilet en wasmachineaansluiting. De tweede verdieping biedt twee aanvullende kamers, geschikt als slaap- of werkruimte. Een vaste trap geeft toegang tot het dakterras met vrij uitzicht over de wijk.

Buurtgids
De woning ligt aan de Seinwachterstraat in Sporenburg, een kindvriendelijke buurt met veel speelplekken, pleinen, zwemsteigers en mogelijkheden voor watersport. Winkelcentrum Brazilië biedt een uitgebreid aanbod aan winkels en voorzieningen. Ook is er een levendige markt op het nabijgelegen Javaplein, waar je verse producten en lekkernijen kunt vinden. Op loopafstand liggen de hippe Czaar Peterstraat en de Veemkade. Nieuw Noord – met onder andere restaurant Hangar, Hotel de Goudfazant en filmhuis FC Hyena – is gemakkelijk bereikbaar met de pont.

Bijzonderheden
•    Vrijstaande woning
•    Gebruiksoppervlakte wonen circa 96 m²
•    Patio gelegen op het zuidwesten van circa 32 m²
•    Dakterras van circa 33 m²
•    Erfpacht is eeuwigdurend afgekocht
•    Energielabel A

AM105940-2018382-Seinwachterstraat-27,-Amsterdam-232564370

Huys Sporenburg
Sporenburg is een buurt van contrasten: open water en compacte bouwblokken, verstilling en stedelijke dynamiek. In deze context valt Seinwachterstraat 27 op door zijn positie én zijn ontwerp. Deze woning is het resultaat van een ambitieus plan en zorgvuldig eigenaarschap. Vrijstaand, helder van structuur en met een zeldzame combinatie van buitenruimtes. Een woning die zich leent voor wonen, werken of een combinatie daarvan.


Glenn van der Zanden | Makelaar Broersma Wonen
AM105940-2018382-Seinwachterstraat-27,-Amsterdam-232564140
Architectuur

Seinwachterstraat 27 vormt een autonome verschijning binnen het straatbeeld. De woning maakt deel uit van een ensemble van vier vrijstaande huizen, ontworpen in 1994 door de huidige eigenaren, beiden architect. Het ontwerp is ontwikkeld binnen een stedenbouwkundig plan van Adriaan Geuze (West 8) voor Borneo en Sporenburg. Hoewel het plan oorspronkelijk voorzag in tachtig woningen, zijn slechts vier woningen gerealiseerd. Deze woning vormt de meest directe vertaling van het concept: een gesloten noordgevel en een volledig open zuidgevel gericht op licht, lucht en privacy. De architectuur is ingetogen en rationeel. Het huis manifesteert zich aan de straatzijde als compact gesloten volume, opgebouwd uit karakteristiek genuanceerd metselwerk. De zuidzijde opent zich naar een private buitenruimte, terwijl de noordzijde volledig gesloten blijft. De ligging aan een besloten steeg versterkt het vrijstaande karakter en vergroot de ruimtelijke ervaring. Binnen is sprake van een verticale schakeling van functies. Het interieur is strak en terughoudend, afgestemd op het daglicht dat via verschillende richtingen binnenvalt. De woning is ontworpen voor gecombineerd wonen en werken en heeft deze functie flexibel ingevuld. De ruimtelijke opzet is consistent en doordacht. De architectuur volgt geen stijl, maar een uitgangspunt: helderheid, rust en kwaliteit in elke lijn en verhouding.

AM105940-2018382-Seinwachterstraat-27,-Amsterdam-232564134
AM105940-2018382-Seinwachterstraat-27,-Amsterdam-232564390
AM105940-2018382-Seinwachterstraat-27,-Amsterdam-232564334
AM105940-2018382-Seinwachterstraat-27,-Amsterdam-232564370
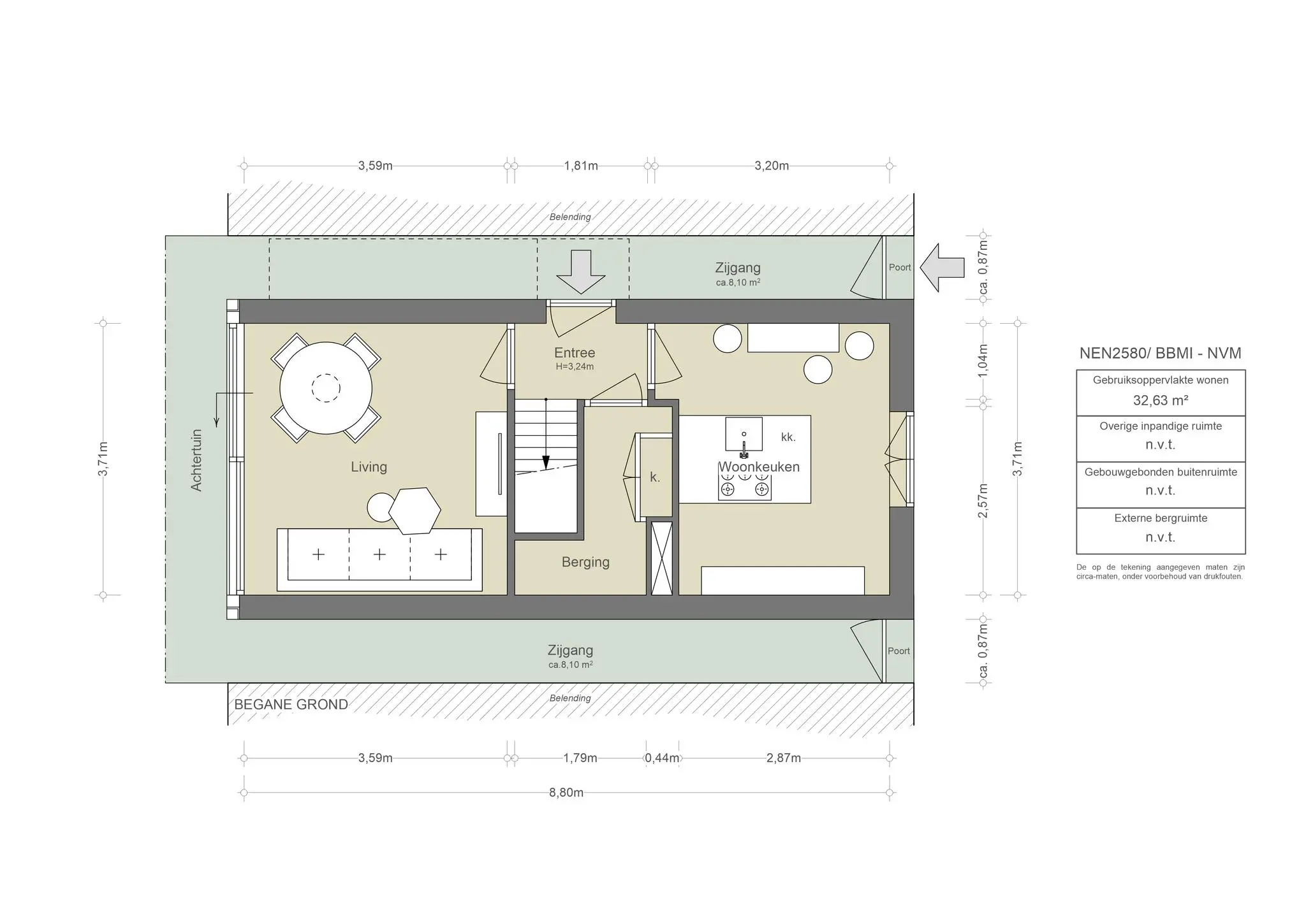
Wonen en koken

De woonverdieping is functioneel en helder georganiseerd. Aan de achterzijde ligt het woonvertrek, volledig gericht op de patio. Een glazen pui over de volle hoogte brengt licht tot diep in de ruimte en zorgt voor direct contact met buiten. De indeling is compact en efficiënt: een zitgedeelte aan de patiozijde, een eetplek centraal in de ruimte. De materialisering is ingetogen met houten vloeren, wit gestucte wanden en ranke houten kozijnen. Aan de straatzijde ligt de keuken, gescheiden van het woondeel maar wel direct verbonden via de centrale gang. De keuken is uitgevoerd met een robuust kookeiland in donker natuursteen, voorzien van rvs-fronten en professionele kraan. De dubbele deuren naar buiten zorgen voor daglicht en ventilatie, en maken van deze plek een praktische ruimte voor dagelijks gebruik. Vanuit de entree is er zicht tot aan de achtergevel, waardoor de diepte van de woning direct voelbaar is.

AM105940-2018382-Seinwachterstraat-27,-Amsterdam-232564358
AM105940-2018382-Seinwachterstraat-27,-Amsterdam-232564312
AM105940-2018382-Seinwachterstraat-27,-Amsterdam-232564322
AM105940-2018382-Seinwachterstraat-27,-Amsterdam-232564366
AM105940-2018382-Seinwachterstraat-27,-Amsterdam-232564294
AM105940-2018382-Seinwachterstraat-27,-Amsterdam-232564266
AM105940-2018382-Seinwachterstraat-27,-Amsterdam-232564194
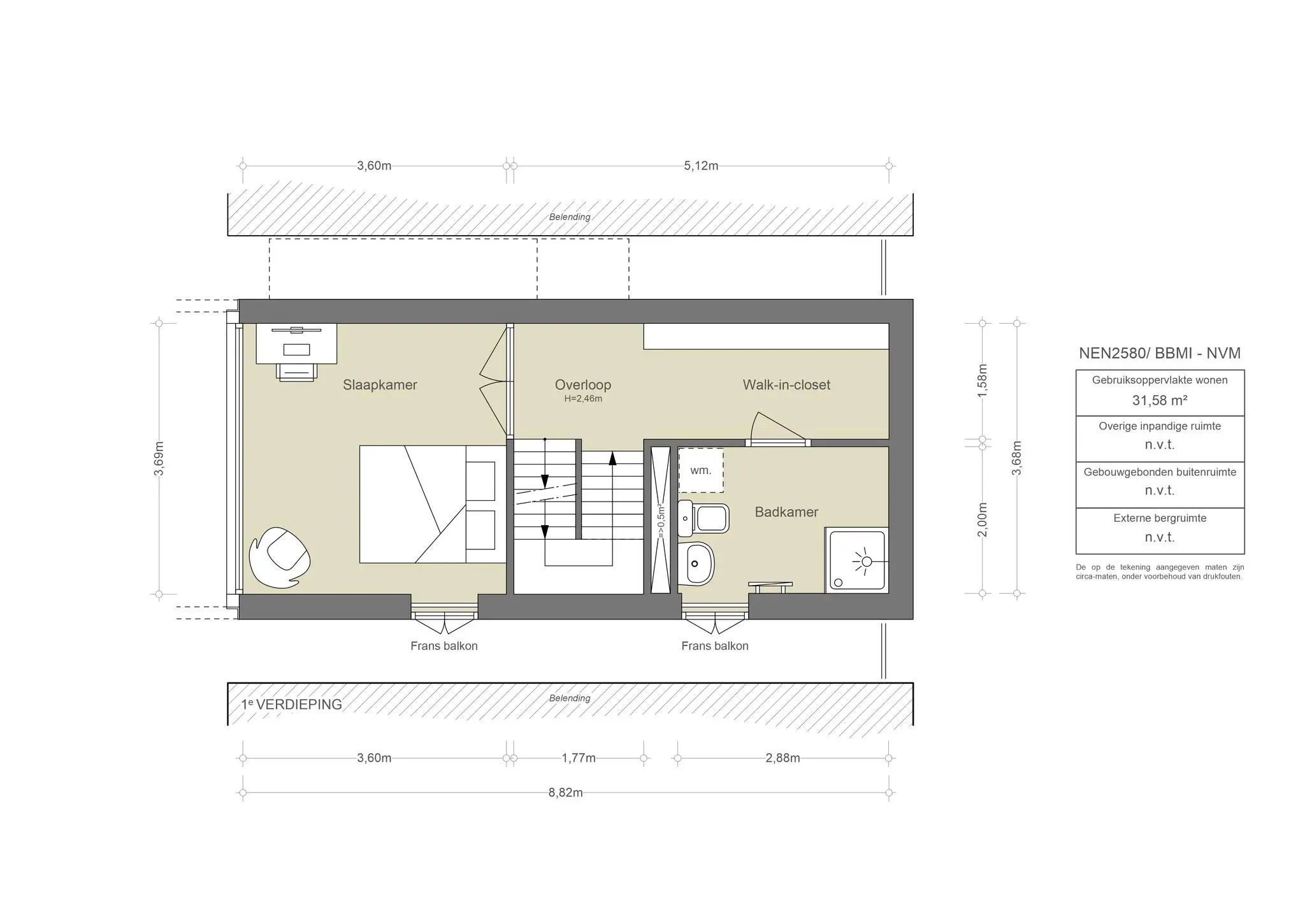
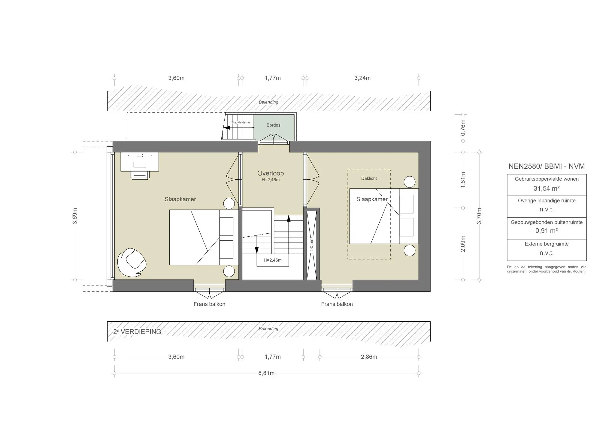
Slapen en baden

De woning beschikt over twee volwaardige slaapverdiepingen, elk met een heldere en efficiënte indeling. Op de eerste verdieping bevindt zich een ruime hoofdslaapkamer aan de tuinzijde, voorzien van een verdiepingshoge glazen pui. De kamer heeft een rustige uitstraling en biedt direct zicht op de patio. Het Franse balkon zorgt voor daglicht en natuurlijke ventilatie. Aangrenzend ligt de badkamer, uitgevoerd in neutrale materialen met wit tegelwerk, een inloopdouche, wastafel en toilet. In de ruimte is tevens plaats voor een wasmachine.  Op de tweede verdieping bevinden zich twee extra kamers. De kamer aan de achterzijde wordt gebruikt als slaapkamer, de kamer aan de voorzijde als werkruimte. De overloop op deze verdieping verbindt de ruimtes met de trap naar het dakterras. Ook hier is de opzet logisch en doelmatig, met korte looplijnen en maximale benutting van daglicht.

AM105940-2018382-Seinwachterstraat-27,-Amsterdam-232564188
AM105940-2018382-Seinwachterstraat-27,-Amsterdam-232564228
AM105940-2018382-Seinwachterstraat-27,-Amsterdam-232564288
AM105940-2018382-Seinwachterstraat-27,-Amsterdam-232564236
AM105940-2018382-Seinwachterstraat-27,-Amsterdam-232564428
AM105940-2018382-Seinwachterstraat-27,-Amsterdam-232564408
AM105940-2018382-Seinwachterstraat-27,-Amsterdam-232564418
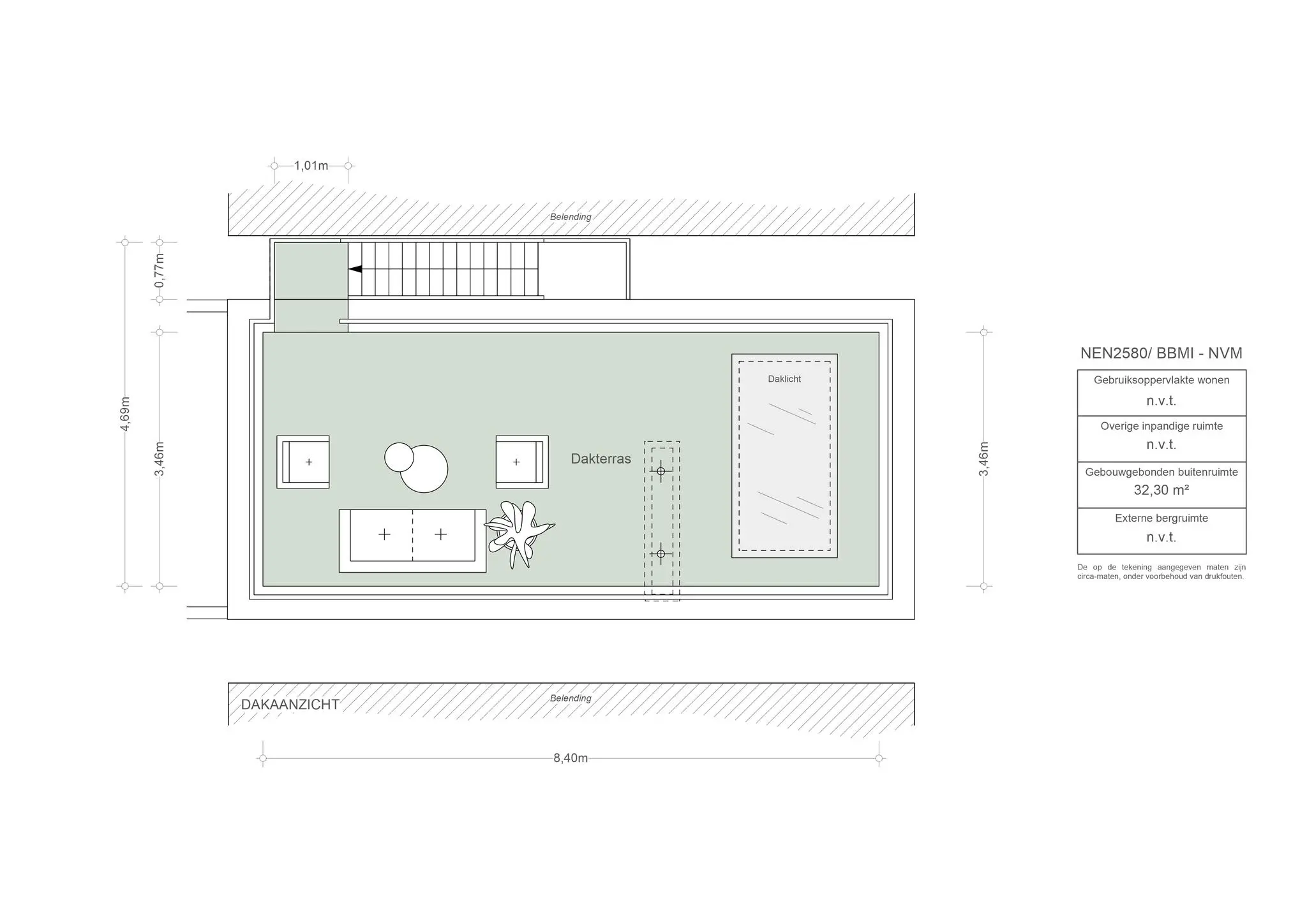
De patio en het dakterras

De woning beschikt over twee buitenruimtes: een omsloten patio op de begane grond en een dakterras op de derde verdieping. De patio is direct verbonden met het woonvertrek en vormt een verlengstuk van de binnenruimte. De houten vlonder en verdiepingshoge gevelpuien zorgen voor een goede lichtinval en zichtlijn naar buiten. Door de positionering tussen de bouwvolumes is de ruimte volledig afgeschermd en biedt daarmee maximale privacy. De zuidgerichte oriëntatie maakt het mogelijk hier gedurende de dag gebruik te maken van zonlicht. Het dakterras is bereikbaar via een vaste trap vanaf de tweede verdieping. De ruimte is omsloten met een stalen hekwerk en biedt uitzicht over de omliggende bebouwing en het groen in de directe omgeving. Door de ligging op het hoogste punt van de woning fungeert het terras als een extra buitenruimte.

AM105940-2018382-Seinwachterstraat-27,-Amsterdam-232564432
AM105940-2018382-Seinwachterstraat-27,-Amsterdam-232564440
AM105940-2018382-Seinwachterstraat-27,-Amsterdam-232564164
AM105940-2018382-Seinwachterstraat-27,-Amsterdam-232564156
Buurtgids

De woning ligt aan de Seinwachterstraat in Sporenburg, een kindvriendelijke buurt met veel speelplekken, pleinen, zwemsteigers en mogelijkheden voor watersport. Winkelcentrum Brazilië biedt een uitgebreid aanbod aan winkels en voorzieningen. Ook is er een levendige markt op het nabijgelegen Javaplein, waar je verse producten en lekkernijen kunt vinden. Op loopafstand liggen de hippe Czaar Peterstraat en de Veemkade. Nieuw Noord – met onder andere restaurant Hangar, Hotel de Goudfazant en filmhuis FC Hyena – is gemakkelijk bereikbaar met de pont.

Bereikbaarheid
Vanwege de gunstige ligging binnen de ring van Amsterdam, nabij afslag S114, is de woning goed bereikbaar met eigen vervoer, zowel vanuit het centrum als van buiten de stad. Ook met het openbaar vervoer is de woning goed bereikbaar. Op loopafstand bevindt zich een halte van buslijnen 43, 65 en 246, met directe verbindingen naar Station Muiderpoort, Station Zuid en Amsterdam Centraal. Daarnaast ligt de halte van tramlijn 7 eveneens op loopafstand.

Parkeergelegenheid
Parkeren is mogelijk via een vergunningenstelsel op de openbare weg (vergunningsgebied Oost-7a). Met een parkeervergunning voor Oost-7a mag u parkeren in Oost-7. Een parkeervergunning voor bewoners kost € 192,81 per 6 maanden. Momenteel is er voor dit vergunningsgebied geen wachttijd. Een tweede parkeervergunning is in dit gebied niet mogelijk. (Bron: Gemeente Amsterdam, juni 2025).

AM105940-2018382-Seinwachterstraat-27,-Amsterdam-232564172
AM105940-2018382-Seinwachterstraat-27,-Amsterdam-232564212
AM105940-2018382-Seinwachterstraat-27,-Amsterdam-232564206
Kenmerken
Seinwachterstraat 27, Amsterdam
Vraagprijs
  • € 800.000 k.k.
Beschikbaarheid
  • In overleg
Vertrekken
  • 4 kamers
  • 3 slaapkamers
  • 1 badkamer
Onderhoud
  • Intern: Goed
  • Extern: Goed
Oppervlakten & Inhoud
  • Woonoppervlakte: 96 m²
  • Gebouwgebonden buitenruimte: 33 m²
  • Tuinoppervlakte: 32 m²
Bouwjaar
  • 2001
Installaties
  • Frans balkon
  • Mechanische ventilatie
  • Natuurlijke ventilatie
  • TV kabel
Ligging
  • Aan rustige weg
  • In woonwijk
Parkeren
  • Betaald parkeren
  • Parkeervergunningen
Type verwarming
  • Stadsverwarming
Type warmwater
  • Stadsverwarming
Bestemming
  • Woonruimte
Eigendomssoort
  • Eigendom belast met erfpacht
Buitenruimte
  • Patio atrium
  • Zonneterras
  • Dakterras
Kadastraal
  • Gemeente: Amsterdam
  • Sectie: A
  • Nummer: 7970
Duurzaamheid
  • Volledig geisoleerd
  • Energielabel A
Soort
  • Herenhuis
  • Vrijstaande-woning
  • Woonhuis
Overige kenmerken

OZB ('25) € 477,76 per jaar
Rioolrecht ('25) € 185,20 per jaar
 

Plattegrond
Seinwachterstraat 27, Amsterdam
AM105940-2018382-Seinwachterstraat-27,-Amsterdam-233014868
AM105940-2018382-Seinwachterstraat-27,-Amsterdam-233014870
AM105940-2018382-Seinwachterstraat-27,-Amsterdam-233014872
AM105940-2018382-Seinwachterstraat-27,-Amsterdam-233014876
AM105940-2018382-Seinwachterstraat-27,-Amsterdam-233014878
Documenten
Seinwachterstraat 27, Amsterdam
Locatie
Seinwachterstraat 27, Amsterdam
Interieur
119183029_748370379060570_3524924206402000634_n
01
Adres
Ertskade 272,
1019 BB Amsterdam

Frankly Amsterdam

Het jonge Nederlandse bedrijf Frankly Amsterdam – met oprichter Femke Derks aan het roer – ontwerpt, produceert en verkoopt kleden, bedlinnen, plaids en sjaals. Producten in zachte naturel tinten die warme, comfort en rust toevoegen aan ieder interieur. Bij Frankly Amsterdam doen ze dingen anders, hun producten hebben een eerlijke oorsprong waarbij werknemers in een goede omgeving met zuivere, onschadelijke materialen werken en een eerlijk loon ontvangen.

Schermafbeelding 2022-06-20 om 17.00.11
02
Adres
Zeeburgerpad 26 BG,
1019 AA Amsterdam

Fortune Flea

Elke zaterdag en zondag is de Vintage interieurwinkel van Zoë open op het Zeeburgerpad in Amsterdam Oost, gepositioneerd in een gave oude loods aan het water. De creatieve eigenaresse van Fortune Flea is alleen in de weekenden open om een eenvoudige reden: de rest van de tijd is ze op treasure hunt in Frankrijk of België. Naast de winkel maakt Fortune Flea goed gebruik van Instagram als platform om te inspireren en verkopen. Mocht je op de Instagram pagina langs een item kopen dat je absoluut wilt hebben, dan kan je simpelweg reageren door middel van een privé berichtje. Dit betekent dat de verkoop dus altijd doorgaat!

119235730_640071679979829_2528260860777625963_n
03
Adres
Javaplein 31HS,
1095 CJ Amsterdam

Found in Sweden

Found in Sweden, gelegen op het Javaplein in Amsterdam Oost, is een vintage winkel die trouw is aan zijn naam. Alles in de winkel is zorgvuldig geselecteerd uit Zweden, variërend van mid-century dressoirs tot lampen en tafelkleden. De collectie verandert voortdurend, met wekelijks nieuwe vondsten uit Zweden of liefdevol gerestaureerde stukken. Hoewel sommige items designklassiekers zijn, biedt de winkel ook betaalbare vintage schatten. De eigenaar, een gepassioneerde vintage-jager, deelt haar liefde voor unieke stukken. Found in Sweden is een plek waar de wereld van vintage tot leven komt, met verrassingen op elk bezoek.

Eten & drinken
image-e1568147216648-2048×1310
04
Adres
Levantplein 84,
1019 MB Amsterdam

Paon Bali

Paon Bali Amsterdam ( voorheen Catering Enak Sekali ) is gespecialiseerd in de authentieke Balinese keuken.Bali heeft een eigen, uitgebreide keuken. In vergelijking met andere keukens uit Indonesië is het pittiger en minder zoet. Daarnaast wordt varkensvlees ook vaker gebruikt. Volgens een bekende chef en auteur van boeken over Indonesisch eten vind je hier de beste sate (geroosterd op houtskool) van de stad!

downloadgram.org_541042297_18371694193180191_2446309907341887321_n
downloadgram.org_539947091_18371694262180191_8511630982273558689_n
downloadgram.org_539941790_18371694214180191_4169846064157363061_n
05
Adres
C. van Eesterenlaan 35,
1019 JK Amsterdam

Esra

Esra is het Amsterdamse restaurant van Selin Kiazim, een London-born chef met Turks-Cypriotische roots en bekend van haar gerenommeerde restaurant Oklava in Londen. Samen met partner en mede-oprichter Steph de Goeijen serveert ze hier een menu dat seizoensproducten en Mediterrane smaken viert, met een duidelijke nadruk op haar culturele achtergrond en frisse, creatieve interpretaties. De gerechten zijn rijk aan smaak en variëren wekelijks, waarbij klassieke Turkse elementen worden gecombineerd met lokale Nederlandse producten. Naast het eten is de zorgvuldig samengestelde wijnkaart van Steph een belangrijk onderdeel van de ervaring, met mediterrane en Turkse wijnen die goed aansluiten bij de keuken

joki
06
Adres
Cruquiusweg 89F,
1019 AG Amsterdam

Jōki

De naam ‘JōKi’ (wat Stoom betekent in het Japans) verwijst naar het ‘Gemaal de Cruquius’, de grootste stoommachine ter wereld.
De koffie wordt hier gemaakt met de bonen van Stooker, dat zit dus wel goed.

07
Adres
Cruquiusweg 83D,
1019 AT Amsterdam

Krux brouwwerf

Vroeger was Cruquiuseiland één grote werf. Nu is er alleen nog een brouwwerf over. Eentje waar bier wordt gebrouwen en waar je ook kan komen drinken. Volgens zeggen de kleinste brouwerij van Amsterdam. Dit heeft twee voordelen; door de kleine batches kunnen ze makkelijk experimenteren met de recepten én is het bier altijd super vers!

Baggerbeest
08
Adres
Rudi van Dantzigstraat 1,
1095 PK Amsterdam

Bar Baggerbeest

Een plek om wat te drinken, een hapje te eten, nieuwe mensen te ontmoeten en te verbinden. Stil je honger met overheerlijke steenoven pizza's. Lust je dorst met een van de  (biologische) wijnen, eerlijke koffie of (Amsterdams) bier. Bar Baggerbeest is onderdeel van Broedplaats Baggerbeest hét culturele ankerpunt van de stadswijk-in-wording: de Sluisbuurt. Club: Op vrijdag, zaterdag en zondag na 21.00 uur is er ruimte voor een culturele programmering.

190030-restaurant-foer-najaar-2499-1000×1000
190030-restaurant-foer-najaar-2732-1000×1000
09
Adres
Cruquiusweg 9,
1019 AT Amsterdam

Foer

Bij Foer bepalen de seizoenen het menu, waardoor het aanbod constant in beweging is. Het eten is bijzonder en experimenteel. De chef Steven Broere kookt een mix tussen modern Nederlands eten, met een Noorse toevoeging. Je eet hier vijf of zeven gangen, met de keuze tussen vlees of vegetarisch. De zaak zit in een mooi gebouw en de serre geeft een bijzondere sfeer. Ook de bar (chef’s table) is een enorme aanrader, met een kijkje in de keuken. Stijlvol ingericht met een lichte sfeer.

Schermafbeelding 2022-06-20 om 17.14.47
Schermafbeelding 2022-06-20 om 17.20.33
10
Adres
Conradstraat 471,
1018 NE Amsterdam

VRR

Restaurant VRR, samen met Stadsbakkerij As, is gevestigd in het historische gebouw uit 1895 en werd gebruikt als personeelskantine en waslokaal door de Nederlandsche Scheepsbouw-Maatschappij. Chef en eigenaar Sander Overeinder, o.a. voorheen restaurant AS is altijd al een voorloper geweest. Ook hier komen de biodynamische groenten en fruit uit zijn geboortestreek de Beemster. Een groot deel van de gerechten wordt op open vuur bereid. Het heerlijke brood (van As natuurlijk) is ook in het aangrenzende winkeltje te koop. De wijnkaart wordt met veel zorg, kennis en liefde samengesteld. Biodynamisch en vooral natuurwijnen o.a. afkomstig uit Frankrijk, Italië en Duitsland.

 

 

downloadgram.org_610158491_18155713189414493_8830627637014665446_n
downloadgram.org_609857782_18155713237414493_8953378724932894764_n
11
Adres
Czaar Peterstraat 174,
1018 PX Amsterdam

Counter

Counter is een familiebedrijf dat wordt gerund door Raymond en Nathalie Hunsel-Spigt, hun dochter Tatum en haar partner Jaime Sharp, met wortels in een cateringbedrijf dat al sinds 2004 actief is. Hun visie was om een lunch- en wijnbar te creëren waar plantaardige gerechten centraal staan, dagelijks wisselend en met zorg bereid. Overdag serveert Counter verse sandwiches, quiches en andere plantaardige lunchgerechten, vaak met creatieve combinaties en huisgemaakte smaken. In het weekend transformeert de zaak tot natuurwijnbar met bijpassende kleine bites en een warme, sociale vibe.

1592227987583
12
Adres
Timorplein 62,
1094 CC Amsterdam

Studio/K

Studio/K is een bioscoop, restaurant en cultureel podium aan het Timorplein in Amsterdam Oost. Dagelijks draaien hier de mooiste speelfilms van nationale en internationale herkomst. Ook organiseert Studio/K muziekavonden en dansfeesten. In het café/restaurant van Studio/K kun je genieten van een lekkere koffie of een van de heerlijke gerechten op het menu. Extra leuk aan Studio/K is dat je hier ook film en diner kan combineren met een speciaal arrangement. Je kan zelfs het gerecht meenemen in de bioscoopzaal. Studio/K is opgericht door Stichting Kriterion, die ook bioscoop Kriterion en restaurant Skek heeft opgericht. Net als bij de andere initiatieven van Stichting Kriterion wordt Studio/K volledig gerund door studenten.

Schermafbeelding 2022-07-01 om 12.46.22
13
Adres
Javaplein 23,
1095 CJ Amsterdam

Restaurant Wilde Zwijnen

Bij restaurant Wilde Zwijnen wordt gekookt volgens de moderne Nederlandse keuken. Zelf zeggen ze daar over; 'Een Modern Nederlandse keuken betekent voor ons: ingrediënten van Nederlandse bodem, hoe meer de ingrediënten uit de buurt, hoe beter. We koken seizoensgebonden, ook vegetarisch en gebruiken zoveel als mogelijk duurzame producten.' Wilde Zwijnen serveert een vast menu bestaande uit drie, vier of vijf gangen. Op maandag en dinsdag kan er a la carte gegeten worden.

image
14
Adres
Javaplein 25,
1095 HR Amsterdam

Bar bachrach

Bar Bachrach is zowel een bar als een restaurant. Je vindt hier modern midden-Oosters eten, denk bijvoorbeeld aan halloumi met biet of een Jeruzalem bagel. Chefkok Yaniv stelt met zorg de gerechten samen met verschillende verse seizoensgebonden producten. Je kunt hier genieten van een goed glas wijn en kleine gerechtjes of lekker lang tafelen met een diner volgens het vooraf samengestelde chef's menu. Binnen hangt een heerlijke warme sfeer door houten interieur en de mix van vintage kunt en moderne elementen.

15
Adres
Javastraat 149,
1094 HE Amsterdam

De Jonge Admiraal

Aan het einde van de Javastraat, tegen het Javaplein aan vind je De Jonge Admiraal. Ze serveren hier heerlijke koffies, goede broodjes en heerlijke taart van Majesteit Taart, een taartenwinkel verderop in de Javastraat. De Jonge Admiraal is gezellig en Laptopfree, iedereen die er zit is gezellig aan het kletsen of spelletjes aan het spelen en dat zorgt voor een goede sfeer. ’s Avonds kan je er ook lekkere biertjes uit de buurt drinken en er zijn vaak leuke evenementen als pubquizzes, Ajax-wedstrijden of live optredens.

272793218_3188322951397443_5440626548767686297_n
16
Adres
Flevopark 13a,
1095 KE Amsterdam

Distilleerderij ’t nieuwe diep

Distilleerderij ’t nieuwe diep bevindt zich op een mooie rustige plek in het Flevopark. Bij mooi weer kan je hier heerlijk op het terras bij de vijver zitten en hoor je de geluiden van eenden en andere dieren om je heen. Ze maken een 100-tal producten waaronder verschillende jenevers, likeuren en bitters, zoveel mogelijk gemaakt van biologische grondstoffen. Neem bijvoorbeeld’ ‘het groene juffertje in de plas’ of een citroenjenever. Naast sterke dranken serveren ze ook andere dranken en verschillende borrelhapjes.

 

Boodschappen
millie
327448751_105529872451533_2683322311542512579_n
17
Adres
Bottelarijstraat 1,
1019 VC Amsterdam

Millie Vanillie

Bij Millie Vanillie wordt van s’morgens vroeg tot ‘s avonds laat gebakken. Het assortiment bestaat onder andere uit verse zuurdesembroden en patisserie zoals kardemom buns en custard buns.
Daarnaast wordt er bij Millie Vanillie ook heerlijke koffie geserveerd. De bonen komen ook van  Sprout.

1465889_221896457986867_1027729947_o
18
Adres
C. van Eesterenlaan,
Amsterdam

Thull's deli

Thulls deli is een echte goede traiteur. Ze maken heerlijke dagvers-maaltijden met mediterrane invloeden om mee te nemen. Je kan er naast maaltijden ook heerlijke royaal belegde broodjes afhalen die vers gemaakt worden door de vriendelijke verkopers. Alles is vers en huisgemaakt. De deli heeft een uitgebreide en met zorg uitgekozen selectie Europese wijn en cider, zuurdesembrood van Restaurant As, chocolade, charcuterie, kazen, olijfolie, azijnen, blikvis en meer.  Thulls is echter echt bekend geworden doordat ze zelf pickles en gefermenteerde groente zoals zuurkool en kimchi maken. Daarnaast zijn ze brouwer van waterkefir en kombucha!

22490121_179839189242836_3341019391178952167_n
19
Adres
C. van Eesterenlaan,
Amsterdam

Biomarkt Zeeburg

Al meer dan 10 jaar is er iedere woensdag biologische markt op de Van Eesterenlaan in Zeeburg. Groente, fruit, noten, kaas, olijven, raw food, brood, paddenstoelen, vegetarische roti, pizza, Libanese mezze, vis en gegrilde kippetjes. Het zit aan de Oostelijke Eilanden dus je hebt ook nog mooi uitzicht. Tip: sommigen zeggen dat ze de lekkerste kibbeling van Amsterdam hier verkopen…

268870585_5381709715179496_501439844220623728_n
20
Adres
Conradstraat 471,
1018 NE Amsterdam

Stadsbakkerij As

Het zuurdesembrood van deze stadsbakkerij behoort tot de beste van de stad. Ooit een restaurant, maar herrezen als bakkerij in Amsterdam Oost met aan het stuur Godfather van het brood: Efraim Bolado van der Meij. De bakkerij zit een beetje verstopt, maar is absoluut een ommetje waard.

CP_DSC2689
21
Adres
Czaar Peterstraat 137,
1018 PH Amsterdam

Fromagerie Abraham Kef

Bij Fromagerie Abraham Kef haal je de lekkerste kazen. Al in 1953 opende Abraham Kef een winkel in het centrum van Amsterdam. Als echte kaasliefhebber met buitengewone verhalen, bleek Kef een pionier op het gebied van kaas en liet hij een blijvende indruk achter.

Schermafbeelding 2022-06-20 om 17.29.41
22
Adres
Czaar Peterstraat 118,
1018 PT Amsterdam

Enoteca Sprezzatura

Sprezzatura betekent in het Italiaans: virtuositeit, iets met speels gemak doen zodat de overtuigingskracht er vanaf spat. Enoteca Sprezzatura importeert bijzondere veelal biologische Italiaanse wijnen. De inkoop wordt gedaan bij kleinschalige wijnmakers vanuit heel Italië. Onder de naam Verkerk import wordt al meer dan 26 jaar aan de horeca geleverd. Een ware Italië-specialist dus!

Kunst & cultuur
134564196_191610846004438_8248033808513572819_n_17873218790136161-1080×1350
FLYER-1-WONDERWALL-1080×1350
7B2899AA-3A88-46E7-BBB7-EAF1321D77E6-2-1080×1350
23
Adres
Levantkade 85,
1019 MJ Amsterdam

Bisou Gallery

Bisou Gallery is ontstaan uit Rademaker zijn liefde voorkunst en interieur. Hij begon in 2016 met een ‘Instagram only gallery’, maar sinds 2020 is er een fysieke plek op het KNSM Eiland in Amsterdam Oost. Rademaker volgt voor de kunst die hij tentoonstelt niet de grote namen maar alleen zijn eigen hart en smaak. De huiselijke sfeer is het een fijne plek om laagdrempelig kennis te maken met de uitgesproken werken.

177834126_10164874250290433_4768580167307000987_n
24
Adres
KNSM-Laan 291,
1019 LE Amsterdam

Rademakers Gallery

Rademakers Gallery is de galerie van Pien Rademakers en biedt tentoonstellingen aan waar kunst, mode en design elkaar ontmoeten. Pien Rademakers is kunsthistoricus en ontwerpt elke tentoonstelling voor de galerie. In haar tentoonstellingen streeft zij naar het programma's waar interdisciplinariteit, duurzaamheid en vrouwelijk talent centraal staan. Je kunt bij Rademakers Gallery niet alleen terecht voor het bewonderen van de tentoongestelde werken; je kunt hier ook advies ontvangen als kunstliefhebber over de aankoop van nieuwe werken of het samenstellen van een eigen kunstcollectie. Kortom, bij Rademakers Gallery zijn ze expert in alle vlakken van kunst. Het pand is gevestigd in het nieuwbouwgebied van KNSM-eiland.

128208323_1821516841330440_426264450150309702_n
25
Adres
Cruquiusweg 11,
1019 AT Amsterdam

Museum Perron Oost

Met een oppervlakte van 6 m2 is Museum Perron Oost in het Oostelijk Havengebied misschien wel het kleinste museum ter wereld. In 1993 toverde kunstenaar en ontwerper Joep van Lieshout het voormalige perron van de veemarkt om tot een mini-parkje, met een goederenwagon zonder lading. Het toont de afgelopen 150 jaar geschiedenis van dit stukje stad: er zijn verhalen van veehandelaren, circusstoeten, lijndiensten naar Indonesië, Suriname en de Verenigde Staten, Joodse vluchtelingen, jonge delinquenten, krakers en stadsnomaden. Sinds 2013 vertelt Museum Perron Oost de verhalen van oude en nieuwe buurtbewoners, in de vorm van theater, film, dans, muziek, beeldende kunst, of combinaties daarvan. Ook zijn in het museum op het perron exposities te zien over steeds een andere periode uit de geschiedenis van het Oostelijk Havengebied.

Een bron van inspiratie in Bergen Noord Holland

Een bron van inspiratie in Bergen Noord Holland

Oosterparkbuurt

Oosterparkbuurt

Uitgelicht;  Marrakesh Living

Uitgelicht; Marrakesh Living

Onlangs bekeken
Bekijk het overzicht

Deze site maakt gebruik van cookies.

Voor welke cookies geef je akkoord?