Wonen in Buitenveldert betekent leven in het groen, met alles wat de stad te bieden heeft op korte afstand. Een ruim appartement met 2 slaapkamers, badkamer met ligbad van maar liefst 84 m² en balkon op het zuiden. De woning beschikt over een berging in de onderbouw van 6 m² en een zolderverdieping van 12 m². De grote raampartijen aan zowel de voor- als achterzijde geven het appartement een bijzonder lichte uitstraling en versterken het gevoel van ruimte.

Rondleiding
Rietnesse 3 II is een licht en logisch ingedeeld appartement uit de jaren zestig in Buitenveldert, met een doorlopende woon- en kookruimte die dankzij grote ramen aan beide zijden open aanvoelt. De keuken met houten accenten en blauwe tegeltjes vormt een vanzelfsprekende verbinding met de woonkamer. Aan de achterzijde liggen twee slaapkamers met toegang tot een zuidelijk georiënteerd balkon. De badkamer en keuken bevinden zich aan de voorzijde. Extra ruimte op zolder voor een kantoor of logeerplek en een berging op de begane grond vergroten de praktische bruikbaarheid. Ondanks energielabel G staat er verduurzaming op de planning voor het hele pand. De ligging in het groene, goed bereikbare Buitenveldert biedt rust én nabijheid van voorzieningen, openbaar vervoer en de Zuidas.

Buurtgids
Het appartement is gelegen in Buitenveldert, een gewilde buurt in Amsterdam vanwege de nabijheid van de Zuidas en Amstelveen. In de omgeving zijn diverse groenvoorzieningen te vinden, waaronder het Amsterdamse Bos, het Amstelpark en het Gijsbrecht van Aemstelpark. Het appartement is goed bereikbaar via de ring A10 en met het openbaar vervoer richting de Zuidas, Amsterdam Centrum, Schiphol en omliggende gemeenten. Op korte afstand van het appartement ligt winkelcentrum Gelderlandplein, met een uitgebreid aanbod op het gebied van voeding, mode, wonen en accessoires. Daarnaast zijn er diverse onderwijsinstellingen in de buurt, zoals de Vrije Universiteit Amsterdam, AICS Satellite en meerdere basisscholen.

Bijzonderheden
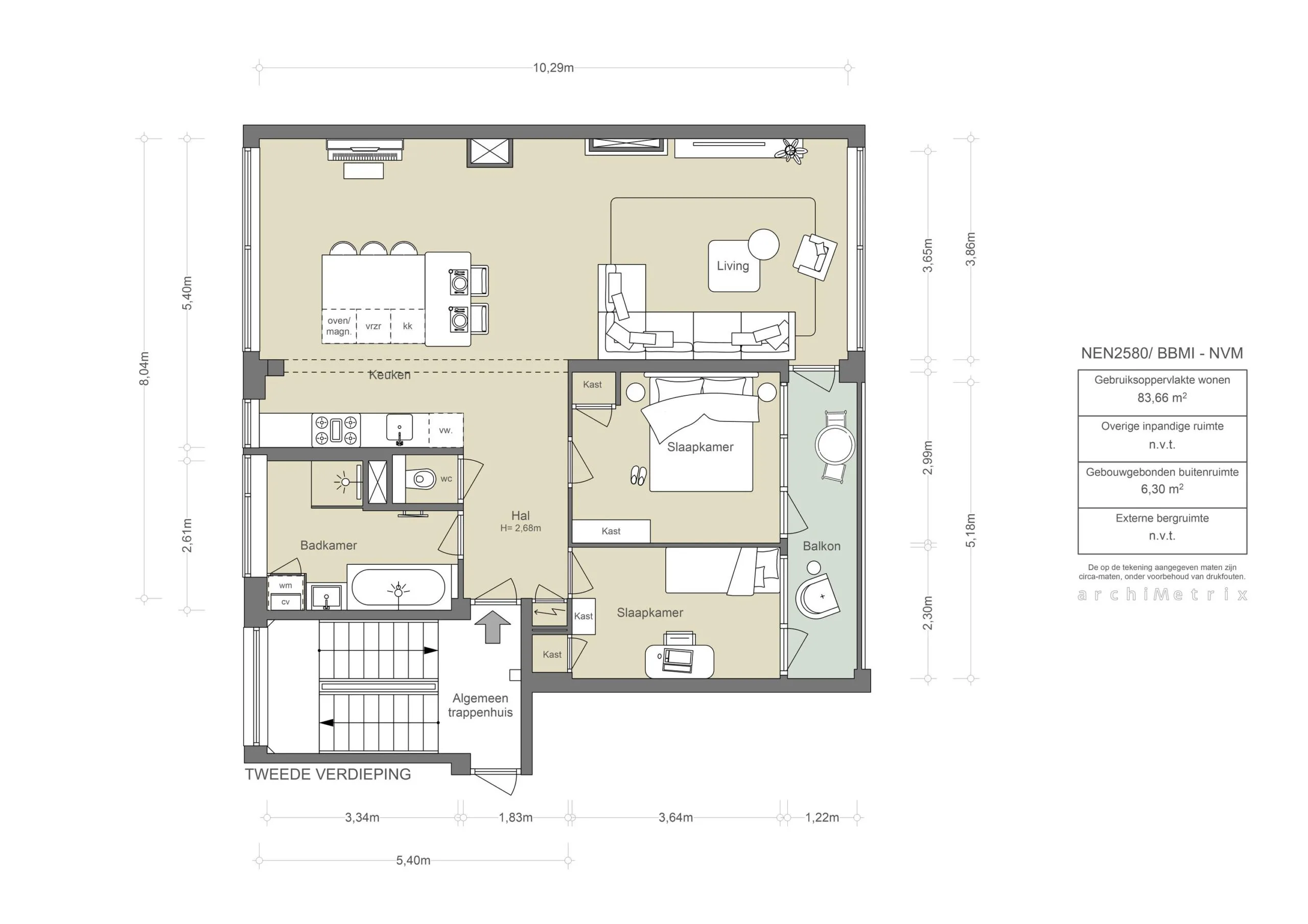
• Gebruiksoppervlakte wonen circa 84 m²
• Balkon van ruim 6 m² gelegen op het zuiden
• Ruime zolder van circa 12 m²
• Berging van circa 6 m²
• Gelegen op erfpachtgrond van Gemeente Amsterdam. Erfpacht is afgekocht tot 31 Augustus 2051
• Energielabel G
• Servicekosten VvE € 267,- per maand
• Nieuw meerjarenonderhoudsplan met ruime verduurzaming op de planning.
• Projectnotaris Hartman LMH Notarissen

AM106741-2108991-Rietnesse-3-2,-Amsterdam-269984398

In het Riet
In Buitenveldert, waar het groen en de stad elkaar vinden, ligt een complex dat al decennia zijn functie vervult. Dit is precies zo’n gebouw, op de tweede verdieping. We noemen het In het Riet.
Dit appartement verrast door zijn eenvoud en zijn logica. De woonkamer en keuken strekken zich uit over de hele diepte van het huis, met ramen aan beide zijden. Het kookeiland vormt het hart van de keuken: ruim opgezet, met voldoende plek om aan te zitten of te dineren. Aan de achterzijde liggen twee slaapkamers met directe toegang tot het balkon. De badkamer is praktisch, fris, met verrassend veel ruimte. De toilet is separaat en bereikbaar vanaf de centrale hal. Wat deze woning extra bijzonder maakt zijn de zolder en de berging. Op de begane grond is een ruime berging, ideaal voor fietsen, koffers, voorraad. En op de bovenste verdieping een ruime zolder, perfect geschikt voor kantoor, logeerkamer of extra bergruimte.
De ligging is een ander sterk punt. Buitenveldert is een wijk die in balans is. Winkels, parken, openbaar vervoer en uitvalswegen, alles is dichtbij. En tegelijkertijd woon je hier in een straat waar de rust vanzelf spreekt.


Babette Meijers | Makelaar Broersma Wonen
Daniël de Bont | Makelaar Broersma Wonen
AM106741-2108991-Rietnesse-3-2,-Amsterdam-269984496
Designvisie

Rietnesse 3 II ligt op de tweede verdieping van een kleinschalig complex uit de jaren zestig in Buitenveldert. De gevel is rustig en symmetrisch, met brede ramen die de tijdsgeest weerspiegelen. Ook binnen is de indeling functioneel en overzichtelijk, met een centrale hal die alle vertrekken met elkaar verbindt.
De woonkamer en keuken lopen in elkaar over en vormen samen de volledige lengte van het appartement. Aan beide zijden valt daglicht binnen via grote raampartijen, wat de ruimte licht en open maakt. De keuken is uitgevoerd in hout en gebroken wit, met een opvallend werkblad, blauwe tegeltjes en een ingebouwd kookeiland met aansluitende plek om te dineren.
Aan de achterzijde liggen twee slaapkamers met verbinding naar het balkon op het zuiden. De badkamer is aan de voorzijde gesitueerd en praktisch ingericht, met rustige materialen en goed licht.
Naast de hoofdverdieping beschikt de woning over extra ruimte op zolder en een eigen berging op de begane grond. Beide zijn bereikbaar via het trappenhuis en vergroten de gebruiksmogelijkheden aanzienlijk. De woning is gebouwd in 1961. Hoewel het huidige energielabel G is, liggen er concrete plannen voor verduurzaming klaar voor het gehele pand. De structuur is degelijk, het perspectief helder.
De woning voelt logisch, open en bruikbaar. Elke ruimte heeft een duidelijke plek in het geheel maar met aandacht voor comfort en dagelijks gebruik.

AM106741-2108991-Rietnesse-3-2,-Amsterdam-269984396
AM106741-2108991-Rietnesse-3-2,-Amsterdam-269984420
AM106741-2108991-Rietnesse-3-2,-Amsterdam-269984402
AM106741-2108991-Rietnesse-3-2,-Amsterdam-269984418
Wonen en koken

De woonkamer en keuken vormen samen één doorlopende ruimte over de volle diepte van het appartement. Aan de straatzijde zorgt een breed raam voor vrij zicht op de bomenrij met groen, waar je kunt ontspannen of kinderen kunnen spelen.
De keuken is royaal opgezet en ligt direct aan de woonkamer. Een groot kookeiland met bar en eettafel verbindt koken en tafelen op een vanzelfsprekende manier. De opstelling langs de wand biedt veel werkruimte en kastruimte. De blauwe tegeltjes en de houten kastdeuren geven de keuken een eigen karakter, zonder uit de toon te vallen in het geheel.
In de woonkamer is ruimte voor meerdere opstellingen. De lengte van de ruimte zorgt voor flexibiliteit, of het nu gaat om een zithoek, werkplek of leesstoel bij het raam. De verbinding tussen wonen en koken voelt natuurlijk aan: open, maar met voldoende structuur om ieder deel zijn eigen functie te geven.

AM106741-2108991-Rietnesse-3-2,-Amsterdam-269984414
AM106741-2108991-Rietnesse-3-2,-Amsterdam-269984400
AM106741-2108991-Rietnesse-3-2,-Amsterdam-269984416
AM106741-2108991-Rietnesse-3-2,-Amsterdam-269984426
AM106741-2108991-Rietnesse-3-2,-Amsterdam-269984436
AM106741-2108991-Rietnesse-3-2,-Amsterdam-269984466
Slapen en baden

Aan de achterzijde van het appartement liggen twee slaapkamers, beide met toegang tot het balkon. De kamers zijn rustig van opzet, met voldoende ruimte voor een tweepersoonsbed en kastruimte. Grote ramen zorgen voor lichtinval zonder inkijk en directe verbinding met het balkon.
De indeling is logisch: slapen aan de achterzijde, baden aan de voorzijde. De badkamer is goed bereikbaar vanuit de hal. De ruimte is helder ingedeeld, met een ligbad, wastafelmeubel en een aparte douche. Dezelfde blauwe tegeltjes zijn doorgetrokken naar de badkamer, wat zorgt voor een mooie verbinding. Het geheel sluit aan bij het kleuraccenten van de keuken. De toilet is separaat en vanuit de hal ook te bereiken.
De indeling is praktisch en verzorgd. Slaap- en badruimtes zijn van elkaar gescheiden, maar goed verbonden, geschikt voor dagelijks comfort.

AM106741-2108991-Rietnesse-3-2,-Amsterdam-269984424
AM106741-2108991-Rietnesse-3-2,-Amsterdam-269984472
AM106741-2108991-Rietnesse-3-2,-Amsterdam-269984486
AM106741-2108991-Rietnesse-3-2,-Amsterdam-269984454
AM106741-2108991-Rietnesse-3-2,-Amsterdam-269984458
AM106741-2108991-Rietnesse-3-2,-Amsterdam-269984450
Het balkon

Aan de achterzijde van de woning ligt een breed balkon op het zuiden. Bijna de gehele dag valt hier het zonlicht naar binnen. De ligging op de tweede verdieping zorgt voor voldoende privacy, terwijl het contact met buiten behouden blijft.
Het balkon is bereikbaar via beide slaapkamers en woonkamer en biedt ruimte voor een tafel met stoelen of loungestoel. Een fijne plek om buiten te eten of te ontspannen. De buitenruimte vormt een logisch verlengstuk van het wonen.

Geen overdrachtsbelasting bij je eerste woning? Ontdek of jij in aanmerking komt.

Lees meer
AM106741-2108991-Rietnesse-3-2,-Amsterdam-269984558
AM106741-2108991-Rietnesse-3-2,-Amsterdam-269984546
AM106741-2108991-Rietnesse-3-2,-Amsterdam-269984536
Buurtgids

Het appartement is gelegen in Buitenveldert, een gewilde buurt in Amsterdam vanwege de nabijheid van de Zuidas en Amstelveen. In de omgeving zijn diverse groenvoorzieningen te vinden, waaronder het Amsterdamse Bos, het Amstelpark en het Gijsbrecht van Aemstelpark. Het appartement is goed bereikbaar via de ring A10 en met het openbaar vervoer richting de Zuidas, Amsterdam Centrum, Schiphol en omliggende gemeenten. Op korte afstand van het appartement ligt winkelcentrum Gelderlandplein, met een uitgebreid aanbod op het gebied van voeding, mode, wonen en accessoires. Daarnaast zijn er diverse onderwijsinstellingen in de buurt, zoals de Vrije Universiteit Amsterdam, AICS Satellite en meerdere basisscholen.

Bereikbaarheid
Dankzij de ligging nabij de ring A10 en de uitstekende verbindingen met het openbaar vervoer ben je snel onderweg naar de Zuidas, het centrum van Amsterdam, Schiphol en omliggende steden. Een ideale locatie voor wie centraal én goed bereikbaar wil wonen.

Parkeergelegenheid
Parkeren is mogelijk via een vergunningenstelsel op de openbare weg (vergunningsgebied Zuid-7). Met een parkeervergunning voor Zuid-7 mag u parkeren in Zuid-7. Een parkeervergunning voor bewoners kost € 57,- per 6 maanden. Momenteel is er voor dit vergunningsgebied geen wachttijd. Een tweede parkeervergunning in dit gebied kost voor bewoners € 142,50. (Bron: Gemeente Amsterdam, november 2025).

AM106741-2108991-Rietnesse-3-2,-Amsterdam-269984412
AM106741-2108991-Rietnesse-3-2,-Amsterdam-269984444
AM106741-2108991-Rietnesse-3-2,-Amsterdam-269984398
AM106741-2108991-Rietnesse-3-2,-Amsterdam-269984410
Kenmerken
Rietnesse 3-2, Amsterdam
Vraagprijs
  • € 490.000 k.k.
Beschikbaarheid
  • In overleg
Vertrekken
  • 3 kamers
  • 2 slaapkamers
  • 1 badkamer
Onderhoud
  • Intern: Redelijk tot goed
  • Extern: Redelijk tot goed
Oppervlakten & Inhoud
  • Woonoppervlakte: 84 m²
  • Gebouwgebonden buitenruimte: 6 m²
  • Externe bergruimte: 18 m²
Bouwjaar
  • 1961
Installaties
  • Natuurlijke ventilatie
  • TV kabel
Ligging
  • Aan rustige weg
  • In woonwijk
Parkeren
  • Betaald parkeren
  • Parkeervergunningen
Type verwarming
  • CV Ketel
Type warmwater
  • CV Ketel
Bestemming
  • Woonruimte
Eigendomssoort
  • Eigendom belast met erfpacht
Buitenruimte
  • Geen tuin
  • Balkon
Kadastraal
  • Gemeente: Amsterdam
  • Sectie: Ak
  • Nummer: 3600
Duurzaamheid
  • Dubbel glas
  • Energielabel G
Soort
  • Appartement
  • Portiekflat
Overige kenmerken

OZB ('26) € 271,42 per jaar
Rioolrecht ('26) € 192,04 per jaar
Servicekosten VvE € 267,00 per maand
Gelegen op erfpachtgrond van Gemeente Amsterdam
Erfpacht is afgekocht tot 31 augustus 2051

Plattegrond
Rietnesse 3-2, Amsterdam
AM106741-2108991-Rietnesse-3-2,-Amsterdam-255245864
AM106741-2108991-Rietnesse-3-2,-Amsterdam-255245858
Documenten
Rietnesse 3-2, Amsterdam
Locatie
Rietnesse 3-2, Amsterdam
Boodschappen
Mordechai-Mouwes-kastelenstraat-sept2009
01
Adres
Kastelenstraat 261,
1082 EG Amsterdam

Mouwes

Mouwes Koshere Delicatessen is al meer dan 200 jaar het adres voor alle koshere producten. Of je komt voor je dagelijkse boodschappen of  je zoekt iets speciaals , zij hebben het allemaal. Van brood, kaas en vlees tot Israelische specialiteiten.  Je kan er ook terecht voor broodjes of soms gerechten zoals Sefardische kip met couscous.

02
Adres
Kastelenstraat 262-264,
1082 EJ Amsterdam

Atariya

Naast importeur en distributie van Japanse producten heeft dit bedrijf ook een winkel in Amsterdam. Hier vind je een geweldig en uitgebreid assortiment aan Japanse etenswaar producten. Het is ook mogelijk om eten af te halen. De winkel heeft een kleine keuken waarin elke ochtend verse maaltijden worden bereid.

03
Adres
Gelderlandplein 187,
1082 LW Amsterdam

Shilia Supermarkets

Een Japanse en Koreaanse foodmarkt. Gevestigd op het Gelderlandplein. Oorspronkelijk opende ze deze winkel om mensen uit Japan en Korea zich weer een beetje thuis te laten voelen, maar inmiddels weet iedereen deze foodmarkt te vinden. Authentiek, goed eten, als je Aziatisch wilt gaan koken is dit de plek.

04
Adres
Buitenveldertselaan 166,
1081 AC Amsterdam

Slagerij Hergo

Slagerij Hergo is de vleesspecialist in Amsterdam. Al in 1930 begon de heer Cantor, een Duitse worstmaker, samen met zijn vrouw die uit een Amsterdamse slagersfamilie kwam, zijn slagerij met typische Duitse worstspecialiteiten. Met het motto ‘De slager met ’n koksmuts’ is Hergo uitgegroeid naar vier verschillende locaties en is zo tegenwoordig niet meer weg te denken uit het straatbeeld van Amsterdam. Met jachtworst, hausmacher, ossenworst, pekelvlees maar ook met een broodje filet americain onderscheidt Hergo zich als slagerij in het topsegment.

180912402_1910769552415460_9061827722288066926_n
05
Adres
Scheldeplein 20,
1078 GR Amsterdam

Sab’s Deli

Bij Sab’s Deli ligt de focus op echt lekker, maar net wat specialer dan normaal, en uiteraard waar mogelijk duurzame en lokale producten. Al deze dingen samen vormen het merk ‘Sab’s. Ze verzorgen ook complete caterings van thuisdiners tot heerlijke borrelhapjes. Gelegen vlak naast de drukke RAI in Amsterdam Zuid, kan je ook altijd als je net de trein uitstapt even binnenlopen en kijken wat de pot schaft. Het zal niet tegenvallen!

Eten & drinken
87063095_139858640829594_2768792685031456768_n
06
Adres
Buitenveldertselaan 114,
1081 AB Amsterdam

China Supreme

China Supreme is een must-visit voor liefhebbers van Chinees streetfood en comfort food. Het populairste gerecht op de kaart zijn de jianbingcrêpes, die gevuld worden met onder andere ei, pittige olie en lente-ui, garnalen of eend. Verder biedt de kaart heerlijke wontons, gyozas en de specialiteit biangbiang noedels. De perfecte plek om de authentieke Chinese smaken te ontdekken.

144252327_1117059068733866_113518853239563698_n
07
Adres
Buitenveldertselaan 158A,
1081 AB Amsterdam

Wagyu Yakiniku Kanata

Wagyu Yakiniku Kanata restaurant is een plek waar je kan genieten van rundvlees van de hoogste kwaliteit. Bij Kanata vind je een traditionele ingebouwde Japanse barbecue aan tafel, waar je zelf je Wagyu vlees en groenten grilt. De Wagyu die ze serveren komt uit Japan en is beoordeeld met een A5 (dat is de hoogte score). Daarbij hebben ze ook Wagyu van boerderijen uit Spanje die al tientallen jaren ervaring hebben met het fokken van hoogwaardige Wagyu.

HI-RES_Broodjeszaak-Sal-Meijer_8521-1-1024×683
08
Adres
Professor J.H. Bavincklaan 5,
1183 AT Amstelveen

Sal Meyer

Koshere delicatessen sinds 1957! Begonnen op de nieuwmarkt, verhuisd naar de Scheldestraat. Vervolgens naar Buitenveldert en nu in Amstelveen. Al meer dan 60 jaar een begrip vanwege de broodjes (warm) pekelvlees, ossenworst, halfom en de viskoekjes. Eenvoudig, lekker en zelfgemaakt. Mensen rijden er voor om.

Interieur_Zuidas_24-12-2018-scaled
09
Adres
Parnassusweg 1021,
1082 LZ Amsterdam

Café Loetje Zuid As

In 1977 werd café Loetje opgericht als biljartcafé door Ludwig 'Loetje' Klinkhamer, maar het duurde niet lang voor men het biljart inruilde voor de ossenhaasbiefstuk die werd geserveerd. Meer dan veertig jaar later is Loetje een gigantische keten en is het oorspronkelijke 'Café' een begrip in Amsterdam. De smakelijke biefstuk wordt geserveerd met huisgemaakte frietjes en zwemt in verse jus - om je vingers bij af te likken!

366937812_17933803049710351_8213912525779000332_n
367438354_17933803034710351_539942877662656212_n
370936688_17935908203710351_8346539429364568324_n
10
Adres
Beethovenstraat 515,
1083 HK Amsterdam

Nela

Bij Nela vieren ze de samensmelting van live vuur koken met hoogwaardige en zorgvuldig geselecteerde ingrediënten. Ze halen en selecteren seizoensgebonden producten van gespecialiseerde partners.  Het open vuur is het perfecte gereedschap voor de chefkoks om warmte en temperatuur te gebruiken om ongelooflijke texturen en smaken te creëren. Nela is bedacht door toonaangevende chefs Hari Shetty en Ori Geller, die twee decennia ervaring hebben op het internationale podium. Na jarenlang te hebben gewerkt voor toprestaurants zoals Nobu (Londen), Yaffo-Tel Aviv, Izakaya, The Duchess en Mr. Porter (Amsterdam), bundelden ze hun krachten met de innovatieve internationale ondernemer Gilad Hayeem (Waverly Group). Samen brachten Hari, Ori en Gilad hun gedeelde visie en creativiteit tot leven door Nela op te richten.

11
Adres
Parnassusweg 400,
1081 LD Amsterdam

Vascobelo Parnassusweg

Vascobelo ontstond in 1998 in Antwerpen vanuit de familiepassie van Marc De Roeck, die opgroeide met vers gebrande koffie van zijn vader. De kracht ligt in de combinatie van Belgische koffiecultuur, langzaam gebrande blends en een herkenbare, ambachtelijke signatuur waarin kwaliteit en beleving centraal staan.

12
Adres
Gelrestraat 28,
1079 MZ Amsterdam

Restaurant Showw (*)

Eigenaren Lendl Mijnhijmer (sommelier en restaurant manager) en Dorus Floris, executive chef, voorheen Bougainville (*) openden hun eigen fine dining restaurant aan de kop van de Zuidas. Naast een 6 gangen menu is er ook de mogelijkheid om a la carte te eten. Hier wordt op hoog niveau gekookt en de uitstekende wijnkaart bevat maar liefst 750 wijnen. In 2024 ontving Showw een Michelinster, waarbij Lendl Mijnhijmer tevens werd bekroond met de Michelin Sommelier Award voor zijn uitmuntende wijnadviezen en combinaties. Het menu varieert van een 5- tot 6-gangendiner, met gerechten zoals langoustine met aardpeer, curry en koffie, en tarbot met risotto, paprika en XO-saus.

316696614_701301834540671_3708281314260770335_n
144520165_409011853732573_3822562762173474371_n
13
Adres
Europaplein 87,
1078 GZ Amsterdam

Scandinavian Embassy

Hier wordt ervaring en interesse in Scandinavisch eten en duurzaamheid geboden. Bij de Embassy traceren ze kleine, niche-leveranciers en gaan mee met de seizoenswisselingen van producten. De keuken biedt menu's voor een betaalbare prijs waarbij de gezonde en milieuvriendelijke wortels van de Scandinavische keuken behouden blijven. Bijzonder is dat ze ook koffie met eten combineren , waardoor, volgens hun zeggen, de algehele culinaire ervaring verbeterd wordt. Dit is hun tweede locatie. De ander locatie is in de Pijp gevestigd.

downloadgram.org_559642553_122125719002959277_149688819253188505_n
14
Adres
Europaplein 67,
1078 GW Amsterdam

Toet Amsterdam

Toet is het mediterraan georiënteerde restaurant van het team achter Troef, dat met deze tweede zaak een eigen draai geeft aan mediterrane en Italiaanse smaken in Zuid-Amsterdam. De eigenaren — waaronder Niels Leijssenaar, Roderick Kunst, Willem Alberts en Raymond Plat — brengen dezelfde kwaliteit en gastvrijheid als hun Troef-concept, maar dan met frisse, mediterraanse invloeden op de kaart. Je vindt hier gerechten zoals kreeft met gnocchi of pizzeta met ’nduja en rivierkreeft, die de rijke smaken van de Middellandse Zee reflecteren.

frietsteeg
15
Adres
Stadionkade 73 /A,
1076 BJ Amsterdam

De Frietsteeg

De Frietsteeg is een snackbar aan de gracht in de Stadionbuurt. Ze serveren hier heerlijke krokante frietjes en vele andere snacks. De frieten worden met de hand gesneden en je hebt keus uit meer dan 20 sauzen. Ook bijzonder: de Frietsteeg is gevestigd in een historisch huisje en er is een groot zonnig terras aan het water

Hakata-Senpachi-dsc_0680-4000PX-1024×683
16
Adres
Wielingenstraat 16,
1078 KK Amsterdam

Hakata Senpachi

Prachtig Japans eten en de lekkerste saké's; dat is Hakata Senpachi. Dit restaurant aan de Wielingenstraat bestaat al langer dan 20 jaar en heeft in al die jaren altijd haar autentieke japanse sfeer behouden. De manier waarop restaurant is ontworpen doet het lijken op een echt Japans restaurant in de steegjes van Tokyo. Hakanta Senpachi is als Yakitori-ya - gespecialiseerd in het maken van gegrilde kipspiesjes, die in Japans Yakitori worden genoemd. De spiesen worden gegrild via traditionele kookwijzen op de houtskool grill. Deze grill staat overigens in het midden van het restaurant waardoor de ruimte altijd volhangt met de lekkerste aroma's.

175682_10152206008775179_210428518_o
17
Adres
Scheldeplein 22,
1072 GJ Amsterdam

Pisa IJs

Bij deze bescheiden ijswinkel bij Amsterdam RAI ben je aan het goede adres voor heerlijk Italiaans ijs. Sinds 1935 kun je hier terecht voor ambachtelijk ijs in meer dan 60 verschillende (wisselende) smaken per seizoen. Samen met ijswinkel Venetië ietsje verderop zijn deze twee ijswinkels dé plekken om goed schepijs in Amsterdam-Zuid te halen, vandaar ook de lange rijen in de zomer, maar het wachten waard en het gaat snel!

Schermafbeelding 2022-05-18 om 15.54.00
18
Adres
Scheldeplein 4,
1078 GR Amsterdam

Visaandeschelde

Al meer dan 20 jaar een begrip in Amsterdam Zuid. Zoals ze zelf zeggen is hun culinaire passie het omtoveren van dagverse vis en seizoensproducten tot spannende en heerlijke gerechten. En daarmee is eigenlijk bijna alles al gezegd. Visaandeschelde ziet er chique uit, maar binnen is er geen te kort aan een goede portie Amsterdamse gezelligheid. Ook kan je in de zomer heerlijk op het terras zitten dat uitkijkt op het Scheldeplein.

Kunst & cultuur
19
Adres
De Boelelaan 1111,
1081 HV Amsterdam

Rialto VU

Rialto VU is de tweede locatie van het historische filmtheater Rialto (1921) en gevestigd op de VU-campus aan de Boelelaan. De kracht ligt in de combinatie van arthouse cinema, festivals en culturele programmering binnen een bredere culturele hub waar film, kunst en academie samenkomen.

20
Adres
De Boelelaan 1111,
1081 HV Amsterdam

VU ART SCIENCE gallery

De VU ART SCIENCE gallery is een universitaire galerie op de VU-campus waar kunst en wetenschap elkaar ontmoeten in tentoonstellingen en dialogen rond actuele thema’s. De kracht ligt in de multidisciplinaire uitwisseling tussen kunstenaars, onderzoekers en publiek, met een duidelijke focus op kennis, onderzoek en maatschappelijke vraagstukken.

21
Adres
Van der Boechorststraat 8,
1081 BT Amsterdam

De Botanische Tuin Zuidas

De Botanische Tuin Zuidas, ontstaan als universitaire hortus in 1967, is een verrassend groene oase midden op de VU-campus. Met duizenden plantensoorten, gespecialiseerde collecties en kronkelende paden vormt de tuin een rustige, bijna verborgen plek waar wetenschap, natuur en stedelijke dynamiek op een bijzondere manier samenkomen.

22
Adres
Hildegard Von Bingenstraat 4,
1081 LH Amsterdam

Cinema The Pulse

Cinema The Pulse is een filmtheater in de plint van The Pulse of Amsterdam op de Zuidas, met een breed programma van arthouse, cult en actuele films. De kracht ligt in de combinatie van cinema, architectuur en ontmoeting, als stedelijke filmhub waar filmbeleving en metropolitane context samenkomen.

pati_F1A7803ssdweb
_F1A4074
23
Adres
Parnassusweg 220,
1076 AV Amsterdam

Diez Gallery

Diez is een Amsterdamse kunstgalerie met een internationale uitstraling, opgericht in 2022 door Diego Diez. De tentoonstellingen worden samengesteld in samenwerking met kunstenaars die affiniteit hebben met Diez's interesses en zullen zowel internationaal als nationaal talent presenteren in Amsterdam. Naast het tentoonstellingsprogramma streeft Diez ernaar een toegankelijke ruimte te zijn voor een breed publiek met diverse activiteiten en evenementen zoals poëzielezingen, samengestelde diners en kunstenaarsgesprekken.

downloadgram.org_597897714_1508494480841935_8620457783605645660_n
24
Adres
Prinses Irenestraat 36,
1077 WX Amsterdam

De Thomas

De Thomas is een monumentale kerk aan de rand van de Zuidas waar religie en cultuur bewust samenkomen. Met een eigen theater, concerten en debatavonden is het een plek voor ontmoeting en verdieping, midden in het zakelijke hart van Amsterdam Zuid. Het gebouw geldt als een belangrijk voorbeeld van naoorlogse kerkarchitectuur in Nederland en is vormgegeven in een expressieve, brutalistische stijl.

Nicolien Kloppart kunst

Nicolien van KloppArt over kunst, lithografie en een nieuw begin

The Barns

The Barns

Een selectie van gezellige bruine café’s in Amsterdam

Een selectie van gezellige bruine café’s in Amsterdam

Onlangs bekeken
Bekijk het overzicht

Deze site maakt gebruik van cookies.

Voor welke cookies geef je akkoord?