Speels en licht appartement verdeeld over twee en een halve woonlaag van circa 112 m².  Wonen aan de grachten is voor velen een droom, dit appartement spreekt aan door de locatie, balken en de drie ramen breed aan de grachten. Het appartement is gelegen op eigen grond.

Rondleiding
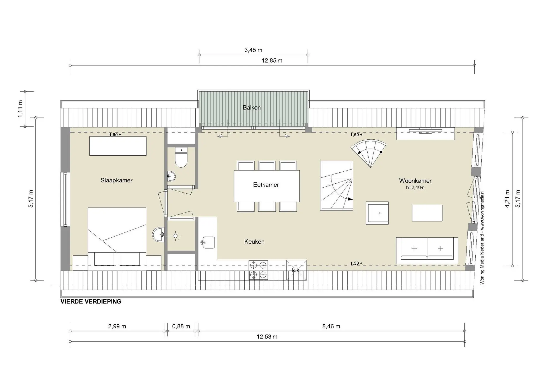
De entree van de woning begint op de tweede etage. Vanuit hier leidt het trappenhuis omhoog naar de woonverdieping op de vierde, waar de ruimte zich opent van gevel tot gevel. Aan de voorzijde kijk je uit over de Prinsengracht. De woonkamer is ruim en licht, met witgeschilderde balken en een houten vloer die warmte toevoegt. De zithoek is gericht op het uitzicht, waardoor de verbinding met buiten altijd voelbaar blijft. In het midden van de ruimte leidt een open trap naar de verdieping erboven, zonder het zicht of de openheid te onderbreken. Aan de achterzijde ligt de eetkamer, met directe toegang tot het zonnige balkon. Brede harmonicadeuren vouwen volledig open, waardoor het terras als vanzelf onderdeel wordt van de woonruimte. De keuken is ingetogen van stijl, helder vormgegeven met strakke lijnen en witte fronten. Een granieten werkblad en inbouwapparatuur maken het geheel compleet. 

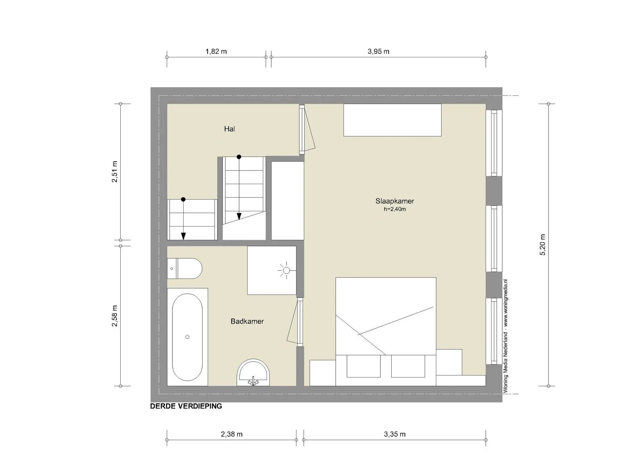
De slaapvertrekken zijn verdeeld over drie niveaus, elk met hun eigen karakter. Op de derde verdieping ligt een royale slaapkamer aan de grachtzijde, met hoge ramen en uitzicht over het water. Deze kamer biedt ruimte aan een bed, werkplek en kleedruimte, en beschikt over een eigen badkamer met ligbad, douche, toilet en wastafel.
De tweede slaapkamer ligt aan de achterzijde van de woonverdieping en is momenteel in gebruik als rustige logeer- of werkkamer. Ook deze kamer heeft een wastafelmeubel. Op dezelfde verdieping is een extra doucheruimte en een separaat toilet aanwezig — functioneel ingepast in de plattegrond.
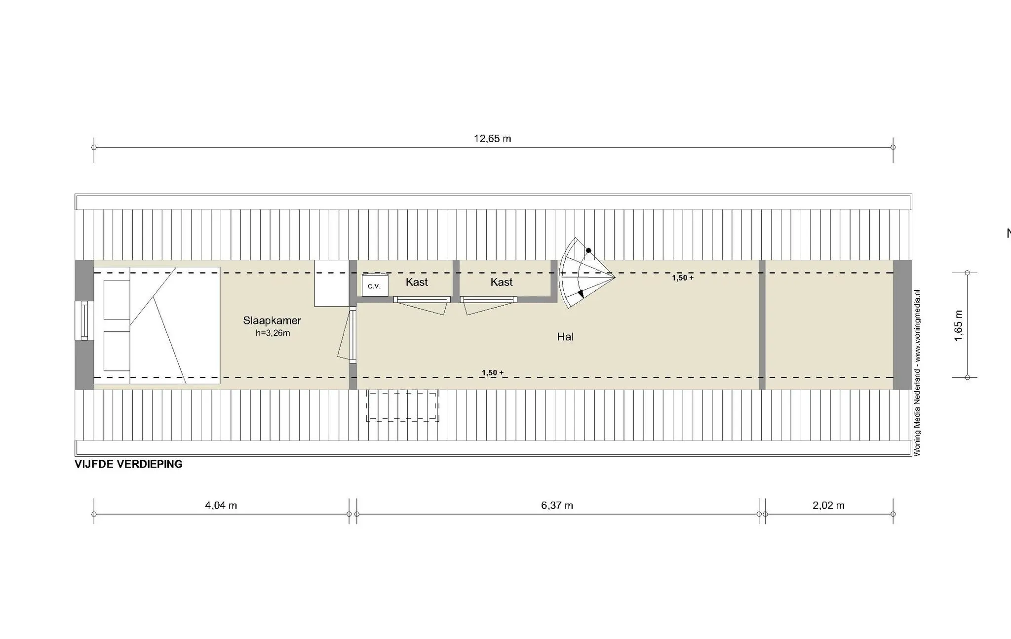
Bovenin, op de vijfde verdieping, bevindt zich een derde slaapkamer onder het schuine dak. De zichtbare spanten en de hoge nok geven de ruimte karakter. Ingebouwde kasten zorgen voor opbergruimte. Tegenover deze kamer ligt een open werkhoek op vide-niveau, met uitzicht op de verdieping eronder — een plek om je terug te trekken, zonder volledig afgesloten te zijn.

Buurtgids
De woning is gelegen in een van de meest charmante en historische buurten van Amsterdam. Deze buurt staat bekend om zijn pittoreske grachten, prachtige architectuur en levendige sfeer. Het is een plek waar geschiedenis, cultuur en hedendaagse trends naadloos samenkomen.
De Prinsengracht zelf is een van de beroemdste grachten van Amsterdam en strekt zich uit door het hart van de stad. Het is omgeven door elegante herenhuizen, sierlijke bruggen en weelderige bomen die een idyllisch decor vormen. Het uitzicht op de gracht is adembenemend en elke dag biedt nieuwe verrassingen.
De buurt rond de woning is ook de thuisbasis van vele iconische bezienswaardigheden. Een daarvan is de Westerkerk, een imposante kerk met een karakteristieke toren die hoog boven de stad uitsteekt. De kerk is niet alleen een architectonisch meesterwerk, maar heeft ook een historische betekenis, omdat de beroemde Nederlandse schilder Rembrandt van Rijn hier begraven ligt.
De omgeving biedt ook een scala aan trendy boetieks, gezellige cafés, restaurants en galeries. Wandelen door de buurt is een ervaring op zich, omdat je wordt omringd door een mix van lokale bewoners, kunstenaars, toeristen en de altijd bruisende sfeer van Amsterdam.

Bijzonderheden
•    Gebruiksoppervlakte wonen circa 112 m²
•    Balkon gelegen op het zuiden van circa 4 m²
•    Gelegen op eigen grond
•    Servicekosten VvE € 150,28 per maand
•    Funderingsherstel in de jaren ‘80
•    Berging in de onderbouw
•    Rijksmonument & Rijksbeschermd stadsgezicht
•    Onderdeel UNESCO Werelderfgoed

AM106198-2014872-Prinsengracht-403C,-Amsterdam-231987372

De lichte prins
Charmant en licht appartement verdeeld over twee en een halve woonlaag van circa 112 m², gelegen aan een van de meest geliefde grachten van Amsterdam. De ligging, de karakteristieke balkenplafonds en het uitzicht via drie brede ramen over de gracht maken deze woning tot een bijzondere woonbeleving.
De indeling omvat een royale living met open keuken, drie slaapkamers, anderhalve badkamer, een zonnig balkon en een praktische berging in de onderbouw.
Gelegen op een centrale locatie in de grachtengordel, midden in het karaktervolle gebied van de Negen Straatjes.
Het gebouw is in de jaren tachtig gerenoveerd, waarbij ook de fundering is hersteld, en vervolgens gesplitst in drie appartementen. De vereniging van eigenaars is kleinschalig maar actief; het buitenschilderwerk is circa twee jaar geleden uitgevoerd.


Judith de Jong | Makelaar Broersma Wonen
Jelle Mundt | Makelaar Broersma Wonen
AM106198-2014872-Prinsengracht-403C,-Amsterdam-231987350
Designvisie

Prinsengracht 403 C maakt deel uit van een karakteristieke rij grachtenpanden die in de loop van de 19e eeuw werden gebouwd, in een tijd waarin Amsterdam sterk groeide en de grachtengordel verder werd verdicht. Dit specifieke pand is uitgevoerd in een ingetogen neoclassicistische stijl, herkenbaar aan de strakke gevelcompositie, symmetrische raamverdeling en subtiele decoratieve elementen. De gevel is opgetrokken in warmrode baksteen met natuurstenen lijsten en een klassieke kroonlijst onder de dakrand. Deze verfijnde detaillering en materiaalkwaliteit dragen bij aan de elegante uitstraling van het pand en verankeren het stevig in de bouwtraditie van de 19e eeuw. De grote, hoge vensters zorgen niet alleen voor een overvloed aan daglicht, maar geven het pand ook een statige en open uitstraling. De diepe neggen, hardstenen dorpels en de bewerkte hijsbalk onder de kap getuigen van vakmanschap en functie: het pand was ooit deels in gebruik als woon-werkhuis, zoals gebruikelijk in deze periode. De donkere kozijnen vormen een stijlvol contrast met het lichte schilderwerk van de lijstgevel en benadrukken de verticale geleding van het pand.
De woning bevindt zich in een straatbeeld waar 19e-eeuwse grandeur en ingetogen modernisering elkaar ontmoeten. Prinsengracht 403 C ademt de historie van de grachtengordel, maar is met behoud van zijn originele karakter aangepast aan hedendaagse woonwensen. In de jaren ’80 heeft er funderingsherstel plaatsgevonden.

AM106198-2014872-Prinsengracht-403C,-Amsterdam-231987348
AM106198-2014872-Prinsengracht-403C,-Amsterdam-231987428
AM106198-2014872-Prinsengracht-403C,-Amsterdam-231987382
AM106198-2014872-Prinsengracht-403C,-Amsterdam-231987380
Wonen en koken

De entree van het appartement bevindt zich op de tweede etage.
De woonverdieping ligt op de vierde etage en strekt zich uit van gevel tot gevel, met lichtinval aan twee zijden. Aan de voorzijde opent een elegante driedelige ramenpartij zich naar het bladerdek en het water van de Prinsengracht. Het uitzicht is als een levend schilderij dat met de seizoenen mee verandert.
De living is ruim en luchtig. Witgeschilderde balken en een houten vloer voegen warmte en karakter toe. De zithoek is georiënteerd op het uitzicht, waardoor een directe verbinding met buiten behouden blijft. In het midden van de ruimte markeert een zwevende trap op subtiele wijze de overgang naar de bovenliggende verdieping, zonder het open karakter te doorbreken.
Aan de achterzijde van de living ligt de eetkamer, direct grenzend aan het balkon. Brede harmonicadeuren vouwen volledig open, waardoor het terras een vanzelfsprekend verlengstuk wordt van het interieur. De keuken is helder en ingetogen vormgegeven, met strakke lijnen, hoogglans witte fronten en een granieten werkblad. De L-vormige compositie is voorzien van diverse inbouwapparatuur.

AM106198-2014872-Prinsengracht-403C,-Amsterdam-231987374
AM106198-2014872-Prinsengracht-403C,-Amsterdam-231987412
AM106198-2014872-Prinsengracht-403C,-Amsterdam-231987438
AM106198-2014872-Prinsengracht-403C,-Amsterdam-231987402
AM106198-2014872-Prinsengracht-403C,-Amsterdam-231987396
AM106198-2014872-Prinsengracht-403C,-Amsterdam-231987392
Slapen en baden

De slaapvertrekken zijn verdeeld over drie niveaus, wat de woning een aangename gelaagdheid en dynamiek geeft. Elk vertrek heeft een eigen sfeer en functie.
Op de derde verdieping ligt aan de voorzijde een royale slaapkamer met plafondhoge ramen en prachtig zicht over de gracht. De ruimte biedt plaats aan een royaal bed, een werkhoek en een kleedgedeelte, zonder in te boeten op licht en lucht. De en-suite badkamer is functioneel ingericht met een ligbad, douche, toilet en wastafel.
De tweede slaapkamer, voorzien van een wastafelmeubel, bevindt zich aan de rustige achterzijde van de woning. Op deze verdieping bevinden zich tevens een separaat toilet en een tweede, compacte doucheruimte — zorgvuldig ingepast in de plattegrond.
Op de vijfde verdieping ligt een derde slaapkamer onder het schuine dak. De nokhoogte is indrukwekkend, met zichtbare spanten die structuur en karakter geven. Hier komt de architectuur samen met het interieur: ingetogen, verstild en perfect in balans. Ingebouwde kasten zorgen voor opbergruimte. Deze kamer is uitermate geschikt als logeer- of kinderkamer. Tegenover deze kamer ligt, op vide-niveau, een werkplek met zicht op de woonruimte beneden — een plek om je terug te trekken zonder het contact met het huis te verliezen.

AM106198-2014872-Prinsengracht-403C,-Amsterdam-231987432
AM106198-2014872-Prinsengracht-403C,-Amsterdam-231987362
AM106198-2014872-Prinsengracht-403C,-Amsterdam-231987366
AM106198-2014872-Prinsengracht-403C,-Amsterdam-231987430
AM106198-2014872-Prinsengracht-403C,-Amsterdam-231987436
AM106198-2014872-Prinsengracht-403C,-Amsterdam-231987434
De Buitenruimte

Grenzend aan de eetkamer bevindt zich een besloten buitenruimte, die aanvoelt als een intiem stadsterras. De harmonicadeuren vouwen volledig open en creëren een naadloze overgang tussen binnen en buiten. Het terras is zuidelijk georiënteerd en vangt het ochtendlicht tot in de vroege middag. Een fijne plek voor een ontbijt in de zon, een zomerse borrel of een moment van rust met een goed boek in de luwte van de stad.

AM106309-2014046-Keizersgracht-150H,-Amsterdam-230263768
AM106198-2014872-Prinsengracht-403C,-Amsterdam-231987352
AM105417-2008973-Prinsengracht-71A,-Amsterdam-229008694
Buurtgids

De woning bevindt zich in een van de meest charmante en historische buurten van Amsterdam. Deze buurt staat bekend om haar pittoreske grachten, karaktervolle architectuur en levendige sfeer. Het is een omgeving waar geschiedenis, cultuur en hedendaagse trends op natuurlijke wijze samenkomen.
De Prinsengracht is een van de bekendste grachten van de stad en slingert zich door het hart van Amsterdam. Omsloten door elegante herenhuizen, sierlijke bruggen en volwassen bomen vormt deze gracht een idyllisch decor. Het uitzicht over het water is telkens weer verrassend — een dagelijks wisselend schouwspel.
De directe omgeving herbergt diverse iconische bezienswaardigheden, waaronder de Westerkerk met haar kenmerkende toren die hoog boven de stad uittorent. De buurt biedt daarnaast een rijk aanbod aan boetieks, galeries, restaurants en cafés. Een wandeling door de wijk is een ervaring op zich — omgeven door een levendige mix van bewoners, kunstenaars, bezoekers en de typisch Amsterdamse dynamiek.
Een bijzonder moment in het jaar vormt het Prinsengrachtconcert, dat plaatsvindt op het water nabij de Westerkerk. Vanuit het appartement is daar een glimp van op te vangen vanaf de zijkant — een subtiele herinnering aan de culturele rijkdom van deze locatie.

Bereikbaarheid
De bereikbaarheid is uitstekend. Diverse tramhaltes liggen om de hoek en bieden directe verbindingen met onder andere Amsterdam Centraal, Station Zuid en De Pijp. Het metrostation Vijzelgracht (Noord/Zuidlijn) bevindt zich op vijf minuten lopen en brengt je snel naar zowel het centrum als de Zuidas.
Met de fiets zijn alle stadsdelen eenvoudig bereikbaar binnen tien minuten. Voor automobilisten zijn de Weteringschans en de Stadhouderskade belangrijke uitvalswegen richting de Ring A10.

Parkeren
Parkeren is mogelijk via een vergunningenstelsel op de openbare weg (vergunningsgebied Centrum-2e). Met een parkeervergunning voor dit gebied mag geparkeerd worden binnen Centrum-2e. De kosten voor een bewonersvergunning bedragen € 326,65 per zes maanden. Op dit moment bedraagt de geschatte wachttijd circa dertien maanden. Een tweede parkeervergunning is binnen dit gebied niet mogelijk. (Bron: Gemeente Amsterdam, juni 2025)

AM106309-2014046-Keizersgracht-150H,-Amsterdam-230263766
AM106198-2014872-Prinsengracht-403C,-Amsterdam-231987376
AM106198-2014872-Prinsengracht-403C,-Amsterdam-231987406
Kenmerken
Prinsengracht 403C, Amsterdam
Vraagprijs
  • € 980.000 k.k.
Beschikbaarheid
  • In overleg
Vertrekken
  • 4 kamers
  • 3 slaapkamers
  • 1 badkamer
Onderhoud
  • Intern: Goed
  • Extern: Goed
Oppervlakten & Inhoud
  • Woonoppervlakte: 112 m²
  • Gebouwgebonden buitenruimte: 3 m²
  • Externe bergruimte: 3 m²
Bouwjaar
  • 1781
Installaties
  • Mechanische ventilatie
  • Schuifpui
  • TV kabel
Ligging
  • Aan water
  • In centrum
Parkeren
  • Betaald parkeren
  • Parkeervergunningen
Type verwarming
  • CV Ketel
Type warmwater
  • CV Ketel
Bestemming
  • Woonruimte
Eigendomssoort
  • Volle eigendom
Buitenruimte
  • Geen tuin
  • Balkon
  • Dakterras
Kadastraal
  • Gemeente: Amsterdam
  • Sectie: E
  • Nummer: 9692
Soort
  • Appartement
  • Bovenwoning
  • Dubbel-bovenhuis
Welke woonlaag
  • 3e
Bijzonderheden
  • Beschermd stads of dorpsgezicht
  • Monument
Overige kenmerken
  • OZB ('25) € 572,96 per jaar
  • Rioolrecht ('25) € 185,20 per jaar
  • Servicekosten VvE € 150,28 per maand
  • Gelegen op eigen grond
  • Funderingsherstel in de jaren ‘80
  • Berging in de onderbouw
  • Rijksmonument & Rijksbeschermd stadsgezicht
  • Onderdeel UNESCO Werelderfgoed
Plattegrond
Prinsengracht 403C, Amsterdam
AM106198-2014872-Prinsengracht-403C,-Amsterdam-231810400
AM106198-2014872-Prinsengracht-403C,-Amsterdam-231810414
AM106198-2014872-Prinsengracht-403C,-Amsterdam-231810426
Documenten
Prinsengracht 403C, Amsterdam
Locatie
Prinsengracht 403C, Amsterdam
Interieur
269811997_4974956682516096_4977920613031829702_n
01
Adres
Prinsengracht 397,
1016 DN Amsterdam

360 volt

Gevestigd aan de Prinsengracht kun je 360volt vinden, opgericht door Hilde de Lange en Emile de Cock. 360volt heeft inmiddels een van de grootste collecties vintage originele industriële lampen en bijzondere objecten. De lampen van 360volt zijn bijzonder omdat alle lampen worden gerestaureerd, maar toch hun authentieke uitstraling behouden – industrieel, met strakke lijnen, eenvoudige vormen en van duurzame materialen.

anoukbeerents_003
02
Adres
Prinsengracht 467-BG,
1016 HP Amsterdam

Anouk Beerents

Anouk Beerents is sinds 1987 uitgegroeid tot een bekend begrip op het gebied van de import en export van antieke spiegels. Het atelier aan de Prinsengracht biedt ruimte aan hun collectie van ruim 300 spiegels uit de 18e en 19e eeuw, waarvan het merendeel zijn origine vindt in Frankrijk en Italië, en is verguld in bladgoud of bladzilver.

Eten & drinken
334769154_945169810172701_5632375530644746601_n
03
Adres
Prinsengracht 381HS,
1016 HL Amsterdam

Café Restaurant Verlan

Het voormalige pand van het bekende Envy krijgt een nieuw leven met Café Restaurant Verlan. In dit gezellige restaurant worden eigentijdse Franse à-la-carte gerechten geserveerd. Het dinermenu is de hele dag beschikbaar, terwijl de lunch tot 15:00 uur wordt geserveerd. Of je nu koffie, een uitgebreide lunch, borrelhapjes, of een diner zoekt, Verlan heeft het allemaal. Je kunt plaatsnemen aan de lange marmeren bar en de koks aan het werk zien in de open keuken. Het restaurant is geopend van woensdag tot maandag voor het diner, en op zaterdag en zondag voor de lunch.

258259290_1099450644203131_9046645986166328405_n
273169718_727311508235024_4226021460398763832_n
04
Adres
Berenstraat 8,
1016 GH Amsterdam

Chun Café

In de druk gelegen Negenstraatjes heeft Chun Café onlangs hun bubble tea menu uitgebreid met een selectie van speciale  sandwiches. De sandwiches zijn verkrijgbaar in vier smaken. De opties zijn: eiersalade, bacon ei en kaas, knoflookgarnalen ei en rib-eye bulgogi. Heerlijk boterachtig en perfect geroosterd.

image_ramen1_large-1777×1000-q75
05
Adres
Elandsgracht 2A,
1016 TV Amsterdam

Fou Fow Ramen

Vroeger was dit ramen restaurant een goed bewaard geheim dat verscholen zat in de Chinese buurt. Maar ondertussen heeft Fou Fow al twee locaties in de stad en is Fou Fow een bekende naam voor de Amsterdammer die van ramen houden. Op de gezellige en bruisende Elandsgracht eet je de overheerlijke en overigens goedgeprijsde – van origine Chineese - ramen van Fou Fow. Je kunt kiezen uit vier soorten soep op basis van verschillende bouillons en daar gaan dan vervolgens diverse ingrediënten in waaronder natuurlijk de main ingredient: noedels!

122150534_1672849526208532_3165418229905077788_n
06
Adres
Prinsengracht 341,
1016 DN Amsterdam

Koffiehuis de Hoek

Op het hoekje van de Runstraat en de Prinsengracht vind je dit klassieke Amsterdamse koffiehuis. Sinds 1954 weten veel verschillende mensen deze bijzondere plek te vinden. Op het zonnige terras kan je genieten van de drukte op de Amsterdamse grachten en binnen kan je genieten van het mooie interieur. Goede huisgemaakte taarten, pannenkoeken, omeletten en andere lekkere broodjes en uiteraard: koffie.

downloadgram.org_604217678_17883443676424172_3742355923198128651_n
07
Adres
Elandsgracht 14,
1016 TV Amsterdam

Gifu Ramen Bar

Chef en mede-eigenaar Ryoji Miyachi brengt met Gifu Ramen Bar een eerbetoon aan de Japanse ramencultuur waarin hij zelf is opgegroeid. Samen met het team achter Chun Café positioneert hij ramen als volwaardig chef-driven comfort food. De keuken draait om perfect uitgebalanceerde bouillons die urenlang worden getrokken voor maximale diepte en umami. Naast ramen serveert Gifu izakaya-achtige gerechten die de Japanse eetcultuur compleet maken. De sfeer is rustig en warm, met een minimalistisch interieur en zicht op de open keuken.

DSC08095
Scherm­afbeelding 2024-01-10 om 15.28.36
08
Adres
Reestraat 28-32,
1016 DN Amsterdam

Bussia

Een modern Italiaans restaurant én ambachtelijke bakkerij in het hart van Amsterdam. De bakkerij voorziet in knapperig zuurdesembrood, verse barista koffie en de lekkerste Italiaanse patisserie. 's Avonds vormt de bakkerij de ingang van het restaurant. De keuken van Bussia heeft een verfijnde Italiaanse kookstijl, waar ambacht en moderniteit samenkomen. Alleen de allerbeste authentieke ingrediënten vormen de basis van de keuken. Het brood, de gebak en de pasta's zijn handgemaakt. Proef de authenticiteit. Precies zoals de Italiaanse keuken bedoeld is. Geen shortcuts, alleen precisie, geduld en liefde.

09
Adres
Reestraat 8,
1016 DN Amsterdam

Restaurant Jansz

De 17e eeuwse ambachtsman Volkert Jansz: man met verfijnde smaak, goede stijl en een passie voor levendige conversaties. Hij geloofde er sterk in dat decadentie en luxe pas echt tot hun recht komen wanneer je het deelt en dat is precies hoe het ook voelt bij Jansz. Moderne-Nederlandse keuken met liefde bereid. Je kan er ook terecht voor lunch en koffie als je door de 9 straatjes aan het struinen bent.

353641879_1419939592163038_8634430788037824397_n
290397117_436247795090553_6563998570248249791_n
10
Adres
Wolvenstraat 22,
1016 EP Amsterdam

Café Wolf

Bakkerij Wolf opende al een jaar geleden haar deuren. En dan is nu daarnaast Café Wolf geopend,  waar je kunt genieten van verfrissende gerechten boordevol groenten in een prachtig Scandinavisch interieur. De gerechten zijn hier niet je standaard kost, maar bieden een unieke culinaire ervaring van hoog niveau. Het Café is geopend van dinsdag tot zondag vanaf 8:30 tot 18:00 (de keuken sluit om 17:00).

 

11
Adres
Laurierstraat 76,
1016 PN Amsterdam

Café De Laurierboom

Café De Laurierboom is al 150 jaar een authentiek buurtcafé in het hart van de Jordaan. Het heeft een gezellige en een heerlijke mix van bezoekers. Buurtbewoners, jonge creatievelingen en toeristen, maar ook voor schaakliefhebbers, waar het café bekend om staat.

12
Adres
Elandsgracht 29-31,
1016 TM Amsterdam

Rakang

Op de altijd gezellige Elandsgracht zit het Thaise restaurant Rakang. Vriendelijke bediening, prettige sfeer en heerlijk authentiek Thais eten! En volgens sommigen zelfs de lekkere Thai van Amsterdam… Of je het daar mee eens bent laten we aan jou over. Maar ben je op zoek naar een lekker, vers, aziatisch restaurant. Dan is Rakang zeker de moeite waard. En na die lekkere Thaise maaltijd biedt de Elandsgracht genoeg gelegenheid om nog een biertje drinken in een van de vele kroegen.

Vinkeles_Impression_Patio_LRS_06
Restaurant_Vinkeles_Food_LRS_13-1500×630
13
Adres
Keizersgracht 384,
1016 GB Amsterdam

Vinkeles (**)

Omsloten door hotel Dylan, is restaurant Vinkeles klein Frankrijk dichtbij huis. Met een prachtige locatie aan de Keizersgracht is het restaurant bij uitstek een chique aangelegenheid. De keuken draagt de handtekening van chef Jurgen van der Zalm die in 2023 zijn tweede ster er mee verdiende.

Katsu course
14
Adres
Hazenstraat 19H,
1016 SM Amsterdam

Men Impossible

Men Impossible is een ramen restaurant waar ze alleen maar 100% plant-based gerechten serveren. Bij Men Impossibe geloven ze in het verbeteren van de wereld door te focussen op enkel plantaardige voeding en brengen ze mensen samen met de lekkerste vegan gerechten uit de Japanse keuken. De plantaardige ramen heeft een sterke smaak maar dat maakt het zeker niet minder lekker. Door het gebruik van verse ingrediënten en umami smaken is een diner bij Men Impossible een ware smaakbeleving.

Kunst & cultuur
378423472_1305502846767633_1129165759947426315_n
378086752_667689901969156_5251451171088816529_n
15
Adres
Prinsengracht 371B,
1016 HK Amsterdam

Stevenson

De galerie werd opgericht in 2003 en wordt geleid door een collectief van 13 directeuren, waaronder Federica Angelucci, Marc Barben, Lerato Bereng, Joost Bosland, David Brodie, Sinazo Chiya, Andrew da Conceicao, Jessica Honeyman, Lanese Jaftha, Sisipho Ngodwana, Sophie Perryer, Alexander Richards en Michael Stevenson, Stevenson presenteert een internationaal tentoonstellingsprogramma met een specifieke focus op de regio's waarin haar galerijen zich bevinden, namelijk Kaapstad, Johannesburg en Amsterdam.

Installation-view-Through-Painters-Eyes-1-2000×1159
2022-08-04_RONMANDOS_133
16
Adres
Prinsengracht 282,
1016 HJ Amsterdam

Galerie Ron Mandos

Galerie Ron Mandos heeft in 20 jaar tijd een prominente plaats verworven binnen de Nederlandse kunstscene. De galerie opende haar deuren in Rotterdam in 1999 en is sinds 2010 verhuisd naar hun huidige galerie in het Amsterdamse galeriedistrict. Galerie Ron Mandos is een galerie voor hedendaagse kunst en presenteert tentoonstellingen van o.a. internationaal erkende kunstenaars maar de focus ligt op opkomende kunstenaars.

Overzicht-midden-Galerie-Bart-Krista-Jongsma
17
Adres
Elandsgracht 16,
1016 TW Amsterdam

Galerie Bart

Galerie Bart is een galerie voor hedendaagse kunst in Amsterdam met een focus op zowel gevestigde als jonge kunstenaars die in Nederland zijn afgestudeerd en uitblinken door hun vernieuwende vakmanschap. Bij Bart vind je kunstenaars die ofwel speels en fris, stevig en scherp, sereen en lichtvoetig of serieus met een vleugje humor werk maken. Zij zoeken de grenzen van hun medium op en bevragen deze, met als doel de grenzen te verleggen.

charles-avery-the-taile-of-the-one-armed-snake-2020_installation-view-7
claudia-martinez-garay-i-will-outlive-you-install-2018
18
Adres
Keizersgracht 241,
1016 EA Amsterdam

GRIMM

GRIMM werd in 2005 in Amsterdam opgericht. Sinds de oprichting heeft de galerie voor hedendaagse kunst zich toegelegd op het promoten en ondersteunen van opkomende en mid-career kunstenaars die werken in een divers scala aan media. Ze vertegenwoordigen meer dan dertig internationale kunstenaars en hebben naast hun galerie in Amsterdam ook een galerie in New York.

installation-myrto-copy-1
19
Adres
Lauriergracht 94,
1016 RN Amsterdam

Torch Gallery

Torch werd in 1984 opgericht door Adriaan van der Have als podium voor Nederlandse en internationale hedendaagse kunst. Adriaan was een van de eersten die de mogelijkheden van fotografie als kunstvorm zag. Sinds 2009, zet Adriaans zoon, Mo, zijn gedachtegoed voort en toont zo wel gevestigde kunstenaars die toonaangevend zijn in verschillende disciplines, als jongere kunstenaars die de grenzen van hun respectieve mediums blijven verleggen.

74e6adf2059221ac2dd55278be18c13b_w680
20
Adres
Keizersgracht 321,
1016 EE Amsterdam

De BorzoGallery

De BorzoGallery gelegen aan de Keizersgracht is toonaangevend op het gebied van NUL/Zero, minimalisme en conceptuele kunst. Het koppelen van het nabije verleden aan de hedendaagse kunst is een van de belangrijkste speerpunten. Zoals ze zelf zeggen: “Kunstenaars van nu ‘staan op de schouders’ van hun voorgangers, waarbij wij schrille contrasten niet schuwen.”

306981759_507603221373869_4893075116400113264_n
49178114_617962648641041_1446208182547382272_n
21
Adres
Hazenstraat 27bg,
1016 SM Amsterdam

Galerie Wouter van Leeuwen

De galerie van Wouter van Leeuwen is verstopt in de Hazenstraat in de Jordaan buurt. Als je niet op let loop je er zo langs. Maar dat zou zonde zijn, aangezien deze fotogalerie een bezoek zeker waard is! De Galerie van van Leeuwen vertegenwoordigt grote zowel internationale als nationale fotografen, met een breed scala aan kunstwerken. Foto’s van de westkust van Amerika in de jaren 70 tot aan kleurrijke natuurtaferelen van de Nederlandse wadden eilanden: bij deze galerie vind je het allemaal!

Tanja_Ritterbex_20012018_0466_670
22
Adres
Hazenstraat 11,
1016 SM Amsterdam

Althuis Hofland Fine Arts

In het historische centrum van Amsterdam bevindt zich Althuis Hofland Fine Arts. Een galerie voor iedereen met een nieuwsgierig oog, een voorliefde voor de kunst; van eerste ontmoeting, eerste aanwinsten tot kunstprofessionals. De galerie heeft een sterke focus op het medium schilderkunst en neemt ieder jaar mee aan belangrijke kunstbeurzen wereldwijd (zoals o.a. Art Brussels en NADA Miami)

PAB6852_16z24cm_300dpi-1-scaled
23
Adres
Hazenstraat 20,
1016 SP Amsterdam

Martin van Zomeren

Midden in de Jordaan ligt de galerie Martin van Zomeren. Martin van Zomeren presenteert een tal van hedendaagse kunsttentoonstellingen voornamelijk bestaand uit fotografie met een focus op conceptuele kunst. In galerie Martin van Zomeren vind je de werken van onder andere Navid Nuur, Alexandra Leykauf en Cornelius Quabeck.

installation-overview-2
24
Adres
Elandsstraat 90,
1016 SH Amsterdam

Stigter van Doesburg

Stigter van Doesburg, gevestigd in de Jordaan, toont een gevarieerd programma van hedendaagse kunst. Van schilderkunst tot performance. Sinds de oprichting in 2001 heeft de galerie zich gericht op jonge kunstenaars en hebben ze een sterke vertegenwoordiging van vrouwelijke kunstenaars.

Boodschappen
Schermafbeelding 2022-09-27 om 11.29.03
25
Adres
Wolvenstraat 22,
1016 EP Amsterdam

Bakkerij Wolf

In de negen straatjes in Amsterdam zit Bakkerij Wolf. Blijf even lekker zitten of neem wat lekkere dingen mee naar huis. Op de rustieke houtrekken achter te toonbank staan de zuurdesembroden uitgesteld. Bij deze bakker in de Wolfstraat heb je broden, croissants en gebakjes van de allerbeste kwaliteit. De geur van de kaneelbroodjes en croissants is onweerstaanbaar en je kijkt je ogen uit in de vitrine vol lekkers. Probeer absoluut de amandelcroissant en het aardbeientaartje

Samengesteld; 10 huizen met bijzondere keukens

Samengesteld; 10 huizen met bijzondere keukens

Prinseneiland buurt

Prinseneiland buurt

Uitgelicht; Garage Du Vin

Uitgelicht; Garage Du Vin

Onlangs bekeken
Bekijk het overzicht

Deze site maakt gebruik van cookies.

Voor welke cookies geef je akkoord?