Een smaakvol appartement van circa 92 vierkante meter, gelegen in het centrum van de stad. De lichte living met open keuken biedt een prettige indeling. Twee ruime slaapkamers, een badkamer met dubbele wastafel en een balkon van circa 6 vierkante meter maken het geheel compleet. Daarnaast beschikt het appartement over een berging van circa 4 vierkante meter op de begane grond. Gelegen op eigen grond, in een verzorgd complex met lift.

Rondleiding
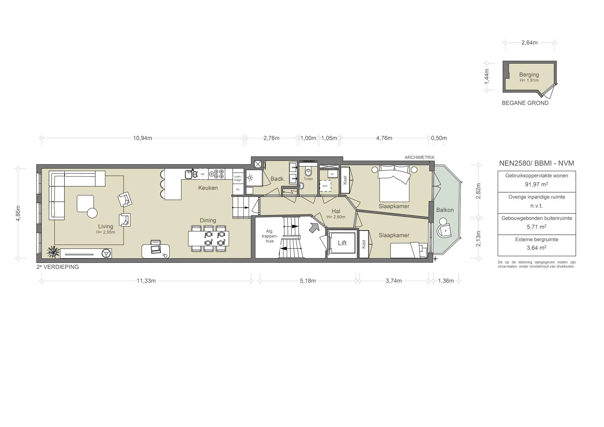
Dit lichte en ruime stadsappartement van circa 92 m² ligt op de tweede verdieping van een modern complex met lift. De royale woonkamer van ca. 45 m² biedt prachtig lichtinval door drie grote ramen aan de gracht en heeft een open keuken met plek voor een grote eettafel. Aan de rustige achterzijde bevinden zich twee goed bemeten slaapkamers met toegang tot het oostelijk gelegen balkon. De nette badkamer beschikt over een inloopdouche en dubbele wastafelmeubel; het toilet is separaat. Het balkon over de volle breedte biedt ochtendzon en uitzicht op de binnentuinen.

Buurtgids
De woning is gelegen in een van de meest charmante en historische buurten van Amsterdam. Deze buurt staat bekend om zijn pittoreske grachten, prachtige architectuur en levendige sfeer. Het is een plek waar geschiedenis, cultuur en hedendaagse trends naadloos samenkomen.
De Prinsengracht zelf is een van de beroemdste grachten van Amsterdam en strekt zich uit door het hart van de stad. Het is omgeven door elegante herenhuizen, sierlijke bruggen en weelderige bomen die een idyllisch decor vormen. Het uitzicht op de gracht is adembenemend en elke dag biedt nieuwe verrassingen.
De buurt rond de woning is ook de thuisbasis van vele iconische bezienswaardigheden. Een daarvan is de Westerkerk, een imposante kerk met een karakteristieke toren die hoog boven de stad uitsteekt. De kerk is niet alleen een architectonisch meesterwerk, maar heeft ook een historische betekenis, omdat de beroemde Nederlandse schilder Rembrandt van Rijn hier begraven ligt.
De omgeving biedt ook een scala aan trendy boetieks, gezellige cafés, restaurants en galeries. Wandelen door de buurt is een ervaring op zich, omdat je wordt omringd door een mix van lokale bewoners, kunstenaars, toeristen en de altijd bruisende sfeer van Amsterdam.

Bijzonderheden
•    Gebruiksoppervlakte wonen circa 92 m²
•    Prachtig grachtenzicht, hoge plafonds en een balkon op het oosten
•    Gelegen op eigen grond
•    Complex met lift en aparte berging in de onderbouw
•    Energielabel B
•    Herbouwd in 2006
•    Servicekosten VvE € 169,00 per maand
•    Rijksbeschermd stadsgezicht en Onderdeel UNESCO Werelderfgoed

AM106171-1988432-Prinsengracht-379C,-Amsterdam-226654602

De Prins van Laurier
Een bijzonder appartement met een royaal uitzicht, een lift en een opvallend hoge, lichte woonkamer—een combinatie die zelden te vinden is. De huidige eigenaren, al geruime tijd woonachtig in het buitenland, bieden het nu met pijn in het hart te koop aan. De ligging, schuin tegenover de Lauriergracht, geeft het appartement iets zeldzaams: een open blik over de stad en een gevoel van ruimte dat ongewoon is in de binnenstad. De voorzijde ligt op het westen, waardoor het middaglicht rijk naar binnen valt en het zonlicht tot in de avond aanwezig blijft. Geen wonder dat afscheid nemen hier moeilijk is.


Otte van Apeldoorn | Makelaar Broersma Wonen
Ronald van de Bijl | Makelaar Broersma Wonen
AM106171-1988432-Prinsengracht-379C,-Amsterdam-226654612
Designvisie

Prinsengracht 379 C kent een rijke geschiedenis, waarin het gebouw zich door de jaren heen heeft aangepast aan verschillende functies en architectonische stijlen. De oorspronkelijke, gotisch aandoende pui met twee deuren en een poort heeft meerdere transformaties ondergaan, waarvan de laatste in 2004 werd gerealiseerd.
Het pand huisvestte vanaf circa 1910 de lederfabriek Adler & Oppenheimer, een onderneming die zich specialiseerde in leerbewerking en handel. In de vroege jaren 1920 maakte de fabriek plaats voor het magazijn en kantoor van de specerijen- en conservenhandel van Herman Gosschalk, die hier tot circa 1956 actief was. Opvallend is dat Gosschalk via krantenadvertenties geregeld op zoek was naar ‘nette meisjes’ voor het inpakken van puddingpoeder, wat een beeld schetst van de arbeidsdynamiek in die tijd.
Bij het ontwerp en de herontwikkeling van het pand is rekening gehouden met deze historische lagen. De designvisie richt zich op een balans tussen respect voor het verleden en een hedendaagse interpretatie van het karakteristieke uiterlijk. De gotische invloeden van de oorspronkelijke pui zijn subtiel verwerkt in de esthetiek, terwijl moderne materialen en technieken zorgen voor duurzaamheid en functionaliteit. Door zorgvuldig kleur- en materiaalgebruik is een harmonie gecreëerd tussen de historische uitstraling en de behoeften van een eigentijdse woon- of werkruimte.
Prinsengracht 379 C is daarmee een voorbeeld van hoe een gebouw met een gelaagde geschiedenis opnieuw betekenis krijgt, zonder zijn verleden uit het oog te verliezen.

AM106171-1988432-Prinsengracht-379C,-Amsterdam-226654652
AM106171-1988432-Prinsengracht-379C,-Amsterdam-226654800
AM106171-1988432-Prinsengracht-379C,-Amsterdam-226654652
AM106171-1988432-Prinsengracht-379C,-Amsterdam-226654702
Wonen en koken

Een courant en licht stadsappartement in een modern complex met lift. Op de tweede verdieping is de entree van dit ruim opgezette appartement. Het heeft een imposante woonkamer van circa 45 m² met prachtig lichtinval. Een mooie houten vloer, de drie grote ramen aan de gracht en de royale hoogte van bijna 3 meter. De open keuken is modern en praktisch en is opgesteld in een hoekopstelling. Doordat het één ruimte is met de woonkamer is er voldoende ruimte voor een grote eettafel om gezellig aan te eten.

AM106171-1988432-Prinsengracht-379C,-Amsterdam-226654684
AM106171-1988432-Prinsengracht-379C,-Amsterdam-226654716
AM106171-1988432-Prinsengracht-379C,-Amsterdam-226654694
AM106171-1988432-Prinsengracht-379C,-Amsterdam-226654792
AM106171-1988432-Prinsengracht-379C,-Amsterdam-226654728
AM106171-1988432-Prinsengracht-379C,-Amsterdam-226654740
Slapen en baden

Aan de rustige achterzijde bevinden zich twee slaapkamers, beide goed van formaat en met toegang tot het balkon. De slaapkamers maken gebruik van de centraal gelegen badkamer, voorzien van een inloopdouche en een dubbel wastafelmeubel. De betegeling is verzorgd, uitgevoerd in een rustige kleurstelling. Het toilet is separaat en beschikt over een fonteintje.

AM106171-1988432-Prinsengracht-379C,-Amsterdam-226654752
AM106171-1988432-Prinsengracht-379C,-Amsterdam-226654776
AM106171-1988432-Prinsengracht-379C,-Amsterdam-226654770
AM106171-1988432-Prinsengracht-379C,-Amsterdam-226654734
AM106171-1988432-Prinsengracht-379C,-Amsterdam-226654816
AM106171-1988432-Prinsengracht-379C,-Amsterdam-226654806
AM106171-1988432-Prinsengracht-379C,-Amsterdam-226654830
Het balkon

Het appartement beschikt over een balkon dat over de volle breedte aan de achterzijde van het gebouw ligt en op het oosten is gericht, wat betekent dat je kunt genieten van de ochtendzon.

AM106171-1988432-Prinsengracht-379C,-Amsterdam-226654836
AM106171-1988432-Prinsengracht-379C,-Amsterdam-226654626
AM106171-1988432-Prinsengracht-379C,-Amsterdam-226654642
Buurtgids

De woning ligt in een van de meest charmante en historische buurten van Amsterdam, bekend om zijn sfeervolle grachten, fraaie architectuur en levendige ambiance. De Prinsengracht, waar de woning zich aan bevindt, is een van de bekendste grachten van de stad, omringd door statige panden, bruggen en groen.
In de directe omgeving vind je iconische bezienswaardigheden zoals de Westerkerk, waar schilder Rembrandt van Rijn begraven ligt. Daarnaast zijn er volop trendy winkels, gezellige cafés, restaurants en galeries. De buurt ademt een unieke mix van historie, cultuur en stedelijke energie.

Bereikbaarheid
Het appartement is uitstekend bereikbaar met de fiets, auto en het openbaar vervoer. De Ring A10 is binnen 10 autominuten te bereiken via de afslag S105 of S106. Vanaf het Leidseplein vertrekken meerdere tram- en buslijnen, waaronder tram 1, 2, 5, 12 en 19, terwijl vanaf de Elandsgracht tram 5, 7, 13 en 19 beschikbaar zijn. Daarnaast biedt de Elandsgracht toegang tot streekvervoer met een directe verbinding naar Luchthaven Schiphol. Fietsers kunnen binnen 5 minuten Amsterdam Centraal bereiken. Ook de rest van de stad is door de centrale locatie goed met de fiets te bereiken.

Parkeergelegenheid
Parkeren is mogelijk via een vergunningenstelsel op de openbare weg (vergunningsgebied Centrum-2e). Met een parkeervergunning voor Centrum-2e mag u parkeren in Centrum-2e.
Een parkeervergunning voor bewoners kost € 326,65 per 6 maanden.
Momenteel is er voor dit vergunningsgebied een wachttijd van 13 maanden. Een tweede parkeervergunning is in dit gebied niet mogelijk. (Bron: Gemeente Amsterdam, mei 2025).

AM106171-1988432-Prinsengracht-379C,-Amsterdam-226654722
AM106171-1988432-Prinsengracht-379C,-Amsterdam-226654674
AM106171-1988432-Prinsengracht-379C,-Amsterdam-226654668
Kenmerken
Prinsengracht 379C, Amsterdam
Vraagprijs
  • € 960.000 k.k.
Beschikbaarheid
  • In overleg
Vertrekken
  • 3 kamers
  • 2 slaapkamers
  • 1 badkamer
Onderhoud
  • Intern: Goed
  • Extern: Goed
Oppervlakten & Inhoud
  • Woonoppervlakte: 92 m²
  • Gebouwgebonden buitenruimte: 6 m²
  • Externe bergruimte: 4 m²
Bouwjaar
  • 2006
Installaties
  • Lift
  • Mechanische ventilatie
  • TV kabel
Ligging
  • Aan water
  • In centrum
Parkeren
  • Betaald parkeren
  • Parkeervergunningen
Schuur/Berging Voorzieningen
  • Voorzien van elektra
Type verwarming
  • CV Ketel
Type warmwater
  • CV Ketel
Bestemming
  • Woonruimte
Eigendomssoort
  • Volle eigendom
Buitenruimte
  • Geen tuin
  • Balkon
Kadastraal
  • Gemeente: Amsterdam
  • Sectie: E
  • Nummer: 10626
Duurzaamheid
  • Dubbel glas
  • Energielabel B
Soort
  • Appartement
  • Tussenverdieping
Welke woonlaag
  • 3e
Overige kenmerken
  • OZB ('25) € 511,22 per jaar
  • Rioolrecht ('25) € 185,20 per jaar
  • Servicekosten VvE € 169,00 per maand
  • Gelegen op eigen grond
Plattegrond
Prinsengracht 379C, Amsterdam
AM106171-1988432-Prinsengracht-379C,-Amsterdam-227171302
Documenten
Prinsengracht 379C, Amsterdam
Locatie
Prinsengracht 379C, Amsterdam
Eten & drinken
334769154_945169810172701_5632375530644746601_n
01
Adres
Prinsengracht 381HS,
1016 HL Amsterdam

Café Restaurant Verlan

Het voormalige pand van het bekende Envy krijgt een nieuw leven met Café Restaurant Verlan. In dit gezellige restaurant worden eigentijdse Franse à-la-carte gerechten geserveerd. Het dinermenu is de hele dag beschikbaar, terwijl de lunch tot 15:00 uur wordt geserveerd. Of je nu koffie, een uitgebreide lunch, borrelhapjes, of een diner zoekt, Verlan heeft het allemaal. Je kunt plaatsnemen aan de lange marmeren bar en de koks aan het werk zien in de open keuken. Het restaurant is geopend van woensdag tot maandag voor het diner, en op zaterdag en zondag voor de lunch.

122150534_1672849526208532_3165418229905077788_n
02
Adres
Prinsengracht 341,
1016 DN Amsterdam

Koffiehuis de Hoek

Op het hoekje van de Runstraat en de Prinsengracht vind je dit klassieke Amsterdamse koffiehuis. Sinds 1954 weten veel verschillende mensen deze bijzondere plek te vinden. Op het zonnige terras kan je genieten van de drukte op de Amsterdamse grachten en binnen kan je genieten van het mooie interieur. Goede huisgemaakte taarten, pannenkoeken, omeletten en andere lekkere broodjes en uiteraard: koffie.

DSC08095
Scherm­afbeelding 2024-01-10 om 15.28.36
03
Adres
Reestraat 28-32,
1016 DN Amsterdam

Bussia

Een modern Italiaans restaurant én ambachtelijke bakkerij in het hart van Amsterdam. De bakkerij voorziet in knapperig zuurdesembrood, verse barista koffie en de lekkerste Italiaanse patisserie. 's Avonds vormt de bakkerij de ingang van het restaurant. De keuken van Bussia heeft een verfijnde Italiaanse kookstijl, waar ambacht en moderniteit samenkomen. Alleen de allerbeste authentieke ingrediënten vormen de basis van de keuken. Het brood, de gebak en de pasta's zijn handgemaakt. Proef de authenticiteit. Precies zoals de Italiaanse keuken bedoeld is. Geen shortcuts, alleen precisie, geduld en liefde.

04
Adres
Reestraat 8,
1016 DN Amsterdam

Restaurant Jansz

De 17e eeuwse ambachtsman Volkert Jansz: man met verfijnde smaak, goede stijl en een passie voor levendige conversaties. Hij geloofde er sterk in dat decadentie en luxe pas echt tot hun recht komen wanneer je het deelt en dat is precies hoe het ook voelt bij Jansz. Moderne-Nederlandse keuken met liefde bereid. Je kan er ook terecht voor lunch en koffie als je door de 9 straatjes aan het struinen bent.

258259290_1099450644203131_9046645986166328405_n
273169718_727311508235024_4226021460398763832_n
05
Adres
Berenstraat 8,
1016 GH Amsterdam

Chun Café

In de druk gelegen Negenstraatjes heeft Chun Café onlangs hun bubble tea menu uitgebreid met een selectie van speciale  sandwiches. De sandwiches zijn verkrijgbaar in vier smaken. De opties zijn: eiersalade, bacon ei en kaas, knoflookgarnalen ei en rib-eye bulgogi. Heerlijk boterachtig en perfect geroosterd.

image_ramen1_large-1777×1000-q75
06
Adres
Elandsgracht 2A,
1016 TV Amsterdam

Fou Fow Ramen

Vroeger was dit ramen restaurant een goed bewaard geheim dat verscholen zat in de Chinese buurt. Maar ondertussen heeft Fou Fow al twee locaties in de stad en is Fou Fow een bekende naam voor de Amsterdammer die van ramen houden. Op de gezellige en bruisende Elandsgracht eet je de overheerlijke en overigens goedgeprijsde – van origine Chineese - ramen van Fou Fow. Je kunt kiezen uit vier soorten soep op basis van verschillende bouillons en daar gaan dan vervolgens diverse ingrediënten in waaronder natuurlijk de main ingredient: noedels!

07
Adres
Laurierstraat 76,
1016 PN Amsterdam

Café De Laurierboom

Café De Laurierboom is al 150 jaar een authentiek buurtcafé in het hart van de Jordaan. Het heeft een gezellige en een heerlijke mix van bezoekers. Buurtbewoners, jonge creatievelingen en toeristen, maar ook voor schaakliefhebbers, waar het café bekend om staat.

downloadgram.org_604217678_17883443676424172_3742355923198128651_n
08
Adres
Elandsgracht 14,
1016 TV Amsterdam

Gifu Ramen Bar

Chef en mede-eigenaar Ryoji Miyachi brengt met Gifu Ramen Bar een eerbetoon aan de Japanse ramencultuur waarin hij zelf is opgegroeid. Samen met het team achter Chun Café positioneert hij ramen als volwaardig chef-driven comfort food. De keuken draait om perfect uitgebalanceerde bouillons die urenlang worden getrokken voor maximale diepte en umami. Naast ramen serveert Gifu izakaya-achtige gerechten die de Japanse eetcultuur compleet maken. De sfeer is rustig en warm, met een minimalistisch interieur en zicht op de open keuken.

353641879_1419939592163038_8634430788037824397_n
290397117_436247795090553_6563998570248249791_n
09
Adres
Wolvenstraat 22,
1016 EP Amsterdam

Café Wolf

Bakkerij Wolf opende al een jaar geleden haar deuren. En dan is nu daarnaast Café Wolf geopend,  waar je kunt genieten van verfrissende gerechten boordevol groenten in een prachtig Scandinavisch interieur. De gerechten zijn hier niet je standaard kost, maar bieden een unieke culinaire ervaring van hoog niveau. Het Café is geopend van dinsdag tot zondag vanaf 8:30 tot 18:00 (de keuken sluit om 17:00).

 

Katsu course
10
Adres
Hazenstraat 19H,
1016 SM Amsterdam

Men Impossible

Men Impossible is een ramen restaurant waar ze alleen maar 100% plant-based gerechten serveren. Bij Men Impossibe geloven ze in het verbeteren van de wereld door te focussen op enkel plantaardige voeding en brengen ze mensen samen met de lekkerste vegan gerechten uit de Japanse keuken. De plantaardige ramen heeft een sterke smaak maar dat maakt het zeker niet minder lekker. Door het gebruik van verse ingrediënten en umami smaken is een diner bij Men Impossible een ware smaakbeleving.

11
Adres
Elandsgracht 29-31,
1016 TM Amsterdam

Rakang

Op de altijd gezellige Elandsgracht zit het Thaise restaurant Rakang. Vriendelijke bediening, prettige sfeer en heerlijk authentiek Thais eten! En volgens sommigen zelfs de lekkere Thai van Amsterdam… Of je het daar mee eens bent laten we aan jou over. Maar ben je op zoek naar een lekker, vers, aziatisch restaurant. Dan is Rakang zeker de moeite waard. En na die lekkere Thaise maaltijd biedt de Elandsgracht genoeg gelegenheid om nog een biertje drinken in een van de vele kroegen.

Interieur
269811997_4974956682516096_4977920613031829702_n
12
Adres
Prinsengracht 397,
1016 DN Amsterdam

360 volt

Gevestigd aan de Prinsengracht kun je 360volt vinden, opgericht door Hilde de Lange en Emile de Cock. 360volt heeft inmiddels een van de grootste collecties vintage originele industriële lampen en bijzondere objecten. De lampen van 360volt zijn bijzonder omdat alle lampen worden gerestaureerd, maar toch hun authentieke uitstraling behouden – industrieel, met strakke lijnen, eenvoudige vormen en van duurzame materialen.

anoukbeerents_003
13
Adres
Prinsengracht 467-BG,
1016 HP Amsterdam

Anouk Beerents

Anouk Beerents is sinds 1987 uitgegroeid tot een bekend begrip op het gebied van de import en export van antieke spiegels. Het atelier aan de Prinsengracht biedt ruimte aan hun collectie van ruim 300 spiegels uit de 18e en 19e eeuw, waarvan het merendeel zijn origine vindt in Frankrijk en Italië, en is verguld in bladgoud of bladzilver.

Kunst & cultuur
378423472_1305502846767633_1129165759947426315_n
378086752_667689901969156_5251451171088816529_n
14
Adres
Prinsengracht 371B,
1016 HK Amsterdam

Stevenson

De galerie werd opgericht in 2003 en wordt geleid door een collectief van 13 directeuren, waaronder Federica Angelucci, Marc Barben, Lerato Bereng, Joost Bosland, David Brodie, Sinazo Chiya, Andrew da Conceicao, Jessica Honeyman, Lanese Jaftha, Sisipho Ngodwana, Sophie Perryer, Alexander Richards en Michael Stevenson, Stevenson presenteert een internationaal tentoonstellingsprogramma met een specifieke focus op de regio's waarin haar galerijen zich bevinden, namelijk Kaapstad, Johannesburg en Amsterdam.

Installation-view-Through-Painters-Eyes-1-2000×1159
2022-08-04_RONMANDOS_133
15
Adres
Prinsengracht 282,
1016 HJ Amsterdam

Galerie Ron Mandos

Galerie Ron Mandos heeft in 20 jaar tijd een prominente plaats verworven binnen de Nederlandse kunstscene. De galerie opende haar deuren in Rotterdam in 1999 en is sinds 2010 verhuisd naar hun huidige galerie in het Amsterdamse galeriedistrict. Galerie Ron Mandos is een galerie voor hedendaagse kunst en presenteert tentoonstellingen van o.a. internationaal erkende kunstenaars maar de focus ligt op opkomende kunstenaars.

charles-avery-the-taile-of-the-one-armed-snake-2020_installation-view-7
claudia-martinez-garay-i-will-outlive-you-install-2018
16
Adres
Keizersgracht 241,
1016 EA Amsterdam

GRIMM

GRIMM werd in 2005 in Amsterdam opgericht. Sinds de oprichting heeft de galerie voor hedendaagse kunst zich toegelegd op het promoten en ondersteunen van opkomende en mid-career kunstenaars die werken in een divers scala aan media. Ze vertegenwoordigen meer dan dertig internationale kunstenaars en hebben naast hun galerie in Amsterdam ook een galerie in New York.

Overzicht-midden-Galerie-Bart-Krista-Jongsma
17
Adres
Elandsgracht 16,
1016 TW Amsterdam

Galerie Bart

Galerie Bart is een galerie voor hedendaagse kunst in Amsterdam met een focus op zowel gevestigde als jonge kunstenaars die in Nederland zijn afgestudeerd en uitblinken door hun vernieuwende vakmanschap. Bij Bart vind je kunstenaars die ofwel speels en fris, stevig en scherp, sereen en lichtvoetig of serieus met een vleugje humor werk maken. Zij zoeken de grenzen van hun medium op en bevragen deze, met als doel de grenzen te verleggen.

installation-myrto-copy-1
18
Adres
Lauriergracht 94,
1016 RN Amsterdam

Torch Gallery

Torch werd in 1984 opgericht door Adriaan van der Have als podium voor Nederlandse en internationale hedendaagse kunst. Adriaan was een van de eersten die de mogelijkheden van fotografie als kunstvorm zag. Sinds 2009, zet Adriaans zoon, Mo, zijn gedachtegoed voort en toont zo wel gevestigde kunstenaars die toonaangevend zijn in verschillende disciplines, als jongere kunstenaars die de grenzen van hun respectieve mediums blijven verleggen.

21-of-the-most-beautiful-drawings-schoonhoven-peeters-install-kaldenbach-9
19
Adres
Herengracht 254A,
1016 BV Amsterdam

The Merchant House

The Merchant House werd opgericht door Marsha Plotnitsky en is gevestigd in een zeventiende-eeuws grachtenpand. Het is een kunstruimte en galerie die hedendaagse kunst presenteert om te ontdekken, te verkennen en te verzamelen. De galerie belichaamt een eigentijdse benadering van de tradities die de stad en de kunst met elkaar verbinden. Sinds de lancering van het programma in 2013 heeft Plotnitsky meer dan dertig thematische projecten samengesteld, waarbij ze samenwerkt met kunstenaars om plaatsgebonden installaties, opdrachtwerk en nieuw werk te creëren dat aansluit bij het karakteristieke grachtenpand en andere ruimtes.

20
Adres
Eerste Rozendwarsstraat,
1016 PC Amsterdam

Radar

Radar Architecture and Art is een project van Marco di Piaggi. Di Piaggi richtte deze galerie op in 2008 met een kleine groep vrienden als een plek waar excentrieke kunstenaars en architecten hun werk kunnen delen. Di Piaggi is altijd al een liefhebber geweest van avant garde kunstvormen en underground muziek en in deze galerie nodigt hij bezoekers uit om kennis te maken met de kunst die zelfstandig is van de hedendaagse trends. Radar Architecture and Art heeft ook een eigen webshop of Society6 waar je prints en accessoires kan kopen van de tentoongestelde werken.

Tanja_Ritterbex_20012018_0466_670
21
Adres
Hazenstraat 11,
1016 SM Amsterdam

Althuis Hofland Fine Arts

In het historische centrum van Amsterdam bevindt zich Althuis Hofland Fine Arts. Een galerie voor iedereen met een nieuwsgierig oog, een voorliefde voor de kunst; van eerste ontmoeting, eerste aanwinsten tot kunstprofessionals. De galerie heeft een sterke focus op het medium schilderkunst en neemt ieder jaar mee aan belangrijke kunstbeurzen wereldwijd (zoals o.a. Art Brussels en NADA Miami)

306981759_507603221373869_4893075116400113264_n
49178114_617962648641041_1446208182547382272_n
22
Adres
Hazenstraat 27bg,
1016 SM Amsterdam

Galerie Wouter van Leeuwen

De galerie van Wouter van Leeuwen is verstopt in de Hazenstraat in de Jordaan buurt. Als je niet op let loop je er zo langs. Maar dat zou zonde zijn, aangezien deze fotogalerie een bezoek zeker waard is! De Galerie van van Leeuwen vertegenwoordigt grote zowel internationale als nationale fotografen, met een breed scala aan kunstwerken. Foto’s van de westkust van Amerika in de jaren 70 tot aan kleurrijke natuurtaferelen van de Nederlandse wadden eilanden: bij deze galerie vind je het allemaal!

74e6adf2059221ac2dd55278be18c13b_w680
23
Adres
Keizersgracht 321,
1016 EE Amsterdam

De BorzoGallery

De BorzoGallery gelegen aan de Keizersgracht is toonaangevend op het gebied van NUL/Zero, minimalisme en conceptuele kunst. Het koppelen van het nabije verleden aan de hedendaagse kunst is een van de belangrijkste speerpunten. Zoals ze zelf zeggen: “Kunstenaars van nu ‘staan op de schouders’ van hun voorgangers, waarbij wij schrille contrasten niet schuwen.”

PAB6852_16z24cm_300dpi-1-scaled
24
Adres
Hazenstraat 20,
1016 SP Amsterdam

Martin van Zomeren

Midden in de Jordaan ligt de galerie Martin van Zomeren. Martin van Zomeren presenteert een tal van hedendaagse kunsttentoonstellingen voornamelijk bestaand uit fotografie met een focus op conceptuele kunst. In galerie Martin van Zomeren vind je de werken van onder andere Navid Nuur, Alexandra Leykauf en Cornelius Quabeck.

Boodschappen
Schermafbeelding 2022-09-27 om 11.29.03
25
Adres
Wolvenstraat 22,
1016 EP Amsterdam

Bakkerij Wolf

In de negen straatjes in Amsterdam zit Bakkerij Wolf. Blijf even lekker zitten of neem wat lekkere dingen mee naar huis. Op de rustieke houtrekken achter te toonbank staan de zuurdesembroden uitgesteld. Bij deze bakker in de Wolfstraat heb je broden, croissants en gebakjes van de allerbeste kwaliteit. De geur van de kaneelbroodjes en croissants is onweerstaanbaar en je kijkt je ogen uit in de vitrine vol lekkers. Probeer absoluut de amandelcroissant en het aardbeientaartje

Uitgelicht; De Stad Minden, grandeur op de Keizersgracht 81H

Uitgelicht; De Stad Minden, grandeur op de Keizersgracht 81H

Duurzaam met de tijd mee – een huis dat leeft, groeit en bewaart

Duurzaam met de tijd mee – een huis dat leeft, groeit en bewaart

Een bron van inspiratie in Bergen Noord Holland

Een bron van inspiratie in Bergen Noord Holland

Onlangs bekeken
Bekijk het overzicht

Deze site maakt gebruik van cookies.

Voor welke cookies geef je akkoord?