Het appartement van circa 106 m² aan de Pieter de Hoochstraat 5 G maakt deel uit van het residentiële complex ‘De Wending’. Deze woning voelt als een rustige basis in het hart van de stad. Hier ervaar je het comfort van gelijkvloers wonen mét lift, buitenruimte en een praktische indeling. Binnen stap je in een open, lichte ruimte met directe toegang tot een groen terras. Buiten ligt alles wat Amsterdam aantrekkelijk maakt: cultuur, architectuur, gastronomie en beweging. Een plek waar je thuiskomt in de stad – met ruimte om te leven, te werken en te ontspannen, zonder in te leveren op locatie of rust.

Rondleiding
Aan de achterzijde van de woning vormen de woonkamer, eetkamer en keuken één open geheel. Brede raampartijen zorgen voor veel daglicht en uitzicht op het omringende groen. Een grote schuifpui verbindt het leefgedeelte direct met het terras. De ruimte is overzichtelijk, goed in te delen en biedt plek aan een grote eettafel zonder aan rust in te boeten. De zithoek is logisch geplaatst richting het terras, waardoor binnen en buiten vloeiend in elkaar overlopen. De keuken sluit visueel aan bij het interieur en is praktisch opgezet, met voldoende werk- en kastruimte. Het open karakter zorgt voor een fijne, functionele leefruimte die past bij het dagelijks gebruik. Aan de voorzijde liggen twee slaapkamers met een rustige uitstraling en prettige lichtinval. De grootste kamer biedt ruim plaats aan een tweepersoonsbed en is voorzien van veel kastruimte. De tweede kamer is compacter, ideaal als logeer- of werkkamer. De badkamer is uitgevoerd in een neutrale stijl, met een ruime inloopdouche, ligbad en dubbele wastafel. De afwerking is verzorgd en ingetogen, in lijn met de rest van het appartement. Dankzij de centrale ligging zijn beide slaapkamers goed bereikbaar. Aan de oostzijde grenst een breed, halfrond balkon aan de woonkamer. De schuifpui zorgt voor veel lichtinval en directe toegang. Het is een beschutte plek met uitzicht, maar zonder inkijk – ideaal voor een rustige ochtend met koffie en krant. Er is ruimte voor een zitje, zonder dat het balkon aan rust verliest. Een buitenruimte die meebeweegt met het ritme van de dag. Tevens is er een ruimte berging wat zorgt voor extra opbergruimte.

Buurtgids
De woning is gelegen in het Museumkwartier. Deze buurt staat bekend om zijn prachtige 19e-eeuwse architectuur, gezellige cafés, exclusieve winkels en toonaangevende musea. Het Museumplein, het Vondelpark en de historische grachten zijn allemaal op loopafstand van de Pieter de Hoochstraat. Een van de meest opvallende bezienswaardigheden in de buurt is het Rijksmuseum, een van de beroemdste musea ter wereld en de thuisbasis van vele beroemde werken van Nederlandse meesters zoals Rembrandt en Vermeer. Het Van Gogh Museum, met ’s werelds grootste collectie schilderijen van Vincent van Gogh, ligt ook in de buurt van de woning. Naast musea zijn er tal van winkels, variërend van kleine boetieks tot internationale luxemerken. De P.C. Hooftstraat, de beroemdste winkelstraat van Amsterdam, ligt op slechts een paar minuten loopafstand van de Nicolaas Maesstraat en biedt een breed scala aan high-end mode- en designerwinkels. Voor liefhebbers van lekker eten en drinken zijn er tal van restaurants, cafés en bars in de buurt. Het aanbod is uitgebreid: van authentieke Nederlandse gerechten en internationale specialiteiten tot gezellige kroegen, er is voor elk wat wils. Voor de dagelijkse boodschappen is er een ruim aanbod aan kwaliteitswinkels, onder andere aan de Van Baerlestraat en Beethovenstraat. Elke zaterdag is er een charmante biologische markt bij de Jacob Obrechtstraat. Ook de gezellige Pijp, met onder andere de beroemde Albert Cuypmarkt, is op loopafstand, evenals het Vondelpark, het Sarphatipark en het centrum van de stad.

Bijzonderheden
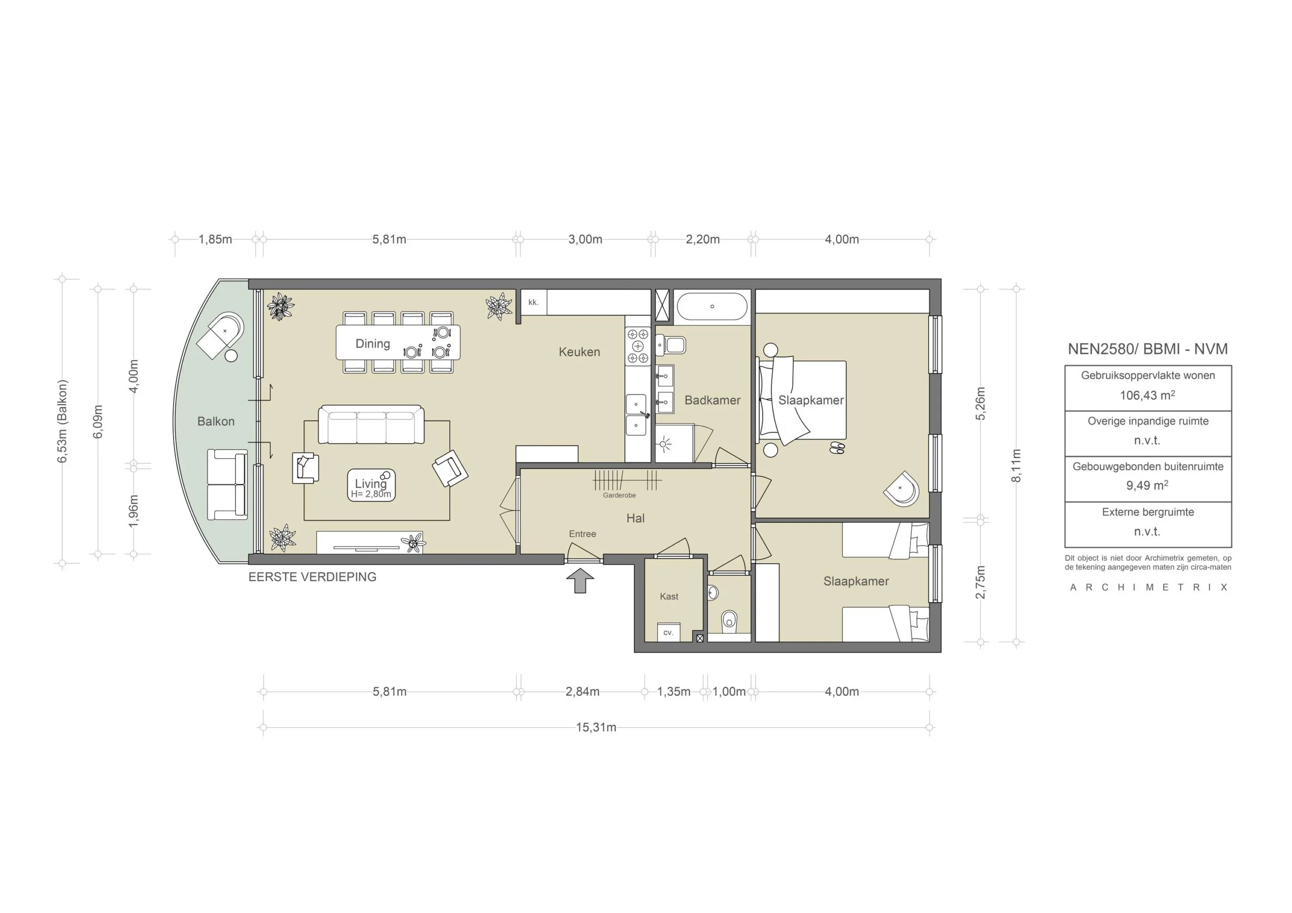
•    Gebruiksoppervlakte wonen circa 106 m²
•    Balkon gelegen op het oosten van circa 9 m²
•    Gelegen op erfpachtgrond van Gemeente Amsterdam. De erfpacht is eeuwigdurend afgekocht.
•    Energielabel C
•    Servicekosten VvE € 274,08 per maand
•    Gemeentelijk beschermd stadsgezicht

AM106270-2025470-Pieter-de-Hoochstraat-5G,-Amsterdam-236239252

Urban Comfort
Deze woning voelt als een rustige basis in het hart van de stad. Binnen stap je een open, lichte ruimte binnen, met directe toegang tot een groen terras. Buiten vind je alles wat Amsterdam zo aantrekkelijk maakt: cultuur, architectuur, gastronomie en dynamiek. In het complex ‘De Wending’ (1996) ervaar je het comfort van gelijkvloers wonen, mét lift, buitenruimte en een praktische indeling. Geen concessies aan gemak, geen overdaad. Precies in balans. Voor mij staat deze woning voor Urban Comfort: een plek waar je thuiskomt in de stad – met ruimte om te leven, te werken en te ontspannen, zonder in te leveren op locatie of rust.


Jelle Mundt | Makelaar Broersma Wonen
Kees Kemp | Makelaar Broersma Wonen
AM106270-2025470-Pieter-de-Hoochstraat-5G,-Amsterdam-236239018
Designvisie

Het appartement maakt deel uit van het residentiële complex ‘De Wending’, gebouwd in 1996. Dit kleinschalige ensemble aan de Pieter de Hoochstraat is opgezet met aandacht voor licht, leefruimte en een functionele indeling — geheel in lijn met de woonvisie van zijn tijd. De woning is volledig gelijkvloers en heeft een heldere plattegrond, waarbij het leefgedeelte aan de achterzijde ligt. Hier komen wonen, koken en eten samen in één open ruimte, grenzend aan een royaal terras. Brede openslaande deuren zorgen voor een directe verbinding met buiten, zonder expliciete zichtlijnen maar mét een natuurlijke lichtinval gedurende de dag. De keuken is centraal gesitueerd en vormt de schakel tussen het actieve woondeel en de meer besloten slaapvertrekken aan de straatzijde. Een plafondhoogte van 2,80 meter versterkt het open en uitgebalanceerde karakter. Het appartement is bereikbaar per lift en combineert daarmee de voordelen van gelijkvloers wonen met een hoog niveau van comfort. De architectuur ademt de ingetogen helderheid van de jaren negentig: licht, overzichtelijk en aangenaam in gebruik.

AM106270-2025470-Pieter-de-Hoochstraat-5G,-Amsterdam-236239006
AM106270-2025470-Pieter-de-Hoochstraat-5G,-Amsterdam-236239274
AM106270-2025470-Pieter-de-Hoochstraat-5G,-Amsterdam-236239246
AM106270-2025470-Pieter-de-Hoochstraat-5G,-Amsterdam-236239184
Wonen en koken

De woonkamer, eetkamer en keuken vormen één open geheel aan de achterzijde van de woning. Brede raampartijen zorgen voor veel daglicht en uitzicht op het omringende groen. Een grote schuifpui verbindt het leefgedeelte direct met het terras. De ruimte is overzichtelijk en goed in te delen. De eethoek biedt plaats aan een grote tafel, zonder dat het geheel aan rust verliest. De zithoek is logisch gepositioneerd richting het terras, waardoor binnen en buiten naadloos op elkaar aansluiten. De keuken is praktisch opgezet en sluit visueel aan bij het interieur. De opstelling biedt voldoende werk- en kastruimte en past goed bij het open karakter van de woning. Zo ontstaat een leefruimte die functioneel is in gebruik en prettig aanvoelt in het dagelijks ritme.

AM106270-2025470-Pieter-de-Hoochstraat-5G,-Amsterdam-236239166
AM106270-2025470-Pieter-de-Hoochstraat-5G,-Amsterdam-236239292
AM106270-2025470-Pieter-de-Hoochstraat-5G,-Amsterdam-236239280
AM106270-2025470-Pieter-de-Hoochstraat-5G,-Amsterdam-236239262
AM106270-2025470-Pieter-de-Hoochstraat-5G,-Amsterdam-236239344
AM106270-2025470-Pieter-de-Hoochstraat-5G,-Amsterdam-236239304
AM106270-2025470-Pieter-de-Hoochstraat-5G,-Amsterdam-236239314
Slapen en baden

Aan de voorzijde van het appartement liggen twee slaapkamers, beide met een rustige uitstraling en een goede lichtinval. De grootste kamer biedt royaal plaats aan een tweepersoonsbed en is voorzien van veel kastruimte. De tweede kamer is compacter, maar leent zich uitstekend als logeer- of werkkamer. De badkamer is uitgevoerd in een neutrale kleurstelling en praktisch ingedeeld. Een ruime inloopdouche, een ligbad en een dubbele wastafel bieden comfort voor dagelijks gebruik. De afwerking is ingetogen en verzorgd, passend bij de rest van het appartement. Dankzij de centrale ligging in de woning zijn beide slaapkamers eenvoudig bereikbaar.

AM106270-2025470-Pieter-de-Hoochstraat-5G,-Amsterdam-236239326
AM106270-2025470-Pieter-de-Hoochstraat-5G,-Amsterdam-236239384
AM106270-2025470-Pieter-de-Hoochstraat-5G,-Amsterdam-236239360
AM106270-2025470-Pieter-de-Hoochstraat-5G,-Amsterdam-236239368
AM106270-2025470-Pieter-de-Hoochstraat-5G,-Amsterdam-236239216
AM106270-2025470-Pieter-de-Hoochstraat-5G,-Amsterdam-236239212
AM106270-2025470-Pieter-de-Hoochstraat-5G,-Amsterdam-236239224
Het balkon

Aan de oostzijde van het appartement ligt een breed, halfrond balkon — direct grenzend aan de woonkamer. Een grote schuifpui opent naar buiten wat zorgt voor veel licht. De perfecte plek in de ochtend voor koffie, een krant, wat groen. De ronding zorgt voor een open, beschutte opzet. Er is uitzicht, maar geen inkijk. Ruimte genoeg voor een tafel en stoelen, zonder dat het balkon zijn rust verliest. Deze buitenruimte sluit moeiteloos aan op het ritme van de dag.

 

AM106270-2025470-Pieter-de-Hoochstraat-5G,-Amsterdam-236239204
AM106270-2025470-Pieter-de-Hoochstraat-5G,-Amsterdam-236239230
AM106270-2025470-Pieter-de-Hoochstraat-5G,-Amsterdam-236239120
AM106270-2025470-Pieter-de-Hoochstraat-5G,-Amsterdam-236239252
AM106270-2025470-Pieter-de-Hoochstraat-5G,-Amsterdam-236239128

De woning is gelegen in het Museumkwartier. Deze buurt staat bekend om zijn prachtige 19e-eeuwse architectuur, gezellige cafés, exclusieve winkels en toonaangevende musea. Het Museumplein, het Vondelpark en de historische grachten zijn allemaal op loopafstand van de Pieter de Hoochstraat. Een van de meest opvallende bezienswaardigheden in de buurt is het Rijksmuseum, een van de beroemdste musea ter wereld en de thuisbasis van vele beroemde werken van Nederlandse meesters zoals Rembrandt en Vermeer. Het Van Gogh Museum, met ’s werelds grootste collectie schilderijen van Vincent van Gogh, ligt ook in de buurt van de woning. Naast musea zijn er tal van winkels, variërend van kleine boetieks tot internationale luxemerken. De P.C. Hooftstraat, de beroemdste winkelstraat van Amsterdam, ligt op slechts een paar minuten loopafstand van de Nicolaas Maesstraat en biedt een breed scala aan high-end mode- en designerwinkels. Voor liefhebbers van lekker eten en drinken zijn er tal van restaurants, cafés en bars in de buurt. Het aanbod is uitgebreid: van authentieke Nederlandse gerechten en internationale specialiteiten tot gezellige kroegen, er is voor elk wat wils. Voor de dagelijkse boodschappen is er een ruim aanbod aan kwaliteitswinkels, onder andere aan de Van Baerlestraat en Beethovenstraat. Elke zaterdag is er een charmante biologische markt bij de Jacob Obrechtstraat. Ook de gezellige Pijp, met onder andere de beroemde Albert Cuypmarkt, is op loopafstand, evenals het Vondelpark, het Sarphatipark en het centrum van de stad.

Bereikbaarheid
De woning is gemakkelijk te bereiken met het openbaar vervoer, de fiets, te voet en met de auto. De halte voor het openbaar vervoer ligt op loopafstand. De tram- en bushalte op het Museumplein is ongeveer 3 minuten lopen. Met de fiets is het mogelijk om binnen enkele minuten het centrum te bereiken. De woning is ook goed bereikbaar met de auto. Er zijn verschillende uitvalswegen in de buurt, zoals de A10, de ringweg van Amsterdam, die verbinding biedt naar de rest van Nederland.

Parkeergelegenheid
Parkeren is mogelijk via een vergunningenstelsel op de openbare weg (vergunningsgebied Zuid 8.1). Met een parkeervergunning voor dit gebied mag u parkeren in Zuid-1, Zuid-2 en Zuid-8. Een parkeervergunning voor bewoners kost € 192,81 per 6 maanden. Momenteel is er voor dit vergunningsgebied een wachttijd van 6 maanden. Een tweede parkeervergunning is in dit gebied niet mogelijk. (Bron: Gemeente Amsterdam, augustus 2025).

AM106270-2025470-Pieter-de-Hoochstraat-5G,-Amsterdam-236239352
AM106270-2025470-Pieter-de-Hoochstraat-5G,-Amsterdam-236239190
AM106270-2025470-Pieter-de-Hoochstraat-5G,-Amsterdam-236239158
Kenmerken
Pieter de Hoochstraat 5G, Amsterdam
Vraagprijs
  • € 985.000 k.k.
Beschikbaarheid
  • In overleg
Vertrekken
  • 3 kamers
  • 2 slaapkamers
  • 1 badkamer
Onderhoud
  • Intern: Goed
  • Extern: Goed
Oppervlakten & Inhoud
  • Woonoppervlakte: 106 m²
  • Gebouwgebonden buitenruimte: 9 m²
Bouwjaar
  • 1996
Installaties
  • Natuurlijke ventilatie
  • Schuifpui
  • TV kabel
Ligging
  • Aan rustige weg
  • In woonwijk
Parkeren
  • Betaald parkeren
  • Parkeervergunningen
Type verwarming
  • CV Ketel
Type warmwater
  • CV Ketel
Bestemming
  • Woonruimte
Eigendomssoort
  • Eigendom belast met erfpacht
Buitenruimte
  • Geen tuin
  • Balkon
Kadastraal
  • Gemeente: Amsterdam
  • Sectie: R
  • Nummer: 6502
Duurzaamheid
  • Dubbel glas
  • Energielabel C
Soort
  • Appartement
  • Bovenwoning
Welke woonlaag
  • 2e
Bijzonderheden
  • Beschermd stads of dorpsgezicht
Overige kenmerken
  • OZB ('25) € 573,54 per jaar
  • Rioolrecht ('25) € 185,20 per jaar
  • Servicekosten VvE € XXX per maand
Plattegrond
Pieter de Hoochstraat 5G, Amsterdam
AM106270-2025470-Pieter-de-Hoochstraat-5G,-Amsterdam-242860730
Documenten
Pieter de Hoochstraat 5G, Amsterdam
Locatie
Pieter de Hoochstraat 5G, Amsterdam
Eten & drinken
344794704_172401005427383_4729904843469609369_n
347634872_1412020886212625_495521124589363058_n
01
Adres
Frans Halsstraat 28,
1072 BS Amsterdam

Café Caron

Café Caron werd geboren uit de inspiratie van Alain en Roeltje thuis. Hun zonen Tom en David wilden een restaurant beginnen dat aanvoelde alsof je aan hun eigen eettafel zat, waar top gerechten zonder poespas in een huiselijke setting werden geserveerd. De menukaart is compact en wisselt naargelang het aanbod van het seizoen. De wijnkaart is stevig geworteld in Frankrijk. Inmiddels is het familiebedrijf uitgegroeid tot 4 zaken.

Schermafbeelding 2022-10-05 om 14.40.44
02
Adres
Saenredamstraat 37,
1072 CB Amsterdam

La Dilettante

Eigenaren Olivier von Grumbkow en Hans Vervoort openden de deuren van La Dilettante. La Dilettante is open voor lunch en wijn. Bij de natuurwijnen worden hapjes geserveerd als quiches, tarte tatins, patés en rillettes. Een van die natuurwijnen die de mannen schenken heet La dilettante. Dat is niet de enige verklaring voor de gekozen naam. Het woord heeft verschillende betekenissen. Een daarvan is: iemand die iets doet uit liefhebberij.

Schermafbeelding 2022-06-20 om 13.58.14
Schermafbeelding 2022-06-20 om 13.58.34
03
Adres
Frans Halsstraat 76 HS,
1072 BV Amsterdam

Maris Piper Brasserie

Het begrip brasserie vindt zijn oorsprong in de Elzas en serveert over het algemeen wat luxere gerechten dan een bistro. De Breda Group heeft met Maris Piper is een eigentijdse versie neergezet. Hier kun je traditionele vis- en schelpdierengerechten, vlees en seizoensfavorieten bestellen. Denk aan Denk aan oesters, artichoke en piepkuiken.Wil je je laten verrassen, dan kan je kiezen voor de Chef's Table, een dertiengangenmenu dat veranderd per seizoen. Voor een gezellige sfeer en een goed gevuld bord is dit restaurant in De Pijp zeker het bezoeken waard.

07892ef9-8e75-41cd-986e-cb8a3b027027
04
Adres
Museumstraat 2,
1071 XX Amsterdam

Rijks (*)

In het Rijks heeft Joris Bijdendijk de culinaire smaak van het Rijksmuseum op de kaart gezet. Hij werkt voornamelijk met ingrediënten van eigen bodem. Proef vooral zijn signatuur-gerecht, een millefeuille van fijne vellen rode biet met een beurre blanc die is opgewekt met sojasaus van Tomasu en frisse peterselie-olie. Vergeet ook niet een kijkje te nemen op de overheerlijke wijnkaart die is samengesteld door sommelier Isabelle Chow.

Bisous-001-24-05-by-RVDA-DSC_0270
05
Adres
Albert Cuypstraat 31,
1072 LZ Amsterdam

Bisous

Een 'over de top interieur' van Jean-Philippe Demeyer (Architectural Digest AD100 architect) gecombineerd met een uitstekende keuken waarvan ze zelf zeggen 'A sumptuous French – Zeeland cuisine'.  Een goed voorbeeld hiervan zijn de Zeelandse kokkels in een room witte wijnsaus afgemaakt met Pasris en peterselie. Bisou!

image04-1
06
Adres
Ruysdaelstraat 25,
1071 WZ Amsterdam

Breadwinner Too

Breadwinner Bagels werd opgericht door Jon Fairclough, die zijn liefde voor ambachtelijk bakken vertaalde naar handgerolde zuurdesem-bagels met een eigen signatuur. Wat begon in de Jordaan groeide uit tot een geliefd concept met meerdere locaties, waaronder deze vestiging in De Pijp. In de keuken draait het om natuurlijke ingrediënten en dagelijks versgebakken bagels, gecombineerd met creatieve en klassieke toppings.

Schermafbeelding 2022-06-20 om 13.47.57
Schermafbeelding 2022-06-20 om 13.49.19
07
Adres
Johannes Vermeerstraat 52,
1071 DT Amsterdam

Café Loetje

In 1977 werd café Loetje opgericht als biljartcafé door Ludwig 'Loetje' Klinkhamer, maar het duurde niet lang voor men het biljart inruilde voor de ossenhaasbiefstuk die werd geserveerd. Meer dan veertig jaar later is Loetje een gigantische keten en is het oorspronkelijke 'Café' een begrip in Amsterdam. De smakelijke biefstuk wordt geserveerd met huisgemaakte frietjes en zwemt in verse jus - om je vingers bij af te likken!

72369503_2440972226192232_6382862125353664512_n
08
Adres
Ferdinand Bolstraat 12,
1072 LJ Amsterdam

Bardak

Bardak verplaatst Mediterraans Manhattan naar Amsterdam. In dit restaurant serveren ze de lekkerste soorten streetfood uit Tel Aviv. Naast heerlijke gerechten zoals gefrituurde bloemkool en crunchy falafel, maken ze hier ook spannende vintage cocktails met namen zoals Chili Cucumber Margarita en Sweet Bliss. Verse ingrediënten zijn key en ook de warme zomerse sfeer van het Midden Oosten mag niet ontbreken. Bardak is een een pareltje waar je kan genieten in Tel Aviv style.

273217385_628333881829822_6168734948118851788_n
09
Adres
Ferdinand Bolstraat 10,
1072 LJ Amsterdam

Kaasbar Amsterdam

Bij Kaasbar Amsterdam krijg je kaas (joh) vooraf, kaas als hoofdgerecht, kaas on the side én kaas als dessert. Er is zelfs kaasijs! Alle producten die hier verkocht worden zijn uit Nederland. Ook leuk, voor de vegans zijn er ook diverse opties vegan kaas. Aan de bar kan je een lopende band met verschillende kaasjes voorbij zien komen.

image00029_compressed
101845496_271380147566071_7180259268128407552_n
10
Adres
Ferdinand Bolstraat 36 H,
1072 LK Amsterdam

Takumi Ramen Kitchen

Takumi is het zuster Restaurant Umaimon ramen op het Leidseplein. Het restaurant is intiem met uitstekend vriendelijke bediening. Takumi biedt een klein, maar heerlijk aanbod. Je hebt de keuze uit shio (zout), shoyu (soyasaus) of miso ramen met gevarieerde toppings en smaken.

 

53700300_311590863045393_1981039547722498048_n
Schermafbeelding 2022-06-20 om 13.29.38
11
Adres
Albert Cuypstraat 20H,
1072 CT Amsterdam

Sababa

De eigenaar van Sababa wilde goede, perfecte falafel. Ze zijn verschillende combinaties gaan uitproberen, producten gaan proeven en zo ontstond hun perfecte falafel broodje. Geïnspireerd op de Israëlische keuken, heerlijk voor een snelle hap of om uitgebreid te eten met een biertje erbij.

275790806_542543747084575_7206843501789032588_n
12
Adres
Ferdinand Bolstraat 13-15,
1072 LA Amsterdam

Soju bar

Bij Soju Bar kun je genieten van heerlijk knapperige Korean Fried Chicken. Naast de Fried Chicken bieden ze ook andere Koreaanse gerechten aan en natuurlijk de befaamde Soju. Bij Soju bar kun je genieten van Korean Fried Chicken en dit wegspoelen met bier en Soju, een Koreaanse borrel die vergelijkbaar is met sake in Japan. Soju wordt meestal gemaakt van rijst en is een gedestilleerde drank die verrassend lekker is om te drinken. Als je je avond echt op z'n Koreaans wilt beginnen, bestel dan een sojubomb, een soort 'kopstootje' maar dan met soju in plaats van jenever.

339816079_240302538447892_8075740380035601622_n
13
Adres
Van Baerlestraat 47-49,
1071 AP Amsterdam

L'Entrecôte et les Dames

L’Entrecôte et les Dames omarmt het concept van een formule-restaurant, zoals de Fransen het noemen. Binnen een sfeervol ingerichte Franse brasserie staat de entrecôte centraal, altijd met een lichte 'bleu' bereiding van het Maas-Rijn-IJsel rund. Dit wordt geserveerd met frietjes en een verfrissende salade. Als je hierna nog trek hebt krijg je nog een keer een portie opgediend. Liever geen vlees? Als alternatief serveren zij in roomboter gebakken sliptong met ravigottesaus. Zelfde formule en zelfde prijs als het entrecôte menu.

downloadgram.org_610617586_18420032773136397_3224401437205912253_n
14
Adres
Van Baerlestraat 51,
1071 BJ Amsterdam

Esh Pitabar

Esh Pitabar is het nieuwe hoofdstuk van broers Ilan en Joël Benamara, die eerder sinds 2015 Café Martinot runden tot het pand in 2022 noodgedwongen moest sluiten vanwege funderingsherstel. Na een succesvolle crowdfunding besloten ze hun zaak opnieuw op te bouwen, dit keer met meer ruimte voor hun Israëlische roots en inspiratie uit Tel Aviv. Chef Ilan Benamara staat zelf in de keuken en bewaakt een simpele maar duidelijke regel: alles is huisgemaakt, van de hummus tot het pitabrood. Op de kaart vind je streetfood zoals pita falafel, hummus met warme kikkererwten en verse pizza’s, precies zoals je ze in Israël ook zou eten.

437922501_1117156876006867_728206199129953616_n
15
Adres
Albert Cuypstraat 58-60,
1072 CV Amsterdam

Auberge Amsterdam

De eigenaren van onder andere 212 (**), de Juwelier (*) en Bistro de la Mer (*) waren zelf een fervent bezoeker van voorheen Auberge jean & Marie. Nu zetten zij de Auberge traditie voort op deze zelfde plek. Voor 38 euro eet je hier een uitstekend 3 gangen menu.

335969_460774987275260_2002095946_o
16
Adres
Ferdinand Bolstraat 74,
1072 LM Amsterdam

Toko Ramee

Midden op de Ferdinandbolstraat vind je Toko Ramee. Zoals al vermeld staat op de buitenkant van de toko is er een scala aan authentieke Indonesische en Aziatische producten. Het is een toko die aansluit op het familiare gevoel van de traditionele Indische en Chinees-Indische keuken, waar er voor iedereen iets te vinden valt. De toko is gevuld met geïmporteerde hapjes en drankjes en ook met kookgerei om zelf dingen thuis te maken. Van een complete rijsttafel tot huisgemaakt spekkoek: Toko Ramee neemt je maar al te graag mee in het proces om een heerlijke maaltijd samen te stellen. Mocht dat niet genoeg reden zijn om naar de toko toe te komen, vrees niet – toko Ramee heeft ook een catering service paraat!

Schermafbeelding 2022-06-20 om 14.04.47
17
Adres
Ferdinand Bolstraat 37,
1072 LB Amsterdam

Onigiri YA!

De meeste mensen die door de Pijp struinen voor Japans komen niet veel verder dan het denken aan sushi en bubble tea (ook al komt dit oorspronkelijk uit Taiwan). Bij Onigri Ya staat dan ook specifiek op de deur vermeld dat deze items hier niet te koop zijn. In plaats daarvan is Onigri Ya een authentiek Japans restaurant en daarnaast ook een kruideniers- en delicatessenwinkel. Zoals verwacht zijn de Onigri’s een specialiteit: gekruide Japanse rijstballen in verschillende vormen, bedekt met nori en met vullingen van vis tot fruit. Voor eenieder die wel eens naar animé kijkt, Onigri Ya brengt het voedsel wat eenieder zo doet watertanden van het beeldscherm naar een lief klein winkeltje in de Pijp. Simpelweg een must-go.

491415080_17861354841388437_2472288904698911980_n
18
Adres
Museumplein 10,
1071 DJ Amsterdam

Sandberg

Café Restaurant Sandberg is genoemd naar Willem Sandberg, de vernieuwende oud-directeur van het Stedelijk Museum, een naam die meteen iets zegt over de ambities achter dit restaurant. Het is opgezet door dezelfde jonge Amsterdamse horecaondernemers die ook achter Entrepot en Metro zitten. Overdag werkt de bakkerij samen met de keuken voor zoet bij de koffie, broodjes om mee te nemen of juist een uitgebreide lunch.  Voor het diner sluiten de gordijnen en serveert het jonge team creatieve, maar herkenbare en klassieke gerechten.

Kunst & cultuur
c153afe5-3697-4974-a057-290d46de1ffb
19
Adres
Museumplein 6,
1071 DJ Amsterdam

Van Goghmuseum

In het Van Goghmuseum aan het museumplein vind je de mooiste werken van bekend Nederlands schilder Vincent van Gogh. Het museum heeft een vaste collectie met de meesterwerken van Van Gogh en een wisselende expositie waar werken worden getoond van zowel tijdsgenoten als hedendaagse kunstenaars. In het museum zijn tentoonstellingen geweest van onder andere David Hockney en Maurice Denis. Naast het tonen van kunst voert het Van Goghmuseum ook onderzoek uit over Vincent van Gogh en zijn tijd. Op de website van het museum kun je veel informatie vinden over de uitgevoerde onderzoeksprojecten en restauraties. Het museum is erg populair, met name onder de internationale toeristen, om teleurstelling en lange rijen te voorkomen is het handig om van te voren online al tickets te bestellen.

DSC03870edit4x5
20
Adres
Honthorststraat 20,
1071 DE Amsterdam

Moco

Het Moco museum (Modern Contemporary museum) is één van de nieuwste musea aan het Museumplein. Dit museum is opgericht in 2016 en heeft ook een vestiging in Barcelona. Het Moco museum is een onafhankelijk museum dat stukken toont van onder andere Banksy en Yayoi Kusama. Het Moco museum richt zich op hedendaagse kunst, zoals (post)moderne beeldende kunst en straatkunst. In Amsterdam is het Moco museum gevestigd in Villa Alsberg. Het pand uit 1904 is ontworpen door Edward Cuypers, de neef van de architect van het Rijksmuseum en was een van de eerste particuliere villa's op het museumplein.

Museumkwartier
21
Adres
Museumstraat 1,
1071 XX Amsterdam

Rijksmuseum

De architect, Pierre Cuypers, had voor het Rijksmuseum een ontwerp in historische stijl gemaakt, een mengeling van gotiek en renaissance en vol van vaderlandse symboliek. Na jarenlang gedoe - velen vonden het te middeleeuws, te katholiek en te weinig écht Nederlands – startte de bouw in 1876. In 1885 werd het officieel geopend. Naast de bestaande collectie kwamen bijna alle oudere schilderijen van de Stad Amsterdam in het Rijksmuseum te hangen, zoals Rembrandts Joodse bruidje die de bankier A. van der Hoop aan de stad had nagelaten. Ook kwam er kunst uit Haarlem, kreeg een deel van het Kabinet van Zeldzaamheden een vaste plek en het prentenkabinet een eigen ruimte. Een waardige collectie, in een schitterend gebouw.
Bij de laatste renovatie (2003-2013) kreeg het gebouw de oorspronkelijke structuur van Cuypers terug. Het gebouw is gemoderniseerd maar is tegelijkertijd van binnen weer meer het gebouw van Cuypers geworden, in al z’n grandeur. Schilderkunst, kunstnijverheid en geschiedenis zijn niet meer in aparte delen van het gebouw te zien. Alles vormt samen één chronologisch verhaal: het verhaal over de Nederlandse kunst en geschiedenis, van de Middeleeuwen tot en met de 20e eeuw.

Boodschappen
downloadgram.org_608197557_17886555126421954_6843272127401052487_n
22
Adres
Saenredamstraat 32,
1072 CH Amsterdam

Layers Bakery

Layers is een bakery en deli in Amsterdam, opgericht door de Franse patissier Alexandre Scour, die zijn vakmanschap vertaalt naar een plek waar alles laag voor laag wordt opgebouwd. In de ochtenden draait boven het open pastry lab op volle toeren met boterige croissants, viennoiserie en patisserie die volledig in huis worden gemaakt. In de middag verplaatst de aandacht zich naar beneden, waar de deli verse sandwiches serveert met dezelfde toewijding aan kwaliteit en detail. Het concept draait om ambacht zonder opsmuk, met eten dat precies en met aandacht is bereid.

86970959_3017388671613224_8101255914595549184_n
23
Adres
Van Baerlestraat 67,
1071 AR Amsterdam

Renzo’s Delicatessen

Bij Renzo’s Delicatessen draait het om huisgemaakte, culinaire en Italiaanse producten. Alle gerechten worden hier dagvers gemaakt. Naast Renzo’s klassiekers is er ook een variërend menu. Voor de een is Renzo’s een buurtwinkel en voor de ander een plek om te lunchen of dineren. Je kan er ook terecht voor boodschappen, een Italiaanse meeneem menu of  een broodje. En dan vooral het broodje Dino: rundergehakt of warme kippendijen met de beruchte dinosaus, zonnemayo, rucola en zongedroogde tomaatjes.

Interieur
Pasted Graphic
24
Adres
Gerard Doustraat 54,
1072 VT Amsterdam

Duikelman

In het hart van De Pijp vind je Duikelman, al sinds 1940 dé kookwinkel van Amsterdam. Van espressomachines tot Japanse messen – elke kok, professioneel of thuis, raakt hier geïnspireerd. De speciaalzaken op de Ferdinand Bolstraat en Gerard Doustraat vormen samen een culinair walhalla. Hier proef je niet alleen kwaliteit, maar ook vakmanschap. Een must voor wie koken als ambacht ziet.

277535791_5208467215858783_4051211327754731278_n
274469633_5110110329027806_2507568570523403675_n
25
Adres
Van Baerlestraat 39-43,
1071 AP Amsterdam

Cosentino

Cosentino Group is een wereldwijd bekend Spaans familiebedrijf dat hoogwaardige innovatieve oppervlakken produceert en distribueert voor de wereld van design en architectuur. Aan de Van Baerlestraat bevindt zich hun inspiratiecentrum waar men kleuren, materialen en toepassingen voor architectuur en designprojecten met elkaar kan vergelijken. Cosentino City biedt een uitgebreid inspiratieplatform waar architecten en ontwerpers elkaar kunnen ontmoeten en kunnen werken.

De Franse keuken in Amsterdam; een selectie van restaurants, epiceries, patisseries en brasseries

De Franse keuken in Amsterdam; een selectie van restaurants, epiceries, patisseries en brasseries

Kunstagenda juli 2025

Kunstagenda juli 2025

Oost, een selectie van fijne plekken rondom de Indische buurt

Oost, een selectie van fijne plekken rondom de Indische buurt

Onlangs bekeken
Bekijk het overzicht

Deze site maakt gebruik van cookies.

Voor welke cookies geef je akkoord?