PG 12 - Smaakvolle en perfect ingedeelde benedenwoning van circa 75 m² met zonnige achtertuin op het westen.

In de Piet Gijzenbrugstraat ligt deze lichte en zeer goed onderhouden 3-kamerappartement gelegen op eigen grond. Een rustige straat in een gezellige buurt, Hoofddorppleinbuurt. Het gebouw heeft de vertrouwde jaren ’30 uitstraling en intern voldoet het aan het hedendaagse comfort. De keuze van materialen en kleuren geven dit appartement eenheid en een rustige uitstraling.

Architectuur
De Piet Gijzenbrugstraat is een brede, rustige straat met mooie bomen. De buurt is gebouwd in de 30-er jaren van de vorige eeuw en wordt gekenmerkt door de speciale bouwstijl met vele erkers en variatie van gebouwen in de mooie omliggende straten.

Buurtgids
Gelegen in een rustige buurt in Amsterdam Oud-Zuid op loopafstand van het Vondelpark en Hoofddorpplein. In de omgeving zijn veel leuke restaurants en gezellige cafés o.a. Lokaal van de stad, Drovers Dog, Vascobello, Van Mechelen op de Sloterkade en Nana’s Coffee op het Hoofddorpplein. In de Zeilstraat en op het Hoofddorpplein zijn diverse delicatessenwinkels en biedt een breed scala aan voorzieningen. Het wonen in de Hoofddorppleinbuurt geeft een dorpsachtig gevoel en toch dichtbij de dynamiek van Zuid, Zuidas en West.

Bijzonderheden

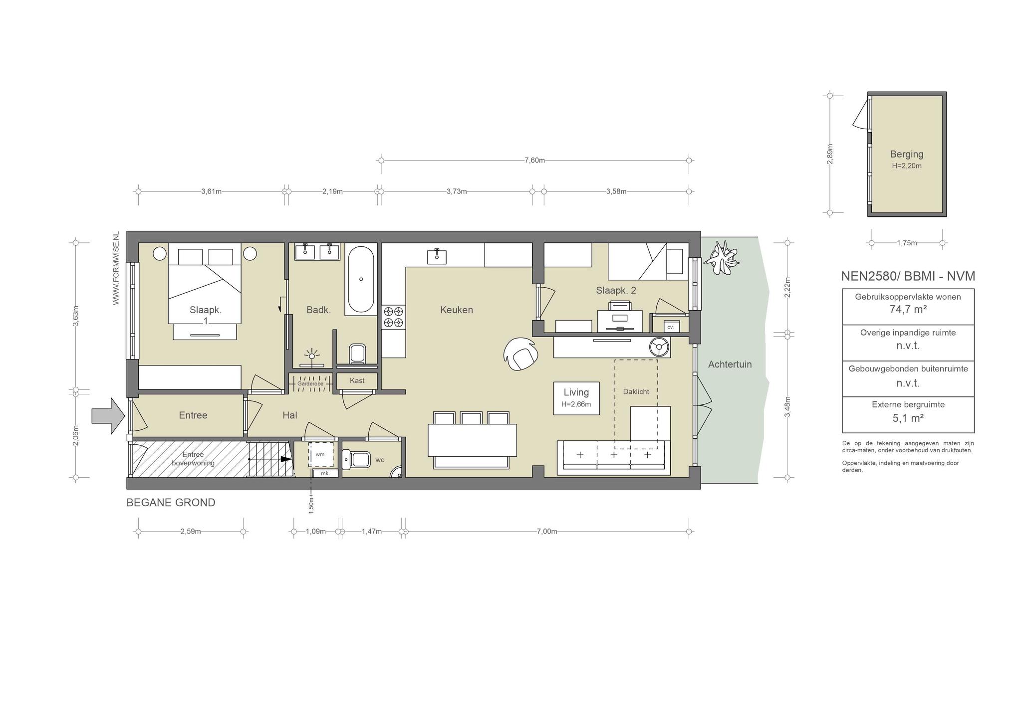
  • Gebruiksoppervlakte wonen circa 75 m²
  • Tuin gelegen op het westen
  • Gelegen op eigen grond
  • Energielabel A
  • Zeer goed onderhouden
  • Smaakvol gerenoveerd
  • Houten vloer (visgraat) door gehele appartement
  • Mooie plafondhoogte van 2,66 m
  • Servicekosten VvE € 50,- per maand
  • Kleine Vve – 2 leden
  • Berging in de tuin
AM103887-1750729-Piet-Gijzenbrugstraat-12hs,-Amsterdam-139709618

Een aantal jaar geleden heb ik de huidige eigenaren mogen begeleiden bij deze aankoop, voor het eerst samen een huis kopen. Wonen op een leuke locatie met veel comfort en duurzaam wonen (energielabel A).

Bij de renovatie van dit benedenhuis is er zorgvuldig nagedacht over de indeling en optimalisatie van de woonoppervlakte. De lichte en zeer smaakvol gerenoveerde benedenwoning van ca 75 m² ligt in een zeer rustige straat en heeft een fijne stadstuin op het westen.

Het appartement heeft een optimale indeling met een lichte living, 2 slaapkamers en een zonnige tuin.


Judith de Jong | Makelaar Broersma Wonen
AM103887-1750729-Piet-Gijzenbrugstraat-12hs,-Amsterdam-139709622

Designvisie

Als reactie op het rationalisme staat er begin 20e eeuw een groep architecten op die zich meer kunstzinnig wil uitdrukken. Dit leidt tot een expressionistische bouwstijl: de Amsterdamse School. Alles draait hierbij om de uiterlijke vorm, die stevig en massief is. Kenmerkend zijn de ladderramen: vensters die door een groot aantal roeden verdeeld zijn.

De Piet Gijzenbrugstraat is een brede, rustige straat met mooie bomen. De buurt is gebouwd in de 30-er jaren van de vorige eeuw en wordt gekenmerkt door de speciale bouwstijl met vele erkers en variatie van gebouwen in de mooie omliggende straten.

Het gebouw bestaat uit 2 leden, de VvE wordt in eigen beheer uitgevoerd.

AM103887-1750729-Piet-Gijzenbrugstraat-12hs,-Amsterdam-139709623
AM103887-1750729-Piet-Gijzenbrugstraat-12hs,-Amsterdam-139194128
AM103887-1750729-Piet-Gijzenbrugstraat-12hs,-Amsterdam-139194129

Het appartement heeft vanaf de straatzijde haar eigen entree. De lichte en gezellige living is aan de achterzijde van de woning, hierdoor grenst de tuin direct aan deze ruimte. Dit zorgt voor de optimale beleving van het wonen op de begane grond en zo wordt de tuin een verlengstuk van de leefruimte.

De moderne en elegante keuken heeft een frisse uitstraling, er is gekozen voor een hoekopstelling. De keuken in voorzien van inbouwapparatuur zoals inductiekookplaat, vaatwasser, oven, koel/vriescombinatie.

De keuze van materialen en kleuren geven dit appartement eenheid en een rustige uitstraling. Het gehele appartement is voorzien van een visgraatvloer.

AM103887-1750729-Piet-Gijzenbrugstraat-12hs,-Amsterdam-139194136
AM103887-1750729-Piet-Gijzenbrugstraat-12hs,-Amsterdam-139194130
AM103887-1750729-Piet-Gijzenbrugstraat-12hs,-Amsterdam-139194131
AM103887-1750729-Piet-Gijzenbrugstraat-12hs,-Amsterdam-139194134
AM103887-1750729-Piet-Gijzenbrugstraat-12hs,-Amsterdam-139194143
AM103887-1750729-Piet-Gijzenbrugstraat-12hs,-Amsterdam-139194141
AM103887-1750729-Piet-Gijzenbrugstraat-12hs,-Amsterdam-139194144

De royale hoofdslaapkamer is gelegen aan de zeer rustige voorzijde en heeft een luxe badkamer ensuite. De kleurstelling en indeling geven extra luxe aan deze ruimte, de badkamer heeft een ligbad, douche, dubbel wastafelmeubel en tweede toilet. De badkamer vloer heeft vloerverwarming.

De tweede slaapkamer ligt aan de tuinzijde en heeft een goede breedte van 2,22 m. Een goede slaap/werk- of logeerkamer.

 

AM103887-1750729-Piet-Gijzenbrugstraat-12hs,-Amsterdam-139194142
AM103887-1750729-Piet-Gijzenbrugstraat-12hs,-Amsterdam-139194146
AM103887-1750729-Piet-Gijzenbrugstraat-12hs,-Amsterdam-139638635
AM103887-1750729-Piet-Gijzenbrugstraat-12hs,-Amsterdam-139194138
AM103887-1750729-Piet-Gijzenbrugstraat-12hs,-Amsterdam-139194140
AM103887-1750729-Piet-Gijzenbrugstraat-12hs,-Amsterdam-139709615
AM103887-1750729-Piet-Gijzenbrugstraat-12hs,-Amsterdam-139709618
AM103887-1750729-Piet-Gijzenbrugstraat-12hs,-Amsterdam-139709611

De verzorgde achtertuin ligt op het westen, een groot deel van de dag kan hier genoten worden van de zon. Achter in de tuin staat nog een houten berging van ca. 5m², perfect voor extra opslag.

Een extra leuke bijkomstigheid is dat er op straat diverse bankjes staan, als de zon schijnt zitten mensen ook voor hun huis op de stoep.

AM103887-1750729-Piet-Gijzenbrugstraat-12hs,-Amsterdam-139709610
AM103887-1750729-Piet-Gijzenbrugstraat-12hs,-Amsterdam-139709620
AM103887-1750729-Piet-Gijzenbrugstraat-12hs,-Amsterdam-139709625
AM103887-1750729-Piet-Gijzenbrugstraat-12hs,-Amsterdam-139709634

Gelegen in een rustige buurt in Amsterdam Oud-Zuid op loopafstand van het Vondelpark en Hoofddorpplein.  In de omgeving zijn veel leuke restaurants en gezellige cafés o.a. Lokaal van de stad, Drovers Dog, Van Mechelen op de Sloterkade en Nana’s Coffee op het Hoofddorpplein. In de Zeilstraat en op het Hoofddorpplein zijn diverse delicatessenwinkels en biedt een breed scala aan voorzieningen.  Het wonen in de Hoofddorppleinbuurt geeft een dorpsachtig gevoel en toch dichtbij de dynamiek van Zuid, Zuidas en West.

Bereikbaarheid
Op slechts enkele minuten lopen stopt de tram lijn 2 naar het centraal station en bus N88, de metro (lijn 50/51) zijn op vijf minuten fietsafstand.

Uitvalswegen naar de A4/A9/A10 zijn perfect via de ontsluiting bij de Aalsmeerweg, zeer handig voor degene die regelmatig de auto gebruikt.

Parkeergelegenheid
Parkeren is mogelijk via een vergunningenstelsel, de huidige wachttijd is circa 3 maanden. De kosten zijn € 142,20 per 6 maanden (informatie volgens gemeente Amsterdam).

AM103887-1750729-Piet-Gijzenbrugstraat-12hs,-Amsterdam-139709626

Toen we dit huis zelf voor het eerst zagen, wisten we meteen dat dit het huis zou zijn waar ons eerste kindje geboren zou worden. De mooie en-suite badkamer, lekkere slaapkamer, mooie keuken, fijne lichte uitbouw en natuurlijk de heerlijke tuin. Hier zouden we ons echt thuis gaan voelen.

En dat is gelukt! We leven met name in de fijne open keuken en de woonkamer. Deze hebben we met nieuwe tegels in de keuken en een warme gele kleur in de living,  helemaal eigen gemaakt. Het is heerlijk om met vrienden lekker lang te tafelen in de open keuken of ‘s avonds nog buiten te zitten in de tuin bij lekker weer.

En dan ligt het huis ook nog eens in de gezellige Hoofddorppleinbuurt, wat echt een soort dorpje in de stad is. Leuke restaurantjes, kroegen en fijne winkels in de buurt. Regelmatig lopen we op zaterdag een rondje, drinken we een kop koffie en speelt onze dochter in een van de speelparken die de Hoofddorppleinbuurt rijk is. Ook de straat is heel gezellig. In de zomer is het heerlijk om aan de voorkant van ons huis in het zonnetje een kop koffie te drinken en een praatje te maken met de buren. En als we zin hebben in een wandeling, zijn we zo in het Rembrandtpark of het Vondelpark.

We gaan dit huis en deze plek ontzettend missen, maar voor ons is het tijd om de stad uit te verlaten en een nieuw avontuur te starten in Bussum. Dit huis zal altijd een speciaal plekje in ons hart houden en we hopen dat nieuwe bewoners hier net zo zullen genieten als wij jaren hebben gedaan.

We gaan dit huis en deze plek ontzettend missen, maar voor ons is het tijd om de stad uit te verlaten en een nieuw avontuur te starten.

AM103887-1750729-Piet-Gijzenbrugstraat-12hs,-Amsterdam-139709632
AM103887-1750729-Piet-Gijzenbrugstraat-12hs,-Amsterdam-139709631
Kenmerken
Piet Gijzenbrugstraat 12hs, Amsterdam
Vraagprijs
  • € 695.000 k.k.
Beschikbaarheid
  • In overleg
Vertrekken
  • 3 kamers
  • 2 slaapkamers
  • 1 badkamer
Onderhoud
  • Intern: Goed tot uitstekend
  • Extern: Goed
Oppervlakten & Inhoud
  • Woonoppervlakte: 75 m²
  • Tuinoppervlakte: 27 m²
Bouwjaar
  • 1933
Installaties
  • Mechanische ventilatie
  • TV kabel
Ligging
  • In woonwijk
Parkeren
  • Betaald parkeren
  • Openbaar parkeren
  • Parkeervergunningen
Type verwarming
  • CV Ketel
Type warmwater
  • CV Ketel
Bestemming
  • Woonruimte
Eigendomssoort
  • Volle eigendom
Buitenruimte
  • Achtertuin
Kadastraal
  • Gemeente: Amsterdam
  • Sectie: O
  • Nummer: 3495
Duurzaamheid
  • Dakisolatie
  • Dubbel glas
  • Energielabel A
Soort
  • Appartement
  • Benedenwoning
Bijzonderheden
  • Toegankelijk voor minder validen
  • Toegankelijk voor ouderen
Overige kenmerken
  • OZB ('23) € 303,42 per jaar
  • Rioolrecht ('23) € 160,43 per jaar
  • Servicekosten VvE € 50,00 per maand
Plattegrond
Piet Gijzenbrugstraat 12hs, Amsterdam
AM103887-1750729-Piet-Gijzenbrugstraat-12hs,-Amsterdam-134092092
AM103887-1750729-Piet-Gijzenbrugstraat-12hs,-Amsterdam-134092091
Documenten
Piet Gijzenbrugstraat 12hs, Amsterdam
Locatie
Piet Gijzenbrugstraat 12hs, Amsterdam
Eten & drinken
01
Adres
Heemstedestraat 68,
1058 NP Amsterdam

In een rustige straat in Amsterdam-Zuid vind je Lokaal van de Stad. Een plek waar buurtbewoners elkaar treffen voor koffie en een goed gesprek. Alles wordt hier met zorg bereid: van huisgemaakte taarten tot verse lunches. De sfeer is ongedwongen, alsof je aanschuift in een grote huiskamer. Een lokaal adres dat laat zien hoe de stad op haar best samenkomt.

02
Adres
Hoofddorpplein 29 h,
1059 CW Amsterdam

Nana coffee house

Aan het Hoofddorpplein ligt Nana Coffee House. De deuren gaan open zodra je zin hebt in iets lekkers: een all-day ontbijt, broodjes, flatbreads of huisgemaakte zoetigheden. De naam verwijst naar Nana, de grootmoeder van de eigenaresse, met wie gastvrijheid altijd centraal stond. Je voelt het meteen: een plek met karakter, waar je komt voor kwaliteit én eenvoudig comfort. Geopend doordeweeks van 08:00 tot 16:00 (behalve dinsdag), in het weekend vanaf 09:00. Een spot waar de buurt elkaar vindt in rust, smaak en stijl.

BHF9707-scaled
03
Adres
Heemstedestraat 80,
1058 NP Amsterdam

Cedars

Cedars is een Libanees restaurant gevestigd in hartje Amsterdam. Het restaurant is vernoemd naar de cederboom, die staat voor kracht, kwaliteit, schoonheid en waardigheid. Deze waarden zijn ook uitgangspunten in de bedrijfsvoering van Cedar; waar kwaliteit van producten en schoonheid van de gerechten centraal staat. Cedars serveert een uitgebreid menu met talloze hapjes en drankjes. Probeer bijvoorbeeld eens de gemarineerde dorade of de overheerlijke fatayer sabanekh. Ook de locatie van Cedars is prachtig; het strakke pand aan het water van de Elandsgracht ademt frisse luxe schoonheid.

201855152_536108230745975_4263326479573486700_n
04
Adres
Rietwijkerstraat 35,
1059 VW Amsterdam

Pipes & Beans

Bij Pipes & Beans in Amsterdam-Zuid vind je een gezellige eettafel, een comfortabele bank en twee leunstoelen. Een vrolijke hond genaamd Curly snuffelt nieuwsgierig om je heen, waardoor het voelt alsof je te gast bent in de woonkeuken van Maikel van Rooij (41). Dit was precies het sfeertje dat de eigenaar voor ogen had. Hier draait alles om het goede leven met koffie. De rest van het interieur is een charmante mix van tweedehandsvondsten van de lokale kringloopwinkel. Een kopje koffie kost €2,50 en voor €4 krijg je er zelfgemaakte taart of een tosti bij.

360349188_243934825182799_7735494007192255831_n
05
Adres
Hoofddorpplein 1,
1059 CV Amsterdam

Café Maurits

Café Maurits, gelegen op het Hoofddorpplein in Amsterdam-Zuid, biedt een veelzijdige ervaring als bar, café en restaurant. Hier worden eigentijdse gerechten geserveerd, zowel à la carte als in een chefsmenu, zonder fratsen zoals schuimpjes of gelletjes, maar met de ambiance van een modern café. Het hoekpand beschikt over een aangenaam terras en een lichte, uitnodigende sfeer.  Het interieur is smaakvol ingericht met veel houtaccenten en spiegels die de ruimte vergroten en verlichten. De verfijnde menukaart, samengesteld door chef Boy van Rijn, biedt diners een uitstekende culinaire ervaring, compleet met bijpassende wijnen.

06
Adres
Hoofddorpplein 6H,
1058 PD Amsterdam

Buno Coffee

07
Adres
Aalsmeerweg 91,
1059 AE Amsterdam

Warung Barokah

Warung Barokah is al meer dan 10 jaar een begrip in de Indonesische community. De gerechten staan bekend om de vele verse kruiden die gebruikt worden. Kok en eigenaar Sri Kurniati heeft haar kookkunsten geleerd op diverse plekken in Indonesië. Probeer haar specialiteiten Bakso en Soto soep en je zal zeker niet teleurgesteld zijn.

 

306001211_969230534472634_2320247204275062774_n
08
Adres
Warmondstraat 120,
1058 KZ Amsterdam

Caffènation

De bekendste koffiebranderij van Antwerpen heeft nu ook zijn deuren geopend in de Schinkelbuurt van Amsterdam. De kenmerkende Belgische stijl van Caffenation is duidelijk te herkennen in de inrichting van de koffiebar, die uit twee verdiepingen bestaat en ruime zitgelegenheid biedt. Opvallende decorstukken zijn overal te vinden, maar de absolute blikvanger bij binnenkomst is de indrukwekkende espressomachine van Kees van der Westen. De koffie, bereid met de Synesso MVP Hydra-espressomachine is van goede kwaliteit  en de sfeer is ontspannen. Bovendien biedt Caffenation wekelijks twee verschillende soorten verse bonen aan.

321951658_745210986479092_3482688388092291829_n
264585813_916339462605248_793857125163270911_n
09
Adres
Amstelveenseweg 226h,
1075 XT Amsterdam

Bonnie

Bonnie, een charmante bistro gelegen in Amsterdam-Zuid. Bij Bonnie draait alles om genieten; van lekkere maaltijden tot zorgvuldig geselecteerde wijnen die perfect aansluiten. Vooral de Bonnie's double cheeseburger is een aanrader. De ambiance zorgt ervoor dat je je al snel op je gemak voelt. Een lunch hier kan gemakkelijk overgaan in een gezellige borrel, waardoor je het gevoel krijgt dat je eigenlijk helemaal niet meer weg wil.

000049
10
Adres
Amstelveenseweg 158-160,
1075 XN Amsterdam

Restaurant Blauw

Aan de Amstelveenseweg ligt het Indonesische restaurant Blauw. In tegenstelling wat de naam doet verwachten, is het hele interieur rood. De rijsttafels bij restaurant Blauw zijn bij beide locaties identiek (Amsterdam en Utrecht), maar de rest van het menu is per vestiging uniek. De chefs stellen zelf hun ultieme authentieke Indonesische belevingen samen op basis van hun eigen inspiratie en invloeden.

202010SOTTO82-1400×934
11
Adres
Amstelveenseweg 89,
1075 VW Amsterdam

Sotto Pizza

Sotto Pizza is één van de top 10 Italiaanse restaurants in Amsterdam. Het restaurant opende haar deuren in 2021, maar is sindsdien een begrip onder de pizza-liefhebbers. De diverse keuze is een weergave van de kundigheid van de koks, maar hun klassieke Margherita is onverslaanbaar. Het interieur heeft iets weg van een moderne Spaanse tapasbar, met een fijne sfeer. Je kan bij Sotto uitgebreid tafelen of snel een pizza eten aan de bar. Het personeel is behulpzaam en vriendelijk.

vierkantjes-website-4
278159011_532942278401509_462089035820605652_n
12
Adres
Sophialaan 55,
1075 BP Amsterdam

Ron Gastrobar (*)

Bij Ron Blaauw's eerste gastrobar in Amsterdam gaat een laagdrempelige sfeer hand in hand met een Michelinster. Stijl en gezelligheid komen samen voor een smakelijke ervaring. Van details tot amuses, cocktails, broodjes op tafel, nieuwe gerechtjes, heerlijke wijnen en attente service. Alles draait om het credo: "uit eten gaan moet een feestje zijn''.Voor BBQ-liefhebbers is er zelfs een apart gedeelte op de menukaart. Uiteraard ontbreken de klassiekers, zoals de spareribs "The Original," niet; een gerecht dat altijd zal blijven.

featured-gallery-0
13
Adres
Koninginneweg 212,
1075 EL Amsterdam

Simply Fish

Simply Fish is gelegen in Oud-Zuid aan de Koninginneweg. Zoals de naam al doet vermoeden is het restaurant gespecialiseerd in het bereiden van vis. Echtpaar Jan en Francis Rijk bezaten voorheen eenzelfde soort restaurant in Zeeland, een welbekende provincie voor overheerlijke vis en zeevruchten. Op het menu kan je onder andere fruit de mer, garnalenkroketjes, oesters en hun beroemde kreeftenbisque vinden.

14
Adres
Hendrik Jacobszstraat 18,
1075 PD Amsterdam

LOT61 Coffee Roasters

Geboren in Sydney, grootgebracht in Brooklyn en nu stevig geworteld in Amsterdam: LOT61 is allesbehalve een doorsnee koffiezaak. Als onafhankelijke koffiebrander combineert het merk internationale flair met lokaal vakmanschap. Slow coffee die met precisie en aandacht is gezet. De esthetiek is rauw maar verfijnd, de sfeer informeel en creatief – een plek waar buurt en barista samenkomen. Met hun B Corp-certificering laat LOT61 bovendien zien dat smaak en duurzaamheid hand in hand kunnen gaan.

neni
15
Adres
Stadionplein 8,
1076 CM Amsterdam

NENI

NENI is een Midden-oosters restaurant gevestigd aan het Stadionplein. De naam is een samenstelling van de voorletters van de vier zonen van Haya Molcho; de drijfveer van deze zaak. Haya is geboren in Tel-Aviv en heeft daar psychologie gestudeerd. Ze hield altijd veel van koken en begon in 2009 haar eerste eigen restaurant. Over de jaren is de familie Mocho een bekende familie geworden in de culinaire wereld en ze hebben ook andere vestigingen van NENI in onder andere Wenen en Berlijn. In al hun restaurants staat familie, samenzijn en gerechten delen centraal. De midden-oosterse gerechten zijn uitmuntend en de vers bereidde hummus is een van de beste die Amsterdam te bieden heeft.

vascobelo-stadionplein-01
16
Adres
Stadionplein 100,
1076 CK Amsterdam

Vascobelo

Vascobelo, van origine uit Antwerpen, was bedoeld als een café waar mensen zouden komen voor een unieke koffie ervaring. Inmiddels is de keten aan Vascobelo Café-Brasseries bekend van veel meer dan alleen dat. De vestiging in de Rijnstraat is uniek door het knusse interieur en de open keuken, wat de locatie ideaal maakt voor intieme ontmoetingen of zakelijke bijeenkomsten.

211297744_1153889045094448_8766733082684644550_n
17
Adres
Stadionplein 26,
1076 CM Amsterdam

Restaurant Wils (*)

Deze unieke culinaire hotspot opent zijn deuren in 2019 dankzij chef Joris Bijdendijk. Het restaurant bevindt zich naast het Olympische stadion. Joris gaf voor de opening een sneak preview door op open vuur te koken op de middenstip van het stadion in Amsterdam-zuid. De hoge verwachtingen maakt Wils inmiddels helemaal waar. Van de 4 tot 6 gangen worden op open vuur bereid en zitten vol verrassende elementen.

Boodschappen
287573586_5731115153584452_4578419007889655966_n
18
Adres
Hoofddorpplein 23,
1059 CW Amsterdam

Nuts & Delights

& Cheese zou er eigenlijk nog in de titel moeten staan want dat is wat ze hier allemaal hebben. Niet alleen de vers gebrande noten zijn waanzinnig, ook het gigantische assortiment kaas is heerlijk en voor elke gelegenheid hebben ze wel een kaasje. Ook leuk: ze bezorgen via fietskoerier Peddler, wel zo duurzaam!

19
Adres
Hoofddorpweg 27,
1059 CT Amsterdam

Cow Project

Met het motto ‘bewust bourgondisch’ onderscheidt slagerij Cow Project zich van andere slagerijen. Het draait hier om lekker eten op een bewuste manier. De herkomst van het vlees is bekend en de slager draagt grote zorg voor een goed leven voor de dieren. Zo zijn de lammeren van Texel, de kip van de Blije Ilper en de varkens behoren tot de Porc au Grain varkens. Naast slagerij is het ook een delicatessenzaak met allerlei lekkere dingen zoals tapas.

103079443_3573633532650074_4867610338365611728_n
20
Adres
Amstelveenseweg 75,
1075 CE Amsterdam

Patisserie Linnick

Patisserie Linnick wordt bestierd door het  Amstelveense koppel Linda en Nick. Zij leerden elkaar kennen in Patisserie Holtkamp en werden verliefd. In 2014 werd hun droom werkelijkheid: een eigen patisserie waar zij hun kunstwerkjes aan het publiek kunnen tonen. Met passie en ambacht werken zij elke dag aan de prachtige gebakjes en chocolade die zij vervolgens in de vitrines etaleren. Patisserie Linnick werkt met hoogwaarde ingrediënten zoals de Valrhona chocolade uit Tain-l’Hermitage in Hermitage. De heerlijke zoete traktaties van Patisserie Linnick zul je niet snel vergeten.

40696884_263976027789595_4869878192174792704_n
21
Adres
Koninginneweg 255,
1075 CV Amsterdam

Wijnhuis Amsterdam

Hoewel ze bij Wijnhuis Amsterdam al meer dan 25 jaar professioneel wijn proeven en selecteren, is het wijnhuis in Amsterdam een vrij recente toevoeging aan hun verhaal.  Na talloze proefsessies waren ze zo enthousiast over de Duitse wijnen dat ze maar al te graag de wijnen een platform wilden geven binnen Nederland. Zo openden ze in mei 2018 Wijnhuis.Amsterdam, met in eerste instantie slechts drie eigen importen uit Duitsland. Inmiddels vertegenwoordigen ze een indrukwekkend assortiment van twintig Duitse wijnmakers, drie uit Oostenrijk en één uit Luxemburg. Bij het selecteren van de wijnen is elegantie, de drinkbaarheid, lage alcoholpercentages en een minimale interventie in het productieproces belangrijk.

21125326_348074012310751_3902449023829329736_o
21125332_348074092310743_8164135921726057693_o
21200854_348074335644052_3928733172084979767_o
22
Adres
Stadionplein,
1076 CJ Amsterdam

Stadionpleinmarkt

Op het mooie Stadionplein, midden in Oud-Zuid vind je elke zaterdag de Stadionpleinmarkt. Ze gaan om 09:00 open en zijn dus een ideale markt voor mensen die op zaterdag vroeg hun weekboodschappen gedaan willen hebben. Ook hebben ze hier prachtige bloemen te koop en vind je er veel verschillende buurtbewoners. De sfeer is altijd goed en de markt is open tot 17:00.

Interieur
790bff16-5b71-4696-a026-427311b3e8b2
23
Adres
Koninginneweg 271,
1075 CW Amsterdam

Teunis Veenema

Teunis Veenema is een pareltje in het hart van Amsterdam-Zuid. Aan de Koninginneweg kun je sinds 2009 terecht voor de mooiste boeketten en planten. Teunis Veenema is geen doorsnee bloemenwinkel maar een winkel waar met je mee wordt gedacht om het mooiste resultaat te behalen zowel particulier of zakelijk. Daarbij biedt hun website de mogelijkheid om geheel gepersonaliseerde boeketten te bestellen voor uzelf of voor anderen.

dis-studio-Boffi-family-home-18.jpg
DB_111013_13402.png
24
Adres
Amstelveenseweg 2,
1075 XH Amsterdam

DIS Studio

DIS Studio is een designbureau, interieurwinkel en showroom in één. DIS Studio is opgezet door Daniela Germone en Dis Abhelakh. Zij werkten beide voor het Italiaanse interieurmerk Boffi en zijn sinds 2004 samen eigenaar van een eigen studio in Amsterdam. Je kunt bij DIS Studio terecht voor interieusdesign voor je hele huis; van keukens tot stoelen tot tafellampen. Hoewel Daniele en Dis graag werken met strakke Italiaanse designs en natuursteen worden kleine imperfecties niet vermeden. Volgens hen zorgen juist die kleine imperfecties voor een warme en huiselijke sfeer. In de showroom van DIS Studio worden uitsluitend producten getoond van Italiaanse merken. Het is ook de enige plek in Nederland die producten van het merk Boffi verkoopt.

Schermafbeelding-2018-06-26-om-15.18.30-e1530019385389
25
Adres
Amstelveenseweg 39,
1054 MC Amsterdam

Eginstill

Eginstill is een bijzonder collectief, gespecialiseerd in interieurdesign. Het grote team aan leden, van ambachtsmannen tot aan de creatief leider Frans Pahlplatz, voorziet enthousiastelingen van workshops waarin alle interieur wensen waar kunnen worden gemaakt. Deze processen worden zo duurzaam mogelijk gemaakt, door het gebruik van recyclebare materialen zoals staal en hout van een familiebedrijf in Finland. Eginstill wil het liefste alle projecten zo uniek maken als hun klanten en dit doen ze met passie. Ook voor de lekkere bak koffie kan je hier goed terecht en er is genoeg om tijdens het nuttigen naar te kijken!

Samengesteld; tien keer anders wonen, allemaal met een tuin.

Samengesteld; tien keer anders wonen, allemaal met een tuin.

‘Het vakwerkhuis’, een voormalig gereedschap bergplaats voor de Dienst der Publieke Werken

‘Het vakwerkhuis’, een voormalig gereedschap bergplaats voor de Dienst der Publieke Werken

Samengesteld; een collectie woningen met bijzondere open haarden

Samengesteld; een collectie woningen met bijzondere open haarden

Onlangs bekeken
Bekijk het overzicht

Deze site maakt gebruik van cookies.

Voor welke cookies geef je akkoord?