Appartement van circa 49 m², gelegen in het bruisende centrum van Amsterdam. Het beschikt over een woonkamer, open keuken, een slaapkamer en badkamer en een balkon. Gelegen op eigen grond.

Rondleiding
Aan de Nieuwe Herengracht markeert nummer 5 een herkenbaar pand met drie Franse balkons op de tweede verdieping. De entree bevindt zich op straatniveau; het trappenhuis werd in 1939 vernieuwd. Op de tweede verdieping ligt een efficiënt ingedeeld appartement met royale plafondhoogte, veel licht en een rustige uitstraling.
De woonkamer ligt aan de voorzijde en profiteert van het brede gevelaanzicht. De hoogte tussen de balken bedraagt bijna drie meter. Drie dubbele openslaande deuren geven toegang tot Franse balkons met zicht op de Walter Süskindbrug en het H’Art Museum. Het daglicht valt diep de ruimte in, de indeling is ruim en overzichtelijk.
De vloer is uitgevoerd in brede eikenhouten planken en loopt door in alle vertrekken. In de woonruimte is een vaste ronde bankopstelling met eettafel geplaatst, die het eetgedeelte markeert. De keuken bevindt zich centraal in de plattegrond en werd opgenomen in de verbouwing van 2018, uitgevoerd onder begeleiding van binnenhuisadviseur Dorith Jessurun. De opstelling is compact maar compleet, voorzien van vaatwasser, kookplaat, oven en magnetron. Open schappen houden het geheel licht en toegankelijk.
Aan de achterzijde ligt het slaapvertrek, grenzend aan een balkon over de volle breedte van de woning. Deze buitenruimte ligt beschut en is via dubbele deuren bereikbaar. In de slaapkamer is een kastenwand opgenomen. De sfeer is rustig; de ruimte functioneel ingedeeld en goed afgewerkt.
De badkamer is en-suite en voorzien van een inloopdouche en een strak vormgegeven wastafel. Materialen zijn zorgvuldig gekozen; kleuren zijn neutraal. Ook hier zet de houten vloer zich voort, wat bijdraagt aan de samenhang in het geheel.
De woning maakt deel uit van een pand uit 1905, dat in 1940 is gesplitst in een winkelruimte met vier bovenwoningen. In 2022 is de fundering hersteld. Op de begane grond beschikt het appartement over een ruime privéberging.
De ligging is centraal, met goede verbindingen per metro en tram. Via de Wibautstraat is de woning ook per auto goed bereikbaar. De directe omgeving is rustig, met water, groen en stedelijke voorzieningen binnen handbereik.
Nieuwe Herengracht 5 – 2 is een verzorgd en functioneel appartement op een unieke locatie in het centrum van Amsterdam.

Wat de eigenaar gaat missen
"Wat ik waarschijnlijk het meeste ga missen, is het fantastische uitzicht over het water. Door de drie openstaande deuren stroomde altijd volop daglicht naar binnen. Met de deuren open en uitzicht op de oudste iep van Amsterdam voor de deur, voelde mijn huis als een rustige oase. De weerspiegeling van de zon in het water zorgde regelmatig voor prachtige lichtshows op het plafond."

Buurtgids
Het appartement bevindt zich in het centrum van Amsterdam en om de hoek van de Amstel. Het is een prachtige locatie waar oneindig veel te doen en te zien is. De
Utrechtsestraat is erg dichtbij en biedt alle voorzieningen die wenselijk zijn. Van een goede bakker, slager en uitstekende banketbakker tot hippe kleding winkels en speciaalzaken. Op het Amstelveld is maandag de bloemenmarkt en in de binnen tuin van de Hermitage is er op zaterdag een biologische markt. Door de Centrale ligging is het uitstekend te bereiken.

Bijzonderheden
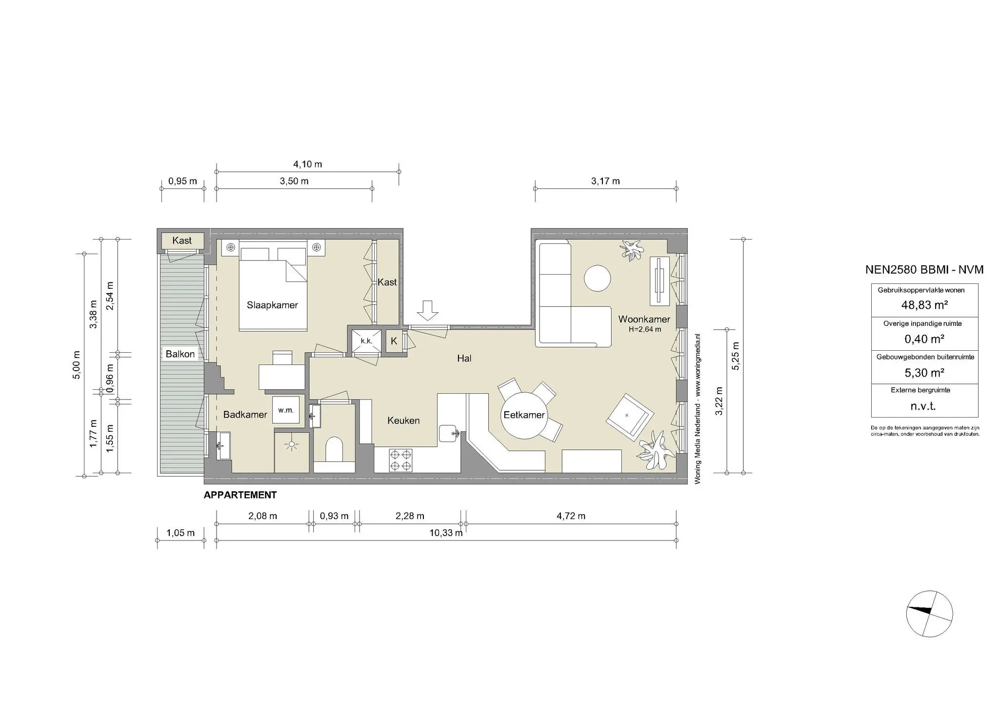
• Gebruiksoppervlakte wonen circa 49 m²
• Balkon gelegen op het noorden van circa 5 m²
• Gelegen op eigen grond
• Energielabel D
• Interieurarchitect Dorith Jessurun
• Servicekosten VvE € 250,-- per maand
• De fundering is in 2022 hersteld
• Rijksbeschermd stadsgezicht
• Onderdeel UNESCO Werelderfgoed
 

AM105520-1994107-Nieuwe-Herengracht-5-2,-Amsterdam-222936643

De Nieuwe Heren
Soms klopt alles. De plek, de indeling, het licht. Deze woning aan de Nieuwe Herengracht werd destijds met zorg aangekocht door de huidige eigenaar, en is sindsdien met aandacht bewoond en verfijnd. Nu is het tijd voor een nieuwe stap — samenwonen met zijn vriendin — en komt dit bijzondere appartement beschikbaar.
Het is niet alleen de woning zelf die indruk maakt, maar vooral ook de locatie. De Nieuwe Herengracht is één van die zeldzame plekken waar Amsterdam zich van haar stille, ruimtelijke kant laat zien. Met uitzicht op het water, de brug en de schepen die langzaam voorbijvaren.
Wonen aan de Walter Süskindbrug is wonen met een verhaal. Deze woning biedt rust en overzicht, met de stad op korte afstand. Een plek die bijblijft.

Otte van Apeldoorn – Makelaar Broersma Wonen


Otte van Apeldoorn | Makelaar Broersma Wonen
AM105520-1994107-Nieuwe-Herengracht-5-2,-Amsterdam-222936619
Designvisie

Het pand aan de Nieuwe Herengracht werd opgericht in 1905 en draagt nog altijd de kalme monumentaliteit van zijn tijd. In 1939 werd het trappenhuis aangepast, waarna het gebouw in 1940 formeel werd gesplitst in een winkelruimte met vier bovenwoningen — een indeling die sindsdien de opbouw van het pand bepaalt.
De woning op de tweede verdieping werd in 2018 heringericht door binnenhuisadviseur Dorith Jessurun. Zij koos voor een open plattegrond waarin de keuken het ruimtelijk middelpunt vormt. De badkamer werd subtiel geïntegreerd in de woonstructuur, waardoor functies naadloos in elkaar overvloeien. De herinrichting brengt helderheid, en geeft de woning een rustige, logische indeling.
Ook in constructieve zin is het huis voorbereid op de toekomst: in 2022 werd de fundering volledig hersteld. Een ingreep die aan de buitenzijde onzichtbaar blijft, maar het fundament van de woning letterlijk en figuurlijk verstevigt.
Aan de grachtzijde opent de woning zich via drie Franse balkons. Deze elegante uitspringen geven ritme aan de gevel en extra cachet aan de woonkamer. De doorkijk op het water, de brug en de statige overkant maakt dit uitzicht tot een levend schilderij.
Op de begane grond bevindt zich een ruime privéberging, geschikt voor fietsen en seizoensopslag. Het maakt het dagelijks gebruik van de woning nog net iets comfortabeler.
De stijl van het interieur is bewust ingetogen. Licht krijgt alle ruimte, materialen zijn natuurlijk en afwerking is strak maar warm. Het resultaat is een woning met een heldere signatuur: nuchter in opzet, stijlvol in detail.

AM105520-1994107-Nieuwe-Herengracht-5-2,-Amsterdam-222936613
AM105520-1994107-Nieuwe-Herengracht-5-2,-Amsterdam-222936631
AM105520-1994107-Nieuwe-Herengracht-5-2,-Amsterdam-222936693
AM105520-1994107-Nieuwe-Herengracht-5-2,-Amsterdam-222936637
Wonen en koken

De woonruimte is licht, open en overzichtelijk van opzet. Drie dubbele deuren aan de voorzijde geven toegang tot Franse balkons en zorgen voor een sterke relatie met de gracht. Het daglicht valt diep de ruimte in en benadrukt de breedte van de gevel.
De plafondhoogte tussen de balken bedraagt bijna drie meter. Dit geeft de kamer een ruimtelijk karakter. Brede eikenhouten vloerdelen vormen een warme basis. De afwerking is strak en gedetailleerd.
Centraal ligt een vaste ronde bank met eettafel, die de overgang tussen koken en wonen markeert. De keuken is compact maar compleet, met apparatuur zoals een vaatwasser, kookplaat, oven en magnetron. Open schappen houden de ruimte licht en toegankelijk. De woonkamer en keuken vormen één geheel. De indeling is logisch, de lijnen zijn helder, het gebruik comfortabel. Alles is met aandacht geplaatst.

AM105520-1994107-Nieuwe-Herengracht-5-2,-Amsterdam-222936625
AM105520-1994107-Nieuwe-Herengracht-5-2,-Amsterdam-222936767
AM105520-1994107-Nieuwe-Herengracht-5-2,-Amsterdam-222936765
AM105520-1994107-Nieuwe-Herengracht-5-2,-Amsterdam-222936771
AM105520-1994107-Nieuwe-Herengracht-5-2,-Amsterdam-222936775
AM105520-1994107-Nieuwe-Herengracht-5-2,-Amsterdam-222936773
AM105520-1994107-Nieuwe-Herengracht-5-2,-Amsterdam-222936779
Slapen en baden

Aan de rustige achterzijde van de woning ligt de slaapkamer, met openslaande deuren naar een balkon over de volle breedte. De ligging op het binnenhof zorgt voor een beschutte sfeer en veel privacy. Ook hier valt het daglicht ruim naar binnen.
De kamer is ingericht met een vaste kastenwand en voldoende ruimte rondom het bed. De houten vloer loopt hier naadloos door, wat de verbinding met de rest van de woning versterkt. De sfeer is ingetogen en evenwichtig.
De badkamer ligt en-suite en is op een natuurlijke manier in het geheel opgenomen. De inloopdouche is afgewerkt met handgevormde tegels in neutrale tinten. De wastafel is strak vormgegeven. Ook hier is de afwerking sober maar doordacht.

AM105520-1994107-Nieuwe-Herengracht-5-2,-Amsterdam-222936785
AM105520-1994107-Nieuwe-Herengracht-5-2,-Amsterdam-222936787
AM105520-1994107-Nieuwe-Herengracht-5-2,-Amsterdam-222936781
AM105520-1994107-Nieuwe-Herengracht-5-2,-Amsterdam-222936791
AM105520-1994107-Nieuwe-Herengracht-5-2,-Amsterdam-222936789
AM105520-1994107-Nieuwe-Herengracht-5-2,-Amsterdam-222936793
Balkon

Aan de voorzijde opent de woning zich met drie Franse balkons, elk met uitzicht op de brede gracht. Hier ligt het zicht op de Walter Süskindbrug en het H’Art Museum. De openingen brengen het buitenleven tot aan de binnenmuur.
Aan de achterzijde ligt een tweede buitenruimte: een balkon over de volle breedte van de woning. Deze plek is beschut en ligt uit de zon, maar biedt ruimte om het slaapvertrek te verlengen met een rustige buitenzone.

AM105520-1994107-Nieuwe-Herengracht-5-2,-Amsterdam-222936657
AM105520-1994107-Nieuwe-Herengracht-5-2,-Amsterdam-222936805
AM105520-1994107-Nieuwe-Herengracht-5-2,-Amsterdam-222936801
Buurtgids

Het appartement bevindt zich in het centrum van Amsterdam en om de hoek van de Amstel. Het is een prachtige locatie waar oneindig veel te doen en te zien is. Er zijn verschillende musea in de buurt zoals het Rembrandthuis, Amsterdam Museum, Joods Museum en de Hermitage, maar ook Artis ligt op loopafstand. De Utrechtsestraat is erg dichtbij en biedt alle voorzieningen die wenselijk zijn. Van en goede bakker, slager en uitstekende banketbakker tot hippe kleding winkels en speciaalzaken. Op het Amstelveld is maandag de bloemenmarkt en in de binnen tuin van de Hermitage is er op zaterdag een biologische markt. De Horeca is ruim vertegenwoordigd, romantisch brunchen in bij Dignita’s Hoftuin, ouderwets borrelen bij Cafe ’t Hooischip of uitstekend eten bij een van de restaurants met een Michelin ster.

Bereikbaarheid
Door de centrale ligging in het centrum van de stad, is het appartement bij uitstek goed bereikbaar met de fiets. Ook met het openbaar vervoer is er verbinding met alle hoeken van de stad, via het nabij gelegen metro station Waterlooplein. Bij dit station stoppen onder andere metro’s 51, 53 en 54, naar het Centraal Station, Isolatorweg (Via Amsterdam Zuid en RAI), Gaasperplas en Gein. Daarnaast stopt ook tram 14 bij deze halte, welke vanaf het Centraal Station door rijdt naar halte Flevopark, in Oost. Met de auto is het appartement bereikbaar via de IJ-tunnel vanuit Noord of via de Wibautstraat en afslag S112 naar de Ring A10.

Parkeergelegenheid
Parkeren is mogelijk via een vergunningenstelsel op de openbare weg (vergunningsgebied Centrum 1). Met een parkeervergunning voor Centrum 1 mag u parkeren in Centrum-1 en Centrum 3.  Een
parkeervergunning voor bewoners kost € 326,65 per 6 maanden. Momenteel is er voor dit vergunningsgebied een wachttijd van 20 maanden. Een tweede parkeervergunning is in dit gebied niet mogelijk. Naast de openbare weg is het ook mogelijk om met een parkeervergunning kosteloos te parkeren in garage Markenhoven en garage Muziektheater. (Bron: Gemeente Amsterdam, april 2025).

AM105520-1994107-Nieuwe-Herengracht-5-2,-Amsterdam-222936811
AM105520-1994107-Nieuwe-Herengracht-5-2,-Amsterdam-222936777
Wat de eigenaar gaat missen
De afgelopen twaalf jaar heb ik met enorm veel plezier op de Nieuwe Herengracht 5 gewoond. Midden in het bruisende centrum van Amsterdam bleek de straat onverwacht rustige en kalm. Hier kent iedereen elkaar, en in de zomer zaten we vaak samen buiten op straat, genietend van een glas wijn of zelfs een spontaan etentje. De Nieuwe Herengracht voelt als een warme Amsterdamse gemeenschap, in het hart van de stad.
Je bevindt je in het culturele hart van Amsterdam met de Stopera en het Amsterdam Museum op een steenworp afstand. Met een museum kaart gaan de deuren van de meest iconische Amsterdamse locaties voor je open, allemaal binnen loopafstand.
De ligging van het huis is perfect verbonden met het openbaar vervoer. Binnen één minuut wandelen ben je bij metrostation Waterlooplein, waarmee je binnen tien minuten op station Amstel of Amsterdam Centraal staat. Overal in de buurt is lekker eten, De TokoMan heeft de lekkerste Surinaamse broodjes, Tasty Asia heeft heerlijk Aziatische fusion, en op de Utrechtsestraat kun je heerlijk winkelen, borrelen en eten.
Wat ik waarschijnlijk het meeste ga missen, is het fantastische uitzicht over het water. Door de drie openstaande deuren stroomde altijd volop daglicht naar binnen. Met de deuren open en uitzicht op de oudste iep van Amsterdam voor de deur, voelde mijn huis als een rustige oase. De weerspiegeling van de zon in het water zorgde regelmatig voor prachtige lichtshows op het plafond. Ook de nabijgelegen Hoftuin was een geliefde plek om heerlijk buiten te zitten en lekker te eten.
Een paar jaar geleden heb ik het appartement volledig verbouwd. Door de open keuken kon ik gezellig koken terwijl mijn vrienden vlakbij op de bank zaten. De grote witte muur was perfect voor gezellige filmavonden met de beamer. Die momenten ga ik zeker missen.
Met veel plezier kijk ik terug op mijn jaren aan de Nieuwe Herengracht en hoop ik dat iemand anders hier net zoveel geluk en mooie herinneringen mag ervaren als ik.
AM105520-1994107-Nieuwe-Herengracht-5-2,-Amsterdam-222936761
AM105520-1994107-Nieuwe-Herengracht-5-2,-Amsterdam-222936769
Kenmerken
Nieuwe Herengracht 5-2, Amsterdam
Vraagprijs
  • € 540.000 k.k.
Beschikbaarheid
  • In overleg
Vertrekken
  • 2 kamers
  • 1 slaapkamer
  • 1 badkamer
Onderhoud
  • Intern: Goed
  • Extern: Goed
Oppervlakten & Inhoud
  • Woonoppervlakte: 49 m²
  • Gebouwgebonden buitenruimte: 5 m²
  • Externe bergruimte: 4 m²
Bouwjaar
  • 1859
Installaties
  • Natuurlijke ventilatie
  • TV kabel
Ligging
  • Aan rustige weg
  • Aan vaarwater
  • Aan water
  • In centrum
  • Vrij uitzicht
Parkeren
  • Betaald parkeren
  • Parkeervergunningen
Type verwarming
  • CV Ketel
Type warmwater
  • CV Ketel
Bestemming
  • Woonruimte
Eigendomssoort
  • Volle eigendom
Buitenruimte
  • Geen tuin
  • Balkon
Kadastraal
  • Gemeente: Amsterdam
  • Sectie: P
  • Nummer: 3180
Duurzaamheid
  • Hr glas
  • Energielabel F
Soort
  • Appartement
  • Tussenverdieping
Welke woonlaag
  • 3e
Bijzonderheden
  • Beschermd stads of dorpsgezicht
  • Erfgoed
Overige kenmerken

OZB ('25) € 261,39 per jaar
Rioolrecht ('25) € 185,20 per jaar
Servicekosten VvE € 250,00 per maand
 

Plattegrond
Nieuwe Herengracht 5-2, Amsterdam
AM105520-1994107-Nieuwe-Herengracht-5-2,-Amsterdam-225647546
AM105520-1994107-Nieuwe-Herengracht-5-2,-Amsterdam-225647556
Documenten
Nieuwe Herengracht 5-2, Amsterdam
Locatie
Nieuwe Herengracht 5-2, Amsterdam
Eten & drinken
downloadgram.org_559858310_17895309681315568_8989814781705937724_n
01
Adres
Amstel 47,
1011 PW Amsterdam

Alpha Deli

Alpha Deli wordt gerund door Marius, een Griekse ondernemer die met zijn zaak een stukje Athene naar Amsterdam brengt. Hij staat zelf op de vloer, begroet zijn gasten persoonlijk en serveert traditionele Griekse koffie en snacks zoals spanakopita en hartige filodeeggebakjes. De ingrediënten komen grotendeels uit Griekenland, waardoor de smaken dicht bij huis blijven. Overdag is het een fijne plek voor koffie en iets zoets, later op de dag schuif je net zo makkelijk aan voor salades en warme hapjes.

Hapjeshoek
02
Adres
Waterlooplein 6,
1011 MS Amsterdam

De Hapjeshoek

De Hapjeshoek is een bruisend Surinaams eethuis. Het is gevestigd in het historische metrostation Waterlooplein en verwelkomt gasten al sinds 1995. Het is opgericht door drie broers en het is uitgegroeid tot een levendige locatie vol heerlijk eten en vriendelijk personeel. Geniet van een gevarieerd menu met verse Surinaamse broodjes, hapjes en maaltijden voor lunch en diner. Allemaal samengesteld om kwaliteit te bieden tegen betaalbare prijzen.

scp2.elfsightcdn
scp2.elfsightcdn-1
03
Adres
Amstel 212,
1017 AH Amsterdam

Restaurant 212 (**)

Na een brand in Maart 2022 hebben Richard van Oostenbrugge en Thomas Groot hun restaurant in November 22 heropend. Prachtig gelegen aan de Amstel biedt het restaurant plaats aan 16 personen. Het tasting menu en de a l carte gerechten zijn van een hoog niveau.

369719256_18387798799002727_3915098169732230990_n
04
Adres
Amstelstraat 5,
1017 DA Amsterdam

Screaming Beans

Screaming Beans is een Amsterdams merk dat lokaal en internationaal bekend staat om zijn hoogwaardige koffie. De ruime locatie aan Amstelstraat is de ideale plek om vrienden en collega's te ontmoeten onder het genot van een smakelijke kop koffie, een stuk heerlijke taart of een verwarmende thee. Het is populair onder kantoormedewerkers en buurtbewoners, vooral in de ochtend op weg naar het werk.

downloadgram.org_542337336_17874512580410253_7795320341317476262_n
downloadgram.org_580667533_17882663931410253_9117724728895086368_n
05
Adres
Utrechtsestraat 6hs,
1017 VN Amsterdam

char.d

Bij restaurant char.d staan de chefs Dean Baker en Slava Nazaryan aan het roer. De restaurantnaam verwijst naar de kooktechniek charring: langzaam grillen op houtskool of hout en koken op hoge temperaturen om rijke barbecuesmaken te ontwikkelen. Bij char.d vormen dit soort moderne barbecuetechnieken in combinatie met hoogwaardige ingrediënten de rode draad. Bij char.d kunnen gasten genieten van gerechten die variëren van yellowtail in olijfolie tot maïskip met miso en beurre noissette en een klassieker zoals de New York strip. De twee chefs vullen elkaar perfect aan: Dean is gespecialiseerd in vlees terwijl Slava zich richt op vis. Samen met maître Job Guikema geven de chefs vorm aan een restaurant dat barbecue op een andere manier benadert: verfijnd en internationaal. Het kloppend hart van de zaak is de Sloveense Kopa-houtskoolgrill in de open keuken, door de Britse Baker liefkozend “Bobby” genoemd.

396d30_5a39bb8f65ae440b9bfc8457b6de9f64_mv2
396d30_bf2aeadae3e04cb3907935c5ab9dc64e_mv2
06
Adres
Utrechtsestraat 51,
1017 VJ Amsterdam

De Juwelier (*)

Restaurant De Juwelier is het nieuwe à la carte restaurant van de chefs van het met twee Michelin-sterren bekroonde Restaurant 212. Richard van Oostenbrugge en Thomas Groot openden samen De Juwelier aan de Utrechtsestraat. Zowel klassiekers uit de Franse en Nederlandse keuken staan op de menukaart. Deze chique bistro heeft, verfrissend genoeg, geen concept, maar draait gewoon om lekker bourgondisch eten en genieten. Kortom: een juweeltje.

07
Adres
Utrechtsestraat 30A,
1017 VN Amsterdam

Cue Amsterdam (*)

Restaurant CUE Amsterdam biedt een unieke beleving waar gastronomie (restaurant) en muziek (Listening bar) perfect samensmelten.  De culinaire aanpak van CUE is verfijnd en innovatief en laat subtiele Noord Europese en Japanse invloeden zien. Dit is te danken aan chef-kok George Kataras en sommelier Mohamed Aous, die eerder samenwerkten in het met een Michelinster bekroonde restaurant Vanderveen en in 2025 ook hier een ster hebben ontvangen.

396d30_2adb332fb9f3414f9c3ae1737f378bed_mv2
396d30_f2cd173c7f3747cb9bcb5c5625584a55_mv2
08
Adres
Utrechtsestraat 57,
1017 VJ Amsterdam

Bistro de la Mer (*)

Na de succesvolle openingen van 212 en restaurant de Juwelier, opent het chef duo Richard van Oostenbrugge en Thomas Groot wederom een succesvol restauramt. Bistro de la Mer bevindt zich maar een paar deuren verder op de Utrechtsestraat. Het is een Frans georiënteerde visbistro met klassieke smaken. Het concept en de prijzen zijn te vergelijken met restaurant de Juwelier, maar dan met een a la carte menu. Ook deze zaak van het succesvolle duo heeft sinds April 2023 een Michel ster.

 

206984316_4227322370657525_3184468636768311086_n
09
Adres
Keizersgracht 711HS,
1017 DX Amsterdam

Café Van Leeuwen

Café Van Leeuwen is een op en top Amsterdams café, beroemd om zijn ouderwets gezellige borrels. Veel verschillende mensen komen hier te gast van buurtbewoners tot vaste klanten en toevallige voorbijgangers weten dit café al ruim 20 jaar weten te vinden. Een goede ontbijt- en lunchkaart, lekkere borrelhapjes een simpel maar goed cafe diner, ook lekkere wijnen en uitgebreid bier assortiment.

Schermafbeelding 2022-07-01 om 12.04.10
10
Adres
Herengracht 542-556,
1017 CG Amsterdam

Spectrum (**)

Gevestigd op de mooie Herengracht, in het chique Waldorf Astoria hotel opent Spectrum van woensdag tot zaterdag zijn deuren. . Met liefde voor Nederlandse kooktraditie, steekt chef-kok Sidney Schutte de oude kennis in een nieuwe jasje. Laat je verrassen door de rijke internationale keuken, zomaar bij jou om de hoek. De wijnlijst, samengesteld door Cas Kratz (restaurant manager en sommelier) bevat zeer bijzondere wijnen.

the-beauty-the-bee-afternoon-tea-2022-29-
11
Adres
Herengracht 542-556,
1017 CG Amsterdam

Peacock Alley

Tussen de high tea en de cocktails kan je bij Peacock Alley terrecht voor een perfect bereide burger. Sappig en goed gekruid, belegd met Gouda kaas, zuur, tomaat en uienringen. Peacock Alley is gevestigd in het chique Waldorf Astoria hotel in Amsterdam en is iedere dag geopend van 10:00 tot 22:00 uur.

Scherm­afbeelding 2023-11-15 om 13.24.59
12
Adres
Utrechtsestraat 75,
1017 VJ Amsterdam

Screaming Beans

Screaming Beans is een Amsterdams merk dat lokaal en internationaal bekend staat om zijn hoogwaardige koffie. De locatie heeft een prachtige, open bakstenen bar en een rustige zitruimte. Het is de perfecte plek om te werken of gewoon achterover te leunen, koffie te drinken en te ontspannen.

13
Adres
Utrechtsestraat 89,
1015 VK Amsterdam

Restaurant Soenda Kelapa

Indonesische familiebedrijf biedt een- en tweepersoons rijsttafels, een à-la-cartemenu en verzorgt ook catering klussen. Ze serveren eten geïnspireerd op de West Javaanse keuken. ‘Soenda’ is namelijk de provincienaam van dat gebied. Gelegen midden in de Utrechsestraat is dit een geweldige plek om goed Indonesisch eten te proeven.

305748202_511320170994427_4478601608384911263_n
14
Adres
Rembrandtplein 1,
1017 CT Amsterdam

Café Los

Tot in de jaren '80 was Café Los een politiebureau. Waar vroeger het cellencomplex stond, bevinden nu de toiletten van het café.  Degene die het pand ombouwde besteedde daaraan al zijn geld en was na de verbouwing dus 'los'. Vandaar de naam. Tegenwoordig is het een gezellig bruin café en open tot diep in de nacht.

Kunst & cultuur
Evabloem_Hermitage-020.jpg.1200x630_q85
15
Adres
Amstel 51,
1018 EJ Amsterdam

H'ART Museum

'Het voormalige Hermitage museum gaat nauw samenwerken met British Museum, Centre Pompidou en Smithsonian American Art Museum. H’ART Museum opent vensters op de wereld en toont de verbindende kracht van kunst.' Door de verbintenis met deze internationale topmusea komen wereldberoemde kunstcollecties naar Amsterdam. Centre Pompidou heeft een van de belangrijkste collecties moderne en hedendaagse kunst in Europa. Het British Museum kent als een van de oudste musea ter wereld een collectie die continenten en oceanen omspant. Smithsonian American Art Museum (SAAM) heeft naam en faam als een van de bekendste musea van het Smithsonian Institution.

 

BC_02028_052
16
Adres
Amstel 51,
1018 EJ Amsterdam

Amsterdam Museum

In het voormalige Burgerweeshuis van Amsterdam bevindt zich sinds 1975 het Amsterdam Museum. In 1926 opende het museum in de Waag en sindsdien fungeert het museum als ware schatkamer van de stad. De historische collectie vertelt aan de hand van duizenden kunstwerken en voorwerpen het indrukwekkende verhaal van de stad, reikend van de vroege Middeleeuwen tot het heden. Naast de vaste collectie die het historische verhaal van Amsterdam laat zien, vertellen de wisselende tentoonstellingen de verhalen van het hedendaagse Amsterdam.

eetkamer-web
17
Adres
Herengracht 605,
1017 CE Amsterdam

Huis Willet-Holthuysen

Het indrukwekkende Willet-Holthuysenhuis bevindt zich in het hart van Amsterdam. Dit dubbele herenhuis aan de Herengracht herbergt talloze stijlkamers. De naam van het huis is afgeleid van het echtpaar dat hier aan het einde van de 19e eeuw woonde: Abraham Willet en Louisa Holthuysen. Zij verzamelden een schat aan kunst en objecten en lieten het interieur naar hun persoonlijke smaak vormgeven. Zelfs destijds werd dit prachtige huis beschouwd als een eerbetoon aan een romantisch verleden. Het interieur diende als het middel waarmee het echtpaar hun smaak en welvaart met anderen deelde. De schitterende salons zijn in de stijl van Lodewijk XVI ingericht en de tuin is symmetrisch aangelegd als een formele Franse tuin. In deze romantische stijlkamers organiseert het Amsterdam Museum tentoonstellingen met werk van hedendaagse kunstenaars en verzamelaars.

img_9450-2
18
Adres
Utrechtsestraat 44 BG,
1017 VP Amsterdam

Enari Gallery

Enari gallery ligt in het hart van Amsterdam. Het is opgericht door Paul van Gemen en Christina Voulgari medio november 2022. De galerie legt de nadruk op het cureren van opvallende tentoonstellingen met een sterke internationale oriëntatie, waarbij zowel opkomende als gevestigde kunstenaars worden gepresenteerd. Hun missie is om de culturele loopbaan van de kunstenaars die ze vertegenwoordigen verder te bevorderen door middel van vooraanstaande exposities. Hierdoor biedt de galerie een platform voor artistiek talent om in contact te komen met vooraanstaande figuren uit de kunstwereld.

19
Adres
Plantage Middenlaan 2a,
1018 DD Amsterdam

Hortus Botanicus

De Hortus Botanicus Amsterdam is een van de oudste botanische tuinen ter wereld. Ook de Oranjerie, het bijbehorende grand café, is een eeuwenoud monument waar je – zelfs midden in de winter – heerlijk tot rust komt. Ze hebben een uitgebreide lunchkaart, en je eet terwijl je middenin de prachtige tropische tuinen zit. In de zomer is het terras natuurlijk ook open. Het is een van de best bewaarde geheimpjes van Amsterdam, zeker de moeite waard om heen te gaan en de rust van het groen zelf te ervaren.

Boodschappen
67482526_3181760118517216_8278390957271941120_n
Schermafbeelding 2022-03-28 om 16.52.53
20
Adres
Waterlooplein 2,
1011 NZ Amsterdam

Waterloopleinmarkt

Achter de Stopera vind je volgens velen de beste vlooienmarkt van Amsterdam. Onder andere hebben ze hier prachtige platen, foto’s maar ook stapels prachtige vintage kleren. Menig hippe Amsterdammer scoort hier zijn Levi’s 501. Maar ook mooie accessoires, sieraden en onderdelen voor je fiets kan je hier kopen. Elke werk- en zaterdag geopend.

sterk-staaltje-winkel
21
Adres
Staalstraat 12,
1011 JL Amsterdam

Sterk Staaltje

Sterk Staaltje is al meer dan twintig jaar een begrip in de binnenstad van Amsterdam. Deze unieke eetwinkel heeft een grote variatie aan eten met een nadruk op vers. Zo is iedere maaltijd, broodje, salade of soep net een beetje anders. Met bezoekers uit alle lagen van de bevolking; van omwonenden en kantoorpersoneel tot studenten en toeristen die hier een broodje komen eten. Je kan hier kortom terecht voor een sterk staaltje eten.

Interieur
TW-Reality-Check-3-2800px-600×600
Droog_Gallery
cafe-droog
22
Adres
Staalstraat 7B,
1011 JJ Amsterdam

Droog

Droog is een designlabel gevestigd in Amsterdam en staat bekend om hun conceptuele en contextuele benadering van design. De naam Droog staat voor de droge humor van de designs in hun collectie. Een verwijzing naar de Nederlandse nuchterheid. Naast een galerie is er ook een winkel, een restaurant en verschillende ruimtes die gehuurd kunnen worden. Alle ruimtes hebben hun eigen unieke karakter en zijn ingericht met kunst en design stukken uit de Droog collectie.

279056119_499852685014635_8123187631375995143_n
278672372_493889782277592_5408348043727345845_n
23
Adres
Utrechtsestraat 62,
1017 VR Amsterdam

Mobilia

Mobilia is een prachtige interieurzaak op de Utrechtsestraat. Rini Scherpenisse is de eigenaar van de zaak en runt deze met passie sinds 2001. Gelukkig is hij niet alleen en wordt hij ondersteund door een team jonge en gepassioneerde interieur designers. De design studio is door het vriendelijke team enorm toegankelijk en laagdrempelig, niemand hoeft een échte design kenner te zijn om hier naar binnen te stappen. De Instagram van de zaak dient als perfecte tool om inspiratie op te doen en daarna is een belletje of e-mail genoeg om een afspraak te maken.

47682925_2138085526252244_3479898621955014656_n
24
Adres
Valkenburgerstraat 201A,
1011 MJ Amsterdam

Baden baden

Baden Baden Interior is een badkamer- en interieurwinkel die in 2000 werd opgericht. De winkel bestaat uit een regelmatig wisselende eclectische mix van meubelen, design, kunst, objecten en accessoires. Als liefhebber van goed design kan je je hart ophalen bij Baden Baden Interior en kom zeker langs voor luxe, tijdloze en comfortabele badkamers, kranen en Italiaanse merken die naadloos aansluiten bij uw persoonlijke wensen.

14485124_526385714238776_4161774116515468985_n
25
Adres
Valkenburgerstraat 167-A,
1011 MJ Amsterdam

Arclinea

Bij Arclinea Amsterdam helpen ze je graag bij het creëren van je Italiaanse droomkeuken. De keukens behoren door hun professionaliteit, klasse en tijdloosheid tot de absolute top van het keukendesign. Stuk voor stuk combineert Arclinea in hun keukens professioneel koken met prachtig design en innovatieve apparatuur.Bekijk het zelf in hun showroom aan de Valkenburgerstraat in Amsterdam.

Binnenkijken; samen met bewoner Joost Houtman en architect Thomas Geerlings

Binnenkijken; samen met bewoner Joost Houtman en architect Thomas Geerlings

‘Rijkszicht’, een elegant dubbel bovenhuis in het museumkwartier

‘Rijkszicht’, een elegant dubbel bovenhuis in het museumkwartier

Buurtgids: Oud-West, een selectie van fijne plekken

Buurtgids: Oud-West, een selectie van fijne plekken

Onlangs bekeken
Bekijk het overzicht

Deze site maakt gebruik van cookies.

Voor welke cookies geef je akkoord?