Dubbel bovenhuis van circa 277 m², gelegen in het geliefde Amsterdam-Zuid. De woning beschikt over een riante woonkamer, een open keuken met kookeiland, drie slaapkamers (met de mogelijkheid om extra slaapkamers te creëren, zie alternatieve plattegrond), twee badkamers en twee ruime balkons die de woonkwaliteit op beide verdiepingen versterken. De erfpacht is eeuwigdurend afgekocht onder de voorwaarden van AB2016.

Rondleiding
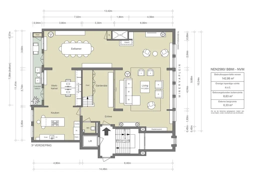
Het gemeenschappelijke trappenhuis en de lift geven toegang tot de derde verdieping. Hier bevindt zich de entree met garderobe en gastentoilet. De living aan de voorzijde strekt zich breed uit over de Minervalaan en wordt gekenmerkt door hoge ramen die licht en ritme binnenbrengen. De ruimte is royaal genoeg voor meerdere functies en biedt uitzicht op de laan.
Aan de achterzijde ligt de eetkamer, direct verbonden met de keuken. De openslaande deuren naar het woningbrede balkon versterken de relatie met de binnentuinen. De keuken is modern ingericht met kookeiland, natuurstenen werkbladen en een aparte ontbijthoek.
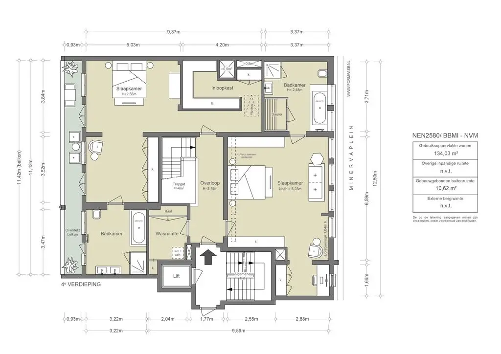
De trap naar de vierde verdieping leidt naar de slaapverdieping. De hoofdslaapkamer aan de achterzijde beschikt over een eigen balkon en badkamer met ligbad, douche en dubbele wastafel. De tweede slaapkamer aan de voorzijde heeft een hoge nok en dakramen en beschikt over een badkamer met ligbad, douche en sauna. Tussen beide kamers ligt een ruime inloopkast.
De rondgang door de woning maakt duidelijk dat Résidence Minerva meer is dan een verzameling vertrekken. Het is een samenhangend geheel waarin licht, ruimte en rust elkaar versterken, en waar historische architectuur en modern comfort harmonieus samenvloeien.

Buitenruimte
De balkons versterken de woonkwaliteit van beide verdiepingen. Het balkon bij de eetkamer is ideaal voor diners in de buitenlucht, terwijl het balkon bij de slaapkamers een intieme plek biedt voor rust en ontspanning.
De ligging aan de Minervalaan combineert stedelijke allure met luwte en beslotenheid. Winkels, restaurants en culturele instellingen liggen op loop- en fietsafstand. Met tram, bus of metro zijn zowel de binnenstad als Schiphol en andere steden eenvoudig bereikbaar.

Buurtgids
In de Beethovenstraat geven de koffiebars en restaurants als Van der Veen en Ferilli’s de wijk een jong en dynamisch karakter. Op het Olympiaplein bevindt zich de bakker Le Fournil en Fromagerie L’Amuse. De brede lanen en het groen van het Beatrixpark, met z’n moderne beelden en oude bomen, creëren een gevoel van ruimte en zijn ideaal om te sporten en ontspannen. De buurt staat bekend om z’n goede basis- en middelbare scholen en ook om de gunstige ligging ten opzichte van de Ring en station Amsterdam Zuid.

Bijzonderheden:
• Gebruiksoppervlakte van circa 277 m²
• Twee balkons gelegen op het oosten met totaal een oppervlakte van circa 17 m²
• Rijksmonument
• Erfpacht eeuwigdurend afgekocht AB2016
• Bouwtechnisch zeer goed verbouwd en uitstekend onderhouden
• VvE functioneert goed
• Twee riante bergingen
• Mogelijkheid tot koop van 1 garageplaats
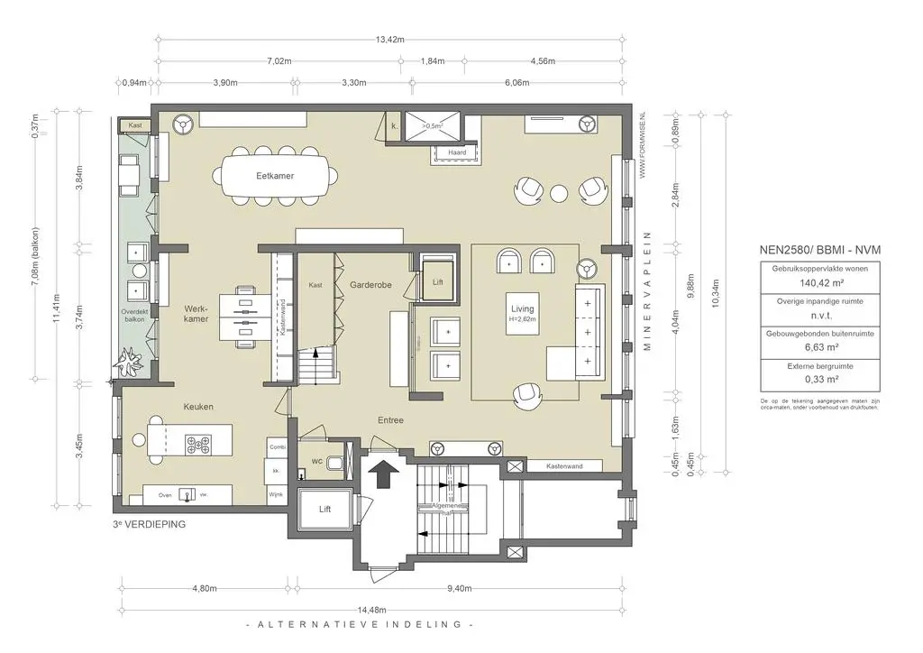
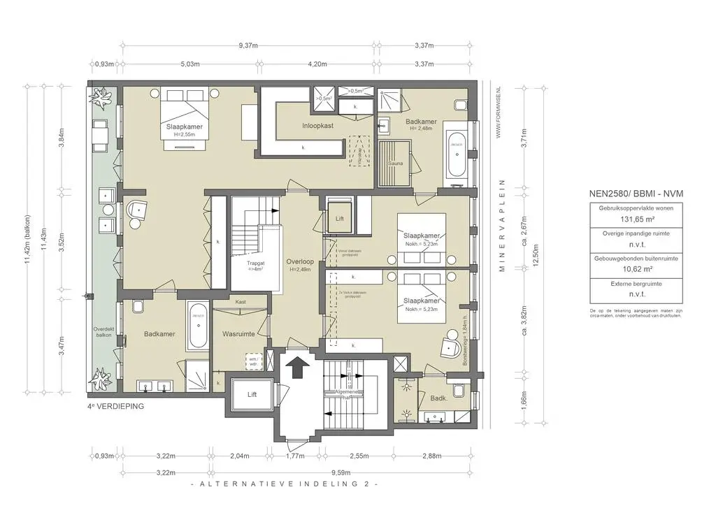
• Op de alternatieve plattegrond is tevens een indeling gemaakt met drie slaapkamers en badkamers en een inpandige privé lift

Résidence Minerva
Sommige woningen laten zich niet eenvoudig vangen in woorden. Résidence Minerva behoort tot die categorie. Dit dubbele bovenhuis verenigt grandeur en intimiteit. Het pand ademt de rijkdom van de Amsterdamse architectuur uit het Interbellum en combineert deze met de ruimte en het comfort die vandaag de dag worden verlangd.
De ruimtelijkheid is onmiddellijk voelbaar bij binnenkomst. De living strekt zich breed uit over de Minervalaan, waarbij maar liefst zes ramen het licht gefilterd binnenlaten en tevens een zeer fraai uitzicht bieden. Aan de achterzijde opent de woning zich naar een onverwachte stilte, waar twee woningbrede balkons uitzicht bieden op de groene binnentuinen.
Résidence Minerva presenteert zich als een stedelijke retraite: royaal, licht en harmonieus. Een woonhuis dat uitnodigt tot samenleven, maar tevens rust en beslotenheid biedt.


Ronald van de Bijl | Makelaar Broersma Wonen
Kees Kemp | Makelaar Broersma Wonen
AM106557-2044671-Minervalaan-58-3,-Amsterdam-244734866
Designvisie

Résidence Minerva is een representant van de architectuur uit het Interbellum, ontworpen in de stijl van de Nieuwe Zakelijkheid met invloeden van de Amsterdamse School. Het metselwerk is sober en verfijnd, met horizontale banden, geometrische raamverdelingen en een duidelijke ritmiek in de gevel. De entree is klassiek vormgegeven met een houten deurpartij, natuursteen en baksteen onder een uitkragende luifel. Het originele trappenhuis is intact gebleven en wordt gekenmerkt door marmeren lambrisering, een houten trapleuning en een authentieke lift. De bovenste twee verdiepingen combineren het oorspronkelijke karakter met hedendaagse ruimtewerking. Aan de voorzijde ligt een breed uitzicht over de Minervalaan; aan de achterzijde de stilte van de groene binnentuinen. Résidence Minerva vormt daarmee een toonbeeld van de Amsterdamse wooncultuur in haar meest tijdloze verschijningsvorm. Als rijksmonument is het gebouw onderdeel van het beschermde erfgoed van de stad. De woning is bouwtechnisch grondig verbouwd en verkeert in uitstekend onderhoud.

AM106557-2044671-Minervalaan-58-3,-Amsterdam-242367288
AM106557-2044671-Minervalaan-58-3,-Amsterdam-242367562
AM106557-2044671-Minervalaan-58-3,-Amsterdam-242367690
AM106557-2044671-Minervalaan-58-3,-Amsterdam-242367578
Wonen en koken

De derde verdieping van Résidence Minerva is ingericht als lichte en open woonlaag. Aan de voorzijde bevindt zich de living, breed en ruimtelijk, met zes ramen en uitzicht over de Minervalaan. De royale maatvoering biedt ruimte voor meerdere indelingen, variërend van zithoek tot bibliotheek of werkruimte. Aan de achterzijde ligt de eetkamer, in directe verbinding met de keuken en voorzien van toegang tot het woningbrede balkon. De openslaande deuren versterken de relatie met buiten en brengen lucht en licht in de ruimte. De keuken is uitgevoerd met strakke fronten, een kookeiland en natuurstenen werkbladen. De indeling biedt ruimte voor informele momenten, terwijl de eetkamer een formeel en royaal karakter behoudt. De routing door deze woonlaag is overzichtelijk en vloeiend, met telkens zicht op de buitenruimte.

AM106557-2044671-Minervalaan-58-3,-Amsterdam-242367396
AM106557-2044671-Minervalaan-58-3,-Amsterdam-242367466
AM106557-2044671-Minervalaan-58-3,-Amsterdam-242367408
AM106557-2044671-Minervalaan-58-3,-Amsterdam-242367500
AM106557-2044671-Minervalaan-58-3,-Amsterdam-242368186
AM106557-2044671-Minervalaan-58-3,-Amsterdam-242367838
AM106557-2044671-Minervalaan-58-3,-Amsterdam-242367952
Slapen en baden

De slaapverdieping van Résidence Minerva is opgezet als rustige en comfortabele woonlaag. De hoofdslaapkamer aan de achterzijde opent naar het woningbrede balkon, heeft een ruime inloopkast en beschikt over een aangrenzende badkamer, afgewerkt in marmer met ligbad, douche en dubbele wastafel. De plafondhoge ramen brengen overvloedig daglicht en verbinden de kamer met het groene binnengebied. Aan de voorzijde bevindt zich een tweede slaapkamer met hoge nok en dakramen. Deze kamer beschikt over een tweede badkamer met ligbad, douche en sauna, uitgevoerd in natuursteen en hout. De overloop is licht en overzichtelijk en verbindt de vertrekken op logische wijze. Hier is een wasruimte met alle gemakken. Door de open trap is er een natuurlijke verbinding met de hal beneden. De verdieping combineert privacy, luxe en ruimtelijkheid in een uitgebalanceerde compositie.

AM106557-2044671-Minervalaan-58-3,-Amsterdam-242367910
AM106557-2044671-Minervalaan-58-3,-Amsterdam-242368230
AM106557-2044671-Minervalaan-58-3,-Amsterdam-242368172
AM106557-2044671-Minervalaan-58-3,-Amsterdam-242368258
AM106557-2044671-Minervalaan-58-3,-Amsterdam-242367762
AM106557-2044671-Minervalaan-58-3,-Amsterdam-237694636
AM106557-2044671-Minervalaan-58-3,-Amsterdam-242367752
De buitenruimte

Résidence Minerva beschikt over twee woningbrede balkons, beide aan de achterzijde gelegen. Het balkon op de woonverdieping grenst aan eetkamer en keuken en biedt ruimte voor dagelijks gebruik, van ontbijt tot diner. Het tweede balkon, verbonden met de slaapkamers, vormt een meer intieme buitenruimte. Beide balkons kijken uit over de groene binnentuinen en bieden daarmee een rustige tegenhanger van het stedelijke leven aan de voorzijde. De architectuur van het gebouw zorgt voor beschutting en evenwicht. Bakstenen borstweringen en natuurstenen details geven de balkons een solide en geborgen uitstraling.

AM106557-2044671-Minervalaan-58-3,-Amsterdam-244319486
AM106557-2044671-Minervalaan-58-3,-Amsterdam-244319472
AM106557-2044671-Minervalaan-58-3,-Amsterdam-244319492
AM106557-2044671-Minervalaan-58-3,-Amsterdam-244319478
AM105570-1902288-Minervaplein-1-4,-Amsterdam-202034041
Minervaplein 22 IV-95
AM106408-2023390-Minervaplein-29-4,-Amsterdam-234045378
Buurtgids

In de Beethovenstraat zorgen koffiebars en restaurants zoals Van der Veen en Ferilli’s voor een jong en levendig karakter in de wijk. Op het nabijgelegen Olympiaplein vindt u de bekende bakker Le Fournil en de ambachtelijke kaaswinkel Fromagerie L’Amuse. De brede lanen en het groene Beatrixpark, met zijn combinatie van moderne sculpturen en monumentale bomen, zorgen voor een ruimtelijk gevoel en vormen de ideale plek om te sporten of te ontspannen.
De buurt staat daarnaast bekend om haar uitstekende basis- en middelbare scholen, evenals de gunstige ligging ten opzichte van de Ring A10 en station Amsterdam Zuid.

Bereikbaarheid
De ligging van Résidence Minerva is optimaal voor zowel openbaar vervoer als autoverkeer. Op korte loopafstand bevindt zich de halte Minervaplein, met directe tramlijnen naar het centrum en station Zuid. Bushaltes in de directe omgeving bieden verbinding met onder meer Schiphol en Amsterdam Centraal. Station Zuid ligt nabij en biedt toegang tot de Noord/Zuidlijn en het landelijke spoornetwerk. Per fiets en te voet zijn alle voorzieningen in Amsterdam-Zuid eenvoudig bereikbaar. De Beethovenstraat, het Museumplein en het Vondelpark liggen op korte afstand. Met de auto zijn de ringweg A10 en de aansluitingen naar de A2 en A9 binnen enkele minuten bereikbaar, waardoor zowel de binnenstad als de Randstad vlot toegankelijk zijn.

Parkeren
Parkeren is mogelijk via een vergunningenstelsel op de openbare weg (vergunningsgebied Zuid 2.2). Met een parkeervergunning voor Zuid 2.2 mag u parkeren in Zuid-1, Zuid-2 en Zuid-8. Een parkeervergunning voor bewoners kost 192,81 per 6 maanden. Momenteel is er voor dit vergunningsgebied geen wachttijd. Een tweede parkeervergunning kost € 482,03 per 6 maanden. (Bron: Gemeente Amsterdam, september 2025).

AM105570-1902288-Minervaplein-1-4,-Amsterdam-202034037
AM106557-2044671-Minervalaan-58-3,-Amsterdam-242367546
AM106557-2044671-Minervalaan-58-3,-Amsterdam-242368328
AM106557-2044671-Minervalaan-58-3,-Amsterdam-242367362
Kenmerken
Minervalaan 58-3, Amsterdam
Vraagprijs
  • € 2.900.000 k.k.
Beschikbaarheid
  • In overleg
Vertrekken
  • 8 kamers
  • 3 slaapkamers
  • 2 badkamers
Onderhoud
  • Intern: Uitstekend
  • Extern: Uitstekend
Oppervlakten & Inhoud
  • Woonoppervlakte: 277 m²
  • Overige inpandige ruimte: 5 m²
  • Gebouwgebonden buitenruimte: 17 m²
  • Externe bergruimte: 72 m²
Bouwjaar
  • 1931
Installaties
  • Airconditioning
  • Alarminstallatie
  • Lift
Ligging
  • In centrum
  • In woonwijk
Parkeren
  • Betaald parkeren
  • Op eigen terrein
  • Openbaar parkeren
  • Parkeergarage
  • Parkeervergunningen
  • Inpandig
  • Parkeerkelder
  • Parkeerplaats
Schuur/Berging Voorzieningen
  • Met vliering
  • Voorzien van elektra
  • Voorzien van verwarming
  • Voorzien van water
Type verwarming
  • Blokverwarming
  • Gashaard
Type warmwater
  • Elektrische boiler eigendom
Bestemming
  • Woonruimte
Eigendomssoort
  • Eigendom belast met erfpacht
Buitenruimte
  • Geen tuin
  • Balkon
Kadastraal
  • Gemeente: Amsterdam
  • Sectie: Z
  • Nummer: 2402
Duurzaamheid
  • Volledig geisoleerd
Soort
  • Appartement
  • Bovenwoning
Welke woonlaag
  • 3e
Bijzonderheden
  • Beschermd stads of dorpsgezicht
  • Monument
  • Monumentaal pand
Overige kenmerken
  • OZB ('25) € 1.207,66 per jaar
  • Rioolrecht ('25) € 185,20 per jaar
  • Servicekosten VvE woning € 619,58 per maand
  • Bouwtechnisch zeer goed verbouwd en uitstekend onderhouden
  • VvE functioneert goed
  • Twee riante bergingen
  • Mogelijkheid tot dakterras
  • Mogelijkheid tot koop van 2 garageplaatsen
  • Op de alternatieve plattegrond is tevens een indeling gemaakt met drie slaapkamers en badkamers en een inpandige privé lift
     
Plattegrond
Minervalaan 58-3, Amsterdam
AM106557-2044671-Minervalaan-58-3,-Amsterdam-244319472
AM106557-2044671-Minervalaan-58-3,-Amsterdam-244319478
AM106557-2044671-Minervalaan-58-3,-Amsterdam-244319486
AM106557-2044671-Minervalaan-58-3,-Amsterdam-244319492
AM106557-2044671-Minervalaan-58-3,-Amsterdam-244319498
Documenten
Minervalaan 58-3, Amsterdam
Locatie
Minervalaan 58-3, Amsterdam
Interieur
5a1eff_bf84a6dcd25c4e9983e1e74f8140f4da_mv2
01
Adres
Rubensstraat 45,
1077 MJ Amsterdam

Flower fusion

Elke zaterdag van 9:30 tot 17:00 kunt u Ilona Bokma van Flowerfusion vinden op de ZuiderMRKT. Unieke en schitterende bloemen waardoor je het gevoel krijgt middenin een pluktuin te staan. Doordat Ilona iedere week andere bloemen, planten en kleuren uitzoekt die aansluiten bij het seizoen, is het elke zaterdag weer een feestje om langs te gaan bij Flowerfusion.

Annindriya-Perfume-_Lounge-Local-Minded-005_lichter_Lowres_480x480
perfumelounge 2
02
Adres
Cornelis Krusemanstraat 25,
1075 NC Amsterdam

Perfume Lounge

Bij de ‘Perfume lounge’ richten ze zich op het maken en adviseren van geuren voor bedrijven en organisaties en wat reuk kan toevoegen aan een merk of organisatie. Daarnaast hebben zij een winkel met een assortiment van de meest bijzondere parfums van de wereld, waar zij ook persoonlijk geuradvies geven. Advies voor op de huid of in huis. Volgens de experts voegt geur iets toe wat niet zichtbaar en tastbaar is. Je kunt geur op verschillende manieren inzetten in een ruimte. Het begint natuurlijk eerst dat het er niet negatief mag ruiken. Er zijn best wel veel ruimtes waar je het riool of sanitair ruikt, waar veel gerookt is of waar de afzuiging niet goed is en het naar eten ruikt. De meeste simpele manier van geur in huis is dat het schoon ruikt. Veel mensen associëren schoonmaak of wasmiddel met een schoon, opgeruimd en verzorgd huis. Daarnaast kun je de ambiance aanzetten. Net zoals met licht en muziek kun je de sfeer verzachten of versterken. Je kunt het heel huiselijk laten ruiken of juist heel modern. Landelijk of artistiek. Of juist heel minimalistisch of intiem.

Eten & drinken
03
Adres
Olympiaplein 111,
1077 CV Amsterdam

The Coffee District

Eigenaren Adil Loukane en Rosa Loukane begonnen met een hole-in-the-wall coffeeshop in een modewinkel in Zuid. Toen de winkel de deuren sloot, grepen Adil en Rosa hun kans en besloten om hun eigen koffiebar te openen. Inmiddels hebben ze meerdere locaties. De koffie wordt gemaakt met een eigen melange gebrand door Lot Sixty One. Daarnaast worden er zoetigheden aangeboden zoals de inmiddelsal bekende kaneelbroodjes en bananenbrood.

89760007_208364853843740_4913033452334350336_n
04
Adres
Beethovenstraat 58,
1077 JK Amsterdam

Winebar QV

Bij Winebar QV kan je in principe de hele dag doorbrengen alsof je in Italië bent. Je begint met een Italiaanse espresso, luncht met een warme maaltijd en sluit af met een goed glas wijn met bijbehorend een Italiaanse aperitivo. Het is er gezellig en stijlvol ingericht en je kan aan de hoge krukken aan de bar zitten, aan de lagere tafeltjes of op het kleine terras.

315761837_664619815074448_8137880443810625460_n
321084772_1555342291555230_7489434614896126447_n
05
Adres
Beethovenstraat 38,
1077 JJ Amsterdam

Et Claire

Op de Beethoven straat bevindt zich Et Claire. Et Claire is ontstaan uit een voorliefde voor de beste viennoiserie, koffie, (ijs)thee in combinatie met eindeloze zoete en hartige mogelijkheden.  Het motto bij et Claire is ''ne vous contentez pas de moins'', wat betekent dat je niet genoegen moet nemen met minder.

264088316_309512271179442_4492361891256328028_n
242514067_218469310302263_8949483099160412699_n
06
Adres
Beethovenstraat 19,
1077 HM Amsterdam

Cafecito

Cafecito, een minimalistische koffiezaak, biedt hoogwaardige koffie uit stralend witte machines. Het is een onderdeel van de Cafecito-franchise, een Amsterdamse koffiebranderij die besloot koffiezaken te openen om hun eigen afzet te stimuleren toen de verkoop aan horecagelegenheden tijdens de pandemie stagneerde. Cafecito heeft al drie vestigingen in Amsterdam en één in Rotterdam. Cafecito is een tot de essentie teruggebrachte zaak. Je drinkt er topkoffie uit witte machines.

84942268_1529941500492597_3844385910518972416_n
07
Adres
Apollolaan 138,
1077 BG Amsterdam

Roberto's Restaurant Amsterdam

In de top tien Italiaanse restaurants van Amsterdam mag Roberto’s niet ontbreken. Het restaurant is gelegen in het Hilton hotel, waar de iconische Italiaanse keuken sinds 25 jaar de borden vult. Het restaurant draait om pure en simpele smaken met gerechten als dungesneden aubergine, groene farfalle pasta met kreeftensaus en Lava cake.

frietsteeg
08
Adres
Stadionkade 73 /A,
1076 BJ Amsterdam

De Frietsteeg

De Frietsteeg is een snackbar aan de gracht in de Stadionbuurt. Ze serveren hier heerlijke krokante frietjes en vele andere snacks. De frieten worden met de hand gesneden en je hebt keus uit meer dan 20 sauzen. Ook bijzonder: de Frietsteeg is gevestigd in een historisch huisje en er is een groot zonnig terras aan het water

84828243_1531217050352887_4539296221554016256_o
09
Adres
Agamemnonstraat 27,
1076 LP Amsterdam

Umeno

Umeno is een van de oudste Japanse restaurants in Amsterdam dat geliefd is bij haar vaste lokale gasten. Zodra je binnenstapt zie je een intieme ruimte met traditionele Japanse authenticiteit gevormd door het handgemaakte houten interieur, de shamisen en shakuhachi muziek en de enorme gastvrijheid van Ayumi en Atsuhito Hosono. De nigiri sushi is een aanrader, want de kwaliteit van de vis is uitstekend.

10
Adres
Valeriusstraat 85,
1071 MG Amsterdam

Carter

Carter is een moderne brasserie in Amsterdam-Zuid waar internationale klassiekers worden geserveerd met flair en finesse. Aan de Valeriusstraat voelt deze plek als een elegant buurtcafé – informeel, verfijnd en altijd gastvrij. Op de kaart staan tijdloze gerechten als steak tartare, burrata en kreeftenpasta, met een solide wijnselectie ernaast.

11
Adres
Valeriusstraat 128B,
1075 GD Amsterdam

Castell Zuid

Castell Zuid is de stijlvolle nieuwe vestiging van het iconische Amsterdamse grillrestaurant Castell, gevestigd aan de Valeriusstraat in Oud-Zuid. Waar het origineel in het centrum bekendstaat om zijn no-nonsense steaks en late diners, brengt deze locatie dezelfde smaken in een verfijnde setting. “Same taste, same vibe, different look” luidt het motto – en dat klopt: herkenbaar en toch helemaal nieuw.

tip_10694-edible-treasures-large
12
Adres
Jacob Obrechtstraat 75,
1071 KK Amsterdam

Edible Treasures

In een voormalige slagerij in Amsterdam Zuid huist de concept store Edibe Treasures. Naast de 'edibles en drinkables' in de koffieshop vind je hier een prachtige selectie van alles voor op de tafel zoals zilverwerk, keramiek, tafellinnen, maar ook kookboeken en accessoires. Er worden ook regelmatig pop ups en workshops georganiseerd.

13
Adres
Valeriusstraat 90,
1075 GH Amsterdam

Barolo

Bar Barolo brengt de sfeer van Noord-Italië naar de Valeriusstraat, midden in het elegante Amsterdam-Zuid. De wijnkaart is royaal en zorgvuldig samengesteld, met Barolo als vanzelfsprekend middelpunt. Op het menu: huisgemaakte pasta, klassieke antipasti en seizoensgerechten zonder opsmuk. Het interieur is warm en ingetogen, net als de gastvrijheid – hier wordt met aandacht gewerkt.

312175149_2011502502368624_2613652535986311070_n
14
Adres
Koninginneweg 34,
1075 CZ Amsterdam

Tozi

TOZI betekent in Venetiaans dialect ‘een groep vrienden’, en dat voel je direct als je binnenkomt. Het is net alsof je terecht komt in één grote familie. De kaart toont een selectie van kleine Venetiaans geïnspireerde gerechten om te delen, bekend als cicchetti. Met een Italiaanse wijnkaart en een cocktailbar met Italiaanse gins en negroni's.

 

366416263_660727485939210_4584064804028118782_n
15
Adres
Valeriusplein 4A,
1075 BG Amsterdam

Juliette

In Amsterdam Zuid  kun je bij Juliette genieten van ontbijt en lunch in de zon. Het menu is gebaseerd op verse ingrediënten van lokale leveranciers en wordt dagelijks samengesteld op basis van wat er op de markt beschikbaar is. Denk aan gerechten zoals de Porco Rosso: mortadella, stracciatellakaas, Spaanse guindillapepers en rode pesto. Voor het diner of een borrel kan je terecht bij buurman Bar Jules. De focus ligt op Zuid-Europese gerechten zoals pizzetta's, pata negra en geroosterde octopus.

downloadgram.org_612368537_18441156778097723_3706005334160954595_n
16
Adres
Johannes Verhulststraat 64-H,
1071 NH Amsterdam

Franzen

Chef en eigenaar Jesse Franzen groeide op in een horecafamilie in Haarlem. Zijn vader stond in de keuken, zijn moeder werkte in de bediening. Zijn eigen professionele reis begon in de keuken van het tweesterrenrestaurant Chapeau, waarna hij ervaring opdeed bij onder andere Aan de Poel, Ron Gastrobar en Lars Amsterdam. Met Franzen creëert Jesse een plek die voelt als een moderne huiskamer voor de stad. Toegankelijk en warm, maar altijd met een hoge standaard. Het menu is klassiek en herkenbaar, met hier en daar een verrassende twist.

17
Adres
Cornelis Schuytstraat 8-10,
1071 JH Amsterdam

Brasserie van Dam

Brasserie van Dam staat bekend om een simpele maar effectieve receptuur: een niet te uitgebreide kaart met kwalitatief goede producten, acceptabele prijzen, goede koffie, een fijne sfeer en vriendelijk personeel.

Boodschappen
Schermafbeelding 2022-05-12 om 19.08.47
18
Adres
Olympiaplein 111,
1077 CV Amsterdam

L'Amuse

Volgens sommigen is dit de beste kaaswinkel van Nederland. Ze hebben een indrukwekkend breed assortiment van de lekkerste kazen. Ook heerlijke wijn, salami, ham en olijfolie is hier te koop. Je wordt uitstekend geholpen en de kaas is echt van een ander niveau. Aanrader!

19
Adres
Olympiaplein 119,
1077 CW Amsterdam

Le Fournil de Sébastien

Le Fournil is het initiatief van Susan en Sébastien, die na jaren bakkerservaring in Frankrijk in 2007 naar Nederland kwamen om een authentieke Franse boulangerie te openen. De kracht ligt in het ambachtelijke handwerk, zuurdesem en de bewuste keuze voor kleinschaligheid en pure, traditionele broodbereiding.

hergo
20
Adres
Beethovenstraat 49,
1077 HN Amsterdam

Slagerij Hergo

Slagerij Hergo is de vleesspecialist in Amsterdam. Al in 1930 begon de heer Cantor, een Duitse worstmaker, samen met zijn vrouw die uit een Amsterdamse slagersfamilie kwam, zijn slagerij met typische Duitse worstspecialiteiten. Met het motto ‘De slager met ’n koksmuts’ is Hergo uitgegroeid naar vier verschillende locaties en is zo tegenwoordig niet meer weg te denken uit het straatbeeld van Amsterdam. Met jachtworst, hausmacher, ossenworst, pekelvlees maar ook met een broodje filet americain onderscheidt Hergo zich als slagerij in het topsegment.

21
Adres
Marathonweg 51,
1076 TB Amsterdam

Slagerij Zikking & Zoon

Slagerij Zikking & Zoon zit aan de Marathonweg en is een begrip in Amsterdam. Eigenaar Robert Zikking is een geboren en getogen Amsterdammer die samen met zijn vrouw in 1995 gepassioneerd en vol zelfvertrouwen een eigen zaak begon. Zoals hij zelf zegt: ‘Het is geen sprookje, maar een (h)eerlijke werkelijkheid die een geschiedenis heeft.’ De filet americain is gemaakt met het recept van een oude Jordaanse dam en niet te ontbreken is de nostalgische Amsterdamse ossenworst.

1593079817
22
Adres
Johannes Verhulststraat,
1066 VH Amsterdam

Slagerij De Schuyt

Slagerij De Schuyt, vernoemd naar hun locatie in de Cornelis Schuytstraat, heeft als symbool de parkiet. Net als de parkiet heeft deze kenmerkende slagerij zijn oorsprong in de jaren zeventig en hebben beiden hun plek veroverd in Amsterdam. Geïnspireerd door de parkiet begon eigenaar Evert Blauwendraat zijn slagerij met het idee om daar een karakteristiek, persoonlijk en bijzonder embleem aan te geven dat voor iedereen herkenbaar is. Bij dit familiebedrijf met een rijke historie kan je terecht voor vlees en delicatessen.

groentenier-winkel-voor-buiten
23
Adres
Cornelis Schuytstraat 35,
1071 NL Amsterdam

Groenteboer Tom Ensink

Groenteboer Tom Ensink zorgt ervoor dat klanten kunnen kiezen uit een exclusief assortiment aan eerlijke producten. Naast groenten worden er kazen, fruit, noten, oliën, wijnen én maaltijden verkocht - zorgvuldig geselecteerd voor de échte fijnproevers in Zuid. Specifieke wensen kunnen worden vervuld wat betreft het bestellen van producten, maar ook voor de verse maaltijden.

Kunst & cultuur
downloadgram.org_597897714_1508494480841935_8620457783605645660_n
24
Adres
Prinses Irenestraat 36,
1077 WX Amsterdam

De Thomas

De Thomas is een monumentale kerk aan de rand van de Zuidas waar religie en cultuur bewust samenkomen. Met een eigen theater, concerten en debatavonden is het een plek voor ontmoeting en verdieping, midden in het zakelijke hart van Amsterdam Zuid. Het gebouw geldt als een belangrijk voorbeeld van naoorlogse kerkarchitectuur in Nederland en is vormgegeven in een expressieve, brutalistische stijl.

pati_F1A7803ssdweb
_F1A4074
25
Adres
Parnassusweg 220,
1076 AV Amsterdam

Diez Gallery

Diez is een Amsterdamse kunstgalerie met een internationale uitstraling, opgericht in 2022 door Diego Diez. De tentoonstellingen worden samengesteld in samenwerking met kunstenaars die affiniteit hebben met Diez's interesses en zullen zowel internationaal als nationaal talent presenteren in Amsterdam. Naast het tentoonstellingsprogramma streeft Diez ernaar een toegankelijke ruimte te zijn voor een breed publiek met diverse activiteiten en evenementen zoals poëzielezingen, samengestelde diners en kunstenaarsgesprekken.

Buurtgids rondom de Andreas Schelfhoutstraat

Buurtgids rondom de Andreas Schelfhoutstraat

Samengesteld; tien keer anders wonen, allemaal met een tuin.

Samengesteld; tien keer anders wonen, allemaal met een tuin.

Een houten rijksmonument uit 1880

Een houten rijksmonument uit 1880

Onlangs bekeken
Bekijk het overzicht

Deze site maakt gebruik van cookies.

Voor welke cookies geef je akkoord?