Dit stijlvolle appartement van circa 113 m², gelegen op de tweede verdieping, biedt een aantrekkelijke combinatie van ruimte en comfort op een zeer geliefde locatie in Amsterdam-Zuid. De erfpacht is eeuwigdurend afgekocht. 
De woning beschikt over twee slaapkamers, een nette keuken en badkamer, en een royaal balkon van circa 10 m² op het zuiden, waar optimaal van de zon kan worden genoten. Een bijzondere extra is de kamer op de zolderverdieping, die veelzijdig inzetbaar is als werk-, hobby- of opslagruimte. 

Rondleiding 
Een stenen trap leidt naar de eerste etage, waar de entree zich bevindt naar de bovengelegen appartementen. Dit charmante jaren '30 appartement op de tweede etage kenmerkt zich door zijn karakteristieke uitstraling en praktische indeling. 
De centraal gelegen hal zorgt voor een ruimtelijke en overzichtelijke indeling. Aan de voorzijde bevindt zich de lichte living, waar grote ramen een overvloed aan daglicht binnenlaten. De ruimte is ingericht met een gezellige zithoek en een eetgedeelte, dat uitkijkt op de rustige straat. 
De dichte keuken, gelegen aan de achterzijde, is uitgevoerd in een lichte kleurstelling en voorzien van een natuurstenen werkblad. De keuken beschikt over diverse inbouwapparatuur, waaronder een gasfornuis met oven, vaatwasser en een koel-/vriescombinatie. 
Door de gehele woning ligt een lichte laminaatvloer, die bijdraagt aan een rustige en uniforme afwerking. 
Aan de achterzijde bevinden zich twee functionele slaapkamers, waarvan één kamer directe toegang biedt tot het zonnige balkon. 
De badkamer, uitgevoerd in wit/grijze tegels, is voorzien van een douche-/ligbadcombinatie en een dubbele wastafel. Een separaat toilet bevindt zich naast de badkamer, wat zorgt voor extra gemak. 
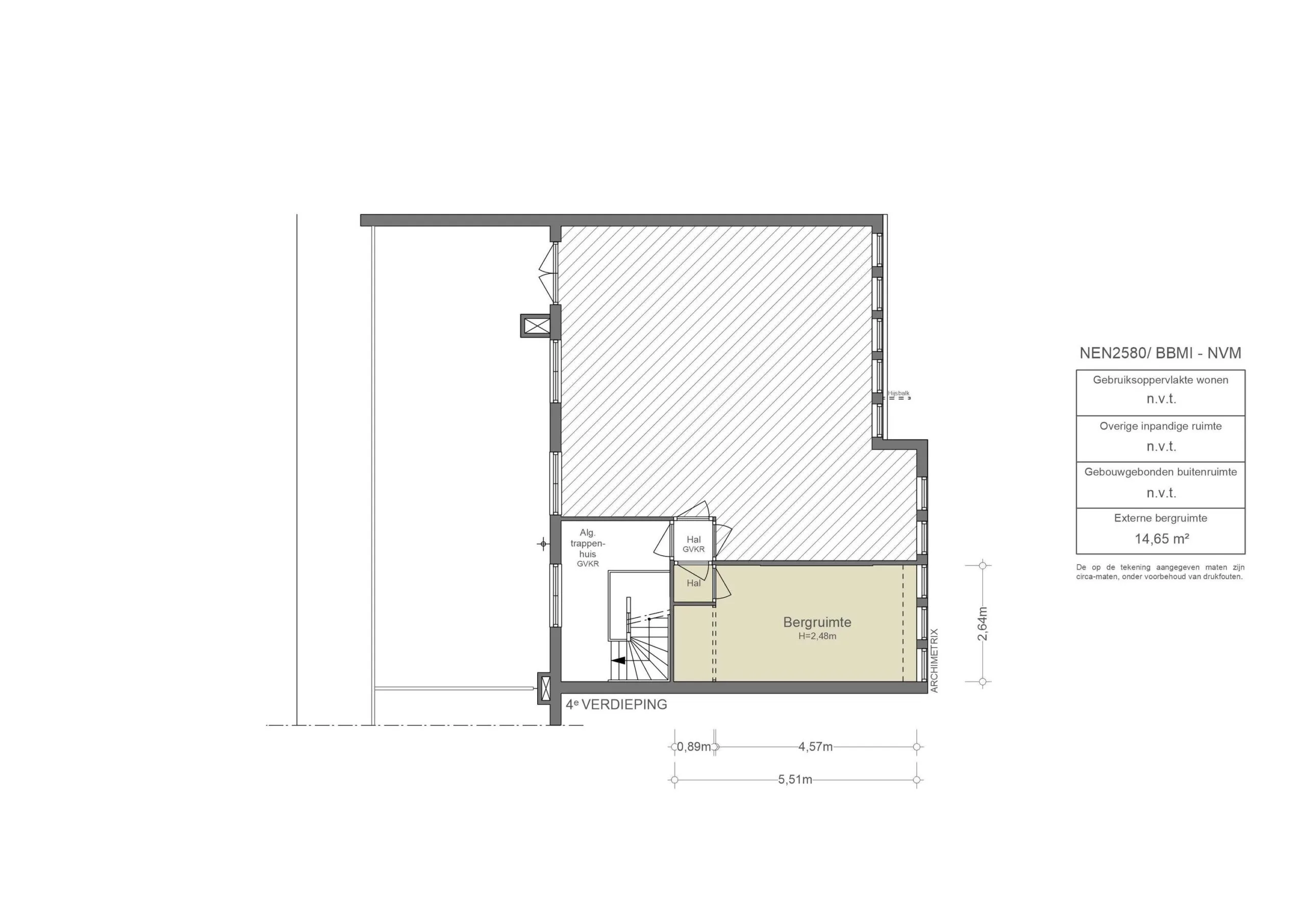
Op de bovenste zolderverdieping bevindt zich een extra kamer van circa 15 m². Hoewel de ruimte in gedateerde staat verkeert, biedt deze volop mogelijkheden om te worden ingericht als werkkamer, hobbyruimte of extra slaapkamer. 

Buitenruimte
Het balkon, gelegen over de volle breedte van de woning, is gesitueerd op het zonnige zuiden. Met voldoende ruimte voor een zitje en een prachtig uitzicht op de rustige binnentuinen, vormt dit een ideale plek om te genieten van de buitenlucht. 

Buurtgids 
Nog dagelijks genieten de Apollobuurt bewoners van de stedenbouwkundige stempel die architect Berlage in de vorige eeuw op de wijk heeft achtergelaten. Van villa’s tot herenhuizen: kenmerkend voor deze jaren 30 wijk, die bijna geheel wordt omringd door water, zijn de ruim opgezette woningen in de Amsterdamse School-stijl. Ook de gevelstenen en brugsculpturen van Hildo Krop, aan wie de eretitel Stadsbeeldhouwer van Amsterdam is toegekend, geven de buurt cachet. 
In de Beethovenstraat geven de koffiebars en restaurants als Van der Veen en Ferilli’s de wijk een jong en dynamisch karakter. Op het Olympiaplein bevindt zich de bakker Le Fournil en Fromagerie L’Amuse. De brede lanen en het groen van het Beatrixpark, met z’n moderne beelden en oude bomen, creëren een gevoel van ruimte en zijn ideaal om te sporten en ontspannen. De buurt staat bekend om z’n goede basis- en middelbare scholen en ook om de gunstige ligging ten opzichte van de Ring en station Amsterdam Zuid. 

Bijzonderheden 
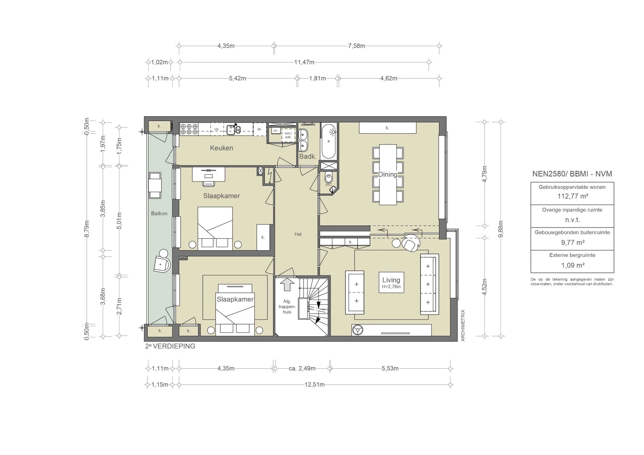
•    Gebruiksoppervlakte wonen circa 113 m²  
•    Berging van circa 15 m² 
•    Balkon gelegen op het zuiden van circa 10 m² 
•    De erfpacht is eeuwigdurend afgekocht  
•    Servicekosten VvE € 191,30 per maand 
•    Mogelijkheid creëren derde slaapkamer, zie alternatieve indeling
•    Rijksmonument 
•    Rijksbeschermd stadsgezicht 
•    Bestemming wonen en kamer – conform splitsingsakte  
•    Projectnotaris Lubbers & Dijk 
•    Niet zelfbewonersclausule & ouderdomsclausule zal er worden opgenomen in de koopakte 

AM105983-2111125-Milletstraat-53-2,-Amsterdam-255623544

ZONNEHOF
In dit bijzondere complex bevindt zich een eigentijds appartement van circa 113 m². Het appartement is heerlijk licht en beschikt over drie slaapkamers en een extra kamer op zolder, ideaal voor diverse gebruiksmogelijkheden. De Milletstraat, waar het appartement is gelegen, biedt een rustige en ruim opgezette woonomgeving. Tegelijkertijd geniet je van de nabijheid van hoogwaardige winkels, verfijnde horecagelegenheden en de sfeervolle biologische markt op vrijdag op het Minervaplein. Deze woning combineert rust, comfort en de gemakken van Amsterdam-Zuid, wat het tot een ideale keuze maakt voor wie op zoek is naar comfortabel wonen op een toplocatie. De Amsterdamse School, een schitterende bouwstijl die stadsdeel Zuid zijn karakteristieke uitstraling geeft, komt prachtig tot uiting in het woonblok Zonnehof. Dit rijksmonument is een icoon van de architectonische geschiedenis van de buurt.


Judith de Jong | Makelaar Broersma Wonen
AM105855-1996995-Milletstraat-27-1,-Amsterdam-240359688
Designvisie

Het woonblok ‘Zonnehof’, gebouwd in de periode 1938-1939 naar een ontwerp van Dick Greiner, omvat 256 luxe etagewoningen en is gerealiseerd in opdracht van de N.V. Bouw- en Exploitatiemaatschappij ‘Socrates’. Dit bouwblok, gelegen tussen de Watteaustraat, Courbetstraat, Michelangelostraat en Milletstraat, is uitgevoerd in een samensmelting van de Late Amsterdamse School en het Nieuwe Bouwen. Het hoekdeel aan de Watteaustraat en Courbetstraat (Watteaustraat 13 tot en met 17a en Courbetstraat 42 tot en met 48) werd later toegevoegd door Greiner in 1951. Het complex uit 1939-1940, inclusief een inpandig postkantoor, heeft een aanzienlijke architectuurhistorische en typologische waarde. Het markeert een belangrijke ontwikkeling binnen de etagebouw met trapportieken en weerspiegelt de latere stijl van Greiner, waarin expressionistische en functionalistische elementen naadloos samenkomen. De zorgvuldig uitgewerkte gevels met kenmerkend metselwerk, granito stoepen en betonnen luifels en dorpels dragen bij aan de architectonische verfijning van het geheel. ‘Zonnehof’, gelegen aan de Milletstraat in Amsterdam Zuid, vormt een iconisch voorbeeld van de Amsterdamse School. Met expressieve bakstenen gevels, ronde vormen en subtiele decoratieve elementen weerspiegelt het ontwerp een uitzonderlijke aandacht voor detail. De gevels zijn voorzien van siermetselwerk, horizontale lijnen en royale raampartijen die zorgen voor een speelse lichtinval. De karakteristieke symmetrie, bijzondere balkons en erkers combineren functionaliteit met een verfijnde esthetiek. De sculpturale vormen en de integratie van kunst, zoals de decoraties bij de entree en aan de gevels, onderstrepen de invloed van de Amsterdamse School.

AM105983-2111125-Milletstraat-53-2,-Amsterdam-255623516
AM105983-2111125-Milletstraat-53-2,-Amsterdam-255623530
AM105983-2111125-Milletstraat-53-2,-Amsterdam-255623520
AM105983-2111125-Milletstraat-53-2,-Amsterdam-255623598
Wonen en koken

Een stenen trap leidt naar de eerste etage, waar de entree zich bevindt naar de bovengelegen appartementen. Dit charmante jaren ’30 appartement op de tweede etage kenmerkt zich door zijn karakteristieke uitstraling en praktische indeling. De centraal gelegen hal zorgt voor een ruimtelijke en overzichtelijke indeling. Aan de voorzijde bevindt zich de lichte living, waar grote ramen een overvloed aan daglicht binnenlaten. De ruimte is ingericht met een gezellige zithoek en een eetgedeelte, dat uitkijkt op de rustige straat. De dichte keuken, gelegen aan de achterzijde, is uitgevoerd in een lichte kleurstelling en voorzien van een natuurstenen werkblad. De keuken beschikt over diverse inbouwapparatuur, waaronder een gasfornuis met oven, vaatwasser en een koel-/vriescombinatie. Door de gehele woning ligt een lichte laminaatvloer, die bijdraagt aan een rustige en uniforme afwerking.

AM105983-2111125-Milletstraat-53-2,-Amsterdam-255623536
AM105983-2111125-Milletstraat-53-2,-Amsterdam-255623522
AM105983-2111125-Milletstraat-53-2,-Amsterdam-255623546
AM105983-2111125-Milletstraat-53-2,-Amsterdam-255623570
AM105983-2111125-Milletstraat-53-2,-Amsterdam-255623562
AM105983-2111125-Milletstraat-53-2,-Amsterdam-255623600
Slapen en baden

Aan de achterzijde bevinden zich twee functionele slaapkamers, waarvan de grootste directe toegang biedt tot het zonnige balkon. De badkamer, uitgevoerd in wit/grijze tegels, is voorzien van een douche-/ligbadcombinatie en een dubbele wastafel. Een separaat toilet bevindt zich naast de badkamer, wat zorgt voor extra gemak.

Zolderverdieping
Op de bovenste zolderverdieping bevindt zich een extra kamer van circa 15 m². Hoewel de ruimte in gedateerde staat verkeert, biedt deze volop mogelijkheden om te worden ingericht als werkkamer, hobbyruimte of extra slaapkamer.

AM105983-2111125-Milletstraat-53-2,-Amsterdam-255623572
AM105983-2111125-Milletstraat-53-2,-Amsterdam-255623580
AM105983-2111125-Milletstraat-53-2,-Amsterdam-255623558
AM105983-2111125-Milletstraat-53-2,-Amsterdam-255623568
AM105983-2111125-Milletstraat-53-2,-Amsterdam-255623578
AM105983-2111125-Milletstraat-53-2,-Amsterdam-255623584
AM105983-2111125-Milletstraat-53-2,-Amsterdam-255623582
De buitenruimte

Het riante balkon, gesitueerd op het zonnige zuiden, strekt zich uit over de gehele breedte van de woning. Met voldoende ruimte voor een comfortabel zitje biedt het een prachtig uitzicht op de groene binnentuinen, een ideale plek om te genieten van rust en buitenlucht.

AM105983-2111125-Milletstraat-53-2,-Amsterdam-255623542
AM105982-1966042-Milletstraat-55,-Amsterdam-213879059
AM105983-2111125-Milletstraat-53-2,-Amsterdam-255623612
AM105983-2111125-Milletstraat-53-2,-Amsterdam-255623614
Buurtgids

De Apollobuurt ademt de stedenbouwkundige visie van architect Berlage, zichtbaar in de jaren 30-woningen in Amsterdamse School-stijl. Kenmerkend zijn de ruim opgezette villa’s en herenhuizen, omringd door water, en de gevelstenen en brugsculpturen van Hildo Krop, Stadsbeeldhouwer van Amsterdam. De Beethovenstraat biedt een jong en dynamisch karakter met koffiebars en restaurants zoals Van der Veen en Ferilli’s. Het Olympiaplein herbergt de ambachtelijke bakker Le Fournil en Fromagerie L’Amuse. De brede lanen, het Beatrixpark en de goede scholen maken de buurt aantrekkelijk, met een gunstige ligging nabij de Ring en station Amsterdam Zuid.

Bereikbaarheid 
Deze locatie ligt van nature heel strategisch ten opzichte van alle grootstedelijke voorzieningen en vooral ten opzichte van scholen. Daarnaast is het een hele prettige locatie om vanuit buiten de stad aan te rijden en om naar de binnenstad te gaan. Alles is dichtbij en zo te bereiken. Zelfs het openbaar vervoer op de Zuidas is op 4 minuten fietsen. Langs het Hilton is de Cornelis Schuytstraat te bewandelen en onder het Amsterdams Lyceum wandelt of fietst men zo het Vondelpark in.

Parkeergelegenheid
Parkeren is mogelijk via een vergunningenstelsel op de openbare weg (vergunningsgebied Zuid 2.2).  Met een parkeervergunning voor Zuid 2.2 mag u parkeren in Zuid-1, Zuid-2 en Zuid-8. Een parkeervergunning voor bewoners kost € 192,81 per 6 maanden.  Momenteel is er voor dit vergunningsgebied geen wachttijd. Een tweede parkeervergunning kost € 482,03 per 6 maanden. (Bron: Gemeente Amsterdam, november 2025).

AM105983-2111125-Milletstraat-53-2,-Amsterdam-255623618
AM105983-2111125-Milletstraat-53-2,-Amsterdam-255623596
AM105983-2111125-Milletstraat-53-2,-Amsterdam-255623532
AM105983-2111125-Milletstraat-53-2,-Amsterdam-255623550
Kenmerken
Milletstraat 53-2, Amsterdam
Vraagprijs
  • € 975.000 k.k.
Beschikbaarheid
  • In overleg
Vertrekken
  • 3 kamers
  • 2 slaapkamers
  • 1 badkamer
Onderhoud
  • Intern: Goed
  • Extern: Goed
Oppervlakten & Inhoud
  • Woonoppervlakte: 113 m²
  • Gebouwgebonden buitenruimte: 10 m²
  • Externe bergruimte: 16 m²
Bouwjaar
  • 1938
Installaties
  • Mechanische ventilatie
  • TV kabel
Ligging
  • Aan rustige weg
  • In woonwijk
Parkeren
  • Betaald parkeren
  • Openbaar parkeren
  • Parkeervergunningen
Type verwarming
  • CV Ketel
Type warmwater
  • CV Ketel
Bestemming
  • Woonruimte
Eigendomssoort
  • Eigendom belast met erfpacht
Buitenruimte
  • Geen tuin
  • Balkon
Kadastraal
  • Gemeente: Amsterdam
  • Sectie: Ab
  • Nummer: 2740
Duurzaamheid
  • Gedeeltelijk dubbel glas
Soort
  • Appartement
  • Tussenverdieping
Welke woonlaag
  • 3e
Bijzonderheden
  • Beschermd stads of dorpsgezicht
  • Monument
Overige kenmerken
  • OZB ('25) € 466,79 per jaar
  • Rioolrecht ('25) € 185,20 per jaar
  • Servicekosten VvE € 191,30 per maand
  • Balkon gelegen op het zuiden van circa 10 m² 
  • De erfpacht is eeuwigdurend afgekocht  
  • Rijksmonument 
  • Rijksbeschermd stadsgezicht 
  • Bestemming wonen en kamer – conform splitsingsakte  
  • Projectnotaris Lubbers & Dijk 
  • Niet zelfbewonersclausule & ouderdomsclausule zal er worden opgenomen in de koopakte
Plattegrond
Milletstraat 53-2, Amsterdam
AM105983-2111125-Milletstraat-53-2,-Amsterdam-255624642
AM105983-2111125-Milletstraat-53-2,-Amsterdam-255624646
AM105983-2111125-Milletstraat-53-2,-Amsterdam-257888110
Documenten
Milletstraat 53-2, Amsterdam
Locatie
Milletstraat 53-2, Amsterdam
Boodschappen
Schermafbeelding 2022-05-12 om 19.08.47
01
Adres
Olympiaplein 111,
1077 CV Amsterdam

L'Amuse

Volgens sommigen is dit de beste kaaswinkel van Nederland. Ze hebben een indrukwekkend breed assortiment van de lekkerste kazen. Ook heerlijke wijn, salami, ham en olijfolie is hier te koop. Je wordt uitstekend geholpen en de kaas is echt van een ander niveau. Aanrader!

02
Adres
Olympiaplein 119,
1077 CW Amsterdam

Le Fournil de Sébastien

Le Fournil is het initiatief van Susan en Sébastien, die na jaren bakkerservaring in Frankrijk in 2007 naar Nederland kwamen om een authentieke Franse boulangerie te openen. De kracht ligt in het ambachtelijke handwerk, zuurdesem en de bewuste keuze voor kleinschaligheid en pure, traditionele broodbereiding.

03
Adres
Marathonweg 51,
1076 TB Amsterdam

Slagerij Zikking & Zoon

Slagerij Zikking & Zoon zit aan de Marathonweg en is een begrip in Amsterdam. Eigenaar Robert Zikking is een geboren en getogen Amsterdammer die samen met zijn vrouw in 1995 gepassioneerd en vol zelfvertrouwen een eigen zaak begon. Zoals hij zelf zegt: ‘Het is geen sprookje, maar een (h)eerlijke werkelijkheid die een geschiedenis heeft.’ De filet americain is gemaakt met het recept van een oude Jordaanse dam en niet te ontbreken is de nostalgische Amsterdamse ossenworst.

hergo
04
Adres
Beethovenstraat 49,
1077 HN Amsterdam

Slagerij Hergo

Slagerij Hergo is de vleesspecialist in Amsterdam. Al in 1930 begon de heer Cantor, een Duitse worstmaker, samen met zijn vrouw die uit een Amsterdamse slagersfamilie kwam, zijn slagerij met typische Duitse worstspecialiteiten. Met het motto ‘De slager met ’n koksmuts’ is Hergo uitgegroeid naar vier verschillende locaties en is zo tegenwoordig niet meer weg te denken uit het straatbeeld van Amsterdam. Met jachtworst, hausmacher, ossenworst, pekelvlees maar ook met een broodje filet americain onderscheidt Hergo zich als slagerij in het topsegment.

21125326_348074012310751_3902449023829329736_o
21125332_348074092310743_8164135921726057693_o
21200854_348074335644052_3928733172084979767_o
05
Adres
Stadionplein,
1076 CJ Amsterdam

Stadionpleinmarkt

Op het mooie Stadionplein, midden in Oud-Zuid vind je elke zaterdag de Stadionpleinmarkt. Ze gaan om 09:00 open en zijn dus een ideale markt voor mensen die op zaterdag vroeg hun weekboodschappen gedaan willen hebben. Ook hebben ze hier prachtige bloemen te koop en vind je er veel verschillende buurtbewoners. De sfeer is altijd goed en de markt is open tot 17:00.

Eten & drinken
06
Adres
Olympiaplein 111,
1077 CV Amsterdam

The Coffee District

Eigenaren Adil Loukane en Rosa Loukane begonnen met een hole-in-the-wall coffeeshop in een modewinkel in Zuid. Toen de winkel de deuren sloot, grepen Adil en Rosa hun kans en besloten om hun eigen koffiebar te openen. Inmiddels hebben ze meerdere locaties. De koffie wordt gemaakt met een eigen melange gebrand door Lot Sixty One. Daarnaast worden er zoetigheden aangeboden zoals de inmiddelsal bekende kaneelbroodjes en bananenbrood.

frietsteeg
07
Adres
Stadionkade 73 /A,
1076 BJ Amsterdam

De Frietsteeg

De Frietsteeg is een snackbar aan de gracht in de Stadionbuurt. Ze serveren hier heerlijke krokante frietjes en vele andere snacks. De frieten worden met de hand gesneden en je hebt keus uit meer dan 20 sauzen. Ook bijzonder: de Frietsteeg is gevestigd in een historisch huisje en er is een groot zonnig terras aan het water

84828243_1531217050352887_4539296221554016256_o
08
Adres
Agamemnonstraat 27,
1076 LP Amsterdam

Umeno

Umeno is een van de oudste Japanse restaurants in Amsterdam dat geliefd is bij haar vaste lokale gasten. Zodra je binnenstapt zie je een intieme ruimte met traditionele Japanse authenticiteit gevormd door het handgemaakte houten interieur, de shamisen en shakuhachi muziek en de enorme gastvrijheid van Ayumi en Atsuhito Hosono. De nigiri sushi is een aanrader, want de kwaliteit van de vis is uitstekend.

89760007_208364853843740_4913033452334350336_n
09
Adres
Beethovenstraat 58,
1077 JK Amsterdam

Winebar QV

Bij Winebar QV kan je in principe de hele dag doorbrengen alsof je in Italië bent. Je begint met een Italiaanse espresso, luncht met een warme maaltijd en sluit af met een goed glas wijn met bijbehorend een Italiaanse aperitivo. Het is er gezellig en stijlvol ingericht en je kan aan de hoge krukken aan de bar zitten, aan de lagere tafeltjes of op het kleine terras.

84942268_1529941500492597_3844385910518972416_n
10
Adres
Apollolaan 138,
1077 BG Amsterdam

Roberto's Restaurant Amsterdam

In de top tien Italiaanse restaurants van Amsterdam mag Roberto’s niet ontbreken. Het restaurant is gelegen in het Hilton hotel, waar de iconische Italiaanse keuken sinds 25 jaar de borden vult. Het restaurant draait om pure en simpele smaken met gerechten als dungesneden aubergine, groene farfalle pasta met kreeftensaus en Lava cake.

315761837_664619815074448_8137880443810625460_n
321084772_1555342291555230_7489434614896126447_n
11
Adres
Beethovenstraat 38,
1077 JJ Amsterdam

Et Claire

Op de Beethoven straat bevindt zich Et Claire. Et Claire is ontstaan uit een voorliefde voor de beste viennoiserie, koffie, (ijs)thee in combinatie met eindeloze zoete en hartige mogelijkheden.  Het motto bij et Claire is ''ne vous contentez pas de moins'', wat betekent dat je niet genoegen moet nemen met minder.

483279358_18324217756166170_7586630462193368446_n
12
Adres
Stadionweg 271,
1076 NZ Amsterdam

Cucina casalinga

Giovanni Carmelitano is de eigenaar van Cucina Casalinga, een Italiaans restaurant gevestigd aan de Stadionweg 271 in Amsterdam-Zuid. Geboren in Rome, met een moeder uit Puglia, brengt Giovanni zijn Zuid-Italiaanse roots tot leven in zijn restaurant. Al meer dan twintig jaar is hij een toegewijde vertolker van de Italiaanse keuken, waarbij hij traditionele smaken combineert met een moderne benadering. De intieme sfeer en het beperkte aantal zitplaatsen zorgen voor een persoonlijke eetervaring die doet denken aan dineren bij een Italiaanse ‘nonna’ thuis.

264088316_309512271179442_4492361891256328028_n
242514067_218469310302263_8949483099160412699_n
13
Adres
Beethovenstraat 19,
1077 HM Amsterdam

Cafecito

Cafecito, een minimalistische koffiezaak, biedt hoogwaardige koffie uit stralend witte machines. Het is een onderdeel van de Cafecito-franchise, een Amsterdamse koffiebranderij die besloot koffiezaken te openen om hun eigen afzet te stimuleren toen de verkoop aan horecagelegenheden tijdens de pandemie stagneerde. Cafecito heeft al drie vestigingen in Amsterdam en één in Rotterdam. Cafecito is een tot de essentie teruggebrachte zaak. Je drinkt er topkoffie uit witte machines.

vascobelo-stadionplein-01
14
Adres
Stadionplein 100,
1076 CK Amsterdam

Vascobelo

Vascobelo, van origine uit Antwerpen, was bedoeld als een café waar mensen zouden komen voor een unieke koffie ervaring. Inmiddels is de keten aan Vascobelo Café-Brasseries bekend van veel meer dan alleen dat. De vestiging in de Rijnstraat is uniek door het knusse interieur en de open keuken, wat de locatie ideaal maakt voor intieme ontmoetingen of zakelijke bijeenkomsten.

15
Adres
Hendrik Jacobszstraat 18,
1075 PD Amsterdam

LOT61 Coffee Roasters

Geboren in Sydney, grootgebracht in Brooklyn en nu stevig geworteld in Amsterdam: LOT61 is allesbehalve een doorsnee koffiezaak. Als onafhankelijke koffiebrander combineert het merk internationale flair met lokaal vakmanschap. Slow coffee die met precisie en aandacht is gezet. De esthetiek is rauw maar verfijnd, de sfeer informeel en creatief – een plek waar buurt en barista samenkomen. Met hun B Corp-certificering laat LOT61 bovendien zien dat smaak en duurzaamheid hand in hand kunnen gaan.

366416263_660727485939210_4584064804028118782_n
16
Adres
Valeriusplein 4A,
1075 BG Amsterdam

Juliette

In Amsterdam Zuid  kun je bij Juliette genieten van ontbijt en lunch in de zon. Het menu is gebaseerd op verse ingrediënten van lokale leveranciers en wordt dagelijks samengesteld op basis van wat er op de markt beschikbaar is. Denk aan gerechten zoals de Porco Rosso: mortadella, stracciatellakaas, Spaanse guindillapepers en rode pesto. Voor het diner of een borrel kan je terecht bij buurman Bar Jules. De focus ligt op Zuid-Europese gerechten zoals pizzetta's, pata negra en geroosterde octopus.

neni
17
Adres
Stadionplein 8,
1076 CM Amsterdam

NENI

NENI is een Midden-oosters restaurant gevestigd aan het Stadionplein. De naam is een samenstelling van de voorletters van de vier zonen van Haya Molcho; de drijfveer van deze zaak. Haya is geboren in Tel-Aviv en heeft daar psychologie gestudeerd. Ze hield altijd veel van koken en begon in 2009 haar eerste eigen restaurant. Over de jaren is de familie Mocho een bekende familie geworden in de culinaire wereld en ze hebben ook andere vestigingen van NENI in onder andere Wenen en Berlijn. In al hun restaurants staat familie, samenzijn en gerechten delen centraal. De midden-oosterse gerechten zijn uitmuntend en de vers bereidde hummus is een van de beste die Amsterdam te bieden heeft.

18
Adres
Valeriusstraat 128B,
1075 GD Amsterdam

Castell Zuid

Castell Zuid is de stijlvolle nieuwe vestiging van het iconische Amsterdamse grillrestaurant Castell, gevestigd aan de Valeriusstraat in Oud-Zuid. Waar het origineel in het centrum bekendstaat om zijn no-nonsense steaks en late diners, brengt deze locatie dezelfde smaken in een verfijnde setting. “Same taste, same vibe, different look” luidt het motto – en dat klopt: herkenbaar en toch helemaal nieuw.

211297744_1153889045094448_8766733082684644550_n
19
Adres
Stadionplein 26,
1076 CM Amsterdam

Restaurant Wils (*)

Deze unieke culinaire hotspot opent zijn deuren in 2019 dankzij chef Joris Bijdendijk. Het restaurant bevindt zich naast het Olympische stadion. Joris gaf voor de opening een sneak preview door op open vuur te koken op de middenstip van het stadion in Amsterdam-zuid. De hoge verwachtingen maakt Wils inmiddels helemaal waar. Van de 4 tot 6 gangen worden op open vuur bereid en zitten vol verrassende elementen.

Schermafbeelding 2022-09-27 om 12.59.20
Schermafbeelding 2022-09-27 om 12.59.31
20
Adres
Stadionplein 24,
1076 CM Amsterdam

Wils Bakery & Café

In Amsterdam Zuid vind je nu Wils Bakery Café op de begane grond. Een mix van bakkerij en Franse bistro. Wils is een nieuwe onderneming van chef Joris Bijendijk en de Vermaat Groep (Vermaat bezit Rijks en Wils).  In Wils Bakery Café combineren ze het ambacht van een bakkerij met de gezelligheid van een Franse bistro. Op de menukaart vind je herkenbare gerechten, bereid met hetzelfde vakmanschap als in Michelinster restaurant Wils. Proef de patisserie van Tania, de gerechten van Rudolf, lunch met het brood van Maxim en borrel met de wijnen van Barbora.

21
Adres
Valeriusstraat 85,
1071 MG Amsterdam

Carter

Carter is een moderne brasserie in Amsterdam-Zuid waar internationale klassiekers worden geserveerd met flair en finesse. Aan de Valeriusstraat voelt deze plek als een elegant buurtcafé – informeel, verfijnd en altijd gastvrij. Op de kaart staan tijdloze gerechten als steak tartare, burrata en kreeftenpasta, met een solide wijnselectie ernaast.

Interieur
5a1eff_bf84a6dcd25c4e9983e1e74f8140f4da_mv2
22
Adres
Rubensstraat 45,
1077 MJ Amsterdam

Flower fusion

Elke zaterdag van 9:30 tot 17:00 kunt u Ilona Bokma van Flowerfusion vinden op de ZuiderMRKT. Unieke en schitterende bloemen waardoor je het gevoel krijgt middenin een pluktuin te staan. Doordat Ilona iedere week andere bloemen, planten en kleuren uitzoekt die aansluiten bij het seizoen, is het elke zaterdag weer een feestje om langs te gaan bij Flowerfusion.

Annindriya-Perfume-_Lounge-Local-Minded-005_lichter_Lowres_480x480
perfumelounge 2
23
Adres
Cornelis Krusemanstraat 25,
1075 NC Amsterdam

Perfume Lounge

Bij de ‘Perfume lounge’ richten ze zich op het maken en adviseren van geuren voor bedrijven en organisaties en wat reuk kan toevoegen aan een merk of organisatie. Daarnaast hebben zij een winkel met een assortiment van de meest bijzondere parfums van de wereld, waar zij ook persoonlijk geuradvies geven. Advies voor op de huid of in huis. Volgens de experts voegt geur iets toe wat niet zichtbaar en tastbaar is. Je kunt geur op verschillende manieren inzetten in een ruimte. Het begint natuurlijk eerst dat het er niet negatief mag ruiken. Er zijn best wel veel ruimtes waar je het riool of sanitair ruikt, waar veel gerookt is of waar de afzuiging niet goed is en het naar eten ruikt. De meeste simpele manier van geur in huis is dat het schoon ruikt. Veel mensen associëren schoonmaak of wasmiddel met een schoon, opgeruimd en verzorgd huis. Daarnaast kun je de ambiance aanzetten. Net zoals met licht en muziek kun je de sfeer verzachten of versterken. Je kunt het heel huiselijk laten ruiken of juist heel modern. Landelijk of artistiek. Of juist heel minimalistisch of intiem.

Kunst & cultuur
pati_F1A7803ssdweb
_F1A4074
24
Adres
Parnassusweg 220,
1076 AV Amsterdam

Diez Gallery

Diez is een Amsterdamse kunstgalerie met een internationale uitstraling, opgericht in 2022 door Diego Diez. De tentoonstellingen worden samengesteld in samenwerking met kunstenaars die affiniteit hebben met Diez's interesses en zullen zowel internationaal als nationaal talent presenteren in Amsterdam. Naast het tentoonstellingsprogramma streeft Diez ernaar een toegankelijke ruimte te zijn voor een breed publiek met diverse activiteiten en evenementen zoals poëzielezingen, samengestelde diners en kunstenaarsgesprekken.

downloadgram.org_597897714_1508494480841935_8620457783605645660_n
25
Adres
Prinses Irenestraat 36,
1077 WX Amsterdam

De Thomas

De Thomas is een monumentale kerk aan de rand van de Zuidas waar religie en cultuur bewust samenkomen. Met een eigen theater, concerten en debatavonden is het een plek voor ontmoeting en verdieping, midden in het zakelijke hart van Amsterdam Zuid. Het gebouw geldt als een belangrijk voorbeeld van naoorlogse kerkarchitectuur in Nederland en is vormgegeven in een expressieve, brutalistische stijl.

360° mid-century penthouse

360° mid-century penthouse

Aziatisch eten in Amsterdam, de keuze is reuze

Aziatisch eten in Amsterdam, de keuze is reuze

In een voormalig meisjesweeshuis uit de 18e eeuw werd in samenwerking met studio DAB een prachtig appartement gecrëeerd

In een voormalig meisjesweeshuis uit de 18e eeuw werd in samenwerking met studio DAB een prachtig appartement gecrëeerd

Onlangs bekeken
Bekijk het overzicht

Deze site maakt gebruik van cookies.

Voor welke cookies geef je akkoord?