Volledig gerenoveerd appartement van circa 105 m² op de eerste verdieping, met op de zolderverdieping een kamer van in totaal 9 m². Gelegen op een bijzonder geliefde en fraaie locatie in Amsterdam-Zuid. Het appartement beschikt over twee goed bemeten slaapkamers, een moderne keuken en badkamer, en een royaal balkon van circa 10 m² op het zonnige zuiden. Een belangrijk voordeel: de erfpacht is eeuwigdurend afgekocht.

Rondleiding
De stenen trap leidt naar de eerste etage, waar de eigen entree van dit charmante jaren '30 appartement zich bevindt. In de hal zijn de originele marmeren elementen zorgvuldig bewaard gebleven, wat direct bij binnenkomst een gevoel van authenticiteit en karakter geeft.
De centraal gelegen hal draagt bij aan een ruimtelijke indeling. Aan de voorzijde bevindt zich de lichte living, waar grote ramen zorgen voor een overvloed aan daglicht. Hier is een gezellige zithoek ingericht, gecombineerd met een eetgedeelte dat uitzicht biedt op de rustige straat.
De moderne keuken, eveneens aan de voorzijde gelegen, is uitgevoerd in een lichte, eigentijdse stijl. Voorzien van luxe inbouwapparatuur, zoals een vaatwasser, oven, Quooker-kraan en een inductiekookplaat met geïntegreerde afzuiging, vormt de keuken een verfijnd meubelstuk binnen de open living. Door de gehele woning ligt een lichte PVC-vloer met vloerverwarming, wat zorgt voor een comfortabele en stijlvolle afwerking. In de hal bevindt zich een separaat toilet, en ingebouwde kasten bieden praktische opbergruimte.
Aan de achterzijde liggen twee functionele slaapkamers, die beide toegang bieden tot het zonnige balkon. De kamers zijn royaal genoeg voor een tweepersoonsbed en garderobekasten, wat ze ideaal maakt voor verschillende woonwensen.
De serene badkamer is efficiënt ingedeeld en uitgerust met een inloopdouche, ligbad, wastafelmeubel met dubbele kranen en een spiegelkast. De ruimte is afgewerkt met strak tegelwerk en beschikt over een raam, dat zorgt voor zowel daglicht als natuurlijke ventilatie.
Op de bovenste zolderverdieping bevindt zich een berging in gedateerde staat, die naar wens kan worden ingericht als werkkamer of hobbyruimte.

Het balkon, gelegen over de volle breedte van de woning, is gesitueerd op het zonnige zuiden. Met voldoende ruimte voor een zitje en een prachtig uitzicht op de rustige binnentuinen, vormt dit een ideale plek om te genieten van de buitenlucht.

Buurtgids
De Apollobuurt draagt nog altijd de stedenbouwkundige signatuur van architect Berlage, wiens visie de wijk in de vorige eeuw vormgaf. Van statige villa’s tot imposante herenhuizen: de jaren '30 wijk, vrijwel geheel omringd door water, wordt gekenmerkt door ruim opgezette woningen in de Amsterdamse School-stijl. De gevelstenen en brugsculpturen van Hildo Krop, die de eretitel Stadsbeeldhouwer van Amsterdam draagt, verlenen de buurt extra allure.
De Beethovenstraat voegt met haar bruisende koffiebars en restaurants, zoals Van der Veen en Ferilli’s, een jong en dynamisch karakter toe aan de wijk. Op het Olympiaplein zijn culinaire parels te vinden, waaronder de ambachtelijke bakker Le Fournil en Fromagerie L’Amuse.
De brede lanen en het Beatrixpark, met moderne kunstwerken en eeuwenoude bomen, zorgen voor een gevoel van ruimte en rust. Het park is de perfecte plek om te sporten, wandelen of ontspannen. Daarnaast staat de buurt bekend om haar uitstekende basis- en middelbare scholen en de gunstige ligging ten opzichte van de Ring en station Amsterdam Zuid.

Bijzonderheden
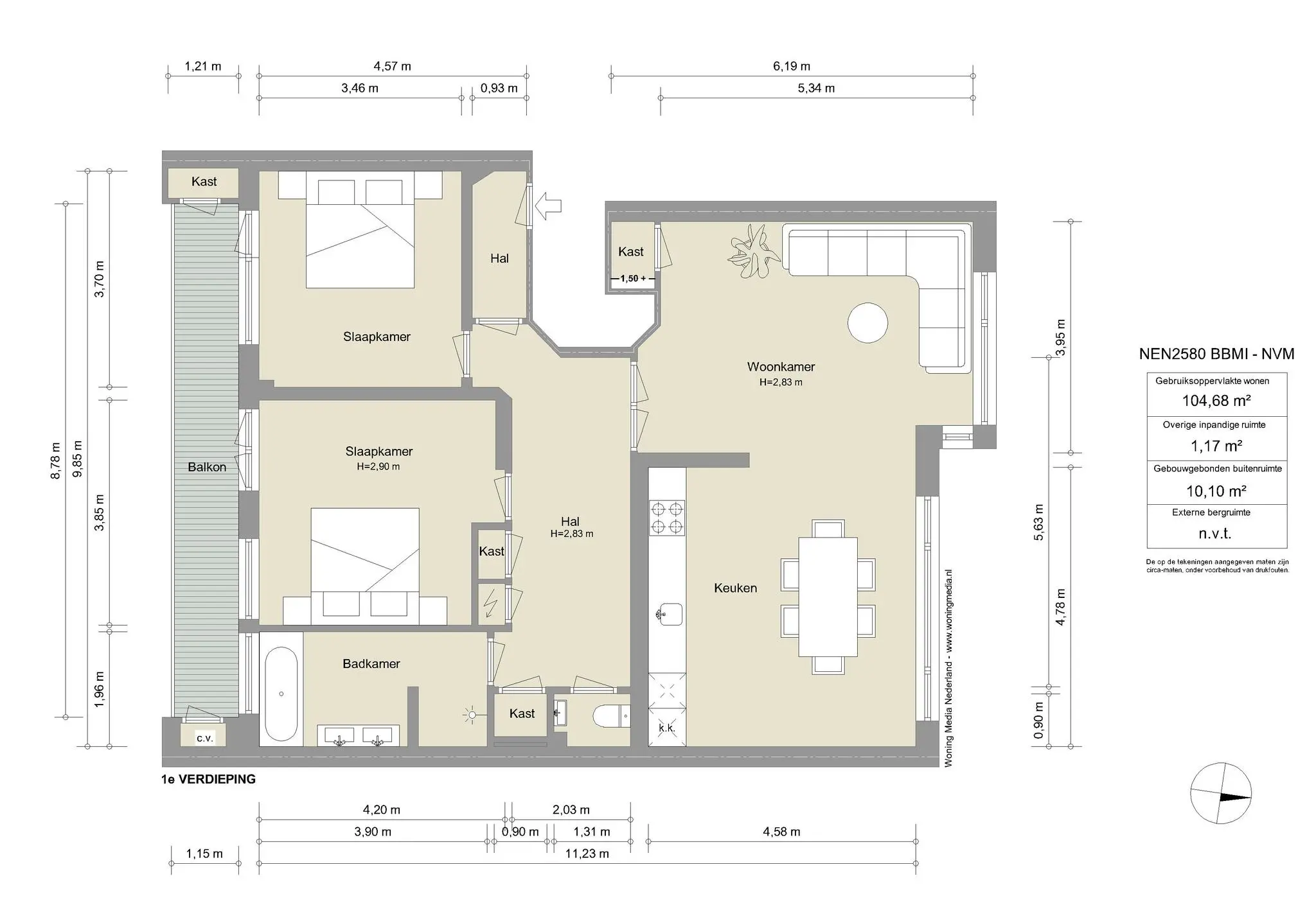
•    Gebruiksoppervlakte wonen circa 114 m² (105 m² op de eerste etage en 9 m² op de vierde etage)
•    Balkon gelegen op het zuiden van circa 10 m²
•    Erfpacht is eeuwigdurend afgekocht
•    Servicekosten VvE € 176,69 per maand
•    Energielabel A
•    Rijksmonument
•    Rijksbeschermd stadsgezicht
•    In 2024 intern gerenoveerd
•    Bestemming wonen en kamer – conform splitsingsakte 
•    Projectnotaris Lubbers & Dijk
•    Niet zelfbewonersclausule van toepassing

AM105844-1947069-Milletstraat-19-1,-Amsterdam-207255053

Zonnehof
Dit eigentijdse appartement, met een oppervlakte van circa 105 m², is recent volledig gerenoveerd. De lichte ruimte beschikt over een eigen entree. Op de zolderverdieping bevindt zich een royale kamer (circa 9 m²), ideaal als werkruimte of voor extra opslag.
De Milletstraat is een ruime, rustige straat met een uitstekende ligging ten opzichte van kwaliteitswinkels, verfijnde horecagelegenheden en de gezellige biologische markt op vrijdag aan het Minervaplein.
Een ideale woning voor wie rustig wil wonen met alle voorzieningen binnen handbereik. Comfortabel en stijlvol wonen in Zuid.
De Amsterdamse School is een prachtige bouwstijl die stadsdeel Zuid kenmerkt. De appartementen in het woonblok Zonnehof vormen een essentieel onderdeel van deze architectonische traditie en het blok heeft inmiddels de status van rijksmonument.


Judith de Jong | Makelaar Broersma Wonen
AM105844-1947069-Milletstraat-19-1,-Amsterdam-207255433
Designvisie

Het woonblok ‘Zonnehof’, gebouwd in de periode 1938-1939 naar een ontwerp van Dick Greiner, omvat 256 luxe etagewoningen en is gerealiseerd in opdracht van de N.V. Bouw- en Exploitatiemaatschappij ‘Socrates’. Dit bouwblok, gelegen tussen de Watteaustraat, Courbetstraat, Michelangelostraat en Milletstraat, is uitgevoerd in een samensmelting van de Late Amsterdamse School en het Nieuwe Bouwen. Het hoekdeel aan de Watteaustraat en Courbetstraat (Watteaustraat 13 tot en met 17a en Courbetstraat 42 tot en met 48) werd later toegevoegd door Greiner in 1951.
Het complex uit 1939-1940, inclusief een inpandig postkantoor, heeft een aanzienlijke architectuurhistorische en typologische waarde. Het markeert een belangrijke ontwikkeling binnen de etagebouw met trapportieken en weerspiegelt de latere stijl van Greiner, waarin expressionistische en functionalistische elementen naadloos samenkomen. De zorgvuldig uitgewerkte gevels met kenmerkend metselwerk, granito stoepen en betonnen luifels en dorpels dragen bij aan de architectonische verfijning van het geheel.
‘Zonnehof’, gelegen aan de Milletstraat in Amsterdam Zuid, vormt een iconisch voorbeeld van de Amsterdamse School. Met expressieve bakstenen gevels, ronde vormen en subtiele decoratieve elementen weerspiegelt het ontwerp een uitzonderlijke aandacht voor detail. De gevels zijn voorzien van siermetselwerk, horizontale lijnen en royale raampartijen die zorgen voor een speelse lichtinval. De karakteristieke symmetrie, bijzondere balkons en erkers combineren functionaliteit met een verfijnde esthetiek. De sculpturale vormen en de integratie van kunst, zoals de decoraties bij de entree en aan de gevels, onderstrepen de invloed van de Amsterdamse School.

AM105844-1947069-Milletstraat-19-1,-Amsterdam-207254983
AM105844-1947069-Milletstraat-19-1,-Amsterdam-207255009
AM105844-1947069-Milletstraat-19-1,-Amsterdam-207255115
AM105844-1947069-Milletstraat-19-1,-Amsterdam-207255025
Wonen en koken

Het appartement beschikt over een centraal gelegen hal die een ruimtelijk gevoel creëert. De living aan de voorzijde wordt prachtig verlicht door de grote raampartijen. Hier bevinden zich een uitnodigende zithoek en een eetgedeelte met uitzicht op de rustige straat.
De keuken, eveneens aan de voorzijde gesitueerd, is recent vernieuwd en modern ingericht. Uitgevoerd in een lichte, eigentijdse stijl vormt de keuken een fraai meubelstuk binnen de open living. Voorzien van luxe inbouwapparatuur, waaronder een vaatwasser, oven, Quooker-kraan en een inductiekookplaat met geïntegreerde afzuiging, biedt de ruimte zowel esthetiek als functionaliteit.
De gehele woning is afgewerkt met een lichte PVC-vloer met vloerverwarming. De hal beschikt over een separaat toilet en ingebouwde kasten bieden praktische opbergruimte.

AM105844-1947069-Milletstraat-19-1,-Amsterdam-207254995
AM105844-1947069-Milletstraat-19-1,-Amsterdam-207255097
AM105844-1947069-Milletstraat-19-1,-Amsterdam-207255129
AM105844-1947069-Milletstraat-19-1,-Amsterdam-207255151
AM105844-1947069-Milletstraat-19-1,-Amsterdam-207255141
AM105844-1947069-Milletstraat-19-1,-Amsterdam-207255243
Slapen en baden

De twee slaapkamers bevinden zich aan de achterzijde van het appartement en bieden beide toegang tot het zonnige balkon. De ruimtes zijn bijzonder functioneel en bieden voldoende plaats voor zowel een tweepersoonsbed als royale garderobekasten.
De serene badkamer is doordacht ingedeeld en voorzien van een inloopdouche, een ligbad, een wastafelmeubel met dubbele kranen en een praktische spiegelkast. De ruimte is afgewerkt met strak tegelwerk, wat zorgt voor een moderne en verfijnde uitstraling. Het raam in de badkamer biedt aangenaam daglicht en natuurlijke ventilatie.
Op de bovenste zolderverdieping bevindt zich een berging in gedateerde staat, die naar wens kan worden ingericht als werkkamer of hobbyruimte.

AM105844-1947069-Milletstraat-19-1,-Amsterdam-207255355
AM105844-1947069-Milletstraat-19-1,-Amsterdam-207255341
AM105844-1947069-Milletstraat-19-1,-Amsterdam-207255315
AM105844-1947069-Milletstraat-19-1,-Amsterdam-207255329
AM105844-1947069-Milletstraat-19-1,-Amsterdam-207255283
AM105844-1947069-Milletstraat-19-1,-Amsterdam-207255161
AM105844-1947069-Milletstraat-19-1,-Amsterdam-207255073
Het balkon

Het riante balkon, gesitueerd op het zonnige zuiden, strekt zich uit over de gehele breedte van de woning. Met voldoende ruimte voor een comfortabel zitje biedt het een prachtig uitzicht op de groene binnentuinen, een ideale plek om te genieten van rust en buitenlucht.

AM105844-1947069-Milletstraat-19-1,-Amsterdam-207255167
AM105844-1947069-Milletstraat-19-1,-Amsterdam-207255407
AM105844-1947069-Milletstraat-19-1,-Amsterdam-207255391
AM105844-1947069-Milletstraat-19-1,-Amsterdam-207255423
Buurtgids

In de Beethovenstraat dragen koffiebars en restaurants zoals Cafecito, et Claire, Margaux en Ferilli’s bij aan een jong en levendig karakter. Het Olympiaplein biedt eveneens tal van culinaire hoogtepunten, waaronder Coffee District voor heerlijke koffie, de Franse bakker Le Fournil en Fromagerie L’Amuse. De brede lanen en het groene Beatrixpark met zijn moderne beelden en eeuwenoude bomen zorgen voor een gevoel van ruimte en nodigen uit tot sporten en ontspannen.
De buurt staat bekend om uitstekende basis- en middelbare scholen en biedt bovendien een gunstige ligging ten opzichte van de Ring en station Amsterdam Zuid, wat bijdraagt aan de grote populariteit van de wijk.

Bereikbaarheid
De locatie is strategisch gelegen met uitstekende verbindingen naar grootstedelijke voorzieningen en scholen. De bereikbaarheid vanuit zowel buiten de stad als naar het centrum is ideaal. Op slechts vier minuten fietsen ligt het openbaar vervoersknooppunt Zuidas. Via het Hilton leidt een wandeling naar de charmante Cornelis Schuytstraat, terwijl het Amsterdams Lyceum toegang biedt tot het Vondelpark, perfect om te wandelen of te fietsen.

Parkeren
Parkeren in deze buurt is mogelijk via een vergunningensysteem (vergunningsgebied Zuid 2.2). Met een vergunning voor Zuid 2.2 is parkeren toegestaan in Zuid-1, Zuid-2 en Zuid-8. De kosten voor een parkeervergunning bedragen € 186,29 per zes maanden. Momenteel is er geen wachttijd voor een vergunning. Een tweede parkeervergunning kost € 465,73 per zes maanden. (Bron: Gemeente Amsterdam, november 2024).

AM105844-1947069-Milletstraat-19-1,-Amsterdam-207255377
AM105844-1947069-Milletstraat-19-1,-Amsterdam-207255037
AM105844-1947069-Milletstraat-19-1,-Amsterdam-207255413
AM105570-1902288-Minervaplein-1-4,-Amsterdam-202034259
Kenmerken
Milletstraat 19-1, Amsterdam
Vraagprijs
  • € 1.060.000 k.k.
Beschikbaarheid
  • In overleg
Vertrekken
  • 4 kamers
  • 2 slaapkamers
  • 1 badkamer
Onderhoud
  • Intern: Uitstekend
  • Extern: Goed
Oppervlakten & Inhoud
  • Woonoppervlakte: 114 m²
  • Overige inpandige ruimte: 1 m²
  • Gebouwgebonden buitenruimte: 10 m²
Bouwjaar
  • 1938
Installaties
  • Mechanische ventilatie
  • TV kabel
Ligging
  • Aan rustige weg
  • In woonwijk
Parkeren
  • Betaald parkeren
  • Parkeervergunningen
Type verwarming
  • CV Ketel
Type warmwater
  • CV Ketel
Bestemming
  • Woonruimte
Eigendomssoort
  • Eigendom belast met erfpacht
Buitenruimte
  • Geen tuin
  • Balkon
Kadastraal
  • Gemeente: Amsterdam
  • Sectie: Ab
  • Nummer: 2744
Duurzaamheid
  • Dubbel glas
  • Vloerisolatie
  • Energielabel A
Soort
  • Appartement
  • Bovenwoning
Welke woonlaag
  • 2e
Bijzonderheden
  • Beschermd stads of dorpsgezicht
  • Monument
Overige kenmerken
  • OZB ('24) € 330,33, per jaar
  • Rioolrecht ('24) € 166,85 per jaar
  • Servicekosten VvE € 176,69 per maand
  • Erfpachtcanon is eeuwigdurend afgekocht
  • Rijksmonument
  • In 2024 intern gerenoveerd
  • Bestemming wonen en kamer – conform splitsingsakte 
  • Projectnotaris Lubbers & Dijk
  • Niet zelfbewonersclausule van toepassing
Plattegrond
Milletstraat 19-1, Amsterdam
AM105844-1947069-Milletstraat-19-1,-Amsterdam-208265743
AM105844-1947069-Milletstraat-19-1,-Amsterdam-208265749
AM105844-1947069-Milletstraat-19-1,-Amsterdam-208542725
AM105844-1947069-Milletstraat-19-1,-Amsterdam-208542797
Documenten
Milletstraat 19-1, Amsterdam
Locatie
Milletstraat 19-1, Amsterdam
Eten & drinken
01
Adres
Olympiaplein 111,
1077 CV Amsterdam

The Coffee District

Eigenaren Adil Loukane en Rosa Loukane begonnen met een hole-in-the-wall coffeeshop in een modewinkel in Zuid. Toen de winkel de deuren sloot, grepen Adil en Rosa hun kans en besloten om hun eigen koffiebar te openen. Inmiddels hebben ze meerdere locaties. De koffie wordt gemaakt met een eigen melange gebrand door Lot Sixty One. Daarnaast worden er zoetigheden aangeboden zoals de inmiddelsal bekende kaneelbroodjes en bananenbrood.

frietsteeg
02
Adres
Stadionkade 73 /A,
1076 BJ Amsterdam

De Frietsteeg

De Frietsteeg is een snackbar aan de gracht in de Stadionbuurt. Ze serveren hier heerlijke krokante frietjes en vele andere snacks. De frieten worden met de hand gesneden en je hebt keus uit meer dan 20 sauzen. Ook bijzonder: de Frietsteeg is gevestigd in een historisch huisje en er is een groot zonnig terras aan het water

84828243_1531217050352887_4539296221554016256_o
03
Adres
Agamemnonstraat 27,
1076 LP Amsterdam

Umeno

Umeno is een van de oudste Japanse restaurants in Amsterdam dat geliefd is bij haar vaste lokale gasten. Zodra je binnenstapt zie je een intieme ruimte met traditionele Japanse authenticiteit gevormd door het handgemaakte houten interieur, de shamisen en shakuhachi muziek en de enorme gastvrijheid van Ayumi en Atsuhito Hosono. De nigiri sushi is een aanrader, want de kwaliteit van de vis is uitstekend.

89760007_208364853843740_4913033452334350336_n
04
Adres
Beethovenstraat 58,
1077 JK Amsterdam

Winebar QV

Bij Winebar QV kan je in principe de hele dag doorbrengen alsof je in Italië bent. Je begint met een Italiaanse espresso, luncht met een warme maaltijd en sluit af met een goed glas wijn met bijbehorend een Italiaanse aperitivo. Het is er gezellig en stijlvol ingericht en je kan aan de hoge krukken aan de bar zitten, aan de lagere tafeltjes of op het kleine terras.

315761837_664619815074448_8137880443810625460_n
321084772_1555342291555230_7489434614896126447_n
05
Adres
Beethovenstraat 38,
1077 JJ Amsterdam

Et Claire

Op de Beethoven straat bevindt zich Et Claire. Et Claire is ontstaan uit een voorliefde voor de beste viennoiserie, koffie, (ijs)thee in combinatie met eindeloze zoete en hartige mogelijkheden.  Het motto bij et Claire is ''ne vous contentez pas de moins'', wat betekent dat je niet genoegen moet nemen met minder.

84942268_1529941500492597_3844385910518972416_n
06
Adres
Apollolaan 138,
1077 BG Amsterdam

Roberto's Restaurant Amsterdam

In de top tien Italiaanse restaurants van Amsterdam mag Roberto’s niet ontbreken. Het restaurant is gelegen in het Hilton hotel, waar de iconische Italiaanse keuken sinds 25 jaar de borden vult. Het restaurant draait om pure en simpele smaken met gerechten als dungesneden aubergine, groene farfalle pasta met kreeftensaus en Lava cake.

264088316_309512271179442_4492361891256328028_n
242514067_218469310302263_8949483099160412699_n
07
Adres
Beethovenstraat 19,
1077 HM Amsterdam

Cafecito

Cafecito, een minimalistische koffiezaak, biedt hoogwaardige koffie uit stralend witte machines. Het is een onderdeel van de Cafecito-franchise, een Amsterdamse koffiebranderij die besloot koffiezaken te openen om hun eigen afzet te stimuleren toen de verkoop aan horecagelegenheden tijdens de pandemie stagneerde. Cafecito heeft al drie vestigingen in Amsterdam en één in Rotterdam. Cafecito is een tot de essentie teruggebrachte zaak. Je drinkt er topkoffie uit witte machines.

483279358_18324217756166170_7586630462193368446_n
08
Adres
Stadionweg 271,
1076 NZ Amsterdam

Cucina casalinga

Giovanni Carmelitano is de eigenaar van Cucina Casalinga, een Italiaans restaurant gevestigd aan de Stadionweg 271 in Amsterdam-Zuid. Geboren in Rome, met een moeder uit Puglia, brengt Giovanni zijn Zuid-Italiaanse roots tot leven in zijn restaurant. Al meer dan twintig jaar is hij een toegewijde vertolker van de Italiaanse keuken, waarbij hij traditionele smaken combineert met een moderne benadering. De intieme sfeer en het beperkte aantal zitplaatsen zorgen voor een persoonlijke eetervaring die doet denken aan dineren bij een Italiaanse ‘nonna’ thuis.

vascobelo-stadionplein-01
09
Adres
Stadionplein 100,
1076 CK Amsterdam

Vascobelo

Vascobelo, van origine uit Antwerpen, was bedoeld als een café waar mensen zouden komen voor een unieke koffie ervaring. Inmiddels is de keten aan Vascobelo Café-Brasseries bekend van veel meer dan alleen dat. De vestiging in de Rijnstraat is uniek door het knusse interieur en de open keuken, wat de locatie ideaal maakt voor intieme ontmoetingen of zakelijke bijeenkomsten.

10
Adres
Valeriusstraat 128B,
1075 GD Amsterdam

Castell Zuid

Castell Zuid is de stijlvolle nieuwe vestiging van het iconische Amsterdamse grillrestaurant Castell, gevestigd aan de Valeriusstraat in Oud-Zuid. Waar het origineel in het centrum bekendstaat om zijn no-nonsense steaks en late diners, brengt deze locatie dezelfde smaken in een verfijnde setting. “Same taste, same vibe, different look” luidt het motto – en dat klopt: herkenbaar en toch helemaal nieuw.

366416263_660727485939210_4584064804028118782_n
11
Adres
Valeriusplein 4A,
1075 BG Amsterdam

Juliette

In Amsterdam Zuid  kun je bij Juliette genieten van ontbijt en lunch in de zon. Het menu is gebaseerd op verse ingrediënten van lokale leveranciers en wordt dagelijks samengesteld op basis van wat er op de markt beschikbaar is. Denk aan gerechten zoals de Porco Rosso: mortadella, stracciatellakaas, Spaanse guindillapepers en rode pesto. Voor het diner of een borrel kan je terecht bij buurman Bar Jules. De focus ligt op Zuid-Europese gerechten zoals pizzetta's, pata negra en geroosterde octopus.

12
Adres
Valeriusstraat 85,
1071 MG Amsterdam

Carter

Carter is een moderne brasserie in Amsterdam-Zuid waar internationale klassiekers worden geserveerd met flair en finesse. Aan de Valeriusstraat voelt deze plek als een elegant buurtcafé – informeel, verfijnd en altijd gastvrij. Op de kaart staan tijdloze gerechten als steak tartare, burrata en kreeftenpasta, met een solide wijnselectie ernaast.

13
Adres
Hendrik Jacobszstraat 18,
1075 PD Amsterdam

LOT61 Coffee Roasters

Geboren in Sydney, grootgebracht in Brooklyn en nu stevig geworteld in Amsterdam: LOT61 is allesbehalve een doorsnee koffiezaak. Als onafhankelijke koffiebrander combineert het merk internationale flair met lokaal vakmanschap. Slow coffee die met precisie en aandacht is gezet. De esthetiek is rauw maar verfijnd, de sfeer informeel en creatief – een plek waar buurt en barista samenkomen. Met hun B Corp-certificering laat LOT61 bovendien zien dat smaak en duurzaamheid hand in hand kunnen gaan.

14
Adres
Valeriusstraat 90,
1075 GH Amsterdam

Barolo

Bar Barolo brengt de sfeer van Noord-Italië naar de Valeriusstraat, midden in het elegante Amsterdam-Zuid. De wijnkaart is royaal en zorgvuldig samengesteld, met Barolo als vanzelfsprekend middelpunt. Op het menu: huisgemaakte pasta, klassieke antipasti en seizoensgerechten zonder opsmuk. Het interieur is warm en ingetogen, net als de gastvrijheid – hier wordt met aandacht gewerkt.

312175149_2011502502368624_2613652535986311070_n
15
Adres
Koninginneweg 34,
1075 CZ Amsterdam

Tozi

TOZI betekent in Venetiaans dialect ‘een groep vrienden’, en dat voel je direct als je binnenkomt. Het is net alsof je terecht komt in één grote familie. De kaart toont een selectie van kleine Venetiaans geïnspireerde gerechten om te delen, bekend als cicchetti. Met een Italiaanse wijnkaart en een cocktailbar met Italiaanse gins en negroni's.

 

neni
16
Adres
Stadionplein 8,
1076 CM Amsterdam

NENI

NENI is een Midden-oosters restaurant gevestigd aan het Stadionplein. De naam is een samenstelling van de voorletters van de vier zonen van Haya Molcho; de drijfveer van deze zaak. Haya is geboren in Tel-Aviv en heeft daar psychologie gestudeerd. Ze hield altijd veel van koken en begon in 2009 haar eerste eigen restaurant. Over de jaren is de familie Mocho een bekende familie geworden in de culinaire wereld en ze hebben ook andere vestigingen van NENI in onder andere Wenen en Berlijn. In al hun restaurants staat familie, samenzijn en gerechten delen centraal. De midden-oosterse gerechten zijn uitmuntend en de vers bereidde hummus is een van de beste die Amsterdam te bieden heeft.

tip_10694-edible-treasures-large
17
Adres
Jacob Obrechtstraat 75,
1071 KK Amsterdam

Edible Treasures

In een voormalige slagerij in Amsterdam Zuid huist de concept store Edibe Treasures. Naast de 'edibles en drinkables' in de koffieshop vind je hier een prachtige selectie van alles voor op de tafel zoals zilverwerk, keramiek, tafellinnen, maar ook kookboeken en accessoires. Er worden ook regelmatig pop ups en workshops georganiseerd.

Boodschappen
Schermafbeelding 2022-05-12 om 19.08.47
18
Adres
Olympiaplein 111,
1077 CV Amsterdam

L'Amuse

Volgens sommigen is dit de beste kaaswinkel van Nederland. Ze hebben een indrukwekkend breed assortiment van de lekkerste kazen. Ook heerlijke wijn, salami, ham en olijfolie is hier te koop. Je wordt uitstekend geholpen en de kaas is echt van een ander niveau. Aanrader!

19
Adres
Marathonweg 51,
1076 TB Amsterdam

Slagerij Zikking & Zoon

Slagerij Zikking & Zoon zit aan de Marathonweg en is een begrip in Amsterdam. Eigenaar Robert Zikking is een geboren en getogen Amsterdammer die samen met zijn vrouw in 1995 gepassioneerd en vol zelfvertrouwen een eigen zaak begon. Zoals hij zelf zegt: ‘Het is geen sprookje, maar een (h)eerlijke werkelijkheid die een geschiedenis heeft.’ De filet americain is gemaakt met het recept van een oude Jordaanse dam en niet te ontbreken is de nostalgische Amsterdamse ossenworst.

hergo
20
Adres
Beethovenstraat 49,
1077 HN Amsterdam

Slagerij Hergo

Slagerij Hergo is de vleesspecialist in Amsterdam. Al in 1930 begon de heer Cantor, een Duitse worstmaker, samen met zijn vrouw die uit een Amsterdamse slagersfamilie kwam, zijn slagerij met typische Duitse worstspecialiteiten. Met het motto ‘De slager met ’n koksmuts’ is Hergo uitgegroeid naar vier verschillende locaties en is zo tegenwoordig niet meer weg te denken uit het straatbeeld van Amsterdam. Met jachtworst, hausmacher, ossenworst, pekelvlees maar ook met een broodje filet americain onderscheidt Hergo zich als slagerij in het topsegment.

21125326_348074012310751_3902449023829329736_o
21125332_348074092310743_8164135921726057693_o
21200854_348074335644052_3928733172084979767_o
21
Adres
Stadionplein,
1076 CJ Amsterdam

Stadionpleinmarkt

Op het mooie Stadionplein, midden in Oud-Zuid vind je elke zaterdag de Stadionpleinmarkt. Ze gaan om 09:00 open en zijn dus een ideale markt voor mensen die op zaterdag vroeg hun weekboodschappen gedaan willen hebben. Ook hebben ze hier prachtige bloemen te koop en vind je er veel verschillende buurtbewoners. De sfeer is altijd goed en de markt is open tot 17:00.

1593079817
22
Adres
Johannes Verhulststraat,
1066 VH Amsterdam

Slagerij De Schuyt

Slagerij De Schuyt, vernoemd naar hun locatie in de Cornelis Schuytstraat, heeft als symbool de parkiet. Net als de parkiet heeft deze kenmerkende slagerij zijn oorsprong in de jaren zeventig en hebben beiden hun plek veroverd in Amsterdam. Geïnspireerd door de parkiet begon eigenaar Evert Blauwendraat zijn slagerij met het idee om daar een karakteristiek, persoonlijk en bijzonder embleem aan te geven dat voor iedereen herkenbaar is. Bij dit familiebedrijf met een rijke historie kan je terecht voor vlees en delicatessen.

Interieur
5a1eff_bf84a6dcd25c4e9983e1e74f8140f4da_mv2
23
Adres
Rubensstraat 45,
1077 MJ Amsterdam

Flower fusion

Elke zaterdag van 9:30 tot 17:00 kunt u Ilona Bokma van Flowerfusion vinden op de ZuiderMRKT. Unieke en schitterende bloemen waardoor je het gevoel krijgt middenin een pluktuin te staan. Doordat Ilona iedere week andere bloemen, planten en kleuren uitzoekt die aansluiten bij het seizoen, is het elke zaterdag weer een feestje om langs te gaan bij Flowerfusion.

Annindriya-Perfume-_Lounge-Local-Minded-005_lichter_Lowres_480x480
perfumelounge 2
24
Adres
Cornelis Krusemanstraat 25,
1075 NC Amsterdam

Perfume Lounge

Bij de ‘Perfume lounge’ richten ze zich op het maken en adviseren van geuren voor bedrijven en organisaties en wat reuk kan toevoegen aan een merk of organisatie. Daarnaast hebben zij een winkel met een assortiment van de meest bijzondere parfums van de wereld, waar zij ook persoonlijk geuradvies geven. Advies voor op de huid of in huis. Volgens de experts voegt geur iets toe wat niet zichtbaar en tastbaar is. Je kunt geur op verschillende manieren inzetten in een ruimte. Het begint natuurlijk eerst dat het er niet negatief mag ruiken. Er zijn best wel veel ruimtes waar je het riool of sanitair ruikt, waar veel gerookt is of waar de afzuiging niet goed is en het naar eten ruikt. De meeste simpele manier van geur in huis is dat het schoon ruikt. Veel mensen associëren schoonmaak of wasmiddel met een schoon, opgeruimd en verzorgd huis. Daarnaast kun je de ambiance aanzetten. Net zoals met licht en muziek kun je de sfeer verzachten of versterken. Je kunt het heel huiselijk laten ruiken of juist heel modern. Landelijk of artistiek. Of juist heel minimalistisch of intiem.

Kunst & cultuur
pati_F1A7803ssdweb
_F1A4074
25
Adres
Parnassusweg 220,
1076 AV Amsterdam

Diez Gallery

Diez is een Amsterdamse kunstgalerie met een internationale uitstraling, opgericht in 2022 door Diego Diez. De tentoonstellingen worden samengesteld in samenwerking met kunstenaars die affiniteit hebben met Diez's interesses en zullen zowel internationaal als nationaal talent presenteren in Amsterdam. Naast het tentoonstellingsprogramma streeft Diez ernaar een toegankelijke ruimte te zijn voor een breed publiek met diverse activiteiten en evenementen zoals poëzielezingen, samengestelde diners en kunstenaarsgesprekken.

Kunst & cultuur Kerstspecial 2025

Kunst & cultuur Kerstspecial 2025

‘Modern Design aan de Prinsengracht’. Een plek voor rust en feest.

‘Modern Design aan de Prinsengracht’. Een plek voor rust en feest.

Uitgelicht; Garage Du Vin

Uitgelicht; Garage Du Vin

Onlangs bekeken
Bekijk het overzicht

Deze site maakt gebruik van cookies.

Voor welke cookies geef je akkoord?