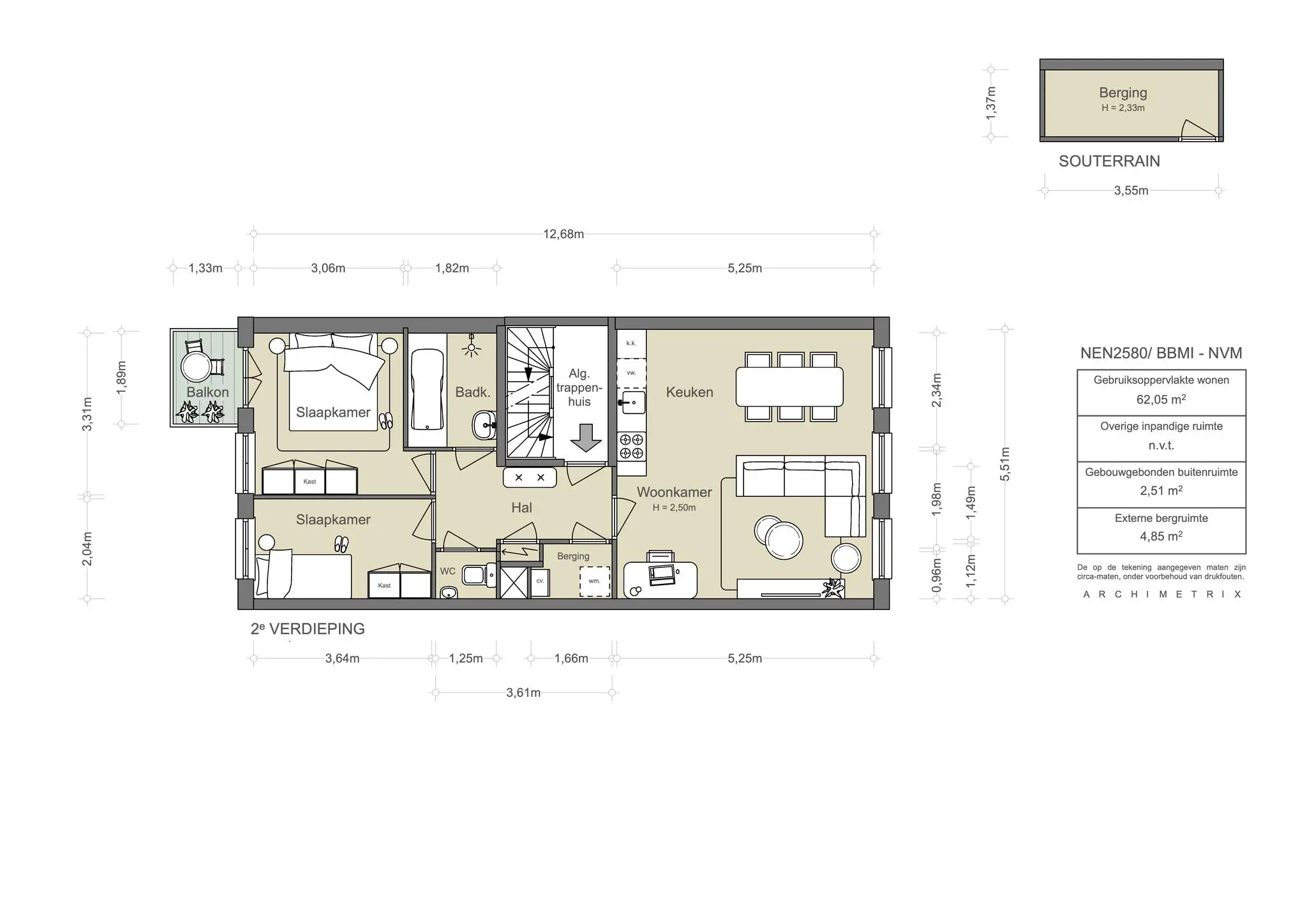
Appartement van circa 62 m², gelegen in de Jordaan. Het beschikt over een woonkamer met open keuken, twee slaapkamers, een centrale badkamer en een balkon op het oosten. Het appartement is in 2005 gerenoveerd, inclusief nieuwe fundering. Gelegen op eigen grond.

Rondleiding
De woning bevindt zich op de tweede verdieping van een verzorgd pand, bereikbaar via het gemeenschappelijk trappenhuis. De entree opent in een ruim opgezette hal die centraal ligt in de woning en toegang biedt tot alle vertrekken. Hier bevindt zich ook een praktische bergkast en een separate toiletruimte.
Aan de voorzijde strekt zich het woongedeelte uit over de volle breedte van het pand. Drie grote ramen op het westen zorgen voor een royale lichtinval en zicht over de levendige Marnixstraat. De open keuken sluit vanzelfsprekend aan op het woonvertrek en laat ruimte voor een ruime eettafel en een comfortabele zithoek — een plek waar leven, koken en ontvangen moeiteloos in elkaar overvloeien. Aan de rustige achterzijde liggen twee slaapkamers, beide met zicht op de binnentuinen en de Lijnbaansgracht. De hoofdslaapkamer beschikt over openslaande deuren naar een intiem balkon met ochtendzon en uitzicht op het water. De tweede kamer biedt ruimte voor een logeer- of werkkamer. De badkamer is functioneel ingericht met een ligbad, een inloopdouche en een wastafel. Door de gehele woning ligt een warme eikenhouten vloer die alle ruimtes visueel verbindt. In het souterrain bevindt zich bovendien een eigen berging van circa 5 m² — ideaal voor extra opslag.

Een praktische, sfeervolle en doordachte indeling op een van de meest geliefde plekken in de stad.

Wat de bewoners gaan missen 
“De woonkamer en open keuken vormen het kloppende hart van het huis. De open verbinding tussen keuken en zitgedeelte nodigt uit tot samenzijn; hier zijn diverse gesprekken gevoerd, plannen gesmeed en dagen gedeeld.”

Buurtgids 
Dit appartement ligt op een bijzondere plek aan de rand van de Jordaan, een buurt die zich kenmerkt door een divers aanbod van boetieks, sfeervolle cafés, restaurants en koffietentjes. De Lindengracht, Haarlemmerdijk en de hoofdgrachten liggen op loopafstand. Op zaterdag biedt de Jordaan een authentieke marktervaring, met de Noordermarkt waar verse biologische producten te vinden zijn en de levendige markt op de Lindengracht. Een sfeervolle traditie die de wijk zijn unieke charme geeft.
De Marnixstraat, die deel uitmaakt van het project Binnenring, ondergaat een transformatie tot een veilige en aangename fietsstraat. Auto’s zijn hier te gast en de maximumsnelheid wordt beperkt tot 30 kilometer per uur, wat bijdraagt aan een prettige en rustige woonomgeving.

Bijzonderheden
•    Gebruiksoppervlakte wonen circa 62 m²
•    Balkon gelegen op het oosten van circa 3 m²
•    Gelegen op eigen grond
•    Energielabel A
•    Servicekosten VvE € 175,-- per maand
•    Gerenoveerd in 2005
•    Rijksbeschermd stadsgezicht

 

AM15446-1991156-Marnixstraat-79C,-Amsterdam-233744564

Marnix79
Wonen tussen twee waterwegen: met de rust van de Lijnbaansgracht aan de achterzijde en het levendige ritme van de Singelgracht aan de voorzijde. Marnixstraat 79 C ligt op een bijzondere plek, waar het stadsleven en het water voortdurend om elkaar heen cirkelen. Binnen een paar stappen sta je in de Jordaan, tussen de markten, cafés en galerieën — en net zo snel wandel je langs de kades richting het centrum.
De woning heeft een heldere, courante indeling met aan de voorzijde een royaal woonvertrek waar het licht rijk binnenvalt via drie grote ramen op het westen. Aan de achterzijde bevinden zich twee slaapkamers, waarvan één met uitzicht over het water en toegang tot een balkon met ochtendzon.
In 2005 is het gehele pand grondig vernieuwd, inclusief een nieuwe fundering. Hierdoor combineert deze woning het karakter van een historisch pand met het comfort van een moderne renovatie — solide, licht en goed onderhouden.
De huidige eigenaar woonde hier twintig jaar met plezier. En dat zegt iets: wie na al die tijd besluit slechts één straat verderop te verhuizen, bevestigt onbewust wat deze plek zo aantrekkelijk maakt. Een woning waar je blijft — of op z’n minst heel dicht in de buurt.

AM15446-1991156-Marnixstraat-79C,-Amsterdam-233744342
Designvisie

Marnixstraat 79 is een klassiek Amsterdams pand met een herkenbare symmetrie, karakteristieke kroonlijst en hoge, verdiepte raampartijen — maar achter die vertrouwde contouren schuilt een vernieuwde essentie. De gevel vertelt het verhaal van een negentiende-eeuwse stadsverdieping: robuust metselwerk, sierankers, segmentbogen boven de ramen en klassieke pilasterdetails in de plint. Tegelijkertijd verraadt de verfijnde detaillering en het strakke lijnenspel van de kozijnen de grondige vernieuwbouw die in 2005 werd gerealiseerd. Een ingreep die niet alleen het casco en de installaties vernieuwde, maar ook een nieuwe fundering bracht — een solide fundament voor de toekomst, zorgvuldig geïntegreerd in het bestaande straatbeeld.
Aan de achterzijde zijn de balkons ingetogen vormgegeven, met een open metalen balustrade die lucht en licht doorlaat, zonder afbreuk te doen aan de eenheid van het gevelbeeld. Grote glasvlakken vangen het licht van de binnentuin en versterken het gevoel van openheid. Het contrast tussen oud en nieuw blijft subtiel: originele bouwvormen worden discreet aangevuld met hedendaagse accenten.
De ligging aan de Lijnbaansgracht maakt dit pand niet alleen bijzonder mooi, maar ook betekenisvol. Waar ooit touwslagers hun lijnen draaiden op smalle stroken grond – de ‘lijnbanen’ – stroomt nu kalm water tussen twee werelden: de stad en de stilte. Deze plek draagt de historie van handwerk en handel, en geeft daar nu een nieuwe invulling aan in de vorm van hedendaags wonen met een verhaal.
Een pand dat zijn geschiedenis niet maskeert, maar draagt — en tegelijk met vertrouwen de toekomst in kijkt.

AM15446-1991156-Marnixstraat-79C,-Amsterdam-233744334
AM15446-1991156-Marnixstraat-79C,-Amsterdam-233744468
AM15446-1991156-Marnixstraat-79C,-Amsterdam-233744444
AM15446-1991156-Marnixstraat-79C,-Amsterdam-233744456
Wonen en koken

Wat direct opvalt in de woonkamer is het prachtige lichtinval. Dankzij drie hoge ramen met karakteristieke bovenlichten valt het daglicht royaal naar binnen, waardoor de ruimte een open en warme sfeer ademt. De houten vloerdelen met brede planken geven het geheel een natuurlijke en stijlvolle uitstraling.
De woonkamer en open keuken vormen samen één geheel. De zitkamer is gesitueerd aan de voorzijde, met uitzicht op de levendige Marnixstraat. De open keuken opgesteld in een rechte opstelling en voorzien van neutrale fronten, een rvs-wandafzuigkap en inbouwapparatuur, waaronder een gaskookplaat, combimagnetron en koel-vriescombinatie.
De plafondhoogte van circa 2,50 meter versterkt het gevoel van ruimte en de eikenhouten vloer loopt door over de gehele verdieping, wat bijdraagt aan een rustige uitstraling.

AM15446-1991156-Marnixstraat-79C,-Amsterdam-233744404
AM15446-1991156-Marnixstraat-79C,-Amsterdam-233744510
AM15446-1991156-Marnixstraat-79C,-Amsterdam-233744518
AM15446-1991156-Marnixstraat-79C,-Amsterdam-233744398
AM15446-1991156-Marnixstraat-79C,-Amsterdam-233744544
AM15446-1991156-Marnixstraat-79C,-Amsterdam-233744538
AM15446-1991156-Marnixstraat-79C,-Amsterdam-233744550
Slapen en baden

Aan de rustige achterzijde van de woning bevinden zich twee slaapkamers, elk met zicht op het groene binnenterrein en de sfeervolle Lijnbaansgracht. De hoofdslaapkamer is royaal van formaat en opent via dubbele deuren naar een charmant balkon. Hier geniet je van de ochtendzon, met uitzicht over het kabbelende water en het omliggende groen – een ideale plek voor een ontspannen begin van de dag. De tweede slaapkamer is compact maar efficiënt ingedeeld en leent zich uitstekend als logeerkamer, kinderkamer of rustige thuiswerkplek. Dankzij de grote ramen valt ook hier het licht prettig naar binnen, wat de kamer een aangename sfeer geeft. De badkamer is praktisch en verzorgd ingericht. Een combinatie van een comfortabel ligbad en een aparte inloopdouche biedt flexibiliteit voor zowel een snel begin van de dag als een ontspannen avondritueel. De wastafel met spiegelkast en de rustige betegeling maken het geheel compleet. De warme eikenhouten vloer loopt drempelloos door alle vertrekken en verbindt de verschillende ruimtes tot een stijlvol geheel. Extra gemak wordt geboden door de privéberging in het souterrain van circa 5 m² – ideaal voor het opbergen van fietsen, seizoensspullen of koffers.

AM15446-1991156-Marnixstraat-79C,-Amsterdam-233744614
AM15446-1991156-Marnixstraat-79C,-Amsterdam-233744524
AM15446-1991156-Marnixstraat-79C,-Amsterdam-233744634
AM15446-1991156-Marnixstraat-79C,-Amsterdam-233744570
AM15446-1991156-Marnixstraat-79C,-Amsterdam-233744564
AM15446-1991156-Marnixstraat-79C,-Amsterdam-233744578
AM15446-1991156-Marnixstraat-79C,-Amsterdam-233744584
AM15446-1991156-Marnixstraat-79C,-Amsterdam-233744434
AM15446-1991156-Marnixstraat-79C,-Amsterdam-233744370
AM15446-1991156-Marnixstraat-79C,-Amsterdam-233744378

Dit appartement ligt op een bijzondere plek aan de rand van de Jordaan, een buurt die zich kenmerkt door een divers aanbod van boetieks, sfeervolle cafés, restaurants en koffietentjes. De Lindengracht, Haarlemmerdijk en de hoofdgrachten liggen op loopafstand. Op zaterdag biedt de Jordaan een authentieke marktervaring, met de Noordermarkt waar verse biologische producten te vinden zijn en de levendige markt op de Lindengracht. Een sfeervolle traditie die de wijk zijn unieke charme geeft.
De Marnixstraat, die deel uitmaakt van het project Binnenring, ondergaat een transformatie tot een veilige en aangename fietsstraat. Auto’s zijn hier te gast en de maximumsnelheid wordt beperkt tot 30 kilometer per uur, wat bijdraagt aan een prettige en rustige woonomgeving.

Bereikbaarheid
Het appartement is zowel met de fiets, auto als openbaar vervoer zeer goed bereikbaar. De Ring A10 is al binnen 10 autominuten te bereiken via afslag S105. Vanaf de Nw. Willemsstraat vertrekken meerdere tram- en buslijnen, zoals tram 5 naar Amstelveen en bussen naar respectievelijk Geuzeveld en Slotervaart. Vanaf Centraal Station vertrekt het streekvervoer met onder andere een directe verbinding naar Luchthaven Schiphol. Met de fiets is Centraal Station binnen 5 minuten aan te rijden.

Parkeergelegenheid
Parkeren is mogelijk via een vergunningenstelsel op de openbare weg (vergunningsgebied Centrum-2b). Met een parkeervergunning voor Centrum-2b mag u parkeren in Centrum-2.
Een parkeervergunning voor bewoners kost 326,65 per 6 maanden. Momenteel is er voor dit vergunningsgebied een wachttijd van 22 maanden. Een tweede parkeervergunning is in dit gebied niet mogelijk. Naast de openbare weg is het ook mogelijk om met een parkeervergunning kosteloos te parkeren in garage Marnix. (Bron: Gemeente Amsterdam, juni 2025).

AM15446-1991156-Marnixstraat-79C,-Amsterdam-233744346
Wat de eigenaren gaan missen

Twintig jaar wonen op deze plek heeft geleid tot een rijkdom aan herinneringen. In dit huis zijn drie kinderen opgegroeid, één van hen is hier zelfs geboren. De kamers vertellen verhalen van alledaagse momenten en bijzondere mijlpalen – herinneringen die in elke hoek voelbaar zijn.
Wat dit appartement zo bijzonder maakt, is de combinatie van centrale ligging en rust. Gelegen aan de Lijnbaansgracht, omarmt de woning de levendigheid van de stad, maar biedt tegelijkertijd een opmerkelijke stilte – een zeldzame balans in het hart van Amsterdam.
De living vormt het kloppende hart van het huis. De open verbinding tussen keuken en zitgedeelte nodigt uit tot samenzijn; hier werden gesprekken gevoerd, plannen gesmeed en dagen gedeeld.
De Jordaan is een buurt met karakter – een voormalige arbeiderswijk met een gelaagde geschiedenis. De ligging aan een rustige kinderspeelplaats en de nabijheid van het Westerpark versterken het gevoel van verbondenheid met de omgeving. Hier is ruimte om te leven, te spelen en te ademen.
Voor liefhebbers van het goede leven biedt de nabijgelegen Haarlemmerstraat een rijk palet aan adressen. Van kleine boetieks tot ambachtelijke speciaalzaken, met als hoogtepunt de bijzondere chocolaterie Jordino – een vaste stop voor velen uit de buurt.
Het loslaten van deze plek betekent afscheid nemen van een hoofdstuk vol warmte, groei en verbondenheid. Maar de essentie van het wonen hier – de rust, de geschiedenis en de nabijheid van alles wat Amsterdam zo bijzonder maakt – blijft voor altijd voelbaar.

AM15446-1991156-Marnixstraat-79C,-Amsterdam-233744484
AM15446-1991156-Marnixstraat-79C,-Amsterdam-233744502
Kenmerken
Marnixstraat 79C, Amsterdam
Vraagprijs
  • € 620.000 k.k.
Beschikbaarheid
  • In overleg
Vertrekken
  • 3 kamers
  • 2 slaapkamers
  • 1 badkamer
Onderhoud
  • Intern: Goed
  • Extern: Goed
Oppervlakten & Inhoud
  • Woonoppervlakte: 62 m²
  • Gebouwgebonden buitenruimte: 3 m²
  • Externe bergruimte: 5 m²
Bouwjaar
  • 1888
Installaties
  • Mechanische ventilatie
  • Natuurlijke ventilatie
  • TV kabel
Ligging
  • Aan water
  • In centrum
Parkeren
  • Openbaar parkeren
  • Parkeervergunningen
Type verwarming
  • CV Ketel
Type warmwater
  • CV Ketel
Bestemming
  • Woonruimte
Eigendomssoort
  • Volle eigendom
Buitenruimte
  • Geen tuin
  • Balkon
Kadastraal
  • Gemeente: Amsterdam
  • Sectie: L
  • Nummer: 9204
Duurzaamheid
  • Volledig geisoleerd
  • Energielabel A
Soort
  • Appartement
  • Bovenwoning
Welke woonlaag
  • 3e
Bijzonderheden
  • Beschermd stads of dorpsgezicht
Overige kenmerken
  • OZB ('25) € 286,19 per jaar
  • Rioolrecht ('25) € 185,20 per jaar
  • Servicekosten VvE € 175,-- per maand
Plattegrond
Marnixstraat 79C, Amsterdam
AM15446-1991156-Marnixstraat-79C,-Amsterdam-234188232
Documenten
Marnixstraat 79C, Amsterdam
Locatie
Marnixstraat 79C, Amsterdam
Eten & drinken
DuendeDos-22-e1518696764691
01
Adres
Nieuwe Willemsstraat 1-3,
1015 JH Amsterdam

Duende dos

Erik Nieuwendijk (56) en Jackie Tack (51), de bevlogen eigenaren van restaurant Dos, hebben een culinaire reis van 25 jaar achter de rug. In een tijd waarin het uitleggen van tapas nog noodzakelijk was, hebben ze nu, mede dankzij de invloed van drie Spaanse experts uit het oude Centra, gekozen voor klassieke Spaanse gerechten. Met Roberto en Jesus, samen meer dan 60 jaar ervaring in de Spaanse keuken, wordt het authentieke karakter van Dos versterkt. Dit restaurant staat dan ook synoniem voor de traditionele Spaanse keuken met gebruik van goede en eerlijke ingrediënten, bereid op een simpele en smaakvolle wijze.

02
Adres
Tweede Nassaustraat,
1052 BJ Amsterdam

Wang’s Flavour

Wang's Flavour, gevestigd in de Tweede Nassaustraat, is een must-visit voor liefhebbers van de Zhejiang-keuken. De frisse en milde smaken van deze keuken komen terug in de originele gerechten op het menu. Hier geen typische Chinese afhaalgerechten, maar juist minder bekende nummers. Wie van pittig houdt, kan kiezen uit een selectie pikante Sichuan-gerechten. Wang's Flavour staat ook bekend om zijn fenomenale geroosterde eend. Naast dineren in het restaurant kun je hier ook bestellen.

531474882_18073893428004240_7187049577581030040_n
03
Adres
Lindengracht 248,
1015 KM Amsterdam

ô bistro

ô bistro aan de Lindengracht is zo’n plek waar je meteen voelt dat er een subtiele balans is gevonden tussen vakmanschap en warmte. Het restaurant wordt bestierd door een Frans-Italiaans duo: chef Pierre Buffard, die de klassieke Franse bistrokeuken met aandacht en precisie naar tafel brengt, en sommelier Daniele Gaudiello, die met zijn Italiaanse achtergrond zorgt voor een wijnkaart die nét even verder reikt dan de verwachte Bourgogne of Bordeaux. Het resultaat is een met zorg samengesteld menu vol Franse favorieten zoals terrine, côte de boeuf, mille-feuille begeleid door wijnen die je nieuwsgierig maken in plaats van op de automatische piloot te laten drinken.

Schermafbeelding 2022-06-27 om 18.28.45
04
Adres
Lindengracht 158h,
1015 KK Amsterdam

SAINT-JEAN

Sinds kort bevindt zich in de Jordaan: Saint Jean. Toen de eigenaar Yann Pierre-Jean plant-based ging eten was hij erg teleurgesteld in de smaken van vegan gebak. Hij besloot vanuit huis te gaan bakken en dit te verkopen. Dit groeide uit tot zijn eigen plant-based bakkerij en koffiespeciaalzaak. Het is er altijd druk maar als je vroeg bent, kun je een van de kenmerkende cruffins scoren, gevuld met een huisgemaakte pistachecrème die goddelijk is.

242169386_4162434750520584_8156400374067126363_n
05
Adres
Binnen Dommersstraat 15,
1013 HK Amsterdam

Toki

Achter de Haarlemmerdijk vind je Toki, ze serveren hier perfecte koffie gemaakt door gekwalificeerde barista’s die precies weten hoe ze de lekkerste flat whites, espresso’s en gewone koffies maken. Ook serveren ze hier heerlijk bananenbrood en zelfgemaakte Aziatisch getinte salades en broodjes. Het is minimalistisch ingericht maar heeft een gezellige sfeer met een divers publiek. Van mensen die lekker in hun eentje de krant lezen tot gezinnen of stellen, voor iedereen wat wils bij Toki.

347653663_898089261255143_3585709706129854136_n
06
Adres
Haarlemmerplein 43,
1013 HS Amsterdam

Wakuli

Wakuli ontleent aan het Swahili-woord 'wakulima', wat boer betekent. Hier vind je kwaliteitskoffie die op duurzame wijze is verkregen tegen betaalbare prijzen.  Ze halen hun bonen bij kleinschalige boeren die groene productie produceren en roosteren ze op de beste manier mogelijk voor maximale smaak. Je kunt hier alle gebruikelijke koffiesoorten krijgen, evenals heerlijke ijskoffie en nitro cold brew. Last but not least, hebben ze een aantal zoete en hartige lekkernijen beschikbaar, van empanadas tot broodjes en croissants.

346166694_147865054802022_210577611180075131_n
272271185_1086484365472613_8068163084949701923_n
07
Adres
Haarlemmerdijk 138,
1013 JJ Amsterdam

Venu

Venu is in de eerste plaats een moderne co-workingruimte die werkt op afspraak of via een maandelijks lidmaatschap, zodat je altijd verzekerd bent van een plek. Het is prachtig ingericht met een strak, minimalistisch interieur.  Bovenin is het café, waar ze naast heerlijke koffie ook iced matcha lattes en een verfrissende milky oolong iced tea serveren. Ze hebben ook altijd zoete lekkernijen in de aanbieding.

tosca-square-mm-1
dinerbon
08
Adres
Lindengracht 75,
1015 KD Amsterdam

Toscanini

Nadat Maud Moody 40 jaar geleden met Toscanini begon is het restaurant niet meer weg te denken uit de lijst van beste restaurants in Amsterdam. Het restaurant is ruim, gezellig en ook licht. Hier vind je een wisselende menukaart van hoge kwaliteit, een enorm uitgebreide wijnkaart en uitstekende service. Chef Leonardo Pacenti houdt ervan de gerechten te versimpelen, zonder in te boeten aan verfijning en smaak. Alleen de allerbeste ingrediënten, niet teveel mee gedaan, behalve goed bereid.

357666000_565409709133614_3220415578358837435_n
09
Adres
Binnen Oranjestraat 14,
1013 JA Amsterdam

Small World Catering

De Australische eigenaar Sean Wainer opende Small World Catering eind jaren 90. Al het eten wordt ter plaatse bereid, van warme maaltijden tot taarten. Ze maken gebruik van dagelijks geleverde verse producten, olie en kazen. Het menu  bestaat uit warme en koude broodjes. Je kan je brood kiezen uit foccacia, ciabatta, bruin en gluten vrij brood. De toppings variëren van een klassieke pastrami met gesmolten kaas tot tonijn sashimi met zongedroogde tomaat.

370862932_1664011317414313_2153678134155894104_n
362099727_235733052148717_1962555790629958447_n
10
Adres
Boomstraat 41A,
1015 LB Amsterdam

Café R. De Rosa

Eindelijk kunnen we aanschuiven bij Café R. De Rosa, gelegen in de Jordaan tussen de Westerstraat en de Lindengracht. Deze charmante hoekzaak wordt gerund door de ervaren Floris (bekend van restaurant VRR) en mede-eigenaar Marieke (Chateau Amsterdam). Bij Café R. De Rosa vind je goede kwaliteit zonder de hoge prijzen. Filterkoffie met melk, tap-chardonnay en heerlijke barhappen zoals ingelegde artisjokken en zelfgemaakte ei-mayonaise. De keuze is bewust beperkt en bij elke bestelling krijg je water en maïsnootjes.

Boodschappen
jwo hoek
11
Adres
Tweede Goudsbloemdwarsstraat 1,
1015 JX Amsterdam

JWO Lekkernijen

Eten en drinken is lust en leven van de eigenaren van JWO. In het hartje van de Jordaan word je hier verwelkomd met echte Amsterdamse gezelligheid én lekkernijen. Je kunt er alle benodigdheden voor een heerlijke borrelplank kopen; van kaas en vleeswaren tot heerlijke rode wijn. Rond lunchtijd kan je hier een broodje bestellen aan de marmeren bar. Na een broodje grillworst van slagerij Louman met honingmosterdsaus en uiteraard een glas melk erbij, wil je nooit meer anders.

43624563_m-1
12
Adres
Goudsbloemstraat 76,
1015 JR Amsterdam

Slagerij Louman

Slagerij Louman is al sinds 1890 een begrip in Amsterdam en omstreken. Naast veel vaste omwonende klanten, komen veel mensen van buiten de stad speciaal voor Slagerij Louman voor een stukje vlees, andere vleeswaren of een ambachtelijk bereide worst. De slagerij is met gepaste trots al drie generaties in de familie. In hartje Jordaan kan je hier terecht voor kwaliteit, vakmanschap én de lekkerste gehaktballen.

405081974_17867905413020752_6521648150883525543_n
Scherm­afbeelding 2024-01-10 om 13.57.03
13
Adres
Lindengracht 99,
1015 KD Amsterdam

SAINT-JEAN Deli

Bij SAINT-JEAN Deli, net tegenover de bakkerij, vind je zoete-en hartige lekkernijen, sandwiches en delicatessen voor thuis. Hier geen overdaad aan vegan zoetigheden, maar een mooie mix met lekkere koffie. Het lunchmenu biedt versgebakken ciabatta, belegde sandwiches en wekelijks wisselende gerechten. Voor zoetekauwen zijn er cinnamon buns, croissants en andere lekkernijen uit eigen keuken. Daarbij hebben ze een ruime keuze aan natuurwijnen. De flessen zijn te koop voor thuis of je kunt ter plekke van een glas wijn genieten.

downloadgram.org_589908876_17882133516427275_6406034947351029950_n
14
Adres
Haarlemmerdijk 125,
1013 KE Amsterdam

Scarpetta

Scarpetta is een neighbourhood pasta bar, geïnspireerd op de sfeer van klassieke Italiaanse trattoria’s, met een moderne twist voor take-away en delivery. De naam verwijst naar fare la scarpetta: het ritueel waarbij je met een stukje brood de laatste saus van je bord haalt, een gebaar van echte liefde voor eten. Op de kaart staan verse pasta’s zoals gnocchi al pomodoro, tagliatelle al ragù bolognese, rigatoni all’amatriciana en tagliolini ai funghi, allemaal bereid om direct te eten of mee te nemen in glazen potten. Naast hartige gerechten is er ook ruimte voor klassiekers als tiramisù, perfect om de maaltijd af te sluiten.

deli_hompepage
15
Adres
Lindengracht 79,
1015 KD Amsterdam

Toscanini Deli

Naast het geweldige restaurant vind je Toscanini Deli, beroemd om de goddelijke kaneelbrioche, échte Italiaanse espresso, focaccia of  een broodje met verse producten zoals kaas, worst of ansjovis. Daarnaast verkopen ze ook avondmaaltijden met alle Italiaanse specialiteiten. Denk aan pasta, pastasauzen, maar ook vers gemaakte groente- vis- en vleesgerechten. Ook pizzameel, azijnen, biologische goede olijfolie en verschillende Italiaanse wijnen zijn hier te koop.

16
Adres
Haarlemmerplein,
1013 HS Amsterdam

Boerenmarkt Haarlemmerplein

De boerenmarkt Haarlemmerplein is er elke woensdag van 10:00 tot 17:00. Ze verkopen verse producten. Op de markt worden voornamelijk verse producten verkocht. Bijzonder is dat achter de kramen vaak de mensen staan die bij de productie van het voedsel zijn betrokken. Dat maakt de markt even net wat anders en ook nog eerlijker. Als je vragen over voedsel of de productie ervan hebt, kan je deze meteen aan de experts stellen wat een bezoekje aan de Boerenmarkt Haarlemmerplein, net wat specialer maakt!

de oliewinkel
17
Adres
Brouwersgracht 119,
1015 GD Amsterdam

De Oliewinkel

In 2016 opende de Oliewinkel aan de Brouwersgracht. De Oliewinkel is dé plek voor degenen die houden van lekker eten en kwaliteitsproducten. Het assortiment is samengesteld uit voornamelijk Mediterrane producten maar de nadruk ligt op olijfolie van kleine producten in Italië, Spanje, Griekenland en Frankrijk. In de winkel kan je de olie proeven zodat je zelf de lekkerste uit kan kiezen en mee kan nemen in een glazen fles die je weer opnieuw kan laten vullen.
Ook de rest van het assortiment is met zorg samengesteld. Naast verschillende heerlijke huisgemaakte pesto’s, tapenades en vinaigrettes, vind je bijvoorbeeld fantastische mosterd uit Nederland, België en Frankrijk in de schappen.
De Oliewinkel heeft bovendien verschillende soorten olijven, fantastisch tafelzuur en de lekkerste mayonaises en vinaigrettes op voorraad. In het midden van de winkel staat een tafel vol visconserven. Met name de conserven van het Spaanse merk Ortiz zijn goed vertegenwoordigd.

 

18
Adres
Lindengracht,
1015 JP Amsterdam

Lindengrachtmarkt

Als je al een appeltaart bij Winkel 43 op de Noodermarkt gegeten hebt, wandel dan even door naar de Lindenmarkt. Aan het begin vind je gelijk de heerlijke viskraam (de kibbeling of het broodje tonijnsalade zijn aanraders!) Maar niet alleen de vis, ook de notenspeciaalzaak Notjé is briljant, en het broodje Sabich van Abu Salie is er eentje die je absoluut niet mag missen.

Interieur
5
19
Adres
Tweede Goudsbloemdwarsstraat 5-B,
1015 JX Amsterdam

Galerie Gaudium

Galerie Gaudium is gespecialiseerd in 20e-eeuws design van de meest iconische architecten en ontwerpers. De galerie bevindt zich in het hart van het prachtige Amsterdam, waar ze verschillende thematentoonstellingen presenteren van midcentury meubels gecombineerd met hedendaagse kunst. Thema's omvatten het werk van beroemde ontwerpers zoals Mathieu Matégot en Charlotte Perriand, of locatiegerichte tentoonstellingen zoals Deens, Italiaans of Japans design. Nieuwe tentoonstellingen worden aangekondigd via hun sociale media. De items in de tentoonstelling zijn te koop en beschikbaar in de online winkel.

20
Adres
De Wittenkade 111,
1052 AG Amsterdam

Kringloopwinkel Kerk & Buurt

Deze kringloopwinkel is gevestigd in een wel heel bijzondere locatie: de kelder van de Nassaukerk die gebouwd is in jaren ’20 stijl. Die kelder telt aardig wat vierkante meters, en zo kun je dus ook in deze kringloopwinkel alles vinden: van meubels, kleding en boeken tot speelgoed en serviesgoed.

Kunst & cultuur
485A9340-2048×1446-1-1024×723
21
Adres
Lindengracht 148,
1015 KK Amsterdam

Kersgallery

In de Kersgallery vind je twee stromen moderne hedendaagse kunstwerken. Enerzijds kunstenaars die het theatrale en absurde van het dagelijks leven weergeven en anderzijds kunstenaars die middels abstract-impressionisme de natuur in al haar wonderbaarlijkheid laten zien. Voor Annelien Kers zijn veel kleur en een levendige sfeer de stuwende krachten achter de kunstwerken die in de Kersgallery worden tentoongesteld.

IMG_3630-768×512-1
22
Adres
Haarlemmerdijk 159,
1013 KH Amsterdam

The Movies

Bioscoop The Movies bestaat al sinds 1912. Het wordt vaak de oudste bioscoop van Amsterdam genoemd maar formeel is dat bioscoop de Uitkijk, die een jaar eerder zich heeft ingeschreven. In haar eerste jaren werd de bioscoop gebruikt als kleinschalige buurtcinema en pas na de Tweede Wereldoorlog werden er ook films voor groter publiek getoond. Vandaag de dag is het één van de populairste arthouse bioscopen in Amsterdam. Er komen ook veel bezoekers naar The Movies om het historische interieur te bewonderen. De bioscoop is gevestigd in een 17e eeuws pand aan de Haarlemmerdijk en het originele art-deco interieur is in goede staat gebleven. Een bezoek aan deze bioscoop voelt als een reis door de tijd.

Gevel+Kahmann+Gallery+2019
23
Adres
Lindengracht 35,
1015 KB Amsterdam

Kahmann Gallery

De Kahmann gallery aan de Lindengracht is de plek voor de fotografieliefhebber. Het tentoonstellingsprogramma van de galerie is een mix van vintage en hedendaagse fotografie en ze vertegenwoordigen het werk van bijna 30 nationaal en internationaal gerenommeerde fotografen. Daarnaast organiseren ze de fotografiebeurs Haute Photographie, dat jaarlijks plaatsvindt in februari in Rotterdam en in september in Amsterdam.

Pianola-met-rol-scaled
24
Adres
Westerstraat 106,
1015 MN Amsterdam

Geelvinck Pianola Museum

Midden in de Jordaan ligt een uniek museum, namelijk het kleine Geelvinck Pianola museum. Voor eenieder die geen idee heeft wat de -la achter piano doet: het is de verzamelnaam voor alle automatisch spelende piano’s. Het archief van het museum heeft meer dan 30.000 rollen en deze kunnen allemaal afgespeeld worden op verschillende soorten muziekinstrumenten. Het museum legt uit wat deze pianorollen zijn, hoe deze worden gemaakt en wie er vooral gebruik van maakt. Daarnaast is het museum ook te gebruiken om een zaal voor 50 man te huren en worden er regelmatig concerten gehouden waar online kaartjes voor kunnen worden gekocht.

Buurtgids: Volewijck (Noord) rondom van der Pekstraat

Buurtgids: Volewijck (Noord) rondom van der Pekstraat

Kunstagenda april 2025

Kunstagenda april 2025

Samengesteld; een collectie ‘landelijk wonen’ in en om Amsterdam

Samengesteld; een collectie ‘landelijk wonen’ in en om Amsterdam

Onlangs bekeken
Bekijk het overzicht

Deze site maakt gebruik van cookies.

Voor welke cookies geef je akkoord?