De Kinkerbuurt is centraal gelegen in Amsterdam-West. De buurt ligt op een spreekwoordelijk "eiland", begrensd door de Singelgracht, het Jacob van Lennepkanaal, de Kostverlorenvaart en de Hugo de Grootgracht. Het hart van de wijk is de Kinkerstraat. Alle straten in deze buurt zijn vernoemd naar schrijvers en dichters, waarbij Johannes Kinker vooral bekend is gebleven dankzij zijn straatnaam. Hij was een dichter, filosoof en jurist.

Rondleiding
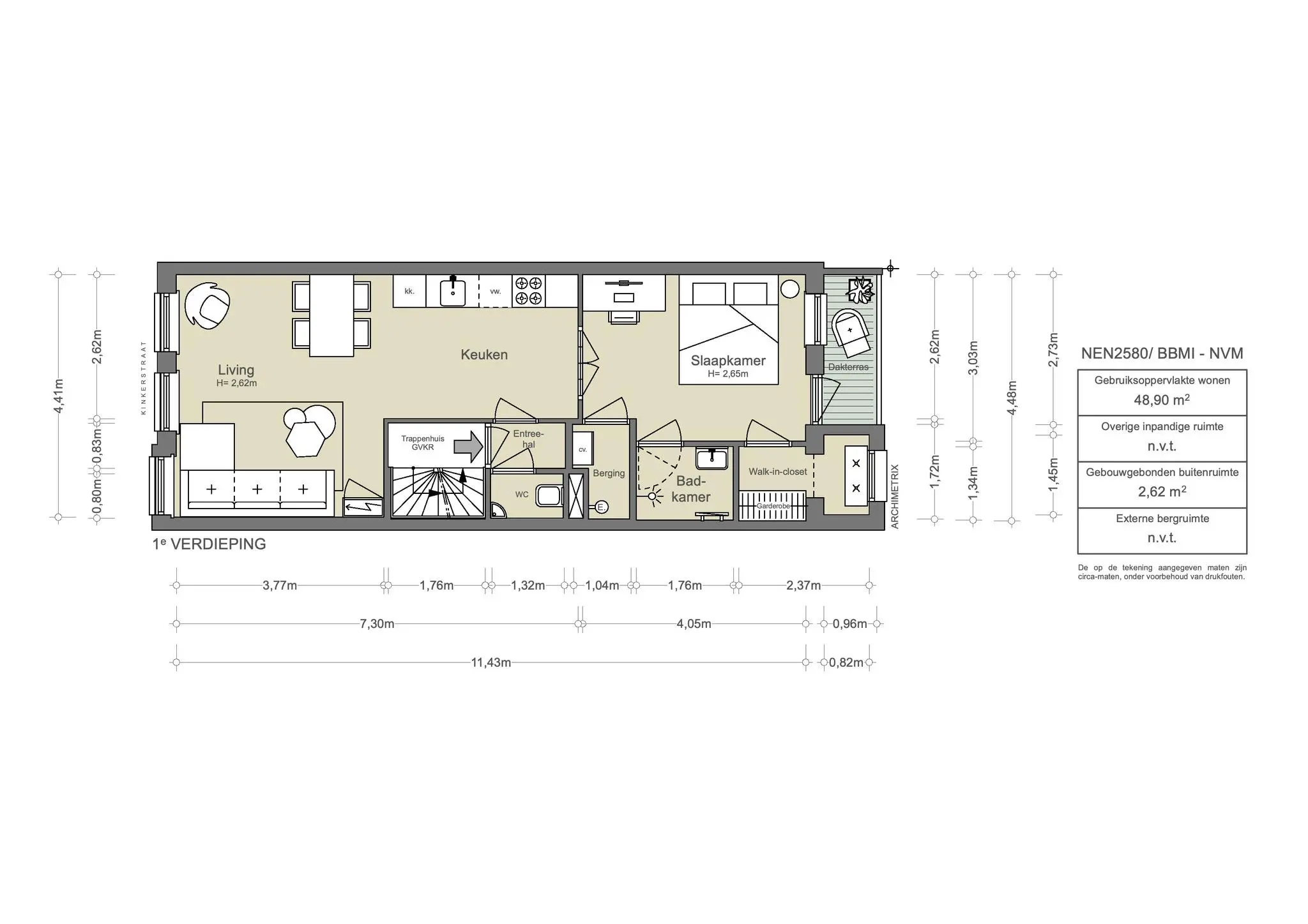
De living aan de zonnige voorzijde is het hart van het appartement, met ruimte voor zowel een zit- als eetgedeelte en veel lichtinval. De open keuken in taupetinten heeft een hardstenen aanrechtblad en diverse inbouwapparaten. De robuuste houten vloer draagt bij aan de warme sfeer. De ruime slaapkamer ligt aan de rustige achterzijde en beschikt over een walk-in closet en een inpandige berging met wasmachineaansluiting. De badkamer, direct bereikbaar vanuit de slaapkamer, is voorzien van een inloopdouche, wastafelmeubel en designradiator. Het balkon op het noordwesten, van circa 3 m², biedt een fijne plek om te ontspannen.

Buurtgids
De woning is gelegen in de gezellige Kinkerstraat met vele winkels en restaurants, op een van de mooiere locaties van Amsterdam West. Dichtbij de grachtengordel en op loopafstand van het Vondelpark. Vlakbij is de Jan Pieter Heijestraat, De Clerqstraat en Bilderdijkstraat met eveneens vele winkels, toko’s en leuke restaurants zoals Gitane, Bar Centraal, La Parole, nNea Pizza en Karavaan. Een omgeving met een uitgebreide diversiteit aan horeca gelegenheden en cultuur (De Hallen). Daarnaast is er bijvoorbeeld de Ten Kate markt en de Foodhallen. Voor de filmliefhebbers zijn de Filmhallen en LAB111 om de hoek. Ook is er voldoende gelegenheid voor sporten in het Vondelpark, bij Saints & Starts, PLTS en Studio 191.

Bijzonderheden
•    Gebruiksoppervlakte wonen circa 49 m²
•    Balkon gelegen op het noordwesten van circa 3 m²
•    Fundering hersteld in 2005
•    Gelegen op eigen grond
•    Energielabel B
•    Servicekosten VvE € 120,- per maand
•    2005 is het gehele casco grondig gerenoveerd
•    Oplevering kan snel

AM105558-1979351-Kinkerstraat-206B,-Amsterdam-218893731

Johannes Kinker no. 206B
Wij begeleiden als kantoor de verkoop van een gevarieerd aanbod. Zelf kom ik erg graag in Oud-West en ben daar dan ook vaak te vinden. Ik hou van de reuring in de buurt, en de voorzieningen zijn goed. Niet alleen op de Kinkerstraat zelf, maar ook op onder andere de Bilderdijkstraat en de J.P. Heijestraat is een divers aanbod van winkels, speciaalzaken en traiteurs te vinden. Daarnaast zijn er in de buurt diverse goede restaurants en gezellige cafés. Het appartement aan de Kinkerstraat 206 B, dat wij als kantoor mogen verkopen, is zeer goed ingedeeld en centraal gelegen. Aan de voorzijde van het pand ervaar je de stadse dynamiek, terwijl je aan de achterzijde geniet van fijne rust. Heb je interesse? Dan nodig ik je graag uit om eens langs te komen. Uiteraard vertel ik je dan nog meer over het appartement. Wellicht tot snel!


Glenn van der Zanden | Makelaar Broersma Wonen
AM105558-1979351-Kinkerstraat-206B,-Amsterdam-218893675
Architectuur

Het pand aan de Kinkerstraat 204/206 is gebouwd in 1904 als een twee-eenheid. Het bouwblok, bestaande uit twee panden, is uitgevoerd in de neorenaissancestijl, een populaire bouwstijl in Amsterdam aan het einde van de 19e en het begin van de 20e eeuw. Deze stijl werd veelvuldig toegepast in stadsuitbreidingen zoals Oud-West, waar de Kinkerstraat zich bevindt.
Kenmerken van de neorenaissancestijl:
– Bakstenen gevel met natuurstenen of witte accenten – Duidelijk zichtbaar in de horizontale banden, speklagen en de omlijstingen rond de ramen en deuren.
– Symmetrische opbouw – De gevel is evenwichtig ingedeeld met verticale en horizontale geledingen.
– Rijke ornamentiek – Boogvormige en rechthoekige vensters met decoratieve elementen erboven, zoals kleine frontons en ornamenten.
– Lijstgevel en dakkapellen – De bovenkant van het gebouw is voorzien van een sierlijke kroonlijst, en de zolderverdieping heeft opvallende dakkapellen met een kenmerkende neorenaissance-vormgeving.
– Verticale gevelindeling – Pilasters en lisenen (lichte uitstulpingen in de gevel) zorgen voor een duidelijke ritmische verdeling van het gebouw.
Later zijn er diverse aanpassingen gedaan aan het pand. Zo werden de winkelruimtes in 1958 verder uitgebreid, en in 2005 werd het pand gesplitst in appartementsrechten. Voorafgaand aan de splitsing is de fundering in 2005 hersteld en is het casco grondig gerenoveerd, wat heeft geresulteerd in goed geïsoleerde bouwvloeren en een positief energielabel. In 2007 kreeg het pand een nieuwe huisnummerbeschikking, waardoor iedere etage met een letter werd aangeduid.

Kinkerstraat 206 B-43
AM105558-1979351-Kinkerstraat-206B,-Amsterdam-218893719
AM105558-1979351-Kinkerstraat-206B,-Amsterdam-218893711
AM105558-1979351-Kinkerstraat-206B,-Amsterdam-218893741
Wonen en koken

De living, gesitueerd aan de zonnige voorzijde van het appartement, is het hart van de woning. Er is voldoende ruimte voor zowel een zit- als een eetgedeelte, de ideale plek voor ontspanning en gezelligheid. Door de grote raampartijen op het zonnige zuiden is er veel lichtinval, wat de ruimte nog verder verrijkt. In de entreehal bevindt zich het toilet. De open keuken heeft een tijdloos design in een trendy taupe kleur en is uitgerust met een hardstenen aanrechtblad. De keuken is voorzien van diverse inbouwapparatuur, waaronder een oven, vaatwasser, 4-pits gaskookplaat, afzuigkap en koel-vriescombinatie. De robuuste eiken houten vloer maakt de ruimte compleet en sluit perfect aan bij de prettige sfeer van het geheel.

AM105558-1979351-Kinkerstraat-206B,-Amsterdam-218893715
AM105558-1979351-Kinkerstraat-206B,-Amsterdam-218893763
AM105558-1979351-Kinkerstraat-206B,-Amsterdam-218893759
AM105558-1979351-Kinkerstraat-206B,-Amsterdam-218893771
AM105558-1979351-Kinkerstraat-206B,-Amsterdam-218893845
AM105558-1979351-Kinkerstraat-206B,-Amsterdam-218893785
AM105558-1979351-Kinkerstraat-206B,-Amsterdam-218893851
Slapen en baden

De riante slaapkamer grenst direct aan de keuken en is gelegen aan de rustige achterzijde. Dankzij de afgesloten walk-in closet is er in de slaapkamer voldoende ruimte voor een tweepersoonsbed en eventueel een werkplek. De badkamer, evenals de walk-in closet, is direct vanuit de slaapkamer te betreden. De badkamer beschikt over een inloopdouche, een wastafelmeubel en een designradiator. Daarnaast is er in de slaapkamer een inpandige berging met een aansluiting voor de wasmachine en droger.

AM105558-1979351-Kinkerstraat-206B,-Amsterdam-218893839
AM105558-1979351-Kinkerstraat-206B,-Amsterdam-218893867
AM105558-1979351-Kinkerstraat-206B,-Amsterdam-218893793
AM105558-1979351-Kinkerstraat-206B,-Amsterdam-218893827
AM105558-1979351-Kinkerstraat-206B,-Amsterdam-218893805
Kinkerstraat 206 B-42
Het balkon

Het buitenleven wordt verder verrijkt door het balkon op het noordwesten van circa 3 m², dat een heerlijke plek biedt om te ontspannen en de dynamiek van de stad even te vergeten.

 

AM105558-1979351-Kinkerstraat-206B,-Amsterdam-218893779
AM104924-1822680-Jacob-van-Lennepstraat-37-1,-Amsterdam-163893241
AM105558-1979351-Kinkerstraat-206B,-Amsterdam-218893687
1053 VH Bilderdijkkade 31-1 -5
AM104500-1788028-Elisabeth-Wolffstraat-50F,-Amsterdam-156200653

De woning is gelegen in de gezellige Kinkerstraat met vele winkels en restaurants, op een van de mooiere locaties van Amsterdam West. Dichtbij de grachtengordel en op loopafstand van het Vondelpark. Vlakbij is de Jan Pieter Heijestraat, De Clerqstraat en Bilderdijkstraat met eveneens vele winkels, toko’s en leuke restaurants zoals Gitane, Bar Centraal, La Parole, nNea Pizza en Karavaan. Een omgeving met een uitgebreide diversiteit aan horeca gelegenheden en cultuur (De Hallen). Daarnaast is er bijvoorbeeld de Ten Kate markt en de Foodhallen. Voor de filmliefhebbers zijn de Filmhallen en LAB111 om de hoek. Ook is er voldoende gelegenheid voor sporten in het Vondelpark, bij Saints & Starts, PLTS en Studio 191.

Bereikbaarheid
De woning is gelegen in de Kinkerstraat nabij de Bilderdijkstraat en de Nassaukade, een van de belangrijkrijke toegangswegen. Het appartement is uitstekend te bereiken met de auto door middel van de S100, S105 en S106 vanaf de ring A10. Door de gunstige geografische ligging in de stad is o.a. luchthaven Schiphol binnen 19 autominuten te bereiken. Diverse openbaar vervoer voorzieningen zijn in de nabije omgeving te vinden. Op de Rozengracht, De Clercqstraat, Ten Katestraat en Bilderdijkstraat zijn meerdere tram- en bushalte te vinden. Op 10 minuten fietsafstand is Centraal Station te bereiken.

Parkeergelegenheid
Parkeren is mogelijk via een vergunningenstelsel op de openbare weg (vergunningsgebied West-11.1). Met een parkeervergunning voor West-11.1 mag u parkeren in West-11. Een parkeervergunning voor bewoners kost € 192,81 per 6 maanden. Momenteel is er voor dit vergunningsgebied een wachttijd van 8 maanden. Een tweede parkeervergunning is in dit gebied niet mogelijk. (Bron: Gemeente Amsterdam, maart 2025).

1053 AT Bellamyplein 28 II-4
1053 AN Agatha Dekenstraat 59 H 32
Kenmerken
Kinkerstraat 206B, Amsterdam
Vraagprijs
  • € 425.000 k.k.
Beschikbaarheid
  • In overleg
Vertrekken
  • 2 kamers
  • 1 slaapkamer
  • 1 badkamer
Onderhoud
  • Intern: Goed
  • Extern: Goed
Oppervlakten & Inhoud
  • Woonoppervlakte: 49 m²
  • Gebouwgebonden buitenruimte: 3 m²
Bouwjaar
  • 1904
Ligging
  • In woonwijk
Parkeren
  • Betaald parkeren
  • Parkeervergunningen
Type verwarming
  • CV Ketel
Type warmwater
  • CV Ketel
Bestemming
  • Woonruimte
Eigendomssoort
  • Volle eigendom
Buitenruimte
  • Geen tuin
  • Balkon
Kadastraal
  • Gemeente: Amsterdam
  • Sectie: T
  • Nummer: 6638
Duurzaamheid
  • Dubbel glas
  • Energielabel B
Soort
  • Appartement
  • Bovenwoning
Welke woonlaag
  • 2e
Overige kenmerken

OZB ('24): € 196,35 per jaar
Rioolrecht ('25): € 185,20 per jaar
Servicekosten VvE € 120,- per maand
Stookkosten €88 per maand

Plattegrond
Kinkerstraat 206B, Amsterdam
AM105558-1979351-Kinkerstraat-206B,-Amsterdam-218893977
Documenten
Kinkerstraat 206B, Amsterdam
Locatie
Kinkerstraat 206B, Amsterdam
Eten & drinken
342142012_252944383996150_8015170625605962633_n
01
Adres
Kinkerstraat 186,
1053 EM Amsterdam

Five Ways Coffee Roasters

Five Ways Coffee Roasters begon als een bescheiden koffiebranderij in Amsterdam bij Spot On Coffeeroaster. Enkele jaren geleden vestigde de eigenaar zich in Nederland en heeft sindsdien zijn tweede succesvolle specialty koffiebar in Amsterdam geopend.

Schermafbeelding 2022-06-20 om 13.29.38
53700300_311590863045393_1981039547722498048_n
02
Adres
Kinkerstraat 230,
1053 EN Amsterdam

Sababa

De eigenaar van Sababa wilde goede, perfecte falafel. Ze zijn verschillende combinaties gaan uitproberen, producten gaan proeven en zo ontstond hun perfecte falafel broodje. Geïnspireerd op de Israëlische keuken, heerlijk voor een snelle hap of om uitgebreid te eten met een biertje erbij.

03
Adres
Ten Katestraat 36,
1053 CG Amsterdam

Toko Rustem

Rustem is een verborgen parel in de Ten Katestraat. Het is een toko die je absoluut niet mag missen. De Toko zit achter een marktkraam verscholen en wordt door een familie gerund. De nette inrichting en verse vitrineproducten weerspiegelen de zorg die ze besteden. Een aanrader is een broodje pom of een broodje ketjap kip. De broodjes zijn authentiek gekruid met pittige peper en verfrissend zuur tegen een betaalbare prijs.

412174660_3213646675598150_4852236387686728737_n
04
Adres
Nicolaas Beetsstraat 51,
1053 RJ Amsterdam

Petit Péché

Le Petit Péché staat symbool voor de kleine zonde. Door openlijk achter de bar te koken, willen ze laten zien dat het bereiden van vlees en vis op een respectvolle manier mogelijk is. De keuze van ingrediënten is lokaal. De chefs omarmen de vaak de minder gangbare producten. De (nu al) signature dish is gefrituurde kikkerbillen met bottarga en merg mayonaise. Uiteraard streven ze ernaar de warme en toegankelijke smaken te behouden die mensen kennen van Café Beurre.

Schermafbeelding 2023-08-30 om 14.30.21
05
Adres
Nicolaas Beetsstraat 47h,
1053 RJ Amsterdam

Dona

Met Restaurante Dona brengen eigenaren Diogo en Sjors een eerbetoon aan hun grootmoeders en de Portugese keuken. Chef Diogo dankt zijn liefde en uitzonderlijke kookvaardigheden aan zijn grootmoeders, Tana & Tonica. Sinds zijn kindertijd leerden zij hem de ambacht van de authentieke Portugese keuken. Sindsdien deelt hij zijn passie en expertise in vele Europese restaurants. Hij laat gasten van over de hele wereld kennismaken met verrukkelijke Portugese gerechten. Voor Sjors belichaamt Dona zijn passie voor gastvrijheid en de onvoorwaardelijke steun van zijn grootmoeders hierin. Bep en Nel voorspelden altijd dat Sjors ooit zijn eigen restaurant zou openen. Ze steunden hem gedurende zijn carrière in het beheer van hoogwaardige restaurants.

 

Schermafbeelding 2022-06-20 om 19.13.02
Schermafbeelding 2022-06-20 om 19.13.43
06
Adres
Ten Katestraat 16,
1053 CE Amsterdam

Bar Centraal

Op de gezellige Ten Katemarkt in Oud-West vind je Bar Centraal. Een voormalige BBQ restaurant bij de Ten Katemarkt bleek een perfecte locatie te zijn voor een tweede wijnbar voor de mensen van Glouglou. Bar Centraal bestaat uit twee gebouwdelen; Er is een deel waarin gegeten kan worden aan de bar van de open keuken. En er is een groter deel waarin de wijnbar staat. Het gangetje tussen de twee ruimtes is voorzien van een grote wijnkoelkast. De wijnkaart bestaat uit natuurwijnen (met een vermelding in de Star winelist!) en de meeste goede gerechtjes zijn to share.

 

Schermafbeelding 2022-06-20 om 19.09.35
07
Adres
Bellamyplein 51,
1053 AT Amsterdam

Mer du Nord

Gelegen in de populaire Foodhallen in Amsterdam-West zit Mer du Nord. Heerlijke Nederlandse vis snacks staan hier op het menu. De twee chefs van Restaurant 212 zijn de eigenaren van deze plek. De verse oesters zijn een echte aanrader maar ook de knapperige zachte krab op een broodje is om te smullen.

191004_Foodhallen_Amsterdam5jaar-©laisamaria-54
08
Adres
Bellamyplein 51,
1053 AT Amsterdam

Foodhallen

De Foodhallen zijn geïnspireerd door de ‘indoor foodmarkets’ van andere grote steden als Madrid, Copenhagen en Londen. In de Foodhallen vind je stands van het beste dat Amsterdam op culinair gebied te bieden heeft. Met meer dan twintig verschillende keukens gevarieerd van door Michelin bekroonde concepten tot streetfood. Kibbeling en inktvis van Mer Du Nord, taco's van Taqueria Lima of Vietnamees bij Viet View.

362281468_17877326531919863_8876445204828833093_n
09
Adres
Kinkerstraat 142 C-H,
1053 EG Amsterdam

Hawawshi

Schermafbeelding 2023-01-25 om 14.25.43
10
Adres
Bellamyplein 51,
1053 AT Amsterdam

Kanarie club

Iedereen kent de foodhallen in West. Wat echter niet iedereen kent is de Kanarie Club die zich aan de achterkant van het gebouw bevindt. Dit deel van de oude fabriekshallen is gevuld met het briljante concept van de club: een grote ruimte met genoeg plek om zowel zelf met of zonder laptop neer te strijken, als het hosten van grote events en bijeenkomsten. In het midden van de ruimte staat een keukenachtige-bar, waar je smaakvolle cocktails kunt drinken. Daarnaast is de kanarie club open voor ontbijt, lunch én diner. Kortom, meer dan genoeg om er de hele dag te vertoeven.

277274092_570465227271282_2863090128467155428_n
321728804_132502672992041_1979043488818020825_n
11
Adres
Kinkerstraat 122,
1053 ED Amsterdam

Paindemie

Tijdens de lockdown ontstond Paindemie als een creatieve uitlaatklep voor chefs die hun culinaire passie wilden delen. Geïnitieerd door Guillaume de Beer van The Breda Group, biedt Paindemie een unieke ervaring met royale burgers, tosti's en sandwiches in een ruimte geïnspireerd op een Japans metrostation. De burgers worden bereid met ethisch Nederlands geitenbokkenvlees, terwijl vegetariërs kunnen genieten van huisgemaakte smashburgers van Redefine Meat. Het hoogtepunt? The BIG Mie, een ode aan de Big Mac. Bovendien pronkt de wijnkaart met zorgvuldig geselecteerde natuurwijnen, sake's en cocktails, allemaal geserveerd in de charmante art deco-bar.

downloadgram.org_582764027_17859423015564300_3438836274206826094_n
12
Adres
Kinkerstraat 122,
1053 ED Amsterdam

MOYŌ

Chef en eigenaar Guillaume de Beer (eerder van Bar Gui) startte MOYŌ als een intiem restaurantconcept waarin luxe en focus centraal staan. In true Paindemie-stijl serveert hij een chef’s choice tasting menu van vijf of acht gangen, opgebouwd rond twee van de meest verfijnde Japanse ingrediënten: toro en wagyu. Deze producten vormen het hart van de keuken en bepalen het karakter van de hele ervaring. De stijl is uitgesproken en precies, met gerechten die draaien om rijkdom, textuur en pure smaakbeleving. De ambiance is exclusief en warm, een verborgen plek voor gasten die bewust kiezen voor een bijzondere avond uit.

263151911_4984840728206347_6656739176783290457_n
13
Adres
Kinkerstraat 112,
1053 ED Amsterdam

LOT61 Coffee Roasters

Op de hoek in de Kinkerstraat zit koffiebranderij LOT61. Je kan hier naast verse bonen – heerlijk ruiken - terecht voor een sterke, goeie bak koffie, ontbijt en bakkerijproducten. De gemoedelijke ruimte, ingericht met hout en metrotegels zorgt ervoor dat je hier uren zou willen zitten. Hun missie is om de meest circulaire koffiespecialiteitsmerk ooit te zijn. Probeer ook de chocolate chip cookies, ook wel ‘crack cookies’ genoemd, maar pas op want ze zijn verslavend.

338352218_584298323641670_4711459359542309389_n
339656072_768473978128516_5314100082435858911_n
14
Adres
Kwakersstraat 24,
1053 WD Amsterdam

La Parole

Tijn Verstappen, bekend van restaurants als Pazzi, Oeuf, Gertrude en Van 't Spit, vond dit historische pand de perfecte plek voor een Franse bistro in de Westerse wijk. La Parole, geleid door de getalenteerde chef Olivier Hirschmann (26), biedt zeven dagen per week brunch, lunch, diner en borrel tegen betaalbare prijzen. Het menu omvat klassieke Franse gerechten zoals moules frites, omeletten en cheeseburgers, evenals innovatieve creaties zoals brioche toast met steak tartare en ravioli met krab in een bisquesaus. La Parole is een welkome aanwinst voor de buurt en biedt een ontspannen sfeer met uitstekende wijn en een gezellige bar om aan te hangen.

350797001_546119614400873_859829144022127459_n
15
Adres
Jan Pieter Heijestraat 76,
1053 GS Amsterdam

Wakuli

Wakuli ontleent aan het Swahili-woord 'wakulima', wat boer betekent. Hier vind je kwaliteitskoffie die op duurzame wijze is verkregen tegen betaalbare prijzen.  Ze halen hun bonen bij kleinschalige boeren die groene productie produceren en roosteren ze op de beste manier mogelijk voor maximale smaak. Je kunt hier alle gebruikelijke koffiesoorten krijgen, evenals heerlijke ijskoffie en nitro cold brew. Last but not least, hebben ze een aantal zoete en hartige lekkernijen beschikbaar, van empanadas tot broodjes en croissants.

downloadgram.org_587941642_17861923047540463_7528525127815259624_n
downloadgram.org_580577890_17860377204540463_347230483383533533_n
16
Adres
Jan Pieter Heijestraat 94A,
1053 GS Amsterdam

Café Vitalente

Café Vita Lente werd geopend door Simon Witmaar, voormalig eigenaar van het sterrenrestaurant Coulisse, dat hij samen met Tim van der Molen runde. Met Vita Lente koos hij bewust voor iets totaal anders: geen fine dining, maar een café waar spontaniteit en vrijheid centraal staan. In de keuken staat Bas Holthuizen, die meeging vanuit Coulisse en hier kookt in een losser format met warme en koude gerechten die je de hele dag door kunt bestellen. Het concept draait om het Italiaanse idee van 'vita lenta', langzaam leven, waarbij je op elk moment vanaf 11.30 kunt binnenlopen en zo lang blijft als je wilt.

IMG_0015
17
Adres
Bilderdijkkade 27,
1053 VH Amsterdam

Berry

Berry Amsterdam is een hotspot voor sapjes, smoothies, koffie en meer. Dit koffie/lunchtentje kun je vinden op de Bilderdijkkade. Het gezellige en warme interieur doet door de vele planten en boeken denken aan een huiskamer. Daarnaast hebben ze een heerlijk terras waar je van de zon kan genieten. De meeste producten zijn biologisch en hier geen gelaptop – Berry Amsterdam is zoals ze zelf zeggen: een wifi-vrije zone!

©rachelecclestone_PEPS-INTERIORS__September-09-2025_DSC07510
18
Adres
Bilderdijkstraat 158H,
1053 LC Amsterdam

Peps

Peps is een Spaanse wijn- en eetbar in Oud-West met een keuken onder leiding van chef Raymond van Welzenis, die eerder bij BAUT werkte en hier een creatieve draai geeft aan tapas en pinchos met finesse en smaak. De kaart telt meer dan zestig kleine gerechten, van klassiekers zoals pimientos de padrón en pulpo tot oesters op ijs, ideaal om te delen met vrienden of bij de borrel. Het menu combineert Spaanse traditie met een moderne, informele setting waarin brunch, diner en cocktails moeiteloos in elkaar overlopen.

275335010_978007842873510_9036372361978497498_n
294431600_369850948563647_4204512199247441432_n
19
Adres
Bilderdijkstraat 164 H,
1053 LC Amsterdam

Brioche.

Deze gloednieuwe bakkerij is gespecialiseerd in (zoals je waarschijnlijk verwacht) Franse brioche. Ze bieden een selectie van zoete broodjes met klassieke smaken zoals kardemom en kaneel, en nog wat anderen zoals bessen en praline. Ze hebben ook hartige specialiteiten zoals een brioche met zalm en roomkaas.  Ze zijn geopend op woensdag tot en met vrijdag van  8.00 to 17.30 en zaterdag en zondag van 9.00 tot 17.00

Boodschappen
schermafbeelding_2009_12_08_om_07_11_46.png(mediaclass-landscape-large.8f15b2a15b52b59f0860dab754f88b3a1785126a)
20
Adres
Ten Katestraat 34,
1053 CG Amsterdam

Ten Katemarkt

Bij de Ten Katemarkt in Amsterdam oud-west kan je terecht voor heerlijke verse groente en fruit, gebrande noten, bloemen, vis, brood en nog veel meer. Mensen uit de buurt doen hier doorgaans hun boodschappen, maar het leent zich ook een bezoekje te wagen voor de gezelligheid. De kooplieden roepen met aanbiedingen en er bestaat dan ook een grote kans dat je met een rijkgevulde boodschappentas de markt afloopt. De ten Kate markt heeft een markthistorie sinds 1912 en is ondertussen een multiculturele markt met Amsterdamse charme. Waar men vroeger met handkar de markt opkwam om gedurende de dag producten te verkopen, staan er nu kraampjes.

65320963_2386585801408785_6382526370580267008_n
21
Adres
Bellamyplein 51,
1053 AT Amsterdam

The Maker Market

De Hallen in Oud-West organiseert een keer per maand een weekendmarkt. Hier vind je allerlei duurzame merken van lokale ondernemers en makers uit Amsterdam en omstreken. De markt heeft een divers aanbod en laat je op een andere manier naar duurzaamheid en lokaal geproduceerd kijken. Ook kan je in de Hallen terecht voor een bioscoop, een lekker hapje of drankje, dus is een bezoek aan deze markt een veelzijdig uitstapje.

holyactiefoto-s-183.960×0
holyactiefoto-s-164.960×0
22
Adres
Jan Pieter Heijestraat 88,
1053 GS Amsterdam

Holy Ravioli

Holy Ravioli is een pastawinkel in Amsterdam-West. Er zijn maar liefst 15 verschillende soorten ravioli en bij iedere ravioli hoort een passende pesto, boter, chutney, saus of kaas. Alle producten zijn seizoengebonden en vers en dat zorgt voor de allerlekkerste pasta. Daarnaast zijn er ook soepen, lasagnes, salades en toetjes. Je kan lekker buiten zitten in de zomer op de picknickbanken of pasta mee naar huis nemen en zelf klaarmaken als je een keer geen tijd hebt om te komen. De perfecte plek voor pastafanaten.

Interieur
275768745_4994158697304229_23510235732350908_n
275757813_4994159110637521_5180581026729406498_n
23
Adres
Hannie Dankbaarpassage 24,
1053 RT Amsterdam

Grand & Johnson

Uit de samenwerking van ontwerpers Bertel Grote (Grand) en Jeroom Jansen (Johnson) is Grand & Johnson ontstaan. In de Hallen bevindt zich hun ontwerpstudio wiens grote kracht ligt in het ontwerpen en realiseren van totaalconcepten. Met een goed oog voor de balans tussen lijnen, vormen, licht, kleur en materiaal, richt het duo zich op ingetogen en moderne binnenhuisarchitectuur.

Kunst & cultuur
IMG_4216
IMG_3589-1040×500-1
24
Adres
Hannie Dankbaarpassage 12,
1053 RT Amsterdam

De Filmhallen

De Filmhallen zit in het complex ‘de hallen’ wat voorheen een tramremise was. De bioscoop is vrij jong het bestaat namelijk sinds 2004. Bijzonder aan de filmhallen is dat er één zaal is waarbij het art-deco interieur van een zaal van het oude Cinema Parisien is ingebouwd. De hallen is een ruim complex geheel overdekt met naast de filmhallen ook de foodhallen, waar allemaal etenstentjes zijn. Dit heeft een beetje de sfeer van een overdekte Spaanse foodmarket.

1548050_719433611436030_8787194171361109584_o
283815281_5218410231538323_5061479213185882657_n
25
Adres
Hannie Dankbaarpassage 23,
1053 RT Amsterdam

Beeldend Gesproken

Beeldend Gesproken in De Hallen is een bijzondere galerie met kunstuitleen. Het is dé plek waar professionele kunstenaars met psychische gezondheidsproblemen een podium vinden om hun werk te tonen. Naast dat de kunstenaars worden ondersteund, zorgen ze ervoor dat hun werk de wereld in gaat - een beetje zoals broer Theo deed met het werk van Vincent van Gogh. Beeldend Gesproken heeft een actuele, veelzijdige collectie van hedendaagse kunst, schilderijen, grafiek, fotografie en driedimensionaal werk in allerlei technieken

Ontmoet interieur ontwerpster Anita Fraser. Na een carrière als procesadvocaat volgde ze een opleiding interieurontwerp aan de University of Arts London. Samen met ontwerpers en architecten verfijnt ze woon- en werkruimtes.

Ontmoet interieur ontwerpster Anita Fraser. Na een carrière als procesadvocaat volgde ze een opleiding interieurontwerp aan de University of Arts London. Samen met ontwerpers en architecten verfijnt ze woon- en werkruimtes.

Kunst & cultuur agenda november 2025

Kunst & cultuur agenda november 2025

Familiehuizen

Familiehuizen

Onlangs bekeken
Bekijk het overzicht

Deze site maakt gebruik van cookies.

Voor welke cookies geef je akkoord?