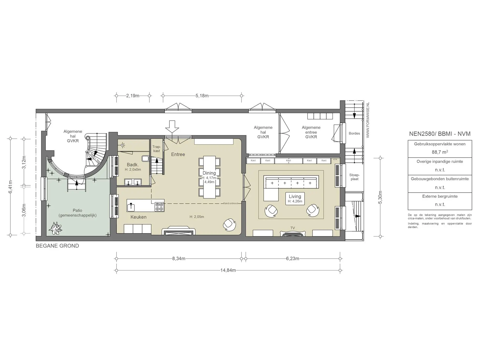
Begane grond appartement van circa 118 m², met een entresol op de eerste verdieping. Het appartement is gehuisvest in een prachtig rijksmonument en heeft een gedetailleerde stijlkamer aan de voorzijde met uitzicht over de gracht. Het appartement heeft een woonkamer, woonkeuken voorzien van diverse inbouwapparatuur, slaapkamer en badkamer voorzien van inloopdouche, wastafel en toilet.

Rondleiding
Entree in indrukwekkende gezamenlijke hal, voorzien van marmeren vloer en ornamentenplafond. Aan de voorzijde is de stijlkamer, met grote ramen uitkijkend op de gracht. De woonkamer is met openslaande deuren verbonden met de woonkeuken aan de achterzijde. De luxe open keuken met eiland is voorzien van diverse inbouwapparatuur. De slaapkamer is gesitueerd in de entresol en de badkamer voorzien van inloopdouche, wastafel en toilet.

Wat de bewoonster gaat missen
"Bij de laatste modernisering die ik heb mogen uitvoeren, heb ik een voorzetwand in de keuken verwijderd. Bij het weghalen hiervan kwamen de oorspronkelijke ornamenten tevoorschijn mét de originele verflaag van, pak het beet, zo'n 380 jaar oud. Je bent dan even archeoloog in eigen huis!
Maar ook de stilte van de gracht bij het vallen van de avond, het ruisen de wind en gekwetter van vogels maakt het zo bijzonder om hier te wonen."

Buurtgids

De buurt rondom de Keizersgracht 71 HLV is één van de meest pittoreske en charmante delen van Amsterdam. Gelegen in het hart van de stad, biedt deze buurt een unieke mix van historische schoonheid en moderne levendigheid.
De Keizersgracht zelf is één van de beroemdste grachten van Amsterdam, die samen met de Herengracht en de Prinsengracht de iconische grachtengordel vormt, die op de UNESCO-Werelderfgoedlijst staat. De grachten worden geflankeerd door prachtige 17e-eeuwse herenhuizen met hun kenmerkende gevels, smalle gevels en prachtige gevelstenen.
De buurt is doordrenkt van cultuur en geschiedenis. Langs de grachten zijn er talloze galerijen, kunstwinkels en antiekwinkels te vinden. Verder zijn er ook trendy boetieks, designerwinkels en lokale ambachtelijke winkels. Daarnaast staat de buurt bekend om zijn levendige eet- en drinkgelegenheden. Er is een breed scala aan restaurants, cafés en bars, variërend van gezellige bruine cafés tot chique gastronomische ervaringen te vinden.
De buurt rondom de Keizersgract 71 HLV heeft ook een gunstige ligging ten opzichte van andere bezienswaardigheden. Op loopafstand is het Anne Frank Huis, de Jordaan en onder andere de Dam te vinden.

Bijzonderheden
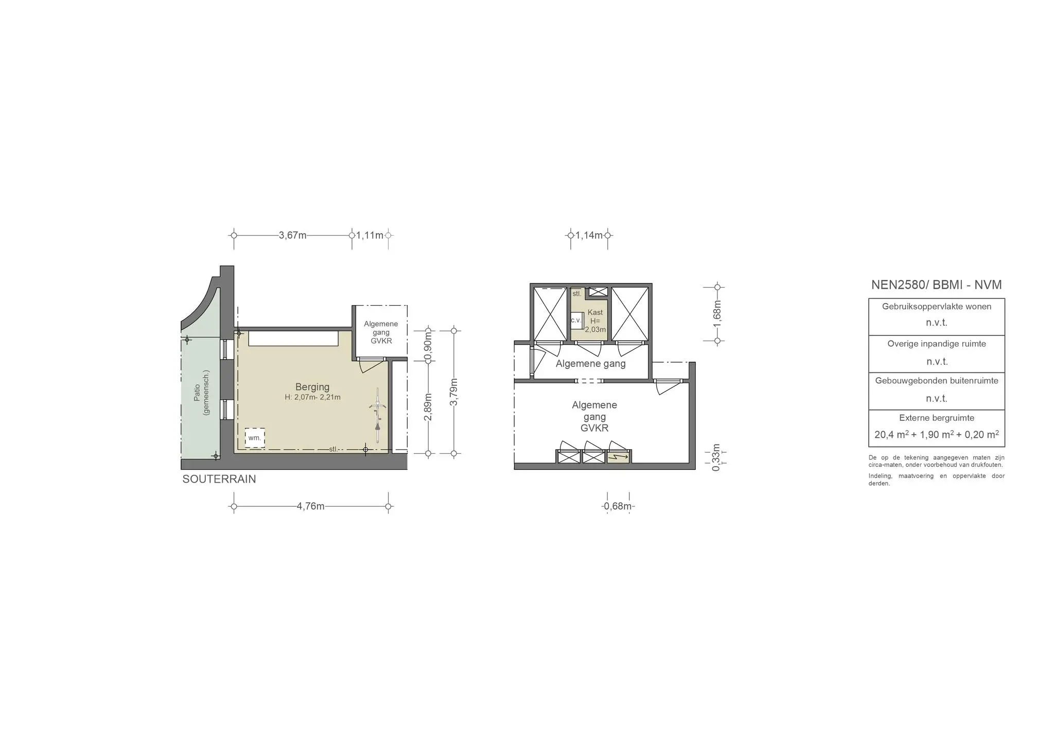
• Gebruiksoppervlakte wonen circa 118 m²
• Gelegen in twee stijlkamers met een plafondhoogte van bijna 4,5 meter
• Gelegen op eigen grond
• Servicekosten VvE 259,60 per maand
• Rijksmonument
• Rijksbeschermd stadsgezicht
• Onderdeel UNESCO Werelderfgoed
 

AM105556-1934111-Keizersgracht-71HLV,-Amsterdam-192266753

De Keizer 71
Wonen in het hart van Amsterdam, aan één van de meest prachtige grachten van de stad, de Keizersgracht. Dit appartement bevindt zich op de bel-etage van een schitterend monumentaal grachtenpand dat dateert uit 1640. Gelegen in twee stijlkamers aan de voorzijde van het pand, biedt het een adembenemend uitzicht over de gracht. De woonkamer aan de voorzijde staat in open verbinding met de woonkeuken erachter. Het appartement straalt een tijdloze elegantie uit, met behoud van originele houten vloeren, lambrisering, geornamenteerde plafonds en marmeren schouwen die in uitstekende staat verkeren.
In 2022 heeft het appartement een modernisering ondergaan onder architectuur. Tijdens deze renovatie is het oorspronkelijke karakter van het pand op een verfijnde manier gecombineerd met hoogwaardige en luxe materialen. Deze zeldzame mix van rijke historie en eigentijds comfort en luxe maakt het tot een uniek appartement aan de grachten.

Bij binnenkomst valt direct de ruimtelijkheid, sfeer en overvloed aan natuurlijk licht op.


Daniël de Bont | Makelaar Broersma Wonen
AM105556-1934111-Keizersgracht-71HLV,-Amsterdam-192266721

Het gebouw
Het appartement is gevestigd in een prachtig monumentaal grachtenpand met een fascinerende geschiedenis. Het originele pand dateert uit 1640 en was destijds slechts drie vensters breed. In de loop der eeuwen heeft het pand verschillende transformaties ondergaan. In 1730 werd een ingrijpende verbouwing uitgevoerd, waarbij onder andere de brede gang en het monumentale trappenhuis werden toegevoegd. Rond 1770 werd het naastgelegen koetshuis verworven, waarna in de 19e eeuw beide panden werden samengevoegd tot een breed woonhuis, met behoud van een 18e-eeuwse hal.
De hal van het pand is een ware lust voor het oog, met indrukwekkende wand- en plafondsculpturen van stucwerk, die onder andere de werelddelen en klassieke allegorieën afbeelden. De prachtige houten leuningen van de trap naar de verdiepingen, vervaardigd door vader en zoon Van Logteren in de eerste helft van de 18e eeuw, zijn eveneens meesterwerken op zich.
Het pand heeft nu een gevel van vijf ramen breed, met een imposante voordeur in het midden en een dubbele stoep. Het omvat vier woonverdiepingen, een souterrain en een attiek aan de bovenzijde. Op de voorgevel herinnert een schildje aan een van de beroemde bewoners, Heinrich Schliemann, de ontdekker van Troje. Ook heeft het pand gediend als gemeenschap voor de broeders van Saint Louis, waarvan de voorkamer nog te zien is in het grachtenmuseum.
Momenteel is het pand verdeeld in acht woonunits, inclusief het achterhuis, en is het voorzien van een lift.

AM105556-1934111-Keizersgracht-71HLV,-Amsterdam-192266717
AM105556-1934111-Keizersgracht-71HLV,-Amsterdam-192266799
AM105556-1934111-Keizersgracht-71HLV,-Amsterdam-192266723
AM105556-1934111-Keizersgracht-71HLV,-Amsterdam-192266753

Wonen en koken
Het appartement bestaat uit twee prachtige stijlkamers met indrukwekkende plafondhoogtes van 4,5 meter. De originele houten vloeren, lambrisering, geornamenteerde plafonds en marmeren schouwen zijn allemaal in uitstekende staat en dragen bij aan de tijdloze elegantie van de ruimte. Aan de grachtzijde bevindt zich een fraaie zitkamer met een originele schouw met haard. Deze ruimte is op smaakvolle wijze ingericht met een grote boekenkast die harmonieus samengaat met de originele lambrisering en plafonds. Vanuit deze kamer kunt u genieten van een prachtig uitzicht op de gracht.
Aan de achterzijde van het appartement bevindt zich een open keuken en badkamer, ontworpen volgens een architectonisch concept. De op maat gemaakte keuken is uitgerust met hoogwaardige Miele inbouwapparatuur, waaronder een koel-/vriescombinatie, combimagnetron en vaatwasser. Bovendien beschikt de keuken over een inductiekookplaat van BORA, voorzien van een geïntegreerd afzuigsysteem, wat zorgt voor een naadloze en moderne kookervaring.

AM105556-1934111-Keizersgracht-71HLV,-Amsterdam-192266779
AM105556-1934111-Keizersgracht-71HLV,-Amsterdam-192266809
AM105556-1934111-Keizersgracht-71HLV,-Amsterdam-192266761
AM105556-1934111-Keizersgracht-71HLV,-Amsterdam-189534295
AM18130-1847723-Keizersgracht-71HLV,-Amsterdam-174920947
AM105556-1934111-Keizersgracht-71HLV,-Amsterdam-192266811
AM105556-1934111-Keizersgracht-71HLV,-Amsterdam-192266815

Slapen en baden
De entresol heeft een unieke slaapruimte gecreëerd, waardoor er tevens ruimte is voor een werkplek of bureauhoek. Deze slimme indeling benut de hoogte van de ruimte optimaal en draagt bij aan het woongenot. Dankzij de entresol wordt er een extra dimensie toegevoegd aan de ruimte, wat zorgt voor een bijzondere woonervaring.
De onder architectuur gerealiseerde badkamer is voorzien van een inloopdouche, wastafel en toilet. Deze badkamer is niet alleen functioneel, maar ook stijlvol ontworpen, passend bij het karakter van het appartement.

AM105556-1934111-Keizersgracht-71HLV,-Amsterdam-192266817
AM105556-1934111-Keizersgracht-71HLV,-Amsterdam-192266821
AM105556-1934111-Keizersgracht-71HLV,-Amsterdam-189534335
AM105556-1934111-Keizersgracht-71HLV,-Amsterdam-189534333
AM105556-1934111-Keizersgracht-71HLV,-Amsterdam-189534331
AM105556-1934111-Keizersgracht-71HLV,-Amsterdam-189534353
AM105556-1934111-Keizersgracht-71HLV,-Amsterdam-189534273
AM105556-1934111-Keizersgracht-71HLV,-Amsterdam-189534347
1015 KK Lindengracht 126D-30
1015 CP Keizersgracht 18B-53
1015 MV Noordermarkt 9-10

Buurtgids
De buurt rondom de Keizersgracht 71 is één van de meest pittoreske en charmante delen van Amsterdam. Gelegen in het hart van de stad, biedt deze buurt een unieke mix van historische schoonheid en moderne levendigheid.
De Keizersgracht zelf is één van de beroemdste grachten van Amsterdam, die samen met de Herengracht en de Prinsengracht de iconische grachtengordel vormt, die op de UNESCO-Werelderfgoedlijst staat. De grachten worden geflankeerd door prachtige 17e-eeuwse herenhuizen met hun kenmerkende gevels, smalle gevels en prachtige gevelstenen.
De buurt is doordrenkt van cultuur en geschiedenis. Langs de grachten zijn er talloze galerijen, kunstwinkels en antiekwinkels te vinden. Verder zijn er ook trendy boetieks, designerwinkels en lokale ambachtelijke winkels. Daarnaast staat de buurt bekend om zijn levendige eet- en drinkgelegenheden. Er is een breed scala aan restaurants, cafés en bars, variërend van gezellige bruine cafés tot chique gastronomische ervaringen te vinden.
De buurt rondom de Keizersgract 71 HLV heeft ook een gunstige ligging ten opzichte van andere bezienswaardigheden. Op loopafstand is het Anne Frank Huis, de Jordaan en onder andere de Dam te vinden.

Bereikbaarheid  
De woning is gelegen nabij Brouwersgracht aan het begin van de Keizersgracht en is daarmee gemakkelijk te bereiken met het openbaar vervoer, de fiets en te voet. De ontsluiting via Haarlemmerhouttuinen en Westerdoksdijk / De Ruijterkade (S100) maken de ring met de auto verrassend makkelijk bereikbaar.
Openbaar vervoer met onder andere dichtstbijzijnde tramhalte, ligt op een paar minuten lopen. Het Centraal Station met metro en internationale treinverbindingen is zelf op loopafstand. Verder zijn er verschillende fietspaden en fietsenstallingen in de buurt waar deze veilig geparkeerd kan worden.

Parkeergelegenheid  
Parkeren is mogelijk via een vergunningenstelsel op de openbare weg (vergunningsgebied Centrum-2c). Met een parkeervergunning voor Centrum-2c mag u parkeren in Centrum-2. Een parkeervergunning voor bewoners kost € 315,60 per 6 maanden. Momenteel is er voor dit vergunningsgebied een wachttijd van 21 maanden. Een tweede parkeervergunning is in dit gebied niet mogelijk. Naast de openbare weg is het ook mogelijk om met een parkeervergunning kosteloos te parkeren in garage Oosterdok Eiland. (Bron: Gemeente Amsterdam, maart 2025).

1015 PR Egelantiersstraat 126 II-4
AM105556-1934111-Keizersgracht-71HLV,-Amsterdam-192266725
AM105556-1934111-Keizersgracht-71HLV,-Amsterdam-192266787
Kenmerken
Keizersgracht 71HLV, Amsterdam
Vraagprijs
  • € 1.095.000 k.k.
Beschikbaarheid
  • In overleg
Vertrekken
  • 3 kamers
  • 1 slaapkamer
  • 1 badkamer
Onderhoud
  • Intern: Uitstekend
  • Extern: Uitstekend
Oppervlakten & Inhoud
  • Woonoppervlakte: 118 m²
  • Externe bergruimte: 19 m²
Bouwjaar
  • 1640
Installaties
  • Lift
  • Mechanische ventilatie
  • Natuurlijke ventilatie
  • TV kabel
Ligging
  • Aan vaarwater
  • Aan water
  • In centrum
Parkeren
  • Betaald parkeren
  • Parkeervergunningen
Type verwarming
  • CV Ketel
Type warmwater
  • CV Ketel
Bestemming
  • Woonruimte
Eigendomssoort
  • Volle eigendom
Buitenruimte
  • Geen tuin
Kadastraal
  • Gemeente: Amsterdam
  • Sectie: M
  • Nummer: 6024
Soort
  • Appartement
  • Benedenwoning
Bijzonderheden
  • Beschermd stads of dorpsgezicht
  • Erfgoed
  • Gestoffeerd
  • Monument
  • Monumentaal pand
Overige kenmerken
  • OZB ('25) € 219,84 per jaar
  • Rioolrecht ('25) € 185,20 per jaar
  • Servicekosten VvE € 259,60 per maand
Plattegrond
Keizersgracht 71HLV, Amsterdam
AM105556-1934111-Keizersgracht-71HLV,-Amsterdam-189534373
AM105556-1934111-Keizersgracht-71HLV,-Amsterdam-221605981
AM105556-1934111-Keizersgracht-71HLV,-Amsterdam-189534377
AM105556-1934111-Keizersgracht-71HLV,-Amsterdam-221605985
AM105556-1934111-Keizersgracht-71HLV,-Amsterdam-189534383
Documenten
Keizersgracht 71HLV, Amsterdam
Locatie
Keizersgracht 71HLV, Amsterdam
Eten & drinken
Schermafbeelding 2022-05-18 om 17.31.24
01
Adres
Herenstraat 22,
1015 CB Amsterdam

Linguini

Essentieel in de Italiaanse keuken is simpliciteit: zolang de ingrediënten goed zijn heb je niet veel nodig. “Less is more”. Dat hebben ze bij Linguini in de Herenstraat goed begrepen. Het interieur ademt het Italiaanse dolce vita-gevoel: sfeervolle oude tegels en een mooie lange bank als eyecatcher: Linguini is een knusse en warme trattoria, met oog voor detail. De kaart is klein en bestaat voornamelijk uit pasta. Deze bestel je of in een kleine portie (voor één persoon), of op z’n Italiaans in een grote pan voor de ‘famiglia’. Pasta, pasta, pasta dus. Allemaal bereid met liefde en passie door de Italiaanse ‘pasta maestro’ genaamd Lorenzo Isidoro.

02
Adres
Herenstraat 14,
1015 CA Amsterdam

Max restaurant

Max, geboren in Jakarta, leerde de basis van zijn moeder die kok was. Verwacht geen Indonesische nostalgie, maar een eigen, lichtvoetige interpretatie van de Indische keuken. Het interieur is huiselijk maar niet tuttig.  MAX voelt als een eerbetoon aan de familiegeschiedenis van de chef, maar ook als een restaurant dat volledig in het hier en nu staat.

398866851_2084725278550009_2045391366418278164_n
416522940_603820108545118_3960406295925336014_n
03
Adres
Prinsenstraat 16h,
1015 DC Amsterdam

OSLO

Bij OSLO Amsterdam omarmen ze met toewijding de Scandinavische filosofie. Het gebak wordt met zorg vervaardigd, strevend naar het perfecte balans tussen zoet en verfijning, bevredigend zonder enige overdaad. Het resultaat is een  combinatie van complexiteit, maar toch toegankelijk voor iedereen. Bij OSLO maken ze gebruik van uitsluitend organische en biodynamische ingrediënten in hun bakproces, waarmee ze niet alleen heerlijke gebakjes creëren, maar ook de aarde een beetje beter achterlaten.

04
Adres
Prinsenstraat 20,
1015 DD Amsterdam

Christiaan Smit

Christiaan Smit is een intiem restaurant in de Jordaan, gevestigd aan de Prinsenstraat 20 in Amsterdam. Het biedt een 4- of 5-gangendiner, met de mogelijkheid om à la carte te bestellen. Onder leiding van chef-kok Simon van Lith ligt de focus op seizoensgebonden gerechten met vlees, vis en lokale producten, zoals langoustines en dry-aged vis. Sommelier Abel van Schoonhoven verzorgt bijpassende wijnen. Het interieur, geïnspireerd op Engelse pubs, straalt comfort en gezelligheid uit. Met ruimte voor 30 gasten en een binnentuin biedt het restaurant een warme sfeer. De naam is een eerbetoon aan Christiaan Smit, een historische kargadoor uit Amsterdam, bekend als "Kikkie van de Prinsensluis". Het restaurant combineert hoogwaardige gerechten met een vleugje Amsterdamse geschiedenis, ideaal voor een culinaire avond in een bijzondere setting.

Schermafbeelding 2022-05-18 om 17.11.04
05
Adres
Prinsenstraat 22,
1015 DD Amsterdam

Café De Klepel

In 2013 veranderde eigenaar Maureen Café de Klepel van een klassieke bruine kroeg in een wijncafé waar Franse wijn centraal staat. Chefs Ewout Lindenhovius en Rudolf Brand serveren dagelijks een wisselend menu van 3 of 4 gangen. De wijnkaart is volledig Frans en wordt begeleid door een sterk team van sommeliers dat de kaart tot in detail kent. Er staan meer dan 300 verschillende flessen op de kaart en elke avond schenken ze zo’n 25, steeds wisselende, wijnen per glas.

279508919_1412880715841289_4687270343439268000_n
295771871_1466924723770221_5169999350187462603_n
06
Adres
Prinsenstraat,
1015 DD Amsterdam

Kikkie van de Prinsensluis

Op de hoek van de Prinsenstraat en de Prinsengracht ligt dit café restaurant. Er is een ruim terras met een ruime selectie natuurwijnen. Het is een ideale plek voor een borrel die overloopt in een lange avond met gerechtjes die het niveau van barhapjes ruim ontstijgen. In het weekend kan je terecht voor een lekkere lunch, dat betekent  huis-gerookte Pastrami vanaf 12:00 net zoals de smashburger en meer kleine gerechtjes.

07
Adres
Prinsenstraat 27,
1015 DB Amsterdam

Café de Twee Prinsen

Café de Twee Prinsen is de derde zaak van de mannen achter Binnenvisser en de Corner Store. Hier kan je 's ochtends al voor de koffie binnenploffen, lunchen met een baguette of aan de bar hangen voor wat bites en de uitgebreide selectie natuurwijnen. Oftewel  het café voor ontbijt tot late borrel.

277773530_4858737694175482_5797203563042126028_n
338220331_754378932860278_5647799297097666_n
08
Adres
Westerstraat 3,
1015 LT Amsterdam

Luuk's Coffee

Midden in de Jordaan tegenover Winkel 43 bevindt zich Luuk's coffee. Luuk Nijsen is de oprichter van deze speciale koffiebar. Ze zijn enorm populair vanwege hun uitstekende locatie en nog betere koffie. Bovendien maken ze heerlijke zoete lekkernijen als je trek hebt. Je kan hier zeven dagen per week terecht.

106164903_3058951907522542_6784995522149172868_n
09
Adres
Prinsengracht 44,
1015 DW Amsterdam

Het Bruine Paard

Recht tegenover Café het Bruine Paard bevindt zich een steile brug. Vroeger was daar aan de overkant een brandweerkazerne. Het verhaal gaat dat het paard met brandweerwagen en al tijdens een forse winternacht van de brug af gleed en zo in het café belandde. Vandaar de naam het Bruine Paard.

appeltaart-1
10
Adres
Noordermarkt 43,
1015 NA Amsterdam

Winkel 43

Je kunt hier van ’s ochtends vroeg tot ’s avonds laat, in de zomer en in de winter terecht. Je kunt genieten van de beroemde appeltaart op het heerlijk zonnige terras of een lekker broodje kiezen van de lunchkaart. Ook ’s avonds kun je terecht voor iets te eten of een borrel. De kaart is niet ingewikkeld, maar lekker en niet duur. Het zit in het midden van de Jordaan en is een perfecte plek om lekker mensen te kijken. Omdat Winkel 43 zo beroemd is vanwege zijn appeltaarten trekt het natuurlijk toeristen maar ook lokale bewoners komen hier maar al te graag omdat het zo ongelofelijk lekker is. Niet te missen!

IMG_0917-scaled-e1581387393137
11
Adres
Noordermarkt 34,
1015 NA Amsterdam

Café Hegeraad

Café Hegeraad was tot begin 20e eeuw een klein café met een aansluitend woonhuis. Later zijn de glazen tussendeuren weggehaald. Het is een gezellige bar met typisch Hollandse keuken, koffie en zoete lekkernijen.

Schermafbeelding 2023-01-23 om 15.38.06
12
Adres
Noordermarkt 7,
1015 MV Amsterdam

Domenica

Domenica betekent Zondag in het Italiaans. DE dag om samen te komen en uitgebreid te tafelen, maar dat kan natuurlijk ook de rest van de week! Chef Flavio Carestia (vroeger werkzaam als chef bij Toscanini) kookt hier met super verse ingrediënten Italiaanse klassiekers, maar ook andere gerechten uit de Europese keuken. Ook de wijnkaart is van een buitengewone goede kwaliteit. De ligging van dit restaurant, aan de Noordermarkt (de voormalige locatie van Bordewijk), is natuurlijk onovertroffen.

Belhamel-2019-005-HighRes-1-scaled
13
Adres
Brouwersgracht 60,
1013 GX Amsterdam

De Belhamel

Dit restaurant weet zich zowel qua locatie als qua interieur uniek te onderscheiden. Het restaurant en de bar (een echte speakeasy) hebben allebei een romantische Parijse Art Nouveau sfeer. Frans geïnspireerde klassiekers versterken deze eigen identiteit met tarte tatin van sjalotten, zilveruitjes, blauwe kaas en mosterdkaramel of pain perdu van brioche met yoghurt-sinaasappelijs. In de zomer zit je heerlijk op het terras aan de Brouwersgracht.

Boek-Jordaan-1965
14
Adres
Prinsengracht 2,
1015 DV Amsterdam

Het Papeneiland

Het huidige pand van het café komt uit 1642. Aan het begin van de Prinsengracht bevond zich in de 17de eeuw op nummer 7 een katholieke schuilkerk en deze was via een tunnel verbonden met het pand op de hoek. De ingang van de tunnel bevindt zich nog altijd in de kelder van het café. ’T Papeneiland werd wereldnieuws toen Bill Clinton bij zijn bezoek aan Amsterdam de zelfgebakken appeltaart kwam proeven. Ga langs en beoordeel zelf.

Schermafbeelding 2022-09-27 om 13.29.54
15
Adres
Westerstraat 40H,
1015 MK Amsterdam

Hinata

Hinata is een populair ramen restaurant midden in de Jordaan. De chef-kok is opgeleid als een traditional Soba meester. Ze mengen de traditionele Japanse soba-techniek in ramen om niet alleen een authentieke, maar ook een unieke en onderscheidende smaak te creëren. Hinata specialiseert zich in Shoyu, Miso en vegan ramen en ze maken hun eigen bouillon en noodles. 

 

304780495_484810383653892_8455702289174150848_n
16
Adres
Haarlemmerstraat 91,
1013 EL Amsterdam

De Blauwe Druif

Met zijn glas-in-lood ramen en gehaakte gordijntjes zijn de deuren van Café de Blauwe Druif al open sinds 1733. Het is gevestigd vlakbij het WestIndisch Huis. Schippers die werkten voor de WIC dronken afscheid-en verwelkomt-borrels in de Blauwe Druif.

441602528_1254855125493335_5971456061780795851_n
17
Adres
Lindengracht 31,
1015 KB Amsterdam

Enté

Een combinatie van een bruine kroeg en een restaurant. Dat was het uitgangspunt van Natalie Kouwen en Tim Werners.  Chef Joris van Dijk (o.a. voorheen Rijsel) kookt hier geen gemiddelde daghap maar eerder culinair comfortfood. Binnen of buiten aan de Lindegracht middenin de Jordaan eert je hier bijvoorbeeld en onder andere zelfgedraaide braadworst met piccalilly, knolselderij met salsa verde of een gebraiseerde konijnenpoot.

Boodschappen
273204947_1071299630109303_3216789697958750572_n
275237523_1096139134292019_2600311377251223779_n
18
Adres
Noordermarkt,
1015 NA Amsterdam

Noordermarkt

Op maandagochtend en zaterdag kan je shoppen op de gezellige Noordermarkt. Van oorsprong is de Noordermarkt een potten, pannen en lapjes markt, waar men in de 17e eeuw vooral dagelijkse gebruiksvoorwerpen kocht. Vandaag de dag kan je er van alles kopen zoals antiek, sieraden, schilderijen, glas-en serviesgoed, boeken en prenten en veel vintage kleding. Op zaterdagochtend is er ook een biologische markt waar je verse biologische groenten, fruit, brood, kaas, kruiden, vis, honing en nog veel meer andere producten kunt kopen. De marktlui zijn soms nog ras Amsterdammers met een flink accent en een bord vol flauwe humor. Op geen één markt in Amsterdam vind je zo’n verscheidenheid aan producten, de markt heeft zoveel te bieden dat je er zomaar een hele dag rondstruint.

09d056_f78daf4a5ac841dba751a666ccaaf36a_mv2
19
Adres
Westerstraat 55,
1015 LV Amsterdam

Terre Lente

Bij Terre Lente importeren ze hun producten direct van kleinschalige biologische boeren- en familiebedrijven uit Calabrië, Zuid-Italië, en dat proef je. De producten zijn eerlijk, goed en écht Italiaans. Ze hebben onder andere worst, kaas, olijfolie, gemaakte groenten en uiteraard bijzondere wijnen. Alles is dus biologisch geproduceerd. In hartje Jordaan vind je dit pareltje. Tip: neem ook lekker kopje Napolitaanse koffie of een belegde focaccia.

1015921_365183493604749_1058351331_o
20
Adres
Haarlemmerstraat 93,
1013 EM Amsterdam

Ibericus

Sinds 2012 vertegenwoordigt Ibericus de keuken van Spanje in de Nederlandse winkelstraten. Eenmaal binnen voelt het bij Ibericus alsof je je op het Iberische schiereiland begeeft. Overal hangen hammen met de alom bekende zwarte hoeven, de Pata Negra. Je kan hier naast vleesproducten ook andere Spaanse specialiteiten kopen, van broodjes en chorizo tot een heerlijk glaasje wijn. Als je op zoek bent naar authentiek Spaans eten kan je hier het beste terecht.

21
Adres
Lindengracht,
1015 JP Amsterdam

Lindengrachtmarkt

Als je al een appeltaart bij Winkel 43 op de Noodermarkt gegeten hebt, wandel dan even door naar de Lindenmarkt. Aan het begin vind je gelijk de heerlijke viskraam (de kibbeling of het broodje tonijnsalade zijn aanraders!) Maar niet alleen de vis, ook de notenspeciaalzaak Notjé is briljant, en het broodje Sabich van Abu Salie is er eentje die je absoluut niet mag missen.

PGBIG15-1010×505-1
22
Adres
Haarlemmerstraat 80,
1013 EV Amsterdam

Petit Gâteau

Petit Gâteau is een échte Franse patisserie aan de Haarlemmerstraat in Amsterdam. Alles wordt bereid in de winkel, zichtbaar voor iedereen. Bij het aanschouwen van dit unieke concept loopt het water je in de mond. De eigenaren Meike en Patrice ontmoetten elkaar in Parijs waar Meike na haar banketbakkersopleiding een patisserie opende. Na zes succesvolle jaren in Parijs verhuisden ze naar Amsterdam om hetzelfde te doen. Bij Petit Gâteau heb je taarten in allerlei soorten en maten en kan je die taarten ook nog leren namaken in de workshops die hier worden gegeven.

Interieur
amsterdam_860x
23
Adres
Prinsengracht 12 HS,
1015 DV Amsterdam

Pompon

Al meer dan 30 jaar maken de bloemisten van Pompon op maat gemaakte boeketten. Niet zomaar boeketten maar van de mooiste kunstbloemen. Ze stoppen de “kunst” in kunstbloemen en creëren arrangementen die zo realistisch zijn dat je bijna vergeet dat ze voor altijd meegaan. Naast de prachtige boeketten kun je hier ook terecht voor een divers assortiment aan unieke vazen.

218608734_6463109070381616_757357937076898474_n
247864582_7138406816185168_9218306182338378760_n
24
Adres
Haarlemmerstraat 110,
1013 EW Amsterdam

Sukha

Sukha betekent 'joy of life' in het Sanskriet, en de vreugde zie je terug in het mooi ingerichte lichte pand aan de Haarlemmerstraat in Amsterdam. Het label, Atelier Sukha, maakt enkel gebruik van de puurste, meest natuurlijke materialen zoals wol, linnen, katoen, klei en kasjmier. Deze pure materialen zijn verwerkt in alle prachtige producten die de winkel aanbiedt: een assortiment van vrouwenkleding tot interieur en kunstvoorwerpen. Leuk feitje: een groot deel van de bijzondere items wordt gemaakt in Nepal.

Kunst & cultuur
Gevel+Kahmann+Gallery+2019
25
Adres
Lindengracht 35,
1015 KB Amsterdam

Kahmann Gallery

De Kahmann gallery aan de Lindengracht is de plek voor de fotografieliefhebber. Het tentoonstellingsprogramma van de galerie is een mix van vintage en hedendaagse fotografie en ze vertegenwoordigen het werk van bijna 30 nationaal en internationaal gerenommeerde fotografen. Daarnaast organiseren ze de fotografiebeurs Haute Photographie, dat jaarlijks plaatsvindt in februari in Rotterdam en in september in Amsterdam.

Een voormalig stoffenmagazijn

Een voormalig stoffenmagazijn

‘de Vlinder.’  Een zeventiende eeuws koopmanshuis op de Keizersgracht. Achter de prachtige charmante gevel is naar ontwerp van Studio Groen + Schild uit Deventer een fijne, moderne woning ontstaan die baadt in licht en ruimte

‘de Vlinder.’ Een zeventiende eeuws koopmanshuis op de Keizersgracht. Achter de prachtige charmante gevel is naar ontwerp van Studio Groen + Schild uit Deventer een fijne, moderne woning ontstaan die baadt in licht en ruimte

Kunstagenda augustus 2025

Kunstagenda augustus 2025

Onlangs bekeken
Bekijk het overzicht

Deze site maakt gebruik van cookies.

Voor welke cookies geef je akkoord?