Appartement van circa 93 m², gelegen aan één van de hoofdgrachten in het centrum. Het appartement beschikt over een woonkamer met open keuken en uitzicht op de gracht, twee slaapkamers en een centrale badkamer. Gelegen op eigen grond.

Rondleiding
Het appartement bevindt zich in het zuidelijke deel van de grachtengordel, tussen de Amstel en de Vijzelgracht. Een monumentaal pand met een karakteristieke halsgevel, rijk gedetailleerd met klauwstukken, een doorboord bloemmotief en een arend als bekroning. Toegeschreven aan Anthonie Turck, uitgevoerd met oog voor proportie en ritme. Toegang via een verzorgd, klassiek trappenhuis. Op de tweede verdieping is toegang tot het appartement, verdeeld over de volledige breedte van de gevel aan de grachtzijde. Binnenkomst in een ruime ontvangsthal met garderobekasten en separaat toilet. De vloer is afgewerkt met brede eikenhouten delen, voorzien van geluidsisolatie onder de volledige oppervlakte. De woonkamer ligt aan de voorzijde, met drie hoge vensters en een zichtlijn over het water, de bomen en de overzijde van de Keizersgracht. De breedte van zeven meter geeft ruimte en rust. De gashaard is strak geïntegreerd in een centrale wand. Het plafond is voorzien van wit geschilderde balken die lengte en ritme aan de ruimte geven. De combinatie van materiaal, kleur en licht versterkt het evenwichtige karakter van het interieur. Een kleine opstap leidt naar het keukengedeelte. De opstelling is modern en doordacht, met een zwart werkblad, wit front en alle relevante inbouwapparatuur. Een kookeiland biedt extra werkruimte en visuele scheiding zonder het open karakter te verstoren. Vanuit de keuken blijft het zicht op de gracht behouden. Aan de achterzijde bevinden zich twee slaapkamers, beide gelegen aan de lichthof. De grootste kamer biedt ruimte aan een volwaardig bed, op maat gemaakte kastruimte en eventueel een werkhoek. De tweede kamer is geschikt als logeer-, kinder- of werkkamer. Beide vertrekken ontvangen indirect daglicht en zijn rustig van sfeer. De badkamer ligt centraal tussen de slaapkamers. Voorzien van een dubbel wastafelmeubel, een ruime inloopdouche met glaswand, een tweede toilet en een designradiator. Afgewerkt in neutrale tinten met een rustige detaillering. Aangrenzend een afsluitbare berging met technische installaties en aansluitingen voor wasmachine en droger. Hoewel het appartement geen buitenruimte heeft, compenseert het uitzicht aan de voorzijde ruimschoots. De hoge ramen bieden een open blik op de gracht, het blad aan de bomen en de lucht erboven. 

Onder de naam Het Arendsnest (vernoemd naar de eerste eigenaar van het pand: Arend Bakker) staat deze woning voor rust, overzicht en kwaliteit — op één van de meest gewilde locaties van de grachtengordel.

Wat de bewoners gaan missen 
"Het uitzicht met drie ramen op de gracht maakt dat het appartement ruim aanvoelt. Mensen die op bezoek komen gaan altijd eerst voor de ramen naar buiten staan kijken. Het uitzicht over de brede gracht, zonder woonboten voor de deur, maar met wel af en toe rondvarende bootjes. Je kan ver over de bocht in de gracht kijken, tot voorbij de Wibautstraat."

Buurtgids 
Keizersgracht 704 ligt tussen de Reguliersgracht en Vijzelgracht, in het geliefde 1017 in de Grachtengordel-Zuid. De Utrechtsestraat ligt op enkele minuten lopen, evenals het Amstelveld en het Thorbeckeplein. De Utrechtsestraat is een zeer geliefde straat met speciaalzaken, aansprekende horeca en dagelijkse voorzieningen. De tramhaltes van lijn 2 en 12 bevinden zich op de Leidsestraat; lijn 4 rijdt via de Utrechtsestraat richting Centraal Station en station RAI. Ook metrohalte Vijzelgracht (Noord/Zuidlijn) is snel bereikbaar. Parkeren is mogelijk via het vergunningensysteem. Voor bezoekers zijn er diverse parkeergarages in de directe omgeving, waaronder Prins & Keizer.
Fietsverkeer heeft ruim baan in deze buurt, met directe verbindingen naar de Zuidas, De Pijp en Amsterdam-Oost.

Bijzonderheden
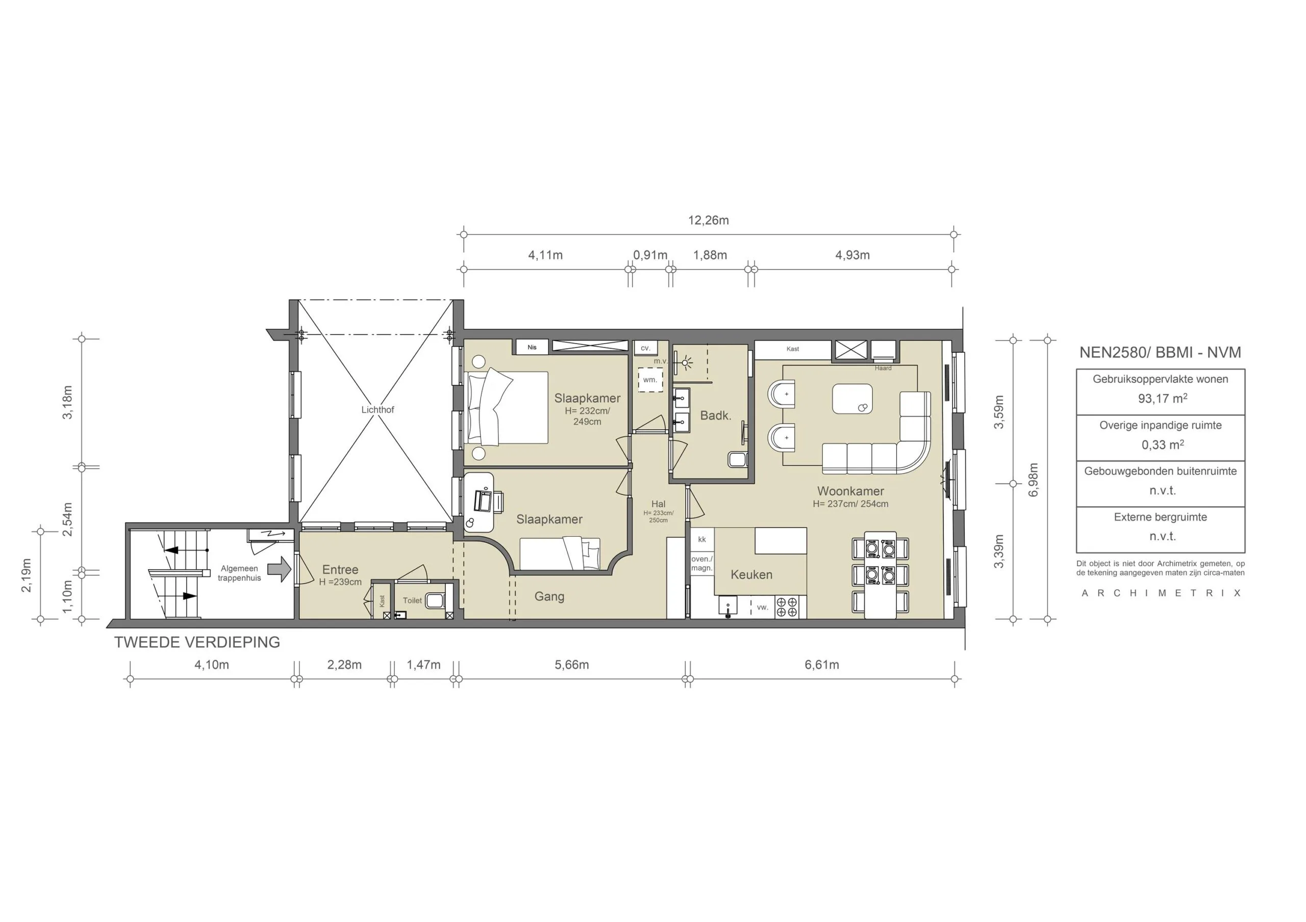
•    Gebruiksoppervlakte wonen circa 93 m²
•    Gelegen op eigen grond
•    Servicekosten VvE € 182,-- per maand
•    Gemeenschappelijke fietsenberging in het souterrain
•    Rijksmonument
•    Rijksbeschermd stadsgezicht
•    Onderdeel UNESCO Werelderfgoed

AM106522-2043319-Keizersgracht-7042V,-Amsterdam-244505206

Het Arendsnest
Soms is een plek precies wat je op dat moment nodig hebt. Voor de huidige eigenaren was dit appartement aan de Keizersgracht jarenlang hun pied-à-terre in de stad — een vaste, vertrouwde basis in het hart van Amsterdam. Een plek waar ze zich direct thuis voelden. Om te landen na een werkdag, vrienden te ontvangen, de stad in te lopen of juist even niets te doen. Nu verleggen ze hun bakens. Het leven aan de kust vraagt om een andere vorm van wonen. Niet omdat deze plek iets tekortschiet — integendeel — maar omdat de balans verschuift. Met pijn in het hart nemen ze afscheid van wat zij liefkozend zijn gaan noemen: Het Arendsnest. Een appartement met rust, gemak, uitzicht en licht — en een locatie die elke keer weer verraste.
Wie hier straks komt wonen, fulltime of af en toe, zal direct begrijpen waarom het zo goed voelde.


Otte van Apeldoorn | Makelaar Broersma Wonen
AM106522-2043319-Keizersgracht-7042V,-Amsterdam-244505436
Designvisie

Keizersgracht 704 is een rijksmonument met een karakteristieke halsgevel uit de 18e eeuw. Het pand maakt deel uit van een gevel-tweeling, met fraaie klauwstukken, een doorboord bloemmotief en een topfronton met arend — een gevelontwerp dat wordt toegeschreven aan Anthonie Turck. Binnen bevinden zich originele elementen als een marmeren gang met stucwerk in Lodewijk XV-stijl, een zaal met betimmeringen, een schouw en beschilderde behangsels van onder meer Jurriaan Andriessen (1768) en Johannes Stortenbeker (1881).
Het appartement op de tweede verdieping is in 2016 volledig gerenoveerd. Daarbij is gekozen voor een strakke indeling en hoogwaardige afwerking, passend bij de architectuur van het gebouw. De woonverdieping is bereikbaar via een verzorgd trappenhuis dat het monumentale karakter van het pand onderstreept.
De woonkamer ligt direct aan de gracht en beslaat de volledige gevelbreedte van zeven meter. Drie grote vensters zorgen voor een open blik op het water en brengen de seizoenen tot in de kamer. Het uitzicht op de bocht van de Keizersgracht is vrij en levendig, zonder inkijk. De gashaard is strak ingebouwd in een ingetogen wand, met daarboven een subtiele kleurtoon die de ruimte warmte geeft.
Het plafond is afgewerkt met houten balken, wit geschilderd, wat zorgt voor ritme en sfeer zonder opdringerig te zijn. Op de vloer ligt breed eikenhout dat karakter en rust brengt. Een kleine opstap markeert de overgang naar het keukenblok, zonder de openheid van de ruimte te verstoren.
De keuken is modern en praktisch ingericht. Het zwarte werkblad contrasteert fraai met de witte fronten en biedt ruim werkoppervlak. Een kookplaat met vijf pitten, ingebouwde oven, koffiemachine, koelkast en vaatwasser is naadloos geïntegreerd. Het eiland voegt extra bergruimte en werkvlak toe, en biedt tegelijk een informele plek voor contact tussen koken en wonen.
De woning is 93 vierkante meter groot en verdeeld over een royale woonkamer met gashaard, een open keuken, twee slaapkamers en een ruime badkamer. Het plafond is hoog, de maatvoering ruim en het uitzicht op de gracht weids. Klassieke details zijn behouden of zorgvuldig teruggebracht. De combinatie van monumentale basis en moderne afwerking maakt dit tot een woning met kwaliteit in elke lijn.

AM106522-2043319-Keizersgracht-7042V,-Amsterdam-244505450
AM106522-2043319-Keizersgracht-7042V,-Amsterdam-244505350
AM106522-2043319-Keizersgracht-7042V,-Amsterdam-244504896
AM106522-2043319-Keizersgracht-7042V,-Amsterdam-244504944
Wonen en koken

De woonkamer ligt direct aan de gracht en beslaat de volledige gevelbreedte van zeven meter. Drie grote vensters zorgen voor een open blik op het water en brengen de seizoenen tot in de kamer. Het uitzicht op de bocht van de Keizersgracht is vrij en levendig, zonder inkijk. De gashaard is strak ingebouwd in een ingetogen wand, met daarboven een subtiele kleurtoon die de ruimte warmte geeft.
Het plafond is afgewerkt met houten balken, wit geschilderd, wat zorgt voor ritme en sfeer zonder opdringerig te zijn. Op de vloer ligt breed eikenhout dat karakter en rust brengt. Een kleine opstap markeert de overgang naar het keukenblok, zonder de openheid van de ruimte te verstoren.
De keuken is modern en praktisch ingericht. Het zwarte werkblad contrasteert fraai met de witte fronten en biedt ruim werkoppervlak. Een kookplaat met vijf pitten, ingebouwde oven, koffiemachine, koelkast en vaatwasser is naadloos geïntegreerd. Het eiland voegt extra bergruimte en werkvlak toe, en biedt tegelijk een informele plek voor contact tussen koken en wonen.

AM106522-2043319-Keizersgracht-7042V,-Amsterdam-244504936
AM106522-2043319-Keizersgracht-7042V,-Amsterdam-244504978
AM106522-2043319-Keizersgracht-7042V,-Amsterdam-244504992
AM106522-2043319-Keizersgracht-7042V,-Amsterdam-244504926
AM106522-2043319-Keizersgracht-7042V,-Amsterdam-244505074
AM106522-2043319-Keizersgracht-7042V,-Amsterdam-244505050
AM106522-2043319-Keizersgracht-7042V,-Amsterdam-244505098
Slapen en baden

De twee slaapkamers liggen aan de achterzijde van het appartement, grenzend aan de lichthof. De grootste kamer is voorzien van twee hoge ramen en biedt ruimte voor zowel een tweepersoonsbed als een werkplek. De tweede slaapkamer is ook van een courante afmeting. Beide kamers zijn strak en rustig afgewerkt, met ruimte voor kasten.
De royale badkamer is uitgevoerd in neutrale tinten en voorzien van een dubbele wastafel, een ruime inloopdouche met glaswand, een tweede toilet en een designradiator. De materialen zijn gekozen op duurzaamheid en onderhoudsgemak. Direct naast de badkamer bevindt zich een aparte berging met de technische installaties en aansluitingen voor wasmachine en droger.
Het appartement beschikt niet over een balkon of terras, maar het uitzicht aan de voorzijde maakt veel goed. Drie grote vensters kijken uit over de Keizersgracht en bieden zicht op de statige gevelrijen, het water en het groen langs de kade. Door de ligging op de tweede verdieping is het uitzicht open, met zowel ochtend- als middaglicht dat naar binnen valt. Bij het openen van de ramen klinkt de stad, maar tegelijk wordt ook de rust ervaren die dit deel van de gracht kenmerkt. In het hele appartement ligt een brede eikenhouten vloer met daaronder geluidsisolatie, wat zorgt voor comfort en rust in alle vertrekken.

AM106522-2043319-Keizersgracht-7042V,-Amsterdam-244505062
AM106522-2043319-Keizersgracht-7042V,-Amsterdam-244505134
AM106522-2043319-Keizersgracht-7042V,-Amsterdam-244505124
AM106522-2043319-Keizersgracht-7042V,-Amsterdam-244505154
AM106522-2043319-Keizersgracht-7042V,-Amsterdam-244505480
AM106522-2043319-Keizersgracht-7042V,-Amsterdam-244505200
AM106522-2043319-Keizersgracht-7042V,-Amsterdam-244505494

Keizersgracht 704 ligt tussen de Reguliersgracht en Vijzelgracht, in het geliefde 1017 in de Grachtengordel-Zuid. De Utrechtsestraat ligt op enkele minuten lopen, evenals het Amstelveld en het Thorbeckeplein. De Utrechtsestraat is een zeer geliefde straat met speciaalzaken, aansprekende horeca en dagelijkse voorzieningen.
De tramhaltes van lijn 2 en 12 bevinden zich op de Leidsestraat; lijn 4 rijdt via de Utrechtsestraat richting Centraal Station en station RAI. Ook metrohalte Vijzelgracht (Noord/Zuidlijn) is snel bereikbaar. Parkeren is mogelijk via het vergunningensysteem. Voor bezoekers zijn er diverse parkeergarages in de directe omgeving, waaronder Prins & Keizer.
Fietsverkeer heeft ruim baan in deze buurt, met directe verbindingen naar de Zuidas, De Pijp en Amsterdam-Oost.

AM106522-2043319-Keizersgracht-7042V,-Amsterdam-244505376
AM106522-2043319-Keizersgracht-7042V,-Amsterdam-244505418
Wat de eigenaren gaan missen

De grandeur van een Amsterdams grachtenpand, vermeld bijv. in het boek Grachtenhuizen van Arjan Bronkhorst, en in de presentatie van de grachtengordel in het Grachtenmuseum aan de Herengracht.
Het uitzicht met drie ramen op de gracht maakt dat het appartement ruim aanvoelt. Mensen die op bezoek komen gaan altijd eerst voor de ramen naar buiten staan kijken. Het uitzicht over de brede gracht, zonder woonboten voor de deur, maar met wel af en toe rondvarende bootjes. Je kan ver over de bocht in de gracht kijken, tot voorbij de Wibautstraat.
Binnen is het ruim en knus. Lekker voor het open raam, de geluiden van de stad, de zon valt over de gracht. ‘s Winters gordijnen dicht en de gashaard aan. De keuken is goed geoutilleerd. Twee slaapkamers, twee wc’s, en grote badkamer. Ons appartement ligt in het rustige deel van de Keizersgracht. Weinig toeristen, geen airB&B, geen tiktok-rijen.
Met een bewonersparkeervergunning mag je je auto in de hypermoderne parkeergarage op de Vijzelgracht parkeren. Eenvoudige route om in korte tijd de stad uit te rijden. Haltes van de tram en Noord-Zuidlijn op een paar minuten lopen. Supermarkten op loopafstand, en alle mogelijke winkeltjes in de Utrechtsestraat op een paar minuten lopen.
Een koffie bij Nel op het Amstelveld, het terras van café Bouwman op de hoek van de Utrechtsestraat en de Prinsengracht. De jeu-de-boule baan op het Amstelveld.
We verhuizen naar een huis aan het Noordzee-strand. Daarom gaan we de reuring van de stad, restaurants en kroegjes op loopafstand, het gemak van wonen in dit deel van de stad, de Burenborrels missen.

AM106522-2043319-Keizersgracht-7042V,-Amsterdam-244505022
AM106522-2043319-Keizersgracht-7042V,-Amsterdam-244505104
Kenmerken
Keizersgracht 7042V, Amsterdam
Vraagprijs
  • € 860.000 k.k.
Beschikbaarheid
  • In overleg
Vertrekken
  • 3 kamers
  • 2 slaapkamers
  • 1 badkamer
Onderhoud
  • Intern: Goed
  • Extern: Goed
Oppervlakten & Inhoud
  • Woonoppervlakte: 93 m²
Bouwjaar
  • 1703
Installaties
  • Natuurlijke ventilatie
  • Rookkanaal
Ligging
  • Aan rustige weg
  • Aan vaarwater
  • Aan water
  • In centrum
  • Vrij uitzicht
Parkeren
  • Betaald parkeren
  • Parkeervergunningen
Type verwarming
  • CV Ketel
  • Gashaard
Type warmwater
  • CV Ketel
Bestemming
  • Woonruimte
Eigendomssoort
  • Volle eigendom
Buitenruimte
  • Geen tuin
Kadastraal
  • Gemeente: Amsterdam
  • Sectie: I
  • Nummer: 9864
Duurzaamheid
  • Gedeeltelijk dubbel glas
Soort
  • Appartement
  • Bovenwoning
Welke woonlaag
  • 2e
Bijzonderheden
  • Beschermd stads of dorpsgezicht
  • Erfgoed
  • Monument
  • Monumentaal pand
Overige kenmerken
  • OZB ('25) € 457,57 per jaar
  • Rioolrecht ('25) € 185,20 per jaar
  • Servicekosten VvE € 182,-- per maand
Plattegrond
Keizersgracht 7042V, Amsterdam
AM106522-2043319-Keizersgracht-7042V,-Amsterdam-245218908
Documenten
Keizersgracht 7042V, Amsterdam
Locatie
Keizersgracht 7042V, Amsterdam
Interieur
278571715_2573073872828455_3449746870166575998_n
280265095_2584294698373039_5653152344189306406_n
01
Adres
Reguliersgracht 70,
1017 LV Amsterdam

Archive store

Op het Frederiksplein, op het randje van de Pijp, vind je sinds 2015 de Archive store - te herkennen aan de prachtig versierde thema etalages. De interieurwinkel is bestemd voor een groot publiek: je kunt hier terecht voor baby- en kinderspulletjes tot volwassen hebbedingetjes en meubels. Het is daarmee een winkel om heerlijk in rond te struinen als je op zoek bent naar dingen voor jezelf en een kleine. Met een gigantisch arsenaal aan merken is de keuze daadwerkelijk reuze, wat voor elke generatie wat wils biedt. Naast het verkopen van bestaande merken houdt de Archive store zich ook bezig met hun huismerk - société.

EnterTheLoft_IV_WEB_LARGE_AicoLind-14_1500x
EnterTheLoft_IV_WEB_LARGE_AicoLind-9_1500x
02
Adres
Vijzelstraat 77,
1017 HG Amsterdam

Enter the loft

Enter the Loft is een boetiek interieurwinkel en een interieur adviesbureau  met een passie; zien hoe ruimtes hun magie op mensen uitoefenen. Ga langs bij hun showroom aan de Vijzelstraat (by appointment only) en voel hoe zij ruimtes tot leven brengen door ze in te richten met hun favoriete interieurvondsten die met liefde en aandacht zijn gemaakt en die bestaan uit natuurlijke materialen – hout, leer, glas, staal, wol en keramiek.

279056119_499852685014635_8123187631375995143_n
278672372_493889782277592_5408348043727345845_n
03
Adres
Utrechtsestraat 62,
1017 VR Amsterdam

Mobilia

Mobilia is een prachtige interieurzaak op de Utrechtsestraat. Rini Scherpenisse is de eigenaar van de zaak en runt deze met passie sinds 2001. Gelukkig is hij niet alleen en wordt hij ondersteund door een team jonge en gepassioneerde interieur designers. De design studio is door het vriendelijke team enorm toegankelijk en laagdrempelig, niemand hoeft een échte design kenner te zijn om hier naar binnen te stappen. De Instagram van de zaak dient als perfecte tool om inspiratie op te doen en daarna is een belletje of e-mail genoeg om een afspraak te maken.

Kunst & cultuur
goed_formaat_website_peter_kooijman_(16)
04
Adres
Keizersgracht 672,
1017 ET Amsterdam

Museum van Loon

In een voormalig woonhuis uit 1672 aan de Amsterdamse grachtengordel ligt Museum van Loon. Naast vaste opstelling met (historische) portretten, meubilair, zilverwerk en porselein, worden hier ook tijdelijke tentoonstellingen georganiseerd waarbij een deel van de collectie van het museum, het huis, of de geschiedenis van de familie Van Loon centraal staan. Achter het huis ligt de unieke tuin die is aangelegd in de stijl van de 17e eeuw. Kortom een museum waar je terecht kan voor erfgoed, kunstgeschiedenis én hedendaagse kunst.

foam_editions_rezwt_w1600_h800_h800_q85-1-2
05
Adres
Keizersgracht 609,
1017 DS Amsterdam

Foam

Foam is een fotografiemuseum die meestal meerdere tentoonstellingen tegelijk presenteert. De exposities wisselen van historische foto’s tot kunstfoto’s en van documentairefotografie tot modefoto’s. Elk jaar wordt er werk vertoond van bekende fotografen; denk aan Helmut Newton en William Klein. Foam stimuleert jong talent en zij hebben dan ook de kans om hun werk tijdelijk tentoon te stellen. De zalen zijn strak en modern vormgegeven en de foto’s zijn met spotjes verlicht, zodat deze goed zichtbaar zijn. Foam kan je elke paar maanden opnieuw bezoeken door hun constant wisselende exposities.

img_9450-2
06
Adres
Utrechtsestraat 44 BG,
1017 VP Amsterdam

Enari Gallery

Enari gallery ligt in het hart van Amsterdam. Het is opgericht door Paul van Gemen en Christina Voulgari medio november 2022. De galerie legt de nadruk op het cureren van opvallende tentoonstellingen met een sterke internationale oriëntatie, waarbij zowel opkomende als gevestigde kunstenaars worden gepresenteerd. Hun missie is om de culturele loopbaan van de kunstenaars die ze vertegenwoordigen verder te bevorderen door middel van vooraanstaande exposities. Hierdoor biedt de galerie een platform voor artistiek talent om in contact te komen met vooraanstaande figuren uit de kunstwereld.

Eten & drinken
the-beauty-the-bee-afternoon-tea-2022-29-
07
Adres
Herengracht 542-556,
1017 CG Amsterdam

Peacock Alley

Tussen de high tea en de cocktails kan je bij Peacock Alley terrecht voor een perfect bereide burger. Sappig en goed gekruid, belegd met Gouda kaas, zuur, tomaat en uienringen. Peacock Alley is gevestigd in het chique Waldorf Astoria hotel in Amsterdam en is iedere dag geopend van 10:00 tot 22:00 uur.

Schermafbeelding 2022-07-01 om 12.04.10
08
Adres
Herengracht 542-556,
1017 CG Amsterdam

Spectrum (**)

Gevestigd op de mooie Herengracht, in het chique Waldorf Astoria hotel opent Spectrum van woensdag tot zaterdag zijn deuren. . Met liefde voor Nederlandse kooktraditie, steekt chef-kok Sidney Schutte de oude kennis in een nieuwe jasje. Laat je verrassen door de rijke internationale keuken, zomaar bij jou om de hoek. De wijnlijst, samengesteld door Cas Kratz (restaurant manager en sommelier) bevat zeer bijzondere wijnen.

tokyo_ramen_iki_ramen_restaurant_amsterdam_wat_is_ramen
09
Adres
Vijzelstraat 135,
1017 HJ Amsterdam

Tokyo Ramen Takeichi

Deze Japanse ramen keten heeft inmiddels al meerdere vestigingen over de hele wereld. In Amsterdam zijn inmiddels al drie vestigingen. Tokyo Ramen Takeichi is bekend om zijn gezonde ramen met kip en groentebouillon. Doordat ze trouw blijven aan de Japanse roots is het een authentieke restaurant. Naast hun specialiteit zijn de side dishes ook heerlijk. De 'karaage' zal je niet teleurstellen.

10
Adres
Utrechtsestraat 30A,
1017 VN Amsterdam

Cue Amsterdam (*)

Restaurant CUE Amsterdam biedt een unieke beleving waar gastronomie (restaurant) en muziek (Listening bar) perfect samensmelten.  De culinaire aanpak van CUE is verfijnd en innovatief en laat subtiele Noord Europese en Japanse invloeden zien. Dit is te danken aan chef-kok George Kataras en sommelier Mohamed Aous, die eerder samenwerkten in het met een Michelinster bekroonde restaurant Vanderveen en in 2025 ook hier een ster hebben ontvangen.

396d30_2adb332fb9f3414f9c3ae1737f378bed_mv2
396d30_f2cd173c7f3747cb9bcb5c5625584a55_mv2
11
Adres
Utrechtsestraat 57,
1017 VJ Amsterdam

Bistro de la Mer (*)

Na de succesvolle openingen van 212 en restaurant de Juwelier, opent het chef duo Richard van Oostenbrugge en Thomas Groot wederom een succesvol restauramt. Bistro de la Mer bevindt zich maar een paar deuren verder op de Utrechtsestraat. Het is een Frans georiënteerde visbistro met klassieke smaken. Het concept en de prijzen zijn te vergelijken met restaurant de Juwelier, maar dan met een a la carte menu. Ook deze zaak van het succesvolle duo heeft sinds April 2023 een Michel ster.

 

206984316_4227322370657525_3184468636768311086_n
12
Adres
Keizersgracht 711HS,
1017 DX Amsterdam

Café Van Leeuwen

Café Van Leeuwen is een op en top Amsterdams café, beroemd om zijn ouderwets gezellige borrels. Veel verschillende mensen komen hier te gast van buurtbewoners tot vaste klanten en toevallige voorbijgangers weten dit café al ruim 20 jaar weten te vinden. Een goede ontbijt- en lunchkaart, lekkere borrelhapjes een simpel maar goed cafe diner, ook lekkere wijnen en uitgebreid bier assortiment.

Scherm­afbeelding 2023-11-15 om 13.24.59
13
Adres
Utrechtsestraat 75,
1017 VJ Amsterdam

Screaming Beans

Screaming Beans is een Amsterdams merk dat lokaal en internationaal bekend staat om zijn hoogwaardige koffie. De locatie heeft een prachtige, open bakstenen bar en een rustige zitruimte. Het is de perfecte plek om te werken of gewoon achterover te leunen, koffie te drinken en te ontspannen.

396d30_5a39bb8f65ae440b9bfc8457b6de9f64_mv2
396d30_bf2aeadae3e04cb3907935c5ab9dc64e_mv2
14
Adres
Utrechtsestraat 51,
1017 VJ Amsterdam

De Juwelier (*)

Restaurant De Juwelier is het nieuwe à la carte restaurant van de chefs van het met twee Michelin-sterren bekroonde Restaurant 212. Richard van Oostenbrugge en Thomas Groot openden samen De Juwelier aan de Utrechtsestraat. Zowel klassiekers uit de Franse en Nederlandse keuken staan op de menukaart. Deze chique bistro heeft, verfrissend genoeg, geen concept, maar draait gewoon om lekker bourgondisch eten en genieten. Kortom: een juweeltje.

15
Adres
Utrechtsestraat 89,
1015 VK Amsterdam

Restaurant Soenda Kelapa

Indonesische familiebedrijf biedt een- en tweepersoons rijsttafels, een à-la-cartemenu en verzorgt ook catering klussen. Ze serveren eten geïnspireerd op de West Javaanse keuken. ‘Soenda’ is namelijk de provincienaam van dat gebied. Gelegen midden in de Utrechsestraat is dit een geweldige plek om goed Indonesisch eten te proeven.

539068_629857897052313_810190241_n
16
Adres
Utrechtsestraat 109-111,
1017 VL Amsterdam

Patisserie Kuyt

Voor de echte zoetekauw is Patisserie Kuyt een zeer bekende. Klaas Kuyt heeft het geheime recept voor allerlei verfijnde taartjes, cakes, chocola, koekjes en eclairs. Met als kers op de taart een beloning van het parool voor beste appeltaart van Amsterdam. Te vinden op de gezellige Utrechtsestraat naast de lokale slager en kaasboer.

265617006_1807622789446508_710233366890861875_n
17
Adres
Noorderstraat 19h,
1017 TR Amsterdam

Sukhothai Thanee

Misschien komt de naam van dit restaurant je bekend voor. Want de eigenaren van dit restaurant bezaten vroeger de succesvolle streetfood stal in Amsterdam, namelijk Sukothai Streetfood Expres. Tegenwoordig zijn ze volop bezig bezig met het runnen van een chique restaurant. Ze koken vanuit de Thaise traditie met eerlijke ingrediënten. Wat je zeker niet mag missen zijn de curry's van van versgemaakte currypasta’s.

10
18
Adres
Reguliersdwarsstraat 131,
1017 BL Amsterdam

Tomo sushi

Tomo sushi ligt middenin het centrum van Amsterdam. Het is een modern ingericht Japans sushi en grill restaurant. Tomo Sushi biedt traditionele (a la carte) gerechten die met de fijnste en verste ingrediënten worden bereid. Je kunt plaatsnemen aan de sushibar, waar je kunt genieten van de chefs die de uitstekende sushi en sashimi bereiden.

 

Schermafbeelding 2022-07-01 om 12.24.29
19
Adres
Korte Reguliersdwarsstraat 5-7-9,
1017 BH Amsterdam

Eetsalon Van Dobben

Eetsalon Van Dobben is een begrip in de wereld van kroketten. Midden in het centrum van de stad kan je altijd terecht voor een broodje kroket en een glaasje melk. Op 28 juni 1945 opende Aat van Dobben zijn eerste broodjeszaak in hartje Amsterdam en sindsdien is de plek een pleisterplaats voor artiesten, voetballers en vele andere Amsterdammers. Als je niet van kroketten houdt, is er gelukkig nog een waslijst met andere oer-Hollandse broodjes en gerechten die je kan bestellen, zowel erwtensoep als een boterham met hagelslag.

downloadgram.org_542337336_17874512580410253_7795320341317476262_n
downloadgram.org_580667533_17882663931410253_9117724728895086368_n
20
Adres
Utrechtsestraat 6hs,
1017 VN Amsterdam

char.d

Bij restaurant char.d staan de chefs Dean Baker en Slava Nazaryan aan het roer. De restaurantnaam verwijst naar de kooktechniek charring: langzaam grillen op houtskool of hout en koken op hoge temperaturen om rijke barbecuesmaken te ontwikkelen. Bij char.d vormen dit soort moderne barbecuetechnieken in combinatie met hoogwaardige ingrediënten de rode draad. Bij char.d kunnen gasten genieten van gerechten die variëren van yellowtail in olijfolie tot maïskip met miso en beurre noissette en een klassieker zoals de New York strip. De twee chefs vullen elkaar perfect aan: Dean is gespecialiseerd in vlees terwijl Slava zich richt op vis. Samen met maître Job Guikema geven de chefs vorm aan een restaurant dat barbecue op een andere manier benadert: verfijnd en internationaal. Het kloppend hart van de zaak is de Sloveense Kopa-houtskoolgrill in de open keuken, door de Britse Baker liefkozend “Bobby” genoemd.

Ku+Kitchen+June18+(web)-3712
Ku+Kitchen+June18+(web)-3563
21
Adres
Utrechtsestraat 114,
1017 VT Amsterdam

Ku Kitchen & Bar

Hier serveren ze de klassieke, maar ook minder klassieke Japanse gerechten. Sinds 2014 is deze plek geopend, en het is niks voor niks dat het Kitchen EN bar heet. Ze hebben naast de Japanse gerechten namelijk ook een uitstekend aanbod aan Japanse bieren, sakes whiskeys en spannende en bijzondere cocktails. Zeker de moeite waard om dit kleine stukje Japan op Amsterdamse bodem uit te proberen!

Schermafbeelding 2022-06-27 om 18.11.15
22
Adres
Falckstraat 3,
1017 VV Amsterdam

Bouchon du centre

Op de hoek van de Reguliersgracht vind je 40m2 knus Frankrijk, inclusief traditionele bistro sfeer en rood wit-geruite tafelkleden. De bistro wordt gerund door Hanneke Schouten en is geopend van woensdag tot en met zaterdag. Het concept is ontstaan vanuit de ‘bouchon Lyonnais’ waarbij met betaalbare ingrediënten een hoogwaardige maaltijd wordt bereid.

Boodschappen
22219951_1927712430886413_4129215567659154981_o
32482879_2047475148910140_3670677208067735552_n
23
Adres
Amstelveld,
1017 VS Amsterdam

Plantenmarkt Amstelveld

Op maandagen het Amstelveld opgaan is een goed idee, je wordt meteen vrolijk van alle kleuren die op je afkomen. 30 kramen vol bloemen en planten waar je je tuin of balkon mee kan opfleuren. Ook hebben ze heel erg veel kruiden en bollen waar je je eigen moestuin mee kan beginnen. Je komt zeker niet met lege handen thuis.

www.madasiro.com
24
Adres
Utrechtsestraat 92,
1017 VS Amsterdam

Slagerij de Leeuw

Een begrip in Amsterdam en omstreken. De kwaliteit is heel hoog in deze slagerij, traiteur en delicatessenwinkel. Hij zit al sinds 1966 in de gezellige Utrechtsestraat. Ze hangen het vlees hier op een traditionele manier waardoor het zachter en smaakvoller wordt. Ze hebben een open keuken waar je kan zien hoe de professionele chefs te werk gaan. Ze hebben ook nog een wijnassortiment.

overholtkamp
25
Adres
Vijzelgracht 15,
1017 HM Amsterdam

Patisserie Holtkamp

Patisserie Holtkamp is een bekend begrip onder de Amsterdammers. Ooit bekend geworden met de altijd verse tompouce, is Holtkamp tegenwoordig dé plek om de lekkerste (citroen)taarten en garnalenkroketten te halen. De recepten werken al jaren heel goed, want rond de feestdagen staat er altijd een rij. Het kleine winkeltje aan de Vijzelgracht is functioneel, maar vooral mooi authentiek. Het personeel is ontzettend vriendelijk en behulpzaam. Zeker een bezoekje waard.

Het Verhaal van Michelin: Van Banden naar Gastronomie

Het Verhaal van Michelin: Van Banden naar Gastronomie

De beste koffiezaken van Amsterdam

De beste koffiezaken van Amsterdam

In een voormalig meisjesweeshuis uit de 18e eeuw werd in samenwerking met studio DAB een prachtig appartement gecrëeerd

In een voormalig meisjesweeshuis uit de 18e eeuw werd in samenwerking met studio DAB een prachtig appartement gecrëeerd

Onlangs bekeken
Bekijk het overzicht

Deze site maakt gebruik van cookies.

Voor welke cookies geef je akkoord?