Hoofdweg 37-2 is een bovenwoning met karakter, allure en een verrassende gelaagdheid. Gelegen in het geliefde stadsdeel De Baarsjes, op de grens met Oud-West, bevindt deze woning zich in een dynamische buurt met uitstekende voorzieningen. De Kinkerstraat, Baarsstraat, Postjesweg en J.P. Heijestraat bieden een rijk aanbod aan winkels, speciaalzaken, traiteurs, restaurants en cafés. Het Hogerhuis onderscheidt zich door ingetogen charme, heldere lijnen en een slimme indeling. Verspreid over meerdere verdiepingen is er ruimte om te leven, te werken en te ontspannen – met als hoogtepunt het royale dakterras van circa 35 m², waar het uitzicht zich opent boven de stad. De woonverdieping is ruimtelijk en elegant, met en suite elementen en een fijne lichtinval. De slaapverdieping erboven ademt rust, met zicht op het groen van de binnentuinen of de monumentale bomen langs de straat. Wat deze woning uniek maakt, is de balans tussen historie en moderniteit, structuur en vrijheid. Geen standaard bovenwoning, maar een thuis met lagen – letterlijk en figuurlijk.

Rondleiding
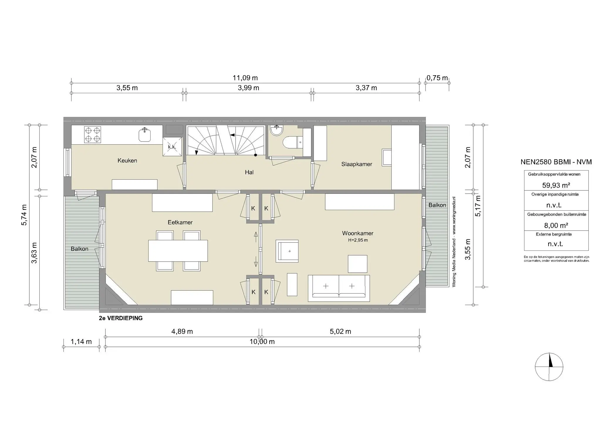
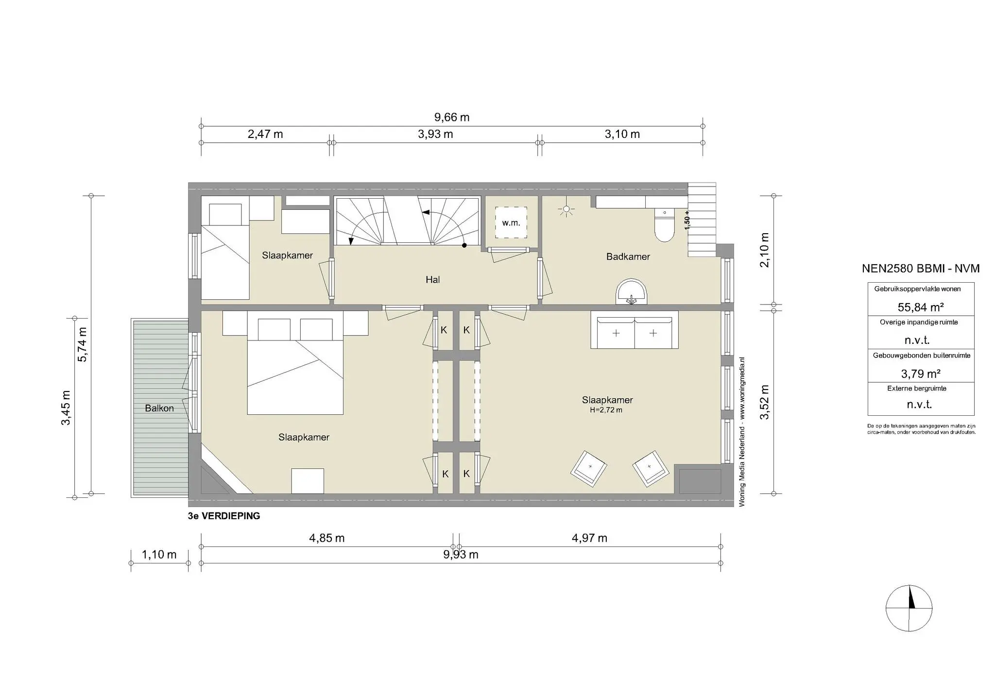
De tweede verdieping vormt het hart van de woning, met een klassieke en suite-indeling, hoge plafonds, glas-in-lood en een visgraatvloer. Aan de voorzijde ligt het zitgedeelte met open haard en ochtendzon, aan de achterzijde de eetkamer – verbonden via schuifdeuren en omlijst door ingebouwde kasten. Aangrenzend bevindt zich de gesloten keuken met een stijlvol ontwerp en toegang tot het balkon. Op deze verdieping is ook een extra (werk/slaap)kamer aanwezig. De bovenste verdieping biedt rust en comfort, met drie slaapkamers en een badkamer. De hoofdslaapkamer aan de achterzijde heeft openslaande deuren naar het balkon en een royale inbouwkast. Aan de voorzijde ligt een tweede, ruime kamer met uitzicht over de stad, momenteel in gebruik als bibliotheek. De derde, compacte kamer is ideaal als kinderkamer of werkkamer. De badkamer is licht, goed ingedeeld en uitgerust met vloerverwarming, inloopdouche en stijlvolle afwerking. De woning beschikt over maar liefst vier buitenruimtes: twee balkons aan de achterzijde, één aan de voorzijde en een royaal dakterras van circa 35 m². Hier geniet je van zon, privacy en een vrij uitzicht over de daken van Amsterdam-West. Een plek die uitnodigt tot ontspannen én buitenleven – midden in de stad.

Buurtgids
Het appartement is gelegen aan de Hoofdweg, in een doorgaande straat. De buurt wordt omsloten door het Rembrandtpark, De Baarsjes, het Vondelpark en de Ring A10, en kan gekarakteriseerd worden als rustig en groen. In de omgeving zijn veel leuke restaurants en gezellige cafés te vinden, zoals onder andere Bar Costa, Barrica, Oslo Beers, Restaurant Daalder en Tweede Thuys. In de Postjesweg en op het Surinameplein zijn diverse delicatessenwinkels te vinden en biedt de buurt een breed scala aan voorzieningen. Naast alle gezellige cafés en restaurants zijn er twee grote parken op enkele wandelminuten afstand. Zo biedt het Rembrandtpark de mogelijkheid om heerlijk buiten te sporten in de openluchtgym, en kan het Vondelpark uitkomst bieden voor een rondje hardlopen of wandelen.

Bijzonderheden
•    Gebruiksoppervlakte wonen circa 122 m²
•    Twee balkons en een dakterras van totaal circa 47 m²
•    Gelegen op erfpachtgrond. Algemene bepalingen voor tijdelijke erfpacht 1838 zijn van toepassing.
•    Het huidige tijdvak is afgekocht t/m 15 januari 2064
•    Energielabel C
•    Servicekosten VvE € 167,- per maand

AM106191-1999024-Hoofdweg-37-2,-Amsterdam-224711386

Het Hogerhuis
Wij begeleiden als kantoor de verkoop van een gevarieerd aanbod. Zelf kom ik erg graag in De Baarsjes en Oud-West, en ben daar dan ook vaak te vinden. Ik hou van de reuring in de buurt en de voorzieningen zijn uitstekend. Op onder andere de Kinkerstraat, Baarsstraat, Postjesweg en J.P. Heijestraat is een diversiteit aan winkels, speciaalzaken en traiteurs te vinden. Daarnaast zijn er diverse goede restaurants en gezellige cafés in de buurt. De Hoofdweg 37-2 – of zoals wij het noemen: Het Hogerhuis – is zo’n plek waar alles samenkomt. Ingetogen charme, heldere lijnen en een doordachte opbouw maken dit huis tot een bijzonder geheel. Verdeeld over meerdere verdiepingen biedt het ruimte om te leven, te werken en te ontspannen, met als bekroning het dakterras. Hier kijk je hoog boven de stad, waar het licht altijd lijkt te blijven hangen. Wat deze woning zo krachtig maakt, is de balans: tussen oud en nieuw, tussen structuur en vrijheid. De en suite-verdieping ademt een vanzelfsprekende elegantie. De slaapverdieping daarboven biedt rust, met uitzicht op de lommerrijke straat of juist op het stille binnenhof. En dan is er nog dat terras, het eigen dek in de lucht, waar je je even buiten Amsterdam waant. Wij laten dit huis graag zien aan wie houdt van detail, ritme en harmonie. Het Hogerhuis is geen standaard bovenwoning, maar een woning met lagen – letterlijk én figuurlijk. Mocht je verdere interesse hebben, dan nodig ik je graag uit om eens langs te komen. Uiteraard vertel ik je dan meer over het appartement. Wellicht tot snel.

Glenn van der Zanden | Makelaar Broersma Wonen


Glenn van der Zanden | Makelaar Broersma Wonen
AM106191-1999024-Hoofdweg-37-2,-Amsterdam-224711362
Architectuur

Aan de brede en statige Hoofdweg, waar de architectuur van de jaren twintig de toon zet, valt deze bovenwoning op door de verzorgde gevelcompositie en klassieke detaillering. De woning beslaat twee volwaardige woonlagen en een kleine opbouw, waarbij de gevel geleidelijk mee omhoog klimt. Het lijnenspel van de houten kozijnen, glas-in-loodbovenlichten en diepe balkons vormt samen met het metselwerk een krachtig ritme dat bij aankomst direct rust en orde uitstraalt. Vanuit de straat gezien is de woning harmonieus ingebed in het blok, maar de opbouw bovenin verraadt een extra dimensie. Deze subtiele dakstructuur voegt een modern accent toe aan de oorspronkelijke bouw, zonder het karakter te verstoren. Integendeel, het biedt juist een uitgesproken moment van vrijheid, met uitzicht over de stad en directe toegang tot het royale dakterras. Hoofdweg 37-2 laat zien hoe de structuur van een woning – haar zichtlijnen, overgangen en hoogten – samenkomt in een evenwichtig geheel. Elke verdieping is helder gedefinieerd, met een eigen rol in het dagelijkse ritme. De woning ademt de stedelijke elegantie van haar tijd, maar sluit moeiteloos aan op de wensen van nu.

AM106191-1999024-Hoofdweg-37-2,-Amsterdam-224711346
AM106191-1999024-Hoofdweg-37-2,-Amsterdam-224711464
AM106191-1999024-Hoofdweg-37-2,-Amsterdam-224711444
AM106191-1999024-Hoofdweg-37-2,-Amsterdam-224711472
Wonen en koken

De woonverdieping, gelegen op de tweede verdieping, vormt het kloppend hart van deze woning, met een klassieke en suite-indeling die zowel royaal als overzichtelijk aanvoelt. Aan de voorzijde vangt het zitgedeelte het ochtendlicht, dat via de grote ramen en glas-in-loodbovenlichten diep de kamer in valt. De haard en het originele lijstwerk voegen zachtheid en diepte toe, terwijl de visgraatvloer het geheel een rustige cadans geeft. Dubbele schuifdeuren verbinden het zitgedeelte met de eetkamer aan de achterzijde – een ruimte die zich uitstekend leent voor lange diners en tafelgesprekken. De ingebouwde kastenwand rondom de doorgang biedt niet alleen bergruimte, maar accentueert ook de overgang tussen beide kamers. De sfeer is intiem, dankzij de warme materialen en het subtiele kleurenspel van behang, hout en marmer. Grenzend aan de eetkamer ligt de gesloten keuken, uitgevoerd in een aansprekend palet van diep turquoise wandtegels en een natuurstenen werkblad. Het lijnenspel van de kastfronten, gecombineerd met de glans van geglazuurd keramiek, zorgt voor een uitgebalanceerde mix van functionaliteit en expressie. Een raam aan de achterzijde brengt licht tot in het hart van de keuken en biedt toegang tot het balkon. Daarnaast is er op deze verdieping nog een werk-/studeer-/slaapkamer te vinden. Via openslaande deuren zijn zowel het balkon aan de voorzijde als het rustige balkon aan de achterzijde te bereiken vanuit de woonkamer en eetkamer.

AM106191-1999024-Hoofdweg-37-2,-Amsterdam-224711374
AM106191-1999024-Hoofdweg-37-2,-Amsterdam-224711492
AM106191-1999024-Hoofdweg-37-2,-Amsterdam-224711504
AM106191-1999024-Hoofdweg-37-2,-Amsterdam-224711534
AM106191-1999024-Hoofdweg-37-2,-Amsterdam-224711526
AM106191-1999024-Hoofdweg-37-2,-Amsterdam-224711562
Slapen en baden

De derde, tevens bovenste, verdieping kan worden gekenmerkt als de slaapverdieping en biedt op vanzelfsprekende wijze rust en ruimte. De hoofdslaapkamer ligt aan de achterzijde en geeft via dubbele deuren toegang tot het balkon met uitzicht op de groene binnentuin. Daarnaast beschikt deze kamer over een royale wandkast, die de breedte van de ruimte accentueert en de kamer tot een ontspannen plek maakt voor zowel de nacht als de dag. De verfijnde kleur van de wanden en de visgraatvloer zorgen voor een ingetogen elegantie. Aan de voorzijde bevindt zich een tweede, ruime slaapkamer, momenteel in gebruik als bibliotheek en zitkamer. De kamer onderscheidt zich door de diepe kleurstelling en de brede raampartij. Hier kijk je vrij uit over de straat en de omliggende daken, terwijl het interieur dankzij de warme kleuren en houten vloer juist geborgen aanvoelt. De derde, kleinere slaapkamer is aan de rustige achterzijde gelegen en ideaal te gebruiken als werk-, kinder- of logeerkamer. De badkamer, gelegen aan de voorzijde, heeft vloerverwarming en een verrassend ruimtelijke indeling, mede dankzij het raam dat licht en lucht binnenlaat. Een grote inloopdouche, wastafel, verwarmde spiegel en toilet zijn gevat in een stijlvol contrast van witte wandtegels en zwarte vloertegels. De glazen kastenwand met matglas versterkt het gevoel van helderheid en orde.

AM106191-1999024-Hoofdweg-37-2,-Amsterdam-224711552
AM106191-1999024-Hoofdweg-37-2,-Amsterdam-224711570
AM106191-1999024-Hoofdweg-37-2,-Amsterdam-224711644
AM106191-1999024-Hoofdweg-37-2,-Amsterdam-224711628
AM106191-1999024-Hoofdweg-37-2,-Amsterdam-224711436
AM106191-1999024-Hoofdweg-37-2,-Amsterdam-224711596
AM106191-1999024-Hoofdweg-37-2,-Amsterdam-224711662
Het dakterras en de balkons

Deze woning beschikt in totaal over vier buitenruimtes, elk met een eigen karakter, lichtinval en moment van de dag. Aan de voorzijde, op de tweede verdieping, ligt een smal balkon met uitzicht op de monumentale bomenrij langs de Hoofdweg. De oostelijke ligging zorgt voor een zachte ochtendzon die de gevel en kamers aan de straatzijde verlicht. De hoge bomen bieden beschutting, terwijl het uitzicht reikt tot aan de overzijde van het brede stadsprofiel. Hier ervaar je het ritme van de stad zonder in te boeten op privacy. Aan de achterzijde bevinden zich twee rustiger gelegen balkons: de ene grenzend aan de eetkamer en keuken, de andere aan de hoofdslaapkamer, een verdieping hoger. Deze beide buitenruimtes kijken uit over de groene binnentuinen van het bouwblok en ontvangen de middag- en avondzon. Het is een ideale plek voor een korte pauze of een borrel bij het ondergaan van de zon. Het hoogtepunt is het dakterras: een royaal dek van ca. 35 m², ontsloten via een lichte dakopbouw met schuifpui en voorzien van elektriciteit. De ruimte ademt vrijheid en biedt rondom uitzicht over de daken van westelijk Amsterdam — een horizon die in alle richtingen openvalt. Het terras is ruim genoeg voor een lange eettafel, loungestoelen, beplanting en heeft tevens wateraansluiting met bewatering-installatie. Door de hoogte is de zon hier vrijwel de hele dag aanwezig, terwijl de houten balustrade en plantenbakken zorgen voor geborgenheid. Een plek om te leven, te ademen en te ontsnappen aan de stad, midden in de stad.

AM106191-1999024-Hoofdweg-37-2,-Amsterdam-224711672
AM106191-1999024-Hoofdweg-37-2,-Amsterdam-224711352
AM106191-1999024-Hoofdweg-37-2,-Amsterdam-224711680
AM106191-1999024-Hoofdweg-37-2,-Amsterdam-224711692

Het appartement is gelegen aan de Hoofdweg, in een doorgaande straat. De buurt wordt omsloten door het Rembrandtpark, De Baarsjes, het Vondelpark en de Ring A10, en kan gekarakteriseerd worden als rustig en groen. In de omgeving zijn veel leuke restaurants en gezellige cafés te vinden, zoals onder andere Bar Costa, Barrica, Oslo Beers, Restaurant Daalder en Tweede Thuys. In de Postjesweg en op het Surinameplein zijn diverse delicatessenwinkels te vinden en biedt de buurt een breed scala aan voorzieningen. Naast alle gezellige cafés en restaurants zijn er twee grote parken op enkele wandelminuten afstand. Zo biedt het Rembrandtpark de mogelijkheid om heerlijk buiten te sporten in de openluchtgym, en kan het Vondelpark uitkomst bieden voor een rondje hardlopen of wandelen.

Bereikbaarheid
Hoofdweg 37-2 bevindt zich op een centrale en goed bereikbare locatie in stadsdeel West, direct aan de groene as tussen het Rembrandtpark en het Vondelpark. De ligging langs de brede Hoofdweg betekent optimale bereikbaarheid, zowel per fiets als met het openbaar vervoer. Op loopafstand bevinden zich meerdere tram- en bushaltes (o.a. tram 7 en 13), waarmee zowel het centrum als station Sloterdijk snel bereikbaar zijn. Station Lelylaan ligt op vijf minuten fietsen en biedt directe treinverbindingen richting Schiphol, Leiden en Den Haag. Voor automobilisten is de ringweg A10 eenvoudig bereikbaar via afrit S106, waardoor zowel de zuid- als noordkant van de stad goed ontsloten zijn. De fiets blijft echter het favoriete vervoermiddel in deze buurt. Binnen tien minuten fiets je naar het centrum, het Westerpark of de Zuidas. Ook voorzieningen zoals supermarkten, speciaalzaken en horeca bevinden zich op loopafstand in de omliggende straten.

Parkeergelegenheid
Parkeren is mogelijk via een vergunningenstelsel op de openbare weg (vergunningsgebied West-1.3). Met een parkeervergunning voor West-1.3 mag u parkeren in West-1. Een parkeervergunning voor bewoners kost € 192,81 per 6 maanden. Momenteel is er voor dit vergunningsgebied een wachttijd van 4 maanden. Een tweede parkeervergunning is in dit gebied niet mogelijk. (Bron: Gemeente Amsterdam, mei 2025).

Vondelpark staand 1
Wat de eigenaar gaat missen

Wat ik ga missen zijn het karakter van dit huis, de stoere afmetingen en de authentieke details. Wat ik heerlijk vind, zijn de balkons, de gezellige dakopbouw en het zonnige dakterras waar een fijne rust heerst – ook al zit je midden in de stad. En dan het prachtige uitzicht op de tuinen.
Alles is op loopafstand:
– Winkels en horeca in de gezellige Kinker- en JP Heijestraat
– De Filmhallen, met nét die andere films
– Twee prachtige parken om te sporten en ontspannen
– Mijn favoriete restaurants: Norma, L’Incontro en O’ Core e Capri
– En niet te vergeten: de vriendelijke buren

AM106191-1999024-Hoofdweg-37-2,-Amsterdam-224711380
AM106191-1999024-Hoofdweg-37-2,-Amsterdam-224711398
Kenmerken
Hoofdweg 37-2, Amsterdam
Vraagprijs
  • € 900.000 k.k.
Beschikbaarheid
  • In overleg
Vertrekken
  • 6 kamers
  • 4 slaapkamers
  • 1 badkamer
Onderhoud
  • Intern: Goed
  • Extern: Goed
Oppervlakten & Inhoud
  • Woonoppervlakte: 122 m²
  • Gebouwgebonden buitenruimte: 47 m²
Bouwjaar
  • 1926
Installaties
  • Natuurlijke ventilatie
  • TV kabel
Ligging
  • In woonwijk
Parkeren
  • Betaald parkeren
  • Parkeervergunningen
Type verwarming
  • CV Ketel
  • Vloerverwarming gedeeltelijk
Type warmwater
  • CV Ketel
Bestemming
  • Woonruimte
Eigendomssoort
  • Eigendom belast met erfpacht
Buitenruimte
  • Geen tuin
  • Balkon
  • Dakterras
Kadastraal
  • Gemeente: Sloten noord-holland
  • Sectie: M
  • Nummer: 1588
Duurzaamheid
  • Dubbel glas
  • Energielabel C
Soort
  • Appartement
  • Bovenwoning
  • Dubbel-bovenhuis
Welke woonlaag
  • 3e
Overige kenmerken
  • OZB ('25): € 424,10 per jaar
  • Rioolrecht ('25): € 185,20 per jaar
  • Servicekosten VvE appartement € 167,- per maand
Plattegrond
Hoofdweg 37-2, Amsterdam
AM106191-1999024-Hoofdweg-37-2,-Amsterdam-227479404
AM106191-1999024-Hoofdweg-37-2,-Amsterdam-227479418
AM106191-1999024-Hoofdweg-37-2,-Amsterdam-227479430
AM106191-1999024-Hoofdweg-37-2,-Amsterdam-227479444
Documenten
Hoofdweg 37-2, Amsterdam
Locatie
Hoofdweg 37-2, Amsterdam
Interieur
358014390_18301446502098195_6874054696510138290_n
01
Adres
Baarsjesweg 276 H,
1058 AD Amsterdam

Cocoon house Amsterdam

Cocoon house Amsterdam is de plek waar je 20e-eeuwse antiek, designstukken en kunst ontdekt. De focus ligt op unieke en goed ontworpen stukken die gebruikt kunnen worden om stijlvolle en individuele interieurs te creëren. De verzamelaar, Sander van Eyck, is interieur- en productontwerper. Hij heeft zijn eigen collectie meubels en verlichting onder de naam: 'Made by Sander'.

studio3000-vintage-objects
02
Adres
Derde Kostverlorenkade 35,
1054 TS Amsterdam

Studio 3000

Studio 3000 is een multifunctionele creatieve ruimte. De studio is opgericht in 2020 door Nurcan Tuzkapan en is gevestigd lang de Derde Kostverlorenkade. In de studio worden design meubels getoond, verkocht en verhuurd. Naast vintage designmeubels vind je hier ook een fotografiestudio. Op haar instagramkanaal houdt Nurcan haar volgers op de hoogte van haar nieuwste vondsten en geplande event. Als je geïnteresseerd bent in creatieve projecten en design, is het zeker aan te raden om het platform van Nurcan in de gaten te houden.

Schermafbeelding-2018-06-26-om-15.18.30-e1530019385389
03
Adres
Amstelveenseweg 39,
1054 MC Amsterdam

Eginstill

Eginstill is een bijzonder collectief, gespecialiseerd in interieurdesign. Het grote team aan leden, van ambachtsmannen tot aan de creatief leider Frans Pahlplatz, voorziet enthousiastelingen van workshops waarin alle interieur wensen waar kunnen worden gemaakt. Deze processen worden zo duurzaam mogelijk gemaakt, door het gebruik van recyclebare materialen zoals staal en hout van een familiebedrijf in Finland. Eginstill wil het liefste alle projecten zo uniek maken als hun klanten en dit doen ze met passie. Ook voor de lekkere bak koffie kan je hier goed terecht en er is genoeg om tijdens het nuttigen naar te kijken!

dis-studio-Boffi-family-home-18.jpg
DB_111013_13402.png
04
Adres
Amstelveenseweg 2,
1075 XH Amsterdam

DIS Studio

DIS Studio is een designbureau, interieurwinkel en showroom in één. DIS Studio is opgezet door Daniela Germone en Dis Abhelakh. Zij werkten beide voor het Italiaanse interieurmerk Boffi en zijn sinds 2004 samen eigenaar van een eigen studio in Amsterdam. Je kunt bij DIS Studio terecht voor interieusdesign voor je hele huis; van keukens tot stoelen tot tafellampen. Hoewel Daniele en Dis graag werken met strakke Italiaanse designs en natuursteen worden kleine imperfecties niet vermeden. Volgens hen zorgen juist die kleine imperfecties voor een warme en huiselijke sfeer. In de showroom van DIS Studio worden uitsluitend producten getoond van Italiaanse merken. Het is ook de enige plek in Nederland die producten van het merk Boffi verkoopt.

104196247_2609875105928789_2143325823481766499_n
05
Adres
Baarsjesweg 208,
1057 HT Amsterdam

The BirdTsang

The BirdTsang is een jonge keramiek studio gevestigd aan de Baarsjesweg die unieke en handgemaakte ontwerpen maakt. The Bird Tsang wordt gerund door kunstenaars Robin de Vogel & Johannes Tsang, die zich focussen op de samenwerking met innovatieve chef-koks om unieke en op maat gemaakte ontwerpen te creëren die een eetervaring complimenteren en verhogen met onderscheidend en duurzaam keramisch servies.

Eten & drinken
downloadgram.org_505199169_17968221128916987_8853914751551748836_n
06
Adres
J.J. Cremerplein 34H,
1054 TL Amsterdam

Taal Coffee

Taal Coffee is een koffiezaak in Amsterdam-West, opgericht door Aleksandra Fedorova, die na jaren ervaring in de koffiewereld haar eigen plek wilde creëren rond ontmoeting en aandacht. De naam verwijst naar de manier waarop smaak en gesprek mensen verbinden, en dat idee vormt het hart van de zaak. Hier draait het om zorgvuldig bereide espresso’s en filterkoffie, met bonen van kleine branders en seizoensgebonden dranken. Naast koffie worden er ambachtelijke zoetigheden geserveerd, in een ruimte waar buurtbewoners graag blijven zitten om te werken of bij te praten.

1500-x-1000-pxl5-1024×683
07
Adres
Overtoom 515,
1054 LN Amsterdam

Adam

Alle gerechten zien er fraai uit, zonder overdreven gedoe. Ook de smaken doen zich gelden: eerlijk, spannend en in balans. Al snel in ons menu komen we een topper tegen: perfect gegaarde griet met een fris-ziltige oestervinaigrette, komkommerlinten, amandelcrème, een bite van gefrituurde vishuid en een saus van nori. Even tongstrelend: een perfect stukje lam van de Big Green Egg, bereid met chorizo en geserveerd met twee heerlijke sauzen.’

344958756_744684200721961_1937864838698341245_n
350812931_924913161950865_6719435353221097677_n
08
Adres
Hoofdweg 141,
1057 CN Amsterdam

Restaurant Felperlaan

Recent heeft Restaurant Felperlaan zijn deuren geopend in de Baarsjes. De eigenaren zijn bekend van Café Mundi. Eigenaresse Lila, en haar partner Benten willen kunstenaars uit de buurt de mogelijkheid bieden om hun kunst te exposeren. Het restaurant is een bruisende buurtstek met de focus op goed eten en een toegankelijke sfeer. Het dagmenu, seizoensgebonden en geprijsd tussen de 39 en 49 euro, wordt om de drie à vier weken vernieuwd. Daarnaast biedt het restaurant een (borrel)hapjeskaart met vaste items zoals oesters, huisgemaakte paté (ook vegetarisch) en diverse vegetarische gerechten. De keuken combineert invloeden uit Zuid-Frankrijk, Noord-Italië en Spanje.

09
Adres
Rhijnvis Feithstraat,
1054 TT Amsterdam

De Figurantenbar

Een buurtkroeg zoals die hoort te zijn; fijne bediening, leuke mensen, lekkere wijntjes en veel gezelligheid. Met de buurtbewoners voetbal kijken, aan een popquiz meedoen of naar livemuziek luisteren. Het aanbod is divers en gezellig.

244941393_392674422556390_5974260137434439690_n
361937251_1006343037055178_1266157854329145058_n
10
Adres
Postjesweg 98,
1057 EG Amsterdam

Mundi

Bij Mundi in Amsterdam-West komt alles samen: goede koffie, wijnen voor in de avond en een gezellige plek om te werken of te kletsen. Gelegen aan de Kinkerstraat, biedt Mundi een diversiteit aan bezoekers, van freelancers met laptops tot mensen die voor een sterke bak koffie komen. De koffie van Five Ways is krachtig en pittig, ook beschikbaar voor thuis. De roze bank met speelhoek maakt het kindvriendelijk, terwijl dagelijks lekkers van Ulmus en een selectie natuurwijnen de ervaring compleet maken. Mundi is elke dag open van 08:00 tot 16/17 uur.

243487692_916456538963690_7976686809274757497_n
11
Adres
Overtoom 445,
1054 KG Amsterdam

Focacceria

De Italiaanse Valeria Lucente vindt de Italiaanse restaurants in Amsterdam verrassend goed, maar ze heeft wel heimwee naar de smaken van thuis. Vooral de focaccia uit haar streek. Dit delicate platbrood, ongeveer twee centimeter dik, is luchtig, vettig en zo zacht als een wolk. In tegenstelling tot focaccia uit andere Italiaanse regio's heeft de genovese-variant geen knapperige, maar een zachte bovenkant. Dit komt door voor het bakken het deeg te bestrijken met olijfolie, water en zout. Vooral in Genua wordt focaccia genoten bij elk eetmoment en dat kan nu dus ook in Amsterdam.

8-Neapolitan-Pizza-Bar
12
Adres
Wilhelminastraat 153HS,
1054 WC Amsterdam

Pizza Project

Het begon met een pizzaoven in hun achtertuin. Elke vrijdag stond er een rij voor hun woning met vrienden en familie die een pizza kwamen halen. Inmiddels hebben Idske en Bas twee vestigingen en een foodtruck. Het geheim? Het deeg 48 uur laten rijzen waardoor de bodem luchtig wordt en de pizza minder zwaar op de maag ligt. In het weekend worden er ook broodjes voor de lunch geserveerd.

26-lvffood-com-5129-57-20230127
13
Adres
Postjesweg 1,
1057 DT Amsterdam

Daalder (*)

Zijn Indonesische roots en Aziatische invloeden kruiden de inventiviteit van chef Huwaë. Hij schuwt allerminst de contrasterende smaken. Het talent van deze chef ligt in de harmonie die hij bereikt met dergelijke associaties. Soms is hij iets klassieker, zoals met een perfect gegaarde langoustine waarbij een botersaus komt die is verrijkt met champagne, appelsien en Grand Marnier. Subtiel, intens, explosief. Helemaal Dennis Huwaë. Daalder heeft 1 Michelin ster.

Schermafbeelding 2022-06-20 om 12.06.45
14
Adres
Wilhelminastraat 109,
1054 WB Amsterdam

Barrica

Bij Barrica kan je terecht voor wijn en eten. Je begeeft je hier in Mediterrane sferen met een Italiaanse en Spaanse wijn- en menukaart én het warme, gezellige interieur. Je kan kiezen voor shared dining met een soort mix tussen tapas en antipasti. Zo kan je van alles wat proeven, van burrata en lasagne tot kabeljauw in tomatensaus. Een sfeervol restaurant met goede wijnen en heerlijk eten.

280279707_690276598712258_782257989926286225_n
15
Adres
Lootsstraat 5,
1053 NT Amsterdam

Eetcafé Meo’s Colosseum

Bij het Surinaams-en Caribische Eetcafé Meo’s Colosseum kan je elke dag vanaf 04.00 uur 's ochtends tot 10.30 uur 's avonds terecht en op zaterdag tot 05.00 uur (en soms nog langer). Ze staan altijd voor je klaar wanneer andere eetgelegenheden gesloten zijn met lekkernijen als nasi, bami, pom, of moksi alesi. Op vrijdag en zaterdag zijn er ook barbecue gerechten en huisgemaakte friet. Krijg je er nog geen genoeg van? Binnenkort zijn ze 24 uur geopend.

306001211_969230534472634_2320247204275062774_n
16
Adres
Warmondstraat 120,
1058 KZ Amsterdam

Caffènation

De bekendste koffiebranderij van Antwerpen heeft nu ook zijn deuren geopend in de Schinkelbuurt van Amsterdam. De kenmerkende Belgische stijl van Caffenation is duidelijk te herkennen in de inrichting van de koffiebar, die uit twee verdiepingen bestaat en ruime zitgelegenheid biedt. Opvallende decorstukken zijn overal te vinden, maar de absolute blikvanger bij binnenkomst is de indrukwekkende espressomachine van Kees van der Westen. De koffie, bereid met de Synesso MVP Hydra-espressomachine is van goede kwaliteit  en de sfeer is ontspannen. Bovendien biedt Caffenation wekelijks twee verschillende soorten verse bonen aan.

downloadgram.org_612064080_18088618793472192_8522096381989837072_n
downloadgram.org_503799539_18064983656472192_5322203112114680114_n
17
Adres
Jacob Van Lennepkade 334D,
1053 NJ Amsterdam

Bon Burger

Bon Burger is de nieuwe zaak van Freek Kattenberg, bekend van Bottleshop in Oost, die met dit concept zijn liefde voor burgers en natuurwijn samenbrengt. Na jaren van succesvolle burgerpop-ups in Bottleshop besloot hij dat het tijd was voor een vaste plek in West, op de geliefde vlonder aan de Jacob van Lennepkade. Kattenberg gelooft dat juist iets simpels als een hamburger goed uitvoeren een vak is, en dat zie je terug in zijn focus op grilltechniek en kwaliteit. Het vlees komt van Nederlandse dubbeldoelkoeien, die eerst als melkkoe hebben geleefd en daardoor duurzamer en smaakvoller zijn. Bon Burger voelt als een ontspannen buurtplek waar kenners en nieuwsgierige voorbijgangers samenkomen voor burgers, wijn en lange avonden aan het water.

1515753586-meneer-de-wit_bar4589
1547131084-meneer-de-witjcb8132
18
Adres
Witte de Withstraat 10,
1057 XV Amsterdam

Meneer de Wit heeft Honger

In 2015 opende Meneer de Wit heeft Honger; een restaurant met een huiselijke sfeer en heerlijk eten. Chef Simo Bouabgha leerde koken van zijn oma in het zuiden van Marokko en houdt van het eten dat de moeders rondom de Middellandse zee met alle liefde, geduld koken. Het menu bestaat uit seizoensgebonden gerechten met deze verfijnde en warme smaken, vaak gebaseerd op groente maar er is ook duurzaam vlees, gevogelte en vis.

downloadgram.org_599174450_17869878831481062_7625921310109593583_n
downloadgram.org_584414906_17867642610481062_6913260930332692383_n
19
Adres
Staringplein 22,
1054 VL Amsterdam

Gorgo Lunchroom

Gorgo is opgezet door Rifat Ergor en Berkutay Gunel, die negen jaar geleden samen Istanboel verlieten en in Amsterdam hun droom van een eigen zaak realiseerden. Ergor is architect, Gunel creative director, en die creatieve blik voel je in alles: van het licht in de ruimte tot de manier waarop de keuken wordt benaderd. Hun lunchroom is geïnspireerd op Anatolië en omschrijven ze zelf als 'neither East nor West', een plek waar Turkse, Arabische, Perzische, Armeense en Griekse invloeden samenkomen. Op de kaart staan eigenzinnige gerechten zoals tosti’s met kavurma, tahini en honing, sesamkoekjes vol verschillende sesamvarianten en drankjes als sumac-limonade en hoşaf-kombucha.

downloadgram.org_587941642_17861923047540463_7528525127815259624_n
downloadgram.org_580577890_17860377204540463_347230483383533533_n
20
Adres
Jan Pieter Heijestraat 94A,
1053 GS Amsterdam

Café Vitalente

Café Vita Lente werd geopend door Simon Witmaar, voormalig eigenaar van het sterrenrestaurant Coulisse, dat hij samen met Tim van der Molen runde. Met Vita Lente koos hij bewust voor iets totaal anders: geen fine dining, maar een café waar spontaniteit en vrijheid centraal staan. In de keuken staat Bas Holthuizen, die meeging vanuit Coulisse en hier kookt in een losser format met warme en koude gerechten die je de hele dag door kunt bestellen. Het concept draait om het Italiaanse idee van 'vita lenta', langzaam leven, waarbij je op elk moment vanaf 11.30 kunt binnenlopen en zo lang blijft als je wilt.

Gitane-NinaSlagmolen-10juli2023-188-1365×2048
329963219_8769040973168667_1375211572719675553_n
21
Adres
Jan Pieter Heijestraat 146,
1054 MK Amsterdam

Gitane

Angelo Kremmydas, zowel chef als eigenaar, kookt enkel met de meest verse en seizoensgebonden ingrediënten. Het menu weerspiegelt zijn visie en biedt een bescheiden en verfijnde selectie eigentijdse à la carte-gerechten. Hier geen ingewikkelde setmenu's; in plaats daarvan heb je de vrijheid om precies te bestellen waar je op dat moment naar verlangt. Angelo's mediterrane achtergrond schittert in elk gerecht. Naast het smaakvolle menu is er een uitgebreide wijnkaart.

350797001_546119614400873_859829144022127459_n
22
Adres
Jan Pieter Heijestraat 76,
1053 GS Amsterdam

Wakuli

Wakuli ontleent aan het Swahili-woord 'wakulima', wat boer betekent. Hier vind je kwaliteitskoffie die op duurzame wijze is verkregen tegen betaalbare prijzen.  Ze halen hun bonen bij kleinschalige boeren die groene productie produceren en roosteren ze op de beste manier mogelijk voor maximale smaak. Je kunt hier alle gebruikelijke koffiesoorten krijgen, evenals heerlijke ijskoffie en nitro cold brew. Last but not least, hebben ze een aantal zoete en hartige lekkernijen beschikbaar, van empanadas tot broodjes en croissants.

000049
23
Adres
Amstelveenseweg 158-160,
1075 XN Amsterdam

Restaurant Blauw

Aan de Amstelveenseweg ligt het Indonesische restaurant Blauw. In tegenstelling wat de naam doet verwachten, is het hele interieur rood. De rijsttafels bij restaurant Blauw zijn bij beide locaties identiek (Amsterdam en Utrecht), maar de rest van het menu is per vestiging uniek. De chefs stellen zelf hun ultieme authentieke Indonesische belevingen samen op basis van hun eigen inspiratie en invloeden.

Boodschappen
Schermafbeelding 2022-06-20 om 12.19.42
24
Adres
Overtoom 444,
1054 JW Amsterdam

Chabrol

Al meer dan dertig jaar is Chabrol een gevestigde wijnwinkel in Amsterdam en omstreken. Chabrol is gegroeid van een kleine wijnwinkel in de buurt naar een importeur van unieke, organische wijnen. De wijnen worden met een passie voor wijn en het verhaal achter de wijn geselecteerd. Dat kan je bijvoorbeeld lezen in de nieuwsbrief waar ze over iedere wijn een verhaal schrijven zodat de echte wijnliefhebber alles te weten komt. Je kan bij Chabrol voor een hele brede variatie aan wijnen terecht, zowel voor een wijntje voor doordeweeks als een wijn voor speciale momenten.

holyactiefoto-s-183.960×0
holyactiefoto-s-164.960×0
25
Adres
Jan Pieter Heijestraat 88,
1053 GS Amsterdam

Holy Ravioli

Holy Ravioli is een pastawinkel in Amsterdam-West. Er zijn maar liefst 15 verschillende soorten ravioli en bij iedere ravioli hoort een passende pesto, boter, chutney, saus of kaas. Alle producten zijn seizoengebonden en vers en dat zorgt voor de allerlekkerste pasta. Daarnaast zijn er ook soepen, lasagnes, salades en toetjes. Je kan lekker buiten zitten in de zomer op de picknickbanken of pasta mee naar huis nemen en zelf klaarmaken als je een keer geen tijd hebt om te komen. De perfecte plek voor pastafanaten.

Uitgelicht; “Casa Calòre”. Sprezzature in Amsterdam Zuid

Uitgelicht; “Casa Calòre”. Sprezzature in Amsterdam Zuid

Test

‘Ruimte is het mooiste meubel’ Ton de Gier (1925 – 1980)

Ontmoet interieur ontwerpster Anita Fraser. Na een carrière als procesadvocaat volgde ze een opleiding interieurontwerp aan de University of Arts London. Samen met ontwerpers en architecten verfijnt ze woon- en werkruimtes.

Ontmoet interieur ontwerpster Anita Fraser. Na een carrière als procesadvocaat volgde ze een opleiding interieurontwerp aan de University of Arts London. Samen met ontwerpers en architecten verfijnt ze woon- en werkruimtes.

Onlangs bekeken
Bekijk het overzicht

Deze site maakt gebruik van cookies.

Voor welke cookies geef je akkoord?