Wonen in het moderne en statige wooncomplex Intermezzo. Het appartement karakteriseert zich door haar moderne en eigentijdse uitstraling en is voorzien van alle gemakken van de 21e eeuw.  Het appartement is circa 47 m² groot en heeft een terras van circa 14m². Door haar efficiënte indeling is optimaal gebruik gemaakt van de vierkante meters van het appartement. Daarnaast creëren de hoge plafonds met een vrije hoogte van drie meter en de hoge ramen een ruimtelijk en aangenaam gevoel. Met een ruim terras op het zuiden is de woning erg licht en voelt het ruim aan.

Rondleiding
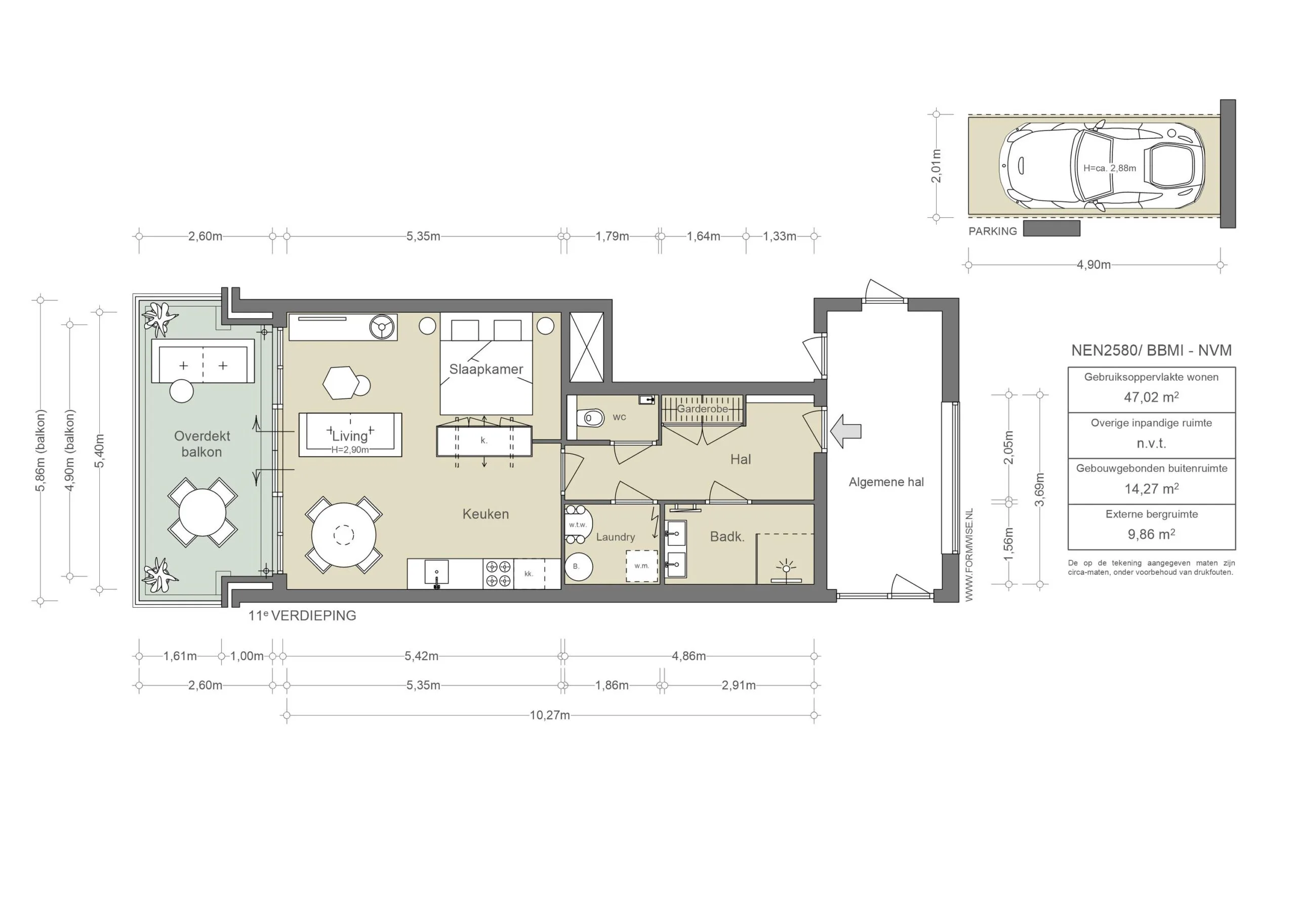
De woning is toegankelijk via een gezamenlijke entree. Op de 7e verdieping bevindt zich een hal met badkamer, een woonvertrek met studio-opstelling inclusief ruime leefkeuken, eethoek en zitgedeelte. Het open slaapvertrek is ruim en voorzien van een ingebouwde kast. Het ruime terras aan de achterzijde biedt een zuidelijke oriëntatie en uitzicht over Buitenveldert.

Buurtgids
In de jaren ‘90 opgezet als kantoorgebied en inmiddels uitgegroeid tot kosmopolitische stadswijk: op de Zuidas heerst een zakelijke dynamiek waarin de functie van wonen steeds meer wordt verweven. Kenmerkend is de imposante, innovatieve architectuur met z’n iconische gebouwen die de stad een vernieuwend, eigentijds gezicht geven. 
Trein- en metrostation Amsterdam Zuid verbindt de Zuidas met de stad, de luchthaven en de rest van het land. In de toekomst zal dit station de functie van het Centraal Station overnemen. Van horecavoorzieningen, zoals Bolenius en Gustavino, tot groene gelegenheden voor sport en ontspanning: het grootstedelijke karakter van de wijk komt overal tot leven. Voor de dagelijkse delicatessen is er elke donderdag de Zuidas Markt.

Bijzonderheden
•    Gebruiksoppervlakte wonen circa 47 m²
•    Balkon gelegen op het zuiden van circa 14 m²
•    Parkeerplaats ter overname € 100.000,- kosten koper
•    Gelegen op erfpachtgrond van Gemeente Amsterdam. Huidig tijdvak Van 23 augustus 2022 t/m 15 november 
        2064, AB 2016, te betalen canon bedraagt € 1.208,64 per jaar
•    De erfpachtcanon voor het appartement is vastgeklikt onder AB 2016
•    De erfpachtcanon voor de parkeerplaats is eeuwigdurend afgekocht, vanaf 15 november 2064
•    Energielabel A
•    Servicekosten VvE € 145,99 per maand appartement
•    Servicekosten VvE € 59,23 per maand parkeerplaats

 

AM104705-1806151-Gustav-Mahlerlaan-547B,-Amsterdam-158838641

De Gustav Mahlerlaan is het hart van het financiële district in Amsterdam, maar het is na de bouw van diverse woontorens ook een ideale plek om te wonen. Met diverse sportfaciliteiten, restaurants en andere winkels is de Zuidas in de afgelopen jaren een volwaardige buurt geworden. Bij binnenkomst in het appartement ervaar je direct de moderne aspecten zoals vloerverwarming en een ruime leefkeuken, maar toch ook de rust die het appartement kan bieden. Door de zuid Ligging is er voorop licht en zon. Absoluut hoogte punt in het ruime terras met vrij zicht.
De bereikbaarheid ten opzicht van het openbaar vervoer en uitvalswegen is uitstekend. Maar ook op de fiets is de woning geografisch goed gelegen in de stad. Kortom, de Zuidas biedt een perfecte combinatie van reuring, rust, en activiteiten.


Daniël de Bont | Makelaar Broersma Wonen
Babette Meijers | Makelaar Broersma Wonen
AM104705-1806151-Gustav-Mahlerlaan-547B,-Amsterdam-158838463

Architectuur
Intermezzo is een opvallend gebouw op de Amsterdamse Zuidas, een prestigieus zakelijk district in Amsterdam. Dit moderne kantoorgebouw staat bekend om zijn architecturale elegantie en uitstekende voorzieningen. Het maakt deel uit van de ambitieuze ontwikkeling van de Zuidas en biedt een aantrekkelijke woonlocatie voor professionals.
Met zijn opvallende witte gevel en eigentijdse ontwerp is Intermezzo een kenmerkend symbool van de Zuidas. Het biedt hoogwaardige kantoorruimte met moderne faciliteiten, zoals vergaderzalen, gemeenschappelijke ruimtes en mogelijkheden voor zakelijke evenementen. Het gebouw is strategisch gelegen, waardoor het gemakkelijk bereikbaar is met het openbaar vervoer en in de directe nabijheid van diverse restaurants, winkels en andere zakelijke voorzieningen.
Intermezzo draagt bij aan de bloeiende zakelijke omgeving van de Zuidas en biedt een inspirerende plek voor bedrijven om te groeien en te gedijen. Het is een representatief voorbeeld van de moderne stedelijke ontwikkeling in Amsterdam en blijft een aantrekkelijke bestemming voor bedrijven die op zoek zijn naar hoogwaardige kantoorruimte in het hart van de stad.

AM104705-1806151-Gustav-Mahlerlaan-547B,-Amsterdam-158838457
AM104705-1806151-Gustav-Mahlerlaan-547B,-Amsterdam-158838753
AM104705-1806151-Gustav-Mahlerlaan-547B,-Amsterdam-158838587
AM104705-1806151-Gustav-Mahlerlaan-547B,-Amsterdam-158838605

Het appartement is gelegen in een complex dat tijdens werkdagen is voorzien van een huismeester. Vanuit de toegangshal is het appartement bereikbaar met de lift.

Wonen en koken
Hett appartement heeft een ruime hal met toegang tot alle vertrekken. De woonkamer is ontworpen met een studio-indeling en biedt een royale leefruimte die harmonieus overgaat in de moderne open keuken. De open keuken is voorzien van hoogwaardige inbouwapparatuur en beschikt over een gezellige eethoek en een comfortabele zithoek. Vanuit de woonkamer is er prachtig weids uitzicht over de stad.

AM104705-1806151-Gustav-Mahlerlaan-547B,-Amsterdam-158838615
AM104705-1806151-Gustav-Mahlerlaan-547B,-Amsterdam-158838633
AM104705-1806151-Gustav-Mahlerlaan-547B,-Amsterdam-158838639
AM104705-1806151-Gustav-Mahlerlaan-547B,-Amsterdam-158838699
AM104705-1806151-Gustav-Mahlerlaan-547B,-Amsterdam-158838797
AM104705-1806151-Gustav-Mahlerlaan-547B,-Amsterdam-158838729
AM104705-1806151-Gustav-Mahlerlaan-547B,-Amsterdam-158838739

Slapen en baden
De slaapkamer is discreet afgeschermd door een ingebouwde kast, die indien gewenst op rails kan worden verschoven om extra ruimte aan beide zijden te creëren. De ruimte is slim ingericht en biedt hiermee voldoende opbergruimte. De badkamer is uitgerust met een inloopdouche, een dubbele wastafel en handdoekradiator. In de hal is verder separaat een wasruimte met aansluiting voor wasmachine en droger,  een toilet en een handige garderobe.

AM104705-1806151-Gustav-Mahlerlaan-547B,-Amsterdam-158838783
AM104705-1806151-Gustav-Mahlerlaan-547B,-Amsterdam-158838791
AM104705-1806151-Gustav-Mahlerlaan-547B,-Amsterdam-158838673
AM104705-1806151-Gustav-Mahlerlaan-547B,-Amsterdam-158838657
AM104705-1806151-Gustav-Mahlerlaan-547B,-Amsterdam-158838663

Balkon
Het overdekte balkon van bijna 15 m² ligt aan de achterzijde van de woning, en is gesitueerd op het zuiden. Vanaf hier is er prachtig uitzicht over Buitenveldert, waardoor je optimaal kunt genieten van de zon en de omgeving. In de garage in de onderbouw is een privé parkeerplek.
Dit appartement biedt het beste van beide werelden: een stijlvolle en praktische leefruimte met alle moderne voorzieningen, samen met een heerlijk zonnig terras.

AM104705-1806151-Gustav-Mahlerlaan-547B,-Amsterdam-158838685
AM104705-1806151-Gustav-Mahlerlaan-547B,-Amsterdam-158838707
1082 Gelderlandplein – staand
AM104705-1806151-Gustav-Mahlerlaan-547B,-Amsterdam-158838529
1082 Zuidas

In de jaren ‘90 opgezet als kantoorgebied en inmiddels uitgegroeid tot kosmopolitische stadswijk: op de Zuidas heerst een zakelijke dynamiek waarin de functie van wonen steeds meer wordt verweven. Kenmerkend is de imposante, innovatieve architectuur met z’n iconische gebouwen die de stad een vernieuwend, eigentijds gezicht geven.
Van horecavoorzieningen, zoals Bolenius en Gustavino, tot groene gelegenheden voor sport en ontspanning: het grootstedelijke karakter van de wijk komt overal tot leven. Voor de dagelijkse delicatessen is er elke donderdag de Zuidas Markt.

Bereikbaarheid
De Amsterdamse Zuidas is een top locatie van wonen, werken en recreëren in een gebied met een optimale infrastructuur, op zeer korte afstand van de A10, Schiphol en het historische centrum van Amsterdam. Station Zuid zal op korte termijn worden vergroot en gemoderniseerd, samen met het aanbrengen van het dokmodel voor de snelweg A10-zuid.
In de directe omgeving zijn is diverse hoogwaardige restaurants (onder andere Bolenius), cafés en winkels (om de hoek is een Albert Heijn). Winkelen kan op het vernieuwde Groot Gelderlandplein en de Beethovenstraat. Het Centrum is zowel met de fiets als met de metro op vijftien minuten afstand.
Via afslag RAI en Olympisch Stadion is deze locatie ook met eigen vervoer bijzonder goed bereikbaar.

Parkeren
Het appartement beschikt over een privé parkeerplek in de ondergelegen garage. Het is niet mogelijk om op dit adres een parkeervergunning aan te vragen.

1082 MS Gustav Mahlerplein 199-28
AM104705-1806151-Gustav-Mahlerlaan-547B,-Amsterdam-158838803
AM104705-1806151-Gustav-Mahlerlaan-547B,-Amsterdam-158838721
Kenmerken
Gustav Mahlerlaan 547B, Amsterdam
Vraagprijs
  • € 520.000 k.k.
Beschikbaarheid
  • In overleg
Vertrekken
  • 1 kamer
  • 1 badkamer
Onderhoud
  • Intern: Goed
  • Extern: Goed
Oppervlakten & Inhoud
  • Woonoppervlakte: 47 m²
  • Gebouwgebonden buitenruimte: 14 m²
  • Externe bergruimte: 10 m²
Bouwjaar
  • 2017
Installaties
  • Lift
  • Mechanische ventilatie
  • Natuurlijke ventilatie
Ligging
  • In woonwijk
Parkeren
  • Betaald parkeren
  • Inpandig
  • Parkeerkelder
Type verwarming
  • Vloerverwarming geheel
  • Warmte terugwininstallatie
  • Warmtepomp
Type warmwater
  • Centrale voorziening
Bestemming
  • Woonruimte
Eigendomssoort
  • Erfpacht
Buitenruimte
  • Geen tuin
  • Balkon
Kadastraal
  • Gemeente: Amsterdam
  • Sectie: Ak
  • Nummer: 4566
Duurzaamheid
  • Volledig geisoleerd
  • Energielabel A
Soort
  • Appartement
  • Bovenwoning
Welke woonlaag
  • 11e
Overige kenmerken

•           OZB ('24) € 327,74 per jaar
•           Rioolrecht ('23) € 160,43 per jaar
•           Servicekosten VvE € 145,99 per maand appartement
•           Servicekosten VvE € 59,23 per maand parkeerplaats
•           Erfpachtcanon € 1.320,46 per jaar appartement*
•           Erfpachtcanon € 41,94 per jaar parkeerplaats*
* In beginsel IB aftrekbaar

 

Plattegrond
Gustav Mahlerlaan 547B, Amsterdam
AM104705-1806151-Gustav-Mahlerlaan-547B,-Amsterdam-161231459
Documenten
Gustav Mahlerlaan 547B, Amsterdam
Locatie
Gustav Mahlerlaan 547B, Amsterdam
Eten & drinken
Interieur_Zuidas_24-12-2018-scaled
01
Adres
Parnassusweg 1021,
1082 LZ Amsterdam

Café Loetje Zuid As

In 1977 werd café Loetje opgericht als biljartcafé door Ludwig 'Loetje' Klinkhamer, maar het duurde niet lang voor men het biljart inruilde voor de ossenhaasbiefstuk die werd geserveerd. Meer dan veertig jaar later is Loetje een gigantische keten en is het oorspronkelijke 'Café' een begrip in Amsterdam. De smakelijke biefstuk wordt geserveerd met huisgemaakte frietjes en zwemt in verse jus - om je vingers bij af te likken!

02
Adres
Parnassusweg 400,
1081 LD Amsterdam

Vascobelo Parnassusweg

Vascobelo ontstond in 1998 in Antwerpen vanuit de familiepassie van Marc De Roeck, die opgroeide met vers gebrande koffie van zijn vader. De kracht ligt in de combinatie van Belgische koffiecultuur, langzaam gebrande blends en een herkenbare, ambachtelijke signatuur waarin kwaliteit en beleving centraal staan.

366937812_17933803049710351_8213912525779000332_n
367438354_17933803034710351_539942877662656212_n
370936688_17935908203710351_8346539429364568324_n
03
Adres
Beethovenstraat 515,
1083 HK Amsterdam

Nela

Bij Nela vieren ze de samensmelting van live vuur koken met hoogwaardige en zorgvuldig geselecteerde ingrediënten. Ze halen en selecteren seizoensgebonden producten van gespecialiseerde partners.  Het open vuur is het perfecte gereedschap voor de chefkoks om warmte en temperatuur te gebruiken om ongelooflijke texturen en smaken te creëren. Nela is bedacht door toonaangevende chefs Hari Shetty en Ori Geller, die twee decennia ervaring hebben op het internationale podium. Na jarenlang te hebben gewerkt voor toprestaurants zoals Nobu (Londen), Yaffo-Tel Aviv, Izakaya, The Duchess en Mr. Porter (Amsterdam), bundelden ze hun krachten met de innovatieve internationale ondernemer Gilad Hayeem (Waverly Group). Samen brachten Hari, Ori en Gilad hun gedeelde visie en creativiteit tot leven door Nela op te richten.

frietsteeg
04
Adres
Stadionkade 73 /A,
1076 BJ Amsterdam

De Frietsteeg

De Frietsteeg is een snackbar aan de gracht in de Stadionbuurt. Ze serveren hier heerlijke krokante frietjes en vele andere snacks. De frieten worden met de hand gesneden en je hebt keus uit meer dan 20 sauzen. Ook bijzonder: de Frietsteeg is gevestigd in een historisch huisje en er is een groot zonnig terras aan het water

84828243_1531217050352887_4539296221554016256_o
05
Adres
Agamemnonstraat 27,
1076 LP Amsterdam

Umeno

Umeno is een van de oudste Japanse restaurants in Amsterdam dat geliefd is bij haar vaste lokale gasten. Zodra je binnenstapt zie je een intieme ruimte met traditionele Japanse authenticiteit gevormd door het handgemaakte houten interieur, de shamisen en shakuhachi muziek en de enorme gastvrijheid van Ayumi en Atsuhito Hosono. De nigiri sushi is een aanrader, want de kwaliteit van de vis is uitstekend.

06
Adres
Olympiaplein 111,
1077 CV Amsterdam

The Coffee District

Eigenaren Adil Loukane en Rosa Loukane begonnen met een hole-in-the-wall coffeeshop in een modewinkel in Zuid. Toen de winkel de deuren sloot, grepen Adil en Rosa hun kans en besloten om hun eigen koffiebar te openen. Inmiddels hebben ze meerdere locaties. De koffie wordt gemaakt met een eigen melange gebrand door Lot Sixty One. Daarnaast worden er zoetigheden aangeboden zoals de inmiddelsal bekende kaneelbroodjes en bananenbrood.

87063095_139858640829594_2768792685031456768_n
07
Adres
Buitenveldertselaan 114,
1081 AB Amsterdam

China Supreme

China Supreme is een must-visit voor liefhebbers van Chinees streetfood en comfort food. Het populairste gerecht op de kaart zijn de jianbingcrêpes, die gevuld worden met onder andere ei, pittige olie en lente-ui, garnalen of eend. Verder biedt de kaart heerlijke wontons, gyozas en de specialiteit biangbiang noedels. De perfecte plek om de authentieke Chinese smaken te ontdekken.

144252327_1117059068733866_113518853239563698_n
08
Adres
Buitenveldertselaan 158A,
1081 AB Amsterdam

Wagyu Yakiniku Kanata

Wagyu Yakiniku Kanata restaurant is een plek waar je kan genieten van rundvlees van de hoogste kwaliteit. Bij Kanata vind je een traditionele ingebouwde Japanse barbecue aan tafel, waar je zelf je Wagyu vlees en groenten grilt. De Wagyu die ze serveren komt uit Japan en is beoordeeld met een A5 (dat is de hoogte score). Daarbij hebben ze ook Wagyu van boerderijen uit Spanje die al tientallen jaren ervaring hebben met het fokken van hoogwaardige Wagyu.

483279358_18324217756166170_7586630462193368446_n
09
Adres
Stadionweg 271,
1076 NZ Amsterdam

Cucina casalinga

Giovanni Carmelitano is de eigenaar van Cucina Casalinga, een Italiaans restaurant gevestigd aan de Stadionweg 271 in Amsterdam-Zuid. Geboren in Rome, met een moeder uit Puglia, brengt Giovanni zijn Zuid-Italiaanse roots tot leven in zijn restaurant. Al meer dan twintig jaar is hij een toegewijde vertolker van de Italiaanse keuken, waarbij hij traditionele smaken combineert met een moderne benadering. De intieme sfeer en het beperkte aantal zitplaatsen zorgen voor een persoonlijke eetervaring die doet denken aan dineren bij een Italiaanse ‘nonna’ thuis.

vascobelo-stadionplein-01
10
Adres
Stadionplein 100,
1076 CK Amsterdam

Vascobelo

Vascobelo, van origine uit Antwerpen, was bedoeld als een café waar mensen zouden komen voor een unieke koffie ervaring. Inmiddels is de keten aan Vascobelo Café-Brasseries bekend van veel meer dan alleen dat. De vestiging in de Rijnstraat is uniek door het knusse interieur en de open keuken, wat de locatie ideaal maakt voor intieme ontmoetingen of zakelijke bijeenkomsten.

Kunst & cultuur
11
Adres
Hildegard Von Bingenstraat 4,
1081 LH Amsterdam

Cinema The Pulse

Cinema The Pulse is een filmtheater in de plint van The Pulse of Amsterdam op de Zuidas, met een breed programma van arthouse, cult en actuele films. De kracht ligt in de combinatie van cinema, architectuur en ontmoeting, als stedelijke filmhub waar filmbeleving en metropolitane context samenkomen.

pati_F1A7803ssdweb
_F1A4074
12
Adres
Parnassusweg 220,
1076 AV Amsterdam

Diez Gallery

Diez is een Amsterdamse kunstgalerie met een internationale uitstraling, opgericht in 2022 door Diego Diez. De tentoonstellingen worden samengesteld in samenwerking met kunstenaars die affiniteit hebben met Diez's interesses en zullen zowel internationaal als nationaal talent presenteren in Amsterdam. Naast het tentoonstellingsprogramma streeft Diez ernaar een toegankelijke ruimte te zijn voor een breed publiek met diverse activiteiten en evenementen zoals poëzielezingen, samengestelde diners en kunstenaarsgesprekken.

13
Adres
De Boelelaan 1111,
1081 HV Amsterdam

VU ART SCIENCE gallery

De VU ART SCIENCE gallery is een universitaire galerie op de VU-campus waar kunst en wetenschap elkaar ontmoeten in tentoonstellingen en dialogen rond actuele thema’s. De kracht ligt in de multidisciplinaire uitwisseling tussen kunstenaars, onderzoekers en publiek, met een duidelijke focus op kennis, onderzoek en maatschappelijke vraagstukken.

14
Adres
De Boelelaan 1111,
1081 HV Amsterdam

Rialto VU

Rialto VU is de tweede locatie van het historische filmtheater Rialto (1921) en gevestigd op de VU-campus aan de Boelelaan. De kracht ligt in de combinatie van arthouse cinema, festivals en culturele programmering binnen een bredere culturele hub waar film, kunst en academie samenkomen.

downloadgram.org_597897714_1508494480841935_8620457783605645660_n
15
Adres
Prinses Irenestraat 36,
1077 WX Amsterdam

De Thomas

De Thomas is een monumentale kerk aan de rand van de Zuidas waar religie en cultuur bewust samenkomen. Met een eigen theater, concerten en debatavonden is het een plek voor ontmoeting en verdieping, midden in het zakelijke hart van Amsterdam Zuid. Het gebouw geldt als een belangrijk voorbeeld van naoorlogse kerkarchitectuur in Nederland en is vormgegeven in een expressieve, brutalistische stijl.

16
Adres
Van der Boechorststraat 8,
1081 BT Amsterdam

De Botanische Tuin Zuidas

De Botanische Tuin Zuidas, ontstaan als universitaire hortus in 1967, is een verrassend groene oase midden op de VU-campus. Met duizenden plantensoorten, gespecialiseerde collecties en kronkelende paden vormt de tuin een rustige, bijna verborgen plek waar wetenschap, natuur en stedelijke dynamiek op een bijzondere manier samenkomen.

Boodschappen
17
Adres
Gelderlandplein 187,
1082 LW Amsterdam

Shilia Supermarkets

Een Japanse en Koreaanse foodmarkt. Gevestigd op het Gelderlandplein. Oorspronkelijk opende ze deze winkel om mensen uit Japan en Korea zich weer een beetje thuis te laten voelen, maar inmiddels weet iedereen deze foodmarkt te vinden. Authentiek, goed eten, als je Aziatisch wilt gaan koken is dit de plek.

Schermafbeelding 2022-05-12 om 19.08.47
18
Adres
Olympiaplein 111,
1077 CV Amsterdam

L'Amuse

Volgens sommigen is dit de beste kaaswinkel van Nederland. Ze hebben een indrukwekkend breed assortiment van de lekkerste kazen. Ook heerlijke wijn, salami, ham en olijfolie is hier te koop. Je wordt uitstekend geholpen en de kaas is echt van een ander niveau. Aanrader!

19
Adres
Olympiaplein 119,
1077 CW Amsterdam

Le Fournil de Sébastien

Le Fournil is het initiatief van Susan en Sébastien, die na jaren bakkerservaring in Frankrijk in 2007 naar Nederland kwamen om een authentieke Franse boulangerie te openen. De kracht ligt in het ambachtelijke handwerk, zuurdesem en de bewuste keuze voor kleinschaligheid en pure, traditionele broodbereiding.

20
Adres
Kastelenstraat 262-264,
1082 EJ Amsterdam

Atariya

Naast importeur en distributie van Japanse producten heeft dit bedrijf ook een winkel in Amsterdam. Hier vind je een geweldig en uitgebreid assortiment aan Japanse etenswaar producten. Het is ook mogelijk om eten af te halen. De winkel heeft een kleine keuken waarin elke ochtend verse maaltijden worden bereid.

Mordechai-Mouwes-kastelenstraat-sept2009
21
Adres
Kastelenstraat 261,
1082 EG Amsterdam

Mouwes

Mouwes Koshere Delicatessen is al meer dan 200 jaar het adres voor alle koshere producten. Of je komt voor je dagelijkse boodschappen of  je zoekt iets speciaals , zij hebben het allemaal. Van brood, kaas en vlees tot Israelische specialiteiten.  Je kan er ook terecht voor broodjes of soms gerechten zoals Sefardische kip met couscous.

22
Adres
Buitenveldertselaan 166,
1081 AC Amsterdam

Slagerij Hergo

Slagerij Hergo is de vleesspecialist in Amsterdam. Al in 1930 begon de heer Cantor, een Duitse worstmaker, samen met zijn vrouw die uit een Amsterdamse slagersfamilie kwam, zijn slagerij met typische Duitse worstspecialiteiten. Met het motto ‘De slager met ’n koksmuts’ is Hergo uitgegroeid naar vier verschillende locaties en is zo tegenwoordig niet meer weg te denken uit het straatbeeld van Amsterdam. Met jachtworst, hausmacher, ossenworst, pekelvlees maar ook met een broodje filet americain onderscheidt Hergo zich als slagerij in het topsegment.

21125326_348074012310751_3902449023829329736_o
21125332_348074092310743_8164135921726057693_o
21200854_348074335644052_3928733172084979767_o
23
Adres
Stadionplein,
1076 CJ Amsterdam

Stadionpleinmarkt

Op het mooie Stadionplein, midden in Oud-Zuid vind je elke zaterdag de Stadionpleinmarkt. Ze gaan om 09:00 open en zijn dus een ideale markt voor mensen die op zaterdag vroeg hun weekboodschappen gedaan willen hebben. Ook hebben ze hier prachtige bloemen te koop en vind je er veel verschillende buurtbewoners. De sfeer is altijd goed en de markt is open tot 17:00.

Interieur
5a1eff_bf84a6dcd25c4e9983e1e74f8140f4da_mv2
24
Adres
Rubensstraat 45,
1077 MJ Amsterdam

Flower fusion

Elke zaterdag van 9:30 tot 17:00 kunt u Ilona Bokma van Flowerfusion vinden op de ZuiderMRKT. Unieke en schitterende bloemen waardoor je het gevoel krijgt middenin een pluktuin te staan. Doordat Ilona iedere week andere bloemen, planten en kleuren uitzoekt die aansluiten bij het seizoen, is het elke zaterdag weer een feestje om langs te gaan bij Flowerfusion.

Buurtgids (rondom) De Plantagebuurt

Buurtgids (rondom) De Plantagebuurt

Uitgelicht; In het hart van Oud-Zuid, tussen het Museumplein en de PC Hooftstraat verschijnt het mondaine ‘Petit Paris’

Uitgelicht; In het hart van Oud-Zuid, tussen het Museumplein en de PC Hooftstraat verschijnt het mondaine ‘Petit Paris’

Uitgelicht; Een voormalige drukkerij in de Pijp

Uitgelicht; Een voormalige drukkerij in de Pijp

Onlangs bekeken
Bekijk het overzicht

Deze site maakt gebruik van cookies.

Voor welke cookies geef je akkoord?