Riant familiehuis van 296 m² - plus overige inpandige ruimte, in totaal 328 m² - aan de fraaie De Lairessestraat in Amsterdam-Zuid, in de Concertgebouwbuurt. Met een klassieke gevel, stijlvol verbouwd en ingericht met oog voor detail. Het huis biedt naast een heerlijk ruime woonlaag, vijf riante slaapkamers, vier badkamers, een zonnige tuin op het zuiden en een royaal dakterras van circa 50 m². De tuin en het dakterras zorgen voor kwalitatieve buitenruimte. Er is een uitbreidingsmogelijkheid tot circa 400 m² totaal.

Rondleiding
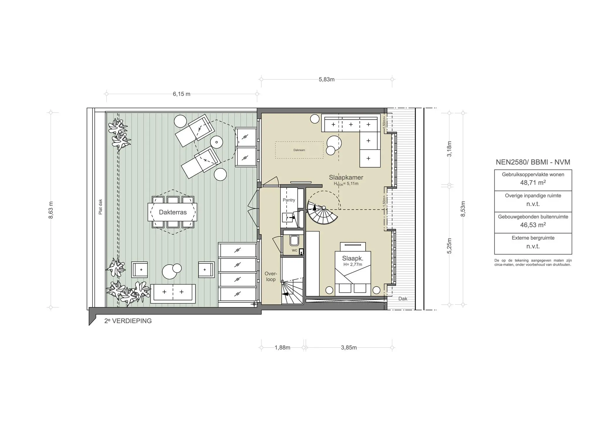
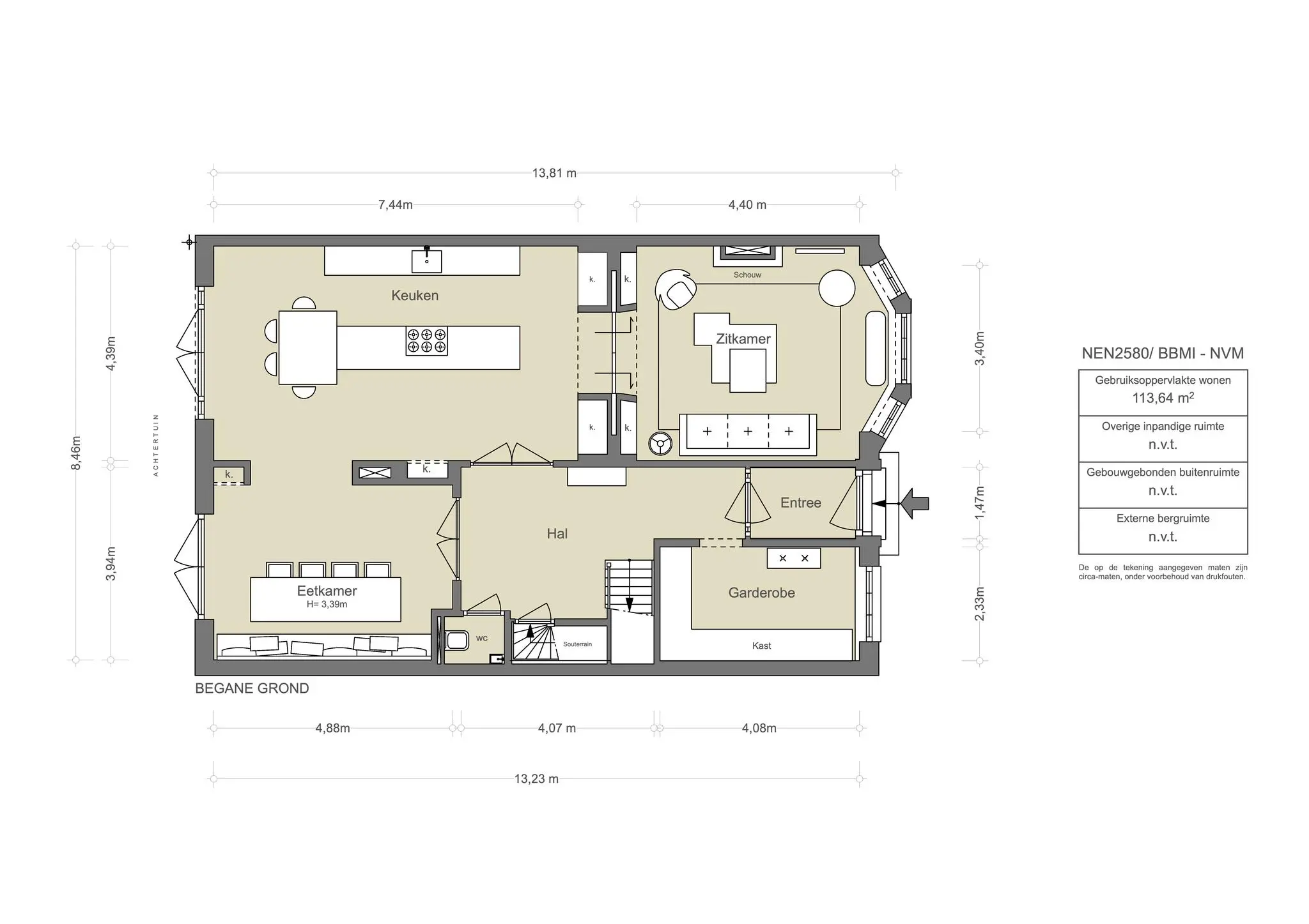
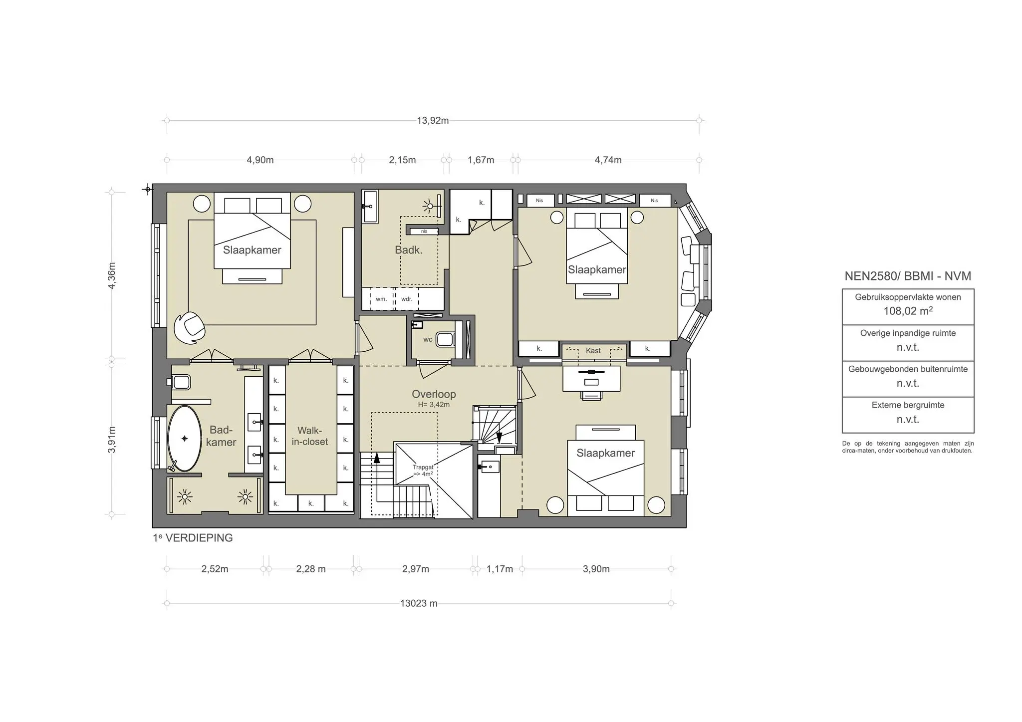
De woning heeft een entree die via een prachtige deur toegang geeft naar de centrale hal. In de hal vallen meteen de hoge plafonds en het licht op. Het is een hal met een indrukwekkend trappenhuis. Via stalen deuren loop je door naar de royale woonkeuken aan de tuinzijde — het hart van het huis, met zicht op het groen. De zitkamer aan de voorzijde heeft een klassieke erker en een open haard, perfect voor de avond, de hoge plafonds met ornament vallen op. Op de eerste verdieping ligt de master suite met dressing en luxe badkamer. Twee ruime slaapkamers aan de straatzijde delen een tweede badkamer. De tweede verdieping verrast met een vijf meter hoge loft, een multifunctionele ruimte, logeerkamer, kitchenette en derde badkamer — ideaal voor gasten of thuiswerken. De trap naar het souterrain komt uit in een ruime hal met inbouwkasten, en geeft toegang tot een multifuntionele kamer met daglicht en vaste kastenruimte, perfect als werkkamer, atelier of logeerkamer. Aan de andere kant van de hal is de technische ruimte, een badkamer met inloopdouche met toilet. Daarachter is nog een ruimte ideaal als wasruimte, hobbyruimte, opslag of wijnkelder. Het souterrain is ook erg geschikt als aparte ruimte voor een au-pair. Buiten is een zonnige, besloten achtertuin op het zuiden. En boven, als bekroning een royaal dakterras met rust, ruimte en uitzicht, eveneens gelegen op het zuiden.

Buurtgids
De buurt rond de De Lairessestraat is een van de meest geliefde delen van Amsterdam. De straat staat bekend om haar chique karakter en vormt een aantrekkelijke plek voor zowel bewoners als bezoekers. Gelegen in Oud-Zuid – een van de meest gewilde wijken van de stad – combineert deze omgeving historische charme met stijlvolle architectuur. De straat wordt omringd door statige herenhuizen, exclusieve boetieks, goede restaurants en sfeervolle cafés. Het aanbod is net zo gevarieerd als de bouwstijlen, en sluit goed aan bij de internationale uitstraling van de buurt. Voor high-end shopping ligt de P.C. Hooftstraat vlakbij, met modehuizen als Burberry, BA&SH en Isabel Marant Étoile. Wat deze buurt extra aantrekkelijk maakt, is de centrale ligging: het Centrum, De Pijp en het Vondelpark zijn allemaal op loopafstand. Bewoners profiteren van een breed winkelaanbod — van delicatessenzaken tot designwinkels — en een groot aantal eet- en drinkgelegenheden. Het nabijgelegen Vondelpark biedt ruimte voor ontspanning, sport en recreatie: een groene oase midden in de stad.

Bijzonderheden
•    De woning is in 2015 geheel verbouwd en in 2022 gerenoveerd naar ontwerp van interieurarchitect Marina van Goor van MVGCA
•    Gebruiksoppervlakte wonen circa 296 m², circa 32 m² souterrain (totaal 328 m²) en een achtertuin van circa 87 m²
•    Mogelijkheid voor uitbreinding van ca. 110 m². Hier is al een onherroepelijke omgevingsvergunning voor verleend
•    Na deze verbouwing zou het huis bijna 400 m² groot kunnen worden
•    Hoge plafonds
•    Ideaal familiehuis
•    Multifunctioneel
•    Mogelijkheid voor kantooradres aan huis
•    Beschermd stadsgezicht
•    Gelegen op erfpachtgrond, algemene bepalingen voor voortdurende erfpacht 1915, huidig tijdvak 01-05-1991 tot 30-06-2041. Vaste canon € 1.497,47 per jaar (In beginsel IB aftrekbaar)

AM106260-2011834-De-Lairessestraat-77,-Amsterdam-229613174

Het Van der Schaarhuys
Sommige woningen vallen op door hun uitstraling, andere door hun ligging — en af en toe komt alles samen. De De Lairessestraat 77 is volgens mij zo’n huis. Een familiehuis met karakter, grandeur en verfijning. Waar het klassieke exterieur uit 1917 naadloos overgaat in een interieur dat met visie en gevoel voor stijl is geherinterpreteerd. Wat mij direct trof bij binnenkomst, is de vanzelfsprekende balans tussen ruimte en intimiteit, maar vooral de centrale hal met de trap. De woonkeuken is open en uitnodigend, terwijl de zitkamer met erker juist geborgenheid biedt. Elke verdieping is doordacht ingedeeld, met een hoofdslaapkamer die aanvoelt als een privéverblijf en een bovenverdieping die zich soepel aanpast aan leven, werken of logeren. Zelfs het souterrain is volwaardig benut — met licht, comfort en eigen badkamer. De tuin en het dakterras maken dit huis helemaal af. Zon, privacy en vrijheid, midden in Zuid – dit maakt volgens mij waarom men in dit huis wil wonen. En dan is er nog de mogelijkheid om verder uit te breiden, tot een woonoppervlak van circa 400 m². Dat maakt dit huis niet alleen bijzonder om in te wonen, maar ook toekomstbestendig. Met overtuiging begeleid ik dit huis in de verkoop. Het is een plek om lang te blijven.

Kees Kemp | Makelaar Broersma Wonen


Kees Kemp | Makelaar Broersma Wonen
Judith de Jong | Makelaar Broersma Wonen

De Lairessestraat 77-2
Architectuur

Aan de brede, stijlvolle De Lairessestraat in Amsterdam-Zuid bevindt zich dit royaal opgezette familiehuis met een klassieke gevel, rijk aan details. De De Lairessestraat in Amsterdam-Zuid is in 1912 vernoemd naar de 17e-eeuwse schilder Gerard de Lairesse (1641-1711), die zich in 1667 vanuit Luik in Amsterdam vestigde. Het bouwblok waar het huis deel vanuit maakt dateert uit circa 1917 en behoort tot het beschermde stadsgezicht en beschikt over een omgevingsvergunning voor uitbreiding, waarmee het woonoppervlak kan worden vergroot tot circa 400 m². De woning is volledig verbouwd in 2015 en in 2022 gerenoveerd naar ontwerp van interieurarchitect Marina van Goor van MVGCA. Een combinatie van oorspronkelijke grandeur, hedendaagse luxe en verfijnde afwerkingen komt hier harmonieus samen. Gebouwd in 1917 met een voor die tijd moderne bouwwijze waarbij beton werd toegepast voor de kelder en de fundering. Deze panden waren daarmee meer solide gefundeerd dan de huizen met een traditionele paalfundering. Bouwheer, makelaar en tevens architect H. van der Schaar was destijds opdrachtgever en ontwerper. Hij ontwierp een fraai ensemble van stijlvolle ‘herenhuizen’, waar dit huis deel van uitmaakte. Opvallend is dat de panden ogenschijnlijk gelijk zijn, doch in breedte verschillen. No. 77 is één van de bredere panden. Van de gevel zijn de entree deur en de erkers opvallende ontwerpdetails die de uitstraling bepalen. Deze sfeer en dit karakter is intern doorgetrokken en nog steeds herkenbaar.

AM106260-2011834-De-Lairessestraat-77,-Amsterdam-231721668
AM106260-2011834-De-Lairessestraat-77,-Amsterdam-229613194
AM106260-2011834-De-Lairessestraat-77,-Amsterdam-229613130
AM106260-2011834-De-Lairessestraat-77,-Amsterdam-229613122
Wonen en koken

De woonkeuken vormt het centrale middelpunt van de begane grond. Hoge plafonds met sierlijsten, brede eikenhouten visgraatvloeren en een transparante indeling zorgen voor licht en verbinding. De keuken is een Dada-keuken, een ontwerp van Vincent van Duysen, en verbouwd in 2022. De keuken is volledig voorzien van hoogwaardige Gaggenau-apparatuur, zoals een kookplaat met flexinductie en geïntegreerde afzuiging, een Vario-koelkast en koel-vriescombinatie, een bakoven, een magnetronoven, een afwasautomaat en een Quooker – allen geïntegreerd in het ontwerp. De stijl van de keuken kenmerkt zich door donker walnotenhout, een materiaalkeuze die is doorgetrokken in de kastenwand en het bureau in de kantoor- en garderoberuimte aan de voorzijde van het huis. De combinatie van het natuurstenen werkblad met aangrenzend het houten eetgedeelte benadrukt de verfijning. De keuken is het centrale punt in het huis. Naast de keuken is een ruime, en ook aan de tuin gelegen, eetkamer. De keuken heeft een fantastisch grote pui naar de tuin. De en-suitekasten geven de aangrenzende woonkamer een eigen intimiteit. Via stalen deuren met glas staat de keuken in contact met de hal. Aan de voorzijde heeft de zitkamer met erker, open haard en houten vloer een eigen, intiem karakter. Hier komt de historische ziel van het huis tot leven in combinatie met hedendaags comfort en warmte. In de voorkamer is het siertstucwerkplafond gerestaureerd.

AM106260-2011834-De-Lairessestraat-77,-Amsterdam-229613184
AM106260-2011834-De-Lairessestraat-77,-Amsterdam-229613138
AM106260-2011834-De-Lairessestraat-77,-Amsterdam-229613118
AM106260-2011834-De-Lairessestraat-77,-Amsterdam-229613376
AM106260-2011834-De-Lairessestraat-77,-Amsterdam-229613260
AM106260-2011834-De-Lairessestraat-77,-Amsterdam-229613278
Slapen en baden

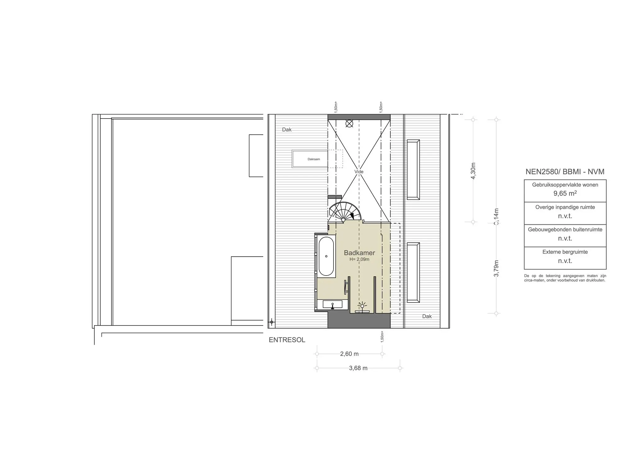
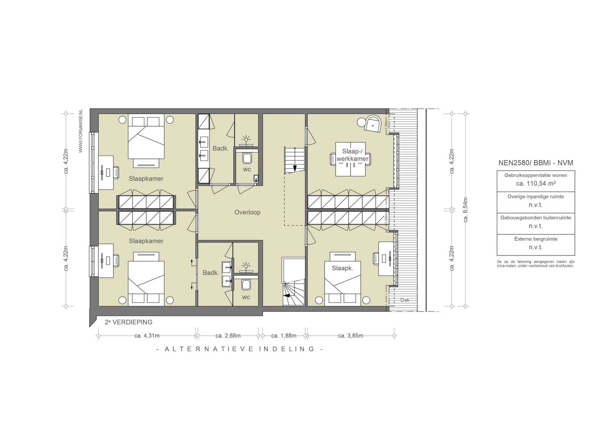
De hoofdslaapkamer op de eerste verdieping beschikt over een ruime dressing en een luxe badkamer met inloopdouche, vrijstaand ligbad, een royaal custom made dubbel wastafelmeubel en toilet. De ouderslaapkamer heeft de luxe en comfort van een boutique hotel. Rustig gelegen aan de zuidzijde, waarbij de badkamer een ingetogen en tijdloze luxe uitstraalt. De badkamer is afgewerkt met tegels van Piet Boon (Douglas & Jones), een ligbad van Cocoon, maatwerk badkamermeubels in Consentino-Silestone en RVS kranen van Hotbath. De inloopkast heeft ruim tien strekkende meters aan kasten. De vertrekken zijn verbonden met een riante en lichte hal waarbij de trapopgang vanaf beneden grandeur biedt. Aan de voorzijde bevinden zich twee royale slaapkamers, verbonden via een en-suite. Deze verdieping beschikt tevens over een tweede badkamer en een separaat toilet. Ook de tweede badkamer is afgewerkt met Piet Boon tegels (Douglas & Jones), maatwerk wastafelmeubel in Consentino-Silestone en Hotbath RVS kranen, geheel in lijn met de verfijnde stijl en hoogwaardige afwerking van de hoofdbadkamer. De tweede verdieping biedt een veelzijdige loft ruimte met een nokhoogte van ruim vijf meter, een logeerkamer, een derde badkamer op het de entresol met dezelfde tegels van Piet Boon, een kitchenette en een separaat toilet. Deze verdieping is uitermate geschikt voor logés, werken aan huis of sport en ontspanning. De trap naar het souterrain komt uit in een ruime hal met inbouwkasten, en geeft toegang tot een multifuntionele kamer met daglicht en vaste kastenruimte, perfect als werkkamer, atelier of logeerkamer. Aan de ander kant van de hal is de technische ruimte, een badkamer met inloopdouche met toilet. Daarachter is nog een ruimte ideaal als wasruimte, hobbyruimte, opslag of wijnkelder. Het souterrain is ook erg geschikt als aparte ruimte voor een au-pair.

AM106260-2011834-De-Lairessestraat-77,-Amsterdam-229613398
AM106260-2011834-De-Lairessestraat-77,-Amsterdam-229613642
AM106260-2011834-De-Lairessestraat-77,-Amsterdam-229613470
AM106260-2011834-De-Lairessestraat-77,-Amsterdam-229613148
AM106260-2011834-De-Lairessestraat-77,-Amsterdam-229613164
AM106260-2011834-De-Lairessestraat-77,-Amsterdam-229613586
Tuin en dakterras

De achtertuin is georiënteerd op het zuiden en staat in directe verbinding met de woonkeuken en de eetkamer. De tuin wordt omzoomd door weelderig groen en is open naar het westen, waardoor de tuin uitzonderlijk licht is. De tuin is in 2022 opnieuw aangelegd met boompjes en vaste planten, een beregeningssysteem en sfeervolle verlichting. Er is de hele dag door zon, maar er is ook altijd een plekje in de schaduw te vinden. Boven, op de tweede verdieping bevindt zich een royaal en beschut dakterras van circa 50 m², eveneens gericht op het zuiden. Deze buitenruimte biedt volop zon, rust en privacy – een bijzondere kwaliteit midden in de stad.

AM106260-2011834-De-Lairessestraat-77,-Amsterdam-229613554
AM106260-2011834-De-Lairessestraat-77,-Amsterdam-229613100
AM106197-2012154-De-Lairessestraat-35A,-Amsterdam-228273432
Buurtgids

De buurt rond de De Lairessestraat is een van de meest geliefde delen van Amsterdam. De straat staat bekend om haar chique karakter en vormt een aantrekkelijke plek voor zowel bewoners als bezoekers. Gelegen in Oud-Zuid – een van de meest gewilde wijken van de stad – combineert deze omgeving historische charme met stijlvolle architectuur. De straat wordt omringd door statige herenhuizen, exclusieve boetieks, goede restaurants en sfeervolle cafés. Het aanbod is net zo gevarieerd als de bouwstijlen, en sluit goed aan bij de internationale uitstraling van de buurt. Voor high-end shopping ligt de P.C. Hooftstraat vlakbij, met modehuizen als Burberry, BA&SH en Isabel Marant Étoile. Wat deze buurt extra aantrekkelijk maakt, is de centrale ligging: het Centrum, De Pijp en het Vondelpark zijn allemaal op loopafstand. Bewoners profiteren van een breed winkelaanbod — van delicatessenzaken tot designwinkels — en een groot aantal eet- en drinkgelegenheden. Het nabijgelegen Vondelpark biedt ruimte voor ontspanning, sport en recreatie: een groene oase midden in de stad.

Bereikbaarheid
De De Lairessestraat is uitstekend bereikbaar. Het openbaar vervoer is goed vertegenwoordigd met verschillende tram- en buslijnen. Station Amsterdam Zuid en Station Amsterdam RAI zijn dichtbij. Met de auto is de Ring binnen 5 minuten te bereiken via meerdere wegen. Aan en wegrijden is daarom vrijwel altijd een eenvoudig. Met de fiets is de gehele stad door de centrale ligging natuurlijk ook goed bereikbaar.

Parkeergelegenheid
Parkeren is mogelijk via een vergunningenstelsel op de openbare weg (vergunningsgebied Zuid 8.1). Met een parkeervergunning voor Zuid 8.1 mag u parkeren in Zuid-1, Zuid-2 en Zuid-8. Een parkeervergunning voor bewoners kost € 192,81 per 6 maanden. Momenteel is er voor dit vergunningsgebied een wachttijd van 7 maanden.  (Bron: Gemeente Amsterdam, mei 2025).

AM106260-2011834-De-Lairessestraat-77,-Amsterdam-229613142
AM106260-2011834-De-Lairessestraat-77,-Amsterdam-229613388
Wat de eigenaren gaan missen

Wat dit huis voor ons zo bijzonder maakt? Het heerlijke licht, het royale trappenhuis, en de rust die je voelt zodra je binnenstapt. Ondanks de centrale ligging is het in de tuin of op het dakterras alsof je even helemaal weg bent uit de stad. We hebben niet één favoriete plek in huis — dat hangt echt af van het moment van de dag. Ontbijten aan het keukeneiland, borrelen aan de eettafel, koffie in de tuin zodra de zon zich laat zien. En op warme avonden: barbecueën op het dakterras. Het zijn allemaal plekken waar je graag blijft hangen. De buurt heeft ook echt iets bijzonders. Alles is dichtbij. We wandelen of fietsen zo naar het Concertgebouw, het Vondelpark of een van de musea. En voor een spontane avond uit is Restaurant Schotsheuvel onze vaste stek — zonder reservering even binnenlopen, dat is ideaal. Wat we het meeste gaan missen? De geur van vers brood van Van Vessem in de ochtend en de luxe van een sportschool op steenworp afstand. Maar vooral het ritme dat dit huis en deze plek ons gaf — een fijne balans tussen stads en rustig, levendig en ontspannen.

Kenmerken
De Lairessestraat 77, Amsterdam
Vraagprijs
  • € 4.500.000 k.k.
Beschikbaarheid
  • In overleg
Vertrekken
  • 9 kamers
  • 5 slaapkamers
  • 4 badkamers
Onderhoud
  • Intern: Uitstekend
  • Extern: Goed tot uitstekend
Oppervlakten & Inhoud
  • Woonoppervlakte: 296 m²
  • Overige inpandige ruimte: 32 m²
  • Gebouwgebonden buitenruimte: 47 m²
  • Externe bergruimte: 2 m²
  • Tuinoppervlakte: 87 m²
  • Perceeloppervlakte: 225 m²
Bouwjaar
  • 1917
Installaties
  • Airconditioning
  • Alarminstallatie
  • Domotica
  • Mechanische ventilatie
  • Natuurlijke ventilatie
Ligging
  • In woonwijk
Parkeren
  • Betaald parkeren
  • Parkeervergunningen
Type verwarming
  • CV Ketel
  • Open haard
  • Vloerverwarming gedeeltelijk
Type warmwater
  • CV Ketel
  • Elektrische boiler eigendom
Bestemming
  • Woonruimte
Eigendomssoort
  • Eigendom belast met erfpacht
Buitenruimte
  • Achtertuin
  • Zonneterras
  • Dakterras
Kadastraal
  • Gemeente: Amsterdam
  • Sectie: Z
  • Nummer: 89
Duurzaamheid
  • Dubbel glas
  • Volledig geisoleerd
  • Energielabel E
Soort
  • Herenhuis
  • Tussenwoning
  • Woonhuis
Bijzonderheden
  • Beschermd stads of dorpsgezicht
Overige kenmerken
  • OZB ('25) € 2.457,44 per jaar
  • Rioolrecht ('25) € 185,20 per jaar
  • Erfpachtcanon € 1.497,47 per jaar *
     In beginsel IB aftrekbaar
Plattegrond
De Lairessestraat 77, Amsterdam
AM106260-2011834-De-Lairessestraat-77,-Amsterdam-231650034
AM106260-2011834-De-Lairessestraat-77,-Amsterdam-231650042
AM106260-2011834-De-Lairessestraat-77,-Amsterdam-231650050
AM106260-2011834-De-Lairessestraat-77,-Amsterdam-231666068
AM106260-2011834-De-Lairessestraat-77,-Amsterdam-231650060
AM106260-2011834-De-Lairessestraat-77,-Amsterdam-231666082
AM106260-2011834-De-Lairessestraat-77,-Amsterdam-231650066
AM106260-2011834-De-Lairessestraat-77,-Amsterdam-231650026
Documenten
De Lairessestraat 77, Amsterdam
Locatie
De Lairessestraat 77, Amsterdam
Boodschappen
1593079817
01
Adres
Johannes Verhulststraat,
1066 VH Amsterdam

Slagerij De Schuyt

Slagerij De Schuyt, vernoemd naar hun locatie in de Cornelis Schuytstraat, heeft als symbool de parkiet. Net als de parkiet heeft deze kenmerkende slagerij zijn oorsprong in de jaren zeventig en hebben beiden hun plek veroverd in Amsterdam. Geïnspireerd door de parkiet begon eigenaar Evert Blauwendraat zijn slagerij met het idee om daar een karakteristiek, persoonlijk en bijzonder embleem aan te geven dat voor iedereen herkenbaar is. Bij dit familiebedrijf met een rijke historie kan je terecht voor vlees en delicatessen.

groentenier-winkel-voor-buiten
02
Adres
Cornelis Schuytstraat 35,
1071 NL Amsterdam

Groenteboer Tom Ensink

Groenteboer Tom Ensink zorgt ervoor dat klanten kunnen kiezen uit een exclusief assortiment aan eerlijke producten. Naast groenten worden er kazen, fruit, noten, oliën, wijnen én maaltijden verkocht - zorgvuldig geselecteerd voor de échte fijnproevers in Zuid. Specifieke wensen kunnen worden vervuld wat betreft het bestellen van producten, maar ook voor de verse maaltijden.

Schermafbeelding 2022-05-18 om 19.26.29
03
Adres
Van Breestraat 107A,
1071 ZJ Amsterdam

De Wijnkaart

In het Museumkwartier in Amsterdam-Zuid zit De Wijnkaart. Hier worden allerlei soorten wijnen uit de vergeten Oost-Europese wijnlanden geserveerd. Alhoewel de geschiedenis van het wijn maken hier is begonnen, zijn deze landen vaak vergeten in de wijnwereld. Als je benieuwd bent geworden naar alle soorten wijnen kan je een wijnproeverij doen in de wijnbar, waarbij je zelf mag uitkiezen welke je wil proeven. Naast de borrelplanken die wekelijks veranderen, staan er ook hoofdgerechten op het menu.

69495482_2355482024538342_8370925297519820800_n
04
Adres
1071 MR Amsterdam

ZuiderMRKT

De zuiderMRKT is een kleine, gezellige, wekelijkse buurtmarkt. Uniek door haar coöperatieve karakter. De coöperatie bestaat uit leden - enthousiaste buurtbewoners - die de markt een warm toedragen en meehelpen op de markt en in de groentekraam. De leden bepalen samen het aanbod van alle kramen. Zij kopen groente en fruit rechtstreeks in bij de boer, om ze voor eerlijke prijzen op het zuiderMRKT-plein te verkopen.

Eten & drinken
downloadgram.org_612368537_18441156778097723_3706005334160954595_n
05
Adres
Johannes Verhulststraat 64-H,
1071 NH Amsterdam

Franzen

Chef en eigenaar Jesse Franzen groeide op in een horecafamilie in Haarlem. Zijn vader stond in de keuken, zijn moeder werkte in de bediening. Zijn eigen professionele reis begon in de keuken van het tweesterrenrestaurant Chapeau, waarna hij ervaring opdeed bij onder andere Aan de Poel, Ron Gastrobar en Lars Amsterdam. Met Franzen creëert Jesse een plek die voelt als een moderne huiskamer voor de stad. Toegankelijk en warm, maar altijd met een hoge standaard. Het menu is klassiek en herkenbaar, met hier en daar een verrassende twist.

Schermafbeelding 2022-05-11 om 16.25.41
06
Adres
Johannes Verhulststraat 32,
1071 NE Amsterdam

Pizzeria Le 4 Stagioni

Voor bezoekers van het Concertgebouw zijn de Romaanse pizza's met dunne bodem geen vreemde. Sinds 1978 voorziet de pizzeria in Oud-Zuid menige groep en (grote) families van authentiek Italiaans eten. Het interieur heeft een Mediteraans tintje en het menu biedt voor ieder wat wils, van verse pasta's en mals vlees, tot onmisbare antipasti en vegetarische alternatieven.

07
Adres
Cornelis Schuytstraat 8-10,
1071 JH Amsterdam

Brasserie van Dam

Brasserie van Dam staat bekend om een simpele maar effectieve receptuur: een niet te uitgebreide kaart met kwalitatief goede producten, acceptabele prijzen, goede koffie, een fijne sfeer en vriendelijk personeel.

tip_10694-edible-treasures-large
08
Adres
Jacob Obrechtstraat 75,
1071 KK Amsterdam

Edible Treasures

In een voormalige slagerij in Amsterdam Zuid huist de concept store Edibe Treasures. Naast de 'edibles en drinkables' in de koffieshop vind je hier een prachtige selectie van alles voor op de tafel zoals zilverwerk, keramiek, tafellinnen, maar ook kookboeken en accessoires. Er worden ook regelmatig pop ups en workshops georganiseerd.

brasserie-de-joffers-buiten02-1600px-1024×615
Brasserie_De_Joffers_Lunch-7-1600px-1024×683
09
Adres
Willemsparkweg 163,
1071 GZ Amsterdam

Brasserie de Joffers

Met een groot terras in de zomer én winter is brasserie Joffers al 15 jaar een bekende hotspot op steenworp afstand van het Vondelpark en het Museumkwartier. Mocht de zon niet schijnen, dan is er binnen genoeg plek - een met kunst en spiegelwanden ingerichte ruimte, wat voor een huiselijke sfeer zorgt. De ontmoetingsplek voor de buurt is ideaal voor ontbijt, lunch en diner of simpelweg voor een lekkere kop koffie.

10
Adres
Valeriusstraat 85,
1071 MG Amsterdam

Carter

Carter is een moderne brasserie in Amsterdam-Zuid waar internationale klassiekers worden geserveerd met flair en finesse. Aan de Valeriusstraat voelt deze plek als een elegant buurtcafé – informeel, verfijnd en altijd gastvrij. Op de kaart staan tijdloze gerechten als steak tartare, burrata en kreeftenpasta, met een solide wijnselectie ernaast.

273565404_2463417327127039_151412226997513128_n
11
Adres
Willemsparkweg 177,
1071 GZ Amsterdam

Batoni Khinkali

In Nederland is de Georgische keuken helaas ondervertegenwoordigd, ondanks haar rijke en boeiende culinaire erfgoed. Gelukkig biedt Batoni Khinkali een introductie tot deze smaakvolle keuken. Dit restaurant, opgericht door de Georgische klarinettist Levan Tskhadadze, combineert zijn liefde voor muziek met zijn passie voor koken. Hier kunnen gasten genieten van Georgische klassiekers zoals khinkali, katsjapuri en lobio, evenals een veganistisch en vleesmenu, allemaal geserveerd met de kenmerkende Georgische gastvrijheid.

84942268_1529941500492597_3844385910518972416_n
12
Adres
Apollolaan 138,
1077 BG Amsterdam

Roberto's Restaurant Amsterdam

In de top tien Italiaanse restaurants van Amsterdam mag Roberto’s niet ontbreken. Het restaurant is gelegen in het Hilton hotel, waar de iconische Italiaanse keuken sinds 25 jaar de borden vult. Het restaurant draait om pure en simpele smaken met gerechten als dungesneden aubergine, groene farfalle pasta met kreeftensaus en Lava cake.

13
Adres
Valeriusstraat 90,
1075 GH Amsterdam

Barolo

Bar Barolo brengt de sfeer van Noord-Italië naar de Valeriusstraat, midden in het elegante Amsterdam-Zuid. De wijnkaart is royaal en zorgvuldig samengesteld, met Barolo als vanzelfsprekend middelpunt. Op het menu: huisgemaakte pasta, klassieke antipasti en seizoensgerechten zonder opsmuk. Het interieur is warm en ingetogen, net als de gastvrijheid – hier wordt met aandacht gewerkt.

welling
14
Adres
Jan Willem Brouwersstraat 32,
1071 LK Amsterdam

Café Welling

Café Welling is een knus buurtcafé aan de J.W. Brouwersstraat; vlakbij het Museumplein. Hier kun je genieten van een lekker biertje aan de bar of op het terras als het zonnetje schijnt. Dit buurtcafé kent een lange geschiedenis. Het café bestaat al langer dan 70 jaar maar draagt pas sinds 1963 de naam Café Welling. Deze historie verklaart misschien wel de oude vertrouwde sfeer die in dit café altijd te vinden blijkt. Interessant voor muziekliefhebbers: bij Café Welling worden regelmatig Jazz-avonden georganiseerd.

362085173_18198336283252516_5120199989074488114_n
15
Adres
Willemsparkweg 220hs,
1071 HX Amsterdam

Restaurant Visque

Op het prachtige hoekje van Amsterdam Zuid bevindt zich Restaurant Visque, waar vis de hoofdrol speelt. Onze menukaart is flexibel en afhankelijk van de dagelijkse keuze voor de meest verse en smaakvolle producten. Chef Menno geeft een eigen twist aan eenvoudige Franse gerechten, zoals coquilles, Hollandse garnalen, sliptong en onze bekende Tuna Wellington.

Schermafbeelding 2022-05-18 om 16.11.48
Schermafbeelding 2022-05-18 om 16.12.05
16
Adres
Willemsparkweg 74,
1071 HK Amsterdam

George W.P.A

George W.P.A is de ideale plek om neer te strijken voor een goed glas wijn en lekker eten met een chique touch. De brasserie in Zuid is naar eigen zeggen een combinatie van klassieke Franse gerechten, verpakt in New-Yorkse stijl en staat bekend om signature dishes zoals gegrilde kreeft en Blackened Tuna. Treed binnen (op reservering) in het "Upper South" van Amsterdam en see for yourself!

17
Adres
Valeriusstraat 128B,
1075 GD Amsterdam

Castell Zuid

Castell Zuid is de stijlvolle nieuwe vestiging van het iconische Amsterdamse grillrestaurant Castell, gevestigd aan de Valeriusstraat in Oud-Zuid. Waar het origineel in het centrum bekendstaat om zijn no-nonsense steaks en late diners, brengt deze locatie dezelfde smaken in een verfijnde setting. “Same taste, same vibe, different look” luidt het motto – en dat klopt: herkenbaar en toch helemaal nieuw.

312175149_2011502502368624_2613652535986311070_n
18
Adres
Koninginneweg 34,
1075 CZ Amsterdam

Tozi

TOZI betekent in Venetiaans dialect ‘een groep vrienden’, en dat voel je direct als je binnenkomt. Het is net alsof je terecht komt in één grote familie. De kaart toont een selectie van kleine Venetiaans geïnspireerde gerechten om te delen, bekend als cicchetti. Met een Italiaanse wijnkaart en een cocktailbar met Italiaanse gins en negroni's.

 

339816079_240302538447892_8075740380035601622_n
19
Adres
Van Baerlestraat 47-49,
1071 AP Amsterdam

L'Entrecôte et les Dames

L’Entrecôte et les Dames omarmt het concept van een formule-restaurant, zoals de Fransen het noemen. Binnen een sfeervol ingerichte Franse brasserie staat de entrecôte centraal, altijd met een lichte 'bleu' bereiding van het Maas-Rijn-IJsel rund. Dit wordt geserveerd met frietjes en een verfrissende salade. Als je hierna nog trek hebt krijg je nog een keer een portie opgediend. Liever geen vlees? Als alternatief serveren zij in roomboter gebakken sliptong met ravigottesaus. Zelfde formule en zelfde prijs als het entrecôte menu.

downloadgram.org_610617586_18420032773136397_3224401437205912253_n
20
Adres
Van Baerlestraat 51,
1071 BJ Amsterdam

Esh Pitabar

Esh Pitabar is het nieuwe hoofdstuk van broers Ilan en Joël Benamara, die eerder sinds 2015 Café Martinot runden tot het pand in 2022 noodgedwongen moest sluiten vanwege funderingsherstel. Na een succesvolle crowdfunding besloten ze hun zaak opnieuw op te bouwen, dit keer met meer ruimte voor hun Israëlische roots en inspiratie uit Tel Aviv. Chef Ilan Benamara staat zelf in de keuken en bewaakt een simpele maar duidelijke regel: alles is huisgemaakt, van de hummus tot het pitabrood. Op de kaart vind je streetfood zoals pita falafel, hummus met warme kikkererwten en verse pizza’s, precies zoals je ze in Israël ook zou eten.

Interieur
Menno+Kroon+-+Maikel+Thijssen+Photography+-+www.maikelthijssen.com-3
21
Adres
Cornelis Schuytstraat 11,
1071 JC Amsterdam

Menno Kroon

De uitbundige en sfeervolle etalage van Menno Kroon toont zulke betoverende en bijzondere bloemen dat je wel even binnen moet kijken. Prille liefde, verrukking, het onvermijdelijke afscheid. Elk boeket van Menno Kroon geeft betekenis aan een bijzonder moment. Niks is ze te gek bij Menno Kroon en u kunt er terecht voor de meest speciale en uiteenlopende boeketten.

277535791_5208467215858783_4051211327754731278_n
274469633_5110110329027806_2507568570523403675_n
22
Adres
Van Baerlestraat 39-43,
1071 AP Amsterdam

Cosentino

Cosentino Group is een wereldwijd bekend Spaans familiebedrijf dat hoogwaardige innovatieve oppervlakken produceert en distribueert voor de wereld van design en architectuur. Aan de Van Baerlestraat bevindt zich hun inspiratiecentrum waar men kleuren, materialen en toepassingen voor architectuur en designprojecten met elkaar kan vergelijken. Cosentino City biedt een uitgebreid inspiratieplatform waar architecten en ontwerpers elkaar kunnen ontmoeten en kunnen werken.

Kunst & cultuur
241801382_194597056100298_7531339944812475387_n
23
Adres
Willemsparkweg 134,
1071 HR Amsterdam

Galerie Bildhalle

Bildhalle is oorspronkelijk opgericht als een Zwitserse galerie gespecialiseerd in klassieke en hedendaagse fotografie. De galerie heeft inmiddels vestigingen in Zürich en Amsterdam. Sinds de oprichting door Mirjam Cavegn in 2013, heeft de galerie zich ontwikkeld tot een van de meest gerespecteerde fotogaleries in Zwitserland. In oktober 2021 zette Bildhalle haar groei voort met de opening van een tweede galerie aan de Willemsparkweg in Amsterdam. Hier presenteert de galerie een zorgvuldig geselecteerde collectie van Nederlandse en internationale kunstenaars, variërend van opkomend talent tot gevestigde fotografen.

315727004_139279408874516_3171046503847699668_n
24
Adres
Willemsparkweg 64H,
1071 HK Amsterdam

Hama Gallery

Bij Hama Gallery geloven ze dat een galerie een grenzeloze ontmoetingsplaats is waar kunst en mensen samenkomen. Het doel is om kunst toegankelijker te maken door een unieke ervaring te bieden die breekt met traditie. De galerie verwelkomt bezoekers met open armen, of je nu binnenloopt voor een spontaan bezoek, een intieme privébezichtiging wilt, of samen met anderen kunst wilt vieren tijdens onze feestelijke openingen en tuinevenementen.

Exterieur-Concertgebouw-Kerst-Winter-crop-1
grotezaal-eduarduslee
25
Adres
Concertgebouwplein 10,
1071 LN Amsterdam

Het Concertgebouw

Het Concertgebouw is één van de monumentale panden aan het Amsterdamse Museumplein. Het gebouw stamt uit 1888 en is voltooid volgens de stijl van het Weens classicisme; als heeft het ook kenmerken uit de neorenaissance. Het gebouw is ontworpen voor klassieke concerten maar heeft in de jaren 60 en 70 ook een tijd dienst gedaan als poppodium. Bekende sterren die hier hebben opgetreden zijn onder andere Led Zappelin en Aretha Franklin. Tegenwoordig vinden er jaarlijks bijna duizend concerten en andere culturele activiteiten in het Concertgebouw plaats. Voor degenen met een kleiner budget zijn er ook gratis lunchconcerten. Voor een bezoek aan een lunchconcert kun je het beste eerst even op de website kijken. Vaak kun je daar van de voren gratis kaartjes reserveren.

Een houten monument uit 1880 op een betoverende plek

Een houten monument uit 1880 op een betoverende plek

Buurtgids: Nieuwmarktbuurt rondom de Keizerstraat

Buurtgids: Nieuwmarktbuurt rondom de Keizerstraat

Een ranke woontoren van hout – revolutionair in constructie, radicaal in intentie.

Een ranke woontoren van hout – revolutionair in constructie, radicaal in intentie.

Onlangs bekeken
Bekijk het overzicht

Deze site maakt gebruik van cookies.

Voor welke cookies geef je akkoord?