Het huis is onderscheidend in wijze van gebruik en indeling. Prachtig zicht naar de Da Costakade en Jacob van Lennepkade en de traditionele entree aan de Jacob van Lennepstraat. 

De woonkeuken is een centraal middelpunt van het geheel. Het huis heeft een heerlijke leefruimte met een fijne maatvoering en is gelegen op een sublieme locatie in Amsterdam. Op loopafstand naar de grachtengordel maar ook naar de gezellige Bosboom Toussiantstraat en levendigheid op de Bilderdijkstraat. 

Jelle Mundt | Broersma Wonen 

AM104124-1731857-Da-Costakade-203,-Amsterdam-137164972

Woning 1 Jacob van Lennepstraat 37 huis (ca. 91m²)

Begane grond:
De woning op de begane grond heeft een entree aan zowel de Da Costakade als de Jacob van Lennepstraat. Er is een hal met een garderobe. Grote slaapkamer met badkamer, voorzien van een ligbad, dubbele wastafel en toilet.
De grote en fraai ontworpen woonkeuken is centraal gelegen en staat in open verbinding met de woonkamer aan de Da Costakade.

AM104124-1731857-Da-Costakade-203,-Amsterdam-137164985
AM104124-1731857-Da-Costakade-203,-Amsterdam-137164974
AM104124-1731857-Da-Costakade-203,-Amsterdam-137164979

De buitenruimte 
De woning op de begane grond heeft aan de keuken openslaande deuren naar de veranda en de tuin. Daarnaast is de voorzijde een heerlijke plek voor een bankje in de middag- en avondzon.

AM104124-1731857-Da-Costakade-203,-Amsterdam-137164990
AM104124-1731857-Da-Costakade-203,-Amsterdam-137164989
AM104124-1731857-Da-Costakade-203,-Amsterdam-137164994
AM104124-1731857-Da-Costakade-203,-Amsterdam-137164998
AM104124-1731857-Da-Costakade-203,-Amsterdam-137165001

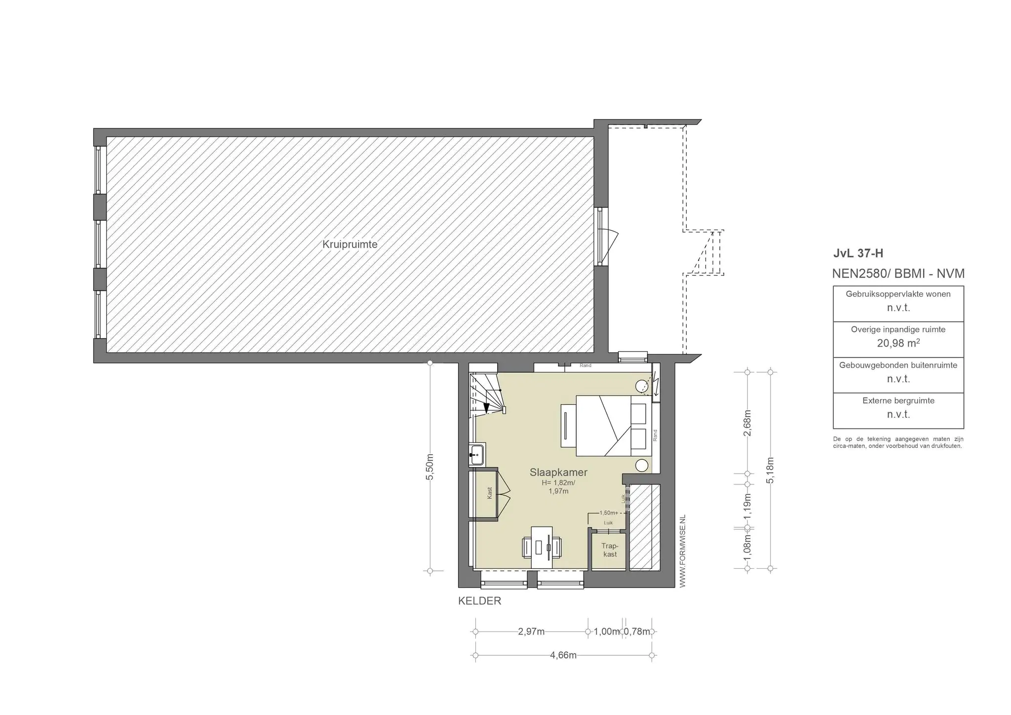
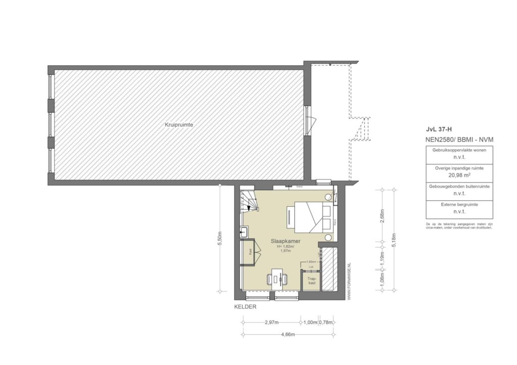
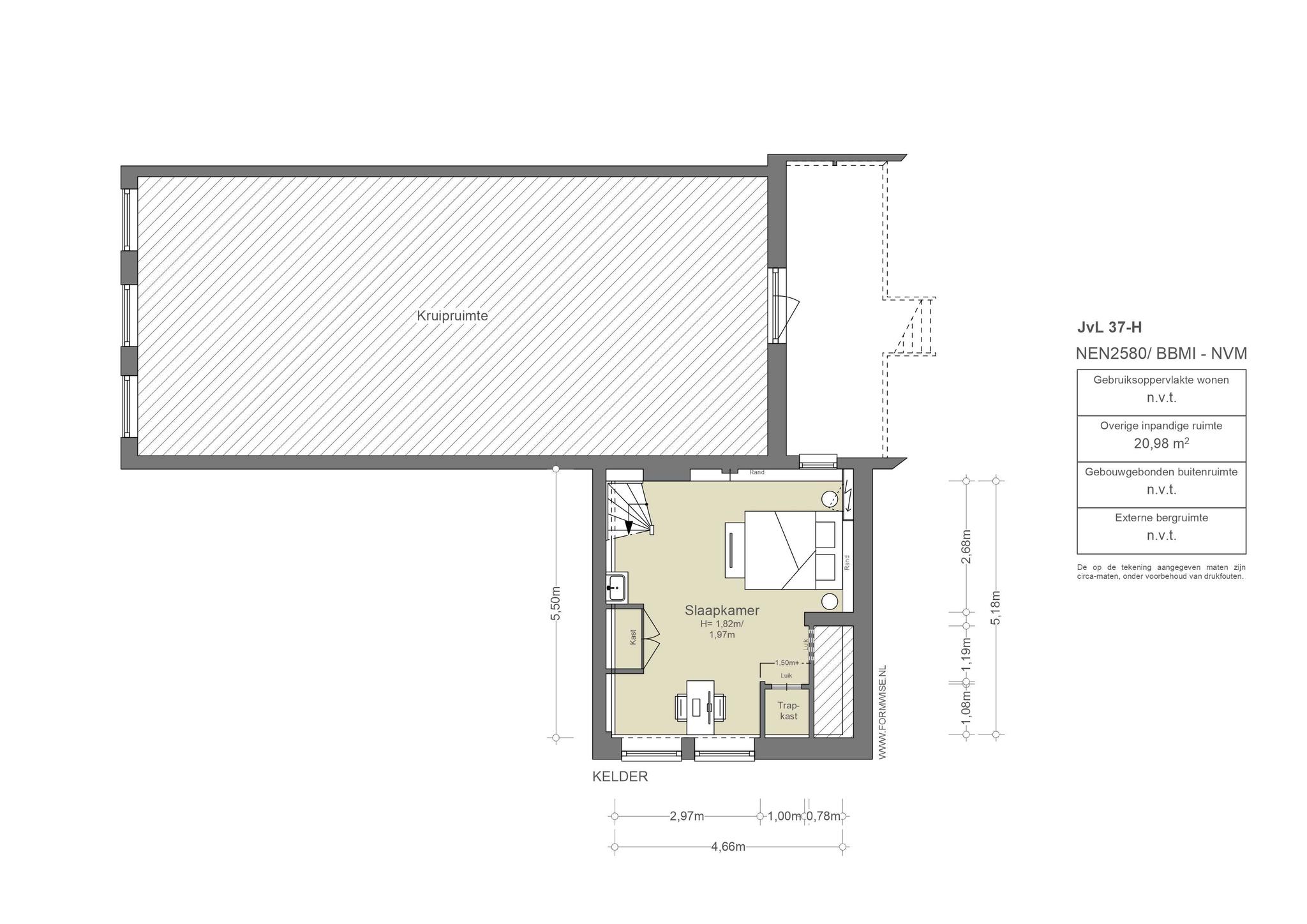
Souterrain Da Costakade
In het souterrain aan de voorzijde van het huis is een slaapvertrek en pantry met aansluitingen voor de wasmachine en droger. Deze ruimte heeft een hoogte van 1.87 tot 1.92 meter.

AM104124-1731857-Da-Costakade-203,-Amsterdam-137165004
AM104124-1731857-Da-Costakade-203,-Amsterdam-137165008

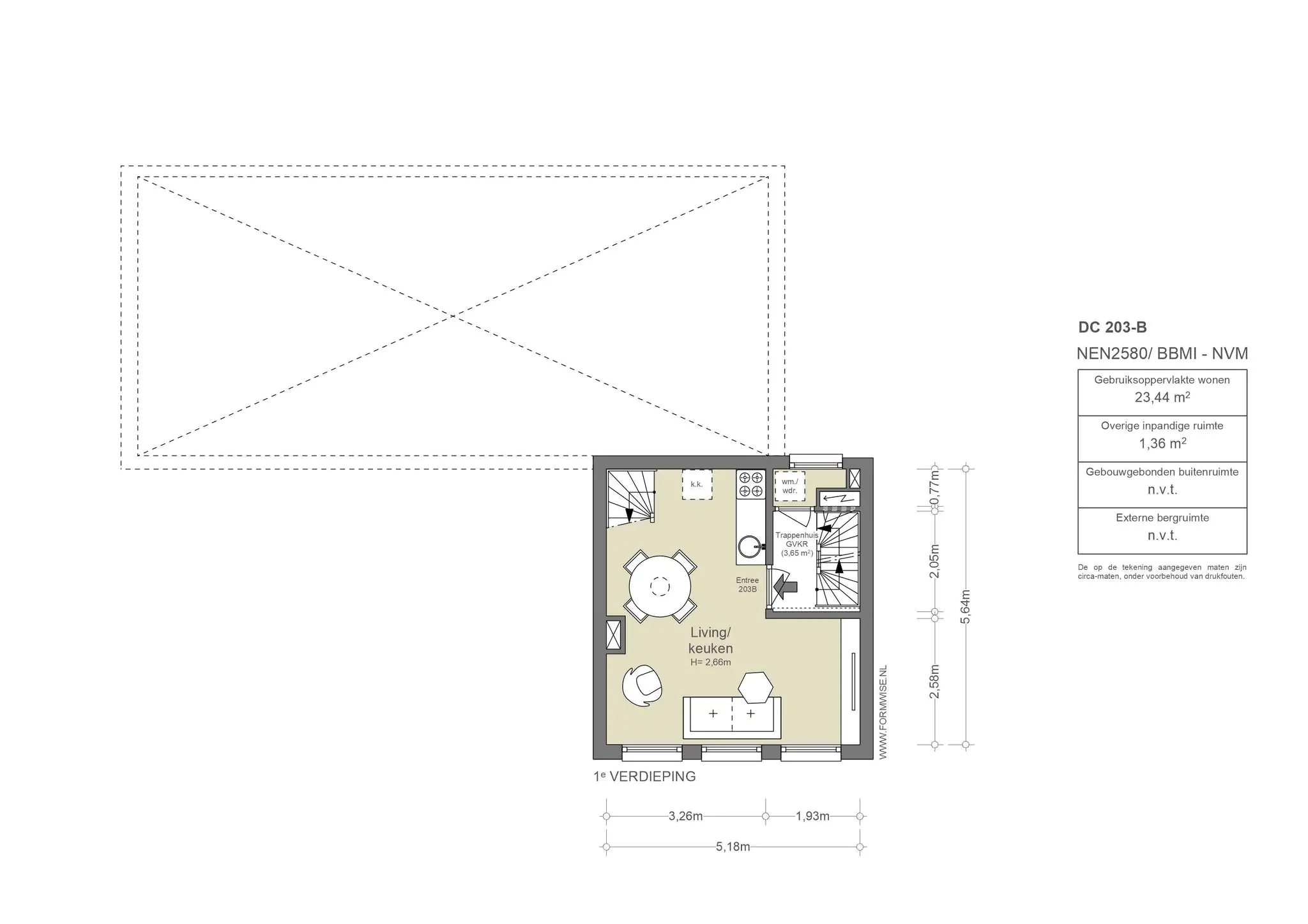
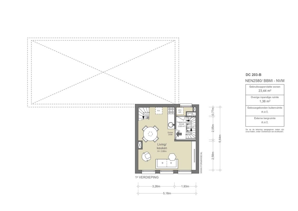
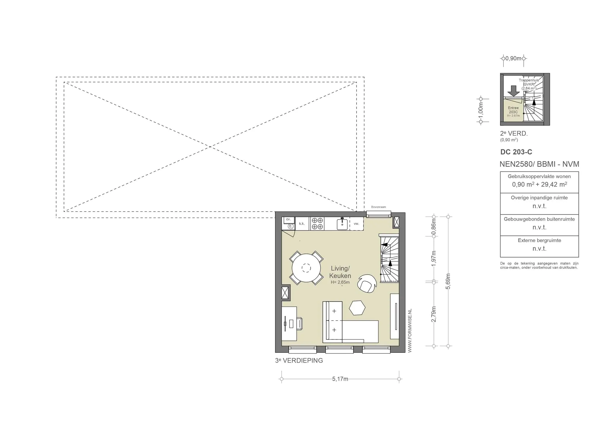
Woning 2 Da Costakade 203  B ( eerste en tweede verdieping) ca. 50 m²

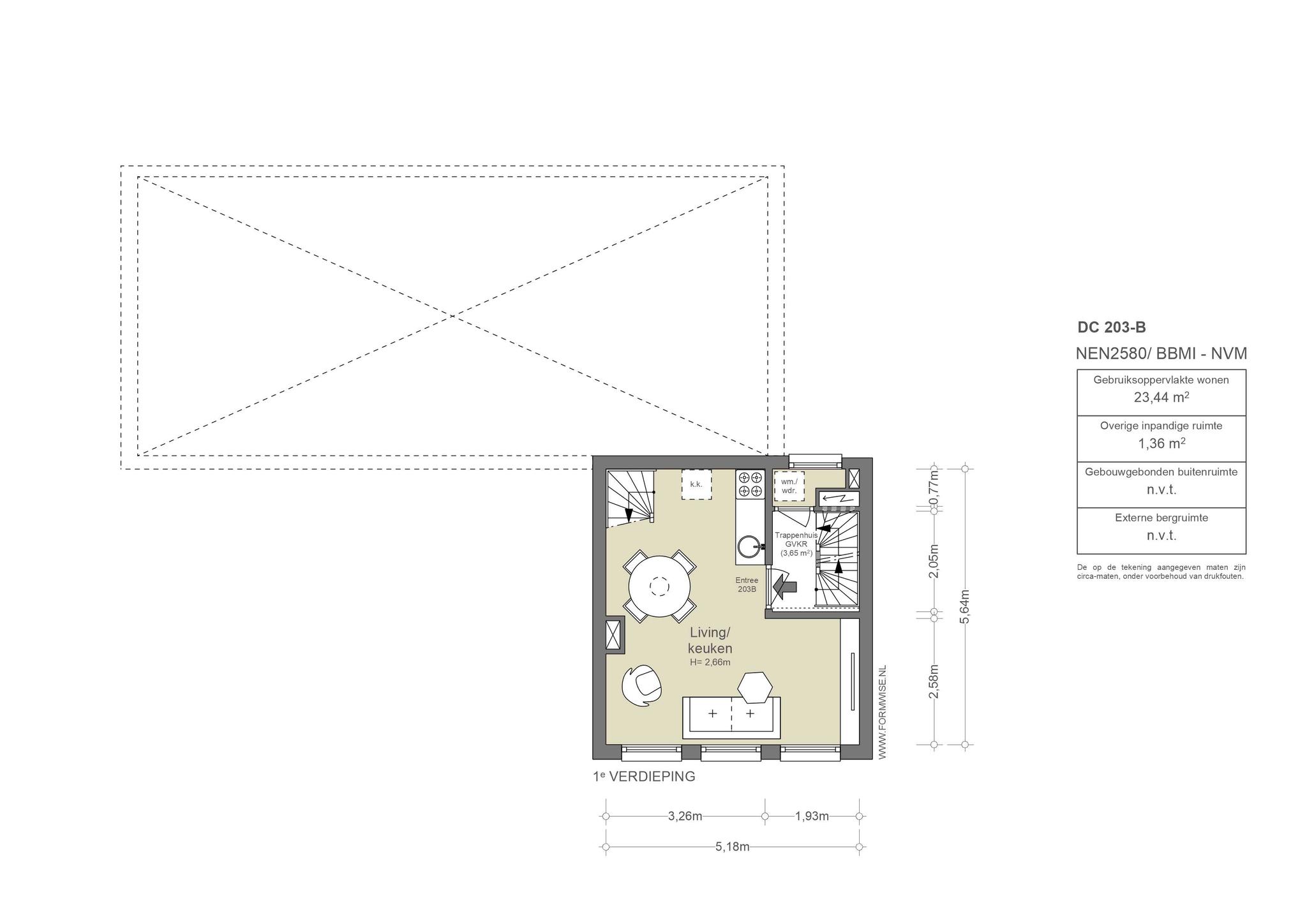
Eerste verdieping:
De gemeenschappelijke trap geeft toegang tot de entree op de eerste verdieping. Er is een keukenblok en woongedeelte aan de voorzijde. Er zijn drie ramen die weids uitzicht hebben over het water.

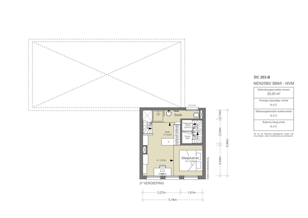
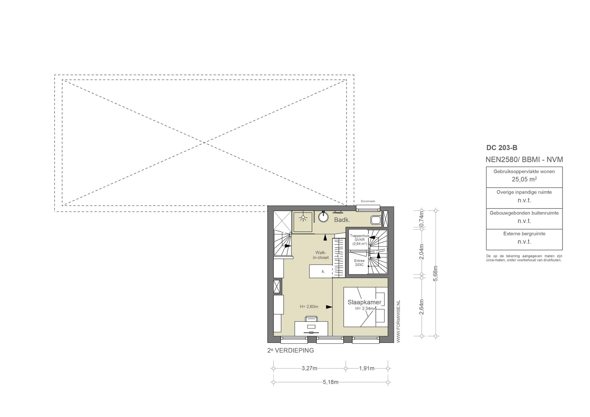
Tweede verdieping:
Interne trap naar de slaapverdieping. Er is een fraai ingebouwd bed en maatwerk kasten. De badkamer is voorzien van een inloopdouche, wastafel en toilet.

AM104124-1731857-Da-Costakade-203,-Amsterdam-137165011
AM104124-1731857-Da-Costakade-203,-Amsterdam-137165012
AM104124-1731857-Da-Costakade-203,-Amsterdam-137165021
AM104124-1731857-Da-Costakade-203,-Amsterdam-137165024
AM104124-1731857-Da-Costakade-203,-Amsterdam-137165030
AM104124-1731857-Da-Costakade-203,-Amsterdam-137165041

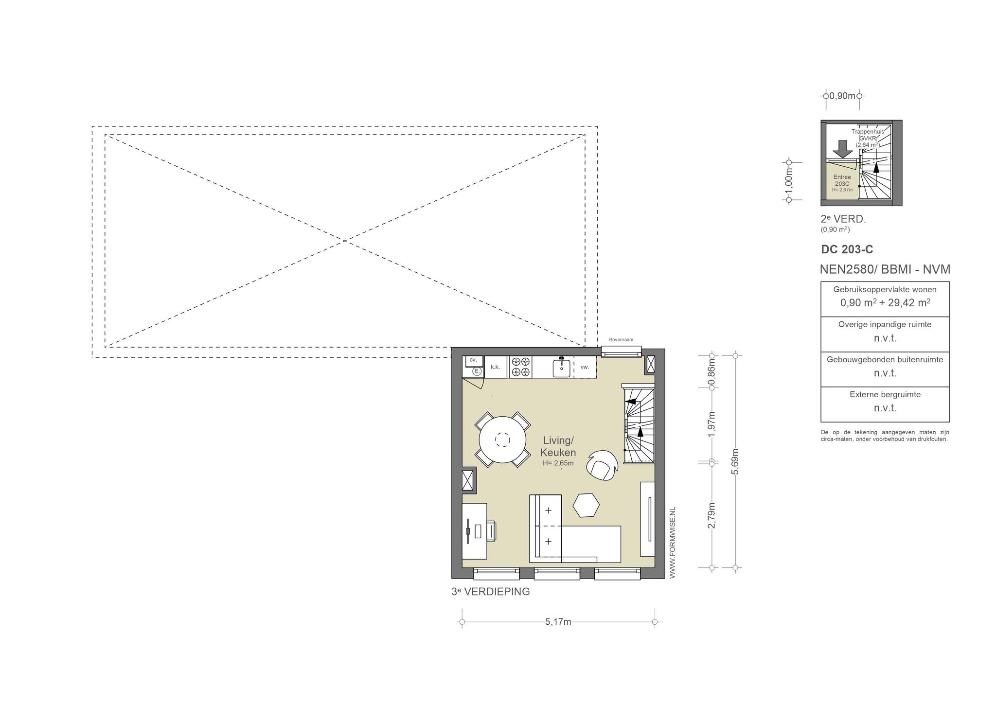
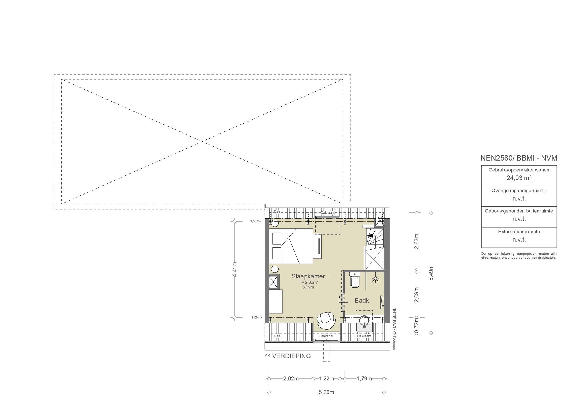
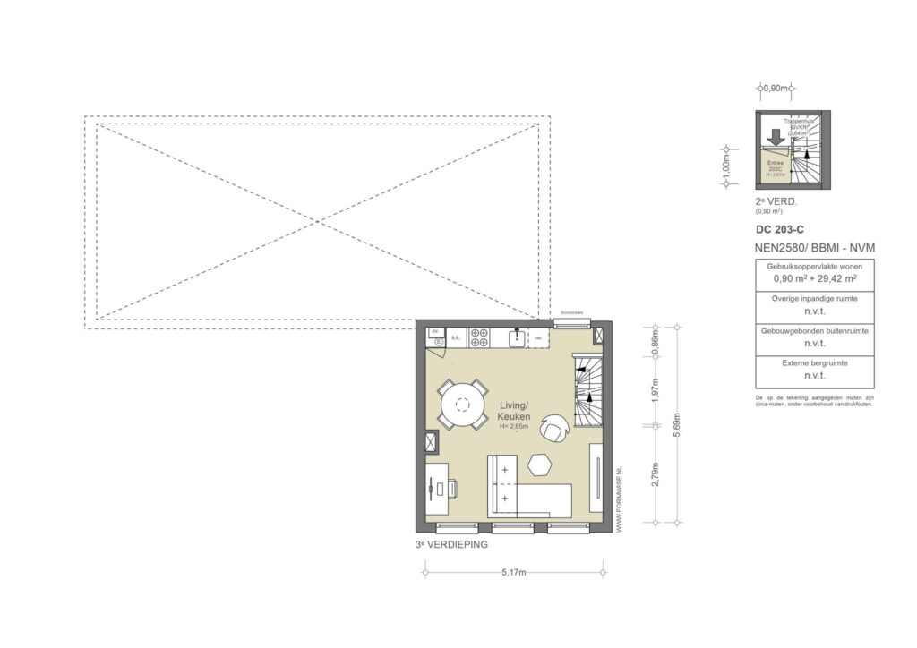
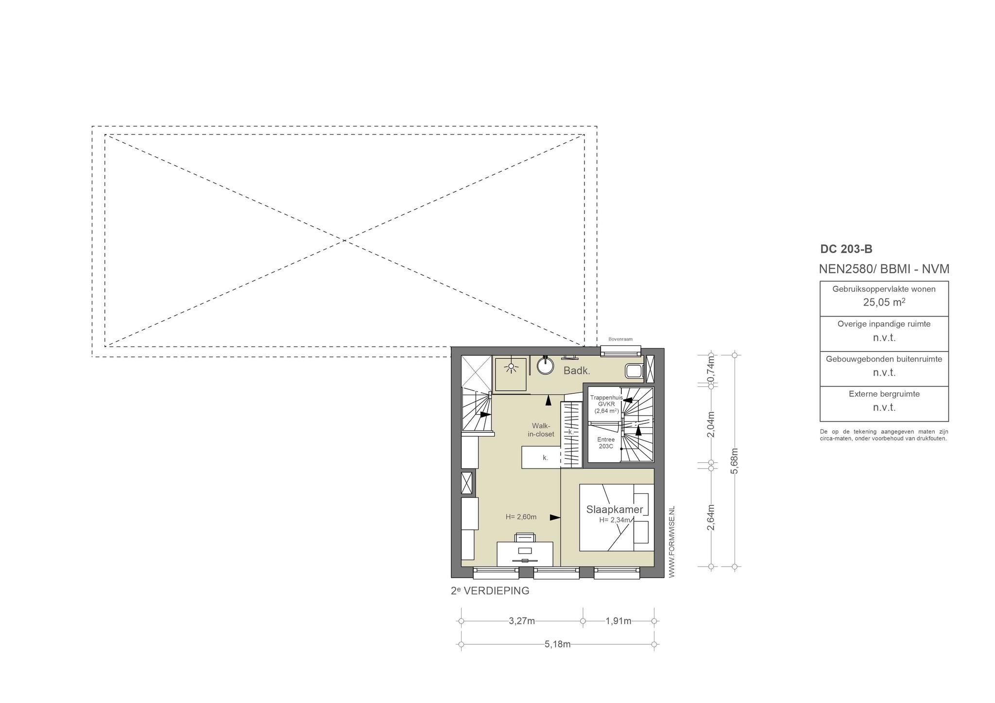
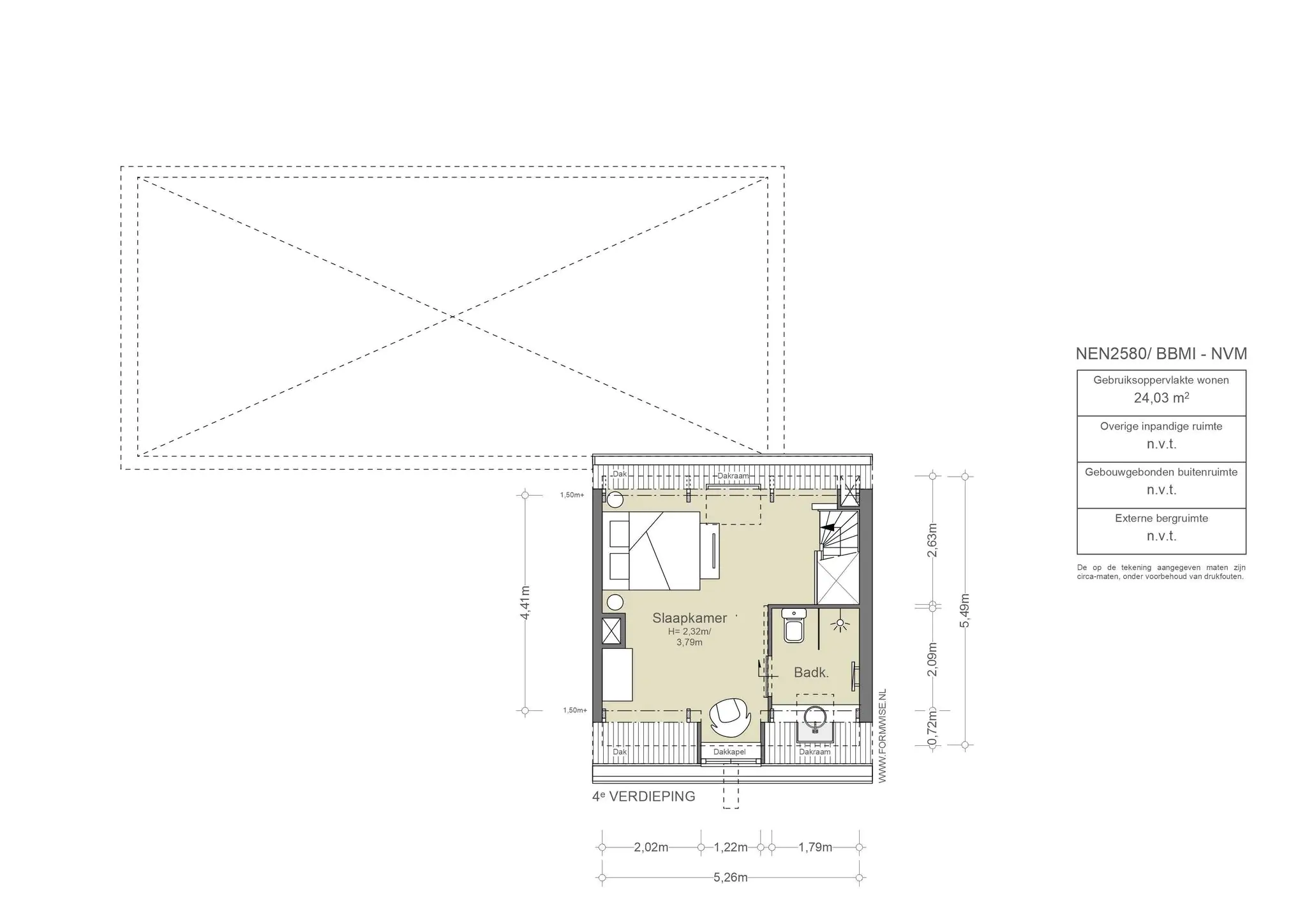
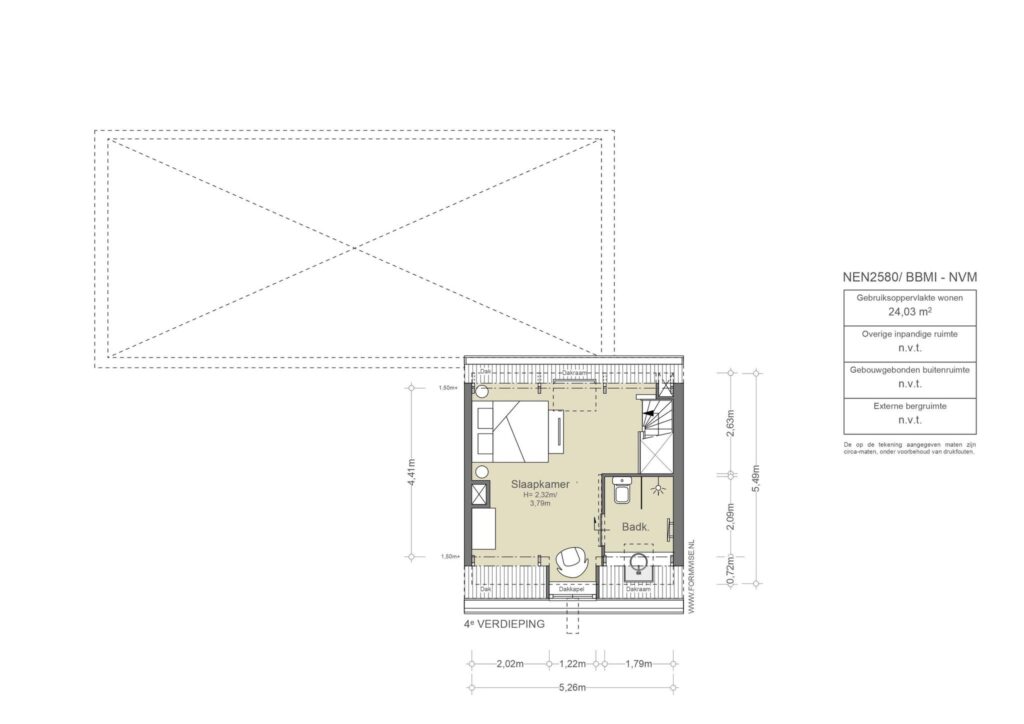
Woning 3 Da Costakade 203 C ( derde en kapverdieping) ca 54 m²

Derde verdieping:
De woning heeft een eigen entree vanaf de tweede verdieping. Er is een gezellige woonkamer met open keuken en drie ramen met zicht naar de grachten.

Kapverdieping:
De sfeervolle kapverdieping heeft een mooie hoogte en houten spanten in het zicht. De slaapruimte is voorzien van een badkamer met douche, wastafel en toilet.

AM104124-1731857-Da-Costakade-203,-Amsterdam-137165057
AM104124-1731857-Da-Costakade-203,-Amsterdam-137165049
AM104124-1731857-Da-Costakade-203,-Amsterdam-137165070
AM104124-1731857-Da-Costakade-203,-Amsterdam-137165076
AM104124-1731857-Da-Costakade-203,-Amsterdam-137165079
AM104124-1731857-Da-Costakade-203,-Amsterdam-137165082
AM104124-1731857-Da-Costakade-203,-Amsterdam-137165086

De bijzonderheden

  • Gebruiksoppervlakte wonen ca. 207 m²
  • Veranda en tuin gelegen van ca. 30 m²
  • Gelegen op eigen grond
  • Geheel leeg, vrij van huur en gebruik
  • Oplevering in overleg, kan snel.
  • De woningen maken onderdeel uit van een pand. Het is tevens mogelijk de woningen middels de geldende regels te splitsen in drie woningen

De omgeving
De woningen zijn gelegen op een van een mooiere locaties van Amsterdam West. Dichtbij de grachtengordel en op loopafstand van de Bosboom Toussaintstraat en het Vondelpark.

Een omgeving met een uitgebreide diversiteit aan horeca gelegenheden en cultuur ( De Hallen). Daarnaast is er bijvoorbeeld de Ten Kate markt, foodhallen de gezellige Elandsgracht om de hoek.

De parkeergelegenheid
Parkeren is mogelijk via een vergunningenstelsel. Er zijn diverse parkeergarages in de nabijheid waarbij je tevens met een geldige parkeervergunning kunt parkeren.

Openbaar vervoer stopt op de Bilderdijkstraat. ( ca 2 minuten lopen)

Bereikbaarheid
De woning is gelegen in de luwte van de Nassaukade een van de belangrijkrijke toegangswegen. Tevens is er een goede bereikbaarheid middels de Overtoom via de afrit S106 via de Ringweg A10.

Het gebouw
De woningen maken deel uit van een bouweenheid dat eind 1800 en begin 1900 gebouwd zijn. Een kenmerkende bouwperiode met een traditionele bouw als onderdeel van de eerste stadsuitbreidingen. Deels over De Da Costakade is een brede gracht samen met de Jacob van Lennepkade. Vroeger werden deze waterwegen intensief gebruikt voor de toe-en aanlevering aan de Amsterdamse (binnen) stad.

 

AM104124-1731857-Da-Costakade-203,-Amsterdam-137164969
AM104124-1731857-Da-Costakade-203,-Amsterdam-137165096
AM104124-1731857-Da-Costakade-203,-Amsterdam-137165100
Kenmerken
Da Costakade 203, Amsterdam
Vraagprijs
  • € 1.690.000 k.k.
Beschikbaarheid
  • In overleg
Vertrekken
  • 8 kamers
  • 3 slaapkamers
  • 3 badkamers
Onderhoud
  • Intern: Goed
  • Extern: Goed
Oppervlakten & Inhoud
  • Woonoppervlakte: 207 m²
  • Tuinoppervlakte: 26 m²
  • Perceeloppervlakte: 33 m²
Bouwjaar
  • 1882
Installaties
  • Mechanische ventilatie
  • Natuurlijke ventilatie
  • TV kabel
Ligging
  • Aan water
  • In woonwijk
Parkeren
  • Betaald parkeren
  • Openbaar parkeren
  • Parkeervergunningen
Type verwarming
  • CV Ketel
Type warmwater
  • CV Ketel
Bestemming
  • Woonruimte
Eigendomssoort
  • Volle eigendom
Buitenruimte
  • Achtertuin
Kadastraal
  • Gemeente: Amsterdam
  • Sectie: Q
  • Nummer: 1906
Duurzaamheid
  • Dakisolatie
  • Dubbel glas
  • Energielabel C
Soort
  • Eengezinswoning
  • Grachtenpand
  • Tussenwoning
  • Woonhuis
Overige kenmerken
  • OZB ('22) € 628,73 per jaar
  • Rioolrecht ('22) € 152,50 per jaar
Documenten
Da Costakade 203, Amsterdam
Locatie
Da Costakade 203, Amsterdam
Eten & drinken
Schermafbeelding 2022-06-20 om 19.00.24
01
Adres
Bilderdijkstraat 203,
1053 KS Amsterdam

De Japanner

De Japanner is inmiddels een fenomeen geworden in zowel de Pijp als in Oud-West. Het concept is simpel en straight-forward: heerlijk Japans fingerfood wat gepaard gaat met ofwel een cocktail, Japans biertje, saké of een non-alcoholisch alternatief natuurlijk. Het komt dan ook niet als een verassing dat de reviews over de Japanner lovend zijn, waarbij vooral het vriendelijke personeel als de lekkere hapjes worden uitgelicht.

272906180_4754289304606196_2316678134679603007_n
02
Adres
Bosboom Toussaintstraat 26,
1054 AS Amsterdam

Café Toussaint

Café Toussaint is een gezellig buurtcafé waar je terecht kunt voor het ontbijt tot het diner en voor snacks en cocktails. De gerechten worden geserveerd in een klein eetgedeelte met uitzicht op de open keuken of op het heerlijke grote buitenterras. Verveling bestaat niet in Toussaint. Ze hebben er kasten vol spelletjes, een jeu de boules baan en afhankelijk van het seizoen hebben ze er mosselfestijnen, barbecue-events of wijnproeverijen.

275843270_493096732309075_1709426496827556956_n
244372554_393432455608837_1440249416982792851_n
03
Adres
Bosboom Toussaintstraat 28-H,
1054 AS Amsterdam

Gertrude

Gertrude is een bar en restaurant waar je terecht kan voor een steengoede maaltijd. Er wordt hier met de seizoenen meegekookt en de nadruk ligt vooral op seizoensgroenten en verantwoorde vis- en vleessoorten. Denk aan gepekelde sardientjes met rucola-olie, pappardelle met ragù of afsluiten met perencrumble met zure room en kazen van Kef. Het interieur bestaat uit mooie antieke stukken wat zorgt voor een chique maar ook huiselijke sfeer. Doordeweeks kan je hier dineren en in het weekend kan je hier ook lunchen.

04
Adres
Bilderdijkstraat 208H,
1053 LG Amsterdam

Soenes roti

Het is een feit dat de roti van Soenessardien een groot succes is, maar daarnaast serveert hij ook andere populaire keuzes zoals de bara, een gefrituurd gekruid deeg met bijvoorbeeld garnalen of lam. Bij de nasi en bami worden groenten en salade geserveerd en de grillgerechten  hebben een heerlijke Surinaamse twist. Er komen voornamelijk buurtbewoners, maar ook steeds meer toeristen hebben deze plek ontdekt. Je kan ook via de website het eten thuis laten bezorgen.

 

275335010_978007842873510_9036372361978497498_n
294431600_369850948563647_4204512199247441432_n
05
Adres
Bilderdijkstraat 164 H,
1053 LC Amsterdam

Brioche.

Deze gloednieuwe bakkerij is gespecialiseerd in (zoals je waarschijnlijk verwacht) Franse brioche. Ze bieden een selectie van zoete broodjes met klassieke smaken zoals kardemom en kaneel, en nog wat anderen zoals bessen en praline. Ze hebben ook hartige specialiteiten zoals een brioche met zalm en roomkaas.  Ze zijn geopend op woensdag tot en met vrijdag van  8.00 to 17.30 en zaterdag en zondag van 9.00 tot 17.00

312331621_1088836571776973_4262642838619724150_n
294589445_714591559836108_6334057245334888778_n
06
Adres
Nassaukade 330 H,
1053 LT Amsterdam

Cafecito

Cafecito is een onderdeel van de Cafecito-franchise, een Amsterdamse koffiebranderij die besloot koffiezaken te openen om hun eigen afzet te stimuleren toen de verkoop aan horecagelegenheden tijdens de pandemie stagneerde. Cafecito heeft al drie vestigingen in Amsterdam en één in Rotterdam. De Nassaukade-locatie is de nieuwste toevoeging, geleid door onderneemster Chow, die eerder twee bubble tea-winkels bezat. Ze heeft nu haar eigen Cafecito, waar ze professionele barista's in dienst heeft voor het bereiden van koffie, inclusief de trots van de zaak: cold brew. Naast diverse koffiesoorten bieden ze kleine cakejes en hun eigen koffieblend voor thuisgebruik aan.

©rachelecclestone_PEPS-INTERIORS__September-09-2025_DSC07510
07
Adres
Bilderdijkstraat 158H,
1053 LC Amsterdam

Peps

Peps is een Spaanse wijn- en eetbar in Oud-West met een keuken onder leiding van chef Raymond van Welzenis, die eerder bij BAUT werkte en hier een creatieve draai geeft aan tapas en pinchos met finesse en smaak. De kaart telt meer dan zestig kleine gerechten, van klassiekers zoals pimientos de padrón en pulpo tot oesters op ijs, ideaal om te delen met vrienden of bij de borrel. Het menu combineert Spaanse traditie met een moderne, informele setting waarin brunch, diner en cocktails moeiteloos in elkaar overlopen.

1519ee_6ac76a1674b441f1abb675ca34e30f4d_mv2
08
Adres
Eerste Constantijn Huygensstraat 41H,
1054 BR Amsterdam

The Bab

Het Koreaanse restaurant The Bab heeft de authentieke smaak die je zou verwachten van een Koreaans restaurant, maar dan zonder al te fancy te zijn. Eigenaren Junghun Pyo en zijn vrouw Haksun (Sunny) Kim willen namelijk dat mensen zich op hun gemak voelen bij hen en casual Korean food kunnen proeven. Het eerste waar je aan moet denken als je denkt aan Koreaans eten zijn de gerechten bibimbap en gefrituurde kip. De bibimbap bevat rijst, groenten en een rauw ei. De gefrituurde kip is bereid met een speciale Koreaanse kruidenmix. Een ander populair gerecht dat je bij The Bab kunt bestellen zijn de kimchipannenkoeken. Deze pannenkoekjes zijn gevuld met ui en kimchi, een gefermenteerde kool die steeds populairder wordt in het westen.

downloadgram.org_609930707_18074677673366171_2740458049347652876_n
downloadgram.org_610631877_18074677631366171_1146120732393511510_n
09
Adres
Bilderdijkstraat 140,
1053 LA Amsterdam

SILK

SILK is het buurtrestaurant van Limau Chen, bekend van nNea Pizzeria en de Salvo Patisseries, die hier bewust teruggrijpt op haar eigen roots na jaren in de Italiaanse horeca te hebben gewerkt. In de keuken staat chef Paolo Manzo, die samen met Chen een keuken neerzet die geen fusion wil zijn, maar een culturele dialoog tussen Oost en West. Hun gerechten volgen grofweg de lijn van de Zijderoute, met invloeden uit Azië en Zuid-Europa die elkaar ontmoeten in uitgesproken, seizoensgebonden borden. Denk aan gefrituurde hele zeebaars op Aziatische wijze, naast pasta-achtige structuren, frisse zuren en diepe umami-tonen.

263151911_4984840728206347_6656739176783290457_n
10
Adres
Kinkerstraat 112,
1053 ED Amsterdam

LOT61 Coffee Roasters

Op de hoek in de Kinkerstraat zit koffiebranderij LOT61. Je kan hier naast verse bonen – heerlijk ruiken - terecht voor een sterke, goeie bak koffie, ontbijt en bakkerijproducten. De gemoedelijke ruimte, ingericht met hout en metrotegels zorgt ervoor dat je hier uren zou willen zitten. Hun missie is om de meest circulaire koffiespecialiteitsmerk ooit te zijn. Probeer ook de chocolate chip cookies, ook wel ‘crack cookies’ genoemd, maar pas op want ze zijn verslavend.

277274092_570465227271282_2863090128467155428_n
321728804_132502672992041_1979043488818020825_n
11
Adres
Kinkerstraat 122,
1053 ED Amsterdam

Paindemie

Tijdens de lockdown ontstond Paindemie als een creatieve uitlaatklep voor chefs die hun culinaire passie wilden delen. Geïnitieerd door Guillaume de Beer van The Breda Group, biedt Paindemie een unieke ervaring met royale burgers, tosti's en sandwiches in een ruimte geïnspireerd op een Japans metrostation. De burgers worden bereid met ethisch Nederlands geitenbokkenvlees, terwijl vegetariërs kunnen genieten van huisgemaakte smashburgers van Redefine Meat. Het hoogtepunt? The BIG Mie, een ode aan de Big Mac. Bovendien pronkt de wijnkaart met zorgvuldig geselecteerde natuurwijnen, sake's en cocktails, allemaal geserveerd in de charmante art deco-bar.

downloadgram.org_582764027_17859423015564300_3438836274206826094_n
12
Adres
Kinkerstraat 122,
1053 ED Amsterdam

MOYŌ

Chef en eigenaar Guillaume de Beer (eerder van Bar Gui) startte MOYŌ als een intiem restaurantconcept waarin luxe en focus centraal staan. In true Paindemie-stijl serveert hij een chef’s choice tasting menu van vijf of acht gangen, opgebouwd rond twee van de meest verfijnde Japanse ingrediënten: toro en wagyu. Deze producten vormen het hart van de keuken en bepalen het karakter van de hele ervaring. De stijl is uitgesproken en precies, met gerechten die draaien om rijkdom, textuur en pure smaakbeleving. De ambiance is exclusief en warm, een verborgen plek voor gasten die bewust kiezen voor een bijzondere avond uit.

325749984_906537340772511_1825606846932047451_n
13
Adres
Bilderdijkstraat 116,
1053 KZ Amsterdam

Toko Bersama

Bij Toko Bersama kan je terecht voor authentieke Indonesische gerechten. Van heerlijke roti tot rames en van soepen tot snacks, er is voor ieder wat wils. Van de rijsttafel zijn er verschillende varianten beschikbaar, van klein (voor één persoon) tot extra compleet. Deze kan (desgewenst) volledig vegetarisch worden geserveerd. Bij de normale rijsttafel ( van €36), voor twee personen, kies je zelf twee basis-, drie vlees- en drie groente- of sojagerechten. Standaard komen daar kroepoek, seroendeng, tempé en sambal bij. De rijsttafel biedt de mogelijkheid om de verschillende Indonesische gerechten te proberen.

180661497_109525414592089_5524060405684313540_n
199541340_112181734417905_7498033300373632292_n
14
Adres
Looiersgracht 144,
1016 VT Amsterdam

Café de Jonge Wees

Café De Jonge Wees, gelegen aan de Looiersgracht 144, is een typische bruine buurtkroeg die de basis legt voor de welbekende Amsterdamse gezelligheid met een uitgebreide selectie bieren, jenevers en borrelhappen. Hier is altijd Ajax te zien en dankzij het zonnige terras kun je zowel binnen als buiten van de sfeer genieten. Bovendien is Café De Jonge Wees het zusje van Proeflokaal A. Van Wees, wat betekent dat alle jenevers die in de Jordaan worden geschonken afkomstig zijn van A. Van Wees Distilleerderij de Ooievaar in Amsterdam.

187513275_541642613509567_7586706852571280627_n
15
Adres
Eerste Constantijn Huygensstraat 63H,
1054 BT Amsterdam

Uncommon

In de levendige Eerste Constantijn Huijgenstraat biedt Uncommon een unieke koffie- en eetervaring. De oprichters, Clay en Josh, gaan verder dan de bekende koffiebronnen.  Ze halen ook bonen uit ongewone plantages in Myanmar en Indonesië, die ze vervolgens zelf branden. Bij elke geserveerde kop koffie voelen ze de verplichting om een eerbetoon te brengen aan de koffieproducent. Deze toewijding aan bijzondere koffie strekt zich ook uit naar het menu, waar vegetarische of vegan gerechten altijd een ongebruikelijk ingrediënt bevatten. Ondanks de drukte van de straat biedt het minimalistisch stijlvolle interieur van Uncommon een zen-achtige sfeer.

360140550_18370084879023426_5307795712086357556_n
16
Adres
Bilderdijkstraat 113,
1053 KN Amsterdam

Skina

Skina heeft een minimalistische maar toch funky uitstraling en serveert uitstekende koffie. De bonen worden gebrand door Rush Rush coffee. Ze serveren ook andere warme en verfrissende koude dranken zoals citroenlimonade. Daar kan je gebak bij krijgen zoals een plak marmercake, kaneelcroissant of brioche met sinaasappelen. Of ze bieden sandwiches aan, zowel plantaardige-als vleesopties geserveerd op heerlijk focaccia brood.

17
Adres
Eerste Constantijn Huygensstraat 82,
1054 BX Amsterdam

Koffiesalon

De allerlekkerste Italiaanse koffie gemaakt door goede barista’s. De service is heel erg goed en je proeft dat de koffie gemaakt is door experts. Je kan hier ook terecht voor simpele en lekkere ontbijthapjes. Ze hebben hier take-away maar even binnenzitten is ook mogelijk. De koffiesalon heeft meerdere vestigingen in de stad.

IMG_0015
18
Adres
Bilderdijkkade 27,
1053 VH Amsterdam

Berry

Berry Amsterdam is een hotspot voor sapjes, smoothies, koffie en meer. Dit koffie/lunchtentje kun je vinden op de Bilderdijkkade. Het gezellige en warme interieur doet door de vele planten en boeken denken aan een huiskamer. Daarnaast hebben ze een heerlijk terras waar je van de zon kan genieten. De meeste producten zijn biologisch en hier geen gelaptop – Berry Amsterdam is zoals ze zelf zeggen: een wifi-vrije zone!

362281468_17877326531919863_8876445204828833093_n
19
Adres
Kinkerstraat 142 C-H,
1053 EG Amsterdam

Hawawshi

Boodschappen
downloadgram.org_496874981_17848936944460251_3669236045324019553_n
20
Adres
Bosboom Toussaintstraat 70,
1054 AV Amsterdam

Zicami Market

Zicami Market is een tweemaandelijkse Italiaanse markt, opgezet door Camilla, bekend van het patisseriemerk La Torta di Camilla. Vanuit haar liefde voor haar roots brengt ze in Amsterdam een zorgvuldig geselecteerde groep Italiaanse foodmakers samen. Bezoekers wandelen langs kraampjes met cannoli, handgemaakte pasta, ambachtelijke sauzen, charcuterie, kazen, olijfolie en dolci, alsof je even door een Siciliaans dorp loopt. De kracht van Zicami zit niet alleen in het eten, maar in de sfeer: espresso aan kleine tafels, Italiaanse muziek en het gevoel van een buurtmarkt waar iedereen elkaar ontmoet. Je vindt de markt elke eerste en derde zaterdag van de maand aan de Bosboom Toussaintstraat 70.

 

288460093_5757378127616106_4944675648070804179_n
21
Adres
Eerste Helmersstraat 63 hs,
1054 DC Amsterdam

Vleck wijnen

Vleck wijnen is een van de eerste wijnimporteurs van natuurwijnen in Nederland. De wijnen worden direct van de boer uit Frankrijk gekocht; van wijngaard naar winkel. Vleck heeft als filosofie om zo min mogelijk in te grijpen bij de natuurlijke processen van het wijn maken, op de wijngaarden wordt niet gewerkt met insecticiden en kunstmest. Kortom; als je houdt van natuurwijn is dit dé plek.

324881858_834540850983260_7922799188280236168_n
22
Adres
Elandsgracht 113,
1016 TT Amsterdam

Vindict wine

Vindict wine is te vinden aan de rand van de Jordaan op de Elandsgracht. Omdat ze niet alleen van wijn houden maar ook van ontwerpen en bouwen, hebben ze deze prachtplek een eigen en duurzaam design gegeven. Elk onderdeel van de winkel heeft een vorig leven gekend. Zo is de vloer gemaakt van steenschotten uit oude steenfabrieken en worden de wijnen gepresenteerd in schoenen kasten uit de Puma-fabriek van het voormalige Tsjecho-Slowakije.  Er wordt hier elk soort wijn aangeboden: van vijf euro tot een fles Dom Pérignon Champagne. Alle witte, rosé en bubbels zijn gekoeld verkrijgbaar.

Interieur
Winkel-blauwe-muur2
Wildernis-HR-10-e1505960790573
23
Adres
Bilderdijkstraat 165F,
1053 KP Amsterdam

Wildernis

Bij Wildernis aan de Bilderdijkstraat kun je terecht voor planten, potten, boeken, accessoires en andere groene cadeaus, maar je drinkt er ook de lekkerste kop koffie. Alle producten in de winkel zijn gemaakt met liefde en zorg, en zijn zo duurzaam mogelijk. Kom een kijkje nemen in deze groene oase van rust!

120215712_3464581680287775_8524877858352079533_n
24
Adres
Eerste Helmersstraat 84-C,
1054 DL Amsterdam

Arjan

Het herkenbare “Arjan boeket” zie je bij menig fietser op de schouder langskomen. De boeketten zijn te vinden bij Arjan Bloemen aan de Eerste Helmersstraat in Amsterdam. De eigenaar, Arjan Konincks, is al vanaf jongs af aan in de weer met bloemen. Samen met zijn team staat hij dagelijks klaar om u te helpen met het creëren van de mooiste boeketten.

Kunst & cultuur
Sweet-Spills_WEBRES_JDEWAART_10.5.22_43-1920×1080
25
Adres
Bilderdijkstraat 165 C,
1053 KP Amsterdam

Gerhard Hofland

In de loop der jaren is Gerhard Hofland uitgegroeid tot een van de grootste galerieën in Amsterdam, die een grote verscheidenheid aan kunst en kunstenaars vertegenwoordigt. Die zowel werken vanuit abstractie als uit de meer figuratieve kunst. Daarnaast werkt de galerie voortdurend aan het introduceren van internationale kunstenaars bij het Nederlandse publiek, en gaat zij projecten aan met jonge en getalenteerde kunstenaars om hen te ondersteunen bij hun eerste stappen in de professionele kunstwereld.

‘De Zonnehoek’, een architectonisch landhuis midden in de stad

‘De Zonnehoek’, een architectonisch landhuis midden in de stad

Oost, een selectie van fijne plekken rondom de Indische buurt

Oost, een selectie van fijne plekken rondom de Indische buurt

Waar drinken we de lekkerste wijnen in Amsterdam? Een selectie van wijn barren én restaurants met een bijzondere wijnkaart

Waar drinken we de lekkerste wijnen in Amsterdam? Een selectie van wijn barren én restaurants met een bijzondere wijnkaart

Onlangs bekeken
Bekijk het overzicht

Deze site maakt gebruik van cookies.

Voor welke cookies geef je akkoord?