Brouwersgracht 78, een monumentaal pand met het nummer 771, dateert naar verluidt uit circa 1725 en schittert in de Lodewijk XIV-stijl met een imposante halsgevel. Recentelijk gerestaureerd en gerenoveerd tot in de kleinste details, heeft het pand zijn oorspronkelijke allure herwonnen met behoud van moderne luxe zoals airconditioning. De restauratie omvatte een nieuwe fundering, een gerestaureerd dak en monumentale interieurdetails, onder supervisie van Monumentenzorg. Dit resulteert in een harmonieus samenspel van historische grandeur en hedendaags comfort. Dit deel van de gracht valt onder het centrum chique wonen.

Rondleiding
De woonkeuken biedt uitzicht op de patio en gracht, met een modern design inclusief hardstenen vloertegels, grijze kastjes, granieten aanrechtblad, Viking fornuis, Sub Zero koelkast/vriezer en Miele vaatwasser. Het huis heeft twee woonruimtes: een stijlkamer en lichte woonkamer met uitzicht op de gracht. Op de bovenverdiepingen zijn drie slaapkamers, met een extra slaapkamer met badkamer in het souterrain. De patio en binnen-buitenruimte aan de straatzijde bieden ontspanning, met vrij uitzicht aan de overkant. De nieuwe kelder heeft een wijnkelder en technische ruimten; de zolder dient voor bergruimte en huisvest de CV-ketel, warmteterugwinsysteem en airconditioning.

Buurtgids
De Brouwersgracht ligt aan het begin van de Singel, Herengracht, Keizersgracht en Prinsengracht. Dit deel is dynamisch en vormt samen met de Herenmarkt een van de mooiste delen van de grachtengordel. De Brouwersgracht ligt op een mooi en gewild gedeelte ter hoogte van de Keizersgracht, zonder woonboten voor de deur. De rustige Herenmarkt direct om de hoek zorgt voor extra ruimte en minder drukte. De historische Brouwersgracht is een prachtige centrale locatie in een levendig deel van het centrum. Omringd door de Jordaan, Haarlemmerdijk, de Dam en het Centraal Station is hier altijd iets te beleven. Trendy winkels, gezellige cafés en restaurantjes zoals Toscanini, Duende, Café Winkel 43, Vrouw met de baard en Café Papeneiland zijn volop aanwezig. De Noordermarkt, met op maandag en zaterdag de biologische markt, ligt om de hoek. Ook het Westerpark met aanpalende natuurgebieden is vlakbij. Boodschappen kunt u doen bij Albert Heijn, Jumbo, Marqt en diverse speciaalzaken op de Herenstraat, Haarlemmerdijk en Haarlemmerstraat. In 2007 werd de Brouwersgracht niet voor niets door lezers van Het Parool uit 150 nominaties verkozen tot de mooiste straat van Amsterdam. De Brouwersgracht biedt de perfecte balans tussen rustig wonen en de gezelligheid van het centrum van Amsterdam.

Bijzonderheden
•    Gebruiksoppervlakte wonen circa 318 m²
•    Patio van circa 10 m²
•    Binnen-buiten aan de straat op zuiden.
•    Gelegen op eigen grond
•    (Interieur-) adviseur Els Dols
•    Informatie fundering; bij de restauratie is de fundering vernieuwd en is een nieuwe kelderbak aangebracht
•    Renovatiejaar 2019
•    Rijksmonument
•    Rijksbeschermd Stadsgezicht
•    Onderdeel UNESCO Werelderfgoed

Brouwersgracht 78-17

De Brouwer
Tijdens de eerste kennismaking stond ik wat langer op de stoep in gesprek met een buurtbewoner, terwijl ik tegelijkertijd de gevel kon bewonderen. Deze locatie is mij goed bekend, omdat mijn zus hier in de jaren zeventig twee panden verderop woonde. Voor mij was dit een soort van eerste kennismaking met Amsterdam en het leven op de grachten. Dit deel van de Brouwersgracht heeft een speciale betekenis voor mijn relatie met Amsterdam. Toen ik door de eigenaresse werd binnengelaten, viel mij direct de hoge en lichte ruimte op, evenals de goede staat van onderhoud. Tijdens de introductie en rondleiding toonde de eigenaresse het huis en werd telkens opnieuw bevestigd hoe kwalitatief goed het pand was gerenoveerd. De eigenaar was aan het werk in de studeerkamer en ik stelde mij voor dat werken hier bijdraagt aan de concentratie. Alle volgende vertrekken waren even indrukwekkend en hoe hoger ik kwam, hoe meer licht er was. Het is voor ons dan ook een eer om dit pand voor de eigenaren te mogen begeleiden in de verkoop.


Kees Kemp | Makelaar Broersma Wonen
Daniël de Bont | Makelaar Broersma Wonen
Brouwersgracht 78 20240523 Zonshoot-3

Monument en restauratie
Met monumentnummer 771 is Brouwersgracht 78 een monument in uitstekende staat. De huidige opstal zou dateren uit omstreeks 1725 en heeft een gevel in de fraaie Lodewijk XIV-stijl. Het pand heeft een recentere onderzijde, waarbij vanaf de eerste etage de klassieke vensterverdeling en een halsgevel als sierlijke beëindiging te zien zijn. De bovenzijde komt overeen met het buurpand op nummer 80, waarbij beide panden zusterlijk naast elkaar staan. De halsgevels komen vrijwel overeen, hoewel nummer 78 in detail rijker geornamenteerd is. Daarbij heeft het pand ook nog ramen met een roedeverdeling, wat meer karakter aan het gevelaanzicht geeft. De halsgevel heeft gedeelde vleugelstukken waarop vazen en palmetten decoratief zijn aangebracht. Het tympaan zorgt met zijn halfronde vorm voor een elegante beëindiging. Het onderstuk van het gebouw heeft extra hoogte en is symmetrisch, met aan beide zijden een entreedeur en in het midden openslaande deuren. De pui als geheel is rijkelijk omlijst met kolommen en een horizontale sierlijst. Hier is tot in de 19e eeuw een stoepentree geweest met een klassieke gevelindeling. Ook bij nummer 80 is die niet meer aanwezig. De entree verwijst naar de tijd dat het onderstuk voor opslag en bedrijvigheid diende. Inmiddels verkeert het pand in “parcours” staat. De huidige eigenaren zijn in 2017 het avontuur aangegaan met de ambitie het pand te restaureren, met als doel het pand zijn allure terug te geven, maar dan technisch op een niveau dat het weer decennia goed zou blijven. Gedurende deze restauratie is ook niet nagelaten de afwerking op een zeer hoog niveau te krijgen. Zij hebben zich bij de afwerking ten behoeve van materialen en kleuren laten bijstaan door een interieuradviseur Els Dols. De restauratie en renovatie is totaal geweest, met inbreng  van en overleg met Monumentenzorg. Daarbij heeft het pand als solide basis een geheel nieuwe fundering en kelder gekregen en is de kap gerestaureerd. Intern zijn vele details teruggevonden en hersteld, en zijn monumentale aspecten toegevoegd. Voorts heeft het gehele pand complete nieuwe installaties gekregen, tot en met airconditioning. Het resultaat is een monumentaal pand met sfeer en karakter en het huidige wooncomfort.

Brouwersgracht 78 20240523 Zonshoot-1
Brouwersgracht 78-3
Brouwersgracht 78-1
Brouwersgracht 78-4

Koken en wonen
De kwaliteit van de woonkeuken begint met de plek waar deze is gesitueerd. Met licht en zicht op de patio bevindt de keuken zich op een verhoogd gedeelte. Vanaf hier en vanuit de aangrenzende eetruimte heeft men een prachtig uitzicht op de gracht. De keuken is compleet en modern, waarbij aan kleine details is gedacht. De vloer is belegd met vierkante Belgische hardstenen tegels, de kastjes en laden hebben een lichte zachtgrijze tint en het keukenblad is van graniet, met een hardstenen gootsteen voorzien van een Quookerkraan. De keuken is zo ingedeeld dat hier goed kan worden gekookt. Met een groot aanrecht waarin een semi-professioneel Viking fornuis is geplaatst, dat twee ovens en zes grote branders heeft, is alles aanwezig om uitgebreid te kunnen kokkerellen. Daarnaast heeft de keuken een ingebouwde dubbele Amerikaanse koelkast/vriezer van Sub Zero en een professionele Miele afwasmachine. Het voorportaal met extra hoogte maakt feitelijk deel uit van de ruimte van de woonkeuken en is verbonden met een statige trap. Dit gedeelte wordt ook gebruikt als onderdeel van een groot feest of diner. Bij een warme zomeravond leent dit deel van het huis zich uitstekend om binnen/buiten te eten. Het huis heeft twee woonruimten, met een stijlkamer in het achterhuis en een ruime, lichte woonkamer met drie ramen aan de gracht op de eerste verdieping. De stijlkamer in het achterhuis is prachtig gerestaureerd en heeft zijn oude grandeur behouden, en verkeert in perfecte staat. De kamer heeft de sfeer van een oude herenkamer en is intiem. Vanuit de kamer heeft men, via een groot venster en het lichthof, zicht op de keuken en zelfs op de gracht. De kamer is mooi vierkant en heeft een grote gashaard. Naast de haard zijn grote ingebouwde boekenkasten. De originele brede houten vloerdelen uit de zeventiende eeuw en het gestukadoorde sierplafond zijn heel mooi gerestaureerd. De huidige bewoners gebruiken deze kamer als studeer- en werkkamer, maar de kamer leent zich ook voor gebruik als zitkamer of lounge. Op de eerste verdieping van het woonhuis is een grote kamer en suite die nu in gebruik is als zitkamer. Met drie ramen over de volle breedte op het zuiden is deze kamer het hele jaar door licht. Er is een mooi uitzicht over de gracht en op de brug naar de Keizersgracht. Dit deel van de gracht kent geen woonboten aan de overzijde, waardoor men een vrij uitzicht heeft op het water en de panden aan de overzijde. De zon die op het water valt zorgt voor een mooie spiegeling op de wanden en het plafond. Deze kamer heeft een houthaard, die samen met de in roeden verdeelde ramen de sfeer bepalen. De achterkamer van de kamer en suite zou ook als slaapkamer kunnen worden gebruikt.

Brouwersgracht 78-16
Brouwersgracht 78-30
Brouwersgracht 78-31
Brouwersgracht 78-21

Slapen en baden
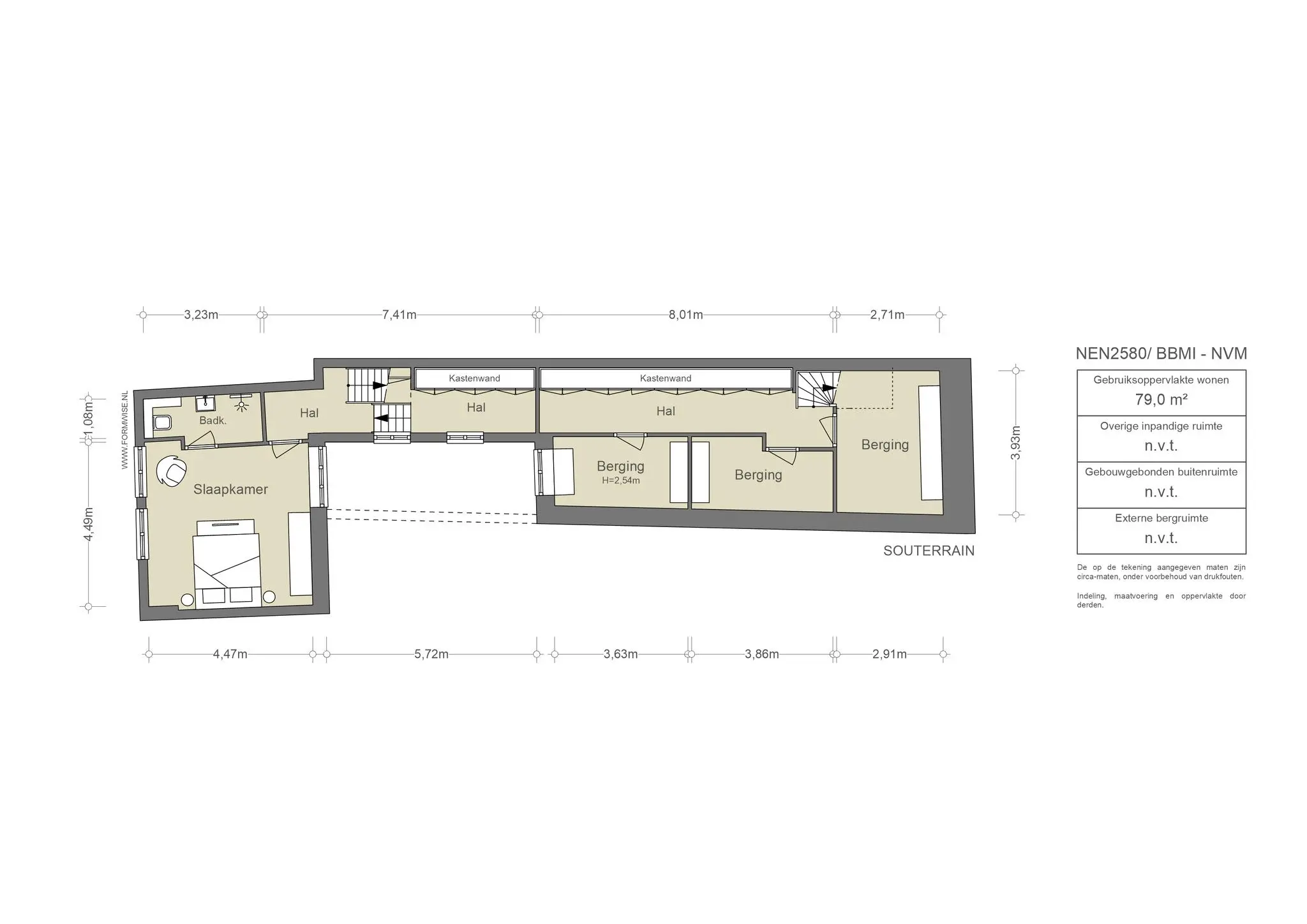
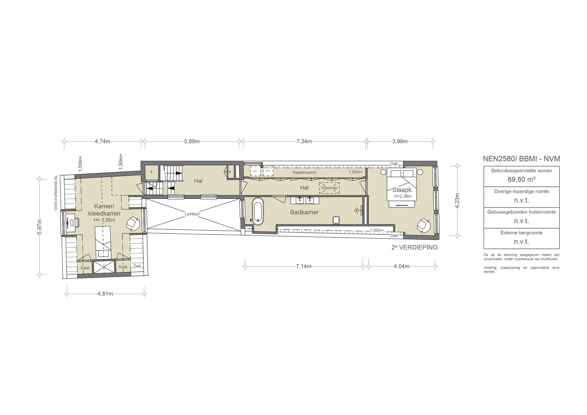
Op de bovenverdiepingen kent het pand nu drie slaapkamers en heeft het een extra slaapkamer met eigen badkamer in het souterrain. Er zijn in totaal twee badkamers en een kamer is geheel in gebruik als kastenkamer. Deze indeling is afgestemd op de woonbehoeften van de huidige eigenaren, maar meerdere vertrekken kunnen desgewenst als slaapkamer worden gebruikt, waardoor het huis in totaal vijf slaapkamers zou kunnen hebben. De slaapkamer in het souterrain heeft aan twee zijden ramen en is daardoor toch licht. Met circa 20 vierkante meter is de kamer ruim te noemen. De badkamer is en suite met een toilet, wastafel en inloopdouche/stoomcabine. Door de situering en de toegang is het mogelijk dat deze kamer vrijwel apart toegankelijk is, wat privacy biedt voor gasten. De kamer is koel en biedt absolute rust. De hoofdslaapkamer ligt in het achterhuis op de eerste verdieping. Een eveneens rustig gelegen kamer met ramen die veel daglicht binnenlaten. De kamer heeft een schouw, met aan beide zijden een deur. Achter een deur is een grote kledingkast, terwijl achter de andere deur een toilet is verstopt. De eigenaren ervaren dat hier slapen onverwachte rust biedt.
Via een bordes is in het voorhuis de badkamer bereikbaar. Deze badkamer heeft een tijdloze luxe en uitstraling die bij het huis past. Een raam zorgt voor daglicht en de badkamer is voorzien van een inloopdouche, ligbad en dubbele wastafel. De gang naar de slaapkamer aan de voorzijde heeft veel geïntegreerde kasten en hier zijn ook de wasmachine en droger geïntegreerd. Via enkele treden en een bordes is een achterkamer bereikbaar. Deze kamer hebben de huidige bewoners geheel als garderobekamer ingericht met veel kasten. Heel prettig en luxe, maar indien er behoefte is aan een extra slaapkamer, is deze eenvoudig daarvoor in te richten.

Brouwersgracht 78-39
Brouwersgracht 78-41
Brouwersgracht 78-38
Brouwersgracht 78-45
Brouwersgracht 78 20240523 Zonshoot-2
Brouwersgracht 78 20240523 Zonshoot-6
Brouwersgracht 78 20240523 Zonshoot-10

Buitenruimte
Het pand beschikt over een patio en een lichthof die zorgen voor extra daglicht in het huis en voor (koele) ventilatie. De patio is geschikt voor groen en heeft een marmeren vloer. Als buitenruimte om te zitten hebben de eigenaren een eigen binnen-buitenruimte gecreëerd op de begane grond aan de straatzijde. Deze ligt zonnig op het zuiden en door de grote openslaande deuren open te zetten, kan men heerlijk binnen en buiten zitten, zowel op het stoepgedeelte voor een kopje koffie of een borrel, terwijl buren voorbijgaan en een praatje maken. Het zitten hier zorgt ervoor dat er altijd wat te zien en te beleven is.
Aan de overzijde van de straat zijn geen parkeerplaatsen maar openbaar groen, waardoor het uitzicht niet wordt gehinderd door geparkeerde auto’s.

Bergruimte en techniek
Dankzij de nieuwe kelder is er onder het voorhuis veel extra ruimte ontstaan, die goed benut is. De kelder is niet alleen degelijk gebouwd, maar ook hoogwaardig afgewerkt, met onder andere een wijnkelder, voorraadruimte en technische ruimten. Een lange gang is voorzien van kasten aan één zijde, wat zeer praktisch is. Alle technische installaties zijn netjes aangebracht en weggewerkt. Naast de kelder is de zolder niet alleen ingericht voor extra bergruimte, maar hier zijn ook de CV-ketel en de warmteterugwinsysteem uit het zicht geplaatst. Een tweede zolder is gebruikt voor de airconditioninginstallatie.

Brouwersgracht 78 20240523 Zonshoot-5
Brouwersgracht 78 20240523 Zonshoot-12
Brouwersgracht 78 20240523 Zonshoot-9

De Brouwersgracht ligt aan het begin van de Singel, Herengracht, Keizersgracht en Prinsengracht. Dit deel is dynamisch en vormt samen met de Herenmarkt een van de mooiste delen van de grachtengordel. De Brouwersgracht ligt op een mooi en gewild gedeelte ter hoogte van de Keizersgracht, zonder woonboten voor de deur. De rustige Herenmarkt direct om de hoek zorgt voor extra ruimte en minder drukte. De historische Brouwersgracht is een prachtige centrale locatie in een levendig deel van het centrum. Omringd door de Jordaan, Haarlemmerdijk, de Dam en het Centraal Station is hier altijd iets te beleven. Trendy winkels, gezellige cafés en restaurantjes zoals Toscanini, Duende, Café Winkel 43, Vrouw met de baard en Café Papeneiland zijn volop aanwezig. De Noordermarkt, met op maandag en zaterdag de biologische markt, ligt om de hoek. Ook het Westerpark met aanpalende natuurgebieden is vlakbij. Boodschappen kunt u doen bij Albert Heijn, Jumbo, Marqt en diverse speciaalzaken op de Herenstraat, Haarlemmerdijk en Haarlemmerstraat. In 2007 werd de Brouwersgracht niet voor niets door lezers van Het Parool uit 150 nominaties verkozen tot de mooiste straat van Amsterdam. De Brouwersgracht biedt de perfecte balans tussen rustig wonen en de gezelligheid van het centrum van Amsterdam.

Bereikbaarheid
Een centrale locatie met meerdere routes in en uit de stad, wat het makkelijk bereikbaar maakt. Via het Centraal Station en langs het IJ zijn de noordelijke, westelijke en noordelijke delen van de Ring eenvoudig te bereiken. Het Centraal Station, op loopafstand, is een belangrijk knooppunt voor de metro, buslijnen en (internationale) treinverbindingen. Met de fiets is de gehele stad bereikbaar.

Parkeergelegenheid
Parkeren is mogelijk via een vergunningenstelsel op de openbare weg (vergunningsgebied Centrum-2c).
Met een parkeervergunning voor Centrum-2c mag u parkeren in Centrum-2.
Een parkeervergunning voor bewoners kost € 315,60 per 6 maanden.
Momenteel is er voor dit vergunningsgebied een wachttijd van 19 maanden. Een tweede parkeervergunning is in dit gebied niet mogelijk. (Bron: Gemeente Amsterdam, juni 2024).

1013 KV Bickerswerf 51-3
Brouwersgracht 78-8
Brouwersgracht 78-14
Kenmerken
Brouwersgracht 78, Amsterdam
Vraagprijs
  • € 3.250.000,- k.k.
Beschikbaarheid
  • In overleg
Vertrekken
  • 8 kamers
  • 5 slaapkamers
  • 2 badkamers
Onderhoud
  • Intern: Goed tot uitstekend
  • Extern: Goed tot uitstekend
Oppervlakten & Inhoud
  • Woonoppervlakte: 318 m²
  • Overige inpandige ruimte: 9 m²
  • Gebouwgebonden buitenruimte: 10 m²
  • Perceeloppervlakte: 110 m²
Bouwjaar
  • 1725
Installaties
  • Alarminstallatie
  • Dakraam
  • TV kabel
Ligging
  • In centrum
Parkeren
  • Betaald parkeren
  • Parkeervergunningen
Type verwarming
  • CV Ketel
Type warmwater
  • CV Ketel
Bestemming
  • Woonruimte
Buitenruimte
  • Patio atrium
Kadastraal
  • Gemeente: Amsterdam
  • Sectie: M
  • Nummer: 2138
Soort
  • Geschakelde-woning
  • Grachtenpand
  • Woonhuis
Bijzonderheden
  • Beschermd stads of dorpsgezicht
  • Erfgoed
  • Monument
  • Monumentaal pand
Overige kenmerken

OZB ('24) € 965,- per jaar
Rioolrecht ('24) € 166,85 per jaar
 

Plattegrond
Brouwersgracht 78, Amsterdam
AM105333-1883135-Brouwersgracht-78,-Amsterdam-187400595
AM105333-1883135-Brouwersgracht-78,-Amsterdam-187400599
AM105333-1883135-Brouwersgracht-78,-Amsterdam-187400601
AM105333-1883135-Brouwersgracht-78,-Amsterdam-187400605
AM105333-1883135-Brouwersgracht-78,-Amsterdam-187400609
AM105333-1883135-Brouwersgracht-78,-Amsterdam-187400613
Documenten
Brouwersgracht 78, Amsterdam
Locatie
Brouwersgracht 78, Amsterdam
Eten & drinken
304780495_484810383653892_8455702289174150848_n
01
Adres
Haarlemmerstraat 91,
1013 EL Amsterdam

De Blauwe Druif

Met zijn glas-in-lood ramen en gehaakte gordijntjes zijn de deuren van Café de Blauwe Druif al open sinds 1733. Het is gevestigd vlakbij het WestIndisch Huis. Schippers die werkten voor de WIC dronken afscheid-en verwelkomt-borrels in de Blauwe Druif.

Belhamel-2019-005-HighRes-1-scaled
02
Adres
Brouwersgracht 60,
1013 GX Amsterdam

De Belhamel

Dit restaurant weet zich zowel qua locatie als qua interieur uniek te onderscheiden. Het restaurant en de bar (een echte speakeasy) hebben allebei een romantische Parijse Art Nouveau sfeer. Frans geïnspireerde klassiekers versterken deze eigen identiteit met tarte tatin van sjalotten, zilveruitjes, blauwe kaas en mosterdkaramel of pain perdu van brioche met yoghurt-sinaasappelijs. In de zomer zit je heerlijk op het terras aan de Brouwersgracht.

web-images-Slider01_B
03
Adres
Buiten Brouwersstraat 19h,
1013 GJ Amsterdam

Café de Vrouw met de Baard

De Vrouw met de Baard - alleen de naam is reden genoeg om hier een keertje langs te wippen. Geheel met eigen merchandise, eigen sambal en soul kookboek én playlist weet het eethuis in het centrum een stempel te zetten op de Indisch/Molukse keuken. Ookal is de Rendang het gerecht waarvoor mensen van mijl en ver komen, ook de vegetarische alternatieven met jackfruit en aubergine zijn meer dan de moeite waard. De huiskamer-achtige sfeer geeft het geheel een echt familiegevoel, wat volgens de eigenaren zelf exact het doel is van soul- en comfortfood!

Boek-Jordaan-1965
04
Adres
Prinsengracht 2,
1015 DV Amsterdam

Het Papeneiland

Het huidige pand van het café komt uit 1642. Aan het begin van de Prinsengracht bevond zich in de 17de eeuw op nummer 7 een katholieke schuilkerk en deze was via een tunnel verbonden met het pand op de hoek. De ingang van de tunnel bevindt zich nog altijd in de kelder van het café. ’T Papeneiland werd wereldnieuws toen Bill Clinton bij zijn bezoek aan Amsterdam de zelfgebakken appeltaart kwam proeven. Ga langs en beoordeel zelf.

Screenshot-2021-02-18-at-14.49.59
RG4A9844
05
Adres
Haarlemmerstraat 9,
1013 EH Amsterdam

Bistrot neuf

Bistrot Neuf is een gezellige bistro met een modern interieur midden in het levendige Amsterdam. Het werd ooit terecht uitgeroepen tot de beste Franse zaak van Amsterdam en dat is te begrijpen. De vaste kaart staat vol Franse klassiekers zoals bouillabaisse, slakken en steak tartaar. Als een van de weinigen in Amsterdam wordt hier ook warme lunch geserveerd, maar je kan hier ook op z’n Parijs gezellig en ongecompliceerd tafelen met een goed glas wijn.

Schermafbeelding 2023-01-23 om 15.38.06
06
Adres
Noordermarkt 7,
1015 MV Amsterdam

Domenica

Domenica betekent Zondag in het Italiaans. DE dag om samen te komen en uitgebreid te tafelen, maar dat kan natuurlijk ook de rest van de week! Chef Flavio Carestia (vroeger werkzaam bij Toscanini) kookt hier met super verse ingrediënten Italiaanse klassiekers, maar ook andere gerechten uit de Europese keuken. Ook de wijnkaart is van een buitengewone goede kwaliteit. De ligging van de dit restaurant, aan de Noordermarkt (de voormalige locatie van Bordenwijk), is natuurlijk onovertroffen.

441602528_1254855125493335_5971456061780795851_n
07
Adres
Lindengracht 31,
1015 KB Amsterdam

Enté

Een combinatie van een bruine kroeg en een restaurant. Dat was het uitgangspunt van Natalie Kouwen en Tim Werners.  Chef Joris van Dijk (o.a. voorheen Rijsel) kookt hier geen gemiddelde daghap maar eerder culinair comfortfood. Binnen of buiten aan de Lindegracht middenin de Jordaan eert je hier bijvoorbeeld en onder andere zelfgedraaide braadworst met piccalilly, knolselderij met salsa verde of een gebraiseerde konijnenpoot.

Schermafbeelding 2022-05-18 om 17.31.24
08
Adres
Herenstraat 22,
1015 CB Amsterdam

Linguini

Essentieel in de Italiaanse keuken is simpliciteit: zolang de ingrediënten goed zijn heb je niet veel nodig. “Less is more”. Dat hebben ze bij Linguini in de Herenstraat goed begrepen. Het interieur ademt het Italiaanse dolce vita-gevoel: sfeervolle oude tegels en een mooie lange bank als eyecatcher: Linguini is een knusse en warme trattoria, met oog voor detail. De kaart is klein en bestaat voornamelijk uit pasta. Deze bestel je of in een kleine portie (voor één persoon), of op z’n Italiaans in een grote pan voor de ‘famiglia’. Pasta, pasta, pasta dus. Allemaal bereid met liefde en passie door de Italiaanse ‘pasta maestro’ genaamd Lorenzo Isidoro.

09
Adres
Herenstraat 14,
1015 CA Amsterdam

Max restaurant

Hier geen clichés over rijsttafels en Indonesische nostalgie, maar een eigen, lichtvoetige interpretatie van de Indische keuken. Het interieur is huiselijk maar niet tuttig; je zit aan houten tafels naast gasten die kwamen voor een feestelijke rijsttafel of gewoon voor een bord rendang met een koel glas wijn. De smaak is gelaagd en een klein beetje pit waar nodig. MAX voelt als een eerbetoon aan de familiegeschiedenis van de chef, maar ook als een restaurant dat volledig in het hier en nu staat.

appeltaart-1
10
Adres
Noordermarkt 43,
1015 NA Amsterdam

Winkel 43

Je kunt hier van ’s ochtends vroeg tot ’s avonds laat, in de zomer en in de winter terecht. Je kunt genieten van de beroemde appeltaart op het heerlijk zonnige terras of een lekker broodje kiezen van de lunchkaart. Ook ’s avonds kun je terecht voor iets te eten of een borrel. De kaart is niet ingewikkeld, maar lekker en niet duur. Het zit in het midden van de Jordaan en is een perfecte plek om lekker mensen te kijken. Omdat Winkel 43 zo beroemd is vanwege zijn appeltaarten trekt het natuurlijk toeristen maar ook lokale bewoners komen hier maar al te graag omdat het zo ongelofelijk lekker is. Niet te missen!

IMG_0917-scaled-e1581387393137
11
Adres
Noordermarkt 34,
1015 NA Amsterdam

Café Hegeraad

Café Hegeraad was tot begin 20e eeuw een klein café met een aansluitend woonhuis. Later zijn de glazen tussendeuren weggehaald. Het is een gezellige bar met typisch Hollandse keuken, koffie en zoete lekkernijen.

277773530_4858737694175482_5797203563042126028_n
338220331_754378932860278_5647799297097666_n
12
Adres
Westerstraat 3,
1015 LT Amsterdam

Luuk's Coffee

Midden in de Jordaan tegenover Winkel 43 bevindt zich Luuk's coffee. Luuk Nijsen is de oprichter van deze speciale koffiebar. Ze zijn enorm populair vanwege hun uitstekende locatie en nog betere koffie. Bovendien maken ze heerlijke zoete lekkernijen als je trek hebt. Je kan hier zeven dagen per week terecht.

398866851_2084725278550009_2045391366418278164_n
416522940_603820108545118_3960406295925336014_n
13
Adres
Prinsenstraat 16h,
1015 DC Amsterdam

OSLO

Bij OSLO Amsterdam omarmen ze met toewijding de Scandinavische filosofie. Het gebak wordt met zorg vervaardigd, strevend naar het perfecte balans tussen zoet en verfijning, bevredigend zonder enige overdaad. Het resultaat is een  combinatie van complexiteit, maar toch toegankelijk voor iedereen. Bij OSLO maken ze gebruik van uitsluitend organische en biodynamische ingrediënten in hun bakproces, waarmee ze niet alleen heerlijke gebakjes creëren, maar ook de aarde een beetje beter achterlaten.

5fef6451-95cb-404d-8776-e67a2e5fb3dd
14
Adres
Haarlemmerdijk 44,
1013 JD Amsterdam

Café de Poort

Café de Poort is een gezellig buurtcafé aan de Haarlemmerdijk. Het is een bijzonder sfeervol café met veel aandacht voor authentieke details.

15
Adres
Prinsenstraat 20,
1015 DD Amsterdam

Christiaan Smit

Christiaan Smit is een intiem restaurant in de Jordaan, gevestigd aan de Prinsenstraat 20 in Amsterdam. Het biedt een 4- of 5-gangendiner, met de mogelijkheid om à la carte te bestellen. Onder leiding van chef-kok Simon van Lith ligt de focus op seizoensgebonden gerechten met vlees, vis en lokale producten, zoals langoustines en dry-aged vis. Sommelier Abel van Schoonhoven verzorgt bijpassende wijnen. Het interieur, geïnspireerd op Engelse pubs, straalt comfort en gezelligheid uit. Met ruimte voor 30 gasten en een binnentuin biedt het restaurant een warme sfeer. De naam is een eerbetoon aan Christiaan Smit, een historische kargadoor uit Amsterdam, bekend als "Kikkie van de Prinsensluis". Het restaurant combineert hoogwaardige gerechten met een vleugje Amsterdamse geschiedenis, ideaal voor een culinaire avond in een bijzondere setting.

Schermafbeelding 2022-05-18 om 17.11.04
16
Adres
Prinsenstraat 22,
1015 DD Amsterdam

Café De Klepel

Na een leuke wandeling over de grachten is Café De Klepel een warm ontvangst. De knusse Franse bistro is een combinatie van eerlijk eten en een goed geprijsde wijnkaart. De Klepel biedt opties voor 3 of 4 gangen op basis van verse seizoensgebonden producten. De wijnkaart bevat meer dan 250 wijnen waaronder ook zeer bijzondere en zeldzame wijnen. Het is ook mogelijk om buiten een glas wijn te drinken met wat charcuterie en kaas.

Boodschappen
1015921_365183493604749_1058351331_o
17
Adres
Haarlemmerstraat 93,
1013 EM Amsterdam

Ibericus

Sinds 2012 vertegenwoordigt Ibericus de keuken van Spanje in de Nederlandse winkelstraten. Eenmaal binnen voelt het bij Ibericus alsof je je op het Iberische schiereiland begeeft. Overal hangen hammen met de alom bekende zwarte hoeven, de Pata Negra. Je kan hier naast vleesproducten ook andere Spaanse specialiteiten kopen, van broodjes en chorizo tot een heerlijk glaasje wijn. Als je op zoek bent naar authentiek Spaans eten kan je hier het beste terecht.

PGBIG15-1010×505-1
18
Adres
Haarlemmerstraat 80,
1013 EV Amsterdam

Petit Gâteau

Petit Gâteau is een échte Franse patisserie aan de Haarlemmerstraat in Amsterdam. Alles wordt bereid in de winkel, zichtbaar voor iedereen. Bij het aanschouwen van dit unieke concept loopt het water je in de mond. De eigenaren Meike en Patrice ontmoetten elkaar in Parijs waar Meike na haar banketbakkersopleiding een patisserie opende. Na zes succesvolle jaren in Parijs verhuisden ze naar Amsterdam om hetzelfde te doen. Bij Petit Gâteau heb je taarten in allerlei soorten en maten en kan je die taarten ook nog leren namaken in de workshops die hier worden gegeven.

19
Adres
Lindengracht,
1015 JP Amsterdam

Lindengrachtmarkt

Als je al een appeltaart bij Winkel 43 op de Noodermarkt gegeten hebt, wandel dan even door naar de Lindenmarkt. Aan het begin vind je gelijk de heerlijke viskraam (de kibbeling of het broodje tonijnsalade zijn aanraders!) Maar niet alleen de vis, ook de notenspeciaalzaak Notjé is briljant, en het broodje Sabich van Abu Salie is er eentje die je absoluut niet mag missen.

de oliewinkel
20
Adres
Brouwersgracht 119,
1015 GD Amsterdam

De Oliewinkel

In 2016 opende de Oliewinkel aan de Brouwersgracht. De Oliewinkel is dé plek voor degenen die houden van lekker eten en kwaliteitsproducten. Het assortiment is samengesteld uit voornamelijk Mediterrane producten maar de nadruk ligt op olijfolie van kleine producten in Italië, Spanje, Griekenland en Frankrijk. In de winkel kan je de olie proeven zodat je zelf de lekkerste uit kan kiezen en mee kan nemen in een glazen fles die je weer opnieuw kan laten vullen.
Ook de rest van het assortiment is met zorg samengesteld. Naast verschillende heerlijke huisgemaakte pesto’s, tapenades en vinaigrettes, vind je bijvoorbeeld fantastische mosterd uit Nederland, België en Frankrijk in de schappen.
De Oliewinkel heeft bovendien verschillende soorten olijven, fantastisch tafelzuur en de lekkerste mayonaises en vinaigrettes op voorraad. In het midden van de winkel staat een tafel vol visconserven. Met name de conserven van het Spaanse merk Ortiz zijn goed vertegenwoordigd.

 

273204947_1071299630109303_3216789697958750572_n
275237523_1096139134292019_2600311377251223779_n
21
Adres
Noordermarkt,
1015 NA Amsterdam

Noordermarkt

Op maandagochtend en zaterdag kan je shoppen op de gezellige Noordermarkt. Van oorsprong is de Noordermarkt een potten, pannen en lapjes markt, waar men in de 17e eeuw vooral dagelijkse gebruiksvoorwerpen kocht. Vandaag de dag kan je er van alles kopen zoals antiek, sieraden, schilderijen, glas-en serviesgoed, boeken en prenten en veel vintage kleding. Op zaterdagochtend is er ook een biologische markt waar je verse biologische groenten, fruit, brood, kaas, kruiden, vis, honing en nog veel meer andere producten kunt kopen. De marktlui zijn soms nog ras Amsterdammers met een flink accent en een bord vol flauwe humor. Op geen één markt in Amsterdam vind je zo’n verscheidenheid aan producten, de markt heeft zoveel te bieden dat je er zomaar een hele dag rondstruint.

Interieur
218608734_6463109070381616_757357937076898474_n
247864582_7138406816185168_9218306182338378760_n
22
Adres
Haarlemmerstraat 110,
1013 EW Amsterdam

Sukha

Sukha betekent 'joy of life' in het Sanskriet, en de vreugde zie je terug in het mooi ingerichte lichte pand aan de Haarlemmerstraat in Amsterdam. Het label, Atelier Sukha, maakt enkel gebruik van de puurste, meest natuurlijke materialen zoals wol, linnen, katoen, klei en kasjmier. Deze pure materialen zijn verwerkt in alle prachtige producten die de winkel aanbiedt: een assortiment van vrouwenkleding tot interieur en kunstvoorwerpen. Leuk feitje: een groot deel van de bijzondere items wordt gemaakt in Nepal.

amsterdam_860x
23
Adres
Prinsengracht 12 HS,
1015 DV Amsterdam

Pompon

Al meer dan 30 jaar maken de bloemisten van Pompon op maat gemaakte boeketten. Niet zomaar boeketten maar van de mooiste kunstbloemen. Ze stoppen de “kunst” in kunstbloemen en creëren arrangementen die zo realistisch zijn dat je bijna vergeet dat ze voor altijd meegaan. Naast de prachtige boeketten kun je hier ook terecht voor een divers assortiment aan unieke vazen.

278679260_497286858722976_8572355329696582361_n
24
Adres
Haarlemmerdijk 31,
1013 KA Amsterdam

Six and Sons

Six & Sons is een winkel in het midden van de eigenzinnige Haarlemmerdijk. De winkel verkoopt zowel kleding als sieraden, interieur items en leuke dingetjes om te hebben of te geven. Het merk geeft een platform aan merken die allen eenzelfde soort kern in hun boodschap dragen: een bewuste vorm van shoppen waarbij er aandacht is voor duurzaamheid en liefde voor onze planeet. Deze boodschap komt terug in de naam, waar ‘Six’ staat voor de 6 tussenstappen waarmee iedereen verbonden is van elkaar. ‘Sons’ staat voor save our nature, zoals terugkomt in alles waar de winkel voor staat. De winkel is daarmee meer een platform voor mindfull shoppen en zeker de moeite waard om eens lekker doorheen te snuffelen.

Kunst & cultuur
Gevel+Kahmann+Gallery+2019
25
Adres
Lindengracht 35,
1015 KB Amsterdam

Kahmann Gallery

De Kahmann gallery aan de Lindengracht is de plek voor de fotografieliefhebber. Het tentoonstellingsprogramma van de galerie is een mix van vintage en hedendaagse fotografie en ze vertegenwoordigen het werk van bijna 30 nationaal en internationaal gerenommeerde fotografen. Daarnaast organiseren ze de fotografiebeurs Haute Photographie, dat jaarlijks plaatsvindt in februari in Rotterdam en in september in Amsterdam.

Uitgelicht; Maria Magdalena, een loft appartement in een voormalige pastorie

Uitgelicht; Maria Magdalena, een loft appartement in een voormalige pastorie

Galeries in de Binnenstad van Amsterdam

Galeries in de Binnenstad van Amsterdam

Noord in beweging

Noord in beweging

Recent bekeken
Overzicht alle woningen

Deze site maakt gebruik van cookies.

Voor welke cookies geef je akkoord?