Wonen in een voormalig pakhuis van circa 68 m² met loungeplek 4 m², aan een van de mooiste grachten van Amsterdam. Dit appartement op de eerste verdieping kijkt uit over de Brouwersgracht en biedt een verfijnde woonbeleving in het hart van de stad. De originele houten balken, het Franse balkon en de doordachte indeling geven de ruimte karakter en functionaliteit. Dankzij de zuidelijke ligging valt het licht rijkelijk naar binnen, terwijl de ligging aan de rustige kant van de gracht zorgt voor een aangenaam contrast met de levendigheid van de Jordaan om de hoek. Een verzorgd en praktisch appartement, ideaal als thuisbasis, pied-à-terre of stedelijke werkplek.

Rondleiding
Het appartement ligt in het midden van de Brouwersgracht, op een rustige plek in het centrum van Amsterdam. De woning bevindt zich op de eerste verdieping van een voormalig pakhuis en is via een gemeenschappelijke entree te bereiken. De woonkamer ligt aan de voorzijde en kijkt uit over de gracht. Dankzij het Franse balkon en de zuidelijke ligging is er veel lichtinval. De originele houten balken zijn behouden en geven het interieur een herkenbaar karakter. Er is ruimte voor een zithoek, eettafel en een verhoogd lounge gedeelte bij het raam. De keuken is halfopen en geplaatst aan de achterzijde. De opstelling is recht, met lichte kasten, een houten werkblad en een tegelvloer in zwart-wit. Er is voldoende kastruimte en inbouwapparatuur. De keuken sluit logisch aan op het woongedeelte, zonder volledig open te zijn. De slaapkamer ligt aan de rustige achterzijde van het appartement. Dankzij de wand van glasblokken is er daglicht, maar ook privacy in de slaapkamer. De kamer biedt ruimte voor een tweepersoonsbed, een kast en een werkplek. De houten vloer en zichtbare balken lopen hier door. De badkamer is direct bereikbaar vanuit de slaapkamer. Deze is voorzien van een inloopdouche, wastafelmeubel en zwevend toilet. In een aparte ruimte staan de wasmachine en droger opgesteld. De indeling is efficiënt en geschikt voor één of twee personen. Ook als pied-à-terre of compacte werkplek is dit een praktisch appartement. De locatie is gunstig: op loopafstand van de Noordermarkt, de Haarlemmerstraat en de Jordaan. In de directe omgeving zijn winkels, cafés en openbaar vervoer aanwezig. Centraal Station is binnen enkele minuten bereikbaar per fiets of te voet. Een verzorgd appartement op een centrale locatie, met uitzicht op de gracht en alle voorzieningen binnen handbereik.

Buurtgids
De Brouwersgracht ligt aan het begin van de Singel, Herengracht, Keizersgracht en Prinsengracht. Dit deel is dynamisch en vormt samen met de Herenmarkt een van de mooiste delen van de grachtengordel. De Brouwersgracht ligt op een mooi en gewild gedeelte ter hoogte van de Keizersgracht, zonder woonboten voor de deur. De rustige Herenmarkt direct om de hoek zorgt voor extra ruimte en minder drukte. De historische Brouwersgracht is een prachtige centrale locatie in een levendig deel van het centrum. Omringd door de Jordaan, Haarlemmerdijk, de Dam en het Centraal Station is hier altijd iets te beleven. Trendy winkels, gezellige cafés en restaurantjes zoals Toscanini, Duende, Café Winkel 43, Vrouw met de baard en Café Papeneiland zijn volop aanwezig. De Noordermarkt, met op maandag en zaterdag de biologische markt, ligt om de hoek. Ook het Westerpark met aanpalende natuurgebieden is vlakbij. Boodschappen kunt u doen bij Albert Heijn, Jumbo, Marqt en diverse speciaalzaken op de Herenstraat, Haarlemmerdijk en Haarlemmerstraat. In 2007 werd de Brouwersgracht niet voor niets door lezers van Het Parool uit 150 nominaties verkozen tot de mooiste straat van Amsterdam. De Brouwersgracht biedt de perfecte balans tussen rustig wonen en de gezelligheid van het centrum van Amsterdam.

Bijzonderheden
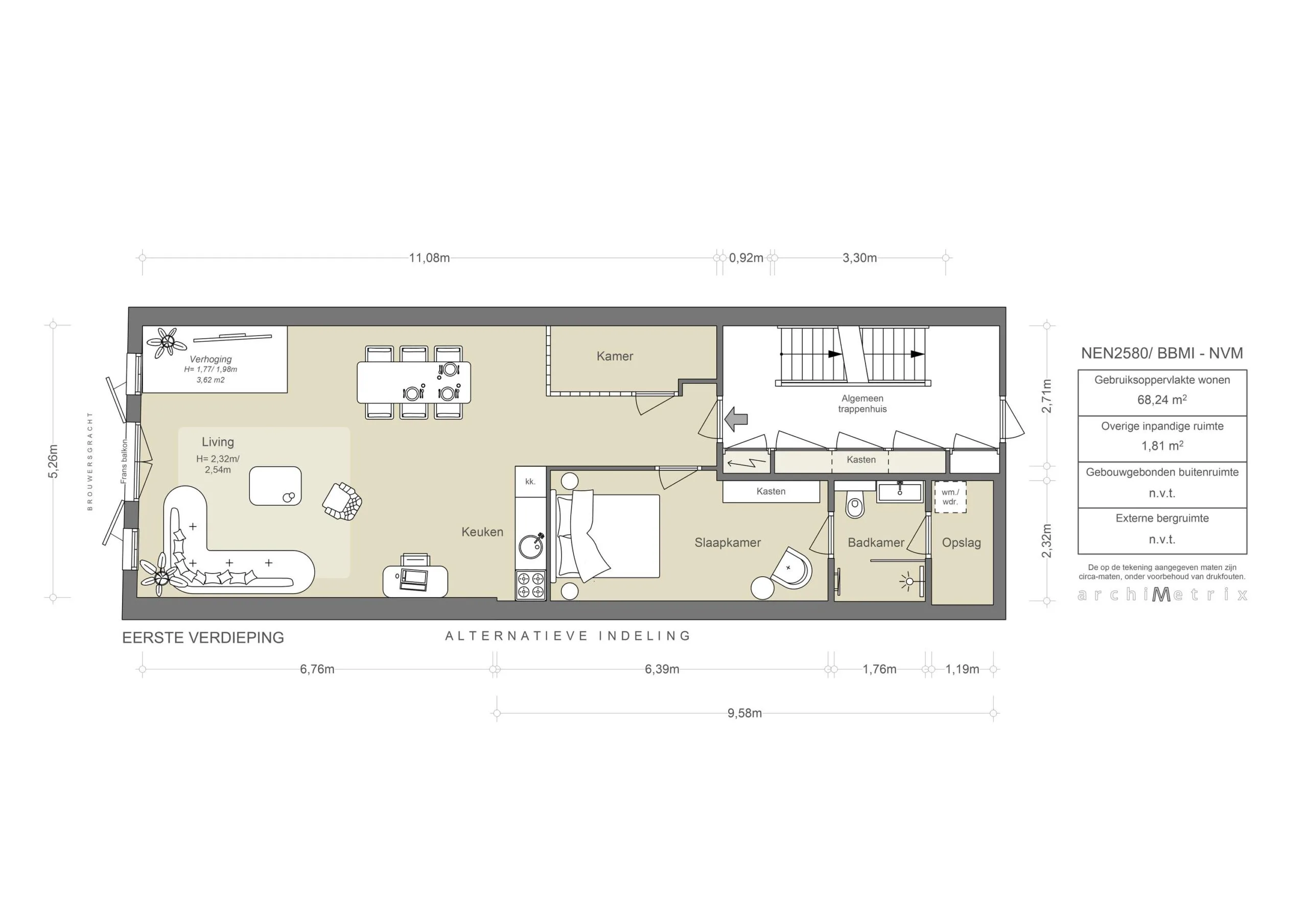
•    Gebruiksoppervlakte wonen 68 m²
•    Loungeplek van circa 4 m²
•    Frans balkon aan de voorzijde met zicht op de gracht
•    Gelegen op de eerste verdieping van een voormalig pakhuis
•    Servicekosten € 108,-  per maand
•    Voorschot elektra & gas € 147,- per maand
•    MJOP aanwezig
•    Niet bewonersclausule van toepassing
•    Gelegen op eigen grond
•    Rijksmonument
•    Onderdeel UNESCO Werelderfgoed
Kijk voor meer informatie op de website van het Nationaal Monumenten Portaal, Restauratiefonds en Rijksdienst voor het Cultureel Erfgoed met betrekking tot mogelijke subsidies.
 

AM106739-2104200-Brouwersgracht-182C,-Amsterdam-252837410

Pakhuis 182
Karakteristiek appartement in voormalig pakhuis aan de gracht.
Op een centrale en gewilde locatie in het midden van de Brouwersgracht ligt dit verzorgd afgewerkte appartement. De woning bevindt zich op de eerste verdieping van een voormalig pakhuis en combineert historische elementen met praktische indeling. Dankzij de grote ramen en het Franse balkon is er direct contact met de gracht, terwijl het interieur rust en overzicht biedt. De ligging — op loopafstand van de Noordermarkt, Haarlemmerstraat en Centraal Station, maakt dit een uitstekende uitvalsbasis in een van de meest geliefde buurten van de stad.


Jelle Mundt | Makelaar Broersma Wonen
Otte van Apeldoorn | Makelaar Broersma Wonen
AM106739-2104200-Brouwersgracht-182C,-Amsterdam-252837352
Designvisie

Het appartement maakt deel uit van een voormalig pakhuis aan de Brouwersgracht, herkenbaar aan de donkere bakstenen gevel en originele houten luiken. De architectonische opzet refereert aan het historische karakter van de Amsterdamse binnenstad, terwijl de interne indeling is afgestemd op eigentijdse woonwensen. Binnen vallen direct de zichtbare houten balken op, die de ruimte structuur en identiteit geven. Het lijnenspel van het hout is functioneel én beeldbepalend, en vormt een krachtig contrast met de lichte afwerking van wanden en vloeren. De toegepaste glasblokken tussen woon- en keukenruimte zorgen voor lichtinval en visuele verbinding, zonder de ruimtelijke indeling te verstoren. De opzet is overzichtelijk en efficiënt: de woonruimte bevindt zich aan de voorzijde, met dubbele deuren naar een Frans balkon aan de gracht. De slaap- en servicevertrekken zijn compact en logisch gegroepeerd aan de achterzijde. De oorspronkelijke structuur is in ere gehouden, maar met gevoel voor comfort en gebruiksgemak vertaald naar een modern appartement.

AM106739-2104200-Brouwersgracht-182C,-Amsterdam-252837350
AM106739-2104200-Brouwersgracht-182C,-Amsterdam-252837358
AM106739-2104200-Brouwersgracht-182C,-Amsterdam-252837370
AM106739-2104200-Brouwersgracht-182C,-Amsterdam-253449712
Wonen en koken

De woonruimte is gesitueerd aan de voorzijde van de woning, met uitzicht op de Brouwersgracht. Grote ramen en openslaande deuren naar het Franse balkon zorgen voor een directe relatie met buiten en dragen bij aan de lichtinval. De indeling is open, met ruimte voor een zithoek, een eetgedeelte en een loungeplek aan het raam. De houten balkenplafonds geven de ruimte een herkenbare structuur en benadrukken het historische karakter van het pand. De keuken sluit aan op het woongedeelte en is uitgevoerd in een rustige, neutrale kleurstelling. Het werkblad in hout contrasteert subtiel met de lichte kasten en de zwart-wit geblokte tegelvloer. De opstelling is praktisch en lineair, met voldoende werkruimte, kastruimte en inbouwapparatuur. De overgang tussen de woonruimte en de keuken is open, maar duidelijk gedefinieerd, wat bijdraagt aan het overzicht en gebruiksgemak.

AM106739-2104200-Brouwersgracht-182C,-Amsterdam-252837354
AM106739-2104200-Brouwersgracht-182C,-Amsterdam-252837374
AM106739-2104200-Brouwersgracht-182C,-Amsterdam-252837364
AM106739-2104200-Brouwersgracht-182C,-Amsterdam-252837360
AM106739-2104200-Brouwersgracht-182C,-Amsterdam-252837384
AM106739-2104200-Brouwersgracht-182C,-Amsterdam-252837382
AM106739-2104200-Brouwersgracht-182C,-Amsterdam-252837386
Slapen en baden

De slaapkamer is gelegen aan de rustige achterzijde van het appartement en biedt voldoende ruimte voor een tweepersoonsbed, een kledingkast en een werkplek. De ruimte wordt visueel gescheiden van de woonruimte door een wand van glazen bouwstenen, die zorgt voor daglichtinval terwijl de privacy behouden blijft. De originele houten balken zijn ook hier zichtbaar en versterken het historische karakter van het interieur. De badkamer is toegankelijk vanuit de slaapkamer en is uitgevoerd in een neutrale kleurstelling met lichte wandtegels en een donkergrijze tegelvloer. De ruimte is voorzien van een inloopdouche met glazen scheidingswand, een wastafelmeubel met opberglades en een spiegel. Aangrenzend is er een aparte ruimte met een opstelling voor wasmachine en droger, waardoor functionaliteit en comfort worden gecombineerd.

AM106739-2104200-Brouwersgracht-182C,-Amsterdam-252837390
AM106739-2104200-Brouwersgracht-182C,-Amsterdam-252837392
AM106739-2104200-Brouwersgracht-182C,-Amsterdam-252837388
AM106739-2104200-Brouwersgracht-182C,-Amsterdam-252837380
AM106739-2104200-Brouwersgracht-182C,-Amsterdam-252837366
AM106739-2104200-Brouwersgracht-182C,-Amsterdam-252837368
AM106739-2104200-Brouwersgracht-182C,-Amsterdam-252837410
De buitenruimte

Aan de voorzijde van het appartement bevindt zich een Frans balkon met dubbele openslaande deuren aan de grachtzijde. Deze buitenruimte biedt uitzicht op de levendige Brouwersgracht en draagt bij aan een directe verbinding met het buitenleven. Door de ligging op het zuiden is er veel daglicht in de woonruimte, en op zonnige dagen kan de gevel volledig worden geopend voor een open karakter en frisse lucht.

AM106739-2104200-Brouwersgracht-182C,-Amsterdam-252837404
AM106739-2104200-Brouwersgracht-182C,-Amsterdam-252837424
AM106739-2104200-Brouwersgracht-182C,-Amsterdam-252837430
Buurtgids

De Brouwersgracht ligt aan het begin van de Singel, Herengracht, Keizersgracht en Prinsengracht. Dit deel is dynamisch en vormt samen met de Herenmarkt een van de mooiste delen van de grachtengordel. De Brouwersgracht ligt op een mooi en gewild gedeelte ter hoogte van de Keizersgracht, zonder woonboten voor de deur. De rustige Herenmarkt direct om de hoek zorgt voor extra ruimte en minder drukte. De historische Brouwersgracht is een prachtige centrale locatie in een levendig deel van het centrum. Omringd door de Jordaan, Haarlemmerdijk, de Dam en het Centraal Station is hier altijd iets te beleven. Trendy winkels, gezellige cafés en restaurantjes zoals Toscanini, Duende, Café Winkel 43, Vrouw met de baard en Café Papeneiland zijn volop aanwezig. De Noordermarkt, met op maandag en zaterdag de biologische markt, ligt om de hoek. Ook het Westerpark met aanpalende natuurgebieden is vlakbij. Boodschappen kunt u doen bij Albert Heijn, Jumbo, Marqt en diverse speciaalzaken op de Herenstraat, Haarlemmerdijk en Haarlemmerstraat. In 2007 werd de Brouwersgracht niet voor niets door lezers van Het Parool uit 150 nominaties verkozen tot de mooiste straat van Amsterdam. De Brouwersgracht biedt de perfecte balans tussen rustig wonen en de gezelligheid van het centrum van Amsterdam.

Bereikbaarheid
Een centrale locatie met meerdere routes in en uit de stad, wat het makkelijk bereikbaar maakt. Via het Centraal Station en langs het IJ zijn de noordelijke, westelijke en noordelijke delen van de Ring eenvoudig te bereiken. Het Centraal Station, op loopafstand, is een belangrijk knooppunt voor de metro, buslijnen en (internationale) treinverbindingen. Met de fiets is de gehele stad bereikbaar.

Parkeergelegenheid
Parkeren is mogelijk via een vergunningenstelsel op de openbare weg (vergunningsgebied Centrum-2c).
Met een parkeervergunning voor Centrum-2c mag u parkeren in Centrum-2. Een parkeervergunning voor bewoners kost € 326,65 per 6 maanden. Momenteel is er voor dit vergunningsgebied een wachttijd van 25 maanden. Een tweede parkeervergunning is in dit gebied niet mogelijk. (Bron: Gemeente Amsterdam, november 2025.)

AM106739-2104200-Brouwersgracht-182C,-Amsterdam-252837418
Brouwersgracht 182 C-155
AM106739-2104200-Brouwersgracht-182C,-Amsterdam-252923402
AM106739-2104200-Brouwersgracht-182C,-Amsterdam-252923398
Kenmerken
Brouwersgracht 182C, Amsterdam
Vraagprijs
  • € 550.000 k.k.
Beschikbaarheid
  • In overleg
Vertrekken
  • 2 kamers
  • 1 slaapkamer
  • 1 badkamer
Onderhoud
  • Intern: Redelijk tot goed
  • Extern: Goed
Oppervlakten & Inhoud
  • Woonoppervlakte: 68 m²
  • Overige inpandige ruimte: 2 m²
Bouwjaar
  • 1625
Installaties
  • Frans balkon
  • Mechanische ventilatie
  • Natuurlijke ventilatie
  • TV kabel
Ligging
  • Aan rustige weg
  • Aan vaarwater
  • Aan water
  • In centrum
Parkeren
  • Betaald parkeren
  • Parkeervergunningen
Type verwarming
  • CV Ketel
Type warmwater
  • CV Ketel
Bestemming
  • Woonruimte
Eigendomssoort
  • Volle eigendom
Buitenruimte
  • Geen tuin
Kadastraal
  • Gemeente: Amsterdam
  • Sectie: L
  • Nummer: 7851
Duurzaamheid
  • Energielabel B
Soort
  • Appartement
  • Bovenwoning
Bijzonderheden
  • Erfgoed
  • Monument
Overige kenmerken

OZB ('25) € 342,73 per jaar
Rioolrecht ('25) € 185,20 per jaar
Servicekosten € 108,-  per maand
Voorschot elektra & gas € 147,- per maand
Gelegen op eigen grond

Plattegrond
Brouwersgracht 182C, Amsterdam
AM106739-2104200-Brouwersgracht-182C,-Amsterdam-250787578
AM106739-2104200-Brouwersgracht-182C,-Amsterdam-257018132
Documenten
Brouwersgracht 182C, Amsterdam
Locatie
Brouwersgracht 182C, Amsterdam
Boodschappen
de oliewinkel
01
Adres
Brouwersgracht 119,
1015 GD Amsterdam

De Oliewinkel

In 2016 opende de Oliewinkel aan de Brouwersgracht. De Oliewinkel is dé plek voor degenen die houden van lekker eten en kwaliteitsproducten. Het assortiment is samengesteld uit voornamelijk Mediterrane producten maar de nadruk ligt op olijfolie van kleine producten in Italië, Spanje, Griekenland en Frankrijk. In de winkel kan je de olie proeven zodat je zelf de lekkerste uit kan kiezen en mee kan nemen in een glazen fles die je weer opnieuw kan laten vullen.
Ook de rest van het assortiment is met zorg samengesteld. Naast verschillende heerlijke huisgemaakte pesto’s, tapenades en vinaigrettes, vind je bijvoorbeeld fantastische mosterd uit Nederland, België en Frankrijk in de schappen.
De Oliewinkel heeft bovendien verschillende soorten olijven, fantastisch tafelzuur en de lekkerste mayonaises en vinaigrettes op voorraad. In het midden van de winkel staat een tafel vol visconserven. Met name de conserven van het Spaanse merk Ortiz zijn goed vertegenwoordigd.

 

02
Adres
Lindengracht,
1015 JP Amsterdam

Lindengrachtmarkt

Als je al een appeltaart bij Winkel 43 op de Noodermarkt gegeten hebt, wandel dan even door naar de Lindenmarkt. Aan het begin vind je gelijk de heerlijke viskraam (de kibbeling of het broodje tonijnsalade zijn aanraders!) Maar niet alleen de vis, ook de notenspeciaalzaak Notjé is briljant, en het broodje Sabich van Abu Salie is er eentje die je absoluut niet mag missen.

deli_hompepage
03
Adres
Lindengracht 79,
1015 KD Amsterdam

Toscanini Deli

Naast het geweldige restaurant vind je Toscanini Deli, beroemd om de goddelijke kaneelbrioche, échte Italiaanse espresso, focaccia of  een broodje met verse producten zoals kaas, worst of ansjovis. Daarnaast verkopen ze ook avondmaaltijden met alle Italiaanse specialiteiten. Denk aan pasta, pastasauzen, maar ook vers gemaakte groente- vis- en vleesgerechten. Ook pizzameel, azijnen, biologische goede olijfolie en verschillende Italiaanse wijnen zijn hier te koop.

273204947_1071299630109303_3216789697958750572_n
275237523_1096139134292019_2600311377251223779_n
04
Adres
Noordermarkt,
1015 NA Amsterdam

Noordermarkt

Op maandagochtend en zaterdag kan je shoppen op de gezellige Noordermarkt. Van oorsprong is de Noordermarkt een potten, pannen en lapjes markt, waar men in de 17e eeuw vooral dagelijkse gebruiksvoorwerpen kocht. Vandaag de dag kan je er van alles kopen zoals antiek, sieraden, schilderijen, glas-en serviesgoed, boeken en prenten en veel vintage kleding. Op zaterdagochtend is er ook een biologische markt waar je verse biologische groenten, fruit, brood, kaas, kruiden, vis, honing en nog veel meer andere producten kunt kopen. De marktlui zijn soms nog ras Amsterdammers met een flink accent en een bord vol flauwe humor. Op geen één markt in Amsterdam vind je zo’n verscheidenheid aan producten, de markt heeft zoveel te bieden dat je er zomaar een hele dag rondstruint.

1015921_365183493604749_1058351331_o
05
Adres
Haarlemmerstraat 93,
1013 EM Amsterdam

Ibericus

Sinds 2012 vertegenwoordigt Ibericus de keuken van Spanje in de Nederlandse winkelstraten. Eenmaal binnen voelt het bij Ibericus alsof je je op het Iberische schiereiland begeeft. Overal hangen hammen met de alom bekende zwarte hoeven, de Pata Negra. Je kan hier naast vleesproducten ook andere Spaanse specialiteiten kopen, van broodjes en chorizo tot een heerlijk glaasje wijn. Als je op zoek bent naar authentiek Spaans eten kan je hier het beste terecht.

43624563_m-1
06
Adres
Goudsbloemstraat 76,
1015 JR Amsterdam

Slagerij Louman

Slagerij Louman is al sinds 1890 een begrip in Amsterdam en omstreken. Naast veel vaste omwonende klanten, komen veel mensen van buiten de stad speciaal voor Slagerij Louman voor een stukje vlees, andere vleeswaren of een ambachtelijk bereide worst. De slagerij is met gepaste trots al drie generaties in de familie. In hartje Jordaan kan je hier terecht voor kwaliteit, vakmanschap én de lekkerste gehaktballen.

jwo hoek
07
Adres
Tweede Goudsbloemdwarsstraat 1,
1015 JX Amsterdam

JWO Lekkernijen

Eten en drinken is lust en leven van de eigenaren van JWO. In het hartje van de Jordaan word je hier verwelkomd met echte Amsterdamse gezelligheid én lekkernijen. Je kunt er alle benodigdheden voor een heerlijke borrelplank kopen; van kaas en vleeswaren tot heerlijke rode wijn. Rond lunchtijd kan je hier een broodje bestellen aan de marmeren bar. Na een broodje grillworst van slagerij Louman met honingmosterdsaus en uiteraard een glas melk erbij, wil je nooit meer anders.

405081974_17867905413020752_6521648150883525543_n
Scherm­afbeelding 2024-01-10 om 13.57.03
08
Adres
Lindengracht 99,
1015 KD Amsterdam

SAINT-JEAN Deli

Bij SAINT-JEAN Deli, net tegenover de bakkerij, vind je zoete-en hartige lekkernijen, sandwiches en delicatessen voor thuis. Hier geen overdaad aan vegan zoetigheden, maar een mooie mix met lekkere koffie. Het lunchmenu biedt versgebakken ciabatta, belegde sandwiches en wekelijks wisselende gerechten. Voor zoetekauwen zijn er cinnamon buns, croissants en andere lekkernijen uit eigen keuken. Daarbij hebben ze een ruime keuze aan natuurwijnen. De flessen zijn te koop voor thuis of je kunt ter plekke van een glas wijn genieten.

Eten & drinken
Boek-Jordaan-1965
09
Adres
Prinsengracht 2,
1015 DV Amsterdam

Het Papeneiland

Het huidige pand van het café komt uit 1642. Aan het begin van de Prinsengracht bevond zich in de 17de eeuw op nummer 7 een katholieke schuilkerk en deze was via een tunnel verbonden met het pand op de hoek. De ingang van de tunnel bevindt zich nog altijd in de kelder van het café. ’T Papeneiland werd wereldnieuws toen Bill Clinton bij zijn bezoek aan Amsterdam de zelfgebakken appeltaart kwam proeven. Ga langs en beoordeel zelf.

441602528_1254855125493335_5971456061780795851_n
10
Adres
Lindengracht 31,
1015 KB Amsterdam

Enté

Een combinatie van een bruine kroeg en een restaurant. Dat was het uitgangspunt van Natalie Kouwen en Tim Werners.  Chef Joris van Dijk (o.a. voorheen Rijsel) kookt hier geen gemiddelde daghap maar eerder culinair comfortfood. Binnen of buiten aan de Lindegracht middenin de Jordaan eert je hier bijvoorbeeld en onder andere zelfgedraaide braadworst met piccalilly, knolselderij met salsa verde of een gebraiseerde konijnenpoot.

5fef6451-95cb-404d-8776-e67a2e5fb3dd
11
Adres
Haarlemmerdijk 44,
1013 JD Amsterdam

Café de Poort

Café de Poort is een gezellig buurtcafé aan de Haarlemmerdijk. Het is een bijzonder sfeervol café met veel aandacht voor authentieke details.

Schermafbeelding 2023-01-23 om 15.38.06
12
Adres
Noordermarkt 7,
1015 MV Amsterdam

Domenica

Domenica betekent Zondag in het Italiaans. DE dag om samen te komen en uitgebreid te tafelen, maar dat kan natuurlijk ook de rest van de week! Chef Flavio Carestia (vroeger werkzaam als chef bij Toscanini) kookt hier met super verse ingrediënten Italiaanse klassiekers, maar ook andere gerechten uit de Europese keuken. Ook de wijnkaart is van een buitengewone goede kwaliteit. De ligging van dit restaurant, aan de Noordermarkt (de voormalige locatie van Bordewijk), is natuurlijk onovertroffen.

357666000_565409709133614_3220415578358837435_n
13
Adres
Binnen Oranjestraat 14,
1013 JA Amsterdam

Small World Catering

De Australische eigenaar Sean Wainer opende Small World Catering eind jaren 90. Al het eten wordt ter plaatse bereid, van warme maaltijden tot taarten. Ze maken gebruik van dagelijks geleverde verse producten, olie en kazen. Het menu  bestaat uit warme en koude broodjes. Je kan je brood kiezen uit foccacia, ciabatta, bruin en gluten vrij brood. De toppings variëren van een klassieke pastrami met gesmolten kaas tot tonijn sashimi met zongedroogde tomaat.

363493845_1972781869741383_4382197113396841408_n
364272482_1318819462403968_7421299209956734309_n
14
Adres
Haarlemmerdijk 61,
1013 KB Amsterdam

Calisto

Calisto is gevestigd in een gezellig monumentaal pand en is zowel een restaurant als een boetiekhotel met 10 kamers gelegen in hartje Jordaan. Het gebouw heeft altijd dienstgedaan als hotel met een restaurant en verwelkomt al sinds de 17e eeuw mensen om te eten, te drinken en te verblijven. Restaurant Calisto is een trattoria-stijl restaurant waar de Romeinse chef-kok Stefano Orofino 'la cucina romana' naar Amsterdam brengt met seizoensgebonden hapjes, gerechten en pasta's. De gerechten kunnen worden gecombineerd met een glas of fles van de samengestelde wijnkaart met natuurlijke wijnen uit Italië, Frankrijk en daarbuiten. Een van de hoogtepunten is de zondagse brunch.

tosca-square-mm-1
dinerbon
15
Adres
Lindengracht 75,
1015 KD Amsterdam

Toscanini

Nadat Maud Moody 40 jaar geleden met Toscanini begon is het restaurant niet meer weg te denken uit de lijst van beste restaurants in Amsterdam. Het restaurant is ruim, gezellig en ook licht. Hier vind je een wisselende menukaart van hoge kwaliteit, een enorm uitgebreide wijnkaart en uitstekende service. Chef Leonardo Pacenti houdt ervan de gerechten te versimpelen, zonder in te boeten aan verfijning en smaak. Alleen de allerbeste ingrediënten, niet teveel mee gedaan, behalve goed bereid.

IMG_0917-scaled-e1581387393137
16
Adres
Noordermarkt 34,
1015 NA Amsterdam

Café Hegeraad

Café Hegeraad was tot begin 20e eeuw een klein café met een aansluitend woonhuis. Later zijn de glazen tussendeuren weggehaald. Het is een gezellige bar met typisch Hollandse keuken, koffie en zoete lekkernijen.

242169386_4162434750520584_8156400374067126363_n
17
Adres
Binnen Dommersstraat 15,
1013 HK Amsterdam

Toki

Achter de Haarlemmerdijk vind je Toki, ze serveren hier perfecte koffie gemaakt door gekwalificeerde barista’s die precies weten hoe ze de lekkerste flat whites, espresso’s en gewone koffies maken. Ook serveren ze hier heerlijk bananenbrood en zelfgemaakte Aziatisch getinte salades en broodjes. Het is minimalistisch ingericht maar heeft een gezellige sfeer met een divers publiek. Van mensen die lekker in hun eentje de krant lezen tot gezinnen of stellen, voor iedereen wat wils bij Toki.

304780495_484810383653892_8455702289174150848_n
18
Adres
Haarlemmerstraat 91,
1013 EL Amsterdam

De Blauwe Druif

Met zijn glas-in-lood ramen en gehaakte gordijntjes zijn de deuren van Café de Blauwe Druif al open sinds 1733. Het is gevestigd vlakbij het WestIndisch Huis. Schippers die werkten voor de WIC dronken afscheid-en verwelkomt-borrels in de Blauwe Druif.

web-images-Slider01_B
19
Adres
Buiten Brouwersstraat 19h,
1013 GJ Amsterdam

Café de Vrouw met de Baard

De Vrouw met de Baard - alleen de naam is reden genoeg om hier een keertje langs te wippen. Geheel met eigen merchandise, eigen sambal en soul kookboek én playlist weet het eethuis in het centrum een stempel te zetten op de Indisch/Molukse keuken. Ookal is de Rendang het gerecht waarvoor mensen van mijl en ver komen, ook de vegetarische alternatieven met jackfruit en aubergine zijn meer dan de moeite waard. De huiskamer-achtige sfeer geeft het geheel een echt familiegevoel, wat volgens de eigenaren zelf exact het doel is van soul- en comfortfood!

Schermafbeelding 2022-06-27 om 18.28.45
20
Adres
Lindengracht 158h,
1015 KK Amsterdam

SAINT-JEAN

Sinds kort bevindt zich in de Jordaan: Saint Jean. Toen de eigenaar Yann Pierre-Jean plant-based ging eten was hij erg teleurgesteld in de smaken van vegan gebak. Hij besloot vanuit huis te gaan bakken en dit te verkopen. Dit groeide uit tot zijn eigen plant-based bakkerij en koffiespeciaalzaak. Het is er altijd druk maar als je vroeg bent, kun je een van de kenmerkende cruffins scoren, gevuld met een huisgemaakte pistachecrème die goddelijk is.

Interieur
amsterdam_860x
21
Adres
Prinsengracht 12 HS,
1015 DV Amsterdam

Pompon

Al meer dan 30 jaar maken de bloemisten van Pompon op maat gemaakte boeketten. Niet zomaar boeketten maar van de mooiste kunstbloemen. Ze stoppen de “kunst” in kunstbloemen en creëren arrangementen die zo realistisch zijn dat je bijna vergeet dat ze voor altijd meegaan. Naast de prachtige boeketten kun je hier ook terecht voor een divers assortiment aan unieke vazen.

218608734_6463109070381616_757357937076898474_n
247864582_7138406816185168_9218306182338378760_n
22
Adres
Haarlemmerstraat 110,
1013 EW Amsterdam

Sukha

Sukha betekent 'joy of life' in het Sanskriet, en de vreugde zie je terug in het mooi ingerichte lichte pand aan de Haarlemmerstraat in Amsterdam. Het label, Atelier Sukha, maakt enkel gebruik van de puurste, meest natuurlijke materialen zoals wol, linnen, katoen, klei en kasjmier. Deze pure materialen zijn verwerkt in alle prachtige producten die de winkel aanbiedt: een assortiment van vrouwenkleding tot interieur en kunstvoorwerpen. Leuk feitje: een groot deel van de bijzondere items wordt gemaakt in Nepal.

5
23
Adres
Tweede Goudsbloemdwarsstraat 5-B,
1015 JX Amsterdam

Galerie Gaudium

Galerie Gaudium is gespecialiseerd in 20e-eeuws design van de meest iconische architecten en ontwerpers. De galerie bevindt zich in het hart van het prachtige Amsterdam, waar ze verschillende thematentoonstellingen presenteren van midcentury meubels gecombineerd met hedendaagse kunst. Thema's omvatten het werk van beroemde ontwerpers zoals Mathieu Matégot en Charlotte Perriand, of locatiegerichte tentoonstellingen zoals Deens, Italiaans of Japans design. Nieuwe tentoonstellingen worden aangekondigd via hun sociale media. De items in de tentoonstelling zijn te koop en beschikbaar in de online winkel.

Kunst & cultuur
Gevel+Kahmann+Gallery+2019
24
Adres
Lindengracht 35,
1015 KB Amsterdam

Kahmann Gallery

De Kahmann gallery aan de Lindengracht is de plek voor de fotografieliefhebber. Het tentoonstellingsprogramma van de galerie is een mix van vintage en hedendaagse fotografie en ze vertegenwoordigen het werk van bijna 30 nationaal en internationaal gerenommeerde fotografen. Daarnaast organiseren ze de fotografiebeurs Haute Photographie, dat jaarlijks plaatsvindt in februari in Rotterdam en in september in Amsterdam.

485A9340-2048×1446-1-1024×723
25
Adres
Lindengracht 148,
1015 KK Amsterdam

Kersgallery

In de Kersgallery vind je twee stromen moderne hedendaagse kunstwerken. Enerzijds kunstenaars die het theatrale en absurde van het dagelijks leven weergeven en anderzijds kunstenaars die middels abstract-impressionisme de natuur in al haar wonderbaarlijkheid laten zien. Voor Annelien Kers zijn veel kleur en een levendige sfeer de stuwende krachten achter de kunstwerken die in de Kersgallery worden tentoongesteld.

In Elias

In Elias

‘De Zonnehoek’, een architectonisch landhuis midden in de stad

‘De Zonnehoek’, een architectonisch landhuis midden in de stad

‘Heer Frederik, een met gevoel voor detail en functionaliteit tot een heerlijk en ruim getransformeerd gezinshuis op één van de fijnste plekken in Amsterdam.’

‘Heer Frederik, een met gevoel voor detail en functionaliteit tot een heerlijk en ruim getransformeerd gezinshuis op één van de fijnste plekken in Amsterdam.’

Onlangs bekeken
Bekijk het overzicht

Deze site maakt gebruik van cookies.

Voor welke cookies geef je akkoord?