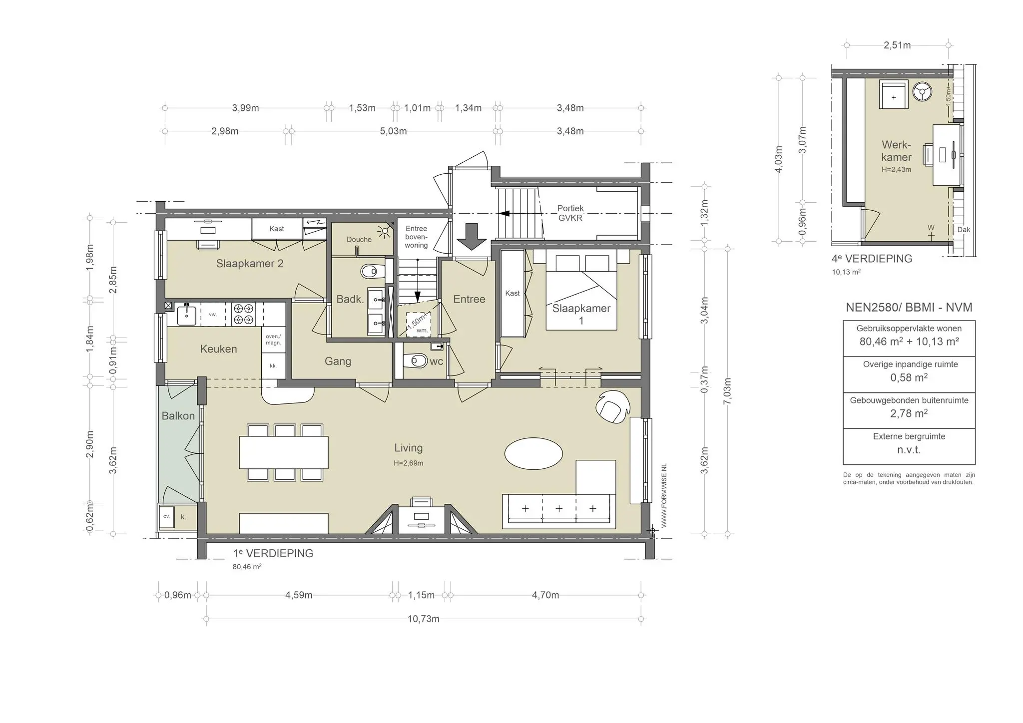
Bijzonder verfijnd, luxe en smaakvol appartement van circa 81 m² (eerste etage) en 10m² (vierde etage) in de geliefde Rivierenbuurt. De woning heeft twee ruime slaapkamers, een eigen entree en logeer/werkruimte op bovenste etage van het gebouw. Het geheel omvat 90,56 m² conform de NEN 2580 meetinstructie. De woning aan de Biesboschstraat is gelegen op een van de leukste straten van de Rivierenbuurt en op loopafstand van de gezellige Maasstraat. Het appartement is smaakvol verbouwd en heeft een rijke entree met een eigen voordeur. De verdeling van ruimten is in balans en in harmonie. De semi-open keuken, het ruime woongedeelte en de twee slaapvertrekken dragen bij aan het wooncomfort. Op de zolder is een eigen kamer die perfect te gebruiken is als logeerruimte of (thuis) werkplek.

Rondleiding
De stenen buitentrap geeft toegang tot de woning gelegen op de eerste etage. Er is een eigen entree, smaakvol gedetailleerde hal uitgevoerd met een granito vloer, garderobe en toilet. Het woongedeelte is verdeeld in een gezellige living aan de voorzijde, en een riant eetgedeelte met openslaande deuren naar het balkon. De luxe keuken is strak uitgevoerd met een vleugje hout en natuurlijk marmer. De ouderslaapkamer aan de voorzijde is ruim en heeft voldoende ruimte voor een grote (maatwerk) garderobekast. Aan de achterzijde van het appartement is een tweede slaap/werkkamer met een multifunctionele maatwerk kast. De badkamer is tijdloos en voorzien van een inloopdouche, toilet en dubbele wastafel. Op de zolderetage van het gebouw heeft het appartement een ruime zolderkamer die ideaal dienst kan doen als logeerruimte of (thuis) werkplek. Het geheel verkeert in een zeer goede staat van onderhoud en de fraaie visgraat parketvloer en het gebruik van natuurlijke materialen dragen bij aan de sfeervolle uitstraling van het appartement.

Buurtgids
De Biesboschstraat is gelegen in de geliefde Scheldebuurt nabij het Beatrixpark. De buurt wordt gekenmerkt door zijn groene karakter en brede straten. Op onder andere de Scheldestraat en Maasstraat is er een groot en divers aanbod aan winkels, zoals een viswinkel, hippe koffietentjes en een bakkerij. Voor meer ontspanning kan er in het Beatrixpark gerecreëerd worden. Mocht je willen genieten van een heerlijke lunch, dan zijn onder andere Feduzzi en Vinnies leuke opties in de buurt. Diverse sportscholen zijn in de nabije omgeving te vinden, en ook De Mirandabad is op enkele fietsminuten te bereiken.

Bijzonderheden
- Gebruiksoppervlakte wonen circa 91 m²
- Balkon van circa 3 m²
- Gelegen op erfpachtgrond van Gemeente Amsterdam. Huidig tijdvak tot 2052 is afgekocht.
- De overstap naar eeuwigdurende erfpacht is reeds tegen gunstige voorwaarden gedaan.
- Energielabel C
- Servicekosten VvE € 184,01 per maand
- Professionele VvE

AM105781-1939797-Biesboschstraat-42-1,-Amsterdam-204147941

Bies de Bosch
De woning aan de Biesboschstraat is gelegen aan een van de leukste straten van de Rivierenbuurt en op loopafstand van de gezellige Maasstraat. Het appartement is smaakvol verbouwd en heeft een rijke entree met een eigen voordeur. De verdeling van de ruimten is in balans en in harmonie. De semi-open keuken, het ruime woongedeelte en de twee slaapvertrekken dragen bij aan het wooncomfort. Op zolder is een eigen kamer die perfect te gebruiken is als logeerruimte of (thuis)werkplek.


Jelle Mundt | Makelaar Broersma Wonen
Ronald van de Bijl | Makelaar Broersma Wonen
AM105781-1939797-Biesboschstraat-42-1,-Amsterdam-204147877

Architectuur
De woning is gelegen in de populaire Rivierenbuurt in Amsterdam-Zuid. Deze wijk vormt een belangrijk onderdeel van de Nederlandse architectuurgeschiedenis en is ontstaan in de periode van 1920 tot 1935. De Rivierenbuurt, onderdeel van Amsterdam-Zuid, staat bekend om zijn unieke architectuur, sterk beïnvloed door de Amsterdamse School, een expressieve bouwstijl die populair was in de vroege 20e eeuw. Deze stijl kenmerkt zich door decoratieve bakstenen gevels, ronde vormen, torentjes en oog voor detail, vaak met ambachtelijke elementen zoals smeedijzeren ornamenten en kunstzinnige versieringen. Bekende architecten als Michel de Klerk, Cornelis van Eesteren, J.M. van der Mey en Piet Kramer waren actief betrokken bij het ontwerp en de functionaliteit van de buurt, onder begeleiding en toezicht van stedenbouwkundige Berlage (Plan Zuid). De woning aan de Biesboschstraat heeft een origineel kamer-en-suite-karakter, maar is in de loop van de tijd geoptimaliseerd met onder andere een open keuken, een grotere badkamer en een smaakvolle houten visgraatvloer. De huidige eigenaren hebben de entree verbeterd met gebruik van materialen die passen bij de kenmerkende bouwstijl uit die periode.

AM105781-1939797-Biesboschstraat-42-1,-Amsterdam-204147871
AM105781-1939797-Biesboschstraat-42-1,-Amsterdam-204147969
Biesboschstraat 42-1-52
AM105781-1939797-Biesboschstraat-42-1,-Amsterdam-204147993

Wonen en koken
Aan de achterzijde van het huis bevindt zich een semi-open keuken met ingebouwde apparatuur. De strakke vormgeving is smaakvol gecombineerd met hout en marmer. Het woongedeelte is verdeeld in een ruim eetgedeelte en een gezellige living aan de voorzijde. De fijne werkplek op de locatie van de voormalige en-suite scheidt de beide ruimten op elegante wijze.

 

Biesboschstraat 42-1-51
AM105781-1939797-Biesboschstraat-42-1,-Amsterdam-204148117
AM105781-1939797-Biesboschstraat-42-1,-Amsterdam-204147997
AM105781-1939797-Biesboschstraat-42-1,-Amsterdam-204148067
AM105781-1939797-Biesboschstraat-42-1,-Amsterdam-204147951
AM105781-1939797-Biesboschstraat-42-1,-Amsterdam-204147987
AM105781-1939797-Biesboschstraat-42-1,-Amsterdam-205260677

Slapen en baden
Aan de voorzijde is de grote slaapkamer met fraaie kasten. De tweede slaapkamer aan de achterzijde is voorzien van een multifunctionele bergkast en werkplek met ingebouwde spots. De badkamer is smaakvol uitgevoerd en beschikt over een ruime inloopdouche, toilet en dubbele wastafel. Op de zolderetage van het gebouw bevindt zich een logeerkamer met een wastafel.

 

 

AM105781-1939797-Biesboschstraat-42-1,-Amsterdam-204148171
AM105781-1939797-Biesboschstraat-42-1,-Amsterdam-204148163
AM105781-1939797-Biesboschstraat-42-1,-Amsterdam-204148145
AM105781-1939797-Biesboschstraat-42-1,-Amsterdam-204148131
AM105781-1939797-Biesboschstraat-42-1,-Amsterdam-205260681
AM105781-1939797-Biesboschstraat-42-1,-Amsterdam-205260657
AM105781-1939797-Biesboschstraat-42-1,-Amsterdam-204148111

Het balkon
De openslaande deuren aan de achterzijde van het appartement geven toegang tot het door groen omgeven balkon.

AM105781-1939797-Biesboschstraat-42-1,-Amsterdam-204148105
AM105781-1939797-Biesboschstraat-42-1,-Amsterdam-204147995
AM105781-1939797-Biesboschstraat-42-1,-Amsterdam-204147945
AM105781-1939797-Biesboschstraat-42-1,-Amsterdam-204147893
AM105781-1939797-Biesboschstraat-42-1,-Amsterdam-204147899

De Biesboschstraat is gelegen in de geliefde Scheldebuurt nabij het Beatrixpark. De buurt wordt gekenmerkt door zijn groene karakter en brede straten. Op onder andere de Scheldestraat en Maasstraat is er een groot en divers aanbod aan winkels, zoals een viswinkel, hippe koffietentjes en een bakkerij. Voor meer ontspanning kan er in het Beatrixpark gerecreëerd worden. Mocht je willen genieten van een heerlijke lunch, dan zijn onder andere Feduzzi en Vinnies leuke alternatieven in de buurt. Diverse sportscholen zijn in de nabije omgeving te vinden, en ook De Mirandabad is op enkele fietsminuten te bereiken.

Bereikbaarheid
De Biesboschstraat is gelegen in de geliefde Scheldebuurt nabij het Beatrixpark. De buurt wordt gekenmerkt door zijn groene karakter en brede straten. Op onder andere de Scheldestraat en Maasstraat is er een groot en divers aanbod aan winkels, zoals een viswinkel, hippe koffietentjes en een bakkerij. Voor meer ontspanning kan er in het Beatrixpark gerecreëerd worden. Mocht je willen genieten van een heerlijke lunch, dan zijn onder andere Feduzzi en Vinnies leuke alternatieven in de buurt. Diverse sportscholen zijn in de nabije omgeving te vinden, en ook De Mirandabad is op enkele fietsminuten te bereiken.

Parkeergelegenheid
Parkeren is mogelijk via een vergunningenstelsel op de openbare weg (vergunningsgebied Zuid 4.1 Rivierenbuurt Noord). Met een parkeervergunning voor Zuid 4.1 Rivierenbuurt Noord mag u parkeren in Zuid-3 en Zuid-4. Een parkeervergunning voor bewoners kost € 186,29 per 6 maanden. Momenteel is er voor dit vergunningsgebied een wachttijd van 1 maanden. Een tweede parkeervergunning is in dit gebied niet mogelijk. (Bron: Gemeente Amsterdam, oktober 2024).

1078 KC Haringvlietstraat 4-17

Wat de bewoners gaan missen
Toen we in 2018 voor het eerst dit huis binnenstapten, voelden we meteen: dit is het. Het licht, de originele details en de warme uitstraling gaven ons direct een gevoel van thuiskomen en maakten dat we onszelf hier nog vele jaren zagen wonen. Sindsdien hebben we met veel zorg en aandacht in het huis geïnvesteerd. Bij elke vernieuwing stonden duurzaamheid en kwaliteit centraal, steeds met oog voor detail en behoud van de authentieke sfeer. Het huis heeft hierdoor zijn karakter behouden, terwijl het nu nog meer comfort biedt. Wat dit huis bijzonder maakt, is de combinatie van de oorspronkelijke charme en de hoogwaardige materialen die we kozen voor renovaties. Zo hebben we bijvoorbeeld de hal ruimer gemaakt en voorzien van een prachtige terrazzo vloer, hierdoor de blikvanger geworden bij binnenkomst. Waar wij ook heel bij van worden is de open keuken die in samenwerking met onze vaste meubelmaker is voorzien van een zelfontworpen barretje met daarbij ruimte voor glaswerk. Deze keuken was al een heerlijke plek, maar is sindsdien uitgegroeid tot het hart van vele gezellige borrels en diners. De buurt biedt het beste van twee werelden: een fijne combinatie van levendigheid en rust. De Biesboschstraat ligt net in de luwte van de Maasstraat, en ’s nachts is het hier heerlijk stil. Het contact met de ons omringende buren is altijd erg fijn geweest, en dat zullen we zeker missen. Wat we ook zullen missen is ons vaste rondje door de buurt ter voorbereiding op een diner of borrel. Even langs groenteboer Vork voor verse groenten, slager Ter Wolde voor een goed stuk vlees, Vis op Zuid voor de vis, en patisserie Tout voor chocola. Het voelt hier echt als een dorp binnen de stad, met alles wat je nodig hebt op loopafstand. Het huis is voor ons een bijzondere plek waar veel dierbare herinneringen zijn ontstaan. We zullen het balkon met openslaande deuren en omliggend groen, de levendigheid van de buurt en warme sfeer in huis missen. We wensen nieuwe bewoners toe dat zij op dezelfde manier van het huis kunnen genieten.

AM105781-1939797-Biesboschstraat-42-1,-Amsterdam-204147887
AM105781-1939797-Biesboschstraat-42-1,-Amsterdam-204147909
Kenmerken
Biesboschstraat 42-1, Amsterdam
Vraagprijs
  • € 780.000 k.k.
Beschikbaarheid
  • In overleg
Vertrekken
  • 4 kamers
  • 3 slaapkamers
  • 1 badkamer
Onderhoud
  • Intern: Goed
  • Extern: Goed
Oppervlakten & Inhoud
  • Woonoppervlakte: 91 m²
  • Overige inpandige ruimte: 1 m²
  • Gebouwgebonden buitenruimte: 3 m²
Bouwjaar
  • 1930
Installaties
  • Natuurlijke ventilatie
  • TV kabel
Ligging
  • Aan rustige weg
  • In woonwijk
Parkeren
  • Betaald parkeren
  • Parkeervergunningen
Type verwarming
  • CV Ketel
Type warmwater
  • CV Ketel
Bestemming
  • Woonruimte
Eigendomssoort
  • Eigendom belast met erfpacht
Buitenruimte
  • Geen tuin
  • Balkon
Kadastraal
  • Gemeente: Amsterdam
  • Sectie: V
  • Nummer: 10340
Duurzaamheid
  • Dubbel glas
  • Energielabel C
Soort
  • Appartement
  • Bovenwoning
Welke woonlaag
  • 2e
Overige kenmerken

OZB ('24): € 309,54 per jaar
Rioolrecht ('24): € 166,85 per jaar
Servicekosten VvE € 172,- per maand

Plattegrond
Biesboschstraat 42-1, Amsterdam
AM105781-1939797-Biesboschstraat-42-1,-Amsterdam-205257995
Documenten
Biesboschstraat 42-1, Amsterdam
Locatie
Biesboschstraat 42-1, Amsterdam
Boodschappen
Schermafbeelding 2022-07-01 om 13.44.23
01
Adres
Maasstraat 77,
1078 HE Amsterdam

Patisserie Tout

Patisserie Tout maakt gebakjes, chocolade en macarons in een atelier aan de Maasstraat. De Patisserie is in 2007 opgezet door koppel Job en Kim van Berkel. Samen vormen zij het ideale team; Job is de smaakmaker en Kim is de gastvrouw. Dit ijzersterke duo heeft succes geboekt; Patisserie Tout is een van de bekendste smaakateliers in Amsterdam Zuid en verkoopt taart en gebak voor elke gelegenheid; bruidstaarten, verjaardagstaarten, en ook bedrijfstaarten. Geen grote taart nodig? Gelukkig kan ook een kleine gebakjes kopen, zoals éclairs of verrukkelijke macarons.

02
Adres
Maasstraat 65,
1078 HE Amsterdam

Slagerij Woorts

Slagerij Woorts opende al in 1964 de deuren van de winkel op de Maasstraat. Met het motto ‘niet teveel kruiden, niet teveel specerijen, gewoon dat wat hoort, en dat moet het product an sich het zelf doen’, is dit een typisch Amsterdamse slagerij waar de producten weinig poespas nodig hebben. De klanten komen van heinde en verre hier naartoe voor de ossenworst en filet americain. Er wordt hier met aandacht gewerkt zodat het dier krijgt wat het verdient.

Schermafbeelding 2022-07-01 om 14.03.31
03
Adres
Maasstraat 88,
1078 HM Amsterdam

Sophie Eats

Sophie Eats is een cateringbedrijf en deli-shop gevestigd in Amsterdam. Met kwalitatieve seizoen producten wordt er een balans naar smaken en textuur gezocht die het eten uniek en lekker maken. Het kleurrijke menu is geschikt voor iedere gelegenheid; van een zakenlunch of een mode-evenement tot een sfeervolle borrel. In het winkeltje kan je terecht voor koffie, een vers sapje of iets lekkers te eten voor onderweg.

personeel
04
Adres
Maasstraat 19,
1078 HB Amsterdam

Poelier Jonker

Poelier Jonker in de Maasstaat bestaat al meer dan 45 jaar. Anno 1974 is het bedrijf opgezet door de familie Jonker en is vandaag de dag nog steeds in het bezit van de familie. Bij Poelier Jonker is de missie "het behouden van het poeliers-ambacht" en dat is te zien! Het assortiment is zeer uitgebreid; van gegrilde producten tot heerlijke salades. Daarnaast verkopen ze hier ook maaltijden en ragouts. Alle producten van poelier Jonker zijn dagvers en van de beste kwaliteit.

IMG_1772_345x345@2x
05
Adres
Maasstraat 16,
1078 HJ Amsterdam

Grammes

Na maar liefst 10 jaar training in de beste patisserieën in Parijs en New York, brengt Chef Maxime Papin zijn kennis en technieken naar Amsterdam. Papin kreeg al vroeg de kneepjes van het vak met de paplepel kreeg ingegoten van zijn moeder toen hij opgroeide in Frankrijk, en zette dit voort in de culinaire wereld van New York. Zijn creaties zijn dan ook allesbehalve doorsnee; het befaamde cappuccino taartje maar ook chocolade croissants, koekjes en zelfgemaakte granola.

Schermafbeelding 2022-07-01 om 14.11.20
06
Adres
Scheldestraat 63,
1078 GH Amsterdam

Feduzzi

Feduzzi is opgezet in 1981 door de Italiaanse familie Feduzzi en was daarmee de allereerste Italiaanse delicatessenwinkel in Nederland. In 2001 werd het bedrijf overgenomen door Pjotr Meuwissen, die het liet uitgroeien tot een van de beste Italiaanse traitteurs in de stad. Je kunt bij Feduzzi terecht voor traditionele Italiaanse producten, zoals pasta's en wijnen en olijfolies, maar je kunt hier ook allerlei lekkere panini's halen; belegd met mozzarella, tonijnsalade of een van de andere heerlijke affetati, zoals beenham of coppa di parma.

180912402_1910769552415460_9061827722288066926_n
07
Adres
Scheldeplein 20,
1078 GR Amsterdam

Sab’s Deli

Bij Sab’s Deli ligt de focus op echt lekker, maar net wat specialer dan normaal, en uiteraard waar mogelijk duurzame en lokale producten. Al deze dingen samen vormen het merk ‘Sab’s. Ze verzorgen ook complete caterings van thuisdiners tot heerlijke borrelhapjes. Gelegen vlak naast de drukke RAI in Amsterdam Zuid, kan je ook altijd als je net de trein uitstapt even binnenlopen en kijken wat de pot schaft. Het zal niet tegenvallen!

08
Adres
Rijnstraat 91,
1079 GZ Amsterdam

Volendammer vishandel Jonk

Er zijn maar weinig mensen die zich in kunnen houden op het hoekje van de Lekstraat en de Rijnstraat. Want wat is er beter dan een bakje kibbeling voor de lunch? Volendammer vishandel Jonk is een ouderwetse vishandel voor verse vis, gebakken vis en belegde broodjes. Van een verse Hollandse Nieuwe haring, tot luxe zalm maaltijden: de verse aanvoer van vis van visleveranciers uit Volendam, Urk en IJmuiden stelt nooit teleur.

Eten & drinken
170048820_833091807392145_1141200956224978229_n
09
Adres
Maasstraat 72,
1078 HL Amsterdam

Hummus bistro d&a

Hummus Bistro D&A is opgezet door twee Israëlische vrouwen. Je kan er de hele dag door genieten van heerlijke gerechten. Begin je dag met shakshuka voor ontbijt, smul van traditionele hummus met verschillende toppings tijdens de lunch en proef vlees- of vegetarische gerechten bij het diner. Alles is mogelijk en kan de hele dag worden besteld. De traditionele hummus wordt geserveerd met pitabrood, salade en zuur, maar je kunt ook kiezen voor toppings zoals geroosterde groenten of langzaam gegaard vlees en verse kruiden.

8-Neapolitan-Pizza-Bar
10
Adres
Maasstraat 18,
1078 HK Amsterdam

Pizza Project

Het begon met een pizzaoven in hun achtertuin. Elke vrijdag stond er een rij voor hun woning met vrienden en familie die een pizza kwamen halen. Inmiddels hebben Idske en Bas twee vestigingen en een foodtruck. Het geheim? Het deeg 48 uur laten rijzen waardoor de bodem luchtig wordt en de pizza minder zwaar op de maag ligt. In het weekend worden er ook broodjes voor de lunch geserveerd.

47575457_760618610980339_644622428751790080_n
11
Adres
Maasstraat 12,
1078 HJ Amsterdam

Mangi Amore

Bij Mangi Amore kun je terecht voor heerlijke authentieke pizza's zoals die in de Italiaanse pizza-stad Napoli worden gegeten. Chefkok Cico is een Napolitaan in hart en nieren en weet als geen ander hoe hij de perfecte krokante pizza's kan maken. In 2014 won Cico zelfs de prijs voor het bakken van de beste pizza van Nederland! De ingrediënten die worden gebruikt -in Mangi Amore zoals de tomaten uit Campania en de fameuze buffelmozzerella - worden rechtstreeks uit Italië geïmporteerd. Breng een bezoekje aan deze pizzeria om écht Italië te proever, of zoals de naam van het restaurant zelf als zegt "eet mijn lief!"

restaurant-with-waitress-in-kimono-yamazato-restaurant-1
12
Adres
Ferdinand Bolstraat 333,
1072 LH Amsterdam

Yamazato (*)

Als de naam Yamazato je niets zegt, is het wellicht makkelijker om te denken aan het Okura hotel. In dit torenachtige hotel aan de Ferdinand Bolstraat zit restaurant Yamazato wat zoals de Michelin gids uitlegt het eerste traditionele kaiseki restaurant is dat in 2002 werd bekroond met een Michelin ster. De keuken is uitgebreid en toegankelijk voor zowel degene die al volop bekend zijn met authentiek Japans, als zij die net om de hoek komen kijken. Het personeel is vriendelijk en hoffelijk en brengt het op kunstwerk gelijkende eten met een elegante flair naar de tafels. De traditionele kaiseki keuken toont zich hier simpelweg van haar mooiste en puurste kant. Yamazato biedt daarmee een ingetogen moment waarin een topproduct als zeebaars en intense bereidingen rond miso en yuzu de hoofdrol spelen. De aangepaste saké’s dienen als kers op de taart!

Schermafbeelding 2022-07-01 om 15.54.18
13
Adres
Scheldestraat 45BG,
1078 GG Amsterdam

Vinnies

Bij Vinnies draait het om goed en eerlijk eten. Dit restaurant serveert ook all-day ontbijt en lunch. Je kunt bijvoorbeeld kiezen uit lekkere broodjes, gerechten met ei en zelfs Marokkaanse couscous of linzensoep. Als je liever komt voor een drankje ben je bij Vinnies ook op het juiste adres; ze zetten heerlijke koffie en maken ook de mooiste sappen en cocktails voor je klaar. Laat je liever de lunch bezorgen? Geen probleem: Vinnies verzorgt ook catering en heeft een eigen take-away lunchmenu.

14
Adres
Ferdinand Bolstraat 333,
1072 LH Amsterdam

Serre

Onder leiding van Chef de Cuisine Bram Postel biedt Serre een à-la-cartemenu en het Bibendum-menu, een drie- of viergangenervaring met uitstekende prijs-kwaliteitverhouding, bekroond met een Bib Gourmand door Michelin. Het menu weerspiegelt de internationale flair van Hotel Okura, met fusiongerechten en subtiele Oosterse invloeden.

downloadgram.org_559642553_122125719002959277_149688819253188505_n
15
Adres
Europaplein 67,
1078 GW Amsterdam

Toet Amsterdam

Toet is het mediterraan georiënteerde restaurant van het team achter Troef, dat met deze tweede zaak een eigen draai geeft aan mediterrane en Italiaanse smaken in Zuid-Amsterdam. De eigenaren — waaronder Niels Leijssenaar, Roderick Kunst, Willem Alberts en Raymond Plat — brengen dezelfde kwaliteit en gastvrijheid als hun Troef-concept, maar dan met frisse, mediterraanse invloeden op de kaart. Je vindt hier gerechten zoals kreeft met gnocchi of pizzeta met ’nduja en rivierkreeft, die de rijke smaken van de Middellandse Zee reflecteren.

Fried-rice-with-prawn-Teppanyaki-Restaurant-Sazanka
16
Adres
Ferdinand Bolstraat 333,
1072 LH Amsterdam

Teppanyaki Restaurant Sazanka

Sazanka is een teppanyaki restaurant in hotel Okura aan de Ferdinand bolstraat. Deze vorm van voedselbereiding uit de Japanse keuken draait om de teppan, een hete ijzeren plaat om op te bakken. In Sazanka is het dan ook mogelijk om met zijn allen aan te schuiven en de teppan-chef te aanschouwen terwijl deze de meest wonderlijke gerechten op de borden tovert. De gerechten bestaan uit zowel vis en vlees, maar er worden ook genoeg vegetarische gerechten aangeboden. Een bezoek aan Sazanka is gegarandeerd een uniek kijkje in de wereld van de Japanse chefs en de kooktechnieken die zij gebruiken om elk gerecht met Japanse precisie klaar te maken. Het klinkt bijna te mooi om waar te zijn, maar Sazanka maakt het simpele grillen op een plaat tot een verfijnd stukje ambachtswerk.

316696614_701301834540671_3708281314260770335_n
144520165_409011853732573_3822562762173474371_n
17
Adres
Europaplein 87,
1078 GZ Amsterdam

Scandinavian Embassy

Hier wordt ervaring en interesse in Scandinavisch eten en duurzaamheid geboden. Bij de Embassy traceren ze kleine, niche-leveranciers en gaan mee met de seizoenswisselingen van producten. De keuken biedt menu's voor een betaalbare prijs waarbij de gezonde en milieuvriendelijke wortels van de Scandinavische keuken behouden blijven. Bijzonder is dat ze ook koffie met eten combineren , waardoor, volgens hun zeggen, de algehele culinaire ervaring verbeterd wordt. Dit is hun tweede locatie. De ander locatie is in de Pijp gevestigd.

Chefs-table-Ciel-Bleu-Restaurant-Hotel-Okura-Amsterdam-1024×683
18
Adres
Ferdinand Bolstraat 333,
1072 LH Amsterdam

Ciel Bleu (**)

Het gastronomische restaurant Ciel Bleu zit in het welbekende Okura Hotel. Het hotel dat boven Amsterdam Zuid uittorent. Verwacht bij Ciel Bleu diner van hoog niveau. Niet alleen bevindt het restaurant zich op de 23e verdieping, de internationale keuken heeft inmiddels twee michelinsterren op zijn naam staan. Waan je in de seizoensgebonden gerechten bereid door chefs Onno Kokmeijer en Arjan Speelman en geef je over aan een puur zintuiglijke ervaring.

19
Adres
Scheldestraat 68,
1078 GM Amsterdam

Venetië IJS

Bij Venetië hebben ze ambachtelijk Italiaans ijs. Het zijn veelal Italiaanse mensen die de bolletjes scheppen en dat merk je dan ook aan hun charmante accent en hun vriendelijke glimlach. Het ijs is huisgemaakt en ze hebben veel verschillende smaken en heerlijke slagroom. Het interieur is authentiek Italiaans met genoeg zitplekken binnen. In de zomer staan er buiten tafels en stoelen op het terras om even rustig je ijsje op te eten.

Schermafbeelding 2022-05-18 om 15.54.00
20
Adres
Scheldeplein 4,
1078 GR Amsterdam

Visaandeschelde

Al meer dan 20 jaar een begrip in Amsterdam Zuid. Zoals ze zelf zeggen is hun culinaire passie het omtoveren van dagverse vis en seizoensproducten tot spannende en heerlijke gerechten. En daarmee is eigenlijk bijna alles al gezegd. Visaandeschelde ziet er chique uit, maar binnen is er geen te kort aan een goede portie Amsterdamse gezelligheid. Ook kan je in de zomer heerlijk op het terras zitten dat uitkijkt op het Scheldeplein.

175682_10152206008775179_210428518_o
21
Adres
Scheldeplein 22,
1072 GJ Amsterdam

Pisa IJs

Bij deze bescheiden ijswinkel bij Amsterdam RAI ben je aan het goede adres voor heerlijk Italiaans ijs. Sinds 1935 kun je hier terecht voor ambachtelijk ijs in meer dan 60 verschillende (wisselende) smaken per seizoen. Samen met ijswinkel Venetië ietsje verderop zijn deze twee ijswinkels dé plekken om goed schepijs in Amsterdam-Zuid te halen, vandaar ook de lange rijen in de zomer, maar het wachten waard en het gaat snel!

IMAGE@2x
home_slider_1
22
Adres
Rijnstraat 51,
1078 PZ Amsterdam

Yuan's Hot Pot

Hotpot is een van de populairste manieren om uit eten te gaan in China en maakt nu ook haar opmars in onze stad. Yuan's Hot Pot heeft ondertussen al haar derde locatie geopend in Amsterdam. Bij Yuan's Chuan Chuan Xiang serveren ze de authentieke smaak van Chengdu Hot Pot. Aan de bamboespiesjes worden verse ingrediënten zoals groenten, tahoe, vlees en vis gelegd.  Terwijl de hete pot blijft sudderen, worden spiesjes geplaatst in de pan en wordt er aan tafel gekookt. Hoe pittig de bouillon is, kun je naar eigen smaak invullen. Ook de verschillende smaken van de bouillon kan je zelf bepalen.

Hakata-Senpachi-dsc_0680-4000PX-1024×683
23
Adres
Wielingenstraat 16,
1078 KK Amsterdam

Hakata Senpachi

Prachtig Japans eten en de lekkerste saké's; dat is Hakata Senpachi. Dit restaurant aan de Wielingenstraat bestaat al langer dan 20 jaar en heeft in al die jaren altijd haar autentieke japanse sfeer behouden. De manier waarop restaurant is ontworpen doet het lijken op een echt Japans restaurant in de steegjes van Tokyo. Hakanta Senpachi is als Yakitori-ya - gespecialiseerd in het maken van gegrilde kipspiesjes, die in Japans Yakitori worden genoemd. De spiesen worden gegrild via traditionele kookwijzen op de houtskool grill. Deze grill staat overigens in het midden van het restaurant waardoor de ruimte altijd volhangt met de lekkerste aroma's.

269677160_3019126091687044_5049189900802153953_n
24
Adres
Lutmastraat 132,
1073 HB Amsterdam

Wijnbar paskamer

In het pand van een voormalige slagerij (dat zie je nog aan de witte tegels) in een rustige straat in de Pijp vind je Wijnbar Paskamer. Met allerlei bijzondere wijnen die zowel per glas als per fles te bestellen zijn is dit een fijne plek om wijn te drinken én om lekker te eten. Eigenaar Wouter Aalst is zo gepassioneerd over wijn dat hij zelfs een eigen wijnschool opstartte, de Amsterdam Wine Academy. De wijnkaart verandert regelmatig en er is voor ieder wat wils met ongeveer 150 wijnen, van natuurwijnen tot klassiek.

362634750_18375989929025619_8839326894748864225_n
25
Adres
Trompenburgstraat 111,
1079 TV Amsterdam

Café Remouillage

'Complex simplicity, is our way of less is more' staat op de website van deze hidden gem. Het woord café is enigszins misleidend. Jonathan Sparber (o.a Toscanini, Vermeer, Entrepot) zegt hier over; ‘Ik noem het café omdat ik wil dat mensen ook spontaan langs kunnen komen om een hapje te eten.' Jonathan kookt alles van het beest, niets wordt weggegooid. De wijnkaart met een mooie selectie producenten is voornamelijk biologisch.

Interview. Ontmoet de ondernemer, in deze serie Tanja Deurloo, geurexpert en parfumdesigner over geur in huis. “Je kunt geur als vierde dimensie zien in een ruimte.”

Interview. Ontmoet de ondernemer, in deze serie Tanja Deurloo, geurexpert en parfumdesigner over geur in huis. “Je kunt geur als vierde dimensie zien in een ruimte.”

Binnenkijken bij: architect Elwin van Heyningen

Binnenkijken bij: architect Elwin van Heyningen

Kunstagenda mei 2025

Kunstagenda mei 2025

Onlangs bekeken
Bekijk het overzicht

Deze site maakt gebruik van cookies.

Voor welke cookies geef je akkoord?