Aan de Wittenburgergracht 239, in het creatieve en levendige Wittenburg in Amsterdam, bevindt zich een karaktervol kantoorgebouw van circa 396 m², verdeeld over drie verdiepingen en een souterrain. De bestemming is kantoor en galerie, wat de ruimte flexibel inzetbaar maakt voor uiteenlopende professionele en creatieve doeleinden.

Het pand deed jarenlang dienst als atelier en woning van de gerenommeerde kunstenaar Aatje Veldhoen, bekend als pionier van de grafische kunst in Nederland en een toonaangevend figuur in de Amsterdamse kunstscene van de jaren zestig en zeventig.

De indeling biedt hoge plafonds, veel daglicht en een prettige balans tussen open werkvloeren en gesloten vergaderruimtes. Aan de achterzijde bevindt zich een groene, ruime tuin. Met eigen entree, pantry’s, sanitaire voorzieningen en een inspirerende omgeving met horeca en voorzieningen om de hoek, is dit een elegante en functionele werkplek op een rustige, maar stedelijke plek in het centrum.

Bijzonderheden
• rijk aan daglicht dankzij royale raampartijen
• ruime tuin en meerdere balkons
• historische en creatieve uitstraling
• eigen gebouw
 

Wittenburgergracht 239-25
Wittenburgergracht 239-10
Wittenburgergracht 239-28
Wittenburgergracht 239-5

Gebouw

De kantoorruimte is gebouwd in 1847 en is opgetrokken in een 19e-eeuwse stijl die kenmerkend is voor de ontwikkeling van Wittenburg in die periode. De gevel is symmetrisch vormgegeven, met hoge ramen en ingetogen details die passen bij de zakelijke en ambachtelijke functies die dit gebied toen vervulde. Het pand is onderdeel van de historische stadsuitbreiding op de Oostelijke Eilanden, waar wonen en werken al sinds de 17e eeuw hand in hand gaan.

Door de jaren heen is het gebouw meerdere malen aangepast en gemoderniseerd, met behoud van zijn oorspronkelijke karakter. Recentelijk  is het kantoorgebouw volledig gerenoveerd, waarbij originele elementen zoals de hoge plafonds en klassieke gevel bewaard zijn gebleven. Tegelijkertijd zijn eigentijdse voorzieningen toegevoegd om het comfort en de functionaliteit voor kantoorgebruik te optimaliseren.

Buitenruimte

De stadstuin van circa 76 m² is te betreden vanuit het souterrain en via het dakterras op de bel-etage; daarnaast beschikt de kantoorruimte over een tweede dakterras op de tweede verdieping en een balkon op de eerste verdieping.

Wittenburgergracht 239-13
Wittenburgergracht 239-38
Wittenburgergracht 239-37
Wittenburgergracht 239-39
Oostenburgergracht 75-7

Buurt + hotspots

Het gebouw bevindt zich op Wittenburg, aan de oostzijde van het centrum van Amsterdam, in het dynamische gebied dat bekendstaat als de Eilandenboulevard. Dit gebied, gevormd door Kattenburg, Wittenburg, Oostenburg en de Kadijken, fungeert als een aantrekkelijke verbindingsroute tussen het Kadijksplein en de levendige Czaar Peterbuurt.

De Eilandenboulevard ontwikkelt zich de laatste jaren tot een gewilde plek om te wonen en te werken, met een mix van historische charme en creatieve bedrijvigheid. In de directe omgeving zijn diverse toonaangevende organisaties gevestigd en bevinden zich bekende culturele iconen zoals Het Scheepvaartmuseum, dierentuin ARTIS, Museum ’t Kromhout en NEMO Science Museum East. Daarnaast biedt de buurt een breed aanbod aan eigentijdse horeca, waaronder Café Kadijk, Restaurant Entrepot, Bakers & Roasters en Brouwerij ’t IJ, evenals de voorzieningen en winkels in de nabijgelegen Czaar Peterstraat. Het Funenpark, Centraal Station en andere voorzieningen liggen op korte fiets- of loopafstand, waardoor dit een uitstekend ontsloten en inspirerende locatie is.

Bereikbaarheid

Het kantoorgebouw is uitstekend bereikbaar met zowel eigen vervoer als met openbaar vervoer. Vlak voor het kantoorgebouw is de bushalte voor lijn 22 welke een directe verbinden met Centraal Station biedt. Om de hoek aan het begin van de Czaar Peterstraat is de halte van tramlijn 7. Het Centraal Station is slechts zeven minuten fietsen. Met de auto is de ringweg Oost binnen 10 minuten bereikbaar via de S-114 (Piet Heintunnel). Ook de ringweg Noord is uitstekende bereikbaar via de S-116 (IJtunnel).

Parkeergelegenheid

Parkeren is mogelijk op de openbare weg middels betaling of een vergunningensysteem. Informatie over voorwaarden en mogelijkheden voor verkrijging van een (bedrijfs-)vergunning en eventuele wachttijd is op te vragen via de gemeente Amsterdam (amsterdam.nl). Ook is betaald parkeren mogelijk bij Q-Park Oostenburg. Vanaf het gebouw is het naar deze parkeergarage circa 10 minuten lopen via de Czaar Peterstraat.

Wittenburgergracht 239-1
Wittenburgergracht 239-32
Wittenburgergracht 239-35
Wittenburgergracht 239-11
Wittenburgergracht 239-8
Wittenburgergracht 239-30
Wittenburgergracht 239-18.1
Kenmerken
Wittenburgergracht 239, Amsterdam
Overige kenmerken

Oppervlakte 
De totale oppervlakte bedraagt 395,9 m² VVO kantoorruimte en is als volgt verdeeld:

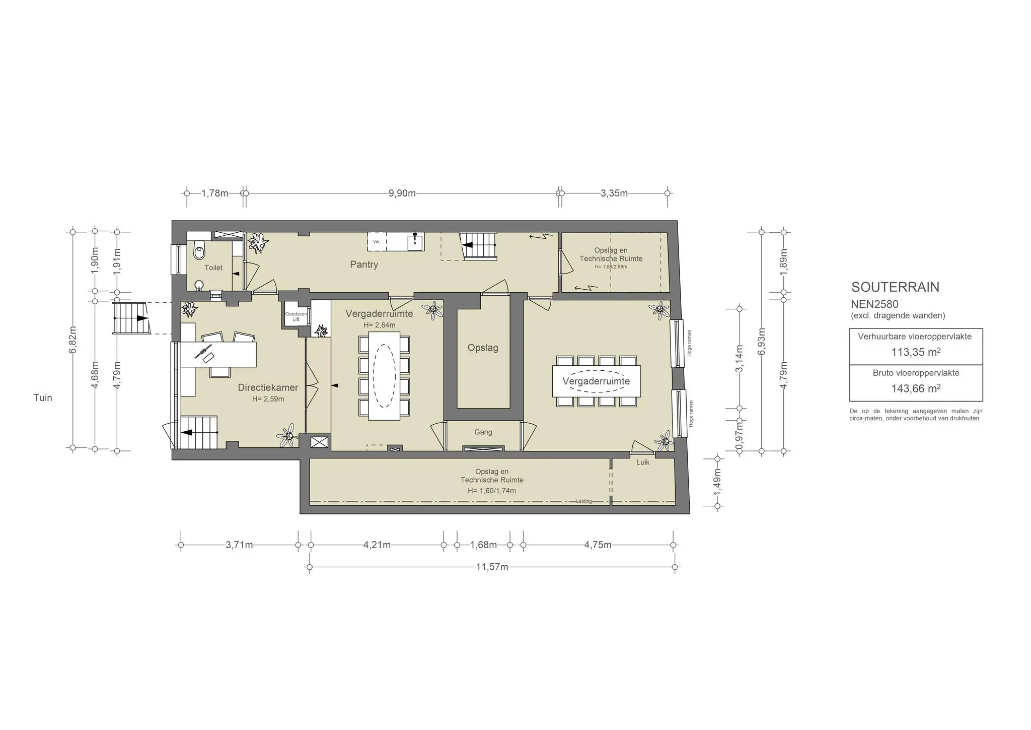
•    souterrain: 113,35 m² VVO
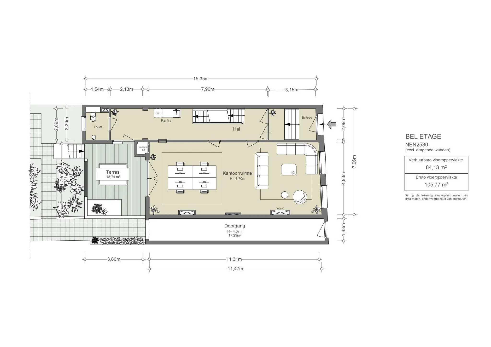
•    bel etage: 84,13 m² VVO
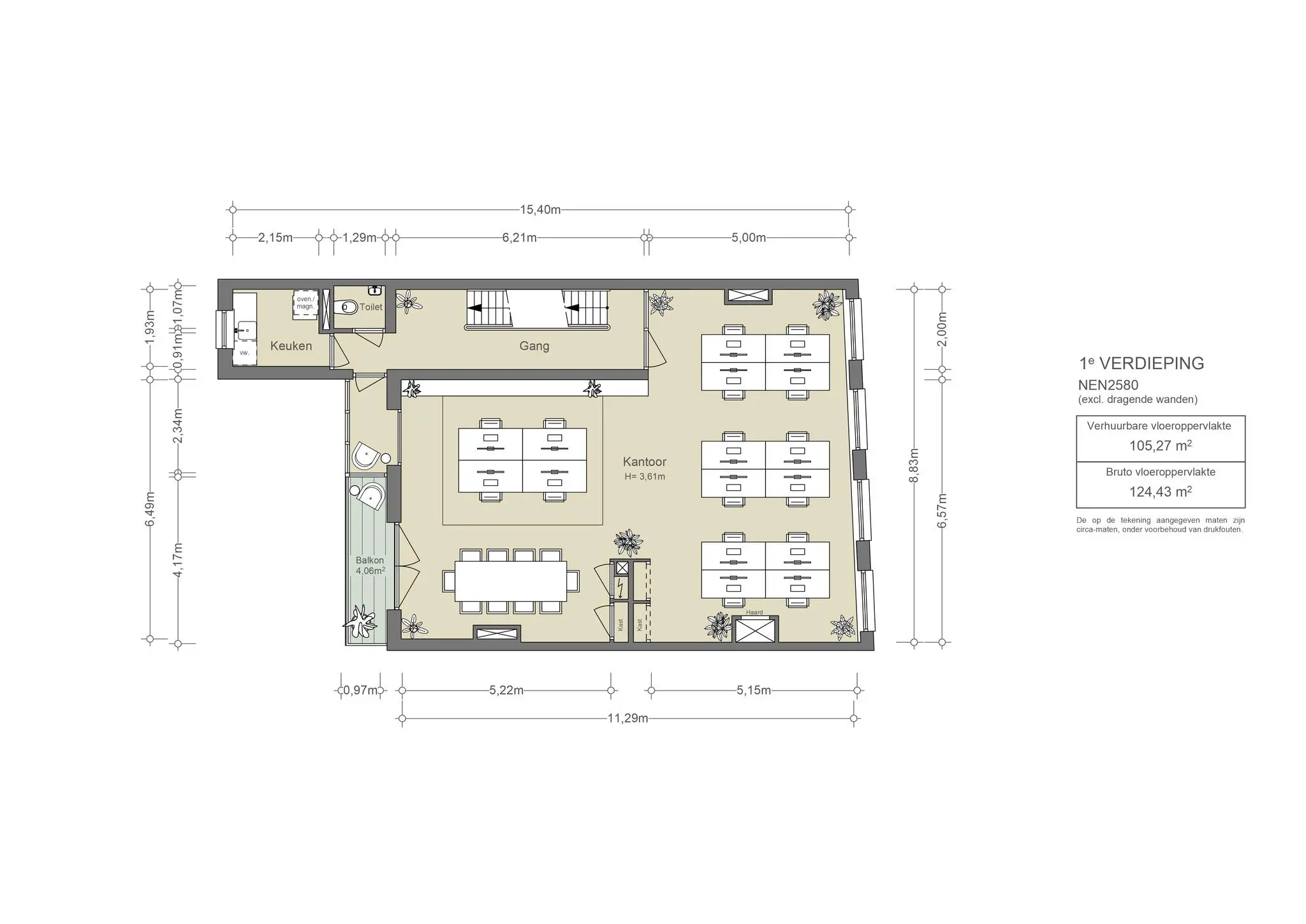
•    eerste verdieping: 105,27 m² VVO
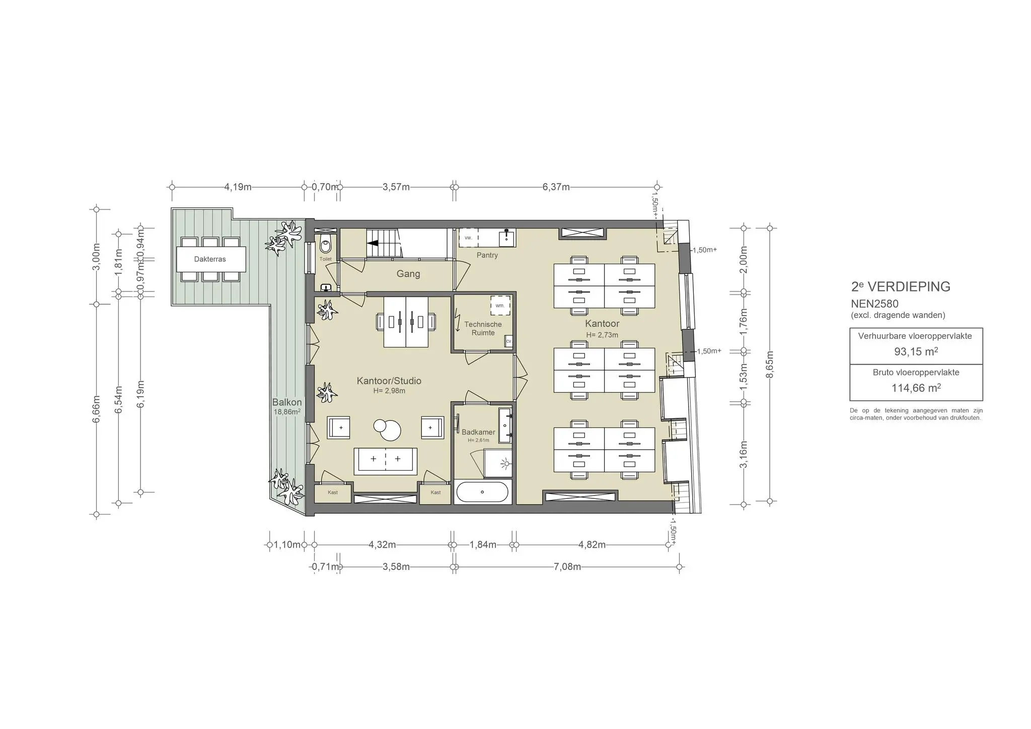
•    tweede verdieping: 93,15 m² VVO

Tevens beschikt de kantoorruimte over een tuin van circa 76 m², een dakterras op de bel-etage van circa 18 m², een balkon op de eerste verdieping van circa 4 m² en een dakterras op de tweede verdieping van circa 18 m².

Opleveringsniveau
Het kantoorgebouw wordt opgeleverd, in huidige staat, met onder andere de volgende voorzieningen:

•    eigen entree
•    parketvloeren
•    verlichtingsarmaturen en inbouwarmaturen
•    diverse sanitaire groepen
•    diverse keukens / pantry’s
•    centrale verwarming middels radiatoren
•    diverse buitenruimtes
•    enkele vergaderkamers
•    databekabeling
•    eigen internetverbinding
•    eigen tuin

Huurprijs
€ 300,- per m² per jaar te vermeerderen met omzetbelasting.

Servicekosten
Huurder dient zelf contracten af te sluiten met de betreffende leveranciers voor de levering van gas/water/elektra en eventuele overige voorzieningen.

Bestemming
Publiek-/privaatrechtelijk is de bestemming kantoorruimte van toepassing, echter enkel in de eerste en tweede bouwlaag. 

Monumentale status 
Niet van toepassing.

Energielabelklasse
Voor dit object geldt energielabelklasse B.

Betalingsverplichting
Per kwartaal bij vooruitbetaling te voldoen.

Huurtermijn
Vijf jaar met aansluitende verlengingsperioden van vijf jaar.
Afwijkende huurtermijnen zijn in overleg met verhuurder bespreekbaar.

Huuringangsdatum
In overleg.

Huurprijsindexering
Jaarlijks, voor het eerst 1 (één) jaar na huuringangsdatum, vindt indexering plaats van de huurprijs op basis van de wijziging van het Consumentenprijsindexcijfer (CPI), reeks CPI Alle huishoudens (2015 =100), als gepubliceerd door het Centraal Bureau voor de Statistiek (CBS).

Zekerheidsstelling
Huurder dient een waarborgsom te stellen ter grootte van tenminste drie maanden huur en servicekosten, beide te vermeerderen met btw.

Huurvoorwaarden
Op basis van de Modelhuurovereenkomst kantoorruimte en andere bedrijfsruimte in de zin van artikel 7:230a BW, zoals opgesteld door de Raad voor Onroerende Zaken (R.O.Z. model februari 2015), met de bijbehorende algemene bepalingen, eventueel door verhuurder aan te vullen met bijzondere bepalingen.

Btw-plicht
Huurder verklaart dat hij voor tenminste 90% met omzetbelasting belaste prestaties verricht. Indien huurder op enig moment niet meer aan dit criterium voldoet, zal er van rechtswege sprake zijn van omzetbelasting vrijgestelde verhuur. Alsdan wordt de overeengekomen kale huurprijs, exclusief omzetbelasting, zodanig verhoogd dat het voor verhuurder ontstane financiële nadeel volledig door huurder wordt gecompenseerd.

Overige bepalingen
Wittenburgergracht 239, Amsterdam

Voorbehoud Broersma Werken
Deze vrijblijvende informatie is met zorgvuldigheid samengesteld. Voor de juistheid hiervan wordt door Broersma Werken geen aansprakelijkheid aanvaard, noch kan hieraan enig recht worden ontleend.

Deze informatie is niet bedoeld als aanbod. Door aanvaarding van de vermelde condities of het uitbrengen van een, daarvan al dan niet afwijkend, aanbod worden Broersma Werken noch haar opdrachtgevers op enige wijze gebonden, ook niet tot het doen van enig tegenbod. Broersma Werken treedt uitdrukkelijk slechts op als adviseur van haar opdrachtgever en niet als gevolmachtigde namens haar. Voorts geldt dat tussen partijen eerst juridisch binding kan ontstaan nadat definitieve overeenstemming is bereikt ter zake van al hetgeen zij met elkaar beogen te regelen en deze overeenstemming bovendien is vastgelegd in een schriftelijke en namens beide partijen rechtsgeldig ondertekende overeenkomst, waarbij artikel 3:39 BW overeenkomstige toepassing vindt.

Broersma Werken is een besloten vennootschap, ingeschreven bij de Kamer van Koophandel onder nummer 34121232. Broersma Werken verleent al haar diensten op grond van de Algemene Voorwaarden NVM voor professionele opdrachtgevers Versie februari 2023. De algemene voorwaarden zijn van toepassing op alle opdrachten die aan haar zijn of worden verstrekt en/of op de levering van al haar diensten en producten aan wie dan ook. De algemene voorwaarden worden op verzoek toegezonden en zijn tevens te downloaden op broersma.nl. De aansprakelijkheid van Broersma Werken is in alle omstandigheden en jegens eenieder beperkt tot het bedrag dat door de beroepsaansprakelijkheidsverzekering van Broersma Werken in het desbetreffende geval wordt uitgekeerd.

Toelichtingsclausule NEN2580
De Meetinstructie is gebaseerd op de NEN2580. De Meetinstructie is bedoeld om een meer eenduidige manier van meten toe te passen voor het geven van een indicatie van de (bruto vloer- /verhuurbaar vloer-/gebruiks-) oppervlakte. De Meetinstructie sluit verschillen in meetuitkomsten niet volledig uit, door bijvoorbeeld interpretatieverschillen, afrondingen of beperkingen bij het uitvoeren van de meting.

Plattegrond
Wittenburgergracht 239, Amsterdam
B103602-2020727-Wittenburgergracht-239,-Amsterdam-238700956
B103602-2020727-Wittenburgergracht-239,-Amsterdam-238700966
B103602-2020727-Wittenburgergracht-239,-Amsterdam-238700976
B103602-2020727-Wittenburgergracht-239,-Amsterdam-238700982
B103602-2020727-Wittenburgergracht-239,-Amsterdam-238700992
Documenten
Wittenburgergracht 239, Amsterdam
"][/dflip]
Locatie
Wittenburgergracht 239, Amsterdam
Boodschappen
63190709_2245453812169463_1319492671491801088_n
01
Adres
Wittenburgergracht 303,
1018 ZL Amsterdam

Frank's Smokehouse

Al meer dan twintig jaar bevindt Frank’s rokerij zich in Amsterdam, nog op dezelfde plek waar de eerste echte winkel werd geopend op de Wittenburgergracht. Al in 1984 leerde Frank forel roken in Zweden en zo werd hij gegrepen door de simpele oervorm van conserveren. Toen hij hier in Amsterdam mee verderging in zijn achtertuin werden eerst vrienden zijn klant en groeide zo uit tot een gevestigde rokerij. Als je erlangs loopt kan je de geur van de ambachtelijke gerookte vis en vlees al buiten ruiken.

241491943_1718774814985933_3325818017112894796_n
269905089_1802052389991508_8614231142031174020_n
02
Adres
Plantage Kerklaan 41,
1018 CV Amsterdam

Borrl Kitchen Deli

Het team van Borrl Kitchen heeft nu ook Borrl Kitchen Deli waar je restaurantkwaliteit borrelhappen, brood en andere delicatessen kunt halen. Ook leuk: ze hebben ook een goede Borrl Box, allerlei verschillende hapjes voor thuis. Maar los kan je al deze delicatessen ook gewoon kopen. De homemade hummus is fantastisch maar het kaas- en wijn assortiment is ook geweldig. Afhalen of aan de deur gebracht, Borrl moet je een keer proeven!

Schermafbeelding 2022-06-20 om 17.29.41
03
Adres
Czaar Peterstraat 118,
1018 PT Amsterdam

Enoteca Sprezzatura

Sprezzatura betekent in het Italiaans: virtuositeit, iets met speels gemak doen zodat de overtuigingskracht er vanaf spat. Enoteca Sprezzatura importeert bijzondere veelal biologische Italiaanse wijnen. De inkoop wordt gedaan bij kleinschalige wijnmakers vanuit heel Italië. Onder de naam Verkerk import wordt al meer dan 26 jaar aan de horeca geleverd. Een ware Italië-specialist dus!

CP_DSC2689
04
Adres
Czaar Peterstraat 137,
1018 PH Amsterdam

Fromagerie Abraham Kef

Bij Fromagerie Abraham Kef haal je de lekkerste kazen. Al in 1953 opende Abraham Kef een winkel in het centrum van Amsterdam. Als echte kaasliefhebber met buitengewone verhalen, bleek Kef een pionier op het gebied van kaas en liet hij een blijvende indruk achter.

Kunst & cultuur
2020 galeriefoto
05
Adres
Nieuwevaart 200,
1018 ZN Amsterdam

Galerie Franzis Engels

Op een steenworp afstand van het Centraal Station kun je Galerie Franzis Engels vinden. Een galerie voor hedendaagse kunst met wel vier verdiepingen. Op de bovenste verdieping worden zowel solo- als thematische tentoonstellingen gehouden. De drie benedenverdiepingen en de tuin tonen frisse en verrassende werken uit het galeriearchief van nationale en internationale kunstenaars.

© Twycer / www.twycer.nl
06
Adres
Kattenburgerplein 1,
1018 KK Amsterdam

Scheepvaartmuseum

Ontdek de scheepvaart en de maritieme geschiedenis van Nederland in het scheepvaartmuseum. Het museum ligt in het water aan het oosterdok, vroeger werd dit gebouw gebruikt als pakhuis voor de opslag van scheepsuitrusting en kanonnen toen Amsterdam nog de grootste haven ter wereld was. De collectie bevat schilderijen, scheepsmodellen, kaarten en wapens. Het is het op een na grootste maritieme museum ter wereld. In het water voor het museum ligt een replica van het VOC-schip ‘Amsterdam’. In de tongewelven onder de binnenplaats werden vroeger duizenden liters water opgeslagen om de scheepsliederen te voorzien van water onderweg.

artis_hoofdentree_ingang_adelaars_r_1920x1080.jpg__1920x0_q85_subject_location-1023,731_subsampling-2
07
Adres
Plantage Kerklaan 38-40,
1018 CZ Amsterdam

Artis

Artis is de oudste dierentuin van Nederland, het werd in 1838 opgericht met het doel om de natuur dichter bij de mensen te brengen. Het begon klein als een tuin met vijver en een wintertuin en in de loop der jaren kwamen er steeds meer gebouwen dieren en bomen bij. Vandaag de dag zijn er meer dan 900 verschillende diersoorten te bewonderen waaronder ook enkele bijzondere diersoorten zoals de algazellen, de witstaartgnoes en de margay. Je kan een hele dag zoet zijn in Artis. Waan je bijvoorbeeld in een tropisch klimaat, bewonder bijzondere vissensoorten en lach om de aapjes op de apenrots.

DD403232
08
Adres
Oosterdok 2,
1011 VX Amsterdam

Nemo

Museum Nemo is misschien wel het verrassendste en leukste museum dat Amsterdam te bieden heeft. Nemo is een sciencemuseum maar op een hele speelse manier. Je kan allerlei natuurkundige en scheikundige dingen uittesten, zelf doen, bekijken en een hele boel leren. Voor jong en oud is dit museum een groot plezier. Tip: Ga in de zomer op het dak van Nemo wat drinken en kijk uit over het IJ en Amsterdam!

Eten & drinken
Schermafbeelding 2023-10-04 om 13.44.41
09
Adres
Kattenburgerstraat 5,
1018 JA Amsterdam

Pension Homeland

Pension Homeland biedt niet alleen een heerlijke overnachtingsplek in het centrum, maar ook verrukkelijk eten. Chef Jerrey staat bekend om zijn zelfgemaakte charcuterie, zoals salami's. Geniet van kraakverse vis van De Goede Vissers en hun eigen bier, zoals de Jerrey triple. Het restaurant heeft een retro lunchroom/living room sfeer met een cool esthetisch tintje. Met uitzicht op het marineterrein via grote glasramen voelt het als een stadsontsnapping met een Amsterdams accent. Ze serveren royale porties van heerlijke klassieke gerechten en brouwen hun eigen bier, naast een selectie natuurlijke en klassieke wijnen.

downloadgram.org_590429894_17888291427401226_9085664243585121965_n
10
Adres
Czaar Peterstraat 21,
1018 NX Amsterdam

Restaurant Fyr

Executive Chef en eigenaar Elian Muller opende Fyr in de Czaar Peterstraat na jaren ervaring bij restaurant Vinkeles, waar hij zijn vakmanschap verder verfijnde. Zijn visie voor Fyr is geïnspireerd op de vier elementen — water, aarde, lucht en vuur — die samen de basis vormen van de seizoensgebonden gerechten. Muller werkt veel met lokale producten en technieken zoals koken op houtvuur, waarvoor de grote houtoven in de keuken symbool staat. De menu’s zijn zorgvuldig opgebouwd en weerspiegelen zijn liefde voor robuuste smaken en elegante presentatie. De sfeer is warm en gastvrij  met een modern interieur.

27578607_578172719204037_6017695974258900992_n
11
Adres
Zeeburgerstraat 4,
1018 AG Amsterdam

Burritos Anonymous

Bij Burritos Anonymous geloven ze dat geluk door de maag gaat.De onweerstaanbare creaties combineren verse groenten, smakelijke rijst, knapperige bonen, gesmolten kaas en een zachte bloemtortilla. Maar dat is niet alles! Een complete burrito-maaltijd omvat ook tortillachips met zure room en hete saus, altijd inbegrepen. Kies uit kip, rund, gehakt, pulled pork of een vegetarische variant. Bezoek de winkel voor deze smaakexplosie en ontdek ook de heerlijke hete sauzen en zelfgemaakte guacamole.

12
Adres
Kadijksplein 9,
1018 AC Amsterdam

A Tavola

Italiaanse keuken met gerechten gebaseerd op klassieke familierecepten. De wortels van A Tavola liggen in Palomonte, een klein dorpje in de provincie Salerno, een vruchtbaar gebied doordat het op vulkanische grond ligt. Ze koken hier op gevoel, volgens de koks hier is dat de basis voor puur, traditioneel Italiaans eten. Ambacht en kwaliteit staan voorop en dat proef je. Verse producten, met aandacht bereid.

Brouwerij ‘t IJ
13
Adres
Funenkade 7,
1018 AL Amsterdam

Brouwerij 't IJ

Brouwerij 't IJ is een bier brouwerij gevestigd in een oud badhuis en is goed te herkennen, omdat deze naast de molen De Gooyer ligt. Ze maken speciaalbieren en deze zijn gewoon gemaakt van Amsterdams leidingwater. Het begon ooit als een kleinschalige ambachtelijke bierbrouwerij met twee soorten bier, maar inmiddels heeft het merk ook bekendheid gekregen buiten Amsterdam en heeft het assortiment zich flink uitgebreid. Proef bijvoorbeeld de bekende 'natte', 'zatte' en IJwit of probeer één van de seizoenbieren; zoals 'PaasIJ' of 'IJndejaars'. De brouwerij heeft ook een proeflokaal en een groot zonnig terras met een aanlegsteiger.

Schermafbeelding 2022-06-27 om 17.36.31
Schermafbeelding 2022-06-27 om 17.36.48
14
Adres
Entrepotdok 8,
1018 AD Amsterdam

Restaurant Entrepot

Dit restaurant zit, (verrassend genoeg) gevestigd op het Entrepotdok. Een van de mooiste stukjes Amsterdam, prachtige grachten maar haast onaangeraakt door toeristen. Het restaurant zit in een van de oude pakhuizen en de veel van het eten op de kaart is bereid op open vuur. De wijnkaart is ook uitstekend en het restaurant is ruim en heel gezellig. Goede service en heerlijk eten en drinken.

Processed with VSCO with s3 preset
15
Adres
Kadijksplein 4,
1018 AB Amsterdam

Sotto Pizza

Sotto Pizza is één van de top 10 Italiaanse restaurants in Amsterdam. Het restaurant opende haar deuren in 2021, maar is sindsdien een begrip onder de pizza-liefhebbers. De diverse keuze is een weergave van de kundigheid van de koks, maar hun klassieke Margherita is onverslaanbaar. Het interieur heeft iets weg van een moderne Spaanse tapasbar, met een fijne sfeer. Je kan bij Sotto uitgebreid tafelen of snel een pizza eten aan de bar. Het personeel is behulpzaam en vriendelijk.

de+Plantage-Buiten+Herfst-129+copy
16
Adres
Plantage Kerklaan 36,
1018 CZ Amsterdam

De Plantage

Bij De Plantage kom je voor de klassieke, statige Amsterdamse grandeur. Bij de bijzondere plek naast/in Artis kan je terecht voor alles en meer: een prima kop koffie met een ontbijtje, een snelle of langzame lunch of een uitgebreid diner. De plek voelt groot aan bij binnenkomst, maar de inrichting is intiem. Laat je verrassen door de Plats de Plantage van de chefs, of kies uit de vele à la carte opties. Laat zeker de Hemelse Modder als dessert niet aan je voorbij gaan.

DSC05478
17
Adres
Rapenburgerplein 1,
1011 VA Amsterdam

Café Scharrebier

Café Scharrebier is een erkend proeflokaal van Brandbieren en lid van de Amsterdamse Brandslang. Maak kennis met het unieke karakter van elk van de Brand bieren in ons Brand Proeflokaal. Alle kasteleins zijn bij Brand op de brouwerij geweest, waar ze persoonlijk zijn meegenomen in de kunst van het brouwen. Scharrebier is een perfect Amsterdamse bruincafé waar je altijd terecht kan voor een goede portie gezelligheid. Uitkijkend op de Nieuwe Herengracht kan je hier heerlijk mensen kijken.

424596480_18280834828163733_2921239417396427875_n
424881953_18280834837163733_8258135845662124209_n
18
Adres
Dapperstraat 1,
1093 BK Amsterdam

Café Wu

Café Wu is een moderne bistro, geïnspireerd door de Chinese keuken en cultuur. Timo de Beurs (voorheen slagerij de beurs) serveert spannende gerechten van klassiek Chinees tot een vrije interpretatie hiervan met Europese technieken en producten. Op de wijnkaart van Chi Ling Wu (voorheen o.a. Scheepskameel) staan Europese wijnen met nadruk op Frankrijk, Duitsland en Italië. Café Wu hanteert zowel een vijf-gangenmenu als een beknopt á la carte-menu. Naast goed eten en fijne wijn is er ook bijzondere aandacht voor muziek, met een belangrijke rol voor elegant vinyl en tape.

19
Adres
Dapperstraat 4,
1093 BT Amsterdam

Best döner

Hasan Karaca staat sinds 1990 met zijn kraam op de Dappermarkt in Amsterdam-Oost. Eerst verkocht hij allerlei verschillen producten totdat hij in 2003 besloot te beginnen met een kebabkraam. Dat was een goede beslissing want zijn heerlijke broodjes en wraps sloegen aan bij de bezoekers van de markt. Inmiddels heeft Hasan een grote groep vaste klanten die wekelijks een hapje bij hem komen halenHet geheim voor zijn ultieme kebab schuilt in de hoge kwaliteit van de ingrediënten. Hasan kookt alleen maar met 100% lamsvlees en voegt hier zijn ook een speciaal kruidenmengsel aan toe.

300799293_442244344620995_5318374096276279217_n
20
Adres
Rapenburgerplein 83,
1011 VJ Amsterdam

Café de Druif

Café de Druif is een van de oudste proeflokalen in Amsterdam. Tijdens de Gouden Eeuw kregen hier matrozen druiven als cadeau en zo is het aan zijn naam gekomen. Tegenwoordig is het een ontmoetingsplek voor veel stamgasten. Op het grote terras aan het water kan je er heerlijk zitten met een zeer uitgebreide bierkaart. Het decor bestaat uit kleine vaten opgesteld waaruit vroeger de jenever getapt werd en in plaats van muziek luister je naar het geluid van kletsende stamgasten.

blog-1
21
Adres
Plantage Middenlaan 30A,
1018 DG Amsterdam

Box Sociaal

Box Sociaal is in de eerste plaats een ontbijt- en brunchrestaurant, maar biedt ook diner- en drankopties aan. Het menu is geïnspireerd op Australië. De gerechten worden bereid met duurzame en lokale producten. Voor vegetariërs en veganisten is er goed nieuws: alle vleesburgers kunnen worden vervangen door de 'Beyond Meat Burger'. Geniet van een kwalitatieve brunch, lokaal gebrande koffie, zorgvuldig geselecteerde natuurwijnen, op maat gemaakte cocktails en heerlijke speciaalbieren.

151547326_2761937994066349_5799390836558443898_n
22
Adres
Dapperstraat 12HS,
1093 BV Amsterdam

Boi Boi

Boi Boi is een gezellige plek dicht bij de bruisende Dapper Market. Strijk neer in in de hippe tent, geniet van de met graffiti bespoten decoraties en neem de tijd voor de smaakvolle gerechten. De Thaise keuken is niet alleen smaakvol en bijzonder door de Laotiaanse twist, maar ook nog eens vers en gezond.

Naskip-Amsterdam
23
Adres
Dapperstraat 147,
1093 BS Amsterdam

Naskip

In 1962 begon de grootmoeder van de huidige eigenaren in Nederland haar heerlijke gemarineerde kip te verkopen. Met al meer dan 50 jaar succes in Suriname, staat Naskip bekend om kwaliteit, smaak, service en redelijke prijzen. De naam komt van de familieachternaam Nassy en het Amsterdamse 'nassen'.  De producten zijn volledig afgestemd op de Surinaamse smaak, bereid met verse ingrediënten en 100% plantaardige vetten. Populaire gerechten als fried chicken, french fries en gekookte maiskolven zijn hier te vinden.

Low-Res-voor-internet-Eik-en-Linden-2021-Livestream-Copyright-Janus-van-den-Eijnden-2-768×512
24
Adres
Plantage Middenlaan 22A,
1018 DE Amsterdam

Café Eik en Linde

Café Eik en Linde is een echte Amsterdamse bruine kroeg met een lange geschiedenis. Tegenwoordig komt hier een gemêleerd publiek samen dat reikt van stamgasten en biljarters tot studenten en toeristen. Het zorgt voor een aangename sfeer waardoor het café een begrip is geworden, ook buiten Amsterdam. Het café is onder meer bekend om de radio-uitzendingen die in de bovenzaal werden opgenomen, met als beroemdste uitzending ‘Een dik uur met Ischa’ van Ischa Meijer. Het is kortom een plek waar politiek, literatuur en kunst samenkomen met een biertje.

01-672×672
25
Adres
Kattenburgerstraat 5,
1018 JA Amsterdam

Scheepskameel

Scheepskameel is gevestigd in een voormalige koksschool van de marine (aan het water!) op het voormalige marineterrein. Chef en mede-eigenaar Tijs Jeurissen en de twee andere eigenaren Pieter Smits (ook van Rijsel) en Bob Kaasenbrood hebben een tijdloze zaak neergezet met uitstekend eten en een minstens zo uitstekende eigenzinnige wijnkaart, samengesteld met alleen maar Duitse wijnen. De wijnen zijn tevens te koop via de (online) winkel Wijnkameel. De service is, net zoals het zuster restaurant Rijsel, uitstekend.

Samengesteld; slim ingedeelde appartementen met het comfort van een suite.

Samengesteld; slim ingedeelde appartementen met het comfort van een suite.

‘Het vakwerkhuis’, een voormalig gereedschap bergplaats voor de Dienst der Publieke Werken

‘Het vakwerkhuis’, een voormalig gereedschap bergplaats voor de Dienst der Publieke Werken

Kunstagenda maart 2025

Kunstagenda maart 2025

Onlangs bekeken
Bekijk het overzicht

Deze site maakt gebruik van cookies.

Voor welke cookies geef je akkoord?