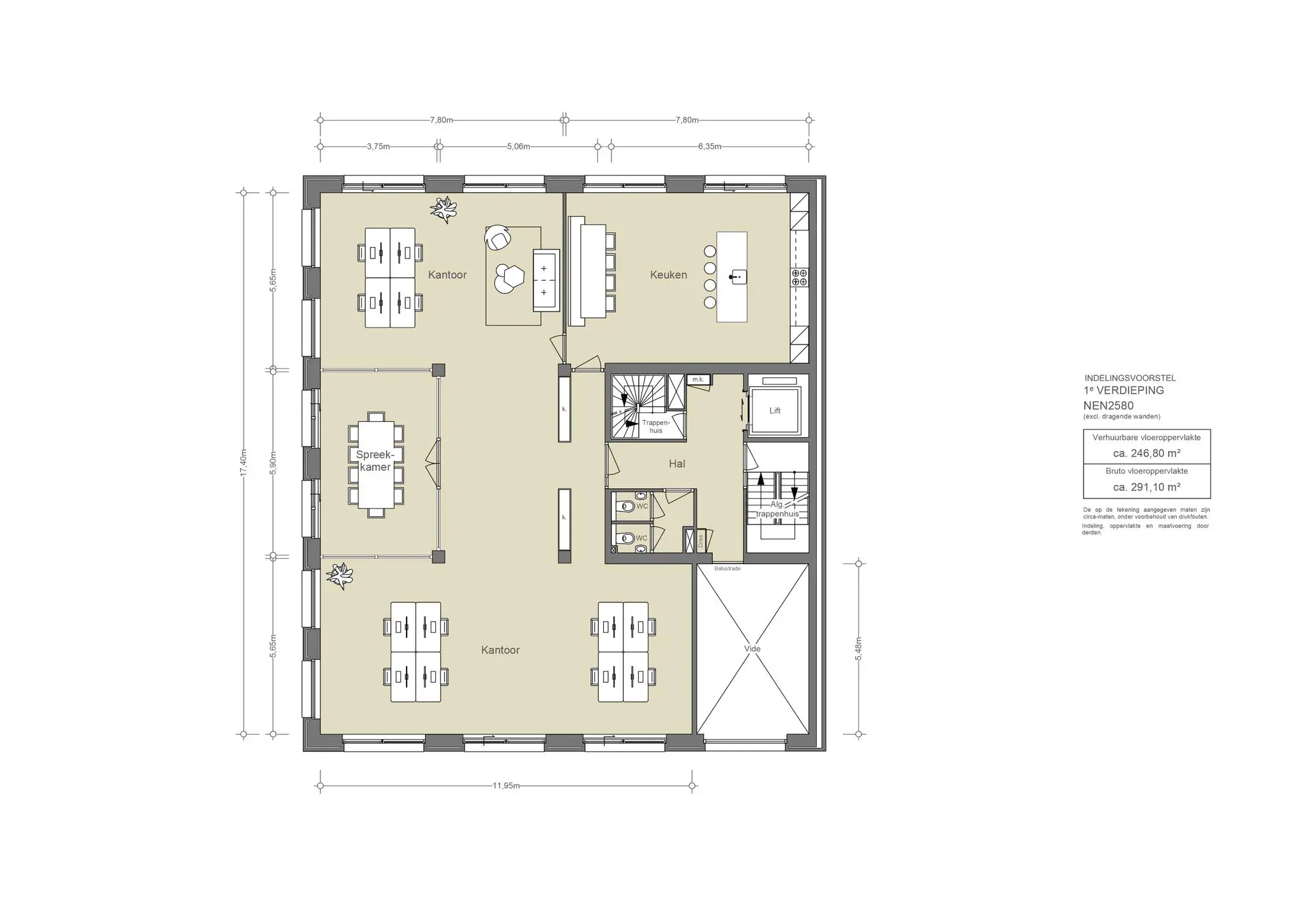
Eerste verdieping | 246 m²

Aantrekkelijke mogelijkheid om op eigen grond een duurzame nieuwbouw kantoorruimte te kopen in Amsterdam Noord. Het recent gerealiseerde kantoorgebouw YOUROWN is gelegen aan de Grasweg. Deze wijk is volledig getransformeerd van industriegebied naar een populair woon-werkgebied. Dat is ook niet verrassend; er is prachtig zicht over ‘t IJ, de bereikbaarheid is uitstekend, er zijn steeds meer voorzieningen en het bruist hier van de hotspots.

Nu de bouw is afgerond is de visie van de architect van YOUROWN tot leven gekomen. Het is een licht en modern kantoorgebouw met een kenmerkend exterieur: grof beton, grote glasoppervlakten, strakke aluminium kozijnen, Franse balkons en ruime uitkragende balkons. Het fonkelende nieuwe gebouw is toonaangevend.

Van de acht verdiepingen is slechts de eerste verdieping nog beschikbaar. Deze verdieping heeft een oppervlakte van circa 246 m² VVO en heeft op dit moment een geheel open indeling met enkele kolommen. De kantoorruimte wordt casco opgeleverd en kan door koper geheel naar eigen wens worden ingedeeld en afgebouwd. Ter inspiratie worden een plattegrondtekening met indeling en een render gepresenteerd. Er is een plafondhoogte van circa drie meter, vier grote ramen aan de achterzijde, zes aan zijkant en drie aan de voorzijde. Aan iedere zijde zijn diverse Franse balkons.

Deze kantoorverdieping is ideaal voor een eigenaar-gebruiker maar ook als belegging biedt YOUROWN de mogelijkheid om zelf rendement te realiseren.

Bijzonderheden
• gerealiseerde nieuwbouw kantoorruimte
• casco opleveringsniveau; naar eigen wensen en behoeften af te bouwen en in te delen
• verdiepingshoogte van circa drie meter
• Frans balkon aan drie zijdes
• het gebouw is gelegen op eigen grond
• uitzicht op het water van ‘t IJ
• goed bereikbaar met auto en openbaar vervoer
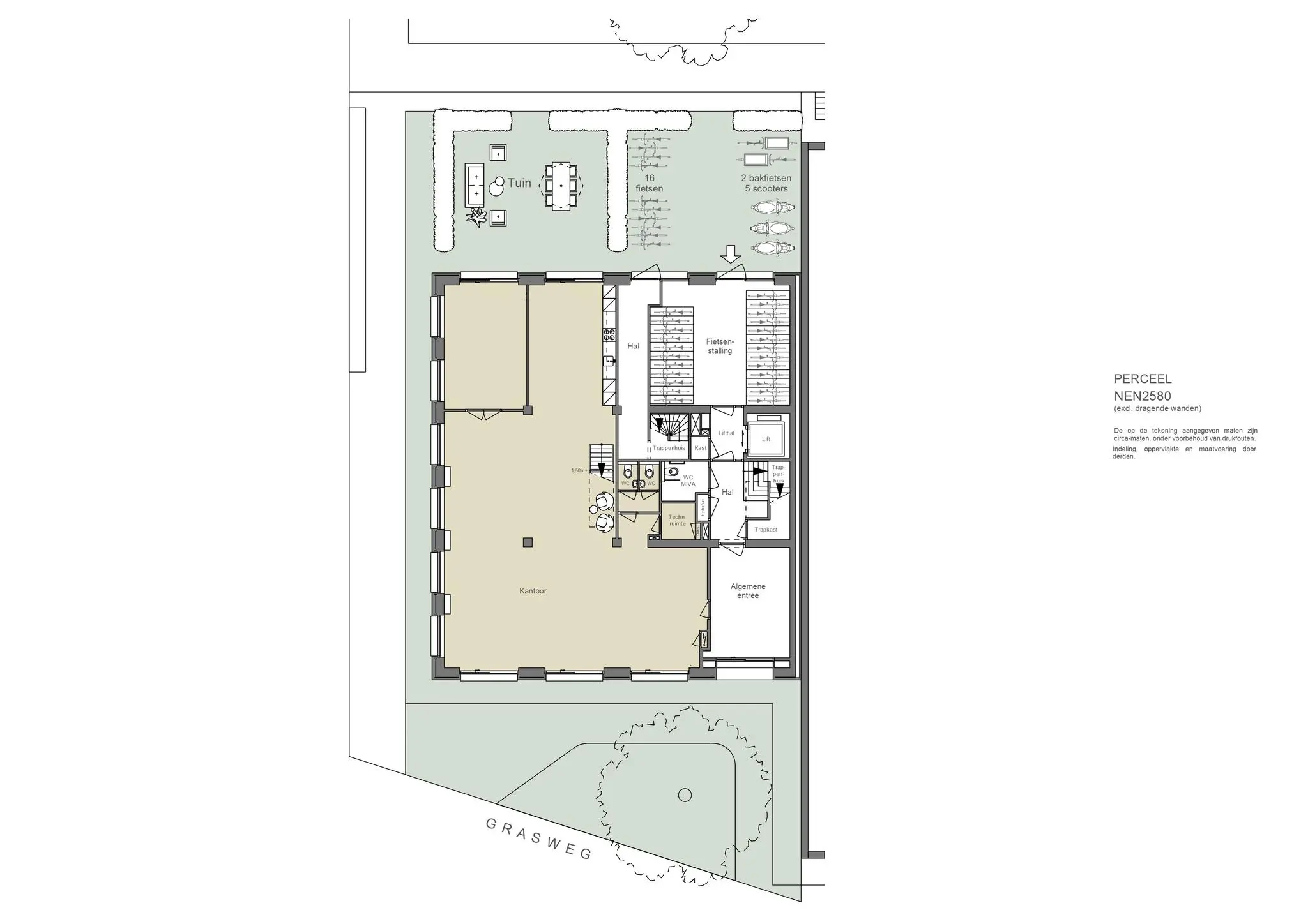
• eigen fietsenberging en mogelijkheid om twee auto's te parkeren in naastgelegen Parkeergebouw
• aansluiting op WKO installatie
• duurzaam gebouwd volgens de BENG norm
• professionele VvE beheerder

B103956-2125987-Grasweg-56,-Amsterdam-268879880

Gebouw

YOUROWN is ontwikkeld door Multi Corporation en MotherOfSpace samen met het team van Prosman de Wit Architecten. Het historische ruwe en stoere karakter van buurt Buiksloterham is gecombineerd met een diversiteit in architectuur, sterke stedelijke woon- en werk-blokken, wijdse uitzichten over ‘t IJ en een goed en levendig verblijfsklimaat. Kenmerkend voor het exterieur van het gebouw zijn de vele gevelopeningen welke zijn voorzien van aluminium kozijnen en beglazing. Aan de voorzijde is het gebouw hoger dan aan de achterzijde. Het dak is namelijk een zogeheten sheddak, ook wel bekend als een zaagdak.

De algemene ruimten zijn voorzien van een volledige hoogwaardige vloer- en wandafwerking. Er is een gezamenlijke ingang met een gezamenlijke kern met trappenhuis en lift. Bij de hoofdingang op de begane grond is voor elke unit een eigen intercom met deuropener en eigen brievenbus aangebracht. Er is tevens een fietsenstalling met douche aanwezig welke voor alle gebruikers van YOUROWN beschikbaar is. Het gebouw gesplitst in zelfstandige units per verdieping welke worden opgeleverd in casco staat.

YOUROWN is een duurzaam kantoorgebouw dankzij de WKO-installaties (warmte en koudeopslag) met vloerkoeling en verwarming en de zonnepanelen. Er is gebouwd volgens de BENG (bijna energie neutrale gebouwen) norm waardoor de gebruikerskosten naar verwachting laag zullen zijn. Voor uitgebreide technische informatie wordt verwezen naar het verkoopdossier.

B103956-2125987-Grasweg-56,-Amsterdam-268879492
B103956-2125987-Grasweg-56,-Amsterdam-268879466

Buitenruimte

De eerste verdieping is aan drie zijdes voorzien van grote raampartijen, waarvan enkelen een Frans balkon betreffen. De gedeelde achtertuin biedt voldoende plek voor het parkeren van (bak-)fietsen/scooters. Ook de inpandige fietsenstalling op de begane grond biedt voldoende plek voor het stallen van fietsen.

B103956-2125987-Grasweg-56,-Amsterdam-268879516

Buurt + hotspots

Aan de noordkant van ‘t IJ heeft in de afgelopen jaren een gigantische transformatie plaatsgevonden. Een gebiedsontwikkeling waarbij het historische ruwe en stoere karakter is gecombineerd met een diversiteit in architectuur, sterke stedelijke woon- en werk-blokken, wijdse uitzichten over het IJ en een goed en levendig verblijfsklimaat.

De straat Grasweg is gelegen in de wijk Buiksloterham-Zuid en in de directe omgeving zijn diverse hotspots zoals hippe restaurants (Café de Ceuvel, Bar Boeket, Corner Store en Restaurant Moon), concept stores en musea. De groene IJpromenade direct aan het IJ met op de kop het Eye Filmmuseum, de A’DAM Lookout, Tolhuistuin en restaurant Polly Goudvisch zijn trekpleisters voor zowel locals als toeristen.

Bereikbaarheid

YOUROWN is uitstekend bereikbaar met zowel eigen vervoer als met openbaar vervoer. Met de auto is het kantoorgebouw binnen tien minuten vanaf de ringweg A-10 Noord te bereiken via de S116. Via deze verbindingsweg zijn ook de IJ-tunnel en het centrum van Amsterdam snel bereikbaar.

Vanwege de ligging aan het IJ en de (zeer) nabijgelegen veerdiensten F6 (Distelweg) en F3 (Buiksloterweg) is ook met de fiets of lopend een snelle oversteek naar het centrum mogelijk. Het metrostation Noorderpark (Noord/Zuidlijn) is op zeven minuten fietsen gelegen.

Parkeergelegenheid

Er zijn in het naastgelegen Parkeergebouw twee parkeerplaatsen gereserveerd. De aanschaf van deze parkeerplaatsen is niet in de koopsom begrepen en kan separaat worden afgenomen. Prijs per parkeerplaats: € 40.000,00 vrij op naam exclusief omzetbelasting. Daarnaast is parkeren mogelijk op de openbare weg middels betaling.

B103956-2125987-Grasweg-56,-Amsterdam-268879536
B103956-2125987-Grasweg-56,-Amsterdam-268879442
Grasweg 56-7
B103956-2125987-Grasweg-56,-Amsterdam-268879452
B103956-2125987-Grasweg-56,-Amsterdam-268879940
B103956-2125987-Grasweg-56,-Amsterdam-268879926
B103956-2125987-Grasweg-56,-Amsterdam-268879888

Impressie

B103956-2125987-Grasweg-56,-Amsterdam-269119444
Kenmerken
Grasweg 56, Amsterdam
Overige kenmerken

Oppervlakte 
De kantoorruimte heeft een totale oppervlakte van circa 246 m² VVO en is gelegen de eerste verdieping.

Parkeren
Er zijn in het naastgelegen Parkeergebouw twee parkeerplaatsen gereserveerd. De aanschaf van deze parkeerplaatsen zijn niet in de koopsom begrepen en kunnen separaat worden afgenomen. 

Opleveringsniveau
De kantoorruimte wordt leeg en ontruimd, bezemschoon en vrij van huur en/of overige gebruiksrechten opgeleverd in casco staat, onder andere voorzien van de volgende voorzieningen:

•    gemeenschappelijke entree 
•    gemeenschappelijke fietsenstalling aan de achterzijde
•    lift
•    miva toilet
•    aansluiting op WKO
•    buitenruimten

Vraagprijs kantoorruimte
€ 1.450.000,- vrij op naam exclusief omzetbelasting.

Vraagprijs parkeerplaats
€ 40.000,- vrij op naam exclusief omzetbelasting.

Bestemming
Conform het vigerende bestemmingsplan ‘Buiksloterham’ uit 2011 is de publiekrechtelijke bestemming van het object ‘Gemengd’. Dientengevolge voorziet het bestemmingsplan in de volgende functies: 

•    bedrijven
•    kantoren
•    creatieve functies
•    maatschappelijke dienstverlening

Op basis van de splitsingsakte is privaatrechtelijk de navolgende vorm van gebruik toegestaan: ‘Bedrijfsruimte’.

Kadastrale informatie 
Gemeente: Amsterdam
Sectie: K
Nummer: 11295
Appartementsindex: A-2

Parkeren
Gemeente: Amsterdam
Sectie: K
Nummer: 11561
Appartementsindex: A-78 en A-81

Monumentale status 
Niet van toepassing.

Energielabelklasse
Energielabelklasse zal na afbouw worden opgenomen.

Eigen grond
Het object is gelegen op eigen grond.

Erfpacht
De parkeerplaatsen zijn gelegen op erfpacht grond. 
•    Algemene bepalingen voortdurende erfpacht 2000
•    Tijdvak: 1 juli 2015 t/m 30 juni 2054
•    Canon: € 20,51 per jaar
•    Bestemming: parkeerplaats

Zakelijke lasten
•    Rioolrecht (2026): € 192,04 per jaar
•    VvE-bijdrage (2025) Grasweg 56: € 412,93 per maand
•    VvE-bijdrage (2024) parkeerplaats: € 33,02 per maand per parkeerplaats

Bouwjaar
2025.

Aanvaarding
In nader overleg.

Milieu
Geen informatie bekend aan verkoper, behoudens die uit de Bodemrapportage van de Omgevingsdienst Noordzeekanaalgebied betreffende het object, als onderdeel van het verkoopdossier.

Zekerheidsstelling
10% waarborgsom c.q. bankgarantie dient binnen 14 dagen na ondertekening van de koopakte bij de notaris aanwezig te zijn.

Artist’s Impressions
Disclaimer: De interieur beelden geven een indruk van de mogelijke afwerking en sfeer. De uiteindelijke uitvoering kan afwijken, er kunnen geen rechten aan worden ontleend.

Overige bepalingen
Grasweg 56, Amsterdam

Voorbehoud verkoper
Deze verkoop geschiedt onder het uitdrukkelijk voorbehoud van:

  • Gunning door verkoper, alsmede;
  • Schriftelijke goedkeuring van de voltallige directie van verkoper, alsmede;
  • Een verkoper conveniërende vorm en inhoud van de op te maken koop- en leveringsakte
    (“subject to contract”).

Bijzonderheden
Koper wordt in staat gesteld, na voorafgaand overleg met Broersma Werken en tot aan het moment van tekenen van de koopakte, het verkochte uitgebreid (bouwkundig en anderszins) te onderzoeken. Koper verklaart dat verkoper daarmee afdoende aan zijn mededelingsplicht heeft voldaan en dat koper op een voor haar conveniërende wijze uitputtend van deze mogelijkheid gebruik heeft gemaakt.

Verkoper en koper komen uitdrukkelijk overeen dat het verkochte wordt verkocht en geleverd “as is”, waaronder verkoper en koper verstaan dat:

  • De artikelen 7:17, 7:20, 7:23 en 6:228 van het Burgerlijk Wetboek uitdrukkelijk zijn uitgesloten, alsmede;
  • Door verkoper geen impliciete of expliciete garanties worden verleend met betrekking tot het verkochte behoudens voor zover deze expliciet en schriftelijk zijn opgenomen in de koopakte.

Koper verklaart uitdrukkelijk het verkochte bij levering te aanvaarden in de feitelijke, technische, milieukundige en/of juridische staat waarin het zich alsdan bevindt. Koper aanvaardt daarbij alle gebreken van het verkochte, alsmede de feitelijke staat van onder andere (doch niet uitsluitend) de fundering, constructie, (gebruikte) materialen, (aanwezigheid van) asbest, olietanks en bodemverontreiniging en de technische installaties.

Koper verklaart voorts uitdrukkelijk kennis te hebben genomen van en uitdrukkelijk te aanvaarden: alle lijdende erfdienstbaarheden, bijzondere, publiekrechtelijke en privaatrechtelijke lasten en beperkingen, zakelijke rechten, kettingbedingen en kwalitatieve verplichtingen mede blijkend en/of voortvloeiend uit de laatste en voorgaande akte(n) van eigendomsoverdracht en akte(n) van (onder)splitsing en/of enig openbaar register of openbare informatiebron.

Koper en verkoper komen uitdrukkelijk overeen dat in de koopprijs de feitelijke staat van het verkochte en een integrale afkoop van alle aan het verkochte verbonden risico’s, gebreken en/of (nog) uit te voeren herstellingen verdisconteerd zijn, ongeacht de aard en omvang daarvan en ongeacht in welke mate voornoemde elementen zijn onderzocht door koper en/of besproken tussen verkoper en koper.

Koper vrijwaart verkoper ter zake van enige vordering, alsmede enige vordering van derden, uit hoofde van enig hiervoor genoemd artikellid en/of verband houdende met de staat van het verkochte bij levering. Koper vrijwaart verkoper voorts voor alle eventueel later te blijken (onzichtbare) gebreken, zowel van bouwkundige, milieukundige, feitelijke of juridische aard.

Voorbehoud Broersma Werken
Deze vrijblijvende informatie is met zorgvuldigheid samengesteld. Voor de juistheid hiervan wordt door Broersma Werken geen aansprakelijkheid aanvaard, noch kan hieraan enig recht worden ontleend. Deze informatie is niet bedoeld als aanbod. Door aanvaarding van de vermelde condities of het uitbrengen van een, daarvan al dan niet afwijkend, aanbod worden Broersma Werken noch haar opdrachtgevers op enige wijze gebonden, ook niet tot het doen van enig tegenbod.

Broersma Werken treedt uitdrukkelijk slechts op als adviseur van haar opdrachtgever en niet als gevolmachtigde namens haar. Voorts geldt dat tussen partijen eerst juridisch binding kan ontstaan nadat definitieve overeenstemming is bereikt ter zake van al hetgeen zij met elkaar beogen te regelen en deze overeenstemming bovendien is vastgelegd in een schriftelijke en namens beide partijen rechtsgeldig ondertekende overeenkomst, waarbij artikel 3:39 BW overeenkomstige toepassing vindt.

Broersma Werken is een besloten vennootschap, ingeschreven bij de Kamer van Koophandel onder nummer 34121232. Broersma Werken verleent al haar diensten op grond van de Algemene Voorwaarden NVM voor professionele opdrachtgevers Versie februari 2023. De algemene voorwaarden zijn van toepassing op alle opdrachten die aan haar zijn of worden verstrekt en/of op de levering van al haar diensten en producten aan wie dan ook. De algemene voorwaarden worden op verzoek toegezonden en zijn tevens te downloaden op broersma.nl.

De aansprakelijkheid van Broersma Werken is in alle omstandigheden en jegens eenieder beperkt tot het bedrag dat door de beroepsaansprakelijkheidsverzekering van Broersma Werken in het desbetreffende geval wordt uitgekeerd.

Privacy & Wwft
Geïnteresseerden verklaren in het kader van deze verkoop op voorhand:

  • In te stemmen met de verwerking van hun gegevens conform de Privacyverklaring Broersma;
  • Volledige medewerking te verlenen aan alle mogelijk noodzakelijke onderzoeken op basis van de vigerende wet- en regelgeving, waaronder tenminste begrepen de Wwft. Broersma conformeert zich uitdrukkelijk aan de wettelijke geheimhoudingsplicht betreffende een eventue(e)l(e) vermoeden en/of melding in het kader van de Wwft.

Toelichtingsclausule NEN 2580
De Meetinstructie is gebaseerd op de NEN2580. De Meetinstructie is bedoeld om een meer eenduidige manier van meten toe te passen voor het geven van een indicatie van de (bruto/verhuurbaar/gebruiks-) vloeroppervlakte. De Meetinstructie sluit verschillen in meetuitkomsten niet volledig uit, door bijvoorbeeld interpretatieverschillen, afrondingen of beperkingen bij het uitvoeren van de meting.

Plattegrond
Grasweg 56, Amsterdam
B103956-2125987-Grasweg-56,-Amsterdam-268882880
B103956-2125987-Grasweg-56,-Amsterdam-268910396
Documenten
Grasweg 56, Amsterdam
"][/dflip]
Locatie
Grasweg 56, Amsterdam
Eten & drinken
01
Adres
Leen Jongewaardkade 41,
1031HS Amsterdam

Pelusa

Pelusa, wat 'pluisje' betekent, is vernoemd naar de koosnaam van niemand minder dan Maradona. Het is een eerbetoon aan de ultieme Argentijnse levensgenieter. Deze gastro buurtkroeg biedt Argentijnse Parilla-gerechten, bereid door chef-kok Steven (voormalig chef bij Lastage en C). De gerechten worden gecombineerd met een selectie van wild gefermenteerde bieren, natuurlijke wijnen en ciders, zorgvuldig geselecteerd door Ruud (voorheen werkzaam bij 't Arendsnest en Craft & Draft).

Schermafbeelding 2023-01-25 om 10.36.18
02
Adres
Chrysantenstraat 4,
1031 HT Amsterdam

Bacalar

Deze taqueria is gehuisvest in een voormalige garage op een industrieterrein in Amsterdam-Noord. In een rauwe setting kookt de belgische chef Joachim de Buck, originele Mexicaanse gerechten. Er is een breed en gevarieerd aanbod aan taco’s, tostados en ander hartig en pittig lekkers. Gecombineerd met jaren 90 muziek, ciders, mezcal, zuurbieren en natuurwijnen is dit een spannende avond uit.

326947522_754814202214238_3561426501965176378_n
315729265_184085624205825_4783509406318105826_n
03
Adres
Asterweg 22,
1031 HP Amsterdam

Café Restaurant Metro

Van 's ochtends tot 's avonds werkt hier de bakkerij en de keuken samen om eenvoudige gerechten te bereiden met de nadruk op goede producten en groenten. Chef Rients de Jong (ex As, Toscanini en Entrepot) kookt seizoensgebonden en duurzaam met vertrouwde bereidingen. Je kunt genieten van een zeer betaalbaar driegangen dagmenu, of je kunt à la carte kiezen uit een aantal gerechten, voorafgegaan door enkele snacks. Bij de grote betonnen bar is er altijd plek voor een drankje of hapje. De wijnkaart heeft een zuivere en kwalitatieve stijl met veel natuurlijk gemaakte wijnen.

 

315988302_5760849594036211_845228796521491534_n
04
Adres
Melkdistelstraat 94,
1031 JX Amsterdam

Papa Thang

Papa Thang is het ideaal buurtrestaurant. Chef Thang Pham heeft de hele wereld over gereisd en overal gekookt, maar heeft uiteindelijk toch besloten om terug te gaan naar zijn eigen roots; namelijk Vietnamese streetfood. De gerechten  zijn eenvoudig, goed en betaalbaar. Oftewel een Vietnamese bistro met een gevarieerde kaart.

05
Adres
Westerdoksdijk 715a,
1013 BX Amsterdam

Café Westerdok

Café Westerdok was oorspronkelijk een havencafé. Tegenwoordig moet je er zijn als je van bier houdt. Ze schenken wel 86 verschillende soorten.

06
Adres
NDSM-Plein 102,
1033 WB Amsterdam

Café-restaurant Noorderlicht

Café-restaurant Noorderlicht is een bezienswaardige plek voor iedereen die even wil ontsnappen aan de drukte van de stad. De insteek van Noorderlicht is cultureel en duurzaam: zo bieden ze naast een lekkere, gezonde en verantwoorde menukaart ook een sfeervol podium aan muzikanten en creatievelingen. Ook het interieur van het café zijn meestal gebaseerd op hergebruikte materialen of zijn tweedehands. De industriële, creatieve omgeving van de NDSM-werf sluit hier goed bij aan.

download
07
Adres
Korte Papaverweg 4,
1032 KB Amsterdam

Café de Ceuvel

Ontsnap aan de stadse drukte en ontdek de Ceuvel in Amsterdam-Noord. Hier bieden ze hoofdzakelijk een vegetarisch menu aan met lokale lekkernijen. Alles is doordacht: veel hergebruik en omringd door bedrijven die de wereld verbeteren. Het is lastig een betere plek te vinden om van een zonnige dag te genieten dan deze bar in Noord. De hele ambiance heeft een bohemian-uitstraling en er is zowel binnen als buiten volop zitgelegenheid.

69540178_2484999358232281_2103779134537728000_n
08
Adres
Van der Pekstraat 91,
1031 CV Amsterdam

Kannibalen en Paradijsvogels

Kannibalen en Paradijsvogels is een Indisch buurt-eethuis waar écht gekookt wordt. Het draait hier allemaal om Indisch en Moluks eten voor zowel kannibalen als paradijsvogels. Voor de kannibalen heb je heerlijke vleesgerechten en voor de paradijsvogels de lekkerste vegetarische gerechten. Hoewel de keuken dus is gebaseerd op de traditionele Indonesische keuken, gaat het menu ook met z’n tijd mee. Zo is er superlekkere veganistische spekkoek en is het vlees van goede afkomst.

445185908_18352033090103176_6456299625204716557_n
447421480_18352745500103176_8661321314303363375_n
09
Adres
Zandhoek 14,
1013 KT Amsterdam

Tannay

In voorheen de Gouden Reaal introduceert Chef Thomas Demuth, als partner van Familie Caron, restaurant Tannay. Tannay is vernoemd naar de appellatie Coteaux Tannay waar Demuth opgroeide in de Bourgogne en waar zijn vader nog steeds wijn maakt. Je kunt er aan tafel eten, maar er zijn ook plaatsen aan de keuken. na jarenlang in topzaken in Frankrijk te hebben gewerkt kookt Thomas in Amsterdam uit herinneringen die hem voeren vanuit de keuken van zijn moeder in de Bourgogne.  Hij presenteert zijn gerechten in een 5-gangen chef’s menu of à la carte met een wijnkaart die de diepte van de Bourgogne, Loire en Champagne verkent.

366358950_18232095868238032_5598169413384369124_n
10
Adres
Docklandsweg 3,
1031 CD Amsterdam

Wijbar Vindict

Richard Dietz (39) en Roderick Meijer (35) van Vindict ademen passie voor wijn. Met twee succesvolle wijnwinkels op hun naam, hebben ze nu samen met chef-kok Samir Doueiri (56) en sommelier Jan-Jaap Altenburg (31) wijnbar Vindict geopend. De bar, gemaakt van acaciahout uit wijngaard Dassemus in Chaam, straalt warmte en authenticiteit uit. Geniet van bijpassende gerechten, zoals escargots met knoflook en kruidenboter of Nederlandse garnalencocktail met avocado en citroen, vers bereid door chef-kok Doueiri.  Op de wijnkaart, is een selectie te zien van de meer dan vijftig wijnen die per glas worden geschonken en meer dan achthonderd wijnen per fles. Ook is er de mogelijkheid om een proeverijtje te doen of om voor 7,50 euro een blinde wijn te bestellen in een zwart glas. Benoem je de druif juist, dan is het glas van het huis.

78931210_504476646943592_9031334492748382208_n
11
Adres
Papaverweg 15A,
1032 KE Amsterdam

De Klaproos

De Klaproos is een pop-up pizza en pasta restaurant in Amsterdam-Noord. In de grote, industriële ruimte kan je krokante pizza’s eten uit de steenoven eten en natuurwijnen drinken. Naast pizza en pasta staan er ook andere klassieke Italiaanse gerechten op de kaart zoals heerlijke antipasti. De Klaproos leent zich daarnaast als expositie- en feestlocatie en ook kan je er pizza’s afhalen.

LOOK-OUT-3-73-van-95
12
Adres
T.T. Neveritaweg 59,
1033 WB Amsterdam

Pllek

Pllek ligt dichtbij het NDSM-werf in Noord aan het water. Alles wat ze serveren is zo lokaal mogelijk. Het heeft een grote binnen en buitenruimte. In de zomer kan je dan ook lekker chillen aan het water met blote voeten in een strandstoel of liggend in een zitzak ervaar je een eilandgevoel. De keuken is de hele dag open voor ontbijt, lunch en diner. Neem bijvoorbeeld de gestoomde makreel met dille-mierikswortel, zoetzure groenten en gefrituurde kappertjes of ga voor een groente tajine met herfstgroente, parelcouscous, harissa, dukkah, zhug en een rodekoolsalade. Geregeld zijn er bij Pllek yogasessies, live muziek optredens en andere evenementen.

Schermafbeelding 2023-01-25 om 10.39.23
Schermafbeelding 2023-01-25 om 10.39.43
13
Adres
Papaverweg 11,
1032 KD Amsterdam

Cornerstore

Aan de Papaverweg ligt de Corner Store, een nieuwe parel in Noord van onder andere het team van de Klaproos en de Binnenvisser. Gebaseerd op muziekbarretjes zoals je die in Japan ziet, staan hier kasten vol met platen. Deze gastrobar heeft muziek, natuurwijnen en een menu op basis van lokale ingrediënten maar dan wel met Aziatische smaken bereidt. Proef ook zeker het huisaperitief van yuzu en sake.

L1320654-BAKxCLAUDY-BenningGladkova-instaXweb-formaat
14
Adres
Van Diemenstraat 408,
1013 CR Amsterdam

BAK

Prachtig gelegen aan het water in de Amsterdamse houthavens op de derde verdieping van pakhuis Het Veem ligt restaurant Bak. Hier wordt gewerkt met vis van duurzame visserij, vlees van lokale producenten, maar met groente in de hoofdrol. Het menu wisselt dagelijks met de seizoenen en het aanbod van de producenten mee. De wijnkaart bevat een mooie selectie wijnen uit Frankrijk en Italie.

IMG_3091_1024x1024
IMG_3130_1024x1024
15
Adres
Van der Pekstraat 1,
1031 CN Amsterdam

Café Keppler

Café Keppler is een ambachtelijk buurtcafé in Amsterdam-Noord. Het is vernoemd naar de voormalig directeur van de Gemeentelijke Woningdienst Amsterdam, Arie Keppler en bevindt zich toepasselijk in een van de mooie panden van de Van der Pek buurt, een van de tuinsteden welke in opdracht van Keppler is gebouwd. Het eten bij Keppler is allemaal zelfgemaakt. Je kan er terecht voor de beste omeletten van Amsterdam, maar ook heerlijke borrelplanken en diner in de avonduren. Het brood is zelfgebakken en de koffie zelf gebrand en dat kan je proeven. De producten zijn ook te koop in het winkeltje naast het café.

downloadgram.org_564914372_17894235000344709_3630296456154424901_n
downloadgram.org_497181374_17874833946344709_1958193185845108435_n
16
Adres
Barentszstraat 171,
1013 NM Amsterdam

Boon & de Koot

Na het succes van Zoldering openden chef Thomas Bron, wijnimporteur Joost Clarijs en sommeliers Job Seuren en Wout Jans met Boon & de Koot een laagdrempelige wijnbar in de Zeeheldenbuurt, zonder in te leveren op kwaliteit. Het menu begint met sterke snacks zoals de oeuf mayo met gepofte knoflook en lavas, slim geserveerd zodat je hem in één hap kunt eten. Daarna volgen verfijnde voorgerechten als rauwe zeebaars met beurre noisette en kalamansi of een grove steak tartaar met radicchio en ansjovis. De echte showsteler is het gerecht van geroosterde doperwtjes met tomatillo, olijf en eidooier, een perfect samenspel van rook, frisheid en romigheid. Binnen heerst een Franse bistrosfeer, buiten nodigt het terras met marmeren tafeltjes en bordeauxrode stoeltjes uit om net zo makkelijk te blijven hangen voor nog een glas.

Interieur
129956512_4014002428644020_3378764216201953588_n
17
Adres
Distelweg 85,
1031 HD Amsterdam

De Lokatie Distelweg

In 2020 verkocht De Lokatie maar liefst 858.000 kilo aan spullen vanuit haar drie Amsterdamse kringloopwinkels op Buikslotermeerplein, Distelweg en de Eerste Oosterparkstraat. Alles tweedehands, dus ontzettend duurzaam. De Lokatie op de Distelweg is maar liefst 2.000 vierkante meter en daarmee een van de grootste van Amsterdam.

294575506_459142912887146_4918935355523689227_n
18
Adres
Van der Pekstraat 107h,
1031 CW Amsterdam

Treasure Depot

Bij Treasure Depot aan de Van der Pekstraat kan je terecht voor echte tweedehandse schatten. Na 15 jaar op allerlei markten te hebben gestaan, vonden eigenaren Emmanuelle en Frank het tijd om een echte winkel te openen. Het plafond is volgehangen met de mooiste retro lampen, maar ze hebben nog veel meer; sieraden, meubels, zonnebrillen en nog meer hebbedingen. Kijk je ogen uit en neem als je geluk hebt een nieuw hebbedingetje of een mooie lamp mee naar huis.

29694838_1713558705394111_1905889315238445056_n
PIEN-EVENT_bewerkt-kopie
19
Adres
Papaverhoek 23,
1032 JZ Amsterdam

Wdstck Gallery

Wdstck is gevestigd in Amsterdam Noord en biedt een scala aan multidisciplinaire objecten met een uitgesproken esthetiek aan die elk een eigen verhaal vertellen. Bij Wdstck zoeken ze het evenwicht tussen kunst en design, en brengen ze voorwerpen met een ziel in het dagelijks leven. Ze koesteren het temperament van elk materiaal en maken objecten met de hand om het verhaal te benadrukken dat de natuur te bieden heeft.

Kunst & cultuur
Dimensional-Sampling-1-by-Yuxi-Cao-James.-Part-of-the-inaugural-exhibition-at-Nxt-Museum-_Shifting-Proximities_-opening-29-August.-©-Peter-Tijhuis-WP
20
Adres
Asterweg 22,
1031 HP Amsterdam

Nxt Museum

Nxt Museum laat je opgaan in de mediakunst. Moderne technologieën worden gebruikt voor kunstvormen en dit levert een hele speciale vorm van kunst op. Bewonder bijvoorbeeld de kunstwerken 'Adrenalin or Zen' en 'What is happening to my face' of ervaar de kosmos en het zwarte gat. Je kan door veel kunstwerken heenlopen en de kunstenaars slagen erin om je het echt te laten ervaren. De kunstwerken prikkelen al je zintuigen door de combinatie van geluid, licht en beweging. Het museum geeft je de kans om te reflecteren op de huidige technologische ontwikkelingen en geeft een moment van bezinning in een realiteit die alsmaar sneller doorontwikkeld. Door het gebruik van grote ruimtes en veel verschillende soorten 'visuals' slagen ze erin een hele nieuwe vorm van kunst tentoon te stellen.

Schermafbeelding 2022-06-20 om 15.19.32
21
Adres
Westerdok 824,
1013 BV Amsterdam

The Ravestijn Gallery

The Ravestijn Gallery werd in 2012 in Amsterdam opgericht door Jasper Bode en Narda Van 't Veer met een focus op onderzoekende en provocerende benaderingen van hedendaagse fotografie. En daarin zijn ze geslaagd. De galerie vertegenwoordigd verschillende nationale en internationale experimentele kunstenaars die het vermogen van fotografie op allerlei verschillende manieren laten zien. Deze moderne benadering van de hedendaagse fotografie maakt de tentoonstellingen van De Ravestijn Gallery zeer interessant. Maar, daarnaast zijn de kunstwerken ook een groot esthetisch plezier om naar te kijken en misschien zelfs een goede inspiratiebron voor de aankleding van een nieuw huis?

Boodschappen
324559017_893438495115335_1986839851957670039_n
22
Adres
Docklandsweg 3,
1031 KN Amsterdam

Vindict wine

In 2007 begon Vindict als een online wijnwinkel. Vijf jaar later, in 2012, openden ze hun eerste fysieke winkel op de Elandsgracht in het centrum van Amsterdam. In december 2022 verwelkomden ze hun tweede vestiging in de nieuwe stadswijk Aan het IJ in Amsterdam Noord. Vindict onderscheidt zich met een sterke focus op Europese wijnen, en in de winkel is er zelfs een shop-in-shop van Bob Wijn, gespecialiseerd in Nederlandse wijnen. Met ongeveer 100 Nederlandse en 700 internationale wijnen biedt Vindict een gevarieerde selectie voor wijnliefhebbers.

Schermafbeelding 2023-01-23 om 13.06.29
23
Adres
Van der Pekstraat 72,
1031 EE Amsterdam

Chateau Karlito

Het verscholen kleine winkeltje Chateau Karlito aan de Van der Pekstraat verkoopt voornamelijk natuurwijn, maar ook sake, tapijten, keramiek en nog veel meer. Vernoemd naar de eigenaresse Karlijn, is dit een plek waar je veel moois en lekkers kan proeven, bekijken en luisteren; waaronder jazz, hele goede sake en koffie. Toch is de selectie aan natuurwijn, met wijnen uit alle windstreken, het hoogtepunt van de winkel. Probeer ook het (echte!) Brabantse worstenbroodje en de amandelcroissant.

DSC6886-scaled
24
Adres
Van der Pekplein 1b,
1031 GZ Amsterdam

Fromagerie Abraham Kef

Bij Fromagerie Abraham Kef haal je de lekkerste kazen. Al in 1953 opende Abraham Kef een winkel in het centrum van Amsterdam. Als echte kaasliefhebber met buitengewone verhalen, bleek Kef een pionier op het gebied van kaas en liet hij een blijvende indruk achter. In 2017 opende er ook een Fromagerie Abraham Kef in Amsterdam-Noord, waar je naast de kaaswinkel ook een proeflokaal hebt. Hier kan alle kazen proeven in combinatie met een assortiment aan bijpassende (natuur)wijnen.

Kaddour
25
Adres
Gentiaanstraat 13,
1031 AE Amsterdam

Slagerij Kaddour

Bij Kaddour hebben ze een breed scala aan ambachtelijk vers vlees en vleeswaren. Het assortiment biedt puur en eerlijk kwaliteitsvlees, zowel lokaal als wereldwijd, waaronder Hollands vlees, exclusief Halal Wagyu, verfijnd John Dee rundvlees uit Australië en smaakvol Maimoa lamsvlees uit Nieuw-Zeeland. Al ruim 35 jaar staat Slagerij Kaddour bekend om uitmuntende kwaliteit, met recepten die generaties lang worden doorgegeven. Ontdek de gezonde, diervriendelijke aanpak en geniet van handgeknoopte rollades, gourmet- en barbecuepakketten, ambachtelijke vleeswaren en het welbekende broodje kip grilworst.

Wonen aan de Amstel, het beste van twee werelden

Wonen aan de Amstel, het beste van twee werelden

Huize Loma, architect Warners liet zich inspireren door de appartementen in Parijs en Wenen en paste zijn visie toe in Amsterdam.

Huize Loma, architect Warners liet zich inspireren door de appartementen in Parijs en Wenen en paste zijn visie toe in Amsterdam.

De jurist die kunst gebruikt om anders te denken. Aernoud Bourdrez over kunst, conflicten en de ruimte tussen die twee.

De jurist die kunst gebruikt om anders te denken. Aernoud Bourdrez over kunst, conflicten en de ruimte tussen die twee.

Onlangs bekeken
Bekijk het overzicht

Deze site maakt gebruik van cookies.

Voor welke cookies geef je akkoord?