Gestoffeerd, modern gerenoveerd twee slaapkamer hoekappartement met twee badkamers, twee balkons, groot dakterras, lift en privé parkeerbox voor twee auto's. Gelegen op de zesde verdieping met een waanzinnig uitzicht over het water. Op loopafstand van Amsterdam Centraal Station en uitstekende verbinding met de Ringweg A10.

De zesde verdieping
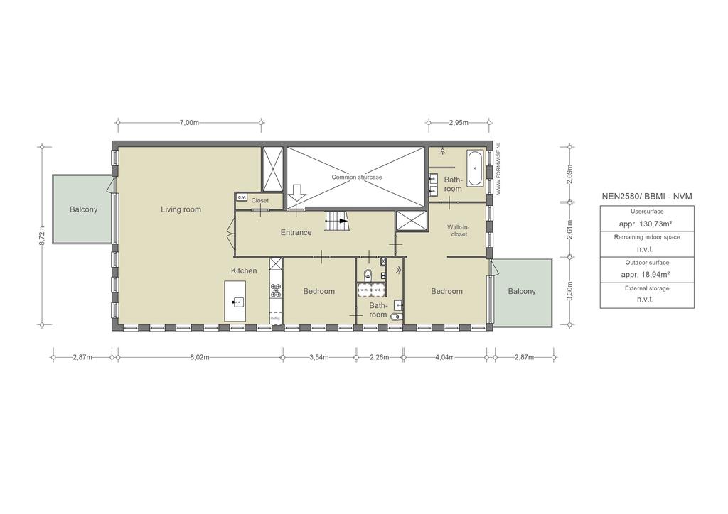
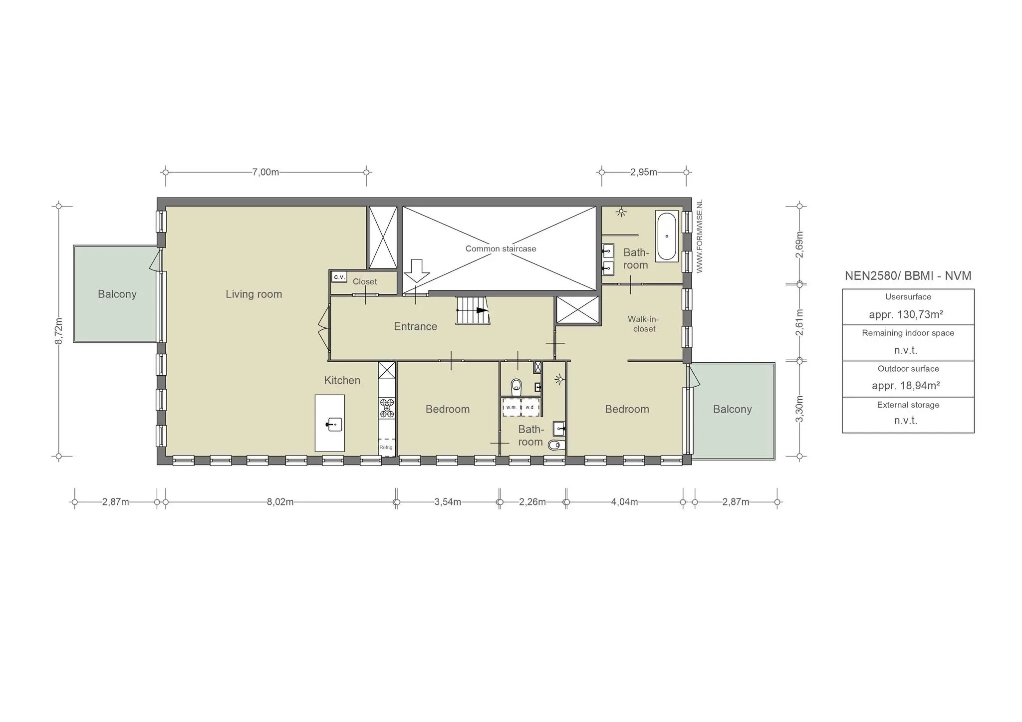
Het appartement ligt op de 6e verdieping en is bereikbaar via trap of lift die direct naar de voordeur van het appartement leidt. Door het gehele appartement ligt een ingelegde visgraat parketvloer. Grote uitnodigende entree met toegang tot alle vertrekken.

Aan de voorzijde de grote woonkamer met open keuken. De woonkamer is zeer licht door de vele raampartijen rondom die tevens een indrukwekkend uitzicht geven op het Zuid-Westen en over het water. De veelzijdige, ruime open keuken met kookeiland is voorzien van alle moderne inbouwapparatuur, zoals: inductiekookplaat, afzuigkap, vaatwasser, koel-vriescombinatie, magnetron en oven.

Aan de achterzijde de masterbedroom met grote inloopkast, en suite badkamer met ligbad, inloopdouche en dubbele wastafels. Vanuit hier toegang tot het balkon gelegen op het Noord-Oosten. De tweede slaapkamer heeft een ensuite badkamer met inloopdouche, wastafel en toilet. Verder een wasmachine en droger. Separaat toilet op de gang.

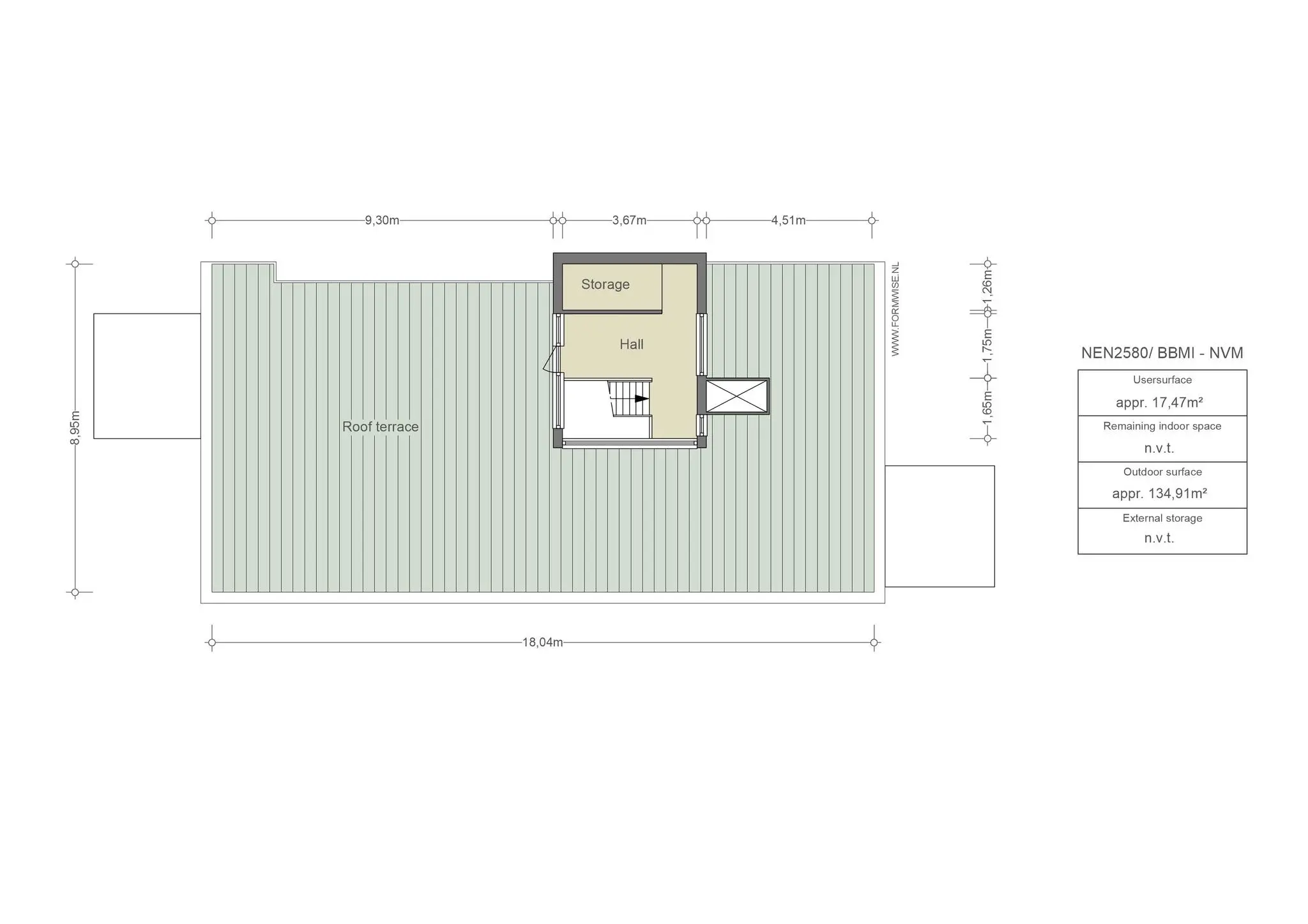
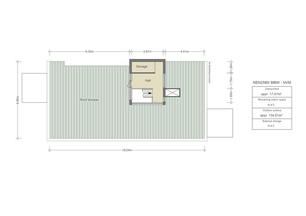
De buitenruimte 
Het appartement beschikt over een zeer groot zonnig dakterras van ca. 135 m2 met prachtig uitzicht over Amsterdam.

De parkeergelegenheid 
Privé parkeerbox voor twee auto's

De omgeving 
Gelegen op een rustige plek in het centrum van Amsterdam aan het water en op een steenworp afstand van het bruisende en oude centrum. Een grote diversiteit aan hippe cafe’s, keukens, traiteurs en (biologische) supermarkten bevinden zich in de directe omgeving en vooral aan de unieke winkelstraat ‘Haarlemmerstraat’. 

Elke woensdag is er op het Haarlemmerplein een Boerenmarkt. Bijzonder hieraan is dat achter de kraam vaak mensen staan die direct bij de productie van de product betrokken zijn. 

De bereikbaarheid
De locatie is met de fiets, auto en openbaar vervoer goed bereikbaar. Centraal station ligt op vijf minuten loopafstand en bus 58 stop direct voor de deur. De ringweg A10 ligt ook binnen bereik. 

De bijzonderheden
- Beschikbaar: per 1 april;
- Huurprijs: € 4.000,- excl. per maand incl. parkeerplaats;
- Huurperiode: onbepaalde tijd, minimaal 12 maanden;
- Borg: 2 maanden huur;
- Studenten woningdelers niet toegestaan;
- Gestoffeerd.

Kenmerken
Westerdok 358, Amsterdam
Huurprijs
  • € 4.000 per maand
Beschikbaarheid
  • Per datum
Vertrekken
  • 3 kamers
  • 2 slaapkamers
  • 1 badkamer
Onderhoud
  • Intern: Goed
  • Extern: Goed
Oppervlakten & Inhoud
  • Woonoppervlakte: 148 m²
  • Gebouwgebonden buitenruimte: 135 m²
Bouwjaar
  • 2008
Installaties
  • Alarminstallatie
  • Lift
  • Mechanische ventilatie
Ligging
  • Aan rustige weg
  • Aan water
  • In centrum
  • In woonwijk
  • Vrij uitzicht
Parkeren
  • Garagebox
Type verwarming
  • CV Ketel
Type warmwater
  • CV Ketel
Bestemming
  • Woonruimte
Buitenruimte
  • Geen tuin
Soort
  • Appartement
  • Penthouse
Welke woonlaag
  • 6e
Bijzonderheden
  • Gestoffeerd
Plattegrond
Westerdok 358, Amsterdam
AM106067-1984894-Westerdok-358,-Amsterdam-220936909
AM106067-1984894-Westerdok-358,-Amsterdam-220936913
Documenten
Westerdok 358, Amsterdam
Locatie
Westerdok 358, Amsterdam
Kunst & cultuur
WELIKEART_ARTROTTERDAM_2022_Fotograaf-Almicheal-Fraay-2048×1365
01
Adres
Leliëndaalstraat 4,
1013 BP Amsterdam

Stichting We Like Art

Het motto van Stichting We Like Art is ‘Kunst is voor iedereen!’. In de knusse galerie aan de Leliëndaalstraat 4 in Amsterdam kunnen beginnende kunstkopers maar ook ervaren verzamelaars hun hart ophalen en bijzonder werk van toonaangevende kunstenaars bekijken (en voor een vriendelijke prijs kopen). Daarnaast staat hun vrolijke website welikeart.nl vol met interessante kunstenaarsinterviews.

Schermafbeelding 2022-06-20 om 15.19.32
02
Adres
Westerdok 824,
1013 BV Amsterdam

The Ravestijn Gallery

The Ravestijn Gallery werd in 2012 in Amsterdam opgericht door Jasper Bode en Narda Van 't Veer met een focus op onderzoekende en provocerende benaderingen van hedendaagse fotografie. En daarin zijn ze geslaagd. De galerie vertegenwoordigd verschillende nationale en internationale experimentele kunstenaars die het vermogen van fotografie op allerlei verschillende manieren laten zien. Deze moderne benadering van de hedendaagse fotografie maakt de tentoonstellingen van De Ravestijn Gallery zeer interessant. Maar, daarnaast zijn de kunstwerken ook een groot esthetisch plezier om naar te kijken en misschien zelfs een goede inspiratiebron voor de aankleding van een nieuw huis?

Gallery
03
Adres
Tussen de Bogen 91,
1013 JB Amsterdam

Elliott Gallery

Als je van fotografie houdt dan ben je bij ElliotHalls aan het goede adres. Het hele jaar door houdt deze galerie uitgebreide tentoonstellingen met het werk van historische en hedendaagse fotografen. Hun selectie van kunstenaars omvat internationaal bekende namen wiens werk regelmatig te zien is in grote musea en bedrijfscollecties. De galerie heeft ook een Prentenkabinet waar klanten, fotografie-experts en liefhebbers op afspraak hun collectie kunnen bekijken. ElliottHalls Gallery laat je kennis maken met een een grote maar ook diverse groep van veelgeprezen fotografen uit de internationale fotografiegemeenschap.

IMG_3630-768×512-1
04
Adres
Haarlemmerdijk 159,
1013 KH Amsterdam

The Movies

Bioscoop The Movies bestaat al sinds 1912. Het wordt vaak de oudste bioscoop van Amsterdam genoemd maar formeel is dat bioscoop de Uitkijk, die een jaar eerder zich heeft ingeschreven. In haar eerste jaren werd de bioscoop gebruikt als kleinschalige buurtcinema en pas na de Tweede Wereldoorlog werden er ook films voor groter publiek getoond. Vandaag de dag is het één van de populairste arthouse bioscopen in Amsterdam. Er komen ook veel bezoekers naar The Movies om het historische interieur te bewonderen. De bioscoop is gevestigd in een 17e eeuws pand aan de Haarlemmerdijk en het originele art-deco interieur is in goede staat gebleven. Een bezoek aan deze bioscoop voelt als een reis door de tijd.

mcdonald2021viewToets-wall-HlmpleinA700
05
Adres
Planciusstraat 9-A,
1013 MD Amsterdam

Galerie van Gelder

Van dinsdag tot zondag zijn de deuren van Galerie van Gelder geopend en tonen ze, bij voorkeur, concept gerichte kunst. Jonge en oude, bekende en opkomende kunstenaar zijn in het tentoonstellingsprogramma te vinden, dat bestaat uit tekeningen en objecten maar ook film, performances en installaties.

Schermafbeelding 2022-06-20 om 15.04.08
06
Adres
Planciusstraat 7,
1013 MD Amsterdam

Galerie Onrust

Galerie Onrust werd in 1986 opgericht door Milco Onrust en is tegenwoordig gehuisvest aan de Planciusstraat 9. De lichte en ruime galerie legt de nadruk op de hedendaagse schilderkunst. Boudi Eskens is de huidige eigenaresse en de meeste kunstenaars die zij vertegenwoordigen zijn al vele jaren bij hen, met wie zij talloze prachtige tentoonstellingen en publicaties hebben gemaakt.

Eten & drinken
07
Adres
IJdok 185,
1013 MM Amsterdam

Mos (*)

MOS Amsterdam is een Michelinster-restaurant aan het IJdok, met een prachtig uitzicht over het water en de skyline van Amsterdam. Onder leiding van chef-kok Egon van Hoof en gastheer Henry Pattiwael van Westerloo biedt MOS een culinaire totaalbeleving waarin smaak, service, en locatie perfect samenkomen. De Frans-internationale keuken van MOS draait om pure, seizoensgebonden ingrediënten. Denk aan gerechten als tartaar van Hollands kalfsvlees met Zeeuwse oester, Baharat, bloody mary en forelkuit of bijvoorbeeld Coquille met zwarte sesam, maitake, umeboshi en daikon.

5fef6451-95cb-404d-8776-e67a2e5fb3dd
08
Adres
Haarlemmerdijk 44,
1013 JD Amsterdam

Café de Poort

Café de Poort is een gezellig buurtcafé aan de Haarlemmerdijk. Het is een bijzonder sfeervol café met veel aandacht voor authentieke details.

363493845_1972781869741383_4382197113396841408_n
364272482_1318819462403968_7421299209956734309_n
09
Adres
Haarlemmerdijk 61,
1013 KB Amsterdam

Calisto

Calisto is gevestigd in een gezellig monumentaal pand en is zowel een restaurant als een boetiekhotel met 10 kamers gelegen in hartje Jordaan. Het gebouw heeft altijd dienstgedaan als hotel met een restaurant en verwelkomt al sinds de 17e eeuw mensen om te eten, te drinken en te verblijven. Restaurant Calisto is een trattoria-stijl restaurant waar de Romeinse chef-kok Stefano Orofino 'la cucina romana' naar Amsterdam brengt met seizoensgebonden hapjes, gerechten en pasta's. De gerechten kunnen worden gecombineerd met een glas of fles van de samengestelde wijnkaart met natuurlijke wijnen uit Italië, Frankrijk en daarbuiten. Een van de hoogtepunten is de zondagse brunch.

445185908_18352033090103176_6456299625204716557_n
447421480_18352745500103176_8661321314303363375_n
10
Adres
Zandhoek 14,
1013 KT Amsterdam

Tannay

In voorheen de Gouden Reaal introduceert Chef Thomas Demuth, als partner van Familie Caron, restaurant Tannay. Tannay is vernoemd naar de appellatie Coteaux Tannay waar Demuth opgroeide in de Bourgogne en waar zijn vader nog steeds wijn maakt. Je kunt er aan tafel eten, maar er zijn ook plaatsen aan de keuken. na jarenlang in topzaken in Frankrijk te hebben gewerkt kookt Thomas in Amsterdam uit herinneringen die hem voeren vanuit de keuken van zijn moeder in de Bourgogne.  Hij presenteert zijn gerechten in een 5-gangen chef’s menu of à la carte met een wijnkaart die de diepte van de Bourgogne, Loire en Champagne verkent.

357666000_565409709133614_3220415578358837435_n
11
Adres
Binnen Oranjestraat 14,
1013 JA Amsterdam

Small World Catering

De Australische eigenaar Sean Wainer opende Small World Catering eind jaren 90. Al het eten wordt ter plaatse bereid, van warme maaltijden tot taarten. Ze maken gebruik van dagelijks geleverde verse producten, olie en kazen. Het menu  bestaat uit warme en koude broodjes. Je kan je brood kiezen uit foccacia, ciabatta, bruin en gluten vrij brood. De toppings variëren van een klassieke pastrami met gesmolten kaas tot tonijn sashimi met zongedroogde tomaat.

346166694_147865054802022_210577611180075131_n
272271185_1086484365472613_8068163084949701923_n
12
Adres
Haarlemmerdijk 138,
1013 JJ Amsterdam

Venu

Venu is in de eerste plaats een moderne co-workingruimte die werkt op afspraak of via een maandelijks lidmaatschap, zodat je altijd verzekerd bent van een plek. Het is prachtig ingericht met een strak, minimalistisch interieur.  Bovenin is het café, waar ze naast heerlijke koffie ook iced matcha lattes en een verfrissende milky oolong iced tea serveren. Ze hebben ook altijd zoete lekkernijen in de aanbieding.

web-images-Slider01_B
13
Adres
Buiten Brouwersstraat 19h,
1013 GJ Amsterdam

Café de Vrouw met de Baard

De Vrouw met de Baard - alleen de naam is reden genoeg om hier een keertje langs te wippen. Geheel met eigen merchandise, eigen sambal en soul kookboek én playlist weet het eethuis in het centrum een stempel te zetten op de Indisch/Molukse keuken. Ookal is de Rendang het gerecht waarvoor mensen van mijl en ver komen, ook de vegetarische alternatieven met jackfruit en aubergine zijn meer dan de moeite waard. De huiskamer-achtige sfeer geeft het geheel een echt familiegevoel, wat volgens de eigenaren zelf exact het doel is van soul- en comfortfood!

242169386_4162434750520584_8156400374067126363_n
14
Adres
Binnen Dommersstraat 15,
1013 HK Amsterdam

Toki

Achter de Haarlemmerdijk vind je Toki, ze serveren hier perfecte koffie gemaakt door gekwalificeerde barista’s die precies weten hoe ze de lekkerste flat whites, espresso’s en gewone koffies maken. Ook serveren ze hier heerlijk bananenbrood en zelfgemaakte Aziatisch getinte salades en broodjes. Het is minimalistisch ingericht maar heeft een gezellige sfeer met een divers publiek. Van mensen die lekker in hun eentje de krant lezen tot gezinnen of stellen, voor iedereen wat wils bij Toki.

304780495_484810383653892_8455702289174150848_n
15
Adres
Haarlemmerstraat 91,
1013 EL Amsterdam

De Blauwe Druif

Met zijn glas-in-lood ramen en gehaakte gordijntjes zijn de deuren van Café de Blauwe Druif al open sinds 1733. Het is gevestigd vlakbij het WestIndisch Huis. Schippers die werkten voor de WIC dronken afscheid-en verwelkomt-borrels in de Blauwe Druif.

16
Adres
Westerdoksdijk 715a,
1013 BX Amsterdam

Café Westerdok

Café Westerdok was oorspronkelijk een havencafé. Tegenwoordig moet je er zijn als je van bier houdt. Ze schenken wel 86 verschillende soorten.

Boek-Jordaan-1965
17
Adres
Prinsengracht 2,
1015 DV Amsterdam

Het Papeneiland

Het huidige pand van het café komt uit 1642. Aan het begin van de Prinsengracht bevond zich in de 17de eeuw op nummer 7 een katholieke schuilkerk en deze was via een tunnel verbonden met het pand op de hoek. De ingang van de tunnel bevindt zich nog altijd in de kelder van het café. ’T Papeneiland werd wereldnieuws toen Bill Clinton bij zijn bezoek aan Amsterdam de zelfgebakken appeltaart kwam proeven. Ga langs en beoordeel zelf.

downloadgram.org_564914372_17894235000344709_3630296456154424901_n
downloadgram.org_497181374_17874833946344709_1958193185845108435_n
18
Adres
Barentszstraat 171,
1013 NM Amsterdam

Boon & de Koot

Na het succes van Zoldering openden chef Thomas Bron, wijnimporteur Joost Clarijs en sommeliers Job Seuren en Wout Jans met Boon & de Koot een laagdrempelige wijnbar in de Zeeheldenbuurt, zonder in te leveren op kwaliteit. Het menu begint met sterke snacks zoals de oeuf mayo met gepofte knoflook en lavas, slim geserveerd zodat je hem in één hap kunt eten. Daarna volgen verfijnde voorgerechten als rauwe zeebaars met beurre noisette en kalamansi of een grove steak tartaar met radicchio en ansjovis. De echte showsteler is het gerecht van geroosterde doperwtjes met tomatillo, olijf en eidooier, een perfect samenspel van rook, frisheid en romigheid. Binnen heerst een Franse bistrosfeer, buiten nodigt het terras met marmeren tafeltjes en bordeauxrode stoeltjes uit om net zo makkelijk te blijven hangen voor nog een glas.

Interieur
218608734_6463109070381616_757357937076898474_n
247864582_7138406816185168_9218306182338378760_n
19
Adres
Haarlemmerstraat 110,
1013 EW Amsterdam

Sukha

Sukha betekent 'joy of life' in het Sanskriet, en de vreugde zie je terug in het mooi ingerichte lichte pand aan de Haarlemmerstraat in Amsterdam. Het label, Atelier Sukha, maakt enkel gebruik van de puurste, meest natuurlijke materialen zoals wol, linnen, katoen, klei en kasjmier. Deze pure materialen zijn verwerkt in alle prachtige producten die de winkel aanbiedt: een assortiment van vrouwenkleding tot interieur en kunstvoorwerpen. Leuk feitje: een groot deel van de bijzondere items wordt gemaakt in Nepal.

amsterdam_860x
20
Adres
Prinsengracht 12 HS,
1015 DV Amsterdam

Pompon

Al meer dan 30 jaar maken de bloemisten van Pompon op maat gemaakte boeketten. Niet zomaar boeketten maar van de mooiste kunstbloemen. Ze stoppen de “kunst” in kunstbloemen en creëren arrangementen die zo realistisch zijn dat je bijna vergeet dat ze voor altijd meegaan. Naast de prachtige boeketten kun je hier ook terecht voor een divers assortiment aan unieke vazen.

Boodschappen
downloadgram.org_589908876_17882133516427275_6406034947351029950_n
21
Adres
Haarlemmerdijk 125,
1013 KE Amsterdam

Scarpetta

Scarpetta is een neighbourhood pasta bar, geïnspireerd op de sfeer van klassieke Italiaanse trattoria’s, met een moderne twist voor take-away en delivery. De naam verwijst naar fare la scarpetta: het ritueel waarbij je met een stukje brood de laatste saus van je bord haalt, een gebaar van echte liefde voor eten. Op de kaart staan verse pasta’s zoals gnocchi al pomodoro, tagliatelle al ragù bolognese, rigatoni all’amatriciana en tagliolini ai funghi, allemaal bereid om direct te eten of mee te nemen in glazen potten. Naast hartige gerechten is er ook ruimte voor klassiekers als tiramisù, perfect om de maaltijd af te sluiten.

1015921_365183493604749_1058351331_o
22
Adres
Haarlemmerstraat 93,
1013 EM Amsterdam

Ibericus

Sinds 2012 vertegenwoordigt Ibericus de keuken van Spanje in de Nederlandse winkelstraten. Eenmaal binnen voelt het bij Ibericus alsof je je op het Iberische schiereiland begeeft. Overal hangen hammen met de alom bekende zwarte hoeven, de Pata Negra. Je kan hier naast vleesproducten ook andere Spaanse specialiteiten kopen, van broodjes en chorizo tot een heerlijk glaasje wijn. Als je op zoek bent naar authentiek Spaans eten kan je hier het beste terecht.

PGBIG15-1010×505-1
23
Adres
Haarlemmerstraat 80,
1013 EV Amsterdam

Petit Gâteau

Petit Gâteau is een échte Franse patisserie aan de Haarlemmerstraat in Amsterdam. Alles wordt bereid in de winkel, zichtbaar voor iedereen. Bij het aanschouwen van dit unieke concept loopt het water je in de mond. De eigenaren Meike en Patrice ontmoetten elkaar in Parijs waar Meike na haar banketbakkersopleiding een patisserie opende. Na zes succesvolle jaren in Parijs verhuisden ze naar Amsterdam om hetzelfde te doen. Bij Petit Gâteau heb je taarten in allerlei soorten en maten en kan je die taarten ook nog leren namaken in de workshops die hier worden gegeven.

de oliewinkel
24
Adres
Brouwersgracht 119,
1015 GD Amsterdam

De Oliewinkel

In 2016 opende de Oliewinkel aan de Brouwersgracht. De Oliewinkel is dé plek voor degenen die houden van lekker eten en kwaliteitsproducten. Het assortiment is samengesteld uit voornamelijk Mediterrane producten maar de nadruk ligt op olijfolie van kleine producten in Italië, Spanje, Griekenland en Frankrijk. In de winkel kan je de olie proeven zodat je zelf de lekkerste uit kan kiezen en mee kan nemen in een glazen fles die je weer opnieuw kan laten vullen.
Ook de rest van het assortiment is met zorg samengesteld. Naast verschillende heerlijke huisgemaakte pesto’s, tapenades en vinaigrettes, vind je bijvoorbeeld fantastische mosterd uit Nederland, België en Frankrijk in de schappen.
De Oliewinkel heeft bovendien verschillende soorten olijven, fantastisch tafelzuur en de lekkerste mayonaises en vinaigrettes op voorraad. In het midden van de winkel staat een tafel vol visconserven. Met name de conserven van het Spaanse merk Ortiz zijn goed vertegenwoordigd.

 

25
Adres
Haarlemmerplein,
1013 HS Amsterdam

Boerenmarkt Haarlemmerplein

De boerenmarkt Haarlemmerplein is er elke woensdag van 10:00 tot 17:00. Ze verkopen verse producten. Op de markt worden voornamelijk verse producten verkocht. Bijzonder is dat achter de kramen vaak de mensen staan die bij de productie van het voedsel zijn betrokken. Dat maakt de markt even net wat anders en ook nog eerlijker. Als je vragen over voedsel of de productie ervan hebt, kan je deze meteen aan de experts stellen wat een bezoekje aan de Boerenmarkt Haarlemmerplein, net wat specialer maakt!

Een galerie die meeleeft. In haar huis in Amsterdam Oud-Zuid ontwikkelde Marian Cramer een galeriepraktijk die zich onttrekt aan het klassieke model.

Een galerie die meeleeft. In haar huis in Amsterdam Oud-Zuid ontwikkelde Marian Cramer een galeriepraktijk die zich onttrekt aan het klassieke model.

‘Rijkszicht’, een elegant dubbel bovenhuis in het museumkwartier

‘Rijkszicht’, een elegant dubbel bovenhuis in het museumkwartier

Uitgelicht; Romance with a View, het allerlaatste stuk van de Prinsengracht

Uitgelicht; Romance with a View, het allerlaatste stuk van de Prinsengracht

Onlangs bekeken
Bekijk het overzicht

Deze site maakt gebruik van cookies.

Voor welke cookies geef je akkoord?