Zeer ruim en licht appartement van circa 180 m² op de eerste verdieping van een voormalige GEB-villa uit de 20e eeuw. Het appartement beschikt over een woonkamer, halfopen keuken, drie slaapkamers, centrale badkamer en twee balkons en een loggia. Gelegen op erfpachtgrond. Plan zelf direct online je bezichtiging in via deze link.

Rondleiding
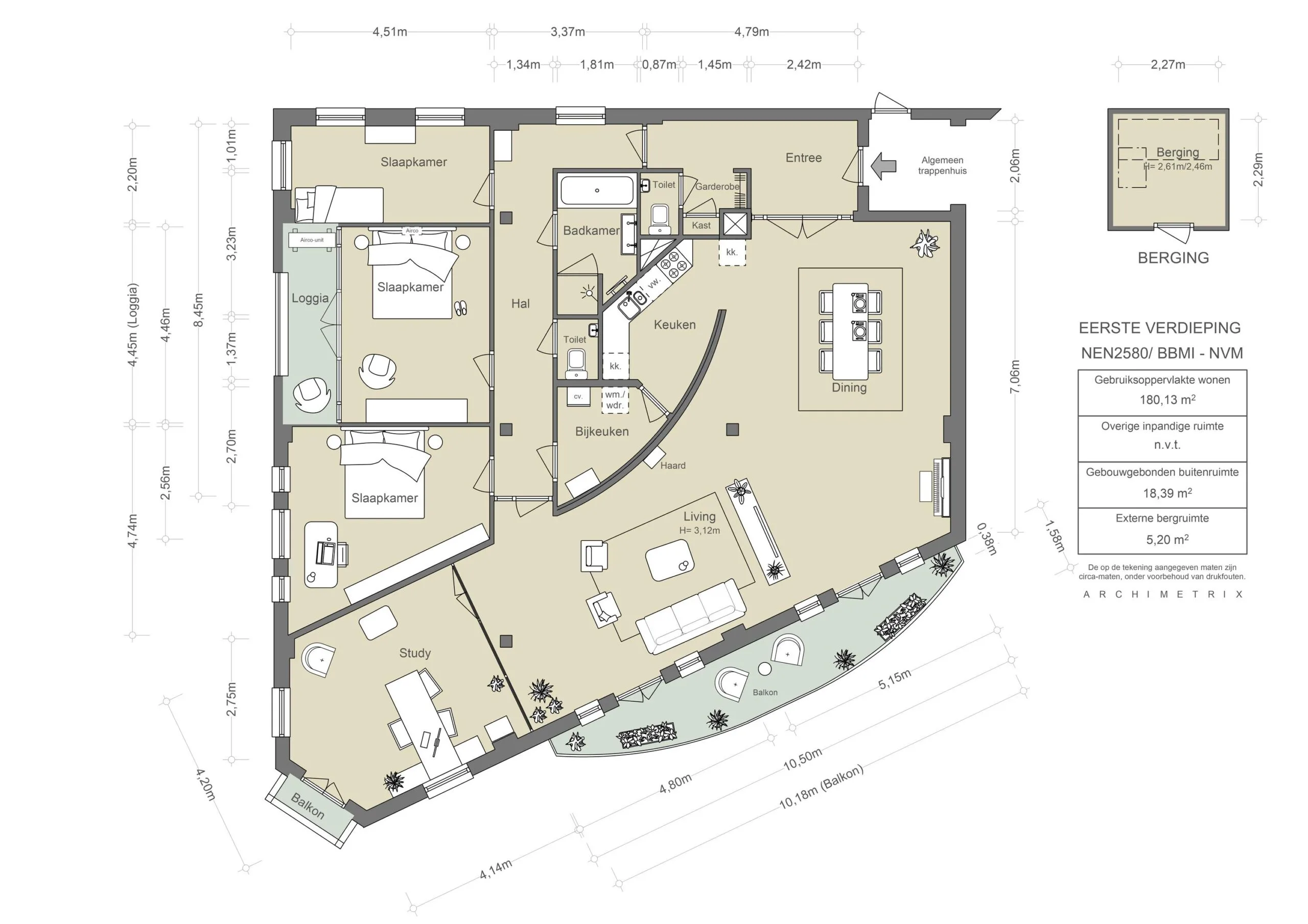
Gelegen nabij de Kadijken bevindt zich dit appartement, onderdeel van een herontwikkeling uit het begin van de jaren ’90, waarin bestaande structuren zijn gecombineerd met hedendaags wooncomfort. De woning heeft een plafondhoogte van 3,10 meter, drie balkons, een berging en een servicelift. Grote ramen op het zuiden zorgen voor veel lichtinval en een open sfeer. De woonkamer met haard sluit naadloos aan op de eetkamer en de compacte, praktische keuken met bijkeuken. Er zijn drie slaapkamers, waaronder een ruime hoofdslaapkamer met balkon op het westen en openslaande deuren naar buiten. De tweede kamer wordt gebruikt als werkkamer, de derde is geschikt als logeer- of studeerkamer. De badkamer beschikt over een ligbad, douche, dubbele wastafel en neutrale afwerking; het toilet is separaat. De buitenruimtes bieden variatie: een zonnig, zuidgericht balkon langs de gevel en een beschutte loggia op het westen. En een klein balkon op de hoek. Zo ontstaat een comfortabele en veelzijdige woning met zowel ruimte als licht.

Buurtgids
Gelegen aan de Sarphatistraat, met veel groen in de directe omgeving. De centrale ligging biedt een optimale verbinding met de stad, waarbij veel culturele voorzieningen op loopafstand zijn, zoals Artis, Hortus Botanicus, het Oosterpark en het Tropenmuseum. In de omgeving zijn veel gezellige horecagelegenheden, zoals buurtcafé Entrepotdok, Brouwerij 't IJ en Louie Louie en horeca aan het Kadijksplein.

Bijzonderheden
· Gebruiksoppervlakte wonen circa 180 m² over één woonlaag
· Energielabel A
· Twee balkons en een loggia gelegen op het zuiden en westen van in totaal circa 18 m²
· Gelegen op erfpachtgrond van de Gemeente Amsterdam. Huidig tijdvak 16-03-1991 t/m 15-03-2041, AB 1966, erfpachtcanon is afgekocht tot 2041
· Aanvraag overstap eeuwigdurende erfpacht met AB 2016 is reeds gedaan, hierbij is de erfpachtcaon vastgeklikt
· Veel hoogte, prachtig licht
· Servicekosten VvE € 568,63 per maand
· Rijksbeschermd stadsgezicht

AM106636-2064417-Sarphatistraat-221B,-Amsterdam-246202212

Villa Sarphati
Wonen in een karakteristiek pand dat in de 19e eeuw dienst deed als onderkomen voor een energiebedrijf. Eind jaren ’80 presenteerde de gemeente plannen voor de herontwikkeling van de Kadijken en het terrein van de Oranje-Nassaukazerne. Voor de voormalige GEB-villa, die jarenlang leegstond, werd destijds een overeenkomst gesloten met de eigenaar van Vimeta, een winkel in verwarmings- en elektriciteitsmaterialen gevestigd tegenover het pand. Het ruime appartement van circa 180 m², gelegen op de eerste verdieping, beschikt over een uitstekende indeling en een indrukwekkende plafondhoogte van maar liefst 3,12 meter. De aanwezigheid van drie balkons, een berging en een servicelift maken dit appartement tot een compleet geheel.


Otte van Apeldoorn | Makelaar Broersma Wonen
AM106636-2064417-Sarphatistraat-221B,-Amsterdam-255401812
Designvisie

De woonruimte strekt zich uit langs de zuidzijde van het gebouw en profiteert maximaal van het licht. Werkruimte met openslaande deuren met fraai vormgegeven glas met staal naar het balkon. Grote ramen op het zuiden zorgen voor een heldere sfeer, terwijl de indeling ruimte laat voor zowel een zithoek als een eetgedeelte. De woonkamer is ruim en overzichtelijk. Het plafond is verlaagd; er is dus nog meer hoogte te verkrijgen. De haard vormt een subtiel accent in de ruimte. Aan de voorzijde geven twee openslaande deuren toegang tot het balkon. Binnen en buiten zijn hier functioneel met elkaar verbonden. De eetruimte ligt tussen de zitruimte en de keuken in. Er is plek voor een grote eettafel, met zicht op het groen buiten. De keuken is praktisch ingericht. Witte fronten, een granieten blad en een rustige opstelling zorgen voor een heldere uitstraling. Er is voldoende werkruimte en bergruimte, met aansluitend een bijkeuken. Deze is bereikbaar vanuit de keuken zelf en vanuit de hal, wat zorgt voor een logische routing. De sfeer is rustig, licht en georganiseerd. Elke ruimte sluit logisch aan op de volgende, zonder overgangen die het gebruik onderbreken.

AM106636-2064417-Sarphatistraat-221B,-Amsterdam-272701260
AM106636-2064417-Sarphatistraat-221B,-Amsterdam-272701178
AM106636-2064417-Sarphatistraat-221B,-Amsterdam-272701176
AM106636-2064417-Sarphatistraat-221B,-Amsterdam-272701188
Wonen en koken

De woonruimte strekt zich uit langs de zuidzijde van het gebouw en profiteert maximaal van het licht. Werkruimte met openslaande deuren met fraai vormgegeven glas met staal naar het balkon. Grote ramen op het zuiden zorgen voor een heldere sfeer, terwijl de indeling ruimte laat voor zowel een zithoek als een eetgedeelte. De woonkamer is ruim en overzichtelijk. Het plafond is verlaagd; er is dus nog meer hoogte te verkrijgen. De haard vormt een subtiel accent in de ruimte. Aan de voorzijde geven twee openslaande deuren toegang tot het balkon. Binnen en buiten zijn hier functioneel met elkaar verbonden. De eetruimte ligt tussen de zitruimte en de keuken in. Er is plek voor een grote eettafel, met zicht op het groen buiten. De keuken is praktisch ingericht. Witte fronten, een granieten blad en een rustige opstelling zorgen voor een heldere uitstraling. Er is voldoende werkruimte en bergruimte, met aansluitend een bijkeuken. Deze is bereikbaar vanuit de keuken zelf en vanuit de hal, wat zorgt voor een logische routing. De sfeer is rustig, licht en georganiseerd. Elke ruimte sluit logisch aan op de volgende, zonder overgangen die het gebruik onderbreken.

AM106636-2064417-Sarphatistraat-221B,-Amsterdam-272701214
AM106636-2064417-Sarphatistraat-221B,-Amsterdam-272701172
AM106636-2064417-Sarphatistraat-221B,-Amsterdam-272701174
AM106636-2064417-Sarphatistraat-221B,-Amsterdam-272701180
AM106636-2064417-Sarphatistraat-221B,-Amsterdam-272701224
AM106636-2064417-Sarphatistraat-221B,-Amsterdam-272701242
AM106636-2064417-Sarphatistraat-221B,-Amsterdam-272701236
Slapen en baden

Het appartement beschikt over drie slaapkamers, alle bereikbaar vanuit de centrale hal. De hoofdslaapkamer is ruim opgezet en grenst direct aan het balkon op het westen. Grote raampartijen en dubbele openslaande deuren zorgen voor veel licht en een prettige verbinding met buiten. De kamer biedt volop ruimte voor een tweepersoonsbed, zitplek en garderobekast. De tweede slaapkamer, momenteel in gebruik als werkkamer, kijkt uit op de binnenplaats en het groen. Dankzij de vele ramen is hier sprake van veel daglicht. De derde slaapkamer is compacter en functioneert goed als logeer- of studeerkamer. De badkamer is uitgerust met een ligbad, een aparte douche, een dubbel wastafelmeubel en een handdoekradiator. De neutrale afwerking in wit tegelwerk en houtlookmeubel zorgt voor een rustige uitstraling. De twee toiletten zijn separaat en bevinden zich in de hal.

Sarphatistraat 221 B-28
AM106636-2064417-Sarphatistraat-221B,-Amsterdam-272701252
AM106636-2064417-Sarphatistraat-221B,-Amsterdam-272701244
AM106636-2064417-Sarphatistraat-221B,-Amsterdam-272701248
AM106636-2064417-Sarphatistraat-221B,-Amsterdam-255401884
AM106636-2064417-Sarphatistraat-221B,-Amsterdam-255401926
AM106636-2064417-Sarphatistraat-221B,-Amsterdam-272701228
De Balkons

Het ruime en lange balkon loopt langs de volledige zuidgevel van de woning en is bereikbaar via de woonkamer. Dankzij de gebogen vorm en de ligging op het zuiden is het hier op zonnige dagen aangenaam toeven, met zicht op het groen van het plantsoen. De buitenruimte is breed genoeg voor een zitje met tafel, planten en eventueel extra beplanting. Aan de westzijde grenzend aan de hoofdslaapkamer bevindt zich een loggia, die meer beschut is en daarmee ook bij minder weer bruikbaar blijft.

AM106636-2064417-Sarphatistraat-221B,-Amsterdam-272701194
AM106636-2064417-Sarphatistraat-221B,-Amsterdam-272701278
AM106636-2064417-Sarphatistraat-221B,-Amsterdam-272701264
AM106636-2064417-Sarphatistraat-221B,-Amsterdam-272701274

Gelegen aan de Sarphatistraat, met veel groen in de directe omgeving. De centrale ligging biedt een optimale verbinding met de stad, waarbij veel culturele voorzieningen op loopafstand zijn, zoals Artis, H’ART museum, het Oosterpark en het Tropenmuseum. In de omgeving zijn veel gezellige horecagelegenheden, zoals buurtcafé Entrepotdok, Brouwerij ‘t IJ en Louie Louie en horeca aan het Kadijksplein.

Bereikbaarheid
Goed bereikbaar met het openbaar vervoer via Amsterdam Muiderpoort en metrostation Weesperplein. Vanaf het metrostation vertrekken drie metrolijnen naar verschillende uithoeken van de stad. Voor openbaar vervoer binnen de stad stopt tram 1 voor de deur. Gunstig gelegen ten opzichte van de uitvalswegen A1 en A2 via de Wibautstraat.

Parkeergelegenheid
Parkeren is mogelijk via een vergunningenstelsel op de openbare weg (vergunningsgebied Centrum 3). Met een parkeervergunning voor Centrum 3 mag u parkeren in Centrum 1 en Centrum 3. Een parkeervergunning voor bewoners kost € 338,70 per 6 maanden. Momenteel is er voor dit vergunningsgebied een wachttijd van 8 maanden. Een tweede parkeervergunning is in dit gebied niet mogelijk. (Bron: Gemeente Amsterdam, mei 2026).

AM106636-2064417-Sarphatistraat-221B,-Amsterdam-272701254
Wat de eigenaren gaan missen

‘Wij hebben hier vele jaren naar volle tevredenheid gewoond en genoten van het groen aan de voorkant van het gebouw en de mooie oostelijke binnenstad. De sfeervolle omgeving maakte menige avondwandeling langs Nieuwe Vaart en Entrepotdok tot een groot plezier. De goede tram- en busverbindingen waren een pluspunt. Dat gold ook voor de vele cafés en restaurants in de omgeving. Een supermarkt aan de overkant en de gezellige Dappermarkt zorgden voor veel gemak bij het boodschappen doen. Gezien onze leeftijd vertrekken wij nu naar een service-appartement in een ander stadsdeel en nemen wij met spijt afscheid van onze woning’.

“We have lived here for many years with great satisfaction, enjoying the greenery at the front of the building and the charm of the eastern inner city. The atmospheric surroundings made many evening walks along Nieuwe Vaart and Entrepotdok a true delight. The excellent tram and bus connections were a clear advantage, as were the numerous cafés and restaurants in the area. A supermarket across the street and the lively Dappermarkt added great convenience to everyday shopping. Given our age, we are now moving to a serviced apartment in another part of the city and are bidding farewell to our home with regret.”

AM106636-2064417-Sarphatistraat-221B,-Amsterdam-272701256
AM106636-2064417-Sarphatistraat-221B,-Amsterdam-246840522
Kenmerken
Sarphatistraat 221B, Amsterdam
Vraagprijs
  • € 1.380.000 k.k.
Beschikbaarheid
  • In overleg
Vertrekken
  • 5 kamers
  • 4 slaapkamers
  • 1 badkamer
Onderhoud
  • Intern: Redelijk tot goed
  • Extern: Redelijk tot goed
Oppervlakten & Inhoud
  • Woonoppervlakte: 180 m²
  • Gebouwgebonden buitenruimte: 18 m²
  • Externe bergruimte: 5 m²
Bouwjaar
  • 1992
Installaties
  • Lift
Ligging
  • In woonwijk
Type verwarming
  • CV Ketel
Type warmwater
  • CV Ketel
Bestemming
  • Woonruimte
Eigendomssoort
  • Eigendom belast met erfpacht
Buitenruimte
  • Geen tuin
Kadastraal
  • Gemeente: Amsterdam
  • Sectie: O
  • Nummer: 4330
Duurzaamheid
  • Dubbel glas
  • Energielabel A
Soort
  • Appartement
  • Tussenverdieping
Welke woonlaag
  • 2e
Bijzonderheden
  • Beschermd stads of dorpsgezicht
Overige kenmerken

  • OZB ('26) € 664,55 per jaar
  • Rioolrecht ('26) € 192,04 per jaar
  • Servicekosten VvE € 568,63 per maand
  • Erfpachtcanon is afgekocht tot 15 maart 2041

Plattegrond
Sarphatistraat 221B, Amsterdam
AM106636-2064417-Sarphatistraat-221B,-Amsterdam-246837398
Documenten
Sarphatistraat 221B, Amsterdam
Locatie
Sarphatistraat 221B, Amsterdam
Eten & drinken
27578607_578172719204037_6017695974258900992_n
01
Adres
Zeeburgerstraat 4,
1018 AG Amsterdam

Burritos Anonymous

Bij Burritos Anonymous geloven ze dat geluk door de maag gaat.De onweerstaanbare creaties combineren verse groenten, smakelijke rijst, knapperige bonen, gesmolten kaas en een zachte bloemtortilla. Maar dat is niet alles! Een complete burrito-maaltijd omvat ook tortillachips met zure room en hete saus, altijd inbegrepen. Kies uit kip, rund, gehakt, pulled pork of een vegetarische variant. Bezoek de winkel voor deze smaakexplosie en ontdek ook de heerlijke hete sauzen en zelfgemaakte guacamole.

Brouwerij ‘t IJ
02
Adres
Funenkade 7,
1018 AL Amsterdam

Brouwerij 't IJ

Brouwerij 't IJ is een bier brouwerij gevestigd in een oud badhuis en is goed te herkennen, omdat deze naast de molen De Gooyer ligt. Ze maken speciaalbieren en deze zijn gewoon gemaakt van Amsterdams leidingwater. Het begon ooit als een kleinschalige ambachtelijke bierbrouwerij met twee soorten bier, maar inmiddels heeft het merk ook bekendheid gekregen buiten Amsterdam en heeft het assortiment zich flink uitgebreid. Proef bijvoorbeeld de bekende 'natte', 'zatte' en IJwit of probeer één van de seizoenbieren; zoals 'PaasIJ' of 'IJndejaars'. De brouwerij heeft ook een proeflokaal en een groot zonnig terras met een aanlegsteiger.

03
Adres
Dapperstraat 4,
1093 BT Amsterdam

Best döner

Hasan Karaca staat sinds 1990 met zijn kraam op de Dappermarkt in Amsterdam-Oost. Eerst verkocht hij allerlei verschillen producten totdat hij in 2003 besloot te beginnen met een kebabkraam. Dat was een goede beslissing want zijn heerlijke broodjes en wraps sloegen aan bij de bezoekers van de markt. Inmiddels heeft Hasan een grote groep vaste klanten die wekelijks een hapje bij hem komen halenHet geheim voor zijn ultieme kebab schuilt in de hoge kwaliteit van de ingrediënten. Hasan kookt alleen maar met 100% lamsvlees en voegt hier zijn ook een speciaal kruidenmengsel aan toe.

424596480_18280834828163733_2921239417396427875_n
424881953_18280834837163733_8258135845662124209_n
04
Adres
Dapperstraat 1,
1093 BK Amsterdam

Café Wu

Café Wu is een moderne bistro, geïnspireerd door de Chinese keuken en cultuur. Timo de Beurs (voorheen slagerij de beurs) serveert spannende gerechten van klassiek Chinees tot een vrije interpretatie hiervan met Europese technieken en producten. Op de wijnkaart van Chi Ling Wu (voorheen o.a. Scheepskameel) staan Europese wijnen met nadruk op Frankrijk, Duitsland en Italië. Café Wu hanteert zowel een vijf-gangenmenu als een beknopt á la carte-menu. Naast goed eten en fijne wijn is er ook bijzondere aandacht voor muziek, met een belangrijke rol voor elegant vinyl en tape.

151547326_2761937994066349_5799390836558443898_n
05
Adres
Dapperstraat 12HS,
1093 BV Amsterdam

Boi Boi

Boi Boi is een gezellige plek dicht bij de bruisende Dapper Market. Strijk neer in in de hippe tent, geniet van de met graffiti bespoten decoraties en neem de tijd voor de smaakvolle gerechten. De Thaise keuken is niet alleen smaakvol en bijzonder door de Laotiaanse twist, maar ook nog eens vers en gezond.

Naskip-Amsterdam
06
Adres
Dapperstraat 147,
1093 BS Amsterdam

Naskip

In 1962 begon de grootmoeder van de huidige eigenaren in Nederland haar heerlijke gemarineerde kip te verkopen. Met al meer dan 50 jaar succes in Suriname, staat Naskip bekend om kwaliteit, smaak, service en redelijke prijzen. De naam komt van de familieachternaam Nassy en het Amsterdamse 'nassen'.  De producten zijn volledig afgestemd op de Surinaamse smaak, bereid met verse ingrediënten en 100% plantaardige vetten. Populaire gerechten als fried chicken, french fries en gekookte maiskolven zijn hier te vinden.

downloadgram.org_590429894_17888291427401226_9085664243585121965_n
07
Adres
Czaar Peterstraat 21,
1018 NX Amsterdam

Restaurant Fyr

Executive Chef en eigenaar Elian Muller opende Fyr in de Czaar Peterstraat na jaren ervaring bij restaurant Vinkeles, waar hij zijn vakmanschap verder verfijnde. Zijn visie voor Fyr is geïnspireerd op de vier elementen — water, aarde, lucht en vuur — die samen de basis vormen van de seizoensgebonden gerechten. Muller werkt veel met lokale producten en technieken zoals koken op houtvuur, waarvoor de grote houtoven in de keuken symbool staat. De menu’s zijn zorgvuldig opgebouwd en weerspiegelen zijn liefde voor robuuste smaken en elegante presentatie. De sfeer is warm en gastvrij  met een modern interieur.

Schermafbeelding 2022-05-18 om 16.27.07
Schermafbeelding 2022-05-18 om 16.24.25
08
Adres
Linnaeusstraat 11A,
1093 EC Amsterdam

Louie Louie

Bar Louie Louie is de perfecte spot om een biertje te drinken na een bezoek aan het Tropenmuseum. Ongeacht welk wispelturig Nederlandse weer het is - het overdekte terras met heaters creëert gelegenheid om lang te blijven hangen en te genieten van de Zuid-Amerikaanse keuken.

369563027_18230648920239181_4099421685668908615_n
369536029_18230648980239181_3347084069038983889_n
09
Adres
Wagenaarstraat 70H,
1093 CV Amsterdam

Wakuli

Wakuli ontleent aan het Swahili-woord 'wakulima', wat boer betekent. Hier vind je kwaliteitskoffie die op duurzame wijze is verkregen tegen betaalbare prijzen.  Ze halen hun bonen bij kleinschalige boeren die groene productie produceren en roosteren ze op de beste manier mogelijk voor maximale smaak. Je kunt hier alle gebruikelijke koffiesoorten krijgen, evenals heerlijke ijskoffie en nitro cold brew. Last but not least, hebben ze een aantal zoete en hartige lekkernijen beschikbaar, van empanadas tot broodjes en croissants.

10
Adres
Eerste Van Swindenstraat 4,
1093 GC Amsterdam

Roopram Roti

Roopram Roti komt oorspronkelijk uit Suriname en werd geëxporteerd naar Nederland vanwege de grote vraag naar roti op de Nederlandse markt, onder andere door vakantiegangers uit Paramaribo. Om aan deze vraag te voldoen, besloot J. Roopram diepvries roti naar Nederland te exporteren. Helaas werd dit op het laatste moment tegengehouden vanwege de beperkingen op de uitvoer van kip en kipdelen uit Suriname. In plaats daarvan opende J. Roopram in juli 2002 zijn eerste restaurant aan het Mathenesserplein 89 te Rotterdam. Dit werd gevolgd door het tweede filiaal in Amsterdam, genaamd Roopram Roti Eetcafé. Sindsdien zijn er twee extra filialen geopend, namelijk in Den Haag en aan de Van Woustraat 37 te Amsterdam.

332894119_921385202326600_5373420399738393924_n
11
Adres
Mauritskade 61,
1092 AD Amsterdam

Spring Cafe Brasserie

In het vijfsterrenhotel Pillows Grand Boutique Hotel Maurits At The Park bevindt zich Spring Café Brasserie met uitzicht op het Oosterpark en een heerlijk terras voor de zomer. Binnen heerst een echte brasseriesfeer met een gevarieerd menu, waaronder klassiekers zoals steak tartaar en prei met sauce gribiche.

372585365_816792220071200_4096314404636617150_n
321610369_531908492008084_6257815916651647779_n
12
Adres
Mauritskade 61,
1092 AD Amsterdam

VanOost

Na enige vertraging en een herbenoeming is het eindelijk zover: chef Floris van Straalen, voorheen werkzaam bij Felix, opent zijn restaurant in het nieuwe Pillows Hotel Maurits aan het Oosterpark. Bij VanOost kun je een internationale keuken verwachten, gepresenteerd in de vorm van een chefsmenu. Elk seizoen staat een nieuw hoofdingrediënt centraal, waarvan de chef drie verschillende bereidingen serveert. De amuses worden geserveerd in de aparte bar, waar ook de huischampagne wordt geschonken, met uitzicht op de Mauritskade.

Schermafbeelding 2023-01-25 om 14.57.20
13
Adres
Eerste Van Swindenstraat 423,
1093 GB Amsterdam

Toko Bersama

Bij Toko Bersama kan je terecht voor authentieke Indonesische gerechten. Van heerlijke roti tot rames en van soepen tot snacks, er is voor ieder wat wils. Van de rijsttafel zijn er verschillende varianten beschikbaar, van klein (voor één persoon) tot extra compleet. Deze kan (desgewenst) volledig vegetarisch worden geserveerd. Bij de normale rijsttafel ( van €36), voor twee personen, kies je zelf twee basis-, drie vlees- en drie groente- of sojagerechten. Standaard komen daar kroepoek, seroendeng, tempé en sambal bij. De rijsttafel biedt de mogelijkheid om de verschillende Indonesische gerechten te proberen.

image
14
Adres
Eerste Van Swindenstraat 581,
1093 LC Amsterdam

Bar Botanique

Gezellig wat drinken in de groene oase van Bar Botanique. Een hippe bar waar je terecht kan voor alle soorten drankjes, lunch, pizza's, burgers en een driegangenmenu. Neem bijvoorbeeld de 'pulpo' als voorgerecht (anijs-doperwtencrème, pomme paille, chorizopoeder) een langoustine bisque als hoofdgerecht (gebakken zeeduivel, gamba's, la ratte aardappelen, seizoensgroenten) en de chocolade bavaroise (honeycomb, koekjes bodem, saus van dulce de leche met zeezout) als dessert.

465556684_569213952170014_7462375669783959967_n
15
Adres
Reinwardtstraat 1,
1093 GT Amsterdam

Turbo Amsterdam

Volgens de eigenaren (ook van het er tegenover gelegen buurtcafe de Tros) is de naam gekozen omdat de plek snel en vernieuwend moet zijn. De kwaliteit hoog, de toegang laagdrempelig. Koffie met cinnamonbuns in de ochtend, sandwiches of een huisgemaakt kroket in de middag en diner met (natuur)wijn in de avond. Een restaurant noemen ze zichzelf niet, eerder een plek voor culinaire snacks.

16
Adres
Linnaeusstraat 63H,
1093 Amsterdam

Buurtcafé de Tros

De eigenaars van dit (anders dan de naam zou vermoeden) restaurant zijn door de wol geverfd.  Het leuk hier is dat je aan de bar snacks kunt eten, maar ook aan tafel uitgebreid kunt dineren. Denk aan gerechten als dun gesneden rib-eye met balsamico mayonaise, pecorino en kappertjes of verschillende soorten kool met een hollandaise saus.

Boodschappen
63190709_2245453812169463_1319492671491801088_n
17
Adres
Wittenburgergracht 303,
1018 ZL Amsterdam

Frank's Smokehouse

Al meer dan twintig jaar bevindt Frank’s rokerij zich in Amsterdam, nog op dezelfde plek waar de eerste echte winkel werd geopend op de Wittenburgergracht. Al in 1984 leerde Frank forel roken in Zweden en zo werd hij gegrepen door de simpele oervorm van conserveren. Toen hij hier in Amsterdam mee verderging in zijn achtertuin werden eerst vrienden zijn klant en groeide zo uit tot een gevestigde rokerij. Als je erlangs loopt kan je de geur van de ambachtelijke gerookte vis en vlees al buiten ruiken.

18
Adres
Eerste Van Swindenstraat 16,
1093 GD Amsterdam

Authentic India

In het hart van stadsdeel Oost in Amsterdam vind je Authentic India, haal je heerlijke Indiase samosa's. Deze knapperige, driehoekige flapjes van filodeeg zijn gevuld met allerlei lekkernijen, zoals aardappelen, erwten en kruiden. Naast de traditionele samosa's biedt Authentic India ook verschillende andere Indiase gerechten, waaronder tandoori kip en curry's. De naam zegt het al, maar als je op zoek bent naar authentiek Indiaas eten in Oost, dan is Authentic India zeker een bezoek waard.

Schermafbeelding 2022-06-20 om 17.29.41
19
Adres
Czaar Peterstraat 118,
1018 PT Amsterdam

Enoteca Sprezzatura

Sprezzatura betekent in het Italiaans: virtuositeit, iets met speels gemak doen zodat de overtuigingskracht er vanaf spat. Enoteca Sprezzatura importeert bijzondere veelal biologische Italiaanse wijnen. De inkoop wordt gedaan bij kleinschalige wijnmakers vanuit heel Italië. Onder de naam Verkerk import wordt al meer dan 26 jaar aan de horeca geleverd. Een ware Italië-specialist dus!

downloadgram.org_586674768_17852772084595287_4799551715545584353_n
20
Adres
Reinwardtstraat 4h,
1093 HG Amsterdam

De Kaaf

De mannen achter restaurant De Tros en zusje Turbo openden met Wijnwinkel de Tros, ook wel De Kaaf, hun eigen wijnwinkel in Oost. Hier brengen ze dezelfde liefde voor natuurwijn die hun restaurants kenmerkt naar een plek waar je gewoon binnenloopt om iets moois mee naar huis te nemen. De schappen staan vol met zorgvuldig geselecteerde flessen, van pet nat tot champagne en van rood tot wit en oranje. Voor wie De Tros kent, voelt De Kaaf als een logische uitbreiding: dezelfde smaak, maar dan in winkelvorm. Daarnaast is de ruimte ook af te huren voor proeverijen en besloten avonden, waardoor De Kaaf net zo goed ontmoetingsplek als winkel is.

CP_DSC2689
21
Adres
Czaar Peterstraat 137,
1018 PH Amsterdam

Fromagerie Abraham Kef

Bij Fromagerie Abraham Kef haal je de lekkerste kazen. Al in 1953 opende Abraham Kef een winkel in het centrum van Amsterdam. Als echte kaasliefhebber met buitengewone verhalen, bleek Kef een pionier op het gebied van kaas en liet hij een blijvende indruk achter.

Kunst & cultuur
Lichthal Tropenmuseum
22
Adres
Linnaeusstraat 2,
1092 CK Amsterdam

Wereldmuseum

Het Tropenmuseum is een museum over wereldculturen en vertelt de verhalen over de koloniale geschiedenis van Nederland. Het museum is gevestigd in een monumentaal pand uit 1926 aan de rand van het Oosterpark. Binnen heeft dit museum een grote vaste collectie maar het biedt ook regelmatig nieuwe en actuele exposities aan. Het menselijk verhaal staat in dit museum centraal; ondanks de enorme diversiteit aan wereldse culturen kan de bezoeker meeleven met de elk van de verhalen die zijn getoond in dit museum. Het Tropenmuseum is ook een echte aanrader voor een museumbezoek met kinderen. Het leren over de inspirerende verhalen en exotische voorwerpen is voor bezoekers van iedere leeftijd een intrigerende ervaring.

2020 galeriefoto
23
Adres
Nieuwevaart 200,
1018 ZN Amsterdam

Galerie Franzis Engels

Op een steenworp afstand van het Centraal Station kun je Galerie Franzis Engels vinden. Een galerie voor hedendaagse kunst met wel vier verdiepingen. Op de bovenste verdieping worden zowel solo- als thematische tentoonstellingen gehouden. De drie benedenverdiepingen en de tuin tonen frisse en verrassende werken uit het galeriearchief van nationale en internationale kunstenaars.

artis_hoofdentree_ingang_adelaars_r_1920x1080.jpg__1920x0_q85_subject_location-1023,731_subsampling-2
24
Adres
Plantage Kerklaan 38-40,
1018 CZ Amsterdam

Artis

Artis is de oudste dierentuin van Nederland, het werd in 1838 opgericht met het doel om de natuur dichter bij de mensen te brengen. Het begon klein als een tuin met vijver en een wintertuin en in de loop der jaren kwamen er steeds meer gebouwen dieren en bomen bij. Vandaag de dag zijn er meer dan 900 verschillende diersoorten te bewonderen waaronder ook enkele bijzondere diersoorten zoals de algazellen, de witstaartgnoes en de margay. Je kan een hele dag zoet zijn in Artis. Waan je bijvoorbeeld in een tropisch klimaat, bewonder bijzondere vissensoorten en lach om de aapjes op de apenrots.

Interieur
Schermafbeelding 2022-06-20 om 17.00.11
25
Adres
Zeeburgerpad 26 BG,
1019 AA Amsterdam

Fortune Flea

Elke zaterdag en zondag is de Vintage interieurwinkel van Zoë open op het Zeeburgerpad in Amsterdam Oost, gepositioneerd in een gave oude loods aan het water. De creatieve eigenaresse van Fortune Flea is alleen in de weekenden open om een eenvoudige reden: de rest van de tijd is ze op treasure hunt in Frankrijk of België. Naast de winkel maakt Fortune Flea goed gebruik van Instagram als platform om te inspireren en verkopen. Mocht je op de Instagram pagina langs een item kopen dat je absoluut wilt hebben, dan kan je simpelweg reageren door middel van een privé berichtje. Dit betekent dat de verkoop dus altijd doorgaat!

‘Duurzaam hergebruik met behoud van geschiedenis’.

‘Duurzaam hergebruik met behoud van geschiedenis’.

Buurtgids: Volewijck (Noord) rondom van der Pekstraat

Buurtgids: Volewijck (Noord) rondom van der Pekstraat

Een galerie die meeleeft. In haar huis in Amsterdam Oud-Zuid ontwikkelde Marian Cramer een galeriepraktijk die zich onttrekt aan het klassieke model.

Een galerie die meeleeft. In haar huis in Amsterdam Oud-Zuid ontwikkelde Marian Cramer een galeriepraktijk die zich onttrekt aan het klassieke model.

Onlangs bekeken
Bekijk het overzicht

Deze site maakt gebruik van cookies.

Voor welke cookies geef je akkoord?