Een familiewoning verdeeld over drie heerlijke woonlagen. Een verrassende woning, waarbij de drie woonlagen zijn verdeeld over in totaal 220 m² – met onder andere een speelse en lichte woonkamer en zes slaapkamers. Deze woning heeft een eigen stijl en karakter, en een verrassende indeling die ook geschikt is voor werken aan huis. Deze woning verrast vooral vanwege de vide, de interne trap en het prachtige licht dat naar binnen valt. Bovendien biedt de woning veel ruimte voor diverse functies. Kortom: heerlijk wonen op een toplocatie in Oud-Zuid.

Rondleiding
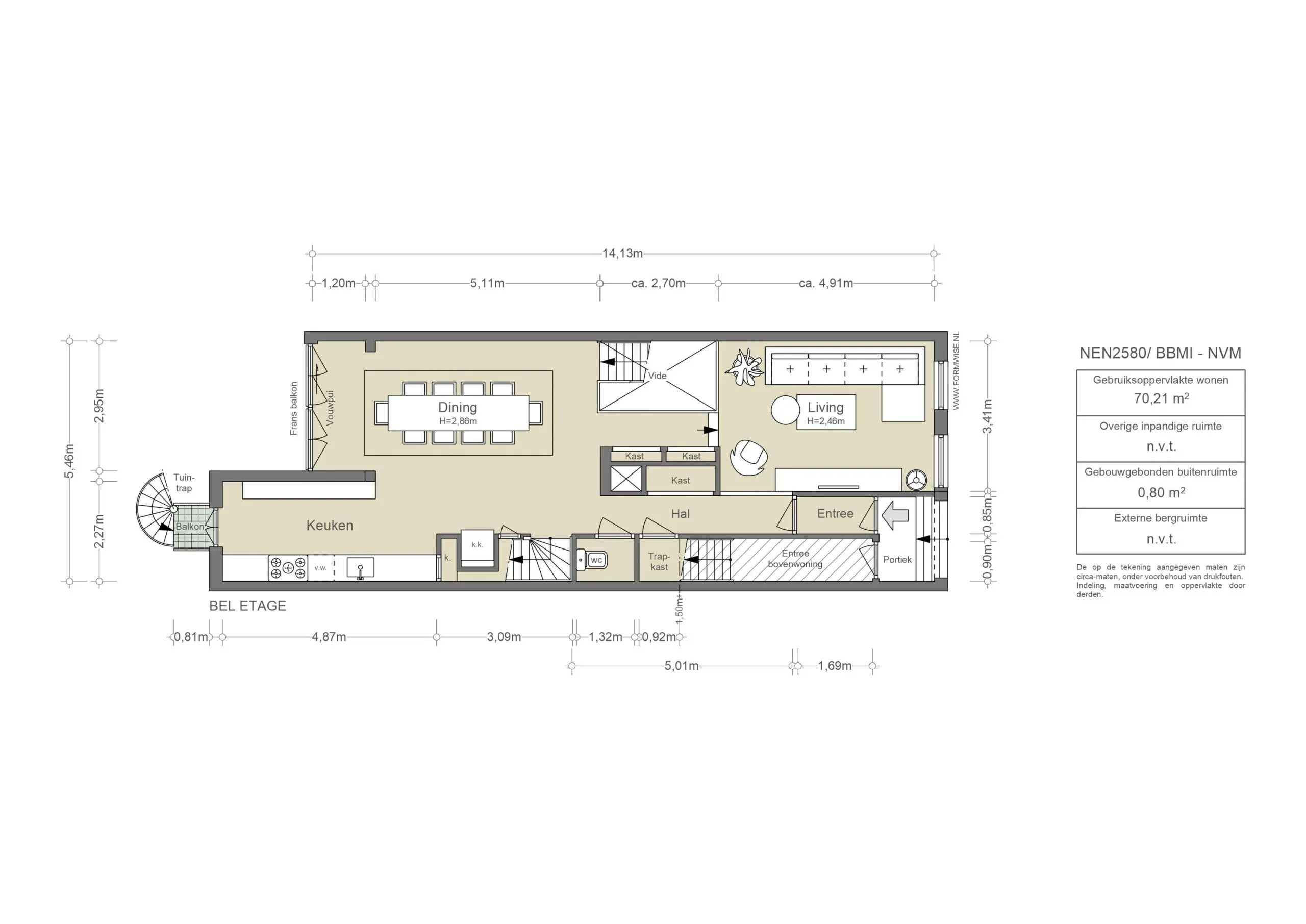
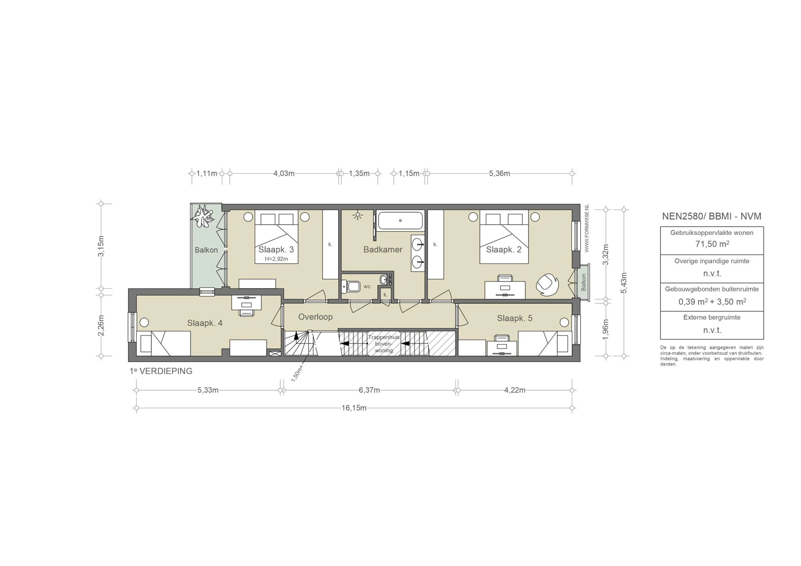
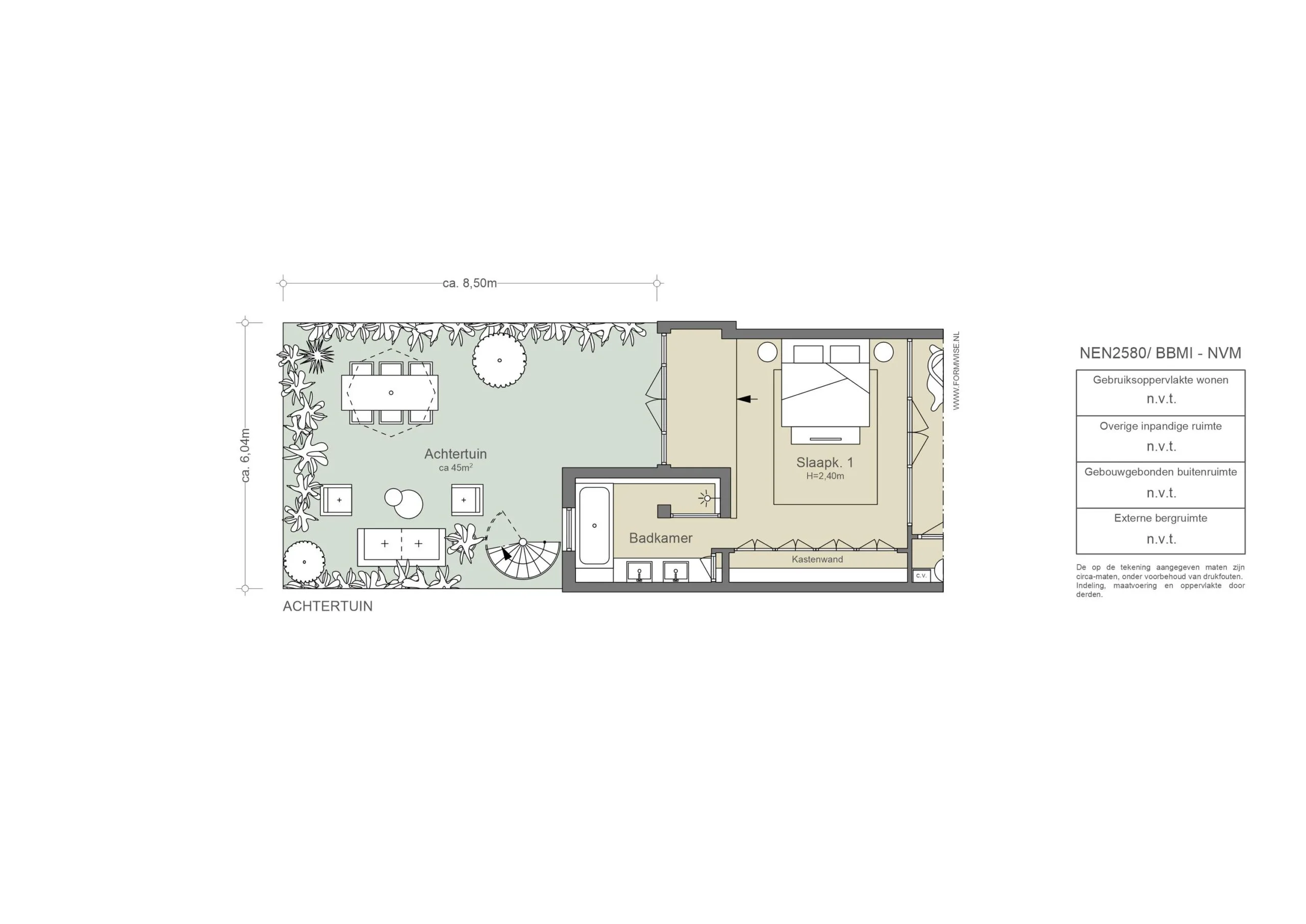
Entree op de bel-etage, die toegang geeft tot de woonetage. Een heerlijk lichte ruimte met openslaande deuren op het zuiden, die het eetgedeelte extra aangenaam maken. De keuken is halfopen en stoer van uitstraling – een fijne plek voor de kookliefhebber en heeft door de glazen achtergevel extra veel lichtinval. Een vide en een stalen trap zorgen voor verbinding met de ondergelegen woonlaag en met het zitgedeelte aan de voorzijde van het pand. De wand van de vide vormt een verticaal element dat op architectonische wijze de twee woonlagen met elkaar verbindt. Vanuit de keuken is er via een vaste trap toegang tot de tuin. De tuinverdieping beschikt over een hoofdslaapkamer met en suite badkamer, een multifunctionele kamer aan de voorzijde en een centrale ruimte met diverse gebruiksmogelijkheden. Ook bevinden zich hier een wasruimte, berging, extra kastruimte en een toilet. De zonnige, besloten tuin op het zuiden is bereikbaar vanuit zowel de keuken als de hoofdslaapkamer en wordt omgeven door volwassen groen dat zorgt voor beschutting en sfeer. Op de eerste verdieping bevinden zich vier lichte slaapkamers, een royale badkamer met ligbad, inloopdouche en dubbele wastafel, en een separaat toilet. De grootste slaapkamer aan de achterzijde geeft toegang tot een zonnig balkon op het zuiden. De gehele verdieping is afgewerkt met witgeschilderde houten vloeren.

Buurtgids
Gelegen in stadsdeel Zuid, in de geliefde Concertgebouwbuurt, vlak bij de ingang van het Vondelpark aan de Jacob Obrechtstraat en op korte afstand van de Cornelis Schuytstraat en de PC Hooftstraat. Dit deel van de Van Eeghenlaan wordt beschouwd als één van de meest gewilde woonlocaties, met het groen van het park en een aangename, ingetogen dynamiek dankzij de uitstekende buurtvoorzieningen. In de directe omgeving zijn tal van faciliteiten te vinden: van trendy koffietentjes en exclusieve winkels tot een goede bakker, slager en groenteboer. Elke zaterdag vormt de boerenmarkt in de Jacob Obrechtstraat een heerlijke aanvulling op het lokale aanbod. Bovendien zijn er op loopafstand sportscholen, yogastudio’s en de wellness van het Conservatorium Hotel beschikbaar. Het stadsdeel Zuid biedt een breed scala aan gerenommeerde (internationale) scholen, waaronder de British School, die op slechts vijf minuten fietsen ligt. Aan culturele voorzieningen geen gebrek, met onder andere het Concertgebouw, de thuisbasis van het wereldberoemde Concertgebouworkest.

Bijzonderheden
• Gebruiksoppervlakte wonen circa 220 m²
• Tuin van 8,5 meter diep gelegen op het zuiden; van circa 45 m²
• Gelegen op eigen grond
• Energielabel B
• Goede VvE
• Servicekosten VvE € 375,- per maand
• Funderingsherstel in circa 1983
• Rijksbeschermd stadsgezicht

AM104447-1796392-Van-Eeghenstraat-39H,-Amsterdam-241771078

De Drie Dubbel
Soms komen we een woning tegen die meteen de aandacht trekt vanwege de onderscheidende en eigen sfeer, bijvoorbeeld door de prachtige lichtinval. Dat geldt zeker voor De Drie Dubbel in de Van Eeghenstraat 39. Hier hebben de bewoners hun eigen stempel en identiteit op de woning gedrukt, waardoor deze een heel eigen karakter heeft. Deze woning verrast vooral vanwege de vide, de interne trap en het prachtige licht dat naar binnen valt. Bovendien biedt de woning veel ruimte voor diverse functies. Wonen in deze woning zal voor iedereen een plezier zijn, dankzij de ramen op het zuiden en de interactie met de tuin en het weelderige groen. Het is overduidelijk dat de huidige bewoners hier al meer dan twintig jaar met plezier hebben gewoond. Je ziet dat ze tot op de dag van vandaag genieten en met liefde in deze woning verblijven.
Wat voor mij ook van belang is, is dat het souterrain meer wegheeft van een tuinverdieping dan een kelder, zoals bij veel andere huizen. Dit geeft deze woonlaag een hogere kwaliteit van wonen. Het is mijn uitdaging om de juiste nieuwe bewoners te vinden die met net zoveel plezier in deze woning zullen wonen.


Kees Kemp | Makelaar Broersma Wonen
Jelle Mundt | Makelaar Broersma Wonen
Van_Eeghenstraat_39H-55_-_photoshop
Architectuur

De Van Eeghenstraat maakt eigenlijk deel uit van het stedenbouwkundig plan van architect Zocher, als onderdeel van de begrenzing van het Vondelpark, dat hij in de late 18e eeuw ontwierp. De meeste huizen in deze straat zijn ontworpen in een typerende stijl voor die tijd, die ook elders in de negentiende-eeuwse gordel te zien is. Fraai metselwerk, sierlijke balkons en erkers aan de straatzijden, samen met een haardstenen buitentrap en gevelelementen, maakten deze straat aantrekkelijk voor de gegoede burgerij, die vaak de drukke binnenstad wilde ontvluchten.
Deze stijl, gecombineerd met de buurtindeling en de nabijheid van het Vondelpark, heeft ervoor gezorgd dat de Van Eeghenstraat al lange tijd de meest gewilde buurt is om in te wonen. Van Eeghenstraat nummer 39 is oorspronkelijk gebouwd als een ruim benedenhuis en een vrij bovenhuis. Het benedenhuis heeft rond het jaar 2000 een nieuwe fundering gekregen en is vervolgens volledig gerenoveerd door de huidige bewoners. Het ontwerp en de uitvoering zijn nog altijd in uitstekende staat. De bewoners hebben dit pand met toewijding onderhouden en gemoderniseerd.

AM104447-1796392-Van-Eeghenstraat-39H,-Amsterdam-241985490
AM104447-1796392-Van-Eeghenstraat-39H,-Amsterdam-241770972
AM104447-1796392-Van-Eeghenstraat-39H,-Amsterdam-241770974
AM104447-1796392-Van-Eeghenstraat-39H,-Amsterdam-241770966
Wonen en koken

De entree bevindt zich op de bel-etage en geeft toegang tot de woonetage. Het is een heerlijk lichte ruimte met openslaande deuren op het zuiden, die het eetgedeelte bijzonder aangenaam maken. De keuken is halfopen en heeft een stoere uitstraling, perfect voor een kookliefhebber.
Een vide en een stalen trap verbinden deze etage met de daaronder gelegen woonlaag en leiden naar het zitgedeelte aan de voorzijde van het pand. De wand van de vide is een verticaal element dat architectonisch de verbinding tussen de twee woonlagen tot stand brengt.
De keuken beschikt over een deur naar een vaste trap naar de tuin.

AM104447-1796392-Van-Eeghenstraat-39H,-Amsterdam-241770940
AM104447-1796392-Van-Eeghenstraat-39H,-Amsterdam-241770958
AM104447-1796392-Van-Eeghenstraat-39H,-Amsterdam-241770978
AM104447-1796392-Van-Eeghenstraat-39H,-Amsterdam-241770980
AM104447-1796392-Van-Eeghenstraat-39H,-Amsterdam-241771044
AM104447-1796392-Van-Eeghenstraat-39H,-Amsterdam-241771036
AM104447-1796392-Van-Eeghenstraat-39H,-Amsterdam-241771046
Slapen en baden

De slaapverdieping baadt in het licht en biedt ruimte aan vier slaapkamers en een royale centrale badkamer, waarmee deze woonlaag perfect aansluit bij het gezinsleven. Aan de achterzijde bevinden zich twee slaapkamers, waarvan de grootste toegang geeft tot een zonnig balkon op het zuiden. De centrale badkamer is ingericht met een ligbad, dubbele wastafel en een inloopdouche, terwijl op de overloop een separaat toilet is gesitueerd. Aan de voorzijde ligt een ruime slaapkamer met openslaande deuren naar een klein balkon, en de vierde slaapkamer van circa tien vierkante meter completeert de indeling. De gehele verdieping is voorzien van witgeschilderde houten vloeren, die een frisse en serene sfeer creëren.

Tuinverdieping
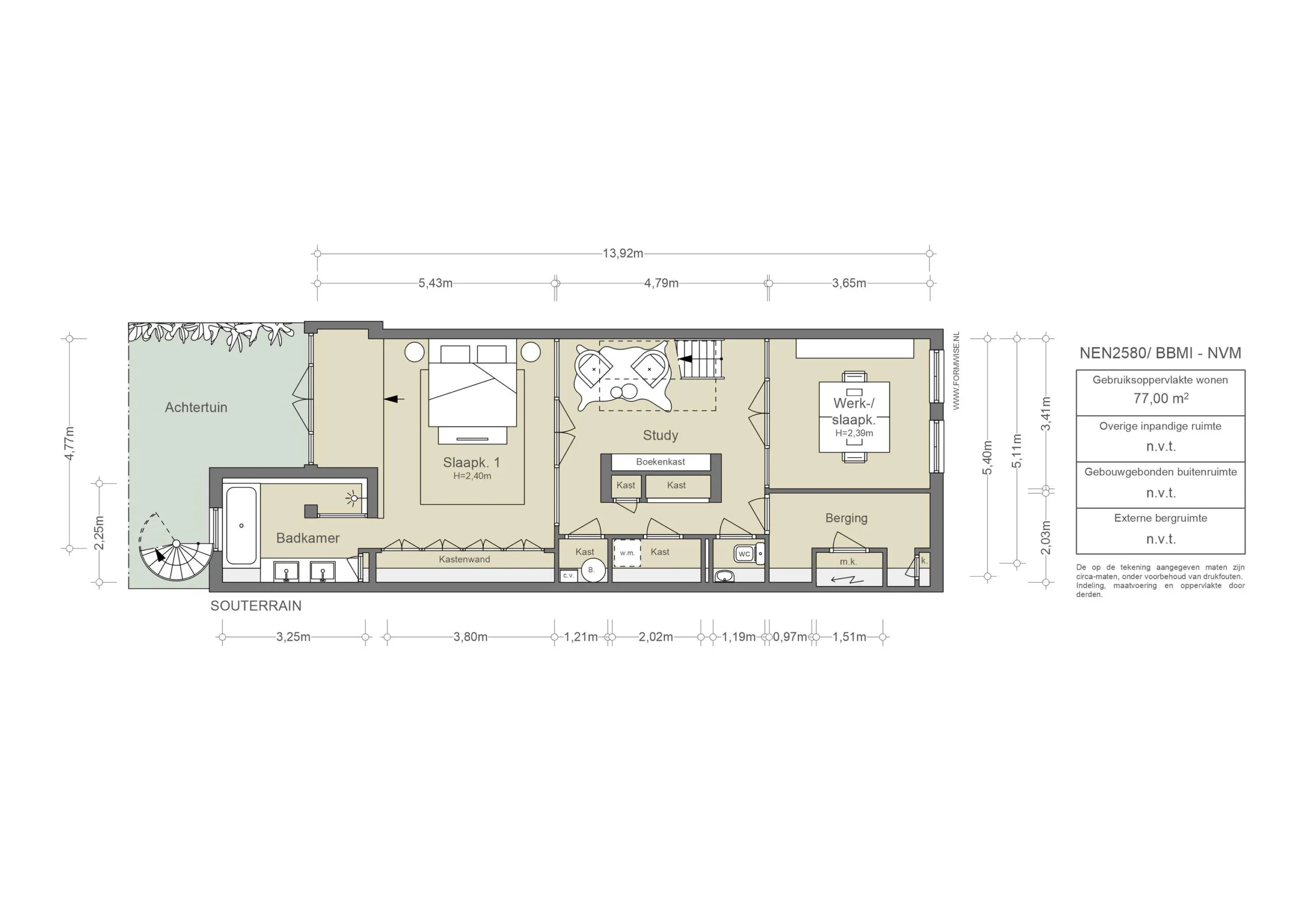
De tuinverdieping, met een vrije hoogte van 2,40 meter, beschikt over een ruime multifunctionele kamer aan de straatzijde, een hoofdslaapkamer met eigen badkamer en royale kastruimte, en centraal een multifunctionele open ruimte die naar wens kan worden ingericht. Daarnaast zijn hier een aparte wasruimte met waskoker vanaf de eerste verdieping, een berging, extra kastruimte en een toilet aanwezig. Vanuit de hoofdslaapkamer leiden openslaande deuren rechtstreeks naar de tuin, waardoor binnen en buiten moeiteloos in elkaar overvloeien.

AM104447-1796392-Van-Eeghenstraat-39H,-Amsterdam-241771054
AM104447-1796392-Van-Eeghenstraat-39H,-Amsterdam-241771058
AM104447-1796392-Van-Eeghenstraat-39H,-Amsterdam-241771020
AM104447-1796392-Van-Eeghenstraat-39H,-Amsterdam-241770990
AM104447-1796392-Van-Eeghenstraat-39H,-Amsterdam-241770996
AM104447-1796392-Van-Eeghenstraat-39H,-Amsterdam-241771088
AM104447-1796392-Van-Eeghenstraat-39H,-Amsterdam-241771074
AM104447-1796392-Van-Eeghenstraat-39H,-Amsterdam-241771080
Tuin

De tuin is gelegen op het zuiden en vormt een besloten en zonnige buitenruimte, bereikbaar via de fraai gedecoreerde trap die vanuit de keuken afdaalt naar het terras. Dankzij de gunstige ligging is er de hele dag door zon, terwijl volwassen beplanting en zorgvuldig geplaatste bomen voor aangename verkoeling en schaduw zorgen. Ook vanuit de hoofdslaapkamer is er direct toegang tot de tuin via de openslaande deuren.
Op de eerste verdieping is daarnaast een fijn balkon, grenzend aan de grote slaapkamer aan de achterzijde.

AM104447-1796392-Van-Eeghenstraat-39H,-Amsterdam-241771082
1071 DL Johannes Vermeerstraat 27 HS-80
1075 EP valeriusstraat 97 huis amsterdam – 14
1071 JV Banstraat 5 A-5

Gelegen in stadsdeel Zuid in het Concertgebouwbuurt, vlakbij de ingang van het Vondelpark bij de Jacob Obrechtstraat, en nabij de Cornelis Schuytstraat en de PC Hooftstraat. Een zeer gewilde woonlocatie. In de directe omgeving zijn vele faciliteiten aanwezig. Zoals hele hippe koffie tentjes, exclusieve winkels, sportscholen, gerenommeerde (internationale) scholen, goede restaurants en het Concertgebouw, de thuisbasis is van het wereldberoemde Concertgebouworkest.

Bereikbaarheid
Het appartement is uitstekend te bereiken met de auto via de S100, S108 en S109 vanaf de ring A10. Door de gunstige geografische ligging in de stad is o.a. luchthaven Schiphol binnen 20 autominuten bereikbaar. Daarnaast is te fiets alles uitstekend te bereiken van de dag markten in de Jordaan tot de Grachtengordel en van de Zuid-As tot de gezellige markt op het Jacob Obrechtplein.

Parkeergelegenheid
Parkeren is mogelijk in de vorm van betaald parkeren op de openbare weg met een vergunning voor bewoners (vergunningsgebied Zuid 8.1. met een wachttijd van circa 6 maanden). Een parkeervergunning voor bewoners kost € 192,81 per 6 maanden.

AM104447-1796392-Van-Eeghenstraat-39H,-Amsterdam-235425216
AM104447-1796392-Van-Eeghenstraat-39H,-Amsterdam-241770962
Wat de eigenaren gaan missen

In 2004 vonden we dit huis als een verouderd, verhuurd pand, verspreid over drie lagen. Het had zijn beste tijd gehad, maar wij zagen meteen de mogelijkheden. Samen met DRK architecten, en met het oog op hoe we als gezin wilden wonen, hebben we het grondig verbouwd en volledig aangepast aan onze wensen. We hebben hier jarenlang met veel plezier gewoond en onze drie dochters zijn hier opgegroeid. Het huis was altijd gevuld met leven – eindeloos buitenspelen, logeerpartijtjes, verjaardagen en gezellige chaos. Vriendjes en vriendinnetjes liepen af en aan, en de grote, lange eettafel was het middelpunt van talloze diners, gesprekken en herinneringen. Wat we gaan missen? De zwoele, stille avonden in onze beschutte achtertuin, terwijl het Vondelpark om de hoek juist vol reuring was. De fijne, praktische indeling van het huis, waarbij alles logisch op elkaar is afgestemd. De was-slurf die op magische wijze de kamers van de kinderen altijd opgeruimd hield. De rust van een goed ontworpen thuis, waarin ruimte, warmte en licht perfect samenkomen.
Nu onze dochters uitgevlogen zijn en op zichzelf wonen, is het tijd voor een nieuwe fase – en voor nieuwe bewoners die net zo van dit huis gaan houden als wij hebben gedaan. We nemen met een warm hart afscheid van een plek vol herinneringen, comfort en liefde.

AM104447-1796392-Van-Eeghenstraat-39H,-Amsterdam-241770960
AM104447-1796392-Van-Eeghenstraat-39H,-Amsterdam-241770956
Kenmerken
Van Eeghenstraat 39H, Amsterdam
Vraagprijs
  • € 2.480.000 k.k.
Beschikbaarheid
  • In overleg
Vertrekken
  • 8 kamers
  • 6 slaapkamers
  • 2 badkamers
Onderhoud
  • Intern: Goed tot uitstekend
  • Extern: Goed
Oppervlakten & Inhoud
  • Woonoppervlakte: 219 m²
  • Gebouwgebonden buitenruimte: 5 m²
  • Tuinoppervlakte: 45 m²
Installaties
  • Mechanische ventilatie
  • TV kabel
Ligging
  • Aan rustige weg
  • In woonwijk
Parkeren
  • Betaald parkeren
  • Parkeervergunningen
Type verwarming
  • CV Ketel
  • Vloerverwarming gedeeltelijk
Type warmwater
  • CV Ketel
Bestemming
  • Woonruimte
Eigendomssoort
  • Volle eigendom
Buitenruimte
  • Achtertuin
  • Balkon
Kadastraal
  • Gemeente: Amsterdam
  • Sectie: U
  • Nummer: 2547
Duurzaamheid
  • Energielabel B
Soort
  • Appartement
  • Dubbel-benedenhuis
Bijzonderheden
  • Beschermd stads of dorpsgezicht
Overige kenmerken
  • OZB ('25) € 1.045,52 per jaar
  • Rioolrecht ('25) € 185,20 per jaar
  • Servicekosten VvE € 375,- per maand
Plattegrond
Van Eeghenstraat 39H, Amsterdam
AM104447-1796392-Van-Eeghenstraat-39H,-Amsterdam-158687363
AM104447-1796392-Van-Eeghenstraat-39H,-Amsterdam-158687365
AM104447-1796392-Van-Eeghenstraat-39H,-Amsterdam-158687367
AM104447-1796392-Van-Eeghenstraat-39H,-Amsterdam-158687369
Documenten
Van Eeghenstraat 39H, Amsterdam
Locatie
Van Eeghenstraat 39H, Amsterdam
Kunst & cultuur
315727004_139279408874516_3171046503847699668_n
01
Adres
Willemsparkweg 64H,
1071 HK Amsterdam

Hama Gallery

Bij Hama Gallery geloven ze dat een galerie een grenzeloze ontmoetingsplaats is waar kunst en mensen samenkomen. Het doel is om kunst toegankelijker te maken door een unieke ervaring te bieden die breekt met traditie. De galerie verwelkomt bezoekers met open armen, of je nu binnenloopt voor een spontaan bezoek, een intieme privébezichtiging wilt, of samen met anderen kunst wilt vieren tijdens onze feestelijke openingen en tuinevenementen.

241801382_194597056100298_7531339944812475387_n
02
Adres
Willemsparkweg 134,
1071 HR Amsterdam

Galerie Bildhalle

Bildhalle is oorspronkelijk opgericht als een Zwitserse galerie gespecialiseerd in klassieke en hedendaagse fotografie. De galerie heeft inmiddels vestigingen in Zürich en Amsterdam. Sinds de oprichting door Mirjam Cavegn in 2013, heeft de galerie zich ontwikkeld tot een van de meest gerespecteerde fotogaleries in Zwitserland. In oktober 2021 zette Bildhalle haar groei voort met de opening van een tweede galerie aan de Willemsparkweg in Amsterdam. Hier presenteert de galerie een zorgvuldig geselecteerde collectie van Nederlandse en internationale kunstenaars, variërend van opkomend talent tot gevestigde fotografen.

1-sma-jannes-linders
03
Adres
Museumplein 10,
1071 DJ Amsterdam

Stedelijk Museum

Het Stedelijk Museum is dé plek waar iedereen moderne en hedendaagse kunst en vormgeving kan ontdekken en beleven. 365 dagen per jaar geopend. In het gebouw van het Stedelijk Museum Amsterdam versmelten oude en moderne architectuur tot een geheel. Architect Mels Crouwel gebruikte in de verbouwing van 2012 het wit van ouddirecteur Willem Sandberg als uitgangspunt voor 'de badkuip'. Het Stedelijk Museum Amsterdam neemt sinds 2008 jaarlijks 15 nieuwe Blikopeners aan. Blikopeners zijn open-minded Amsterdamse jongeren, die een jaar lang in het museum werken om de blik van het publiek en personeel te openen.

Exterieur-Concertgebouw-Kerst-Winter-crop-1
grotezaal-eduarduslee
04
Adres
Concertgebouwplein 10,
1071 LN Amsterdam

Het Concertgebouw

Het Concertgebouw is één van de monumentale panden aan het Amsterdamse Museumplein. Het gebouw stamt uit 1888 en is voltooid volgens de stijl van het Weens classicisme; als heeft het ook kenmerken uit de neorenaissance. Het gebouw is ontworpen voor klassieke concerten maar heeft in de jaren 60 en 70 ook een tijd dienst gedaan als poppodium. Bekende sterren die hier hebben opgetreden zijn onder andere Led Zappelin en Aretha Franklin. Tegenwoordig vinden er jaarlijks bijna duizend concerten en andere culturele activiteiten in het Concertgebouw plaats. Voor degenen met een kleiner budget zijn er ook gratis lunchconcerten. Voor een bezoek aan een lunchconcert kun je het beste eerst even op de website kijken. Vaak kun je daar van de voren gratis kaartjes reserveren.

c153afe5-3697-4974-a057-290d46de1ffb
05
Adres
Museumplein 6,
1071 DJ Amsterdam

Van Goghmuseum

In het Van Goghmuseum aan het museumplein vind je de mooiste werken van bekend Nederlands schilder Vincent van Gogh. Het museum heeft een vaste collectie met de meesterwerken van Van Gogh en een wisselende expositie waar werken worden getoond van zowel tijdsgenoten als hedendaagse kunstenaars. In het museum zijn tentoonstellingen geweest van onder andere David Hockney en Maurice Denis. Naast het tonen van kunst voert het Van Goghmuseum ook onderzoek uit over Vincent van Gogh en zijn tijd. Op de website van het museum kun je veel informatie vinden over de uitgevoerde onderzoeksprojecten en restauraties. Het museum is erg populair, met name onder de internationale toeristen, om teleurstelling en lange rijen te voorkomen is het handig om van te voren online al tickets te bestellen.

Eten & drinken
Schermafbeelding 2022-05-18 om 16.11.48
Schermafbeelding 2022-05-18 om 16.12.05
06
Adres
Willemsparkweg 74,
1071 HK Amsterdam

George W.P.A

George W.P.A is de ideale plek om neer te strijken voor een goed glas wijn en lekker eten met een chique touch. De brasserie in Zuid is naar eigen zeggen een combinatie van klassieke Franse gerechten, verpakt in New-Yorkse stijl en staat bekend om signature dishes zoals gegrilde kreeft en Blackened Tuna. Treed binnen (op reservering) in het "Upper South" van Amsterdam en see for yourself!

photo_1500x
07
Adres
Willemsparkweg 8h,
1071 HD Amsterdam

Coffee District

Eigenaren Adil Loukane en Rosa Loukane begonnen met een hole-in-the-wall coffeeshop in een modewinkel in Zuid. Toen de winkel de deuren sloot, grepen Adil en Rosa hun kans en besloten om hun eigen koffiebar te openen. Inmiddels hebben ze meerdere locaties. De koffie wordt gemaakt met een eigen melange gebrand door Lot Sixty One. Daarnaast worden er zoetigheden aangeboden zoals de inmiddelsal bekende kaneelbroodjes en bananenbrood.

welling
08
Adres
Jan Willem Brouwersstraat 32,
1071 LK Amsterdam

Café Welling

Café Welling is een knus buurtcafé aan de J.W. Brouwersstraat; vlakbij het Museumplein. Hier kun je genieten van een lekker biertje aan de bar of op het terras als het zonnetje schijnt. Dit buurtcafé kent een lange geschiedenis. Het café bestaat al langer dan 70 jaar maar draagt pas sinds 1963 de naam Café Welling. Deze historie verklaart misschien wel de oude vertrouwde sfeer die in dit café altijd te vinden blijkt. Interessant voor muziekliefhebbers: bij Café Welling worden regelmatig Jazz-avonden georganiseerd.

Schermafbeelding 2022-05-11 om 16.25.41
09
Adres
Johannes Verhulststraat 32,
1071 NE Amsterdam

Pizzeria Le 4 Stagioni

Voor bezoekers van het Concertgebouw zijn de Romaanse pizza's met dunne bodem geen vreemde. Sinds 1978 voorziet de pizzeria in Oud-Zuid menige groep en (grote) families van authentiek Italiaans eten. Het interieur heeft een Mediteraans tintje en het menu biedt voor ieder wat wils, van verse pasta's en mals vlees, tot onmisbare antipasti en vegetarische alternatieven.

75224712_2485719571643176_1503888755814039552_n
13227437_1766619810219826_8909053433635960844_o
10
Adres
Paulus Potterstraat 50,
1071 DB Amsterdam

Taiko

Taiko bevindt zich in het vijfsterren Conservatorium Hotel in Amsterdam. In de keuken staat chef Schilo van Coevorden. Als chef is hij klassiek Frans geschoold, maar raakte al snel niet uitgepraat over de exotische smaken uit Azië. Samen met zijn team heeft hij een menu samengebracht met onder andere sushi, dimsum, curry's en vlees en vis gerechten. Uiteraard zijn er ook vegetarische opties.

491415080_17861354841388437_2472288904698911980_n
11
Adres
Museumplein 10,
1071 DJ Amsterdam

Sandberg

Café Restaurant Sandberg is genoemd naar Willem Sandberg, de vernieuwende oud-directeur van het Stedelijk Museum, een naam die meteen iets zegt over de ambities achter dit restaurant. Het is opgezet door dezelfde jonge Amsterdamse horecaondernemers die ook achter Entrepot en Metro zitten. Overdag werkt de bakkerij samen met de keuken voor zoet bij de koffie, broodjes om mee te nemen of juist een uitgebreide lunch.  Voor het diner sluiten de gordijnen en serveert het jonge team creatieve, maar herkenbare en klassieke gerechten.

downloadgram.org_612368537_18441156778097723_3706005334160954595_n
12
Adres
Johannes Verhulststraat 64-H,
1071 NH Amsterdam

Franzen

Chef en eigenaar Jesse Franzen groeide op in een horecafamilie in Haarlem. Zijn vader stond in de keuken, zijn moeder werkte in de bediening. Zijn eigen professionele reis begon in de keuken van het tweesterrenrestaurant Chapeau, waarna hij ervaring opdeed bij onder andere Aan de Poel, Ron Gastrobar en Lars Amsterdam. Met Franzen creëert Jesse een plek die voelt als een moderne huiskamer voor de stad. Toegankelijk en warm, maar altijd met een hoge standaard. Het menu is klassiek en herkenbaar, met hier en daar een verrassende twist.

brasserie-de-joffers-buiten02-1600px-1024×615
Brasserie_De_Joffers_Lunch-7-1600px-1024×683
13
Adres
Willemsparkweg 163,
1071 GZ Amsterdam

Brasserie de Joffers

Met een groot terras in de zomer én winter is brasserie Joffers al 15 jaar een bekende hotspot op steenworp afstand van het Vondelpark en het Museumkwartier. Mocht de zon niet schijnen, dan is er binnen genoeg plek - een met kunst en spiegelwanden ingerichte ruimte, wat voor een huiselijke sfeer zorgt. De ontmoetingsplek voor de buurt is ideaal voor ontbijt, lunch en diner of simpelweg voor een lekkere kop koffie.

Post-1080×1920-2-1
Post-1080×1920-5
14
Adres
Vondelpark 3,
1071 AA Amsterdam

Café Vertigo

Café Vertigo is onderdeel van een groep Amsterdamse horeca-ondernemers, bekend van onder andere Cannibale Royale, Hannekes Boom, Nieuw Amsterdam en De Vergulden Eenhoorn. Samen met partners Thomas Anderiesen, Pim Evers en Teun Vermaas en chef Casper Moolhuizen gaven zij het historische Vondelparkpaviljoen een nieuw leven. Hun gezamenlijke visie was om van Vertigo een eigentijds grand café te maken met een duidelijke stedelijke en culturele signatuur. Het ruime terras aan het park vormt een vanzelfsprekend verlengstuk van het café, waar stad en natuur elkaar ontmoeten.

15
Adres
Cornelis Schuytstraat 8-10,
1071 JH Amsterdam

Brasserie van Dam

Brasserie van Dam staat bekend om een simpele maar effectieve receptuur: een niet te uitgebreide kaart met kwalitatief goede producten, acceptabele prijzen, goede koffie, een fijne sfeer en vriendelijk personeel.

273565404_2463417327127039_151412226997513128_n
16
Adres
Willemsparkweg 177,
1071 GZ Amsterdam

Batoni Khinkali

In Nederland is de Georgische keuken helaas ondervertegenwoordigd, ondanks haar rijke en boeiende culinaire erfgoed. Gelukkig biedt Batoni Khinkali een introductie tot deze smaakvolle keuken. Dit restaurant, opgericht door de Georgische klarinettist Levan Tskhadadze, combineert zijn liefde voor muziek met zijn passie voor koken. Hier kunnen gasten genieten van Georgische klassiekers zoals khinkali, katsjapuri en lobio, evenals een veganistisch en vleesmenu, allemaal geserveerd met de kenmerkende Georgische gastvrijheid.

Schermafbeelding 2022-07-01 om 16.24.48
17
Adres
Pieter Cornelisz Hooftstraat 87A,
1071 BP Amsterdam

Café Georgette

Café Georgette is het kleine zusje van Café George. Het is een mooie plek met een Franse, elegante en charmante sfeer. De vroege vogels kunnen hier terecht voor een espresso en de avondmensen voor een cocktail. Gelegen aan de chique P.C. Hooftstraat is deze plek de droom voor iedere fijnproever. Het menu staat vol lunchklassiekers zoals avocadotoast en croque-monsieur, maar ook tijdloze Franse klassiekers zoals oesters en steak tartare.

339816079_240302538447892_8075740380035601622_n
18
Adres
Van Baerlestraat 47-49,
1071 AP Amsterdam

L'Entrecôte et les Dames

L’Entrecôte et les Dames omarmt het concept van een formule-restaurant, zoals de Fransen het noemen. Binnen een sfeervol ingerichte Franse brasserie staat de entrecôte centraal, altijd met een lichte 'bleu' bereiding van het Maas-Rijn-IJsel rund. Dit wordt geserveerd met frietjes en een verfrissende salade. Als je hierna nog trek hebt krijg je nog een keer een portie opgediend. Liever geen vlees? Als alternatief serveren zij in roomboter gebakken sliptong met ravigottesaus. Zelfde formule en zelfde prijs als het entrecôte menu.

downloadgram.org_610617586_18420032773136397_3224401437205912253_n
19
Adres
Van Baerlestraat 51,
1071 BJ Amsterdam

Esh Pitabar

Esh Pitabar is het nieuwe hoofdstuk van broers Ilan en Joël Benamara, die eerder sinds 2015 Café Martinot runden tot het pand in 2022 noodgedwongen moest sluiten vanwege funderingsherstel. Na een succesvolle crowdfunding besloten ze hun zaak opnieuw op te bouwen, dit keer met meer ruimte voor hun Israëlische roots en inspiratie uit Tel Aviv. Chef Ilan Benamara staat zelf in de keuken en bewaakt een simpele maar duidelijke regel: alles is huisgemaakt, van de hummus tot het pitabrood. Op de kaart vind je streetfood zoals pita falafel, hummus met warme kikkererwten en verse pizza’s, precies zoals je ze in Israël ook zou eten.

Interieur
Scherm­afbeelding 2023-11-14 om 12.46.19
Scherm­afbeelding 2023-11-14 om 12.46.32
20
Adres
Van Baerlestraat 10,
1071 AL Amsterdam

Carl Hansen & Søn

Carl Hansen & Søn, een Deens familiebedrijf onder leiding van de derde generatie, belichaamt meer dan honderd jaar vakmanschap in modern design.  Bij Carl Hansen & Søn geloven ze dat iconisch design voortkomt uit eenvoud, esthetiek en functionaliteit, met aandacht voor vakmanschap en hoogwaardige materialen. De focus op het behoud van Deense ontwerpklassiekers gaat volgens hun hand in hand met het verwelkomen van nieuwe invloedrijke ontwerpers om een diverse collectie van de beste moderne meubelklassiekers te creëren.

Menno+Kroon+-+Maikel+Thijssen+Photography+-+www.maikelthijssen.com-3
21
Adres
Cornelis Schuytstraat 11,
1071 JC Amsterdam

Menno Kroon

De uitbundige en sfeervolle etalage van Menno Kroon toont zulke betoverende en bijzondere bloemen dat je wel even binnen moet kijken. Prille liefde, verrukking, het onvermijdelijke afscheid. Elk boeket van Menno Kroon geeft betekenis aan een bijzonder moment. Niks is ze te gek bij Menno Kroon en u kunt er terecht voor de meest speciale en uiteenlopende boeketten.

277535791_5208467215858783_4051211327754731278_n
274469633_5110110329027806_2507568570523403675_n
22
Adres
Van Baerlestraat 39-43,
1071 AP Amsterdam

Cosentino

Cosentino Group is een wereldwijd bekend Spaans familiebedrijf dat hoogwaardige innovatieve oppervlakken produceert en distribueert voor de wereld van design en architectuur. Aan de Van Baerlestraat bevindt zich hun inspiratiecentrum waar men kleuren, materialen en toepassingen voor architectuur en designprojecten met elkaar kan vergelijken. Cosentino City biedt een uitgebreid inspiratieplatform waar architecten en ontwerpers elkaar kunnen ontmoeten en kunnen werken.

Boodschappen
Schermafbeelding 2022-05-18 om 19.26.29
23
Adres
Van Breestraat 107A,
1071 ZJ Amsterdam

De Wijnkaart

In het Museumkwartier in Amsterdam-Zuid zit De Wijnkaart. Hier worden allerlei soorten wijnen uit de vergeten Oost-Europese wijnlanden geserveerd. Alhoewel de geschiedenis van het wijn maken hier is begonnen, zijn deze landen vaak vergeten in de wijnwereld. Als je benieuwd bent geworden naar alle soorten wijnen kan je een wijnproeverij doen in de wijnbar, waarbij je zelf mag uitkiezen welke je wil proeven. Naast de borrelplanken die wekelijks veranderen, staan er ook hoofdgerechten op het menu.

69495482_2355482024538342_8370925297519820800_n
24
Adres
1071 MR Amsterdam

ZuiderMRKT

De zuiderMRKT is een kleine, gezellige, wekelijkse buurtmarkt. Uniek door haar coöperatieve karakter. De coöperatie bestaat uit leden - enthousiaste buurtbewoners - die de markt een warm toedragen en meehelpen op de markt en in de groentekraam. De leden bepalen samen het aanbod van alle kramen. Zij kopen groente en fruit rechtstreeks in bij de boer, om ze voor eerlijke prijzen op het zuiderMRKT-plein te verkopen.

groentenier-winkel-voor-buiten
25
Adres
Cornelis Schuytstraat 35,
1071 NL Amsterdam

Groenteboer Tom Ensink

Groenteboer Tom Ensink zorgt ervoor dat klanten kunnen kiezen uit een exclusief assortiment aan eerlijke producten. Naast groenten worden er kazen, fruit, noten, oliën, wijnen én maaltijden verkocht - zorgvuldig geselecteerd voor de échte fijnproevers in Zuid. Specifieke wensen kunnen worden vervuld wat betreft het bestellen van producten, maar ook voor de verse maaltijden.

Buurtgids: Weteringbuurt

Buurtgids: Weteringbuurt

Tussen stad en stilte -genieten rondom amsterdam

Tussen stad en stilte -genieten rondom amsterdam

Amsterdamse stadstuinen

Amsterdamse stadstuinen

Onlangs bekeken
Bekijk het overzicht

Deze site maakt gebruik van cookies.

Voor welke cookies geef je akkoord?