Één van de meest indrukwekkende en royale benedenhuizen van de Concertgebouwbuurt van bijna 400 m². Dit imposante benedenhuis is verdeeld over twee woonlagen van ruim 12 meter breed. Het beschikt over een imposante living, lounge en woonkamer, en een keuken op één laag die grenzen aan een zonnig terras op het zuiden. De tuinverdieping omvat vier riante slaapkamers, vier badkamers en een werkruimte. Het appartement heeft een heerlijke tuin gesitueerd op het zonnige zuiden met een tuinhuis dat wordt gebruikt als gym. Gelegen op eigen grond.

Rondleiding
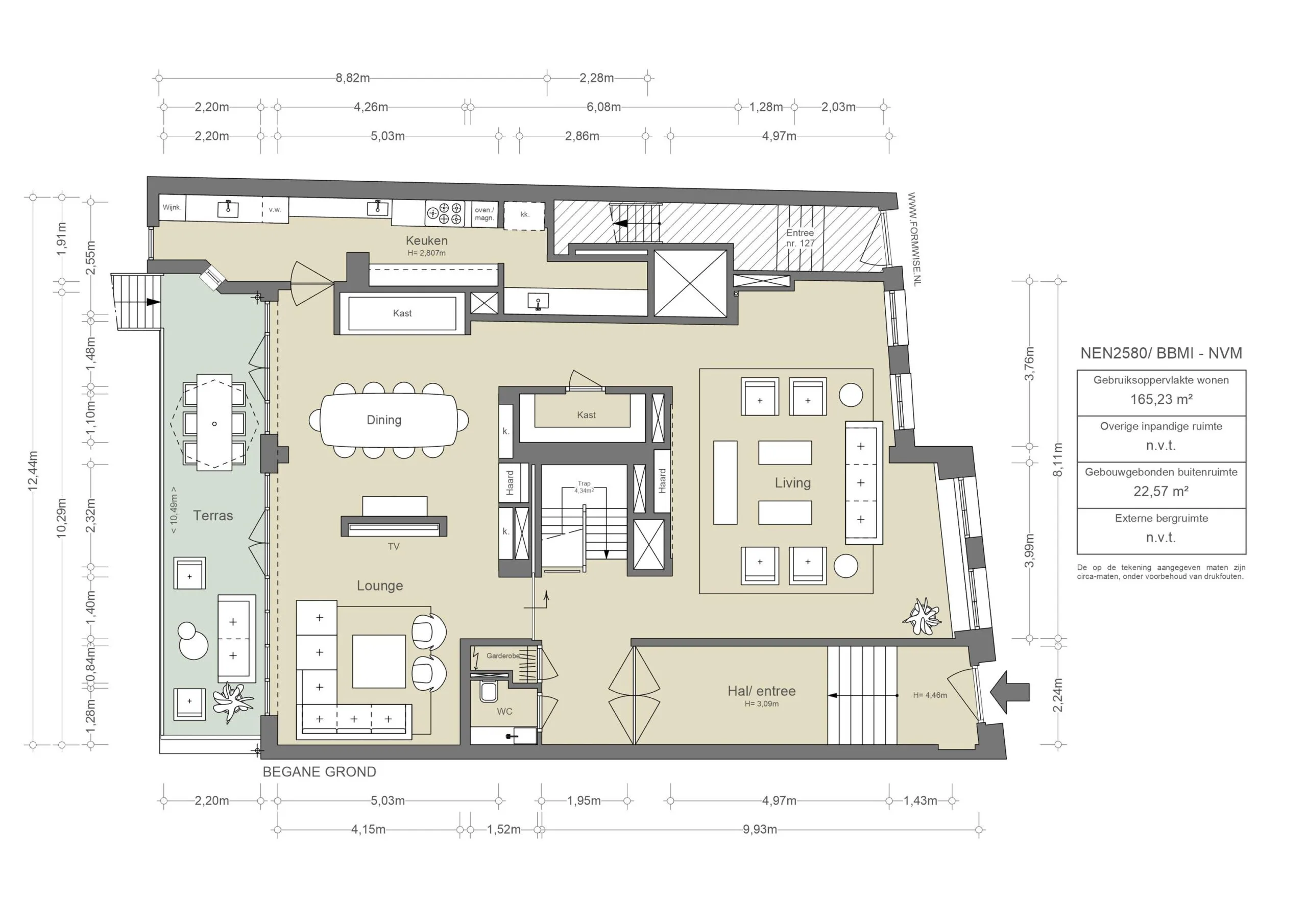
Via een riante eigen entree betreedt men de beletage, een woonlaag van circa 205 m² met een indrukwekkende vrije hoogte van 3,10 meter en een breedte van 12,5 meter. Aan de voorzijde bevindt zich een royale lounge met vier grote ramen en een open haard, terwijl de achterzijde wordt gedomineerd door een glazen gevel over de volle breedte met schuifdeuren naar een zonnig terras op het zuiden. Hier vloeit het binnenleven moeiteloos over in de buitenruimte. De beletage herbergt daarnaast een formele eetkamer, een tweede zitgedeelte aan de tuinzijde en een compleet uitgeruste keuken, ontworpen voor professioneel gebruik, maar eenvoudig te transformeren tot een open keuken dankzij de reeds getroffen bouwkundige voorzieningen.
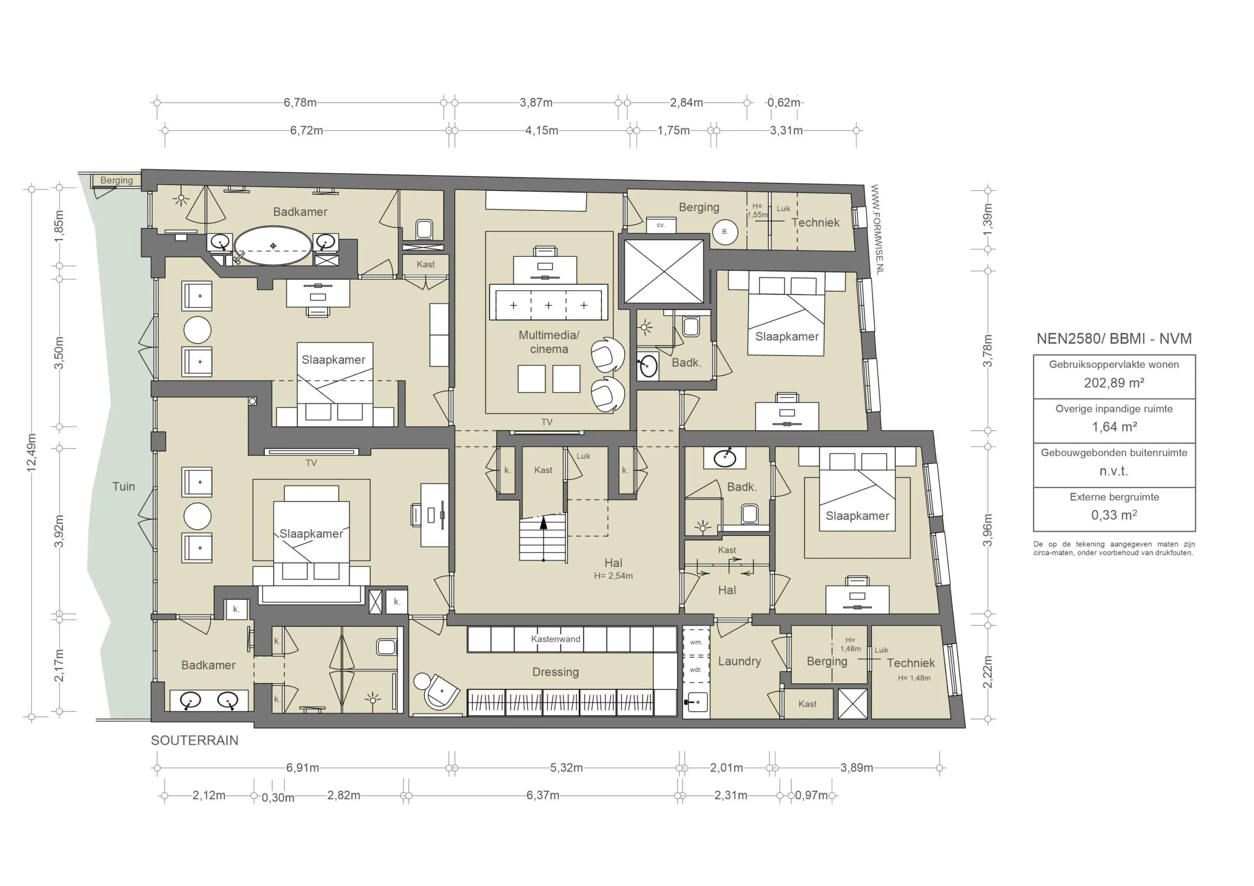
Een brede trap leidt naar de tuinverdieping, waar een centrale hal toegang biedt tot vier slaapkamers en een media- of studieruimte. De hoofdslaapkamer beschikt over openslaande deuren naar de tuin, een royale dressing en een luxe badkamer. Een tweede ruime slaapkamer aan de tuinzijde heeft eveneens een eigen badkamer. De overige twee slaapkamers aan de voorzijde zijn ieder voorzien van eigen sanitair. Praktisch gemak wordt geboden door een aparte was- en bergruimte.
De tuin, fraai aangelegd en gelegen op het zuiden, vormt met een breedte van 13 meter en een diepte van circa 16,5 meter een groene oase in de stad. Vanuit meerdere vertrekken is er directe toegang tot deze buitenruimte, die optimaal privacy en zon biedt. Aan de achterzijde staat een over de volle breedte gebouwd tuinhuis van 23 m² met een glazen pui, dat uitstekend dienst kan doen als kantoor, gastenverblijf of privégym.

Buurtgids
De woning is zeer centraal gelegen aan de Van Eeghenstraat in stadsdeel Zuid in het Museumkwartier, bij het Vondelpark, de Cornelis Schuytstraat en de Emmastraat, op een zeer gewilde woonlocatie. In de nabijheid zijn het Van Gogh Museum, het Rijksmuseum, het Stedelijk Museum en het Concertgebouw. In de buurt zijn de Beethovenstraat, P.C. Hooftstraat en Cornelis Schuytstraat met verschillende boetieks, traiteurs en goede horeca. Elke zaterdag is er een boerenmarkt op het om de hoek gelegen Jacob Obrechtplein. In het Spiegelkwartier, achter het Rijksmuseum, zijn art-galleries en boetiekjes. Het Vondelpark en de bruisende Pijp zijn op loopafstand. Authentiek Amsterdam, maar met alle voorzieningen binnen handbereik. Mooie oude gebouwen, privacy en rust. Buurtbewoners waarderen deze buurt om de specialistische winkels en restaurants op loopafstand. Het voelt als een dorp in de stad. Je loopt vanaf het naar de dichtstbijzijnde ingang van het Vondelpark het groen in. Binnen no-time ben je op de grachten, maar ook binnen enkele minuten op de snelweg.
Praktisch maar ook gewoon heel leuk. Een goed restaurant is Visque op de Willemsparkweg. Voor coffee to go adviseren we: Joe’s op de Cornelis Schuytstraat of Café Gruter voor het zonnige terras. De Schuyt staat bekend om het goede vlees.

Bijzonderheden
• Gebruiksoppervlakte wonen bijna 400 m²
• Dakterras en tuin gelegen op het zuiden van circa 205 m² (tuin) en 23 m² (dakterras)
• Gelegen op eigen grond
• Energielabel A
• Luxe en high-end verbouwd
• Tuinhuis met gym of als gastenverblijf
• Vier slaapkamers
• Vier badkamers
• Airconditioning
• Open haard
• Alarminstallatie
• Rijksbeschermd stadsgezicht

AM103629-2052395-Van-Eeghenstraat-125,-Amsterdam-242427066

The Wide Double
Voor ons kantoor is Van Eeghenstraat 125 / 127 een vertrouwd adres. Dit deel van de Van Eeghenstraat geldt als het meest gewilde gedeelte van de Concertgebouwbuurt. Wij waren reeds eerder betrokken bij deze panden als adviseur, toen de toenmalige ontwikkelaar ze samenvoegde tot woningen met een dubbele breedte. Een vondst die resulteerde in ruimtelijke objecten van hoge kwaliteit. Meer ruimte op één woonlaag creëert mogelijkheden voor een moderne indeling en laat meer daglicht toe. Dat geldt in het bijzonder voor dit benedenhuis van bijna 400 m², dat de ontwikkelaar oorspronkelijk voor zichzelf liet ontwerpen. De huidige eigenaar onderkende de bijzondere kwaliteiten en wist de ontwikkelaar te overtuigen de woning aan hem te verkopen. Het huis onderscheidt zich volledig van de overige woningen, die een traditionele indeling behouden. Van beide panden zijn de meest aangename woonlagen, de tuinverdieping en de bel-etage, samengebracht tot één geheel. Hierdoor is de tuin dubbel breed en wordt deze zowel op tuinniveau als vanaf de bel-etage groots ervaren. Deze opzet bood ruimte voor een functionele en eigentijdse indeling waarin optimaal gebruik is gemaakt van de royale oppervlakte. Linse Studio gaf de sfeer en afwerking een luxe en tijdloos karakter. De ligging op het zuiden, met grote glazen puien en een terras dat uitkijkt op de diepe en groene binnentuinen, voegt een dagelijkse beleving van extra waarde toe. Voor ons is het een eer om voor dit bijzondere huis een nieuwe bewoner te vinden.


Kees Kemp | Makelaar Broersma Wonen
Daniël de Bont | Makelaar Broersma Wonen
AM103629-2052395-Van-Eeghenstraat-125,-Amsterdam-242427056
Het gebouw

Eén van de fraaiste en ruimste benedenhuizen van de Concertgebouwbuurt biedt de luxe van een optimale indeling en een oase van licht. Over beide woonlagen is er directe toegang tot zowel tuin als terras. Het object is grondig en luxe verbouwd naar ontwerp van Studio Linsen, met een tijdloze afwerking en een ongekend comfort. Het huis dateert uit 1901 en werd ontworpen door Albert Lubbers. Recent is het volledig vernieuwd, aangepast aan de hedendaagse levensstijl en voorzien van alle moderne gemakken. De Van Eeghenstraat vormt voor een groot deel de begrenzing van het ontwerp van landschapsarchitect Zocher. Hij ontwierp het Vondelpark, waarbij de vloeiende patronen en lijnen ook herkenbaar zijn in de gevelrooilijn van dit deel van de straat. In het rechte gedeelte, tussen de Jacob Obrechtstraat en de Cornelis Schuytstraat, verbindt een plantsoen de straat met de villa’s langs het Vondelpark. De gevelrij waarvan nummer 125 en 127 deel uitmaken, grenst aan dit plantsoen en sluit stedenbouwkundig optimaal aan bij het park. De architectuur van de gevel weerspiegelt het ontwerp van het park en past bij de art-niveaustijl die destijds in de mode was.
Aan de oneven zijde van de straat, met diepe tuinen op het zuiden, zijn de panden soms individueel ontworpen en soms als bouwblok van meerdere woningen. De huizen in de rij zijn statig, met royale maatvoeringen, grote raampartijen, erkers en rijk siermetselwerk. Nummer 125 vormt het sluitstuk van zes herenhuizen die in 1900 door Albert Lubbers werden ontworpen. Nummer 127 markeert het begin van een blok van drie panden. Deze huizen werden gerealiseerd als herenhuizen voor welgestelde families uit de grachtengordel, die verlangden naar meer groen in de sfeer van de fin-de-sièclestijl uit Frankrijk. De panden werden rijk gedecoreerd met ornamenten, schouwen en sierplafonds, en gekenmerkt door hoge plafonds, royale entrees en deuren. Ze boden meer licht en lucht dan de grachtenpanden en werden ontworpen voor grote gezinnen met personeel, waarbij tevens ruimte moest zijn om vanuit huis zaken te doen.
In 2008 en 2009 kwamen twee naast elkaar gelegen panden gelijktijdig vrij. De toenmalige ontwikkelaar zag in dat de vergrijzing vroeg om grotere woningen op één woonlaag en met lift. Kodde Architecten vertaalde dit inzicht naar een passend ontwerp. De twee benedenverdiepingen werden samengevoegd tot een dubbelbreed benedenhuis. Samen met de uitbouw op de begane grond kon een terras op de bel-etage worden gerealiseerd. De zuidelijke ligging van de tuin en het terras bood aanleiding om royale glaspartijen toe te voegen. Aan de voorzijde bleven de oorspronkelijke details behouden. Achter de gevel schuilt nu één van de meest bijzondere woningen van de Van Eeghenstraat.

Van Eeghenstraat 125-58
Van Eeghenstraat 125-17
AM103629-2052395-Van-Eeghenstraat-125,-Amsterdam-242424466
AM103629-2052395-Van-Eeghenstraat-125,-Amsterdam-242424474
Wonen en koken

Via een eigen, riante entree wordt de bel-etage betreden. Centraal ligt een hal die met een brede trap de bel-etage verbindt met de tuinverdieping. Deze woonlaag heeft een vrije hoogte van 3,10 meter, beslaat circa 205 m² en beschikt aan de voorzijde over een royale lounge met vier hoge ramen en een open haard. De uitzonderlijke breedte van 12,5 meter maakt hier direct voelbaar waarin de woning zich onderscheidt. Aan de achterzijde bevindt zich een glazen gevel over de volle breedte, voorzien van schuifdeuren die toegang bieden tot een royaal terras. Dit terras ligt op het zuiden en vormt een natuurlijke verbinding tussen het binnenleven en het buitenleven. De bel-etage omvat een elegante formal dining en een tweede zitgedeelte aan de tuinzijde. Aan de zijkant bevindt zich een compleet geoutilleerde keuken, ontworpen om plaats te bieden aan koken door een privéchef. Indien gewenst kan de keuken geheel of gedeeltelijk worden geopend, waarvoor de bouwkundige voorzieningen reeds aanwezig zijn.
De breedte, de lichtinval en het uitzicht op de groene binnentuin maken de bel-etage tot een uiterst aangename woonverdieping.

AM103629-2052395-Van-Eeghenstraat-125,-Amsterdam-130555945
AM103629-2052395-Van-Eeghenstraat-125,-Amsterdam-242427068
Van Eeghenstraat 125-45
AM103629-2052395-Van-Eeghenstraat-125,-Amsterdam-242424482
AM103629-2052395-Van-Eeghenstraat-125,-Amsterdam-242424486
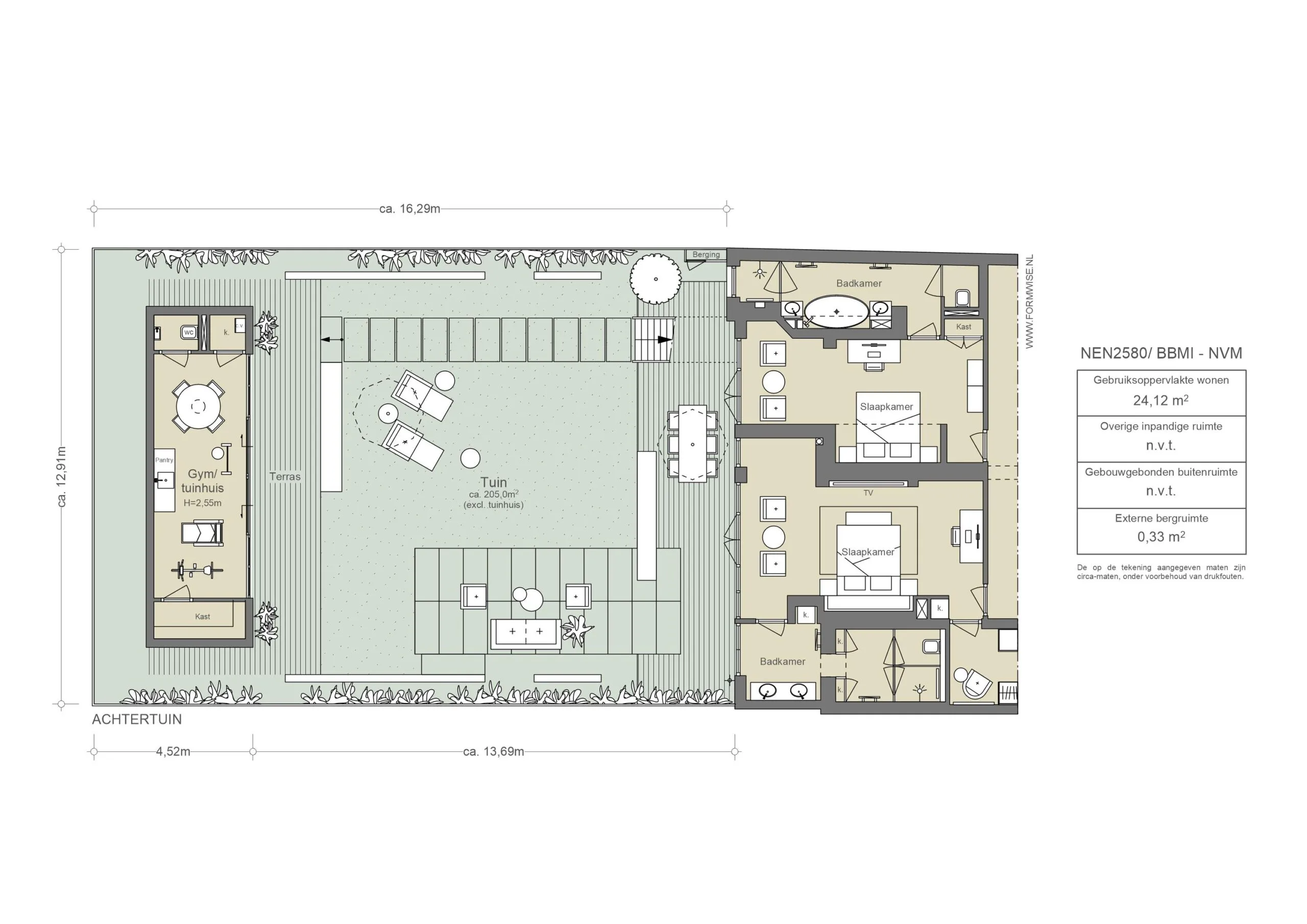
Slapen en baden

De brede trap vanaf de bel-etage leidt naar de centrale hal van de tuinverdieping. Vanuit deze hal zijn vier slaapkamers toegankelijk en bevindt zich centraal een ruime media- en studeerkamer. De hoofdslaapkamer ligt aangenaam aan de tuinzijde en beschikt over openslaande deuren naar de tuin. Direct aansluitend bevinden zich een royale dressing en een luxe badkamer. Een tweede ruime slaapkamer ligt eveneens aan de tuinzijde en heeft een eigen badkamer.
Aan de voorzijde van de woning liggen twee extra slaapkamers, beide voorzien van eigen sanitair. Daarnaast is er een separate was- en bergruimte aanwezig.

AM103629-2052395-Van-Eeghenstraat-125,-Amsterdam-130556081
Van Eeghenstraat 125-46
Van Eeghenstraat 125-56
Van Eeghenstraat 125-54
Van Eeghenstraat 125-20
AM103629-2052395-Van-Eeghenstraat-125,-Amsterdam-242424468
AM103629-2052395-Van-Eeghenstraat-125,-Amsterdam-242424470
Het dakterras en de balkons

De zonnige tuin op het zuiden maakt het huis tot een oase van groen. Ook vanaf het aangrenzende terras wordt de buitenruimte optimaal beleefd. De tuin heeft een breedte van 13 meter en een diepte van circa 16,5 meter. De slaapvertrekken aan de achterzijde beschikken over openslaande deuren die directe toegang geven tot de tuin. Deze is smaakvol aangelegd en draagt sterk bij aan de totale woonbeleving. Aan de achterzijde wordt de tuin begrensd door een tuinhuis, waardoor extra geborgenheid en privacy worden ervaren. De combinatie van tuin en terras biedt niet alleen volledige beslotenheid, maar ook zon gedurende de gehele dag. Over de volle breedte van de tuin staat een tuinhuis van 23 m², voorzien van een royale glazen pui richting de tuin. Deze ruimte leent zich uitstekend als kantoor, gastenverblijf of, zoals momenteel gebruikt, als privé-gym.

AM103629-2052395-Van-Eeghenstraat-125,-Amsterdam-130556027
AM104447-1796392-Van-Eeghenstraat-39H,-Amsterdam-235424700
1075 BZ Saxen Weimarlaan 37-6
1075 BZ Saxen Weimarlaan 37-10

De woning is centraal gelegen aan de Van Eeghenstraat in stadsdeel Zuid, in het Museumkwartier. Deze gewilde woonlocatie ligt direct bij het Vondelpark, de Cornelis Schuytstraat en de Emmastraat. In de directe nabijheid bevinden zich het Van Gogh Museum, het Rijksmuseum, het Stedelijk Museum en het Concertgebouw. De Beethovenstraat, de P.C. Hooftstraat en de Cornelis Schuytstraat bieden een rijk aanbod aan boetieks, delicatessenzaken en verfijnde horeca. Op het nabijgelegen Jacob Obrechtplein vindt elke zaterdag een boerenmarkt plaats. Het Spiegelkwartier, achter het Rijksmuseum, staat bekend om zijn kunstgaleries en charmante winkels. Het Vondelpark en de levendige Pijp liggen op loopafstand. De buurt wordt gekenmerkt door authentiek Amsterdam, met oude gebouwen, privacy en rust, maar ook met alle voorzieningen binnen handbereik. Bewoners waarderen het aanbod aan gespecialiseerde winkels en restaurants op loopafstand. Het voelt als een dorp in de stad. Vanuit de woning is het groen van het Vondelpark binnen enkele minuten bereikbaar, terwijl ook de grachten en de snelweg snel toegankelijk zijn. Voor fijnproevers zijn er diverse aanraders: restaurant Visque aan de Willemsparkweg, Joe’s aan de Cornelis Schuytstraat voor coffee to go, of Café de Gruter met een zonnig terras. De Schuyt staat bekend om het uitstekende vlees.

Bereikbaarheid
De Van Eeghenstraat is uitstekend bereikbaar met de auto, onder andere via de A10 die op slechts tien minuten afstand ligt. Parkeren is mogelijk via het vergunningenstelsel. Openbaar vervoer stopt op de Willemsparkweg en de Van Baerlestraat, vanwaar meerdere bussen en trams vertrekken richting de Jordaan, het Centraal Station en de Zuidas. De bus naar Schiphol stopt voor de deur, waardoor de luchthaven binnen achttien minuten bereikbaar is—een ongekende luxe. Uiteraard kan in Amsterdam ook veel per fiets; vanaf deze centrale locatie is werkelijk alles binnen handbereik.

1075 HN Petit George – Horeca – Staand
Van Eeghenstraat 125-13
Kenmerken
Van Eeghenstraat 125, Amsterdam
Vraagprijs
  • € 8.880.000 k.k.
Beschikbaarheid
  • In overleg
Vertrekken
  • 5 kamers
  • 4 slaapkamers
  • 3 badkamers
Onderhoud
  • Intern: Goed tot uitstekend
  • Extern: Goed tot uitstekend
Oppervlakten & Inhoud
  • Woonoppervlakte: 393 m²
  • Gebouwgebonden buitenruimte: 24 m²
  • Tuinoppervlakte: 186 m²
Bouwjaar
  • 1901
Installaties
  • Alarminstallatie
  • Buitenzonwering
  • Domotica
  • Mechanische ventilatie
  • Natuurlijke ventilatie
  • Schuifpui
  • TV kabel
Ligging
  • Aan park
  • Aan rustige weg
  • In woonwijk
Parkeren
  • Betaald parkeren
  • Parkeervergunningen
Type verwarming
  • CV Ketel
  • Open haard
  • Vloerverwarming gedeeltelijk
Type warmwater
  • CV Ketel
Bestemming
  • Woonruimte
Buitenruimte
  • Achtertuin
  • Dakterras
Kadastraal
  • Gemeente: Amsterdam
  • Sectie: U
  • Nummer: 10945
Duurzaamheid
  • Volledig geisoleerd
  • Energielabel A
Soort
  • Appartement
  • Dubbel-benedenhuis
Bijzonderheden
  • Beschermd stads of dorpsgezicht
Overige kenmerken
  • OZB ('26) € 2.571,23 per jaar
  • Rioolrecht ('26) € 192,04 per jaar
Plattegrond
Van Eeghenstraat 125, Amsterdam
AM103629-2052395-Van-Eeghenstraat-125,-Amsterdam-242427856
AM103629-2052395-Van-Eeghenstraat-125,-Amsterdam-242427910
AM103629-2052395-Van-Eeghenstraat-125,-Amsterdam-242427900
AM103629-2052395-Van-Eeghenstraat-125,-Amsterdam-242427876
Documenten
Van Eeghenstraat 125, Amsterdam
Locatie
Van Eeghenstraat 125, Amsterdam
Kunst & cultuur
241801382_194597056100298_7531339944812475387_n
01
Adres
Willemsparkweg 134,
1071 HR Amsterdam

Galerie Bildhalle

Bildhalle is oorspronkelijk opgericht als een Zwitserse galerie gespecialiseerd in klassieke en hedendaagse fotografie. De galerie heeft inmiddels vestigingen in Zürich en Amsterdam. Sinds de oprichting door Mirjam Cavegn in 2013, heeft de galerie zich ontwikkeld tot een van de meest gerespecteerde fotogaleries in Zwitserland. In oktober 2021 zette Bildhalle haar groei voort met de opening van een tweede galerie aan de Willemsparkweg in Amsterdam. Hier presenteert de galerie een zorgvuldig geselecteerde collectie van Nederlandse en internationale kunstenaars, variërend van opkomend talent tot gevestigde fotografen.

315727004_139279408874516_3171046503847699668_n
02
Adres
Willemsparkweg 64H,
1071 HK Amsterdam

Hama Gallery

Bij Hama Gallery geloven ze dat een galerie een grenzeloze ontmoetingsplaats is waar kunst en mensen samenkomen. Het doel is om kunst toegankelijker te maken door een unieke ervaring te bieden die breekt met traditie. De galerie verwelkomt bezoekers met open armen, of je nu binnenloopt voor een spontaan bezoek, een intieme privébezichtiging wilt, of samen met anderen kunst wilt vieren tijdens onze feestelijke openingen en tuinevenementen.

Eten & drinken
brasserie-de-joffers-buiten02-1600px-1024×615
Brasserie_De_Joffers_Lunch-7-1600px-1024×683
03
Adres
Willemsparkweg 163,
1071 GZ Amsterdam

Brasserie de Joffers

Met een groot terras in de zomer én winter is brasserie Joffers al 15 jaar een bekende hotspot op steenworp afstand van het Vondelpark en het Museumkwartier. Mocht de zon niet schijnen, dan is er binnen genoeg plek - een met kunst en spiegelwanden ingerichte ruimte, wat voor een huiselijke sfeer zorgt. De ontmoetingsplek voor de buurt is ideaal voor ontbijt, lunch en diner of simpelweg voor een lekkere kop koffie.

273565404_2463417327127039_151412226997513128_n
04
Adres
Willemsparkweg 177,
1071 GZ Amsterdam

Batoni Khinkali

In Nederland is de Georgische keuken helaas ondervertegenwoordigd, ondanks haar rijke en boeiende culinaire erfgoed. Gelukkig biedt Batoni Khinkali een introductie tot deze smaakvolle keuken. Dit restaurant, opgericht door de Georgische klarinettist Levan Tskhadadze, combineert zijn liefde voor muziek met zijn passie voor koken. Hier kunnen gasten genieten van Georgische klassiekers zoals khinkali, katsjapuri en lobio, evenals een veganistisch en vleesmenu, allemaal geserveerd met de kenmerkende Georgische gastvrijheid.

05
Adres
Cornelis Schuytstraat 8-10,
1071 JH Amsterdam

Brasserie van Dam

Brasserie van Dam staat bekend om een simpele maar effectieve receptuur: een niet te uitgebreide kaart met kwalitatief goede producten, acceptabele prijzen, goede koffie, een fijne sfeer en vriendelijk personeel.

362085173_18198336283252516_5120199989074488114_n
06
Adres
Willemsparkweg 220hs,
1071 HX Amsterdam

Restaurant Visque

Op het prachtige hoekje van Amsterdam Zuid bevindt zich Restaurant Visque, waar vis de hoofdrol speelt. Onze menukaart is flexibel en afhankelijk van de dagelijkse keuze voor de meest verse en smaakvolle producten. Chef Menno geeft een eigen twist aan eenvoudige Franse gerechten, zoals coquilles, Hollandse garnalen, sliptong en onze bekende Tuna Wellington.

Schermafbeelding 2022-05-18 om 16.11.48
Schermafbeelding 2022-05-18 om 16.12.05
07
Adres
Willemsparkweg 74,
1071 HK Amsterdam

George W.P.A

George W.P.A is de ideale plek om neer te strijken voor een goed glas wijn en lekker eten met een chique touch. De brasserie in Zuid is naar eigen zeggen een combinatie van klassieke Franse gerechten, verpakt in New-Yorkse stijl en staat bekend om signature dishes zoals gegrilde kreeft en Blackened Tuna. Treed binnen (op reservering) in het "Upper South" van Amsterdam en see for yourself!

downloadgram.org_612368537_18441156778097723_3706005334160954595_n
08
Adres
Johannes Verhulststraat 64-H,
1071 NH Amsterdam

Franzen

Chef en eigenaar Jesse Franzen groeide op in een horecafamilie in Haarlem. Zijn vader stond in de keuken, zijn moeder werkte in de bediening. Zijn eigen professionele reis begon in de keuken van het tweesterrenrestaurant Chapeau, waarna hij ervaring opdeed bij onder andere Aan de Poel, Ron Gastrobar en Lars Amsterdam. Met Franzen creëert Jesse een plek die voelt als een moderne huiskamer voor de stad. Toegankelijk en warm, maar altijd met een hoge standaard. Het menu is klassiek en herkenbaar, met hier en daar een verrassende twist.

09
Adres
Valeriusstraat 85,
1071 MG Amsterdam

Carter

Carter is een moderne brasserie in Amsterdam-Zuid waar internationale klassiekers worden geserveerd met flair en finesse. Aan de Valeriusstraat voelt deze plek als een elegant buurtcafé – informeel, verfijnd en altijd gastvrij. Op de kaart staan tijdloze gerechten als steak tartare, burrata en kreeftenpasta, met een solide wijnselectie ernaast.

10
Adres
Valeriusstraat 90,
1075 GH Amsterdam

Barolo

Bar Barolo brengt de sfeer van Noord-Italië naar de Valeriusstraat, midden in het elegante Amsterdam-Zuid. De wijnkaart is royaal en zorgvuldig samengesteld, met Barolo als vanzelfsprekend middelpunt. Op het menu: huisgemaakte pasta, klassieke antipasti en seizoensgerechten zonder opsmuk. Het interieur is warm en ingetogen, net als de gastvrijheid – hier wordt met aandacht gewerkt.

Schermafbeelding 2022-05-11 om 16.25.41
11
Adres
Johannes Verhulststraat 32,
1071 NE Amsterdam

Pizzeria Le 4 Stagioni

Voor bezoekers van het Concertgebouw zijn de Romaanse pizza's met dunne bodem geen vreemde. Sinds 1978 voorziet de pizzeria in Oud-Zuid menige groep en (grote) families van authentiek Italiaans eten. Het interieur heeft een Mediteraans tintje en het menu biedt voor ieder wat wils, van verse pasta's en mals vlees, tot onmisbare antipasti en vegetarische alternatieven.

312175149_2011502502368624_2613652535986311070_n
12
Adres
Koninginneweg 34,
1075 CZ Amsterdam

Tozi

TOZI betekent in Venetiaans dialect ‘een groep vrienden’, en dat voel je direct als je binnenkomt. Het is net alsof je terecht komt in één grote familie. De kaart toont een selectie van kleine Venetiaans geïnspireerde gerechten om te delen, bekend als cicchetti. Met een Italiaanse wijnkaart en een cocktailbar met Italiaanse gins en negroni's.

 

13
Adres
Valeriusstraat 128B,
1075 GD Amsterdam

Castell Zuid

Castell Zuid is de stijlvolle nieuwe vestiging van het iconische Amsterdamse grillrestaurant Castell, gevestigd aan de Valeriusstraat in Oud-Zuid. Waar het origineel in het centrum bekendstaat om zijn no-nonsense steaks en late diners, brengt deze locatie dezelfde smaken in een verfijnde setting. “Same taste, same vibe, different look” luidt het motto – en dat klopt: herkenbaar en toch helemaal nieuw.

welling
14
Adres
Jan Willem Brouwersstraat 32,
1071 LK Amsterdam

Café Welling

Café Welling is een knus buurtcafé aan de J.W. Brouwersstraat; vlakbij het Museumplein. Hier kun je genieten van een lekker biertje aan de bar of op het terras als het zonnetje schijnt. Dit buurtcafé kent een lange geschiedenis. Het café bestaat al langer dan 70 jaar maar draagt pas sinds 1963 de naam Café Welling. Deze historie verklaart misschien wel de oude vertrouwde sfeer die in dit café altijd te vinden blijkt. Interessant voor muziekliefhebbers: bij Café Welling worden regelmatig Jazz-avonden georganiseerd.

photo_1500x
15
Adres
Willemsparkweg 8h,
1071 HD Amsterdam

Coffee District

Eigenaren Adil Loukane en Rosa Loukane begonnen met een hole-in-the-wall coffeeshop in een modewinkel in Zuid. Toen de winkel de deuren sloot, grepen Adil en Rosa hun kans en besloten om hun eigen koffiebar te openen. Inmiddels hebben ze meerdere locaties. De koffie wordt gemaakt met een eigen melange gebrand door Lot Sixty One. Daarnaast worden er zoetigheden aangeboden zoals de inmiddelsal bekende kaneelbroodjes en bananenbrood.

16
Adres
Overtoom 255H,
1054 HW Amsterdam

Tamari Ya

Tamari Ya is opgezet door Imoto Yoshihisa en Yazawa Yuji, twee Japanse ondernemers die in hun dorp bij Hiroshima een farm-stay retreat begonnen en daar in 2023 hun eerste donutshop openden om hun gemeenschap nieuw leven in te blazen. Vanuit hun liefde voor rijst ontwikkelden ze de komeko-donut, gemaakt van rijstmeel uit eigen regio en daardoor van nature glutenvrij. In Amsterdam worden de donuts dagelijks met de hand gemaakt en gefrituurd in rijstolie, zonder conserveermiddelen of kleurstoffen. De textuur is anders dan je gewend bent: minder fluffy, meer chewy, met varianten als old fashioned of yeast-raised in smaken als matcha, zwarte sesam en pistache. De rustige, houtgedomineerde winkel op de Overtoom voelt als een stukje Japans platteland in de stad, waar aandacht voor eten en omgeving centraal staat.

tip_10694-edible-treasures-large
17
Adres
Jacob Obrechtstraat 75,
1071 KK Amsterdam

Edible Treasures

In een voormalige slagerij in Amsterdam Zuid huist de concept store Edibe Treasures. Naast de 'edibles en drinkables' in de koffieshop vind je hier een prachtige selectie van alles voor op de tafel zoals zilverwerk, keramiek, tafellinnen, maar ook kookboeken en accessoires. Er worden ook regelmatig pop ups en workshops georganiseerd.

Interieur
Menno+Kroon+-+Maikel+Thijssen+Photography+-+www.maikelthijssen.com-3
18
Adres
Cornelis Schuytstraat 11,
1071 JC Amsterdam

Menno Kroon

De uitbundige en sfeervolle etalage van Menno Kroon toont zulke betoverende en bijzondere bloemen dat je wel even binnen moet kijken. Prille liefde, verrukking, het onvermijdelijke afscheid. Elk boeket van Menno Kroon geeft betekenis aan een bijzonder moment. Niks is ze te gek bij Menno Kroon en u kunt er terecht voor de meest speciale en uiteenlopende boeketten.

Scherm­afbeelding 2023-11-14 om 12.46.19
Scherm­afbeelding 2023-11-14 om 12.46.32
19
Adres
Van Baerlestraat 10,
1071 AL Amsterdam

Carl Hansen & Søn

Carl Hansen & Søn, een Deens familiebedrijf onder leiding van de derde generatie, belichaamt meer dan honderd jaar vakmanschap in modern design.  Bij Carl Hansen & Søn geloven ze dat iconisch design voortkomt uit eenvoud, esthetiek en functionaliteit, met aandacht voor vakmanschap en hoogwaardige materialen. De focus op het behoud van Deense ontwerpklassiekers gaat volgens hun hand in hand met het verwelkomen van nieuwe invloedrijke ontwerpers om een diverse collectie van de beste moderne meubelklassiekers te creëren.

Boodschappen
Schermafbeelding 2022-05-18 om 19.26.29
20
Adres
Van Breestraat 107A,
1071 ZJ Amsterdam

De Wijnkaart

In het Museumkwartier in Amsterdam-Zuid zit De Wijnkaart. Hier worden allerlei soorten wijnen uit de vergeten Oost-Europese wijnlanden geserveerd. Alhoewel de geschiedenis van het wijn maken hier is begonnen, zijn deze landen vaak vergeten in de wijnwereld. Als je benieuwd bent geworden naar alle soorten wijnen kan je een wijnproeverij doen in de wijnbar, waarbij je zelf mag uitkiezen welke je wil proeven. Naast de borrelplanken die wekelijks veranderen, staan er ook hoofdgerechten op het menu.

groentenier-winkel-voor-buiten
21
Adres
Cornelis Schuytstraat 35,
1071 NL Amsterdam

Groenteboer Tom Ensink

Groenteboer Tom Ensink zorgt ervoor dat klanten kunnen kiezen uit een exclusief assortiment aan eerlijke producten. Naast groenten worden er kazen, fruit, noten, oliën, wijnen én maaltijden verkocht - zorgvuldig geselecteerd voor de échte fijnproevers in Zuid. Specifieke wensen kunnen worden vervuld wat betreft het bestellen van producten, maar ook voor de verse maaltijden.

1593079817
22
Adres
Johannes Verhulststraat,
1066 VH Amsterdam

Slagerij De Schuyt

Slagerij De Schuyt, vernoemd naar hun locatie in de Cornelis Schuytstraat, heeft als symbool de parkiet. Net als de parkiet heeft deze kenmerkende slagerij zijn oorsprong in de jaren zeventig en hebben beiden hun plek veroverd in Amsterdam. Geïnspireerd door de parkiet begon eigenaar Evert Blauwendraat zijn slagerij met het idee om daar een karakteristiek, persoonlijk en bijzonder embleem aan te geven dat voor iedereen herkenbaar is. Bij dit familiebedrijf met een rijke historie kan je terecht voor vlees en delicatessen.

69495482_2355482024538342_8370925297519820800_n
23
Adres
1071 MR Amsterdam

ZuiderMRKT

De zuiderMRKT is een kleine, gezellige, wekelijkse buurtmarkt. Uniek door haar coöperatieve karakter. De coöperatie bestaat uit leden - enthousiaste buurtbewoners - die de markt een warm toedragen en meehelpen op de markt en in de groentekraam. De leden bepalen samen het aanbod van alle kramen. Zij kopen groente en fruit rechtstreeks in bij de boer, om ze voor eerlijke prijzen op het zuiderMRKT-plein te verkopen.

24
Adres
Overtoom 239,
1054 HV Amsterdam

Olivity

Olivity staat bekend om olijfolie en delicatessen, maar er is veel meer dan alleen dat! Olivity verkoopt niet alleen heerlijke Griekse producten van producenten uit heel Griekenland, maar gebruikt de keuken ook om workshops te houden. Gezellig met vrienden of collega’s biedt dit een unieke kans om kennis te maken met de geheimen van de Griekse keuken en alle authentieke Griekse bites. Mocht je liever een event houden? Dat kan ook, voor zowel kleine en grote groepen van brunch tot diner.

Scherm­afbeelding 2024-04-22 om 12.13.49
25
Adres
Overtoom 179,
1054 HG Amsterdam

Olives & More

De eigenaren proefden heerlijke olijven in allerlei landen maar terug in Amsterdam, konden ze ze nauwelijks vinden. Daarom importeren ze nu zelf direct van de boer. Het begon met een paar houten vaten vol olijven in een bakkersbakfiets op een boerenmarkt in Amsterdam. Inmiddels importeert Olives & More  tientallen soorten olijven en olijfolie uit Italië, Frankrijk, Spanje, Griekenland en Portugal.

Ontmoet de ondernemer, in deze serie Atsuhito Hosono, eigenaar en chef van Japans restaurant Umeno

Ontmoet de ondernemer, in deze serie Atsuhito Hosono, eigenaar en chef van Japans restaurant Umeno

Ontmoet de ondernemer, in deze serie Jochem Leegstra van creative agency …,staat

Ontmoet de ondernemer, in deze serie Jochem Leegstra van creative agency …,staat

Al veertig jaar is Toscanini een begrip in Amsterdam. Maud Moody, een van de oprichters, vertelt hoe het allemaal begon.

Al veertig jaar is Toscanini een begrip in Amsterdam. Maud Moody, een van de oprichters, vertelt hoe het allemaal begon.

Onlangs bekeken
Bekijk het overzicht

Deze site maakt gebruik van cookies.

Voor welke cookies geef je akkoord?