In een statig pand aan de Van Breestraat ligt Huis aan het Licht, een elegant ingericht stads appartement met een doordachte indeling, hoogwaardige afwerking en twee buitenruimtes van totaal 56 m². De combinatie van rust, licht en ruimte maakt dit tot een bijzonder comfortabele plek in het hart van het Museumkwartier.

Rondleiding
De woning wordt bereikt via een representatieve entree met lift die direct in het appartement uitkomt. De binnenkomst is ruim, met een hoge stalen deur die toegang biedt tot de living. De woonkamer is licht, rustig en goed geproportioneerd. De maatwerk keuken met marmeren kookeiland vormt het centrale element in de ruimte en grenst direct aan het terras.
De slaapkamers bevinden zich aan de voorzijde, aan de rustige kant van de straat. De badkamer is centraal gelegen, praktisch ingedeeld en afgewerkt met hoogwaardige materialen.
Via de hal is het dakterras bereikbaar, een duidelijke meerwaarde voor dit appartement. De zonligging, het uitzicht en de privacy maken dit tot een aantrekkelijke aanvulling op het woonprogramma.
Een compleet appartement op een uitstekende locatie in Oud-Zuid. Comfortabel, stijlvol en functioneel ingericht.

Buurtgids
Centraal en rustig gelegen in de Concertgebouwbuurt tussen de Jacob Obrechtstraat en Wanningstraat. Strategisch gelegen ten opzichte van vele voorzieningen waaronder scholen, winkels en musea op loopafstand. Nabij het Vondelpark, winkels en restaurants in de Cornelis Schuytstraat en de Boerenmarkt op zaterdag op het Jacob Obrechtplein. Het Museumplein, de P.C. Hooftstraat en de Beethovenstraat bevinden zich op 5 minuten lopen.
In de directe omgeving zijn vele goede winkels, restaurants en leuke cafés.
Het appartement is gelegen in de mooie Van Breestraat, nabij de Cornelis Schuytstraat en loopafstand van het Vondelpark. In de omgeving zijn veel gezellige horecagelegenheden en vooraanstaande delicatessenwinkels. De Cornelis Schuytstraat is onder andere voorzien van luxe modewinkels, een kwaliteit slagerij, bloemist, stomerij, juwelier, brillenzaak en biologische bakkerij. In de nabijheid van verschillende lagere en middelbare scholen. De Van Breestraat is gunstig gelegen ten opzichte van het Vondelpark en dicht bij de Zuidas.

Bijzonderheden
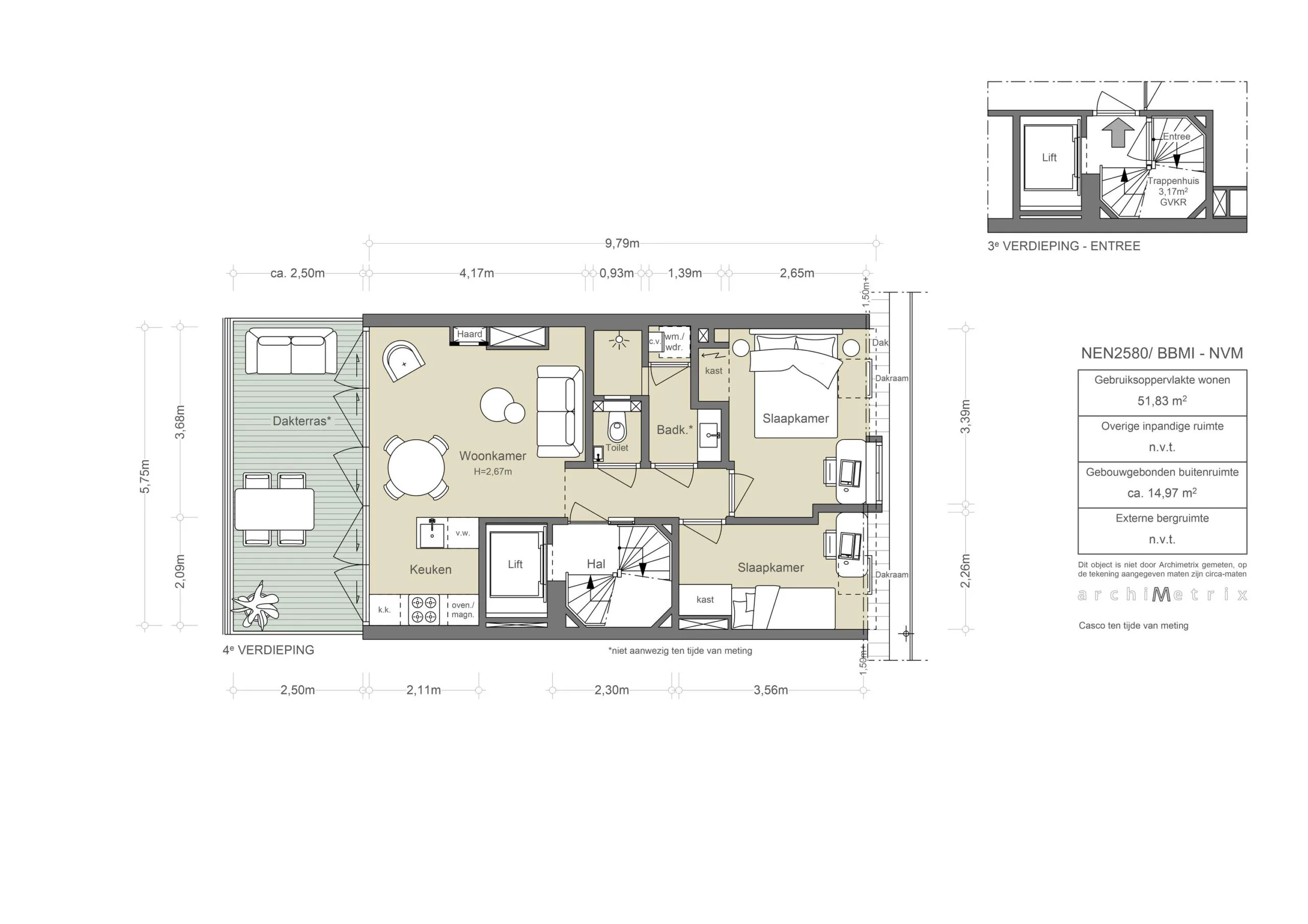
• Gebruiksoppervlakte wonen 57 m²
• Balkon en dakterras van samen 56 m²
• Gelegen op eigen grond
• Dakterras met panoramisch uitzicht over Amsterdam
• Voorzien van een lift, airconditioning en vloerverwarming
• Energielabel A
• Gemeentelijk beschermd stadsgezicht
• VvE wordt professioneel beheerd door Jinxxx
 

AM106800-2104653-Van-Breestraat-183E,-Amsterdam-253211426

Huis aan het licht
Wonen aan de Van Breestraat betekent wonen op een van de mooiste locaties van het Museumkwartier. Dit appartement maakt deel uit van een kleinschalige herontwikkeling en is gerealiseerd met oog voor detail, afwerking en wooncomfort. De ligging, de afmetingen en de buitenruimte maken het geheel tot een bijzonder prettig en doordacht ingericht stads appartement. De combinatie van moderne luxe en klassieke charme komt hier op een vanzelfsprekende manier samen.


Jelle Mundt | Makelaar Broersma Wonen
AM106800-2104653-Van-Breestraat-183E,-Amsterdam-253211230
Designvisie

Het gebouw is in 2020 grondig gerenoveerd onder begeleiding van Rock Vastgoed. De oorspronkelijke structuur is behouden, terwijl het interieur volledig opnieuw is vormgegeven. De woning is uitgerust met maatwerkoplossingen, hoogwaardige materialen en een consistent lichtplan dat de ruimtes rust en helderheid geeft. De indeling is logisch, de zichtlijnen zijn overzichtelijk en de afwerking is zorgvuldig gekozen. De aanwezigheid van een lift met directe toegang tot de woning benadrukt het private en comfortabele karakter van dit appartement.

AM106800-2104653-Van-Breestraat-183E,-Amsterdam-253211242
AM106800-2104653-Van-Breestraat-183E,-Amsterdam-253211276
AM106800-2104653-Van-Breestraat-183E,-Amsterdam-253211264
AM106800-2104653-Van-Breestraat-183E,-Amsterdam-253211282
Wonen en koken

De woonruimte strekt zich uit over de volledige breedte van het achterhuis en grenst direct aan het terras op het zuidoosten. Dankzij de volledig te openen pui ontstaat een directe verbinding met buiten. De sfeer is rustig, mede door de keuze voor warme materialen en een ingetogen kleurstelling.
De keuken is uitgevoerd in een maatwerkopstelling met hoogwaardige inbouwapparatuur. Het kookeiland is afgewerkt met Italiaans marmer en vormt het centrale element in de ruimte. Koken, wonen en tafelen gaan hier moeiteloos in elkaar over. De gashaard aan de zitzijde zorgt voor extra comfort en draagt bij aan de aangename sfeer.

AM106800-2104653-Van-Breestraat-183E,-Amsterdam-253211248
AM106800-2104653-Van-Breestraat-183E,-Amsterdam-253211334
AM106800-2104653-Van-Breestraat-183E,-Amsterdam-253211312
AM106800-2104653-Van-Breestraat-183E,-Amsterdam-253211306
AM106800-2104653-Van-Breestraat-183E,-Amsterdam-253211258
AM106800-2104653-Van-Breestraat-183E,-Amsterdam-253211416
AM106800-2104653-Van-Breestraat-183E,-Amsterdam-253211350
AM106800-2104653-Van-Breestraat-183E,-Amsterdam-253211392
Slapen en baden

Aan de voorzijde van het appartement liggen twee slaapkamers. De maatwerk garderobekasten zorgen voor praktische opbergruimte zonder het zicht of de rust te verstoren.
De badkamer is centraal in de woning geplaatst en is afgewerkt met marmer, een royale inloopdouche en Hotbath kranen. Het separate toilet is in dezelfde stijl doorgevoerd. Naast de badkamer bevindt zich een aparte wasruimte, netjes weggewerkt achter maatwerk deuren.

AM106800-2104653-Van-Breestraat-183E,-Amsterdam-253211384
AM106800-2104653-Van-Breestraat-183E,-Amsterdam-253211412
AM106800-2104653-Van-Breestraat-183E,-Amsterdam-253211430
AM106800-2104653-Van-Breestraat-183E,-Amsterdam-253211426
AM106800-2104653-Van-Breestraat-183E,-Amsterdam-253211428
Het dakterras en het balkon

Het terras aan de woonkamerzijde is royaal van formaat en heeft een gunstige zuidoostelijke ligging. Dankzij de volledig te openen glazen pui vormt dit terras een vanzelfsprekend verlengstuk van de woonruimte. De geïntegreerde plantenbakkenzorgen voor een groen accent en zijn voorzien van een automatisch bewateringssysteem.
Een verdieping hoger ligt het dakterras. Deze buitenruimte biedt volledige privacy en een fraai uitzicht op onder andere het Museumplein en de Zuid-as. Er is een compacte buitenkeuken aanwezig, evenals sfeervolle verlichting en vaste beplanting. Een verzorgde en prettige plek om in alle rust van de stad te genieten.

AM106800-2104653-Van-Breestraat-183E,-Amsterdam-253211432
AM106800-2104653-Van-Breestraat-183E,-Amsterdam-253211434
AM106800-2104653-Van-Breestraat-183E,-Amsterdam-253211440
AM106800-2104653-Van-Breestraat-183E,-Amsterdam-253212300
Buurtgids

Centraal en rustig gelegen in de Concertgebouwbuurt tussen de Jacob Obrechtstraat en Wanningstraat. Strategisch gelegen ten opzichte van vele voorzieningen waaronder scholen, winkels en musea op loopafstand. Nabij het Vondelpark, winkels en restaurants in de Cornelis Schuytstraat en de Boerenmarkt op zaterdag op het Jacob Obrechtplein. Het Museumplein, de P.C. Hooftstraat en de Beethovenstraat bevinden zich op 5 minuten lopen. In de directe omgeving zijn vele goede winkels, restaurants en leuke cafés. Het appartement is gelegen in de mooie Van Breestraat, nabij de Cornelis Schuytstraat en loopafstand van het Vondelpark. In de omgeving zijn veel gezellige horecagelegenheden en vooraanstaande delicatessenwinkels. De Cornelis Schuytstraat is onder andere voorzien van luxe modewinkels, een kwaliteit slagerij, bloemist, stomerij, juwelier, brillenzaak en biologische bakkerij. In de nabijheid van verschillende lagere en middelbare scholen. De Van Breestraat is gunstig gelegen ten opzichte van het Vondelpark en dicht bij de Zuidas.

Bereikbaarheid
De Van Breestraat ligt in een van de meest karaktervolle delen van Oud-Zuid, met het Museumplein en de Cornelis Schuytstraat letterlijk om de hoek. De straat zelf ademt rust, maar zodra je de hoek omslaat, heb je toegang tot uitstekende verbindingen met de rest van de stad. Op de Van Baerlestraat en de Willemsparkweg vind je tramhaltes met directe lijnen naar Amsterdam Centraal, de Zuidas en station Amsterdam Zuid, evenals richting VU medisch centrum. Ook de Noord/Zuidlijn is binnen tien minuten fietsen bereikbaar, wat de verbinding naar zowel het centrum als Schiphol nog sneller maakt. Voor bestemmingen buiten de stad is de ring A10 eenvoudig aan te rijden via de Amstelveenseweg.
Zo combineert de Van Breestraat het beste van twee werelden: een rustige, groene woonomgeving met grootstedelijke voorzieningen en bereikbaarheid binnen handbereik.

Parkeergelegenheid
Parkeren is mogelijk via een vergunningenstelsel op de openbare weg (vergunning gebied is Zuid 8.1.). Met een parkeervergunning voor Zuid8.1 mag u parkeren in Zuid-1, Zuid-2 en Zuid-8. Een parkeervergunning voor bewoners kost € 192,81 per 6 maanden. Momenteel is er voor dit vergunningsgebied een wachttijd van 9 maanden. Een tweede parkeervergunning is in dit gebied niet mogelijk. (Bron: Gemeente Amsterdam, november 2025).

AM106800-2104653-Van-Breestraat-183E,-Amsterdam-253211342
AM106800-2104653-Van-Breestraat-183E,-Amsterdam-253211398
AM106800-2104653-Van-Breestraat-183E,-Amsterdam-253211426
AM106800-2104653-Van-Breestraat-183E,-Amsterdam-253211432
Kenmerken
Van Breestraat 183E, Amsterdam
Vraagprijs
  • € 940.000 k.k.
Beschikbaarheid
  • In overleg
Vertrekken
  • 3 kamers
  • 2 slaapkamers
  • 1 badkamer
Onderhoud
  • Intern: Uitstekend
  • Extern: Uitstekend
Oppervlakten & Inhoud
  • Woonoppervlakte: 57 m²
  • Gebouwgebonden buitenruimte: 56 m²
Bouwjaar
  • 1903
Installaties
  • Airconditioning
  • Lift
Ligging
  • Aan park
  • Aan rustige weg
  • In centrum
  • In woonwijk
  • Vrij uitzicht
Parkeren
  • Betaald parkeren
  • Openbaar parkeren
  • Parkeervergunningen
Type verwarming
  • CV Ketel
Type warmwater
  • CV Ketel
Bestemming
  • Woonruimte
Eigendomssoort
  • Volle eigendom
Buitenruimte
  • Geen tuin
  • Balkon
Kadastraal
  • Gemeente: Amsterdam
  • Sectie: U
  • Nummer: 11398
Duurzaamheid
  • Volledig geisoleerd
  • Energielabel A
Soort
  • Appartement
  • Bovenwoning
Welke woonlaag
  • 4e
Bijzonderheden
  • Beschermd stads of dorpsgezicht
Overige kenmerken
  • OZB ('25) € 458 per jaar
  • Rioolrecht ('25) € 185,20 per jaar
  • Servicekosten VvE p.m.
Plattegrond
Van Breestraat 183E, Amsterdam
AM106800-2104653-Van-Breestraat-183E,-Amsterdam-253215208
AM106800-2104653-Van-Breestraat-183E,-Amsterdam-253215218
Documenten
Van Breestraat 183E, Amsterdam
Locatie
Van Breestraat 183E, Amsterdam
Eten & drinken
01
Adres
Valeriusstraat 90,
1075 GH Amsterdam

Barolo

Bar Barolo brengt de sfeer van Noord-Italië naar de Valeriusstraat, midden in het elegante Amsterdam-Zuid. De wijnkaart is royaal en zorgvuldig samengesteld, met Barolo als vanzelfsprekend middelpunt. Op het menu: huisgemaakte pasta, klassieke antipasti en seizoensgerechten zonder opsmuk. Het interieur is warm en ingetogen, net als de gastvrijheid – hier wordt met aandacht gewerkt.

02
Adres
Valeriusstraat 85,
1071 MG Amsterdam

Carter

Carter is een moderne brasserie in Amsterdam-Zuid waar internationale klassiekers worden geserveerd met flair en finesse. Aan de Valeriusstraat voelt deze plek als een elegant buurtcafé – informeel, verfijnd en altijd gastvrij. Op de kaart staan tijdloze gerechten als steak tartare, burrata en kreeftenpasta, met een solide wijnselectie ernaast.

362085173_18198336283252516_5120199989074488114_n
03
Adres
Willemsparkweg 220hs,
1071 HX Amsterdam

Restaurant Visque

Op het prachtige hoekje van Amsterdam Zuid bevindt zich Restaurant Visque, waar vis de hoofdrol speelt. Onze menukaart is flexibel en afhankelijk van de dagelijkse keuze voor de meest verse en smaakvolle producten. Chef Menno geeft een eigen twist aan eenvoudige Franse gerechten, zoals coquilles, Hollandse garnalen, sliptong en onze bekende Tuna Wellington.

04
Adres
Cornelis Schuytstraat 8-10,
1071 JH Amsterdam

Brasserie van Dam

Brasserie van Dam staat bekend om een simpele maar effectieve receptuur: een niet te uitgebreide kaart met kwalitatief goede producten, acceptabele prijzen, goede koffie, een fijne sfeer en vriendelijk personeel.

273565404_2463417327127039_151412226997513128_n
05
Adres
Willemsparkweg 177,
1071 GZ Amsterdam

Batoni Khinkali

In Nederland is de Georgische keuken helaas ondervertegenwoordigd, ondanks haar rijke en boeiende culinaire erfgoed. Gelukkig biedt Batoni Khinkali een introductie tot deze smaakvolle keuken. Dit restaurant, opgericht door de Georgische klarinettist Levan Tskhadadze, combineert zijn liefde voor muziek met zijn passie voor koken. Hier kunnen gasten genieten van Georgische klassiekers zoals khinkali, katsjapuri en lobio, evenals een veganistisch en vleesmenu, allemaal geserveerd met de kenmerkende Georgische gastvrijheid.

brasserie-de-joffers-buiten02-1600px-1024×615
Brasserie_De_Joffers_Lunch-7-1600px-1024×683
06
Adres
Willemsparkweg 163,
1071 GZ Amsterdam

Brasserie de Joffers

Met een groot terras in de zomer én winter is brasserie Joffers al 15 jaar een bekende hotspot op steenworp afstand van het Vondelpark en het Museumkwartier. Mocht de zon niet schijnen, dan is er binnen genoeg plek - een met kunst en spiegelwanden ingerichte ruimte, wat voor een huiselijke sfeer zorgt. De ontmoetingsplek voor de buurt is ideaal voor ontbijt, lunch en diner of simpelweg voor een lekkere kop koffie.

07
Adres
Valeriusstraat 128B,
1075 GD Amsterdam

Castell Zuid

Castell Zuid is de stijlvolle nieuwe vestiging van het iconische Amsterdamse grillrestaurant Castell, gevestigd aan de Valeriusstraat in Oud-Zuid. Waar het origineel in het centrum bekendstaat om zijn no-nonsense steaks en late diners, brengt deze locatie dezelfde smaken in een verfijnde setting. “Same taste, same vibe, different look” luidt het motto – en dat klopt: herkenbaar en toch helemaal nieuw.

312175149_2011502502368624_2613652535986311070_n
08
Adres
Koninginneweg 34,
1075 CZ Amsterdam

Tozi

TOZI betekent in Venetiaans dialect ‘een groep vrienden’, en dat voel je direct als je binnenkomt. Het is net alsof je terecht komt in één grote familie. De kaart toont een selectie van kleine Venetiaans geïnspireerde gerechten om te delen, bekend als cicchetti. Met een Italiaanse wijnkaart en een cocktailbar met Italiaanse gins en negroni's.

 

downloadgram.org_612368537_18441156778097723_3706005334160954595_n
09
Adres
Johannes Verhulststraat 64-H,
1071 NH Amsterdam

Franzen

Chef en eigenaar Jesse Franzen groeide op in een horecafamilie in Haarlem. Zijn vader stond in de keuken, zijn moeder werkte in de bediening. Zijn eigen professionele reis begon in de keuken van het tweesterrenrestaurant Chapeau, waarna hij ervaring opdeed bij onder andere Aan de Poel, Ron Gastrobar en Lars Amsterdam. Met Franzen creëert Jesse een plek die voelt als een moderne huiskamer voor de stad. Toegankelijk en warm, maar altijd met een hoge standaard. Het menu is klassiek en herkenbaar, met hier en daar een verrassende twist.

84942268_1529941500492597_3844385910518972416_n
10
Adres
Apollolaan 138,
1077 BG Amsterdam

Roberto's Restaurant Amsterdam

In de top tien Italiaanse restaurants van Amsterdam mag Roberto’s niet ontbreken. Het restaurant is gelegen in het Hilton hotel, waar de iconische Italiaanse keuken sinds 25 jaar de borden vult. Het restaurant draait om pure en simpele smaken met gerechten als dungesneden aubergine, groene farfalle pasta met kreeftensaus en Lava cake.

Schermafbeelding 2022-05-11 om 16.25.41
11
Adres
Johannes Verhulststraat 32,
1071 NE Amsterdam

Pizzeria Le 4 Stagioni

Voor bezoekers van het Concertgebouw zijn de Romaanse pizza's met dunne bodem geen vreemde. Sinds 1978 voorziet de pizzeria in Oud-Zuid menige groep en (grote) families van authentiek Italiaans eten. Het interieur heeft een Mediteraans tintje en het menu biedt voor ieder wat wils, van verse pasta's en mals vlees, tot onmisbare antipasti en vegetarische alternatieven.

Schermafbeelding 2022-05-18 om 16.11.48
Schermafbeelding 2022-05-18 om 16.12.05
12
Adres
Willemsparkweg 74,
1071 HK Amsterdam

George W.P.A

George W.P.A is de ideale plek om neer te strijken voor een goed glas wijn en lekker eten met een chique touch. De brasserie in Zuid is naar eigen zeggen een combinatie van klassieke Franse gerechten, verpakt in New-Yorkse stijl en staat bekend om signature dishes zoals gegrilde kreeft en Blackened Tuna. Treed binnen (op reservering) in het "Upper South" van Amsterdam en see for yourself!

366416263_660727485939210_4584064804028118782_n
13
Adres
Valeriusplein 4A,
1075 BG Amsterdam

Juliette

In Amsterdam Zuid  kun je bij Juliette genieten van ontbijt en lunch in de zon. Het menu is gebaseerd op verse ingrediënten van lokale leveranciers en wordt dagelijks samengesteld op basis van wat er op de markt beschikbaar is. Denk aan gerechten zoals de Porco Rosso: mortadella, stracciatellakaas, Spaanse guindillapepers en rode pesto. Voor het diner of een borrel kan je terecht bij buurman Bar Jules. De focus ligt op Zuid-Europese gerechten zoals pizzetta's, pata negra en geroosterde octopus.

tip_10694-edible-treasures-large
14
Adres
Jacob Obrechtstraat 75,
1071 KK Amsterdam

Edible Treasures

In een voormalige slagerij in Amsterdam Zuid huist de concept store Edibe Treasures. Naast de 'edibles en drinkables' in de koffieshop vind je hier een prachtige selectie van alles voor op de tafel zoals zilverwerk, keramiek, tafellinnen, maar ook kookboeken en accessoires. Er worden ook regelmatig pop ups en workshops georganiseerd.

welling
15
Adres
Jan Willem Brouwersstraat 32,
1071 LK Amsterdam

Café Welling

Café Welling is een knus buurtcafé aan de J.W. Brouwersstraat; vlakbij het Museumplein. Hier kun je genieten van een lekker biertje aan de bar of op het terras als het zonnetje schijnt. Dit buurtcafé kent een lange geschiedenis. Het café bestaat al langer dan 70 jaar maar draagt pas sinds 1963 de naam Café Welling. Deze historie verklaart misschien wel de oude vertrouwde sfeer die in dit café altijd te vinden blijkt. Interessant voor muziekliefhebbers: bij Café Welling worden regelmatig Jazz-avonden georganiseerd.

16
Adres
Overtoom 255H,
1054 HW Amsterdam

Tamari Ya

Tamari Ya is opgezet door Imoto Yoshihisa en Yazawa Yuji, twee Japanse ondernemers die in hun dorp bij Hiroshima een farm-stay retreat begonnen en daar in 2023 hun eerste donutshop openden om hun gemeenschap nieuw leven in te blazen. Vanuit hun liefde voor rijst ontwikkelden ze de komeko-donut, gemaakt van rijstmeel uit eigen regio en daardoor van nature glutenvrij. In Amsterdam worden de donuts dagelijks met de hand gemaakt en gefrituurd in rijstolie, zonder conserveermiddelen of kleurstoffen. De textuur is anders dan je gewend bent: minder fluffy, meer chewy, met varianten als old fashioned of yeast-raised in smaken als matcha, zwarte sesam en pistache. De rustige, houtgedomineerde winkel op de Overtoom voelt als een stukje Japans platteland in de stad, waar aandacht voor eten en omgeving centraal staat.

photo_1500x
17
Adres
Willemsparkweg 8h,
1071 HD Amsterdam

Coffee District

Eigenaren Adil Loukane en Rosa Loukane begonnen met een hole-in-the-wall coffeeshop in een modewinkel in Zuid. Toen de winkel de deuren sloot, grepen Adil en Rosa hun kans en besloten om hun eigen koffiebar te openen. Inmiddels hebben ze meerdere locaties. De koffie wordt gemaakt met een eigen melange gebrand door Lot Sixty One. Daarnaast worden er zoetigheden aangeboden zoals de inmiddelsal bekende kaneelbroodjes en bananenbrood.

Interieur
Menno+Kroon+-+Maikel+Thijssen+Photography+-+www.maikelthijssen.com-3
18
Adres
Cornelis Schuytstraat 11,
1071 JC Amsterdam

Menno Kroon

De uitbundige en sfeervolle etalage van Menno Kroon toont zulke betoverende en bijzondere bloemen dat je wel even binnen moet kijken. Prille liefde, verrukking, het onvermijdelijke afscheid. Elk boeket van Menno Kroon geeft betekenis aan een bijzonder moment. Niks is ze te gek bij Menno Kroon en u kunt er terecht voor de meest speciale en uiteenlopende boeketten.

Annindriya-Perfume-_Lounge-Local-Minded-005_lichter_Lowres_480x480
perfumelounge 2
19
Adres
Cornelis Krusemanstraat 25,
1075 NC Amsterdam

Perfume Lounge

Bij de ‘Perfume lounge’ richten ze zich op het maken en adviseren van geuren voor bedrijven en organisaties en wat reuk kan toevoegen aan een merk of organisatie. Daarnaast hebben zij een winkel met een assortiment van de meest bijzondere parfums van de wereld, waar zij ook persoonlijk geuradvies geven. Advies voor op de huid of in huis. Volgens de experts voegt geur iets toe wat niet zichtbaar en tastbaar is. Je kunt geur op verschillende manieren inzetten in een ruimte. Het begint natuurlijk eerst dat het er niet negatief mag ruiken. Er zijn best wel veel ruimtes waar je het riool of sanitair ruikt, waar veel gerookt is of waar de afzuiging niet goed is en het naar eten ruikt. De meeste simpele manier van geur in huis is dat het schoon ruikt. Veel mensen associëren schoonmaak of wasmiddel met een schoon, opgeruimd en verzorgd huis. Daarnaast kun je de ambiance aanzetten. Net zoals met licht en muziek kun je de sfeer verzachten of versterken. Je kunt het heel huiselijk laten ruiken of juist heel modern. Landelijk of artistiek. Of juist heel minimalistisch of intiem.

Boodschappen
1593079817
20
Adres
Johannes Verhulststraat,
1066 VH Amsterdam

Slagerij De Schuyt

Slagerij De Schuyt, vernoemd naar hun locatie in de Cornelis Schuytstraat, heeft als symbool de parkiet. Net als de parkiet heeft deze kenmerkende slagerij zijn oorsprong in de jaren zeventig en hebben beiden hun plek veroverd in Amsterdam. Geïnspireerd door de parkiet begon eigenaar Evert Blauwendraat zijn slagerij met het idee om daar een karakteristiek, persoonlijk en bijzonder embleem aan te geven dat voor iedereen herkenbaar is. Bij dit familiebedrijf met een rijke historie kan je terecht voor vlees en delicatessen.

groentenier-winkel-voor-buiten
21
Adres
Cornelis Schuytstraat 35,
1071 NL Amsterdam

Groenteboer Tom Ensink

Groenteboer Tom Ensink zorgt ervoor dat klanten kunnen kiezen uit een exclusief assortiment aan eerlijke producten. Naast groenten worden er kazen, fruit, noten, oliën, wijnen én maaltijden verkocht - zorgvuldig geselecteerd voor de échte fijnproevers in Zuid. Specifieke wensen kunnen worden vervuld wat betreft het bestellen van producten, maar ook voor de verse maaltijden.

Schermafbeelding 2022-05-18 om 19.26.29
22
Adres
Van Breestraat 107A,
1071 ZJ Amsterdam

De Wijnkaart

In het Museumkwartier in Amsterdam-Zuid zit De Wijnkaart. Hier worden allerlei soorten wijnen uit de vergeten Oost-Europese wijnlanden geserveerd. Alhoewel de geschiedenis van het wijn maken hier is begonnen, zijn deze landen vaak vergeten in de wijnwereld. Als je benieuwd bent geworden naar alle soorten wijnen kan je een wijnproeverij doen in de wijnbar, waarbij je zelf mag uitkiezen welke je wil proeven. Naast de borrelplanken die wekelijks veranderen, staan er ook hoofdgerechten op het menu.

69495482_2355482024538342_8370925297519820800_n
23
Adres
1071 MR Amsterdam

ZuiderMRKT

De zuiderMRKT is een kleine, gezellige, wekelijkse buurtmarkt. Uniek door haar coöperatieve karakter. De coöperatie bestaat uit leden - enthousiaste buurtbewoners - die de markt een warm toedragen en meehelpen op de markt en in de groentekraam. De leden bepalen samen het aanbod van alle kramen. Zij kopen groente en fruit rechtstreeks in bij de boer, om ze voor eerlijke prijzen op het zuiderMRKT-plein te verkopen.

Kunst & cultuur
241801382_194597056100298_7531339944812475387_n
24
Adres
Willemsparkweg 134,
1071 HR Amsterdam

Galerie Bildhalle

Bildhalle is oorspronkelijk opgericht als een Zwitserse galerie gespecialiseerd in klassieke en hedendaagse fotografie. De galerie heeft inmiddels vestigingen in Zürich en Amsterdam. Sinds de oprichting door Mirjam Cavegn in 2013, heeft de galerie zich ontwikkeld tot een van de meest gerespecteerde fotogaleries in Zwitserland. In oktober 2021 zette Bildhalle haar groei voort met de opening van een tweede galerie aan de Willemsparkweg in Amsterdam. Hier presenteert de galerie een zorgvuldig geselecteerde collectie van Nederlandse en internationale kunstenaars, variërend van opkomend talent tot gevestigde fotografen.

315727004_139279408874516_3171046503847699668_n
25
Adres
Willemsparkweg 64H,
1071 HK Amsterdam

Hama Gallery

Bij Hama Gallery geloven ze dat een galerie een grenzeloze ontmoetingsplaats is waar kunst en mensen samenkomen. Het doel is om kunst toegankelijker te maken door een unieke ervaring te bieden die breekt met traditie. De galerie verwelkomt bezoekers met open armen, of je nu binnenloopt voor een spontaan bezoek, een intieme privébezichtiging wilt, of samen met anderen kunst wilt vieren tijdens onze feestelijke openingen en tuinevenementen.

Hollandse pracht aan de Keizergracht

Hollandse pracht aan de Keizergracht

Uitgelicht; Maria Magdalena, een loft appartement in een voormalige pastorie

Uitgelicht; Maria Magdalena, een loft appartement in een voormalige pastorie

Binnenkijken; samen met bewoner Joost Houtman en architect Thomas Geerlings

Binnenkijken; samen met bewoner Joost Houtman en architect Thomas Geerlings

Onlangs bekeken
Bekijk het overzicht

Deze site maakt gebruik van cookies.

Voor welke cookies geef je akkoord?