Een voormalig wevershuisje van circa 150 m² op één van de leukste plekken van het centrum. De Tweede Weteringdwarsstraat is een plek waar je echt woont. Een rustige straat maar toch een levendige buurt. Het monumentale woonhuis gelegen op eigen grond is momenteel in gebruik als twee woningen, uiteraard kan het ook als één geheel worden samengevoegd.

Rondleiding
Benedenhuis
De woning is te betreden op de bel-etage, drie treden vanaf de straat. Grote ramen aan voor- en achterzijde zorgen voor een natuurlijke lichtinval die versterkt wordt door het lichte kleurgebruik en hoge plafond (2,86 m).
De woonkamer ligt aan de straatzijde en biedt een uitzicht op de rustige straat. De indeling is slim georganiseerd: centraal in de ruimte bevindt zich de trap naar het souterrain, met het zitgedeelte aan de voorzijde en het eetgedeelte / keuken aan de tuinzijde. De eigentijdse keuken is compact maar elegant, met matte fronten, geïntegreerde apparatuur en een rustige, moderne kleurstelling. Dankzij de trap vanuit de keuken naar de patio, blijft het koken fijn verbonden met het buitenleven. Op de verdieping bevindt zich ook de luxe badkamer met douche, wastafelmeubel en toilet.
In het souterrain ontvouwt zich een meer intieme sfeer. De slaapkamer, gesitueerd aan de achterzijde van de woning, biedt uitzicht op de tuin en heeft een fijne, rustige ligging. Daarnaast vind je op dit niveau een aparte wasruimte.
Op beiden etage ligt een pvc vloer in visgraat motief. Vanaf de straat is er toegang tot de berging, ideaal voor de fiets

Bovenhuis
Met een recent gerenoveerde trap ontvouwt zich de entree tot het bovenhuis, dat zich uitstrekt over drie verdiepingen vol licht en een rustige, stijlvolle uitstraling die in elke ruimte terugkomt.
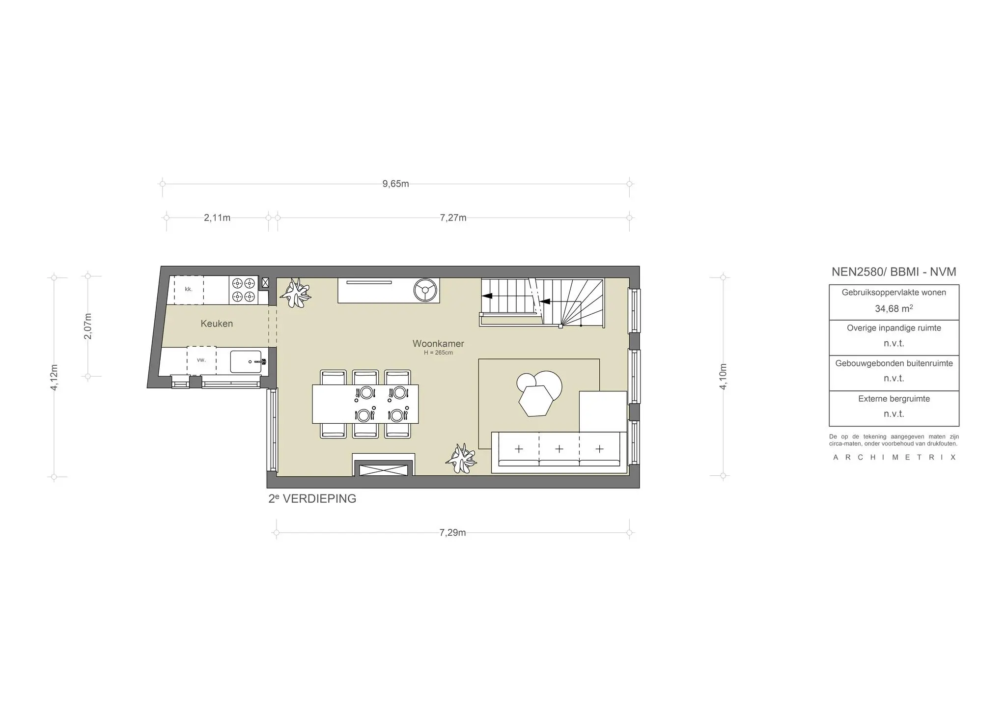
De leefverdieping, gelegen op de tweede verdieping, beschikt over ramen over de volle breedte van de gevel. De originele balken en de oude schouw geven de ruimte een uitgesproken karakter, terwijl er ruim plaats is voor zowel een zit- als eetgedeelte. De verzorgde, witte keuken ligt aan de achterzijde, compact maar efficiënt ingedeeld en voorzien van diverse inbouwapparatuur.
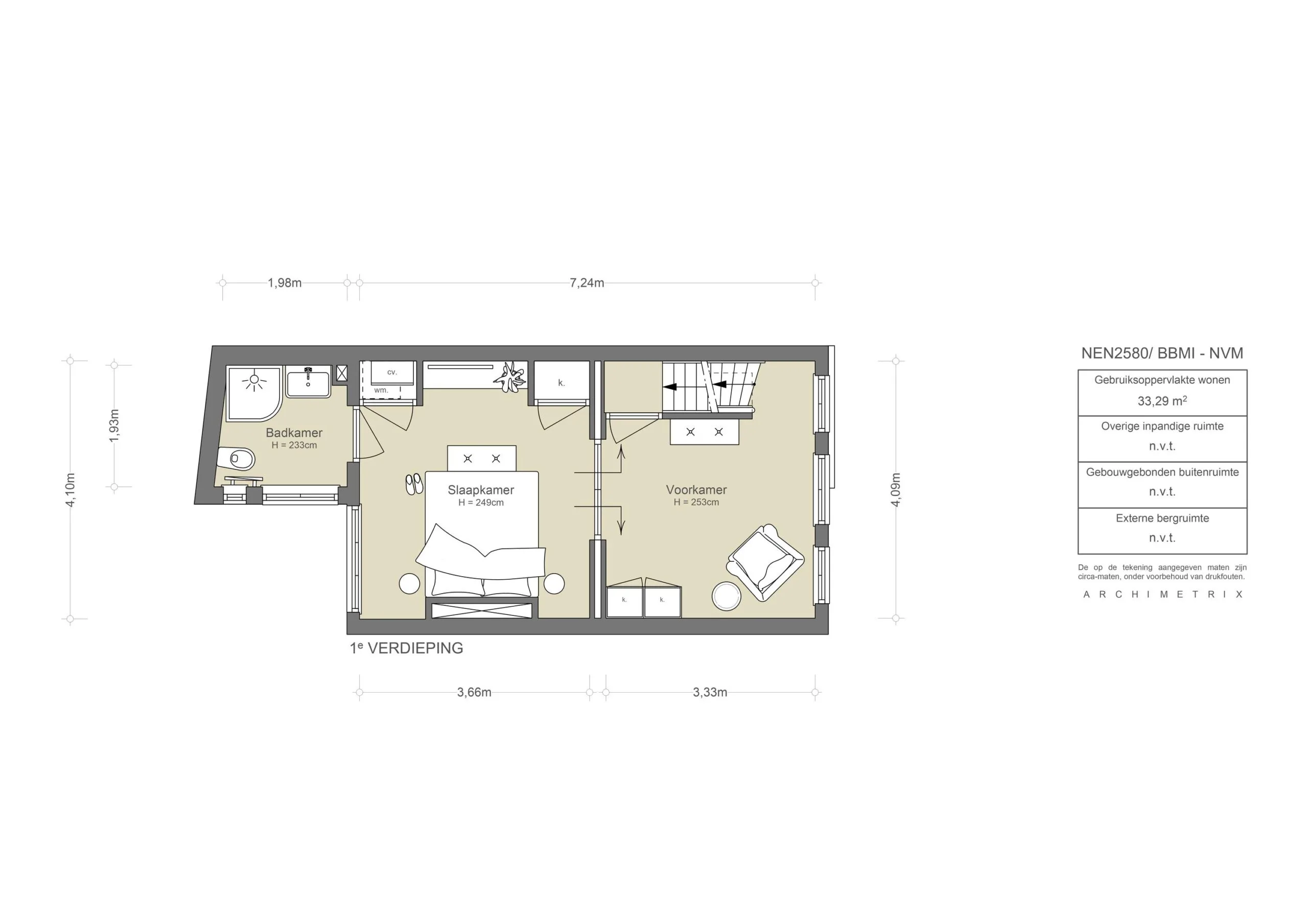
Een verdieping lager liggen twee (slaap)kamers, gescheiden door schuifdeuren. De voorgelegen kamer beschikt over drie hoge ramen en leent zich uitstekend als werkkamer. De achtergelegen kamer kijkt uit op de patio. Aangrenzend bevindt zich de eerste badkamer met douche, wastafelmeubel en toilet: praktisch, fris en voorzien van daglicht.
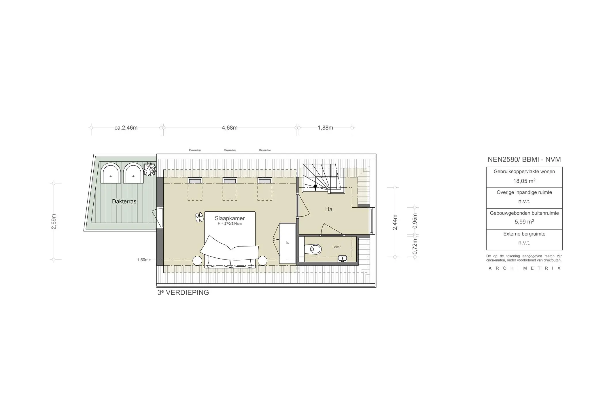
De kapverdieping is een open ruimte met karakteristieke houten spanten, momenteel in gebruik als werk- en logeerkamer. Dankzij de nokhoogte en de balken voelt de ruimte licht en sfeervol en is deze ook zeer geschikt als atelier of hobbyruimte. Een eigen toilet en toegang tot het dakterras maken deze verdieping extra praktisch en compleet.

Buitenruimte
Aan de achterzijde van de woning ligt een patio: beschut en rustig. Deze intieme buitenplek is bereikbaar vanuit de keuken. Een fijne plek om toch even buiten te kunnen zitten op warme dagen.
Boven, op de kapverdieping, bevindt zich het dakterras, een zonnig uitkijkpunt met zicht over de daken van de Weteringbuurt.Er is plek voor een tafel en twee stoelen: ideaal voor een ontbijtje in de ochtendzon of om de dag rustig af te sluiten. Net boven de daklijn duiken de torentjes van het Rijksmuseum op, een subtiele herinnering aan de rijke historie en cultuur die de stad te bieden heeft.

Buurtgids
Het woonhuis is om de hoek van de Vijzelgracht, daar is o.a. de koninklijke banketbakker Holtkamp, goede koffie tentjes en Bar Do voor een drankje op het terras te vinden. Ook het Amstelveld is om de hoek, met op maandag de Bloemenmarkt en de beroemde terrassen van de Nieuwe Marcella en Nel. De vleugelnootbomen geven cachet aan dit hoogwaardige stadsplein. De mooie winkelstraat - Utrechtsestraat heeft een sterk en hoogwaardig aanbod van diverse delicatessezaken en horeca. Zo zijn er meerdere zaken met een Michelinster en een gevarieerd aanbod van drinkgelegenheden. Het culturele leven speelt zich af in de Stopera, het koninklijke Carre en de Hermitage. Bij de laatste is op zaterdag een biologische markt met streekproducten. De levendige Albert Cuyp is lopend binnen vijf minuten te bereiken en zo worden ook alle delicatessenzaken in de Pijp ook een onderdeel van de dagelijkse wandeling.

Bijzonderheden
• Gebruiksoppervlakte wonen circa 150 m²
• Patio van circa 5 m²
• Terras gelegen op het zuidwesten van circa 6 m²
• Gelegen op eigen grond
• Energielabel C
• Funderingsherstel in 1999/2000
• Twee woningen ( H & I) – dubbele bewoning is mogelijk
• Rijksmonument
• Beschermd stadsgezicht

AM104682-2038162-Tweede-Weteringdwarsstraat-12H,-Amsterdam-239413622

Het Wevershuisje
Een voormalig wevershuisje op een van de leukste plekken van het centrum. De Tweede Weteringdwarsstraat is een plek waar je écht woont: een rustige straat, maar toch gelegen in een levendige buurt. De Weteringbuurt is misschien wel het fijnste woongebied van de binnenstad — compact, rijk aan historie en met een uitgesproken dorps karakter.
Het monumentale woonhuis is momenteel in gebruik als twee zelfstandige woningen, maar kan desgewenst ook eenvoudig weer als één geheel worden samengevoegd.


Judith de Jong | Makelaar Broersma Wonen
AM104682-2038162-Tweede-Weteringdwarsstraat-12,-Amsterdam-239413222
Designvisie

Achter een monumentale gevel, gelegen in een van de stilste straten van de Weteringbuurt, ontvouwt zich een zorgvuldig gerestaureerd wevershuisje uit 1870. De gevel, met zijn diepdonkere baksteen, wit geaccentueerde kroonlijst en sierlijke ornamenten, straalt authenticiteit uit. Binnen zijn balklagen en kapconstructies zichtbaar gelaten waar ze het karakter versterken — zoals op de bovenste verdieping: een open ruimte onder de kap met prachtige houten spanten.
In 1999/2000 is er funderingsherstel uitgevoerd en in 2013 heeft een grondige renovatie plaatsgevonden.

AM104682-2038162-Tweede-Weteringdwarsstraat-12,-Amsterdam-239413216
AM104682-2038162-Tweede-Weteringdwarsstraat-12,-Amsterdam-239413242
AM104682-2038162-Tweede-Weteringdwarsstraat-12,-Amsterdam-239413248
AM104682-2038162-Tweede-Weteringdwarsstraat-12,-Amsterdam-239413226
Bel-etage

Je betreedt de woning op de bel-etage, waar de klassieke gevel meteen overgaat in een verrassend lichte entree. Grote ramen aan voor- en achterzijde zorgen voor een natuurlijke lichtinval die versterkt wordt door het lichte kleurgebruik en hoge plafonds.
De woonkamer ligt aan de straatzijde en biedt een helder uitzicht op de rustige straat. De indeling is slim georganiseerd: centraal in de ruimte bevindt zich de trap naar het souterrain, terwijl de zitkamer subtiel overloopt in een halfopen eetkeuken aan de tuinzijde. De keuken is compact maar elegant, met matte fronten, geïntegreerde apparatuur en een rustige, moderne kleurstelling. Dankzij de trap vanuit de keuken naar de patio, blijft het koken fijn verbonden met het buitenleven.

Souterrain
In het souterrain ontvouwt zich een meer intieme sfeer. De slaapkamer, gesitueerd aan de achterzijde van de woning, biedt uitzicht op de tuin en heeft een fijne, rustige ligging. Daarnaast vind je op dit niveau een aparte wasruimte en een royale berging met praktische kasten voor extra opbergruimte. Deze berging is vanaf de straat toegankelijk, waardoor je er ook gemakkelijk fietsen kunt stallen.

AM104682-2038162-Tweede-Weteringdwarsstraat-12,-Amsterdam-239413304
AM104682-2038162-Tweede-Weteringdwarsstraat-12,-Amsterdam-239413288
AM104682-2038162-Tweede-Weteringdwarsstraat-12,-Amsterdam-239413334
AM104682-2038162-Tweede-Weteringdwarsstraat-12,-Amsterdam-239413320
AM104682-2038162-Tweede-Weteringdwarsstraat-12,-Amsterdam-239413362
AM104682-2038162-Tweede-Weteringdwarsstraat-12,-Amsterdam-239413262
Tweede Weteringdwarsstraat 12-23
AM104682-2038162-Tweede-Weteringdwarsstraat-12,-Amsterdam-239413390
AM104682-2038162-Tweede-Weteringdwarsstraat-12,-Amsterdam-239413398
AM104682-2038162-Tweede-Weteringdwarsstraat-12,-Amsterdam-239413434
Bovenhuis

Het bovenhuis strekt zich uit over drie verdiepingen vol licht, met een rustige en stijlvolle uitstraling die consequent is doorgevoerd.
De leefverdieping bevindt zich op de tweede etage, met ramen over de volle breedte van de gevel. De originele balken en de oude schouw geven deze ruimte karakter. Hier is meer dan genoeg plaats voor zowel een zit- als eetgedeelte. De verzorgde, witte keuken aan de achterzijde is compact, maar efficiënt ingedeeld en voorzien van diverse inbouwapparatuur.

Een verdieping lager bevinden zich twee (slaap)kamers, gescheiden door schuifdeuren. De kamer aan de voorzijde, met drie hoge ramen, is ook ideaal als werkkamer. De kamer aan de achterzijde kijkt uit op de patio. Aangrenzend bevindt zich de eerste badkamer met douche, wastafelmeubel en toilet, praktisch, fris, en voorzien van daglicht.

Kapverdieping
De kapverdieping is een open ruimte met karakteristieke houten spanten en is momenteel in gebruik als werk- en logeerkamer. Dankzij de nokhoogte en zichtbare balken voelt de ruimte licht en sfeervol aan. Deze verdieping is ook heel geschikt als atelier of hobbyruimte. Een eigen toilet en toegang tot het dakterras maken deze verdieping extra praktisch en compleet.

AM104682-2038162-Tweede-Weteringdwarsstraat-12,-Amsterdam-239413530
AM104682-2038162-Tweede-Weteringdwarsstraat-12,-Amsterdam-239413504
AM104682-2038162-Tweede-Weteringdwarsstraat-12,-Amsterdam-239413556
AM104682-2038162-Tweede-Weteringdwarsstraat-12,-Amsterdam-239413512
AM104682-2038162-Tweede-Weteringdwarsstraat-12,-Amsterdam-239413576
AM104682-2038162-Tweede-Weteringdwarsstraat-12,-Amsterdam-239413622
AM104682-2038162-Tweede-Weteringdwarsstraat-12,-Amsterdam-239413350
De patio

Aan de achterzijde van de woning ligt een sfeervolle, deels groene patio: beschut, besloten en verrassend rustig voor de stad. Deze intieme buitenplek is bereikbaar vanuit de keuken en doet dienst als verlengstuk van de leefruimte. Klimop en bloeiende potten zorgen voor een vriendelijke, groene touch, terwijl de vloer deels betegeld is. Met een zitplek is de patio een fijne plek is om in alle seizoenen te genieten van het buitenleven.

Het dakterras
Boven, op de kapverdieping, bevindt zich het dakterras, een zonnig uitkijkpunt met zicht over de daken van de Weteringbuurt. Het hekwerk is afgezet met bamboematting voor extra privacy. Er is plek voor een tafel en twee stoelen: ideaal voor een ontbijtje in de ochtendzon of om de dag rustig af te sluiten met een uitzicht dat elke keer opnieuw verrast. Net boven de daklijn duiken de torentjes van het Rijksmuseum op, een subtiele herinnering aan de rijke historie en cultuur die de stad te bieden heeft. Beide buitenruimtes hebben een eigen sfeer, maar bieden allebei rust en geborgenheid. Geen overdaad, maar precies genoeg ruimte om op elk moment van de dag even buiten te kunnen zitten.

AM104682-2038162-Tweede-Weteringdwarsstraat-12,-Amsterdam-239413564
AM104682-2038162-Tweede-Weteringdwarsstraat-12,-Amsterdam-239413460
AM104682-2038162-Tweede-Weteringdwarsstraat-12,-Amsterdam-239413478
AM104682-2038162-Tweede-Weteringdwarsstraat-12,-Amsterdam-239413488
Buurtgids

Het woonhuis ligt om de hoek van de Vijzelgracht, met in de directe omgeving bekende plekken zoals banketbakker Holtkamp, gezellige koffietentjes en Bar Do. Ook het Amstelveld is vlakbij, bekend om de bloemenmarkt op maandag en de sfeervolle terrassen van o.a. Café Marcella en Café Nel.
De charmante Utrechtsestraat biedt een hoogwaardig aanbod aan delicatessenzaken, horecagelegenheden en zelfs enkele Michelinsterren. Voor cultuur liggen de Stopera, Carré en de Hermitage binnen handbereik. Op zaterdag is er een biologische markt bij de Hermitage en ook de Albert Cuypmarkt is op slechts vijf minuten loopafstand.

Bereikbaarheid
De woning is uitstekend bereikbaar met zowel auto als openbaar vervoer. Met metrohaltes op de Vijzelgracht (Noord/Zuidlijn) en Wibautstraat zijn Centraal Station en Amstel Station binnen 10 minuten bereikbaar. Diverse tramlijnen stoppen om de hoek. De A10 is snel bereikbaar via de Van Woustraat of Wibautstraat. De centrale ligging maakt dat je per fiets in no-time overal bent — met De Pijp aan de ene kant en het Centrum aan de andere.

Parkeren
Parkeren is mogelijk via een vergunningenstelsel op de openbare weg (vergunningsgebied Centrum-2f). Met een parkeervergunning voor Centrum-2f mag u parkeren in Centrum-2.
Een parkeervergunning voor bewoners kost € 326,65 per 6 maanden. Momenteel is er voor dit vergunningsgebied een wachttijd van 14 maanden. Een tweede parkeervergunning is in dit gebied niet mogelijk. Op basis van de bewoners parkeervergunning kan er zonder verdere kosten geparkeerd worden in de parkeergarage boven het metrostation Vijzelgracht, op 200 meter lopen van het huis. Dat voelt nagenoeg als een eigen parkeerplaats, geen rondjes rijden voor een beschikbare plek. (Bron: Gemeente Amsterdam, maart 2026).

AM104682-2038162-Tweede-Weteringdwarsstraat-12,-Amsterdam-239413614
AM104682-2038162-Tweede-Weteringdwarsstraat-12,-Amsterdam-239413520
AM104682-2038162-Tweede-Weteringdwarsstraat-12,-Amsterdam-239413380
Kenmerken
Tweede Weteringdwarsstraat 12H, Amsterdam
Vraagprijs
  • € 1.390.000 k.k.
Beschikbaarheid
  • In overleg
Vertrekken
  • 6 kamers
  • 3 slaapkamers
  • 2 badkamers
Onderhoud
  • Intern: Goed
  • Extern: Goed
Oppervlakten & Inhoud
  • Woonoppervlakte: 150 m²
  • Overige inpandige ruimte: 1 m²
  • Gebouwgebonden buitenruimte: 9 m²
  • Tuinoppervlakte: 5 m²
  • Perceeloppervlakte: 46 m²
Installaties
  • Dakraam
  • TV kabel
Ligging
  • Aan rustige weg
  • In centrum
  • In woonwijk
Parkeren
  • Betaald parkeren
  • Parkeervergunningen
Type verwarming
  • CV Ketel
Type warmwater
  • CV Ketel
Bestemming
  • Woonruimte
Eigendomssoort
  • Volle eigendom
Buitenruimte
  • Patio atrium
  • Dakterras
Kadastraal
  • Gemeente: Amsterdam
  • Sectie: I
  • Nummer: 3343
Duurzaamheid
  • Dakisolatie
  • Gedeeltelijk dubbel glas
  • Vloerisolatie
  • Energielabel C
Soort
  • Herenhuis
  • Tussenwoning
  • Woonhuis
Bijzonderheden
  • Beschermd stads of dorpsgezicht
  • Monument
  • Monumentaal pand
Overige kenmerken
  • OZB ('25) € 291,39 per jaar 
  • OZB ('26) € 377,33 per jaar 
  • Rioolrecht ('26) € 192,04 per jaar
  • Gebruiksoppervlakte wonen circa 150 m²
  • Patio van circa 5 m²
  • Terras gelegen op het zuidwesten van circa 6 m²
  • Gelegen op eigen grond
  • Funderingsherstel in 1999/2000
  • Twee woningen ( H & I) – dubbele bewoning is mogelijk
  • Rijksbeschermd stadsgezicht
Plattegrond
Tweede Weteringdwarsstraat 12H, Amsterdam
AM104682-2038162-Tweede-Weteringdwarsstraat-12H,-Amsterdam-240067234
AM104682-2038162-Tweede-Weteringdwarsstraat-12H,-Amsterdam-240067240
AM104682-2038162-Tweede-Weteringdwarsstraat-12H,-Amsterdam-240067244
AM104682-2038162-Tweede-Weteringdwarsstraat-12H,-Amsterdam-240067248
AM104682-2038162-Tweede-Weteringdwarsstraat-12H,-Amsterdam-240067256
Documenten
Tweede Weteringdwarsstraat 12H, Amsterdam
Locatie
Tweede Weteringdwarsstraat 12H, Amsterdam
Eten & drinken
19264285_1400067526755014_1069961631133216664_o
01
Adres
Weteringstraat 37,
1017 SM Amsterdam

Café de Wetering

Een bruine kroeg ten voeten uit en niet eenvoudig te vinden als je niet precies weet waar je wezen moet. Het cafe bevind zich in een prachtig 17e eeuws pand. Er is een vide boven de bar waar zich een open haard bevindt. Dit bruincafé is ook bijzonder omdat het een uitstekende wijnkaart heeft, en dat zie je niet vaak in klassieke Amsterdamse kroegen. Uiteraard ook heerlijk bier, borrelnootjes en, niet onbelangrijk, je betaalt hier alleen in cash.

weteringstraat-new-1604
Schermafbeelding 2022-05-18 om 18.36.27
02
Adres
Weteringstraat 48,
1017 SP Amsterdam

Back to Black

Back to Black is een koffiebar met een eigen branderij aan de Weteringstraat. Bij Back to Black wordt elk stap in het productieproces van koffie met passie en vakmanschap uitgevoerd. Vanuit hun liefde voor koffie reizen de eigenaren van Back to Black de hele wereld af op zoek naar de beste producten. Deze verkopen zij vervolgens in hun eigen zaak. Naast koffie serveren ze ook lekkere koekjes en taartjes én ze verkopen ook eigen t-shirts met mooie designs.

Schermafbeelding 2022-06-27 om 17.58.26
03
Adres
Weteringstraat 41,
1017 SM Amsterdam

Restaurant Watergang

Sinds begin 2019 zit Watergang in een charmant 17 eeuws pandje in de leuke Weteringbuurt wat voorheen decennialang Spaans restaurant La Cacerola huisvestte. Uit het kleine keukentje op twee hoog tovert Chef Tim van Grootheest (voorheen jarenlang patissier bij Bord'Eau) verrassende gerechten.  Watergang serveert een verrassingsmenu dat regelmatig wijzigt en laveert tussen Franse en Italiaanse maar ook oosterse smaken.

04
Adres
Prinsengracht 568,
1017 KR Amsterdam

Heuvel

Buurtbewoners en galeriehouders uit het Spiegelkwartier komen hier regelmaat op bezoek. Bij Café Heuvel is het bijna elke dag dag rond 17:00 al volop borreluur. 'Als ik sneuvel, dan bij Heuvel!' Het kleine hoekcafé met fijn terras is een van de oudste cafés van de stad.

foto6
Buffet-van-Odette-148
05
Adres
Prinsengracht 598,
1017 KS Amsterdam

Buffet van Odette

Odette Rigterink begon Buffet van Odette in 1994. Ze laadde pannen vol met zelfgemaakt eten in een krat voorop de fiets en serveerde een dagmenu aan jong en oud Amsterdam bij de crèche Enfant Terrible. Vanaf 2011 is het restaurant gevestigd op Prinsengracht 598, op de hoek van Weteringstraat. Ze serveren hun vaste klassiekers en koken ook met het seizoen mee en hebben een uitgebreide (natuur)wijnkaart. Van maandag tot en met vrijdag serveren ze zowel lunch als diner.

 

06
Adres
Lijnbaansgracht 267 HS,
1017 RL Amsterdam

Shiraz

Shiraz is niet voor niets als winnaar uit de wijnbar van het jaar wedstrijd gekomen. In het hartje van Amsterdam ligt deze geliefde wijnbar, waar je nieuwe wijnen kan ontdekken of terug kan vallen op je favoriete wijn. Als je het lastig vindt om te kiezen tussen de in totaal 150 wijnen, staat het personeel altijd paraat om je van vakkundig advies te voorzien of om iets te laten proeven. In deze tuin van wijnen kan je genieten van een heerlijk glas wijn met een bijbehorend hapje.

tokyo_ramen_iki_ramen_restaurant_amsterdam_header
07
Adres
Kerkstraat 148A,
1017 GR Amsterdam

Tokyo Ramen Takeichi

Deze Japanse ramen keten heeft inmiddels al meerdere vestigingen over de hele wereld. In Amsterdam zijn inmiddels al drie vestigingen. Tokyo Ramen Takeichi is bekend om zijn gezonde ramen met kip en groentebouillon. Doordat ze trouw blijven aan de Japanse roots is het een authentieke restaurant. Naast hun specialiteit zijn de side dishes ook heerlijk. De 'karaage' zal je niet teleurstellen.

08
Adres
Korte Leidsedwarsstraat 139-141,
1017 PZ Amsterdam

Taste of Culture

Tate of Culture schijnt de plek te zijn waar chefs midden in de nacht naartoe gaan als ze zin hebben in Chinees eten. En ik geef ze geen ongelijk. De menukaart is enorm uitgebreid, je kan kiezen tussen authentieke Chinese gerechten of dimsum. Een gerecht wat je zeker niet mag missen is de eend. Je kan het half of heel bestellen, met rijst en verschillende sauzen of getrancheerd en geserveerd met flensjes.

265617006_1807622789446508_710233366890861875_n
09
Adres
Noorderstraat 19h,
1017 TR Amsterdam

Sukhothai Thanee

Misschien komt de naam van dit restaurant je bekend voor. Want de eigenaren van dit restaurant bezaten vroeger de succesvolle streetfood stal in Amsterdam, namelijk Sukothai Streetfood Expres. Tegenwoordig zijn ze volop bezig bezig met het runnen van een chique restaurant. Ze koken vanuit de Thaise traditie met eerlijke ingrediënten. Wat je zeker niet mag missen zijn de curry's van van versgemaakte currypasta’s.

tokyo_ramen_iki_ramen_restaurant_amsterdam_wat_is_ramen
10
Adres
Vijzelstraat 135,
1017 HJ Amsterdam

Tokyo Ramen Takeichi

Deze Japanse ramen keten heeft inmiddels al meerdere vestigingen over de hele wereld. In Amsterdam zijn inmiddels al drie vestigingen. Tokyo Ramen Takeichi is bekend om zijn gezonde ramen met kip en groentebouillon. Doordat ze trouw blijven aan de Japanse roots is het een authentieke restaurant. Naast hun specialiteit zijn de side dishes ook heerlijk. De 'karaage' zal je niet teleurstellen.

Carmen-Guest-House-Amsterdam-Store-Patter-PlacesIMG_0520
11
Adres
Keizersgracht 600,
1017 EP Amsterdam

Carmen

Winkel, restaurant en guesthouse. Eigenaren Carmen Atiyah de Baets en Joris ter Meulen Swijtink openden na enkele jaren gewerkt en gewoond te hebben in Londen deze geweldige hotspot op de Keizersgracht. Carmen selecteerde een fijne mix van mode, interieur, accessoires van bijzondere ontwerpers. Joris bestiert de keuken waar regelmatig buitenlandse bevriende chefs gehost worden.

Schermafbeelding 2022-05-18 om 18.34.11
12
Adres
Kerkstraat 96H,
1017 GP Amsterdam

Bocca

Als je goede koffie zegt, kan je inmiddels een boel plekken in Amsterdam opnoemen maar, Bocca is weer even net nog een slagje beter. Hun werkruimte is groot zodat de barista’s genoeg ruimte hebben de beste koffie te zetten. De moeite waard om naar binnen te gaan, al is het maar om te zien hoe deze geschoolde barista’s alles eraan doen om jouw perfecte cappuccino met vakmanschap klaar te maken.

07892ef9-8e75-41cd-986e-cb8a3b027027
13
Adres
Museumstraat 2,
1071 XX Amsterdam

Rijks (*)

In het Rijks heeft Joris Bijdendijk de culinaire smaak van het Rijksmuseum op de kaart gezet. Hij werkt voornamelijk met ingrediënten van eigen bodem. Proef vooral zijn signatuur-gerecht, een millefeuille van fijne vellen rode biet met een beurre blanc die is opgewekt met sojasaus van Tomasu en frisse peterselie-olie. Vergeet ook niet een kijkje te nemen op de overheerlijke wijnkaart die is samengesteld door sommelier Isabelle Chow.

downloadgram.org_571902759_18102388009641879_2152803389231709999_n
downloadgram.org_574515938_18102388048641879_8716818313911497798_n
downloadgram.org_572126293_18102388021641879_5057052068189435512_n
14
Adres
Weteringschans 171,
1017 XD Amsterdam

Veneur

Chef-eigenaren Yoran Jacobi en Moriaan Koeleman staken hun jarenlange samenwerking in het voormalige sterrenrestaurant De Juwelier* in een nieuw Frans restaurant aan de Weteringschans. Samen met sommelier en mede-eigenaar Bas Hazen brengen ze hier een productgedreven keuken waarin vlees, grillades en open vuur de hoofdrol spelen. Het menu is klassiek Frans met moderne accenten en seizoensproducten, waarbij robuuste sauzen en precisie centraal staan. De zorgvuldig samengestelde wijnkaart vormt een perfecte partner voor de a-la-carte gerechten. Veneur combineert nostalgische charme met eigentijdse gastvrijheid, met een warme sfeer en een terras dat doet denken aan een Parijse bistro.

Boodschappen
overholtkamp
15
Adres
Vijzelgracht 15,
1017 HM Amsterdam

Patisserie Holtkamp

Patisserie Holtkamp is een bekend begrip onder de Amsterdammers. Ooit bekend geworden met de altijd verse tompouce, is Holtkamp tegenwoordig dé plek om de lekkerste (citroen)taarten en garnalenkroketten te halen. De recepten werken al jaren heel goed, want rond de feestdagen staat er altijd een rij. Het kleine winkeltje aan de Vijzelgracht is functioneel, maar vooral mooi authentiek. Het personeel is ontzettend vriendelijk en behulpzaam. Zeker een bezoekje waard.

casa del gusto
16
Adres
Kerkstraat 121,
1017 GE Amsterdam

Casa del gusto

Gianni en Gessica hebben een duidelijke toekomstvisie voor Casa del Gusto. ‘We willen een klein bedrijf blijven dat met kleinschalige boeren samenwerkt: dat is ons concept. ‘Alle boeren met wie wij werken, kennen we persoonlijk. Wij kopen onze Grana Padano – de populairste kaas van Italië – in bij een boer die slechts twee stukken per dag produceert. Dat is bijna niets vergeleken grote industriële producenten die honderden exemplaren per dag leveren. Wat wij heel belangrijk vinden, is dat je door de smaak van onze salami’s, pasta’s en bieren de producenten leert kennen.' Je moet de liefde die de boeren erin hebben gestopt terug kunnen proeven’, legt Gessica uit. Van hazelnootpasta en gnocchi tot bottarge en aloë vera-beautyproducten: de winkel staat vol heerlijke delicatesse en mooie producten. Casa del Gusto is, net zoals de naam suggereert, een smaakhuis voor zijn klanten.

Kunst & cultuur
Museumkwartier
17
Adres
Museumstraat 1,
1071 XX Amsterdam

Rijksmuseum

De architect, Pierre Cuypers, had voor het Rijksmuseum een ontwerp in historische stijl gemaakt, een mengeling van gotiek en renaissance en vol van vaderlandse symboliek. Na jarenlang gedoe - velen vonden het te middeleeuws, te katholiek en te weinig écht Nederlands – startte de bouw in 1876. In 1885 werd het officieel geopend. Naast de bestaande collectie kwamen bijna alle oudere schilderijen van de Stad Amsterdam in het Rijksmuseum te hangen, zoals Rembrandts Joodse bruidje die de bankier A. van der Hoop aan de stad had nagelaten. Ook kwam er kunst uit Haarlem, kreeg een deel van het Kabinet van Zeldzaamheden een vaste plek en het prentenkabinet een eigen ruimte. Een waardige collectie, in een schitterend gebouw.
Bij de laatste renovatie (2003-2013) kreeg het gebouw de oorspronkelijke structuur van Cuypers terug. Het gebouw is gemoderniseerd maar is tegelijkertijd van binnen weer meer het gebouw van Cuypers geworden, in al z’n grandeur. Schilderkunst, kunstnijverheid en geschiedenis zijn niet meer in aparte delen van het gebouw te zien. Alles vormt samen één chronologisch verhaal: het verhaal over de Nederlandse kunst en geschiedenis, van de Middeleeuwen tot en met de 20e eeuw.

2006b22272a073075554111102a2a516e7e_resized
18
Adres
Prinsengracht 510 O,
1017 KH Amsterdam

Mia Karlova Galerie

Mia Karlova Galerie, gelegen aan de Prinsengracht, streeft ernaar een dialoog tot stand te brengen tussen werken van verschillende genres door middel van een gemeenschappelijke emotionele taal. Mia Karlova Galerie zet functionele beeldhouwkunst in de schijnwerpers met een intrigerend programma van internationale hedendaagse kunstenaars en productontwerpers. Deze kunstvorm, die originaliteit uitstraalt in ontwerp of materiaal, biedt een uitzonderlijk plezier tijdens de interactie.

1600px-Giovanni-Nardi-Photography_5Y6A6134
19
Adres
Lijnbaansgracht 314,
1017 WZ Amsterdam

Lumen Travo Gallery

Lumen Travo is opgericht door Marianne van Tilborg in 1985. Het is een hedendaagse kunstgalerie in Amsterdam. Elk jaar organiseert de galerij diverse tentoonstellingen in samenwerking met zowel opkomende als gevestigde kunstenaars. Lumen Travo maakt zich zorgen over actuele thema's zoals identiteit, representatie en postkolonialisme en streeft ernaar de veelheid aan stemmen te laten zien die een rol spelen in onze geglobaliseerde samenleving. Door krachtige en diverse artistieke perspectieven te presenteren, die niet beperkt blijven tot het westerse gezichtspunt, engageert deze galerij zich in een visueel gesprek met open ogen voor de hele wereld.

Displacement-with-Basim-Magdy-Andrei-Roiter-Hrair-Sarkissian-at-AKINCI
20
Adres
Lijnbaansgracht 317,
1017 WZ Amsterdam

Akinci

De liefhebber voor hedendaagse kunst zit bij AKINCI zeker goed. AKINCI heeft een grote focus op nieuwe ontwikkelingen in de hedendaagse kunst en is expliciet geëngageerd met kunstenaars die socio-politieke, ecologische en gender vragen in hun werk integreren. Hun programma wordt bepaald door een diversiteit aan media en cross-overs tussen geluid, architectuur, schilderkunst, beeldhouwkunst, film en installatie. Je vindt er werken van o.a. Stephan Balkenhol, Theo Jansen en Edwin Zwakman.

170602_Hanson_Paradiso_LLS-1616
21
Adres
Weteringschans 6,
1017 SG Amsterdam

Paradiso

Paradiso is een poppodium, nachtclub en cultuurpaleis. Door de jaren heen hebben er heel veel bekende artiesten opgetreden waaronder; Prince, Red Hot Chili Peppers, UB40 en Nirvana. Vroeger was het een gebouw van een kerkgenootschap wat terug te zien is aan de hoge plafonds en de glas-in-lood ramen. Als je binnenkomt heb je recht en links trappen en rechtdoor bevindt zich de grote zaal met meerdere balkons. Doordat Paradiso een heel gevarieerd programma biedt heeft het een grote variëteit in publiek. Van jong tot oud en van punker tot popliefhebber. Tevens geeft het ruimte aan bijzondere initiatieven en projecten.

64de1fcd0b0424e4a3a718cc_DSC08433-p-1600
62fd325e97b604afb95b89cd_001.M.SIMONS GALERIE- HOEKSTRA + STOCK-2022-PH.GJ-p-1600
22
Adres
Lijnbaansgracht 318,
1017 WZ Amsterdam

M.Simons

M.simons is opgericht in 2021. Het is een galerie gevestigd in het historische centrum van Amsterdam. Hoewel de galerie voornamelijk gefocust is op schilder-en grafische kunst biedt het ook ruimte voor diverse andere artistieke media, waaronder fotografie en beeldhouwkunst.

Schermafbeelding 2023-09-26 om 13.10.24
23
Adres
Kerkstraat 105-A,
1017 GD Amsterdam

Siewe Gallery

Slewe Gallery is in 1944 opgericht door Martita Slewe. De galerie is gespecialiseerd in hedendaagse kunst. Het internationaal georiënteerde programma legt vanaf het begin de nadruk op actuele ontwikkelingen in de abstracte kunst, met name in de schilderkunst. De galerie vertegenwoordigt zowel gevestigde als opkomende kunstenaars uit diverse generaties en landen.

Interieur
77A1012-HDR_s
RVO_DesignStudio-483_LR_s
24
Adres
Stadhouderskade 42,
1071 ZD Amsterdam

Ruud van Oosterhout design

Ruud van Oosterhout's studio en showroom ligt gelegen naast het Rijksmuseum in Amsterdam. De showroom weerspiegelt zijn passie voor interieurontwerp met verfijnde eenvoud, heldere lijnen en subtiele kleurcombinaties. Met een hecht team werkt hij aan herkenbare interieurontwerpen, waar design en kunst samenkomen in samenwerkingen met galerieën en kunstenaars. Van Oosterhout staat bekend om zijn passie, vakmanschap en samenwerkingen met ambachtslieden.

 

 

 

278287126_5017084395041979_5150113744866398002_n
278227977_5017084525041966_5244810507209283372_n
25
Adres
Lijnbaansgracht 319A,
1017 WZ Amsterdam

Casa Gitane

Op de Lijnbaansgracht bevindt zich de prachtige in aardse kleuren gehulde studio van Casa Gitane. Gitane betekent gipsy en zo herbergt Casa Gitane meubels en voorwerpen geïnspireerd op verre oorden, wereldreizen en een nomadische levensstijl. Hun collectie bestaat uit drie belangrijke ingrediënten; unieke vintage stukken, een selectie van bestaande merken en onze eigen ontwerpen. Momenteel voornamelijk webshop en project inrichting.

Uitgelicht; ‘Cromhouts Buiten’. Er zijn huizen die stil hun plek behouden in de stad — onverstoord door tijd, mode of beweging.

Uitgelicht; ‘Cromhouts Buiten’. Er zijn huizen die stil hun plek behouden in de stad — onverstoord door tijd, mode of beweging.

Ontmoet de ondernemer, in deze serie Simon Witmaar van restaurant Coulisse

Ontmoet de ondernemer, in deze serie Simon Witmaar van restaurant Coulisse

Uitgelicht; Het Achterhuis Hospitium

Uitgelicht; Het Achterhuis Hospitium

Onlangs bekeken
Bekijk het overzicht

Deze site maakt gebruik van cookies.

Voor welke cookies geef je akkoord?