Heerlijk wonen in een licht en modern appartement in een rustige straat in de Pijp.

Dit appartement is het perfecte stadsappartement, onderdeel van een architectonisch pand dat zo kenmerkend is voor Amsterdam. De indeling, lichtinval en balkon op het zuiden maakt het een zeer prettige plek om thuis te komen.

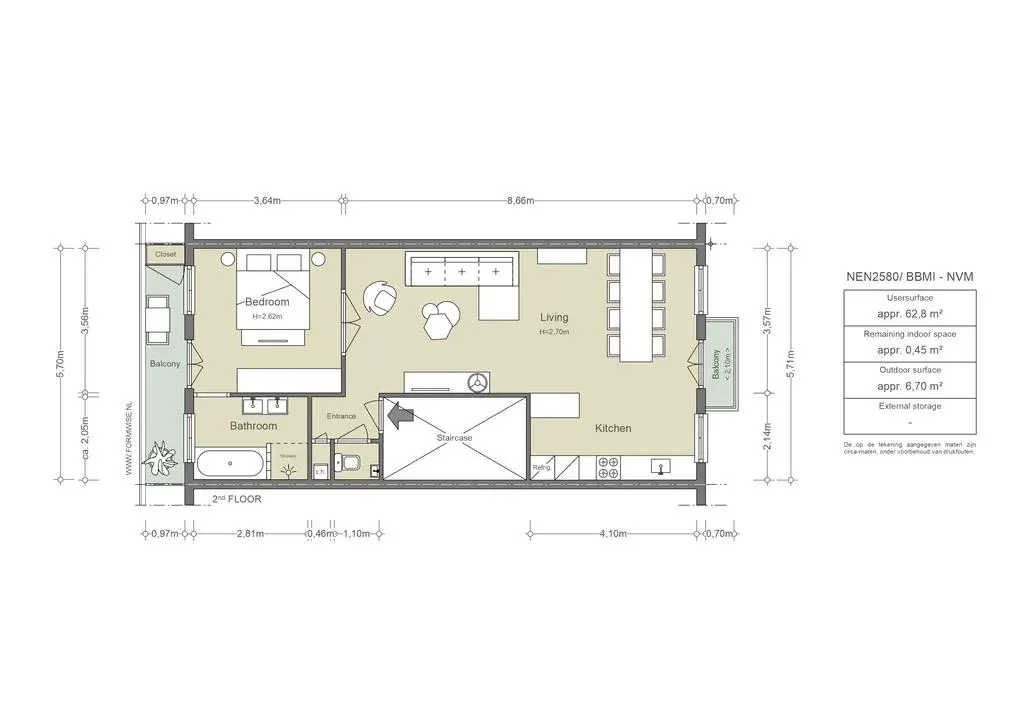
Een rondleiding

De tweede verdieping
Bij binnenkomst middels de gemeenschappelijke hal vallen het licht en het open gevoel van ruimte gelijk op. Aan de voorzijde bevindt zich de woonkamer met moderne open keuken voorzien van divers inbouwapparatuur, wasmachine en droger en heeft veel opbergruimte. Aan de bar kan heerlijk worden gekookt en gezeten. Het openslaan van de balkondeuren zorgen voor een fijn binnen- buitengevoel en de houten vloer draagt bij aan een sfeervolle woonbeleving.

Aan de achterzijde bevindt zich de slaapkamer met en suite badkamer voorzien van dubbelen wastafel, douche en ligbad. Ook heeft de slaapkamer kledingkasten en openslaande deuren naar het balkon gelegen op het zonnige zuiden. Op de hal bevindt zich een separaat toilet.

De buitenruimte 
Aan de achterzijde is een balkon op het zuiden gelegen over de gehele breedte van het pand. Aan de voorzijde is een frans balkon met uitzicht op de straat. 

De omgeving en bereikbaarheid
Gelegen in de Amsterdamse Pijp en op steenworp afstand van het Sarphatipark en de Albert Cuypmarkt voor de dagelijkse boodschappen. Tal van leuke, trendy bars, restaurants en (biologische) supermarkten in de directe omgeving.

Nabij de Ring A10 en goed bereikbaar met het openbaar vervoer, zoals tramlijnen: 3 en 4, buslijn: 246. Metrostation De Pijp met de Noord Zuid lijn is om de hoek en Amsterdam Centraal Station is op slechts 15 minuten afstand.

De parkeergelegenheid
Er is een mogelijkheid om een parkeervergunning aan te vragen. 

De bijzonderheden
- Beschikbaar: per 15 januari;
- Huurprijs: € 2.500,- excl. per maand;
- Borg: 2 maanden huur;
- Huurperiode: Model A, minimaal 12 maanden, onbepaalde tijd;
- Gestoffeerd.

Kenmerken
Tweede Jan Steenstraat 100-2, Amsterdam
Huurprijs
  • € 2.500 per maand
Beschikbaarheid
  • Per datum
Vertrekken
  • 2 kamers
  • 1 slaapkamer
  • 1 badkamer
Onderhoud
  • Intern: Goed
  • Extern: Goed
Oppervlakten & Inhoud
  • Woonoppervlakte: 63 m²
  • Gebouwgebonden buitenruimte: 7 m²
Bouwjaar
  • 1884
Parkeren
  • Betaald parkeren
  • Openbaar parkeren
  • Parkeervergunningen
Bestemming
  • Woonruimte
Buitenruimte
  • Geen tuin
  • Balkon
Duurzaamheid
  • Energielabel B
Soort
  • Appartement
  • Bovenwoning
Plattegrond
Tweede Jan Steenstraat 100-2, Amsterdam
AM105974-1960973-Tweede-Jan-Steenstraat-100-2,-Amsterdam-208979649
Documenten
Tweede Jan Steenstraat 100-2, Amsterdam
Locatie
Tweede Jan Steenstraat 100-2, Amsterdam
Eten & drinken
01
Adres
Hemonystraat 18,
1074 BP Amsterdam

L'Angoletto

Bij L’Angoletto lijkt het alsof de tijd heeft stil gestaan. Het restaurant heeft geen website, reserveren kan niet en pinnen ook niet maar het eten is verrukkelijk! De chef staat erom bekend dat hij trots is op zijn eten en hij hecht veel waarde aan tradities, dus waag het niet om te vragen om kaas bij je pasta met vis. Dit is het allemaal waard want het beste Italiaans eten in de Pijp eet je hier.

431059263_18422861317009279_783760135140482126_n
02
Adres
Ceintuurbaan 233,
1074 CW Amsterdam

Casa Nostra

De keuken van Puglia in de Pijp van Amsterdam. Oorspronkelijk van Taranto en opgegroeid in een familie waar alles om eten draait kookten de eigenaren de eerste tijd in Amsterdam alleen voor vrienden. Nadat iedereen er grapjes over maakten dat ze eigenlijk een restaurant moesten openen hebben ze uiteindelijk 10 jaar geleden de stap gezet. Op de kaart staan authentiek gerechten zoals handgemaakte orecchiette, capocollo uit Martina Franca en een fijne selectie van Pugliese wijnen.

03
Adres
Van Woustraat 37,
1074 AB Amsterdam

Roopram Roti

Roopram Roti komt oorspronkelijk uit Suriname en werd geëxporteerd naar Nederland vanwege de grote vraag naar roti op de Nederlandse markt, onder andere door vakantiegangers uit Paramaribo. Om aan deze vraag te voldoen, besloot J. Roopram diepvries roti naar Nederland te exporteren. Helaas werd dit op het laatste moment tegengehouden vanwege de beperkingen op de uitvoer van kip en kipdelen uit Suriname. In plaats daarvan opende J. Roopram in juli 2002 zijn eerste restaurant aan het Mathenesserplein 89 te Rotterdam. Dit werd gevolgd door het tweede filiaal in Amsterdam, genaamd Roopram Roti Eetcafé. Sindsdien zijn er twee extra filialen geopend, namelijk in Den Haag en aan de Van Woustraat 37 te Amsterdam.

04
Adres
Van Woustraat 25,
1074 AB Amsterdam

Café Biljart van Wou

Café Biljart van Wou is een typisch buurtcafé waar het stil wordt als de buurtbewoners op vakantie zijn.

281839615_1107865493110246_5418967694543907480_n
05
Adres
Weesperzijde 23,
1091 EC Amsterdam

De Ysbreeker

Levendig en gastvrij, de Ysbreeker is dé ontmoetingsplek voor heel Amsterdam. Deze locatie nodigt uit om de hele dag te vertoeven, met haar kenmerkende troeven zoals de verse keuken, het sfeervolle terras aan de Amstel en de indrukwekkende monumentale ruimte doordrenkt met een veelbewogen geschiedenis sinds 1702. Benoemd naar de historische ijsbreker die voor de deur lag, heeft deze plek een rijke herberg- en tapperijgeschiedenis. Chef-kok Goran Lukovic en zijn toegewijde team brengen een milieubewuste benadering naar de verfijnde landkeuken, met gerechten zoals Schots Balmoral hert en gerookte Noorse zalm gemarineerd in Red Bull.  De Ysbreeker kiest met zorg voor verantwoorde, eerlijke en dagverse producten. En dat merk je aan alles.

Schermafbeelding 2023-01-25 om 15.31.43
06
Adres
Van Woustraat 17,
1074 AA Amsterdam

Tjin's

Rond deze kleine broodjeszaak verzamelen zich vaak groepen mensen voor de deur voor een snelle snack. Tjin maakt al meer dan 40 jaar surinaamse broodjes en hapjes op basis van familie recept. Oprichter Chong begon ooit in West als platenzaak, echter werden de broodjes die hij achterin klaargemaakte steeds populairder, zoals het broodje met kabeljauw of de kerrie kip.

07
Adres
Van Woustraat 58,
1073 LN Amsterdam

Yen dining bar

De oprichter van Yen Dining Bar groeide op met Vietnamese smaken en de sociale eetcultuur van quán nhậu, wat de basis vormt van zijn visie voor deze zaak. Hij brengt hier klassieke Vietnamese gerechten zoals pho, bun bo hue en banh mi samen met moderne interpretaties en shared dining. De keuken legt nadruk op verse ingrediënten en kruiden, met frisse salades en hartige noodles die de essentie van Vietnam vangen. Yen wil een plek zijn waar vrienden samenkomen voor lekker eten en drank, met een warme, ontspannen energie. De ambiance is sfeervol en intiem met een lichte industriële toets, perfect voor diners met gezelschap of een drankje vooraf.

377504997_18261988948162741_2108036798515136593_n
08
Adres
Van Woustraat 48,
1073 LM Amsterdam

Mister Nata

Bij Mister Nata ben je aan het juiste adres voor het lekkerste gebak van Amsterdam, waar je kunt genieten van heerlijke pastel de nata, perfect gecombineerd met prachtige Single Estate Coffee, bereid met een La Marzocco-espressomachine. Portugal staat bekend om zijn verrukkelijke zoetigheden. Snoep, gebak en desserts maken allemaal deel uit van de traditionele Portugese keuken. Te midden van al deze heerlijkheden is de pastel de nata de absolute beroemdheid.

308963496_482352027283836_6226254290717796775_n
09
Adres
Van Woustraat 20,
1073 LL Amsterdam

Broodje Popov

Broodje Popov is al 50 jaar een broodjeszaak zoals deze bedoeld is. Gewoon een dik belegd broodje zoals je hem wil. Ze staan bekend om hun philly cheese steak en smashed hamburger met kaas, augurken, burgersaus en heerlijke gefrituurde uitjes. Iets minder trek? Ze serveren ook een goed broodje halfom.

 

245985996_1241955602934354_1770623343967133327_n
10
Adres
Govert Flinckstraat 326HS,
1073 CJ Amsterdam

101 Gowrie

De jonge Australische chef Alex Haupt met Japanse en Duitse roots kookt naar eigen zeggen 'Gaijin cuisine'.  'Een viering van culturele diversiteit door middel van Japanse tradities, technieken en liefde voor het ingrediënt met een respectvolle minachting voor de regels van reguliere conventie.' Gowrie serveert een vast menu met verrassende gerechtjes. Denk aan gyoza gevuld met duif, japans brood (shokupan) met miso en nori en een congee van noord zee krab. Reserveren is noodzakelijk.

11
Adres
Stadhouderskade 123-124,
1074 AV Amsterdam

Saravana Bhavan

Wie echt goed Indiaas wilt eten, en de sfeer van een echt Indiaas restaurant wilt proeven, moet naar Saravana Bhavan gaan, op het hoekje van de drukke Stadhouderskade en de van Wou straat zit hier dit grote restaurant. Het is een deel van de grootste vegetarische Indiase ketens in de wereld. Ze serveren ontelbaar veel lekkere (veel vegetarische dus) curry's en andere specialiteiten uit India. Het zit er vaak bomvol, met een gemengd publiek. Indiase gezinnen, stelletjes, toeristen, buurtbewoners, Saravana Bhavaan is een plek waar je goed kan eten.

335514203_871992397231199_3539701541656556904_n
12
Adres
Albert Cuypstraat 278,
1073 BR Amsterdam

La Biss Kosher Streetfood

La Biss is geen gewone sandwichbar; los van het feit dat de sandwiches uiteraard kosher zijn worden ze met zorg en precisie gemaakt met de beste en meest verse ingrediënten. Een specialiteit is de huisgemaakte challah brood, dagelijks vers gebakken en een unieke toevoeging aan de sandwiches. Ook de baguettes en andere verse broden zijn niet te missen.

_BOU9102
13
Adres
Van Woustraat 97,
1074 AG Amsterdam

Rayleigh & Ramsay

Rayleigh & Ramsay wordt omschreven als een snoepwinkel voor volwassenen. De term wijnbar vinden ze hier te hoogdrempelig, maar de focus ligt toch echt wel op wijn, met meer dan 100 open wijnen. Uniek is dat je wijn per slok, half glas of heel glas kan bestellen. Zo kan je hier terecht om alles wat je wil te proeven en te ontdekken wat je de allerlekkerste wijn vindt. Naast wijnen staat er ook goede koffie, cocktails, tapbier en lekker eten op het menu.

a47a0d_544e9cc89cd4470eb63806a4654b427d_mv2
a47a0d_fb5e2a64d06040578cf8264ee6b4ddff_mv2
14
Adres
Govert Flinckstraat 308,
1073 CJ Amsterdam

Restaurant Mont Blanc

Chef Thibault en zijn vrouw Dieuwertje Gordijn runnen al jaren succesvol Bistrot des Alpes. In oktober 2021 hebben zij op de Govert Flinckstraat 308 een nieuw restautant geopend. Hier kan je op culinaire ontdekkingsreis rondom de Mont Blanc. Chef Thibault neemt je mee langs de bergmeren, door de bergen en tot slot naar de top van de Mont Blanc met zijn signature dessert. Een fine-dining ervaring in een warme sfeer.

DSC_3974-Edit-1363×2048
DSC_3970-Edit-1363×2048
15
Adres
Albert Cuypstraat 260,
1073 BR Amsterdam

Ranchi

Ranchi is een Japanse broodjeszaak gerund door Sebastiaan en Christiaan Roosink. Een broodje in Japanse stijl wordt ook wel Sando genoemd. Keuzes zijn bijvoorbeeld een chicken sando (met krokante kip) of de beroemde tamago sando met eiersalade. Daarnaast hebben ze een broodje met tsukune (een soort gehaktbrood) gemaakt van kippengehakt in yakitori-stijl. Lekker met sesam, bosui, gember, knoflook en tare-saus.

Schermafbeelding 2022-06-20 om 19.25.16
16
Adres
Albert Cuypstraat 250 HS,
1073 BP Amsterdam

Osakaball

The Osaka streetfood kraam staat op maandag op de Ten Katemarkt en van dinsdag tot en met zaterdag op de Albert Cuypmarkt. The kraam heel gedurende het jaar heel wat trouwe klanten opgebouwd met hun authentieke Japanse dishes. Van ramen tot, okonomiyaki, noodles en curry. Wandel over de markt met een lege maag en volg de geur van lekker eten.

17
Adres
Govert Flinckstraat 251,
1073 BX Amsterdam

Arles

Numa Muller, de chef uit Arles, creëert elke maand een nieuw 3, 4 en 5 gangen menu. Zijn neo-bistro gerechten zijn eenvoudig doch verrassend door de bijzondere combinaties van de Franse keuken met invloeden van buitenaf. De geheel Franse wijnkaart is een interessante combinatie van traditionele producenten met zowel opkomende vins naturels.
In 2022 is het restaurant voor het vijfde jaar op rij door Michelin bekroond met een Bib-Gourmand.

Schermafbeelding 2022-07-01 om 13.58.34
18
Adres
Van Ostadestraat 354,
1073 TZ Amsterdam

NAZKA

In de Van Ostadestraat vind je het kleurrijke restaurant Nazka. Naast dat het interieur er fantastisch uitziet, is het eten ook spectaculair. De keuken toont zowel Peruaanse klassiekers als innovatieve gerechten, die voortbouwen op het erfgoed van Peru. Nazka heeft een prachtige inrichting, fantastische service, knap eten en de sommelier is een genie, maar het belangrijkst: álles is lekker.

377995667_326166063142346_5384662192818780844_n
19
Adres
Tweede Jan Steenstraat 3,
1073 VK Amsterdam

Restaurant Ja

Het charmante restaurant Ja, bevindt zich in het voormalige pand van Jan de Wit's Le Restaurant aan de hoek van het Sarphatipark.  Chef chef Julius Busscher, voorheen werkzaam bij Jacobsz en Staets, biedt verrassende gerechten. Zijn partner Amy Delorme verzorgt met toewijding de bediening en selectie van wijnen. Bij Ja wordt alles, van het brood tot de limoncello, ambachtelijk bereid. Het restaurant presenteert een vast 4-gangenmenu, dat desgewenst kan worden uitgebreid met oesters en kaas. De intieme ambiance en culinaire creativiteit maken ja tot een unieke culinaire bestemming in Amsterdam.

20
Adres
Eerste Sweelinckstraat 23,
1073 CL Amsterdam

BRIO

Restaurant BRIO, gelegen in de levendige wijk De Pijp in Amsterdam, biedt een eigentijdse interpretatie van de Italiaanse keuken. Het restaurant, opgericht door de eigenaren van Little Collins, combineert klassieke Italiaanse smaken met moderne invloeden. Gasten kunnen genieten van een menu dat draait om verse pasta’s en seizoensgebonden gerechten, geserveerd in een sfeervolle en gastvrije setting.

Schermafbeelding 2022-10-10 om 13.50.49
21
Adres
Eerste Sweelinckstraat 19F,
1073 CL Amsterdam

Little Collins

In 2011 ­openden Stan Kerkhof en zijn ­Australische vrouw Georgina Patterson het brunchcafé Little Collins in De Pijp. Bij Australisch brunchen moet je denken aan gepocheerde eieren en avocado op toast. Bij de brunch mag ook best wat alcohol gedronken worden, daarom staat ook de bloody mary op de kaart.

Interieur
BEDROOM-EDIT-_12_1500
22
Adres
Stadhouderskade 160,
1074 BC Amsterdam

Nicemakers

Interieurontwerpers Joyce en Dax Roll zijn partners in het leven en in design, samen staan zij bekend als ‘Nicemakers’. Persoonlijk, levendig, functioneel, rijk, inspirerend, elegant, gedegen en decoratief; het 'Nice' in 'Nicemakers' is even licht en natuurlijk alsook indrukwekkend en allesomvattend. Het interieur voor de saladebar SLA was het eerste project dat hen op de kaart zette, waarna vele indrukwekkende projecten volgden waaronder een waanzinnig penthouse in Maastricht, waarmee ze een rol kregen in het Netflix-programma 'Amazing Interiors'.

Boodschappen
23
Adres
Albert Cuypstraat 267,
1073 BH Amsterdam

C&C Asianmarkt

Aan het einde/of het begin van de Albert Cuyp ligt de C&C Asian Supermarket. De winkel is een begrip voor eenieder die tijdens het koken opeens bijzondere ingrediënten nodig heeft. Naast verse producten heeft de winkel een gigantisch assortiment met allerlei Aziatische must-haves wanneer het op onmisbare ingrediënten aankomt. Van heerlijke pindasaus voor bij summer-rolls tot ongelofelijke hoeveelheden ingevroren dumplings om in bamboe mandjes zelf op te warmen. De sojasaus vliegt in grote flessen en betaalbare prijzen over de toonbank en ook voor enkele leuke decoraties kan je hier terecht. De pret kan echter niet op, want er is óók nog een klein hoekje in de supermarkt waar er vers eten wordt klaargemaakt. Hier kun je dus na je grote boodschappen genieten van onder andere verse summer-rolls of een banh mi (Vietnamese baguette).

24
Adres
Van Woustraat 103,
1074 AG Amsterdam

Stadsmarkt de Pijp

Bij Stadsmarkt de Pijp worden de producten dagelijks zelf opgehaald. Zo komen direct van de boer, tuinder, slager, visboer en bakker allerlei producten midden in de Pijp terecht. De focus bij Stadsmarkt de Pijp ligt op duurzaamheid en hier wordt een eerlijke prijs voor betaald aan de leveranciers. De werkzame vakmensen staan altijd paraat om iets aan te raden of om iets te laten proeven. Ook staat ambacht centraal; het is een markt waar je fijn kan eten en lekker kan genieten.

downloadgram.org_587808323_17920950975199409_2006557532097734563_n
25
Adres
Eerste Oosterparkstraat 7H,
1091 GT Amsterdam

Dough Studio

Dough Studio is het project van Bas en Idske, die in 2019 begonnen met pizza’s bakken in hun achtertuin in Amsterdam-Oost en daar hun liefde voor goed deeg ontdekten. Na het openen van twee Pizza Projects in Oud-West en Zuid ontstond de behoefte aan een plek om hun vak verder te verdiepen. In Dough Studio draait alles om fermentatie en tijd, met deeg dat de ruimte krijgt om zich volledig te ontwikkelen. Ze breiden hun ambacht hier uit voorbij pizza, met schiacciata-sandwiches, seizoensgebonden baksels en koffie van een lokale brander.

360° mid-century penthouse

360° mid-century penthouse

‘Le Plantage.’ Een historisch pand uit 1824, ooit gebouwd en ingericht als chocolade- en suikerwerkfabriek, nu vier moderne appartementen op een van de mooiste locaties van de Plantage buurt.

‘Le Plantage.’ Een historisch pand uit 1824, ooit gebouwd en ingericht als chocolade- en suikerwerkfabriek, nu vier moderne appartementen op een van de mooiste locaties van de Plantage buurt.

Brutalisme in Amsterdam: Beton, Form Follows Function en Een Nieuw Perspectief

Brutalisme in Amsterdam: Beton, Form Follows Function en Een Nieuw Perspectief

Onlangs bekeken
Bekijk het overzicht

Deze site maakt gebruik van cookies.

Voor welke cookies geef je akkoord?