Groot en ruim opgezette halfvrijstaande villa met oprijlaan en losstaande gemetselde garage. Er is een prachtig terras met golvende mozaïektegels dat de overgang vormt van wonen naar natuur. Van het huis naar de diepe zonnige achtertuin met veel privacy op het zuiden. In deze tuin staat een fraaie monumentale boom, een ceder, die in zomer koelte en beschutting geeft en tegelijk het licht mooi filtert. Veel warme herinneringen aan het huis zijn aan deze boom verbonden. 

Design visie 
De Stadionweg maakt deel uit van het beroemde Plan Zuid van Berlage, waaraan diverse architecten van naam en faam bijdroegen. Nummer 27 is ontworpen door S. Vieyra. De woning stamt uit een bouwperiode waarin een nieuwe typologie van gezinshuizen ontstond, meer functioneel en met minder versieringen. De wijze van bouwen kenmerkt zich door soliditeit en duurzame detailleringen en materialen. Dit betekent dat het hier gaat om een herenhuis dat in de basis kwalitatief goed gebouwd is.

Van binnen en van buiten heeft het pand nog diverse stijlkenmerken uit de jaren dertig. Zoals de gemetselde plantenbakken en het terras met de originele mozaïektegeltjes en de fijne indeling, hoge plafonds en goede toegang tot de tuin. Ook twee-onder-eenkapwoningen zoals deze werden in deze periode veel gebouwd, een type dat tegenwoordig vrij schaars is. Alle ingrediënten zijn aanwezig om dit huis met zijn goede opzet te moderniseren en te verduurzamen en zo om te toveren tot de ideale familiewoning.

Rondleiding 
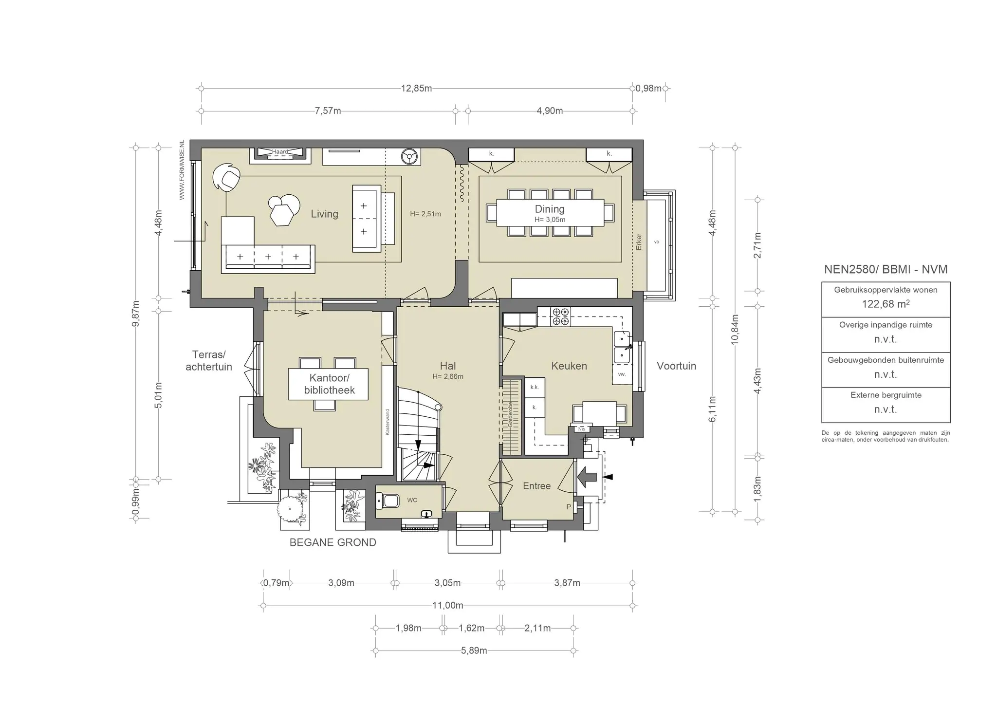
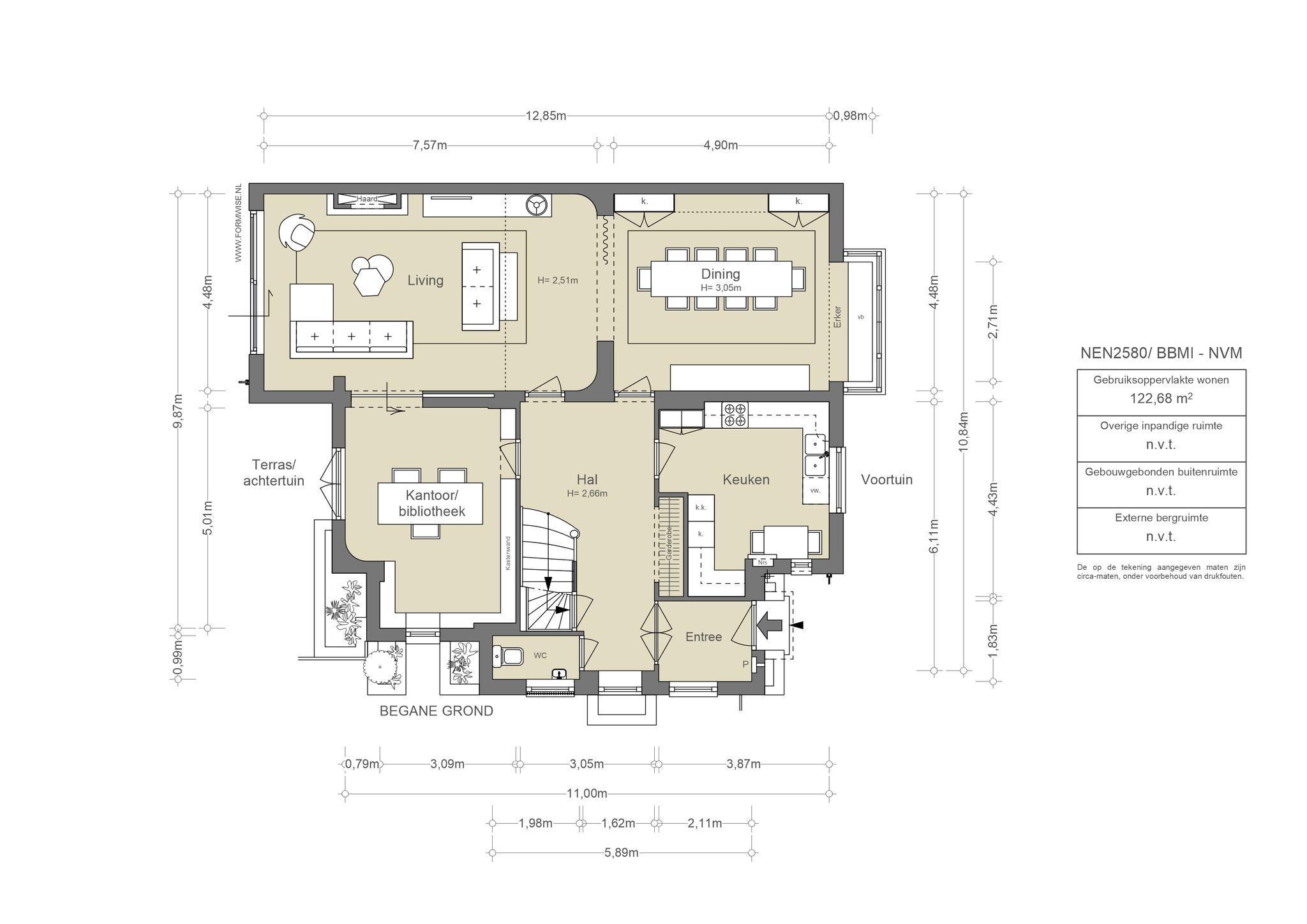
De begane grond 

Via het tuinpad is de statige entree te bereiken. De ruime hal heeft een garderobe en gastentoilet. Aan de voorzijde is de eetkeuken in een U-opstelling. Hier geeft een groot venster uitzicht op de voortuin. De vroegere herenkamer ligt aan de achterzijde en heeft openslaande deuren naar het prachtige, zonnige terras. 
En er is een doorgang gemaakt naar de voormalige kamer en suite. De grote schuifpui aan de achterzijde trekt het terras en de tuin als het ware bij de woonkamer. Doordat de schuifpui op het zuiden ligt en de verdiepingshoogte meer dan 300 meter is, valt er veel licht binnen. Aan de voorzijde geeft een ruime erker extra cachet aan de ruimte. 

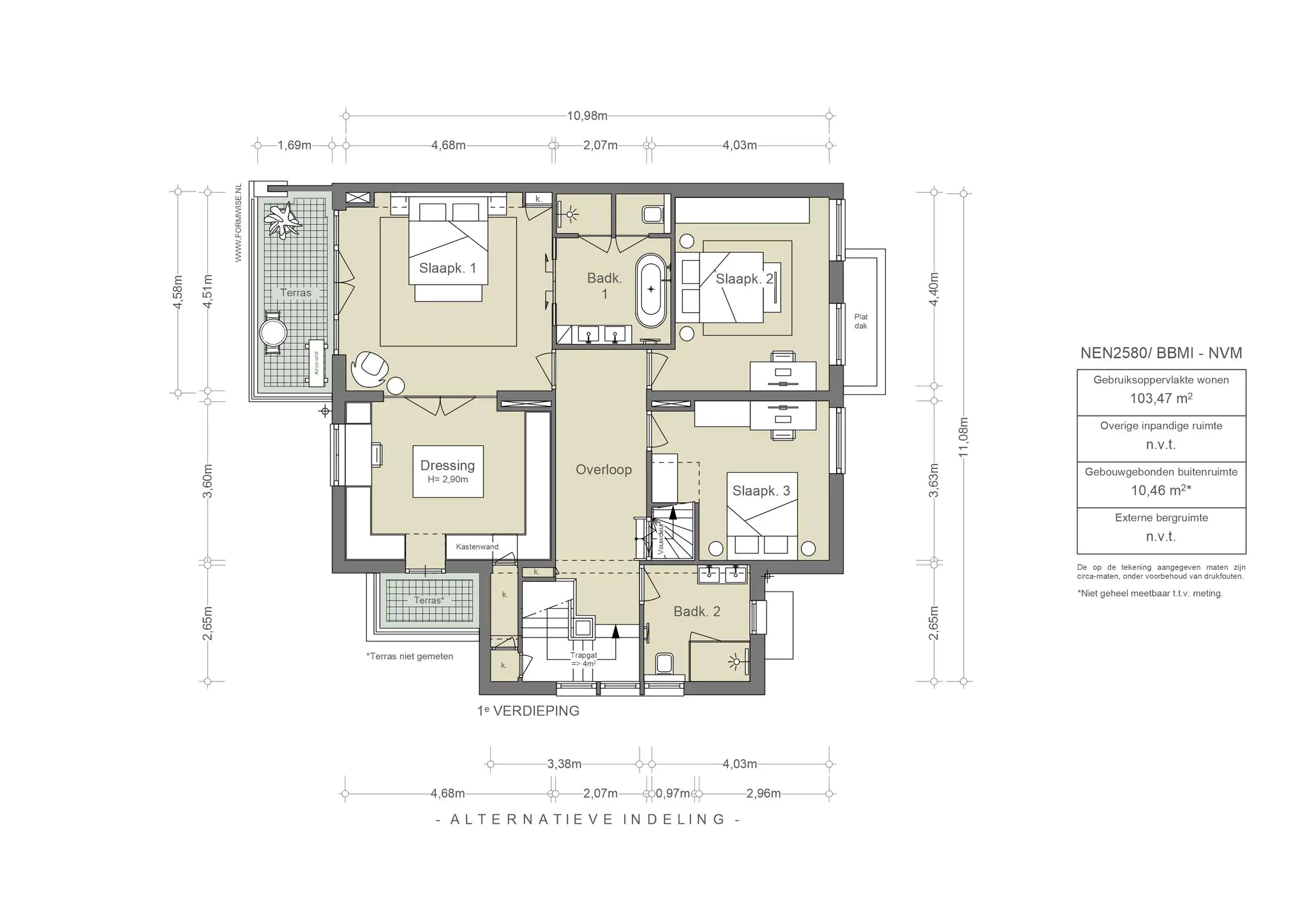
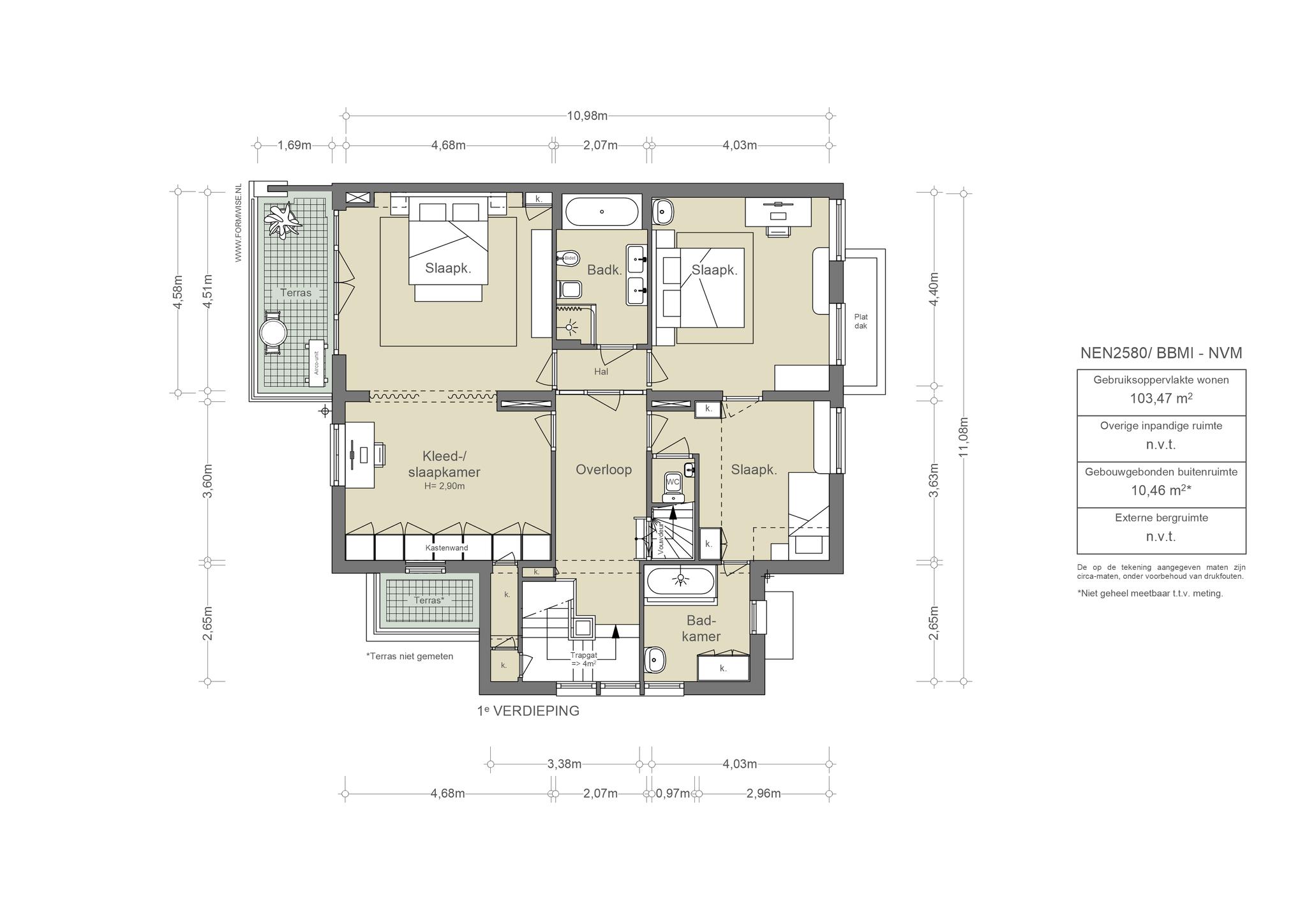
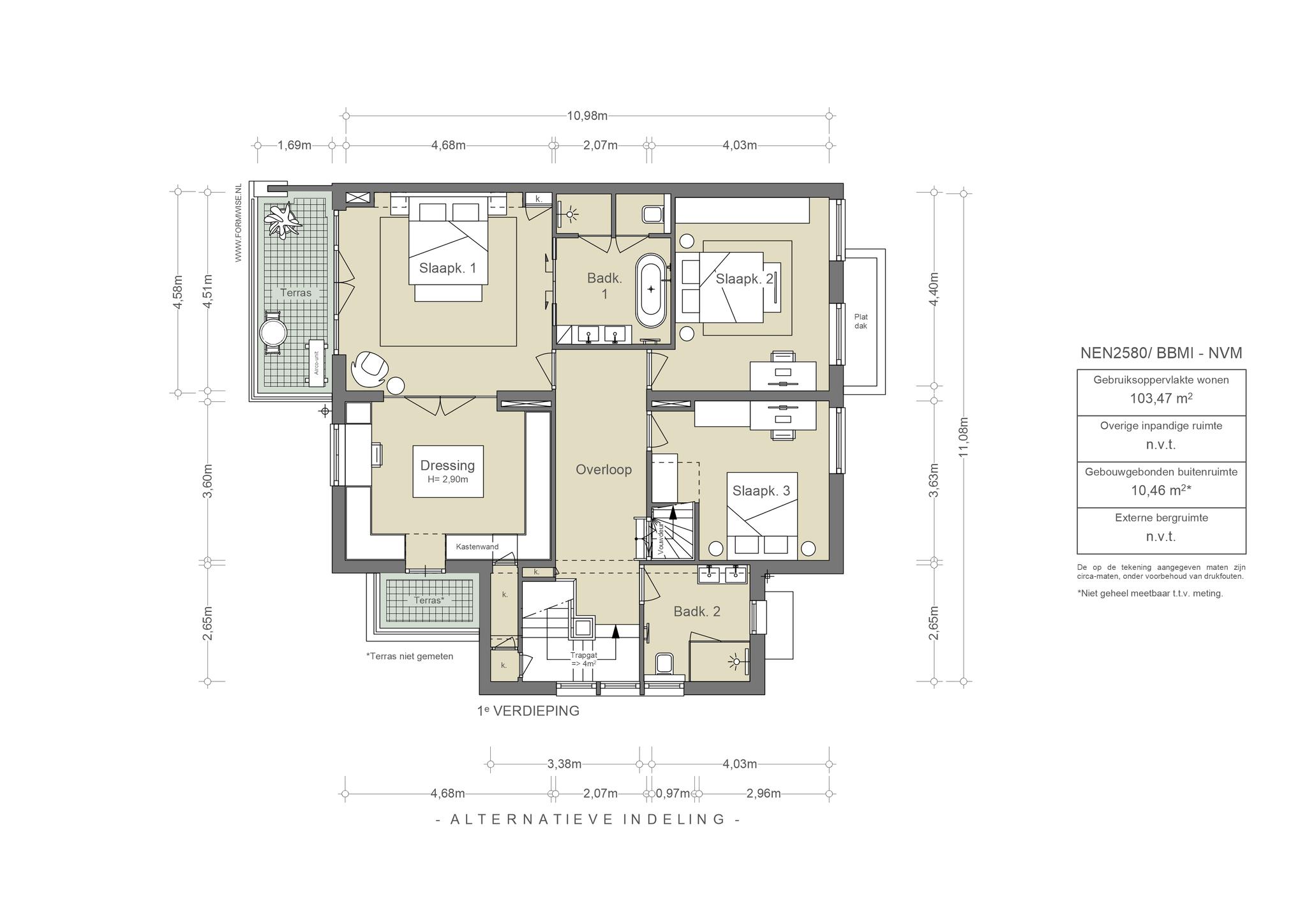
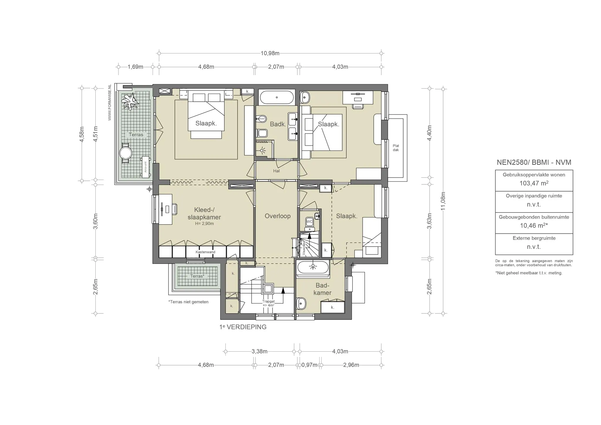
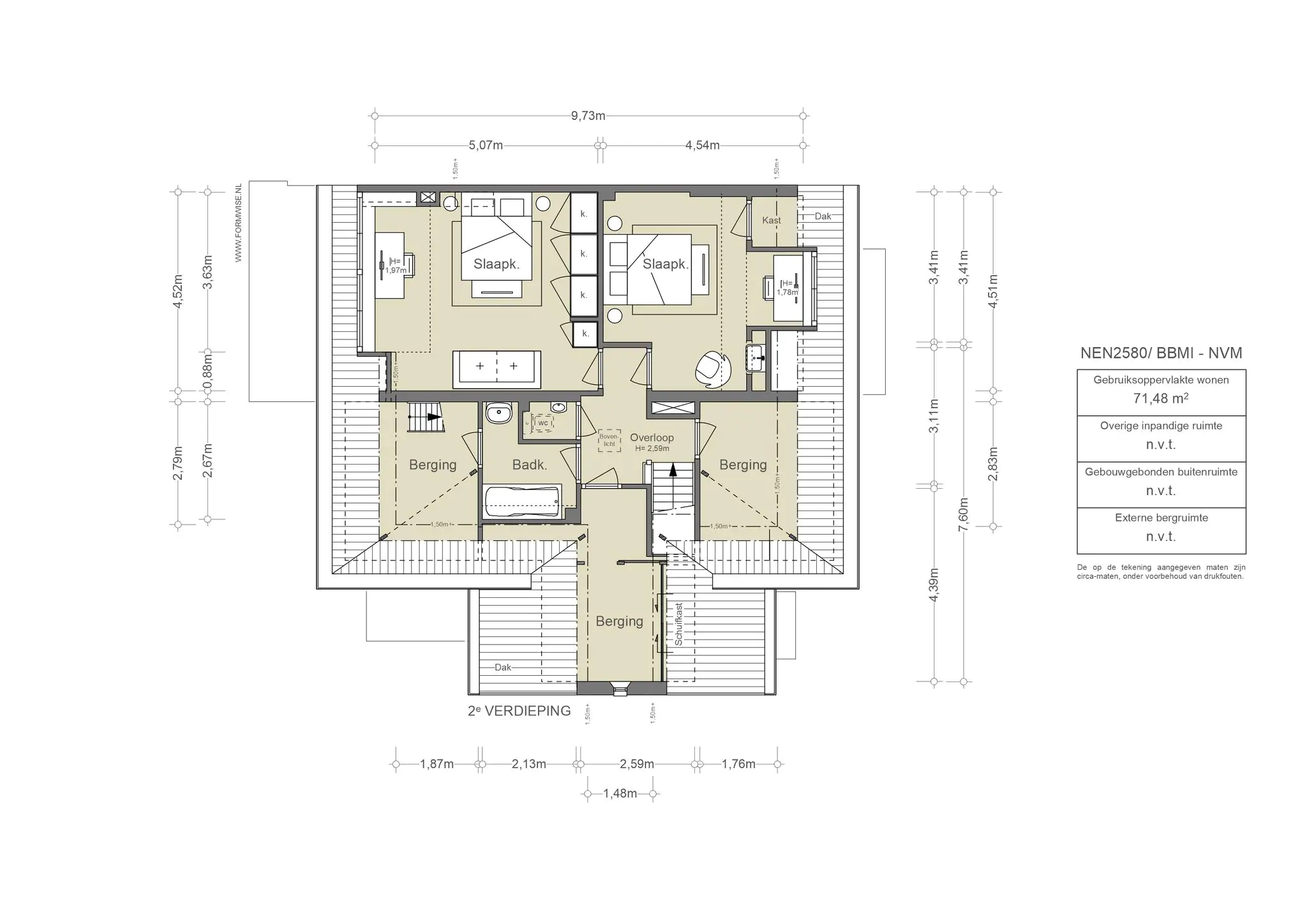
De eerste verdieping 
Aan de rustige achterkant de hoofdslaapkamer is een slaapkamer toegevoegd als kleedkamer. Fijn aan deze kamer is dat er een terras is met openslaande deuren en nog een terras aan de kleedkamer. Centraal gelegen is de badkamer met ligbad, inloopdouche en toilet en wc. Voor zijn twee kamers die ooit met elkaar in verbinding stonden en een kleine badkamer met ook hier een ligbad en jaren zestig-kleurstelling.

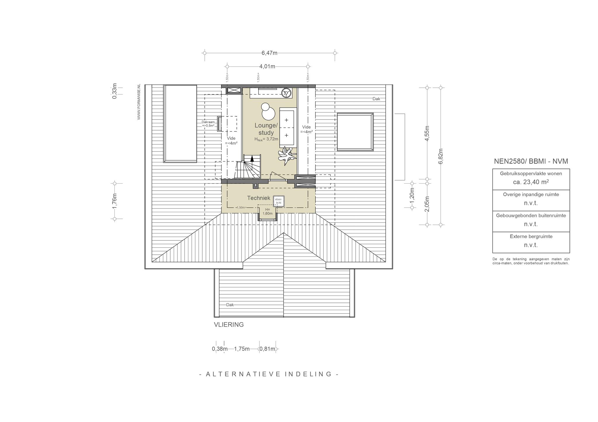
De tweede verdieping 
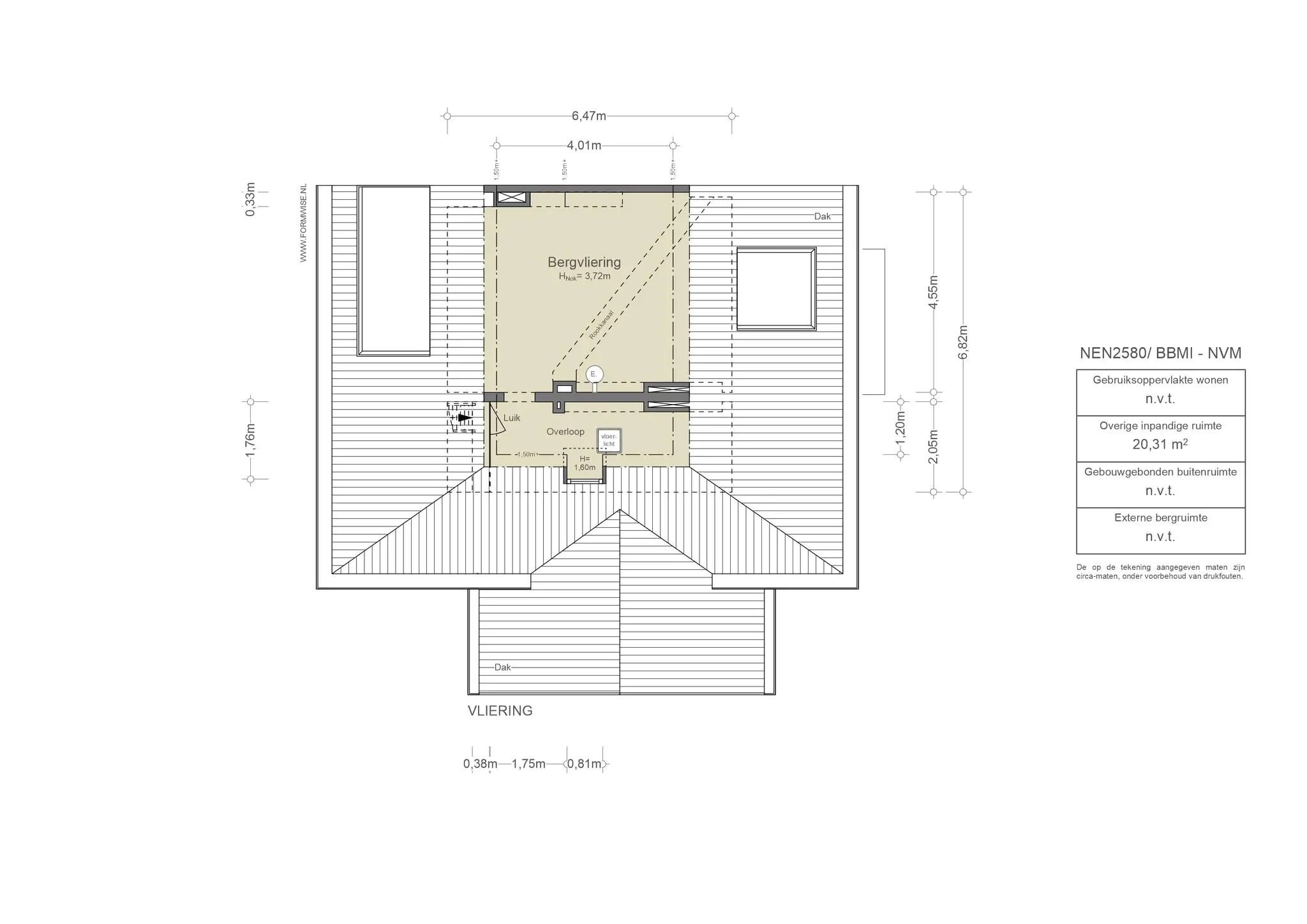
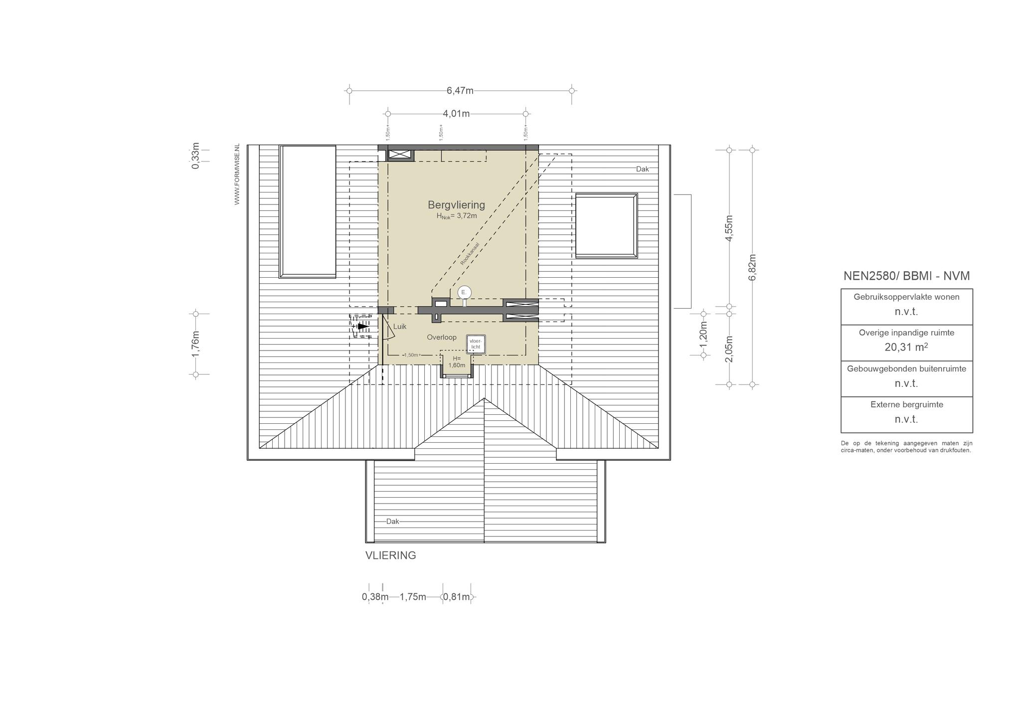
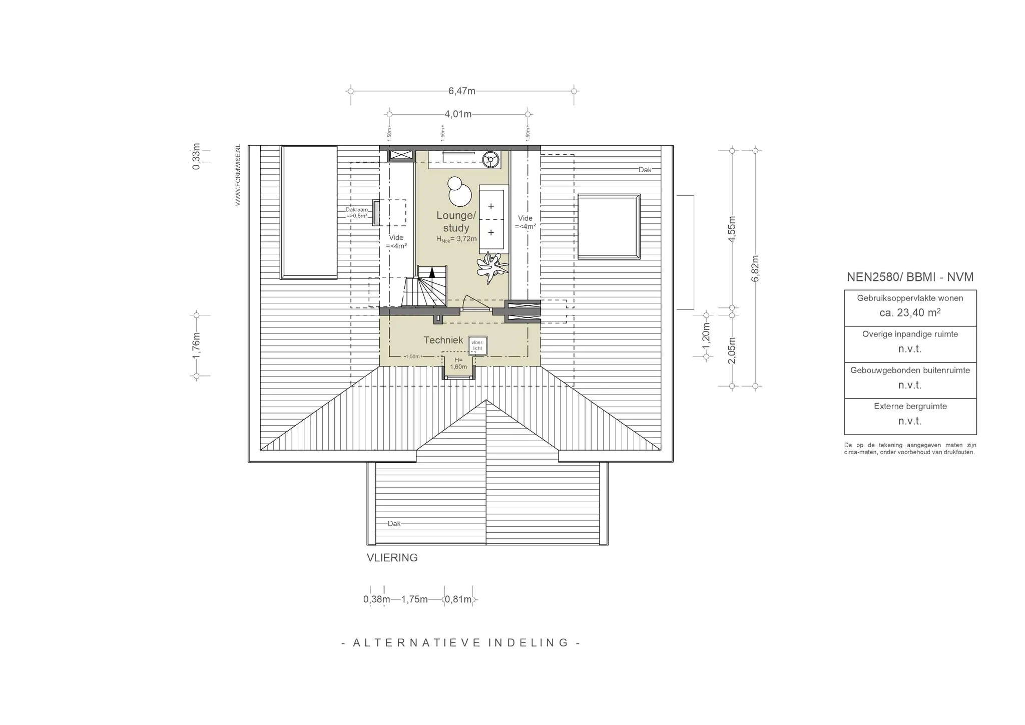
Op deze verdieping bevinden zich twee slaapkamers, beide met dakkappellen, een ruime overloop en een badkamer. Daarnaast is er veel bergruimte onder de schuine kap. Rest nog een bergvliering die bereikbaar is via een steile trap en een luik. 

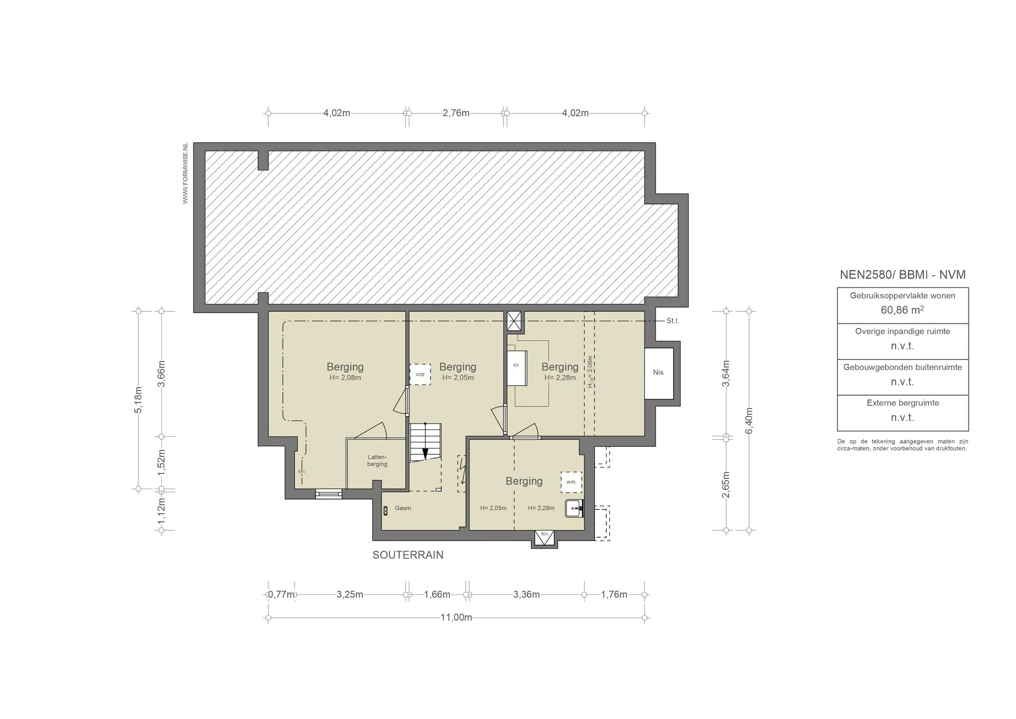
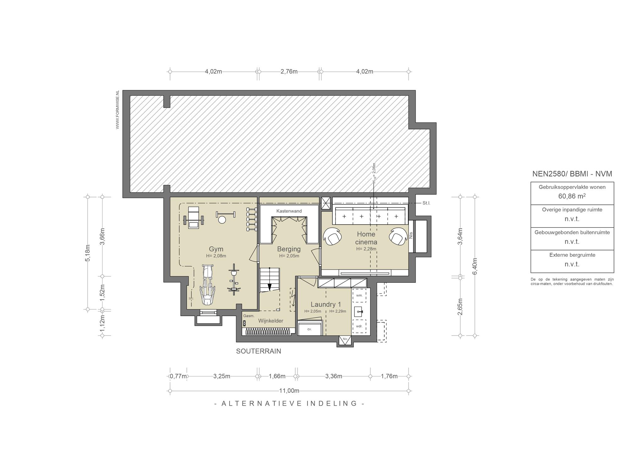
De kelder
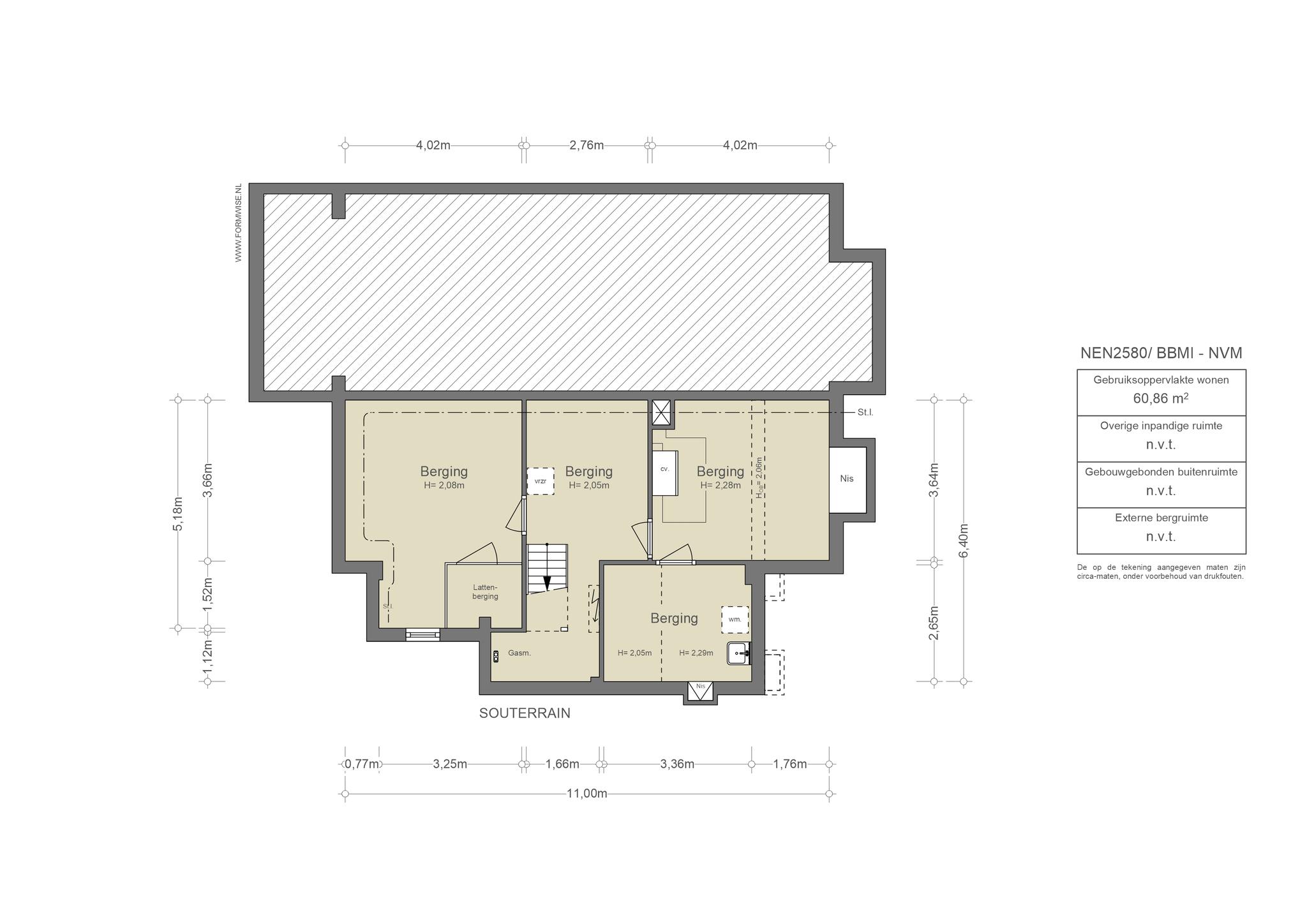
De kelder is riant (meer dan 60 m²) en verdeeld in verschillende compartimenten. De vrije hoogte is meer dan twee meter en de ruimte is verwarmd. 

Tuin 
De tuin is onderverdeeld in drie delen: de oprit naar de garage, de voortuin en de achtertuin. 

Bereikbaarheid 
De woning ligt in een rustig en groen gedeelte van Zuid, nabij de Beethovenstraat. Een omgeving met uitgebreide voorzieningen en centraal gelegen ten opzichte van Oud-Zuid, het Centrum en de Zuidas. Op loopafstand van de groenstrook aan de Bernard Zweerskade en het fraaie Beatrixpark.

De Stadionweg is bijzonder goed bereikbaar met het openbaar vervoer via de tramlijnen 5 en 24 (Beethovenstraat) en buslijnen 65 en 246 naar Schiphol. Ook is de stadsvilla gunstig gelegen ten opzichte van de uitvalswegen A1, A2, A4 en A9 middels de Ring A10 via de afritten S108 en S109. 
 

Stadionweg 27-86

Design visie
In het begin van de 20e eeuw wordt er teruggegrepen op het eenvoudige, ambachtelijke bouwen. Oftewel: op de traditie. Deze manier van bouwen wordt dan ook wel het traditionalisme genoemd. Eenvoud van vorm stond centraal, uitbundige decoratie was taboe. Traditionele bouwmaterialen, zoals baksteen, waren weer populair.

De degelijke bouw van het pand is een uitvloeisel van deze traditionele bouwstijl. Zo is de kapconstructie indrukwekkend te noemen en is de originele indeling nog grotendeels intact. Bij de verbouwing in de zestiger jaren is de linker zijgevel op enkele punten gewijzigd. Zo is de zijdeur verwijderd. Verder zijn er niet veel wijzigingen te ontdekken aan de buitenkant.

De laatste verbouwing dateert uit 1962. Om een goede inschatting te maken van wat de nieuwe eigenaar te doen staat om het pand te renoveren en klaar te maken voor de toekomst, is er flink opgeruimd. Ook is er een asbestinventarisatie en een asbestverwijdering uitgevoerd. Voor nieuwe installaties is er plaats op de ruime bergzolder en in de grote kelder.

Interessante bijzonderheden zijn de gemetselde plantenbakken en de oorspronkelijke tegels op het terras en op de twee balkons.

Stadionweg 27-81
DSC06237 aan
AM104102-1755022-Stadionweg-27,-Amsterdam-140095323
AM104102-1755022-Stadionweg-27,-Amsterdam-140095254

De begane grond
Via het tuinpad is de statige entree te bereiken. Deze entree heeft nog de originele marmeren platen die intact zijn. De ruime hal met een garderobe en gastentoilet heeft ouderwets royale afmetingen. Je komt echt ergens binnen. Aan de voorzijde is de eetkeuken gesitueerd in een U-opstelling. Hier geeft een groot venster uitzicht op de voortuin. De vroegere herenkamer ligt aan de achterzijde van de woning en heeft openslaande deuren naar het prachtige, zonnige terras. Er is een doorgang gemaakt naar de voormalige kamer en suite. Deze heeft een open haard met Franse Lodewijk XV-schouw die in 1962 is geplaatst door de firma Jos Harm, thans nog steeds gevestigd in Amsterdam-Noord. De grote schuifpui aan de achterzijde van de woning trekt het terras en de tuin als het ware bij de woonkamer. Doordat de schuifpui op het zuiden is gelegen en de verdiepingshoogte meer dan drie meter bedraagt, valt er veel licht binnen. Aan de voorzijde geeft een ruime erker extra cachet aan de ruimte. De visgraatvloer is origineel en mogelijk te restaureren.

De kelder
De kelder is riant te noemen (meer dan zestig m²) en verdeeld in verschillende compartimenten. De vrije hoogte is meer dan twee meter en de ruimte is verwarmd. De centrale verwarmingsketel bevindt zich in deze ruimte en er zijn nog relikwieën uit de tijd dat er op olie gestookt werd, zoals een drukmeter. Verder is er een KIWA-gesaneerde HBO-tank in de tuin gelegen.

Stadionweg_27-24_shop
AM104102-1755022-Stadionweg-27,-Amsterdam-140095245
AM104102-1755022-Stadionweg-27,-Amsterdam-140095269
AM104102-1755022-Stadionweg-27,-Amsterdam-140095327
AM104102-1755022-Stadionweg-27,-Amsterdam-140095333
AM104102-1755022-Stadionweg-27,-Amsterdam-140095337

De eerste verdieping
Via een goed beloopbare trap is de eerste verdieping te bereiken. Aan de rustige achterzijde van de woning is de hoofdslaapkamer gelegen waaraan een slaapkamer is toegevoegd die werd gebruikt als kleedkamer. Pluspunt van deze kamer is dat deze beschikt over twee terrassen met openslaande deuren, waar je al vroeg in het voorjaar heerlijk beschut in de zon kunt zitten. Centraal gelegen is de badkamer met ligbad, inloopdouche en toilet in prachtige jaren zestig-kleurstelling en dito stijl. Aan de voorzijde van de woning zijn twee kamers gelegen die ooit met elkaar in verbinding stonden en bevindt zich er eveneens een kleine badkamer met – ook hier – een ligbad in jaren zestig-kleurstelling.

De tweede verdieping
Op deze verdieping bevinden zich twee slaapkamers, beide met dakkapellen, een ruime overloop en een badkamer. Daarnaast is er veel bergruimte onder de schuine kap. Rest nog een bergvliering die bereikbaar is via een steile trap en een luik. Deze ruimte is ideaal voor installaties voor koeling, verwarming en ventilatie.

 

DSC06356-min
AM104102-1755022-Stadionweg-27,-Amsterdam-140095367
AM104102-1755022-Stadionweg-27,-Amsterdam-140095348
DSC06277-min
AM104102-1755022-Stadionweg-27,-Amsterdam-141060517
AM104102-1755022-Stadionweg-27,-Amsterdam-141060526

De tuin
De tuin is onderverdeeld in drie delen: de oprit naar de garage, de voor- en de achtertuin. De oprit heeft een lengte van 24 meter tot aan de garage en biedt plaats aan meerdere voertuigen. Aan de linker zijkant staat een hoge heg op de kadastergrens. In de voortuin staan enkele bomen en struiken die de privacy in de woonkamer en keuken verhogen. Zo staan er enkele mispels, een Japanse skimmia, een Californische cypres en prachtige rozen langs het hek. De grote eyecatchers in de achtertuin zijn de imposante ceder en de magnolia in het voorjaar. De majestueuze boom wordt als monument goed onderhouden. De zichtlijnen naar zuid en west zijn vrij; dit geeft de ervaring van weidsheid doordat er geen bebouwing in de directe nabijheid aanwezig is. De borders staan vol met rozen, rhododendrons en hortensia’s en er is een fijn terras over de gehele breedte van de woning. Het gazon is groot genoeg om de tuin ruimte te geven en de borders tot hun recht te laten komen. De ligging is op het zuiden. Dat betekent: volop zon in de tuin.

AM104102-1755022-Stadionweg-27,-Amsterdam-141060520
1077 DS Gerrit van der Veenstraat 73 A1-39
1077 DL Händelstraat 6-34
1078 NH Rooseveltlaan 18 Amsterdam 054

De bereikbaarheid
De woning ligt in een rustig en groen gedeelte van Amsterdam-Zuid, nabij de Beethovenstraat. Een omgeving met uitgebreide voorzieningen en centraal gelegen ten opzichte van Oud-Zuid, het Centrum en de Zuidas. Op loopafstand van de groenstrook aan de Bernard Zweerskade en het fraaie Beatrixpark.

De Stadionweg is bijzonder goed bereikbaar met het openbaar vervoer via de tramlijnen 5 en 24 (Beethovenstraat) en buslijnen 65 en 246 naar Schiphol. Ook is de stadsvilla gunstig gelegen ten opzichte van de uitvalswegen A1, A2, A4 en A9 middels de Ring A10 via de afritten S108 en S109.

De parkeergelegenheid
Een groot gemak is de garage achter op het perceel. In de praktijk komt het vaak voor dat de auto’s voor de garage worden gezet; daar is ruimte voor zeker drie auto’s.

1077 BC Apollolaan 58-2

Wat de eigenaren gaan missen 

“In dit zonnige, vrolijke en ruime huis heeft ons gezin vele gelukkige jaren gekend. We genoten van de ruime opzet van het huis met een tuin aan drie kanten. Het grote terras met de mozaïektegels in de op het zuiden geleden achtertuin gaf ons een gevoel van openheid, licht en ruimte, wat in de stad zeker geen vanzelfsprekendheid is. Met een kerk (zonder kerkklokken!) grenzend aan de achtertuin genoten we van optimale privacy, terwijl de afwezigheid van hoge bebouwing om het huis heen voor veel lichtinval zorgde.

Iedere kamer had voor ons wel zijn eigen charme. In de rustige bibliotheekkamer met openslaande deuren naar het terras en naar de landelijk aandoende tuin met de mooie ceder brachten we veel gezellige momenten samen door. De zitkamer bood een sfeer van licht en geborgenheid met de open haard en de schuifdeur naar de tuin. In de eetkamer hebben we veel grote en kleine, gezellige maar ook formele diners gehouden. Ook boven genoten we van dit huis door de ruime opzet van de kamers rondom de hal en de twee balkons met het karakteristieke tegelpatroon, beide uitkijkend over de tuin. Op het grootste balkon was het al vroeg in het jaar heerlijk vertoeven en genoten we van de zon en het lezen van een boek.

De nabijheid van de Beethovenstraat met gelegenheden voor lunch, diner of een kop koffie en diverse winkels is voor ons altijd een groot gemak geweest. Ook het Concertgebouw, het Rijksmuseum en zelfs het nabije stuk van het centrum waren voor ons op loopafstand, terwijl we in een paar minuten met de fiets of de tram Station Zuid konden bereiken of met de auto de A10 op konden rijden. De rustige boomrijke straten in de omgeving en het Beatrixpark om de hoek maakten het voor ons een heel prettige, groene omgeving. Met daarbij de grote garage en de mogelijkheid om meerdere auto’s op het eigen terrein te parkeren voelden we ons bevoorrecht.

Wat we het meest missen is wel de gezelligheid van de lichte kamers aan de tuinzijde, of het nu middenin de zomer was met de deuren open, of met minder mooi weer met de haard aan. We moeten nu afscheid nemen van dit heerlijke huis, maar de mooie herinneringen blijven. Het is tijd voor een nieuw gezin om er met net zo veel plezier te gaan wonen.”

 

AM104102-1755022-Stadionweg-27,-Amsterdam-141060532
Stadionweg 27-79
Kenmerken
Stadionweg 27, Amsterdam
Vraagprijs
  • € 3.475.000 k.k.
Beschikbaarheid
  • In overleg
Vertrekken
  • 9 kamers
  • 6 slaapkamers
  • 3 badkamers
Onderhoud
  • Intern: Matig tot redelijk
  • Extern: Redelijk
Oppervlakten & Inhoud
  • Woonoppervlakte: 358 m²
  • Overige inpandige ruimte: 20 m²
  • Gebouwgebonden buitenruimte: 47 m²
  • Externe bergruimte: 18 m²
  • Tuinoppervlakte: 152 m²
  • Perceeloppervlakte: 495 m²
Bouwjaar
  • 1929
Installaties
  • Dakraam
  • Natuurlijke ventilatie
  • Schuifpui
Ligging
  • Aan drukke weg
  • In woonwijk
Parkeren
  • Op eigen terrein
  • Parkeergarage
  • Vrijstaand steen
Type verwarming
  • CV Ketel
Type warmwater
  • CV Ketel
Bestemming
  • Woonruimte
Eigendomssoort
  • Erfpacht
Buitenruimte
  • Achtertuin
  • Voortuin
  • Balkon
Kadastraal
  • Gemeente: Amsterdam
  • Sectie: Ab
  • Nummer: 217
Duurzaamheid
  • Energielabel F
Soort
  • Twee-onder-een-kapwoning
  • Villa
  • Woonhuis
Bijzonderheden
  • Beschermd stads of dorpsgezicht
Plattegrond
Stadionweg 27, Amsterdam
AM104102-1755022-Stadionweg-27,-Amsterdam-140095642
AM104102-1755022-Stadionweg-27,-Amsterdam-161528373
AM104102-1755022-Stadionweg-27,-Amsterdam-141409788
AM104102-1755022-Stadionweg-27,-Amsterdam-161528377
AM104102-1755022-Stadionweg-27,-Amsterdam-141614626
AM104102-1755022-Stadionweg-27,-Amsterdam-161528381
AM104102-1755022-Stadionweg-27,-Amsterdam-140095645
AM104102-1755022-Stadionweg-27,-Amsterdam-161528385
AM104102-1755022-Stadionweg-27,-Amsterdam-140095646
AM104102-1755022-Stadionweg-27,-Amsterdam-161528389
AM104102-1755022-Stadionweg-27,-Amsterdam-140095647
AM104102-1755022-Stadionweg-27,-Amsterdam-161528393
Documenten
Stadionweg 27, Amsterdam
Locatie
Stadionweg 27, Amsterdam
Boodschappen
hergo
01
Adres
Beethovenstraat 49,
1077 HN Amsterdam

Slagerij Hergo

Slagerij Hergo is de vleesspecialist in Amsterdam. Al in 1930 begon de heer Cantor, een Duitse worstmaker, samen met zijn vrouw die uit een Amsterdamse slagersfamilie kwam, zijn slagerij met typische Duitse worstspecialiteiten. Met het motto ‘De slager met ’n koksmuts’ is Hergo uitgegroeid naar vier verschillende locaties en is zo tegenwoordig niet meer weg te denken uit het straatbeeld van Amsterdam. Met jachtworst, hausmacher, ossenworst, pekelvlees maar ook met een broodje filet americain onderscheidt Hergo zich als slagerij in het topsegment.

Schermafbeelding 2022-05-12 om 19.08.47
02
Adres
Olympiaplein 111,
1077 CV Amsterdam

L'Amuse

Volgens sommigen is dit de beste kaaswinkel van Nederland. Ze hebben een indrukwekkend breed assortiment van de lekkerste kazen. Ook heerlijke wijn, salami, ham en olijfolie is hier te koop. Je wordt uitstekend geholpen en de kaas is echt van een ander niveau. Aanrader!

03
Adres
Olympiaplein 119,
1077 CW Amsterdam

Le Fournil de Sébastien

Le Fournil is het initiatief van Susan en Sébastien, die na jaren bakkerservaring in Frankrijk in 2007 naar Nederland kwamen om een authentieke Franse boulangerie te openen. De kracht ligt in het ambachtelijke handwerk, zuurdesem en de bewuste keuze voor kleinschaligheid en pure, traditionele broodbereiding.

180912402_1910769552415460_9061827722288066926_n
04
Adres
Scheldeplein 20,
1078 GR Amsterdam

Sab’s Deli

Bij Sab’s Deli ligt de focus op echt lekker, maar net wat specialer dan normaal, en uiteraard waar mogelijk duurzame en lokale producten. Al deze dingen samen vormen het merk ‘Sab’s. Ze verzorgen ook complete caterings van thuisdiners tot heerlijke borrelhapjes. Gelegen vlak naast de drukke RAI in Amsterdam Zuid, kan je ook altijd als je net de trein uitstapt even binnenlopen en kijken wat de pot schaft. Het zal niet tegenvallen!

Schermafbeelding 2022-07-01 om 14.11.20
05
Adres
Scheldestraat 63,
1078 GH Amsterdam

Feduzzi

Feduzzi is opgezet in 1981 door de Italiaanse familie Feduzzi en was daarmee de allereerste Italiaanse delicatessenwinkel in Nederland. In 2001 werd het bedrijf overgenomen door Pjotr Meuwissen, die het liet uitgroeien tot een van de beste Italiaanse traitteurs in de stad. Je kunt bij Feduzzi terecht voor traditionele Italiaanse producten, zoals pasta's en wijnen en olijfolies, maar je kunt hier ook allerlei lekkere panini's halen; belegd met mozzarella, tonijnsalade of een van de andere heerlijke affetati, zoals beenham of coppa di parma.

Eten & drinken
89760007_208364853843740_4913033452334350336_n
06
Adres
Beethovenstraat 58,
1077 JK Amsterdam

Winebar QV

Bij Winebar QV kan je in principe de hele dag doorbrengen alsof je in Italië bent. Je begint met een Italiaanse espresso, luncht met een warme maaltijd en sluit af met een goed glas wijn met bijbehorend een Italiaanse aperitivo. Het is er gezellig en stijlvol ingericht en je kan aan de hoge krukken aan de bar zitten, aan de lagere tafeltjes of op het kleine terras.

264088316_309512271179442_4492361891256328028_n
242514067_218469310302263_8949483099160412699_n
07
Adres
Beethovenstraat 19,
1077 HM Amsterdam

Cafecito

Cafecito, een minimalistische koffiezaak, biedt hoogwaardige koffie uit stralend witte machines. Het is een onderdeel van de Cafecito-franchise, een Amsterdamse koffiebranderij die besloot koffiezaken te openen om hun eigen afzet te stimuleren toen de verkoop aan horecagelegenheden tijdens de pandemie stagneerde. Cafecito heeft al drie vestigingen in Amsterdam en één in Rotterdam. Cafecito is een tot de essentie teruggebrachte zaak. Je drinkt er topkoffie uit witte machines.

315761837_664619815074448_8137880443810625460_n
321084772_1555342291555230_7489434614896126447_n
08
Adres
Beethovenstraat 38,
1077 JJ Amsterdam

Et Claire

Op de Beethoven straat bevindt zich Et Claire. Et Claire is ontstaan uit een voorliefde voor de beste viennoiserie, koffie, (ijs)thee in combinatie met eindeloze zoete en hartige mogelijkheden.  Het motto bij et Claire is ''ne vous contentez pas de moins'', wat betekent dat je niet genoegen moet nemen met minder.

333838177_1395182361027309_276174909384860799_n
09
Adres
Ruysdaelkade 251,
1072 AX Amsterdam

KID

Levy Byron, Joshua Styns en Steven Mamahit begonnen tijdens de pandemie. Het concept begon als pop-up en heeft nu een vaste locatie op de Ruysdaelkade.  Het menu is inmiddels fors uitgebreid. Yakitori van kip met kaffir lime en chillies. Chickenwings gevuld met een tartaar van garnaal en een saus van shi-take. Geroosterde kool met gefrituurde ui en een hollandaise saus. En natuurlijk de inmiddels beroemde kip-sandwiches in allerlei varianten zoals bijvoorbeeld de Sichuan spiced firied chicken met pickles en knoflookmayonaise geserveerd op een sake kasu bricohe broodje. KID schenkt er cocktails, bier en een kleine selectie wijn bij.

84942268_1529941500492597_3844385910518972416_n
10
Adres
Apollolaan 138,
1077 BG Amsterdam

Roberto's Restaurant Amsterdam

In de top tien Italiaanse restaurants van Amsterdam mag Roberto’s niet ontbreken. Het restaurant is gelegen in het Hilton hotel, waar de iconische Italiaanse keuken sinds 25 jaar de borden vult. Het restaurant draait om pure en simpele smaken met gerechten als dungesneden aubergine, groene farfalle pasta met kreeftensaus en Lava cake.

11
Adres
Olympiaplein 111,
1077 CV Amsterdam

The Coffee District

Eigenaren Adil Loukane en Rosa Loukane begonnen met een hole-in-the-wall coffeeshop in een modewinkel in Zuid. Toen de winkel de deuren sloot, grepen Adil en Rosa hun kans en besloten om hun eigen koffiebar te openen. Inmiddels hebben ze meerdere locaties. De koffie wordt gemaakt met een eigen melange gebrand door Lot Sixty One. Daarnaast worden er zoetigheden aangeboden zoals de inmiddelsal bekende kaneelbroodjes en bananenbrood.

Hakata-Senpachi-dsc_0680-4000PX-1024×683
12
Adres
Wielingenstraat 16,
1078 KK Amsterdam

Hakata Senpachi

Prachtig Japans eten en de lekkerste saké's; dat is Hakata Senpachi. Dit restaurant aan de Wielingenstraat bestaat al langer dan 20 jaar en heeft in al die jaren altijd haar autentieke japanse sfeer behouden. De manier waarop restaurant is ontworpen doet het lijken op een echt Japans restaurant in de steegjes van Tokyo. Hakanta Senpachi is als Yakitori-ya - gespecialiseerd in het maken van gegrilde kipspiesjes, die in Japans Yakitori worden genoemd. De spiesen worden gegrild via traditionele kookwijzen op de houtskool grill. Deze grill staat overigens in het midden van het restaurant waardoor de ruimte altijd volhangt met de lekkerste aroma's.

Cafe-Wildschut-Amsterdam-Zuid-terras-1-uai-1250×1000
Cafe-Wildschut-Amsterdam-ontbijt-lunch-brunch-diner-borrel-2-uai-1250×1000
13
Adres
Roelof Hartplein 1,
1071 TR Amsterdam

Café wildschut

Café wildschut zit aan het Roelof Hartplein en is een ideale uitvalbasis om een drankje te doen. Vooral 's zomers ben je hier aan het goede adres, het terras heeft namelijk van 's ochtends vroeg tot 's avonds zon. Omdat het café aan een plein zit is er altijd reuring. Het café is gevestigd in een monumentaal pand van de Amsterdamse school en heeft kosmopolitisch interieur met jaren '20 elementen. Er komt een gemêleerd publiek en is inmiddels al decennia een begrip onder Amsterdammers. Je kan hier ook terecht voor ontbijt, lunch en diner.

Sjefietshe-Amsterdam-Restaurant-01
Sjefietshe-Amsterdam-Restaurant-06-750×1000
14
Adres
Van Ostadestraat 1,
1072 SL Amsterdam

Sjefietshé

Sjefietshe is een cevicheria in het midden van de Pijp, met een mooi terras met genoeg plek. Voor eenieder die niet bekend is met het heerlijke Zuid-Amerikaanse gerecht: het klassieke Peruviaanse voorgerecht bestaat uit rauwe (wit) vis die ‘gegaard’ is in limoensap. Het gerecht wordt geserveerd met chili, koriander, rode ui en een oceaan aan limoen. Een overdonderende smaaksensatie en daarom ook moeilijk om goed te evenaren. Sjefietshe doet een goede poging en maakt met een Amsterdamse flair een goede eigen variant. Naast de ceviches met verschillende soorten vis is er ook de optie om van lekkere bites te genieten, waaronder de Sjefietshe special: de door hun uitgevonden ‘hotdoctopus’. Genoeg redenen om hier dus langs te gaan en voor jezelf te besluiten of de zaak erin slaagt je mee te nemen naar hogere Zuid-Amerikaanse sferen!

tip_10694-edible-treasures-large
15
Adres
Jacob Obrechtstraat 75,
1071 KK Amsterdam

Edible Treasures

In een voormalige slagerij in Amsterdam Zuid huist de concept store Edibe Treasures. Naast de 'edibles en drinkables' in de koffieshop vind je hier een prachtige selectie van alles voor op de tafel zoals zilverwerk, keramiek, tafellinnen, maar ook kookboeken en accessoires. Er worden ook regelmatig pop ups en workshops georganiseerd.

foto-oesters
16
Adres
Van Baerlestraat 158,
1071 BG Amsterdam

Brasserie van Baerle

De Franse brasserie van Baerle is niet meer weg te denken uit het Amsterdamse stadsbeeld. Met een levensloop van al 41 jaar in Amsterdam-Zuid, is het een vertrouwde plek. De compacte lunch- en dinerkaart bestaat uit klassieke gerechten uit de overwegend Franse brasserie keuken én vernieuwende eigentijdse gerechten.  In het seizoen zijn er altijd oesters, asperges en kreeft. Naast à la carte is er zowel voor lunch als diner een wisselend 3-gangen keuzemenu dat sinds 2010 jaarlijks door Michelin met een ‘BIB Gourmand’  onderscheiden wordt. Grootspraak, de restaurantgids voor wijnliefhebbers, rangschikt Brasserie van Baerle al jaren tot de beste ‘wijnrestaurants’ van Amsterdam.

17
Adres
Scheldestraat 68,
1078 GM Amsterdam

Venetië IJS

Bij Venetië hebben ze ambachtelijk Italiaans ijs. Het zijn veelal Italiaanse mensen die de bolletjes scheppen en dat merk je dan ook aan hun charmante accent en hun vriendelijke glimlach. Het ijs is huisgemaakt en ze hebben veel verschillende smaken en heerlijke slagroom. Het interieur is authentiek Italiaans met genoeg zitplekken binnen. In de zomer staan er buiten tafels en stoelen op het terras om even rustig je ijsje op te eten.

frietsteeg
18
Adres
Stadionkade 73 /A,
1076 BJ Amsterdam

De Frietsteeg

De Frietsteeg is een snackbar aan de gracht in de Stadionbuurt. Ze serveren hier heerlijke krokante frietjes en vele andere snacks. De frieten worden met de hand gesneden en je hebt keus uit meer dan 20 sauzen. Ook bijzonder: de Frietsteeg is gevestigd in een historisch huisje en er is een groot zonnig terras aan het water

Schermafbeelding 2022-05-18 om 15.54.00
19
Adres
Scheldeplein 4,
1078 GR Amsterdam

Visaandeschelde

Al meer dan 20 jaar een begrip in Amsterdam Zuid. Zoals ze zelf zeggen is hun culinaire passie het omtoveren van dagverse vis en seizoensproducten tot spannende en heerlijke gerechten. En daarmee is eigenlijk bijna alles al gezegd. Visaandeschelde ziet er chique uit, maar binnen is er geen te kort aan een goede portie Amsterdamse gezelligheid. Ook kan je in de zomer heerlijk op het terras zitten dat uitkijkt op het Scheldeplein.

175682_10152206008775179_210428518_o
20
Adres
Scheldeplein 22,
1072 GJ Amsterdam

Pisa IJs

Bij deze bescheiden ijswinkel bij Amsterdam RAI ben je aan het goede adres voor heerlijk Italiaans ijs. Sinds 1935 kun je hier terecht voor ambachtelijk ijs in meer dan 60 verschillende (wisselende) smaken per seizoen. Samen met ijswinkel Venetië ietsje verderop zijn deze twee ijswinkels dé plekken om goed schepijs in Amsterdam-Zuid te halen, vandaar ook de lange rijen in de zomer, maar het wachten waard en het gaat snel!

Schermafbeelding 2022-07-01 om 15.54.18
21
Adres
Scheldestraat 45BG,
1078 GG Amsterdam

Vinnies

Bij Vinnies draait het om goed en eerlijk eten. Dit restaurant serveert ook all-day ontbijt en lunch. Je kunt bijvoorbeeld kiezen uit lekkere broodjes, gerechten met ei en zelfs Marokkaanse couscous of linzensoep. Als je liever komt voor een drankje ben je bij Vinnies ook op het juiste adres; ze zetten heerlijke koffie en maken ook de mooiste sappen en cocktails voor je klaar. Laat je liever de lunch bezorgen? Geen probleem: Vinnies verzorgt ook catering en heeft een eigen take-away lunchmenu.

Interieur
5a1eff_bf84a6dcd25c4e9983e1e74f8140f4da_mv2
22
Adres
Rubensstraat 45,
1077 MJ Amsterdam

Flower fusion

Elke zaterdag van 9:30 tot 17:00 kunt u Ilona Bokma van Flowerfusion vinden op de ZuiderMRKT. Unieke en schitterende bloemen waardoor je het gevoel krijgt middenin een pluktuin te staan. Doordat Ilona iedere week andere bloemen, planten en kleuren uitzoekt die aansluiten bij het seizoen, is het elke zaterdag weer een feestje om langs te gaan bij Flowerfusion.

Kunst & cultuur
downloadgram.org_597897714_1508494480841935_8620457783605645660_n
23
Adres
Prinses Irenestraat 36,
1077 WX Amsterdam

De Thomas

De Thomas is een monumentale kerk aan de rand van de Zuidas waar religie en cultuur bewust samenkomen. Met een eigen theater, concerten en debatavonden is het een plek voor ontmoeting en verdieping, midden in het zakelijke hart van Amsterdam Zuid. Het gebouw geldt als een belangrijk voorbeeld van naoorlogse kerkarchitectuur in Nederland en is vormgegeven in een expressieve, brutalistische stijl.

202309galerie+fleur+&+wouter_MG_0118
WIDE59
24
Adres
Van Ostadestraat 43,
1072 SN Amsterdam

Galerie Fleur & Wouter

Galerie Fleur & Wouter werd in 2019 opgericht door Fleur Feringa en Wouter van Herwaarden. De galerie heeft als missie jongeren te betrekken bij kunst, hen vertrouwd te maken met galerieën en aan te moedigen om kunst te verzamelen. Deze toegankelijke en inclusieve filosofie weerspiegelt zich in alle activiteiten. Ze streven naar begrijpelijke communicatie en heldere verhalen.

 

Uitgelicht; Pakhuis ‘De Drieharingen’

Uitgelicht; Pakhuis ‘De Drieharingen’

Huize Loma, architect Warners liet zich inspireren door de appartementen in Parijs en Wenen en paste zijn visie toe in Amsterdam.

Huize Loma, architect Warners liet zich inspireren door de appartementen in Parijs en Wenen en paste zijn visie toe in Amsterdam.

Uitgelicht; Huize Koningsvijver

Uitgelicht; Huize Koningsvijver

Onlangs bekeken
Bekijk het overzicht

Deze site maakt gebruik van cookies.

Voor welke cookies geef je akkoord?