De LIGHTFACTORY - Wonen in een royale loft aan het water met uitzicht op de Schinkel.

Designvisie
De Sloterkade was ooit de rand van het dorp Sloten. Rond 1900 werd Sloten door de gemeente Amsterdam geannexeerd. Enkele kleine dijkhuizen en negentiende-eeuwse fabriekspanden herinneren nog aan deze tijd.

Eén van deze fabriekspanden was de Chemische Wasscherij en Ververij. Dit in 1898 gebouwde pand en de ten behoeve van de eigen watervoorziening gebouwde watertoren zijn in de loop der jaren van functie veranderd. Via een magazijn van AEG tot, als laatste, een magazijn/fabriek van Indoor lampen. Aan deze laatste gebruiker dankt de huidige ‘Lightfactory’ haar naam.

Rondleiding
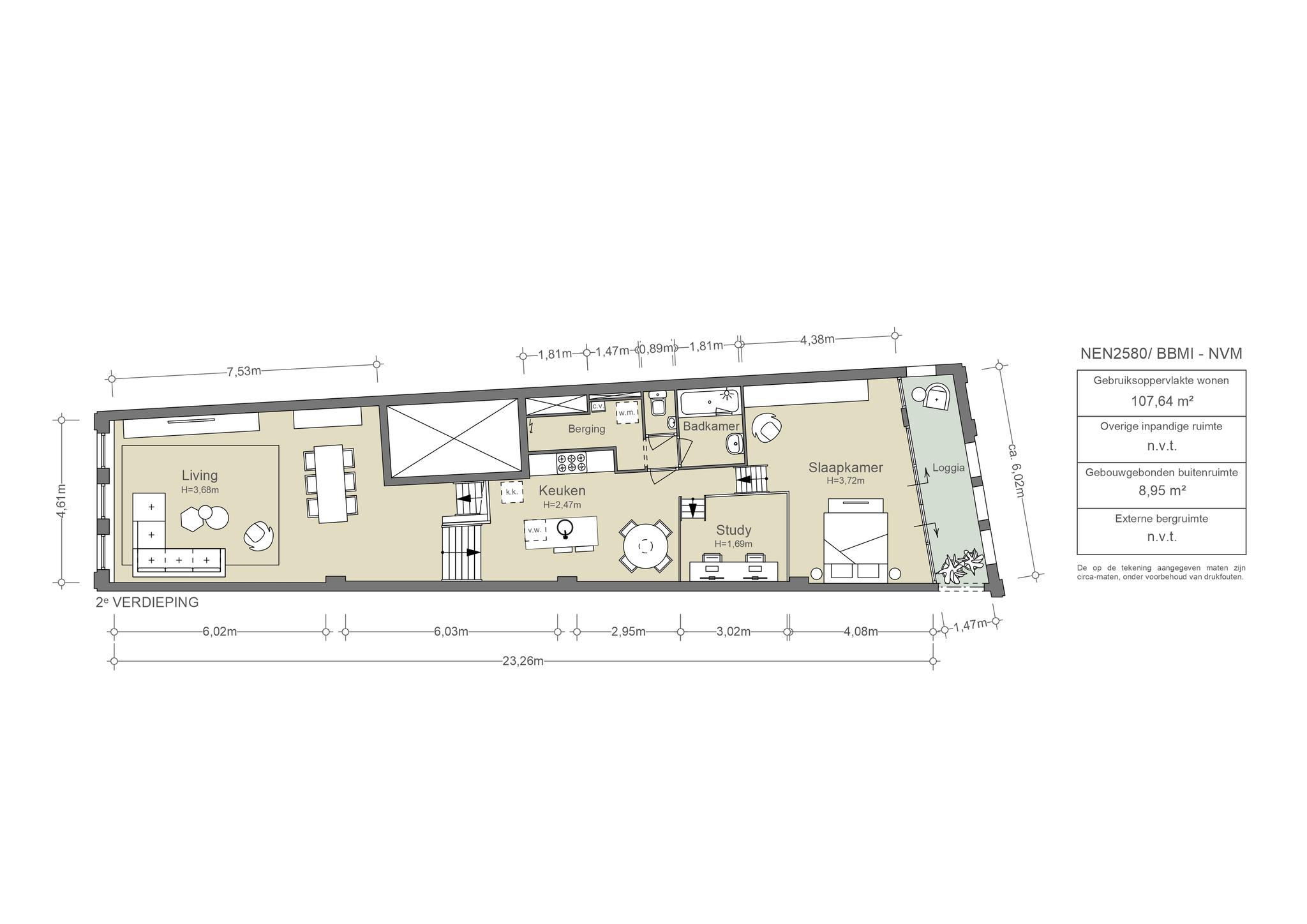
Royaal wonen in een gebouw met historie en hedendaags comfort (lift). Het hoge en lichte loft appartement heeft een open structuur maar biedt door de indeling en verschillende vloerniveaus voldoende privacy. De ruime living, gelegen aan het water, heeft hoge ramen en is voorzien van een lichte, eikenhouten parketvloer. De muren van circa 3,75 m hoogte bieden veel ruimte voor grote schilderijen en kunst. Het appartement is goed geïsoleerd en daardoor heerst er een oase van rust; als de ramen gesloten zijn, hoor je geen geluiden van buiten of buren. Het is heerlijk vertoeven in de ochtend wanneer de zon tot aan het middaguur in de woonkamer schijnt. In de zomer kun je aan de voorkant van de befaamde ‘staande mastroute’ genieten.

De open woonkeuken in het midden van het appartement ligt ca. 1,50 m. hoger dan de voor- en achterkamer. Het keukeneiland is de centrale plek in huis om elkaar te ontmoeten voor een kop koffie, een glas wijn en een hapje.

Op hetzelfde vloerniveau als de keuken, liggen de badkamer, separaat toilet en de berging (was- droogcombinatie en voorraadruimte).

Vanaf de keuken is de entresol bereikbaar, met daarop de perfecte ruimte om een royale thuiswerk plek te creëren.
De riante slaapkamer is aan de achterzijde gelegen en heeft een schuifpui naar de loggia, die door de hoekligging van het appartement licht en zonnig is. Vanaf het middaguur tot in de avond kun je van de zon genieten op de loggia. Door de hoge glazen schuifdeuren open te doen, betrek je de buitenruimte bij de royale slaap- en leefruimte. Door de hoekligging is dit appartement ruim een meter breder dan de andere appartementen.

Vanuit de slaapkamer is de walk-in closet en een extra berging toegankelijk. Zowel de slaapkamer als de walk-in closet zijn voorzien van een nieuwe, licht eiken laminaatvloer. De slaapkamer is 6,20 m breed en heeft een hoogte van ruim 3,75m

De buitenruimte
De zeer hoge, open loggia van ca. 9m² is gelegen op het westen en is de ideale plek om vanaf het middaguur van de zon en de rust te genieten totdat de zon halverwege de avond ondergaat. De achterpui is recent geheel vernieuwd en geïsoleerd door de VvE en voorzien van dubbel glas.

Omgeving
De Sloterkade ligt in de ruim opgezette, groene Schinkelbuurt met om de hoek de altijd gezellige Hoofddorpplein buurt en is daarmee een sfeervolle en gezellige plek om te wonen. Er zijn veel speciaalzaken, traiteurs, leuke restaurants en gezellige koffietentjes in de buurt. Iedere maand wordt er een burenborrel gehouden, vaak in Stadscafé van Mechelen of Gent aan de Schinkel verderop aan het water op de Sloterkade. Het Vondelpark (met de gezellige Vondeltuin) en het Rembrandtpark liggen om de hoek, maar ook het Amsterdamse Bos en De Nieuwe Meer zijn dichtbij bereikbaar. Perfect om hard te lopen, te roeien of van een langere wandeling te genieten.

Sportparken - tennis, squash, voetbal, atletiek en fitness, zoals TrainMore, Olympic Gym en BasicFit liggen in de buurt. Ook kleinere gyms en yoga studio’s (zie hotspots) zijn allemaal in deze buurt gelegen.
Tevens is er een ruim en divers winkelaanbod. Voor de dagelijkse boodschappen kunt u naar Marqt/Ekoplaza of Albert Heijn om de hoek. Binnen vijf minuten fietsen, door het Vondelpark, bereikt u het centrum van Amsterdam, waar u uitgebreid kunt winkelen. Het Museumkwartier en het Concertgebouw zijn op fietsafstand bereikbaar.

Bereikbaarheid
Het appartement is zeer goed bereikbaar middels het openbaar vervoer, met tramlijnen 1, 2 en 17 en buslijn 15 naar station Zuid om de hoek en is ook bijzonder gunstig gelegen ten opzichte van de uitvalswegen A2 en A4 via de Ringweg A10. Door de unieke ligging van het appartement en de luxe van een overdekte parkeerplaats op afgesloten parkeerterrein, rijdt u binnen een paar minuten op de A10 en bent u snel op de A4 richting Schiphol. Wonen aan het water in Amsterdam en daarbuiten werken gaan goed samen in de Schinkelbuurt.

Parkeergelegenheid
Aan de achterzijde van het complex is er een afgesloten parkeerterrein; bij het appartement hoort een overdekte privé parkeerplek, vlakbij de in-en uitrit van de Lightfactory.
De parkeerplaats is optioneel te koop voor €50.000,- k.k.

De bijzonderheden
· Gebruiksoppervlakte wonen circa 110 m²
· Loggia op het westen van circa. 9 m²
· Gelegen op erfpachtgrond van Gemeente Amsterdam, het huidige tijdvak is afgekocht t/m 31 augustus 2047.
· Aanvraag overstap eeuwigdurende erfpacht met AB 2016 is tijdig gedaan, er is de mogelijkheid om de erfpacht eeuwigdurend af te kopen voor € 45.659,-
· Energielabel A
· Gezonde en professioneel beheerde VvE
· De VvE heeft een huishoudelijk reglement en een meerjarenonderhoudsplanning
· Achterpui is recent geheel vernieuwd door VvE
· Drie bergingen
· Goed geïsoleerd: daardoor lage energiekosten en geen geluiden van buiten of buren hoorbaar
· Uniek uitzicht op de Schinkel
· Overdekte parkeerplaats op afgesloten privéterrein
· Parkeerplaats optioneel te koop voor € 50.000,- k.k.

AM104263-1749102-Sloterkade-167M,-Amsterdam-139613923

De LIGHTFACTORY
Wonen in een royale loft aan het water met uitzicht op de Schinkel.
De Lightfactory is gelegen aan de Schinkel, de doorgaande vaarroute tussen het IJ en Zuid-Holland. Vanuit de woonkamer is er de gehele dag zicht op boten die van en naar het IJ gaan. Dit loft appartement in het historische gedeelte van het complex is na grondige renovatie eind 1999 opgeleverd. Het appartement biedt een oase van rust, maar ligt op loopafstand van het Vondelpark en de levendigheid van de stad. Het Hoofddorpplein is als een klein dorp met alle dagelijkse voorzieningen om de hoek. De zon schijnt ’s ochtends in de voorkamer en draait vanaf het middaguur naar de achterzijde, waar tot de avond de zon op de loggia schijnt. Het meest unieke van deze woning is de plafond hoogte van 3,75 meter. Parkeren kan op afgesloten privéterrein.


Daniël de Bont | Makelaar Broersma Wonen
AM104263-1749102-Sloterkade-167M,-Amsterdam-139613941

Designvisie
De Sloterkade was ooit de rand van het dorp Sloten. Rond 1900 werd Sloten door de gemeente Amsterdam geannexeerd. Enkele kleine dijkhuizen en negentiende-eeuwse fabriekspanden herinneren nog aan deze tijd.

Eén van deze fabriekspanden was de Chemische Wasscherij en Ververij. Dit in 1898 gebouwde pand en de ten behoeve van de eigen watervoorziening gebouwde watertoren zijn in de loop der jaren van functie veranderd. Via een magazijn van AEG tot, als laatste, een magazijn/fabriek van Indoor lampen. Aan deze laatste gebruiker dankt de huidige ‘Lightfactory’ haar naam.

Aanvankelijk zou de oude fabriek met watertoren moeten wijken voor nieuwbouw maar in 1995 besloot Stadsdeel Oud-Zuid een ontwerpwedstrijd uit te schrijven, waarbij naast een nieuwbouwgedeelte ook het oorspronkelijke gebouw behouden zou moeten blijven. Uit de vijf inzendingen won het ontwerp van Köther, Salman en Koedijk Architecten. De oude fabriek bleef in hun ontwerp behouden en was op ingenieuze wijze opgenomen in een nieuwbouwcomplex. Daarnaast sprak de verscheidenheid van woningtypen aan in hun ontwerp. Het deels gerestaureerde en deels nieuwgebouwde geheel werd eind 1999 opgeleverd.

De Lightfactory is bekroond met een architectuurprijs. Na renovatie in 1999 zijn veel authentieke details behouden zoals de watertoren, fraai entree met originele granieten vloeren en trappen en industriële lift.

AM104263-1749102-Sloterkade-167M,-Amsterdam-139680943
AM104263-1749102-Sloterkade-167M,-Amsterdam-139613889
AM104263-1749102-Sloterkade-167M,-Amsterdam-139613923

De waterkant
Royaal wonen in een gebouw met historie en hedendaags comfort (lift). Het hoge en lichte loft appartement heeft een open structuur maar biedt door de indeling en verschillende vloerniveaus voldoende privacy. De ruime living, gelegen aan het water, heeft hoge ramen en is voorzien van een lichte, eikenhouten parketvloer. De muren van circa 3,75 m hoogte bieden veel ruimte voor grote schilderijen en kunst. Het appartement is goed geïsoleerd en daardoor heerst er een oase van rust; als de ramen gesloten zijn, hoor je geen geluiden van buiten of buren. Het is heerlijk vertoeven in de ochtend wanneer de zon tot aan het middaguur in de living schijnt. In de zomer kun je aan de voorkant van de befaamde ‘staande mastroute’ genieten.

AM104263-1749102-Sloterkade-167M,-Amsterdam-139613924
AM104263-1749102-Sloterkade-167M,-Amsterdam-139833771
AM104263-1749102-Sloterkade-167M,-Amsterdam-139620984
AM104263-1749102-Sloterkade-167M,-Amsterdam-139613892
AM104263-1749102-Sloterkade-167M,-Amsterdam-139624686
AM104263-1749102-Sloterkade-167M,-Amsterdam-139183125
AM104263-1749102-Sloterkade-167M,-Amsterdam-139624996

De centrale zone
De open woonkeuken in het midden van het appartement ligt ca. 1,50 m. hoger dan de voor- en achterkamer.  De keuken met een keukeneiland is voorzien van Belgisch hardstenen aanrechtbladen en een breed Smeg fornuis met afzuigkap. Het keukeneiland is de centrale plek in huis om elkaar te ontmoeten voor een kop koffie, een glas wijn en een hapje.

Op hetzelfde vloerniveau als de keuken, liggen de badkamer, separaat toilet en de berging (was- droogcombinatie en voorraadruimte). De badkamer is voorzien van een ingenieuze ligbad- douchecombinatie en een wastafel.

Vanaf de keuken is de entresol bereikbaar, met daarop de perfecte ruimte om een royale thuiswerk plek te creëren.

AM104263-1749102-Sloterkade-167M,-Amsterdam-139613890
AM104263-1749102-Sloterkade-167M,-Amsterdam-139183106
AM104263-1749102-Sloterkade-167M,-Amsterdam-139183120
AM104263-1749102-Sloterkade-167M,-Amsterdam-139619653
AM104263-1749102-Sloterkade-167M,-Amsterdam-139613897
AM104263-1749102-Sloterkade-167M,-Amsterdam-139621035
AM104263-1749102-Sloterkade-167M,-Amsterdam-139613895
AM104263-1749102-Sloterkade-167M,-Amsterdam-139741346

De zonnige zijde
De riante slaapkamer is aan de achterzijde gelegen en heeft een schuifpui naar de loggia, die door de hoekligging van het appartement licht en zonnig is. Vanaf het middaguur tot in de avond kun je van de zon genieten op de loggia. Door de hoge glazen schuifdeuren open te doen, betrek je de buitenruimte bij de royale slaap- en leefruimte. Door de hoekligging is dit appartement ruim een meter breder dan de andere appartementen.
Vanuit de slaapkamer is de walk-in closet en een extra berging toegankelijk. Zowel de slaapkamer als de walk-in closet zijn voorzien van een nieuwe, licht eiken laminaatvloer. De slaapkamer is 6,20 m breed en heeft een hoogte van ruim 3,75m, waardoor er ruimte is voor grote kunstwerken, spiegels of schermen aan de muur. Aan de achterzijde is recent een geheel vernieuwde pui geplaatst, met grote glazen schuifdeuren, van dubbel glas.
Een heerlijk royale ruimte om te leven en te genieten; van conditietraining op fitness apparaten, tot een film kijken op een groot scherm om daarna van een welverdiende nachtrust in een comfortabel bed te genieten.

De buitenruimte
De zeer hoge, open loggia van ca. 9m² is gelegen op het westen en is de ideale plek om vanaf het middaguur van de zon en de rust te genieten totdat de zon halverwege de avond ondergaat. Een fijne plek om te relaxen, te eten en van de rust te genieten.
De achterpui is recent geheel vernieuwd en geïsoleerd door de VvE en voorzien van dubbel glas. Door de grote schuifdeuren open te zetten, verbind je de binnenruimte met de loggia buiten en haal je de zon naar binnen.

AM104263-1749102-Sloterkade-167M,-Amsterdam-139613899
AM104263-1749102-Sloterkade-167M,-Amsterdam-139613938
AM104263-1749102-Sloterkade-167M,-Amsterdam-139682665

De Sloterkade ligt in de ruim opgezette, groene Schinkelbuurt met om de hoek de altijd gezellige Hoofddorpplein buurt en is daarmee een sfeervolle en gezellige plek om te wonen. Er zijn veel speciaalzaken, traiteurs, leuke restaurants en gezellige koffietentjes in de buurt. Iedere maand wordt er een burenborrel gehouden, vaak in Stadscafé van Mechelen of Gent aan de Schinkel verderop aan het water op de Sloterkade. Het Vondelpark (met de gezellige Vondeltuin) en het Rembrandtpark liggen om de hoek, maar ook het Amsterdamse Bos en De Nieuwe Meer zijn dichtbij bereikbaar. Perfect om hard te lopen, te roeien of van een langere wandeling te genieten.

Sportparken – tennis, squash, voetbal, atletiek en fitness, zoals TrainMore, Olympic Gym en BasicFit liggen in de buurt. Ook kleinere gyms en yoga studio’s (zie hotspots) zijn allemaal in deze buurt gelegen.

Tevens is er een ruim en divers winkelaanbod. Voor de dagelijkse boodschappen kunt u naar Marqt/Ekoplaza of Albert Heijn om de hoek. Binnen vijf minuten fietsen, door het Vondelpark, bereikt u het centrum van Amsterdam, waar u uitgebreid kunt winkelen. Het Museumkwartier en het Concertgebouw zijn op fietsafstand bereikbaar.

Bereikbaarheid
Het appartement is zeer goed bereikbaar middels het openbaar vervoer, met tramlijnen 1, 2 en 17 en buslijn 15 naar station Zuid om de hoek en is ook bijzonder gunstig gelegen ten opzichte van de uitvalswegen A2 en A4 via de Ringweg A10.
Door de unieke ligging van het appartement en de luxe van een overdekte parkeerplaats op afgesloten parkeerterrein, rijdt u binnen een paar minuten op de A10 en bent u snel op de A4 richting Schiphol. Wonen aan het water in Amsterdam en daarbuiten werken gaan goed samen in de Schinkelbuurt.

Parkeergelegenheid
Aan de achterzijde van het complex is er een afgesloten parkeerterrein; bij het appartement hoort een overdekte privé parkeerplek, vlakbij de in-en uitrit van de Lightfactory. De parkeerplaats is optioneel te koop voor €50.000,- k.k.

AM104263-1749102-Sloterkade-167M,-Amsterdam-139697498
AM104263-1749102-Sloterkade-167M,-Amsterdam-139625791
AM104263-1749102-Sloterkade-167M,-Amsterdam-139682863
Kenmerken
Sloterkade 167M, Amsterdam
Vraagprijs
  • € 848.000 k.k.
Beschikbaarheid
  • Direct
Vertrekken
  • 3 kamers
  • 1 slaapkamer
  • 1 badkamer
Onderhoud
  • Intern: Goed
  • Extern: Goed
Oppervlakten & Inhoud
  • Woonoppervlakte: 110 m²
Bouwjaar
  • 1999
Installaties
  • Lift
  • Natuurlijke ventilatie
Ligging
  • Aan vaarwater
  • Aan water
  • In centrum
Parkeren
  • Op eigen terrein
  • Parkeerplaats
Type verwarming
  • CV Ketel
Type warmwater
  • CV Ketel
Bestemming
  • Woonruimte
Eigendomssoort
  • Eigendom belast met erfpacht
Buitenruimte
  • Zonneterras
  • Balkon
  • Loggia
Kadastraal
  • Gemeente: Sloten noord-holland
  • Sectie: O
  • Nummer: 2975
Duurzaamheid
  • Dakisolatie
  • Dubbel glas
  • Hr glas
  • Muurisolatie
  • Vloerisolatie
  • Energielabel A
Soort
  • Appartement
  • Bovenwoning
Welke woonlaag
  • 3e
Overige kenmerken
  • OZB ('22) € 325,50 per jaar
  • Rioolrecht ('22) € 152,50 per jaar
  • Servicekosten € 239,99 per maand
Plattegrond
Sloterkade 167M, Amsterdam
AM104263-1749102-Sloterkade-167M,-Amsterdam-139183167
AM104263-1749102-Sloterkade-167M,-Amsterdam-139183169
AM104263-1749102-Sloterkade-167M,-Amsterdam-139183170
AM104263-1749102-Sloterkade-167M,-Amsterdam-139183172
Documenten
Sloterkade 167M, Amsterdam
Locatie
Sloterkade 167M, Amsterdam
Boodschappen
01
Adres
Hoofddorpweg 27,
1059 CT Amsterdam

Cow Project

Met het motto ‘bewust bourgondisch’ onderscheidt slagerij Cow Project zich van andere slagerijen. Het draait hier om lekker eten op een bewuste manier. De herkomst van het vlees is bekend en de slager draagt grote zorg voor een goed leven voor de dieren. Zo zijn de lammeren van Texel, de kip van de Blije Ilper en de varkens behoren tot de Porc au Grain varkens. Naast slagerij is het ook een delicatessenzaak met allerlei lekkere dingen zoals tapas.

287573586_5731115153584452_4578419007889655966_n
02
Adres
Hoofddorpplein 23,
1059 CW Amsterdam

Nuts & Delights

& Cheese zou er eigenlijk nog in de titel moeten staan want dat is wat ze hier allemaal hebben. Niet alleen de vers gebrande noten zijn waanzinnig, ook het gigantische assortiment kaas is heerlijk en voor elke gelegenheid hebben ze wel een kaasje. Ook leuk: ze bezorgen via fietskoerier Peddler, wel zo duurzaam!

40696884_263976027789595_4869878192174792704_n
03
Adres
Koninginneweg 255,
1075 CV Amsterdam

Wijnhuis Amsterdam

Hoewel ze bij Wijnhuis Amsterdam al meer dan 25 jaar professioneel wijn proeven en selecteren, is het wijnhuis in Amsterdam een vrij recente toevoeging aan hun verhaal.  Na talloze proefsessies waren ze zo enthousiast over de Duitse wijnen dat ze maar al te graag de wijnen een platform wilden geven binnen Nederland. Zo openden ze in mei 2018 Wijnhuis.Amsterdam, met in eerste instantie slechts drie eigen importen uit Duitsland. Inmiddels vertegenwoordigen ze een indrukwekkend assortiment van twintig Duitse wijnmakers, drie uit Oostenrijk en één uit Luxemburg. Bij het selecteren van de wijnen is elegantie, de drinkbaarheid, lage alcoholpercentages en een minimale interventie in het productieproces belangrijk.

103079443_3573633532650074_4867610338365611728_n
04
Adres
Amstelveenseweg 75,
1075 CE Amsterdam

Patisserie Linnick

Patisserie Linnick wordt bestierd door het  Amstelveense koppel Linda en Nick. Zij leerden elkaar kennen in Patisserie Holtkamp en werden verliefd. In 2014 werd hun droom werkelijkheid: een eigen patisserie waar zij hun kunstwerkjes aan het publiek kunnen tonen. Met passie en ambacht werken zij elke dag aan de prachtige gebakjes en chocolade die zij vervolgens in de vitrines etaleren. Patisserie Linnick werkt met hoogwaarde ingrediënten zoals de Valrhona chocolade uit Tain-l’Hermitage in Hermitage. De heerlijke zoete traktaties van Patisserie Linnick zul je niet snel vergeten.

Eten & drinken
360349188_243934825182799_7735494007192255831_n
05
Adres
Hoofddorpplein 1,
1059 CV Amsterdam

Café Maurits

Café Maurits, gelegen op het Hoofddorpplein in Amsterdam-Zuid, biedt een veelzijdige ervaring als bar, café en restaurant. Hier worden eigentijdse gerechten geserveerd, zowel à la carte als in een chefsmenu, zonder fratsen zoals schuimpjes of gelletjes, maar met de ambiance van een modern café. Het hoekpand beschikt over een aangenaam terras en een lichte, uitnodigende sfeer.  Het interieur is smaakvol ingericht met veel houtaccenten en spiegels die de ruimte vergroten en verlichten. De verfijnde menukaart, samengesteld door chef Boy van Rijn, biedt diners een uitstekende culinaire ervaring, compleet met bijpassende wijnen.

06
Adres
Hoofddorpplein 6H,
1058 PD Amsterdam

Buno Coffee

201855152_536108230745975_4263326479573486700_n
07
Adres
Rietwijkerstraat 35,
1059 VW Amsterdam

Pipes & Beans

Bij Pipes & Beans in Amsterdam-Zuid vind je een gezellige eettafel, een comfortabele bank en twee leunstoelen. Een vrolijke hond genaamd Curly snuffelt nieuwsgierig om je heen, waardoor het voelt alsof je te gast bent in de woonkeuken van Maikel van Rooij (41). Dit was precies het sfeertje dat de eigenaar voor ogen had. Hier draait alles om het goede leven met koffie. De rest van het interieur is een charmante mix van tweedehandsvondsten van de lokale kringloopwinkel. Een kopje koffie kost €2,50 en voor €4 krijg je er zelfgemaakte taart of een tosti bij.

08
Adres
Hoofddorpplein 29 h,
1059 CW Amsterdam

Nana coffee house

Aan het Hoofddorpplein ligt Nana Coffee House. De deuren gaan open zodra je zin hebt in iets lekkers: een all-day ontbijt, broodjes, flatbreads of huisgemaakte zoetigheden. De naam verwijst naar Nana, de grootmoeder van de eigenaresse, met wie gastvrijheid altijd centraal stond. Je voelt het meteen: een plek met karakter, waar je komt voor kwaliteit én eenvoudig comfort. Geopend doordeweeks van 08:00 tot 16:00 (behalve dinsdag), in het weekend vanaf 09:00. Een spot waar de buurt elkaar vindt in rust, smaak en stijl.

09
Adres
Aalsmeerweg 91,
1059 AE Amsterdam

Warung Barokah

Warung Barokah is al meer dan 10 jaar een begrip in de Indonesische community. De gerechten staan bekend om de vele verse kruiden die gebruikt worden. Kok en eigenaar Sri Kurniati heeft haar kookkunsten geleerd op diverse plekken in Indonesië. Probeer haar specialiteiten Bakso en Soto soep en je zal zeker niet teleurgesteld zijn.

 

321951658_745210986479092_3482688388092291829_n
264585813_916339462605248_793857125163270911_n
10
Adres
Amstelveenseweg 226h,
1075 XT Amsterdam

Bonnie

Bonnie, een charmante bistro gelegen in Amsterdam-Zuid. Bij Bonnie draait alles om genieten; van lekkere maaltijden tot zorgvuldig geselecteerde wijnen die perfect aansluiten. Vooral de Bonnie's double cheeseburger is een aanrader. De ambiance zorgt ervoor dat je je al snel op je gemak voelt. Een lunch hier kan gemakkelijk overgaan in een gezellige borrel, waardoor je het gevoel krijgt dat je eigenlijk helemaal niet meer weg wil.

vierkantjes-website-4
278159011_532942278401509_462089035820605652_n
11
Adres
Sophialaan 55,
1075 BP Amsterdam

Ron Gastrobar (*)

Bij Ron Blaauw's eerste gastrobar in Amsterdam gaat een laagdrempelige sfeer hand in hand met een Michelinster. Stijl en gezelligheid komen samen voor een smakelijke ervaring. Van details tot amuses, cocktails, broodjes op tafel, nieuwe gerechtjes, heerlijke wijnen en attente service. Alles draait om het credo: "uit eten gaan moet een feestje zijn''.Voor BBQ-liefhebbers is er zelfs een apart gedeelte op de menukaart. Uiteraard ontbreken de klassiekers, zoals de spareribs "The Original," niet; een gerecht dat altijd zal blijven.

12
Adres
Heemstedestraat 68,
1058 NP Amsterdam

In een rustige straat in Amsterdam-Zuid vind je Lokaal van de Stad. Een plek waar buurtbewoners elkaar treffen voor koffie en een goed gesprek. Alles wordt hier met zorg bereid: van huisgemaakte taarten tot verse lunches. De sfeer is ongedwongen, alsof je aanschuift in een grote huiskamer. Een lokaal adres dat laat zien hoe de stad op haar best samenkomt.

202010SOTTO82-1400×934
13
Adres
Amstelveenseweg 89,
1075 VW Amsterdam

Sotto Pizza

Sotto Pizza is één van de top 10 Italiaanse restaurants in Amsterdam. Het restaurant opende haar deuren in 2021, maar is sindsdien een begrip onder de pizza-liefhebbers. De diverse keuze is een weergave van de kundigheid van de koks, maar hun klassieke Margherita is onverslaanbaar. Het interieur heeft iets weg van een moderne Spaanse tapasbar, met een fijne sfeer. Je kan bij Sotto uitgebreid tafelen of snel een pizza eten aan de bar. Het personeel is behulpzaam en vriendelijk.

featured-gallery-0
14
Adres
Koninginneweg 212,
1075 EL Amsterdam

Simply Fish

Simply Fish is gelegen in Oud-Zuid aan de Koninginneweg. Zoals de naam al doet vermoeden is het restaurant gespecialiseerd in het bereiden van vis. Echtpaar Jan en Francis Rijk bezaten voorheen eenzelfde soort restaurant in Zeeland, een welbekende provincie voor overheerlijke vis en zeevruchten. Op het menu kan je onder andere fruit de mer, garnalenkroketjes, oesters en hun beroemde kreeftenbisque vinden.

000049
15
Adres
Amstelveenseweg 158-160,
1075 XN Amsterdam

Restaurant Blauw

Aan de Amstelveenseweg ligt het Indonesische restaurant Blauw. In tegenstelling wat de naam doet verwachten, is het hele interieur rood. De rijsttafels bij restaurant Blauw zijn bij beide locaties identiek (Amsterdam en Utrecht), maar de rest van het menu is per vestiging uniek. De chefs stellen zelf hun ultieme authentieke Indonesische belevingen samen op basis van hun eigen inspiratie en invloeden.

BHF9707-scaled
16
Adres
Heemstedestraat 80,
1058 NP Amsterdam

Cedars

Cedars is een Libanees restaurant gevestigd in hartje Amsterdam. Het restaurant is vernoemd naar de cederboom, die staat voor kracht, kwaliteit, schoonheid en waardigheid. Deze waarden zijn ook uitgangspunten in de bedrijfsvoering van Cedar; waar kwaliteit van producten en schoonheid van de gerechten centraal staat. Cedars serveert een uitgebreid menu met talloze hapjes en drankjes. Probeer bijvoorbeeld eens de gemarineerde dorade of de overheerlijke fatayer sabanekh. Ook de locatie van Cedars is prachtig; het strakke pand aan het water van de Elandsgracht ademt frisse luxe schoonheid.

306001211_969230534472634_2320247204275062774_n
17
Adres
Warmondstraat 120,
1058 KZ Amsterdam

Caffènation

De bekendste koffiebranderij van Antwerpen heeft nu ook zijn deuren geopend in de Schinkelbuurt van Amsterdam. De kenmerkende Belgische stijl van Caffenation is duidelijk te herkennen in de inrichting van de koffiebar, die uit twee verdiepingen bestaat en ruime zitgelegenheid biedt. Opvallende decorstukken zijn overal te vinden, maar de absolute blikvanger bij binnenkomst is de indrukwekkende espressomachine van Kees van der Westen. De koffie, bereid met de Synesso MVP Hydra-espressomachine is van goede kwaliteit  en de sfeer is ontspannen. Bovendien biedt Caffenation wekelijks twee verschillende soorten verse bonen aan.

18
Adres
Hendrik Jacobszstraat 18,
1075 PD Amsterdam

LOT61 Coffee Roasters

Geboren in Sydney, grootgebracht in Brooklyn en nu stevig geworteld in Amsterdam: LOT61 is allesbehalve een doorsnee koffiezaak. Als onafhankelijke koffiebrander combineert het merk internationale flair met lokaal vakmanschap. Slow coffee die met precisie en aandacht is gezet. De esthetiek is rauw maar verfijnd, de sfeer informeel en creatief – een plek waar buurt en barista samenkomen. Met hun B Corp-certificering laat LOT61 bovendien zien dat smaak en duurzaamheid hand in hand kunnen gaan.

neni
19
Adres
Stadionplein 8,
1076 CM Amsterdam

NENI

NENI is een Midden-oosters restaurant gevestigd aan het Stadionplein. De naam is een samenstelling van de voorletters van de vier zonen van Haya Molcho; de drijfveer van deze zaak. Haya is geboren in Tel-Aviv en heeft daar psychologie gestudeerd. Ze hield altijd veel van koken en begon in 2009 haar eerste eigen restaurant. Over de jaren is de familie Mocho een bekende familie geworden in de culinaire wereld en ze hebben ook andere vestigingen van NENI in onder andere Wenen en Berlijn. In al hun restaurants staat familie, samenzijn en gerechten delen centraal. De midden-oosterse gerechten zijn uitmuntend en de vers bereidde hummus is een van de beste die Amsterdam te bieden heeft.

vascobelo-stadionplein-01
20
Adres
Stadionplein 100,
1076 CK Amsterdam

Vascobelo

Vascobelo, van origine uit Antwerpen, was bedoeld als een café waar mensen zouden komen voor een unieke koffie ervaring. Inmiddels is de keten aan Vascobelo Café-Brasseries bekend van veel meer dan alleen dat. De vestiging in de Rijnstraat is uniek door het knusse interieur en de open keuken, wat de locatie ideaal maakt voor intieme ontmoetingen of zakelijke bijeenkomsten.

483279358_18324217756166170_7586630462193368446_n
21
Adres
Stadionweg 271,
1076 NZ Amsterdam

Cucina casalinga

Giovanni Carmelitano is de eigenaar van Cucina Casalinga, een Italiaans restaurant gevestigd aan de Stadionweg 271 in Amsterdam-Zuid. Geboren in Rome, met een moeder uit Puglia, brengt Giovanni zijn Zuid-Italiaanse roots tot leven in zijn restaurant. Al meer dan twintig jaar is hij een toegewijde vertolker van de Italiaanse keuken, waarbij hij traditionele smaken combineert met een moderne benadering. De intieme sfeer en het beperkte aantal zitplaatsen zorgen voor een persoonlijke eetervaring die doet denken aan dineren bij een Italiaanse ‘nonna’ thuis.

Interieur
790bff16-5b71-4696-a026-427311b3e8b2
22
Adres
Koninginneweg 271,
1075 CW Amsterdam

Teunis Veenema

Teunis Veenema is een pareltje in het hart van Amsterdam-Zuid. Aan de Koninginneweg kun je sinds 2009 terecht voor de mooiste boeketten en planten. Teunis Veenema is geen doorsnee bloemenwinkel maar een winkel waar met je mee wordt gedacht om het mooiste resultaat te behalen zowel particulier of zakelijk. Daarbij biedt hun website de mogelijkheid om geheel gepersonaliseerde boeketten te bestellen voor uzelf of voor anderen.

dis-studio-Boffi-family-home-18.jpg
DB_111013_13402.png
23
Adres
Amstelveenseweg 2,
1075 XH Amsterdam

DIS Studio

DIS Studio is een designbureau, interieurwinkel en showroom in één. DIS Studio is opgezet door Daniela Germone en Dis Abhelakh. Zij werkten beide voor het Italiaanse interieurmerk Boffi en zijn sinds 2004 samen eigenaar van een eigen studio in Amsterdam. Je kunt bij DIS Studio terecht voor interieusdesign voor je hele huis; van keukens tot stoelen tot tafellampen. Hoewel Daniele en Dis graag werken met strakke Italiaanse designs en natuursteen worden kleine imperfecties niet vermeden. Volgens hen zorgen juist die kleine imperfecties voor een warme en huiselijke sfeer. In de showroom van DIS Studio worden uitsluitend producten getoond van Italiaanse merken. Het is ook de enige plek in Nederland die producten van het merk Boffi verkoopt.

Annindriya-Perfume-_Lounge-Local-Minded-005_lichter_Lowres_480x480
perfumelounge 2
24
Adres
Cornelis Krusemanstraat 25,
1075 NC Amsterdam

Perfume Lounge

Bij de ‘Perfume lounge’ richten ze zich op het maken en adviseren van geuren voor bedrijven en organisaties en wat reuk kan toevoegen aan een merk of organisatie. Daarnaast hebben zij een winkel met een assortiment van de meest bijzondere parfums van de wereld, waar zij ook persoonlijk geuradvies geven. Advies voor op de huid of in huis. Volgens de experts voegt geur iets toe wat niet zichtbaar en tastbaar is. Je kunt geur op verschillende manieren inzetten in een ruimte. Het begint natuurlijk eerst dat het er niet negatief mag ruiken. Er zijn best wel veel ruimtes waar je het riool of sanitair ruikt, waar veel gerookt is of waar de afzuiging niet goed is en het naar eten ruikt. De meeste simpele manier van geur in huis is dat het schoon ruikt. Veel mensen associëren schoonmaak of wasmiddel met een schoon, opgeruimd en verzorgd huis. Daarnaast kun je de ambiance aanzetten. Net zoals met licht en muziek kun je de sfeer verzachten of versterken. Je kunt het heel huiselijk laten ruiken of juist heel modern. Landelijk of artistiek. Of juist heel minimalistisch of intiem.

Schermafbeelding-2018-06-26-om-15.18.30-e1530019385389
25
Adres
Amstelveenseweg 39,
1054 MC Amsterdam

Eginstill

Eginstill is een bijzonder collectief, gespecialiseerd in interieurdesign. Het grote team aan leden, van ambachtsmannen tot aan de creatief leider Frans Pahlplatz, voorziet enthousiastelingen van workshops waarin alle interieur wensen waar kunnen worden gemaakt. Deze processen worden zo duurzaam mogelijk gemaakt, door het gebruik van recyclebare materialen zoals staal en hout van een familiebedrijf in Finland. Eginstill wil het liefste alle projecten zo uniek maken als hun klanten en dit doen ze met passie. Ook voor de lekkere bak koffie kan je hier goed terecht en er is genoeg om tijdens het nuttigen naar te kijken!

Ontmoet de ondernemer, in deze serie Titi Waber van Indonesisch restaurant Blauw

Ontmoet de ondernemer, in deze serie Titi Waber van Indonesisch restaurant Blauw

Buurtgids: De Rivierenbuurt rondom de President Kennedylaan

Buurtgids: De Rivierenbuurt rondom de President Kennedylaan

Tussen stad en stilte -genieten rondom amsterdam

Tussen stad en stilte -genieten rondom amsterdam

Onlangs bekeken
Bekijk het overzicht

Deze site maakt gebruik van cookies.

Voor welke cookies geef je akkoord?