Wonen aan het water – voor velen een droom die werkelijkheid wordt. Aan de Sloterkade bevindt zich dit ruime appartement van circa 112 m², gelegen op een hoek, wat zorgt voor een prachtige lichtinval aan twee zijden. De speelse indeling wordt verder versterkt door de aanwezigheid van maar liefst drie buitenruimten, ideaal om van het uitzicht en de omgeving te genieten.

Rondleiding
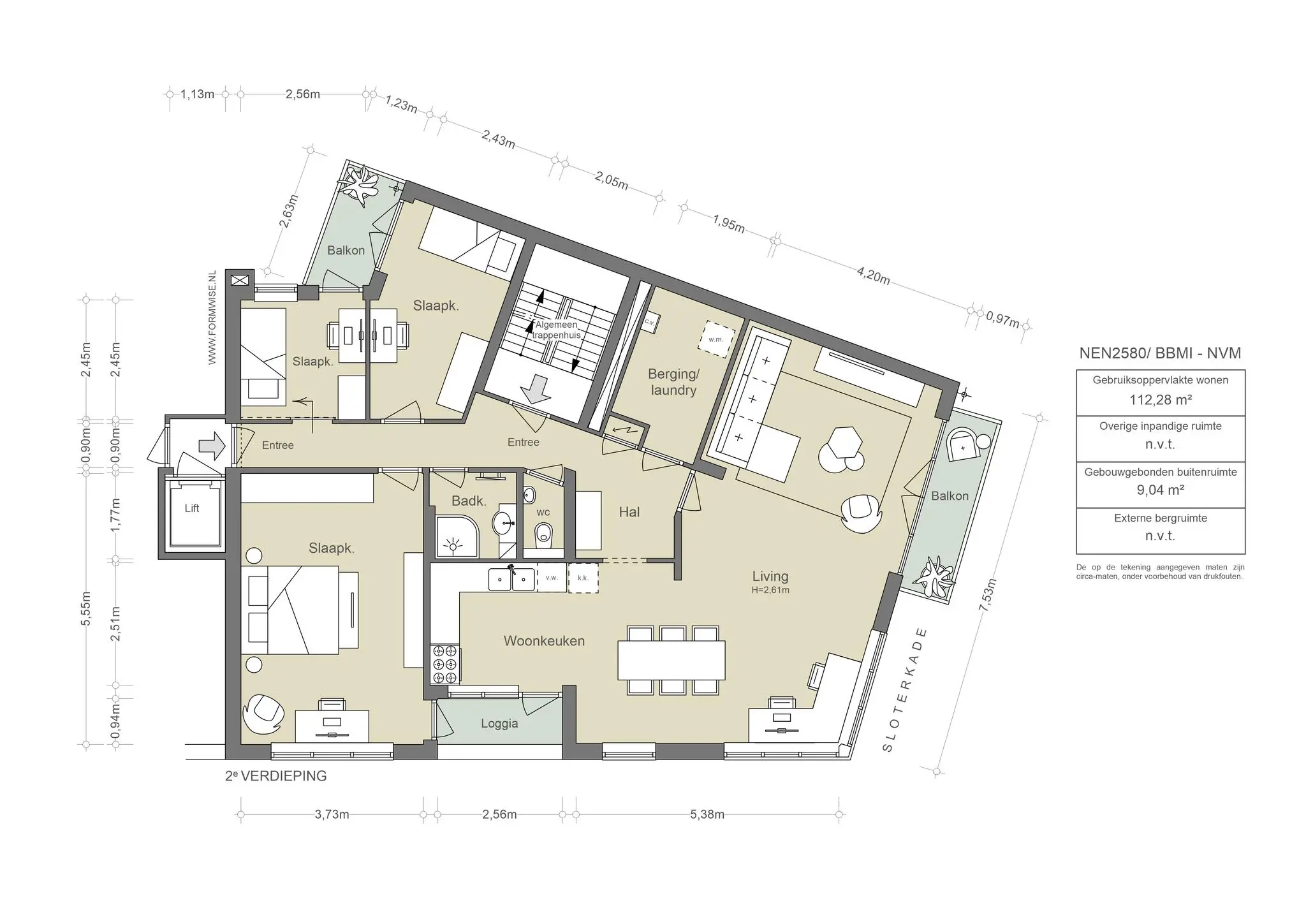
Gelegen op de tweede woonlaag biedt dit appartement van circa 112 m² een ideale combinatie van ruimte, licht en comfort. Het gebouw is voorzien van een lift, wat het extra praktisch maakt. De royale living, gelegen aan de voorzijde, biedt door de grote raampartijen en de hoekligging een prachtig uitzicht op het water en een gevoel van privacy. Aan de living grenst één van de drie buitenruimtes, wat met het uitzicht op de Schinkel een extra charme toevoegt.
De open keuken is uitgevoerd in een hoekopstelling en combineert een stoere uitstraling met functionele materialen zoals hout en roestvrij staal. De keuken is voorzien van een koelkast/vriezer, vaatwasser en een gasfornuis met oven.
Het appartement beschikt over drie goed bemeten slaapkamers. De hoofdslaapkamer is royaal, met een oppervlakte van circa 20 m². De twee slaapkamers aan de achterzijde zijn ideaal als kinderkamer, werkkamer of logeerkamer.
De badkamer is eenvoudig maar netjes afgewerkt, uitgevoerd in een lichte kleurstelling en voorzien van een douche en wastafelmeubel. Het toilet is separaat, wat extra gemak biedt.
Daarnaast beschikt het appartement over een ruime interne berging met aansluitingen voor een wasmachine en droger.

Locatie
De Sloterkade is een rustige straat met éénrichtingsverkeer en uitzicht op het water. De directe omgeving biedt een breed scala aan koffietentjes, gezellige kroegjes, sportscholen en yogastudio's, met zowel de Overtoom als de Amstelveenseweg om de hoek. Het Vondelpark, op steenworpafstand, maakt de locatie helemaal compleet.

Buurtgids
De buurt is gebouwd in de jaren twintig als onderdeel van het Plan West van de vroegere gemeente Sloten. De straatnamen zijn genoemd naar 19e-eeuwse schilders en plaatsen ten zuidwesten van Amsterdam. Hoofddorppleinbuurt is een onderdeel van stadsdeel Zuid.
De omgeving biedt tal van mogelijkheden voor liefhebbers van winkelen en gastronomie. Wen conceptstore aan de Hoofddorpweg is een aanrader voor bijzondere cadeaus en stijlvolle accessoires. In de omgeving zijn veel leuke restaurants en gezellige cafés waaronder Gent aan de Schinkel, Oslo, Café Maurits en Nana’s Coffee op het Hoofddorpplein.
Ook voor sport en ontspanning is alles binnen handbereik. David Lloyd biedt uitgebreide fitnessfaciliteiten, en er zijn diverse yogastudio’s in de buurt. Deze locatie combineert een stijlvolle woonomgeving met de levendigheid van de stad en vormt zo een ideale plek om te wonen en te genieten van alles wat Amsterdam te bieden heeft.
In de buurt zijn veel speeltuintjes te vinden voor kinderen en uiteraard is ook het Vondelpark om de hoek dus de ideale plek voor een lekkere wandeling of work out. Daarnaast biedt het water aan de Westlandgracht of Sloterkade de mogelijkheid voor aanleg van een bootje, ideaal voor een tochtje door de grachten. Het wonen in de Hoofddorppleinbuurt geeft een dorpsachtig gevoel en toch dichtbij de dynamiek van Zuid, Zuidas en West.
De Hoofddorppleinbuurt, waar de Sloterkade deel van uitmaakt, is nu een levendige wijk met een ideale mix van rust, groen en stedelijke voorzieningen.

Bijzonderheden
• Gebruiksoppervlakte wonen circa 112 m²
• Meerdere buitenruimte
• Gelegen op eigen grond
• Energielabel E
• Servicekosten VvE € 349,17 per maand
• Bouwjaar 1938
• Lift aanwezig
• Er zal een niet zelfbewonersclausule worden opgenomen
• Vaste notaris: Lubbers & Dijk

AM105778-1963128-Sloterkade-10-2,-Amsterdam-213802541

De Chocoladefabriek
Wonen aan het water – een droomlocatie aan de Sloterkade.
Dit ruime appartement van circa 112 m² is gelegen op een unieke hoeklocatie aan de Sloterkade. De hoekligging zorgt niet alleen voor veel lichtinval aan twee zijden, maar geeft het appartement ook een speelse indeling. Een extra luxe is de aanwezigheid van drie buitenruimten, ideaal om te genieten van het uitzicht en de buitenlucht.
Een bijzonder praktisch voordeel is dat het gebouw is uitgerust met een lift. Hierdoor kan men dagelijks kiezen: de lift of toch de trap. Doordat de lift op een andere plek is gesitueerd dan het trappenhuis, beschikt het appartement zelfs over twee entrees, wat flexibiliteit en gemak biedt.
De Sloterkade is een rustige straat met éénrichtingsverkeer en een prachtig uitzicht op het water. De omgeving biedt een breed scala aan faciliteiten, zoals gezellige koffietentjes en sfeervolle kroegjes. Zowel de Overtoom als de Amstelveenseweg liggen in de buurt en bieden een ruim aanbod aan sportscholen en yogastudio’s. Het Vondelpark, een van de meest geliefde parken van Amsterdam, bevindt zich op slechts steenworpafstand, wat de locatie extra aantrekkelijk maakt.


Judith de Jong | Makelaar Broersma Wonen
AM105778-1963128-Sloterkade-10-2,-Amsterdam-213802537
Designvisie

Sloterkade 10-11 heeft een rijke geschiedenis. Het gebouw, gerealiseerd in 1938, was tot de jaren ’60 de thuisbasis van de Mars-fabriek, bekend van de gevulde chocoladerepen. Op de begane grond bevond zich de fabriek, terwijl de verdiepingen erboven dienst deden als kantoorruimte en woongelegenheid met drie woningen. Na de Mars-fabriek huisvestte het pand jarenlang een drukkerij. Tegenwoordig wordt het gebouw volledig gebruikt als woonruimte.
Het pand ademt de karakteristieke sfeer van de jaren ’30, met zijn in baksteen gemetselde gevels en prachtige glas-in-lood elementen, die de charme van die periode perfect weerspiegelen.

AM105778-1963128-Sloterkade-10-2,-Amsterdam-213802533
AM105778-1963128-Sloterkade-10-2,-Amsterdam-213802581
AM105778-1963128-Sloterkade-10-2,-Amsterdam-213802579
AM105778-1963128-Sloterkade-10-2,-Amsterdam-213802583
Wonen en koken

Algemeen
Het appartement, gelegen op de tweede woonlaag, is zowel via de lift als de trap eenvoudig bereikbaar.

Wonen en koken
De royale living bevindt zich aan de voorzijde van het gebouw en biedt volop licht en uitzicht op het water. De grote raampartijen en de hoekligging zorgen voor een ruimtelijk gevoel en veel privacy. Aan de living grenst één van de buitenruimten, die met uitzicht op de Schinkel extra charme toevoegt.
De open keuken, uitgevoerd in een hoekopstelling, heeft een stoere uitstraling dankzij het gebruik van hout en roestvrij staal. De keuken is uitgerust met een koelkast/vriezer, vaatwasser en een gasfornuis met oven. In het appartement is gekozen voor een eiken vloer, terwijl de keuken is voorzien van praktische grijze tegels.

AM105778-1963128-Sloterkade-10-2,-Amsterdam-213802605
AM105778-1963128-Sloterkade-10-2,-Amsterdam-213802585
AM105778-1963128-Sloterkade-10-2,-Amsterdam-213802591
AM105778-1963128-Sloterkade-10-2,-Amsterdam-213802569
AM105778-1963128-Sloterkade-10-2,-Amsterdam-213802645
AM105778-1963128-Sloterkade-10-2,-Amsterdam-213802649
Slapen en baden

Het appartement beschikt over drie goed bemeten slaapkamers. De hoofdslaapkamer, met een oppervlakte van circa 20 m², biedt volop ruimte en comfort. De twee overige slaapkamers, gelegen aan de achterzijde, zijn ideaal als kinderkamer of werkkamer.
De badkamer is eenvoudig maar verzorgd, uitgevoerd in een lichte kleurstelling, en voorzien van een douche en wastafelmeubel. Het toilet is separaat. Daarnaast biedt de woning een interne berging met aansluitingen voor een wasmachine en droger.

AM105778-1963128-Sloterkade-10-2,-Amsterdam-213802563
AM105778-1963128-Sloterkade-10-2,-Amsterdam-213802587
AM105778-1963128-Sloterkade-10-2,-Amsterdam-213802667
AM105778-1963128-Sloterkade-10-2,-Amsterdam-213802659
AM105778-1963128-Sloterkade-10-2,-Amsterdam-213802573
AM105778-1963128-Sloterkade-10-2,-Amsterdam-213802575
AM105778-1963128-Sloterkade-10-2,-Amsterdam-213802655
De balkons

Dankzij de hoekligging en de speelse indeling beschikt dit appartement over drie buitenruimten. Aan de woonkamer grenst een balkon met uitzicht op de Schinkel, waar op zomerse dagen genoten kan worden van de langskomende boten. Het tweede balkon, gelegen aan de achterzijde, is een beschutte plek met uitzicht op de binnentuinen en is toegankelijk via twee slaapkamers. De loggia grenst zowel aan de keuken als aan de hoofdslaapkamer, wat het extra prettig maakt om op warme dagen de deuren open te zetten.

AM105778-1963128-Sloterkade-10-2,-Amsterdam-213802549
AM105005-1913539-Overtoom-310-2,-Amsterdam-195050137
AM105778-1963128-Sloterkade-10-2,-Amsterdam-213802529
Bereikbaarheid

Buurtgids
De buurt is ontwikkeld in de jaren 1920 als onderdeel van Plan West door de voormalige gemeente Sloten. De straatnamen verwijzen naar 19e-eeuwse schilders en locaties ten zuidwesten van Amsterdam. De Hoofddorppleinbuurt maakt deel uit van het stadsdeel Zuid van Amsterdam.
Deze buurt biedt tal van mogelijkheden voor liefhebbers van winkelen en lekker eten. Wen Conceptstore aan de Hoofddorpweg is een geweldige plek voor unieke cadeaus en stijlvolle accessoires. Daarnaast zijn er veel gezellige restaurants en cafés, zoals Gent aan de Schinkel, Oslo, Café Maurits en Nana’s Coffee aan het Hoofddorpplein.
Voor sport en ontspanning biedt de buurt diverse opties. Bij David Lloyd zijn uitgebreide fitnessfaciliteiten beschikbaar, en er zijn meerdere yogastudio’s in de omgeving. Deze locatie combineert een stijlvolle woonomgeving met de dynamiek van de stad, waardoor het een ideale plek is om te wonen en te genieten van alles wat Amsterdam te bieden heeft.
De buurt is ook zeer geschikt voor gezinnen, met veel speeltuinen in de directe omgeving. Het Vondelpark ligt om de hoek en is perfect voor een wandeling of work-out. Daarnaast bieden de wateren van de Westlandgracht en de Sloterkade mogelijkheden om een kleine boot aan te leggen, ideaal om de grachten van Amsterdam te verkennen. Wonen in de Hoofddorppleinbuurt biedt een dorpsachtige sfeer, terwijl je toch dicht bij de levendigheid van Zuid, Zuidas en West bent.
De Hoofddorppleinbuurt, inclusief de Sloterkade, is tegenwoordig een levendige wijk die een ideale mix biedt van rust, groen en stedelijke voorzieningen.

Bereikbaarheid
Het appartement is uitstekend bereikbaar per fiets, auto en openbaar vervoer. Trams 1 en 17 stoppen op slechts enkele minuten loopafstand. Daarnaast zijn er diverse buslijnen, zoals lijnen 15 en N88, die verbindingen bieden naar Sloterdijk, Station Zuid en Amsterdam Centraal. Met de auto bereik je de S106 en de ring A10 binnen vijf minuten. Schiphol ligt op slechts 15 minuten rijden.

Parkeren
Parkeren is mogelijk via een vergunningensysteem voor openbare straten (vergunningsgebied Zuid 2.3). Met een parkeervergunning voor Zuid 2.3 is parkeren ook toegestaan in Zuid-1, Zuid-2 en Zuid-8. Een parkeervergunning voor bewoners kost €192,81 per zes maanden.
Momenteel is er een wachttijd van drie maanden voor een parkeervergunning in deze buurt. Een tweede parkeervergunning is niet beschikbaar. (Bron: Gemeente Amsterdam, januari 2025).

AM105005-1913539-Overtoom-310-2,-Amsterdam-194467939
AM105778-1963128-Sloterkade-10-2,-Amsterdam-213802553
AM105778-1963128-Sloterkade-10-2,-Amsterdam-213802525
Kenmerken
Sloterkade 10-2, Amsterdam
Vraagprijs
  • € 790.000 k.k.
Beschikbaarheid
  • In overleg
Vertrekken
  • 4 kamers
  • 3 slaapkamers
  • 1 badkamer
Onderhoud
  • Intern: Goed
  • Extern: Goed
Oppervlakten & Inhoud
  • Woonoppervlakte: 112 m²
  • Gebouwgebonden buitenruimte: 9 m²
Bouwjaar
  • 1938
Installaties
  • Lift
  • TV kabel
Ligging
  • Aan water
  • Vrij uitzicht
Parkeren
  • Betaald parkeren
  • Parkeervergunningen
Type verwarming
  • CV Ketel
Type warmwater
  • CV Ketel
Bestemming
  • Woonruimte
Eigendomssoort
  • Volle eigendom
Buitenruimte
  • Geen tuin
  • Balkon
  • Loggia
Kadastraal
  • Gemeente: Sloten
  • Sectie: O
  • Nummer: 3143
Duurzaamheid
  • Gedeeltelijk dubbel glas
  • Energielabel E
Soort
  • Appartement
  • Bovenwoning
Welke woonlaag
  • 3e
Overige kenmerken
  • OZB ('24) € 366,37 per jaar
  • Rioolrecht ('24) € 185,20 per jaar
  • Servicekosten VvE € 349,17 per maand
  • Er zal een niet zelfbewonersclausule worden opgenomen
  • Vaste notaris: Lubbers & Dijk
  • Gelegen op eigen grond
Plattegrond
Sloterkade 10-2, Amsterdam
AM105778-1963128-Sloterkade-10-2,-Amsterdam-209526203
AM105778-1963128-Sloterkade-10-2,-Amsterdam-209526205
Documenten
Sloterkade 10-2, Amsterdam
Locatie
Sloterkade 10-2, Amsterdam
Interieur
Schermafbeelding-2018-06-26-om-15.18.30-e1530019385389
01
Adres
Amstelveenseweg 39,
1054 MC Amsterdam

Eginstill

Eginstill is een bijzonder collectief, gespecialiseerd in interieurdesign. Het grote team aan leden, van ambachtsmannen tot aan de creatief leider Frans Pahlplatz, voorziet enthousiastelingen van workshops waarin alle interieur wensen waar kunnen worden gemaakt. Deze processen worden zo duurzaam mogelijk gemaakt, door het gebruik van recyclebare materialen zoals staal en hout van een familiebedrijf in Finland. Eginstill wil het liefste alle projecten zo uniek maken als hun klanten en dit doen ze met passie. Ook voor de lekkere bak koffie kan je hier goed terecht en er is genoeg om tijdens het nuttigen naar te kijken!

dis-studio-Boffi-family-home-18.jpg
DB_111013_13402.png
02
Adres
Amstelveenseweg 2,
1075 XH Amsterdam

DIS Studio

DIS Studio is een designbureau, interieurwinkel en showroom in één. DIS Studio is opgezet door Daniela Germone en Dis Abhelakh. Zij werkten beide voor het Italiaanse interieurmerk Boffi en zijn sinds 2004 samen eigenaar van een eigen studio in Amsterdam. Je kunt bij DIS Studio terecht voor interieusdesign voor je hele huis; van keukens tot stoelen tot tafellampen. Hoewel Daniele en Dis graag werken met strakke Italiaanse designs en natuursteen worden kleine imperfecties niet vermeden. Volgens hen zorgen juist die kleine imperfecties voor een warme en huiselijke sfeer. In de showroom van DIS Studio worden uitsluitend producten getoond van Italiaanse merken. Het is ook de enige plek in Nederland die producten van het merk Boffi verkoopt.

studio3000-vintage-objects
03
Adres
Derde Kostverlorenkade 35,
1054 TS Amsterdam

Studio 3000

Studio 3000 is een multifunctionele creatieve ruimte. De studio is opgericht in 2020 door Nurcan Tuzkapan en is gevestigd lang de Derde Kostverlorenkade. In de studio worden design meubels getoond, verkocht en verhuurd. Naast vintage designmeubels vind je hier ook een fotografiestudio. Op haar instagramkanaal houdt Nurcan haar volgers op de hoogte van haar nieuwste vondsten en geplande event. Als je geïnteresseerd bent in creatieve projecten en design, is het zeker aan te raden om het platform van Nurcan in de gaten te houden.

358014390_18301446502098195_6874054696510138290_n
04
Adres
Baarsjesweg 276 H,
1058 AD Amsterdam

Cocoon house Amsterdam

Cocoon house Amsterdam is de plek waar je 20e-eeuwse antiek, designstukken en kunst ontdekt. De focus ligt op unieke en goed ontworpen stukken die gebruikt kunnen worden om stijlvolle en individuele interieurs te creëren. De verzamelaar, Sander van Eyck, is interieur- en productontwerper. Hij heeft zijn eigen collectie meubels en verlichting onder de naam: 'Made by Sander'.

790bff16-5b71-4696-a026-427311b3e8b2
05
Adres
Koninginneweg 271,
1075 CW Amsterdam

Teunis Veenema

Teunis Veenema is een pareltje in het hart van Amsterdam-Zuid. Aan de Koninginneweg kun je sinds 2009 terecht voor de mooiste boeketten en planten. Teunis Veenema is geen doorsnee bloemenwinkel maar een winkel waar met je mee wordt gedacht om het mooiste resultaat te behalen zowel particulier of zakelijk. Daarbij biedt hun website de mogelijkheid om geheel gepersonaliseerde boeketten te bestellen voor uzelf of voor anderen.

Eten & drinken
1500-x-1000-pxl5-1024×683
06
Adres
Overtoom 515,
1054 LN Amsterdam

Adam

Alle gerechten zien er fraai uit, zonder overdreven gedoe. Ook de smaken doen zich gelden: eerlijk, spannend en in balans. Al snel in ons menu komen we een topper tegen: perfect gegaarde griet met een fris-ziltige oestervinaigrette, komkommerlinten, amandelcrème, een bite van gefrituurde vishuid en een saus van nori. Even tongstrelend: een perfect stukje lam van de Big Green Egg, bereid met chorizo en geserveerd met twee heerlijke sauzen.’

downloadgram.org_505199169_17968221128916987_8853914751551748836_n
07
Adres
J.J. Cremerplein 34H,
1054 TL Amsterdam

Taal Coffee

Taal Coffee is een koffiezaak in Amsterdam-West, opgericht door Aleksandra Fedorova, die na jaren ervaring in de koffiewereld haar eigen plek wilde creëren rond ontmoeting en aandacht. De naam verwijst naar de manier waarop smaak en gesprek mensen verbinden, en dat idee vormt het hart van de zaak. Hier draait het om zorgvuldig bereide espresso’s en filterkoffie, met bonen van kleine branders en seizoensgebonden dranken. Naast koffie worden er ambachtelijke zoetigheden geserveerd, in een ruimte waar buurtbewoners graag blijven zitten om te werken of bij te praten.

243487692_916456538963690_7976686809274757497_n
08
Adres
Overtoom 445,
1054 KG Amsterdam

Focacceria

De Italiaanse Valeria Lucente vindt de Italiaanse restaurants in Amsterdam verrassend goed, maar ze heeft wel heimwee naar de smaken van thuis. Vooral de focaccia uit haar streek. Dit delicate platbrood, ongeveer twee centimeter dik, is luchtig, vettig en zo zacht als een wolk. In tegenstelling tot focaccia uit andere Italiaanse regio's heeft de genovese-variant geen knapperige, maar een zachte bovenkant. Dit komt door voor het bakken het deeg te bestrijken met olijfolie, water en zout. Vooral in Genua wordt focaccia genoten bij elk eetmoment en dat kan nu dus ook in Amsterdam.

306001211_969230534472634_2320247204275062774_n
09
Adres
Warmondstraat 120,
1058 KZ Amsterdam

Caffènation

De bekendste koffiebranderij van Antwerpen heeft nu ook zijn deuren geopend in de Schinkelbuurt van Amsterdam. De kenmerkende Belgische stijl van Caffenation is duidelijk te herkennen in de inrichting van de koffiebar, die uit twee verdiepingen bestaat en ruime zitgelegenheid biedt. Opvallende decorstukken zijn overal te vinden, maar de absolute blikvanger bij binnenkomst is de indrukwekkende espressomachine van Kees van der Westen. De koffie, bereid met de Synesso MVP Hydra-espressomachine is van goede kwaliteit  en de sfeer is ontspannen. Bovendien biedt Caffenation wekelijks twee verschillende soorten verse bonen aan.

000049
10
Adres
Amstelveenseweg 158-160,
1075 XN Amsterdam

Restaurant Blauw

Aan de Amstelveenseweg ligt het Indonesische restaurant Blauw. In tegenstelling wat de naam doet verwachten, is het hele interieur rood. De rijsttafels bij restaurant Blauw zijn bij beide locaties identiek (Amsterdam en Utrecht), maar de rest van het menu is per vestiging uniek. De chefs stellen zelf hun ultieme authentieke Indonesische belevingen samen op basis van hun eigen inspiratie en invloeden.

202010SOTTO82-1400×934
11
Adres
Amstelveenseweg 89,
1075 VW Amsterdam

Sotto Pizza

Sotto Pizza is één van de top 10 Italiaanse restaurants in Amsterdam. Het restaurant opende haar deuren in 2021, maar is sindsdien een begrip onder de pizza-liefhebbers. De diverse keuze is een weergave van de kundigheid van de koks, maar hun klassieke Margherita is onverslaanbaar. Het interieur heeft iets weg van een moderne Spaanse tapasbar, met een fijne sfeer. Je kan bij Sotto uitgebreid tafelen of snel een pizza eten aan de bar. Het personeel is behulpzaam en vriendelijk.

12
Adres
Rhijnvis Feithstraat,
1054 TT Amsterdam

De Figurantenbar

Een buurtkroeg zoals die hoort te zijn; fijne bediening, leuke mensen, lekkere wijntjes en veel gezelligheid. Met de buurtbewoners voetbal kijken, aan een popquiz meedoen of naar livemuziek luisteren. Het aanbod is divers en gezellig.

vierkantjes-website-4
278159011_532942278401509_462089035820605652_n
13
Adres
Sophialaan 55,
1075 BP Amsterdam

Ron Gastrobar (*)

Bij Ron Blaauw's eerste gastrobar in Amsterdam gaat een laagdrempelige sfeer hand in hand met een Michelinster. Stijl en gezelligheid komen samen voor een smakelijke ervaring. Van details tot amuses, cocktails, broodjes op tafel, nieuwe gerechtjes, heerlijke wijnen en attente service. Alles draait om het credo: "uit eten gaan moet een feestje zijn''.Voor BBQ-liefhebbers is er zelfs een apart gedeelte op de menukaart. Uiteraard ontbreken de klassiekers, zoals de spareribs "The Original," niet; een gerecht dat altijd zal blijven.

8-Neapolitan-Pizza-Bar
14
Adres
Wilhelminastraat 153HS,
1054 WC Amsterdam

Pizza Project

Het begon met een pizzaoven in hun achtertuin. Elke vrijdag stond er een rij voor hun woning met vrienden en familie die een pizza kwamen halen. Inmiddels hebben Idske en Bas twee vestigingen en een foodtruck. Het geheim? Het deeg 48 uur laten rijzen waardoor de bodem luchtig wordt en de pizza minder zwaar op de maag ligt. In het weekend worden er ook broodjes voor de lunch geserveerd.

featured-gallery-0
15
Adres
Koninginneweg 212,
1075 EL Amsterdam

Simply Fish

Simply Fish is gelegen in Oud-Zuid aan de Koninginneweg. Zoals de naam al doet vermoeden is het restaurant gespecialiseerd in het bereiden van vis. Echtpaar Jan en Francis Rijk bezaten voorheen eenzelfde soort restaurant in Zeeland, een welbekende provincie voor overheerlijke vis en zeevruchten. Op het menu kan je onder andere fruit de mer, garnalenkroketjes, oesters en hun beroemde kreeftenbisque vinden.

downloadgram.org_599174450_17869878831481062_7625921310109593583_n
downloadgram.org_584414906_17867642610481062_6913260930332692383_n
16
Adres
Staringplein 22,
1054 VL Amsterdam

Gorgo Lunchroom

Gorgo is opgezet door Rifat Ergor en Berkutay Gunel, die negen jaar geleden samen Istanboel verlieten en in Amsterdam hun droom van een eigen zaak realiseerden. Ergor is architect, Gunel creative director, en die creatieve blik voel je in alles: van het licht in de ruimte tot de manier waarop de keuken wordt benaderd. Hun lunchroom is geïnspireerd op Anatolië en omschrijven ze zelf als 'neither East nor West', een plek waar Turkse, Arabische, Perzische, Armeense en Griekse invloeden samenkomen. Op de kaart staan eigenzinnige gerechten zoals tosti’s met kavurma, tahini en honing, sesamkoekjes vol verschillende sesamvarianten en drankjes als sumac-limonade en hoşaf-kombucha.

17
Adres
Hoofddorpplein 6H,
1058 PD Amsterdam

Buno Coffee

Schermafbeelding 2022-06-20 om 12.06.45
18
Adres
Wilhelminastraat 109,
1054 WB Amsterdam

Barrica

Bij Barrica kan je terecht voor wijn en eten. Je begeeft je hier in Mediterrane sferen met een Italiaanse en Spaanse wijn- en menukaart én het warme, gezellige interieur. Je kan kiezen voor shared dining met een soort mix tussen tapas en antipasti. Zo kan je van alles wat proeven, van burrata en lasagne tot kabeljauw in tomatensaus. Een sfeervol restaurant met goede wijnen en heerlijk eten.

321951658_745210986479092_3482688388092291829_n
264585813_916339462605248_793857125163270911_n
19
Adres
Amstelveenseweg 226h,
1075 XT Amsterdam

Bonnie

Bonnie, een charmante bistro gelegen in Amsterdam-Zuid. Bij Bonnie draait alles om genieten; van lekkere maaltijden tot zorgvuldig geselecteerde wijnen die perfect aansluiten. Vooral de Bonnie's double cheeseburger is een aanrader. De ambiance zorgt ervoor dat je je al snel op je gemak voelt. Een lunch hier kan gemakkelijk overgaan in een gezellige borrel, waardoor je het gevoel krijgt dat je eigenlijk helemaal niet meer weg wil.

360349188_243934825182799_7735494007192255831_n
20
Adres
Hoofddorpplein 1,
1059 CV Amsterdam

Café Maurits

Café Maurits, gelegen op het Hoofddorpplein in Amsterdam-Zuid, biedt een veelzijdige ervaring als bar, café en restaurant. Hier worden eigentijdse gerechten geserveerd, zowel à la carte als in een chefsmenu, zonder fratsen zoals schuimpjes of gelletjes, maar met de ambiance van een modern café. Het hoekpand beschikt over een aangenaam terras en een lichte, uitnodigende sfeer.  Het interieur is smaakvol ingericht met veel houtaccenten en spiegels die de ruimte vergroten en verlichten. De verfijnde menukaart, samengesteld door chef Boy van Rijn, biedt diners een uitstekende culinaire ervaring, compleet met bijpassende wijnen.

344958756_744684200721961_1937864838698341245_n
350812931_924913161950865_6719435353221097677_n
21
Adres
Hoofdweg 141,
1057 CN Amsterdam

Restaurant Felperlaan

Recent heeft Restaurant Felperlaan zijn deuren geopend in de Baarsjes. De eigenaren zijn bekend van Café Mundi. Eigenaresse Lila, en haar partner Benten willen kunstenaars uit de buurt de mogelijkheid bieden om hun kunst te exposeren. Het restaurant is een bruisende buurtstek met de focus op goed eten en een toegankelijke sfeer. Het dagmenu, seizoensgebonden en geprijsd tussen de 39 en 49 euro, wordt om de drie à vier weken vernieuwd. Daarnaast biedt het restaurant een (borrel)hapjeskaart met vaste items zoals oesters, huisgemaakte paté (ook vegetarisch) en diverse vegetarische gerechten. De keuken combineert invloeden uit Zuid-Frankrijk, Noord-Italië en Spanje.

Boodschappen
103079443_3573633532650074_4867610338365611728_n
22
Adres
Amstelveenseweg 75,
1075 CE Amsterdam

Patisserie Linnick

Patisserie Linnick wordt bestierd door het  Amstelveense koppel Linda en Nick. Zij leerden elkaar kennen in Patisserie Holtkamp en werden verliefd. In 2014 werd hun droom werkelijkheid: een eigen patisserie waar zij hun kunstwerkjes aan het publiek kunnen tonen. Met passie en ambacht werken zij elke dag aan de prachtige gebakjes en chocolade die zij vervolgens in de vitrines etaleren. Patisserie Linnick werkt met hoogwaarde ingrediënten zoals de Valrhona chocolade uit Tain-l’Hermitage in Hermitage. De heerlijke zoete traktaties van Patisserie Linnick zul je niet snel vergeten.

Schermafbeelding 2022-06-20 om 12.19.42
23
Adres
Overtoom 444,
1054 JW Amsterdam

Chabrol

Al meer dan dertig jaar is Chabrol een gevestigde wijnwinkel in Amsterdam en omstreken. Chabrol is gegroeid van een kleine wijnwinkel in de buurt naar een importeur van unieke, organische wijnen. De wijnen worden met een passie voor wijn en het verhaal achter de wijn geselecteerd. Dat kan je bijvoorbeeld lezen in de nieuwsbrief waar ze over iedere wijn een verhaal schrijven zodat de echte wijnliefhebber alles te weten komt. Je kan bij Chabrol voor een hele brede variatie aan wijnen terecht, zowel voor een wijntje voor doordeweeks als een wijn voor speciale momenten.

40696884_263976027789595_4869878192174792704_n
24
Adres
Koninginneweg 255,
1075 CV Amsterdam

Wijnhuis Amsterdam

Hoewel ze bij Wijnhuis Amsterdam al meer dan 25 jaar professioneel wijn proeven en selecteren, is het wijnhuis in Amsterdam een vrij recente toevoeging aan hun verhaal.  Na talloze proefsessies waren ze zo enthousiast over de Duitse wijnen dat ze maar al te graag de wijnen een platform wilden geven binnen Nederland. Zo openden ze in mei 2018 Wijnhuis.Amsterdam, met in eerste instantie slechts drie eigen importen uit Duitsland. Inmiddels vertegenwoordigen ze een indrukwekkend assortiment van twintig Duitse wijnmakers, drie uit Oostenrijk en één uit Luxemburg. Bij het selecteren van de wijnen is elegantie, de drinkbaarheid, lage alcoholpercentages en een minimale interventie in het productieproces belangrijk.

25
Adres
Hoofddorpweg 27,
1059 CT Amsterdam

Cow Project

Met het motto ‘bewust bourgondisch’ onderscheidt slagerij Cow Project zich van andere slagerijen. Het draait hier om lekker eten op een bewuste manier. De herkomst van het vlees is bekend en de slager draagt grote zorg voor een goed leven voor de dieren. Zo zijn de lammeren van Texel, de kip van de Blije Ilper en de varkens behoren tot de Porc au Grain varkens. Naast slagerij is het ook een delicatessenzaak met allerlei lekkere dingen zoals tapas.

Samengesteld; slim ingedeelde appartementen met het comfort van een suite.

Samengesteld; slim ingedeelde appartementen met het comfort van een suite.

Broersma Arthouse 28/29 Maart 2026

Broersma Arthouse 28/29 Maart 2026

‘The house of Art’; eclectisch wonen in een huis uit 1715 aan een van de beroemdste grachten van Amsterdam

‘The house of Art’; eclectisch wonen in een huis uit 1715 aan een van de beroemdste grachten van Amsterdam

Onlangs bekeken
Bekijk het overzicht

Deze site maakt gebruik van cookies.

Voor welke cookies geef je akkoord?