Heerlijk wonen in een licht en ruim opgezet dubbel benedenhuis. Het appartement heeft drie slaapkamers en een tuin aan het Vondelpark. 

Een rondleiding

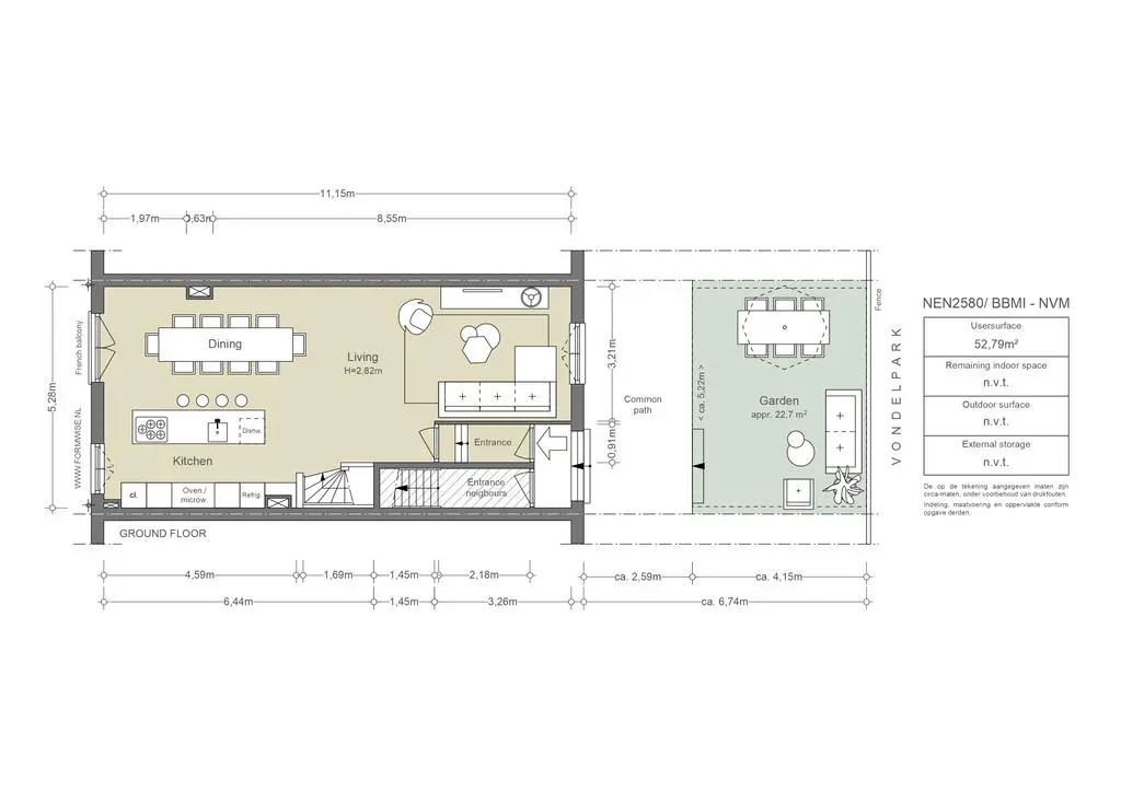
De begane grond
De besloten tuin aan de voorzijde geeft toegang tot de eigen entreedeur en hal. Aan de voorzijde bevindt zich de lichte en ruime woonkamer. Aan de achterzijde bevindt zich het eetgedeelte met volledig ingerichte open keuken en kookeiland. De trap naast de keuken gaat naar de benedenverdieping. 

Het souterrain 
De hoofdslaapkamer bevindt zich aan de voorzijde met vaste kasten over de lengte. De grote badkamer is voorzien van een ligbad, inloopdouche en dubbele wastafel. De tweede slaapkamer aan de achterzijde heeft een eigen serre. Verder is er een derde slaapkamer en in de hal bevinden zich een separaat toilet, een berging en een wasmachine- en drogerberging.

De buitenruimte
Het huis heeft een besloten zonnige tuin op het zuiden, en het unieke is dat het grenzend is aan het Vondelpark. 

De omgeving en bereikbaarheid
Gelegen in een centrale locatie aan het Vondelpark ten opzichte van Zuid, West en het Centrum. Nabij de Overtoom en de Jan Pieter Heijestraat waar een divers aanbod van winkels, restaurants, terrassen, traiteurs en koffietentjes te vinden is. 

De woning is met alle vervoersmiddelen goed bereikbaar en op loopafstand van de tramlijnen 1 en 7. De ring A10 is binnen enkele minuten te bereiken.

De parkeergelegenheid
Bewoners kunnen een parkeervergunning aanvragen bij de gemeente. 

De bijzonderheden 
- Beschikbaar: januari 2025;
- Huurprijs: € 4.150,- excl. per maand;
- Huurperiode: Model A, onbepaalde tijd, min. 12 maanden;
- Borg: 2 maanden huur;
- Gestoffeerd.

Kenmerken
Saxenburgerstraat 30H, Amsterdam
Huurprijs
  • € 4.150 per maand
Beschikbaarheid
  • Per datum
Vertrekken
  • 5 kamers
  • 3 slaapkamers
Onderhoud
  • Intern: Goed tot uitstekend
  • Extern: Goed tot uitstekend
Oppervlakten & Inhoud
  • Woonoppervlakte: 115 m²
  • Gebouwgebonden buitenruimte: 23 m²
  • Tuinoppervlakte: 23 m²
Bouwjaar
  • 1881
Ligging
  • Aan park
  • Aan rustige weg
  • Beschutte ligging
Parkeren
  • Betaald parkeren
  • Openbaar parkeren
  • Parkeervergunningen
Type verwarming
  • CV Ketel
Type warmwater
  • CV Ketel
Bestemming
  • Woonruimte
Buitenruimte
  • Patio atrium
  • Voortuin
Duurzaamheid
  • Dubbel glas
Soort
  • Appartement
  • Bel-etage
  • Benedenwoning
Bijzonderheden
  • Gestoffeerd
Plattegrond
Saxenburgerstraat 30H, Amsterdam
AM105941-1948732-Saxenburgerstraat-30H,-Amsterdam-207848837
AM105941-1948732-Saxenburgerstraat-30H,-Amsterdam-207848841
Documenten
Saxenburgerstraat 30H, Amsterdam
Locatie
Saxenburgerstraat 30H, Amsterdam
Eten & drinken
243487692_916456538963690_7976686809274757497_n
01
Adres
Overtoom 445,
1054 KG Amsterdam

Focacceria

De Italiaanse Valeria Lucente vindt de Italiaanse restaurants in Amsterdam verrassend goed, maar ze heeft wel heimwee naar de smaken van thuis. Vooral de focaccia uit haar streek. Dit delicate platbrood, ongeveer twee centimeter dik, is luchtig, vettig en zo zacht als een wolk. In tegenstelling tot focaccia uit andere Italiaanse regio's heeft de genovese-variant geen knapperige, maar een zachte bovenkant. Dit komt door voor het bakken het deeg te bestrijken met olijfolie, water en zout. Vooral in Genua wordt focaccia genoten bij elk eetmoment en dat kan nu dus ook in Amsterdam.

downloadgram.org_599174450_17869878831481062_7625921310109593583_n
downloadgram.org_584414906_17867642610481062_6913260930332692383_n
02
Adres
Staringplein 22,
1054 VL Amsterdam

Gorgo Lunchroom

Gorgo is opgezet door Rifat Ergor en Berkutay Gunel, die negen jaar geleden samen Istanboel verlieten en in Amsterdam hun droom van een eigen zaak realiseerden. Ergor is architect, Gunel creative director, en die creatieve blik voel je in alles: van het licht in de ruimte tot de manier waarop de keuken wordt benaderd. Hun lunchroom is geïnspireerd op Anatolië en omschrijven ze zelf als 'neither East nor West', een plek waar Turkse, Arabische, Perzische, Armeense en Griekse invloeden samenkomen. Op de kaart staan eigenzinnige gerechten zoals tosti’s met kavurma, tahini en honing, sesamkoekjes vol verschillende sesamvarianten en drankjes als sumac-limonade en hoşaf-kombucha.

03
Adres
Rhijnvis Feithstraat,
1054 TT Amsterdam

De Figurantenbar

Een buurtkroeg zoals die hoort te zijn; fijne bediening, leuke mensen, lekkere wijntjes en veel gezelligheid. Met de buurtbewoners voetbal kijken, aan een popquiz meedoen of naar livemuziek luisteren. Het aanbod is divers en gezellig.

downloadgram.org_505199169_17968221128916987_8853914751551748836_n
04
Adres
J.J. Cremerplein 34H,
1054 TL Amsterdam

Taal Coffee

Taal Coffee is een koffiezaak in Amsterdam-West, opgericht door Aleksandra Fedorova, die na jaren ervaring in de koffiewereld haar eigen plek wilde creëren rond ontmoeting en aandacht. De naam verwijst naar de manier waarop smaak en gesprek mensen verbinden, en dat idee vormt het hart van de zaak. Hier draait het om zorgvuldig bereide espresso’s en filterkoffie, met bonen van kleine branders en seizoensgebonden dranken. Naast koffie worden er ambachtelijke zoetigheden geserveerd, in een ruimte waar buurtbewoners graag blijven zitten om te werken of bij te praten.

1500-x-1000-pxl5-1024×683
05
Adres
Overtoom 515,
1054 LN Amsterdam

Adam

Alle gerechten zien er fraai uit, zonder overdreven gedoe. Ook de smaken doen zich gelden: eerlijk, spannend en in balans. Al snel in ons menu komen we een topper tegen: perfect gegaarde griet met een fris-ziltige oestervinaigrette, komkommerlinten, amandelcrème, een bite van gefrituurde vishuid en een saus van nori. Even tongstrelend: een perfect stukje lam van de Big Green Egg, bereid met chorizo en geserveerd met twee heerlijke sauzen.’

8-Neapolitan-Pizza-Bar
06
Adres
Wilhelminastraat 153HS,
1054 WC Amsterdam

Pizza Project

Het begon met een pizzaoven in hun achtertuin. Elke vrijdag stond er een rij voor hun woning met vrienden en familie die een pizza kwamen halen. Inmiddels hebben Idske en Bas twee vestigingen en een foodtruck. Het geheim? Het deeg 48 uur laten rijzen waardoor de bodem luchtig wordt en de pizza minder zwaar op de maag ligt. In het weekend worden er ook broodjes voor de lunch geserveerd.

Schermafbeelding 2022-06-20 om 12.06.45
07
Adres
Wilhelminastraat 109,
1054 WB Amsterdam

Barrica

Bij Barrica kan je terecht voor wijn en eten. Je begeeft je hier in Mediterrane sferen met een Italiaanse en Spaanse wijn- en menukaart én het warme, gezellige interieur. Je kan kiezen voor shared dining met een soort mix tussen tapas en antipasti. Zo kan je van alles wat proeven, van burrata en lasagne tot kabeljauw in tomatensaus. Een sfeervol restaurant met goede wijnen en heerlijk eten.

300884117_172675551991923_5973370947242380801_n
08
Adres
Eerste Helmersstraat 174H,
1054 EK Amsterdam

Mr. Gyoza

Het restaurant biedt naast de traditionele varkensvlees gyoza ook vegetarische en veganistische opties, waaronder roze bietengyoza. Daarnaast staan er verschillende bijgerechten en desserts op de kaart, zoals gefrituurde kip, ramen noedels en groene thee ijs. Het interieur van Mr. Gyoza is modern en gezellig, met een open keuken waar je de koks aan het werk kunt zien.

 

 

Gitane-NinaSlagmolen-10juli2023-188-1365×2048
329963219_8769040973168667_1375211572719675553_n
09
Adres
Jan Pieter Heijestraat 146,
1054 MK Amsterdam

Gitane

Angelo Kremmydas, zowel chef als eigenaar, kookt enkel met de meest verse en seizoensgebonden ingrediënten. Het menu weerspiegelt zijn visie en biedt een bescheiden en verfijnde selectie eigentijdse à la carte-gerechten. Hier geen ingewikkelde setmenu's; in plaats daarvan heb je de vrijheid om precies te bestellen waar je op dat moment naar verlangt. Angelo's mediterrane achtergrond schittert in elk gerecht. Naast het smaakvolle menu is er een uitgebreide wijnkaart.

271553756_4698050586938795_6728215580262896284_n
61044194_2189624581114754_5141080698035109888_n
10
Adres
Jan Pieter Heijestraat 121,
1054 ME Amsterdam

Flo's Appetizing

Bij Flo's Appetizing ben je aan het juiste adres voor handgemaakte Amerikaanse bagels. Eigenaresse Heather Eddy maakt elke dag met passie de meest verse bagels met gevarieerde toppings voor je klaar. Favoriet is de pastrami of gegrilde kaas en ei.

11
Adres
Overtoom 255H,
1054 HW Amsterdam

Tamari Ya

Tamari Ya is opgezet door Imoto Yoshihisa en Yazawa Yuji, twee Japanse ondernemers die in hun dorp bij Hiroshima een farm-stay retreat begonnen en daar in 2023 hun eerste donutshop openden om hun gemeenschap nieuw leven in te blazen. Vanuit hun liefde voor rijst ontwikkelden ze de komeko-donut, gemaakt van rijstmeel uit eigen regio en daardoor van nature glutenvrij. In Amsterdam worden de donuts dagelijks met de hand gemaakt en gefrituurd in rijstolie, zonder conserveermiddelen of kleurstoffen. De textuur is anders dan je gewend bent: minder fluffy, meer chewy, met varianten als old fashioned of yeast-raised in smaken als matcha, zwarte sesam en pistache. De rustige, houtgedomineerde winkel op de Overtoom voelt als een stukje Japans platteland in de stad, waar aandacht voor eten en omgeving centraal staat.

downloadgram.org_612064080_18088618793472192_8522096381989837072_n
downloadgram.org_503799539_18064983656472192_5322203112114680114_n
12
Adres
Jacob Van Lennepkade 334D,
1053 NJ Amsterdam

Bon Burger

Bon Burger is de nieuwe zaak van Freek Kattenberg, bekend van Bottleshop in Oost, die met dit concept zijn liefde voor burgers en natuurwijn samenbrengt. Na jaren van succesvolle burgerpop-ups in Bottleshop besloot hij dat het tijd was voor een vaste plek in West, op de geliefde vlonder aan de Jacob van Lennepkade. Kattenberg gelooft dat juist iets simpels als een hamburger goed uitvoeren een vak is, en dat zie je terug in zijn focus op grilltechniek en kwaliteit. Het vlees komt van Nederlandse dubbeldoelkoeien, die eerst als melkkoe hebben geleefd en daardoor duurzamer en smaakvoller zijn. Bon Burger voelt als een ontspannen buurtplek waar kenners en nieuwsgierige voorbijgangers samenkomen voor burgers, wijn en lange avonden aan het water.

312175149_2011502502368624_2613652535986311070_n
13
Adres
Koninginneweg 34,
1075 CZ Amsterdam

Tozi

TOZI betekent in Venetiaans dialect ‘een groep vrienden’, en dat voel je direct als je binnenkomt. Het is net alsof je terecht komt in één grote familie. De kaart toont een selectie van kleine Venetiaans geïnspireerde gerechten om te delen, bekend als cicchetti. Met een Italiaanse wijnkaart en een cocktailbar met Italiaanse gins en negroni's.

 

362085173_18198336283252516_5120199989074488114_n
14
Adres
Willemsparkweg 220hs,
1071 HX Amsterdam

Restaurant Visque

Op het prachtige hoekje van Amsterdam Zuid bevindt zich Restaurant Visque, waar vis de hoofdrol speelt. Onze menukaart is flexibel en afhankelijk van de dagelijkse keuze voor de meest verse en smaakvolle producten. Chef Menno geeft een eigen twist aan eenvoudige Franse gerechten, zoals coquilles, Hollandse garnalen, sliptong en onze bekende Tuna Wellington.

366416263_660727485939210_4584064804028118782_n
15
Adres
Valeriusplein 4A,
1075 BG Amsterdam

Juliette

In Amsterdam Zuid  kun je bij Juliette genieten van ontbijt en lunch in de zon. Het menu is gebaseerd op verse ingrediënten van lokale leveranciers en wordt dagelijks samengesteld op basis van wat er op de markt beschikbaar is. Denk aan gerechten zoals de Porco Rosso: mortadella, stracciatellakaas, Spaanse guindillapepers en rode pesto. Voor het diner of een borrel kan je terecht bij buurman Bar Jules. De focus ligt op Zuid-Europese gerechten zoals pizzetta's, pata negra en geroosterde octopus.

16
Adres
Valeriusstraat 128B,
1075 GD Amsterdam

Castell Zuid

Castell Zuid is de stijlvolle nieuwe vestiging van het iconische Amsterdamse grillrestaurant Castell, gevestigd aan de Valeriusstraat in Oud-Zuid. Waar het origineel in het centrum bekendstaat om zijn no-nonsense steaks en late diners, brengt deze locatie dezelfde smaken in een verfijnde setting. “Same taste, same vibe, different look” luidt het motto – en dat klopt: herkenbaar en toch helemaal nieuw.

000049
17
Adres
Amstelveenseweg 158-160,
1075 XN Amsterdam

Restaurant Blauw

Aan de Amstelveenseweg ligt het Indonesische restaurant Blauw. In tegenstelling wat de naam doet verwachten, is het hele interieur rood. De rijsttafels bij restaurant Blauw zijn bij beide locaties identiek (Amsterdam en Utrecht), maar de rest van het menu is per vestiging uniek. De chefs stellen zelf hun ultieme authentieke Indonesische belevingen samen op basis van hun eigen inspiratie en invloeden.

Boodschappen
Schermafbeelding 2022-06-20 om 12.19.42
18
Adres
Overtoom 444,
1054 JW Amsterdam

Chabrol

Al meer dan dertig jaar is Chabrol een gevestigde wijnwinkel in Amsterdam en omstreken. Chabrol is gegroeid van een kleine wijnwinkel in de buurt naar een importeur van unieke, organische wijnen. De wijnen worden met een passie voor wijn en het verhaal achter de wijn geselecteerd. Dat kan je bijvoorbeeld lezen in de nieuwsbrief waar ze over iedere wijn een verhaal schrijven zodat de echte wijnliefhebber alles te weten komt. Je kan bij Chabrol voor een hele brede variatie aan wijnen terecht, zowel voor een wijntje voor doordeweeks als een wijn voor speciale momenten.

Schermafbeelding 2022-06-20 om 12.29.03
2_levain-et-le-vin
19
Adres
Jan Pieter Heijestraat 168,
1054 ML Amsterdam

Levain et le vin

In deze hippe bakkerij in Oud-West proef je het meest heerlijke zuurdesem brood, en zijn ze gespecialiseerd in natuurwijn. In de bakkerij wordt elke dag op natuurlijke wijze zuurdesem gemaakt en kan je er heerlijke koffies drinken gemaakt door barista's die weten wat ze doen. Ze hebben overheerlijke focaccias en een echte aanrader is de kaneelbrioche. Als je een avond lekker gaat borrelen is Levain et Levin de plek waar je naartoe moet. Het personeel dat er werkt weet wat ze verkopen, dus tips vragen is een aanrader!

20
Adres
Overtoom 239,
1054 HV Amsterdam

Olivity

Olivity staat bekend om olijfolie en delicatessen, maar er is veel meer dan alleen dat! Olivity verkoopt niet alleen heerlijke Griekse producten van producenten uit heel Griekenland, maar gebruikt de keuken ook om workshops te houden. Gezellig met vrienden of collega’s biedt dit een unieke kans om kennis te maken met de geheimen van de Griekse keuken en alle authentieke Griekse bites. Mocht je liever een event houden? Dat kan ook, voor zowel kleine en grote groepen van brunch tot diner.

103079443_3573633532650074_4867610338365611728_n
21
Adres
Amstelveenseweg 75,
1075 CE Amsterdam

Patisserie Linnick

Patisserie Linnick wordt bestierd door het  Amstelveense koppel Linda en Nick. Zij leerden elkaar kennen in Patisserie Holtkamp en werden verliefd. In 2014 werd hun droom werkelijkheid: een eigen patisserie waar zij hun kunstwerkjes aan het publiek kunnen tonen. Met passie en ambacht werken zij elke dag aan de prachtige gebakjes en chocolade die zij vervolgens in de vitrines etaleren. Patisserie Linnick werkt met hoogwaarde ingrediënten zoals de Valrhona chocolade uit Tain-l’Hermitage in Hermitage. De heerlijke zoete traktaties van Patisserie Linnick zul je niet snel vergeten.

Interieur
studio3000-vintage-objects
22
Adres
Derde Kostverlorenkade 35,
1054 TS Amsterdam

Studio 3000

Studio 3000 is een multifunctionele creatieve ruimte. De studio is opgericht in 2020 door Nurcan Tuzkapan en is gevestigd lang de Derde Kostverlorenkade. In de studio worden design meubels getoond, verkocht en verhuurd. Naast vintage designmeubels vind je hier ook een fotografiestudio. Op haar instagramkanaal houdt Nurcan haar volgers op de hoogte van haar nieuwste vondsten en geplande event. Als je geïnteresseerd bent in creatieve projecten en design, is het zeker aan te raden om het platform van Nurcan in de gaten te houden.

358014390_18301446502098195_6874054696510138290_n
23
Adres
Baarsjesweg 276 H,
1058 AD Amsterdam

Cocoon house Amsterdam

Cocoon house Amsterdam is de plek waar je 20e-eeuwse antiek, designstukken en kunst ontdekt. De focus ligt op unieke en goed ontworpen stukken die gebruikt kunnen worden om stijlvolle en individuele interieurs te creëren. De verzamelaar, Sander van Eyck, is interieur- en productontwerper. Hij heeft zijn eigen collectie meubels en verlichting onder de naam: 'Made by Sander'.

Schermafbeelding-2018-06-26-om-15.18.30-e1530019385389
24
Adres
Amstelveenseweg 39,
1054 MC Amsterdam

Eginstill

Eginstill is een bijzonder collectief, gespecialiseerd in interieurdesign. Het grote team aan leden, van ambachtsmannen tot aan de creatief leider Frans Pahlplatz, voorziet enthousiastelingen van workshops waarin alle interieur wensen waar kunnen worden gemaakt. Deze processen worden zo duurzaam mogelijk gemaakt, door het gebruik van recyclebare materialen zoals staal en hout van een familiebedrijf in Finland. Eginstill wil het liefste alle projecten zo uniek maken als hun klanten en dit doen ze met passie. Ook voor de lekkere bak koffie kan je hier goed terecht en er is genoeg om tijdens het nuttigen naar te kijken!

dis-studio-Boffi-family-home-18.jpg
DB_111013_13402.png
25
Adres
Amstelveenseweg 2,
1075 XH Amsterdam

DIS Studio

DIS Studio is een designbureau, interieurwinkel en showroom in één. DIS Studio is opgezet door Daniela Germone en Dis Abhelakh. Zij werkten beide voor het Italiaanse interieurmerk Boffi en zijn sinds 2004 samen eigenaar van een eigen studio in Amsterdam. Je kunt bij DIS Studio terecht voor interieusdesign voor je hele huis; van keukens tot stoelen tot tafellampen. Hoewel Daniele en Dis graag werken met strakke Italiaanse designs en natuursteen worden kleine imperfecties niet vermeden. Volgens hen zorgen juist die kleine imperfecties voor een warme en huiselijke sfeer. In de showroom van DIS Studio worden uitsluitend producten getoond van Italiaanse merken. Het is ook de enige plek in Nederland die producten van het merk Boffi verkoopt.

ARTZUID 2023

ARTZUID 2023

‘de Vlinder.’  Een zeventiende eeuws koopmanshuis op de Keizersgracht. Achter de prachtige charmante gevel is naar ontwerp van Studio Groen + Schild uit Deventer een fijne, moderne woning ontstaan die baadt in licht en ruimte

‘de Vlinder.’ Een zeventiende eeuws koopmanshuis op de Keizersgracht. Achter de prachtige charmante gevel is naar ontwerp van Studio Groen + Schild uit Deventer een fijne, moderne woning ontstaan die baadt in licht en ruimte

Buurtgids: Volewijck (Noord) rondom van der Pekstraat

Buurtgids: Volewijck (Noord) rondom van der Pekstraat

Onlangs bekeken
Bekijk het overzicht

Deze site maakt gebruik van cookies.

Voor welke cookies geef je akkoord?