Elegant wonen in een volledig high-end nieuwbouwappartement midden in het centrum van Amsterdam.

Bijzonder wonen in één van de luxe appartementen van het kroonproject "The Artesia" aan de Reguliersdwarsstraat 98, 100 en 106. Dit driekamer appartement is gelegen op de eerste verdieping en heeft twee badkamers en een balkon gelegen op het zuiden. Het hoge afwerkingsniveau en de materiaal keuzes dragen bij aan een stijlvolle woonbeleving. De achterzijde van het appartement en het balkon kijken uit op een drievoudige tuin ontworpen door de internationaal bekende tuinarchitect Piet Oudolf. Het uitzicht op deze beschutte binnentuin wordt adembenemend. 

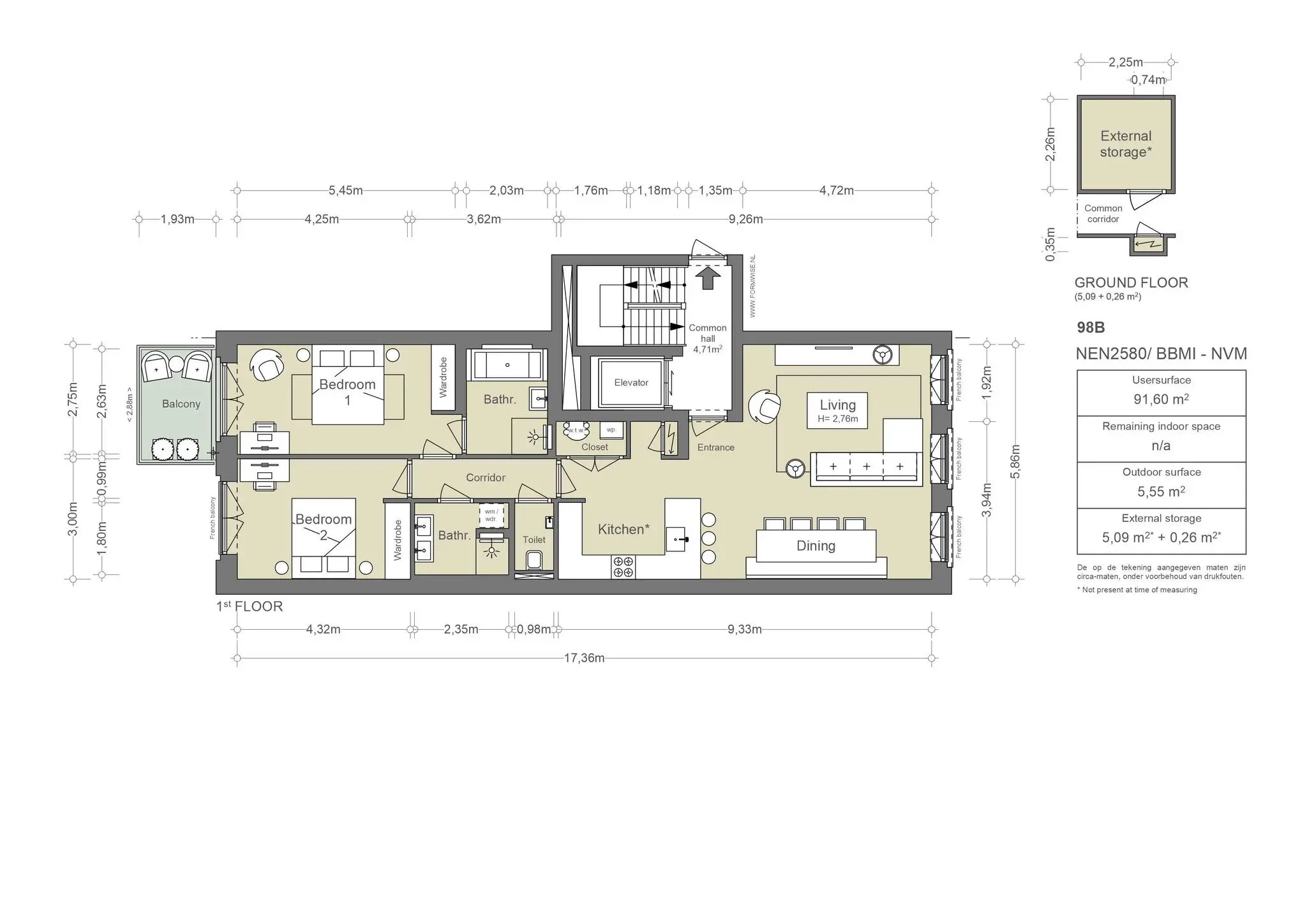
Een rondleiding 

De eerste verdieping
Bij binnenkomst middels de gemeenschappelijke trap of lift spreekt de moderne open woonkeuken aan de voorzijde direct tot de verbeelding. De maatwerk keuken is voorzien van diverse inbouwapparatuur en een kookeiland met ontbijtbar. De woonkamer krijgt veel daglicht binnen door de drie brede ramen en daardoor ontstaat er een ruimtelijk en open gevoel. Aan de achterzijde bevinden zich de twee ruime slaapkamers met inbouwkasten en de twee badkamers, samen voorzien van wastafels, twee douches en een bad. Op de hal bevindt zich een separaat toilet. Het gehele appartement is voorzien van vloerverwarming en er is een lichtplan aanwezig. Er zijn lichte materialen en kleuren gebruikt wat een gevoel van elegantie en luxe geeft. 

Het project
The Artesia bestaat uit een drieluik van 17e-eeuwse panden, gelegen op Herengracht 539 – 543 en de bijbehorende gebouwen aan de daarachter gelegen Reguliersdwarsstraat. Dit betreft de huisnummers 98, 100 t/m 104 en 106, waaronder het originele koetshuis. 

De woningen worden aangesloten op een WKO-installatie met 17 grondwaterbronnen van circa driehonderd meter diep. De bronnen leveren middels de geplaatste warmtepompen verwarming hetzij verkoeling. Ook worden de panden en appartementen bouwkundig geïsoleerd door middel van voorzetwanden, geïsoleerde vloeren en daken. Op deze manier wordt een gasloos complex gerealiseerd met energielabel A++(+). Het projectontwerp is gedaan door Hofman Dujardin die zich richten op een high-end look and feel. 

De omgeving en bereikbaarheid
De Reguliersdwarsstraat kenmerkt zich door het dorpsachtige karakter in het centrum van Amsterdam. De omgeving biedt een groots aanbod van winkels, restaurants, terrassen, koffiecafeetjes en culturele hotspots zoals het Rijksmuseum, De Hermitage, Koninklijk Theater Carré, Hortus Botanicus en Artis. De woning is uitstekend te bereiken door de diverse tram- en bushaltes en het metrostation van de Noord/Zuidlijn op het Rokin. 

De bijzonderheden 
- Beschikbaar: per maart;
- Huurprijs: € 3.250,- excl. per maand;
- Maandelijks bedrag voor warmte/koude levering: € 25,-
- Huurperiode: Model A, onbepaalde tijd, min. 12 maanden;
- Borg: 2 maanden huur;
- Inclusief berging van 5 m2 in gebouw aan de Reguliersdwarsstraat 106;
- Gestoffeerd.

Kenmerken
Reguliersdwarsstraat 98B, Amsterdam
Huurprijs
  • € 3.250 per maand
Beschikbaarheid
  • Per datum
Vertrekken
  • 3 kamers
  • 2 slaapkamers
  • 2 badkamers
Onderhoud
  • Intern: Uitstekend
  • Extern: Uitstekend
Oppervlakten & Inhoud
  • Woonoppervlakte: 92 m²
  • Gebouwgebonden buitenruimte: 6 m²
Bouwjaar
  • 2022
Installaties
  • Lift
Ligging
  • In centrum
Parkeren
  • Betaald parkeren
  • Openbaar parkeren
  • Parkeervergunningen
Bestemming
  • Woonruimte
Buitenruimte
  • Geen tuin
  • Balkon
Duurzaamheid
  • Volledig geisoleerd
  • Energielabel A+++
Soort
  • Appartement
  • Tussenverdieping
Bijzonderheden
  • Gestoffeerd
Plattegrond
Reguliersdwarsstraat 98B, Amsterdam
AM106132-1972735-Reguliersdwarsstraat-98B,-Amsterdam-218037773
Documenten
Reguliersdwarsstraat 98B, Amsterdam
Locatie
Reguliersdwarsstraat 98B, Amsterdam
Eten & drinken
Schermafbeelding 2022-07-01 om 12.24.29
01
Adres
Korte Reguliersdwarsstraat 5-7-9,
1017 BH Amsterdam

Eetsalon Van Dobben

Eetsalon Van Dobben is een begrip in de wereld van kroketten. Midden in het centrum van de stad kan je altijd terecht voor een broodje kroket en een glaasje melk. Op 28 juni 1945 opende Aat van Dobben zijn eerste broodjeszaak in hartje Amsterdam en sindsdien is de plek een pleisterplaats voor artiesten, voetballers en vele andere Amsterdammers. Als je niet van kroketten houdt, is er gelukkig nog een waslijst met andere oer-Hollandse broodjes en gerechten die je kan bestellen, zowel erwtensoep als een boterham met hagelslag.

10
02
Adres
Reguliersdwarsstraat 131,
1017 BL Amsterdam

Tomo sushi

Tomo sushi ligt middenin het centrum van Amsterdam. Het is een modern ingericht Japans sushi en grill restaurant. Tomo Sushi biedt traditionele (a la carte) gerechten die met de fijnste en verste ingrediënten worden bereid. Je kunt plaatsnemen aan de sushibar, waar je kunt genieten van de chefs die de uitstekende sushi en sashimi bereiden.

 

305748202_511320170994427_4478601608384911263_n
03
Adres
Rembrandtplein 1,
1017 CT Amsterdam

Café Los

Tot in de jaren '80 was Café Los een politiebureau. Waar vroeger het cellencomplex stond, bevinden nu de toiletten van het café.  Degene die het pand ombouwde besteedde daaraan al zijn geld en was na de verbouwing dus 'los'. Vandaar de naam. Tegenwoordig is het een gezellig bruin café en open tot diep in de nacht.

275042291_979211133006208_959133114569991851_n
04
Adres
Regulierssteeg 4,
1017 CP Amsterdam

Pho King

In een steegje bij het Rembrandtplein bevindt zich een kleine Vietnamese zaak. De originele smaak van Pho varieert door het hele land, waarbij het in het midden van Vietnam vaak wat pittiger is en in het noorden zouter. Er zijn slechts een paar zitplekken binnen, maar buiten kun je plaatsnemen op houten krukjes. De soep is gevuld met malse reepjes rundvlees, gehaktballetjes en een flinke dosis koriander, taugé en fijngesneden reepjes rode ui, lente-ui en limoen.

05
Adres
Amstel 2,
1017 AA Amsterdam

Incanto

Mooi opgemaakte borden, verfijnde smaken en een centrale locatie aan de Amstel. Met uitzondering op de zondag kan je bij Encanto iedere avond terecht voor stijlvol Italiaans eten. De seizoenskeuken wisselt vier keer per jaar van menu. Denk aan Octopus met crème van gegrilde tomaten, paprika en pompelmoes en Fettucine met ragout van wild zwijn. Van primi tot dulci een absolute kwaliteitskaart.

355451958_3094913100804303_7512211906125210481_n
342046445_949688526364499_2198747169614493523_n
06
Adres
Nieuwe Doelenstraat 2-14,
1012 AC Amsterdam

Marie Amsterdam

Brasserie Marie is verbonden aan het luxueuze Hotel De L'Europe en heeft een mooie ligging aan het water. Het restaurant brengt de smaken van de Côte d'Azur naar het centrum van Amsterdam. Ontdek de Franse keuken met het heerlijke menu vol met de beste gerechten. Chef Jop heeft de kunst van het combineren van moderniteit met de klassieke Franse keuken onder de knie. Geniet van de selectie wijnen, sterke dranken en cocktails die perfect passen bij je maaltijd en geserveerd worden met gastvrijheid van hoog niveau.

downloadgram.org_542337336_17874512580410253_7795320341317476262_n
downloadgram.org_580667533_17882663931410253_9117724728895086368_n
07
Adres
Utrechtsestraat 6hs,
1017 VN Amsterdam

char.d

Bij restaurant char.d staan de chefs Dean Baker en Slava Nazaryan aan het roer. De restaurantnaam verwijst naar de kooktechniek charring: langzaam grillen op houtskool of hout en koken op hoge temperaturen om rijke barbecuesmaken te ontwikkelen. Bij char.d vormen dit soort moderne barbecuetechnieken in combinatie met hoogwaardige ingrediënten de rode draad. Bij char.d kunnen gasten genieten van gerechten die variëren van yellowtail in olijfolie tot maïskip met miso en beurre noissette en een klassieker zoals de New York strip. De twee chefs vullen elkaar perfect aan: Dean is gespecialiseerd in vlees terwijl Slava zich richt op vis. Samen met maître Job Guikema geven de chefs vorm aan een restaurant dat barbecue op een andere manier benadert: verfijnd en internationaal. Het kloppend hart van de zaak is de Sloveense Kopa-houtskoolgrill in de open keuken, door de Britse Baker liefkozend “Bobby” genoemd.

08
Adres
Nieuwe Doelenstraat 2-14,
1012 CP Amsterdam

Restaurant Flore (**)

‘Chef Bas Van Kranen heeft zuivelproducten uit zijn repertoire gebannen en een primaire plaats gegeven in al zijn gerechten. In deze voornamelijk plantaardige aanpak is er nog wel plaats voor wild, gevogelte en vis. Zo hebben we een mooie herinnering aan een kwartel die in zijn geheel op karkas gegaard werd en aan tafel gepresenteerd werd. En daarna mooi ontbeend met fijne wortelbereiding, duindoornbes en jus van de beentjes op het bord verscheen. Vooraf proefden we onder meer van een aparte combinatie rond witte bonen, hazelnoten en peer met daarna zacht gegaarde zeekat afgewerkt met dauwbraam en dulse wier.’

the-beauty-the-bee-afternoon-tea-2022-29-
09
Adres
Herengracht 542-556,
1017 CG Amsterdam

Peacock Alley

Tussen de high tea en de cocktails kan je bij Peacock Alley terrecht voor een perfect bereide burger. Sappig en goed gekruid, belegd met Gouda kaas, zuur, tomaat en uienringen. Peacock Alley is gevestigd in het chique Waldorf Astoria hotel in Amsterdam en is iedere dag geopend van 10:00 tot 22:00 uur.

Schermafbeelding 2022-07-01 om 12.04.10
10
Adres
Herengracht 542-556,
1017 CG Amsterdam

Spectrum (**)

Gevestigd op de mooie Herengracht, in het chique Waldorf Astoria hotel opent Spectrum van woensdag tot zaterdag zijn deuren. . Met liefde voor Nederlandse kooktraditie, steekt chef-kok Sidney Schutte de oude kennis in een nieuwe jasje. Laat je verrassen door de rijke internationale keuken, zomaar bij jou om de hoek. De wijnlijst, samengesteld door Cas Kratz (restaurant manager en sommelier) bevat zeer bijzondere wijnen.

369719256_18387798799002727_3915098169732230990_n
11
Adres
Amstelstraat 5,
1017 DA Amsterdam

Screaming Beans

Screaming Beans is een Amsterdams merk dat lokaal en internationaal bekend staat om zijn hoogwaardige koffie. De ruime locatie aan Amstelstraat is de ideale plek om vrienden en collega's te ontmoeten onder het genot van een smakelijke kop koffie, een stuk heerlijke taart of een verwarmende thee. Het is populair onder kantoormedewerkers en buurtbewoners, vooral in de ochtend op weg naar het werk.

Schermafbeelding 2022-06-20 om 14.36.53
12
Adres
Nieuwe Doelenstraat 12-14,
1012 CP Amsterdam

Trattoria Graziella

Trattoria Graziella viert de pure Italiaanse keuken in al zijn glorie, met huisgemaakte pasta’s, antipasti’s en uitgebreide hoofdgerechten. Denk aan pappardella met lamsstoof en artisjok of Corvina bereid met tomaat en inktvis. Chef Luigi di Benedetto en zijn team streven naar uitgesproken maar gebalanceerde smaken met aandacht voor detail. Buon appetito!

13
Adres
Utrechtsestraat 30A,
1017 VN Amsterdam

Cue Amsterdam (*)

Restaurant CUE Amsterdam biedt een unieke beleving waar gastronomie (restaurant) en muziek (Listening bar) perfect samensmelten.  De culinaire aanpak van CUE is verfijnd en innovatief en laat subtiele Noord Europese en Japanse invloeden zien. Dit is te danken aan chef-kok George Kataras en sommelier Mohamed Aous, die eerder samenwerkten in het met een Michelinster bekroonde restaurant Vanderveen en in 2025 ook hier een ster hebben ontvangen.

downloadgram.org_564220181_122106806385035737_2639409528052682900_n
downloadgram.org_591949292_122113731201035737_4138354092764306839_n
14
Adres
Reguliersdwarsstraat 28,
1017 BM Amsterdam

Blik

Blik is opgezet door Tijn Verstappen en driesterrenchef Jacob Jan Boerma, samen met gastheer Manuel Broekman en ondernemer Tim Ouborg, als een bistro bar waar eenvoud en kwaliteit samenkomen. De kaart draait om herkenbare klassiekers met een creatieve twist, waarbij Boerma’s ervaring in topkeukens voelbaar is zonder dat het stijf of formeel wordt. Naast de gezellige binnenruimte beschikt Blik ook over een tuinterras achter het pand, een fijne plek om bij goed weer te genieten van je gerecht en glas in de buitenlucht.

313291039_676821367342686_470247651338795489_n
15
Adres
Nieuwe Spiegelstraat 3A,
1017 DB Amsterdam

Zero Zero

Zero Zero is een bakkerij en delicatessenwinkel gelegen in Amsterdam en eigendom van dezelfde eigenaren als Ceppi's. Naast het maken van pizza is Greco gespecialiseerd in het maken van zuurdesembrood. De naam Zero Zero komt van bloem als de basis van wat ze verkopen. De Toscaanse zuurdesembroden (schiacciata) zijn belegd met ingrediënten zoals gegrilde aubergine, gemarineerde courgette met munt, balsamico en zongedroogde tomaten (€9), of mortadella, stracciatella en pistache (€10). Zero Zero verkoopt verkoopt naast de broodjes een breed scala aan Italiaanse delicatessen, waaronder wijn, zakken pasta en olijfolie. Verse ingrediënten voor broodjes zijn ook te koop. Hoewel de meeste klanten komen voor een broodje om mee te nemen, zijn ze ook welkom om te blijven en te genieten van een kopje koffie. Volgens Greco zijn alle delicatessen verkrijgbaar bij Zero Zero uit afkomstig uit Italië.

396d30_5a39bb8f65ae440b9bfc8457b6de9f64_mv2
396d30_bf2aeadae3e04cb3907935c5ab9dc64e_mv2
16
Adres
Utrechtsestraat 51,
1017 VJ Amsterdam

De Juwelier (*)

Restaurant De Juwelier is het nieuwe à la carte restaurant van de chefs van het met twee Michelin-sterren bekroonde Restaurant 212. Richard van Oostenbrugge en Thomas Groot openden samen De Juwelier aan de Utrechtsestraat. Zowel klassiekers uit de Franse en Nederlandse keuken staan op de menukaart. Deze chique bistro heeft, verfrissend genoeg, geen concept, maar draait gewoon om lekker bourgondisch eten en genieten. Kortom: een juweeltje.

396d30_2adb332fb9f3414f9c3ae1737f378bed_mv2
396d30_f2cd173c7f3747cb9bcb5c5625584a55_mv2
17
Adres
Utrechtsestraat 57,
1017 VJ Amsterdam

Bistro de la Mer (*)

Na de succesvolle openingen van 212 en restaurant de Juwelier, opent het chef duo Richard van Oostenbrugge en Thomas Groot wederom een succesvol restauramt. Bistro de la Mer bevindt zich maar een paar deuren verder op de Utrechtsestraat. Het is een Frans georiënteerde visbistro met klassieke smaken. Het concept en de prijzen zijn te vergelijken met restaurant de Juwelier, maar dan met een a la carte menu. Ook deze zaak van het succesvolle duo heeft sinds April 2023 een Michel ster.

 

206984316_4227322370657525_3184468636768311086_n
18
Adres
Keizersgracht 711HS,
1017 DX Amsterdam

Café Van Leeuwen

Café Van Leeuwen is een op en top Amsterdams café, beroemd om zijn ouderwets gezellige borrels. Veel verschillende mensen komen hier te gast van buurtbewoners tot vaste klanten en toevallige voorbijgangers weten dit café al ruim 20 jaar weten te vinden. Een goede ontbijt- en lunchkaart, lekkere borrelhapjes een simpel maar goed cafe diner, ook lekkere wijnen en uitgebreid bier assortiment.

Kunst & cultuur
PatheTuschinski_Zaal1i
19
Adres
Reguliersbreestraat 26-34,
1017 CN Amsterdam

Theater Tuschinski

Het Koninklijk Theater Tuschinski is gebouwd in verschillende bouwstijlen, waaronder de Amsterdamse School stijl, Jugendstil en art deco. Het is een ontwerp van Hijman Louis de Jong en werd geopend in 1921. De buitenkant van het gebouw wekt al de aandacht door de velen decoraties en sculpturen en wanneer je de foyer binnenkomt waan je je meteen in een ander tijdperk. Prachtige decoraties, tapijten vloeren en muurschilderingen brengen je terug naar de jaren 20. In de grote zaal kan je blijven kijken naar alle details, de ornamenten en het plafond wat de architect heeft ingebouwd. Naast de grote zaal zijn er ook meerdere kleine zalen waar vroeger cabaretvoorstellingen werden gehouden, dit zijn vandaag de dag ook bioscoopzalen. Er worden veel premières gehouden in Tuschinski en de bioscoop is in bezit van de bioscoopketen Pathé.

foam_editions_rezwt_w1600_h800_h800_q85-1-2
20
Adres
Keizersgracht 609,
1017 DS Amsterdam

Foam

Foam is een fotografiemuseum die meestal meerdere tentoonstellingen tegelijk presenteert. De exposities wisselen van historische foto’s tot kunstfoto’s en van documentairefotografie tot modefoto’s. Elk jaar wordt er werk vertoond van bekende fotografen; denk aan Helmut Newton en William Klein. Foam stimuleert jong talent en zij hebben dan ook de kans om hun werk tijdelijk tentoon te stellen. De zalen zijn strak en modern vormgegeven en de foto’s zijn met spotjes verlicht, zodat deze goed zichtbaar zijn. Foam kan je elke paar maanden opnieuw bezoeken door hun constant wisselende exposities.

goed_formaat_website_peter_kooijman_(16)
21
Adres
Keizersgracht 672,
1017 ET Amsterdam

Museum van Loon

In een voormalig woonhuis uit 1672 aan de Amsterdamse grachtengordel ligt Museum van Loon. Naast vaste opstelling met (historische) portretten, meubilair, zilverwerk en porselein, worden hier ook tijdelijke tentoonstellingen georganiseerd waarbij een deel van de collectie van het museum, het huis, of de geschiedenis van de familie Van Loon centraal staan. Achter het huis ligt de unieke tuin die is aangelegd in de stijl van de 17e eeuw. Kortom een museum waar je terecht kan voor erfgoed, kunstgeschiedenis én hedendaagse kunst.

img_9450-2
22
Adres
Utrechtsestraat 44 BG,
1017 VP Amsterdam

Enari Gallery

Enari gallery ligt in het hart van Amsterdam. Het is opgericht door Paul van Gemen en Christina Voulgari medio november 2022. De galerie legt de nadruk op het cureren van opvallende tentoonstellingen met een sterke internationale oriëntatie, waarbij zowel opkomende als gevestigde kunstenaars worden gepresenteerd. Hun missie is om de culturele loopbaan van de kunstenaars die ze vertegenwoordigen verder te bevorderen door middel van vooraanstaande exposities. Hierdoor biedt de galerie een platform voor artistiek talent om in contact te komen met vooraanstaande figuren uit de kunstwereld.

eetkamer-web
23
Adres
Herengracht 605,
1017 CE Amsterdam

Huis Willet-Holthuysen

Het indrukwekkende Willet-Holthuysenhuis bevindt zich in het hart van Amsterdam. Dit dubbele herenhuis aan de Herengracht herbergt talloze stijlkamers. De naam van het huis is afgeleid van het echtpaar dat hier aan het einde van de 19e eeuw woonde: Abraham Willet en Louisa Holthuysen. Zij verzamelden een schat aan kunst en objecten en lieten het interieur naar hun persoonlijke smaak vormgeven. Zelfs destijds werd dit prachtige huis beschouwd als een eerbetoon aan een romantisch verleden. Het interieur diende als het middel waarmee het echtpaar hun smaak en welvaart met anderen deelde. De schitterende salons zijn in de stijl van Lodewijk XVI ingericht en de tuin is symmetrisch aangelegd als een formele Franse tuin. In deze romantische stijlkamers organiseert het Amsterdam Museum tentoonstellingen met werk van hedendaagse kunstenaars en verzamelaars.

Interieur
EnterTheLoft_IV_WEB_LARGE_AicoLind-14_1500x
EnterTheLoft_IV_WEB_LARGE_AicoLind-9_1500x
24
Adres
Vijzelstraat 77,
1017 HG Amsterdam

Enter the loft

Enter the Loft is een boetiek interieurwinkel en een interieur adviesbureau  met een passie; zien hoe ruimtes hun magie op mensen uitoefenen. Ga langs bij hun showroom aan de Vijzelstraat (by appointment only) en voel hoe zij ruimtes tot leven brengen door ze in te richten met hun favoriete interieurvondsten die met liefde en aandacht zijn gemaakt en die bestaan uit natuurlijke materialen – hout, leer, glas, staal, wol en keramiek.

Boodschappen
sterk-staaltje-winkel
25
Adres
Staalstraat 12,
1011 JL Amsterdam

Sterk Staaltje

Sterk Staaltje is al meer dan twintig jaar een begrip in de binnenstad van Amsterdam. Deze unieke eetwinkel heeft een grote variatie aan eten met een nadruk op vers. Zo is iedere maaltijd, broodje, salade of soep net een beetje anders. Met bezoekers uit alle lagen van de bevolking; van omwonenden en kantoorpersoneel tot studenten en toeristen die hier een broodje komen eten. Je kan hier kortom terecht voor een sterk staaltje eten.

Uitgelicht; Boutique Living

Uitgelicht; Boutique Living

Kunstagenda maart 2025

Kunstagenda maart 2025

Kunst & cultuur agenda februari 2026

Kunst & cultuur agenda februari 2026

Onlangs bekeken
Bekijk het overzicht

Deze site maakt gebruik van cookies.

Voor welke cookies geef je akkoord?