Plantage Kerklaan 22-H is een ruim en karaktervol benedenhuis met tuin, gelegen op een centrale plek in de geliefde Plantagebuurt. De woning maakt deel uit van een voormalig winkelpand en is praktisch ingedeeld met drie volwaardige slaapkamers en een royaal vloeroppervlak. Aan de achterzijde ligt een beschutte binnentuin, waar je geniet van rust in het hart van de stad. De ligging is ideaal: op loopafstand van het historische centrum, de Amstel, de Magere Brug en diverse culturele voorzieningen. Een complete, sfeervolle woning voor wie op zoek is naar ruimte, karakter en een uitstekende bereikbaarheid.

Rondleiding
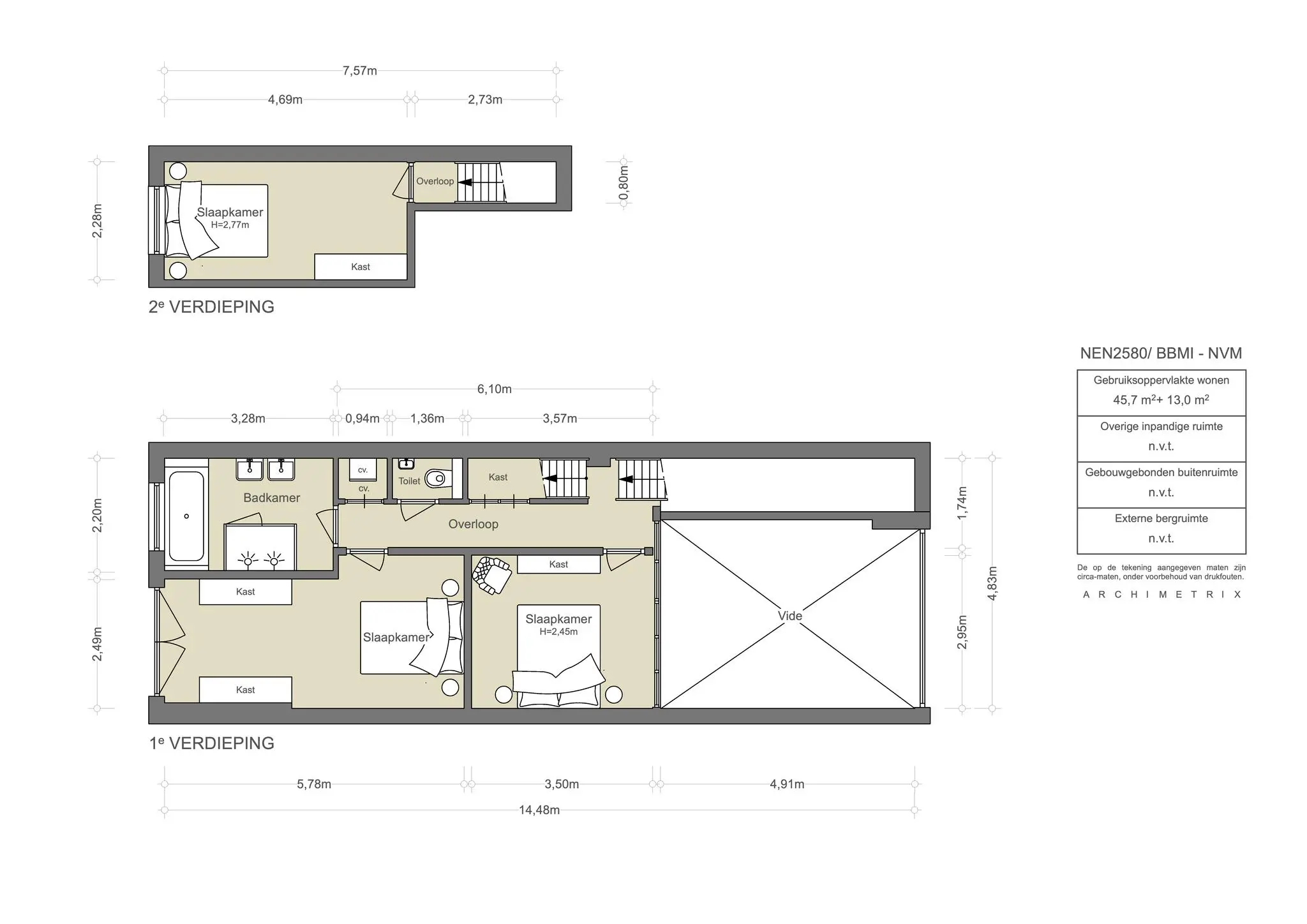
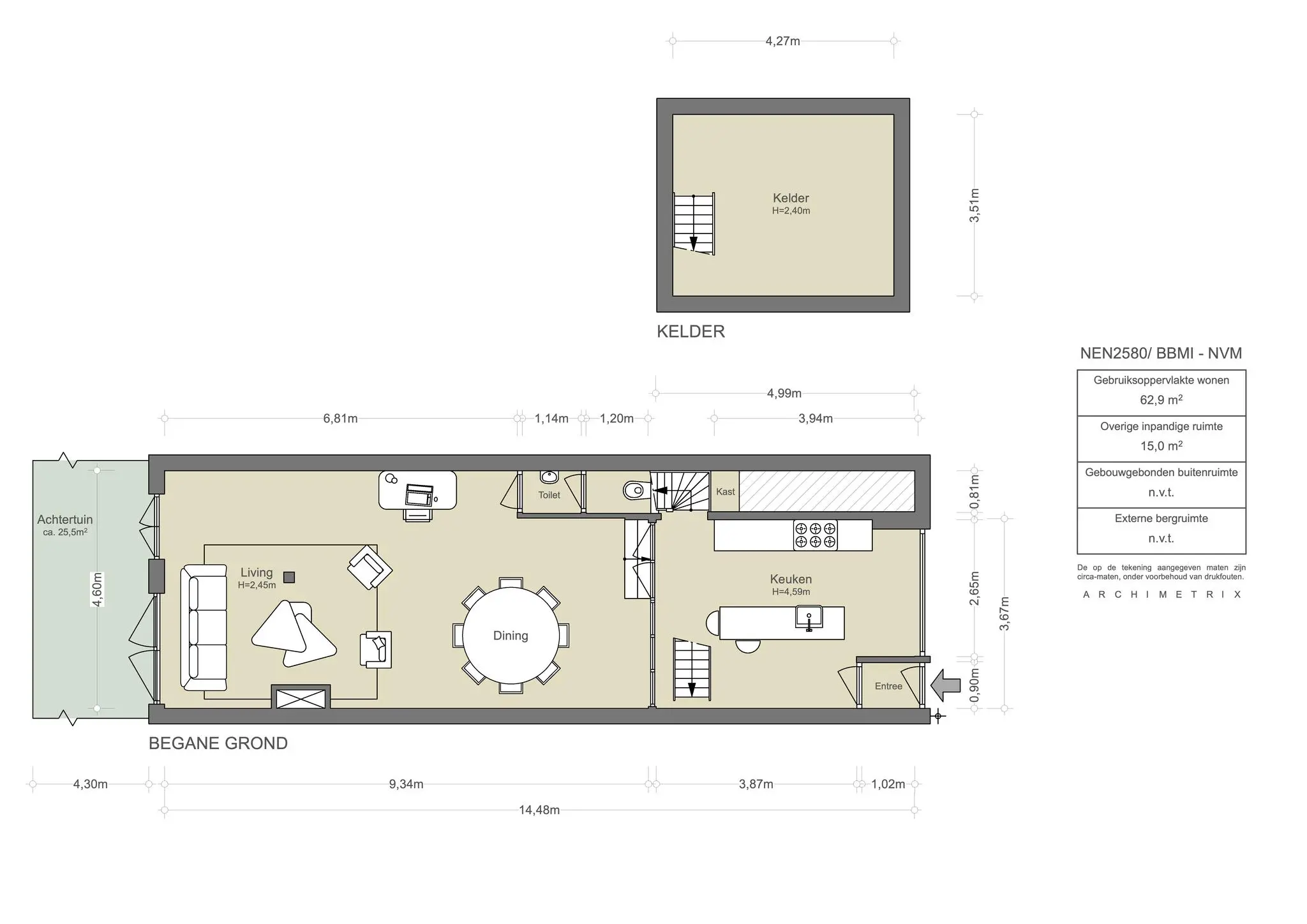
Je stapt binnen via een eigen entree en komt direct in de lichte leefkeuken. Hoge plafonds, klassieke lijsten en een vide bepalen de eerste indruk. De keuken is praktisch ingericht met een eiland en biedt uitzicht op het straatbeeld. Aan de achterzijde opent de ruimte zich naar de woonkamer, waar daglicht via grote glazen deuren binnenvalt en de tuin direct toegankelijk is. De binnentuin is besloten en rustig, met volwassen beplanting rondom. Terug in de woning leidt een vaste trap naar de eerste verdieping. Hier bevinden zich twee slaapkamers en een centraal geplaatste badkamer met ligbad, douche en dubbele wastafel. De hoofdslaapkamer kijkt uit op het groen van de tuin, de tweede kamer ligt aan de straatzijde. De bovenste etage biedt een derde, zelfstandig bruikbare ruimte. Voorzien van ingebouwde kasten en daglicht aan de tuinzijde, is dit een volwaardige slaap-, werk- of logeerkamer. De woning ligt in een rustige straat in de Plantagebuurt, op loopafstand van Artis, de Amstel en diverse horecagelegenheden. Dankzij de centrale ligging zijn zowel het openbaar vervoer als de uitvalswegen goed bereikbaar. Een complete woning, evenwichtig van opzet en sterk in gebruik.

Buurtgids
De Plantagebuurt is een van de groenste wijken van Amsterdam. In deze buurt komen cultuur, kunst en culinair genieten samen, met onder andere restaurants zoals Entrepodok, De Plantage, Bloem en Chez Fabrice. Voor een borrel op een terras zijn Gollem aan het water en Dignita Hoftuin goede plekken. Verder zijn er op loopafstand diverse koffietentjes, zoals Coffee Company en Bagel & Beans. Een heerlijke lunch haal je bij Sagra Food & Wine, waar je ook olijfolie van hun eigen olijfvelden en goede wijn kunt kopen. Op het gebied van cultuur zijn er meerdere musea in de buurt, zoals de Hermitage, het Joods Museum, het Verzetsmuseum en het Tropenmuseum. Dierentuin Artis ligt om de hoek; in de zomer kun je hier op het openbare Artisplein zitten tussen de fonteinen en flamingo’s. Voor de dagelijkse boodschappen is er een grote Albert Heijn aan de Sarphatistraat. Verderop in diezelfde straat vind je ook Kriterion, een filmtheater waar je niet alleen films kijkt, maar ook gezellig kunt borrelen. Het Wertheimerpark, de Hortus en het Oosterpark zijn ideaal om te ontsnappen aan de drukte van het dagelijks leven en te genieten van de natuur. Er zijn verschillende BSO's en goede lagere scholen in de buurt zoals de Boekmanschool.

Bijzonderheden
• Gebruiksoppervlakte wonen circa 122 m²
• Tuin gelegen op het zuidoosten van totaal circa 26 m²
• Gelegen op eigen grond
• Energielabel A
• Servicekosten VvE € 125,- per maand
• Gemeentelijk beschermd stadsgezicht

AM106045-2021704-Plantage-Kerklaan-22H,-Amsterdam-233800094

De Plantage 22
Plantage Kerklaan 22-H is een functioneel ingedeeld benedenhuis met tuin, gelegen op een centrale locatie in de Plantagebuurt. De woning maakt deel uit van een voormalig winkelpand en beschikt over een royaal vloeroppervlak, een logische indeling en drie volwaardige slaapkamers. Het interieur is uitgevoerd met behoud van karakteristieke elementen, zoals hoge plafonds, houten kozijnen en originele detailleringen. De vide boven de keuken en de hoge raampartijen versterken de ruimtelijke beleving. De achterzijde van de woning grenst aan een beschutte binnentuin en biedt rust midden in de stad. De ligging is ideaal: op loopafstand van het historische centrum, de Amstel, de Magere Brug en diverse culturele voorzieningen. Een compleet en verzorgd woonhuis, geschikt voor wie op zoek is naar comfort, karakter en een uitstekende bereikbaarheid.

Jelle Mundt | Makelaar Broersma Wonen


Jelle Mundt | Makelaar Broersma Wonen
Judith de Jong | Makelaar Broersma Wonen
Plantage Kerklaan 22 H-2
Designvisie

De woning is tot stand gekomen door de transformatie van een voormalige winkelruimte op de begane grond. Het resultaat is een helder ingedeelde gezinswoning met een sterk gevoel van ruimte en verbondenheid. De hoge plafonds aan de voorzijde, gecombineerd met de open zichtlijn naar de tuin, zorgen voor een aangename ruimtelijkheid. De centrale woonkeuken fungeert als het hart van het huis, met voldoende ruimte om te koken en te tafelen. De vide boven de keuken voegt een tweede ruimtelijke laag toe en versterkt het verticale contact tussen de verdiepingen. Het daglicht valt diep de woning binnen en maakt van de begane grond een open en levendig geheel. Op de eerste verdieping bevinden zich twee slaapkamers: een ruime hoofdslaapkamer aan de achterzijde en een tweede kamer aan de vide. De centraal geplaatste badkamer is uitgerust met een ligbad, een aparte douche en een wastafel. Het toilet bevindt zich los op de overloop. De tweede etage biedt plaats aan een derde slaapkamer, voorzien van ingebouwde kastruimte en een uitklapbaar bed. Deze verdieping is geschikt als logeerkamer én als thuiswerkplek, en completeert de woning in functionaliteit.

AM106045-2021704-Plantage-Kerklaan-22H,-Amsterdam-233799946
AM106045-2021704-Plantage-Kerklaan-22H,-Amsterdam-233800062
AM106045-2021704-Plantage-Kerklaan-22H,-Amsterdam-233800018
AM106045-2021704-Plantage-Kerklaan-22H,-Amsterdam-233800080
Wonen en koken

De begane grond is ingericht als open leefruimte, met de keuken aan de voorzijde en de woonkamer aan de tuinzijde. De hoge plafonds, originele ornamenten en grote raampartijen bepalen het karakter van de voormalige winkelruimte. De keuken is uitgevoerd met een centraal eiland, terrazzo werkblad, geïntegreerde spoelbak en een groot fornuis. Dankzij de indeling ontstaat een efficiënte werkplek met voldoende bergruimte en plek voor informele momenten aan het aanrecht. De woonkamer ligt aan de achterzijde en staat in directe verbinding met de tuin. Openslaande deuren zorgen voor een logische overgang tussen binnen en buiten. De ruimte biedt plaats aan een royaal zitgedeelte en profiteert van een brede maatvoering. De houten plafondbalken en de vide boven de keuken versterken het gevoel van ruimte, zonder dat dit ten koste gaat van de rust en helderheid van de opzet. De verbinding tussen koken, eten en wonen is open, maar functioneel gescheiden. Daardoor is de verdieping flexibel in gebruik en tegelijkertijd overzichtelijk.

AM106045-2021704-Plantage-Kerklaan-22H,-Amsterdam-233800036
AM106045-2021704-Plantage-Kerklaan-22H,-Amsterdam-233800072
AM106045-2021704-Plantage-Kerklaan-22H,-Amsterdam-233800232
AM106045-2021704-Plantage-Kerklaan-22H,-Amsterdam-233800108
AM106045-2021704-Plantage-Kerklaan-22H,-Amsterdam-233800244
AM106045-2021704-Plantage-Kerklaan-22H,-Amsterdam-233800320
AM106045-2021704-Plantage-Kerklaan-22H,-Amsterdam-233800270
Slapen en baden

De eerste verdieping biedt ruimte aan twee volwaardige slaapkamers. De hoofdslaapkamer ligt aan de achterzijde en is voorzien van een glazen pui met schuifdeur en uitzicht op het groen. De tweede slaapkamer bevindt zich aan de voorzijde en heeft een courante maatvoering, geschikt als kinderkamer, werkkamer of logeerkamer. De badkamer is centraal op de verdieping geplaatst en uitgevoerd in een heldere, tijdloze stijl. De ruimte beschikt over een ligbad, een inloopdouche met dubbele doucheopstelling, een dubbele wastafel en een groot raam dat zorgt voor daglicht en natuurlijke ventilatie. De afwerking is consistent, met witte wandtegels en een donkere tegelvloer. Op de tweede etage bevindt zich een derde slaapkamer. Deze verdieping heeft ingebouwde kasten en biedt voldoende ruimte voor logees of thuiswerken. Dankzij de ligging op de bovenste verdieping is het een rustige, zelfstandige ruimte binnen de woning.

AM106045-2021704-Plantage-Kerklaan-22H,-Amsterdam-233800260
Plantage Kerklaan 22 H-46
AM106045-2021704-Plantage-Kerklaan-22H,-Amsterdam-233800238
AM106045-2021704-Plantage-Kerklaan-22H,-Amsterdam-233800252
AM106045-2021704-Plantage-Kerklaan-22H,-Amsterdam-233800164
AM106045-2021704-Plantage-Kerklaan-22H,-Amsterdam-233800180
AM106045-2021704-Plantage-Kerklaan-22H,-Amsterdam-233800200
De tuin

Aan de achterzijde van de woning bevindt zich een besloten binnentuin, direct toegankelijk vanuit de woonkamer via grote stalen deuren met glas. De buitenruimte is grotendeels bestraat en omsloten door houten erfafscheidingen en volgroeide beplanting, wat zorgt voor een rustige en afgeschermde ligging. De tuin biedt voldoende ruimte voor een zitgedeelte en fungeert als een verlengstuk van de woonruimte. De volledig glazen achtergevel versterkt de visuele en functionele verbinding tussen binnen en buiten, waarbij het groen op natuurlijke wijze bijdraagt aan de woonbeleving.

AM106045-2021704-Plantage-Kerklaan-22H,-Amsterdam-233799992
AM106045-2021704-Plantage-Kerklaan-22H,-Amsterdam-233799968
AM106045-2021704-Plantage-Kerklaan-22H,-Amsterdam-233799958
AM106045-2021704-Plantage-Kerklaan-22H,-Amsterdam-233799962

De Plantagebuurt is een van de groenste wijken van Amsterdam. In deze buurt komen cultuur, kunst en culinair genieten samen, met onder andere restaurants zoals Entrepodok, De Plantage, Bloem en Chez Fabrice. Voor een borrel op een terras zijn Gollem aan het water en Dignita Hoftuin goede plekken. Verder zijn er op loopafstand diverse koffietentjes, zoals Coffee Company en Bagel & Beans. Een heerlijke lunch haal je bij Sagra Food & Wine, waar je ook olijfolie van hun eigen olijfvelden en goede wijn kunt kopen. Op het gebied van cultuur zijn er meerdere musea in de buurt, zoals de Hermitage, het Joods Museum, het Verzetsmuseum en het Tropenmuseum. Dierentuin Artis ligt om de hoek; in de zomer kun je hier op het openbare Artisplein zitten tussen de fonteinen en flamingo’s. Voor de dagelijkse boodschappen is er een grote Albert Heijn aan de Sarphatistraat. Verderop in diezelfde straat vind je ook Kriterion, een filmtheater waar je niet alleen films kijkt, maar ook gezellig kunt borrelen. Het Wertheimerpark, de Hortus en het Oosterpark zijn ideaal om te ontsnappen aan de drukte van het dagelijks leven en te genieten van de natuur. Er zijn verschillende BSO’s en goede lagere scholen in de buurt zoals de Boekmanschool.

Bereikbaarheid
De woning is gelegen in de Plantagebuurt, op een centrale locatie in de stad. Openbaar vervoer is goed geregeld: de dichtstbijzijnde metrohalte bevindt zich op het Jonas Daniël Meijerplein en biedt directe verbindingen naar Amsterdam Centraal en de Zuidas. Op de Plantage Middenweg is een tramhalte met diverse lijnen binnen de stad. De locatie is ook goed bereikbaar met de auto. Via de uitvalsweg S111 is er een directe verbinding naar de Ring A10, evenals naar de snelwegen A1 en A2. Fietsers profiteren van een fijnmazig netwerk van fietsroutes en korte afstanden naar voorzieningen, parken en stations.

Parkeergelegenheid
Parkeren is mogelijk via een vergunningenstelsel op de openbare weg (vergunningsgebied Centrum 3). Met een parkeervergunning voor Centrum 3 mag u parkeren in Centrum-1 en Centrum 3. Een parkeervergunning voor bewoners kost € 326,65 per 6 maanden.
Momenteel is er voor dit vergunningsgebied een wachttijd van 10 maanden. Een tweede parkeervergunning is in dit gebied niet mogelijk. (Bron: Gemeente Amsterdam, juni 2025).

AM106045-2021704-Plantage-Kerklaan-22H,-Amsterdam-233800286
AM106045-2021704-Plantage-Kerklaan-22H,-Amsterdam-233800076
Wat de eigenaren gaan missen

Zodra je binnenkomt, voel je meteen de ruimte, de rust en de rijke historie die de woning uitstraalt. Het is een plek waar verleden en comfort samenkomen. Het favoriete plekje in huis is zonder twijfel aan de bar in de keuken, waar koken en gezelligheid samenkomen, en bij de open haard, waar je heerlijk kunt ontspannen. De Plantagebuurt ademt historie en gezelligheid. In de zomer zit je op het Artisplein tussen de lepelaars en spelende kinderen, en in de winter geniet je van lange, ontspannen lunches bij restaurant De Plantage. Door de levendigheid van de nabijgelegen Universiteit van Amsterdam bruist de buurt het hele jaar door. Favoriete plekjes in de buurt zijn Sagra Food & Wine voor een heerlijke lunch, Box Social voor koffie, Bioscoop Rialto voor een avondje film, de kleurrijke Dappermarkt, en natuurlijk Artis en de Hortus voor een groene ontsnapping. Wat het meest gemist zal worden, is de stilte vanuit de slaapkamers, af en toe verstoord door het zachte gezang van vogels of het geroezemoes van de lemuren in Artis – een bijzondere herinnering aan deze unieke plek.

AM106045-2021704-Plantage-Kerklaan-22H,-Amsterdam-233800226
AM106045-2021704-Plantage-Kerklaan-22H,-Amsterdam-233800120
Kenmerken
Plantage Kerklaan 22H, Amsterdam
Vraagprijs
  • € 1.140.000 k.k.
Beschikbaarheid
  • In overleg
Vertrekken
  • 4 kamers
  • 3 slaapkamers
  • 1 badkamer
Onderhoud
  • Intern: Goed
  • Extern: Goed
Oppervlakten & Inhoud
  • Woonoppervlakte: 122 m²
  • Overige inpandige ruimte: 15 m²
  • Tuinoppervlakte: 26 m²
Bouwjaar
  • 1835
Installaties
  • Natuurlijke ventilatie
  • TV kabel
Ligging
  • In centrum
  • In woonwijk
Parkeren
  • Betaald parkeren
  • Parkeervergunningen
Type verwarming
  • CV Ketel
  • Gashaard
Type warmwater
  • CV Ketel
Bestemming
  • Woonruimte
Eigendomssoort
  • Volle eigendom
Buitenruimte
  • Achtertuin
Kadastraal
  • Gemeente: Amsterdam
  • Sectie: O
  • Nummer: 5303
Duurzaamheid
  • Dubbel glas
  • Energielabel A
Soort
  • Appartement
  • Benedenwoning
Bijzonderheden
  • Beschermd stads of dorpsgezicht
Overige kenmerken
  • OZB ('25) € 557,38 per jaar
  • Rioolrecht ('25) € 185,20 per jaar
  • Servicekosten VvE € xxx per maand
Plattegrond
Plantage Kerklaan 22H, Amsterdam
AM106045-2021704-Plantage-Kerklaan-22H,-Amsterdam-235098100
AM106045-2021704-Plantage-Kerklaan-22H,-Amsterdam-235098110
Documenten
Plantage Kerklaan 22H, Amsterdam
Locatie
Plantage Kerklaan 22H, Amsterdam
Eten & drinken
blog-1
01
Adres
Plantage Middenlaan 30A,
1018 DG Amsterdam

Box Sociaal

Box Sociaal is in de eerste plaats een ontbijt- en brunchrestaurant, maar biedt ook diner- en drankopties aan. Het menu is geïnspireerd op Australië. De gerechten worden bereid met duurzame en lokale producten. Voor vegetariërs en veganisten is er goed nieuws: alle vleesburgers kunnen worden vervangen door de 'Beyond Meat Burger'. Geniet van een kwalitatieve brunch, lokaal gebrande koffie, zorgvuldig geselecteerde natuurwijnen, op maat gemaakte cocktails en heerlijke speciaalbieren.

Low-Res-voor-internet-Eik-en-Linden-2021-Livestream-Copyright-Janus-van-den-Eijnden-2-768×512
02
Adres
Plantage Middenlaan 22A,
1018 DE Amsterdam

Café Eik en Linde

Café Eik en Linde is een echte Amsterdamse bruine kroeg met een lange geschiedenis. Tegenwoordig komt hier een gemêleerd publiek samen dat reikt van stamgasten en biljarters tot studenten en toeristen. Het zorgt voor een aangename sfeer waardoor het café een begrip is geworden, ook buiten Amsterdam. Het café is onder meer bekend om de radio-uitzendingen die in de bovenzaal werden opgenomen, met als beroemdste uitzending ‘Een dik uur met Ischa’ van Ischa Meijer. Het is kortom een plek waar politiek, literatuur en kunst samenkomen met een biertje.

de+Plantage-Buiten+Herfst-129+copy
03
Adres
Plantage Kerklaan 36,
1018 CZ Amsterdam

De Plantage

Bij De Plantage kom je voor de klassieke, statige Amsterdamse grandeur. Bij de bijzondere plek naast/in Artis kan je terecht voor alles en meer: een prima kop koffie met een ontbijtje, een snelle of langzame lunch of een uitgebreid diner. De plek voelt groot aan bij binnenkomst, maar de inrichting is intiem. Laat je verrassen door de Plats de Plantage van de chefs, of kies uit de vele à la carte opties. Laat zeker de Hemelse Modder als dessert niet aan je voorbij gaan.

Schermafbeelding 2022-06-27 om 17.36.31
Schermafbeelding 2022-06-27 om 17.36.48
04
Adres
Entrepotdok 8,
1018 AD Amsterdam

Restaurant Entrepot

Dit restaurant zit, (verrassend genoeg) gevestigd op het Entrepotdok. Een van de mooiste stukjes Amsterdam, prachtige grachten maar haast onaangeraakt door toeristen. Het restaurant zit in een van de oude pakhuizen en de veel van het eten op de kaart is bereid op open vuur. De wijnkaart is ook uitstekend en het restaurant is ruim en heel gezellig. Goede service en heerlijk eten en drinken.

Processed with VSCO with s3 preset
05
Adres
Kadijksplein 4,
1018 AB Amsterdam

Sotto Pizza

Sotto Pizza is één van de top 10 Italiaanse restaurants in Amsterdam. Het restaurant opende haar deuren in 2021, maar is sindsdien een begrip onder de pizza-liefhebbers. De diverse keuze is een weergave van de kundigheid van de koks, maar hun klassieke Margherita is onverslaanbaar. Het interieur heeft iets weg van een moderne Spaanse tapasbar, met een fijne sfeer. Je kan bij Sotto uitgebreid tafelen of snel een pizza eten aan de bar. Het personeel is behulpzaam en vriendelijk.

300799293_442244344620995_5318374096276279217_n
06
Adres
Rapenburgerplein 83,
1011 VJ Amsterdam

Café de Druif

Café de Druif is een van de oudste proeflokalen in Amsterdam. Tijdens de Gouden Eeuw kregen hier matrozen druiven als cadeau en zo is het aan zijn naam gekomen. Tegenwoordig is het een ontmoetingsplek voor veel stamgasten. Op het grote terras aan het water kan je er heerlijk zitten met een zeer uitgebreide bierkaart. Het decor bestaat uit kleine vaten opgesteld waaruit vroeger de jenever getapt werd en in plaats van muziek luister je naar het geluid van kletsende stamgasten.

07
Adres
Kadijksplein 9,
1018 AC Amsterdam

A Tavola

Italiaanse keuken met gerechten gebaseerd op klassieke familierecepten. De wortels van A Tavola liggen in Palomonte, een klein dorpje in de provincie Salerno, een vruchtbaar gebied doordat het op vulkanische grond ligt. Ze koken hier op gevoel, volgens de koks hier is dat de basis voor puur, traditioneel Italiaans eten. Ambacht en kwaliteit staan voorop en dat proef je. Verse producten, met aandacht bereid.

DSC05478
08
Adres
Rapenburgerplein 1,
1011 VA Amsterdam

Café Scharrebier

Café Scharrebier is een erkend proeflokaal van Brandbieren en lid van de Amsterdamse Brandslang. Maak kennis met het unieke karakter van elk van de Brand bieren in ons Brand Proeflokaal. Alle kasteleins zijn bij Brand op de brouwerij geweest, waar ze persoonlijk zijn meegenomen in de kunst van het brouwen. Scharrebier is een perfect Amsterdamse bruincafé waar je altijd terecht kan voor een goede portie gezelligheid. Uitkijkend op de Nieuwe Herengracht kan je hier heerlijk mensen kijken.

downloadgram.org_559858310_17895309681315568_8989814781705937724_n
09
Adres
Amstel 47,
1011 PW Amsterdam

Alpha Deli

Alpha Deli wordt gerund door Marius, een Griekse ondernemer die met zijn zaak een stukje Athene naar Amsterdam brengt. Hij staat zelf op de vloer, begroet zijn gasten persoonlijk en serveert traditionele Griekse koffie en snacks zoals spanakopita en hartige filodeeggebakjes. De ingrediënten komen grotendeels uit Griekenland, waardoor de smaken dicht bij huis blijven. Overdag is het een fijne plek voor koffie en iets zoets, later op de dag schuif je net zo makkelijk aan voor salades en warme hapjes.

210216-StudioHENK-March-Campaign_-940_c6762d4f-0fa1-48be-b1bc-fe6926edfc3e_1280x
4F1CBAC2-EB37-4655-914A-D166C6FD0447_96ac6b3e-5d29-4e5a-8292-1601c74d4167_1540x
10
Adres
Andreas Bonnstraat 2,
1091 AX Amsterdam

Yusu

Bij Yusu verkopen en serveren ze verschillende soorten koffie. De bonen worden geïmporteerd, geselecteerd en gebrand in samenwerking met Back to Black Coffee. De importeurs stimuleren boeren op diverse manieren om duurzamer te werken. Naast het serveren van goede koffie worden alle lekkernijen in eigen huis bereid. Mede-oprichter Nicole heeft een enorme passie voor bakken en heeft de recepten voor de taarten samen met Kick ontwikkeld. Probeer de traditionele Surinaamse gebakjes of de Braziliaanse kaasbal.

332194684_1210683406229899_1266038755429113890_n
320556713_1299962830790670_8095264289252116921_n
11
Adres
Boerhaaveplein 3,
1091 DH Amsterdam

Five Ways Coffee Roasters

Five Ways Coffee Roasters begon als een bescheiden koffiebranderij in Amsterdam bij Spot On Coffeeroaster. Enkele jaren geleden vestigde de eigenaar zich in Nederland en heeft sindsdien zijn tweede succesvolle specialty koffiebar in Amsterdam geopend. In Oost is de koffiebar meer gericht op koffie met eten. Zo heeft eigenaar Benny een eigen chef die constant bezig is met het verbeteren van zijn recepten en het gebruik maken van seizoensproducten.

Hapjeshoek
12
Adres
Waterlooplein 6,
1011 MS Amsterdam

De Hapjeshoek

De Hapjeshoek is een bruisend Surinaams eethuis. Het is gevestigd in het historische metrostation Waterlooplein en verwelkomt gasten al sinds 1995. Het is opgericht door drie broers en het is uitgegroeid tot een levendige locatie vol heerlijk eten en vriendelijk personeel. Geniet van een gevarieerd menu met verse Surinaamse broodjes, hapjes en maaltijden voor lunch en diner. Allemaal samengesteld om kwaliteit te bieden tegen betaalbare prijzen.

410122272_17878473722990810_444435071764874332_n
13
Adres
Peperstraat 23,
1011 TJ Amsterdam

Restaurant R21

Chef Orlando David (werkte voorheen o.a.voor Oud Sluis van Sergio Herman ***) opende in de Peperstraat tegenover Gebr Hartering een fine dining restaurant. Je eet er een 6 of 7 gangen menu voor respectievelijk 75 en 90 euro, maar er is ook een a la carte menu beschikbaar. De reislust van de chef is zichtbaar en te proeven in zijn stijl van koken. Invloeden en producten van de hele wereld sieren de gerechten.

332894119_921385202326600_5373420399738393924_n
14
Adres
Mauritskade 61,
1092 AD Amsterdam

Spring Cafe Brasserie

In het vijfsterrenhotel Pillows Grand Boutique Hotel Maurits At The Park bevindt zich Spring Café Brasserie met uitzicht op het Oosterpark en een heerlijk terras voor de zomer. Binnen heerst een echte brasseriesfeer met een gevarieerd menu, waaronder klassiekers zoals steak tartaar en prei met sauce gribiche.

Boodschappen
241491943_1718774814985933_3325818017112894796_n
269905089_1802052389991508_8614231142031174020_n
15
Adres
Plantage Kerklaan 41,
1018 CV Amsterdam

De Deli

Een eigentijdse deli in de luwte van de Plantage, waar buurtgevoel en kwaliteit samenkomen. De Deli combineert koffiebar, lunchplek en delicatessenwinkel in één ontspannen setting. Op het menu staan seizoensgebonden gerechten, versgebakken brood en huisgemaakte specials. De focus ligt op lokale producten en eenvoud, zonder in te leveren op smaak of detail.

bakhuys-7-scaled
16
Adres
Sarphatistraat 61,
1018 EX Amsterdam

Bakhuys

Bakhuys valt zeker onder de top tien bakkers van Amsterdam, met authentiek houtoven gebakken broden. Het familiebedrijf houdt een traditie van vijf generaties in stand sinds 1926. Bakhuys staat bekend om het lekkerste biologische dezembrood, allerlei Franse specialiteiten en niet te vergeten de dezem pizza. Stuk voor stuk met aandacht bereid. Daarbij eet je hier lekkere taartjes (van bakkerij Jongejans), homemade pizza en fantastische belegde broodjes, zoals de geïmporteerde Italiaanse salami en venkelmayonaise.

Kunst & cultuur
17
Adres
Plantage Middenlaan 2a,
1018 DD Amsterdam

Hortus Botanicus

De Hortus Botanicus Amsterdam is een van de oudste botanische tuinen ter wereld. Ook de Oranjerie, het bijbehorende grand café, is een eeuwenoud monument waar je – zelfs midden in de winter – heerlijk tot rust komt. Ze hebben een uitgebreide lunchkaart, en je eet terwijl je middenin de prachtige tropische tuinen zit. In de zomer is het terras natuurlijk ook open. Het is een van de best bewaarde geheimpjes van Amsterdam, zeker de moeite waard om heen te gaan en de rust van het groen zelf te ervaren.

artis_hoofdentree_ingang_adelaars_r_1920x1080.jpg__1920x0_q85_subject_location-1023,731_subsampling-2
18
Adres
Plantage Kerklaan 38-40,
1018 CZ Amsterdam

Artis

Artis is de oudste dierentuin van Nederland, het werd in 1838 opgericht met het doel om de natuur dichter bij de mensen te brengen. Het begon klein als een tuin met vijver en een wintertuin en in de loop der jaren kwamen er steeds meer gebouwen dieren en bomen bij. Vandaag de dag zijn er meer dan 900 verschillende diersoorten te bewonderen waaronder ook enkele bijzondere diersoorten zoals de algazellen, de witstaartgnoes en de margay. Je kan een hele dag zoet zijn in Artis. Waan je bijvoorbeeld in een tropisch klimaat, bewonder bijzondere vissensoorten en lach om de aapjes op de apenrots.

Schermafbeelding-2015-03-02-om-15.11.36
KriterionHall1
19
Adres
Roetersstraat 170,
1018 WE Amsterdam

Filmtheater Kriterion

Filmtheater Kriterion is een van de eerste projecten van Stichting Kriterion en wordt sinds 1945 volledig gerund door studenten. Je vind het filmtheater naast het Roetserseiland campus complex van de Universiteit van Amsterdam. Het wekelijks programma van Kriterion bestaat uit een breed scala van films; Kriterion kun je bezoeken voor arthouse films, documentaires en internationale screenings. In het café van Kriterion kun je voorafgaand aan of na afloop van de film samen nog gezellig een drankje drinken. Een aanrader is de Sneak Preview die Kriterion als eerste in Nederland heeft geïntroduceerd. Elke dinsdag om kwart voor 8 kun je je door Kriterion laten verrassen met de nieuwste films. Een ticket voor de Sneakpreview kost slechts 5 euro.

2020 galeriefoto
20
Adres
Nieuwevaart 200,
1018 ZN Amsterdam

Galerie Franzis Engels

Op een steenworp afstand van het Centraal Station kun je Galerie Franzis Engels vinden. Een galerie voor hedendaagse kunst met wel vier verdiepingen. Op de bovenste verdieping worden zowel solo- als thematische tentoonstellingen gehouden. De drie benedenverdiepingen en de tuin tonen frisse en verrassende werken uit het galeriearchief van nationale en internationale kunstenaars.

Evabloem_Hermitage-020.jpg.1200x630_q85
21
Adres
Amstel 51,
1018 EJ Amsterdam

H'ART Museum

'Het voormalige Hermitage museum gaat nauw samenwerken met British Museum, Centre Pompidou en Smithsonian American Art Museum. H’ART Museum opent vensters op de wereld en toont de verbindende kracht van kunst.' Door de verbintenis met deze internationale topmusea komen wereldberoemde kunstcollecties naar Amsterdam. Centre Pompidou heeft een van de belangrijkste collecties moderne en hedendaagse kunst in Europa. Het British Museum kent als een van de oudste musea ter wereld een collectie die continenten en oceanen omspant. Smithsonian American Art Museum (SAAM) heeft naam en faam als een van de bekendste musea van het Smithsonian Institution.

 

BC_02028_052
22
Adres
Amstel 51,
1018 EJ Amsterdam

Amsterdam Museum

In het voormalige Burgerweeshuis van Amsterdam bevindt zich sinds 1975 het Amsterdam Museum. In 1926 opende het museum in de Waag en sindsdien fungeert het museum als ware schatkamer van de stad. De historische collectie vertelt aan de hand van duizenden kunstwerken en voorwerpen het indrukwekkende verhaal van de stad, reikend van de vroege Middeleeuwen tot het heden. Naast de vaste collectie die het historische verhaal van Amsterdam laat zien, vertellen de wisselende tentoonstellingen de verhalen van het hedendaagse Amsterdam.

© Twycer / www.twycer.nl
23
Adres
Kattenburgerplein 1,
1018 KK Amsterdam

Scheepvaartmuseum

Ontdek de scheepvaart en de maritieme geschiedenis van Nederland in het scheepvaartmuseum. Het museum ligt in het water aan het oosterdok, vroeger werd dit gebouw gebruikt als pakhuis voor de opslag van scheepsuitrusting en kanonnen toen Amsterdam nog de grootste haven ter wereld was. De collectie bevat schilderijen, scheepsmodellen, kaarten en wapens. Het is het op een na grootste maritieme museum ter wereld. In het water voor het museum ligt een replica van het VOC-schip ‘Amsterdam’. In de tongewelven onder de binnenplaats werden vroeger duizenden liters water opgeslagen om de scheepsliederen te voorzien van water onderweg.

Interieur
14485124_526385714238776_4161774116515468985_n
24
Adres
Valkenburgerstraat 167-A,
1011 MJ Amsterdam

Arclinea

Bij Arclinea Amsterdam helpen ze je graag bij het creëren van je Italiaanse droomkeuken. De keukens behoren door hun professionaliteit, klasse en tijdloosheid tot de absolute top van het keukendesign. Stuk voor stuk combineert Arclinea in hun keukens professioneel koken met prachtig design en innovatieve apparatuur.Bekijk het zelf in hun showroom aan de Valkenburgerstraat in Amsterdam.

47682925_2138085526252244_3479898621955014656_n
25
Adres
Valkenburgerstraat 201A,
1011 MJ Amsterdam

Baden baden

Baden Baden Interior is een badkamer- en interieurwinkel die in 2000 werd opgericht. De winkel bestaat uit een regelmatig wisselende eclectische mix van meubelen, design, kunst, objecten en accessoires. Als liefhebber van goed design kan je je hart ophalen bij Baden Baden Interior en kom zeker langs voor luxe, tijdloze en comfortabele badkamers, kranen en Italiaanse merken die naadloos aansluiten bij uw persoonlijke wensen.

Buurtgids: De Rivierenbuurt rondom de President Kennedylaan

Buurtgids: De Rivierenbuurt rondom de President Kennedylaan

Buurtgids rondom de Andreas Schelfhoutstraat

Buurtgids rondom de Andreas Schelfhoutstraat

Amsterdam, een bruisende hub voor creativiteit, innovatie en samenwerking.

Amsterdam, een bruisende hub voor creativiteit, innovatie en samenwerking.

Onlangs bekeken
Bekijk het overzicht

Deze site maakt gebruik van cookies.

Voor welke cookies geef je akkoord?